HRERA GurugramTemp Project Id : RERA-GRG-PROJ-247-2019
Submission Date : 05-08-2019 10:42:14 AM
Applicant Type : Company
Project Type: ONGOING




ELDECO SOHNA PROJECTS LIMITED
CORPORATE ADDRESS-201-212, SPLENDOR FORUM, SECOND FLOOR, JASOLA DISTRICT CENTER, NEW DELHI-110025 REGISTERED ADDRESS- S-16, ELDECO STATION-1,SITE NO.1,SECTOR-12, FARIDABAD, HARYANA 121007
01140655000
9811802349 (Number Shared by Promoter in Public)
secretarial@eldecoproperties.com
https://www.eldecogroup.com
XXXX260N
U45200HR2006PLC073744
 
 


 
 


 
 


 
 


 
 







ELDECO ACCOLADE
VILLAGE SOHNA, SECTOR-2, SOHNA
SOHNA
GURUGRAM
01140655000
9811802349 (Number Shared by Promoter in Public)
secretarial@eldecoproperties.com
ARUN KUMAR SINGH
01140655000
9910482382 (Number Shared by Promoter in Public)
arun.singh@eldecoproperties.com








As per sub-rule(2) of rule 3 of the Haryana Real Estate (Regulation and Development) Rules,2017, the fee for registration of the project as has been calculated as follows:
-----------------------------------------------------------------------------------------------------------------------
-----------------------------------------------------------------------------------------------------------------------
-----------------------------------------------------------------------------------------------------------------------
-----------------------------------------------------------------------------------------------------------------------
2. The aforesaid fees is hereby deposited vide following Drafts/ Banker’s Cheques:-

Sr No.Draft/Cheque No.Draft DateAmountPayee BankPayable To
1612528-07-2017535000HDFC BANK LTDHRERA Gurugram
2613929-07-2017401000HDFC BANK LTDHRERA Gurugram
32667130-07-2018657291HDFC BANK LTDHRERA Gurugram







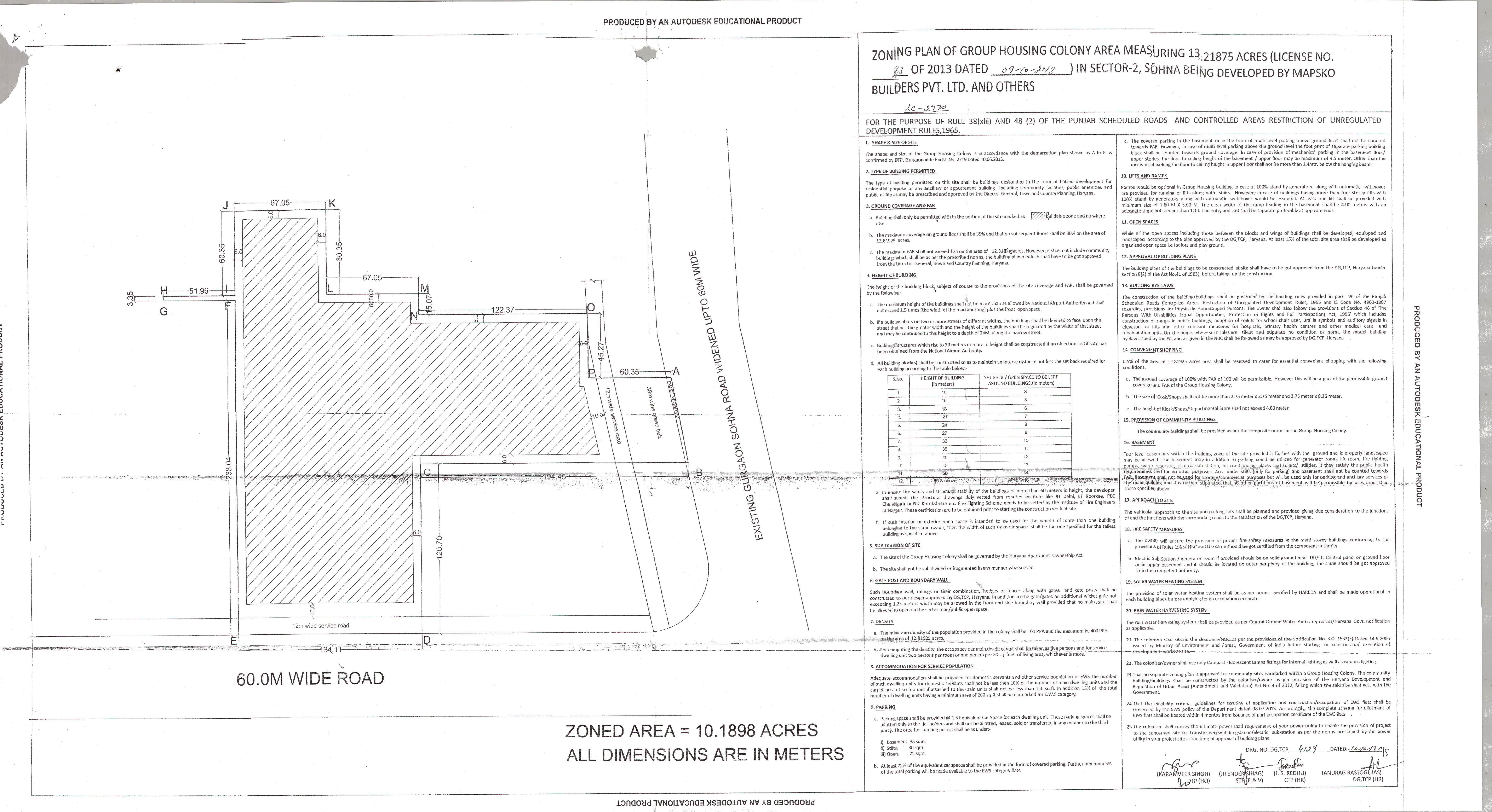
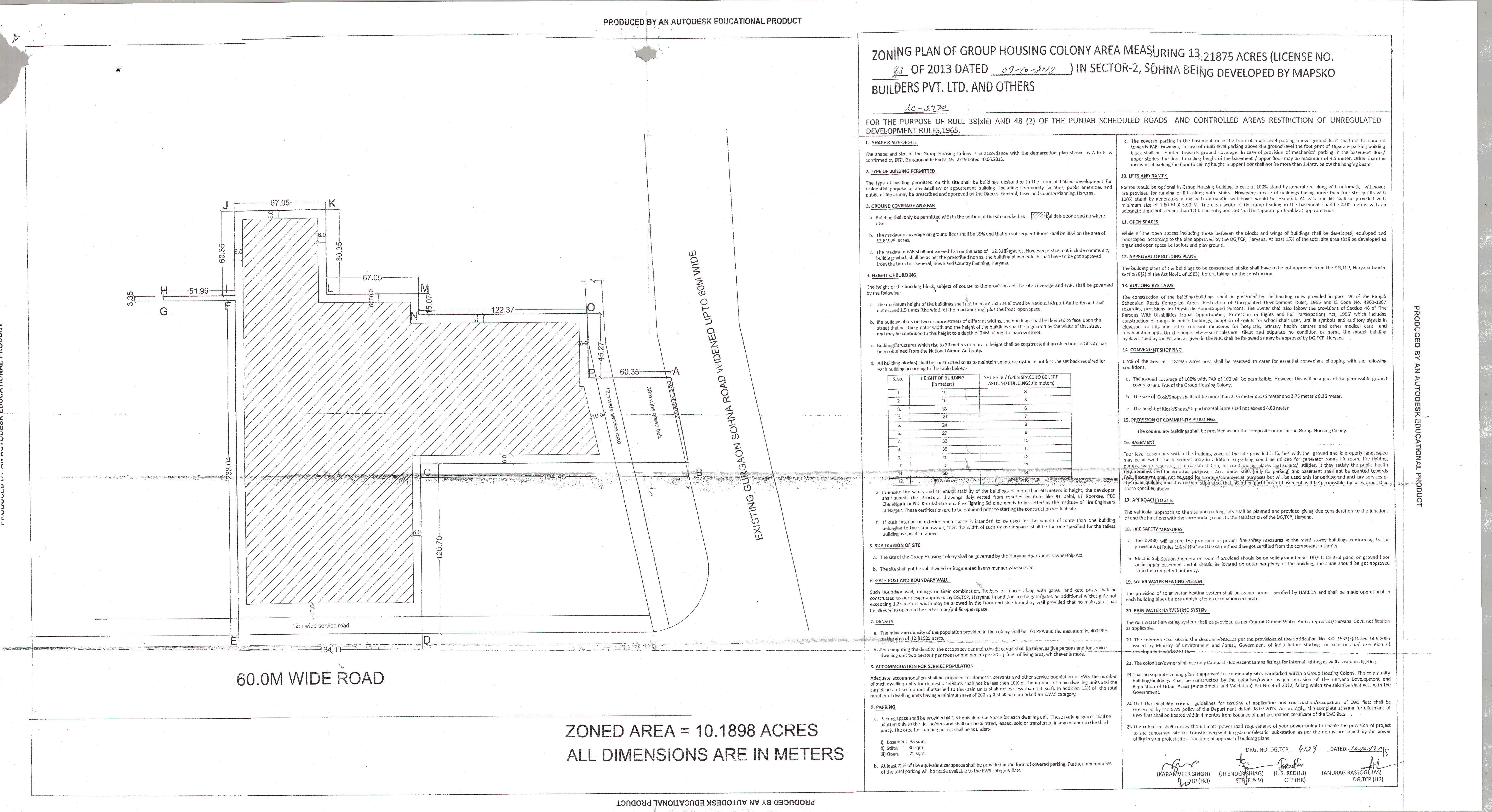
13.216 (Acre)
175
174.86
13.218 (Acre)
83 of 2013
Yes







63521 Lakhs
15813 Lakhs
18323 Lakhs
5510 Lakhs
23875 Lakhs




Sr. No.Land area under usageArea of land (Square Meters)
1PLOTS TO BE SOLD 0
2LAND AREA TO BE USED FOR CONSTRUCTION OF APARTMENTS 6429.018
3CONSTRUCTION OF ROADS 5974.5
4PAVEMENTS 4281
5PARKS AND PLAYGROUNDS 18374.1
6GREEN BELTS 3233.441
7VEHICLE PARKINGS 4187.5
8ELECTRICITY SUB-STATION 0
9CLUB HOUSE 1378.53
10SEWAGE AND SOLID WASTE TREATMENT FACILITY 0
11AREA TO BE LEFT FOR TRANSFERRING TO THE GOVERNMENT FOR COMMUNITY SERVICES 0
12ANY OTHER 0
13NURSERY SCHOOL AND OTHER OPEN AREAS 9636.294
Total53494.383




FacilityExternal/ connecting service to be provided by (Name the agency)Whether Approval taken from the agency concerned. Yes/No (Annex details in folder C)
ROADSPWD HARYANAYes
WATER SUPPLYADMINISTRATION,HUDAYes
ELECTRICITYDAKSHIN HARYANA BIJILI VITRAN NIGAM, GURUGRAMYes
SEWAGE DISPOSALNOT APPLICABLE FOR OUR PROJECT AS PER SERVICE ESTIMATE Yes
STORM WATER DRAINAGENOT APPLICABLE FOR OUR PROJECT AS PER SERVICE ESTIMATE Yes




Sr. No.Name of the facilityEstimated cost (In Lakhs)(Within the project area only)Remarks: Yet to be prepared / Submitted to HUDA, Town & Country Planning Department/ as per project report etc. (Annex relevant documents showing costing details etc. in folder C)
1INTERNAL ROADS AND PAVEMENTS409.81SUBMITTED TO TOWN & COUNTRY PLANNING
2WATER SUPPLY SYSTEM285.10SUBMITTED TO TOWN & COUNTRY PLANNING
3STORM WATER DRAINAGE107.40SUBMITTED TO TOWN & COUNTRY PLANNING
4ELECTRICITY SUPPLY SYSTEM1425.00AS PER PROJECT REPORT
5SEWAGE TREATMENT & GARBAGE DISPOSAL184.61SUBMITTED TO TOWN & COUNTRY PLANNING
6STREET LIGHTING50.67SUBMITTED TO TOWN & COUNTRY PLANNING
7SECURITY AND FIRE FIGHTING600.00AS PER PROJECT REPORT
8PLAYGROUNDS AND PARKS11.68AS PER PROJECT REPORT
9CLUB HOUSE/COMMUNITY CENTRE500.00AS PER PROJECT REPORT
10SHOPPING AREA0YET TO BE PREPARED
11RENEWABLE ENERGY SYSTEM20.00AS PER PROJECT REPORT
12SCHOOL0YET TO BE PREPARED
13HOSPITAL/DISPENSARY0YET TO BE PREPARED
14ANY OTHER0AS PER PROJECT REPORT
15COMMUNITY FACILITIES60.00AS PER PROJECT REPORT
16EARTH WORK58.00AS PER PROJECT REPORT
17BOUNDARY WALL AND MAIN GATE150.00AS PER PROJECT REPORT
18BASEMENT VENTILATION156.00AS PER PROJECT REPORT
19BASEMENT WATER PROOFING AND PROTECTION400.00AS PER PROJECT REPORT
20DG'S290.00AS PER PROJECT REPORT
21DG STACK30.00AS PER PROJECT REPORT
22HORTICULTURE AND PLANTATION180.00AS PER PROJECT REPORT
23PRAK AREA220.00AS PER PROJECT REPORT
24FIRE TENDER PATH WAY180.00AS PER PROJECT REPORT
25BIO CONVERTOR22.00AS PER PROJECT REPORT
26BOOM BARRIER4.00AS PER PROJECT REPORT
27SMART ELECTRIC METER SYSTEM82.00AS PER PROJECT REPORT
28BASEMENT LED LIGHTING25.00AS PER PROJECT REPORT
29SIGNAGE12.00AS PER PROJECT REPORT
30CCTV8.00AS PER PROJECT REPORT
31SWIMMING POOL38.73AS PER PROJECT REPORT


05-09-2014 (date)
05-09-2014 (date)


Sr. No.Plot/ apartment type Size of the plot/carpet area of the apartments Total number of plots/apartments in the project Total size of the plots/carpet area of the apartments Plots/apartments booked/ sold upto the date of application Yet to be sold/ booked No. of towers to be/ being constructed for booked apartments
1 APARTMENT/SHOPS/OTHER BUILDINGS Type PRESTIGE(I) 3BHK+SERVENT ROOM 118.54 24 2844.96 11 13 1
2 APARTMENT/SHOPS/OTHER BUILDINGS Type PRESTIGE(II) 3BHK+SERVENT ROOM 118.54 26 3082.04 0 26 1
3 APARTMENT/SHOPS/OTHER BUILDINGS Type PRIVILEGE(L) 2BHK 67.45 36 2428.2 27 9 1
4 APARTMENT/SHOPS/OTHER BUILDINGS Type PRIVILEGE(R) 2BHK 67.45 36 2428.2 23 13 1
5 APARTMENT/SHOPS/OTHER BUILDINGS Type ACCLAIM(L) 2BHK 67.45 36 2428.2 1 35 1
6 APARTMENT/SHOPS/OTHER BUILDINGS Type ACCLAIM(R) 2BHK 67.45 36 2428.2 0 36 1
7 APARTMENT/SHOPS/OTHER BUILDINGS Type PRIVILEGE(L) 2BHK 67.82 36 2441.52 31 5 1
8 APARTMENT/SHOPS/OTHER BUILDINGS Type PRIVILEGE(C) 2BHK 67.82 38 2577.16 37 1 1
9 APARTMENT/SHOPS/OTHER BUILDINGS Type PRESTIGE(I) 3BHK+SERVENT ROOM 117.71 9 1059.39 2 7 1
10 APARTMENT/SHOPS/OTHER BUILDINGS Type PRIVILEGE(L) 2BHK+STUDY 78.87 36 2839.32 34 2 1
11 APARTMENT/SHOPS/OTHER BUILDINGS Type PRIVILEGE(C) 2BHK+STUDY 78.87 38 2997.06 38 0 1
12 APARTMENT/SHOPS/OTHER BUILDINGS Type PRIVILEGE(R) 2BHK+STUDY 78.87 36 2839.32 35 1 1
13 APARTMENT/SHOPS/OTHER BUILDINGS Type ACCLAIM(L) 2BHK+STUDY 78.87 36 2839.32 9 27 1
14 APARTMENT/SHOPS/OTHER BUILDINGS Type ACCLAIM(C) 2BHK+STUDY 78.87 38 2997.06 4 34 1
15 APARTMENT/SHOPS/OTHER BUILDINGS Type ACCLAIM(R) 2BHK+STUDY 78.87 36 2839.32 1 34 1
16 APARTMENT/SHOPS/OTHER BUILDINGS Type PRESTIGE(I) 3BHK 98.66 20 1973.2 16 4 1
17 APARTMENT/SHOPS/OTHER BUILDINGS Type PRESTIGE(II) 3BHK 98.66 21 2071.86 0 21 1
18 APARTMENT/SHOPS/OTHER BUILDINGS Type PRESTIGE(I) 3BHK 104.14 12 1249.68 7 5 1
19 APARTMENT/SHOPS/OTHER BUILDINGS Type PRESTIGE(II) 3BHK 104.14 14 1457.96 0 14 1
20 APARTMENT/SHOPS/OTHER BUILDINGS Type PRESTIGE(II) 3BHK+SERVENT ROOM 117.71 8 941.68 0 8 1
21 APARTMENT/SHOPS/OTHER BUILDINGS Type PRESTIGE(I) 3BHK+SERVENT ROOM 118.26 7 827.82 2 5 1
22 APARTMENT/SHOPS/OTHER BUILDINGS Type PRESTIGE(II) 3BHK+SERVENT ROOM 118.26 8 946.08 0 8 1
23 APARTMENT/SHOPS/OTHER BUILDINGS Type PRIVILEGE(R) 2BHK 67.82 36 2441.52 30 6 1
24 APARTMENT/SHOPS/OTHER BUILDINGS Type ACCLAIM(L) 2BHK 67.82 36 2441.52 3 33 1
25 APARTMENT/SHOPS/OTHER BUILDINGS Type ACCLAIM(C) 2BHK 67.82 38 2577.16 2 36 1
26 APARTMENT/SHOPS/OTHER BUILDINGS Type ACCLAIM(R) 2BHK 67.82 36 2441.52 0 36 1
27 APARTMENT/SHOPS/OTHER BUILDINGS Type PRIVILEGE(C) 2BHK 68.00 38 2584 23 15 1
28 APARTMENT/SHOPS/OTHER BUILDINGS Type ACCLAIM(C) 2BHK 68.00 38 2584 0 38 1
29 APARTMENT/SHOPS/OTHER BUILDINGS Type EWS 16.175 118 1908.65 0 118 1
30 APARTMENT/SHOPS/OTHER BUILDINGS Type EWS 16.125 25 403.125 0 25 1
Total95265919.04533661530






TypeNumber of apartments booked/ sold Write or Annex the stage of construction of the booked/ sold apartments in folder C
AC -2 BEDROOM260% EXCAVATION COMPLETED
AC -2 BEDROOM+STUDY460% EXCAVATION COMPLETED
AL- 2 BEDROOM4100% EXCAVATION COMPLETED, RAFT 10% COMPLETED
AL- 2 BEDROOM+STUDY8100% EXCAVATION COMPLETED, RAFT 10% COMPLETED
AR-2 BEDROOM+STUDY164% EXCAVATION COMPLETED
PC-2 BEDROOM60STRUCTURE 100% COMPLETED, LIFT LOBBY 69% COMPLETED, MEP 49% COMPLETED
PC-2 BEDROOM+STUDY37STRUCTURE 100% COMPLETED, LIFT LOBBY 69% COMPLETED, MEP 49% COMPLETED
PI-3 BEDROOM22STRUCTURE 100% COMPLETED, LIFT LOBBY 49% COMPLETED, MEP 49% COMPLETED
PI-3 BEDROOM+STUDY14STRUCTURE 100% COMPLETED, LIFT LOBBY 49% COMPLETED, MEP 49% COMPLETED
PL-2 BEDROOM55STRUCTURE 100% COMPLETED, LIFT LOBBY 92% COMPLETED, MEP 64% COMPLETED
PL- 2 BEDROOM+STUDY33STRUCTURE 100% COMPLETED, LIFT LOBBY 92% COMPLETED, MEP 64% COMPLETED
PR-2 BEDROOM53STRUCTURE 100% COMPLETED, LIFT LOBBY 49% COMPLETED, MEP 49% COMPLETED
PR-2 BEDROOM+STUDY36STRUCTURE 100% COMPLETED, LIFT LOBBY 49% COMPLETED, MEP 49% COMPLETED


26-02-2015
30-06-2025
30-06-2025
26-02-2015
43.12
30-06-2025


PlotsBooked/soldStage of handing over the possession (Write or Annex details)
PLOT0NA
26-02-2015
0
30-06-2025


0
8
939
364
0





Expenditure incurred till the date of application (In Lakhs)

ParticularsExpenditure
Apartments8708
Shops0
Plots0
EDC or IDC3475
Finance Cost10599
Land Cost15813
Over Head Selling and Marketing2514

Expenditure to be made in each quarter (In Lakhs)

ParticularsYear-2019
Jan-MarApr-JuneJuly-SepOct-Dec
Apartments0000
Shops0000
Plots0000
Selling and Marketing and Admin Overheads0419429544
Finance and Interest Cost0400
Cost of Construction0485626909.23

ParticularsYear-2020
Jan-MarApr-JuneJuly-SepOct-Dec
Apartments0000
Shops0000
Plots0000
Selling and Marketing and Admin Overheads243193193193
Finance and Interest Cost0000
Cost of Construction600600600600

ParticularsYear-2021
Jan-MarApr-JuneJuly-SepOct-Dec
Apartments0000
Shops0000
Plots0000
Selling and Marketing and Admin Overheads193199183183
Finance and Interest Cost0000
Cost of Construction600600500500

ParticularsYear-2022
Jan-MarApr-JuneJuly-SepOct-Dec
Apartments0000
Shops0000
Plots0000
Selling and Marketing and Admin Overheads183268268221
Finance and Interest Cost0000
Cost of Construction500450450350

ParticularsYear-2023
Jan-MarApr-JuneJuly-SepOct-Dec
Apartments0000
Shops0000
Plots0000
Cost of Construction300250250150
Finance and Interest Cost0000
Selling and Marketing and Admin Overheads206190190159

ParticularsYear-2024
Jan-MarApr-JuneJuly-SepOct-Dec
Apartments0000
Shops0000
Plots0000
Finance and Interest Cost0000
Cost of Construction15014500
Selling and Marketing and Admin Overheads1505400
EDC or IDC241300

ParticularsYear-2025
Jan-MarApr-JuneJuly-SepOct-Dec
Apartments0000
Shops0000
Plots0000
Cost of Construction0000
Finance and Interest Cost0000
Selling and Marketing and Admin Overheads0900




Expenditure incurred till the date of application (In Lakhs)

ParticularsExpenditure
Roads & Pavements220.00
Water Supply System100.00
Sewerage treatment & garbage disposal100.00
Electricity Supply System357.00
Storm Water Drainage50.00
Parks and Playgrounds5.00
Clubhouse/community centres300.00
Shopping area0
Other0
Community Facilities0
Renewable Energy System10.00
Security and fire fighting276.00
Street Light35.00

Expenditure to be made in each quarter (In Lakhs)

ParticularsYear-2019
Jan-MarApr-JuneJuly-SepOct-Dec
Roads & Pavements013.5820.72
Water Supply System06.52011.95
Sewerage treatment & garbage disposal06109.95
Electricity Supply System0123014.95
Storm Water Drainage05811
Parks and Playgrounds0000.95
Clubhouse/community centres010814.95
Shopping area0000
Other0000
Boundary wall and main gate5510
Street Lighting0524.95
Basement water proofing and Protection22
Basement Ventilation33
Security and Fire Fighting04822.95
Renewable Energy System0523.6
Earth work8510
Horticulture and Plantation110
Parking Area1
Swimming Pool0.85
Fire tender Path way10

ParticularsYear-2020
Jan-MarApr-JuneJuly-SepOct-Dec
Roads & Pavements15201010
Water Supply System151515.6515
Sewerage treatment & garbage disposal10666
Electricity Supply System40403030
Storm Water Drainage10000
Parks and Playgrounds0000
Clubhouse/community centres20304060
Shopping area0000
Other0000
Street Lighting2000
Security and Fire Fighting35273027
Renewable Energy System2000
Boundary wall and main gate20101.351
Basement Ventilation5352
Basement water proofing and Protection25102
Horticulture and Plantation14108
Community facilities0151515
Earth work25
Signage2
Fire tender Path way15
Parking Area1
DG stack3

ParticularsYear-2021
Jan-MarApr-JuneJuly-SepOct-Dec
Roads & Pavements0000
Water Supply System0000
Sewerage treatment & garbage disposal6000
Electricity Supply System30000
Storm Water Drainage0000
Parks and Playgrounds0000
Clubhouse/community centres17000
Shopping area0000
Other0000
Basement Ventilation4403952
Basement water proofing and Protection5424060
DG stack210105
Horticulture and Plantation10102040
Fire tender Path way1401711
Earth work1018
Boundary wall and main gate304028
Smart electric meter system20
Boom Barrier11
Bio convertor105
Parking Area1040
DG'S3070
Signage2
Swimming Pool10
Community facilities15
Street Lighting0
Renewable Energy System0
Security and Fire Fighting30

ParticularsYear-2022
Jan-MarApr-JuneJuly-SepOct-Dec
Roads & Pavements091215
Water Supply System05.855.856
Sewerage treatment & garbage disposal0000
Electricity Supply System0114.8154.496.3
Storm Water Drainage08.604.954.95
Parks and Playgrounds0000
Clubhouse/community centres0000
Shopping area0000
Other0000
Swimming Pool208
Horticulture and Plantation2010.146
Parking Area50714
Basement water proofing and Protection6054.655025
DG'S5020108
Signage4.89
Security and Fire Fighting25
Smart electric meter system22
Fire tender Path way41
Bio convertor7

ParticularsYear-2023
Jan-MarApr-JuneJuly-SepOct-Dec
Roads & Pavements11.5675151210
Water Supply System5.8591112
Sewerage treatment & garbage disposal0876
Electricity Supply System94.7093.8396.6191.61
Storm Water Drainage4.95000
Parks and Playgrounds0000
Clubhouse/community centres0000
Shopping area0000
Other0000
Security and Fire Fighting3035.167540.167520.1675
Horticulture and Plantation61014
Basement Led Lighting368
Smart electric meter system101014
DG'S10.28152037
Basement water proofing and Protection24.65150.35
Street Lighting2.7352.7352.735
Parking Area182034
Boom Barrier2
Fire tender Path way30

ParticularsYear-2024
Jan-MarApr-JuneJuly-SepOct-Dec
Roads & Pavements00.100
Water Supply System015.600
Sewerage treatment & garbage disposal00.0500
Electricity Supply System0500
Storm Water Drainage0000
Parks and Playgrounds05.7300
Clubhouse/community centres00.100
Shopping area010.700
Other0000
Security and Fire Fighting0000
CCTV07.0
Signage3.1
Renewable Energy System00.100
Street Lighting00.0500
DG'S0
Smart electric meter system0
Parking Area0
Fire tender Path way0
Basement Led Lighting0

ParticularsYear-2025
Jan-MarApr-JuneJuly-SepOct-Dec
Roads & Pavements7.97000
Water Supply System15000
Sewerage treatment & garbage disposal3.61000
Electricity Supply System93.8325000
Storm Water Drainage0000
Parks and Playgrounds0000
Clubhouse/community centres0000
Shopping area0000
Other0000
Renewable Energy System000
Street Lighting2.735000
Security and Fire Fighting62.6375000
DG'S20
Smart electric meter system6
Fire tender Path way24
Parking Area24.645
Basement Led Lighting8
CCTV1












Particulars Remarks, if any
i. No. of Flats/Apartments constructed809OC Received for 402 Units
ii. No. of Flats/ Apartments booked329
iii. Total amount sale value of booked Flats, on the date of application/end of last quarter21359.78 Lakhs
iv. Total amount received from the allottees (booked Flats), on the date of application/end of last quarter16471.57 Lakhs
v. Balance amount to be received from the allottees (booked Flats, after completion), on the date of application/end of last quarter4888.21 Lakhs
vi. Balance amount due and recoverable from the allottees (booked Flats) as on the date of application /end of last quarter0 Lakhs
vii. Amount invested in the project upto the date of application42677 Lakhs
Land cost (If any)15813 Lakhs
Apartments8708 Lakhs
Infrastructure1568 Lakhs
EDC/ Taxes Etc.16588 LakhsEDC=3475 + Finance Cost=10599 + Overhead Selling and Marketing=2514
viii. Balance cost to be incurred for completion of the project and delivery of possession20844 Lakhs
(a) In respect of existing allottees9615 Lakhs
(b) In respect of rest of the project11229 Lakhs
ix. The amount of loan raised from the banks/ financial institutions/ private persons against the project
Annex detail of the securities furnished to the banks/ financial institutions against the aforesaid loans in folder C
0 Lakhs
x. Total liabilities against the project up-to-date. (Annex details in folder C) 0 Lakhs



Particulars Estimated expenditure planned to be incurred as per service plan estimates or the project report. (In Lakhs)Actual expenditure incurred upto the date of application. (In Lakhs)
I. INTERNAL ROADS AND PAVEMENTS409.81220.00
II. WATER SUPPLY SYSTEM285.10100.00
III. STORM WATER DRAINAGE107.4050.00
IV. ELECTRICITY SUPPLY SYSTEM1425.00357.00
V. SEWAGE TREATMENT & GARBAGE DISPOSAL184.61100.00
VI. CLUB HOUSE/COMMUNITY CENTRE500.00300.00
VII. SCHOOL00
VIII. ANY OTHER1855.73200.00
IX. SOLID WASTE COLLECTION & MGMT SYSTEM00
X. CLUBHOUSE00
XI. NEIGHBOURHOOD SHOPPING00
XII. GREEN AREAS,PARKS,PLAYGROUNDS ETC.11.685.00
XIII. COVERED PARKING00
XIV. OPEN PARKING00
XV. GARAGES00
XVI. SECURITY SYSTEM00
XVII. OTHER FACILITIES AS PER PROJECT REPORT730.67321.00









Yes
Yes
HDFC BANK LTD, JASOLA
57500000062839
HDFC0000923
110240122
923
Mr. Anil Kumar Dhandha, Address: 36C, Nilgiri-1, Scetor-34, Noida, Uttar Pradesh-201301
Certificate and Board Resolution Attached











Yes
Yes
Yes
Yes
Yes
Yes
Yes
Yes
Yes
Yes


Yes
Yes
Yes
Yes
Yes
No
Yes
Yes
Statutory Approvals Statutory Approvals StatusDate
I. ROADS AND PAVEMENT PLANALREADY BEEN OBTAINED10-10-2019
II. ELECTRICITY SUPPLY PLANALREADY BEEN OBTAINED23-10-2019
III. WATER SUPPLY PLANALREADY BEEN OBTAINED10-10-2019
IV. SEWERAGE AND GARBAGE DISPOSAL PLANALREADY BEEN OBTAINED10-10-2019
V. STORM WATER DRAINAGE ALREADY BEEN OBTAINED10-10-2019
VI. LAYOUT PLANALREADY BEEN OBTAINED05-09-2014
VII. ZONING PLANALREADY BEEN OBTAINED10-10-2013
VIII. FLOOR PLANALREADY BEEN OBTAINED05-09-2014
IX. ELEVATION PLANALREADY BEEN OBTAINED05-09-2014
X. X-SECTION PLANALREADY BEEN OBTAINED05-09-2014
XI. LANDSCAPE PLANALREADY BEEN OBTAINED05-09-2014
XII. PARKING PLANALREADY BEEN OBTAINED05-09-2014








Yes


Yes


The Total Price for the Apartment for Residential usage along with parking is (if applicable) based on the carpet area. The detail of the Total Price is mentioned in Schedule E. Explanation: (i) The Total Price as mentioned above includes the booking amount paid by the Allottee to the Promoter towards the Apartment for Residential usage (along with parking (if applicable); (ii) The Total Price as mentioned above includes Taxes (GST and Cess or any other taxes/ fees/ charges/ levies etc. which may be levied, in connection with the development/ construction of the Project(s)) paid/ payable by the Promoter up to the date of offer of possession of the Apartment for Residential usage (as the case may be) Provided that, in case there is any change / modification in the taxes/ charges/ fees/ levies etc., the subsequent amount payable by the Allottee to the Promoter shall be increased/ decreased based on such change /modification. Provided further, if there is any increase in the taxes/ charges/ fees/ levies etc. after the expiry of the scheduled date of completion of the Project as per registration with the Authority, which shall include the extension of registration, if any, granted to the said Project by the Authority, as per the Act, the same shall not be charged from the Allottee;













SPECIFICATION OF CONSTRUCTION
Specification of apartments and other buildings including the following:
1FLOORING DETAILS OF VARIOUS PARTS OF HOUSEVITRIFIED TILES / CERAMIC TILES
2WALL FINISHING DETAILSTEXTURE PAINT / EMULSION / OIL BOUND DISTEMPER (OBD) / CERAMIC TILES
3KITCHEN DETAILSCOUNTER - GRANITE OR EQUIVALENT FITTINGS AND FIXTURES - GOOD QUALITY C.P. FITTINGS, SINGLE BOWL SS SINK WITH DRAIN BOARD
4BATHROOM FITTINGSCEILING - FALSE CEILING FITTINGS AND FIXTURES - GOOD QUALITY C.P. FITTINGS, ENGLISH TYPE WC AND WASH BASIN IN WHITE SHADE
5WOOD WORK ETCHARD WOOD DOOR FRAME WITH FLUSH SHUTTER
6DOORS AND WINDOS FRAMESINTERNAL DOORS - HARD WOOD DOOR FRAME WITH FLUSH SHUTTER IN TEAK FINISH/ PAINT OR SKIN MOULDED DOORS IN ENAMEL PAINT EXTERNAL DOORS/WINDOWS - POWDER COATED/ ANODIZED ALUMINUM / UPVC WITH ALUMINUM / UPVC SHUTTERS AND GLAZING.
7GLASS WORKGLASS ON EXTERNAL DOOR/WINDOWS
8ELECTRIC FITTINGSGOOD QUALITY MODULAR SWITCHES AND SOCKETS, COPPER WIRING. ( FITTINGS LIKE FANS, GEYSERS, ACS, LIGHT FIXTURES, APPLIANCES ETC. NOT PROVIDED.)
9CONDUCTING AND WIRING DETAILSCOPPER / ALUMINUM – AS PER DESIGN
10CUPBOARD DETAILSSPACE PROVIDED
11WATER STORAGEU.G.T & O.H.T. PROVIDED
12LIFT DETAILS2 LIFTS (13 PASSENGERS EACH) IN EACH TOWER
13EXTERNAL GLAZINGSPOWDER COATED/ANODIZED ALUMINUM WITH ALUMINUM SHUTTERS AND GLAZING.
13.1WINDOWS/GLAZINGSPOWDER COATED/ANODIZED ALUMINUM WITH ALUMINUM SHUTTERS AND GLAZING.
14DOORSHARD WOOD DOOR FRAME WITH FLUSH SHUTTER IN TEAK FINISH/ PAINT OR SKIN MOULDED DOORS IN ENAMEL PAINT
14.1MAIN DOORSHARD WOOD DOOR FRAME WITH FLUSH SHUTTER IN TEAK FINISH/ PAINT OR SKIN MOULDED DOORS IN ENAMEL PAINT
14.2INTERNAL DOORSHARD WOOD DOOR FRAME WITH FLUSH SHUTTER IN TEAK FINISH/ PAINT OR SKIN MOULDED DOORS IN ENAMEL PAINT
15AIR CONDITIONINGPROVISION AVAILABLE
16ELECTRICAL FITTINGSGOOD QUALITY MODULAR SWITCHES AND SOCKETS, COPPER WIRING. (FITTINGS LIKE FANS, GEYSERS, ACS, LIGHT FIXTURES, APPLIANCES ETC. NOT PROVIDED)
17CNG PIPE LINENA
18PROVISION OF WIFI AND BROADBAND FACILITYAS PER VENDORS SPECIFICATION
19EXTERNAL FINISHING/COLOUR SCHEMECOMBINATION OF TEXTURE PAINT / EXTERIOR EMULSION - AS PER DESIGN
20INTERNAL FINISHINGOIL BOUND DISTEMPER (OBD)
SPECIFICATION UNIT WISE
1 . LIVING/DINING/FOYER/FAMILY LOUNGE
1 . 1 FLOORVITRIFIED TILES
1 . 2 WALLSCEMENT PLASTER
1 . 3 CEILINGCEMENT PLASTER
2 . MASTER BEDROOM/DRESSROOM
2 . 1 FLOORVITRIFIED TILES
2 . 2 WALLSCEMENT PLASTER
2 . 3 CEILINGCEMENT PLASTER/GYPSUM PLASTER - AS PER DESIGN
2 . 4 MODULAR WARDROBESNA
3 . MASTER TOILET
3 . 1 FLOORCERAMIC TILES
3 . 2 WALLSCERAMIC TILES / OIL BOUND DISTEMPER (OBD) - AS PER DESIGN
3 . 3 CEILINGFALSE CEILING
3 . 4 COUNTERSMARBLE / GRANITE – AS PER DESIGN
3 . 5 SANITARY WARE/CP FITTINGSGOOD QUALITY C.P. FITTINGS, ENGLISH TYPE WC AND WASH BASIN IN WHITE SHADE
3 . 6 FITTING/FIXTURESGOOD QUALITY C.P. FITTINGS, ENGLISH TYPE WC AND WASH BASIN IN WHITE SHADE
4 . BED ROOMS
4 . 1 FLOORVITRIFIED TILES
4 . 2 WALLSCEMENT PLASTER
4 . 3 CEILINGCEMENT PLASTER
4 . 4 WARDROBESONLY SPACE PROVIDED
5 . TOILET
5 . 1 FLOORCERAMIC TILES
5 . 2 WALLSCERAMIC TILES /OIL BOUND DISTEMPER (OBD) - AS PER DESIGN
5 . 3 CEILINGFALSE CEILING
5 . 4 COUNTERSMARBLE / GRANITE – AS PER DESIGN
5 . 5 SANITARY WARE/CP FITTINGSGOOD QUALITY C.P. FITTINGS, ENGLISH TYPE WC AND WASH BASIN IN WHITE SHADE
5 . 6 FIXTURESGOOD QUALITY C.P. FITTINGS, ENGLISH TYPE WC AND WASH BASIN IN WHITE SHADE
6 . KITCHEN
6 . 1 FLOORVITRIFIED TILES
6 . 2 WALLSCERAMIC TILES /OIL BOUND DISTEMPER (OBD) - AS PER DESIGN
6 . 3 CEILINGCEMENT PLASTER/GYPSUM PLASTER - AS PER DESIGN
6 . 4 COUNTERSMARBLE / GRANITE – AS PER DESIGN
6 . 5 FIXTURESGOOD QUALITY C.P. FITTINGS
6 . 6 KITCHEN APPLIANCESSINGLE BOWL SS SINK WITH DRAIN BOARD
7 . UTILITY ROOMS/UTILITY BALCONY/TOILET
7 . 1 FLOORUTILITY BALCONY - CERAMIC
7 . 2 WALLS & CEILINGUTILITY BALCONY - TEXTURE/ EXTERNAL EMULSION - AS PER DESIGN
7 . 3 TOILETNA
7 . 4 BALCONYFLOOR – CERAMIC TILES WALLS & CEILING- TEXTURE/EXTERNAL EMULSION - AS PER DESIGN
8 . SIT-OUTS
8 . 1 FLOORNA
8 . 2 WALLS & CEILINGNA
8 . 3 RAILINGSNA
8 . 4 FIXTURESNA












Sr. No.Document DescriptionDate of Document UploadView Document
1 DIFFERENTIAL REG FEES 14-02-2020 ------
2 FOURTH QUARTERLY REPORT 14-02-2020 ------
3 RENEWAL OF LICENSE SOHNA 14-02-2020 ------
4 FOREST NOC 14-02-2020 ------
5 AAI NOC 14-02-2020 ------
6 DD-1 14-02-2020 ------
7 ELDECO SOHNA - ACH 14-02-2020 ------
8 ZONING PLAN 14-02-2020 View Document
9 LICENSE TRANSFER DTCP 14-02-2020 ------
10 MAPSKO LICENSE 14-02-2020 ------
11 CERTIFICATE FROM A CHARTERED ACCOUNTANT CERTIFYING THAT THE INFORMSTION PROVIDED BY THE APPLICANT IN FORM REP-1-C-X IS CORRECT AS PER THE BOOKS OF ACCOUNTS/ BALANCE SHEET OF THE APPLICANT 14-02-2020 View Document
12 LOI 14-02-2020 ------
13 BOARD RESOLUTION-AUTHORISATION 14-02-2020 ------
14 EC-SOHNA-GURGAON 14-02-2020 ------
15 SITE PLAN 14-02-2020 ------
16 CASH FLOW STATEMENT OF THE PROPOSED PROJECT 14-02-2020 View Document
17 BR III (DTCP APPROVED) 14-02-2020 ------
18 A COMPLETE SET OF THE LAST APPROVED BUILDING PLANS 14-02-2020 View Document
19 ELECTRICAL SUBMISSION APPROVAL 14-02-2020 ------
20 GIST TERMS ANNEXURE 14-02-2020 ------
21 DECLARATION SUPPORTED BY AFFIDAVIT DULY SIGNED BY THE PROMOTER TO BE ENCLOSED. 14-02-2020 View Document
22 ENCUMBRANCE DETAILS 14-02-2020 ------
23 IN CASE OF GROUP HOUSING/ COMMERCIAL SITES, A COPY OF THE APPROVED SITE PLAN 09-05-2019 View Document
24 IN CASE OF PLOTTED COLONY, THE LATEST LAYOUT PLAN 08-06-2019 View Document
25 COPY OF LICENSE ALONG WITH SCHEDULE OF LAND 08-06-2019 View Document
26 SERVICE PLAN ESTIMATES 28-09-2020 ------
27 OCCUPATION CERTIFICATE - ACCOLADE 28-09-2020 ------
28 APPROVED ABSTRACT OF COST 28-09-2020 ------
29 SUBMISSION DRAWING 14-02-2020 ------
30 FIRE SCHEME APPROVAL 14-02-2020 ------
31 DD-2 14-02-2020 ------
32 DEMARCATION PLAN 14-02-2020 View Document
33 NON DEFAULT CERTIFICATE FROM A CHARTERED ACCOUNTANT 14-02-2020 View Document
34 AFFIDAVIT 14-02-2020 ------
35 SERVICE PLAN ESTIMATES 14-02-2020 ------