HRERA GurugramTemp Project Id : RERA-GRG-PROJ-845-2021
Submission Date : 05-04-2021 10:56:12 AM
Applicant Type : Company
Project Type: ONGOING




COUNTRYWIDE PROMOTERS PRIVATE LIMITED
OT-14, 3RD FLOOR, NEXT DOOR PARKLANDS, SECTOR-76 FARIDABD FARIDABAD HR 121004 IN
01149572787
9717790021 (Number Shared by Promoter in Public)
rera.gurugram@bptp.com
http://bptp.com
XXXX280H
U70101HR1996PTC082720
 
 


 
 


 
 







CENTRA ONE
SECTOR 61 GURUGRAM HARYANA
GURGAON
GURUGRAM
01149572787
9810163594 (Number Shared by Promoter in Public)
rera.gurugram@bptp.com
RAHUL BHATNAGAR
9810163594
9810163594 (Number Shared by Promoter in Public)
rahul.bhatnagar@bptp.com








As per sub-rule(2) of rule 3 of the Haryana Real Estate (Regulation and Development) Rules,2017, the fee for registration of the project as has been calculated as follows:
-----------------------------------------------------------------------------------------------------------------------
-----------------------------------------------------------------------------------------------------------------------
-----------------------------------------------------------------------------------------------------------------------
-----------------------------------------------------------------------------------------------------------------------
2. The aforesaid fees is hereby deposited vide following Drafts/ Banker’s Cheques:-

Sr No.Draft/Cheque No.Draft DateAmountPayee BankPayable To
121842103-04-2021773256RBL BANK LIMITEDHRERA Gurugram
22209595659505-04-20221696765RBL BANK LIMITEDHRERA Gurugram







3.675 (Acre)
1.75
1.5740
3.675 (Acre)
License no 277 of 2007
No
Address     M-11, MIDDLE CIRCLE, 1ST FLOOR CONNAUGHT CIRCUS NEW DELHI 110001 DL IN
Annexure-B- AS A COLLABORATOR
ON THE BASIS OF COLLABORATION AGREEMENT.
No
AS PER CLAUSE 13 OF THE COLLABORATION THE PARTIES HAVE AGREED TO SHARE THE FSI IN EQUAL PROPORTION I.E 50:50 NON REFUNDABLE SECURITY DEPOSIT OF RS 3,95,65,217/- ( RS THREE CRORE NINETY FIVE LAKHS SIXTY FIVE THOUSAND TWO HUNDRED AND SEVENTEEN ONLY )
No
Yes
No







19771.59 Lakhs
1693.43 Lakhs
8233.19 Lakhs
1354 Lakhs
8491.17 Lakhs




Sr. No.Land area under usageArea of land (Acres)
1PLOTS TO BE SOLD 0
2LAND AREA TO BE USED FOR CONSTRUCTION OF APARTMENTS 0.917
3CONSTRUCTION OF ROADS 2.031
4PAVEMENTS 0
5PARKS AND PLAYGROUNDS 0
6GREEN BELTS 0.324
7VEHICLE PARKINGS 0.403
8ELECTRICITY SUB-STATION 0
9CLUB HOUSE 0
10SEWAGE AND SOLID WASTE TREATMENT FACILITY 0
11AREA TO BE LEFT FOR TRANSFERRING TO THE GOVERNMENT FOR COMMUNITY SERVICES 0
12ANY OTHER 0
Total3.675




FacilityExternal/ connecting service to be provided by (Name the agency)Whether Approval taken from the agency concerned. Yes/No (Annex details in folder C)
ROADSCONNECTEDYes
WATER SUPPLYHSVPYes
ELECTRICITYDHBVNYes
SEWAGE DISPOSALHSVPYes
STORM WATER DRAINAGEHSVPYes




Sr. No.Name of the facilityEstimated cost (In Lakhs)(Within the project area only)Remarks: Yet to be prepared / Submitted to HUDA, Town & Country Planning Department/ as per project report etc. (Annex relevant documents showing costing details etc. in folder C)
1INTERNAL ROADS AND PAVEMENTS202SUBMITTED TO HUDA
2WATER SUPPLY SYSTEM200SUBMITTED TO HUDA
3STORM WATER DRAINAGE20SUBMITTED TO HUDA
4ELECTRICITY SUPPLY SYSTEM485SUBMITTED TO HUDA
5SEWAGE TREATMENT & GARBAGE DISPOSAL20SUBMITTED TO HUDA
6STREET LIGHTING35SUBMITTED TO HUDA
7SECURITY AND FIRE FIGHTING205SUBMITTED TO HUDA
8PLAYGROUNDS AND PARKS30SUBMITTED TO HUDA
9CLUB HOUSE/COMMUNITY CENTRE0SUBMITTED TO HUDA
10SHOPPING AREA0SUBMITTED TO HUDA
11RENEWABLE ENERGY SYSTEM35SUBMITTED TO HUDA
12SCHOOL0SUBMITTED TO HUDA
13HOSPITAL/DISPENSARY0SUBMITTED TO HUDA
14ANY OTHER0SUBMITTED TO HUDA
15STP20SUBMITTED TO HUDA
16UNDER GROUND WATER TANK20SUBMITTED TO HUDA
17RAIN WATER HARVESTING12SUBMITTED TO HUDA
18ELECTRIC SUBSTATION60SUBMITTED TO HUDA
19PARKING10AS PER PROJECT REPORT


NA (date)
12-01-2018 (date)


Sr. No.Plot/ apartment type Size of the plot/carpet area of the apartments Total number of plots/apartments in the project Total size of the plots/carpet area of the apartments Plots/apartments booked/ sold upto the date of application Yet to be sold/ booked No. of towers to be/ being constructed for booked apartments
1 APARTMENT/SHOPS/OTHER BUILDINGS Type SHOPS AND OFFICE 124959 270 33738930 243 27 1
Total27033738930243271






TypeNumber of apartments booked/ sold Write or Annex the stage of construction of the booked/ sold apartments in folder C
SHOPS AND OFFICE243OC RECEIVED.


10-08-2008
20-08-2012
31-10-2023
10-08-2008
100
31-10-2023
OC RECEIVED, THE CONSTRUCTION IF FULLY COMPLETED
OC RECEIVED, THE CONSTRUCTION IF FULLY COMPLETED


PlotsBooked/soldStage of handing over the possession (Write or Annex details)
PLOT0NA
01-08-2008
100
31-10-2023
NA
NA


321
0
0
60
381





Expenditure incurred till the date of application (In Lakhs)

ParticularsExpenditure
Apartments0
Shops7488.19
Plots0
Administrative Cost6982.95
External Development Charges383.817
Infrastructure development charges148.72
Interest To Financial Institutions195.35
Land Cost1693.43
Other Expenses781.063

Expenditure to be made in each quarter (In Lakhs)

ParticularsYear-2021
Jan-MarApr-JuneJuly-SepOct-Dec
Apartments000
Shops106.43106.43106.43
Plots000

ParticularsYear-2022
Jan-MarApr-JuneJuly-SepOct-Dec
Apartments0000
Shops106.43106.43106.43106.43
Plots0000




Expenditure incurred till the date of application (In Lakhs)

ParticularsExpenditure
Roads & Pavements202
Water Supply System200.0
Sewerage treatment & garbage disposal20.0
Electricity Supply System485.0
Storm Water Drainage20.0
Parks and Playgrounds30.0
Clubhouse/community centres0
Shopping area0
Other417
Electrical sub station60
Parking10
Rain water harvesting12.0
Renewable energy system35
Security and Fire Fighting205
STP20
Street Lighting35
Underground water tank20

Expenditure to be made in each quarter (In Lakhs)

ParticularsExpenditure to be made in each quarter (2022)
Apr-JuneJuly-SepOct-DecJan-Mar












Particulars Remarks, if any
i. No. of Flats/Apartments constructed270
ii. No. of Flats/ Apartments booked243
iii. Total amount sale value of booked Flats, on the date of application/end of last quarter17243.03 Lakhs
iv. Total amount received from the allottees (booked Flats), on the date of application/end of last quarter15515.25 Lakhs
v. Balance amount to be received from the allottees (booked Flats, after completion), on the date of application/end of last quarter1727.28 Lakhs
vi. Balance amount due and recoverable from the allottees (booked Flats) as on the date of application /end of last quarter1727.28 Lakhs
vii. Amount invested in the project upto the date of application19027.527 Lakhs
Land cost (If any)1693.43 Lakhs
Apartments7488.19 Lakhs
Infrastructure1354.0 Lakhs
EDC/ Taxes Etc.8491.91 Lakhs
viii. Balance cost to be incurred for completion of the project and delivery of possession745 Lakhs
(a) In respect of existing allottees745 Lakhs
(b) In respect of rest of the project745 Lakhs
ix. The amount of loan raised from the banks/ financial institutions/ private persons against the project
Annex detail of the securities furnished to the banks/ financial institutions against the aforesaid loans in folder C
3000 Lakhs
x. Total liabilities against the project up-to-date. (Annex details in folder C) 947.43 Lakhs



Particulars Estimated expenditure planned to be incurred as per service plan estimates or the project report. (In Lakhs)Actual expenditure incurred upto the date of application. (In Lakhs)
I. INTERNAL ROADS AND PAVEMENTS202.0202.0
II. WATER SUPPLY SYSTEM200.0200.0
III. STORM WATER DRAINAGE20.020.0
IV. ELECTRICITY SUPPLY SYSTEM485.0485.0
V. SEWAGE TREATMENT & GARBAGE DISPOSAL20.020.0
VI. CLUB HOUSE/COMMUNITY CENTRE00
VII. SCHOOL00
VIII. ANY OTHER00
IX. SOLID WASTE COLLECTION & MGMT SYSTEM00
X. CLUBHOUSE00
XI. NEIGHBOURHOOD SHOPPING00
XII. GREEN AREAS,PARKS,PLAYGROUNDS ETC.30.030.0
XIII. COVERED PARKING00
XIV. OPEN PARKING00
XV. GARAGES00
XVI. SECURITY SYSTEM00
XVII. OTHER FACILITIES AS PER PROJECT REPORT397.0397.0









Yes
Yes
INDUSIND BANK, BARAKHAMBA ROAD, GOPAL DAS BHAWAN, NEW DELHI
251206202100
INDB0000005
110234002
000005
1. Manik Malik,CFO, Address: D-2/2406, Vasant Kunj, Delhi-110070 Email:Manik.malik@bptp.com 2. Sanjeev Loknath Agrawal, DGM (Finance and Accounts), Address: Flat No-32,Sudershan Apartments, IP Extension, New Delhi-110092 (Email: Sanjeev.agrawal@bptp.com) 3. Rakesh Agrawal, SGM(Finance and Accounts), Address: D-308,Narwama Apartment, 89, IP Extension, Patparganj, New Delhi-110092 (Email: rakesh.agrawal@bptp.com) 4. Amit Kumar Singhal, AGM(Finance and Accounts), Address: E3/28 Nand Nagri, Mandoli,North East, Delhi-110093 Email: amit1.singhal@bptp.com
As Attached











No
Yes
Yes
Yes
Yes
Yes
Yes
Yes
Yes
Yes


Yes
Yes
Yes
Yes
Yes
No
Yes
Yes
Statutory Approvals Statutory Approvals StatusDate
I. LICENSE NO 277 OF 2007ALREADY BEEN OBTAINED17-12-2007
II. ENVIRONMENTAL CLEARANCE ALREADY BEEN OBTAINED04-04-2018
III. FOREST NOCALREADY BEEN OBTAINED10-02-2015
IV. BUILDING PLANALREADY BEEN OBTAINED12-01-2018
V. RENEWED LICENSE NO 277 OF 2007ALREADY BEEN OBTAINED21-08-2018
VI. RENEWAL OF LICENSE APPLIEDALREADY BEEN OBTAINED16-09-2020
VII. NCZ REPORTALREADY BEEN OBTAINED14-10-2014
VIII. AIRPORT HEIGHT CLEARANCEALREADY BEEN OBTAINED01-09-2017
IX. OC OBTAINED ALREADY BEEN OBTAINED09-10-2018








Yes


Yes


As per the HRERA Rules, 2017.







PHASE-I, PLOTS, SECTOR-81 (EDEN ESTATE)
15.12
0
168
0
163
Initially estimated cost (In Lakhs)Revised cost (In Lakhs)Expenditure incurred upto the date of application (In Lakhs)
Total cost of the project
(Other than cost of land)
3183.003471.303830.49
Cost of the apartments000
Cost of the infrastructure1001.003000.00847.46
Others costs440.00471.302983.03


12910 Lakhs
4577 Lakhs
2000 Lakhs
1720 Lakhs
No
08-10-2018
30-06-2022




BPTP DISTRICT 1 BLOCK B
10.056
0
189
0
60
Initially estimated cost (In Lakhs)Revised cost (In Lakhs)Expenditure incurred upto the date of application (In Lakhs)
Total cost of the project
(Other than cost of land)
365701234.27
Cost of the apartments000
Cost of the infrastructure1453.000109.36
Others costs2204.6001124.91


1938.70 Lakhs
2704.48 Lakhs
1430.00 Lakhs
1230.00 Lakhs
No
06-08-2019
01-08-2024




BPTP DISTRICT 1 BLOCK A
12.373
0
220
0
110
Initially estimated cost (In Lakhs)Revised cost (In Lakhs)Expenditure incurred upto the date of application (In Lakhs)
Total cost of the project
(Other than cost of land)
4504.3901644.65
Cost of the apartments000
Cost of the infrastructure1786.00088.43
Others costs2718.3901556.22


2527.04 Lakhs
4760.71 Lakhs
1757 Lakhs
1511 Lakhs
No
01-08-2019
29-07-2024




BPTP DISTRICT 1 BLOCK C
12.72
0
244
0
68
Initially estimated cost (In Lakhs)Revised cost (In Lakhs)Expenditure incurred upto the date of application (In Lakhs)
Total cost of the project
(Other than cost of land)
464001929.53
Cost of the apartments000
Cost of the infrastructure1838.000498.88
Others costs2802.1101430.65


1385 Lakhs
4391 Lakhs
1809 Lakhs
1506 Lakhs
No
20-08-2019
18-08-2024




102 EDEN ESTATE
28.67
45
235
36
48
Initially estimated cost (In Lakhs)Revised cost (In Lakhs)Expenditure incurred upto the date of application (In Lakhs)
Total cost of the project
(Other than cost of land)
21082.43019000.65
Cost of the apartments000
Cost of the infrastructure4278.502587
Others costs16803.93016413.65


91674.41 Lakhs
17173.38 Lakhs
11500 Lakhs
11500 Lakhs
Yes
01-10-2020
30-04-2024










SPECIFICATION OF CONSTRUCTION
Specification of apartments and other buildings including the following:
1FLOORING DETAILS OF VARIOUS PARTS OF HOUSEVITRIFIED TILES, IMPORTED MARBLE & GRANITE
2WALL FINISHING DETAILSPAINT, TILE CLADDING
3KITCHEN DETAILSNA
4BATHROOM FITTINGSGROHE
5WOOD WORK ETCNA
6DOORS AND WINDOS FRAMESMETAL, WOODEN & ALUMINIUM
7GLASS WORKGLAZING
8ELECTRIC FITTINGSSCHNEIDER
9CONDUCTING AND WIRING DETAILSCOPPER WIRING & M.S. CONDUCTING
10CUPBOARD DETAILSNA
11WATER STORAGEUGT
12LIFT DETAILSJHONSON -3 NO’S OF LIFT 1.5 M/S
13EXTERNAL GLAZINGSDGU GLAZING (LOW – E GLASS )
13.1WINDOWS/GLAZINGSDGU GLAZING (LOW – E GLASS )
14DOORSGLASS DOORS,METAL FIRE DOORS,GLAZING
14.1MAIN DOORSGLASS DOOR
14.2INTERNAL DOORSGLASS DOOR
15AIR CONDITIONINGCENTRALIZED CHILLED WATER SYSTEM
16ELECTRICAL FITTINGSSCHNEIDER
17CNG PIPE LINENA
18PROVISION OF WIFI AND BROADBAND FACILITYYES
19EXTERNAL FINISHING/COLOUR SCHEMEACP,GLAZING
20INTERNAL FINISHINGPAINT
SPECIFICATION UNIT WISE
1 . LIVING/DINING/FOYER/FAMILY LOUNGE
1 . 1 FLOORNOT APPLICABLE.
1 . 2 WALLSNOT APPLICABLE.
1 . 3 CEILINGNOT APPLICABLE.
2 . MASTER BEDROOM/DRESSROOM
2 . 1 FLOORNOT APPLICABLE.
2 . 2 WALLSNOT APPLICABLE.
2 . 3 CEILINGNOT APPLICABLE.
2 . 4 MODULAR WARDROBESNOT APPLICABLE.
3 . MASTER TOILET
3 . 1 FLOORNOT APPLICABLE.
3 . 2 WALLSNOT APPLICABLE.
3 . 3 CEILINGNOT APPLICABLE.
3 . 4 COUNTERSNOT APPLICABLE.
3 . 5 SANITARY WARE/CP FITTINGSNOT APPLICABLE.
3 . 6 FITTING/FIXTURESNOT APPLICABLE.
4 . BED ROOMS
4 . 1 FLOORNOT APPLICABLE.
4 . 2 WALLSNOT APPLICABLE.
4 . 3 CEILINGNOT APPLICABLE.
4 . 4 WARDROBESNOT APPLICABLE.
5 . TOILET
5 . 1 FLOORNOT APPLICABLE.
5 . 2 WALLSNOT APPLICABLE.
5 . 3 CEILINGNOT APPLICABLE.
5 . 4 COUNTERSNOT APPLICABLE.
5 . 5 SANITARY WARE/CP FITTINGSNOT APPLICABLE.
5 . 6 FIXTURESNOT APPLICABLE.
6 . KITCHEN
6 . 1 FLOORNOT APPLICABLE.
6 . 2 WALLSNOT APPLICABLE.
6 . 3 CEILINGNOT APPLICABLE.
6 . 4 COUNTERSNOT APPLICABLE.
6 . 5 FIXTURESNOT APPLICABLE.
6 . 6 KITCHEN APPLIANCESNOT APPLICABLE.
7 . UTILITY ROOMS/UTILITY BALCONY/TOILET
7 . 1 FLOORNOT APPLICABLE.
7 . 2 WALLS & CEILINGNOT APPLICABLE.
7 . 3 TOILETNOT APPLICABLE.
7 . 4 BALCONYNOT APPLICABLE.
8 . SIT-OUTS
8 . 1 FLOORNOT APPLICABLE.
8 . 2 WALLS & CEILINGNOT APPLICABLE.
8 . 3 RAILINGSNOT APPLICABLE.
8 . 4 FIXTURESNOT APPLICABLE.












Sr. No.Document DescriptionDate of Document UploadView Document
1 IN CASE OF PLOTTED COLONY, THE LATEST LAYOUT PLAN 23-03-2021 View Document
2 COPY OF LICENSE ALONG WITH SCHEDULE OF LAND 24-05-2022 View Document
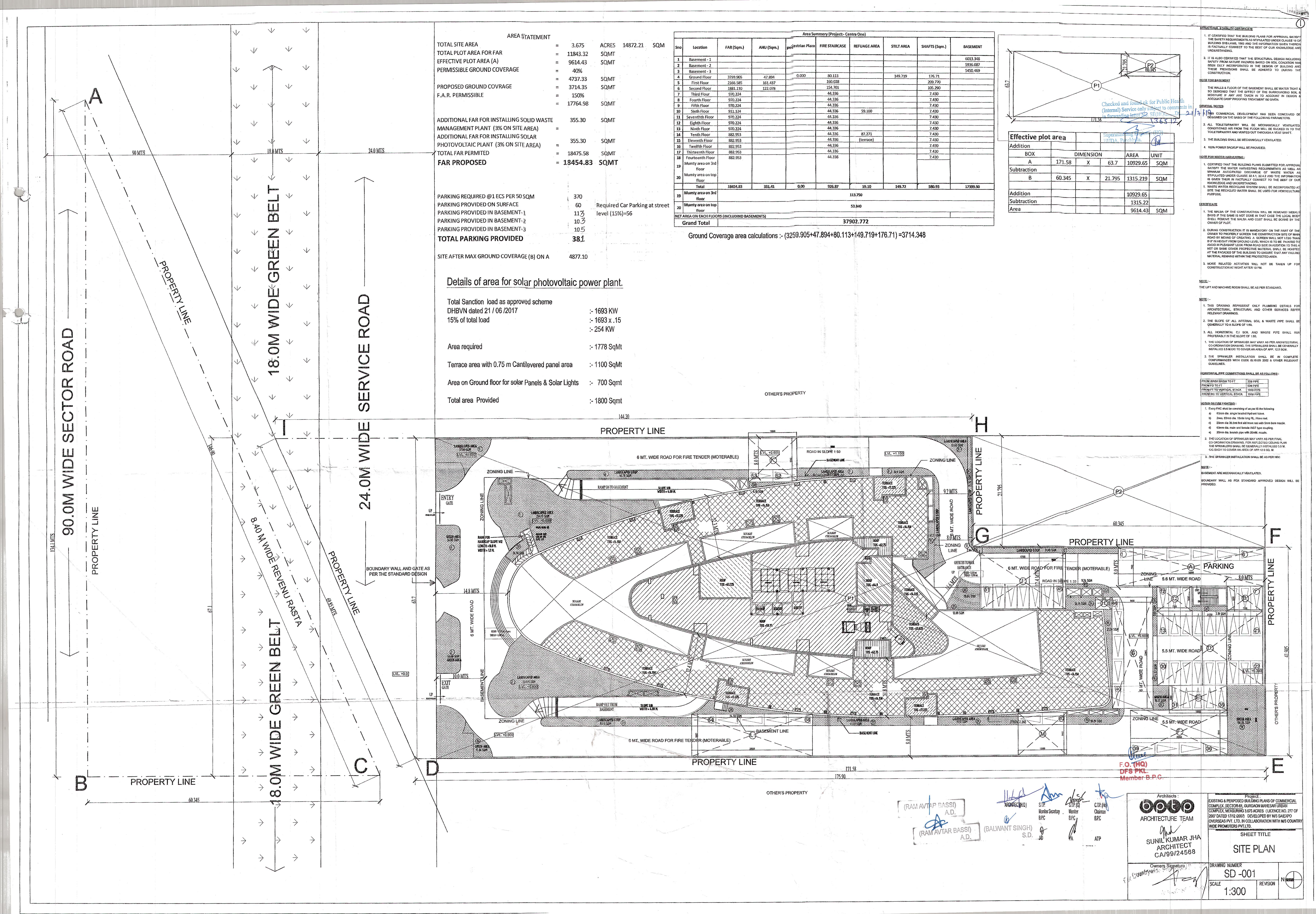
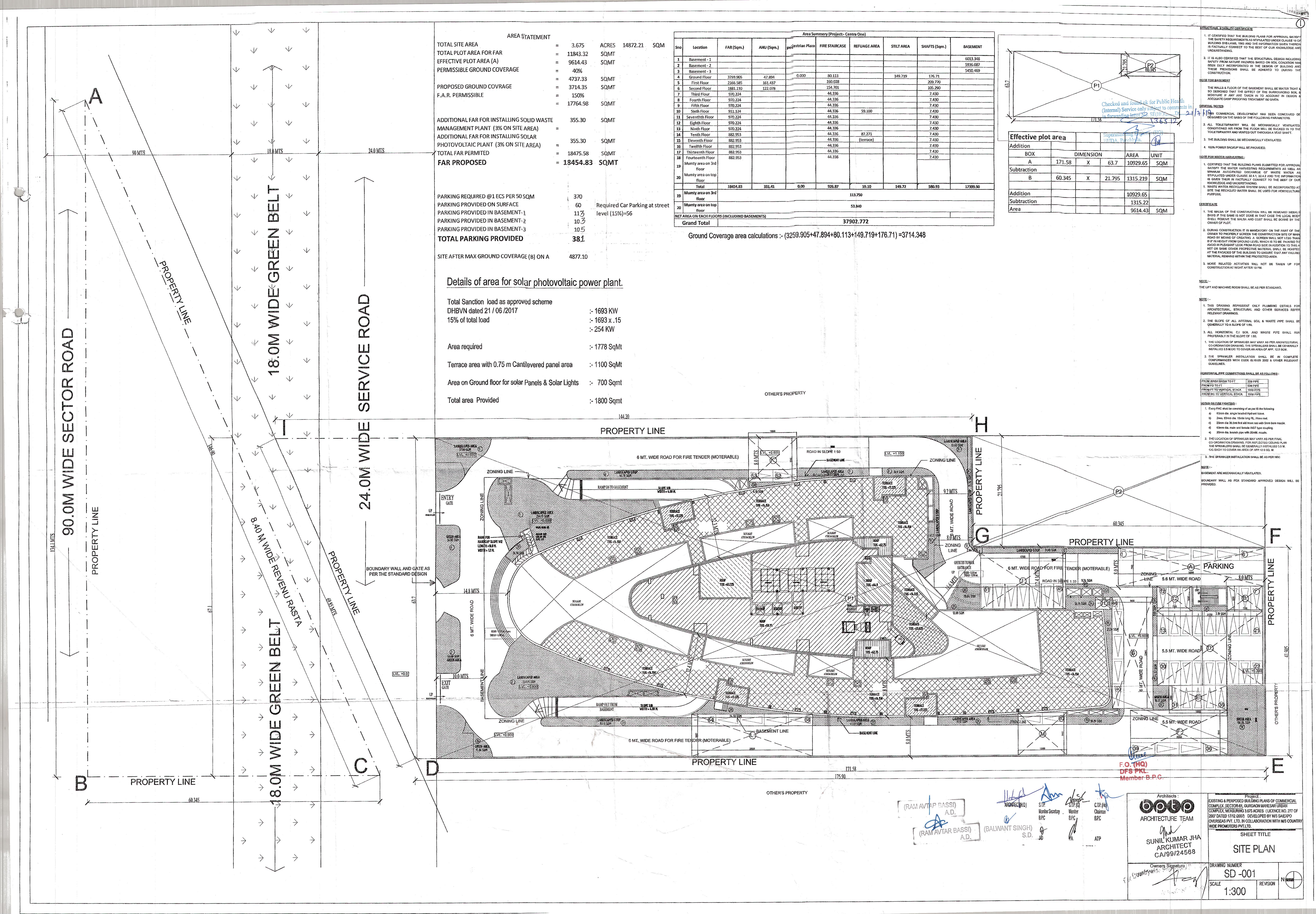
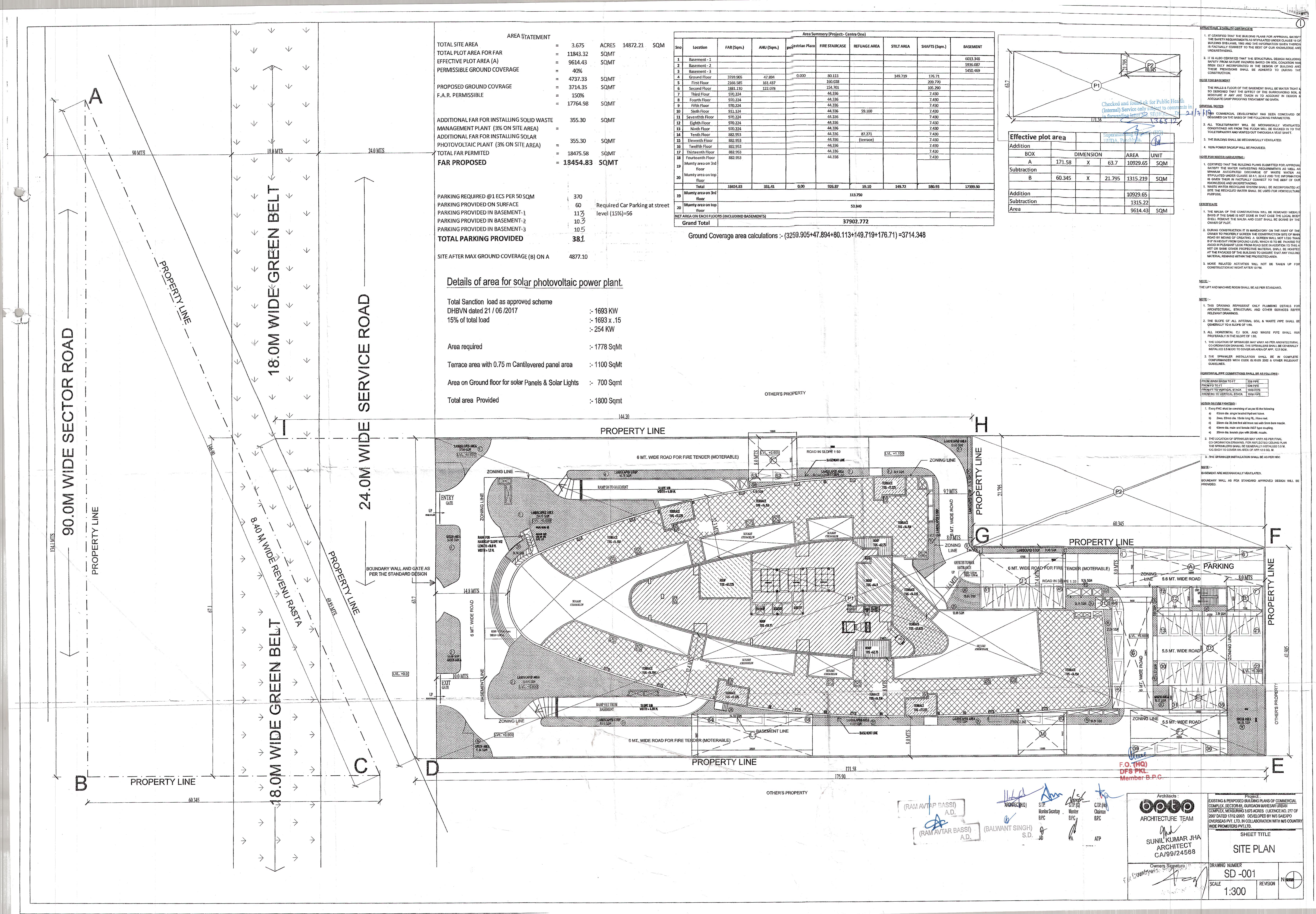
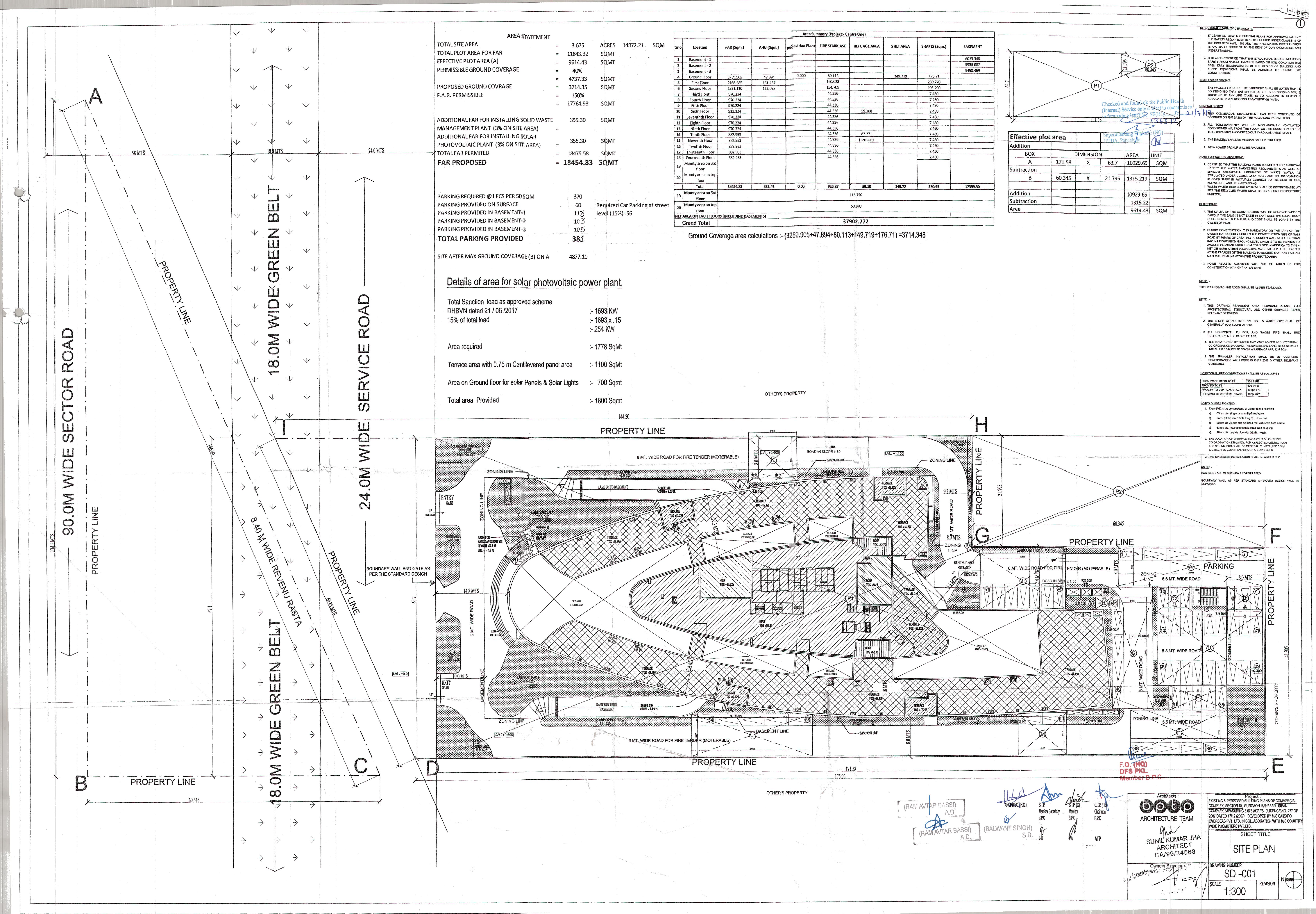
3 IN CASE OF GROUP HOUSING/ COMMERCIAL SITES, A COPY OF THE APPROVED SITE PLAN 24-05-2022 View Document
4 NON DEFAULT CERTIFICATE FROM A CHARTERED ACCOUNTANT 24-05-2022 View Document
5 DECLARATION SUPPORTED BY AFFIDAVIT DULY SIGNED BY THE PROMOTER TO BE ENCLOSED. 24-05-2022 View Document
6 BUILDINGPLANAPPROVALLETTER 24-05-2022 ------
7 ZONING PLAN 24-05-2022 View Document
8 CERTIFICATE FROM A CHARTERED ACCOUNTANT CERTIFYING THAT THE INFORMSTION PROVIDED BY THE APPLICANT IN FORM REP-1-C-X IS CORRECT AS PER THE BOOKS OF ACCOUNTS/ BALANCE SHEET OF THE APPLICANT 24-05-2022 View Document
9 DEMARCATIONLAYOUTSUPERIMPOSEDONLAYOUT 24-05-2022 ------
10 DOCUMENTS RELATING TO THE ENTRY OF LICENSE AND COLLABORATION AGREEMENT IN THE REVENUE RECORD 24-05-2022 View Document
11 FOREST NOC 24-05-2022 ------
12 ENVIRONMENT CLEARANCE 24-05-2022 ------
13 FIRE SCHEME APPROVAL 24-05-2022 ------
14 OC 24-05-2022 ------
15 BANKUNDERTAKING 24-05-2022 ------
16 CASH FLOW STATEMENT OF THE PROPOSED PROJECT 24-05-2022 View Document
17 CA CERTIFICATE FUNDS 24-05-2022 ------
18 SIZRA PLAN 24-05-2022 ------
19 SERVICE PLANS SHOWING THE SERVICES ON THE LAYOUT PLAN 24-05-2022 View Document
20 EXTERNAL LIGHTING PLAN 24-05-2022 ------
21 SEWER LAYOUT 24-05-2022 ------
22 STORM WATER 24-05-2022 ------
23 SUBSTATION DRAWING 24-05-2022 ------
24 WATER SUPPLY LAYOUT 24-05-2022 ------
25 FIRE SCHEME PLANS 06-06-2022 ------
26 LANDSCAPE PLAN 06-06-2022 ------
27 LIGHTING PLAN 06-06-2022 ------
28 PAVEMENT PLANS 06-06-2022 ------
29 STRUCTRUAL PLANS 06-06-2022 ------












Sr. No.Document DescriptionDate of Document UploadView Document
1 OC uploaded 27-10-2023 View Document