HRERA GurugramTemp Project Id : RERA-GRG-PROJ-408-2019
Submission Date : 27-12-2019 03:38:00 AM
Applicant Type : Company
Project Type: ONGOING




MAHINDRA HOMES PVT LTD & IREO PVT LTD
5TH FLOOR MAHINDRA TOWERS, WORLI, MUMBAI - 400018 & IREO PVT LTD C-4,1ST FLOOR, MALVIYA NAGAR NEW DELHI 110017
02266793184
9958353331 (Number Shared by Promoter in Public)
HARYANA.RERAMHPL@mahindra.com
https://www.mahindralifespaces.com
XXXX691A
U70102MH2010PTC203618
 
 


 
 


 
 







LUMINARE PHASE 2
SECTOR 59, VILLAGE BEHRAMPUR,
WAZIRABAD ST
GURUGRAM
9958353331
9958353331 (Number Shared by Promoter in Public)
HARYANA.RERAMHPL@mahindra.com
ANIKET KUMAR
9818249991
8527343510 (Number Shared by Promoter in Public)
kumar.aniket@mahindra.com








As per sub-rule(2) of rule 3 of the Haryana Real Estate (Regulation and Development) Rules,2017, the fee for registration of the project as has been calculated as follows:
-----------------------------------------------------------------------------------------------------------------------
-----------------------------------------------------------------------------------------------------------------------
-----------------------------------------------------------------------------------------------------------------------
-----------------------------------------------------------------------------------------------------------------------
2. The aforesaid fees is hereby deposited vide following Drafts/ Banker’s Cheques:-

Sr No.Draft/Cheque No.Draft DateAmountPayee BankPayable To
121456825-07-2017858585.10STANDARD CHARTED BANKHRERA Gurugram







2.77 (Acre)
1.75
0.34
17.55 (Acre)
16 of 2008
No
Address     304, 3RD FLOOR, KANCHAN HOUSE KARMPURA COMMERCIAL COMPLEX NEW DELHI -110015
Annexure-B- COLLABORATION AGREEMENTS AND POWER OF ATTORNEYS
AFTER THE GRANT OF LICENSES
Yes
1ST COLLABORATION AGREEMENT DATED 6/5/2013 FOR AREA MEASURING 5.794 ACRES REGISTER WITH THE SUB-REGISTRAR SOHNA BEARING DOCUMENT NO 551 DATED 7/5/2013 2ND COLLABORATION AGREEMENT DATED 12/2/2014 FOR AND AREA MEASURING 1 ACRE REGISTER WITH THE SUB-REGISTRAR SOHNA BEARING DOCUMENT NO 5672 DATED 12/2/2014
No
Yes
Yes







40727 Lakhs
964.76 Lakhs
359.00 Lakhs
799.97 Lakhs
876.24 Lakhs




Sr. No.Land area under usageArea of land (Acres)
1PLOTS TO BE SOLD 0
2LAND AREA TO BE USED FOR CONSTRUCTION OF APARTMENTS 0.304
3CONSTRUCTION OF ROADS 0.506
4PAVEMENTS 0
5PARKS AND PLAYGROUNDS 0
6GREEN BELTS 0
7VEHICLE PARKINGS 0.106
8ELECTRICITY SUB-STATION 0
9CLUB HOUSE 0.173
10SEWAGE AND SOLID WASTE TREATMENT FACILITY 0
11AREA TO BE LEFT FOR TRANSFERRING TO THE GOVERNMENT FOR COMMUNITY SERVICES 0
12ANY OTHER 1.679
Total2.768




FacilityExternal/ connecting service to be provided by (Name the agency)Whether Approval taken from the agency concerned. Yes/No (Annex details in folder C)
ROADSHUDAYes
WATER SUPPLYGURUGRAM METROPOLITAN DEVELOPMENT AUTHORITYYes
ELECTRICITYCHIEF EXECUTIVE ELECTRICAL HUDAYes
SEWAGE DISPOSALGURUGRAM METROPOLITAN DEVELOPMENT AUTHORITYYes
STORM WATER DRAINAGEHUDAYes




Sr. No.Name of the facilityEstimated cost (In Lakhs)(Within the project area only)Remarks: Yet to be prepared / Submitted to HUDA, Town & Country Planning Department/ as per project report etc. (Annex relevant documents showing costing details etc. in folder C)
1INTERNAL ROADS AND PAVEMENTS0SUBMITTED TO HUDA
2WATER SUPPLY SYSTEM198.06SUBMITTED TO HUDA
3STORM WATER DRAINAGE49.69SUBMITTED TO HUDA
4ELECTRICITY SUPPLY SYSTEM0SUBMITTED TO HUDA
5SEWAGE TREATMENT & GARBAGE DISPOSAL0SUBMITTED TO HUDA
6STREET LIGHTING26.09SUBMITTED TO HUDA
7SECURITY AND FIRE FIGHTING0SUBMITTED TO HUDA
8PLAYGROUNDS AND PARKS0SUBMITTED TO HUDA
9CLUB HOUSE/COMMUNITY CENTRE0SUBMITTED TO HUDA
10SHOPPING AREA0SUBMITTED TO HUDA
11RENEWABLE ENERGY SYSTEM0SUBMITTED TO HUDA
12SCHOOL0SUBMITTED TO HUDA
13HOSPITAL/DISPENSARY0SUBMITTED TO HUDA
14ANY OTHER0SUBMITTED TO HUDA
15SEWERAGE SCHEME96.65YET TO BE PREPARED
16ROADS166.45YET TO BE PREPARED
17HORTICULTURE6.57YET TO BE PREPARED
18MAINTENANCE CHARGES FOR TEN YEARS INCLUDING RESURFACING OF ROADS256.46YET TO BE PREPARED


NA (date)
NA (date)


Sr. No.Plot/ apartment type Size of the plot/carpet area of the apartments Total number of plots/apartments in the project Total size of the plots/carpet area of the apartments Plots/apartments booked/ sold upto the date of application Yet to be sold/ booked No. of towers to be/ being constructed for booked apartments
1 APARTMENT/SHOPS/OTHER BUILDINGS Type 3BHK 151.627 58 8794.366 12 46 1
2 APARTMENT/SHOPS/OTHER BUILDINGS Type 4BHK 186.645 58 10825.41 24 34 1
3 APARTMENT/SHOPS/OTHER BUILDINGS Type PENT HOUSE TYPE -1 249.85 2 499.7 2 0 1
4 APARTMENT/SHOPS/OTHER BUILDINGS Type PENT HOUSE TYPE-2 314.429 2 628.858 2 0 1
Total12020748.33440804






TypeNumber of apartments booked/ sold Write or Annex the stage of construction of the booked/ sold apartments in folder C
3BHK12STRUCTURE COMPLETED, FINISHING WORK IN PROGRESS
4BHK24STRUCTURE COMPLETED, FINISHING WORK IN PROGRESS
PENT HOUSE TYPE-12STRUCTURE COMPLETED, FINISHING WORK IN PROGRESS
PENT HOUSE TYPE-22STRUCTURE COMPLETED, FINISHING WORK IN PROGRESS
4BHK24STRUCTURE COMPLETED, FINISHING WORK IN PROGRESS
PENT HOUSE TYPE-12STRUCTURE COMPLETED, FINISHING WORK IN PROGRESS
PENT HOUSE TYPE-22STRUCTURE COMPLETED, FINISHING WORK IN PROGRESS
4BHK24STRUCTURE COMPLETED, FINISHING WORK IN PROGRESS
PENT HOUSE TYPE-12STRUCTURE COMPLETED, FINISHING WORK IN PROGRESS
PENT HOUSE TYPE-22STRUCTURE COMPLETED, FINISHING WORK IN PROGRESS
4BHK24STRUCTURE COMPLETED, FINISHING WORK IN PROGRESS
PENT HOUSE TYPE-12STRUCTURE COMPLETED, FINISHING WORK IN PROGRESS
PENT HOUSE TYPE-22STRUCTURE COMPLETED, FINISHING WORK IN PROGRESS


21-12-2015
31-03-2021
31-03-2021
21-12-2015
59.24
31-03-2021


PlotsBooked/soldStage of handing over the possession (Write or Annex details)
PLOT00
21-12-2015
59.24
31-03-2021


0
0
316
34
0





Expenditure incurred till the date of application (In Lakhs)

ParticularsExpenditure
Apartments26814.51692
Shops0
Plots0
EDC and IDC876.24
Infrastructure1004.26
Land Cost964.76

Expenditure to be made in each quarter (In Lakhs)

ParticularsYear-2019
Jan-MarApr-JuneJuly-SepOct-Dec
Apartments0583.07
Shops00
Plots00

ParticularsYear-2020
Jan-MarApr-JuneJuly-SepOct-Dec
Apartments1239.03
Shops0
Plots0




Expenditure incurred till the date of application (In Lakhs)

ParticularsExpenditure
Roads & Pavements81.42
Water Supply System203.66
Sewerage treatment & garbage disposal0
Electricity Supply System225.00
Storm Water Drainage0
Parks and Playgrounds0
Clubhouse/community centres216.99
Shopping area14.59
Other108.16
Renewable Energy System7.31
Security and Fire Fighting147.12

Expenditure to be made in each quarter (In Lakhs)

ParticularsYear-2019
Jan-MarApr-JuneJuly-SepOct-Dec
Roads & Pavements05.94
Water Supply System077.79
Sewerage treatment & garbage disposal016.05
Electricity Supply System070.05
Storm Water Drainage075.56
Parks and Playgrounds00
Clubhouse/community centres00
Shopping area00
Other070.10

ParticularsYear-2020
Jan-MarApr-JuneJuly-SepOct-Dec
Roads & Pavements8.62
Water Supply System31.35
Sewerage treatment & garbage disposal19.45
Electricity Supply System65.29
Storm Water Drainage7.73
Parks and Playgrounds0
Clubhouse/community centres0
Shopping area0
Other52.34












Particulars Remarks, if any
i. No. of Flats/Apartments constructed0
ii. No. of Flats/ Apartments booked40
iii. Total amount sale value of booked Flats, on the date of application/end of last quarter19024 Lakhs
iv. Total amount received from the allottees (booked Flats), on the date of application/end of last quarter7198 Lakhs
v. Balance amount to be received from the allottees (booked Flats, after completion), on the date of application/end of last quarter11826 Lakhs
vi. Balance amount due and recoverable from the allottees (booked Flats) as on the date of application /end of last quarter91 Lakhs
vii. Amount invested in the project upto the date of application29659.77986 Lakhs
Land cost (If any)965 Lakhs
Apartments26814.51692 Lakhs
Infrastructure1004.26 Lakhs
EDC/ Taxes Etc.876.24 Lakhs
viii. Balance cost to be incurred for completion of the project and delivery of possession11067.01945 Lakhs
(a) In respect of existing allottees3689.01 Lakhs
(b) In respect of rest of the project7378.01 Lakhs
ix. The amount of loan raised from the banks/ financial institutions/ private persons against the project
Annex detail of the securities furnished to the banks/ financial institutions against the aforesaid loans in folder C
24018.13 Lakhs
x. Total liabilities against the project up-to-date. (Annex details in folder C) 0 Lakhs



Particulars Estimated expenditure planned to be incurred as per service plan estimates or the project report. (In Lakhs)Actual expenditure incurred upto the date of application. (In Lakhs)
I. INTERNAL ROADS AND PAVEMENTS166.4581.42
II. WATER SUPPLY SYSTEM198.06203.66
III. STORM WATER DRAINAGE49.690
IV. ELECTRICITY SUPPLY SYSTEM0225.00
V. SEWAGE TREATMENT & GARBAGE DISPOSAL00
VI. CLUB HOUSE/COMMUNITY CENTRE0216.99
VII. SCHOOL00
VIII. ANY OTHER0108.16
IX. SOLID WASTE COLLECTION & MGMT SYSTEM00
X. CLUBHOUSE00
XI. NEIGHBOURHOOD SHOPPING00
XII. GREEN AREAS,PARKS,PLAYGROUNDS ETC.6.570
XIII. COVERED PARKING00
XIV. OPEN PARKING00
XV. GARAGES00
XVI. SECURITY SYSTEM00
XVII. OTHER FACILITIES AS PER PROJECT REPORT501.94183.61









Yes
Yes
HDFC BANK LTD, 3RD FLOOR, LODHA- I THINK, TECHNO CAMPUS, NEXT TO KANJURMARG RAILWAY STATION, KANJURMARG EAST, MUMBAI- 400042
57500000087680
HDFC0000542
400240002
000542
Rahul Gupta, Address: C-4, Janakpuri, Rajouri Garden, West Delhi-110058











Yes
Yes
Yes
Yes
Yes
Yes
Yes
Yes
Yes
Yes


No
Yes
Yes
Yes
Yes
No
No
Yes
Statutory Approvals Statutory Approvals StatusDate
I. BUILDING PLAN APPROVALALREADY BEEN OBTAINED22-08-2016








Yes


Yes


as per the prescribe rule













SPECIFICATION OF CONSTRUCTION
Specification of apartments and other buildings including the following:
1FLOORING DETAILS OF VARIOUS PARTS OF HOUSEITALIAN MARBLE, LAMINATED WOODEN FLOORING, ANTI-SKID VITRIFIED TILE,
2WALL FINISHING DETAILSLOW VOC ACRYLIC EMULSION PAINT
3KITCHEN DETAILSMODULAR KITCHEN CABINET WITH GRANITE COUNTER TOP/ HOB, CHIMNEY
4BATHROOM FITTINGSTOTO, GROHE OR EQUIVALENT
5WOOD WORK ETCNA
6DOORS AND WINDOS FRAMESDOORS- HARDWOOD FRAME WITH FLUSH DOOR WITH VENEER FINISH (ON BOTH SIDE) BOTH SIDE LAMINATED FINISH FLUSH DOOR WITH HARDWOOD FRAME, WINDOWS- UPVC FRAMED DOUBLE GLAZING UNIT
7GLASS WORKLAMINATED TOUGHENED GLASS IN BALCONIES, UPVC FRAMED DOUBLE GLAZING
8ELECTRIC FITTINGSNA
9CONDUCTING AND WIRING DETAILSNA
10CUPBOARD DETAILSNA
11WATER STORAGENA
12LIFT DETAILSHIGH SPEED ELEVATORS- BY THYSSENKRUPP
13EXTERNAL GLAZINGSLAMINATED TOUGHENED GLASS IN BALCONIES, UPVC FRAMED DOUBLE GLAZING
13.1WINDOWS/GLAZINGSUPVC FRAMED DOUBLE GLAZING
14DOORSDOORS- HARDWOOD FRAME WITH FLUSH DOOR WITH VENEER FINISH (ON BOTH SIDE) BOTH SIDE LAMINATED FINISH FLUSH DOOR WITH HARDWOOD FRAME,
14.1MAIN DOORSDOORS- HARDWOOD FRAME WITH FLUSH DOOR WITH VENEER FINISH (ON BOTH SIDE)
14.2INTERNAL DOORSDOORS- HARDWOOD FRAME WITH FLUSH DOOR WITH VENEER FINISH (ON BOTH SIDE) BOTH SIDE LAMINATED FINISH FLUSH DOOR WITH HARDWOOD FRAME,
15AIR CONDITIONINGVRF SYSTEM
16ELECTRICAL FITTINGSNA
17CNG PIPE LINENA
18PROVISION OF WIFI AND BROADBAND FACILITYNA
19EXTERNAL FINISHING/COLOUR SCHEMEEXTERNAL GRADE PAINT FINISH
20INTERNAL FINISHINGLOW VOC ACRYLIC EMULSION
SPECIFICATION UNIT WISE
1 . LIVING/DINING/FOYER/FAMILY LOUNGE
1 . 1 FLOORITALIAN MARBLE
1 . 2 WALLSLOW VOC ACRYLIC EMULSION PAINT
1 . 3 CEILINGLOW VOC ACRYLIC EMULSION PAINT AND PART GYPSUM BOARD FALSE CEILING AS PER DESIGN
2 . MASTER BEDROOM/DRESSROOM
2 . 1 FLOORLAMINATED WOODEN FLOOR
2 . 2 WALLSLOW VOC ACRYLIC EMULSION PAINT
2 . 3 CEILINGLOW VOC ACRYLIC EMULSION PAINT AND PART GYPSUM BOARD FALSE CEILING AS PER DESIGN
2 . 4 MODULAR WARDROBESNA
3 . MASTER TOILET
3 . 1 FLOORANTI-SKID VITRIFIED TILES
3 . 2 WALLSVITRIFIED TILE UP TO FALSE CEILING, WITH ITALIAN MARBLE ON THE COUNTER
3 . 3 CEILINGLOW VOC ACRYLIC EMULSION PAINT WITH FALSE CEILING.
3 . 4 COUNTERSITALIAN MARBLE ON THE COUNTER
3 . 5 SANITARY WARE/CP FITTINGSTOTO OR EQUIVALENT
3 . 6 FITTING/FIXTURESGROHE OR EQUIVALENT
4 . BED ROOMS
4 . 1 FLOORLAMINATED WOODEN FLOOR
4 . 2 WALLSLOW VOC ACRYLIC EMULSION PAINT
4 . 3 CEILINGLOW VOC ACRYLIC EMULSION PAINT AND PART GYPSUM BOARD FALSE CEILING AS PER DESIGN
4 . 4 WARDROBESNA
5 . TOILET
5 . 1 FLOORANTI-SKID VITRIFIED TILES
5 . 2 WALLSVITRIFIED TILE UP TO FALSE CEILING,
5 . 3 CEILINGLOW VOC ACRYLIC EMULSION PAINT WITH FALSE CEILING.
5 . 4 COUNTERSITALIAN MARBLE ON THE COUNTER
5 . 5 SANITARY WARE/CP FITTINGSTOTO OR EQUIVALENT
5 . 6 FIXTURESGROHE OR EQUIVALENT
6 . KITCHEN
6 . 1 FLOORANTI-SKID VITRIFIED TILES
6 . 2 WALLSWALL TILES UP TO 2' 0" ABOVE THE COUNTER AND LOW VOC ACRYLIC EMULSION IN THE BALANCE AREA
6 . 3 CEILINGLOW VOC ACRYLIC EMULSION PAINT AND PART GYPSUM BOARD FALSE CEILING AS PER DESIGN
6 . 4 COUNTERSGRANITE COUNTER TOP
6 . 5 FIXTURESNA
6 . 6 KITCHEN APPLIANCESMODULAR KITCHEN CABINET WITH GRANITE COUNTER TOP/ HOB, CHIMNEY WILL BE PROVIDED.
7 . UTILITY ROOMS/UTILITY BALCONY/TOILET
7 . 1 FLOORANTI-SKID VITRIFIED TILES
7 . 2 WALLS & CEILINGEXTERIOR GRADE PAINT OF APPROVED MAKE
7 . 3 TOILETNA
7 . 4 BALCONYSS HANDRAIL WITH LAMINATED TOUGHENED GLASS
8 . SIT-OUTS
8 . 1 FLOORNA
8 . 2 WALLS & CEILINGNA
8 . 3 RAILINGSNA
8 . 4 FIXTURESNA












Sr. No.Document DescriptionDate of Document UploadView Document
1 ANNEXURE-12-1-17 REVISED SITE PLAN 14-02-2020 View Document
2 ANNEXURE-12-1-13 COMMUNITY CENTER SECOND FLOOR 14-02-2020 View Document
3 ANNEXURE-12-1-14 COMMUNITY CENTER TERRACE 14-02-2020 View Document
4 BR III 14-02-2020 View Document
5 ANNEXURE-12-1-7 TOWER-3 TERRACE PLAN 14-02-2020 View Document
6 REVISED BUILDING PLAN LETTER 14-02-2020 View Document
7 ANNEXURE-12-1-1 SITE PLAN 14-02-2020 View Document
8 ANNEXURE-12-1-4 TOWER-3 TYPICAL FLOOR PLAN 14-02-2020 View Document
9 AIRPORT HEIGHT CLEARANCE NOC 14-02-2020 View Document
10 SITE PLAN MOEF 14-02-2020 View Document
11 DOCUMENTS RELATING TO THE ENTRY OF LICENSE AND COLLABORATION AGREEMENT IN THE REVENUE RECORD 14-02-2020 View Document
12 SERVICE PLANS SHOWING THE SERVICES ON THE LAYOUT PLAN 14-02-2020 View Document
13 ANNEXURE-12-1-9 TOWER-3 ELEVATIONS 14-02-2020 View Document
14 ANNEXURE-12-1-6 TOWER-3 UPPER PENTHOUSE PLAN 14-02-2020 View Document
15 ANNEXURE-12-1-12 COMMUNITY CENTER FIRST FLOOR 14-02-2020 View Document
16 NON-ENCUMBRANCE CERTIIFCATE 14-02-2020 View Document
17 BANK ACCOUNT DETAIL 14-02-2020 View Document
18 ANNEXURE-12-1-8 TOWER-3 MUMTY PLAN 14-02-2020 View Document
19 ANNEXURE-12-1-10 TOWER-3 SECTION 14-02-2020 View Document
20 ANNEXURE-12-1-15 REVISED LOWER BASEMENT PLAN AND PARKING AREA CALCULATION 14-02-2020 View Document
21 ANNEXURE-12-1-2 SITE PLAN SERVICES 14-02-2020 View Document
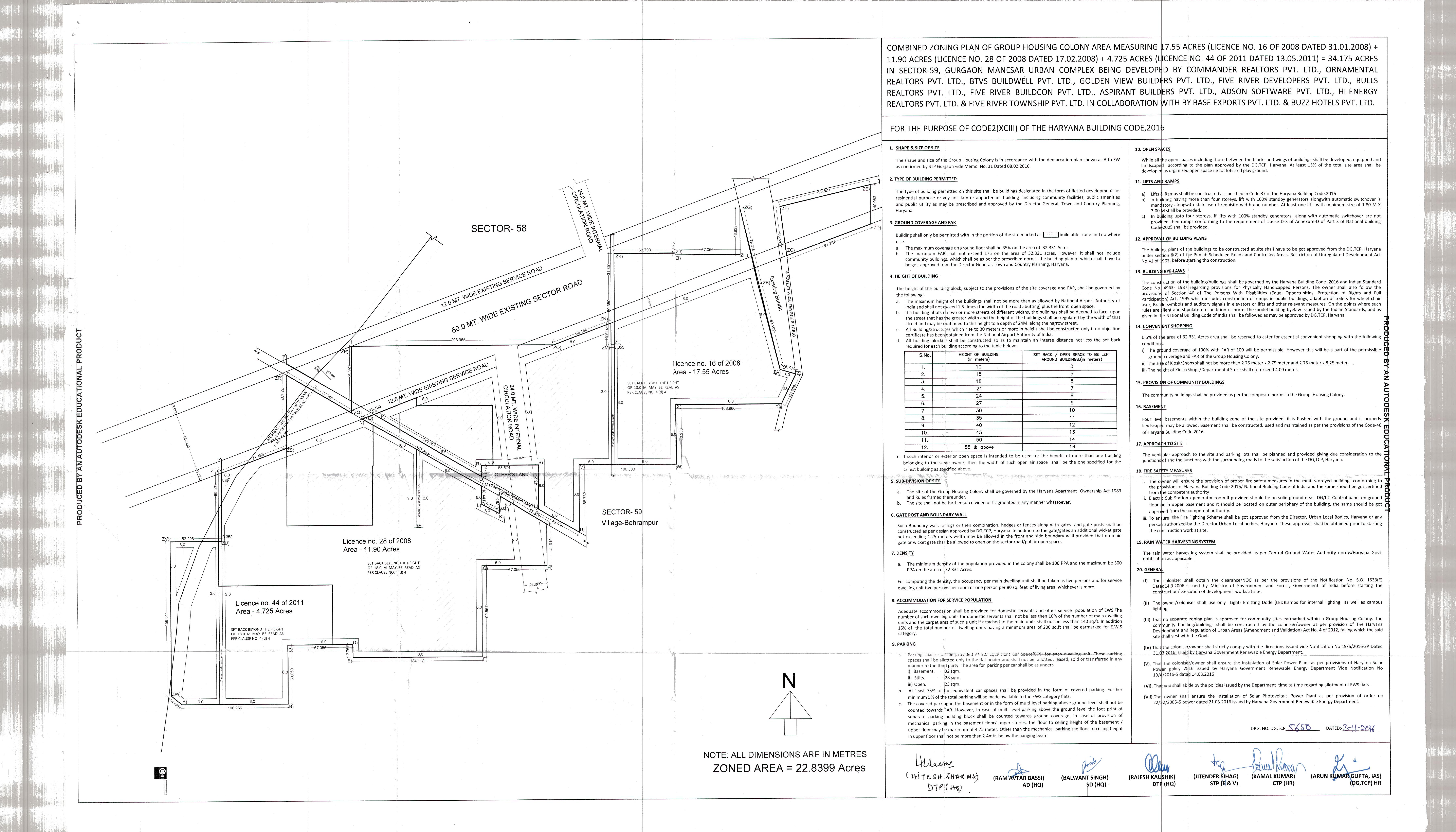
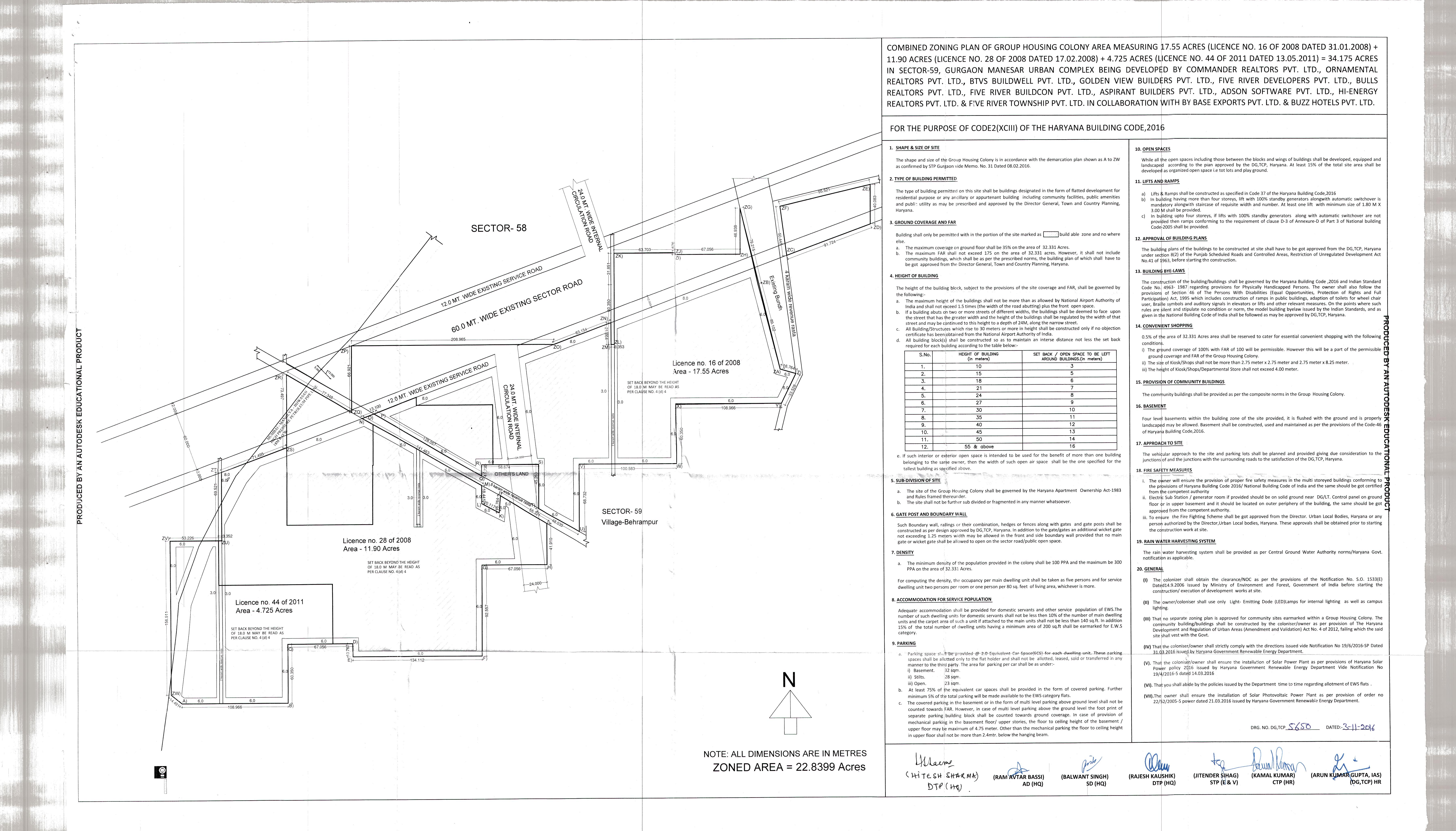
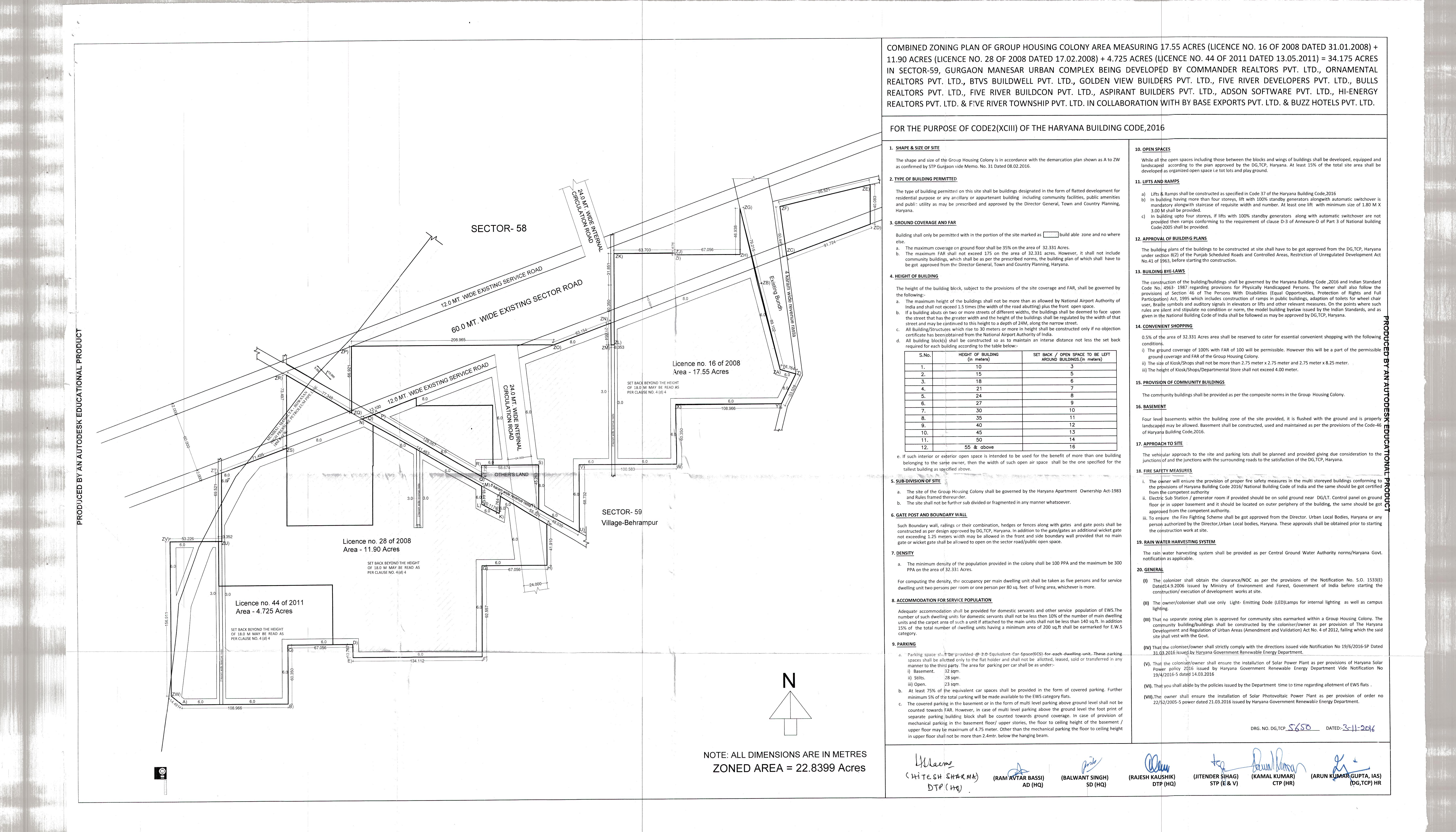
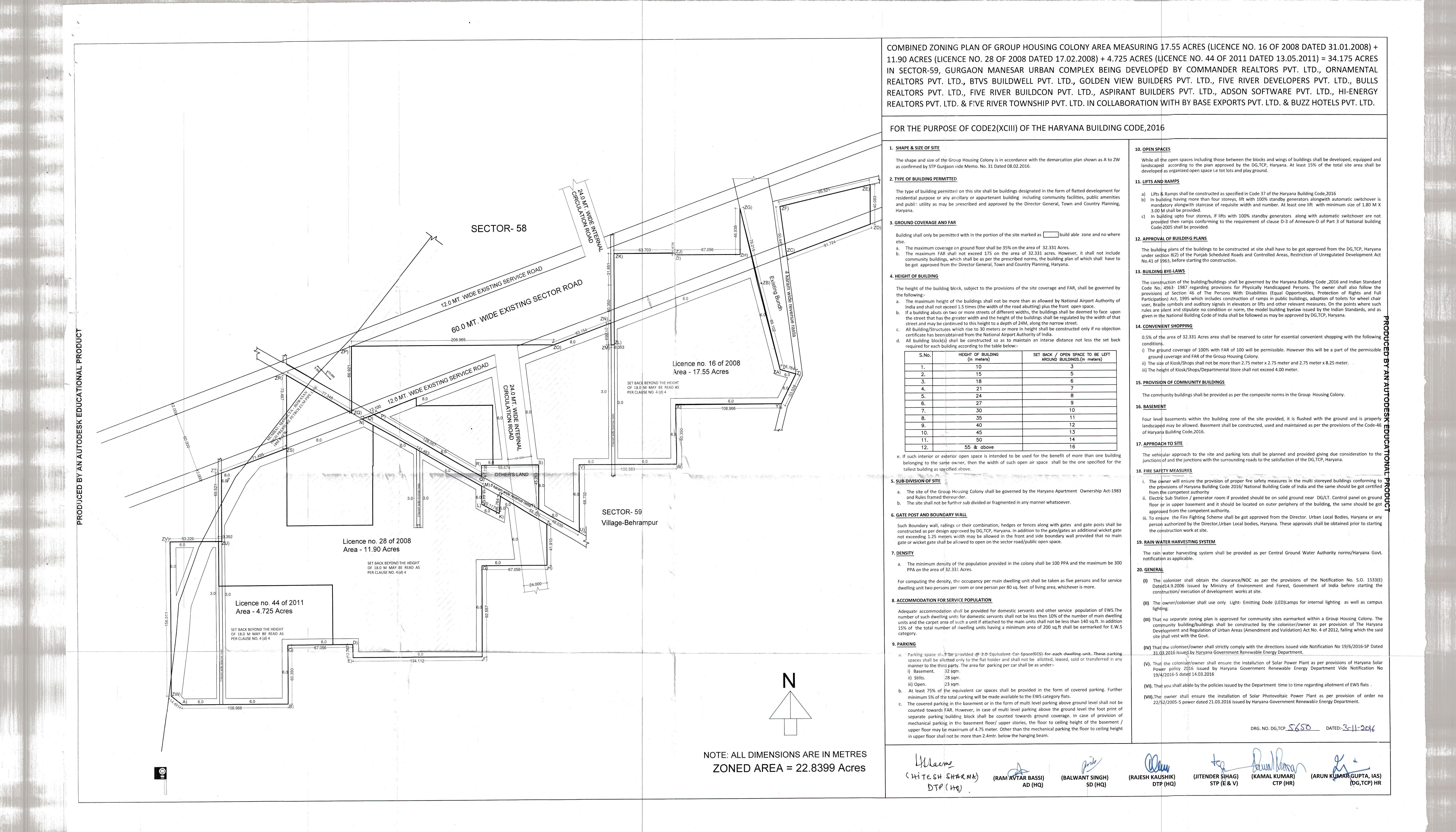
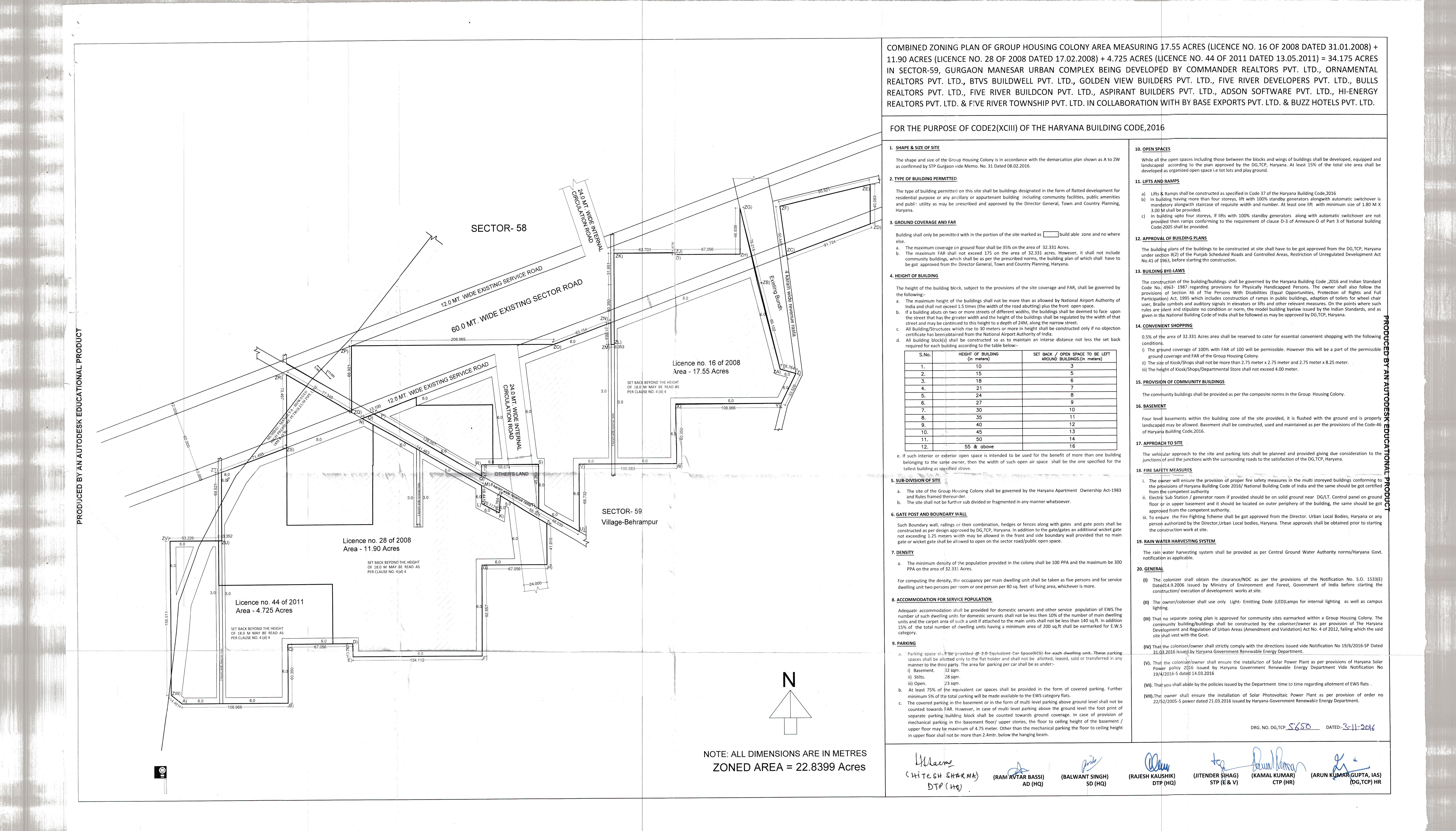
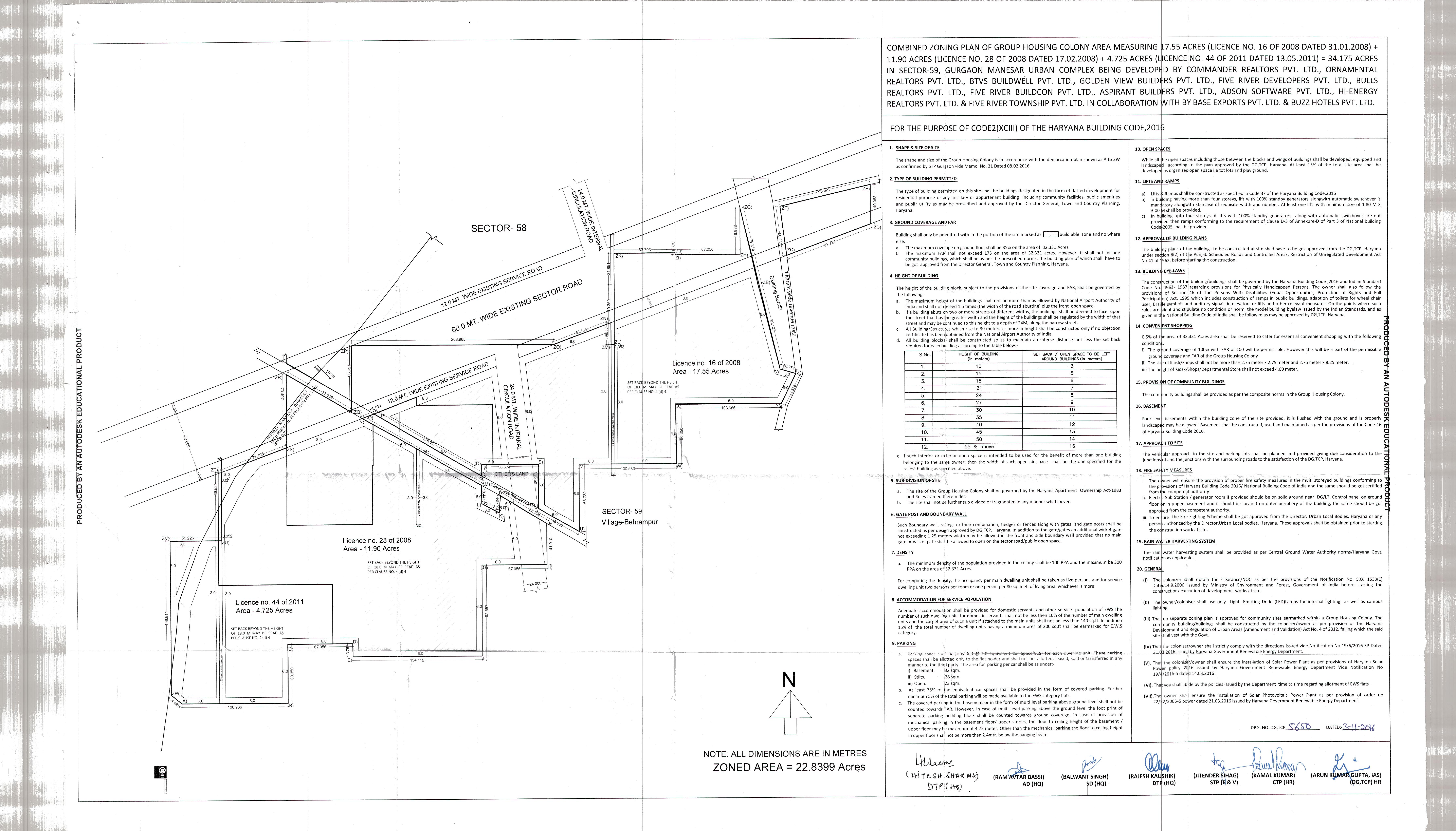
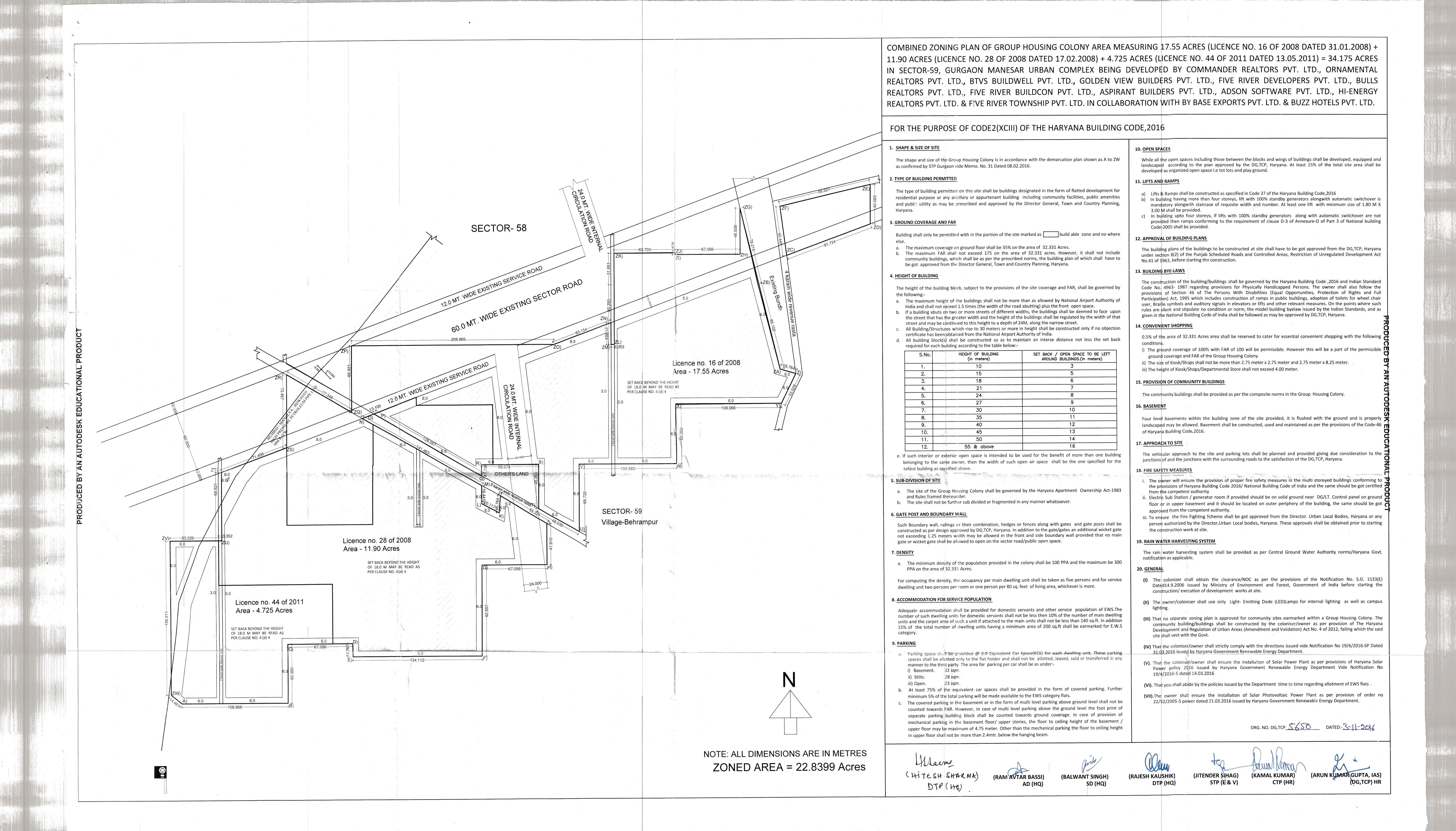
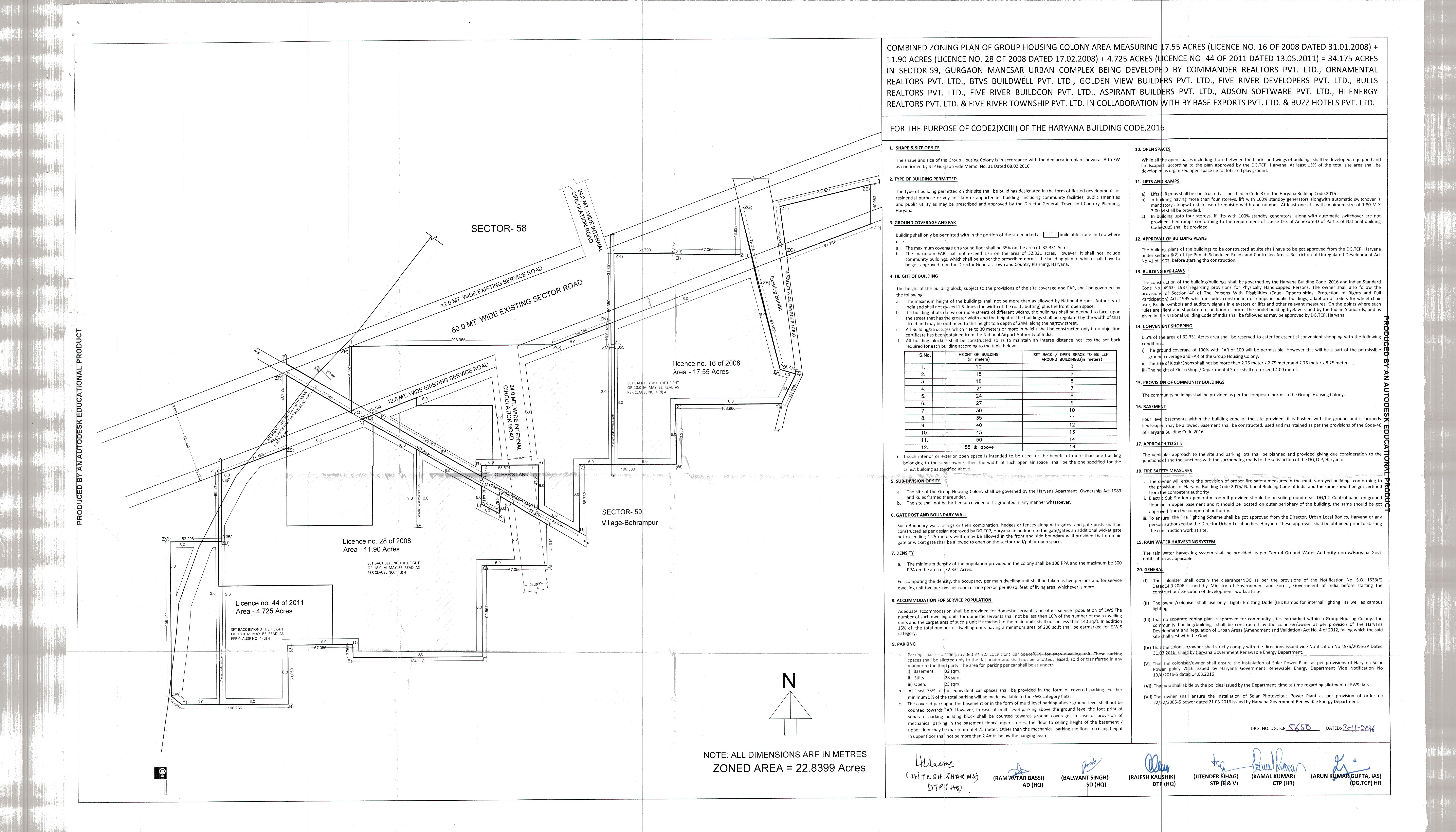
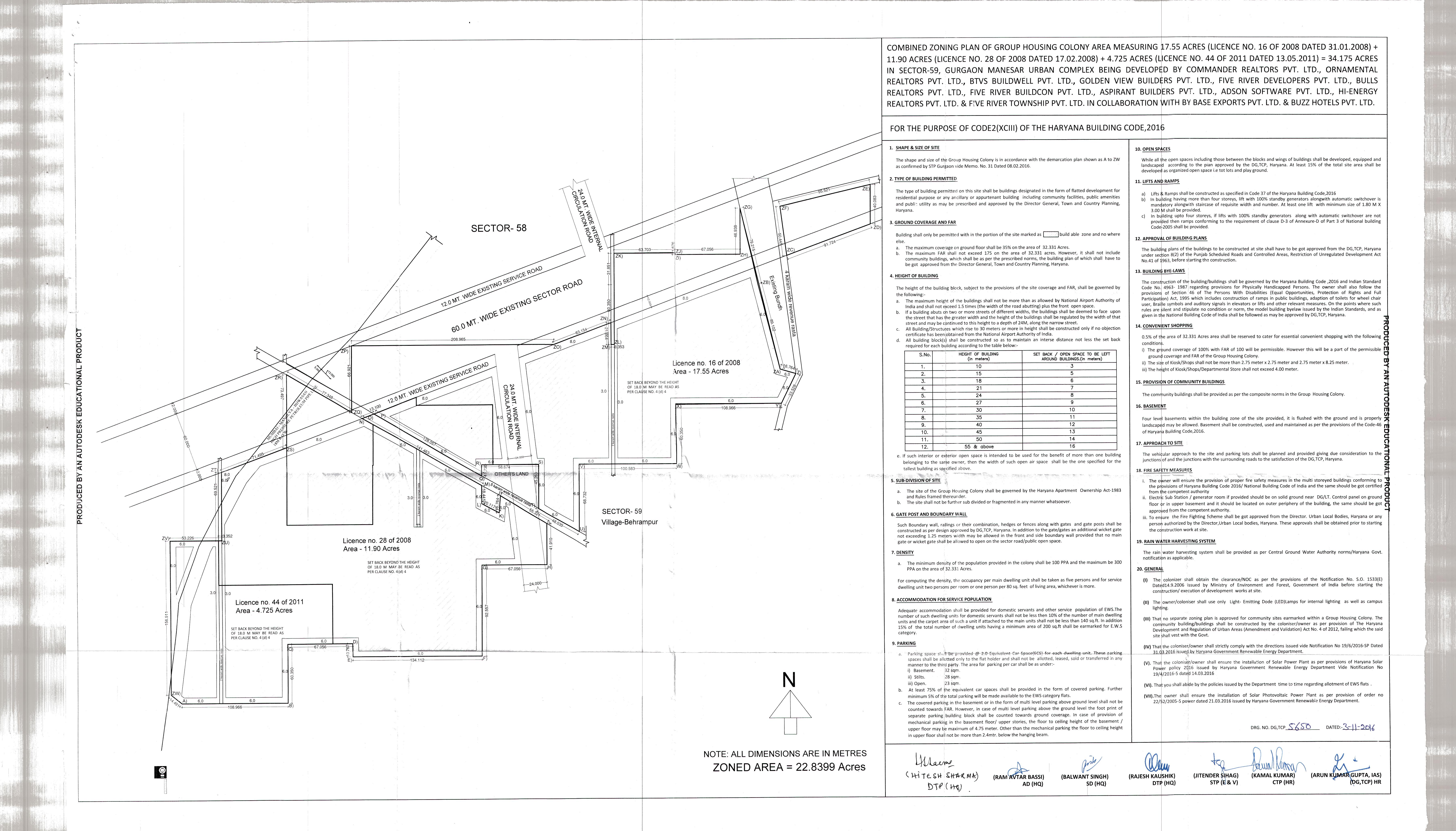
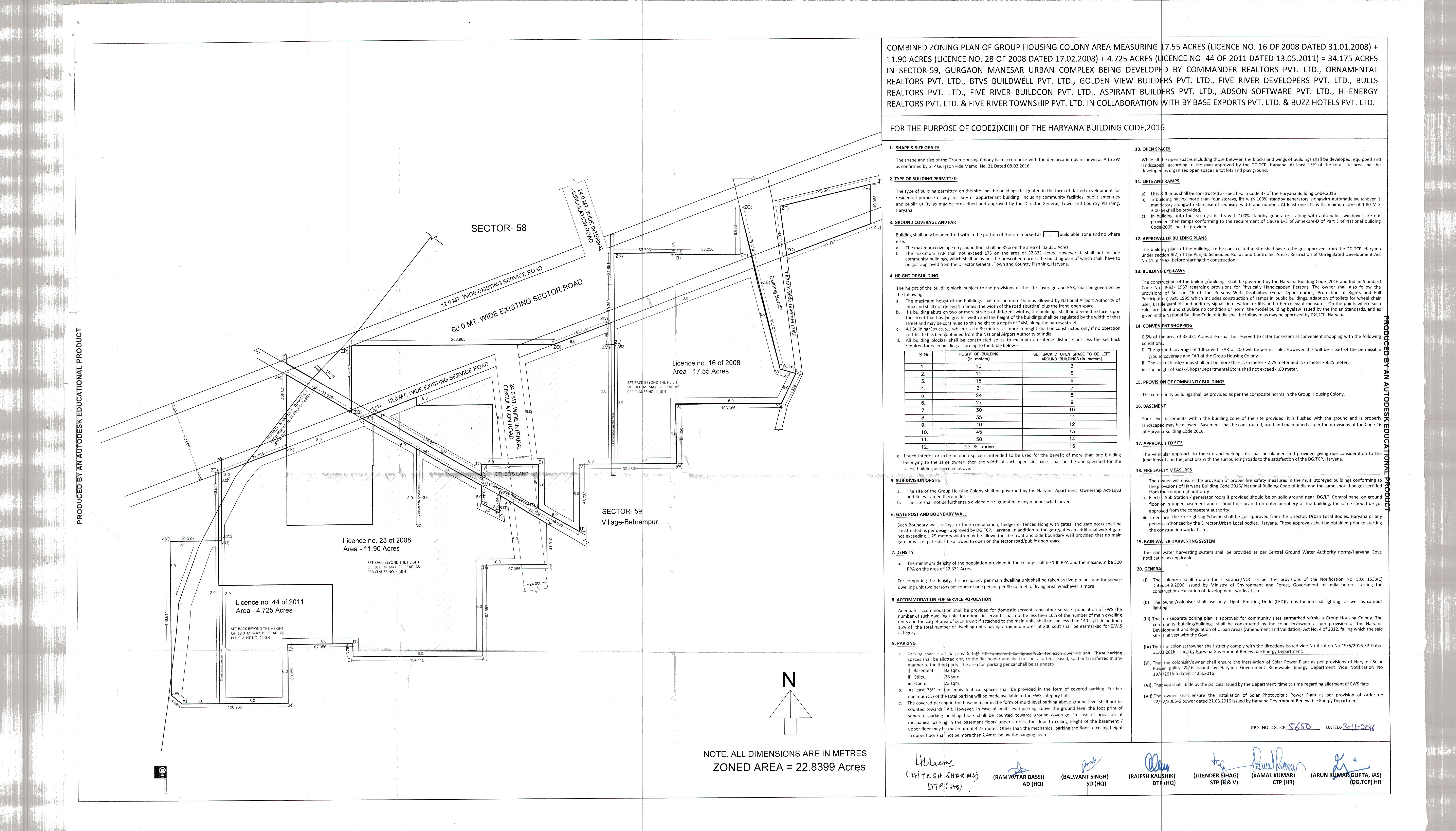
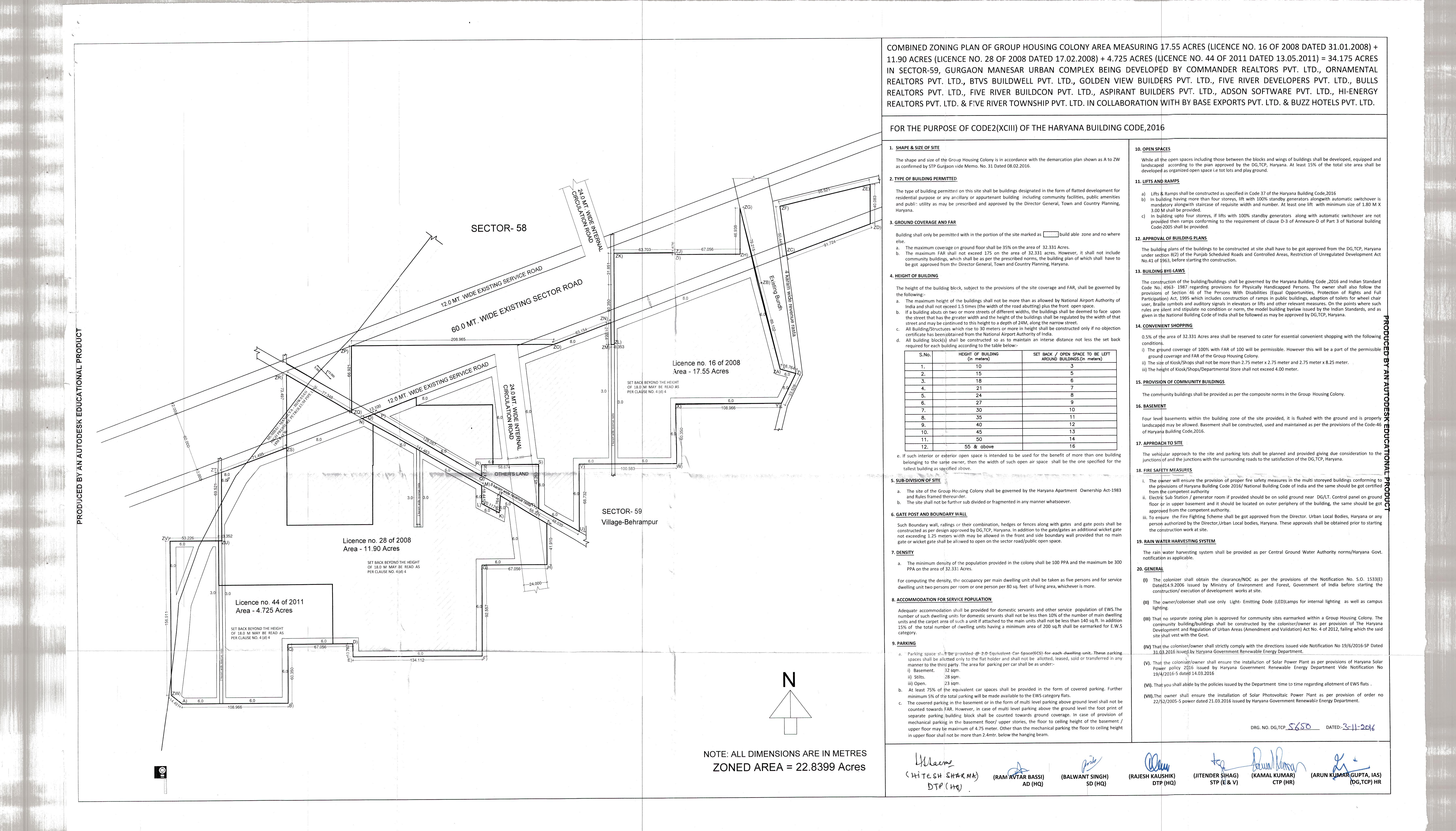
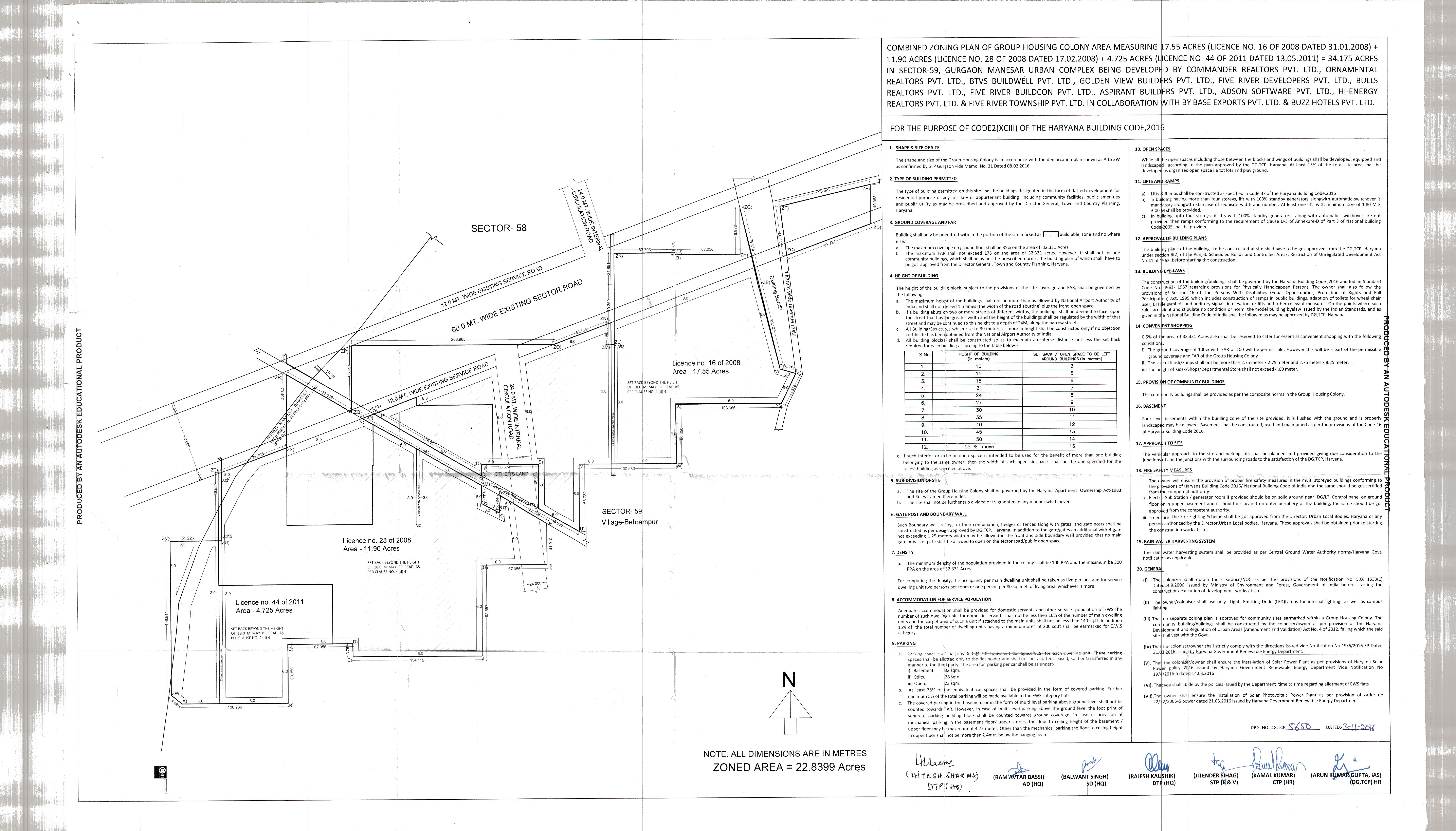
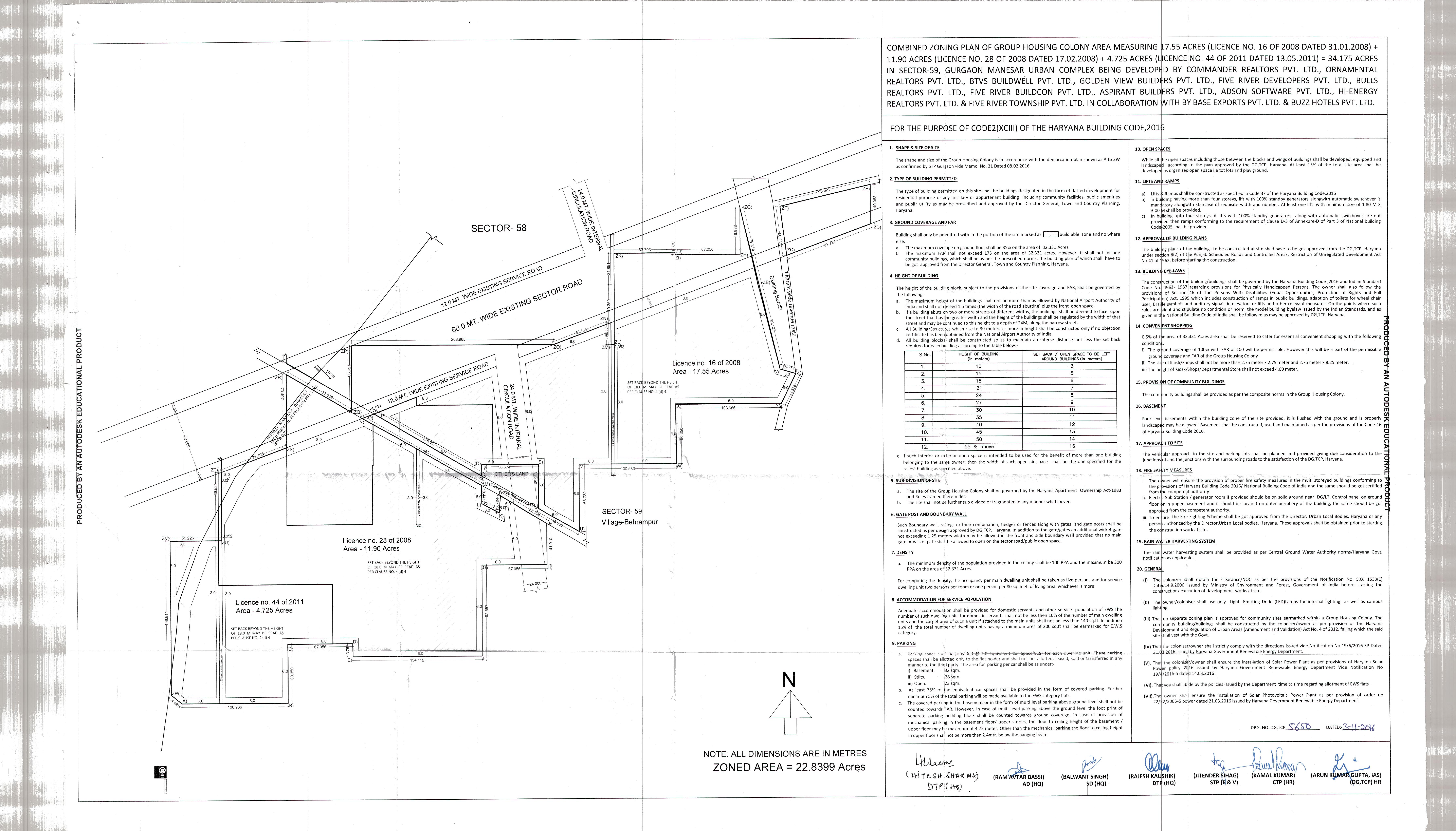
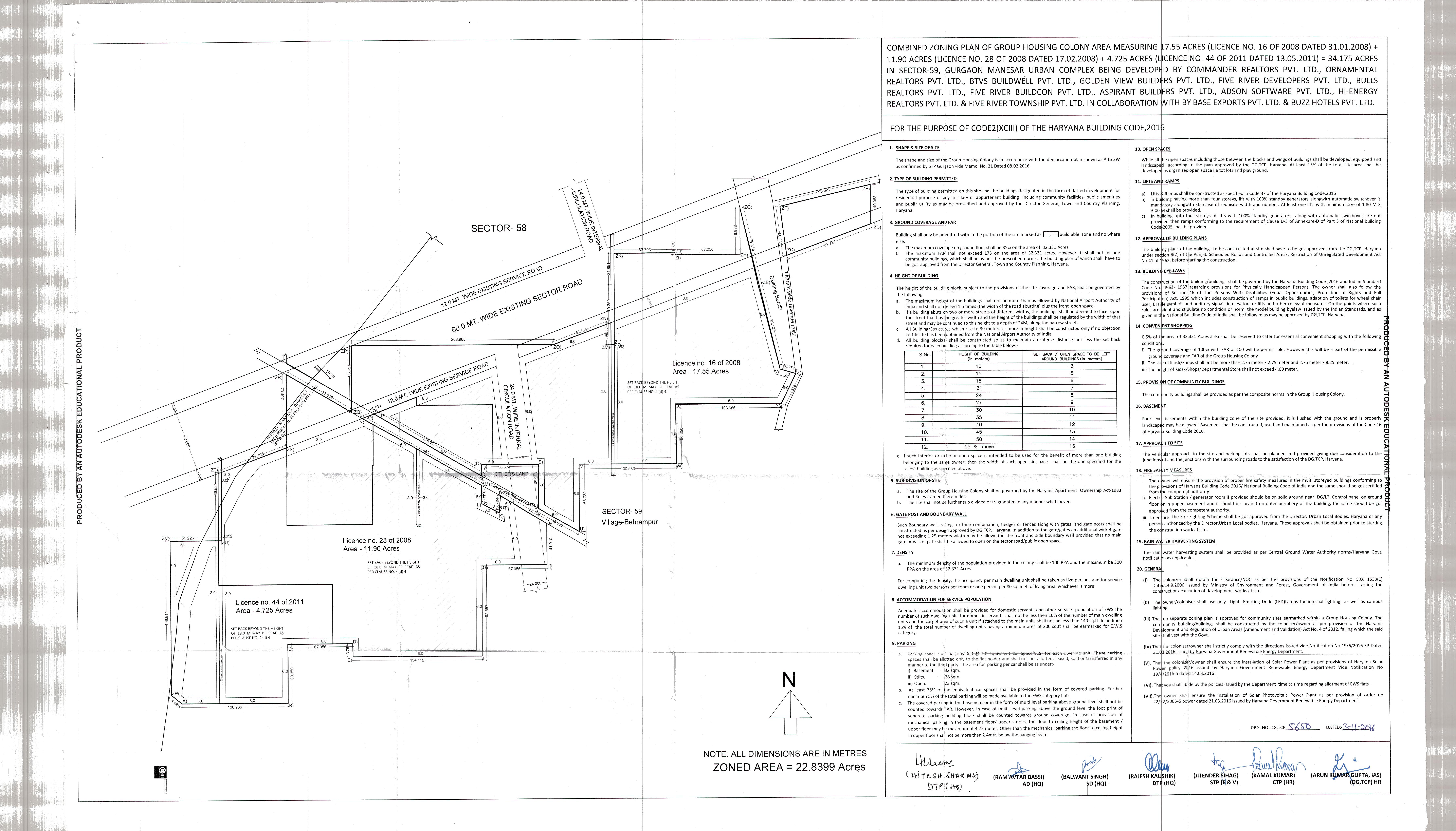
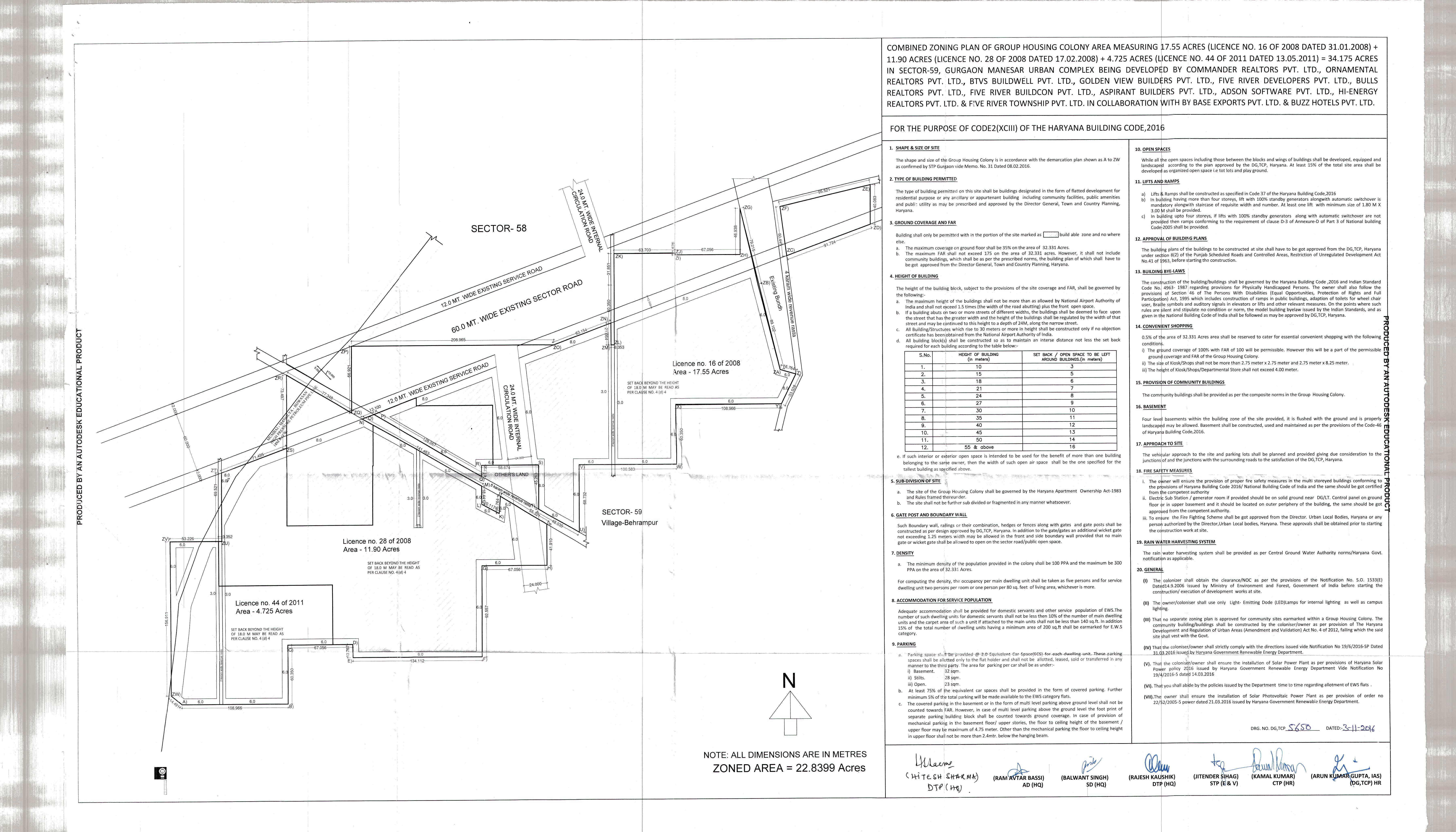
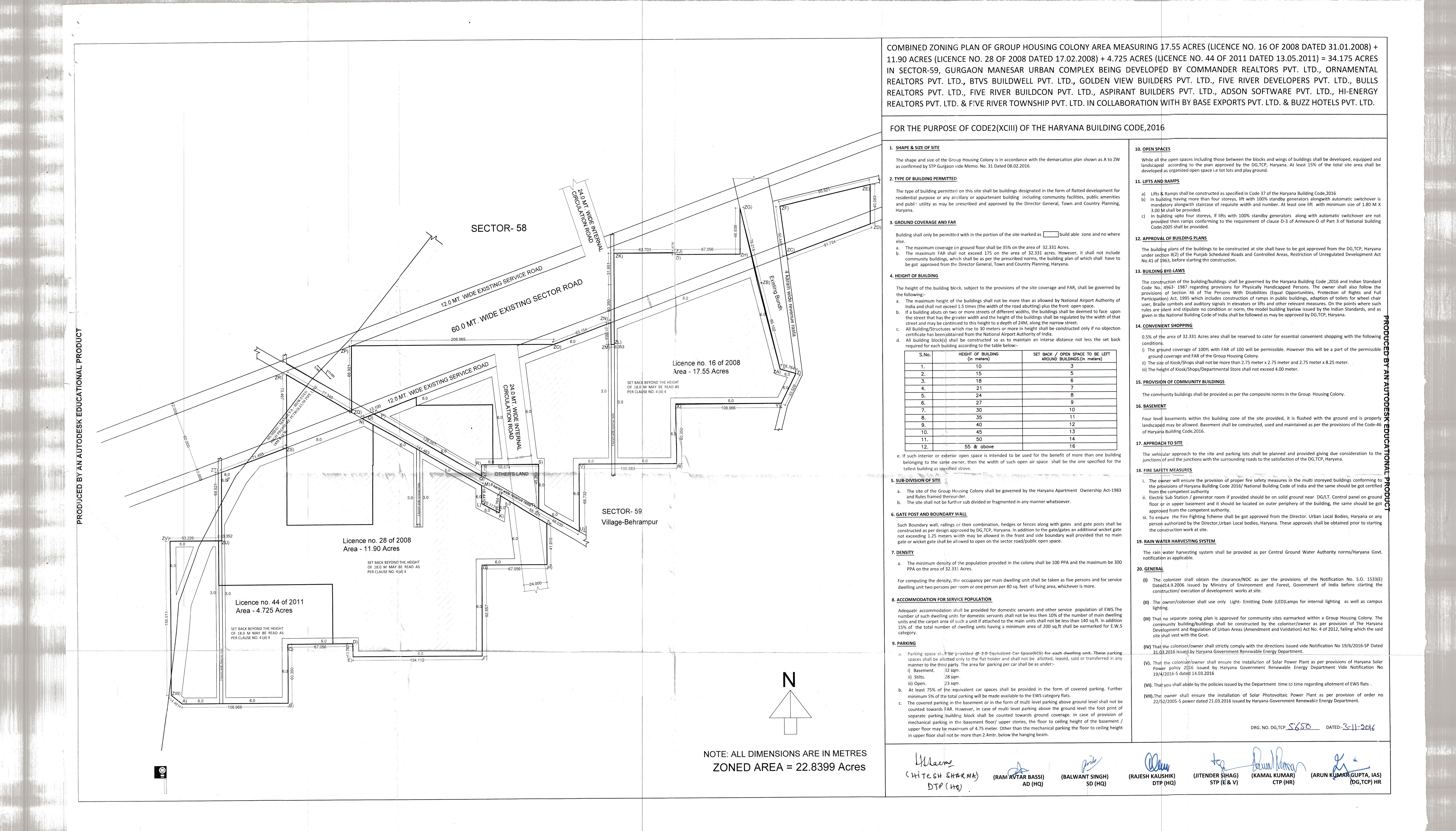
22 DEMARCATION PLAN 14-02-2020 View Document
23 LOI 14-02-2020 View Document
24 ANNEXURE-12-1-19 REVISED UPPER BASEMENT PLAN AND PARKING CALCULATION 14-02-2020 View Document
25 NON DEFAULT CERTIFICATE FROM A CHARTERED ACCOUNTANT 14-02-2020 View Document
26 ANNEXURE-12-1-5 TOWER-3 LOWER PENTHOUSE PLAN 14-02-2020 View Document
27 SERVICE ESTIMATES 14-02-2020 View Document
28 ANNEXURE-12-1-18 REVISED UPPER BASEMENT AREA CALCULATION 14-02-2020 View Document
29 AUTHORISED SIGNATORY 14-02-2020 View Document
30 DD -LUMINARE PHASE 2 14-02-2020 View Document
31 ANNEXURE-12-1-14 REVISED LOWER BASEMENT AREA CALCULATION 14-02-2020 View Document
32 ANNEXURE-12-1-3 TOWER-3 GF PLAN 14-02-2020 View Document
33 ANNEXURE-12-1-20 REVISED UPPER BASEMENT AREA CALCULATION 14-02-2020 View Document
34 ANNEXURE-12-1-16 REVISED SECTIONS 14-02-2020 View Document
35 DRAFT ALLOTMENT LETTER AND DRAFT AGREEMENT 24-12-2019 View Document
36 A COMPLETE SET OF THE LAST APPROVED BUILDING PLANS 24-12-2019 View Document
37 IN CASE OF PLOTTED COLONY, THE LATEST LAYOUT PLAN 24-12-2019 View Document
38 CERTIFICATE FROM A CHARTERED ACCOUNTANT CERTIFYING THAT THE INFORMSTION PROVIDED BY THE APPLICANT IN FORM REP-1-C-X IS CORRECT AS PER THE BOOKS OF ACCOUNTS/ BALANCE SHEET OF THE APPLICANT 24-12-2019 View Document
39 DECLARATION SUPPORTED BY AFFIDAVIT DULY SIGNED BY THE PROMOTER TO BE ENCLOSED. 24-12-2019 View Document
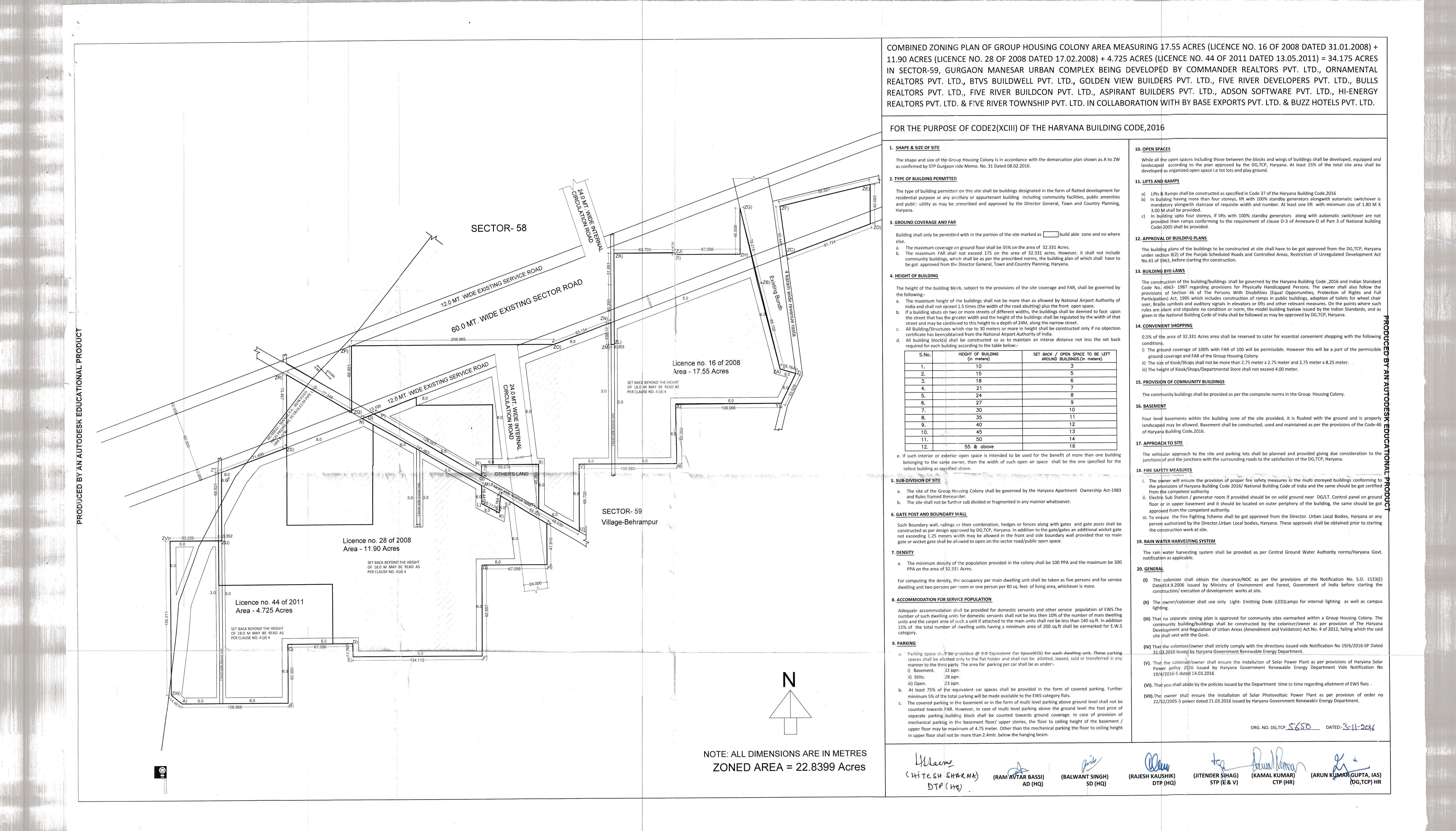
40 ZONING PLAN 24-12-2019 View Document
41 COPY OF LICENSE ALONG WITH SCHEDULE OF LAND 24-12-2019 View Document
42 CASH FLOW STATEMENT OF THE PROPOSED PROJECT 24-12-2019 View Document
43 IN CASE OF GROUP HOUSING/ COMMERCIAL SITES, A COPY OF THE APPROVED SITE PLAN 24-12-2019 View Document
44 FOREST NOC 14-02-2020 View Document
45 FIRE SCHEME APPROVAL LETTER 14-02-2020 View Document
46 ANNEXURE-12-1-17 REVISED LOWER BASEMENT PLAN AND PARKING AREA CALCULATION 14-02-2020 View Document
47 ANNEXURE-12-1-21 REVISED UPPER BASEMENT PLAN AND PARKING CALCULATION 14-02-2020 View Document
48 LC IV 14-02-2020 View Document
49 SERVICE PLAN ESTIMATE LETTER 14-02-2020 View Document
50 ENVIRONMENT CLEARANCE 14-02-2020 View Document
51 ANNEXURE-12-1-11 COMMUNITY BUILDING GROUND FLOOR 14-02-2020 View Document
52 ANNEXURE-12-1-16 REVISED LOWER BASEMENT AREA CALCULATION 14-02-2020 View Document
53 ANNEXURE-12-2 SPECIFICATIONS 14-02-2020 View Document
54 ANNEXURE-12-1-15 COMMUNITY CENTER SECTION AND ELEVATION 14-02-2020 View Document












Sr. No.Document DescriptionDate of Document UploadView Document
1 OC uploaded 04-08-2023 View Document