HRERA GurugramTemp Project Id : RERA-GRG-PROJ-766-2020
Submission Date : 21-10-2020 05:40:19 PM
Applicant Type : Company
Project Type: NEW




SIGNATUREGLOBAL HOMES PRIVATE LIMITED
1309, 13TH FLOOR, DR. GOPAL DAS BHAWAN, 28 BARAKHAMBA ROAD ,NEW DELHI-110001
01244908200
9810899381 (Number Shared by Promoter in Public)
compliance@signatureglobal.in
https://www.signatureglobal.in/
XXXX888R
U70100DL2008PTC176641
 
 


 
 


 
 


 
 







SIGNATURE GLOBAL PARK III
VILLAGE DHUNELA, SECTOR 36
SOHNA
GURUGRAM
01244908200
9810899381 (Number Shared by Promoter in Public)
compliance@signatureglobal.in
SANJAY KUMAR VARSHNEY
01244908200
9810899381 (Number Shared by Promoter in Public)
compliance@signatureglobal.in








As per sub-rule(2) of rule 3 of the Haryana Real Estate (Regulation and Development) Rules,2017, the fee for registration of the project as has been calculated as follows:
-----------------------------------------------------------------------------------------------------------------------
-----------------------------------------------------------------------------------------------------------------------
-----------------------------------------------------------------------------------------------------------------------
-----------------------------------------------------------------------------------------------------------------------
2. The aforesaid fees is hereby deposited vide following Drafts/ Banker’s Cheques:-

Sr No.Draft/Cheque No.Draft DateAmountPayee BankPayable To
196412407-06-2019465000YES BANK LIMITEDHRERA Gurugram
221719664831105-08-2019391000YES BANK LIMITED (RTGS)HRERA Gurugram
326219590433519-09-2019189200YES BANK LIMITED (NEFT)HRERA Gurugram







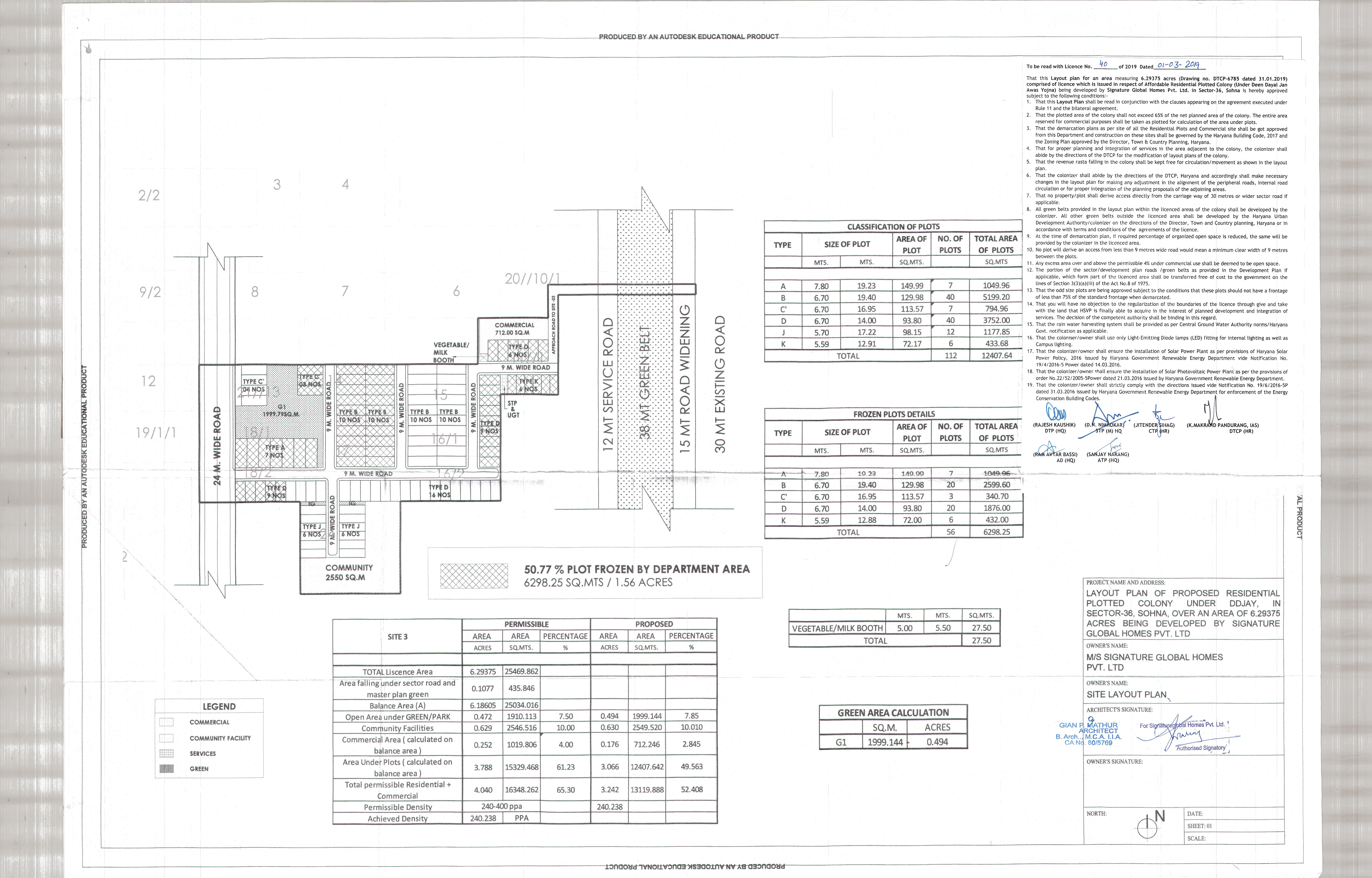
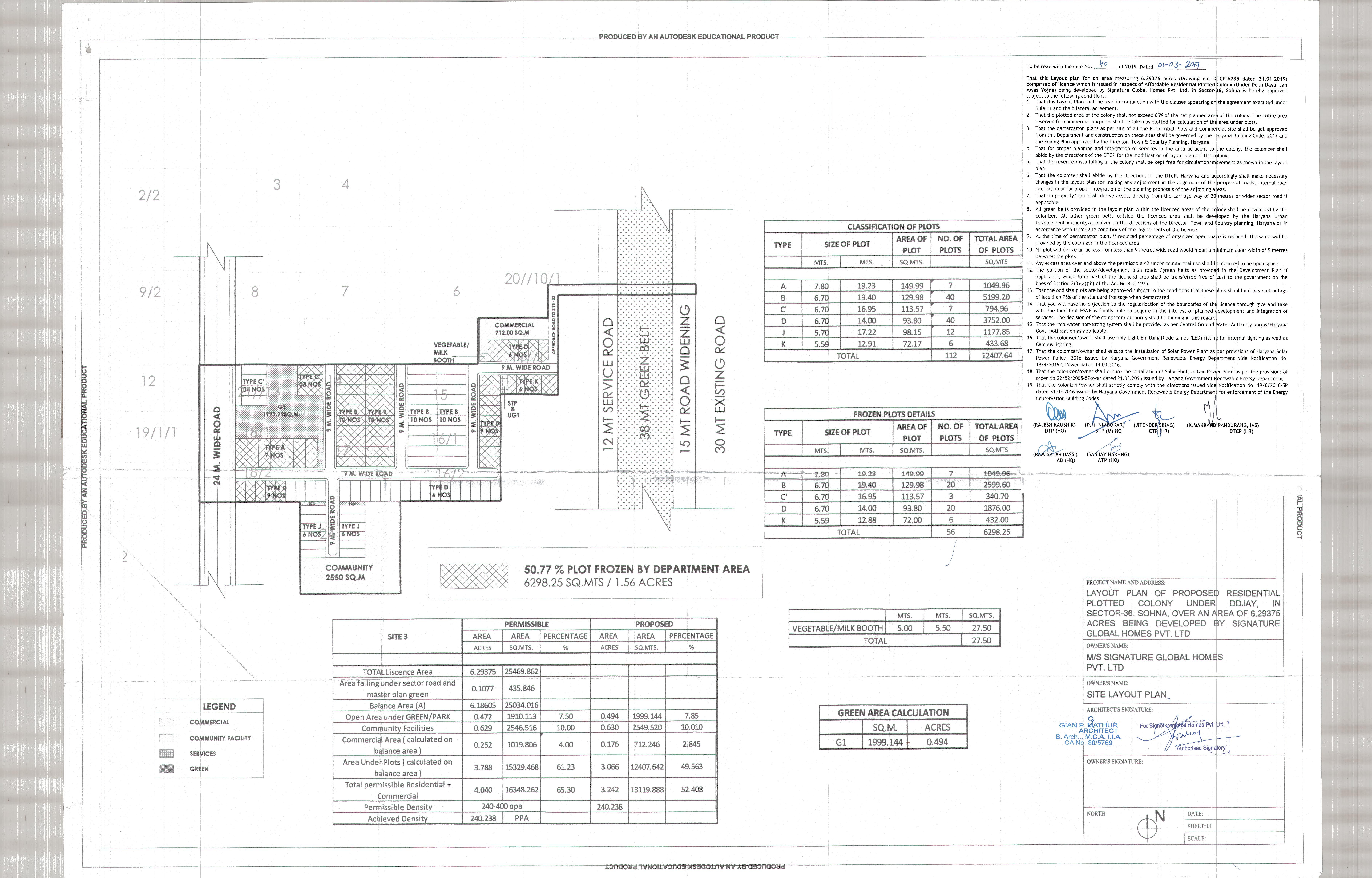
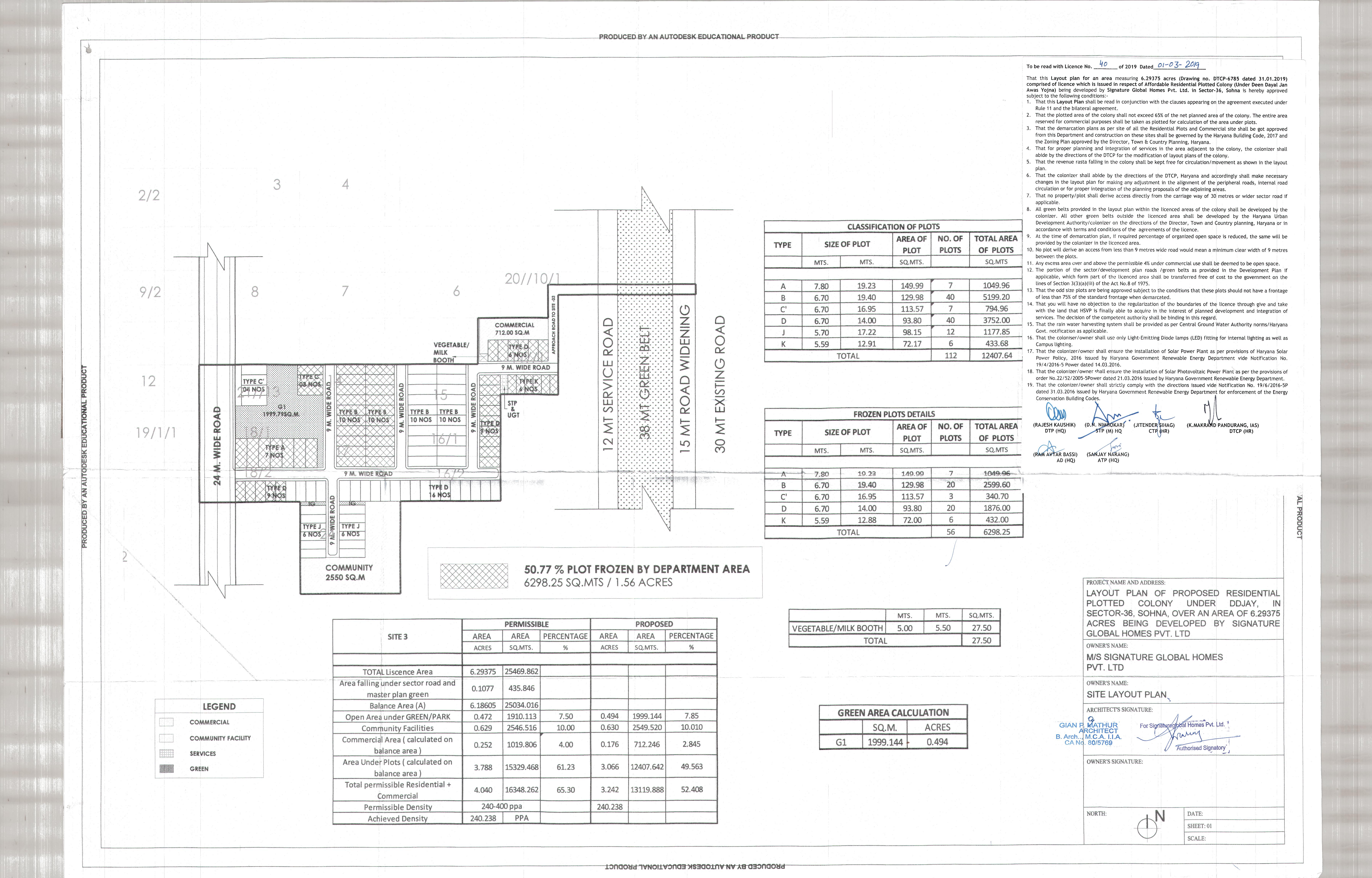
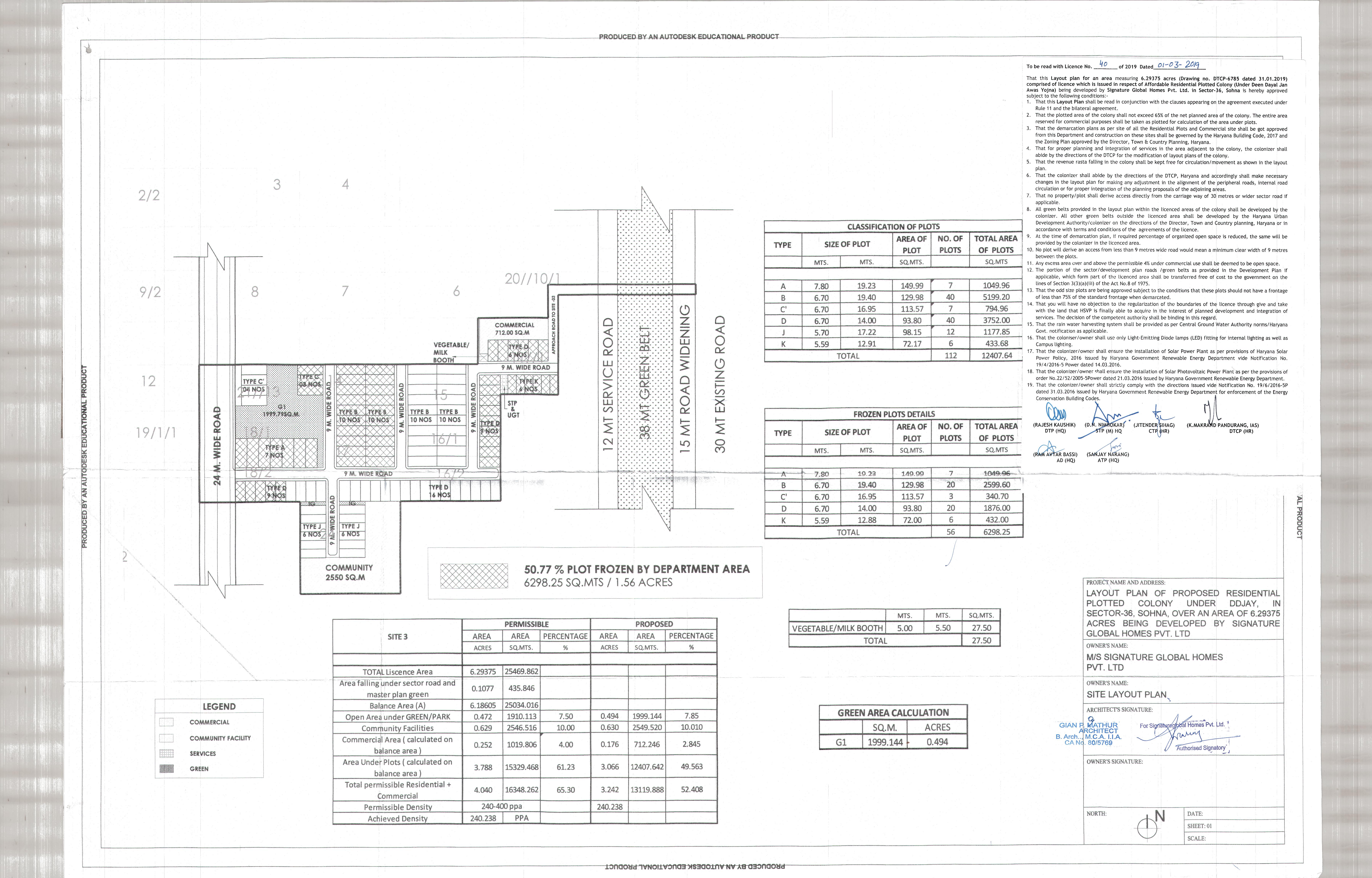
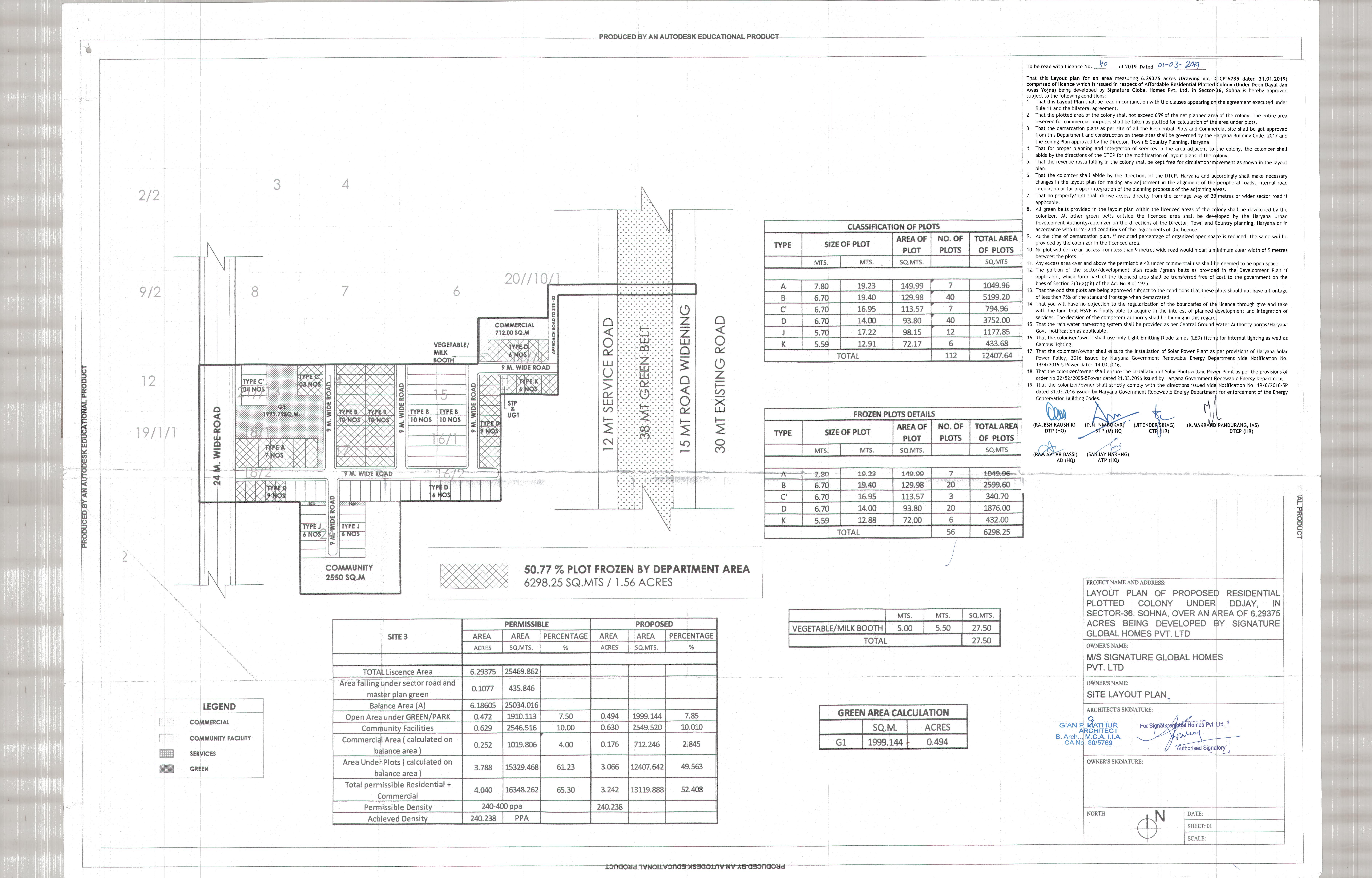
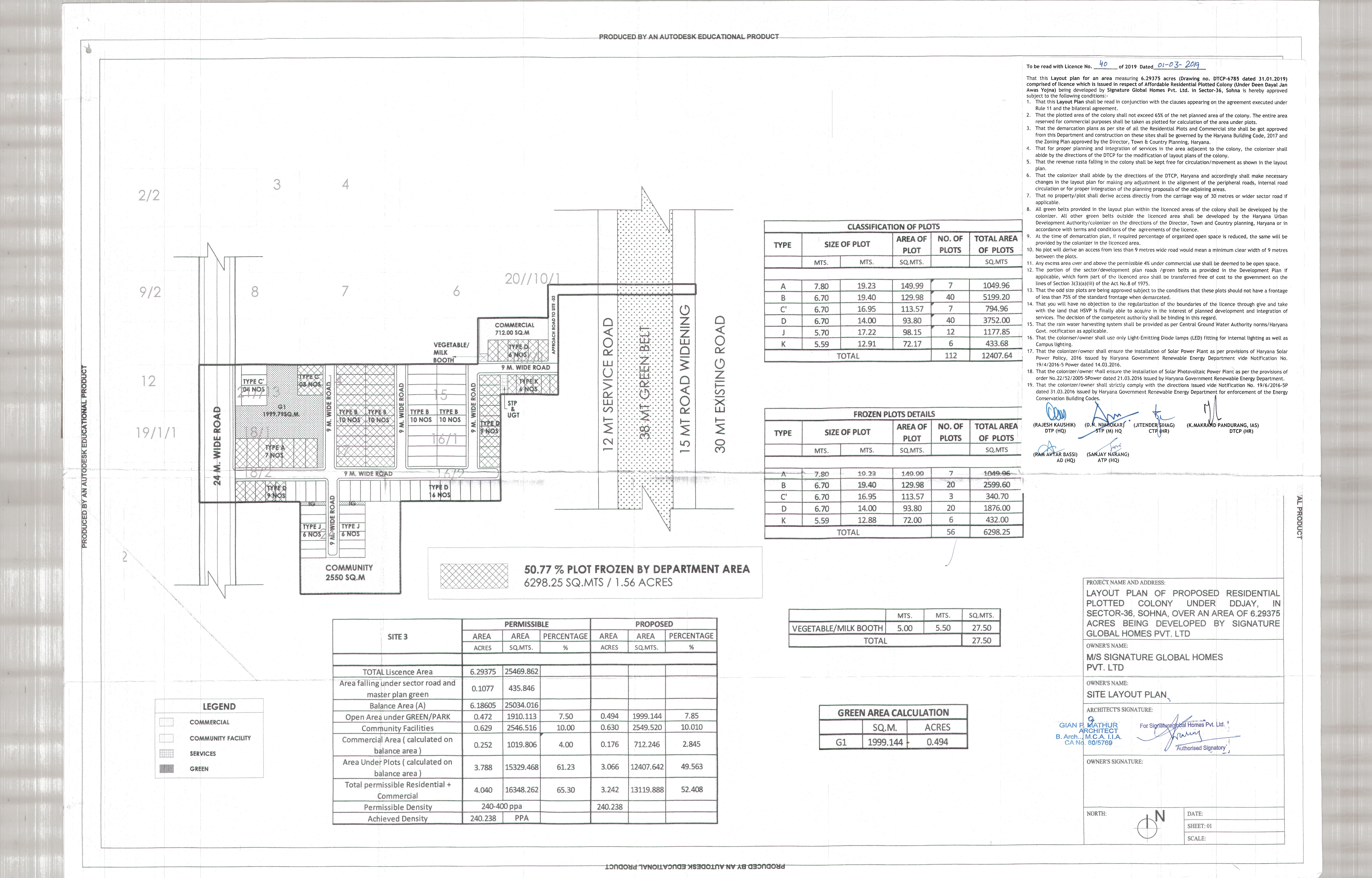
6.29375 (Acre)
2.64
2.43
6.29375 (Acre)
40 of 2019 dated 01/03/2019 vide Endst. No. LC-3856-Asstt.(AK)/2019/6222
Yes







8595.18 Lakhs
1371.82 Lakhs
4276 Lakhs
597.70 Lakhs
2349.66 Lakhs




Sr. No.Land area under usageArea of land (Acres)
1PLOTS TO BE SOLD 0
2LAND AREA TO BE USED FOR CONSTRUCTION OF APARTMENTS 1.51
3CONSTRUCTION OF ROADS 1.75
4PAVEMENTS 0
5PARKS AND PLAYGROUNDS 0.494
6GREEN BELTS 0
7VEHICLE PARKINGS 0
8ELECTRICITY SUB-STATION 0.111
9CLUB HOUSE 0
10SEWAGE AND SOLID WASTE TREATMENT FACILITY 0.070
11AREA TO BE LEFT FOR TRANSFERRING TO THE GOVERNMENT FOR COMMUNITY SERVICES 0.630
12ANY OTHER 0
13AREA UNDER COMMERCIAL UNITS 0.176
Total4.741




FacilityExternal/ connecting service to be provided by (Name the agency)Whether Approval taken from the agency concerned. Yes/No (Annex details in folder C)
ROADSNHAIYes
WATER SUPPLYHSVPYes
ELECTRICITYDHBVNYes
SEWAGE DISPOSALHSVPYes
STORM WATER DRAINAGENo
STPHSVPYes




Sr. No.Name of the facilityEstimated cost (In Lakhs)(Within the project area only)Remarks: Yet to be prepared / Submitted to HUDA, Town & Country Planning Department/ as per project report etc. (Annex relevant documents showing costing details etc. in folder C)
1INTERNAL ROADS AND PAVEMENTS145.40SUBMITTED TO HUDA
2WATER SUPPLY SYSTEM117.30SUBMITTED TO HUDA
3STORM WATER DRAINAGE52.90SUBMITTED TO HUDA
4ELECTRICITY SUPPLY SYSTEM0YET TO BE PREPARED
5SEWAGE TREATMENT & GARBAGE DISPOSAL68.70SUBMITTED TO HUDA
6STREET LIGHTING24.10SUBMITTED TO HUDA
7SECURITY AND FIRE FIGHTING0YET TO BE PREPARED
8PLAYGROUNDS AND PARKS4YET TO BE PREPARED
9CLUB HOUSE/COMMUNITY CENTRE0YET TO BE PREPARED
10SHOPPING AREA0YET TO BE PREPARED
11RENEWABLE ENERGY SYSTEM0YET TO BE PREPARED
12SCHOOL0YET TO BE PREPARED
13HOSPITAL/DISPENSARY0YET TO BE PREPARED
14ANY OTHER0YET TO BE PREPARED
15MAINTENANCE OF SERVICE INCLUDING RESURFACING OF ROAD AFTER FIRST FIVE YEARS AND SECOND TEN YEARS OF MAINTENANCE AS PER HSVP NORMS185.30SUBMITTED TO HUDA


01-03-2019 (date)
14-12-2019 (date)
01-01-2020
31-12-2022
Sr. No Plot Area(In Square Meter)Number of plots in the project
1 0 0
Total0


TypeCarpet area(In Square Meter)Number of apartmentsNumber of towers
Apartment/Shops/Other Buildings70.38020
Apartment/Shops/Other Buildings60.13164
Apartment/Shops/Other Buildings47.778020
Apartment/Shops/Other Buildings49.084812
Apartment/Shops/Other Buildings375.904191





Expenditure incurred till the date of application (In Lakhs)

ParticularsExpenditure
Apartments792
Shops0
Plots0
External development charges145.49
Infrastructure development charges38.16
Internal development works597.70
Land Cost1371.82
Others cost1030.01

Expenditure to be made in each quarter (In Lakhs)

ParticularsYear-2020
Jan-MarApr-JuneJuly-SepOct-Dec
Apartments684
Shops0
Plots0
Others cost136.00

ParticularsYear-2021
Jan-MarApr-JuneJuly-SepOct-Dec
Apartments350.00350.00350350
Shops0000
Plots0000
Other Cost130.00124118112
External development charges5050

ParticularsYear-2022
Jan-MarApr-JuneJuly-SepOct-Dec
Apartments350350350350
Shops0000
Plots0000
Other Cost11210610098




Expenditure incurred till the date of application (In Lakhs)

ParticularsExpenditure
Roads & Pavements86.21
Water Supply System69.26
Sewerage treatment & garbage disposal45.04
Electricity Supply System0
Storm Water Drainage34.69
Parks and Playgrounds0
Clubhouse/community centres0
Shopping area0
Other0
Parking and Horticulture2.63
Street Light15.80

Expenditure to be made in each quarter (In Lakhs)

ParticularsYear-2019
Jan-MarApr-JuneJuly-SepOct-Dec
Roads & Pavements0
Water Supply System0
Sewerage treatment & garbage disposal0
Electricity Supply System0
Storm Water Drainage0
Parks and Playgrounds0
Clubhouse/community centres0
Shopping area0
Other0

ParticularsYear-2020
Jan-MarApr-JuneJuly-SepOct-Dec
Roads & Pavements40.71
Water Supply System32.84
Sewerage treatment & garbage disposal18.81
Electricity Supply System0
Storm Water Drainage14.49
Parks and Playgrounds0
Clubhouse/community centres0
Shopping area0
Other0
Street Light6.60
Parking and Horticulture1.10

ParticularsYear-2021
Jan-MarApr-JuneJuly-SepOct-Dec
Roads & Pavements18.48
Water Supply System15.20
Sewerage treatment & garbage disposal4.84
Electricity Supply System0
Storm Water Drainage3.72
Parks and Playgrounds0
Clubhouse/community centres0
Shopping area0
Other0
Parking and Horticulture0.28
Street Light1.70












Yes
No
YES BANK LIMITED, GROUND AND MEZZANINE FLOOR, , 56, JANPATH, ALPS BLDG, , NEXT TO PIZZA HUT, CONNAUGHT PLACE, DELHI-110001
013672400000088
YESB0000136
110532031
000136
Ravi Aggarwal and Pradeep Kumar Aggarwal, Address: 34, Road No. 61, West Punjabi Bagh, Delhi-110026
attached as annexure











Yes
Yes
Yes
Yes
No
Yes
Yes
No
Yes
No


Yes
No
Yes
Yes
Yes
Yes
No
No
Statutory Approvals Statutory Approvals StatusDate
I. ENVIRONMENT CLEARANCE VIDE MEMO NO. SEIAA/HR/2019/174ALREADY BEEN OBTAINED16-07-2019
II. FOREST NOC VIDE SRN. Y2N-NAP-YL3BALREADY BEEN OBTAINED07-02-2019
III. ARAVALI NOC VIDE MEMO 14/M.BALREADY BEEN OBTAINED28-02-2019
IV. POWER NOC VIODE MEMO NO 1891ALREADY BEEN OBTAINED26-04-2020








Yes


Yes


Yes













SPECIFICATION OF CONSTRUCTION
Specification of apartments and other buildings including the following:
1FLOORING DETAILS OF VARIOUS PARTS OF HOUSEVITRIFIED & CERAMIC TILES
2WALL FINISHING DETAILSOBD
3KITCHEN DETAILSISI MARKED
4BATHROOM FITTINGSISI MARKED
5WOOD WORK ETCHARD WOOD
6DOORS AND WINDOS FRAMESWOODEN DOOR FRAME, ALUMINIUMN OR UPVC WINDOW FRAME
7GLASS WORKISI MARKED
8ELECTRIC FITTINGSISI MARKED
9CONDUCTING AND WIRING DETAILSISI MARKED
10CUPBOARD DETAILSNA
11WATER STORAGERCC OR PVC
12LIFT DETAILSISI MARKED
13EXTERNAL GLAZINGSALUMINIUMN OR UPVC
13.1WINDOWS/GLAZINGSALUMINIUMN OR UPVC
14DOORSFLUSH DOOR
14.1MAIN DOORSFLUSH DOOR
14.2INTERNAL DOORSFLUSH DOOR
15AIR CONDITIONINGNA
16ELECTRICAL FITTINGSISI MARKED
17CNG PIPE LINENA
18PROVISION OF WIFI AND BROADBAND FACILITYNA
19EXTERNAL FINISHING/COLOUR SCHEMETEXTURE PAINT
20INTERNAL FINISHINGNA
SPECIFICATION UNIT WISE
1 . LIVING/DINING/FOYER/FAMILY LOUNGE
1 . 1 FLOORVITRIFIED TILE
1 . 2 WALLSOBD
1 . 3 CEILINGOBD
2 . MASTER BEDROOM/DRESSROOM
2 . 1 FLOORVITRIFIED TILE
2 . 2 WALLSOBD
2 . 3 CEILINGOBD
2 . 4 MODULAR WARDROBESNA
3 . MASTER TOILET
3 . 1 FLOORCERAMIC TILE ANTI-SKID
3 . 2 WALLSCERAMIC TILE
3 . 3 CEILINGGRID CEILING
3 . 4 COUNTERSNA
3 . 5 SANITARY WARE/CP FITTINGSISI MARKED
3 . 6 FITTING/FIXTURESISI MARKED
4 . BED ROOMS
4 . 1 FLOORVITRIFIED TILE
4 . 2 WALLSOBD
4 . 3 CEILINGOBD
4 . 4 WARDROBESNA
5 . TOILET
5 . 1 FLOORVITRIFIED TILE
5 . 2 WALLSOBD
5 . 3 CEILINGOBD
5 . 4 COUNTERSNA
5 . 5 SANITARY WARE/CP FITTINGSISI MARKED
5 . 6 FIXTURESISI MARKED
6 . KITCHEN
6 . 1 FLOORVITRIFIED TILES
6 . 2 WALLSOBD
6 . 3 CEILINGOBD
6 . 4 COUNTERS GRANITE
6 . 5 FIXTURESISI MARKED
6 . 6 KITCHEN APPLIANCESNA
7 . UTILITY ROOMS/UTILITY BALCONY/TOILET
7 . 1 FLOORNA
7 . 2 WALLS & CEILINGNA
7 . 3 TOILETNA
7 . 4 BALCONYNA
8 . SIT-OUTS
8 . 1 FLOORNA
8 . 2 WALLS & CEILINGNA
8 . 3 RAILINGSNA
8 . 4 FIXTURESNA












Sr. No.Document DescriptionDate of Document UploadView Document
1 IN CASE OF GROUP HOUSING/ COMMERCIAL SITES, A COPY OF THE APPROVED SITE PLAN 21-10-2020 View Document
2 REP-11 SG PARK 3 FLOORS 6 25-11-2020 View Document
3 ZONING 6.29375 25-11-2020 View Document
4 COPY OF LICENSE ALONG WITH SCHEDULE OF LAND 25-11-2020 View Document
5 WATER ASSURANCE PARK 3 25-11-2020 View Document
6 BUILDING PLAN- PLOT NO- D-1,3,5,7,9,11,13,15,18,20 25-11-2020 View Document
7 SERVICE ESTIMATES SG PARK III 25-11-2020 View Document
8 SIJRA PLAN SEC 36_SUPER IMPOSITION_SITE-3-MODEL 25-11-2020 View Document
9 BUILDING PLAN- PLOT NO- J-2,4,6,7,9,11 25-11-2020 View Document
10 ZONING PLAN 25-11-2020 View Document
11 BUILDING PLAN- PLOT NO- B-1,3,5,7,9,11,13,15,18,20 25-11-2020 View Document
12 SERVICE ESTIMATE-SE ROAD PLAN PARK 3 25-11-2020 View Document
13 BUILDING PLAN- PLOT NO- B-2,4,6,8,10,12,14,16,17,19 25-11-2020 View Document
14 SERVICE ESTIMATE-SE SEWERAGE PARK 3 25-11-2020 View Document
15 BUILDING PLAN- PLOT NO- D-2,4,6,8,10,12,14,16,17,19 25-11-2020 View Document
16 SERVICE ESTIMATE-SE STORM WATER PARK 3 25-11-2020 View Document
17 SERVICE ESTIMATE-SE WATER SUPPLY PARK 3 25-11-2020 View Document
18 AKS SAJRA 36 25-11-2020 View Document
19 BANK UNDERTAKING PARK III 25-11-2020 View Document
20 NON DEFAULT CERTIFICATE FROM A CHARTERED ACCOUNTANT 25-11-2020 View Document
21 FOREST NOC-SITE3 25-11-2020 View Document
22 BR-III SITE-3 COMMERCIAL 25-11-2020 View Document
23 EC-SITE III 25-11-2020 View Document
24 BUILDING PLAN- PLOT NO- J-1,3,5,8,10,12 25-11-2020 View Document
25 DEMARCATION PLAN 25-11-2020 View Document
26 SERVICE PLANS SHOWING THE SERVICES ON THE LAYOUT PLAN 25-11-2020 View Document
27 LC-IV 6.29375 25-11-2020 View Document
28 POWER ASSURANCE 25-11-2020 View Document
29 SALE DEED _26.11 ACRES 25-11-2020 View Document
30 SERVICE ESTIMATES APPROVEL LETTER 25-11-2020 View Document
31 SEWER ASSURANCE PARK 3 25-11-2020 View Document
32 STP PARK 3 25-11-2020 View Document
33 TSR 25-11-2020 View Document
34 FIRE FIGHTING SCHEME-SITE3 25-11-2020 View Document
35 IN CASE OF PLOTTED COLONY, THE LATEST LAYOUT PLAN 21-10-2020 View Document
36 DECLARATION SUPPORTED BY AFFIDAVIT DULY SIGNED BY THE PROMOTER TO BE ENCLOSED. 21-10-2020 View Document












Sr. No.Document DescriptionDate of Document UploadView Document
1 Extension No. 06 of 2023 DATED 30.12.2023 15-06-2023 View Document
2 Occupation Certificate- B1-B20 17-07-2024 View Document
3 Occupation Certificate-D1-D16 17-07-2024 View Document
4 Occupation Certificate-D17-D20 17-07-2024 View Document
5 Occupation Certificate-J1-J6 17-07-2024 View Document
6 Occupation Certificate-J7-J12 17-07-2024 View Document