HRERA GurugramTemp Project Id : RERA-GRG-PROJ-242-2019
Submission Date : 18-04-2019 07:44:16 AM
Applicant Type : Company
Project Type: NEW




SIGNATUREGLOBAL HOMES PRIVATE LIMITED
1309, 13TH FLOOR, DR. GOPAL DAS BHAWAN, 28 BARAKHAMBA ROAD ,NEW DELHI-110001
01244908200
9810899381 (Number Shared by Promoter in Public)
compliance@signatureglobal.in
https://www.signatureglobal.in/
XXXX888R
U70100DL2008PTC176641
 
 


 
 


 
 


 
 







THE SERENAS
REVENUE ESTATE OF VILLAGE DHUNELA, SECTOR -36
SOHNA
GURUGRAM
01244908200
9810899381 (Number Shared by Promoter in Public)
compliance@signatureglobal.in
SANJAY KUMAR VARSHNEY
01244908200
9810899381 (Number Shared by Promoter in Public)
compliance@signatureglobal.in








As per sub-rule(2) of rule 3 of the Haryana Real Estate (Regulation and Development) Rules,2017, the fee for registration of the project as has been calculated as follows:
-----------------------------------------------------------------------------------------------------------------------
-----------------------------------------------------------------------------------------------------------------------
-----------------------------------------------------------------------------------------------------------------------
-----------------------------------------------------------------------------------------------------------------------
2. The aforesaid fees is hereby deposited vide following Drafts/ Banker’s Cheques:-

Sr No.Draft/Cheque No.Draft DateAmountPayee BankPayable To
150020-11-2019500SBUHRERA Gurugram







9.775 (Acre)
225
225
9.775 (Acre)
14 of 2016
Yes







5286 Lakhs
2767 Lakhs
0 Lakhs
77 Lakhs
2442 Lakhs




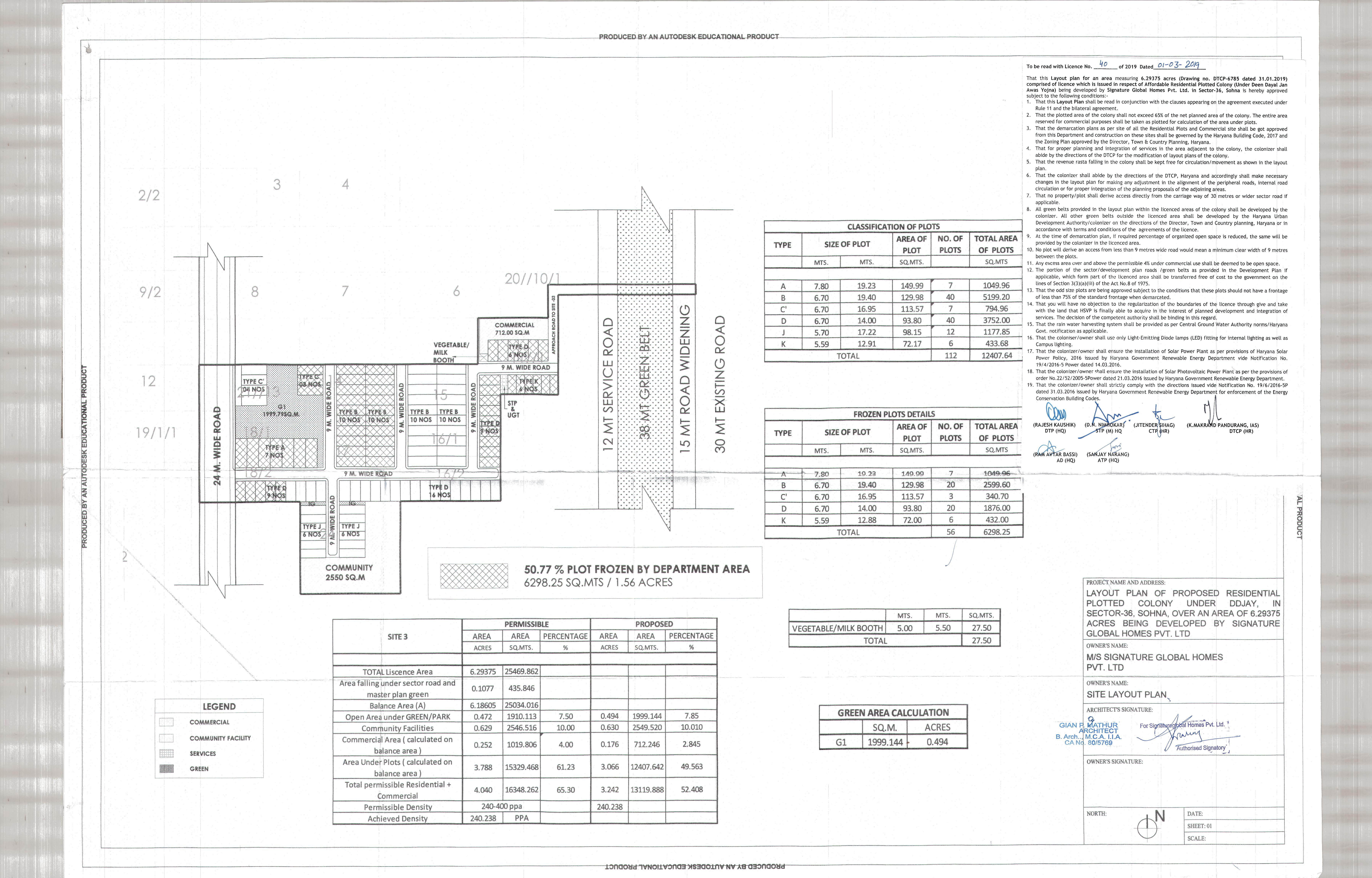
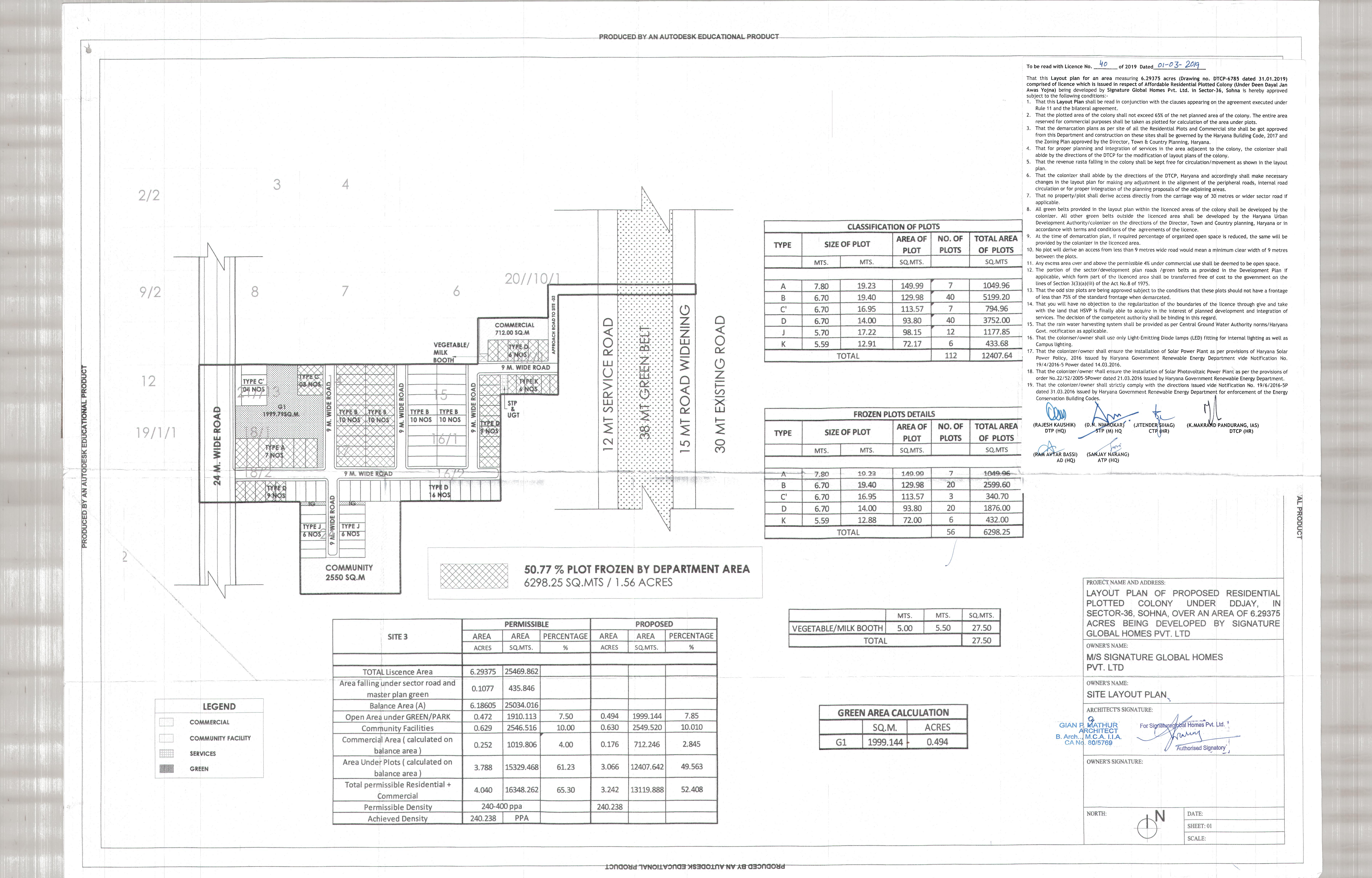
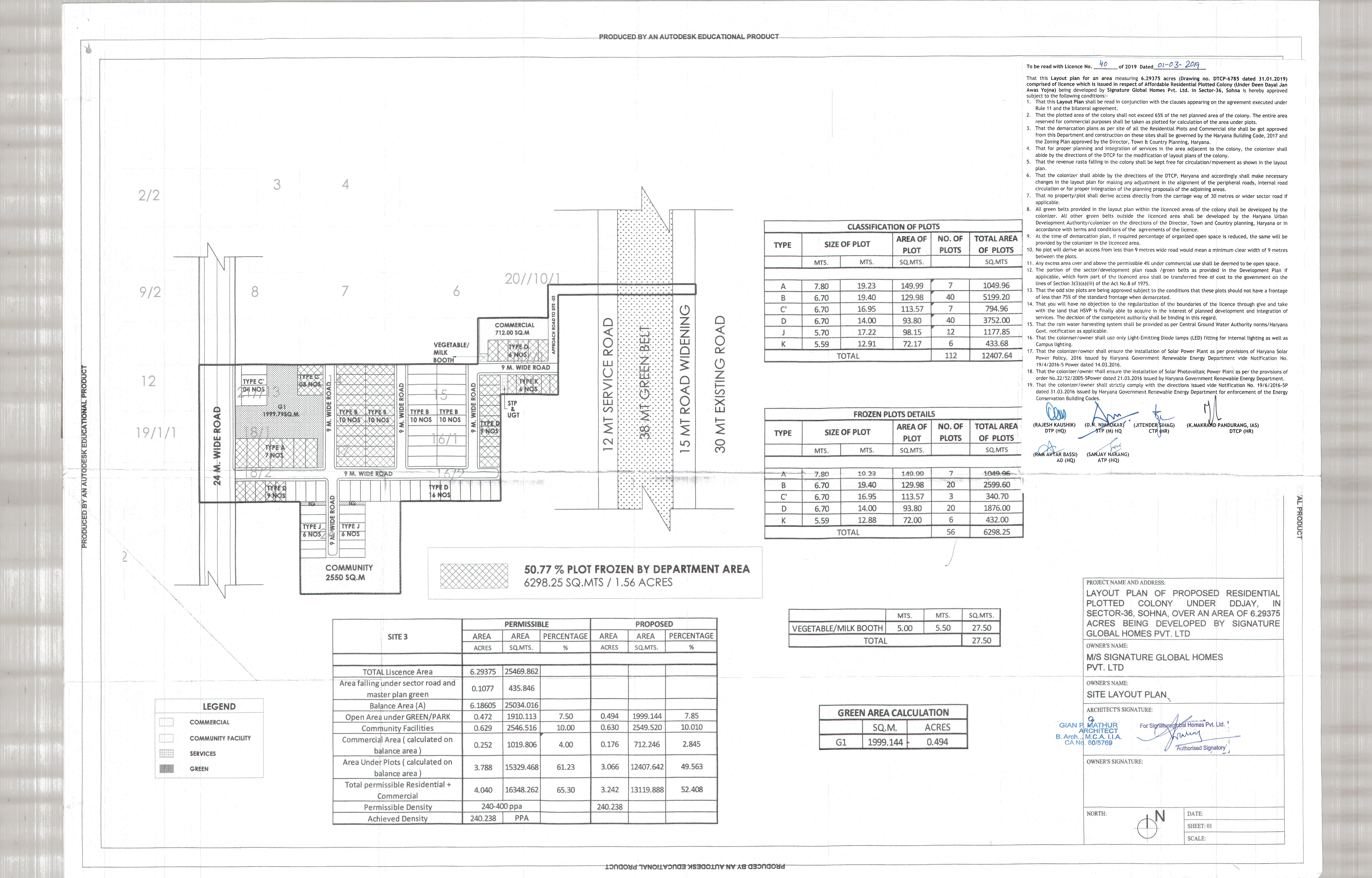
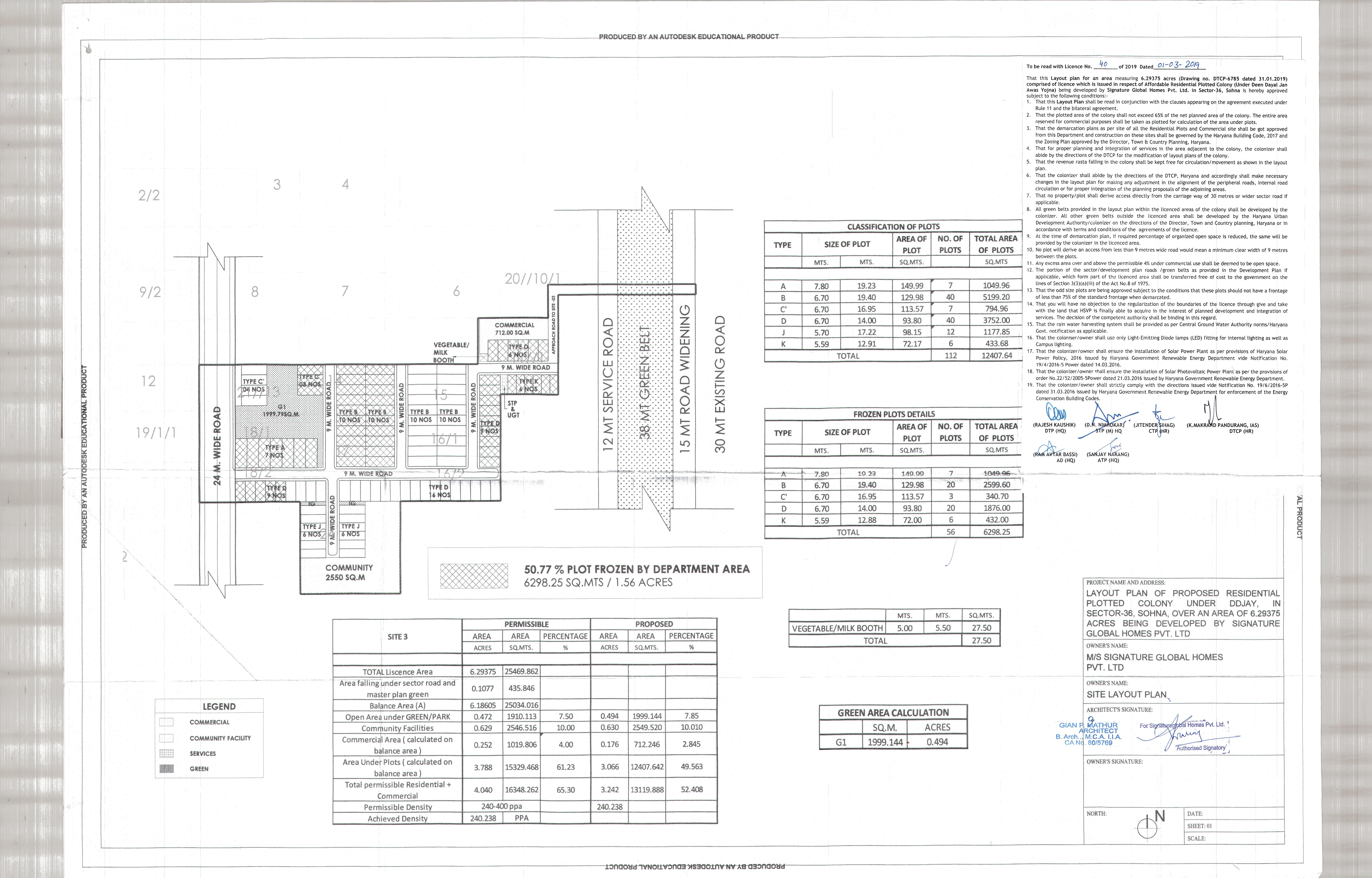
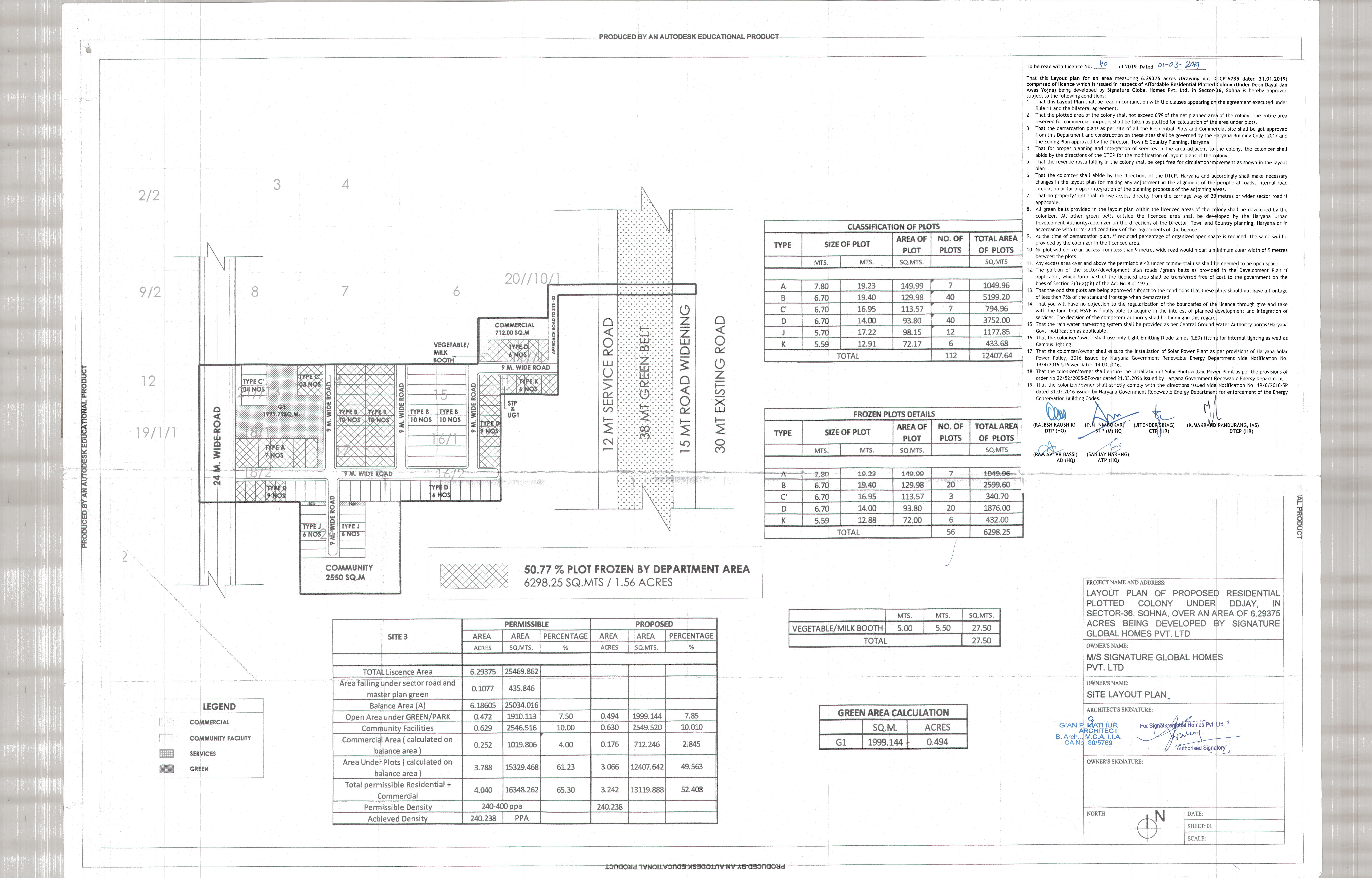
Sr. No.Land area under usageArea of land (Square Meters)
1PLOTS TO BE SOLD 3.066
2LAND AREA TO BE USED FOR CONSTRUCTION OF APARTMENTS 0
3CONSTRUCTION OF ROADS 1.927
4PAVEMENTS 0
5PARKS AND PLAYGROUNDS 0.494
6GREEN BELTS 0
7VEHICLE PARKINGS 0
8ELECTRICITY SUB-STATION 0
9CLUB HOUSE 0
10SEWAGE AND SOLID WASTE TREATMENT FACILITY 0
11AREA TO BE LEFT FOR TRANSFERRING TO THE GOVERNMENT FOR COMMUNITY SERVICES 0.63
12ANY OTHER 0
13COMMERCIAL 0.176
Total6.293




FacilityExternal/ connecting service to be provided by (Name the agency)Whether Approval taken from the agency concerned. Yes/No (Annex details in folder C)
ROADSHUDAYes
WATER SUPPLYHUDAYes
ELECTRICITYDHBVNNo
SEWAGE DISPOSALHUDAYes
STORM WATER DRAINAGEHUDAYes




Sr. No.Name of the facilityEstimated cost (In Lakhs)(Within the project area only)Remarks: Yet to be prepared / Submitted to HUDA, Town & Country Planning Department/ as per project report etc. (Annex relevant documents showing costing details etc. in folder C)
1INTERNAL ROADS AND PAVEMENTS145.40SUBMITTED TO HUDA
2WATER SUPPLY SYSTEM117.30SUBMITTED TO HUDA
3STORM WATER DRAINAGE52.90SUBMITTED TO HUDA
4ELECTRICITY SUPPLY SYSTEM0SUBMITTED TO HUDA
5SEWAGE TREATMENT & GARBAGE DISPOSAL68.70SUBMITTED TO HUDA
6STREET LIGHTING24.10SUBMITTED TO HUDA
7SECURITY AND FIRE FIGHTING0SUBMITTED TO HUDA
8PLAYGROUNDS AND PARKS0SUBMITTED TO HUDA
9CLUB HOUSE/COMMUNITY CENTRE0SUBMITTED TO HUDA
10SHOPPING AREA0SUBMITTED TO HUDA
11RENEWABLE ENERGY SYSTEM0SUBMITTED TO HUDA
12SCHOOL0SUBMITTED TO HUDA
13HOSPITAL/DISPENSARY0SUBMITTED TO HUDA
14ANY OTHER0SUBMITTED TO HUDA
15PARKING OR HORTICULTURE4YET TO BE PREPARED
16MAINTENANCE OF SERVICES INCLUDING RESURFACING OF ROAD AFTER FIRST FIVE YEARS AND SECOND TEN YEARS OF MAINTENANCE1.853YET TO BE PREPARED


NA (date)
NA (date)
01-08-2019
31-12-2020
Sr. No Plot Area(In Square Meter)Number of plots in the project
1 149.99 7
2 129.98 40
3 113.57 7
4 93.80 40
5 98.15 12
6 72.07 6
Total112


TypeCarpet area(In Square Meter)Number of apartmentsNumber of towers
Apartment/Shops/Other Buildings000
Apartment/Shops/Other Buildings000





Expenditure incurred till the date of application (In Lakhs)

ParticularsExpenditure
Apartments0
Shops0
Plots0

Expenditure to be made in each quarter (In Lakhs)

ParticularsExpenditure to be made in each quarter ()
Apr-JuneJuly-SepOct-DecJan-Mar




Expenditure incurred till the date of application (In Lakhs)

ParticularsExpenditure
Roads & Pavements0
Water Supply System0
Sewerage treatment & garbage disposal0
Electricity Supply System0
Storm Water Drainage0
Parks and Playgrounds0
Clubhouse/community centres0
Shopping area0
Other0

Expenditure to be made in each quarter (In Lakhs)

ParticularsYear-2019
Jan-MarApr-JuneJuly-SepOct-Dec
Roads & Pavements2003035.40
Water Supply System20026.3330.97
Sewerage treatment & garbage disposal10017.7029
Electricity Supply System0000
Storm Water Drainage808.9411.96
Parks and Playgrounds0000
Clubhouse/community centres0000
Shopping area0000
Other0000
Parking00.841.16
Street Light306.185.92
arking0.50

ParticularsYear-2020
Jan-MarApr-JuneJuly-SepOct-Dec
Roads & Pavements20252015
Water Supply System20201010
Sewerage treatment & garbage disposal101200
Electricity Supply System0000
Storm Water Drainage82400
Parks and Playgrounds0000
Clubhouse/community centres0000
Shopping area0000
Other0000
Street Light3432
Parking0.500.500.500.50












Yes
No
YES BANK LIMITED, GROUND AND MEZZANINE FLOOR, , 56, JANPATH, ALPS BLDG, , NEXT TO PIZZA HUT, CONNAUGHT PLACE, DELHI-110001
013672500000041
YESB0000136
110532031
0136
Pradeep Kumar Aggarwal
Attached











Yes
Yes
Yes
No
Yes
No
No
No
No
No


Yes
No
Yes
Yes
Yes
Yes
No
No
Statutory Approvals Statutory Approvals StatusDate
I. MEMO NO. 20997 ALREADY BEEN OBTAINED30-01-2019








Yes


Yes


Yes













SPECIFICATION OF CONSTRUCTION
Specification of apartments and other buildings including the following:
1FLOORING DETAILS OF VARIOUS PARTS OF HOUSENA
2WALL FINISHING DETAILSNA
3KITCHEN DETAILSNA
4BATHROOM FITTINGSNA
5WOOD WORK ETCNA
6DOORS AND WINDOS FRAMESNA
7GLASS WORKNA
8ELECTRIC FITTINGSNA
9CONDUCTING AND WIRING DETAILSNA
10CUPBOARD DETAILSNA
11WATER STORAGENA
12LIFT DETAILSNA
13EXTERNAL GLAZINGSNA
13.1WINDOWS/GLAZINGSNA
14DOORSNA
14.1MAIN DOORSNA
14.2INTERNAL DOORSNA
15AIR CONDITIONINGNA
16ELECTRICAL FITTINGSNA
17CNG PIPE LINENA
18PROVISION OF WIFI AND BROADBAND FACILITYNA
19EXTERNAL FINISHING/COLOUR SCHEMENA
20INTERNAL FINISHINGNA
SPECIFICATION UNIT WISE
1 . LIVING/DINING/FOYER/FAMILY LOUNGE
1 . 1 FLOORNA
1 . 2 WALLSNA
1 . 3 CEILINGNA
2 . MASTER BEDROOM/DRESSROOM
2 . 1 FLOORNA
2 . 2 WALLSNA
2 . 3 CEILINGNA
2 . 4 MODULAR WARDROBESNA
3 . MASTER TOILET
3 . 1 FLOORNA
3 . 2 WALLSNA
3 . 3 CEILINGNA
3 . 4 COUNTERSNA
3 . 5 SANITARY WARE/CP FITTINGSNA
3 . 6 FITTING/FIXTURESNA
4 . BED ROOMS
4 . 1 FLOORNA
4 . 2 WALLSNA
4 . 3 CEILINGNA
4 . 4 WARDROBESNA
5 . TOILET
5 . 1 FLOORNA
5 . 2 WALLSNA
5 . 3 CEILINGNA
5 . 4 COUNTERSNA
5 . 5 SANITARY WARE/CP FITTINGSNA
5 . 6 FIXTURESNA
6 . KITCHEN
6 . 1 FLOORNA
6 . 2 WALLSNA
6 . 3 CEILINGNA
6 . 4 COUNTERSNA
6 . 5 FIXTURESNA
6 . 6 KITCHEN APPLIANCESNA
7 . UTILITY ROOMS/UTILITY BALCONY/TOILET
7 . 1 FLOORNA
7 . 2 WALLS & CEILINGNA
7 . 3 TOILETNA
7 . 4 BALCONYNA
8 . SIT-OUTS
8 . 1 FLOORNA
8 . 2 WALLS & CEILINGNA
8 . 3 RAILINGSNA
8 . 4 FIXTURESNA












Sr. No.Document DescriptionDate of Document UploadView Document
1WATER SUPPLY SCHEME PLAN01-08-2019 View Document
2STROM WATER PLAN01-08-2019 View Document
3SIJRA PLAN01-08-2019 View Document
4ROAD PLAN01-08-2019 View Document
5ZONING PLAN01-08-2019 View Document
6SEWERAGE SCHEME PLAN01-08-2019 View Document
7DEMARCATION PLAN01-08-2019 View Document
8DECLARATION SUPPORTED BY AFFIDAVIT DULY SIGNED BY THE PROMOTER TO BE ENCLOSED.18-04-2019 View Document
9IN CASE OF GROUP HOUSING/ COMMERCIAL SITES, A COPY OF THE APPROVED SITE PLAN18-04-2019 View Document
10IN CASE OF PLOTTED COLONY, THE LATEST LAYOUT PLAN18-04-2019 View Document
11CERTIFICATE FROM A CHARTERED ACCOUNTANT CERTIFYING THAT THE INFORMSTION PROVIDED BY THE APPLICANT IN FORM REP-1-C-X IS CORRECT AS PER THE BOOKS OF ACCOUNTS/ BALANCE SHEET OF THE APPLICANT18-04-2019 View Document
12NON DEFAULT CERTIFICATE FROM A CHARTERED ACCOUNTANT18-04-2019 View Document
13COPY OF LICENSE ALONG WITH SCHEDULE OF LAND18-04-2019 View Document












Sr. No.Document DescriptionDate of Document UploadView Document
1 Completion Certificate 17-07-2024 View Document