HRERA PanchkulaTemp Project Id : RERA-PKL-PROJ-373-2018
Submission Date : 17-06-2019 05:29:07 AM
Applicant Type : Company
Project Type: NEW




SUNBREEZE BUILDERS AND DEVELOPERS PRIVATE LIMITED
2ND FLOOR, C-9/15, SECTOR- 7, ROHINI NEW DELHI- 110085
01143710710
7838778899 (Number Shared by Promoter in Public)
sunbreezebuilders@gmail.com
https://amvgroup.in
XXXX886K
U70101DL2005PTC144228
 
 


 
 


 
 


 
 


 
 







SHUBHANGAN
VILLAGE- NIZAMPUR, SECTOR 40
PANIPAT
PANIPAT
8396800665 (Number Shared by Promoter in Public)
site.amvgroup@gmail.com
ANJALI ARORA
8396800665 (Number Shared by Promoter in Public)
office.amvgroup@gmail.com








As per sub-rule(2) of rule 3 of the Haryana Real Estate (Regulation and Development) Rules,2017, the fee for registration of the project as has been calculated as follows:
-----------------------------------------------------------------------------------------------------------------------
-----------------------------------------------------------------------------------------------------------------------
-----------------------------------------------------------------------------------------------------------------------
-----------------------------------------------------------------------------------------------------------------------
2. The aforesaid fees is hereby deposited vide following Drafts/ Banker’s Cheques:-

Sr No.Draft/Cheque No.Draft DateAmountPayee BankPayable To
176121403-05-2019437450BANK OF INDIAHRERA Panchkula







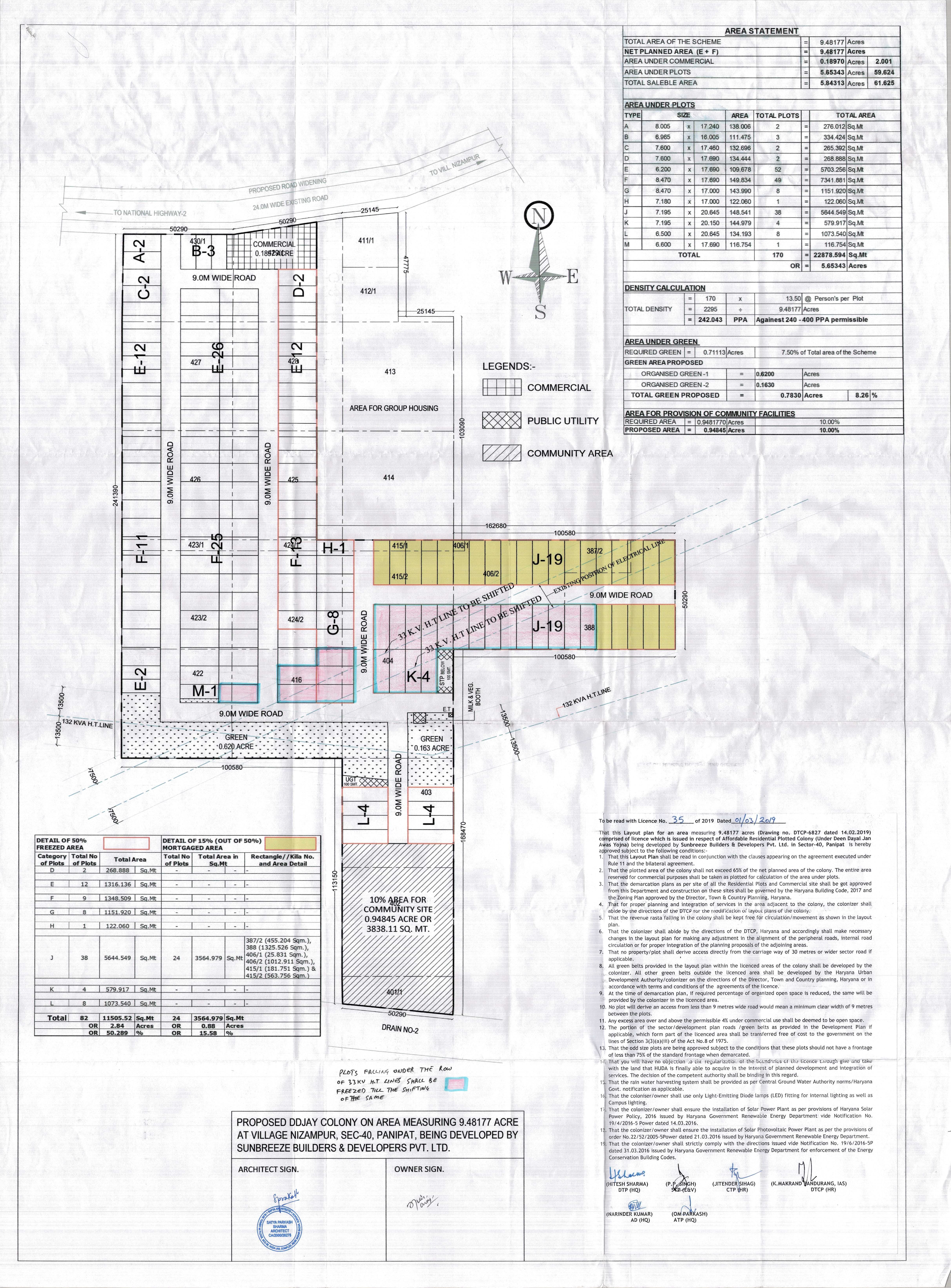
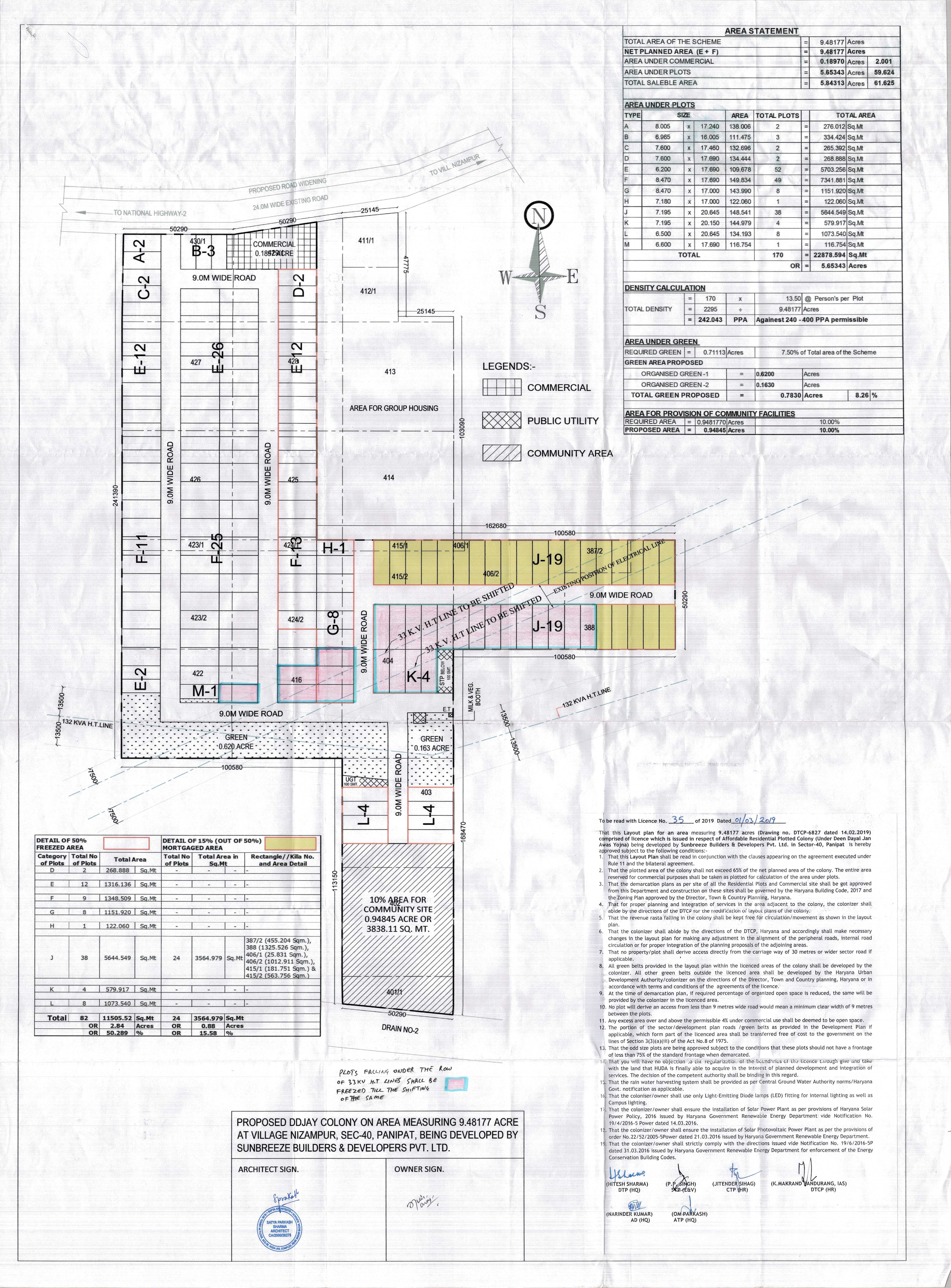
9.4811 (Acre)
2.00
2.00
9.4811 (Acre)
35 OF 2019
Yes







4241.42 Lakhs
602.40 Lakhs
0 Lakhs
2404.90 Lakhs
1234.12 Lakhs




Sr. No.Land area under usageArea of land (Square Meters)
1PLOTS TO BE SOLD 22875.206
2LAND AREA TO BE USED FOR CONSTRUCTION OF APARTMENTS 0
3CONSTRUCTION OF ROADS 5000
4PAVEMENTS 2543
5PARKS AND PLAYGROUNDS 3168.69
6GREEN BELTS 0
7VEHICLE PARKINGS 0
8ELECTRICITY SUB-STATION 30
9CLUB HOUSE 0
10SEWAGE AND SOLID WASTE TREATMENT FACILITY 148.574
11AREA TO BE LEFT FOR TRANSFERRING TO THE GOVERNMENT FOR COMMUNITY SERVICES 3838.24
12ANY OTHER 767.69
Total38371.4




FacilityExternal/ connecting service to be provided by (Name the agency)Whether Approval taken from the agency concerned. Yes/No (Annex details in folder C)
ROADSNo
WATER SUPPLYNo
ELECTRICITYNo
SEWAGE DISPOSALNo
STORM WATER DRAINAGENo




Sr. No.Name of the facilityEstimated cost (In Lakhs)(Within the project area only)Remarks: Yet to be prepared / Submitted to HUDA, Town & Country Planning Department/ as per project report etc. (Annex relevant documents showing costing details etc. in folder C)
1INTERNAL ROADS AND PAVEMENTS19500000AS PER PROJECT REPORT
2WATER SUPPLY SYSTEM9500000AS PER PROJECT REPORT
3STORM WATER DRAINAGE6000000AS PER PROJECT REPORT
4ELECTRICITY SUPPLY SYSTEM6000000AS PER PROJECT REPORT
5SEWAGE TREATMENT & GARBAGE DISPOSAL5500000AS PER PROJECT REPORT
6STREET LIGHTING1500000AS PER PROJECT REPORT
7SECURITY AND FIRE FIGHTING1100000AS PER PROJECT REPORT
8PLAYGROUNDS AND PARKS1200000AS PER PROJECT REPORT
9CLUB HOUSE/COMMUNITY CENTRE0YET TO BE PREPARED
10SHOPPING AREA0YET TO BE PREPARED
11RENEWABLE ENERGY SYSTEM1700000AS PER PROJECT REPORT
12SCHOOL0YET TO BE PREPARED
13HOSPITAL/DISPENSARY0YET TO BE PREPARED
14ANY OTHER0YET TO BE PREPARED
15EARTH FILLING34000000AS PER PROJECT REPORT


01-03-2019 (date)
NA (date)
01-07-2019
30-06-2021
Sr. No Plot Area(In Square Meter)Number of plots in the project
1 102.000 2
2 106.140 2
3 109.678 46
4 112.640 1
5 112.704 1
6 113.097 1
7 113.217 1
8 113.852 1
9 119.425 1
10 123.122 1
11 127.563 1
12 128.014 1
13 133.102 1
14 134.444 4
15 137.624 1
16 137.626 1
17 138.222 1
18 138.839 1
19 139.123 1
20 139.142 1
21 139.189 1
22 140.746 1
23 141.469 1
24 141.520 1
25 142.303 1
26 143.860 1
27 143.990 7
28 145.771 4
29 145.843 1
30 146.310 1
31 147.123 1
32 147.807 1
33 148.239 1
34 148.289 1
35 148.692 1
36 148.728 1
37 148.836 1
38 148.944 1
39 148.965 1
40 149.037 1
41 149.138 2
42 149.246 1
43 149.260 1
44 149.303 1
45 149.354 2
46 149.368 1
47 149.447 1
48 149.455 1
49 149.462 1
50 149.570 1
51 149.623 1
52 149.656 4
53 149.678 1
54 149.778 1
55 149.792 1
56 149.834 45
57 149.886 1
58 149.944 5
Total170


TypeCarpet area(In Square Meter)Number of apartmentsNumber of towers
Apartment/Shops/Other Buildings000





Expenditure incurred till the date of application (In Lakhs)

ParticularsExpenditure
Apartments0
Shops0
Plots0

Expenditure to be made in each quarter (In Lakhs)

ParticularsExpenditure to be made in each quarter ()
Apr-JuneJuly-SepOct-DecJan-Mar




Expenditure incurred till the date of application (In Lakhs)

ParticularsExpenditure
Roads & Pavements0
Water Supply System0
Sewerage treatment & garbage disposal0
Electricity Supply System0
Storm Water Drainage0
Parks and Playgrounds0
Clubhouse/community centres0
Shopping area0
Other0

Expenditure to be made in each quarter (In Lakhs)

ParticularsYear-2019
Jan-MarApr-JuneJuly-SepOct-Dec
Roads & Pavements25.503939
Water Supply System170017
Sewerage treatment & garbage disposal100011
Electricity Supply System0000
Storm Water Drainage110012
Parks and Playgrounds0000
Clubhouse/community centres0000
Shopping area0000
Other0000
EARTH FILLING400150150

ParticularsYear-2020
Jan-MarApr-JuneJuly-SepOct-Dec
Roads & Pavements1525.52215
Water Supply System1614.514.516
Sewerage treatment & garbage disposal81088
Electricity Supply System10161212
Storm Water Drainage8.510108.5
Parks and Playgrounds4005
Clubhouse/community centres0000
Shopping area0000
Other0000
SOLAR ENERGY SYSTEM44
STREET LIGHTING3433
SOLAR ENERGY SYSTEMS34
SECURITY AND FIRE FIGHTING35

ParticularsYear-2021
Jan-MarApr-JuneJuly-SepOct-Dec
Roads & Pavements0140
Water Supply System000
Sewerage treatment & garbage disposal000
Electricity Supply System0100
Storm Water Drainage000
Parks and Playgrounds030
Clubhouse/community centres000
Shopping area000
Other000
STREET LIGHTING2
SOLAR ENERGY SYSTEM2
SECURITY AND FIRE FIGHTING3












Yes
No
BANK OF INDIA, MAIN BRANCH, PANIPAT
675320110000043
BKID0006753
132013003
006753
ANIL WADHWA MUNISH BAJAJ VIVEK NARANG VIKAS NARANG
CERTIFICATE ATTACHED











Yes
No
No
No
No
No
No
No
No
No


Yes
Yes
Yes
Yes
Yes
No
Yes
No
Statutory Approvals Statutory Approvals StatusDate
I. DEMARCATION PLANAPPLIED FOR BUT YET TO RECEIVE08-05-2019
II. ZONING PLANYET TO FILE FOR APPROVALNA








Yes


Yes


Annexure Attached













SPECIFICATION OF CONSTRUCTION
Specification of apartments and other buildings including the following:
1FLOORING DETAILS OF VARIOUS PARTS OF HOUSENA
2WALL FINISHING DETAILSNA
3KITCHEN DETAILSNA
4BATHROOM FITTINGSNA
5WOOD WORK ETCNA
6DOORS AND WINDOS FRAMESNA
7GLASS WORKNA
8ELECTRIC FITTINGSNA
9CONDUCTING AND WIRING DETAILSNA
10CUPBOARD DETAILSNA
11WATER STORAGENA
12LIFT DETAILSNA
13EXTERNAL GLAZINGSNA
13.1WINDOWS/GLAZINGSNA
14DOORSNA
14.1MAIN DOORSNA
14.2INTERNAL DOORSNA
15AIR CONDITIONINGNA
16ELECTRICAL FITTINGSNA
17CNG PIPE LINENA
18PROVISION OF WIFI AND BROADBAND FACILITYNA
19EXTERNAL FINISHING/COLOUR SCHEMENA
20INTERNAL FINISHINGNA
SPECIFICATION UNIT WISE
1 . LIVING/DINING/FOYER/FAMILY LOUNGE
1 . 1 FLOORNA
1 . 2 WALLSNA
1 . 3 CEILINGNA
2 . MASTER BEDROOM/DRESSROOM
2 . 1 FLOORNA
2 . 2 WALLSNA
2 . 3 CEILINGNA
2 . 4 MODULAR WARDROBESNA
3 . MASTER TOILET
3 . 1 FLOORNA
3 . 2 WALLSNA
3 . 3 CEILINGNA
3 . 4 COUNTERSNA
3 . 5 SANITARY WARE/CP FITTINGSNA
3 . 6 FITTING/FIXTURESNA
4 . BED ROOMS
4 . 1 FLOORNA
4 . 2 WALLSNA
4 . 3 CEILINGNA
4 . 4 WARDROBESNA
5 . TOILET
5 . 1 FLOORNA
5 . 2 WALLSNA
5 . 3 CEILINGNA
5 . 4 COUNTERSNA
5 . 5 SANITARY WARE/CP FITTINGSNA
5 . 6 FIXTURESNA
6 . KITCHEN
6 . 1 FLOORNA
6 . 2 WALLSNA
6 . 3 CEILINGNA
6 . 4 COUNTERSNA
6 . 5 FIXTURESNA
6 . 6 KITCHEN APPLIANCESNA
7 . UTILITY ROOMS/UTILITY BALCONY/TOILET
7 . 1 FLOORNA
7 . 2 WALLS & CEILINGNA
7 . 3 TOILETNA
7 . 4 BALCONYNA
8 . SIT-OUTS
8 . 1 FLOORNA
8 . 2 WALLS & CEILINGNA
8 . 3 RAILINGSNA
8 . 4 FIXTURESNA












Sr. No.Document DescriptionDate of Document UploadView Document
1 DECLARATION SUPPORTED BY AFFIDAVIT DULY SIGNED BY THE PROMOTER TO BE ENCLOSED. 04-05-2019 View Document
2 STREET LIGHTING PLAN 02-05-2019 View Document
3 ROAD AND PAVEMENT PLAN 02-05-2019 View Document
4 ELECTRICITY SUPPLY PLAN 02-05-2019 View Document
5 SEWAGE & GARBAGE DISPOSAL PLAN 02-05-2019 View Document
6 STORM WATER DRAINAGE 02-05-2019 View Document
7 WATER SUPPLY PLAN 02-05-2019 View Document
8 COPY OF LICENSE ALONG WITH SCHEDULE OF LAND 14-06-2019 View Document
9 IN CASE OF PLOTTED COLONY, THE LATEST LAYOUT PLAN 14-06-2019 View Document
10 DRAFT ALLOTMENT LETTER 14-06-2019 View Document
11 FORM 3 CA CERTIFICATE 14-06-2019 View Document
12 RECEIVING FROM DEMARCATION APPLICATION 14-06-2019 View Document
13 GIST OF IMPORTANT PROVISIONS OF DRAFT AGREEMENT 17-06-2019 View Document
14 CERTIFICATE FROM A CHARTERED ACCOUNTANT CERTIFYING THAT THE INFORMSTION PROVIDED BY THE APPLICANT IN FORM REP-1-C-X IS CORRECT AS PER THE BOOKS OF ACCOUNTS/ BALANCE SHEET OF THE APPLICANT 17-06-2019 View Document
15 CASH FLOW STATEMENT OF THE PROPOSED PROJECT 17-06-2019 View Document
16 DRAFT AGREEMENT FOR SALE 17-06-2019 View Document
17 IN CASE OF GROUP HOUSING/ COMMERCIAL SITES, A COPY OF THE APPROVED SITE PLAN 17-06-2019 View Document
18 NON DEFAULT CERTIFICATE FROM A CHARTERED ACCOUNTANT 17-06-2019 View Document












Sr. No.Document DescriptionDate of Document UploadView Document
1 General extension of registration. 29-04-2022 View Document
2 First extension of registration 12-08-2022 View Document
3 EXTENSION UPLOAD 23-11-2023 View Document
4 Fifth Extension Uploaded. 28-05-2025 View Document