HRERA GurugramTemp Project Id : RERA-GRG-PROJ-880-2021
Submission Date : 23-06-2021 11:34:26 AM
Applicant Type : Company
Project Type: NEW




STERNAL BUILDCON PRIVATE LIMITED
13TH FLOOR, DR. GOPAL DAS BHAWAN, 28 BARAKHAMBA ROAD, CONNAUGHT PLACE, NEW DELHI CENTRAL DELHI DL 110001
01244908200
9810899381 (Number Shared by Promoter in Public)
compliance@signatureglobal.in
https://www.signatureglobal.in/
XXXX457N
U70109DL2009PTC195052
 
 


 
 


 
 


 
 


 
 







SIGNATURE GLOBAL CITY 81
VILLAGE NAKHDOLA, SECTOR 81
GURGAON
GURUGRAM
01244908200
9810899381 (Number Shared by Promoter in Public)
compliance@signatureglobal.in
SANJAY KUMAR VARSHNEY
01244908200
9810899381 (Number Shared by Promoter in Public)
compliance@signatureglobal.in








As per sub-rule(2) of rule 3 of the Haryana Real Estate (Regulation and Development) Rules,2017, the fee for registration of the project as has been calculated as follows:
-----------------------------------------------------------------------------------------------------------------------
-----------------------------------------------------------------------------------------------------------------------
-----------------------------------------------------------------------------------------------------------------------
-----------------------------------------------------------------------------------------------------------------------
2. The aforesaid fees is hereby deposited vide following Drafts/ Banker’s Cheques:-

Sr No.Draft/Cheque No.Draft DateAmountPayee BankPayable To
15202106228183582122-06-2021552772HDFC BANK YESBR52021062281835821HRERA Gurugram
25202106228183621722-06-2021484742YES BANK YESBR52021062281836217HRERA Gurugram







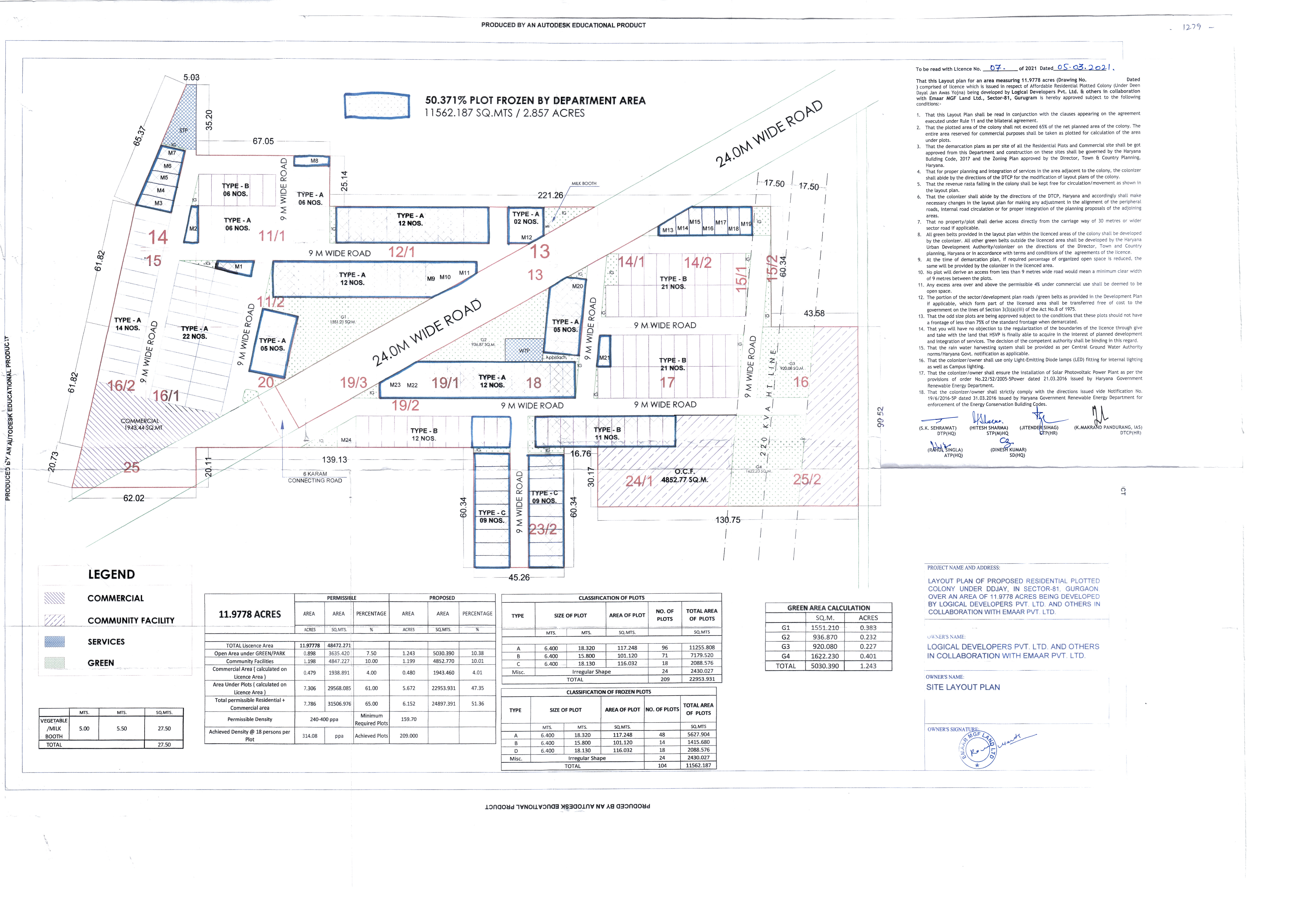
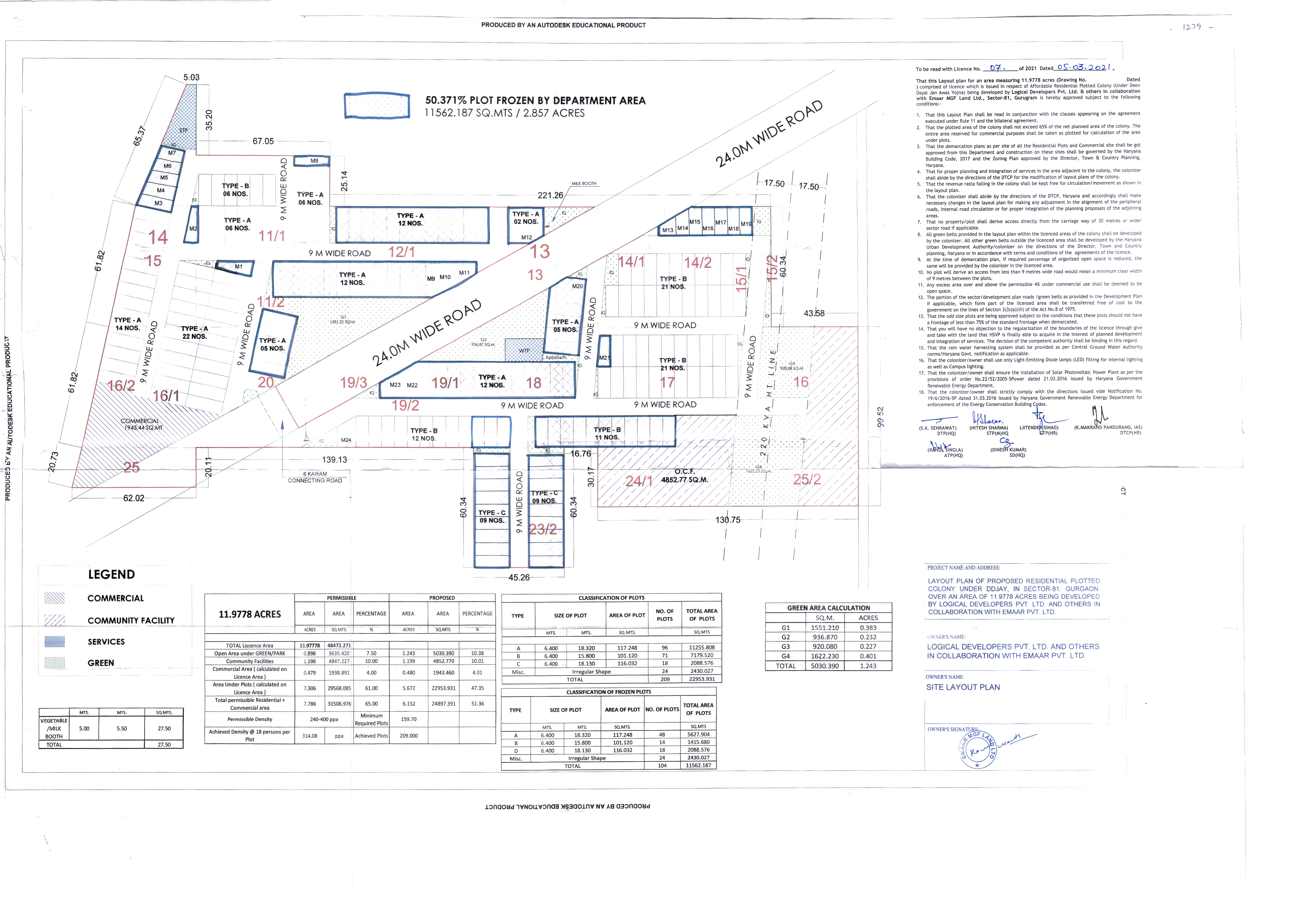
11.9778 (Acre)
1
1
11.9778 (Acre)
07 of 2021 dated 05.03.2021 Endst. No. LC-4222/Asstt.(MS)/2021/5797 Dated 08.03.2021
No
Address     306-308, 3RD FLOOR, SQUARE ONE, SAKET, NEW DELHI – 110017
Address     306-308, 3RD FLOOR, SQUARE ONE, SAKET, NEW DELHI – 110017
Address     306-308, 3RD FLOOR, SQUARE ONE, SAKET, NEW DELHI – 110017
Address     306-308, 3RD FLOOR, SQUARE ONE, SAKET, NEW DELHI – 110017
Address     306-308, 3RD FLOOR, SQUARE ONE, SAKET, NEW DELHI – 110017
Address     306-308, 3RD FLOOR, SQUARE ONE, SAKET, NEW DELHI – 110017
Annexure-B- ANNEXURE-B-YES
YES
Yes
AS PER COLLABORATION AGREEMENT
Yes
Yes
Yes







12745.06 Lakhs
7892.91 Lakhs
0 Lakhs
836.93 Lakhs
4015.22 Lakhs




Sr. No.Land area under usageArea of land (Acres)
1PLOTS TO BE SOLD 5.672
2LAND AREA TO BE USED FOR CONSTRUCTION OF APARTMENTS 0
3CONSTRUCTION OF ROADS 3.28
4PAVEMENTS 0
5PARKS AND PLAYGROUNDS 0
6GREEN BELTS 1.243
7VEHICLE PARKINGS 0
8ELECTRICITY SUB-STATION 0
9CLUB HOUSE 0
10SEWAGE AND SOLID WASTE TREATMENT FACILITY 0.10
11AREA TO BE LEFT FOR TRANSFERRING TO THE GOVERNMENT FOR COMMUNITY SERVICES 1.199
12ANY OTHER 0
13AREA UNDER COMMERCIAL UNITS 0.480
Total11.974




FacilityExternal/ connecting service to be provided by (Name the agency)Whether Approval taken from the agency concerned. Yes/No (Annex details in folder C)
ROADSNHAINo
WATER SUPPLYGMDAYes
ELECTRICITYDHBVNYes
SEWAGE DISPOSALGMDAYes
STORM WATER DRAINAGENo
STPHSVPYes




Sr. No.Name of the facilityEstimated cost (In Lakhs)(Within the project area only)Remarks: Yet to be prepared / Submitted to HUDA, Town & Country Planning Department/ as per project report etc. (Annex relevant documents showing costing details etc. in folder C)
1INTERNAL ROADS AND PAVEMENTS213.44SUBMITTED TO HUDA
2WATER SUPPLY SYSTEM159.73SUBMITTED TO HUDA
3STORM WATER DRAINAGE51.82SUBMITTED TO HUDA
4ELECTRICITY SUPPLY SYSTEM0YET TO BE PREPARED
5SEWAGE TREATMENT & GARBAGE DISPOSAL127.33SUBMITTED TO HUDA
6STREET LIGHTING18.38SUBMITTED TO HUDA
7SECURITY AND FIRE FIGHTING0YET TO BE PREPARED
8PLAYGROUNDS AND PARKS0SUBMITTED TO HUDA
9CLUB HOUSE/COMMUNITY CENTRE0YET TO BE PREPARED
10SHOPPING AREA0YET TO BE PREPARED
11RENEWABLE ENERGY SYSTEM0YET TO BE PREPARED
12SCHOOL0YET TO BE PREPARED
13HOSPITAL/DISPENSARY0YET TO BE PREPARED
14ANY OTHER261.50SUBMITTED TO HUDA
15PARKING OR HORTICULTURE4.73YET TO BE PREPARED
16MAINTENANCE261.50YET TO BE PREPARED


05-03-2021 (date)
NA (date)
01-07-2021
30-06-2023
Sr. No Plot Area(In Square Meter)Number of plots in the project
1 117.248 48
2 117.248 48
3 101.12 9
4 101.12 42
5 101.12 6
6 101.12 14
7 116.032 18
8 111.447 1
9 101.493 1
10 113.6 1
11 106.366 1
12 99.36 1
13 91.84 1
14 84.704 1
15 94.165 1
16 113.991 1
17 93.536 1
18 118.144 1
19 87.895 1
20 67.345 1
21 75.296 1
22 89.824 1
23 92.88 1
24 92.88 1
25 92.88 1
26 92.88 1
27 91.706 1
28 99.145 1
29 147.13 1
30 144.1 1
31 127.71 1
Total209


TypeCarpet area(In Square Meter)Number of apartmentsNumber of towers
Apartment/Shops/Other Buildings000





Expenditure incurred till the date of application (In Lakhs)

ParticularsExpenditure
Apartments0
Shops0
Plots0
External development charges892.84
Infrastructure development charges304.27
Land cost2164.84

Expenditure to be made in each quarter (In Lakhs)

ParticularsYear-2021
Jan-MarApr-JuneJuly-SepOct-Dec
Apartments00
Shops00
Plots00
Others cost305.73225
Land cost expenditure1145.612291.23
External development charges125.48
Internal development works73.49189.72

ParticularsYear-2022
Jan-MarApr-JuneJuly-SepOct-Dec
Apartments0000
Shops0000
Plots0000
Internal development works213.7198.51261.50
Others cost225200200180
External development charges110.88105.82
Cost of Development150.00
Land cost expenditure2291.23

ParticularsYear-2023
Jan-MarApr-JuneJuly-SepOct-Dec
Apartments0000
Shops0000
Plots0000
Others cost160.00140.00120.0075.00
Cost of Development150.00150.00
External development charges100.2294.98




Expenditure incurred till the date of application (In Lakhs)

ParticularsExpenditure
Roads & Pavements0
Water Supply System0
Sewerage treatment & garbage disposal0
Electricity Supply System0
Storm Water Drainage0
Parks and Playgrounds0
Clubhouse/community centres0
Shopping area0
Other0

Expenditure to be made in each quarter (In Lakhs)

ParticularsYear-2021
Jan-MarApr-JuneJuly-SepOct-Dec
Roads & Pavements25.8567.53
Water Supply System19.3450.54
Sewerage treatment & garbage disposal15.4240.29
Electricity Supply System00
Storm Water Drainage8.9121.69
Parks and Playgrounds0.811.98
Clubhouse/community centres00
Shopping area00
Other00
Street Light3.167.69

ParticularsYear-2022
Jan-MarApr-JuneJuly-SepOct-Dec
Roads & Pavements79.2140.85
Water Supply System59.2730.58
Sewerage treatment & garbage disposal47.2524.37
Electricity Supply System00
Storm Water Drainage19.351.87
Parks and Playgrounds1.770.17
Clubhouse/community centres00
Shopping area00
Other00
Street Light6.860.67












Yes
No
INDUSIND BANK LIMITED, DR. GOPAL DAS BHAWAN, 28, BARAKHAMBA ROAD, NEW DELHI-110001
259999012349
INDB0000005
110234002
000005
Lalit Kumar Aggarwal and Pradeep Kumar Aggarwal Address: 34, Road No.61, West Punjabi Bagh Delhi 110026
Attached











Yes
Yes
Yes
No
No
No
No
No
No
No


Yes
No
Yes
Yes
Yes
Yes
No
No
Statutory Approvals Statutory Approvals StatusDate
I. LICENSE 07 OF 2021ALREADY BEEN OBTAINED05-03-2021
II. DRG. NO. DTCP 7740ALREADY BEEN OBTAINED20-04-2021
III. SEWAGE DISPOSAL MEMO NO. GMDA/SEW/2021/396ALREADY BEEN OBTAINED25-03-2021
IV. STP TREATED WATER MEMO NO. GMDA/SEW/2021/393ALREADY BEEN OBTAINED25-03-2021








Yes


Yes


Attached













SPECIFICATION OF CONSTRUCTION
Specification of apartments and other buildings including the following:
1FLOORING DETAILS OF VARIOUS PARTS OF HOUSENA
2WALL FINISHING DETAILSNA
3KITCHEN DETAILSNA
4BATHROOM FITTINGSNA
5WOOD WORK ETCNA
6DOORS AND WINDOS FRAMESNA
7GLASS WORKNA
8ELECTRIC FITTINGSNA
9CONDUCTING AND WIRING DETAILSNA
10CUPBOARD DETAILSNA
11WATER STORAGENA
12LIFT DETAILSNA
13EXTERNAL GLAZINGSNA
13.1WINDOWS/GLAZINGSNA
14DOORSNA
14.1MAIN DOORSNA
14.2INTERNAL DOORSNA
15AIR CONDITIONINGNA
16ELECTRICAL FITTINGSNA
17CNG PIPE LINENA
18PROVISION OF WIFI AND BROADBAND FACILITYNA
19EXTERNAL FINISHING/COLOUR SCHEMENA
20INTERNAL FINISHINGNA
SPECIFICATION UNIT WISE
1 . LIVING/DINING/FOYER/FAMILY LOUNGE
1 . 1 FLOORNA
1 . 2 WALLSNA
1 . 3 CEILINGNA
2 . MASTER BEDROOM/DRESSROOM
2 . 1 FLOORNA
2 . 2 WALLSNA
2 . 3 CEILINGNA
2 . 4 MODULAR WARDROBESNA
3 . MASTER TOILET
3 . 1 FLOORNA
3 . 2 WALLSNA
3 . 3 CEILINGNA
3 . 4 COUNTERSNA
3 . 5 SANITARY WARE/CP FITTINGSNA
3 . 6 FITTING/FIXTURESNA
4 . BED ROOMS
4 . 1 FLOORNA
4 . 2 WALLSNA
4 . 3 CEILINGNA
4 . 4 WARDROBESNA
5 . TOILET
5 . 1 FLOORNA
5 . 2 WALLSNA
5 . 3 CEILINGNA
5 . 4 COUNTERSNA
5 . 5 SANITARY WARE/CP FITTINGSNA
5 . 6 FIXTURESNA
6 . KITCHEN
6 . 1 FLOORNA
6 . 2 WALLSNA
6 . 3 CEILINGNA
6 . 4 COUNTERSNA
6 . 5 FIXTURESNA
6 . 6 KITCHEN APPLIANCESNA
7 . UTILITY ROOMS/UTILITY BALCONY/TOILET
7 . 1 FLOORNA
7 . 2 WALLS & CEILINGNA
7 . 3 TOILETNA
7 . 4 BALCONYNA
8 . SIT-OUTS
8 . 1 FLOORNA
8 . 2 WALLS & CEILINGNA
8 . 3 RAILINGSNA
8 . 4 FIXTURESNA












Sr. No.Document DescriptionDate of Document UploadView Document
1 DEMARCATION PLAN 21-06-2021 View Document
2 NON ENCUMBRAINCE 21-06-2021 ------
3 EC RECEIVING 21-06-2021 ------
4 SEWERAGE NOC 21-06-2021 ------
5 ARAVALI 21-06-2021 ------
6 DOCUMENTS RELATING TO THE ENTRY OF LICENSE AND COLLABORATION AGREEMENT IN THE REVENUE RECORD 21-06-2021 View Document
7 ZONING PLAN 21-06-2021 View Document
8 STP 21-06-2021 ------
9 BR RERA ACCOUNTS 21-06-2021 ------
10 LICENSE ENTRY IN JAMABANDI 21-06-2021 ------
11 NON DEFAULT CERTIFICATE FROM A CHARTERED ACCOUNTANT 23-06-2021 View Document
12 IN CASE OF PLOTTED COLONY, THE LATEST LAYOUT PLAN 23-06-2021 View Document
13 COPY OF LICENSE ALONG WITH SCHEDULE OF LAND 23-06-2021 View Document
14 DECLARATION SUPPORTED BY AFFIDAVIT DULY SIGNED BY THE PROMOTER TO BE ENCLOSED. 23-06-2021 View Document
15 IN CASE OF GROUP HOUSING/ COMMERCIAL SITES, A COPY OF THE APPROVED SITE PLAN 23-06-2021 View Document
16 CA CERTIFICATE FOR FORM REP1 25-08-2021 ------
17 SUPER IMPOSED DEMARCATION 26-08-2021 ------
18 INFORMATION TO REVENUE DEPARTENT 26-08-2021 ------
19 CASH FLOW STATEMENT 81 26-08-2021 ------












Sr. No.Document DescriptionDate of Document UploadView Document
1 Extension No. 14 of 2023 dated 19.06.2023 04-07-2023 View Document
2 PROJECT CONTINUATION- RC/REP/HARERA/GGM/45 OF 2021/7(3)/49/2024/08 DATED 09.07.2024 18-07-2024 View Document
3 PROJECT CONTINUATION- RC/REP/HARERA/GGM/45 OF 2021/7(3)/49/2024/08 DATED 22.07.2025 24-07-2025 View Document