HRERA GurugramTemp Project Id : RERA-GRG-PROJ-385-2019
Submission Date : 07-12-2019 04:26:42 AM
Applicant Type : Company
Project Type: ONGOING




BURMAN ESTATE PRIVATE LIMITED
4TH FLOOR, PUNJABI BHAWAN, 10 ROUSE AVENUE NEW DELHI 110002
9599312609 (Number Shared by Promoter in Public)
accounts@burmanestate.com
http://www.burmanestate.com/
XXXX535J
U70109DL2007PTC171515
 
 


 
 


 
 


 
 


 
 







GURGAON SPECTRUM CENTRE- PHASE-I
SECTOR 82 A GURUGRAM
GURGAON
GURUGRAM
7291987550
9599312609 (Number Shared by Promoter in Public)
ACCOUNTS@BURMANESTATE.COM
VINESH KUMAR SHARMA
7291987550
8826293212 (Number Shared by Promoter in Public)
vinesh.sharma@burmanestate.com








As per sub-rule(2) of rule 3 of the Haryana Real Estate (Regulation and Development) Rules,2017, the fee for registration of the project as has been calculated as follows:
-----------------------------------------------------------------------------------------------------------------------
-----------------------------------------------------------------------------------------------------------------------
-----------------------------------------------------------------------------------------------------------------------
-----------------------------------------------------------------------------------------------------------------------
2. The aforesaid fees is hereby deposited vide following Drafts/ Banker’s Cheques:-

Sr No.Draft/Cheque No.Draft DateAmountPayee BankPayable To
121629-07-2017322250HDFC BANK LIMITEDHRERA Gurugram
2213922-08-201726611HDFC BANK LIMITEDHRERA Gurugram







17957.20 (Sqr/mtrs)
30129
1.75
17957.20 (Sqr/mtrs)
135 of 2008(27-06-2020)
Yes







20779 Lakhs
4728 Lakhs
12039 Lakhs
1440 Lakhs
2572 Lakhs




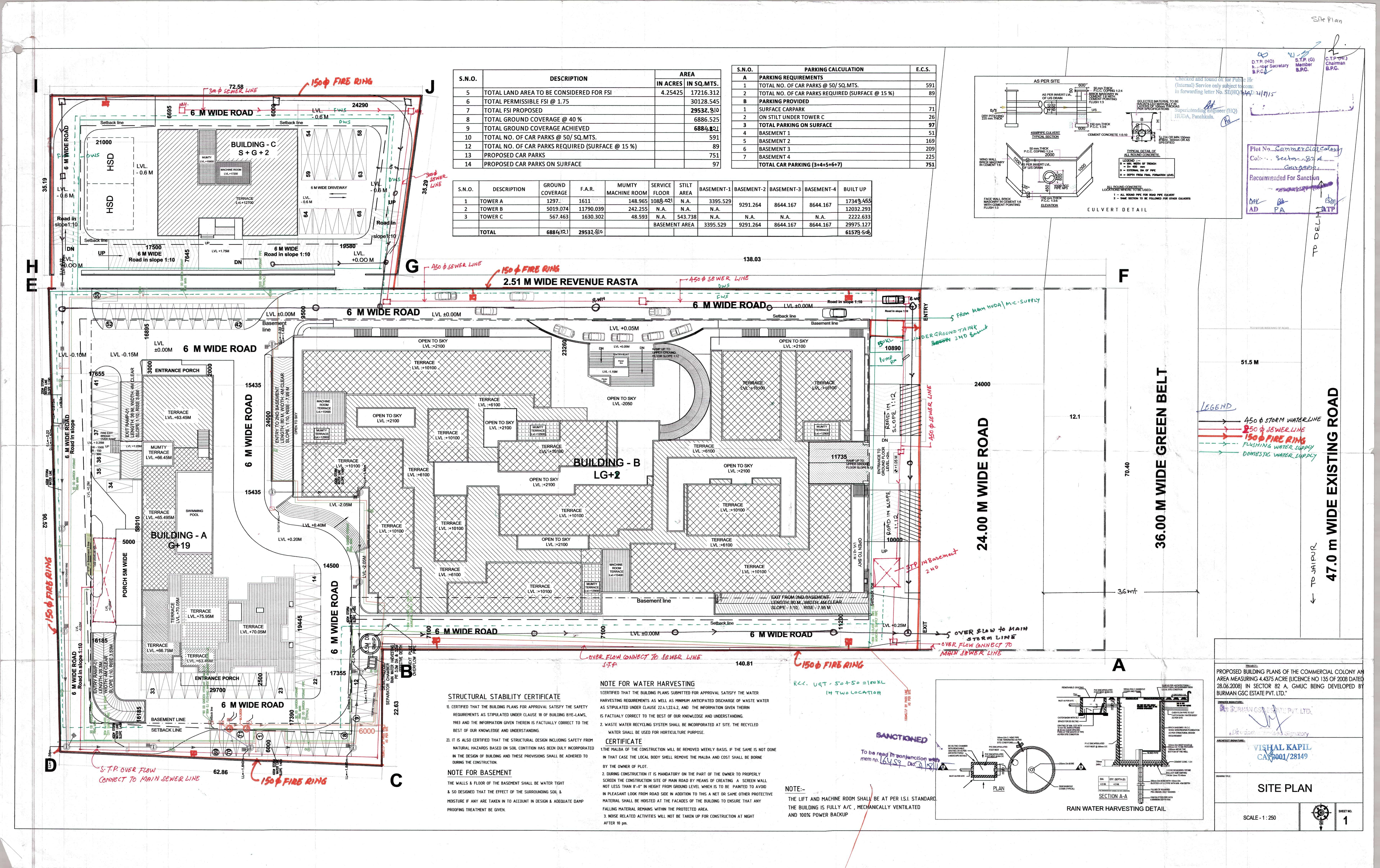
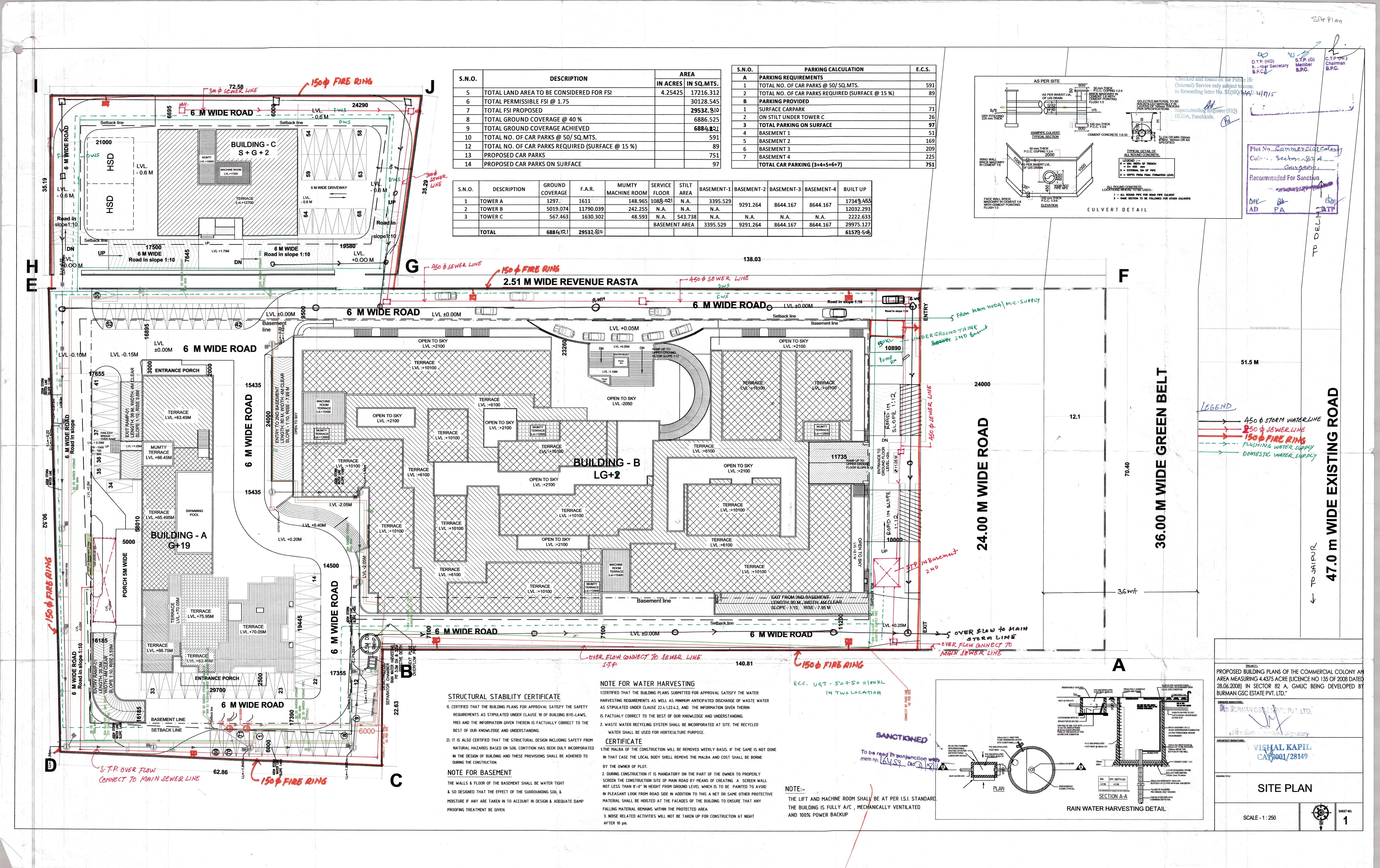
Sr. No.Land area under usageArea of land (Square Meters)
1PLOTS TO BE SOLD 0
2LAND AREA TO BE USED FOR CONSTRUCTION OF APARTMENTS 5880
3CONSTRUCTION OF ROADS 2000
4PAVEMENTS 610
5PARKS AND PLAYGROUNDS 0
6GREEN BELTS 1100
7VEHICLE PARKINGS 988
8ELECTRICITY SUB-STATION 400
9CLUB HOUSE 0
10SEWAGE AND SOLID WASTE TREATMENT FACILITY 190
11AREA TO BE LEFT FOR TRANSFERRING TO THE GOVERNMENT FOR COMMUNITY SERVICES 675
12ANY OTHER 6114
Total17957




FacilityExternal/ connecting service to be provided by (Name the agency)Whether Approval taken from the agency concerned. Yes/No (Annex details in folder C)
ROADSDTCPYes
WATER SUPPLYHUDAYes
ELECTRICITYDHBVNYes
SEWAGE DISPOSALHUDAYes
STORM WATER DRAINAGEHUDAYes




Sr. No.Name of the facilityEstimated cost (In Lakhs)(Within the project area only)Remarks: Yet to be prepared / Submitted to HUDA, Town & Country Planning Department/ as per project report etc. (Annex relevant documents showing costing details etc. in folder C)
1INTERNAL ROADS AND PAVEMENTS220AS PER PROJECT REPORT
2WATER SUPPLY SYSTEM260AS PER PROJECT REPORT
3STORM WATER DRAINAGE165AS PER PROJECT REPORT
4ELECTRICITY SUPPLY SYSTEM565AS PER PROJECT REPORT
5SEWAGE TREATMENT & GARBAGE DISPOSAL65AS PER PROJECT REPORT
6STREET LIGHTING0YET TO BE PREPARED
7SECURITY AND FIRE FIGHTING0YET TO BE PREPARED
8PLAYGROUNDS AND PARKS165AS PER PROJECT REPORT
9CLUB HOUSE/COMMUNITY CENTRE0YET TO BE PREPARED
10SHOPPING AREA0YET TO BE PREPARED
11RENEWABLE ENERGY SYSTEM0YET TO BE PREPARED
12SCHOOL0YET TO BE PREPARED
13HOSPITAL/DISPENSARY0YET TO BE PREPARED
14ANY OTHER0YET TO BE PREPARED


31-08-2015 (date)
04-11-2015 (date)


Sr. No.Plot/ apartment type Size of the plot/carpet area of the apartments Total number of plots/apartments in the project Total size of the plots/carpet area of the apartments Plots/apartments booked/ sold upto the date of application Yet to be sold/ booked No. of towers to be/ being constructed for booked apartments
1 APARTMENT/SHOPS/OTHER BUILDINGS Type SERVICED AAPARTMENT 32.12 246 7901.52 88 158 1
2 APARTMENT/SHOPS/OTHER BUILDINGS Type RETAIL SPACE 11.77 54 635.58 4 50 1
Total3008537.1922082






TypeNumber of apartments booked/ sold Write or Annex the stage of construction of the booked/ sold apartments in folder C
SERVICED APARTMENT881. SUBSTRUCTURE COMPLETE, 2. SUPER STRUCTURE COMPLETE. 3. INTERNAL PLASTER 95% COMPLETE,4. UNDER GROUND WATER TANK 70% COMPLETE, COVERED CAR PARKING 100% COMPLETE, STP 90% COMPLETE
RETAIL SPACE41. SUBSTRUCTURE COMPLETE, 2. SUPER STRUCTURE COMPLETE. 3. INTERNAL PLASTER 95% COMPLETE,4. UNDER GROUND WATER TANK 70% COMPLETE, COVERED CAR PARKING 100% COMPLETE, STP 90% COMPLETE
RETAIL SPACE41. SUBSTRUCTURE COMPLETE, 2. SUPER STRUCTURE COMPLETE. 3. INTERNAL PLASTER 95% COMPLETE,4. UNDER GROUND WATER TANK 70% COMPLETE, COVERED CAR PARKING 100% COMPLETE, STP 90% COMPLETE


06-08-2016
30-06-2020
30-06-2020
06-08-2016
15
30-06-2020


PlotsBooked/soldStage of handing over the possession (Write or Annex details)
PLOT00
06-08-2016
0
30-06-2020


228
37
0
72
0





Expenditure incurred till the date of application (In Lakhs)

ParticularsExpenditure
Apartments0
Shops0
Plots0
Construction Cost1850

Expenditure to be made in each quarter (In Lakhs)

ParticularsYear-2017
Jan-MarApr-JuneJuly-SepOct-Dec
Apartments0000
Shops0000
Plots0000
Construction Cost524.095918505.54330.094

ParticularsYear-2019
Jan-MarApr-JuneJuly-SepOct-Dec
Apartments704973495275
Shops265227650
Plots000
Construction Cost121.49717488.3789423.8464

ParticularsYear-2020
Jan-MarApr-JuneJuly-SepOct-Dec
Apartments000
Shops000
Plots000
Construction Cost76.76735302.8086434.9156




Expenditure incurred till the date of application (In Lakhs)

ParticularsExpenditure
Roads & Pavements0
Water Supply System0
Sewerage treatment & garbage disposal0
Electricity Supply System0
Storm Water Drainage0
Parks and Playgrounds0
Clubhouse/community centres0
Shopping area0
Other0

Expenditure to be made in each quarter (In Lakhs)

ParticularsYear-2019
Jan-MarApr-JuneJuly-SepOct-Dec
Roads & Pavements0
Water Supply System0
Sewerage treatment & garbage disposal0
Electricity Supply System0
Storm Water Drainage0
Parks and Playgrounds0
Clubhouse/community centres0
Shopping area0
Other0

ParticularsYear-2020
Jan-MarApr-JuneJuly-SepOct-Dec
Roads & Pavements220
Water Supply System260
Sewerage treatment & garbage disposal65
Electricity Supply System565
Storm Water Drainage165
Parks and Playgrounds165
Clubhouse/community centres0
Shopping area0
Other0












Particulars Remarks, if any
i. No. of Flats/Apartments constructed246As on 30.09.2019 Total Serviced Apartment + 1 BHK unit 246 and Retail Unit 54 not inculded
ii. No. of Flats/ Apartments booked88As on Serviced Apartment Active Unit 88 and Retail Shop sold 4 not inculded
iii. Total amount sale value of booked Flats, on the date of application/end of last quarter6123 LakhsValue of active units only as on last quarter as on 30.09.2019
iv. Total amount received from the allottees (booked Flats), on the date of application/end of last quarter5105 LakhsValue of active units only as on last quarter as on 30.09.2019
v. Balance amount to be received from the allottees (booked Flats, after completion), on the date of application/end of last quarter395 LakhsValue of active units only as on last quarter as on 30.09.2019
vi. Balance amount due and recoverable from the allottees (booked Flats) as on the date of application /end of last quarter1018 LakhsValue of active units only as on last quarter as on 30.09.2019
vii. Amount invested in the project upto the date of application7708 LakhsLand cost take proposnate as on 31.07.2017
Land cost (If any)3551 LakhsLand cost take proposnate for phase -1 (Land use approx 54% for Phase-1( Total Land 4.4375 acres)
Apartments1850 LakhsConstruction cost as on 31.07.2017
Infrastructure0 Lakhs
EDC/ Taxes Etc.2307 LakhsAs on 31st July 2017
viii. Balance cost to be incurred for completion of the project and delivery of possession13071 LakhsBalance Cost as on 31.07.2017
(a) In respect of existing allottees0 Lakhs
(b) In respect of rest of the project0 Lakhs
ix. The amount of loan raised from the banks/ financial institutions/ private persons against the project
Annex detail of the securities furnished to the banks/ financial institutions against the aforesaid loans in folder C
10830 LakhsLoan taken from Group companies approx 10000 Lakh for Purchase of Land 4.437 acre and payment to DTCP
x. Total liabilities against the project up-to-date. (Annex details in folder C) 10830 Lakhs



Particulars Estimated expenditure planned to be incurred as per service plan estimates or the project report. (In Lakhs)Actual expenditure incurred upto the date of application. (In Lakhs)
I. INTERNAL ROADS AND PAVEMENTS2200
II. WATER SUPPLY SYSTEM2600
III. STORM WATER DRAINAGE1650
IV. ELECTRICITY SUPPLY SYSTEM5650
V. SEWAGE TREATMENT & GARBAGE DISPOSAL650
VI. CLUB HOUSE/COMMUNITY CENTRE00
VII. SCHOOL00
VIII. ANY OTHER00
IX. SOLID WASTE COLLECTION & MGMT SYSTEM00
X. CLUBHOUSE00
XI. NEIGHBOURHOOD SHOPPING00
XII. GREEN AREAS,PARKS,PLAYGROUNDS ETC.1650
XIII. COVERED PARKING940
XIV. OPEN PARKING00
XV. GARAGES11500
XVI. SECURITY SYSTEM00
XVII. OTHER FACILITIES AS PER PROJECT REPORT00









Yes
Yes
HDFC BANK LIMITED, ADD: 209-214, KAILASH BUILDING, 26 KG MARG, NEW DELHI- 110001
57500000183190
HDFC0000003
110240001
000003
Abhay Kumar Agarwal Add: A-506, Gitanjali Apartments, Karkardooma, Delhi-110092
yes











Yes
Yes
Yes
Yes
Yes
Yes
Yes
Yes
Yes
Yes


Yes
Yes
Yes
Yes
Yes
Yes
Yes
Yes
Statutory Approvals Statutory Approvals StatusDate
I. AIRPORT AUTHORITYALREADY BEEN OBTAINED14-01-2016
II. DEVELOPMENT BUILDING PLANALREADY BEEN OBTAINED04-11-2015
III. FIRE FIGHTING SCHEMEALREADY BEEN OBTAINED18-03-2016
IV. ENVIRONMENTAL CLEARENCE TO ESTABLISH CONSENT TO OPERATEALREADY BEEN OBTAINED23-08-2016
V. WATER LOAD APPROVALALREADY BEEN OBTAINED19-02-2016
VI. MINING APPROVALALREADY BEEN OBTAINED13-07-2016
VII. LOAD SANCTION DEMANDALREADY BEEN OBTAINED10-02-2016
VIII. PLOT LICENSEALREADY BEEN OBTAINEDNA
IX. ZIONING PLANALREADY BEEN OBTAINED31-08-2015
X. BUILDING PLANALREADY BEEN OBTAINED04-11-2015








Yes


Yes


Attached













SPECIFICATION OF CONSTRUCTION
Specification of apartments and other buildings including the following:
1FLOORING DETAILS OF VARIOUS PARTS OF HOUSETILES, STONE, IPS
2WALL FINISHING DETAILSPOP, PAINT, STONE
3KITCHEN DETAILSKOTA STONE, ANTISKIDE TILES
4BATHROOM FITTINGSCP SANITARY WHITE FIXTURE
5WOOD WORK ETCPLY, NATURAL WOOD, POLISH MICA
6DOORS AND WINDOS FRAMESNATURAL WOOD, FLUSH DOORS
7GLASS WORKTOUGHENED GLASS
8ELECTRIC FITTINGSDOWN LIGHTS LED, BATTEN LED, LED STRIP
9CONDUCTING AND WIRING DETAILSPVC CONDUIT, MS CONDUIT, FRLS WIRES
10CUPBOARD DETAILSPLY BOARD, LAMINATE, DRAWERS
11WATER STORAGERCC TANKS, OVERHEAD TANKS
12LIFT DETAILSPASSENGER LIFTS, SSCAGE 8 NOS
13EXTERNAL GLAZINGSDGU, WINDOW OPENABLE ALUMINIUM WINDOWS
13.1WINDOWS/GLAZINGSALUMINIUM WINDOWS, SGV, DGV
14DOORSFIRE DOORS, FLUSH DOORS
14.1MAIN DOORS55 MM FLUSH DOORS
14.2INTERNAL DOORS42 MM FLUSH DOORS
15AIR CONDITIONINGSPLIT UNITS, DSV, CASSETTE VRV
16ELECTRICAL FITTINGSLED LIGHT, LED BATTENS
17CNG PIPE LINENA
18PROVISION OF WIFI AND BROADBAND FACILITYWIFI ROUTERS AND IT VENDORS
19EXTERNAL FINISHING/COLOUR SCHEMEEXTERNAL TEXTURE PAINT
20INTERNAL FINISHINGPOP, PLASTIC PAINT, DADO TILES, CEILING GYP
SPECIFICATION UNIT WISE
1 . LIVING/DINING/FOYER/FAMILY LOUNGE
1 . 1 FLOORSTONE, MARBLE, TILE, WOODEN FLOORING
1 . 2 WALLSPOP, PAINT, WOODEN CLADDING, STONE DADO
1 . 3 CEILINGGYP CEILING
2 . MASTER BEDROOM/DRESSROOM
2 . 1 FLOORWOODEN FLOORING
2 . 2 WALLSPOP PUNNING PAINT (PLASTIC)
2 . 3 CEILINGPOP PUNNING AND GYPSUM BOARD
2 . 4 MODULAR WARDROBESPLY BOARDS, LAMINATE, STONE TOP, SINK (SS)
3 . MASTER TOILET
3 . 1 FLOORTILE AND STONE
3 . 2 WALLSTILE
3 . 3 CEILINGCEMENT/BISON BOARD
3 . 4 COUNTERSPLY BOARD (WATERPROOF) STONE TOP
3 . 5 SANITARY WARE/CP FITTINGSEWC, WB, SS SINK, HEAD SHOWER, HEALTH FAUCET
3 . 6 FITTING/FIXTURESLED TYPE, D/W LIGHT, LED STRIP LIGHT
4 . BED ROOMS
4 . 1 FLOORWOODEN FLOOR - AC - 4
4 . 2 WALLSTILES DADO
4 . 3 CEILINGPOP PUNNING, GYPSUM BOARD
4 . 4 WARDROBESPLY LAMINATE
5 . TOILET
5 . 1 FLOORINDIAN STONE, TILE
5 . 2 WALLSTILE
5 . 3 CEILINGCEMENT/ BISON BOARD
5 . 4 COUNTERSPLY BOARD/WATER PROOF, PLY, STONE TOP
5 . 5 SANITARY WARE/CP FITTINGSEWC, WB, HEALTH FAUCET, SS SINK
5 . 6 FIXTURESLED, D/W LIGHT, LED STRIP LIGHT
6 . KITCHEN
6 . 1 FLOORTILES
6 . 2 WALLSTILE
6 . 3 CEILINGGYP BOARD
6 . 4 COUNTERSPLY BOARD, STONE TOP
6 . 5 FIXTURESLED BATTEN
6 . 6 KITCHEN APPLIANCESKETTLE, FRIDGE, INDUCTION
7 . UTILITY ROOMS/UTILITY BALCONY/TOILET
7 . 1 FLOOREWC
7 . 2 WALLS & CEILINGPOP PUNNING, PAINT (PLASTIC), POP CEILING, GYPSUM BOARD
7 . 3 TOILETTOILET CP + WHITE FIXTURE
7 . 4 BALCONYEXTERIOR PAINT, WOODEN CERAMIC TILES, GLASS RAILING
8 . SIT-OUTS
8 . 1 FLOORCOBALT STONE, PAVER BLOCK, IPS GRASS
8 . 2 WALLS & CEILINGSTONE CLADDING
8 . 3 RAILINGSMS RAILING, GLASS RAILING
8 . 4 FIXTURESBOOM BARRIER, SECURITY CABIN












Sr. No.Document DescriptionDate of Document UploadView Document
1COPY OF LICENSE ALONG WITH SCHEDULE OF LAND28-11-2019 View Document
2APPROVAL DEMARCATION28-02-2020 View Document
3LOI28-02-2020 View Document
4NON DEFAULT CERTIFICATE FROM A CHARTERED ACCOUNTANT28-02-2020 View Document
5CA CERTIFICATE Q-228-02-2020 View Document
6ENVIRONMENT CLEARANCE CERTIFICATE28-02-2020 View Document
7FIRE FIGHTING APPROVAL28-02-2020 View Document
8FRESH WATER SUPPLY28-02-2020 View Document
9LC IV D28-02-2020 View Document
10BANK DETAIL- HARERA COLLECTION 100 PERCENT28-02-2020 View Document
11BANK DETAIL- HARERA ESCROW ACCOUNT-70 PERCENT28-02-2020 View Document
12BANK DETAIL- DESIGNATED 30 PERCENT28-02-2020 View Document
13FRESH WATER SUPPLY03-12-2019 View Document
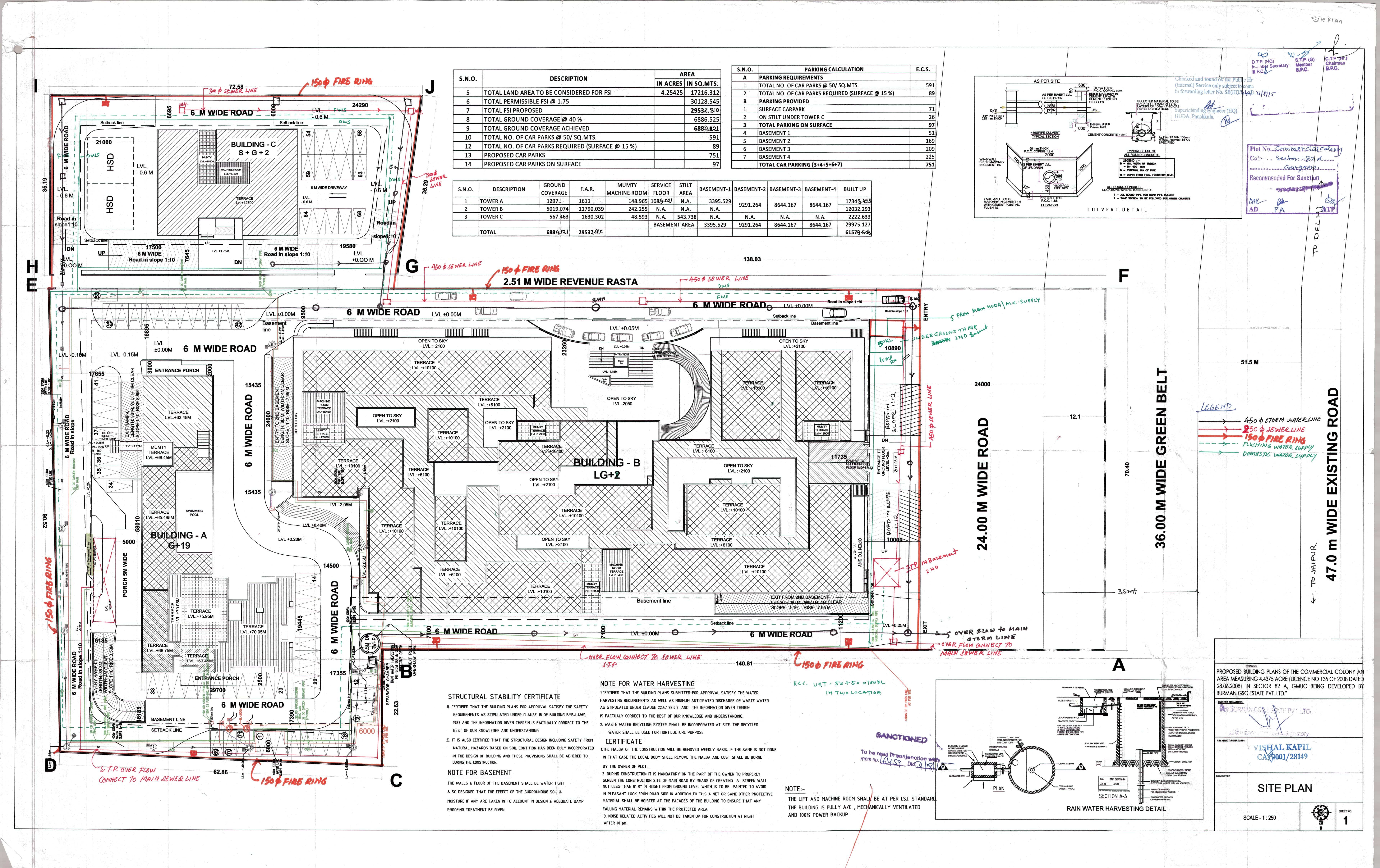
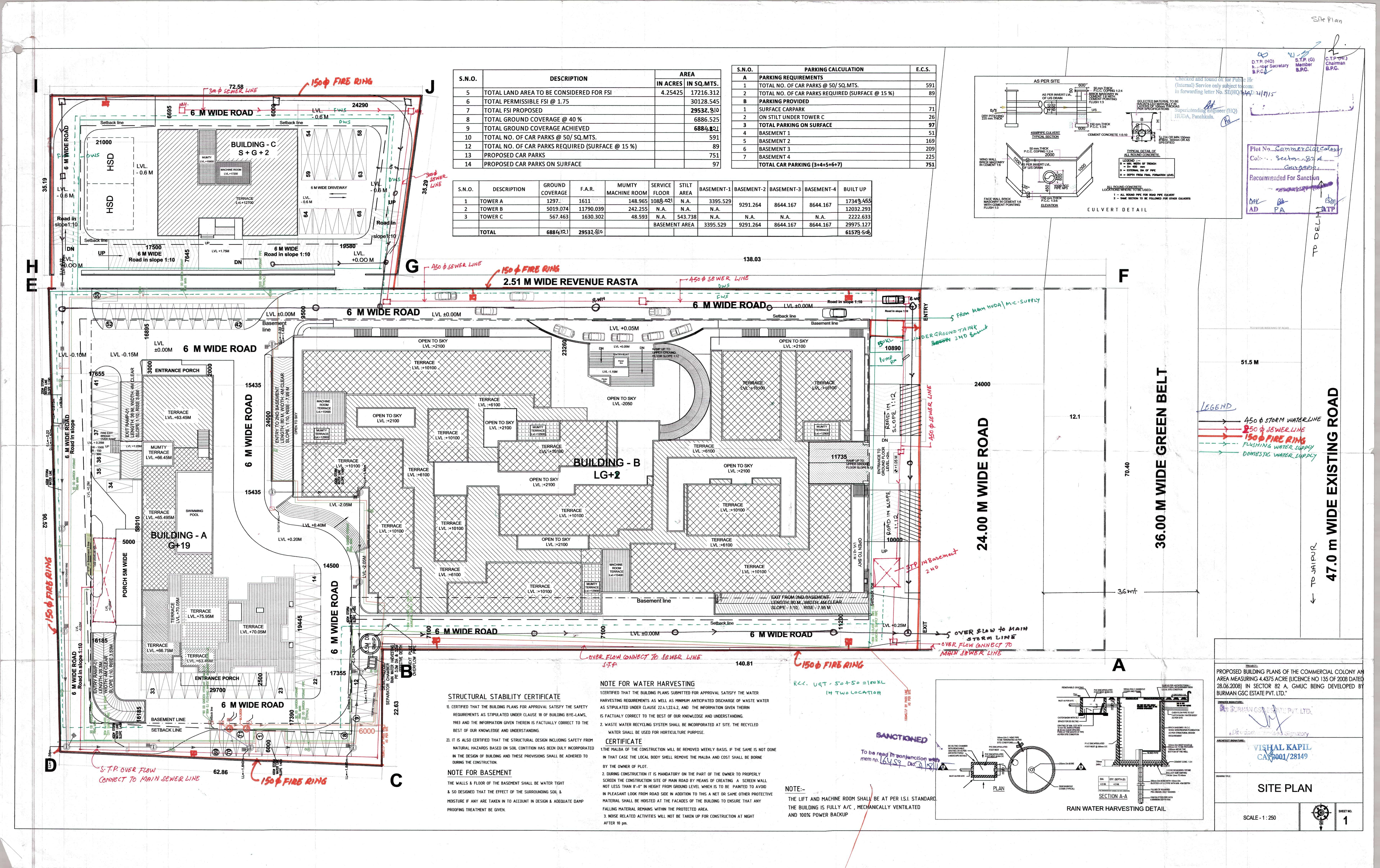
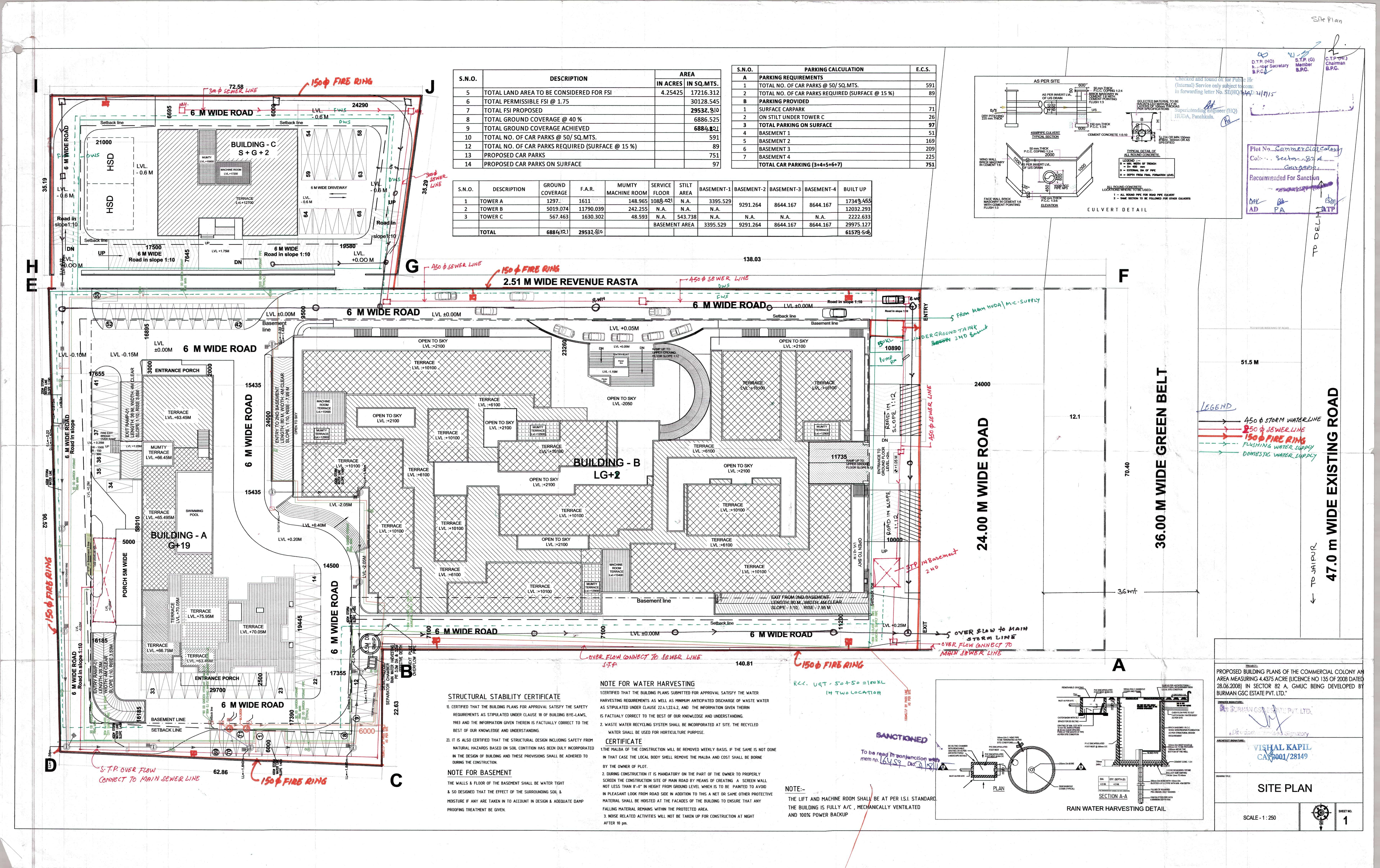
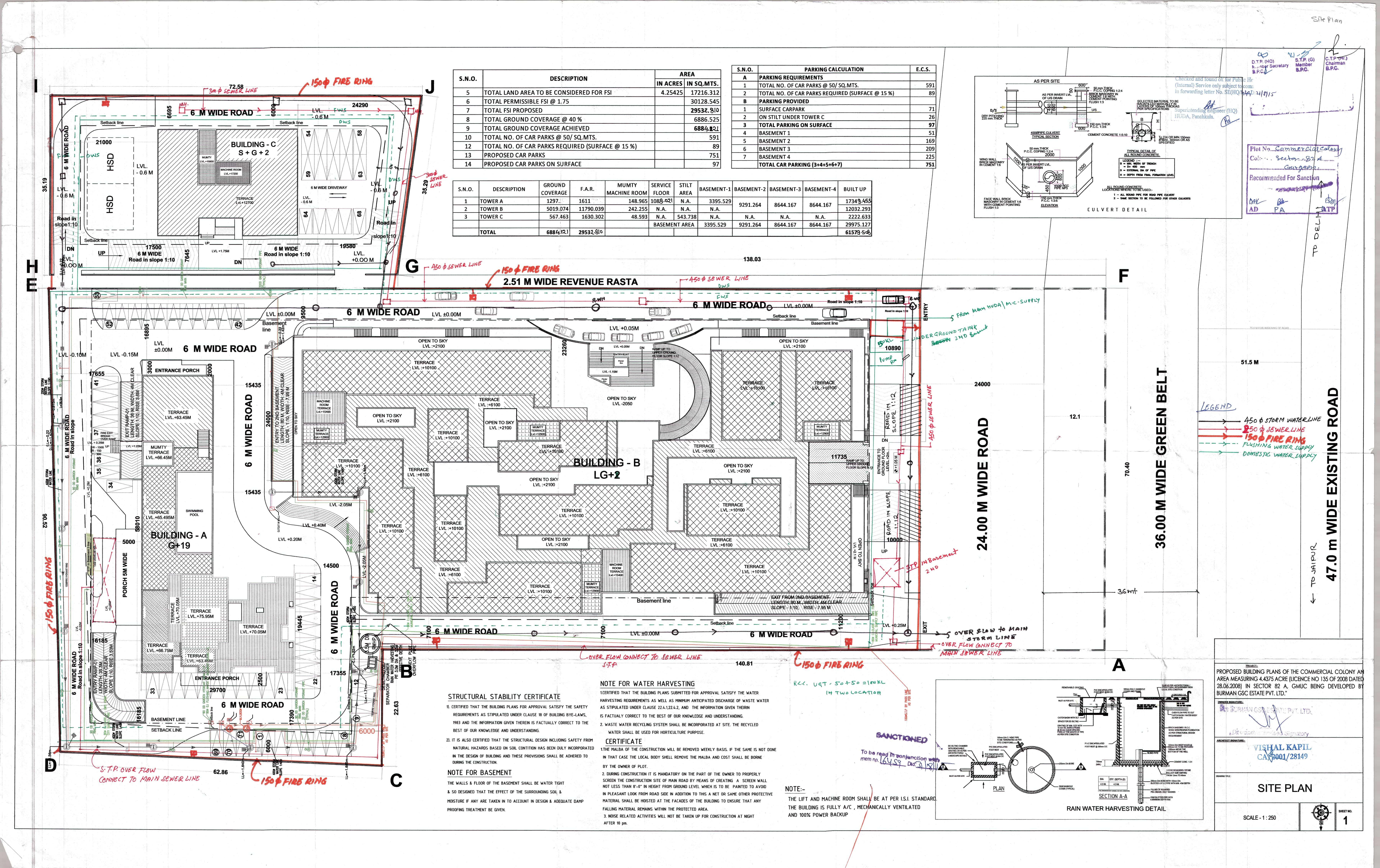
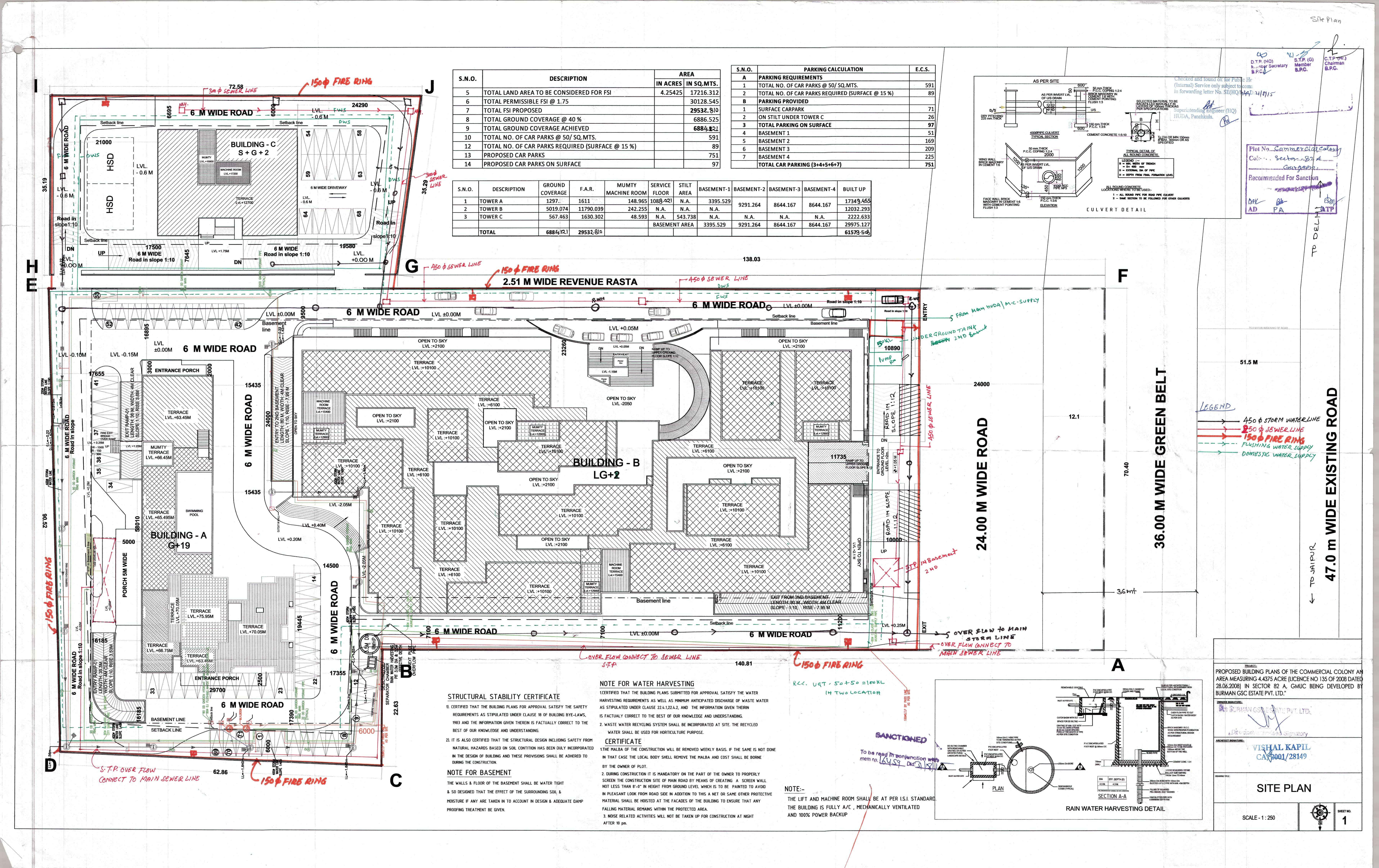
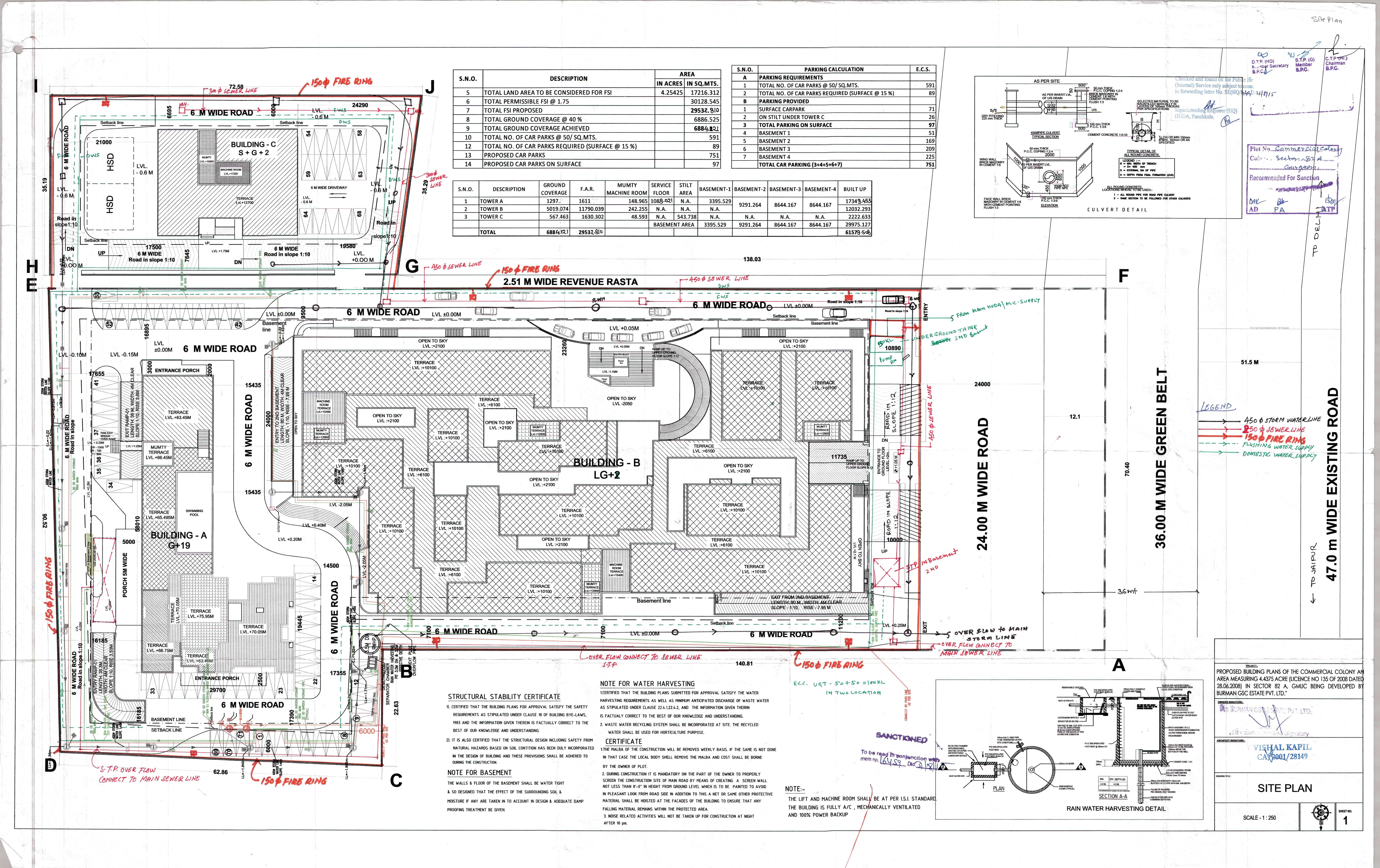
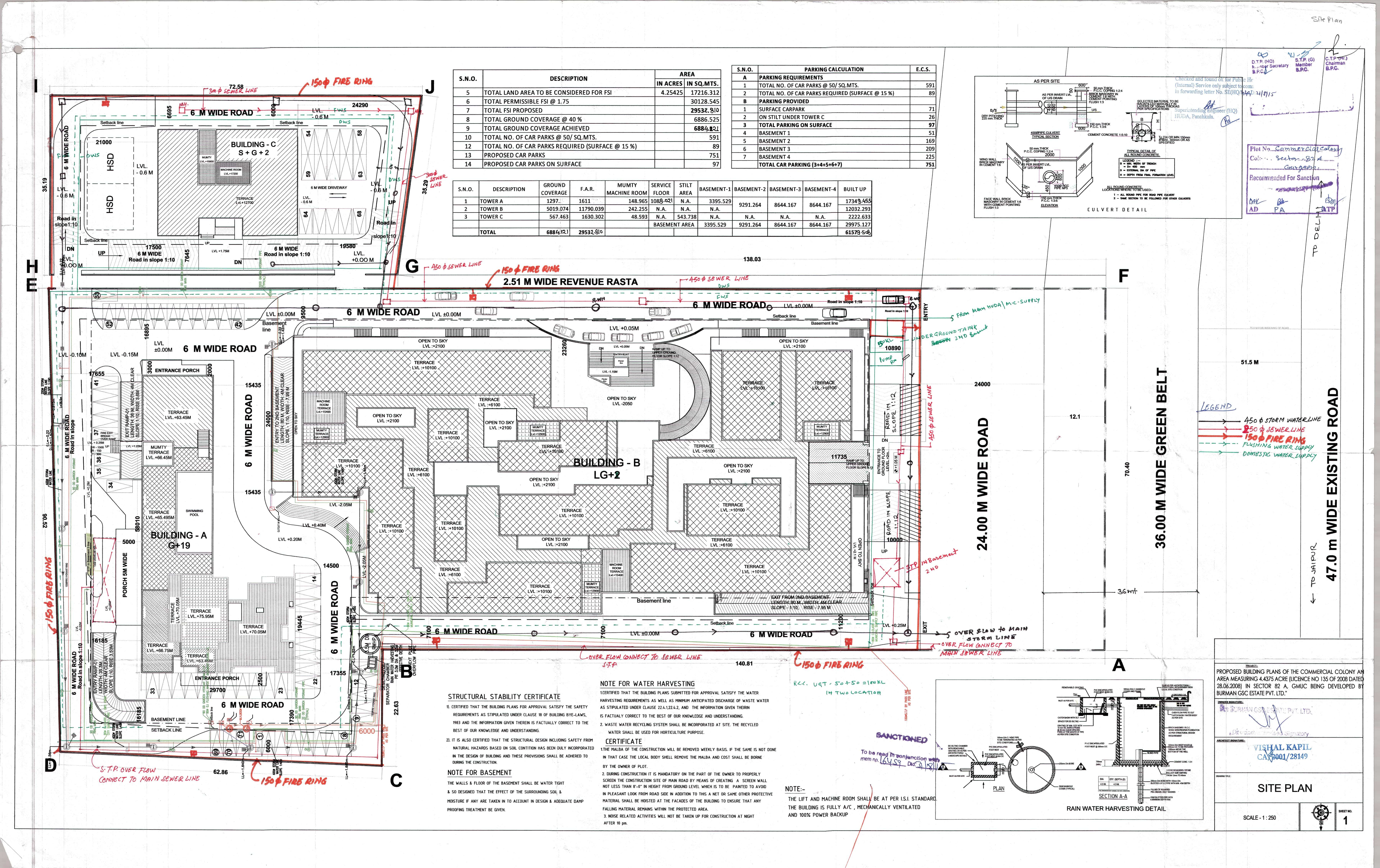
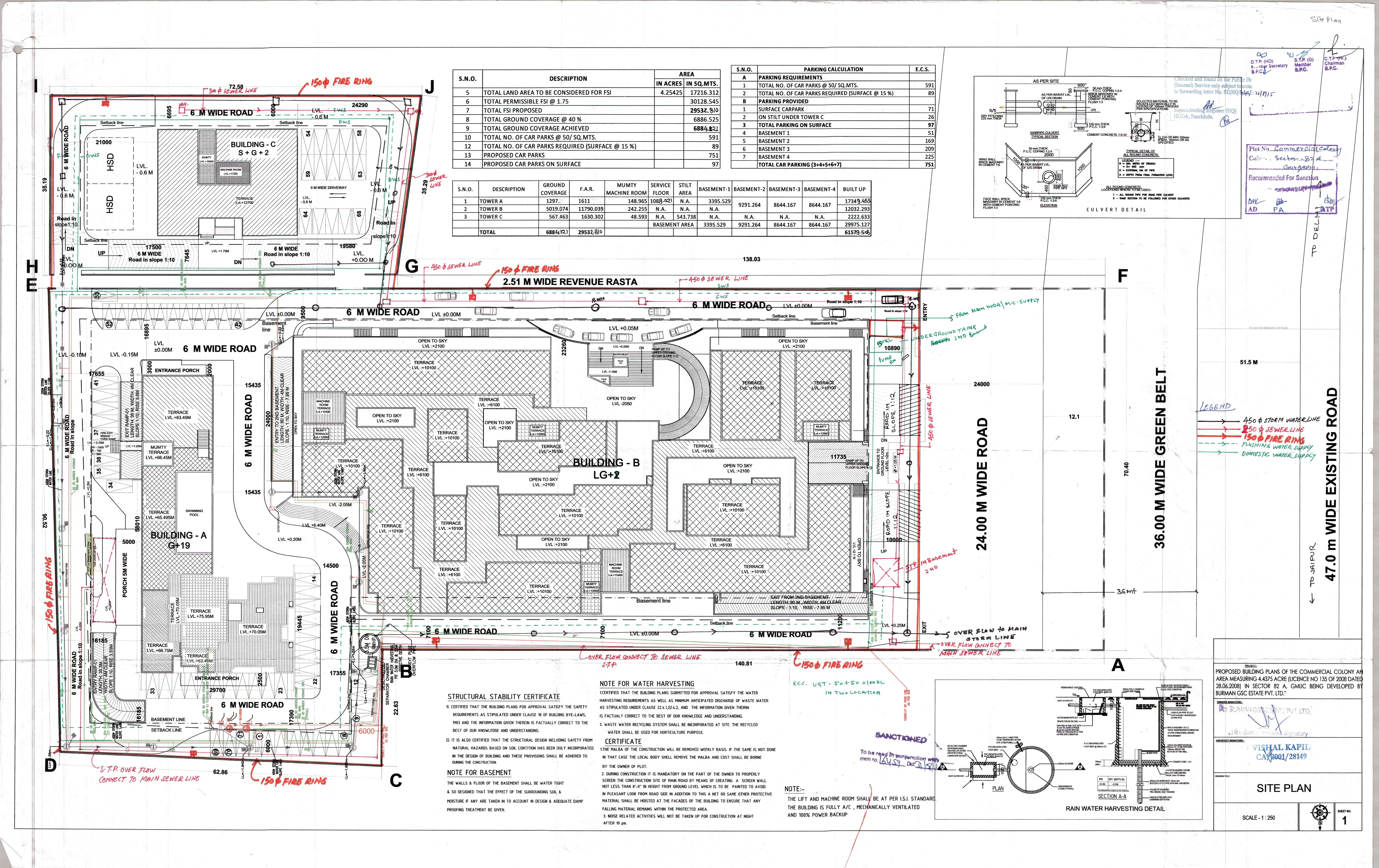
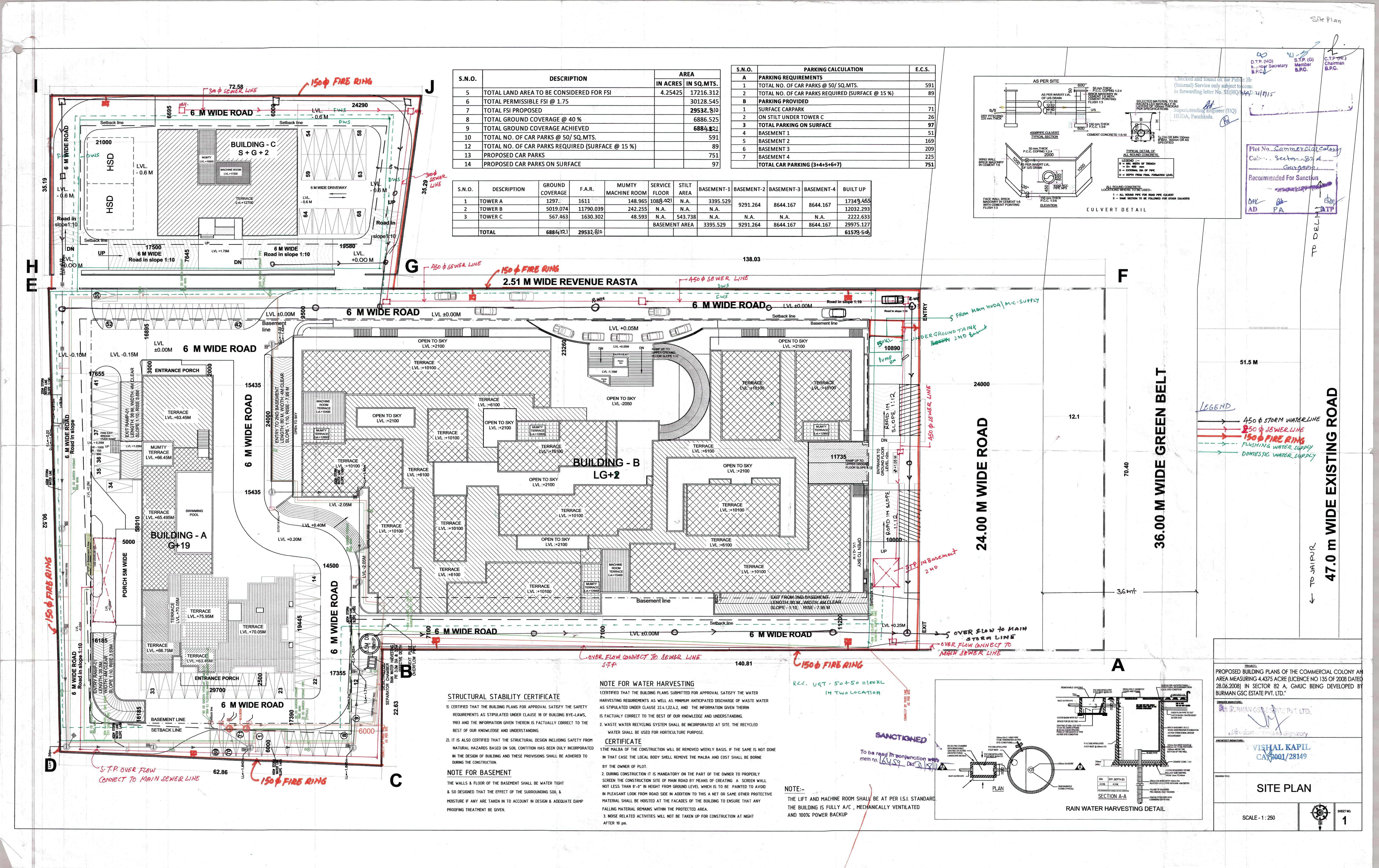
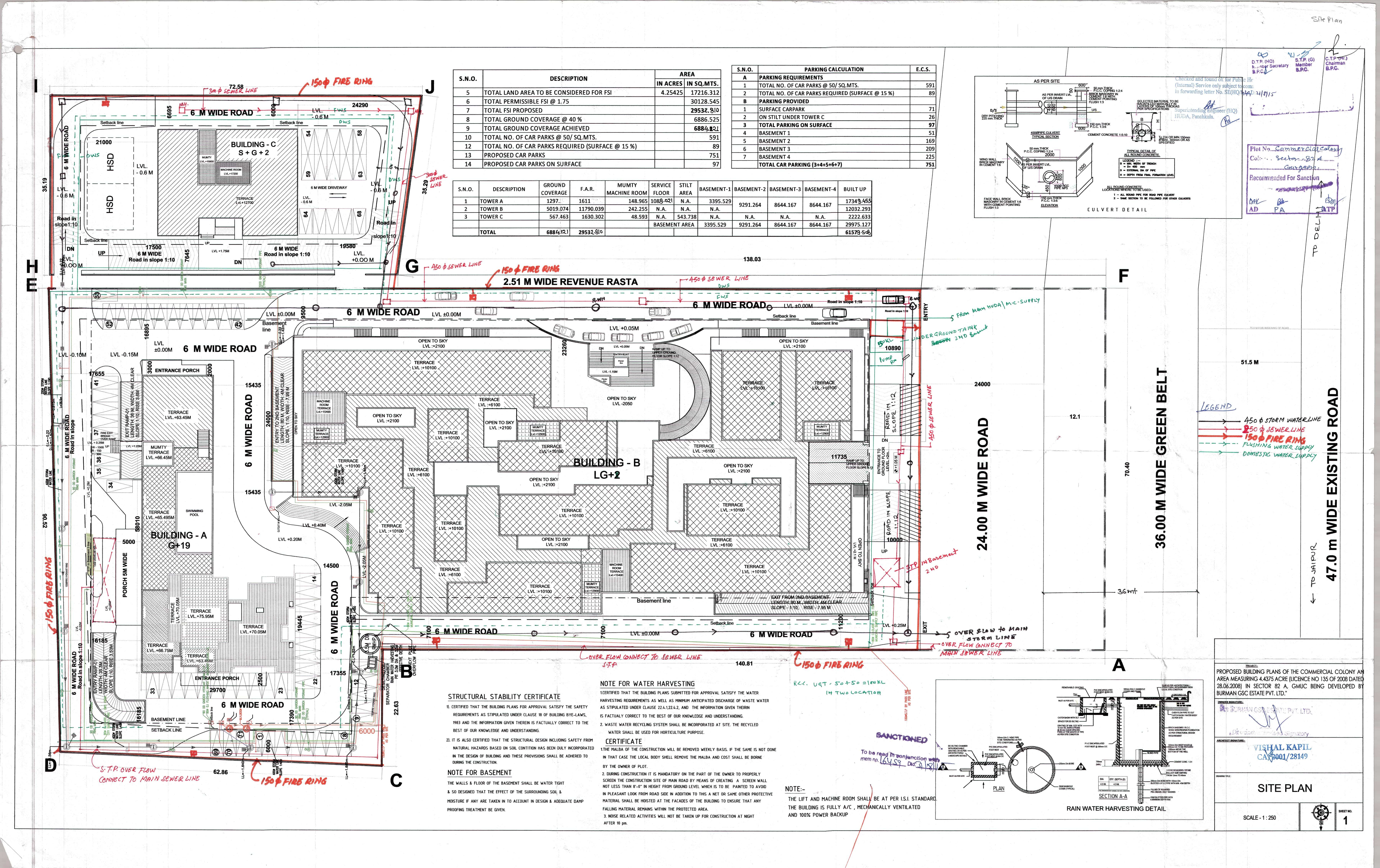
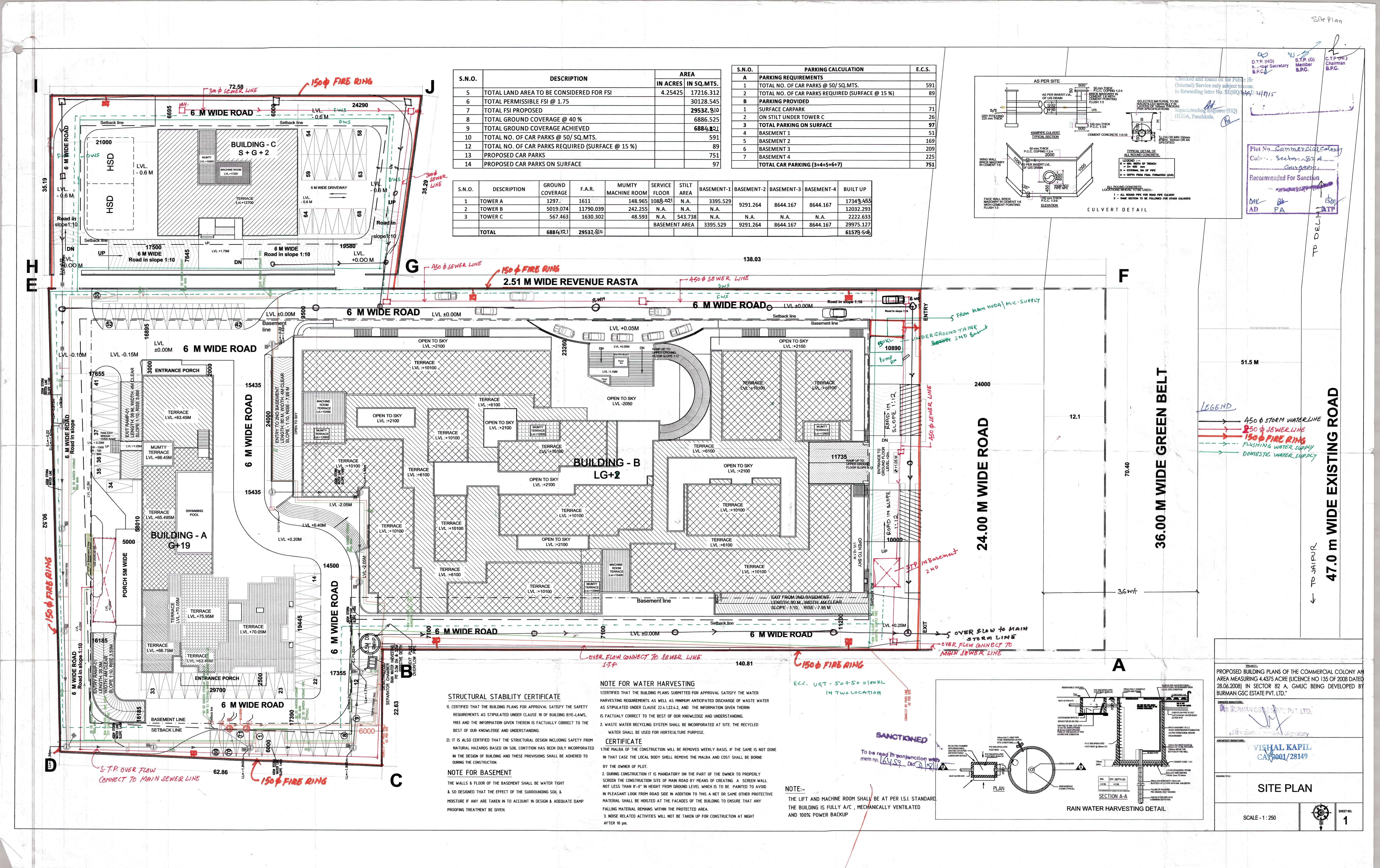
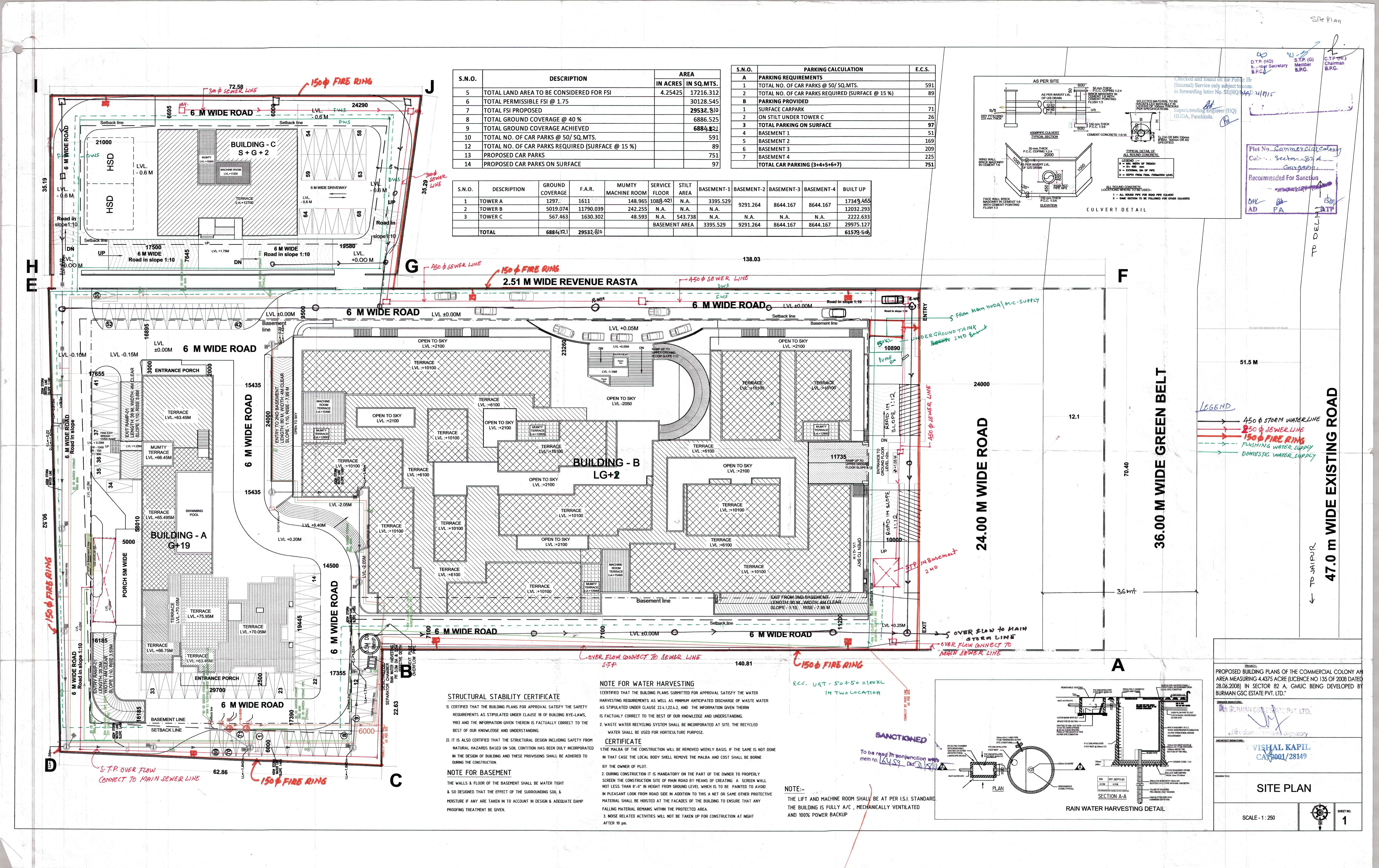
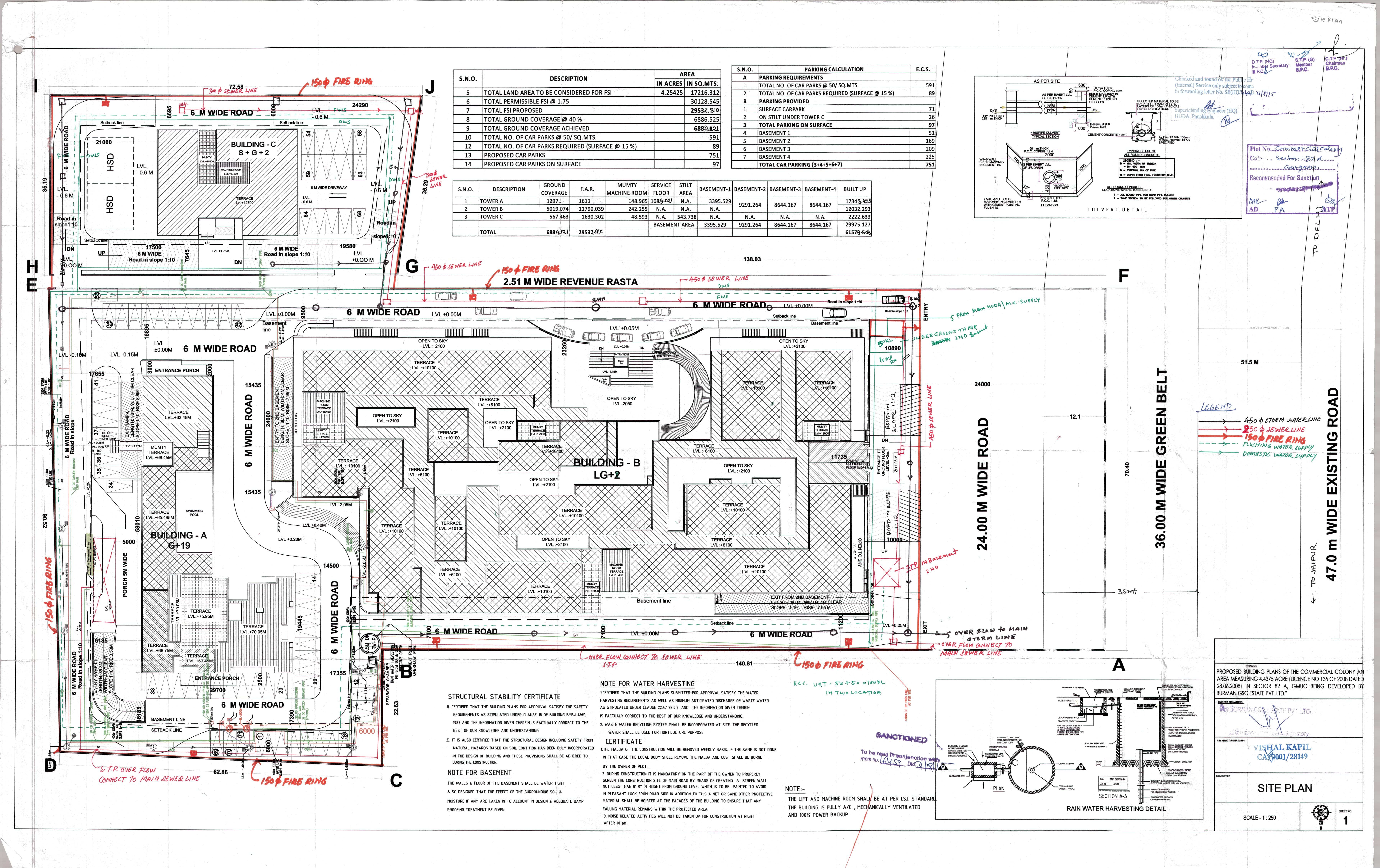
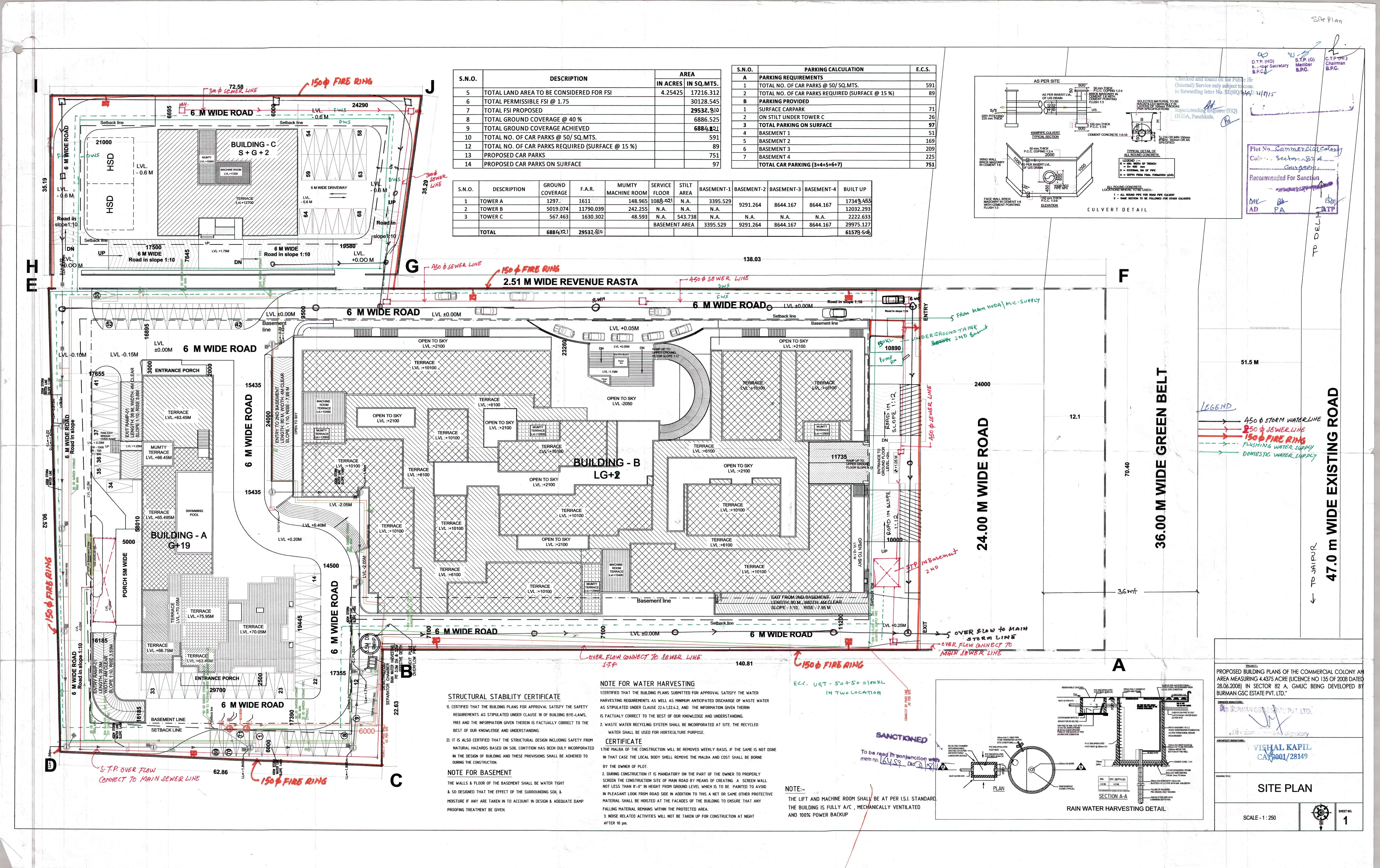
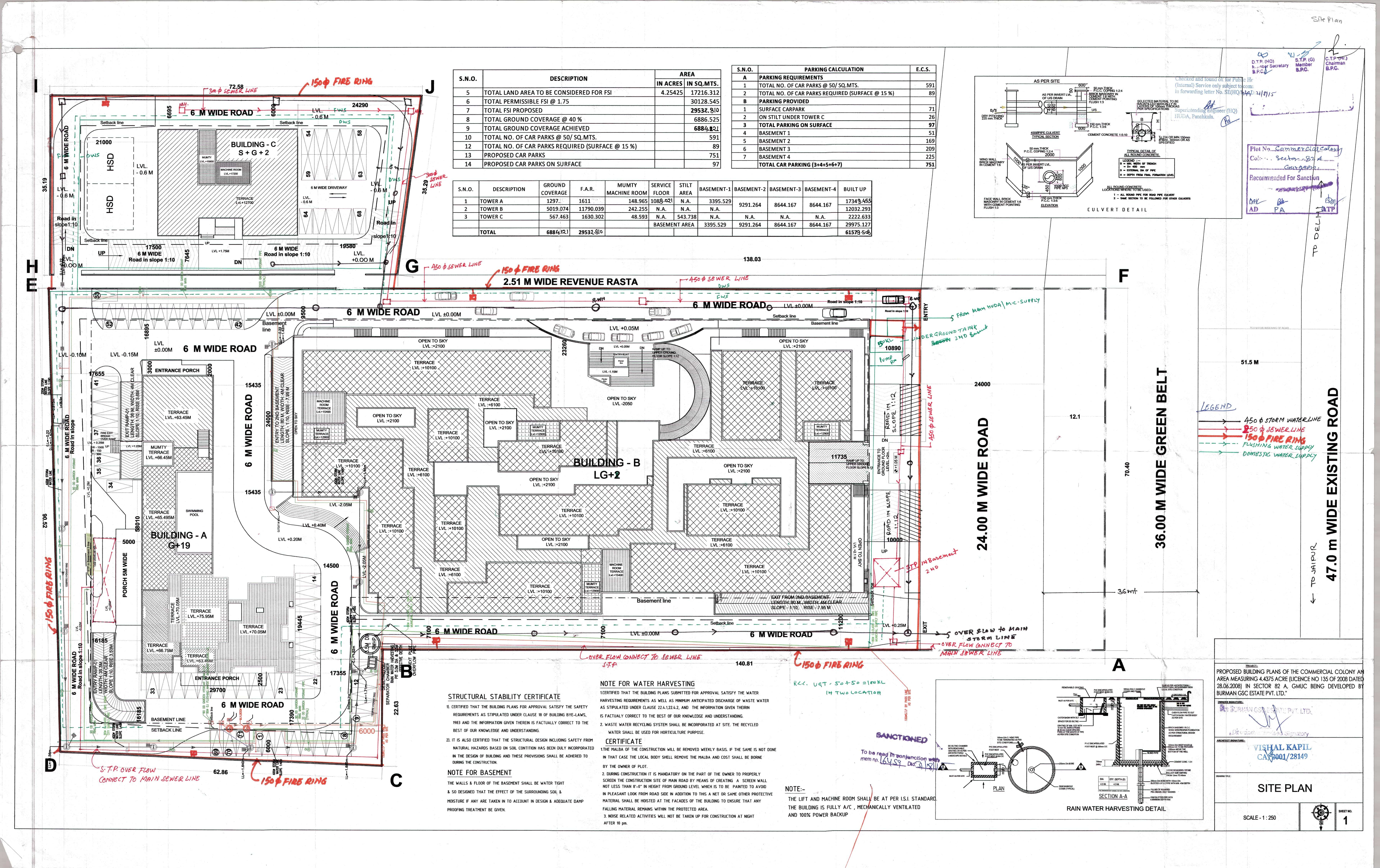
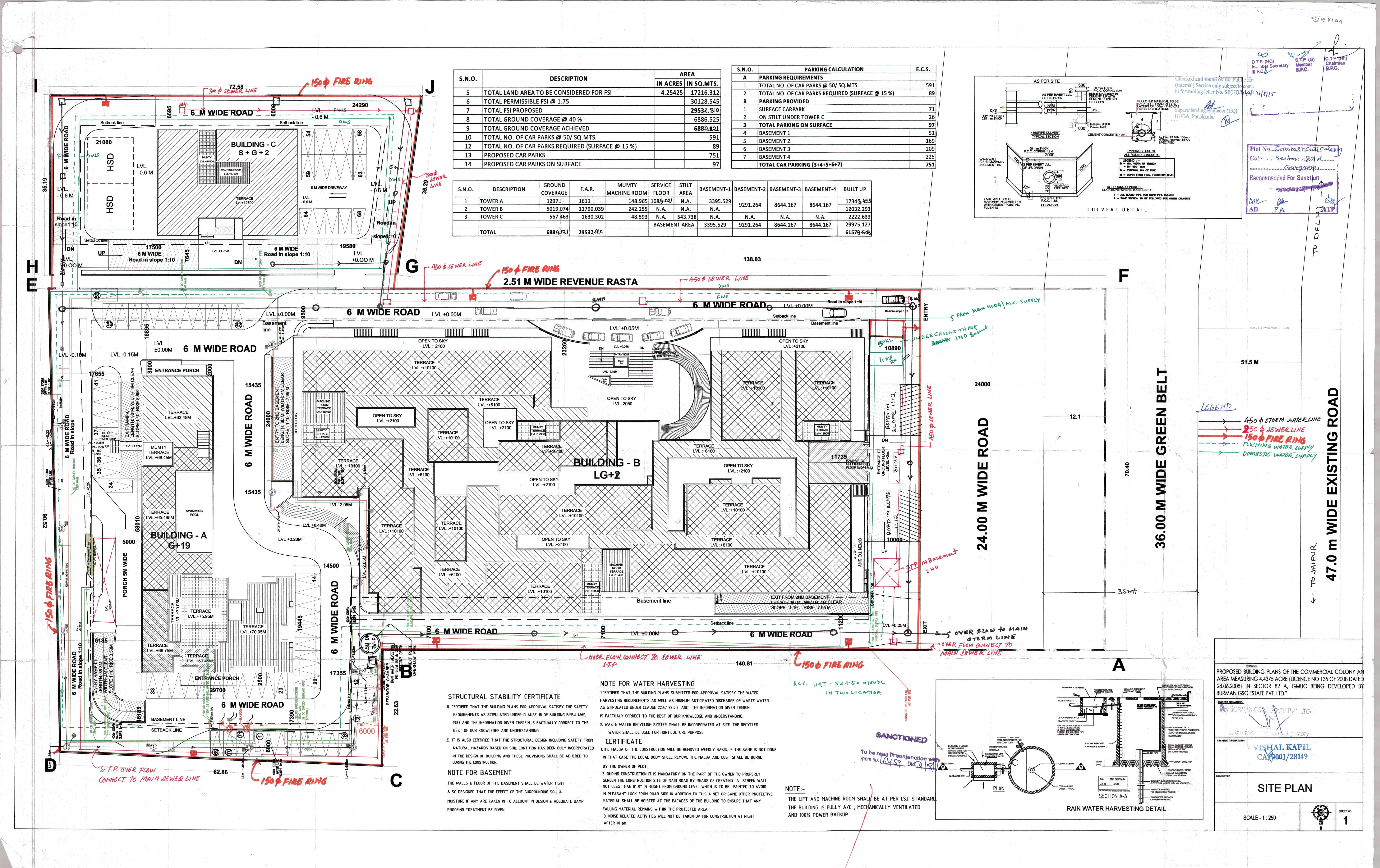
14IN CASE OF PLOTTED COLONY, THE LATEST LAYOUT PLAN03-12-2019 View Document
15ENVIRONMENT CLEARANCE CERTIFICATE03-12-2019 View Document
16BALANCE SHEET 2015-1603-12-2019 View Document
17FIRE FIGHTING APPROVAL03-12-2019 View Document
18AGREEMENT OF SALES BBA03-12-2019 View Document
19ZONING PLAN03-12-2019 View Document
20CASH FLOW STATEMENT OF THE PROPOSED PROJECT03-12-2019 View Document
21SERVICE PLANS SHOWING THE SERVICES ON THE LAYOUT PLAN03-12-2019 View Document
22A COMPLETE SET OF THE LAST APPROVED BUILDING PLANS03-12-2019 View Document
23DOCUMENTS RELATING TO THE ENTRY OF LICENSE AND COLLABORATION AGREEMENT IN THE REVENUE RECORD03-12-2019 View Document
24DEMARCATION PLAN03-12-2019 View Document
25DECLARATION SUPPORTED BY AFFIDAVIT DULY SIGNED BY THE PROMOTER TO BE ENCLOSED.03-12-2019 View Document
26CERTIFICATE FROM A CHARTERED ACCOUNTANT CERTIFYING THAT THE INFORMSTION PROVIDED BY THE APPLICANT IN FORM REP-1-C-X IS CORRECT AS PER THE BOOKS OF ACCOUNTS/ BALANCE SHEET OF THE APPLICANT03-12-2019 View Document
27IN CASE OF GROUP HOUSING/ COMMERCIAL SITES, A COPY OF THE APPROVED SITE PLAN03-12-2019 View Document
28APPLICATION FORM03-12-2019 View Document
29ELECTRICITY LOAD03-12-2019 View Document
30EXCAVATION APPROVAL03-12-2019 View Document
31HEIGHT CLEARENCE03-12-2019 View Document
32BALANCE SHEET 2016-1703-12-2019 View Document
33BALANCE SHEET 2017-1803-12-2019 View Document