HRERA PanchkulaTemp Project Id : RERA-PKL-PROJ-749-2019
Submission Date : 25-10-2019 03:36:08 AM
Applicant Type : Company
Project Type: ONGOING




RAHEJA DEVELOPERS LIMITED
W4D, 204/5, KESHAV KUNJ, WESTERN AVENUE, CARIAPPA MARG, SAINIK FARMS, NEW DELHI
01140611111
9971091904 (Number Shared by Promoter in Public)
compliances@raheja.com
http://raheja.com
XXXX468E
U45400DL1990PLC042200
 
 


 
 


 
 


 
 







AKASHA TOWER
SECTOR 2A, DHARUHERA, REWARI, HARYANA
DHARUHERA ST
REWARI
01140611111
9971091904 (Number Shared by Promoter in Public)
compliances@raheja.com
AJAY MOHANTI
01140611111
9971091904 (Number Shared by Promoter in Public)
compliances@raheja.com








As per sub-rule(2) of rule 3 of the Haryana Real Estate (Regulation and Development) Rules,2017, the fee for registration of the project as has been calculated as follows:
-----------------------------------------------------------------------------------------------------------------------
-----------------------------------------------------------------------------------------------------------------------
-----------------------------------------------------------------------------------------------------------------------
-----------------------------------------------------------------------------------------------------------------------
2. The aforesaid fees is hereby deposited vide following Drafts/ Banker’s Cheques:-

Sr No.Draft/Cheque No.Draft DateAmountPayee BankPayable To
14969718-07-2017237000BANK OF BARODAHRERA Panchkula
24969619-07-2017900000BANK OF BARODAHRERA Panchkula







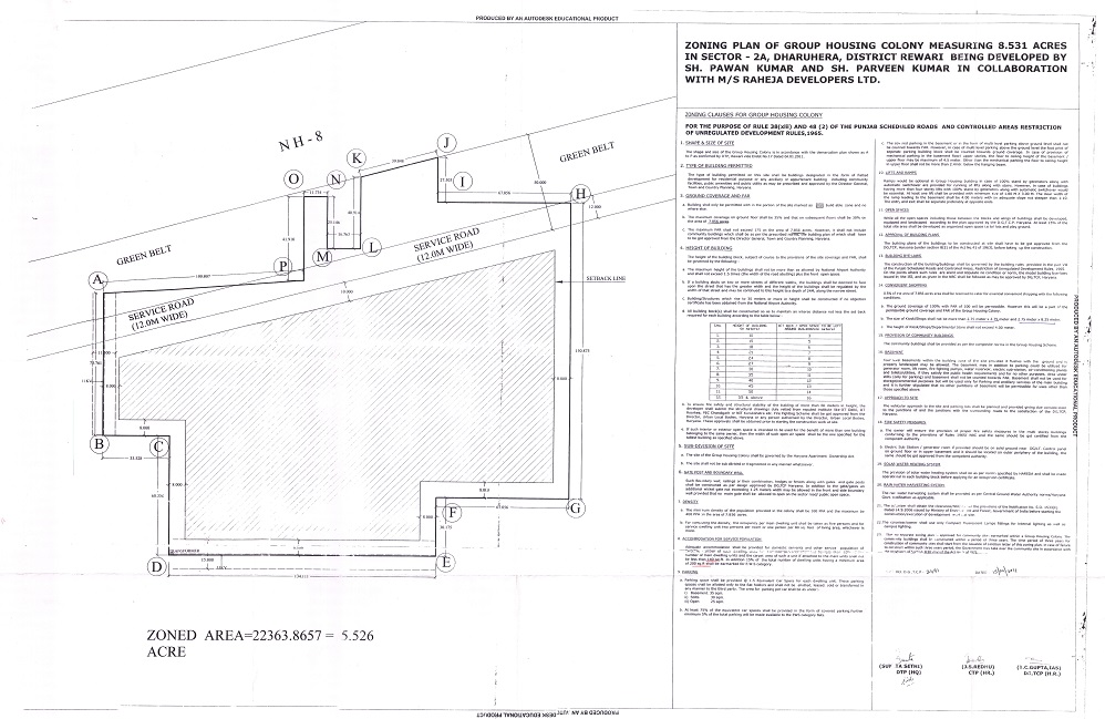
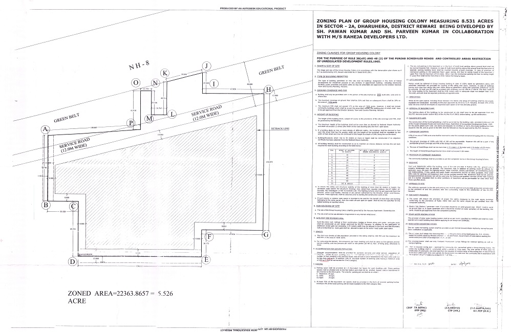
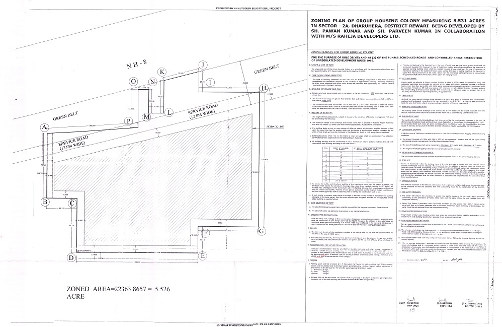
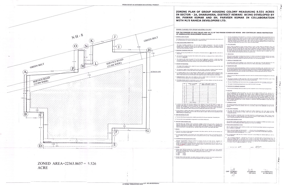
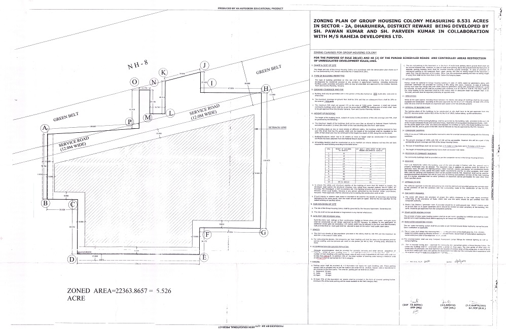
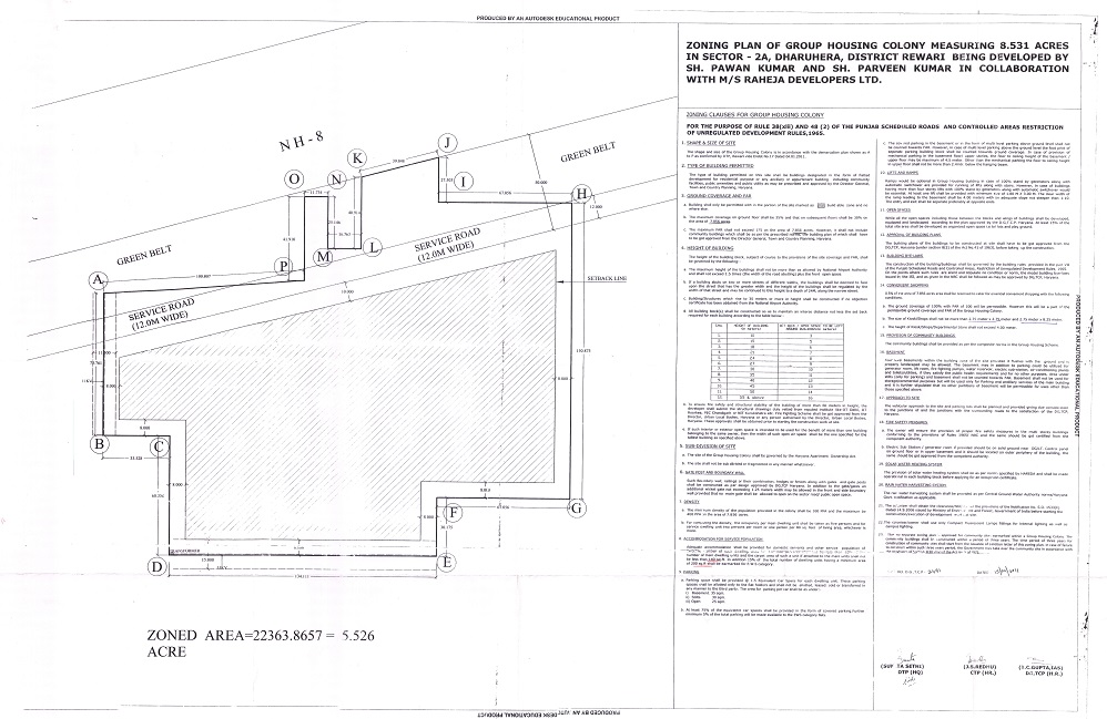
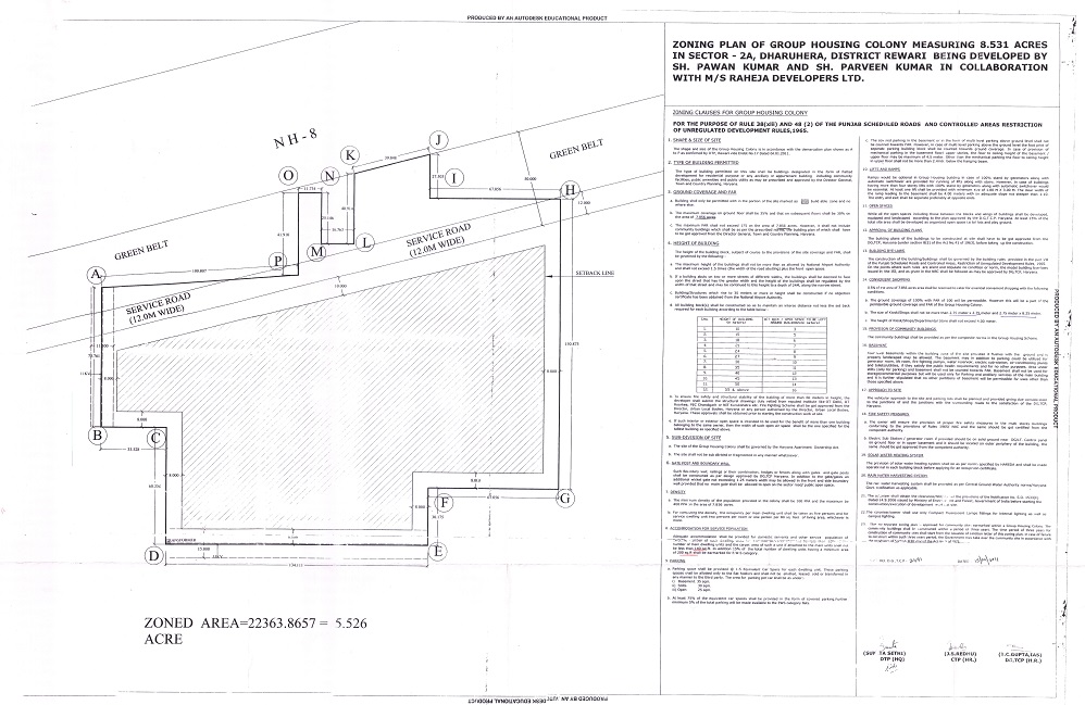
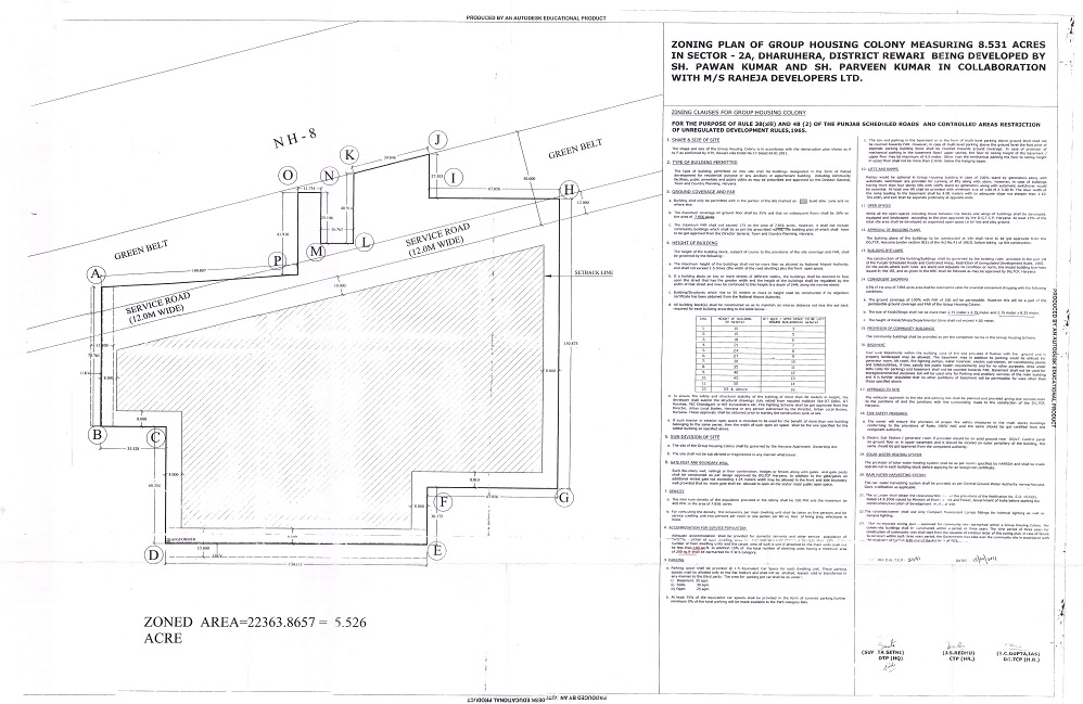
8.531 (Acre)
13.74
9.35
8.531 (Acre)
27 of 2011
Yes







23001 Lakhs
4025 Lakhs
16248 Lakhs
13265 Lakhs
5664 Lakhs




Sr. No.Land area under usageArea of land (Square Meters)
1PLOTS TO BE SOLD 0
2LAND AREA TO BE USED FOR CONSTRUCTION OF APARTMENTS 1174.94
3CONSTRUCTION OF ROADS 1673
4PAVEMENTS 1650
5PARKS AND PLAYGROUNDS 7408
6GREEN BELTS 2837
7VEHICLE PARKINGS 734
8ELECTRICITY SUB-STATION 0
9CLUB HOUSE 215
10SEWAGE AND SOLID WASTE TREATMENT FACILITY 0
11AREA TO BE LEFT FOR TRANSFERRING TO THE GOVERNMENT FOR COMMUNITY SERVICES 0
12ANY OTHER 0
Total15691.94




FacilityExternal/ connecting service to be provided by (Name the agency)Whether Approval taken from the agency concerned. Yes/No (Annex details in folder C)
ROADSHUDA/GMDAYes
WATER SUPPLYGMDAYes
ELECTRICITYDHBVNYes
SEWAGE DISPOSALGMDAYes
STORM WATER DRAINAGEGMDAYes




Sr. No.Name of the facilityEstimated cost (In Lakhs)(Within the project area only)Remarks: Yet to be prepared / Submitted to HUDA, Town & Country Planning Department/ as per project report etc. (Annex relevant documents showing costing details etc. in folder C)
1INTERNAL ROADS AND PAVEMENTS179.7YET TO BE PREPARED
2WATER SUPPLY SYSTEM201YET TO BE PREPARED
3STORM WATER DRAINAGE69YET TO BE PREPARED
4ELECTRICITY SUPPLY SYSTEM355YET TO BE PREPARED
5SEWAGE TREATMENT & GARBAGE DISPOSAL113.87YET TO BE PREPARED
6STREET LIGHTING12.28YET TO BE PREPARED
7SECURITY AND FIRE FIGHTING33.3YET TO BE PREPARED
8PLAYGROUNDS AND PARKS43.47YET TO BE PREPARED
9CLUB HOUSE/COMMUNITY CENTRE138.82YET TO BE PREPARED
10SHOPPING AREA44.80YET TO BE PREPARED
11RENEWABLE ENERGY SYSTEM0YET TO BE PREPARED
12SCHOOL262.50YET TO BE PREPARED
13HOSPITAL/DISPENSARY0YET TO BE PREPARED
14ANY OTHER682.48YET TO BE PREPARED


19-08-2011 (date)
19-08-2011 (date)


Sr. No.Plot/ apartment type Size of the plot/carpet area of the apartments Total number of plots/apartments in the project Total size of the plots/carpet area of the apartments Plots/apartments booked/ sold upto the date of application Yet to be sold/ booked No. of towers to be/ being constructed for booked apartments
1 APARTMENT/SHOPS/OTHER BUILDINGS Type TYPE 1 (1A-GR.FLR) 38.935 2 77.87 0 2 1
2 APARTMENT/SHOPS/OTHER BUILDINGS Type TYPE 2 (1B-GR.FLR) 41.763 2 83.526 0 2 0
3 APARTMENT/SHOPS/OTHER BUILDINGS Type TYPE 3 (1C-GR.FLR) 48.486 2 96.972 2 0 0
4 APARTMENT/SHOPS/OTHER BUILDINGS Type TYPE 1 (1A) 38.935 38 1479.53 21 15 0
5 APARTMENT/SHOPS/OTHER BUILDINGS Type TYPE 2 (1B) 41.763 46 1921.098 34 14 0
6 APARTMENT/SHOPS/OTHER BUILDINGS Type TYPE 3 (1C) 48.486 66 3200.076 8 58 0
7 APARTMENT/SHOPS/OTHER BUILDINGS Type TYPE 4 (1D) 57.076 16 913.216 3 13 0
8 APARTMENT/SHOPS/OTHER BUILDINGS Type TYPE 5 (1AA) 38.449 2 76.898 0 2 0
9 APARTMENT/SHOPS/OTHER BUILDINGS Type TYPE 6 (1DD) 49.186 6 295.116 4 2 0
10 APARTMENT/SHOPS/OTHER BUILDINGS Type TYPE 7 (1G) 44.788 8 358.304 0 8 0
11 APARTMENT/SHOPS/OTHER BUILDINGS Type TYPE 8 (1) 40.78 1 40.78 1 0 0
12 APARTMENT/SHOPS/OTHER BUILDINGS Type TYPE 9 (1) 43.44 3 130.32 2 1 0
13 APARTMENT/SHOPS/OTHER BUILDINGS Type TYPE 8 (1BB-WITH TERRACE) 48.317 2 96.634 0 2 0
14 APARTMENT/SHOPS/OTHER BUILDINGS Type TYPE 8 (1BB-WITH BALCONY) 48.317 8 386.536 0 8 0
15 APARTMENT/SHOPS/OTHER BUILDINGS Type TYPE 9 (1F-WITH TERRACE) 46.487 2 92.974 0 2 0
16 APARTMENT/SHOPS/OTHER BUILDINGS Type TYPE 9 (1F-WITH BALCONY) 46.353 4 185.412 0 4 0
17 APARTMENT/SHOPS/OTHER BUILDINGS Type TYPE 1 (2A-GR.FLR) 62.316 2 124.632 1 1 0
18 APARTMENT/SHOPS/OTHER BUILDINGS Type TYPE 1 (2A) 62.316 50 3115.8 25 25 0
19 APARTMENT/SHOPS/OTHER BUILDINGS Type TYPE 2 (2B-WITH TERRACE) 80.564 2 161.128 0 2 0
20 APARTMENT/SHOPS/OTHER BUILDINGS Type TYPE 2 (2B-WITH BALCONY) 80.564 2 161.128 0 2 0
21 APARTMENT/SHOPS/OTHER BUILDINGS Type TYPE 3 (2D-WITH TERRACE) 78.650 2 157.3 2 0 0
22 APARTMENT/SHOPS/OTHER BUILDINGS Type TYPE 3 (2D-WITH BALCONY) 78.650 66 5190.9 1 65 0
23 APARTMENT/SHOPS/OTHER BUILDINGS Type TYPE 4 (2E-WITH TERRACE) 80.521 2 161.042 0 2 0
24 APARTMENT/SHOPS/OTHER BUILDINGS Type TYPE 5 (2EE-WITH BALCONY) 73.628 16 1178.048 3 13 0
25 APARTMENT/SHOPS/OTHER BUILDINGS Type TYPE 6 (2F) 73.417 2 146.834 0 2 0
26 APARTMENT/SHOPS/OTHER BUILDINGS Type TYPE 7 (2FF) 86.351 6 518.106 1 5 0
27 APARTMENT/SHOPS/OTHER BUILDINGS Type TYPE 8 (2G-WITH TERRACE) 71.331 2 142.662 0 2 0
28 APARTMENT/SHOPS/OTHER BUILDINGS Type TYPE 8 (2G-WITH BALCONY) 71.331 6 427.986 0 6 0
29 APARTMENT/SHOPS/OTHER BUILDINGS Type TYPE 9 (2AA-WITH TERRACE) 68.843 2 137.686 0 2 0
30 APARTMENT/SHOPS/OTHER BUILDINGS Type TYPE 9 (2AA-WITH BALCONY) 68.843 8 550.744 0 8 0
31 APARTMENT/SHOPS/OTHER BUILDINGS Type TYPE 10 (2I-WITH TERRACE) 75.103 2 150.206 0 2 0
32 APARTMENT/SHOPS/OTHER BUILDINGS Type TYPE 10 (2I-WITH BALCONY) 74.969 4 299.876 0 4 0
33 APARTMENT/SHOPS/OTHER BUILDINGS Type TYPE 1 (3A-GR.FLR) 92.973 2 185.946 0 2 0
34 APARTMENT/SHOPS/OTHER BUILDINGS Type TYPE 1 (3A) 92.973 4 371.892 1 3 0
35 APARTMENT/SHOPS/OTHER BUILDINGS Type TYPE 2 (3B) 96.421 4 385.684 0 4 0
36 APARTMENT/SHOPS/OTHER BUILDINGS Type TYPE 3 (3C-WITH TERRACE) 97.152 2 194.304 0 2 0
37 APARTMENT/SHOPS/OTHER BUILDINGS Type TYPE 3 (3C-WITH BALCONY) 97.152 2 194.304 0 2 0
38 APARTMENT/SHOPS/OTHER BUILDINGS Type TYPE 4 (3D) 101.293 2 202.586 2 0 0
39 APARTMENT/SHOPS/OTHER BUILDINGS Type TYPE 5 (3E) 118.265 2 236.53 0 2 0
40 APARTMENT/SHOPS/OTHER BUILDINGS Type TYPE 6 (3F) 101.553 2 203.106 0 2 0
41 APARTMENT/SHOPS/OTHER BUILDINGS Type TYPE 7 (3G-WITH TERRACE)) 104.093 2 208.186 0 2 0
42 APARTMENT/SHOPS/OTHER BUILDINGS Type TYPE 7 (3G-WITH BALCONY) 104.093 6 624.558 0 6 0
43 APARTMENT/SHOPS/OTHER BUILDINGS Type TYPE 1 (4A-GR.FLR) 109.543 2 219.086 2 0 0
44 APARTMENT/SHOPS/OTHER BUILDINGS Type TYPE 1 (4A) 109.543 4 438.172 1 3 0
Total41625523.6941143021






TypeNumber of apartments booked/ sold Write or Annex the stage of construction of the booked/ sold apartments in folder C
00


19-08-2011
28-11-2017
30-06-2020
30-08-2012
5
30-06-2020


PlotsBooked/soldStage of handing over the possession (Write or Annex details)
PLOT00
30-08-2012
5
30-06-2020


0
0
574
160
0





Expenditure incurred till the date of application (In Lakhs)

ParticularsExpenditure
Apartments12443
Shops0
Plots0

Expenditure to be made in each quarter (In Lakhs)

ParticularsExpenditure to be made in each quarter ()
Apr-JuneJuly-SepOct-DecJan-Mar




Expenditure incurred till the date of application (In Lakhs)

ParticularsExpenditure
Roads & Pavements0
Water Supply System0
Sewerage treatment & garbage disposal0
Electricity Supply System0
Storm Water Drainage0
Parks and Playgrounds0
Clubhouse/community centres0
Shopping area0
Other0

Expenditure to be made in each quarter (In Lakhs)

ParticularsExpenditure to be made in each quarter ()
Apr-JuneJuly-SepOct-DecJan-Mar












Particulars Remarks, if any
i. No. of Flats/Apartments constructed144
ii. No. of Flats/ Apartments booked114
iii. Total amount sale value of booked Flats, on the date of application/end of last quarter5840 Lakhs
iv. Total amount received from the allottees (booked Flats), on the date of application/end of last quarter2918 Lakhs
v. Balance amount to be received from the allottees (booked Flats, after completion), on the date of application/end of last quarter2922 Lakhs
vi. Balance amount due and recoverable from the allottees (booked Flats) as on the date of application /end of last quarter2489 Lakhs
vii. Amount invested in the project upto the date of application12443 Lakhs
Land cost (If any)3895 Lakhs
Apartments4525 Lakhs
Infrastructure0 Lakhs
EDC/ Taxes Etc.4023 Lakhs
viii. Balance cost to be incurred for completion of the project and delivery of possession10558 Lakhs
(a) In respect of existing allottees0 Lakhs
(b) In respect of rest of the project0 Lakhs
ix. The amount of loan raised from the banks/ financial institutions/ private persons against the project
Annex detail of the securities furnished to the banks/ financial institutions against the aforesaid loans in folder C
5500 Lakhs
x. Total liabilities against the project up-to-date. (Annex details in folder C) 3850 Lakhs



Particulars Estimated expenditure planned to be incurred as per service plan estimates or the project report. (In Lakhs)Actual expenditure incurred upto the date of application. (In Lakhs)
I. INTERNAL ROADS AND PAVEMENTS179.7023
II. WATER SUPPLY SYSTEM2010
III. STORM WATER DRAINAGE690
IV. ELECTRICITY SUPPLY SYSTEM35525.50
V. SEWAGE TREATMENT & GARBAGE DISPOSAL113.870
VI. CLUB HOUSE/COMMUNITY CENTRE138.820
VII. SCHOOL262.5065.63
VIII. ANY OTHER682.4834.12
IX. SOLID WASTE COLLECTION & MGMT SYSTEM80
X. CLUBHOUSE138.820
XI. NEIGHBOURHOOD SHOPPING00
XII. GREEN AREAS,PARKS,PLAYGROUNDS ETC.43.470
XIII. COVERED PARKING297.51267.76
XIV. OPEN PARKING33.1716.59
XV. GARAGES00
XVI. SECURITY SYSTEM150
XVII. OTHER FACILITIES AS PER PROJECT REPORT00









Yes
Yes
PUNJAB NATIONAL BANK, KHANPUR, NEW DELHI
1514002100035794
PUNB0151400
110024056
1514
Navin M Raheja, W4D, 204/5, Keshav Kunj, Cariappa Marg, Western Avenue, Sainik Farms, New Delhi- 110062
Yes











Yes
No
Yes
Yes
Yes
Yes
No
Yes
No
No


Yes
Yes
Yes
Yes
Yes
Yes
Yes
Yes
Statutory Approvals Statutory Approvals StatusDate
I. LICENSE NO. 27 OF 2011 ALREADY BEEN OBTAINED24-03-2011
II. ENVIRONMENTAL CLEARANCEALREADY BEEN OBTAINED30-08-2012
III. REVALIDATED HEIGHT CLEARANCE AAIALREADY BEEN OBTAINED16-03-2016
IV. CONSENT TO ESTABLISH EXTENDEDALREADY BEEN OBTAINED01-03-2016








Yes


Yes









RAHEJA ARANYA PHASE-II, SECTOR 11 & 14, SOHNA, MEWAT, GURUGRAM, HARYANA
45.803
0
402
0
164
Initially estimated cost (In Lakhs)Revised cost (In Lakhs)Expenditure incurred upto the date of application (In Lakhs)
Total cost of the project
(Other than cost of land)
236282362813038
Cost of the apartments000
Cost of the infrastructure000
Others costs000


11460 Lakhs
1385 Lakhs
9000 Lakhs
9000 Lakhs
Yes
01-10-2016
27-08-2022




KRISHNA HOUSING SCHEME, SECTOR 14, SOHNA, GURUGRAM, HARYANA
10
1644
0
1509
0
Initially estimated cost (In Lakhs)Revised cost (In Lakhs)Expenditure incurred upto the date of application (In Lakhs)
Total cost of the project
(Other than cost of land)
21189211898935
Cost of the apartments000
Cost of the infrastructure000
Others costs000


15932 Lakhs
3679 Lakhs
5500 Lakhs
3300 Lakhs
Yes
31-07-2019
09-03-2020




TRINITY-I, SECTOR-84, GURUGRAM, HARYANA
2.281
245
0
116
0
Initially estimated cost (In Lakhs)Revised cost (In Lakhs)Expenditure incurred upto the date of application (In Lakhs)
Total cost of the project
(Other than cost of land)
803080301840
Cost of the apartments000
Cost of the infrastructure000
Others costs000


2644 Lakhs
182 Lakhs
6800 Lakhs
6800 Lakhs
Yes
19-06-2019
31-12-2022




MAHESHWARA (TOWER A,B,C,D,E) SECTOR 11& 14, SOHNA, GURUGRAM, HARYANA
3.753
276
0
112
0
Initially estimated cost (In Lakhs)Revised cost (In Lakhs)Expenditure incurred upto the date of application (In Lakhs)
Total cost of the project
(Other than cost of land)
275602756010659
Cost of the apartments000
Cost of the infrastructure000
Others costs000


1774 Lakhs
660 Lakhs
10000 Lakhs
4600 Lakhs
Yes
14-06-2021
03-04-2023




VANYA, TOWER-A, GULMOHAR, SECTOR-99A, GURUGRAM, HARYANA
2.28
140
0
92
0
Initially estimated cost (In Lakhs)Revised cost (In Lakhs)Expenditure incurred upto the date of application (In Lakhs)
Total cost of the project
(Other than cost of land)
857685762210
Cost of the apartments000
Cost of the infrastructure000
Others costs000


1749 Lakhs
405 Lakhs
12000 Lakhs
6150 Lakhs
No
29-11-2022
31-12-2022




VANYA TOWER B, AMALTAS TOWER, SECTOR 99A, GURUGRAM, HARYANA
2.21
139
0
92
0
Initially estimated cost (In Lakhs)Revised cost (In Lakhs)Expenditure incurred upto the date of application (In Lakhs)
Total cost of the project
(Other than cost of land)
832283222145
Cost of the apartments000
Cost of the infrastructure000
Others costs000


645 Lakhs
102 Lakhs
12000 Lakhs
6150 Lakhs
Yes
08-12-2022
31-12-2022




VANYA, TOWER C, PALASH TOWER, SECTOR 99A, GURUGRAM, HARYANA
2.28
140
0
80
0
Initially estimated cost (In Lakhs)Revised cost (In Lakhs)Expenditure incurred upto the date of application (In Lakhs)
Total cost of the project
(Other than cost of land)
857685761639
Cost of the apartments000
Cost of the infrastructure000
Others costs000


1466 Lakhs
411 Lakhs
12000 Lakhs
6150 Lakhs
No
08-12-2022
31-12-2022










SPECIFICATION OF CONSTRUCTION
Specification of apartments and other buildings including the following:
1FLOORING DETAILS OF VARIOUS PARTS OF HOUSEDRAWING, DINING, KITCHEN AREA- TILES UTILITY AREA- TILES BALCONY- TILES ALL BEDROOMS- LAMINATED WOODEN FLOORING STAIRCASE AND LIFT LOBBY- GRANITE MATER TOILET- TILE OTHER TOILETS- TILES UTILITY TOILET- TILES
2WALL FINISHING DETAILSALL BEDROOMS, DRAWING, DINING, KITCHEN- PAINT ALL TOILETS- TILES MATER TOILET- TILES
3KITCHEN DETAILSFLOORS COMBINATION OF ONE OR MORE OF DESIGNER TILES/GRANITE/MARBLE FITTINGS & FIXTURES MODULAR KITCHEN WITH GRANITE COUNTER, SS SINK AND CP FITTINGS WALLS 2‘HIGH VITRIFIED TILES ABOVE COUNTER AND OIL BOUND DISTEMPER ON REMAINING AREA CEILINGS OIL BOUND DISTEMPER
4BATHROOM FITTINGSFLOORS COMBINATION OF ONE OR MORE OF DESIGNER TILES / STONES FITTINGS & FIXTURES SINGLE LEVER CP FITTINGS, WALL HUNG WC, PROVISION FOR EXHAUST FAN, SHOWER PANELS IN ALL TOILETS (EXCEPT SERVANT TOILET AND POWDER ROOM) WALLS COMBINATION OF ONE OR MORE OF DESIGNER TILES
5WOOD WORK ETCNA
6DOORS AND WINDOS FRAMESNA
7GLASS WORKEXTERNAL DOORS & WINDOWS
8ELECTRIC FITTINGSMODULAR SWITCHES
9CONDUCTING AND WIRING DETAILSCOPPER ELECTRICAL WIRING THROUGHOUT IN CONCEALED CONDUIT WITH PROVISION FOR LIGHT POINTS, POWER POINTS, TV, LAN AND TELEPHONE SOCKETS.
10CUPBOARD DETAILSNA
11WATER STORAGEUGT & OHT
12LIFT DETAILSFLOORS COMBINATION OF ONE OR MORE OF GRANITE/MARBLE/TERRAZZO WALLS OIL BOUND DISTEMPER CEILINGS OIL BOUND DISTEMPER
13EXTERNAL GLAZINGSEXTERNAL DOORS/ WINDOWS
13.1WINDOWS/GLAZINGSUPVC / ALUMINIUM ANODIZED FRAMED WINDOWS
14DOORSNA
14.1MAIN DOORSDOOR FRAME WITH PANELED SHUTTERS
14.2INTERNAL DOORSDOOR FRAME WITH PANELED SHUTTERS
15AIR CONDITIONING1.5 TONNE SPLIT UNIT ACS IN EVERY BEDROOM AND 2 TONNE SPLIT UNIT AC IN LIVING/DINING ROOM
16ELECTRICAL FITTINGSCOPPER ELECTRICAL WIRING THROUGHOUT IN CONCEALED CONDUIT WITH PROVISION FOR LIGHT POINTS, POWER POINTS, TV, LAN AND TELEPHONE SOCKETS.
17CNG PIPE LINENA
18PROVISION OF WIFI AND BROADBAND FACILITYNA
19EXTERNAL FINISHING/COLOUR SCHEMEPAINT
20INTERNAL FINISHINGPAINT
SPECIFICATION UNIT WISE
1 . LIVING/DINING/FOYER/FAMILY LOUNGE
1 . 1 FLOORDESIGNER TILES/ MARBLE
1 . 2 WALLSPLASTIC EMULSION PAINT
1 . 3 CEILINGBOUND DISTEMPER WITH DESIGNER CORNICE
2 . MASTER BEDROOM/DRESSROOM
2 . 1 FLOORLAMINATED/WOODEN FLOOR
2 . 2 WALLSOIL BOUND DISTEMPER
2 . 3 CEILINGOIL BOUND DISTEMPER WITH DESIGNER ENGINEERED CORNICE
2 . 4 MODULAR WARDROBESNA
3 . MASTER TOILET
3 . 1 FLOORCOMBINATION OF ONE OR MORE OF DESIGNER TILES / STONES
3 . 2 WALLSCOMBINATION OF ONE OR MORE OF DESIGNER TILES
3 . 3 CEILINGOIL BOUND DISTEMPER
3 . 4 COUNTERSSTONE
3 . 5 SANITARY WARE/CP FITTINGSSINGLE LEVER CP FITTINGS
3 . 6 FITTING/FIXTURESWALL HUNG WC, PROVISION FOR EXHAUST FAN, SHOWER PANELS IN ALL TOILETS (EXCEPT SERVANT TOILET AND POWDER ROOM)
4 . BED ROOMS
4 . 1 FLOORLAMINATED/WOODEN FLOOR
4 . 2 WALLSOIL BOUND DISTEMPER
4 . 3 CEILINGOIL BOUND DISTEMPER WITH DESIGNER ENGINEERED CORNICE
4 . 4 WARDROBESNA
5 . TOILET
5 . 1 FLOORCOMBINATION OF ONE OR MORE OF DESIGNER TILES / STONES
5 . 2 WALLSCOMBINATION OF ONE OR MORE OF DESIGNER TILES
5 . 3 CEILINGOIL BOUND DISTEMPER
5 . 4 COUNTERSSTONE
5 . 5 SANITARY WARE/CP FITTINGSSINGLE LEVER CP FITTINGS
5 . 6 FIXTURESWALL HUNG WC, PROVISION FOR EXHAUST FAN, SHOWER PANELS IN ALL TOILETS (EXCEPT SERVANT TOILET AND POWDER ROOM)
6 . KITCHEN
6 . 1 FLOORCOMBINATION OF ONE OR MORE OF DESIGNER TILES/GRANITE/MARBLE
6 . 2 WALLS2‘HIGH VITRIFIED TILES ABOVE COUNTER AND OIL BOUND DISTEMPER ON REMAINING AREA
6 . 3 CEILINGOIL BOUND DISTEMPER
6 . 4 COUNTERSGRANITE COUNTER
6 . 5 FIXTURESMODULAR KITCHEN
6 . 6 KITCHEN APPLIANCESSS SINK AND CP FITTINGS
7 . UTILITY ROOMS/UTILITY BALCONY/TOILET
7 . 1 FLOORTILES
7 . 2 WALLS & CEILINGOIL BOUND DISTEMPER
7 . 3 TOILETWC, PROVISION FOR EXHAUST FAN
7 . 4 BALCONYFLOORS VITRIFIED/ CERAMIC TILES FITTINGS & FIXTURES BRICK JALI/MS RAILING, INTEGRATED CEILING LIGHTS WALLS WEATHER COAT EMULSION CEILINGS WEATHER COAT EMULSION/ OIL BOUND DISTEMPER
8 . SIT-OUTS
8 . 1 FLOORNA
8 . 2 WALLS & CEILINGNA
8 . 3 RAILINGSMS RAILING
8 . 4 FIXTURESNA












Sr. No.Document DescriptionDate of Document UploadView Document
1 COPY OF LICENSE ALONG WITH SCHEDULE OF LAND 25-10-2019 View Document
2 DEMARCATION PLAN 25-10-2019 View Document
3 DOCUMENTS RELATING TO THE ENTRY OF LICENSE AND COLLABORATION AGREEMENT IN THE REVENUE RECORD 25-10-2019 View Document
4 IN CASE OF PLOTTED COLONY, THE LATEST LAYOUT PLAN 25-10-2019 View Document
5 ZONING PLAN 25-10-2019 View Document
6 A COMPLETE SET OF THE LAST APPROVED BUILDING PLANS 25-10-2019 View Document
7 CASH FLOW STATEMENT OF THE PROPOSED PROJECT 25-10-2019 View Document
8 IN CASE OF GROUP HOUSING/ COMMERCIAL SITES, A COPY OF THE APPROVED SITE PLAN 25-10-2019 View Document
9 NON DEFAULT CERTIFICATE FROM A CHARTERED ACCOUNTANT 25-10-2019 View Document
10 SERVICE PLANS SHOWING THE SERVICES ON THE LAYOUT PLAN 25-10-2019 View Document
11 DECLARATION SUPPORTED BY AFFIDAVIT DULY SIGNED BY THE PROMOTER TO BE ENCLOSED. 25-10-2019 View Document
12 CERTIFICATE FROM A CHARTERED ACCOUNTANT CERTIFYING THAT THE INFORMSTION PROVIDED BY THE APPLICANT IN FORM REP-1-C-X IS CORRECT AS PER THE BOOKS OF ACCOUNTS/ BALANCE SHEET OF THE APPLICANT 25-10-2019 View Document












Sr. No.Document DescriptionDate of Document UploadView Document
1 suspened registration certificate 24-08-2022 View Document