HRERA PanchkulaTemp Project Id : RERA-PKL-PROJ-745-2019
Submission Date : 26-10-2019 04:06:17 AM
Applicant Type : Firm
Project Type: ONGOING


CROWN REALTECH PRIVATE. LTD.
12/4, DELHI-MATHURA ROAD, NEAR SARAI KHAWAJA, SECTOR-37, FARIDABAD
01294190700
9873172399 (Number Shared by Promoter in Public)
info@crowngroup.org
U27209DL1983PTC015878
AAACB1392B













CROWN BUSINESS PARK
12/4, DELHI-MATHURA ROAD, NEAR SARAI KHAWJA, SECTOR-37, FARIDABAD
FARIDABAD
FARIDABAD
01294190700
9540992810 (Number Shared by Promoter in Public)
info@crowngroup.org
VIKAS GANDHI
01294190700
9540992810 (Number Shared by Promoter in Public)
vikascrownitpark@gmail.com








As per sub-rule(2) of rule 3 of the Haryana Real Estate (Regulation and Development) Rules,2017, the fee for registration of the project as has been calculated as follows:
-----------------------------------------------------------------------------------------------------------------------
-----------------------------------------------------------------------------------------------------------------------
-----------------------------------------------------------------------------------------------------------------------
-----------------------------------------------------------------------------------------------------------------------
2. The aforesaid fees is hereby deposited vide following Drafts/ Banker’s Cheques:-

Sr No.Draft/Cheque No.Draft DateAmountPayee BankPayable To
1950131-07-20171168500HDFC BANKHRERA Panchkula







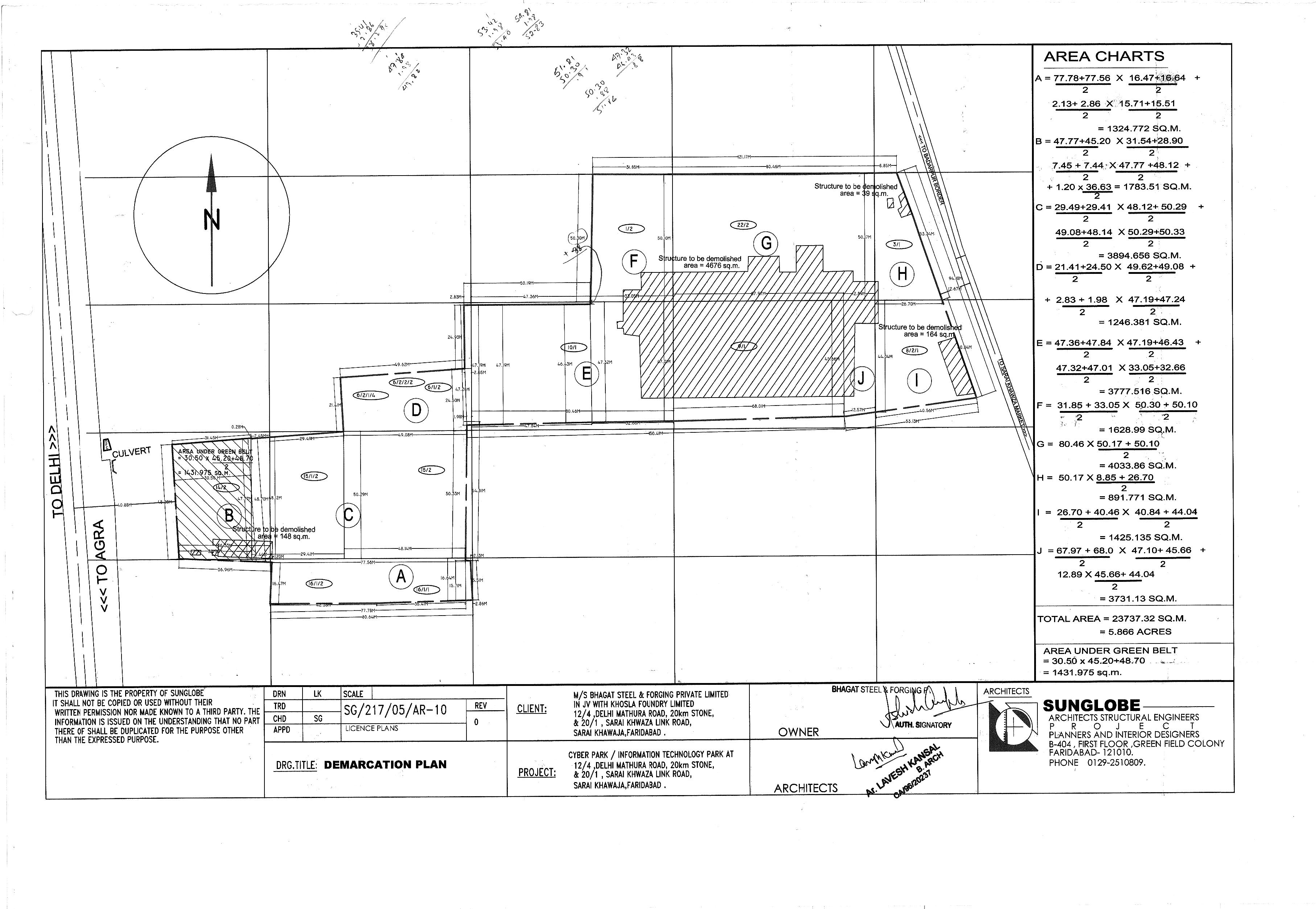
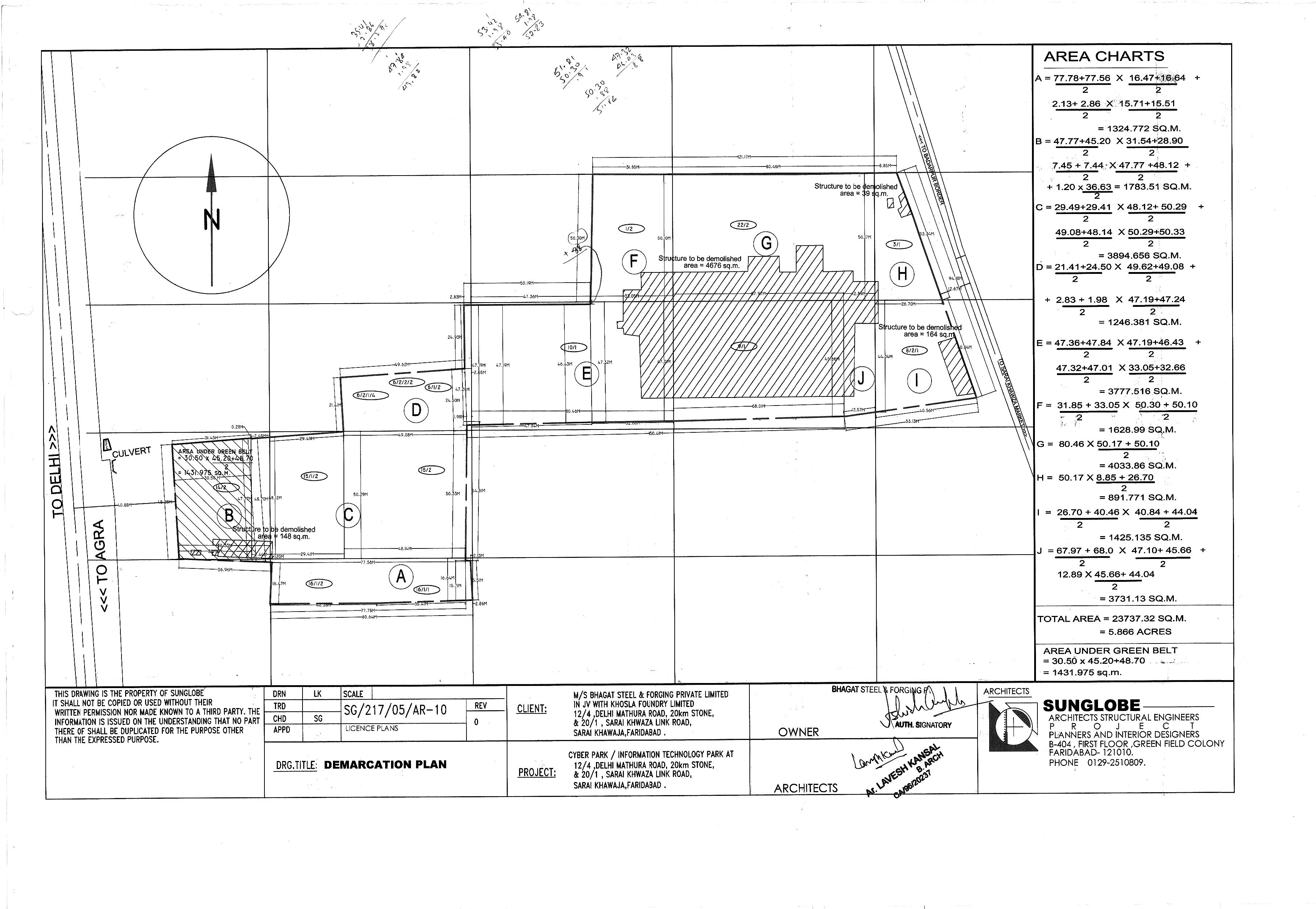
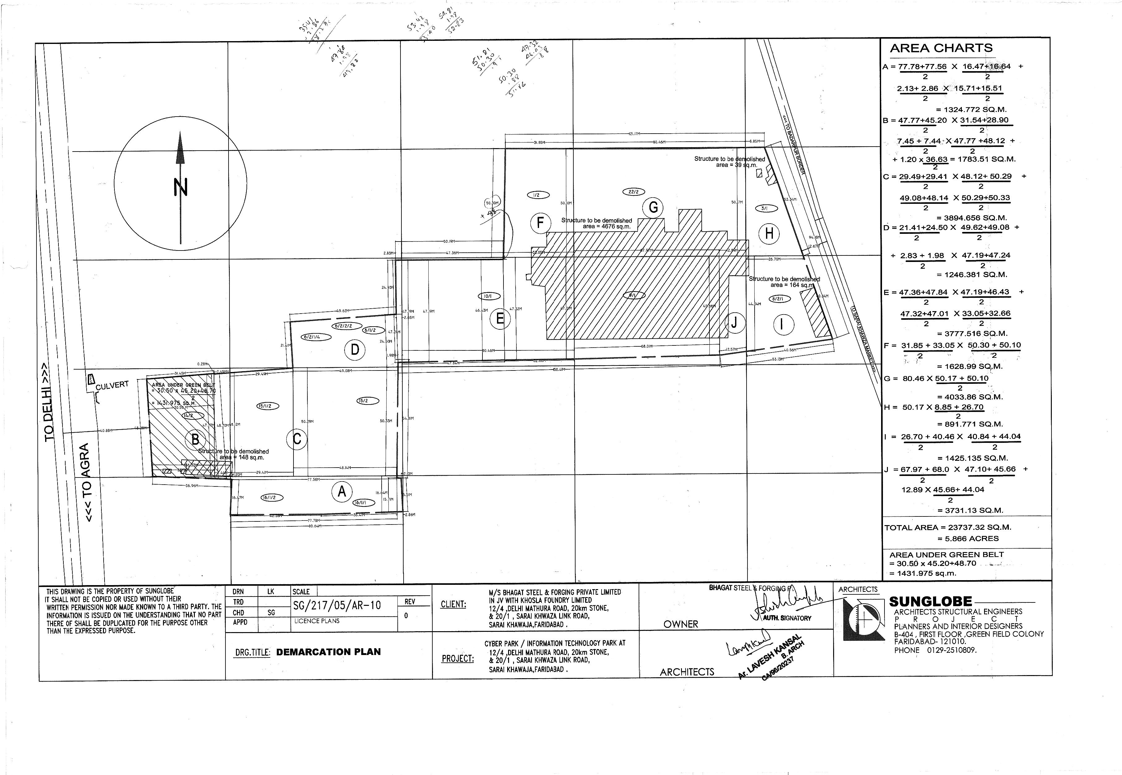
23746.95 (Sqr/mtrs)
250
250
23746.95 (Sqr/mtrs)
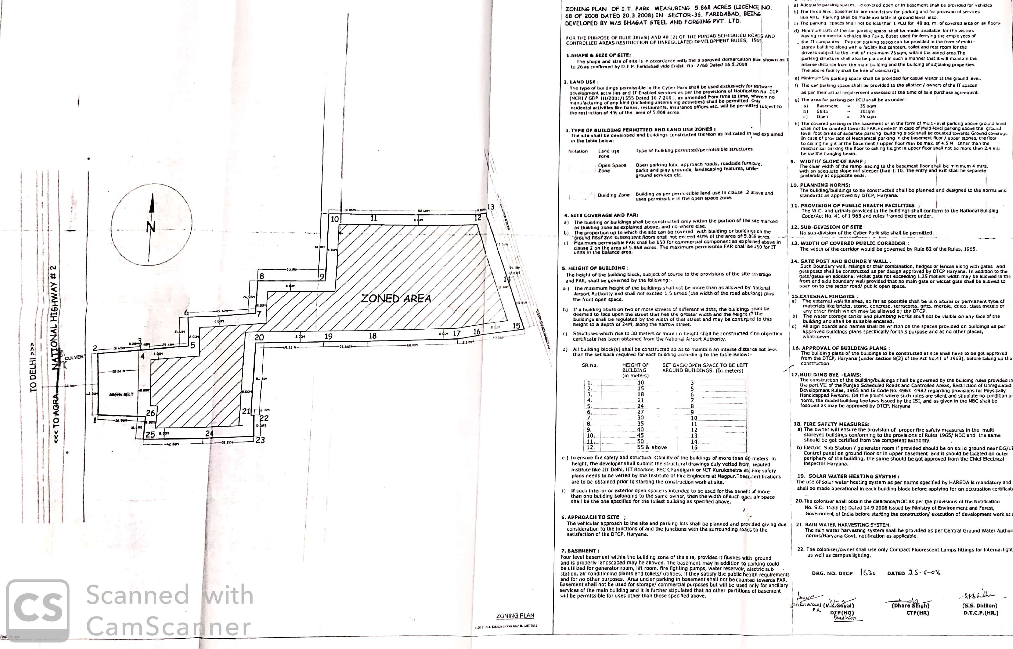
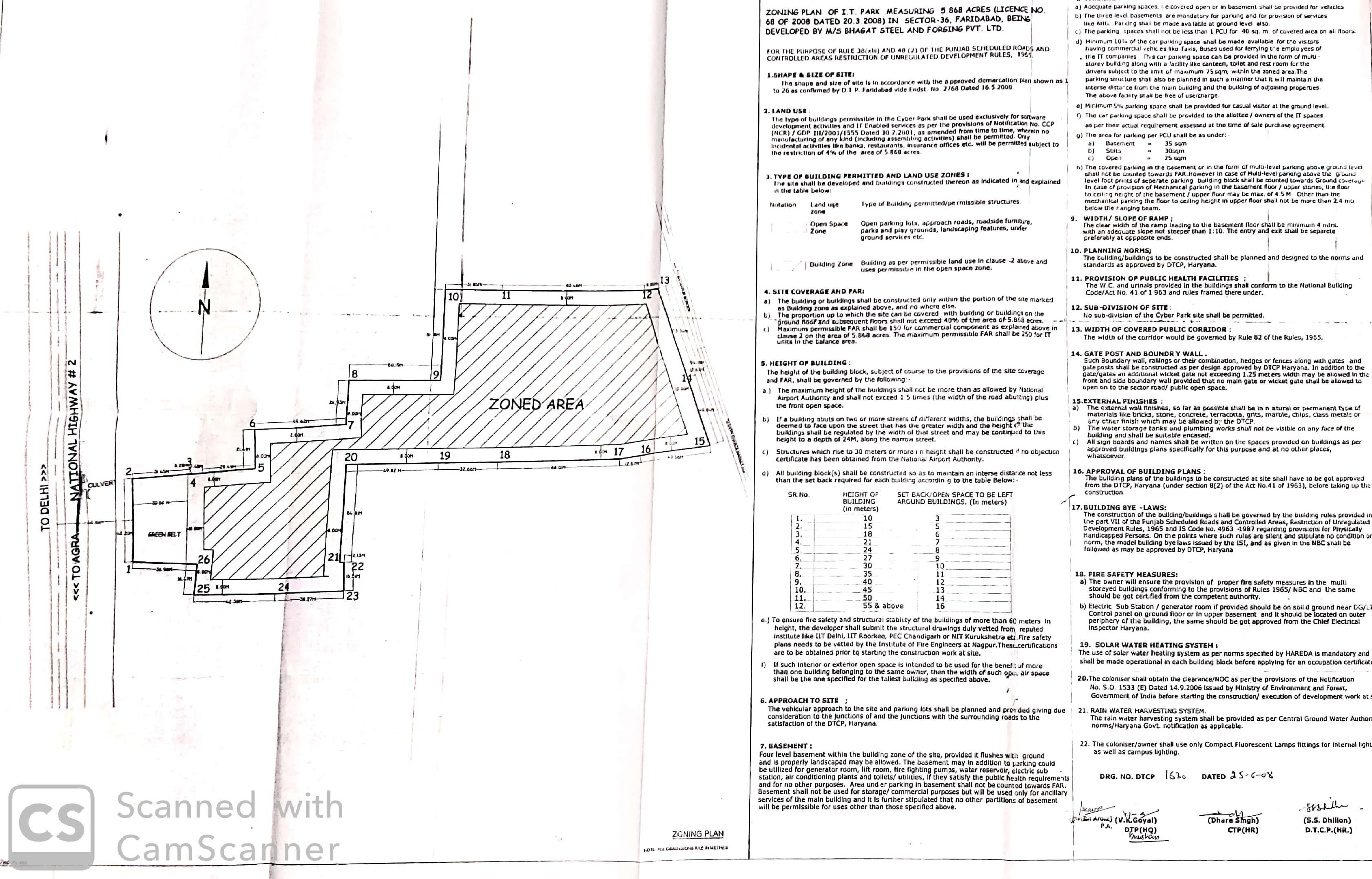
68 of 2008
Yes







22400 Lakhs
2017 Lakhs
0 Lakhs
19698 Lakhs
685 Lakhs




Sr. No.Land area under usageArea of land (Square Meters)
1PLOTS TO BE SOLD 43183
2LAND AREA TO BE USED FOR CONSTRUCTION OF APARTMENTS 5388
3CONSTRUCTION OF ROADS 16886
4PAVEMENTS 0
5PARKS AND PLAYGROUNDS 0
6GREEN BELTS 1200
7VEHICLE PARKINGS 51200
8ELECTRICITY SUB-STATION 100
9CLUB HOUSE 0
10SEWAGE AND SOLID WASTE TREATMENT FACILITY 240
11AREA TO BE LEFT FOR TRANSFERRING TO THE GOVERNMENT FOR COMMUNITY SERVICES 0
12ANY OTHER 0
Total118197




FacilityExternal/ connecting service to be provided by (Name the agency)Whether Approval taken from the agency concerned. Yes/No (Annex details in folder C)
ROADSNHAINo
WATER SUPPLYDTCP/MCF/HUDANo
ELECTRICITYDAKSHI HARYANA BIJLI VITRAN NIGAMNo
SEWAGE DISPOSALDTCP/MCF/HUDANo
STORM WATER DRAINAGEDTCP/MCF/HUDANo




Sr. No.Name of the facilityEstimated cost (In Lakhs)(Within the project area only)Remarks: Yet to be prepared / Submitted to HUDA, Town & Country Planning Department/ as per project report etc. (Annex relevant documents showing costing details etc. in folder C)
1INTERNAL ROADS AND PAVEMENTS184.90AS PER PROJECT REPORT
2WATER SUPPLY SYSTEM254.48AS PER PROJECT REPORT
3STORM WATER DRAINAGE58.92AS PER PROJECT REPORT
4ELECTRICITY SUPPLY SYSTEM949AS PER PROJECT REPORT
5SEWAGE TREATMENT & GARBAGE DISPOSAL106.65AS PER PROJECT REPORT
6STREET LIGHTING9.01AS PER PROJECT REPORT
7SECURITY AND FIRE FIGHTING624.5AS PER PROJECT REPORT
8PLAYGROUNDS AND PARKS207AS PER PROJECT REPORT
9CLUB HOUSE/COMMUNITY CENTRE0AS PER PROJECT REPORT
10SHOPPING AREA0AS PER PROJECT REPORT
11RENEWABLE ENERGY SYSTEM120AS PER PROJECT REPORT
12SCHOOL0AS PER PROJECT REPORT
13HOSPITAL/DISPENSARY0AS PER PROJECT REPORT
14ANY OTHER5AS PER PROJECT REPORT


29-05-2009 (date)
29-05-2009 (date)


Sr. No.Plot/ apartment type Size of the plot/carpet area of the apartments Total number of plots/apartments in the project Total size of the plots/carpet area of the apartments Plots/apartments booked/ sold upto the date of application Yet to be sold/ booked No. of towers to be/ being constructed for booked apartments
1 APARTMENT/SHOPS/OTHER BUILDINGS Type SHOP/OFFICE/AREA 59.61 40 2384.4 36 4 2
2 APARTMENT/SHOPS/OTHER BUILDINGS Type SHOP/OFFICE/AREA 60.75 34 2065.5 31 3 2
3 APARTMENT/SHOPS/OTHER BUILDINGS Type SHOP/OFFICE/AREA 73.64 14 1030.96 14 0 2
4 APARTMENT/SHOPS/OTHER BUILDINGS Type SHOP/OFFICE/AREA 71.53 16 1144.48 16 0 2
5 APARTMENT/SHOPS/OTHER BUILDINGS Type SHOP/OFFICE/AREA 61.78 8 494.24 8 0 2
6 APARTMENT/SHOPS/OTHER BUILDINGS Type SHOP/OFFICE/AREA 10.18 1 10.18 1 0 1
7 APARTMENT/SHOPS/OTHER BUILDINGS Type SHOP/OFFICE/AREA 9.84 3 29.52 3 0 2
8 APARTMENT/SHOPS/OTHER BUILDINGS Type SHOP/OFFICE AREA 167.01 1 167.01 1 0 1
9 APARTMENT/SHOPS/OTHER BUILDINGS Type SHOP/OFFICE AREA 109.61 2 219.22 2 0 1
10 APARTMENT/SHOPS/OTHER BUILDINGS Type SHOP/OFFICE AREA 142.52 2 285.04 2 0 1
11 APARTMENT/SHOPS/OTHER BUILDINGS Type SHOP/OFFICE AREA 38.86 2 77.72 2 0 1
12 APARTMENT/SHOPS/OTHER BUILDINGS Type SHOP/OFFICE AREA 1195 2 2390 2 0 1
13 APARTMENT/SHOPS/OTHER BUILDINGS Type SHOP/OFFICE AREA 152.99 1 152.99 1 0 1
14 APARTMENT/SHOPS/OTHER BUILDINGS Type SHOP/OFFICE AREA 214.52 1 214.52 1 0 1
15 APARTMENT/SHOPS/OTHER BUILDINGS Type SHOP/OFFICE AREA 155.45 1 155.45 1 0 1
16 APARTMENT/SHOPS/OTHER BUILDINGS Type SHOP/OFFICE AREA 101.31 1 101.31 1 0 1
17 APARTMENT/SHOPS/OTHER BUILDINGS Type SHOP/OFFICE AREA 131.88 1 131.88 1 0 1
18 APARTMENT/SHOPS/OTHER BUILDINGS Type SHOP/OFFICE AREA 38.86 1 38.86 1 0 1
19 APARTMENT/SHOPS/OTHER BUILDINGS Type SHOP/OFFICE AREA 88.93 2 177.86 2 0 1
20 APARTMENT/SHOPS/OTHER BUILDINGS Type SHOP/OFFICE AREA 67.45 2 134.9 2 0 1
21 APARTMENT/SHOPS/OTHER BUILDINGS Type SHOP/OFFICE AREA 97.99 3 293.97 3 0 1
22 APARTMENT/SHOPS/OTHER BUILDINGS Type SHOP/OFFICE AREA 136.88 2 273.76 2 0 1
23 APARTMENT/SHOPS/OTHER BUILDINGS Type SHOP/OFFICE AREA 180.94 3 542.82 3 0 1
24 APARTMENT/SHOPS/OTHER BUILDINGS Type SHOP/OFFICE AREA 161.54 2 323.08 2 0 1
25 APARTMENT/SHOPS/OTHER BUILDINGS Type SHOP/OFFICE AREA 161.17 1 161.17 1 0 1
26 APARTMENT/SHOPS/OTHER BUILDINGS Type SHOP/OFFICE AREA 75.75 2 151.5 2 0 1
27 APARTMENT/SHOPS/OTHER BUILDINGS Type SHOP/OFFICE AREA 104.14 32 3332.48 24 8 2
28 APARTMENT/SHOPS/OTHER BUILDINGS Type SHOP/OFFICE AREA 67.96 140 9514.4 137 3 2
29 APARTMENT/SHOPS/OTHER BUILDINGS Type SHOP/OFFICE AREA 88.13 42 3701.46 42 0 2
30 APARTMENT/SHOPS/OTHER BUILDINGS Type SHOP/OFFICE/AREA 25.85 42 1085.7 42 0 2
31 APARTMENT/SHOPS/OTHER BUILDINGS Type SHOP/OFFICE/AREA 8 40 320 40 0 2
32 APARTMENT/SHOPS/OTHER BUILDINGS Type SHOP/OFFICE/AREA 89.50 36 3222 30 6 2
33 APARTMENT/SHOPS/OTHER BUILDINGS Type SHOP/OFFICE/AREA 70.08 28 1962.24 22 6 2
34 APARTMENT/SHOPS/OTHER BUILDINGS Type SHOP/OFFICE/AREA 65.77 50 3288.5 48 2 2
35 APARTMENT/SHOPS/OTHER BUILDINGS Type SHOP/OFFICE/AREA 175.24 34 5958.16 28 6 2
Total59245537.285543850






TypeNumber of apartments booked/ sold Write or Annex the stage of construction of the booked/ sold apartments in folder C
UNIT554STUCTURE COMPLETED FOR ALL UNITS


01-01-2010
31-12-2016
31-10-2020
01-06-2015
60
31-10-2020
YES
ANNEXURE ATTACHED


PlotsBooked/soldStage of handing over the possession (Write or Annex details)
PLOT00
01-06-2015
0
31-10-2020


1000
25
200
261
0





Expenditure incurred till the date of application (In Lakhs)

ParticularsExpenditure
Apartments0
Shops18615.62
Plots0

Expenditure to be made in each quarter (In Lakhs)

ParticularsYear-2019
Jan-MarApr-JuneJuly-SepOct-Dec
Apartments00
Shops600670
Plots00

ParticularsYear-2020
Jan-MarApr-JuneJuly-SepOct-Dec
Apartments00
Shops0814.74
Plots00




Expenditure incurred till the date of application (In Lakhs)

ParticularsExpenditure
Roads & Pavements182.9
Water Supply System249.48
Sewerage treatment & garbage disposal100
Electricity Supply System200
Storm Water Drainage50
Parks and Playgrounds2
Clubhouse/community centres0
Shopping area0
Other0

Expenditure to be made in each quarter (In Lakhs)

ParticularsYear-2019
Jan-MarApr-JuneJuly-SepOct-Dec
Roads & Pavements01
Water Supply System22
Sewerage treatment & garbage disposal06
Electricity Supply System600100
Storm Water Drainage05
Parks and Playgrounds00.07
Clubhouse/community centres00
Shopping area00
Other00

ParticularsYear-2020
Jan-MarApr-JuneJuly-SepOct-Dec
Roads & Pavements01
Water Supply System01
Sewerage treatment & garbage disposal00.65
Electricity Supply System0150
Storm Water Drainage03.92
Parks and Playgrounds00
Clubhouse/community centres00
Shopping area00
Other00












Particulars Remarks, if any
i. No. of Flats/Apartments constructed592All units has been constructed
ii. No. of Flats/ Apartments booked554
iii. Total amount sale value of booked Flats, on the date of application/end of last quarter17482 LakhsEstimated
iv. Total amount received from the allottees (booked Flats), on the date of application/end of last quarter11187 Lakhs
v. Balance amount to be received from the allottees (booked Flats, after completion), on the date of application/end of last quarter6295 LakhsEstimated
vi. Balance amount due and recoverable from the allottees (booked Flats) as on the date of application /end of last quarter5000 Lakhs
vii. Amount invested in the project upto the date of application19400 Lakhs
Land cost (If any)2017 Lakhs
Apartments0 Lakhs
Infrastructure16698 Lakhs
EDC/ Taxes Etc.685 Lakhs
viii. Balance cost to be incurred for completion of the project and delivery of possession3000 Lakhs
(a) In respect of existing allottees0 LakhsN/A
(b) In respect of rest of the project0 LakhsN/A
ix. The amount of loan raised from the banks/ financial institutions/ private persons against the project
Annex detail of the securities furnished to the banks/ financial institutions against the aforesaid loans in folder C
0 LakhsN/A
x. Total liabilities against the project up-to-date. (Annex details in folder C) 300 LakhsSundry Creditors



Particulars Estimated expenditure planned to be incurred as per service plan estimates or the project report. (In Lakhs)Actual expenditure incurred upto the date of application. (In Lakhs)
I. INTERNAL ROADS AND PAVEMENTS184.90182.90
II. WATER SUPPLY SYSTEM254.48249.48
III. STORM WATER DRAINAGE58.9250
IV. ELECTRICITY SUPPLY SYSTEM1050200
V. SEWAGE TREATMENT & GARBAGE DISPOSAL106.65100
VI. CLUB HOUSE/COMMUNITY CENTRE00
VII. SCHOOL00
VIII. ANY OTHER00
IX. SOLID WASTE COLLECTION & MGMT SYSTEM00
X. CLUBHOUSE00
XI. NEIGHBOURHOOD SHOPPING00
XII. GREEN AREAS,PARKS,PLAYGROUNDS ETC.00
XIII. COVERED PARKING40004000
XIV. OPEN PARKING00
XV. GARAGES00
XVI. SECURITY SYSTEM634.71250
XVII. OTHER FACILITIES AS PER PROJECT REPORT00









Yes
Yes
HDFC BANK, SECTOR-15 BRANCH FARIDABAD
50200006271694
HDFC0001568
0240189
1568
MR JAI PRAKASH GUPTA& SURINDER VASUDEVA JOINTLY
ATTACHED











Yes
Yes
Yes
Yes
Yes
Yes
No
Yes
Yes
Yes


No
No
No
No
No
No
No
Yes
Statutory Approvals Statutory Approvals StatusDate
I. EIA DATED 01/04/2008ALREADY BEEN OBTAINED01-04-2009
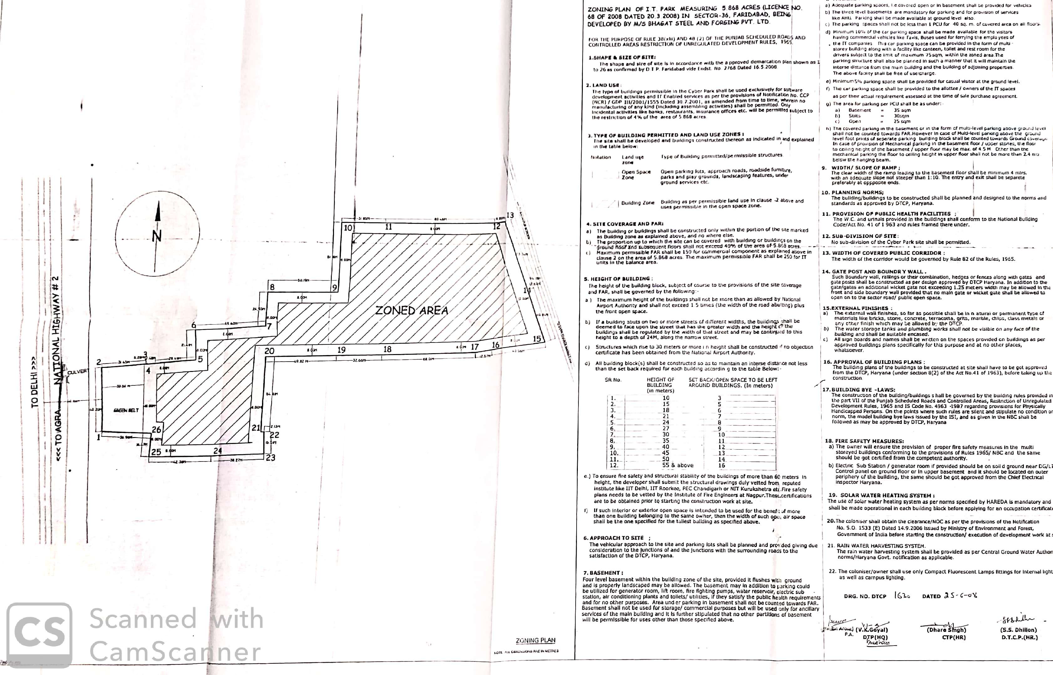
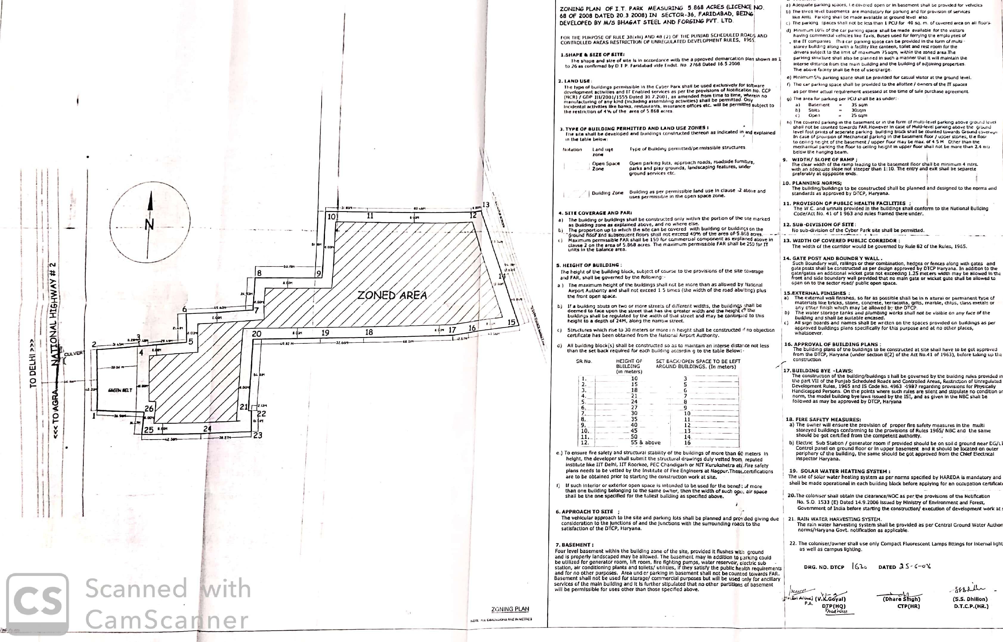
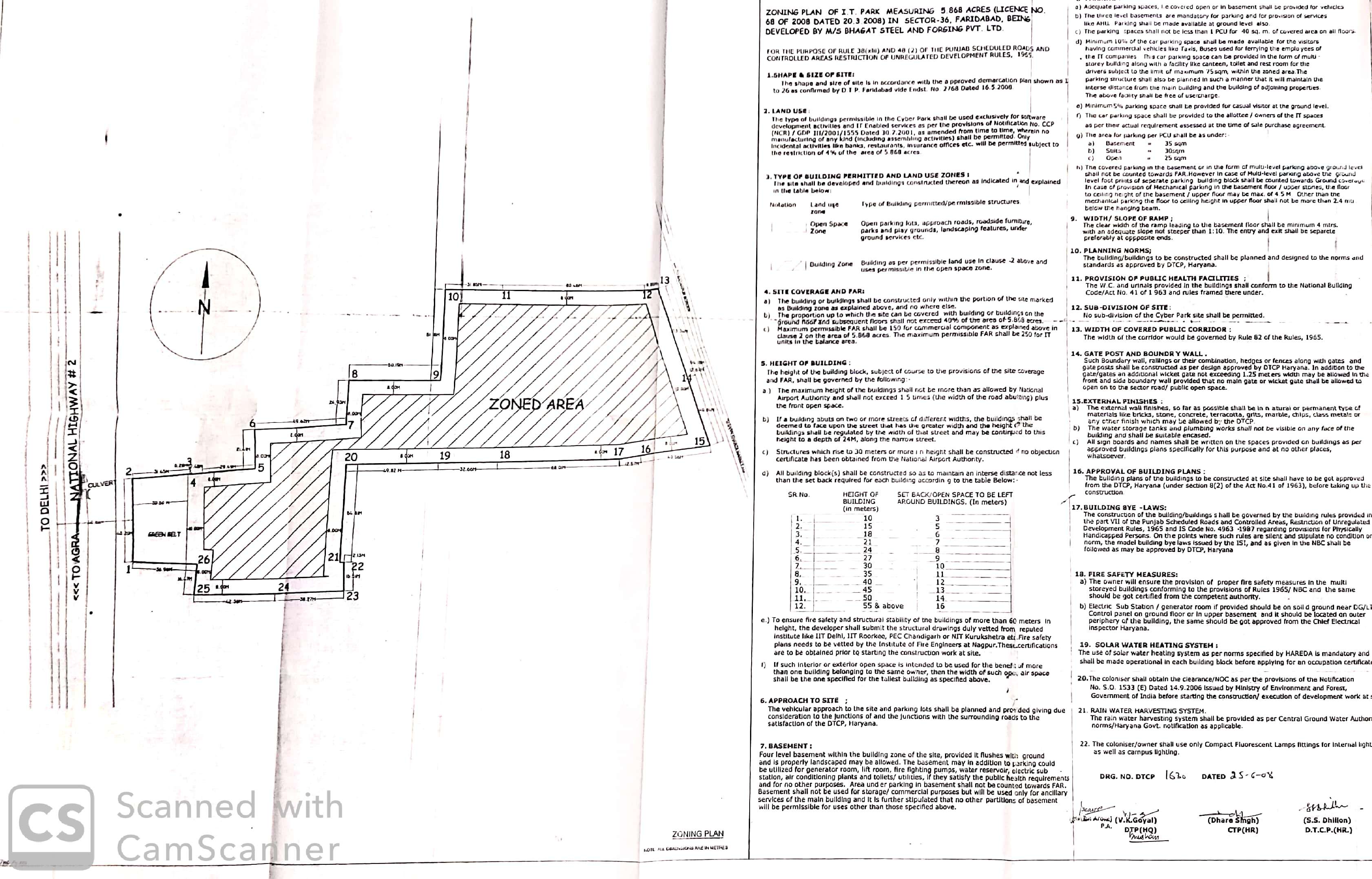
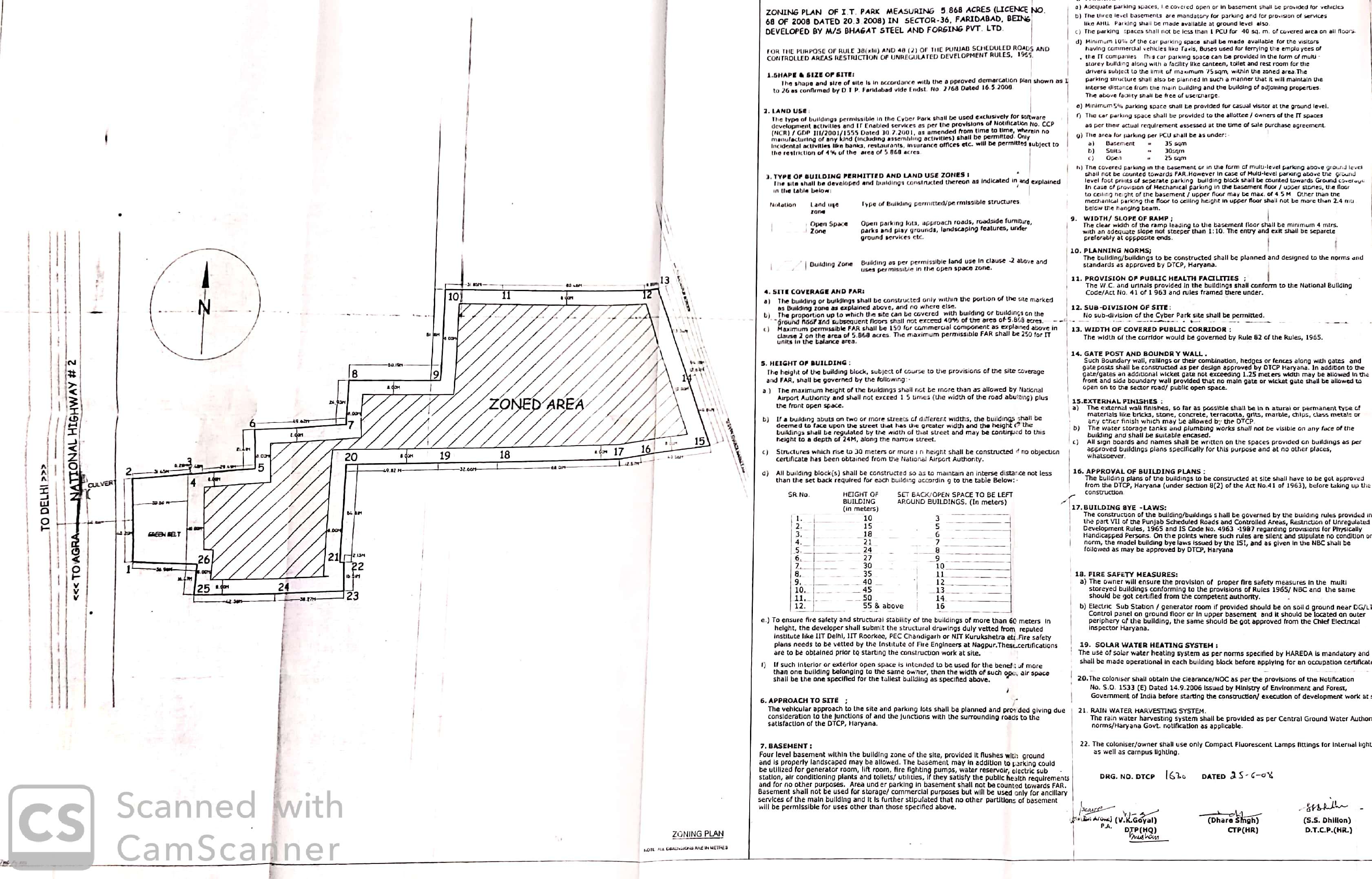
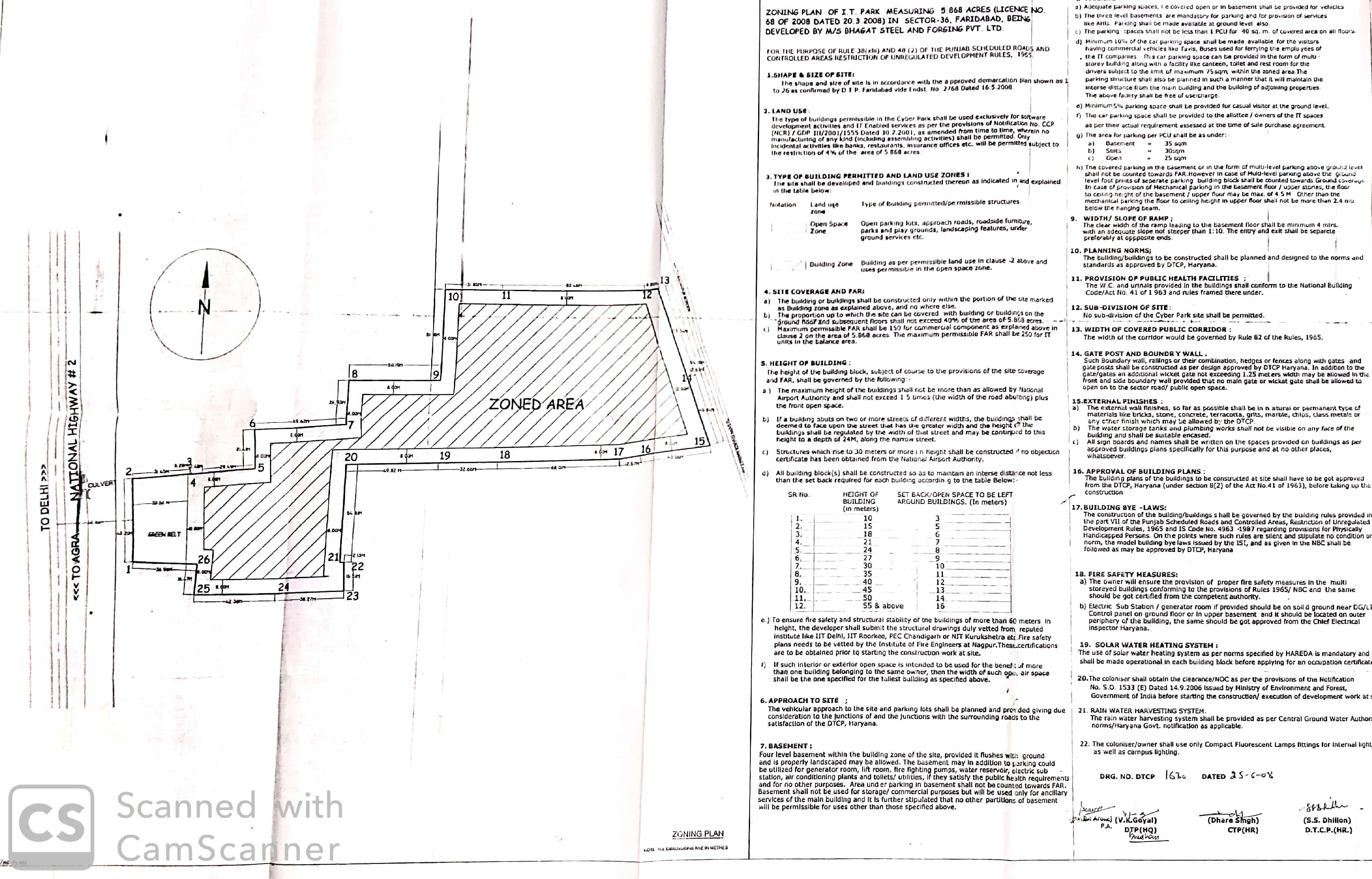
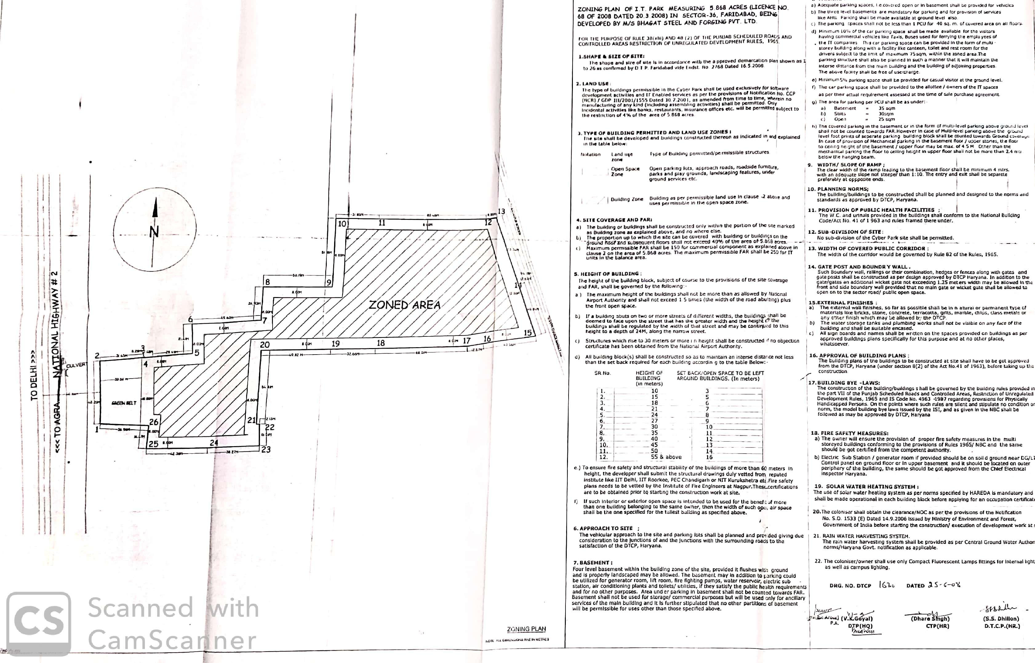
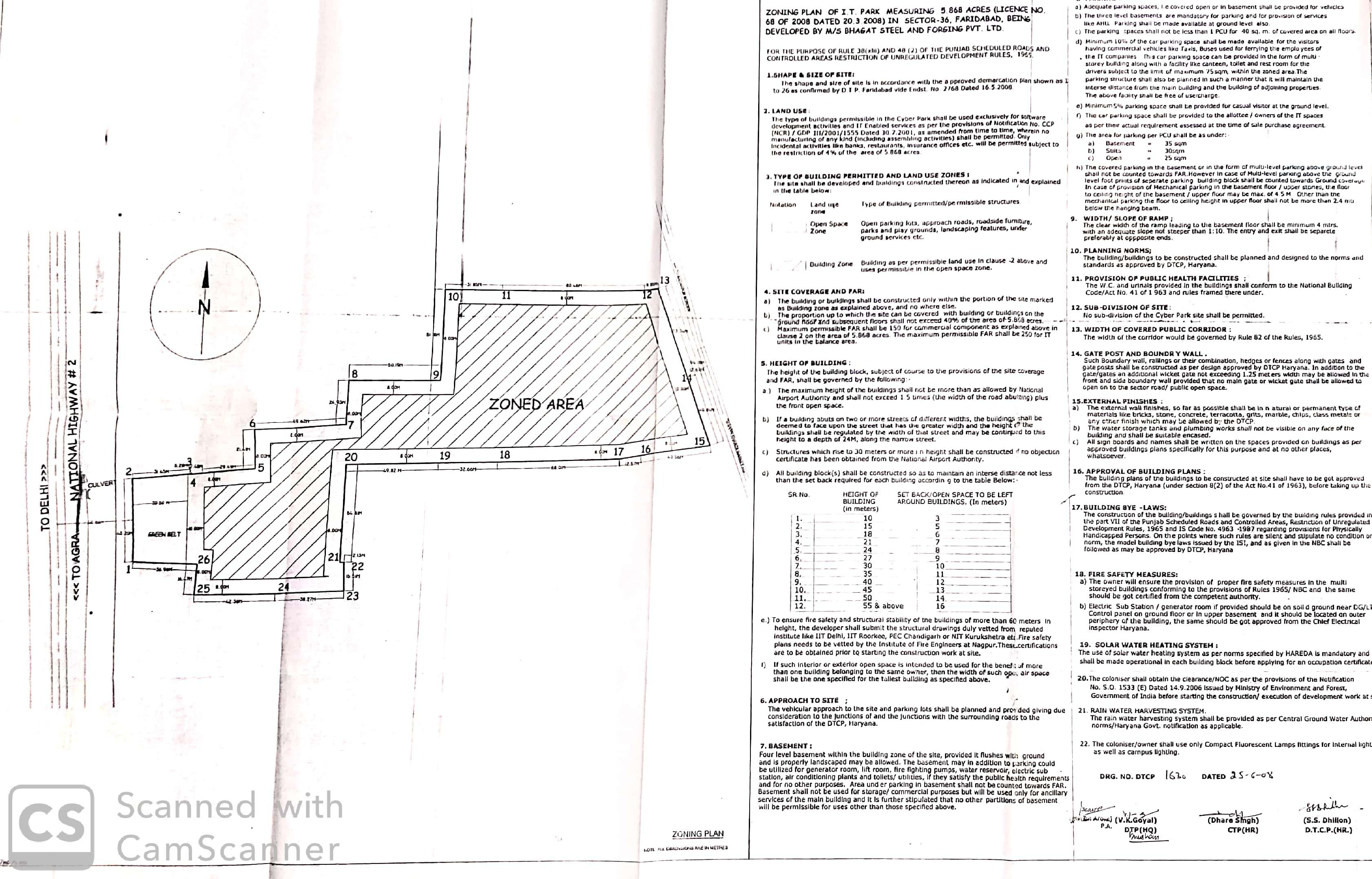
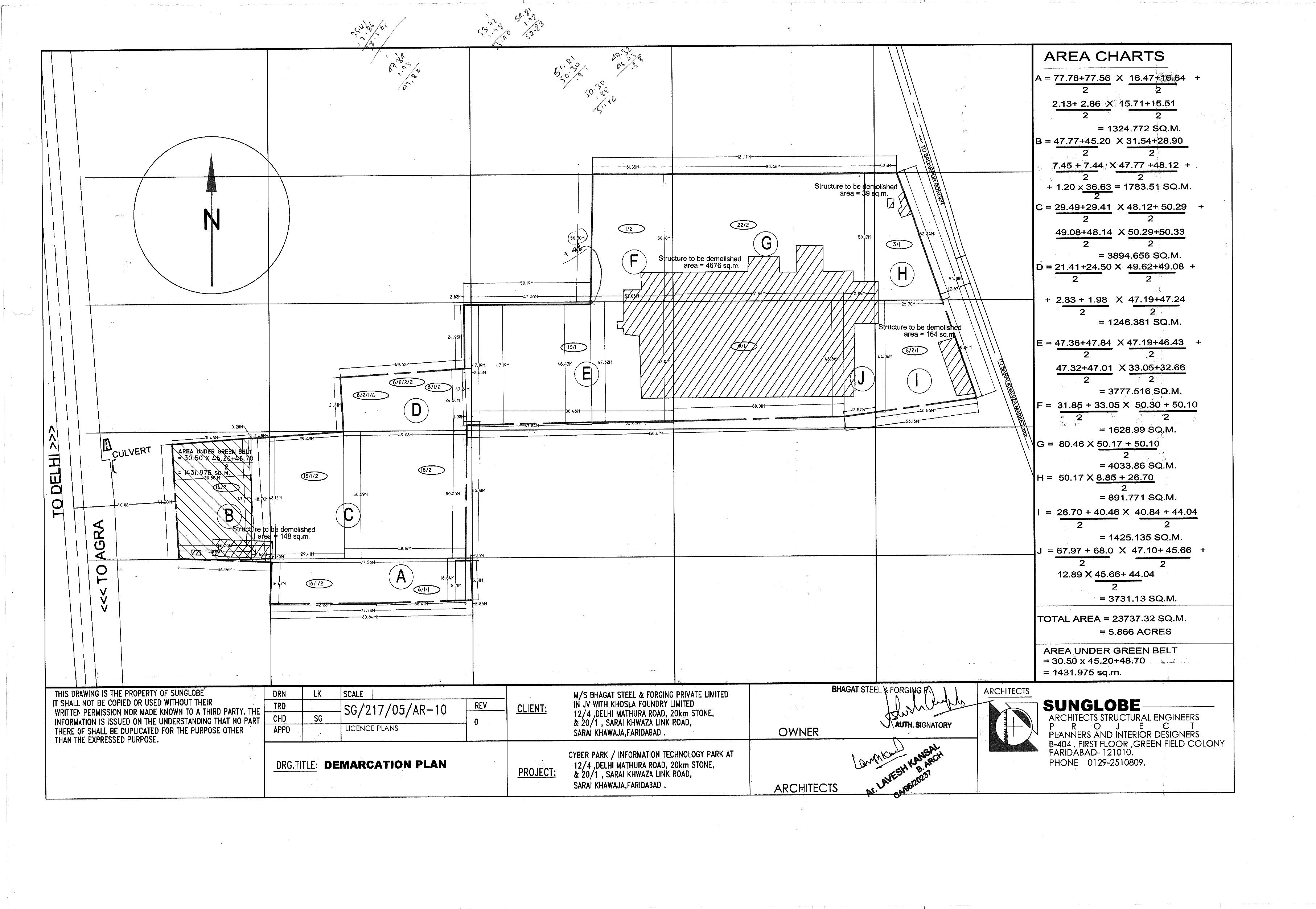
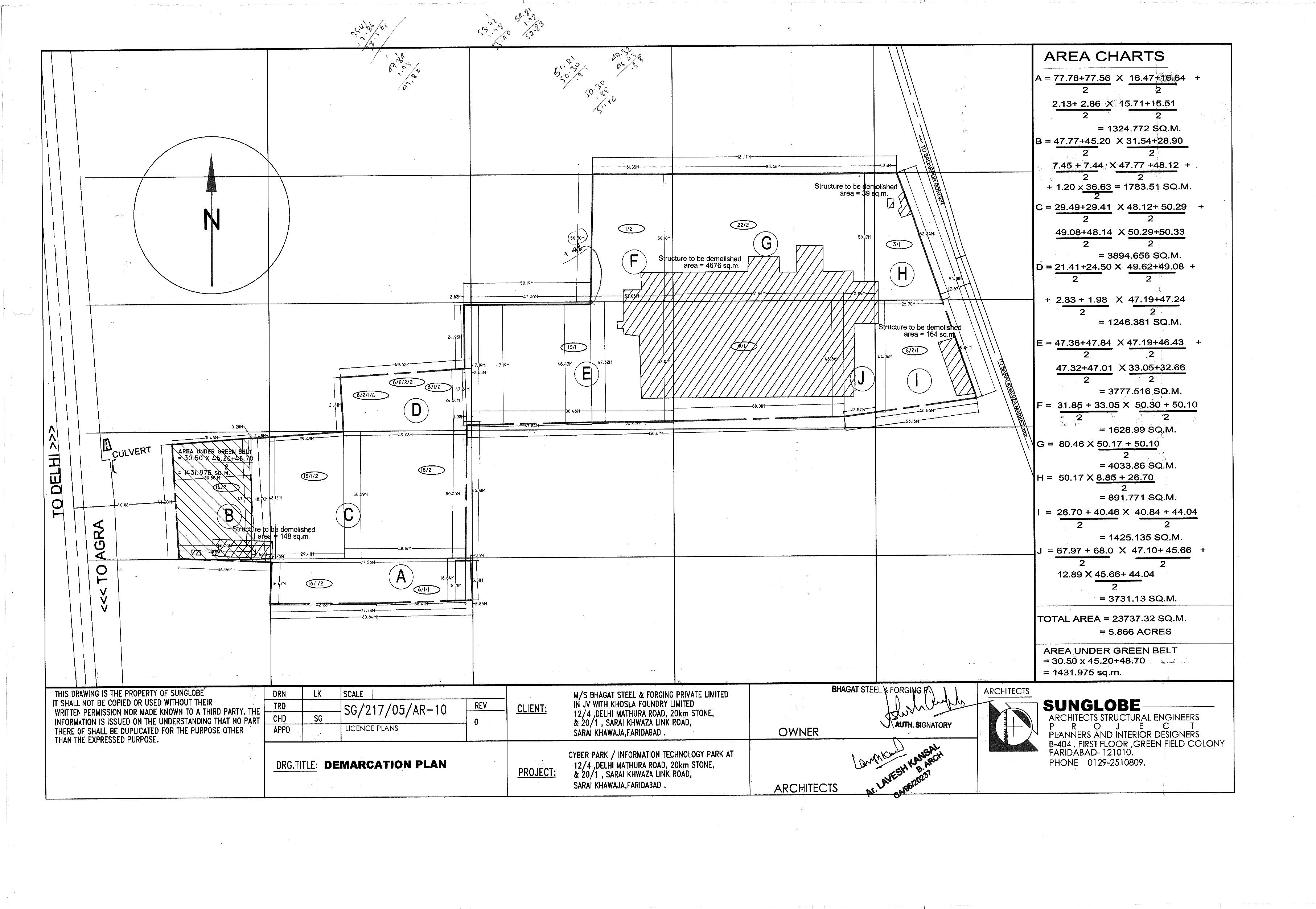
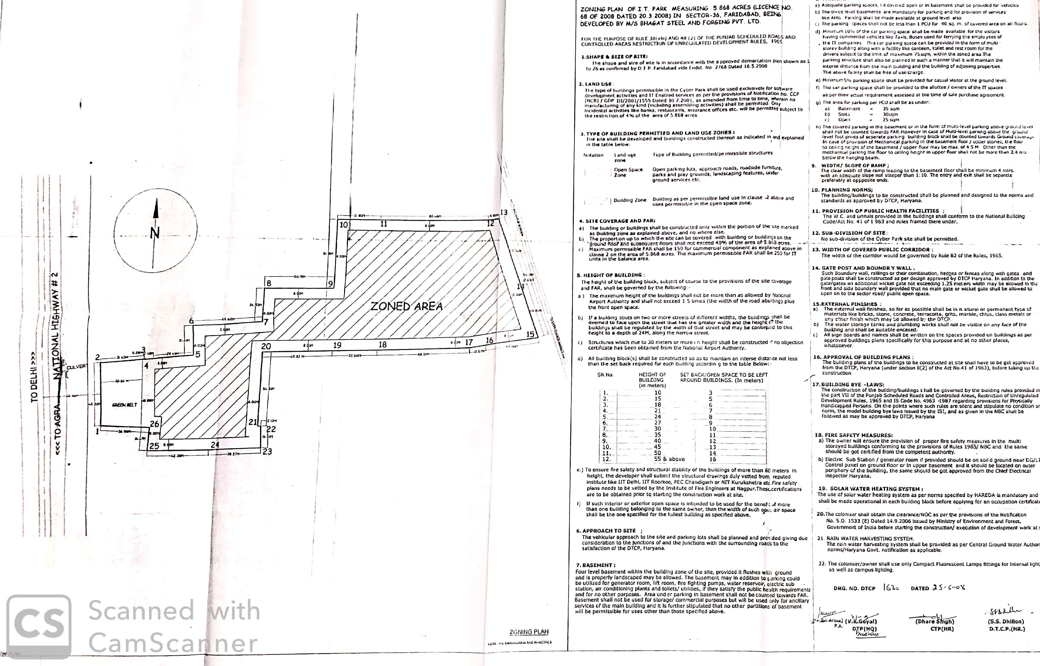
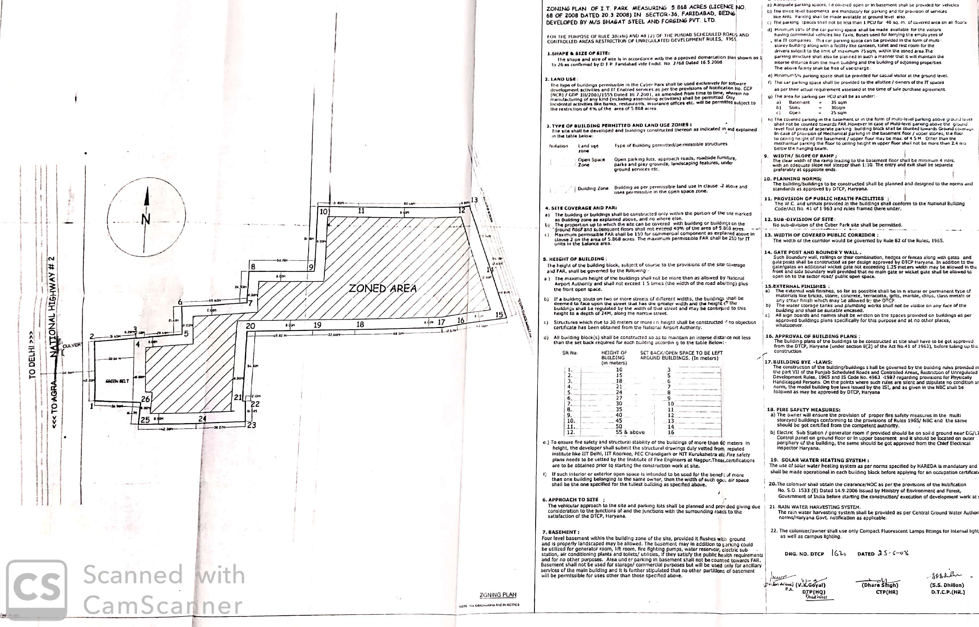
II. ZONING PLAN DATED 25/06/2008ALREADY BEEN OBTAINED25-06-2009
III. NOC FROM AAI DATED 18/12/2008 ALREADY BEEN OBTAINED18-12-2009
IV. BUILDING PLANALREADY BEEN OBTAINED29-05-2009
V. LAYOUT PLAN ALREADY BEEN OBTAINED29-05-2009
VI. SERVICE PLAN ESTIMATESAPPLIED FOR BUT YET TO RECEIVE12-09-2012
VII. FIRE SCHEMEAPPLIED FOR BUT YET TO RECEIVE18-06-2019








Yes


Yes















SPECIFICATION OF CONSTRUCTION
Specification of apartments and other buildings including the following:
1FLOORING DETAILS OF VARIOUS PARTS OF HOUSEINTERNAL FLOORING OF UNITS :- TO BE DONE BY CUSTOMER AS PER PREFERNCE & REQUIREMENTS LOBBY/COORIDORS/STAIRS :- VITRIFIED TILES AND MARBLE FLOORING
2WALL FINISHING DETAILSINTERNAL WALL OF UNITS :- TO BE DONE BY CUSTOMER AS PER PREFERNCE & REQUIREMENTS LOBBY/COORIDORS/STAIRS :- PLASTER WITH PLEASANT SHADES OF DISTEMPER
3KITCHEN DETAILSNOT APPLICABLE
4BATHROOM FITTINGSSANITARY FIITINGS :- ASTERAL CP FITTING :- TOTO FITTINGS
5WOOD WORK ETCNOT APPLICABLE
6DOORS AND WINDOS FRAMESFLUSH DOORS FRAMES, GLASS DOOR FRAMES AND UPVC WINDOW
7GLASS WORK24MM DGU GLASS HAS BEEN USED
8ELECTRIC FITTINGSAS PER STANDARD ISI MARKED ELECTRIC FIITINGS HAS BEEN USED
9CONDUCTING AND WIRING DETAILSMS CONDUTING AND ISI MARKED WIRING IS USED
10CUPBOARD DETAILSNOT APPLICABLE
11WATER STORAGEUNDER GROUND AND OVER HEAD RCC TANKS
12LIFT DETAILS3 SERVICE LIFTS AND 15 PASSENGER LIFTS
13EXTERNAL GLAZINGSSTRUCTURE GLAZING WITH 24MM TOUGHENED GLASS IN EXTERNAL FACADE
13.1WINDOWS/GLAZINGSUPVC WINDOWS WITH GLASS
14DOORSGLASS DOOR FOR ALL UNITS FIRE DOORS IN STAIRCASE AND ELECTRICAL ROOM
14.1MAIN DOORSSITE DOOR : MS GATE TOWER B1 : GLASS DOOR
14.2INTERNAL DOORSGLASS DOOR FOR ALL UNITS FIRE DOORS IN STAIRCASE AND ELECTRICAL ROOM
15AIR CONDITIONINGCENTRALIZED AIR CONDITIONING THROUGH WAER COOLED DUCTABLE UNIT
16ELECTRICAL FITTINGSISI MARKED LIGHTING FIXTURE IN COMMON AREA
17CNG PIPE LINENOT APPLICABLE
18PROVISION OF WIFI AND BROADBAND FACILITYTO BE PROVIDED
19EXTERNAL FINISHING/COLOUR SCHEMEEXTERNAL PAINT IN PLEASANT SHADE FOR AREAS OTHER THAN GLASS AND ACP
20INTERNAL FINISHINGPLASTER WITH PLEASANT SHADES OF DISTEMPER ON WALLS AND VITRIFIED TILES IN PLEASANT SHADES/COMBINATION IN FLOORING
SPECIFICATION UNIT WISE
1 . LIVING/DINING/FOYER/FAMILY LOUNGE
1 . 1 FLOORNOT APPLICABLE
1 . 2 WALLSNOT APPLICABLE
1 . 3 CEILINGNOT APPLICABLE
2 . MASTER BEDROOM/DRESSROOM
2 . 1 FLOORNOT APPLICABLE
2 . 2 WALLSNOT APPLICABLE
2 . 3 CEILINGNOT APPLICABLE
2 . 4 MODULAR WARDROBESNOT APPLICABLE
3 . MASTER TOILET
3 . 1 FLOORNOT APPLICABLE
3 . 2 WALLSNOT APPLICABLE
3 . 3 CEILINGNOT APPLICABLE
3 . 4 COUNTERSNOT APPLICABLE
3 . 5 SANITARY WARE/CP FITTINGSNOT APPLICABLE
3 . 6 FITTING/FIXTURESNOT APPLICABLE
4 . BED ROOMS
4 . 1 FLOORNOT APPLICABLE
4 . 2 WALLSNOT APPLICABLE
4 . 3 CEILINGNOT APPLICABLE
4 . 4 WARDROBESNOT APPLICABLE
5 . TOILET
5 . 1 FLOORVITRIFIED TILES
5 . 2 WALLSPLASTER FINISH WALLS
5 . 3 CEILINGFALSE CEILING
5 . 4 COUNTERSNOT APPLICABLE
5 . 5 SANITARY WARE/CP FITTINGSAS PER STANDARD
5 . 6 FIXTURESAS PER STANDARD
6 . KITCHEN
6 . 1 FLOORNOT APPLICABLE
6 . 2 WALLSNOT APPLICABLE
6 . 3 CEILINGNOT APPLICABLE
6 . 4 COUNTERSNOT APPLICABLE
6 . 5 FIXTURESNOT APPLICABLE
6 . 6 KITCHEN APPLIANCESNOT APPLICABLE
7 . UTILITY ROOMS/UTILITY BALCONY/TOILET
7 . 1 FLOORNOT APPLICABLE
7 . 2 WALLS & CEILINGNOT APPLICABLE
7 . 3 TOILETNOT APPLICABLE
7 . 4 BALCONYNOT APPLICABLE
8 . SIT-OUTS
8 . 1 FLOORNOT APPLICABLE
8 . 2 WALLS & CEILINGNOT APPLICABLE
8 . 3 RAILINGSNOT APPLICABLE
8 . 4 FIXTURESNOT APPLICABLE












Sr. No.Document DescriptionDate of Document UploadView Document
1 COPY OF LICENSE ALONG WITH SCHEDULE OF LAND 20-10-2019 View Document
2 DEMAND DRAFT 26-10-2019 View Document
3 BALANCE SHEET 2019 22-10-2019 View Document
4 DECLARATION SUPPORTED BY AFFIDAVIT DULY SIGNED BY THE PROMOTER TO BE ENCLOSED. 26-10-2019 View Document
5 SERVICE PLANS SHOWING THE SERVICES ON THE LAYOUT PLAN 22-10-2019 View Document
6 NON DEFAULT CERTIFICATE FROM A CHARTERED ACCOUNTANT 22-10-2019 View Document
7 DOCUMENTS RELATING TO THE ENTRY OF LICENSE AND COLLABORATION AGREEMENT IN THE REVENUE RECORD 22-10-2019 View Document
8 AIRPORT NOC 26-10-2019 View Document
9 IN CASE OF GROUP HOUSING/ COMMERCIAL SITES, A COPY OF THE APPROVED SITE PLAN 22-10-2019 View Document
10 BALANCE SHEET 22-10-2019 View Document
11 CERTIFICATE FROM A CHARTERED ACCOUNTANT CERTIFYING THAT THE INFORMSTION PROVIDED BY THE APPLICANT IN FORM REP-1-C-X IS CORRECT AS PER THE BOOKS OF ACCOUNTS/ BALANCE SHEET OF THE APPLICANT 22-10-2019 View Document
12 DRAFT ALLOTMENT LETTER 22-10-2019 View Document
13 DRAFT ATS 22-10-2019 View Document
14 IN CASE OF PLOTTED COLONY, THE LATEST LAYOUT PLAN 22-10-2019 View Document
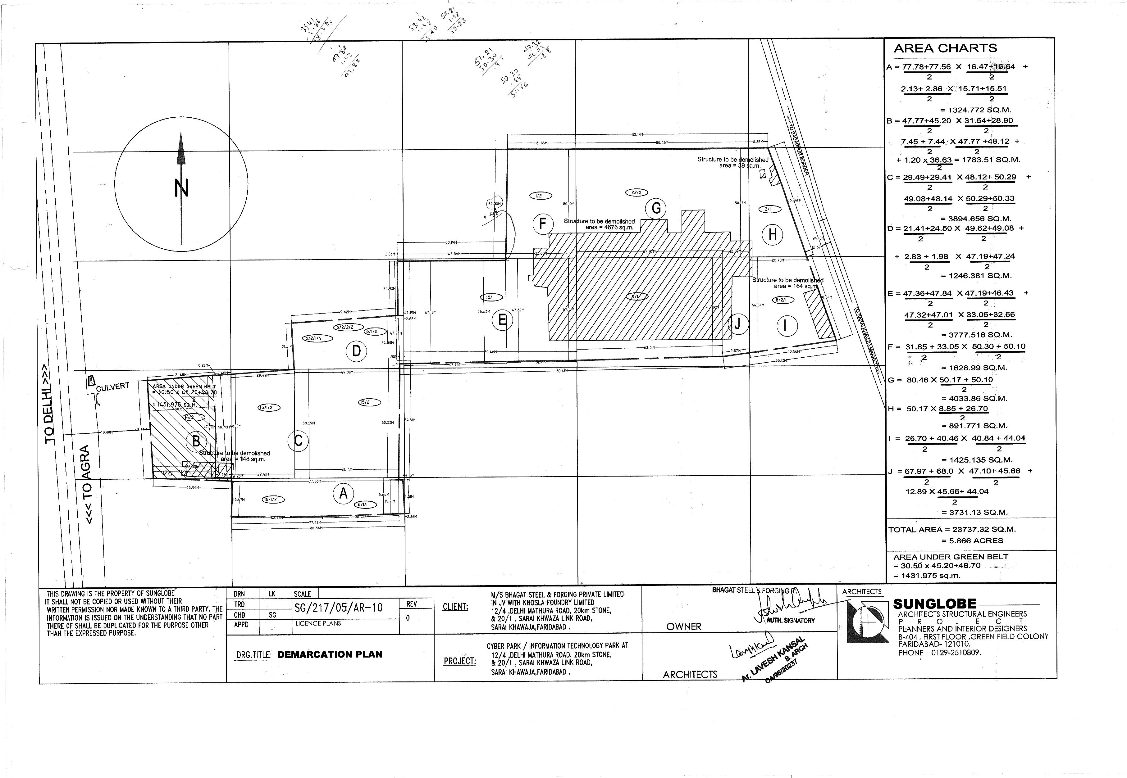
15 DEMARCATION PLAN 22-10-2019 View Document
16 CASH FLOW STATEMENT OF THE PROPOSED PROJECT 22-10-2019 View Document
17 ZONING PLAN 22-10-2019 View Document
18 PROJECT REPORT 26-10-2019 View Document
19 A COMPLETE SET OF THE LAST APPROVED BUILDING PLANS 22-10-2019 View Document
20 EIA 26-10-2019 View Document
21 BALANCE SHEET 22-10-2019 View Document












Sr. No.Document DescriptionDate of Document UploadView Document
1 RC APPROVED 22-02-2025 View Document
2 Corrigendum uploaded. 29-01-2025 View Document