HRERA PanchkulaTemp Project Id : RERA-PKL-PROJ-599-2019
Submission Date : 17-10-2019 10:08:26 AM
Applicant Type : Company
Project Type: ONGOING




ASHIANA REALTECH PRIVATE LIMITED
203-205,D-3 BLOCK, PROGRESSIVE CHAMBER, COMMERCIAL COMPLEX, PRASHANT VIHAR, DELHI-85
01145781101
9871719167 (Number Shared by Promoter in Public)
info@thecubixhomes.com
http://www.thecubixhomes.com
XXXX238F
U70102DL2007PTC160203
 
 


 
 


 
 


 
 


 
 







THE CUBIX
SEC-23 DHARUHERA, REWARI
DHARUHERA ST
REWARI
8432444772 (Number Shared by Promoter in Public)
INFO@THECUBIXHOMES.COM
SACHIN
7425941541 (Number Shared by Promoter in Public)
info@thecubixhomes.com








As per sub-rule(2) of rule 3 of the Haryana Real Estate (Regulation and Development) Rules,2017, the fee for registration of the project as has been calculated as follows:
-----------------------------------------------------------------------------------------------------------------------
-----------------------------------------------------------------------------------------------------------------------
-----------------------------------------------------------------------------------------------------------------------
-----------------------------------------------------------------------------------------------------------------------
2. The aforesaid fees is hereby deposited vide following Drafts/ Banker’s Cheques:-

Sr No.Draft/Cheque No.Draft DateAmountPayee BankPayable To
180517831-07-2017582000FEDERAL BANKHRERA Panchkula







38037.35 (Sqr/mtrs)
66565.37
172.72
38037.35 (Sqr/mtrs)
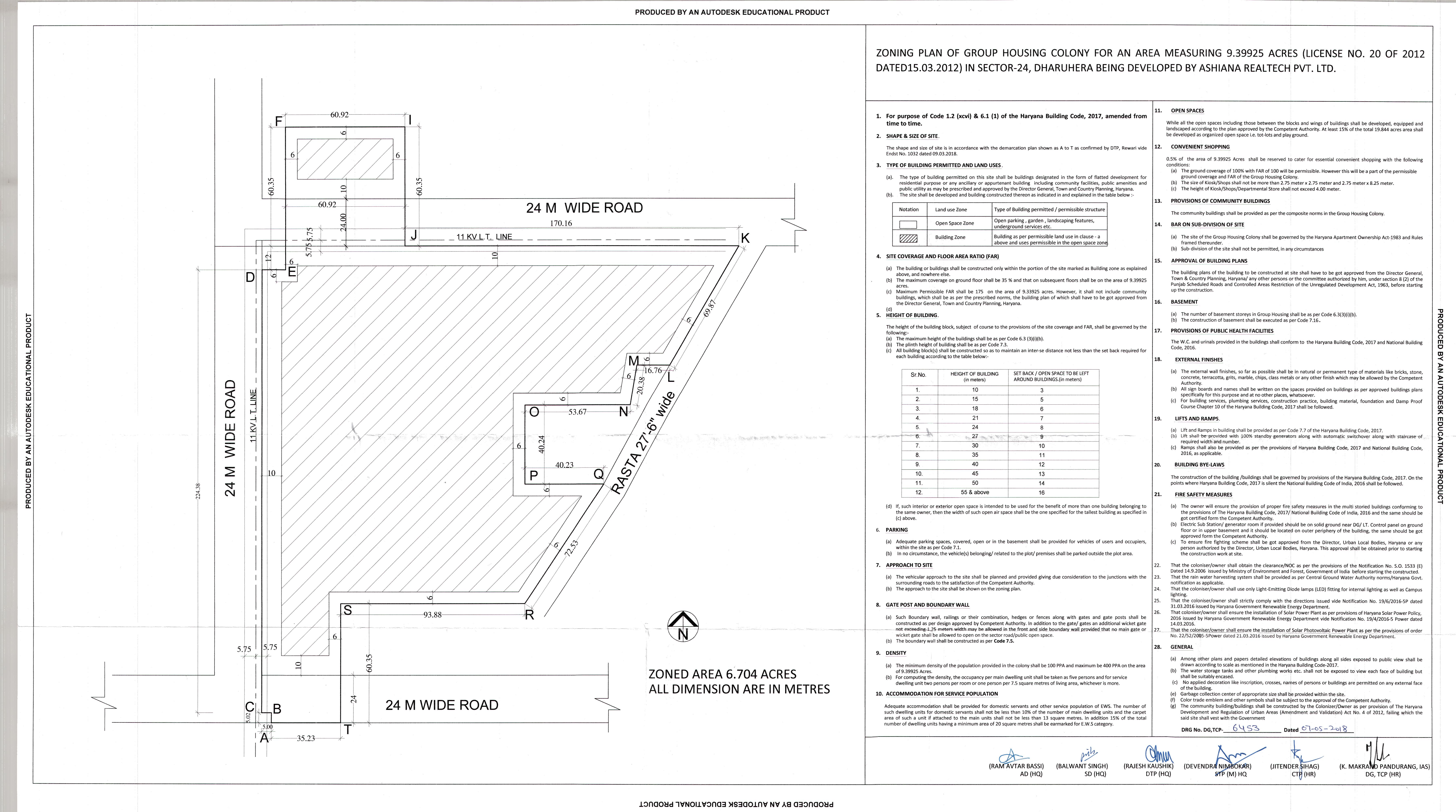
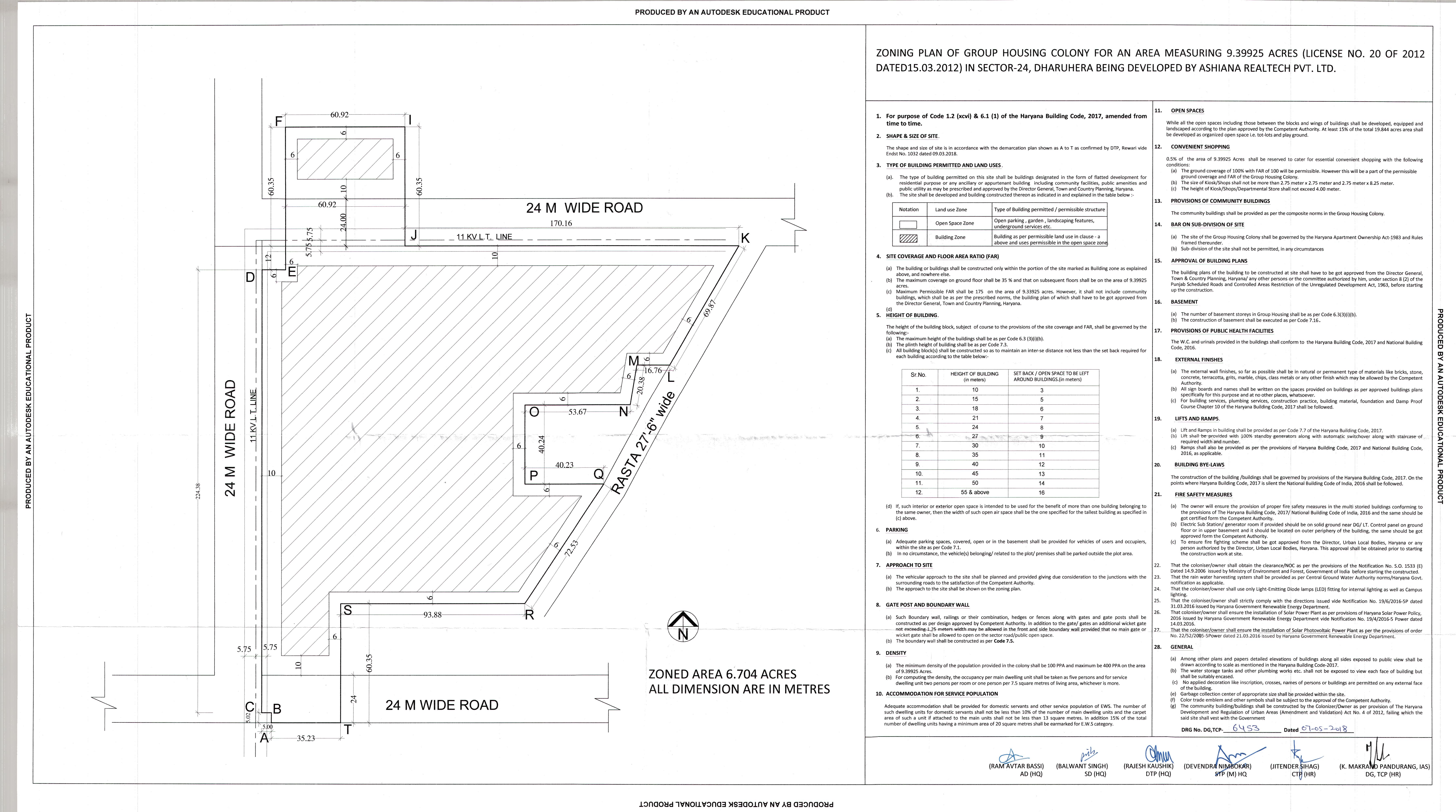
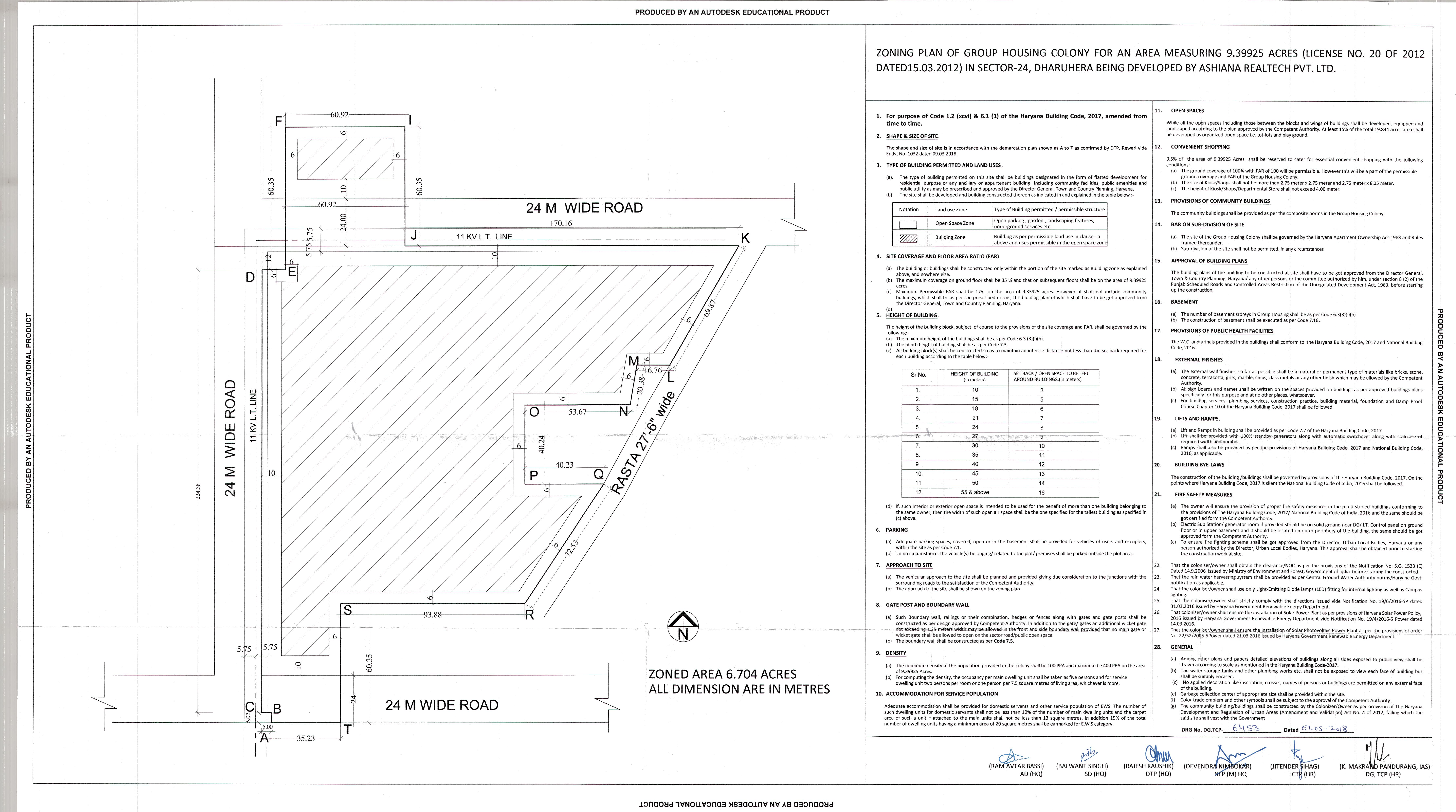
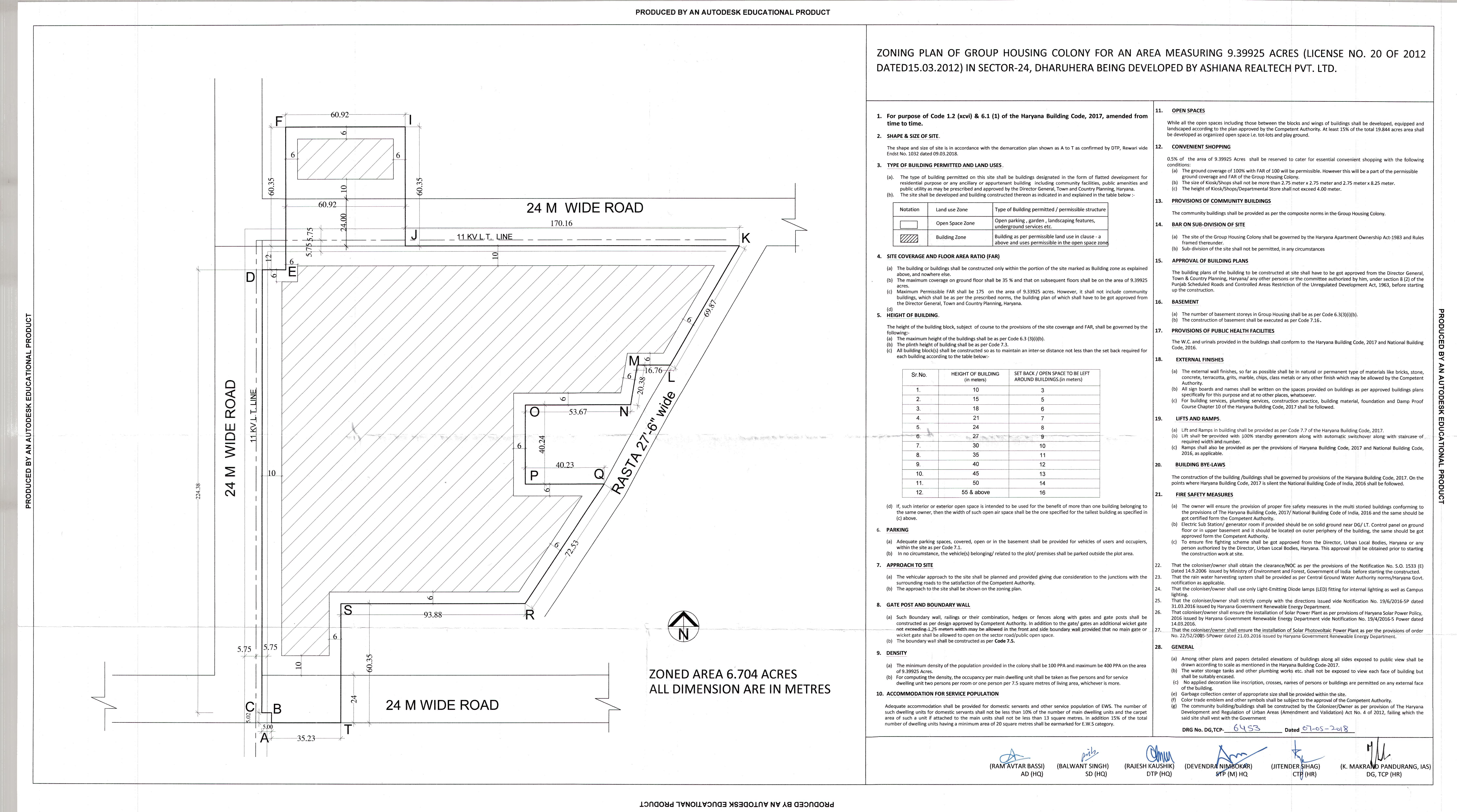
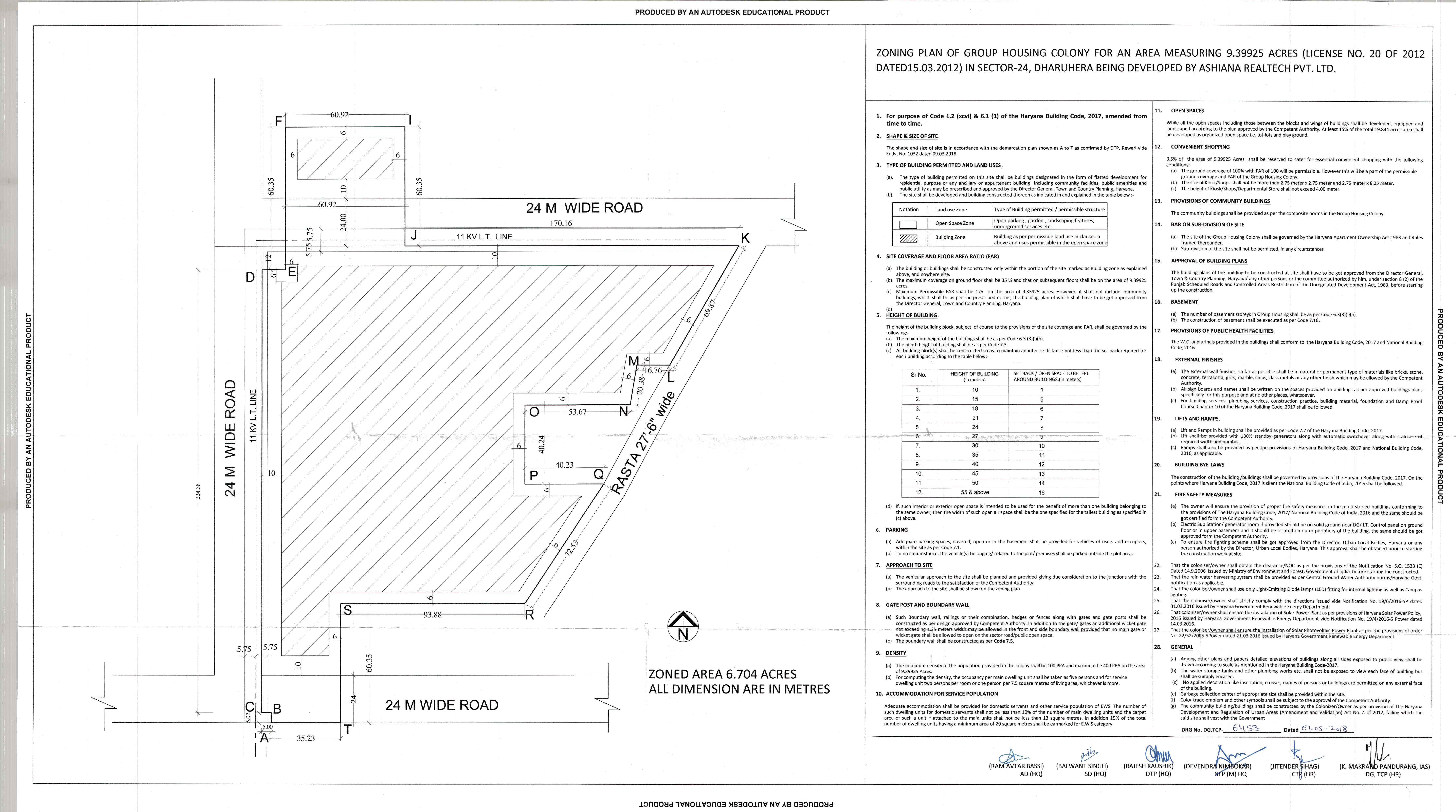
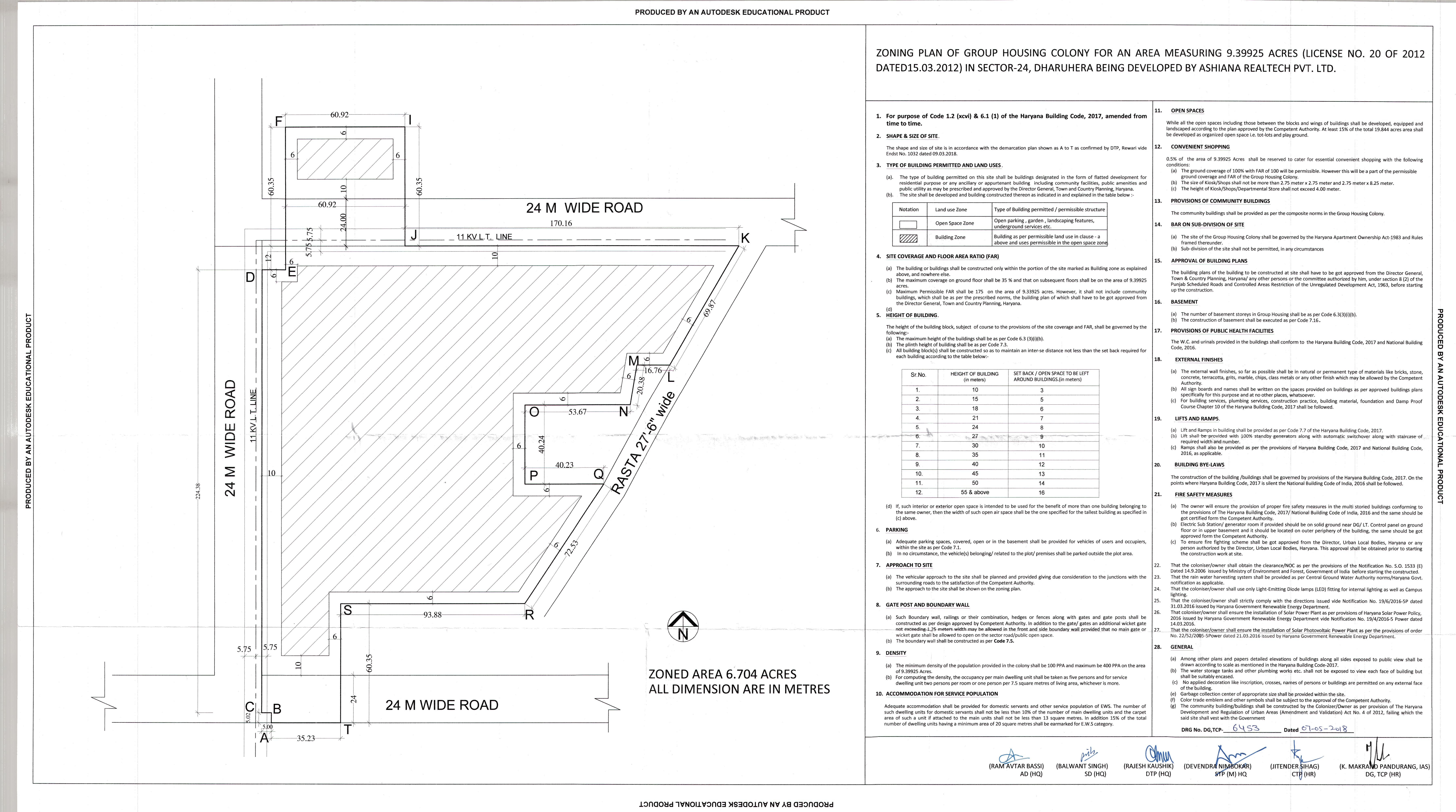
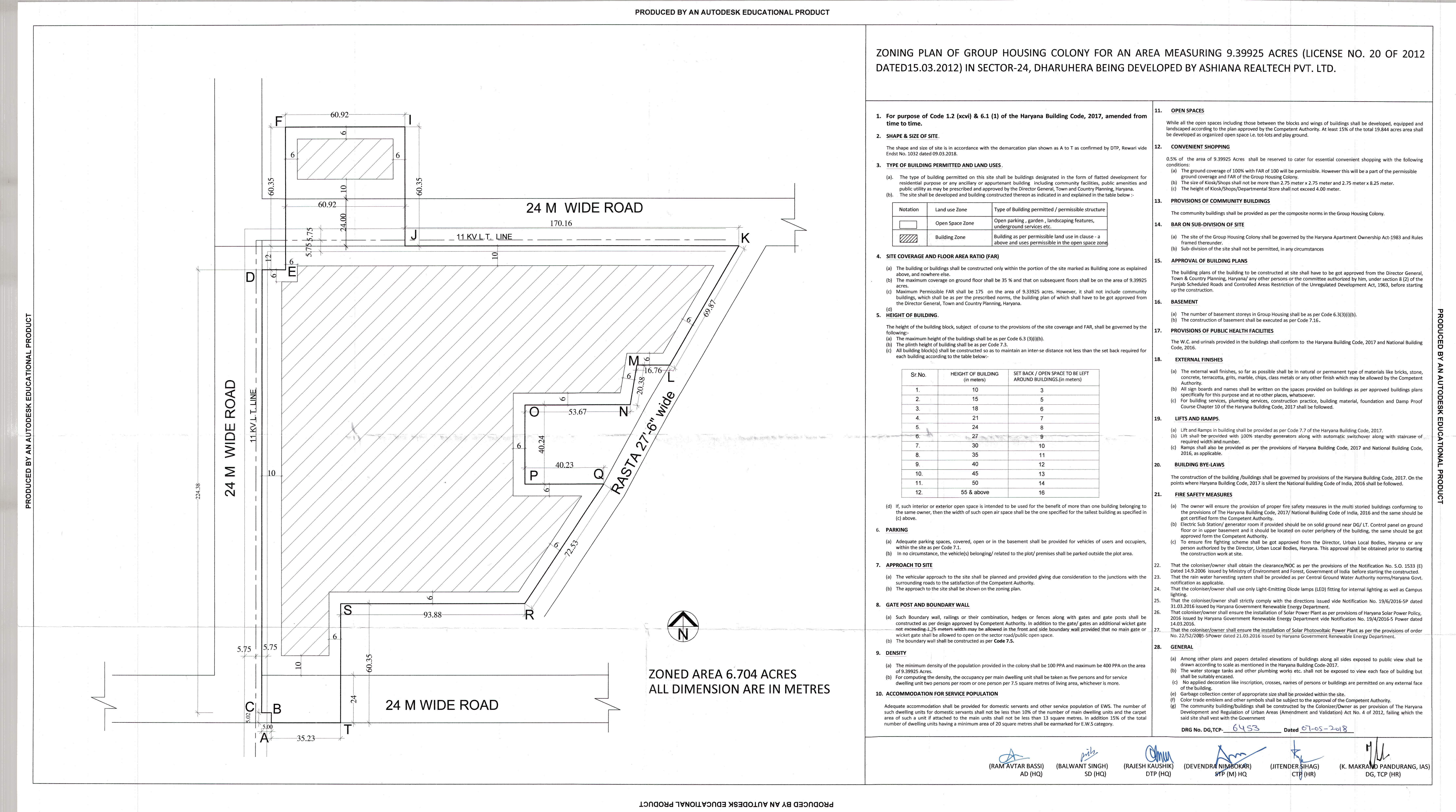
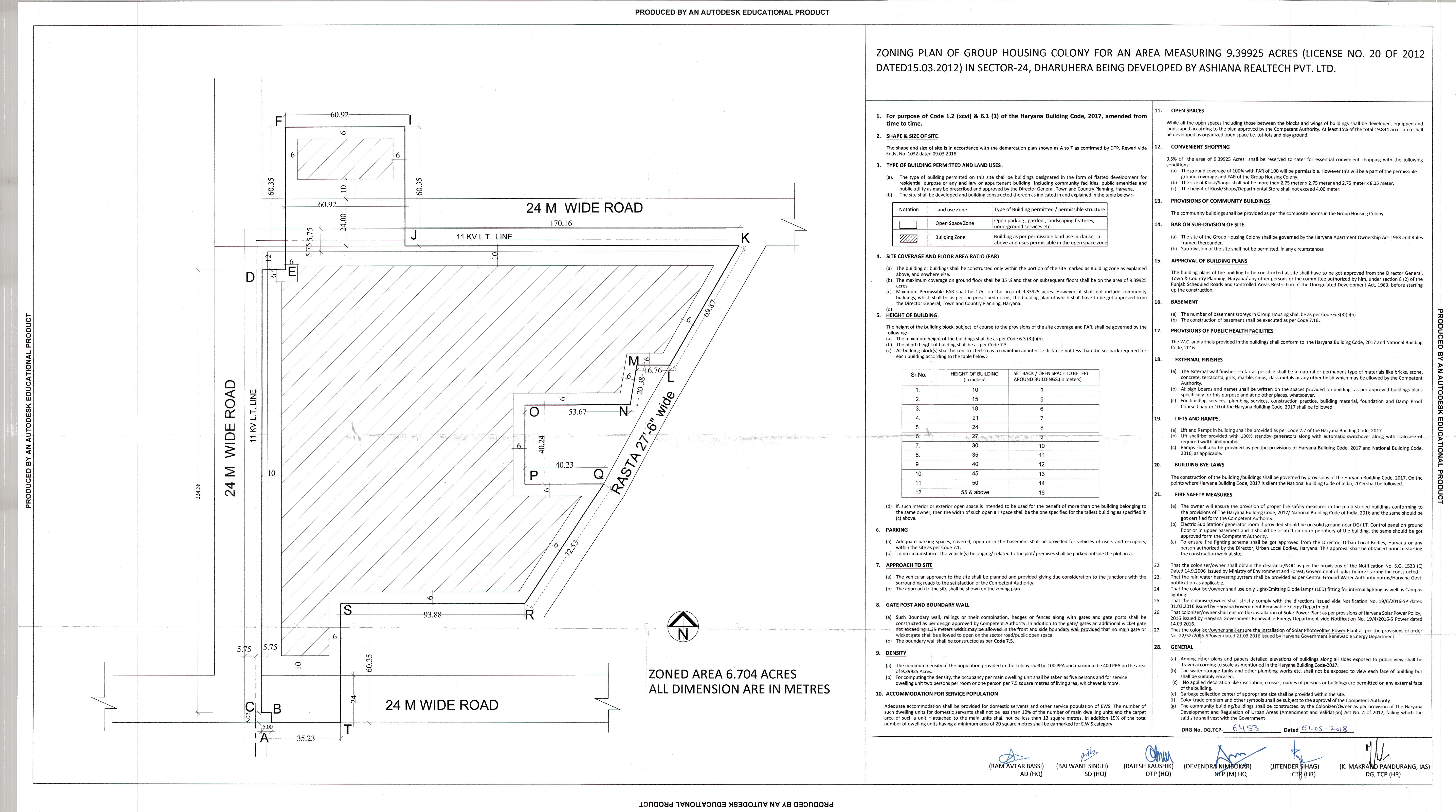
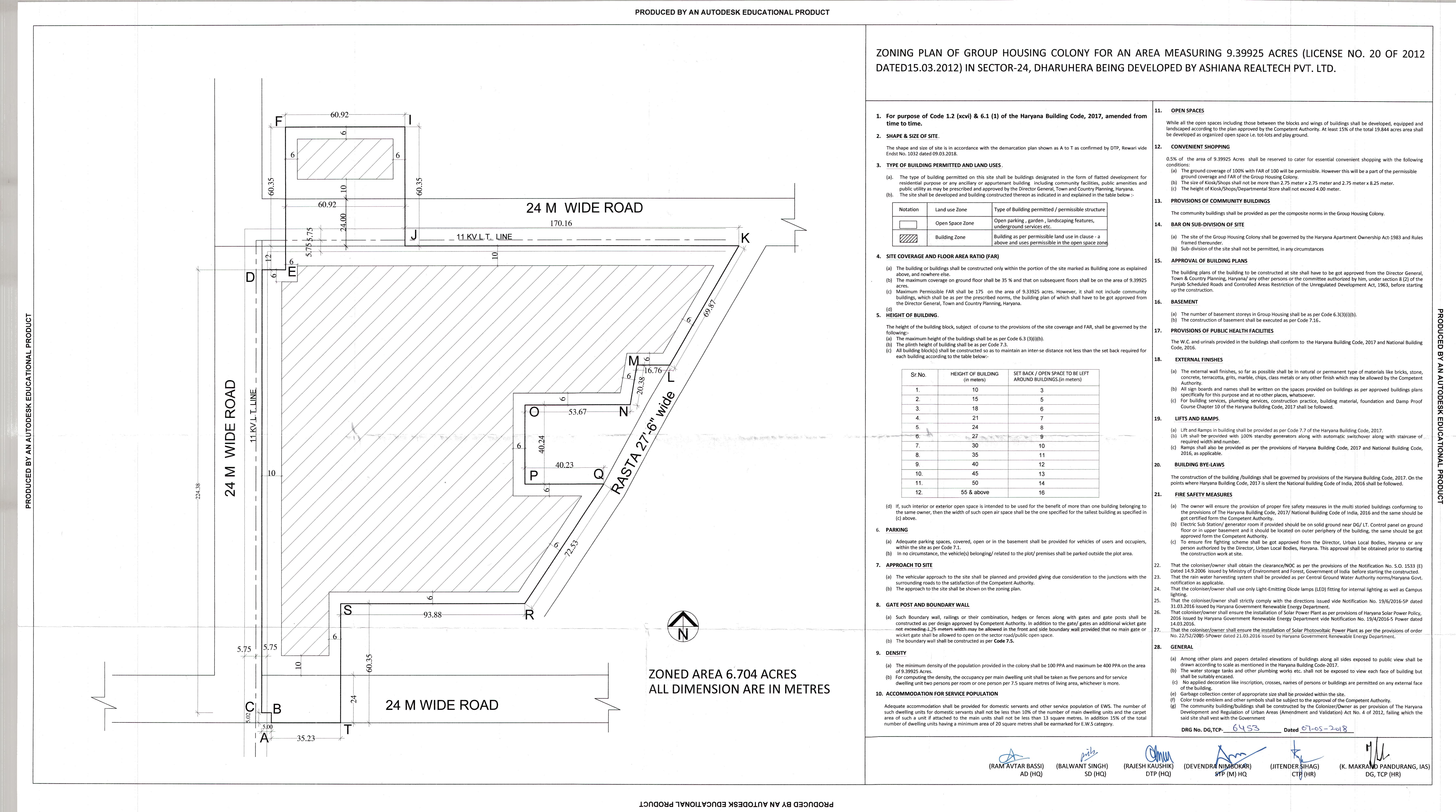
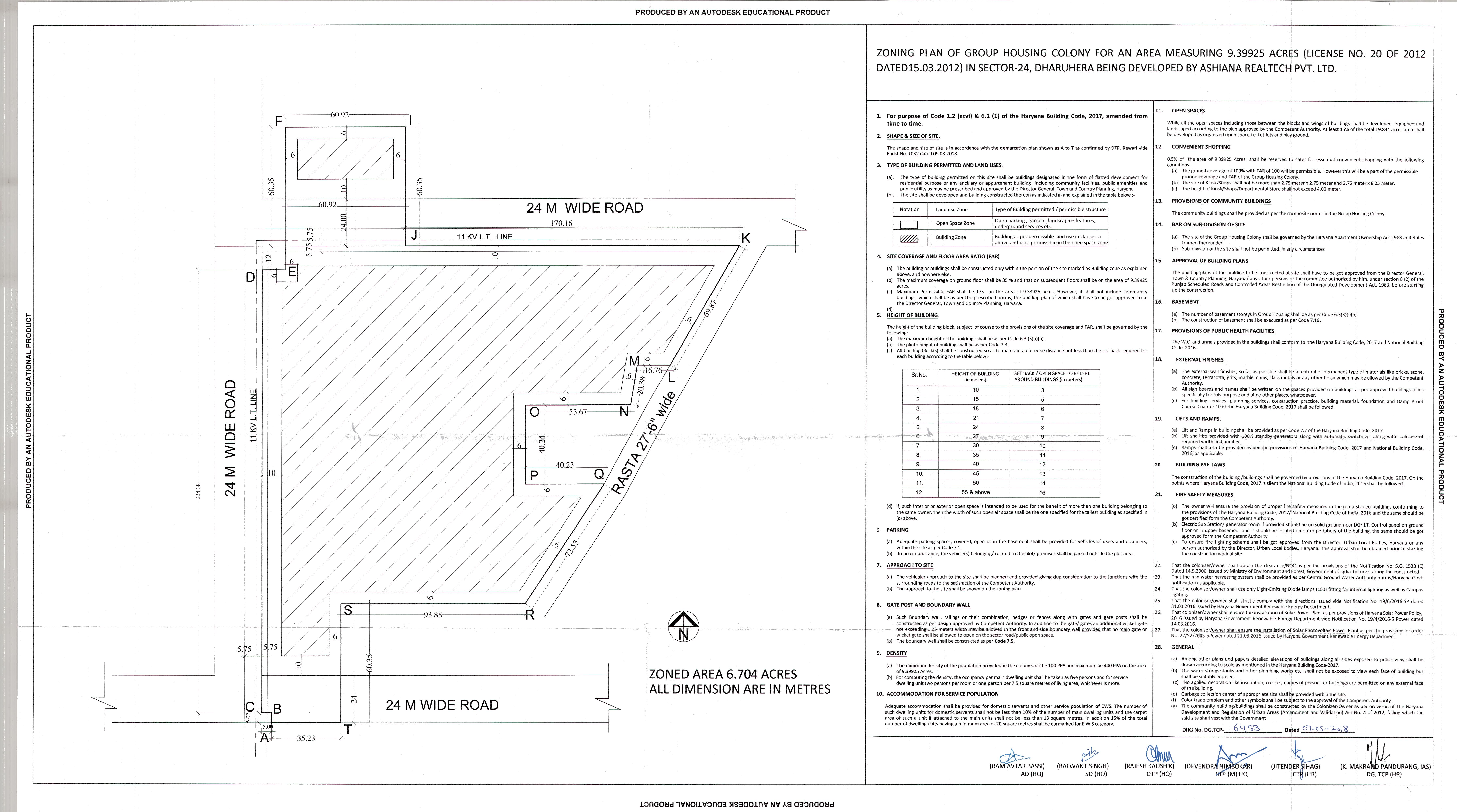
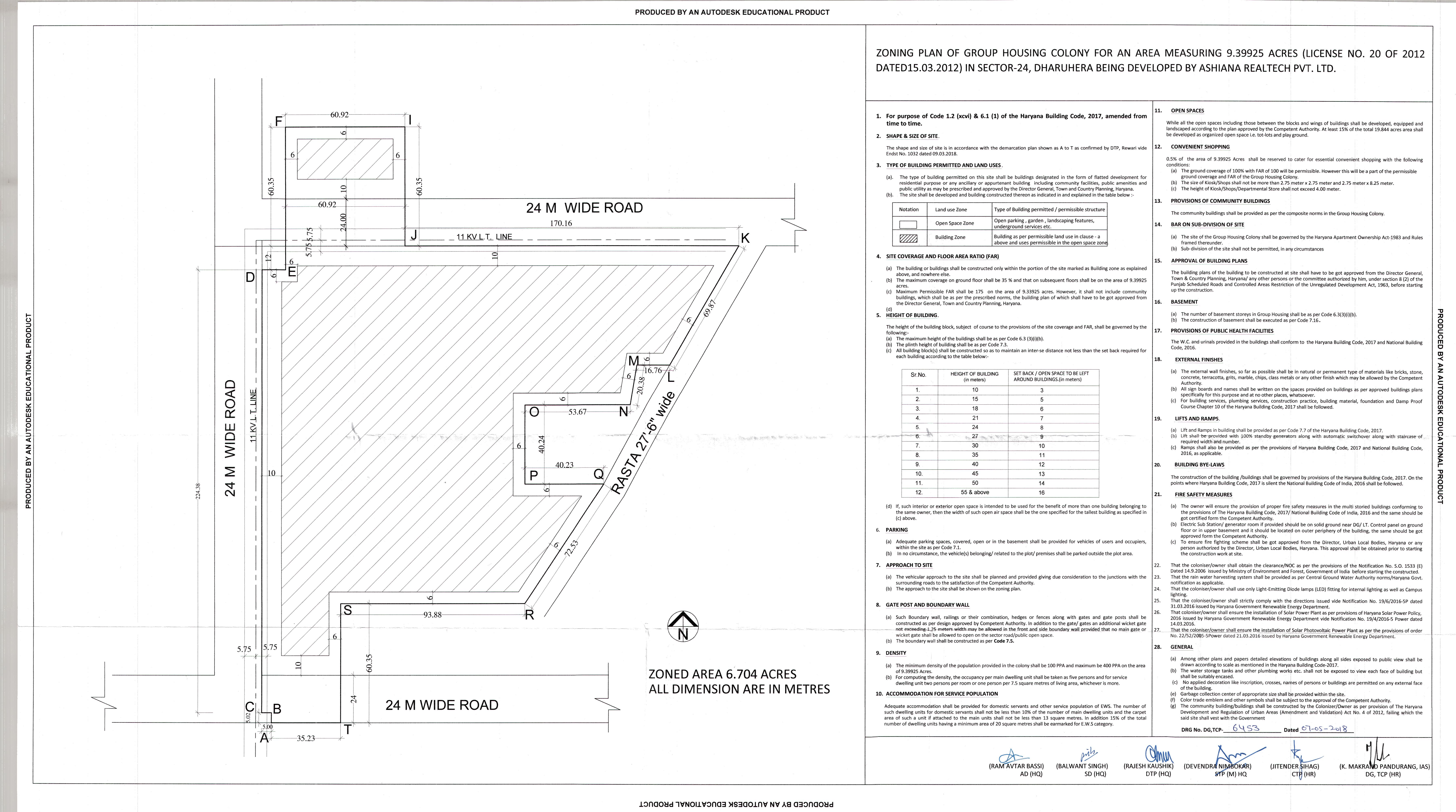
20 of 2012(valid up to14-03-2020) of 9.40 acre
Yes







18367.20 Lakhs
550.64 Lakhs
10012.28 Lakhs
4812.01 Lakhs
2992.27 Lakhs




Sr. No.Land area under usageArea of land (Square Meters)
1PLOTS TO BE SOLD 0.00
2LAND AREA TO BE USED FOR CONSTRUCTION OF APARTMENTS 5417.64
3CONSTRUCTION OF ROADS 6227.02
4PAVEMENTS 1000.00
5PARKS AND PLAYGROUNDS 10667.711
6GREEN BELTS 0.00
7VEHICLE PARKINGS 3237.50
8ELECTRICITY SUB-STATION 945.14
9CLUB HOUSE 484.20
10SEWAGE AND SOLID WASTE TREATMENT FACILITY 252.00
11AREA TO BE LEFT FOR TRANSFERRING TO THE GOVERNMENT FOR COMMUNITY SERVICES 0.00
12ANY OTHER 0.00
Total28231.211




FacilityExternal/ connecting service to be provided by (Name the agency)Whether Approval taken from the agency concerned. Yes/No (Annex details in folder C)
ROADSHUDANo
WATER SUPPLYHUDANo
ELECTRICITYDHBVNNo
SEWAGE DISPOSALDHBVNNo
STORM WATER DRAINAGEDHBVNNo




Sr. No.Name of the facilityEstimated cost (In Lakhs)(Within the project area only)Remarks: Yet to be prepared / Submitted to HUDA, Town & Country Planning Department/ as per project report etc. (Annex relevant documents showing costing details etc. in folder C)
1INTERNAL ROADS AND PAVEMENTS3525150YET TO BE PREPARED
2WATER SUPPLY SYSTEM40215350YET TO BE PREPARED
3STORM WATER DRAINAGE7315650YET TO BE PREPARED
4ELECTRICITY SUPPLY SYSTEM60305250YET TO BE PREPARED
5SEWAGE TREATMENT & GARBAGE DISPOSAL20201290YET TO BE PREPARED
6STREET LIGHTING2001250YET TO BE PREPARED
7SECURITY AND FIRE FIGHTING10100450YET TO BE PREPARED
8PLAYGROUNDS AND PARKS20685560YET TO BE PREPARED
9CLUB HOUSE/COMMUNITY CENTRE18509560YET TO BE PREPARED
10SHOPPING AREA3206550YET TO BE PREPARED
11RENEWABLE ENERGY SYSTEM0.00YET TO BE PREPARED
12SCHOOL14005370YET TO BE PREPARED
13HOSPITAL/DISPENSARY0.00YET TO BE PREPARED
14ANY OTHER272614230YET TO BE PREPARED
15SOLID WASTE COLLECTION8515650YET TO BE PREPARED


11-07-2018 (date)
30-10-2018 (date)


Sr. No.Plot/ apartment type Size of the plot/carpet area of the apartments Total number of plots/apartments in the project Total size of the plots/carpet area of the apartments Plots/apartments booked/ sold upto the date of application Yet to be sold/ booked No. of towers to be/ being constructed for booked apartments
1 APARTMENT/SHOPS/OTHER BUILDINGS Type 2BHK 655.95 120 78714 79 41 1
2 APARTMENT/SHOPS/OTHER BUILDINGS Type 2BHK + STORE 680.17 116 78899.72 74 42 1
3 APARTMENT/SHOPS/OTHER BUILDINGS Type 3BHK 862.94 240 207105.6 58 182 2
Total476364719.322112654






TypeNumber of apartments booked/ sold Write or Annex the stage of construction of the booked/ sold apartments in folder C
2BHK79CIVIL CONSTRUCTION COMPLETE FINISHING WORK 95 % COMPLETE
2BHK +STORE74CIVIL CONSTRUCTION COMPLETE FINISHING WORK 95 % COMPLETE
3BHK58CIVIL CONSTRUCTION COMPLETE FINISHING WORK 70 % COMPLETE


20-10-2012
20-10-2017
14-03-2020
01-08-2018
90
14-03-2020


PlotsBooked/soldStage of handing over the possession (Write or Annex details)
PLOT0NOT APLICABLE
01-08-2018
90
14-03-2020


766
0
0
259
0





Expenditure incurred till the date of application (In Lakhs)

ParticularsExpenditure
Apartments6090.13
Shops0
Plots0

Expenditure to be made in each quarter (In Lakhs)

ParticularsYear-2019
Jan-MarApr-JuneJuly-SepOct-Dec
Apartments6091.79
Shops10.06
Plots0




Expenditure incurred till the date of application (In Lakhs)

ParticularsExpenditure
Roads & Pavements21.56
Water Supply System245.15
Sewerage treatment & garbage disposal95.25
Electricity Supply System196.85
Storm Water Drainage8.72
Parks and Playgrounds35.25
Clubhouse/community centres25.15
Shopping area10.06
Other0

Expenditure to be made in each quarter (In Lakhs)

ParticularsYear-2019
Jan-MarApr-JuneJuly-SepOct-Dec
Roads & Pavements0
Water Supply System0
Sewerage treatment & garbage disposal0
Electricity Supply System0
Storm Water Drainage0
Parks and Playgrounds0
Clubhouse/community centres0
Shopping area0
Other0
PARKING0
EDC IDC0












Particulars Remarks, if any
i. No. of Flats/Apartments constructed476
ii. No. of Flats/ Apartments booked211
iii. Total amount sale value of booked Flats, on the date of application/end of last quarter8467.38 Lakhs
iv. Total amount received from the allottees (booked Flats), on the date of application/end of last quarter5863.06 Lakhs
v. Balance amount to be received from the allottees (booked Flats, after completion), on the date of application/end of last quarter1092.15 Lakhs
vi. Balance amount due and recoverable from the allottees (booked Flats) as on the date of application /end of last quarter1547.44 Lakhs
vii. Amount invested in the project upto the date of application11029.54 Lakhs
Land cost (If any)477.85 Lakhs
Apartments5612.28 Lakhs
Infrastructure2528.24 Lakhs
EDC/ Taxes Etc.2411.17 Lakhs
viii. Balance cost to be incurred for completion of the project and delivery of possession7337.66 Lakhs
(a) In respect of existing allottees2639.60 Lakhs
(b) In respect of rest of the project4698.06 Lakhs
ix. The amount of loan raised from the banks/ financial institutions/ private persons against the project
Annex detail of the securities furnished to the banks/ financial institutions against the aforesaid loans in folder C
0 Lakhs
x. Total liabilities against the project up-to-date. (Annex details in folder C) 0 Lakhs



Particulars Estimated expenditure planned to be incurred as per service plan estimates or the project report. (In Lakhs)Actual expenditure incurred upto the date of application. (In Lakhs)
I. INTERNAL ROADS AND PAVEMENTS35.2521.56
II. WATER SUPPLY SYSTEM402.15245.15
III. STORM WATER DRAINAGE73.168.72
IV. ELECTRICITY SUPPLY SYSTEM603.05196.85
V. SEWAGE TREATMENT & GARBAGE DISPOSAL202.0195.25
VI. CLUB HOUSE/COMMUNITY CENTRE185.1025.15
VII. SCHOOL140.050
VIII. ANY OTHER00
IX. SOLID WASTE COLLECTION & MGMT SYSTEM00
X. CLUBHOUSE00
XI. NEIGHBOURHOOD SHOPPING32.0710.06
XII. GREEN AREAS,PARKS,PLAYGROUNDS ETC.206.8635.25
XIII. COVERED PARKING2726.141890.25
XIV. OPEN PARKING85.160
XV. GARAGES00
XVI. SECURITY SYSTEM101.000
XVII. OTHER FACILITIES AS PER PROJECT REPORT20.010









Yes
No
FEDERAL BANK LTD
16800200001126
FDRL0001474
110049015
015
MOHIT GARG(DIRRECTOR) BN-31 E SHALIMAR BAGH DELHI-88
ATTACHED











Yes
Yes
Yes
Yes
Yes
Yes
Yes
Yes
Yes
Yes


No
No
No
No
No
No
No
No
Statutory Approvals Statutory Approvals StatusDate
I. LICENCE NO 20 OF 2012 DATED 15-03-2012 (RENEWED ON 20-03-2018)ALREADY BEEN OBTAINED20-03-2018
II. ENVIRONMENT CLEARANCEALREADY BEEN OBTAINED14-03-2014
III. FIRE NOCALREADY BEEN OBTAINED01-01-2013
IV. FOREST NOCALREADY BEEN OBTAINED11-03-2013
V. HARYANA STATE POLLUTION CONTROL BOARD (RENEWAL)ALREADY BEEN OBTAINED20-09-2017
VI. BUILDING PLAN APPROVAL(REVISED)ALREADY BEEN OBTAINED30-10-2018








Yes


Yes















SPECIFICATION OF CONSTRUCTION
Specification of apartments and other buildings including the following:
1FLOORING DETAILS OF VARIOUS PARTS OF HOUSEVITRIFED TILE
2WALL FINISHING DETAILSPOP CORNICES WITH LOW VOC ACRYLIC EMULSION IN PLEASING SHADES WITH POP
3KITCHEN DETAILSFLOOR ANTISKID CERAMIC TILES WALLS CERAMICS TILES UP TO " HEIGHT, MIRROR & LOW VOC ACRYLIC EMULSION COMBINATION CEILING OBD COUNTERS GRANITE SANITARY WARE/ CP FITTINGS/FIXURES CP FITTINGS OF MARC/PARKO/ OR EQUIVALENT, SS SINGLE BOWL SINK WITH DRAIN BOARD
4BATHROOM FITTINGSCP FITTINGS OF MARC/PARKO OR EQUIVALENT, VITRIEOUS CHINA, GLAZED WC & WASH BASIN
5WOOD WORK ETCNA
6DOORS AND WINDOS FRAMESNA
7GLASS WORKNA
8ELECTRIC FITTINGSNA
9CONDUCTING AND WIRING DETAILSNA
10CUPBOARD DETAILSNA
11WATER STORAGENA
12LIFT DETAILSNA
13EXTERNAL GLAZINGSNA
13.1WINDOWS/GLAZINGSNA
14DOORSNA
14.1MAIN DOORSNA
14.2INTERNAL DOORSNA
15AIR CONDITIONINGNA
16ELECTRICAL FITTINGSNA
17CNG PIPE LINENA
18PROVISION OF WIFI AND BROADBAND FACILITYNA
19EXTERNAL FINISHING/COLOUR SCHEMENA
20INTERNAL FINISHINGNA
SPECIFICATION UNIT WISE
1 . LIVING/DINING/FOYER/FAMILY LOUNGE
1 . 1 FLOORNA
1 . 2 WALLSNA
1 . 3 CEILINGNA
2 . MASTER BEDROOM/DRESSROOM
2 . 1 FLOORVITRIFED TILE
2 . 2 WALLSBEDROOMS WITH LOW VOC ACRYLIC EMULSION IN PLEASING SHADES WITH POP
2 . 3 CEILINGPOP CORNICES WITH OBD
2 . 4 MODULAR WARDROBESNA
3 . MASTER TOILET
3 . 1 FLOORANTISKID CERAMIC TILES
3 . 2 WALLSCERAMICS TILES UP TO " HEIGHT, MIRROR & LOW VOC ACRYLIC EMULSION COMBINATION
3 . 3 CEILINGOBD
3 . 4 COUNTERSGRANITE
3 . 5 SANITARY WARE/CP FITTINGSCP FITTINGS OF MARC/PARKO OR EQUIVALENT, VITRIEOUS CHINA GLAZED WC & WASH BASIN,
3 . 6 FITTING/FIXTURESNA
4 . BED ROOMS
4 . 1 FLOORNA
4 . 2 WALLSNA
4 . 3 CEILINGNA
4 . 4 WARDROBESNA
5 . TOILET
5 . 1 FLOORANTISKID CERAMIC TILES
5 . 2 WALLSCERAMICS TILES UP TO " HEIGHT, MIRROR & LOW VOC ACRYLIC EMULSION COMBINATION
5 . 3 CEILINGOBD
5 . 4 COUNTERSNA
5 . 5 SANITARY WARE/CP FITTINGSCP FITTINGS OF MARC/PARKO OR EQUIVALENT, VITRIEOUS CHINA GLAZED WC & WASH BASIN
5 . 6 FIXTURESNA
6 . KITCHEN
6 . 1 FLOORANTISKID CERAMIC TILES
6 . 2 WALLSCERAMICS TILES UP TO " HEIGHT, MIRROR & LOW VOC ACRYLIC EMULSION COMBINATION
6 . 3 CEILINGOBD
6 . 4 COUNTERSGRANITE
6 . 5 FIXTURESCP FITTINGS OF MARC/PARKO/ OR EQUIVALENT, SS SINGLE BOWL SINK WITH DRAIN BOARD
6 . 6 KITCHEN APPLIANCESNA
7 . UTILITY ROOMS/UTILITY BALCONY/TOILET
7 . 1 FLOORNA
7 . 2 WALLS & CEILINGNA
7 . 3 TOILETNA
7 . 4 BALCONYNA
8 . SIT-OUTS
8 . 1 FLOORNA
8 . 2 WALLS & CEILINGNA
8 . 3 RAILINGSNA
8 . 4 FIXTURESNA












Sr. No.Document DescriptionDate of Document UploadView Document
1 IN CASE OF GROUP HOUSING/ COMMERCIAL SITES, A COPY OF THE APPROVED SITE PLAN 21-06-2019 View Document
2 COPY OF LICENSE ALONG WITH SCHEDULE OF LAND 21-06-2019 View Document
3 IN CASE OF PLOTTED COLONY, THE LATEST LAYOUT PLAN 21-06-2019 View Document
4 ZONING PLAN 26-06-2019 View Document
5 BALANCE SHEET 2017-18 26-06-2019 View Document
6 PROPERTY PAPER 26-06-2019 View Document
7 NON DEFAULT CERTIFICATE FROM A CHARTERED ACCOUNTANT 25-06-2019 View Document
8 DECLARATION SUPPORTED BY AFFIDAVIT DULY SIGNED BY THE PROMOTER TO BE ENCLOSED. 25-06-2019 View Document
9 BALANCE SHEET 2016-17 26-06-2019 View Document
10 BALANCE SHEET 2015-16 26-06-2019 View Document
11 PRPERTY PAPER 26-06-2019 View Document
12 PROPERTY PAPER 26-06-2019 View Document
13 CASH FLOW STATEMENT UPTO 31-03-2019 26-06-2019 View Document
14 DOCUMENTS RELATING TO THE ENTRY OF LICENSE AND COLLABORATION AGREEMENT IN THE REVENUE RECORD 21-06-2019 View Document












Sr. No.Document DescriptionDate of Document UploadView Document
1 Second Registration of Registration. 20-07-2020 View Document
2 CORRIGENDUM 30-10-2023 View Document
3 Corrigendum Uploaded 31-10-2023 View Document
4 Corrigendum Uploaded 24-04-2026 View Document