HRERA PanchkulaTemp Project Id : RERA-PKL-PROJ-594-2019
Submission Date : 06-07-2019 06:33:25 AM
Applicant Type : Firm
Project Type: ONGOING


NEXTRA DEVELOPERS LLP
REAL ESTATE
01161408900
9992220621 (Number Shared by Promoter in Public)
info@nextradevelopers.com
AAD8248
ACWFS5427M















NEXTRA CITY
SECTOR 2, VILLAGE KHARKHODA AND PIPLI, TEHSIL KHARKHODA, DISTT SONIPET, HARAYANA
KHARKHODA
SONIPAT
9992220621 (Number Shared by Promoter in Public)
info@nextradevelopers.com
AJAY GEHLOT
9992220621 (Number Shared by Promoter in Public)
info@nextradevelopers.com








As per sub-rule(2) of rule 3 of the Haryana Real Estate (Regulation and Development) Rules,2017, the fee for registration of the project as has been calculated as follows:
-----------------------------------------------------------------------------------------------------------------------
-----------------------------------------------------------------------------------------------------------------------
-----------------------------------------------------------------------------------------------------------------------
-----------------------------------------------------------------------------------------------------------------------
2. The aforesaid fees is hereby deposited vide following Drafts/ Banker’s Cheques:-

Sr No.Draft/Cheque No.Draft DateAmountPayee BankPayable To
112623311-07-2017298656PUNJAB NATIONAL BANKHRERA Panchkula
27121-07-2018150000CITY UNION BANKHRERA Panchkula







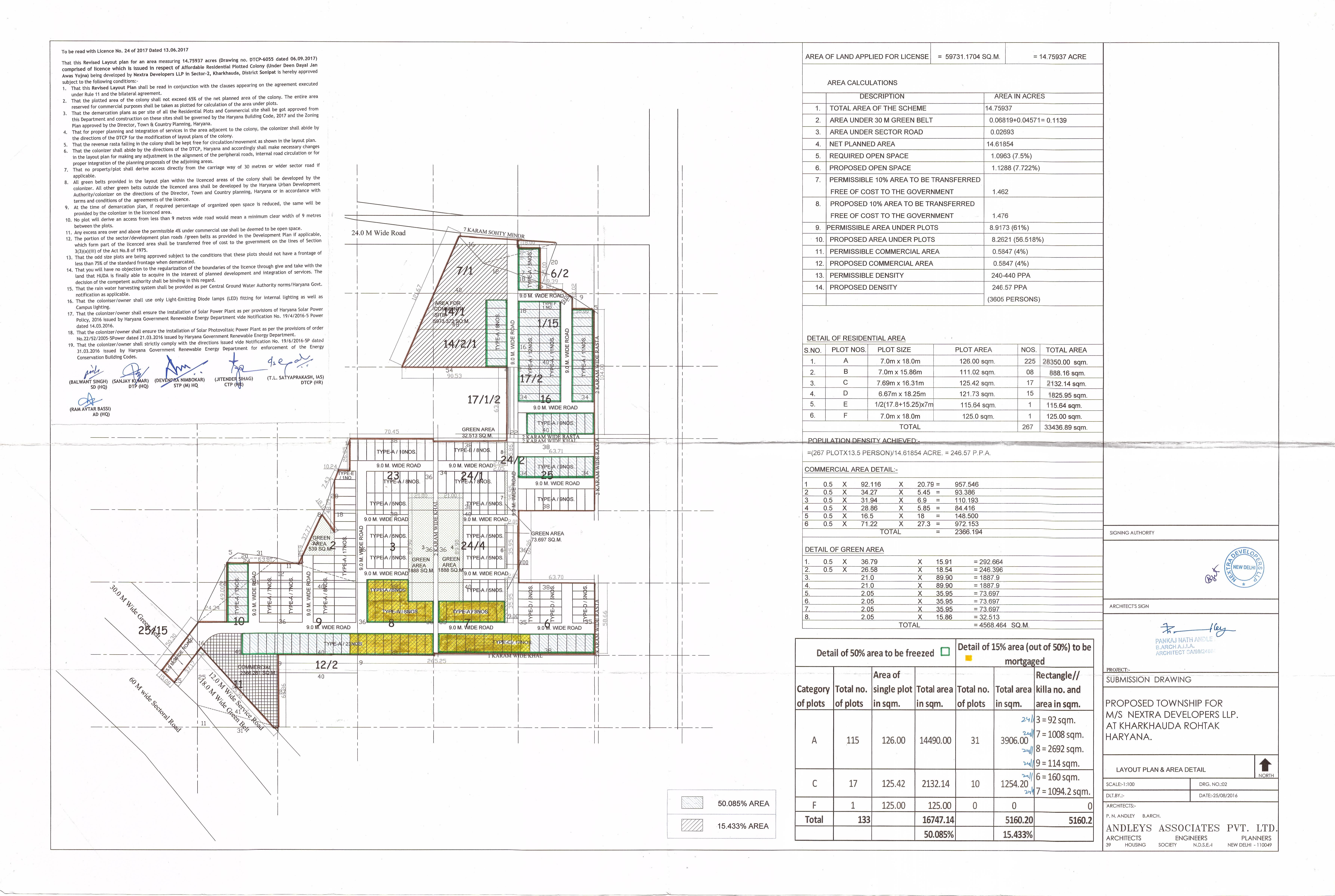
14.75937 (Acre)
NA
0
14.75937 (Acre)
24 of 2017
Yes







2114 Lakhs
1704 Lakhs
0 Lakhs
410 Lakhs
18.45 Lakhs




Sr. No.Land area under usageArea of land (Square Meters)
1PLOTS TO BE SOLD 33061.91
2LAND AREA TO BE USED FOR CONSTRUCTION OF APARTMENTS 0
3CONSTRUCTION OF ROADS 8489.25
4PAVEMENTS 0
5PARKS AND PLAYGROUNDS 4568.464
6GREEN BELTS 275.659
7VEHICLE PARKINGS 0
8ELECTRICITY SUB-STATION 120
9CLUB HOUSE 0
10SEWAGE AND SOLID WASTE TREATMENT FACILITY 262.684
11AREA TO BE LEFT FOR TRANSFERRING TO THE GOVERNMENT FOR COMMUNITY SERVICES 5973.251
12ANY OTHER 0
Total52751.218




FacilityExternal/ connecting service to be provided by (Name the agency)Whether Approval taken from the agency concerned. Yes/No (Annex details in folder C)
ROADSPROVISON IS NOT AVAILABLENo
WATER SUPPLYPROVISON IS NOT AVAILABLENo
ELECTRICITYUHBVNYes
SEWAGE DISPOSALPROVISON IS NOT AVAILABLENo
STORM WATER DRAINAGEPROVISON IS NOT AVAILABLENo




Sr. No.Name of the facilityEstimated cost (In Lakhs)(Within the project area only)Remarks: Yet to be prepared / Submitted to HUDA, Town & Country Planning Department/ as per project report etc. (Annex relevant documents showing costing details etc. in folder C)
1INTERNAL ROADS AND PAVEMENTS83.79AS PER PROJECT REPORT
2WATER SUPPLY SYSTEM23.56AS PER PROJECT REPORT
3STORM WATER DRAINAGE50.85AS PER PROJECT REPORT
4ELECTRICITY SUPPLY SYSTEM48.5AS PER PROJECT REPORT
5SEWAGE TREATMENT & GARBAGE DISPOSAL76.77AS PER PROJECT REPORT
6STREET LIGHTING17.16AS PER PROJECT REPORT
7SECURITY AND FIRE FIGHTING35AS PER PROJECT REPORT
8PLAYGROUNDS AND PARKS36.87AS PER PROJECT REPORT
9CLUB HOUSE/COMMUNITY CENTRE0YET TO BE PREPARED
10SHOPPING AREA0YET TO BE PREPARED
11RENEWABLE ENERGY SYSTEM0YET TO BE PREPARED
12SCHOOL0YET TO BE PREPARED
13HOSPITAL/DISPENSARY0YET TO BE PREPARED
14ANY OTHER90AS PER PROJECT REPORT
15SEWARAGE43.15AS PER PROJECT REPORT


13-06-2017 (date)
NA (date)


Sr. No.Plot/ apartment type Size of the plot/carpet area of the apartments Total number of plots/apartments in the project Total size of the plots/carpet area of the apartments Plots/apartments booked/ sold upto the date of application Yet to be sold/ booked No. of towers to be/ being constructed for booked apartments
1 PLOT Type RESIDENTIAL 126 267 33642 96 171 0
Total26733642961710






TypeNumber of apartments booked/ sold Write or Annex the stage of construction of the booked/ sold apartments in folder C
NA0NA


N/A
N/A
N/A
07-08-2017
0
31-12-2019


PlotsBooked/soldStage of handing over the possession (Write or Annex details)
PLOT96POSSESSION STARTED
07-08-2017
96
31-12-2019


0
0
0
0
0





Expenditure incurred till the date of application (In Lakhs)

ParticularsExpenditure
Apartments0
Shops0
Plots506

Expenditure to be made in each quarter (In Lakhs)

ParticularsExpenditure to be made in each quarter ()
Apr-JuneJuly-SepOct-DecJan-Mar




Expenditure incurred till the date of application (In Lakhs)

ParticularsExpenditure
Roads & Pavements83.79
Water Supply System23.56
Sewerage treatment & garbage disposal76.77
Electricity Supply System48.5
Storm Water Drainage50.85
Parks and Playgrounds36.87
Clubhouse/community centres0
Shopping area0
Other90
Sewarage43.15
Street Light17.16
UGT and Firefighting35

Expenditure to be made in each quarter (In Lakhs)

ParticularsExpenditure to be made in each quarter ()
Apr-JuneJuly-SepOct-DecJan-Mar












Particulars Remarks, if any
i. No. of Flats/Apartments constructed0NA
ii. No. of Flats/ Apartments booked0NA
iii. Total amount sale value of booked Flats, on the date of application/end of last quarter0 LakhsNA
iv. Total amount received from the allottees (booked Flats), on the date of application/end of last quarter0 LakhsNA
v. Balance amount to be received from the allottees (booked Flats, after completion), on the date of application/end of last quarter0 LakhsNA
vi. Balance amount due and recoverable from the allottees (booked Flats) as on the date of application /end of last quarter0 LakhsNA
vii. Amount invested in the project upto the date of application0 LakhsNA
Land cost (If any)0 Lakhs1704
Apartments0 LakhsNA
Infrastructure0 Lakhs506
EDC/ Taxes Etc.0 Lakhs18.45
viii. Balance cost to be incurred for completion of the project and delivery of possession0 Lakhs45
(a) In respect of existing allottees0 LakhsNA
(b) In respect of rest of the project0 LakhsNA
ix. The amount of loan raised from the banks/ financial institutions/ private persons against the project
Annex detail of the securities furnished to the banks/ financial institutions against the aforesaid loans in folder C
0 LakhsNA
x. Total liabilities against the project up-to-date. (Annex details in folder C) 0 LakhsNA



Particulars Estimated expenditure planned to be incurred as per service plan estimates or the project report. (In Lakhs)Actual expenditure incurred upto the date of application. (In Lakhs)
I. INTERNAL ROADS AND PAVEMENTS083.79
II. WATER SUPPLY SYSTEM023.56
III. STORM WATER DRAINAGE050.85
IV. ELECTRICITY SUPPLY SYSTEM048.5
V. SEWAGE TREATMENT & GARBAGE DISPOSAL076.77
VI. CLUB HOUSE/COMMUNITY CENTRE00
VII. SCHOOL00
VIII. ANY OTHER090
IX. SOLID WASTE COLLECTION & MGMT SYSTEM00
X. CLUBHOUSE00
XI. NEIGHBOURHOOD SHOPPING00
XII. GREEN AREAS,PARKS,PLAYGROUNDS ETC.036.87
XIII. COVERED PARKING00
XIV. OPEN PARKING00
XV. GARAGES00
XVI. SECURITY SYSTEM00
XVII. OTHER FACILITIES AS PER PROJECT REPORT096









Yes
Yes
PUNJAB NATION BANK AND MID CORPORATE BRANCH
4196002100011155
PUNB0419600
110024225
419600
MUKESH GUPTA, PLOT NO 4B, Mayur Vihar PHASE 1 EXT, DISTRICT CENTER, DELHI 110091
NOT DEFAULTED











Yes
Yes
Yes
No
No
No
No
No
No
No


Yes
Yes
Yes
Yes
Yes
Yes
No
No
Statutory Approvals Statutory Approvals StatusDate
I. SEWERAGE PLAN, DA WATER SUPPLY PLAN, IRRIGATION WATER SUPPLY PLAN, ROAD PLAN, DRAINAGE PLAN, ALREADY BEEN OBTAINED27-09-2018
II. LICENSE FROM DTCPALREADY BEEN OBTAINED13-06-2017
III. RERA CERTIFICATE,ALREADY BEEN OBTAINED07-08-2017
IV. CLEARANCE FROM FOREST DEPARTMENT,ALREADY BEEN OBTAINED10-08-2017
V. CLEARANCE FROM ENVIRONMENT DEPARTMENT,ALREADY BEEN OBTAINED06-09-2017
VI. DEMARCATION PLAN, ZONNING PLANALREADY BEEN OBTAINED19-03-2018
VII. ELECTRICAL PLANALREADY BEEN OBTAINED08-08-2018








Yes


Yes















SPECIFICATION OF CONSTRUCTION
Specification of apartments and other buildings including the following:
1FLOORING DETAILS OF VARIOUS PARTS OF HOUSENA
2WALL FINISHING DETAILSNA
3KITCHEN DETAILSNA
4BATHROOM FITTINGSNA
5WOOD WORK ETCNA
6DOORS AND WINDOS FRAMESNA
7GLASS WORKNA
8ELECTRIC FITTINGSNA
9CONDUCTING AND WIRING DETAILSNA
10CUPBOARD DETAILSNA
11WATER STORAGENA
12LIFT DETAILSNA
13EXTERNAL GLAZINGSNA
13.1WINDOWS/GLAZINGSNA
14DOORSNA
14.1MAIN DOORSNA
14.2INTERNAL DOORSNA
15AIR CONDITIONINGNA
16ELECTRICAL FITTINGSNA
17CNG PIPE LINENA
18PROVISION OF WIFI AND BROADBAND FACILITYNA
19EXTERNAL FINISHING/COLOUR SCHEMENA
20INTERNAL FINISHINGNA
SPECIFICATION UNIT WISE
1 . LIVING/DINING/FOYER/FAMILY LOUNGE
1 . 1 FLOORNA
1 . 2 WALLSNA
1 . 3 CEILINGNA
2 . MASTER BEDROOM/DRESSROOM
2 . 1 FLOORNA
2 . 2 WALLSNA
2 . 3 CEILINGNA
2 . 4 MODULAR WARDROBESNA
3 . MASTER TOILET
3 . 1 FLOORNA
3 . 2 WALLSNA
3 . 3 CEILINGNA
3 . 4 COUNTERSNA
3 . 5 SANITARY WARE/CP FITTINGSNA
3 . 6 FITTING/FIXTURESNA
4 . BED ROOMS
4 . 1 FLOORNA
4 . 2 WALLSNA
4 . 3 CEILINGNA
4 . 4 WARDROBESNA
5 . TOILET
5 . 1 FLOORNA
5 . 2 WALLSNA
5 . 3 CEILINGNA
5 . 4 COUNTERSNA
5 . 5 SANITARY WARE/CP FITTINGSNA
5 . 6 FIXTURESNA
6 . KITCHEN
6 . 1 FLOORNA
6 . 2 WALLSNA
6 . 3 CEILINGNA
6 . 4 COUNTERSNA
6 . 5 FIXTURESNA
6 . 6 KITCHEN APPLIANCESNA
7 . UTILITY ROOMS/UTILITY BALCONY/TOILET
7 . 1 FLOORNA
7 . 2 WALLS & CEILINGNA
7 . 3 TOILETNA
7 . 4 BALCONYNA
8 . SIT-OUTS
8 . 1 FLOORNA
8 . 2 WALLS & CEILINGNA
8 . 3 RAILINGSNA
8 . 4 FIXTURESNA












Sr. No.Document DescriptionDate of Document UploadView Document
1 COPY OF LICENSE ALONG WITH SCHEDULE OF LAND 06-07-2019 View Document
2 SERVICE PLANS SHOWING THE SERVICES ON THE LAYOUT PLAN 06-07-2019 View Document
3 DOCUMENTS RELATING TO THE ENTRY OF LICENSE AND COLLABORATION AGREEMENT IN THE REVENUE RECORD 06-07-2019 View Document
4 COLLABORATION AGREEMENT 06-07-2019 ------
5 COLLABORATION AGREEMENT 06-07-2019 ------
6 COLLABORATION AGREEMENT 06-07-2019 ------
7 IN CASE OF PLOTTED COLONY, THE LATEST LAYOUT PLAN 06-07-2019 View Document
8 DEMARCATION PLAN 06-07-2019 View Document
9 ZONING PLAN 06-07-2019 View Document
10 CASH FLOW STATEMENT OF THE PROPOSED PROJECT 06-07-2019 View Document
11 CERTIFICATE FROM A CHARTERED ACCOUNTANT CERTIFYING THAT THE INFORMSTION PROVIDED BY THE APPLICANT IN FORM REP-1-C-X IS CORRECT AS PER THE BOOKS OF ACCOUNTS/ BALANCE SHEET OF THE APPLICANT 06-07-2019 View Document
12 NON DEFAULT CERTIFICATE FROM A CHARTERED ACCOUNTANT 06-07-2019 View Document
13 DECLARATION SUPPORTED BY AFFIDAVIT DULY SIGNED BY THE PROMOTER TO BE ENCLOSED. 06-07-2019 View Document
14 RERA CERTIFICATE 06-07-2019 ------
15 IN CASE OF GROUP HOUSING/ COMMERCIAL SITES, A COPY OF THE APPROVED SITE PLAN 06-07-2019 View Document
16 A COMPLETE SET OF THE LAST APPROVED BUILDING PLANS 06-07-2019 View Document












Sr. No.Document DescriptionDate of Document UploadView Document
1 Second Extension 04-04-2022 View Document
2 Extension Of Registraton 15-01-2020 View Document
3 Completion Certificate 23-10-2023 View Document