HRERA PanchkulaTemp Project Id : RERA-PKL-PROJ-557-2019
Submission Date : 18-05-2019 06:05:31 AM
Applicant Type : Company
Project Type: NEW




HRH CITY PROJECTS PRIVATE LIMITED
PLOT NO 660 SECTOR 16A FARIDABAD HARYANA 121002
01294882109
9654781300 (Number Shared by Promoter in Public)
HRHCITY@GMAIL.COM
XXXX431H
U45400DL2011PTC223970
 
 


 
 


 
 


 
 







VASANT VALLEY
SECTOR 56A FARIDABAD
BALLABGARH
FARIDABAD
01294882109
9654781300 (Number Shared by Promoter in Public)
HRHCITY@GMAIL.COM
VIKAS SHARMA
01294882109
9654781300 (Number Shared by Promoter in Public)
HRHCITY@GMAIL.COM








As per sub-rule(2) of rule 3 of the Haryana Real Estate (Regulation and Development) Rules,2017, the fee for registration of the project as has been calculated as follows:
-----------------------------------------------------------------------------------------------------------------------
-----------------------------------------------------------------------------------------------------------------------
-----------------------------------------------------------------------------------------------------------------------
-----------------------------------------------------------------------------------------------------------------------
2. The aforesaid fees is hereby deposited vide following Drafts/ Banker’s Cheques:-

Sr No.Draft/Cheque No.Draft DateAmountPayee BankPayable To
164276015-05-20191291300FEDERAL BANKHRERA Panchkula







25292.85 (Sqr/mtrs)
56403.11
225
25292.85 (Sqr/mtrs)
41 OF 2019(05-03-2019)
No
Address     HOUSE NO. 1001, SECTOR-7C, FARIDABAD.
Annexure-B- YES
YES
Yes
LAND OWNER WITH REVENUE SHARING OF 35% WITH THE LAND OWNER AND 65 % TO THE COMPANY FOR DEVELOPMENT.
No
Yes
Yes







20885.03535 Lakhs
7687.5 Lakhs
9350 Lakhs
350 Lakhs
3497.53535 Lakhs




Sr. No.Land area under usageArea of land (Square Meters)
1PLOTS TO BE SOLD 0
2LAND AREA TO BE USED FOR CONSTRUCTION OF APARTMENTS 5326.08
3CONSTRUCTION OF ROADS 6546
4PAVEMENTS 3618.60
5PARKS AND PLAYGROUNDS 3558.21
6GREEN BELTS 1590
7VEHICLE PARKINGS 3544.25
8ELECTRICITY SUB-STATION 100
9CLUB HOUSE 409.71
10SEWAGE AND SOLID WASTE TREATMENT FACILITY 600
11AREA TO BE LEFT FOR TRANSFERRING TO THE GOVERNMENT FOR COMMUNITY SERVICES 0
12ANY OTHER 0
Total25292.85




FacilityExternal/ connecting service to be provided by (Name the agency)Whether Approval taken from the agency concerned. Yes/No (Annex details in folder C)
ROADSHSVPYes
WATER SUPPLYHSVPYes
ELECTRICITYDHBVNNo
SEWAGE DISPOSALHSVPYes
STORM WATER DRAINAGEHSVPYes




Sr. No.Name of the facilityEstimated cost (In Lakhs)(Within the project area only)Remarks: Yet to be prepared / Submitted to HUDA, Town & Country Planning Department/ as per project report etc. (Annex relevant documents showing costing details etc. in folder C)
1INTERNAL ROADS AND PAVEMENTS87.5AS PER PROJECT REPORT
2WATER SUPPLY SYSTEM129.7AS PER PROJECT REPORT
3STORM WATER DRAINAGE101.25AS PER PROJECT REPORT
4ELECTRICITY SUPPLY SYSTEM274.8AS PER PROJECT REPORT
5SEWAGE TREATMENT & GARBAGE DISPOSAL234.64AS PER PROJECT REPORT
6STREET LIGHTING18.44AS PER PROJECT REPORT
7SECURITY AND FIRE FIGHTING88.6AS PER PROJECT REPORT
8PLAYGROUNDS AND PARKS25.7AS PER PROJECT REPORT
9CLUB HOUSE/COMMUNITY CENTRE66.15AS PER PROJECT REPORT
10SHOPPING AREA285.6AS PER PROJECT REPORT
11RENEWABLE ENERGY SYSTEM18.4AS PER PROJECT REPORT
12SCHOOL0AS PER PROJECT REPORT
13HOSPITAL/DISPENSARY0AS PER PROJECT REPORT
14ANY OTHER0AS PER PROJECT REPORT


03-05-2019 (date)
03-05-2019 (date)
15-08-2019
14-08-2024
Sr. No Plot Area(In Square Meter)Number of plots in the project
1 0 0
Total0


TypeCarpet area(In Square Meter)Number of apartmentsNumber of towers
Apartment/Shops/Other Buildings60.01542280
Apartment/Shops/Other Buildings49.61024000
Apartment/Shops/Other Buildings50.53932280
Apartment/Shops/Other Buildings49.6102560





Expenditure incurred till the date of application (In Lakhs)

ParticularsExpenditure
Apartments0
Shops0
Plots0

Expenditure to be made in each quarter (In Lakhs)

ParticularsYear-2019
Jan-MarApr-JuneJuly-SepOct-Dec
Apartments623.330623.33623.33
Shops0000
Plots0000

ParticularsYear-2020
Jan-MarApr-JuneJuly-SepOct-Dec
Apartments623.33623.33623.33623.33
Shops0000
Plots0000

ParticularsYear-2021
Jan-MarApr-JuneJuly-SepOct-Dec
Apartments623.33623.33623.33623.33
Shops0000
Plots0000

ParticularsYear-2022
Jan-MarApr-JuneJuly-SepOct-Dec
Apartments623.33623.33623.33623.33
Shops0000
Plots0000




Expenditure incurred till the date of application (In Lakhs)

ParticularsExpenditure
Roads & Pavements0
Water Supply System0
Sewerage treatment & garbage disposal0
Electricity Supply System0
Storm Water Drainage0
Parks and Playgrounds0
Clubhouse/community centres0
Shopping area0
Other0

Expenditure to be made in each quarter (In Lakhs)

ParticularsYear-2019
Jan-MarApr-JuneJuly-SepOct-Dec
Roads & Pavements0
Water Supply System0
Sewerage treatment & garbage disposal0
Electricity Supply System0
Storm Water Drainage0
Parks and Playgrounds0
Clubhouse/community centres0
Shopping area0
Other0

ParticularsYear-2021
Jan-MarApr-JuneJuly-SepOct-Dec
Roads & Pavements10.937510.937510.937510.9375
Water Supply System16.212516.212516.212516.2125
Sewerage treatment & garbage disposal29.3312529.3312529.3312529.33125
Electricity Supply System34.3534.3534.3534.35
Storm Water Drainage12.6562512.6562512.6562512.65625
Parks and Playgrounds3.21253.21253.21253.2125
Clubhouse/community centres8.268758.268758.268758.26875
Shopping area35.735.735.735.7
Other0000
Street Light2.3052.3052.3052.305
Security and Fire Fighting11.07511.07511.07511.075
Renewable Energy System2.31252.31252.31252.3125

ParticularsYear-2022
Jan-MarApr-JuneJuly-SepOct-Dec
Roads & Pavements10.937510.937510.937510.9375
Water Supply System16.212516.212516.212516.2125
Sewerage treatment & garbage disposal29.3312529.3312529.3312529.33125
Electricity Supply System34.3534.3534.3534.35
Storm Water Drainage12.6562512.6562512.6562512.65625
Parks and Playgrounds3.21253.21253.21253.2125
Clubhouse/community centres8.268758.268758.268758.26875
Shopping area35.735.735.735.7
Other0000
Renewable Energy System2.31252.31252.31252.3125
Street Light2.3052.3052.3052.305
Security and Fire Fighting11.07511.07511.07511.075












Yes
No
ORIENTAL BANK OF COMMERCE SECTOR 15, HUDA MARKET, FARIDABAD - 121007
09491131002086
ORBC0100949
110022115
0949
sahil virmani
yes











Yes
Yes
Yes
Yes
Yes
Yes
Yes
Yes
Yes
Yes


Yes
No
No
No
No
No
No
Yes
Statutory Approvals Statutory Approvals StatusDate
I. BUILDING PLAN APPROVED BY COMPETENT AUTHORITYALREADY BEEN OBTAINED03-05-2019








Yes


Yes















SPECIFICATION OF CONSTRUCTION
Specification of apartments and other buildings including the following:
1FLOORING DETAILS OF VARIOUS PARTS OF HOUSECERAMIC TILES VITRIFIED TILES
2WALL FINISHING DETAILSWHITE WASH
3KITCHEN DETAILSMARBLE COUNTER TOP
4BATHROOM FITTINGSISI APPROVED
5WOOD WORK ETCNOT PROVIDED
6DOORS AND WINDOS FRAMESISI APPROVED
7GLASS WORKCLEAR GLASS
8ELECTRIC FITTINGSISI APPROVED
9CONDUCTING AND WIRING DETAILSISI APPROVED
10CUPBOARD DETAILSNOT PROVIDED
11WATER STORAGERCC OVERHEAD TANK
12LIFT DETAILS2 LIFTS IN EACH TOWER
13EXTERNAL GLAZINGSCLEAR GLASS
13.1WINDOWS/GLAZINGSCLEAR GLASS
14DOORSISI APPROVED
14.1MAIN DOORSISI APPROVED
14.2INTERNAL DOORSISI APPROVED
15AIR CONDITIONINGNOT PROVIDED
16ELECTRICAL FITTINGSISI APPROVED
17CNG PIPE LINENOT PROVIDED
18PROVISION OF WIFI AND BROADBAND FACILITYNOT PROVIDED
19EXTERNAL FINISHING/COLOUR SCHEMEWHITEWASH
20INTERNAL FINISHINGWHITE WASH
SPECIFICATION UNIT WISE
1 . LIVING/DINING/FOYER/FAMILY LOUNGE
1 . 1 FLOORVITRIFIED TILES
1 . 2 WALLSWHITE WASH
1 . 3 CEILINGWHITE WASH
2 . MASTER BEDROOM/DRESSROOM
2 . 1 FLOORVITRIFIED TILES
2 . 2 WALLSWHITE WASH
2 . 3 CEILINGWHITE WASH
2 . 4 MODULAR WARDROBESNOT PROVIDED
3 . MASTER TOILET
3 . 1 FLOORCERAMIC TILES
3 . 2 WALLSCERAMIC TILES
3 . 3 CEILINGWHITE WASH
3 . 4 COUNTERSNOT PROVIDED
3 . 5 SANITARY WARE/CP FITTINGSISI APPROVED
3 . 6 FITTING/FIXTURESISI APPROVED
4 . BED ROOMS
4 . 1 FLOORVITRIFIED TILES
4 . 2 WALLSWHITE WASH
4 . 3 CEILINGWHITE WASH
4 . 4 WARDROBESNOT PROVIDED
5 . TOILET
5 . 1 FLOORCERAMIC TILES
5 . 2 WALLSCERAMIC TILES
5 . 3 CEILINGWHITE WASH
5 . 4 COUNTERSNOT PROVIDED
5 . 5 SANITARY WARE/CP FITTINGSISI APPROVED
5 . 6 FIXTURESISI APPROVED
6 . KITCHEN
6 . 1 FLOORVITRIFIED TILES
6 . 2 WALLSWHITE WASH
6 . 3 CEILINGWHITE WASH
6 . 4 COUNTERSMARBLE TOP
6 . 5 FIXTURESISI APPROVED
6 . 6 KITCHEN APPLIANCESNOT PROVIDED
7 . UTILITY ROOMS/UTILITY BALCONY/TOILET
7 . 1 FLOORCERAMIC TILES
7 . 2 WALLS & CEILINGWHITE WASH
7 . 3 TOILETNOT PROVIDED
7 . 4 BALCONYCERAMIC TILES
8 . SIT-OUTS
8 . 1 FLOORCERAMIC TILES
8 . 2 WALLS & CEILINGWHITE WASH
8 . 3 RAILINGSMS RAILING
8 . 4 FIXTURESISI APPROVED












Sr. No.Document DescriptionDate of Document UploadView Document
1 COPY OF LICENSE ALONG WITH SCHEDULE OF LAND 18-05-2019 View Document
2 SERVICE PLANS SHOWING THE SERVICES ON THE LAYOUT PLAN 18-05-2019 View Document
3 DOCUMENTS RELATING TO THE ENTRY OF LICENSE AND COLLABORATION AGREEMENT IN THE REVENUE RECORD 18-05-2019 View Document
4 DEMARCATION PLAN 18-05-2019 View Document
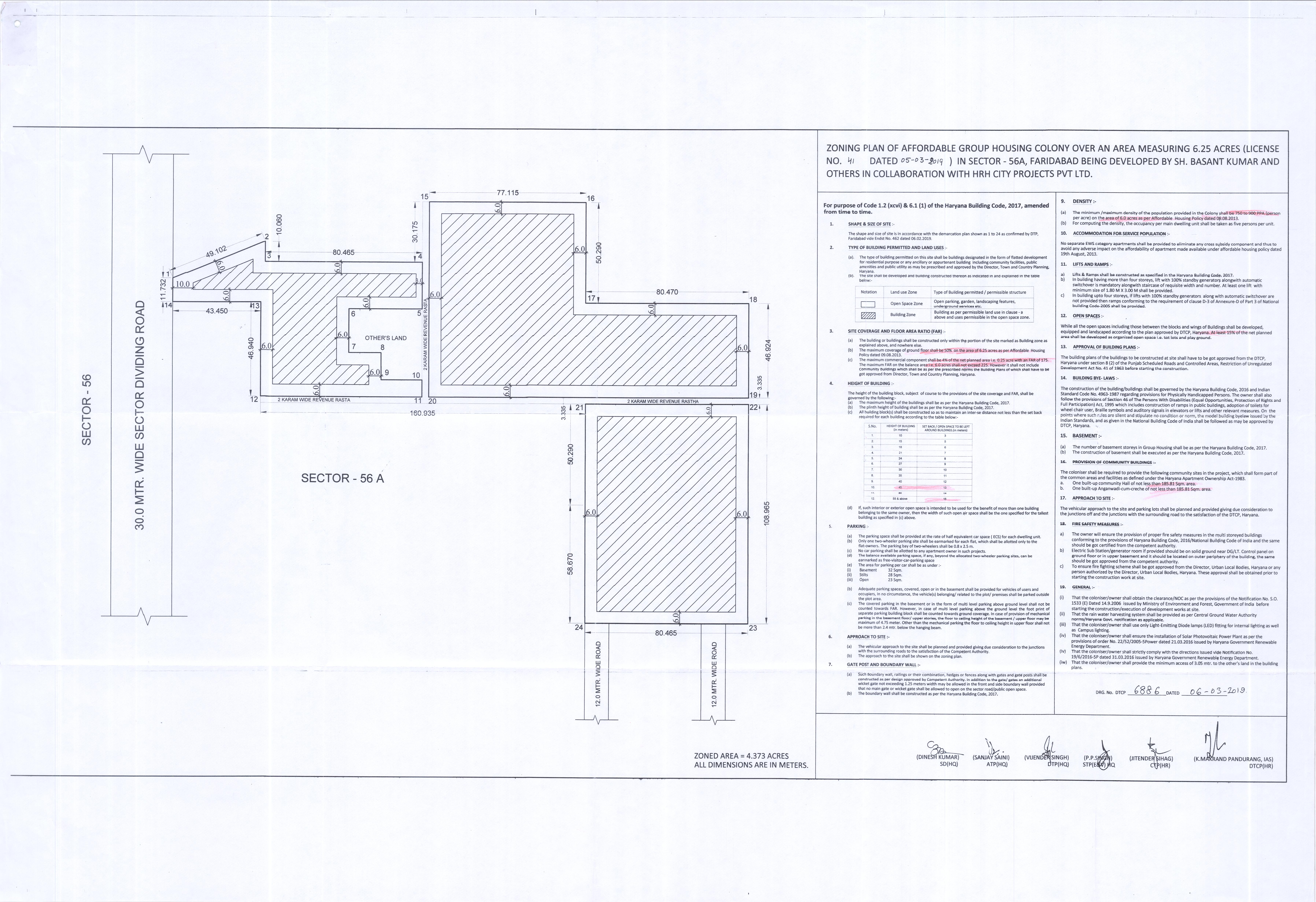
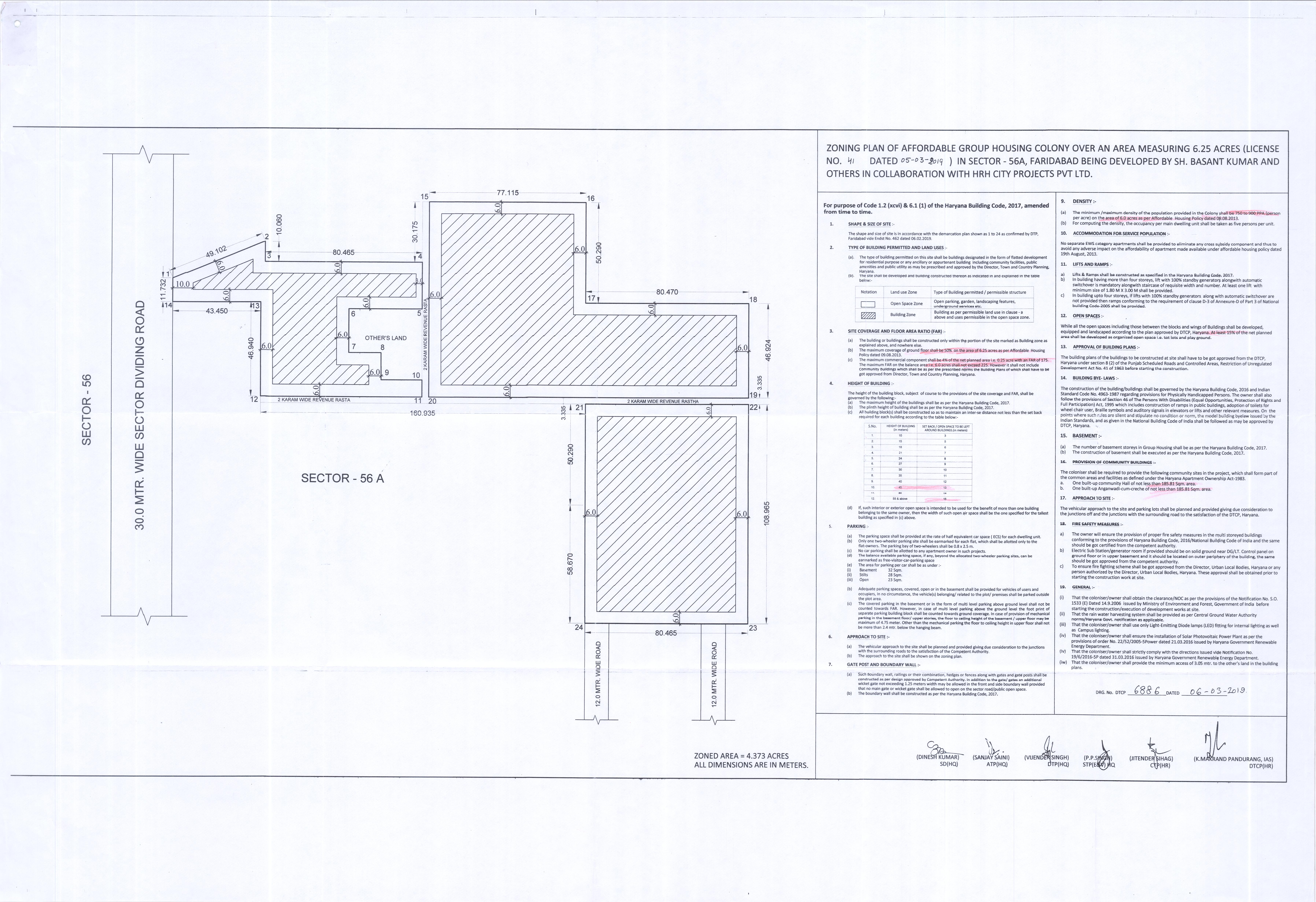
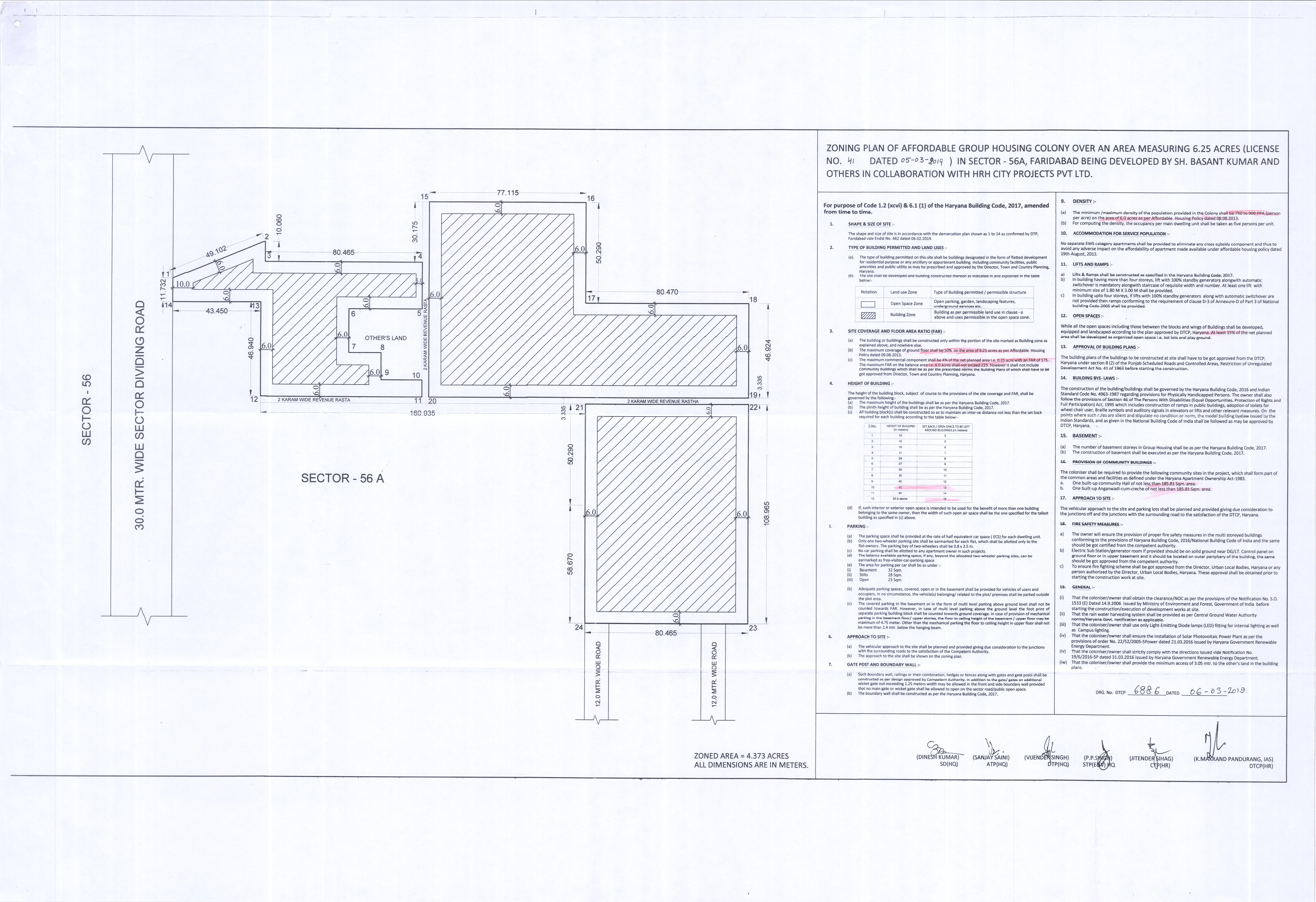
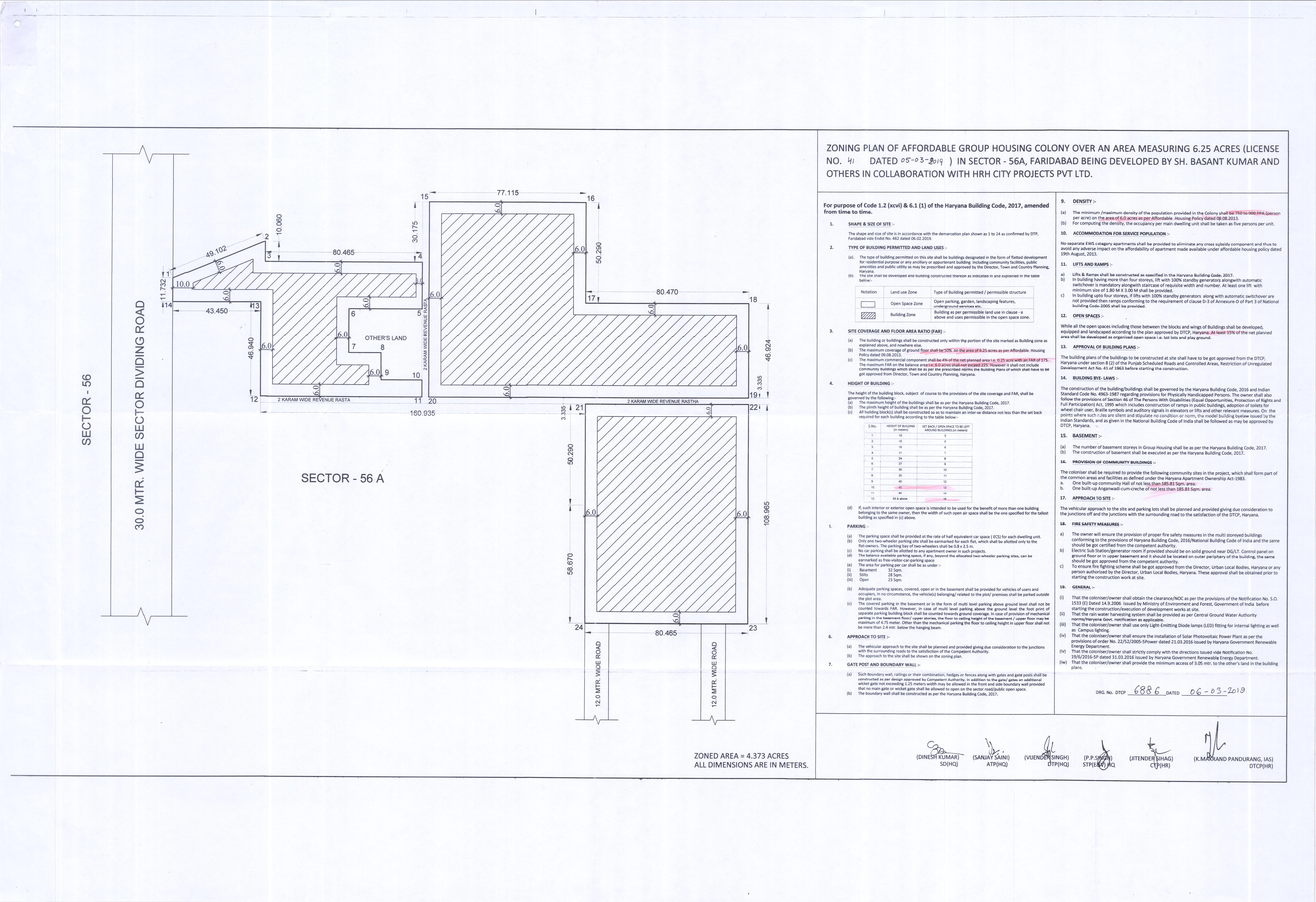
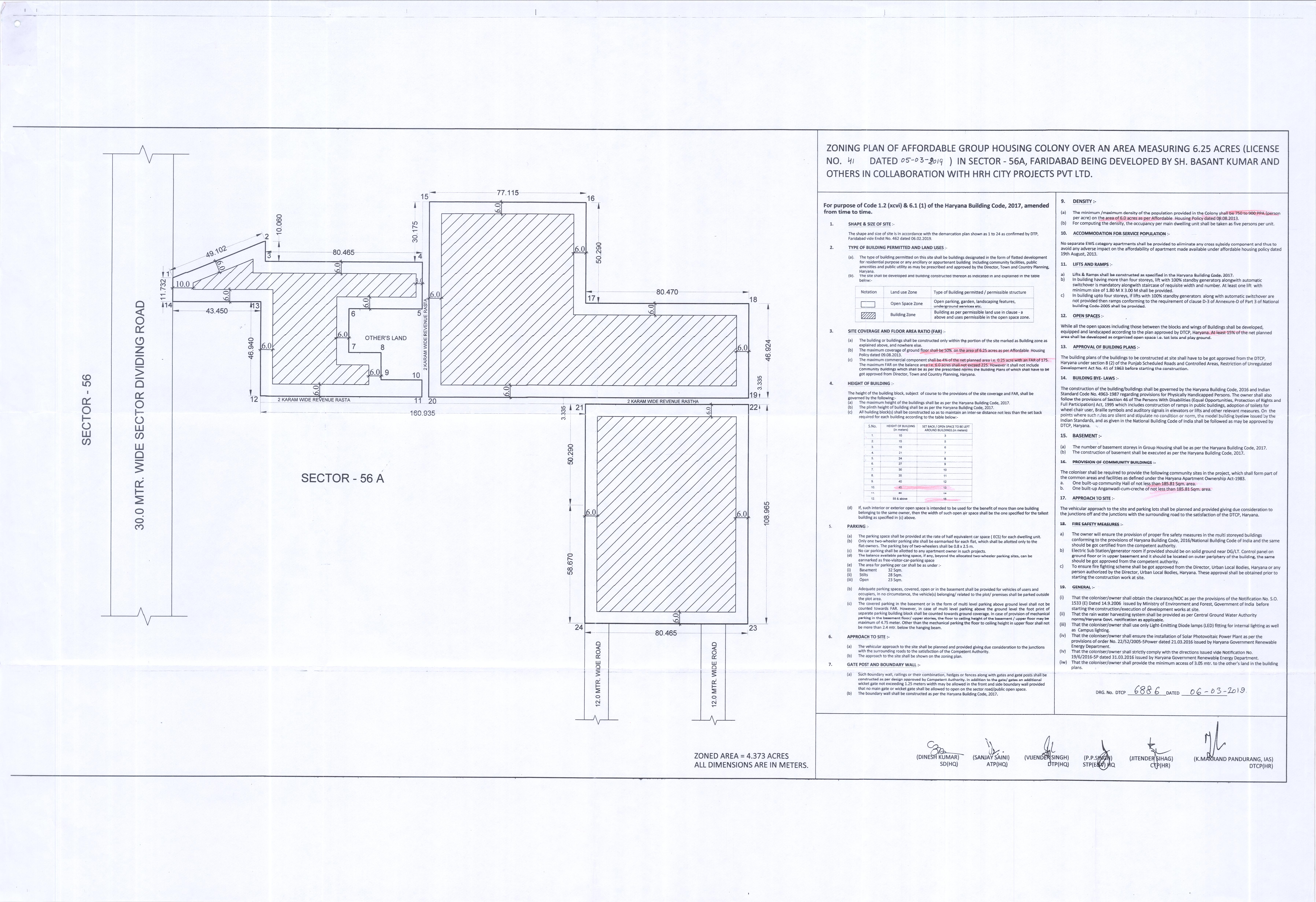
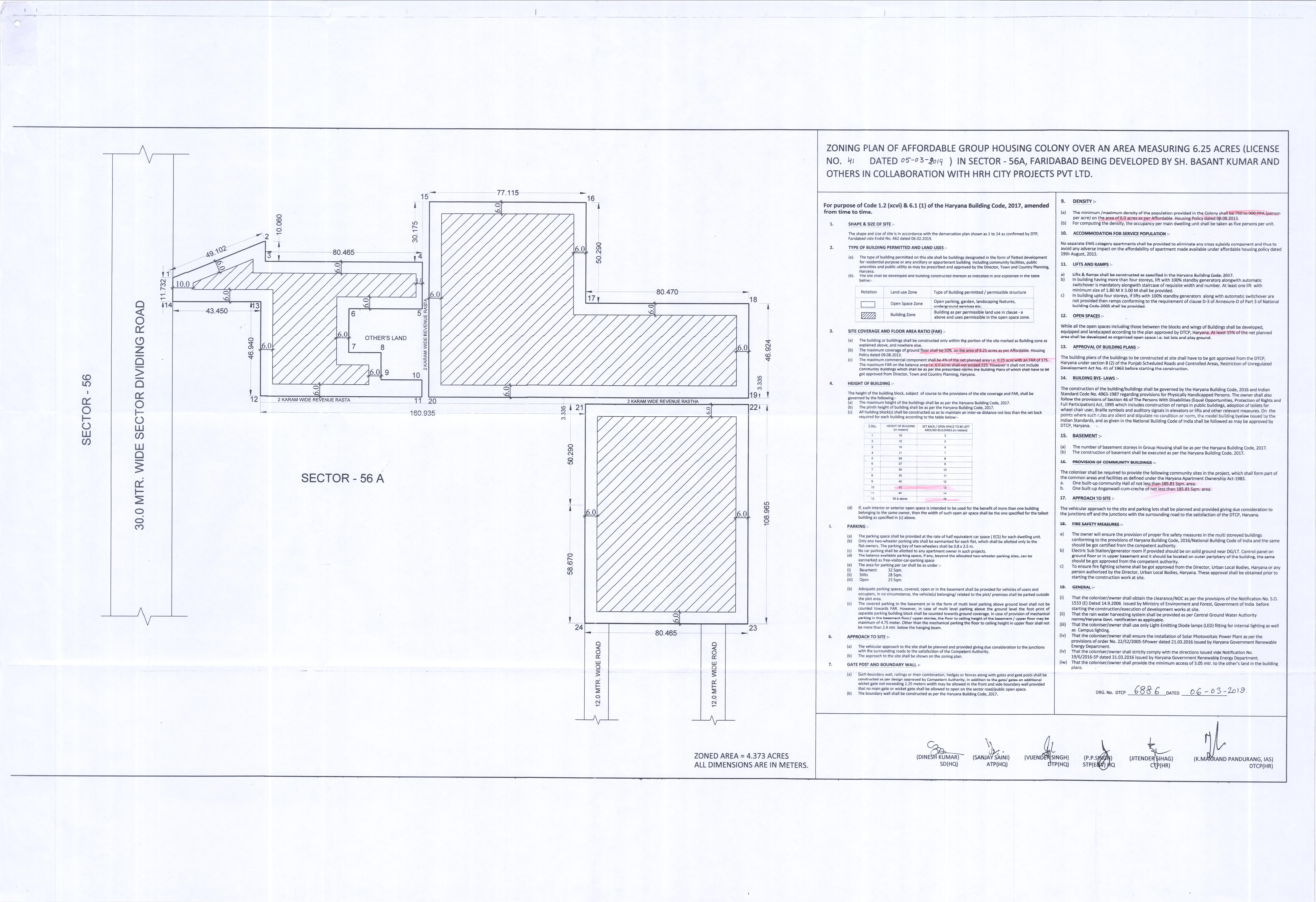
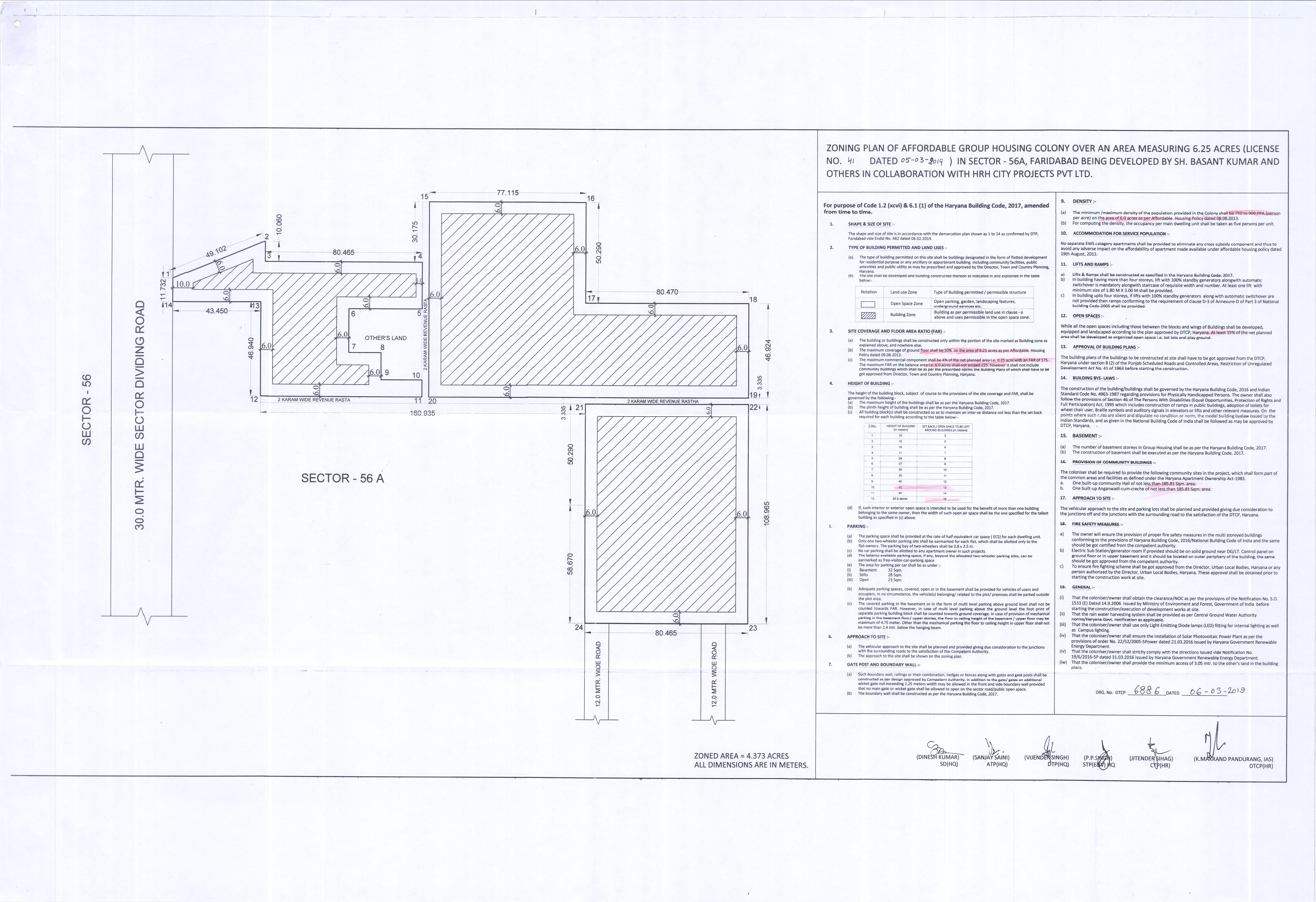
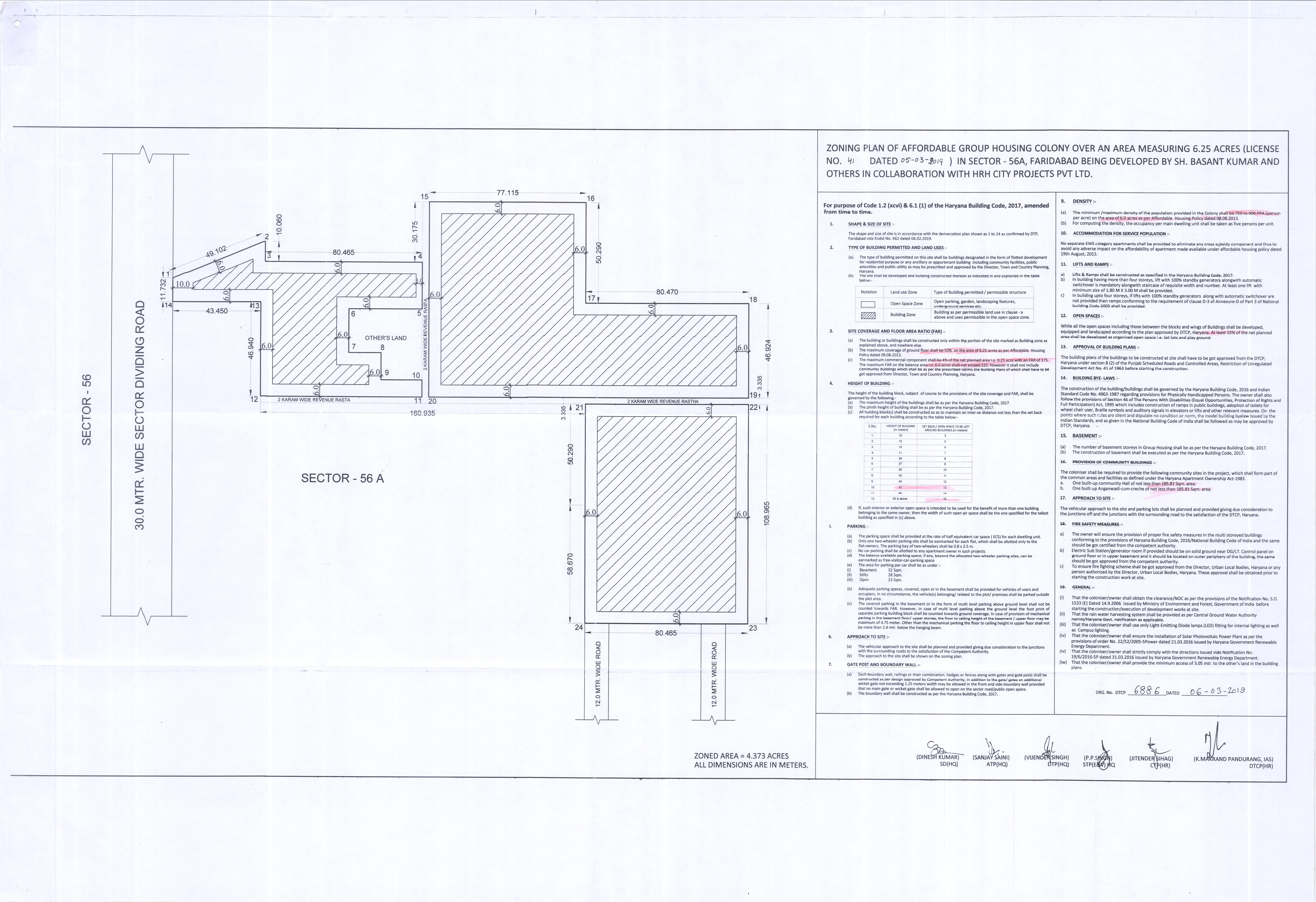
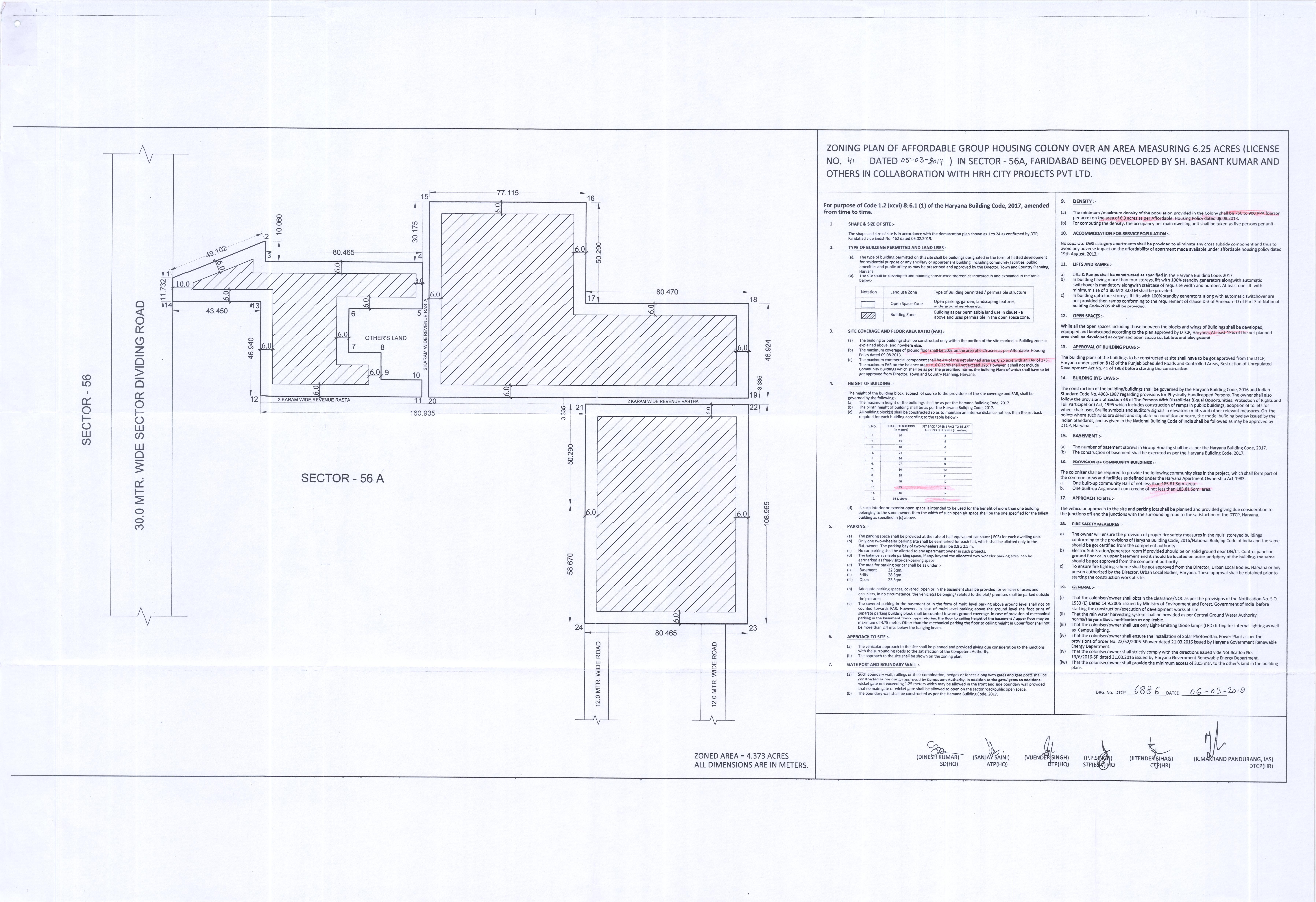
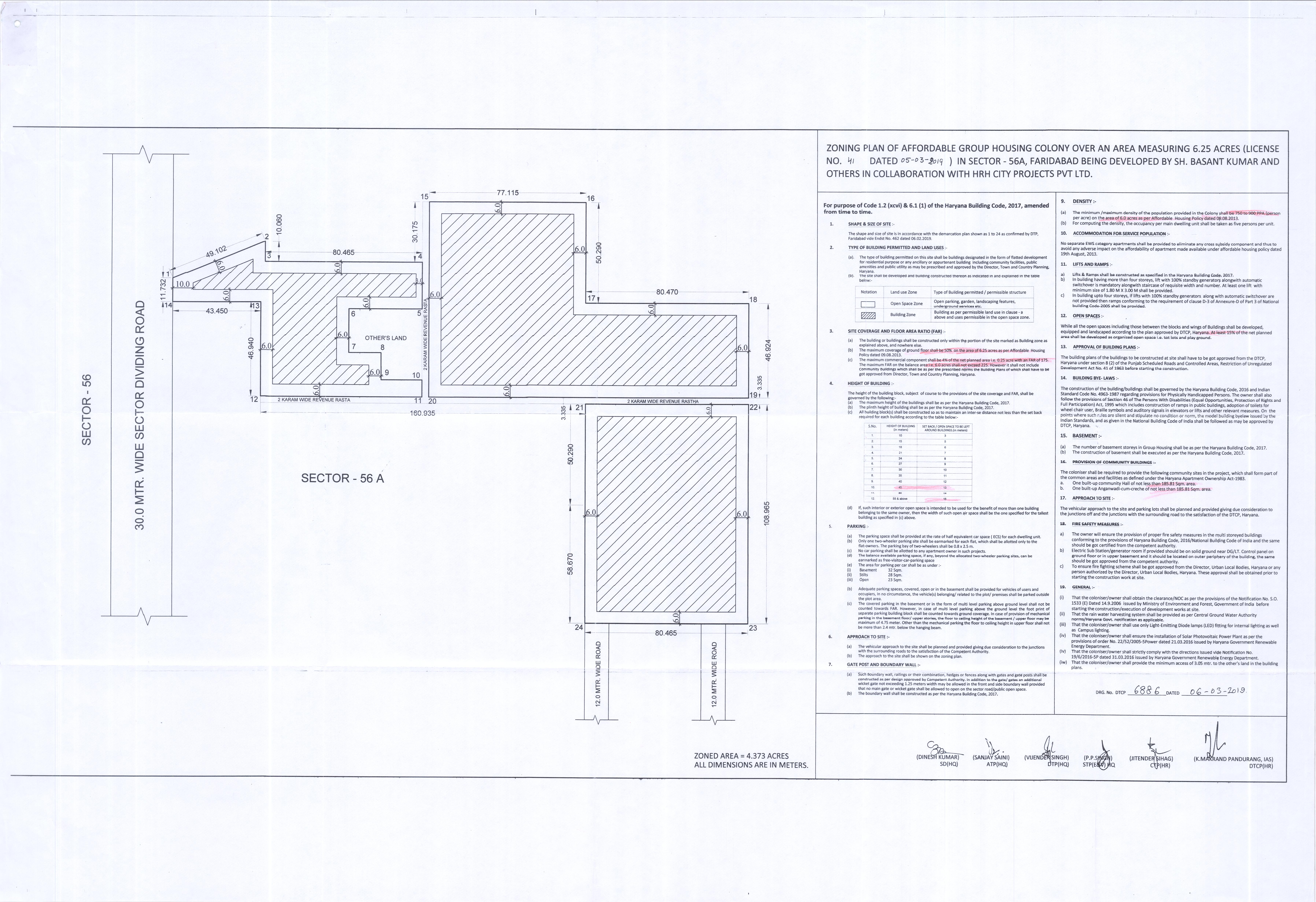
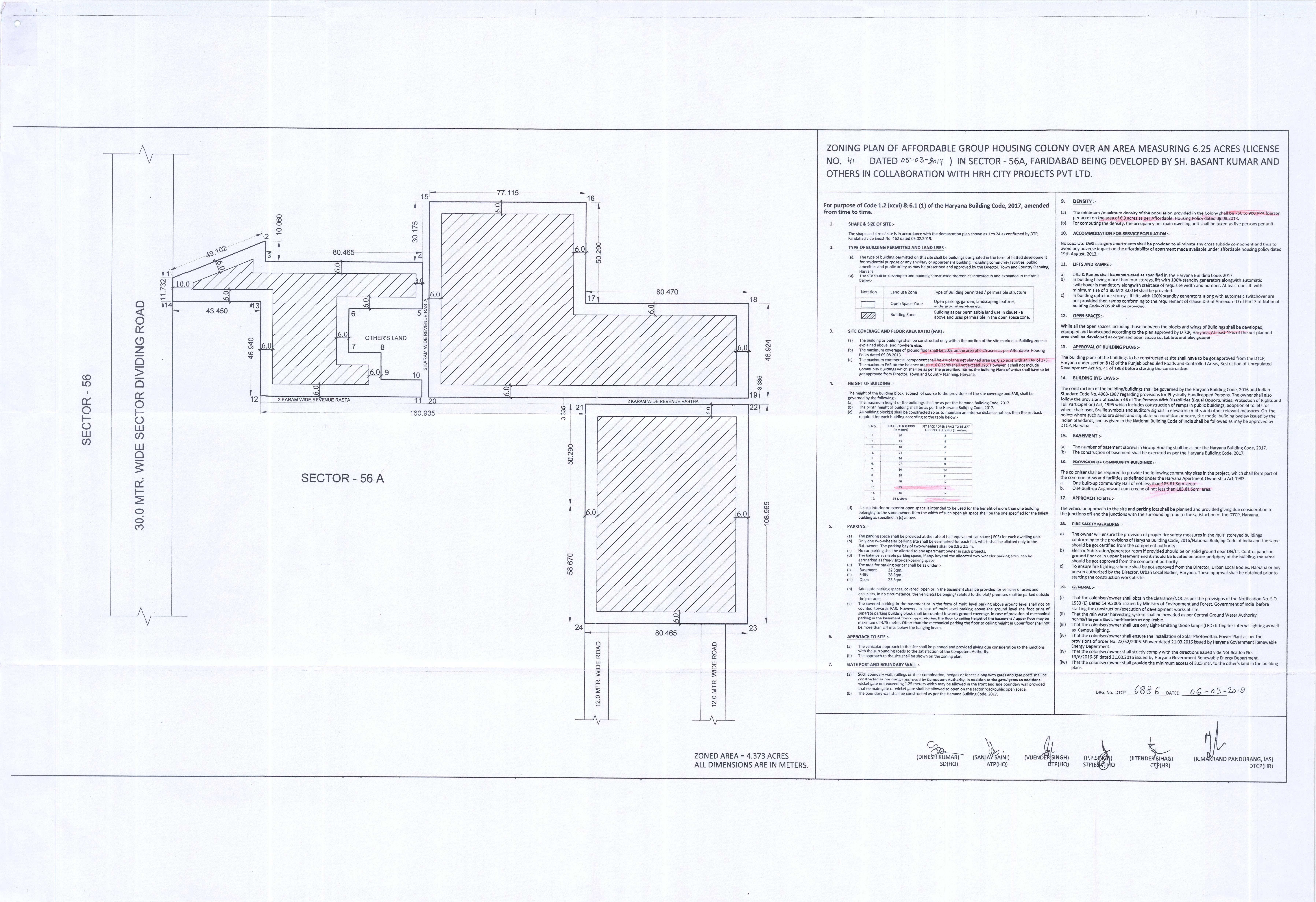
5 ZONING PLAN 18-05-2019 View Document
6 IN CASE OF GROUP HOUSING/ COMMERCIAL SITES, A COPY OF THE APPROVED SITE PLAN 18-05-2019 View Document
7 NON DEFAULT CERTIFICATE FROM A CHARTERED ACCOUNTANT 18-05-2019 View Document
8 DECLARATION SUPPORTED BY AFFIDAVIT DULY SIGNED BY THE PROMOTER TO BE ENCLOSED. 18-05-2019 View Document
9 A COMPLETE SET OF THE LAST APPROVED BUILDING PLANS 18-05-2019 View Document
10 IN CASE OF PLOTTED COLONY, THE LATEST LAYOUT PLAN 18-05-2019 View Document












Sr. No.Document DescriptionDate of Document UploadView Document
1 Change the name of the project from "Vasant Valley' to "HRH Vasant Heights" 11-10-2022 View Document
2 Extension uploaded. 05-02-2025 View Document