HRERA PanchkulaTemp Project Id : RERA-PKL-PROJ-525-2019
Submission Date : 30-04-2019 12:41:24 PM
Applicant Type : Company
Project Type: NEW




CHD DEVELOPERS LTD
SF-16-17, 1ST FLOOR, MADAME BHIKAJI CAMA BHAWAN 11, BHIKAJI CAMA PLACE NEW DELH-110066
01140100100
9971973388 (Number Shared by Promoter in Public)
info@chddevelopers.com
http://chddevelopers.com
XXXX103H
L74899DL1990PLC041188
 
 


 
 


 
 


 
 







CHD DEVELOPERS (AFFORDABLE RESIDENTIAL PLOTTED COLONY)
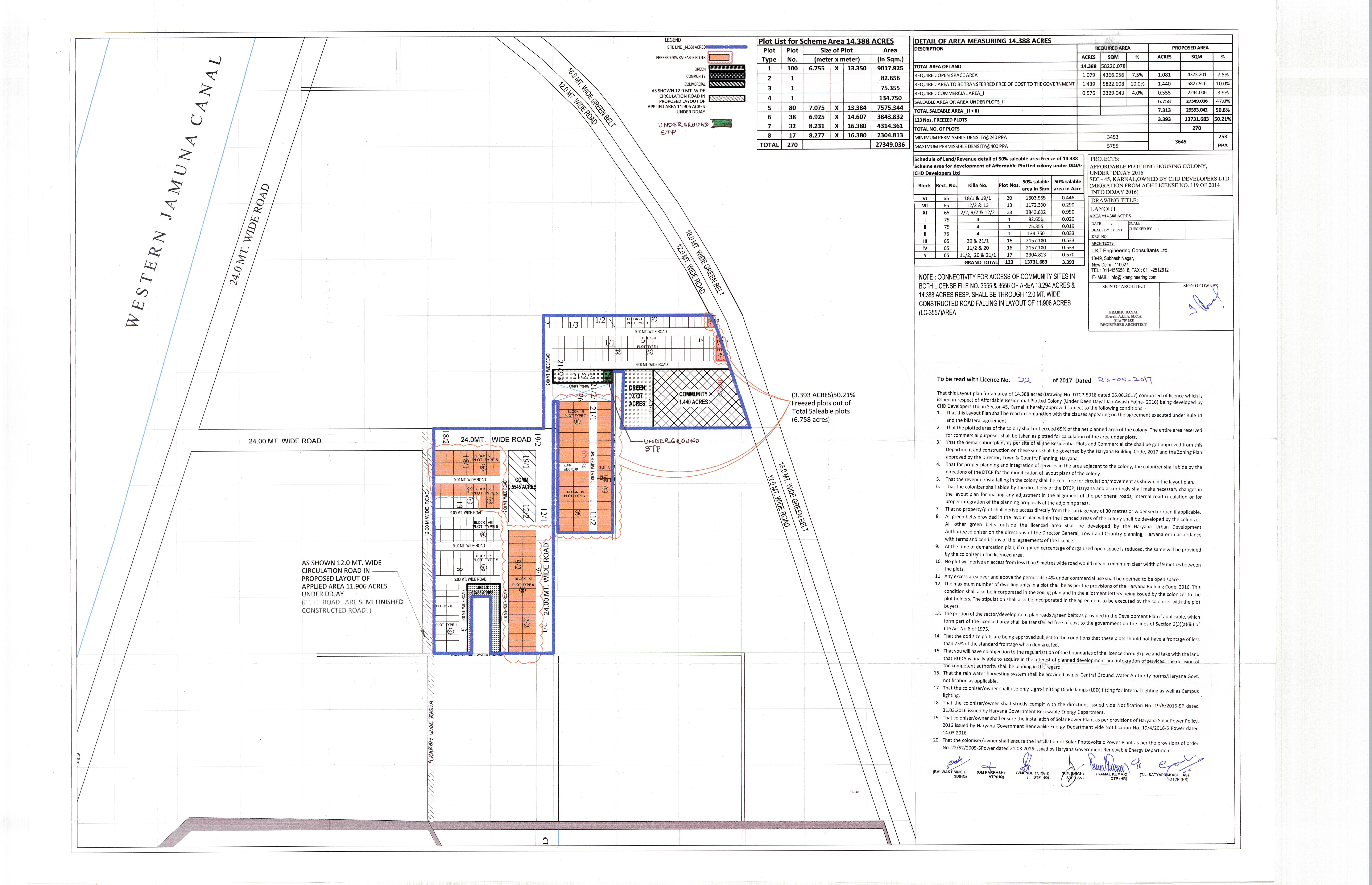
VILLAGE UCHANA SECTOR-45, KARNAL
KARNAL
KARNAL
9910174407
9910174407 (Number Shared by Promoter in Public)
info@chddevelopers.com
DHARMENDER KUMAR
9910174407
9910174407 (Number Shared by Promoter in Public)
dharmender.kumar@chddevelopers.com








As per sub-rule(2) of rule 3 of the Haryana Real Estate (Regulation and Development) Rules,2017, the fee for registration of the project as has been calculated as follows:
-----------------------------------------------------------------------------------------------------------------------
-----------------------------------------------------------------------------------------------------------------------
-----------------------------------------------------------------------------------------------------------------------
-----------------------------------------------------------------------------------------------------------------------
2. The aforesaid fees is hereby deposited vide following Drafts/ Banker’s Cheques:-

Sr No.Draft/Cheque No.Draft DateAmountPayee BankPayable To
13391408-08-2017291165AXIS BANKHRERA Panchkula







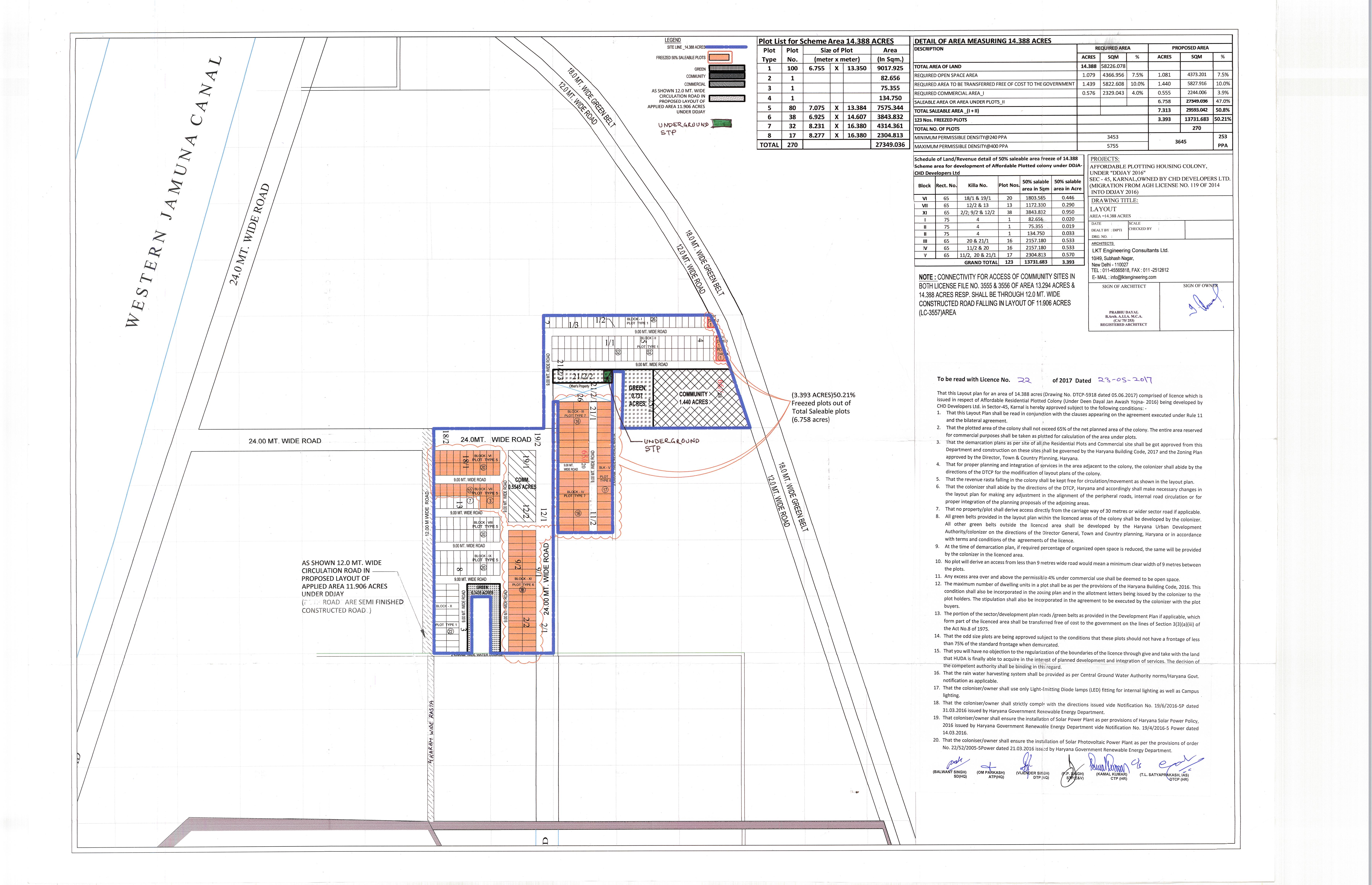
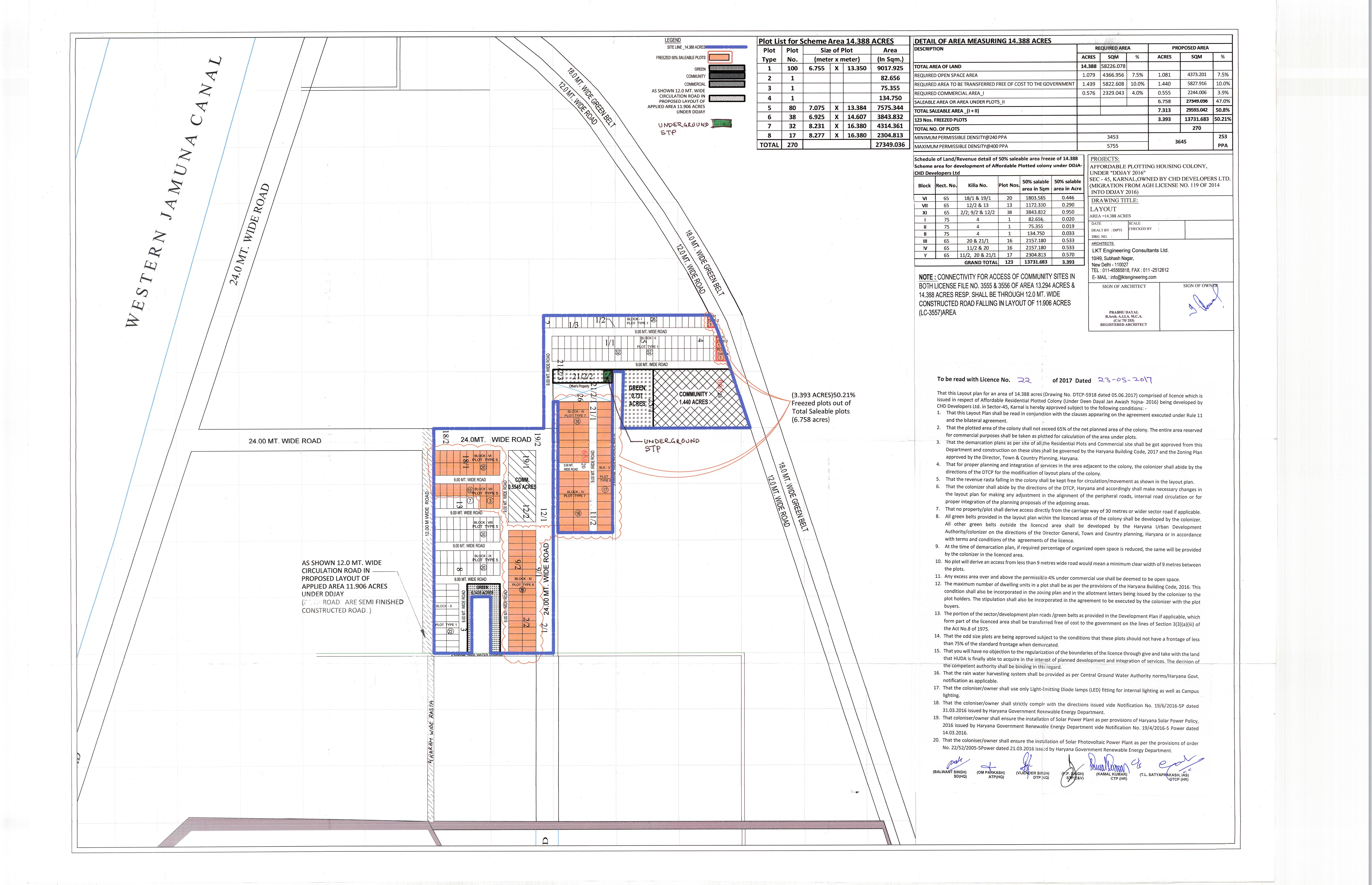
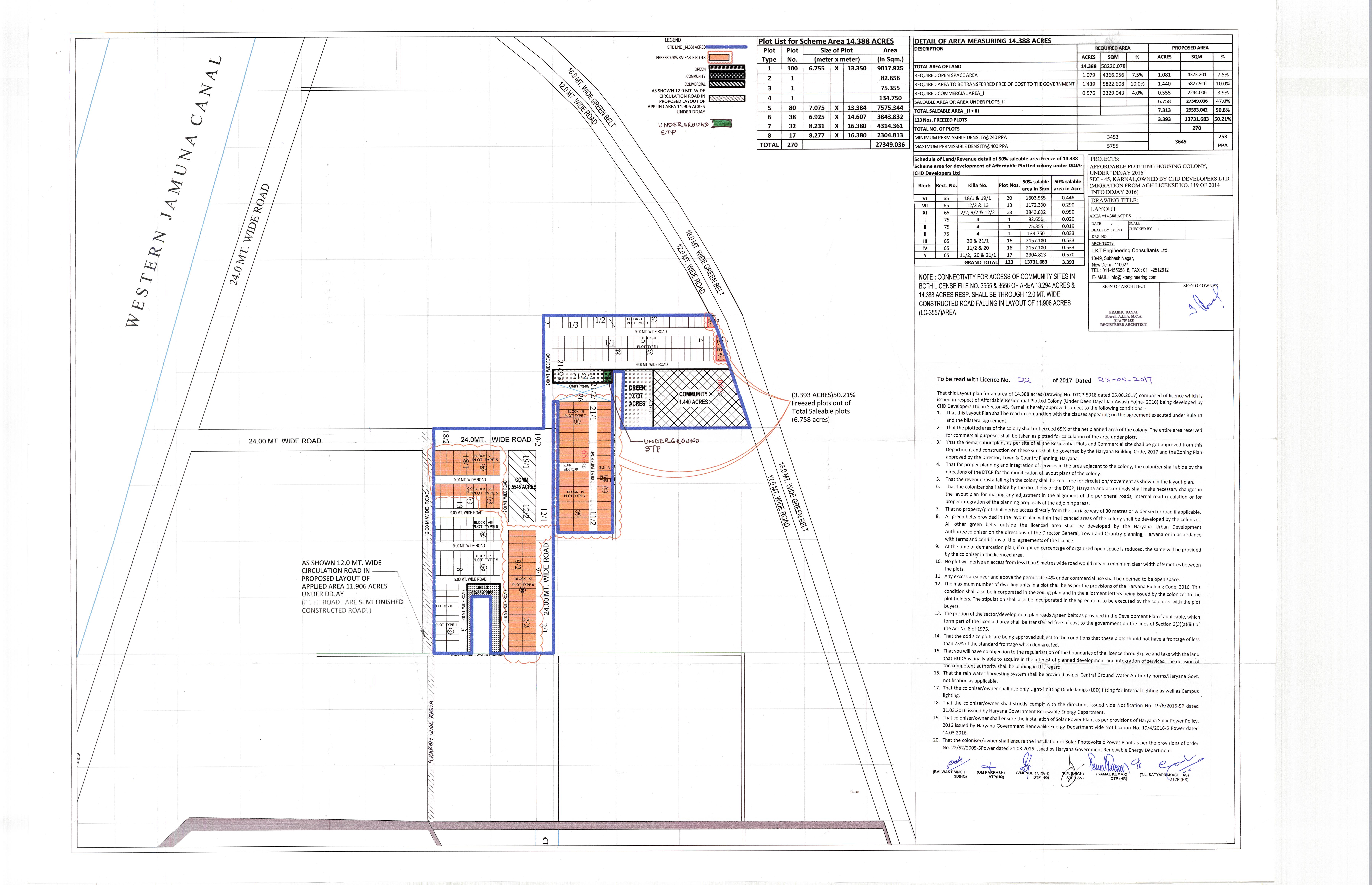
14.388 (Acre)
2
2
14.388 (Acre)
22 of 2017 dated 23.05.2017
Yes







2602.88 Lakhs
713.86 Lakhs
0 Lakhs
1262.10 Lakhs
626.92 Lakhs




Sr. No.Land area under usageArea of land (Acres)
1PLOTS TO BE SOLD 6.758
2LAND AREA TO BE USED FOR CONSTRUCTION OF APARTMENTS 0
3CONSTRUCTION OF ROADS 4.555
4PAVEMENTS 0
5PARKS AND PLAYGROUNDS 0
6GREEN BELTS 1.081
7VEHICLE PARKINGS 0
8ELECTRICITY SUB-STATION 0
9CLUB HOUSE 0
10SEWAGE AND SOLID WASTE TREATMENT FACILITY 0
11AREA TO BE LEFT FOR TRANSFERRING TO THE GOVERNMENT FOR COMMUNITY SERVICES 1.440
12ANY OTHER 0
13COMMERCIAL 0.554
Total14.388




FacilityExternal/ connecting service to be provided by (Name the agency)Whether Approval taken from the agency concerned. Yes/No (Annex details in folder C)
ROADSHSVPNo
WATER SUPPLYHSVPNo
ELECTRICITYUHBVNNo
SEWAGE DISPOSALHSVPNo
STORM WATER DRAINAGEHSVPNo




Sr. No.Name of the facilityEstimated cost (In Lakhs)(Within the project area only)Remarks: Yet to be prepared / Submitted to HUDA, Town & Country Planning Department/ as per project report etc. (Annex relevant documents showing costing details etc. in folder C)
1INTERNAL ROADS AND PAVEMENTS298.83SUBMITTED TO TOWN & COUNTRY PLANNING
2WATER SUPPLY SYSTEM257.00SUBMITTED TO TOWN & COUNTRY PLANNING
3STORM WATER DRAINAGE93.50SUBMITTED TO TOWN & COUNTRY PLANNING
4ELECTRICITY SUPPLY SYSTEM58.28SUBMITTED TO TOWN & COUNTRY PLANNING
5SEWAGE TREATMENT & GARBAGE DISPOSAL126.07SUBMITTED TO TOWN & COUNTRY PLANNING
6STREET LIGHTING55.20SUBMITTED TO TOWN & COUNTRY PLANNING
7SECURITY AND FIRE FIGHTING0YET TO BE PREPARED
8PLAYGROUNDS AND PARKS0YET TO BE PREPARED
9CLUB HOUSE/COMMUNITY CENTRE0YET TO BE PREPARED
10SHOPPING AREA0YET TO BE PREPARED
11RENEWABLE ENERGY SYSTEM0YET TO BE PREPARED
12SCHOOL0YET TO BE PREPARED
13HOSPITAL/DISPENSARY0YET TO BE PREPARED
14ANY OTHER373.22YET TO BE PREPARED


21-06-2017 (date)
NA (date)
23-09-2019
19-05-2022
Sr. No Plot Area(In Square Meter)Number of plots in the project
1 82.650 1
2 75.355 1
3 134.355 1
4 94.691 80
5 101.153 38
6 134.823 32
7 135.577 17
Total170


TypeCarpet area(In Square Meter)Number of apartmentsNumber of towers
Apartment/Shops/Other Buildings000





Expenditure incurred till the date of application (In Lakhs)

ParticularsExpenditure

Expenditure to be made in each quarter (In Lakhs)

ParticularsExpenditure to be made in each quarter ()
Apr-JuneJuly-SepOct-DecJan-Mar




Expenditure incurred till the date of application (In Lakhs)

ParticularsExpenditure

Expenditure to be made in each quarter (In Lakhs)

ParticularsYear-2020
Jan-MarApr-JuneJuly-SepOct-Dec
Roads & Pavements24.1524.1524.15
Water Supply System21.4221.4221.42
Sewerage treatment & garbage disposal10.5010.5010.50
Electricity Supply System4.864.864.86
Storm Water Drainage7.797.797.79
Parks and Playgrounds000
Clubhouse/community centres000
Shopping area000
Other000
Street lighting4.604.604.60

ParticularsYear-2021
Jan-MarApr-JuneJuly-SepOct-Dec
Roads & Pavements24.1524.1524.1524.15
Water Supply System21.4221.4221.4221.42
Sewerage treatment & garbage disposal10.5010.5010.5010.50
Electricity Supply System4.854.864.864.86
Storm Water Drainage7.797.797.797.79
Parks and Playgrounds0000
Clubhouse/community centres0000
Shopping area0000
Other0000
Street lighting4.604.604.604.60

ParticularsYear-2022
Jan-MarApr-JuneJuly-SepOct-Dec
Roads & Pavements24.1524.1524.18
Water Supply System21.4221.4221.38
Sewerage treatment & garbage disposal10.5010.5010.57
Electricity Supply System4.864.864.82
Storm Water Drainage7.797.797.81
Parks and Playgrounds000
Clubhouse/community centres000
Shopping area000
Other000
Street lighting4.604.60
Street linghting4.60












Yes
No
YES BANK LIMITED, BHIKAJI CAMA PLACE NEW DELHI
033866200000032
YESB0000338
110532067
338
Mr. RK Mittal & Mr. Gaurav Mittal plot No.11 Nelson Mandela Road Gurdwara C3 Vasant Kunj New Delhi-110070
Attached











Yes
Yes
Yes
No
No
No
No
No
No
No


Yes
No
Yes
Yes
Yes
Yes
No
No
Statutory Approvals Statutory Approvals StatusDate
I. LICENSE ALREADY BEEN OBTAINED23-05-2017
II. LAYOUT PLANALREADY BEEN OBTAINED21-06-2017
III. ZONING PLANALREADY BEEN OBTAINED14-09-2017
IV. SERVICE ESTIMATE PLANAPPLIED FOR BUT YET TO RECEIVE17-07-2017








Yes


Yes


The draft agreement mainly provides the total consideration of the plot including all the taxes upto date except the taxes/ charges which may have to be paid by the developer if levied by the government or the department. In case of delay in payment of instalments on due dates, the rates of interest as charged by the SBI+ 2% will be payable by the allotee. In case, there is delay in handling over possession of the plot, the allotee will be duly compensated by the coloniser. Scheduled of payment of instalments have also being fixed. The draft agreement of sale is based on the Performa prescribed by the HRERA.







EWAY TOWER SECTOR-109, GURUGRAM
2.025
276
0
34
0
Initially estimated cost (In Lakhs)Revised cost (In Lakhs)Expenditure incurred upto the date of application (In Lakhs)
Total cost of the project
(Other than cost of land)
15043.8505362.11
Cost of the apartments000
Cost of the infrastructure938.950746.20
Others costs5359.8100


615.64 Lakhs
1093.60 Lakhs
0 Lakhs
0 Lakhs
No
28-07-2022
28-07-2022




Y-SUITES SECTOR-34, VILLAGE DHUNELA TEHSIL SOHNA DISTRICT, GURUGRAM
8.37
1147
0
233
0
Initially estimated cost (In Lakhs)Revised cost (In Lakhs)Expenditure incurred upto the date of application (In Lakhs)
Total cost of the project
(Other than cost of land)
28797.37014099.42
Cost of the apartments11063.3503961.12
Cost of the infrastructure2550.510851.65
Others costs15183.5100


9217.34 Lakhs
12879.16 Lakhs
5000.00 Lakhs
32.40 Lakhs
Yes
28-07-2022
28-07-2022




CHD VANN SECTOR-71, VILLAGE FAZILPUR JHARSA, GURUGRAM
10.5437
569
0
227
0
Initially estimated cost (In Lakhs)Revised cost (In Lakhs)Expenditure incurred upto the date of application (In Lakhs)
Total cost of the project
(Other than cost of land)
37466.00015068.41
Cost of the apartments18730.59010388.57
Cost of the infrastructure1987.540709.58
Others costs16747.8700


15648.79 Lakhs
9034.32 Lakhs
2000.00 Lakhs
1900.07 Lakhs
Yes
28-07-2021
28-07-2021










SPECIFICATION OF CONSTRUCTION
Specification of apartments and other buildings including the following:
1FLOORING DETAILS OF VARIOUS PARTS OF HOUSENOT APPLICABLE
2WALL FINISHING DETAILSNOT APPLICABLE
3KITCHEN DETAILSNOT APPLICABLE
4BATHROOM FITTINGSNOT APPLICABLE
5WOOD WORK ETCNOT APPLICABLE
6DOORS AND WINDOS FRAMESNOT APPLICABLE
7GLASS WORKNOT APPLICABLE
8ELECTRIC FITTINGSNOT APPLICABLE
9CONDUCTING AND WIRING DETAILSNOT APPLICABLE
10CUPBOARD DETAILSNOT APPLICABLE
11WATER STORAGENOT APPLICABLE
12LIFT DETAILSNOT APPLICABLE
13EXTERNAL GLAZINGSNOT APPLICABLE
13.1WINDOWS/GLAZINGSNOT APPLICABLE
14DOORSNOT APPLICABLE
14.1MAIN DOORSNOT APPLICABLE
14.2INTERNAL DOORSNOT APPLICABLE
15AIR CONDITIONINGNOT APPLICABLE
16ELECTRICAL FITTINGSNOT APPLICABLE
17CNG PIPE LINENOT APPLICABLE
18PROVISION OF WIFI AND BROADBAND FACILITYNOT APPLICABLE
19EXTERNAL FINISHING/COLOUR SCHEMENOT APPLICABLE
20INTERNAL FINISHINGNOT APPLICABLE
SPECIFICATION UNIT WISE
1 . LIVING/DINING/FOYER/FAMILY LOUNGE
1 . 1 FLOORNOT APPLICABLE
1 . 2 WALLSNOT APPLICABLE
1 . 3 CEILINGNOT APPLICABLE
2 . MASTER BEDROOM/DRESSROOM
2 . 1 FLOORNOT APPLICABLE
2 . 2 WALLSNOT APPLICABLE
2 . 3 CEILINGNOT APPLICABLE
2 . 4 MODULAR WARDROBESNOT APPLICABLE
3 . MASTER TOILET
3 . 1 FLOORNOT APPLICABLE
3 . 2 WALLSNOT APPLICABLE
3 . 3 CEILINGNOT APPLICABLE
3 . 4 COUNTERSNOT APPLICABLE
3 . 5 SANITARY WARE/CP FITTINGSNOT APPLICABLE
3 . 6 FITTING/FIXTURESNOT APPLICABLE
4 . BED ROOMS
4 . 1 FLOORNOT APPLICABLE
4 . 2 WALLSNOT APPLICABLE
4 . 3 CEILINGNOT APPLICABLE
4 . 4 WARDROBESNOT APPLICABLE
5 . TOILET
5 . 1 FLOORNOT APPLICABLE
5 . 2 WALLSNOT APPLICABLE
5 . 3 CEILINGNOT APPLICABLE
5 . 4 COUNTERSNOT APPLICABLE
5 . 5 SANITARY WARE/CP FITTINGSNOT APPLICABLE
5 . 6 FIXTURESNOT APPLICABLE
6 . KITCHEN
6 . 1 FLOORNOT APPLICABLE
6 . 2 WALLSNOT APPLICABLE
6 . 3 CEILINGNOT APPLICABLE
6 . 4 COUNTERSNOT APPLICABLE
6 . 5 FIXTURESNOT APPLICABLE
6 . 6 KITCHEN APPLIANCESNOT APPLICABLE
7 . UTILITY ROOMS/UTILITY BALCONY/TOILET
7 . 1 FLOORNOT APPLICABLE
7 . 2 WALLS & CEILINGNOT APPLICABLE
7 . 3 TOILETNOT APPLICABLE
7 . 4 BALCONYNOT APPLICABLE
8 . SIT-OUTS
8 . 1 FLOORNOT APPLICABLE
8 . 2 WALLS & CEILINGNOT APPLICABLE
8 . 3 RAILINGSNOT APPLICABLE
8 . 4 FIXTURESNOT APPLICABLE












Sr. No.Document DescriptionDate of Document UploadView Document
1 COPY OF LICENSE ALONG WITH SCHEDULE OF LAND 29-04-2019 View Document
2 ZONING PLAN 29-04-2019 View Document
3 DOCUMENTS RELATING TO THE ENTRY OF LICENSE AND COLLABORATION AGREEMENT IN THE REVENUE RECORD 29-04-2019 View Document
4 IN CASE OF PLOTTED COLONY, THE LATEST LAYOUT PLAN 29-04-2019 View Document
5 DEMARCATION PLAN 29-04-2019 View Document
6 IN CASE OF GROUP HOUSING/ COMMERCIAL SITES, A COPY OF THE APPROVED SITE PLAN 29-04-2019 View Document
7 NON DEFAULT CERTIFICATE FROM A CHARTERED ACCOUNTANT 30-04-2019 View Document
8 DECLARATION SUPPORTED BY AFFIDAVIT DULY SIGNED BY THE PROMOTER TO BE ENCLOSED. 30-04-2019 View Document