HRERA PanchkulaTemp Project Id : RERA-PKL-PROJ-489-2019
Submission Date : 16-04-2019 10:07:38 AM
Applicant Type : Company
Project Type: ONGOING




SAHIBA CONSTRUCTION PVT. LTD
BARSATI, A-62, HAUZ KHAS, NEW DELHI -110016
9891577558 (Number Shared by Promoter in Public)
NARWANAHOUSING@GMAIL.COM
XXXX013E
U74899DL1992PTC051451
 
 


 
 


 
 


 
 


 
 


 
 


 
 


 
 







BASANT VIHAR DDJAY
SECTOR -19
NARWANA
JIND
9416061196 (Number Shared by Promoter in Public)
NARWANAHOUSING@GMAIL.COM
BHARATA BHUSHAN
9416061196 (Number Shared by Promoter in Public)
NARWANAHOUSING@GMAIL.COM








As per sub-rule(2) of rule 3 of the Haryana Real Estate (Regulation and Development) Rules,2017, the fee for registration of the project as has been calculated as follows:
-----------------------------------------------------------------------------------------------------------------------
-----------------------------------------------------------------------------------------------------------------------
-----------------------------------------------------------------------------------------------------------------------
-----------------------------------------------------------------------------------------------------------------------
2. The aforesaid fees is hereby deposited vide following Drafts/ Banker’s Cheques:-

Sr No.Draft/Cheque No.Draft DateAmountPayee BankPayable To
1674105-08-2017171830HDFC BANKHRERA Panchkula







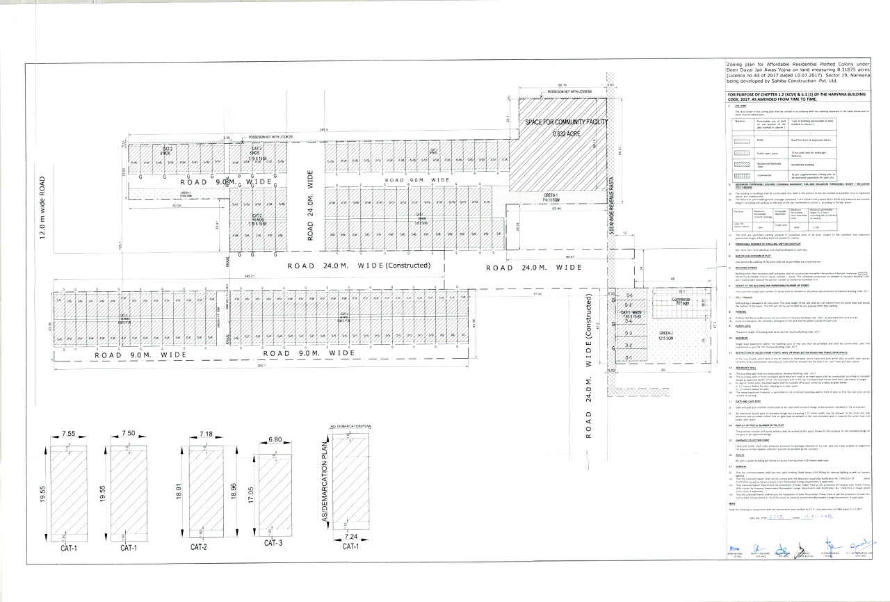
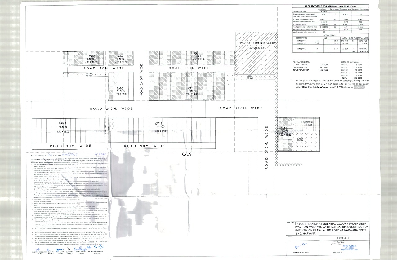
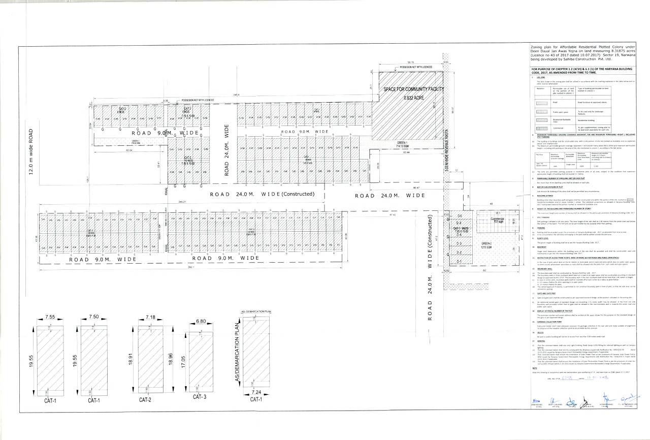
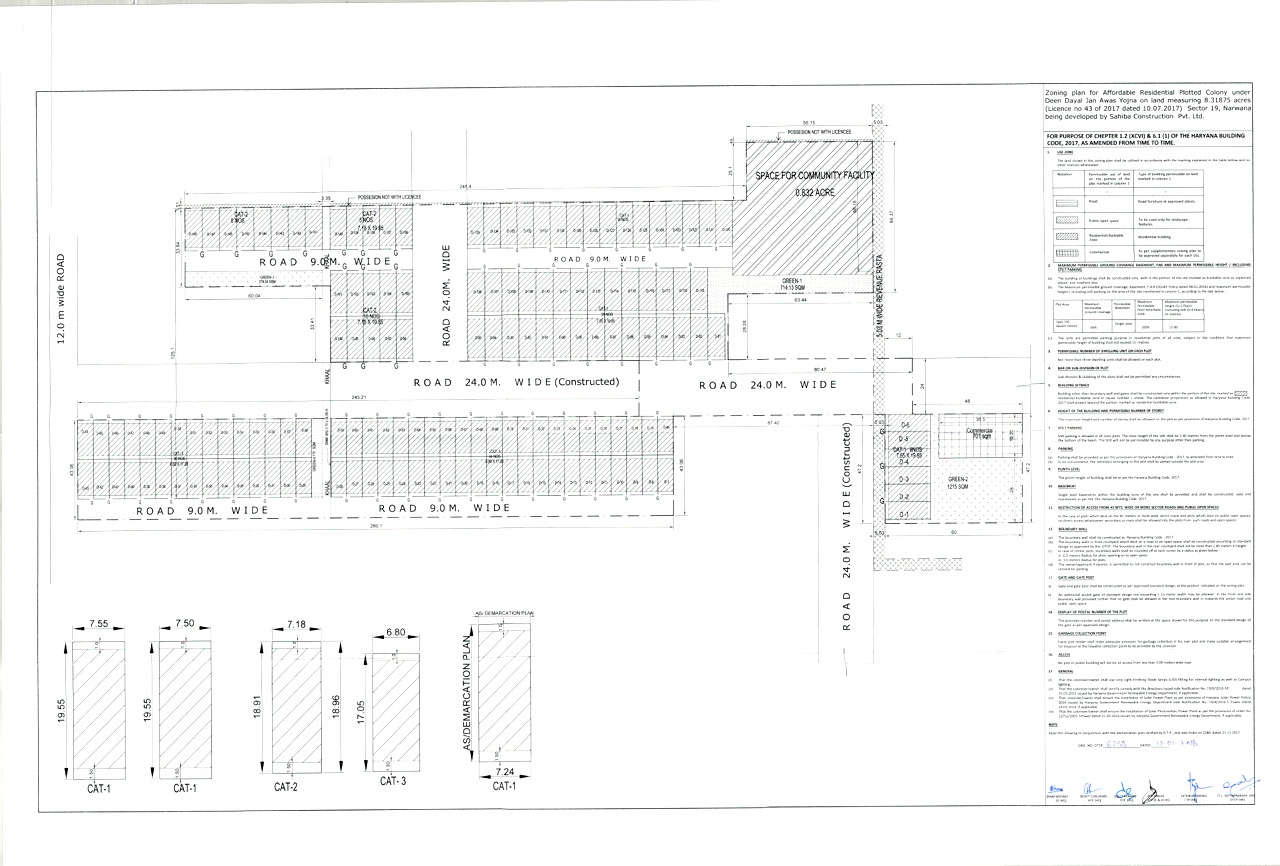
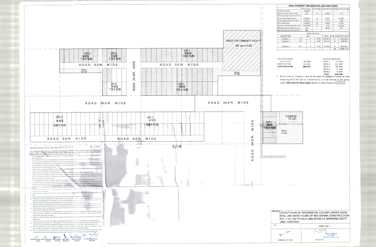
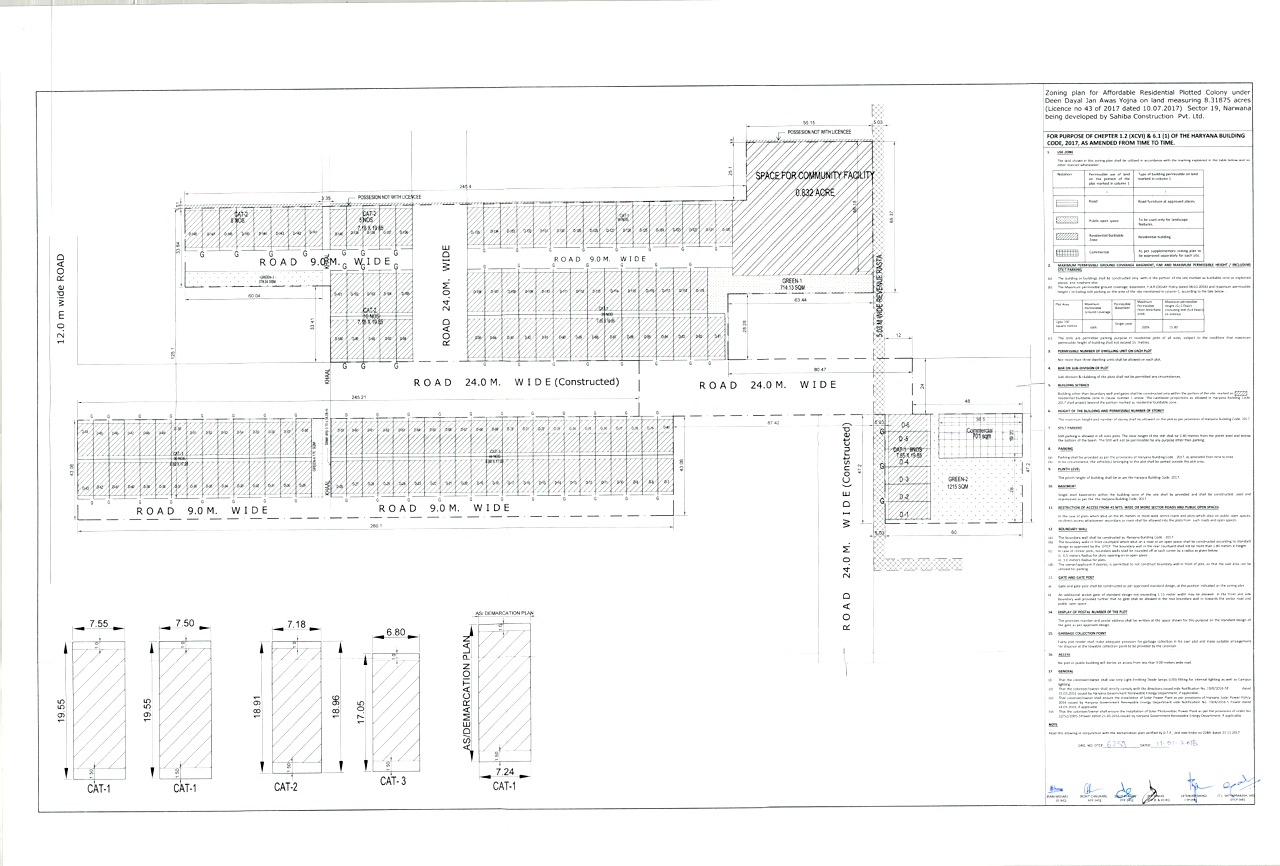
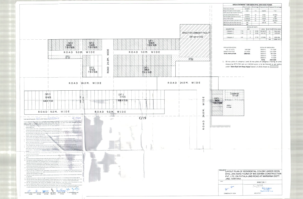
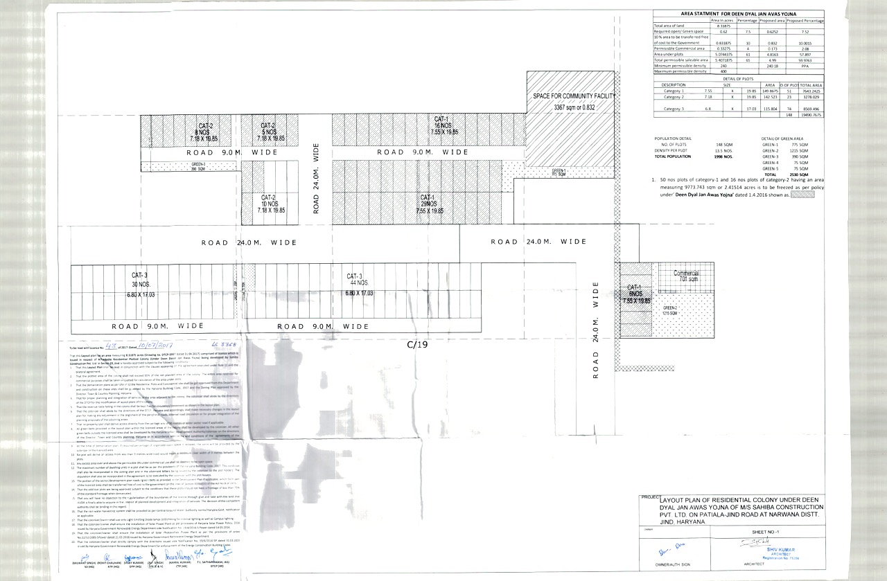
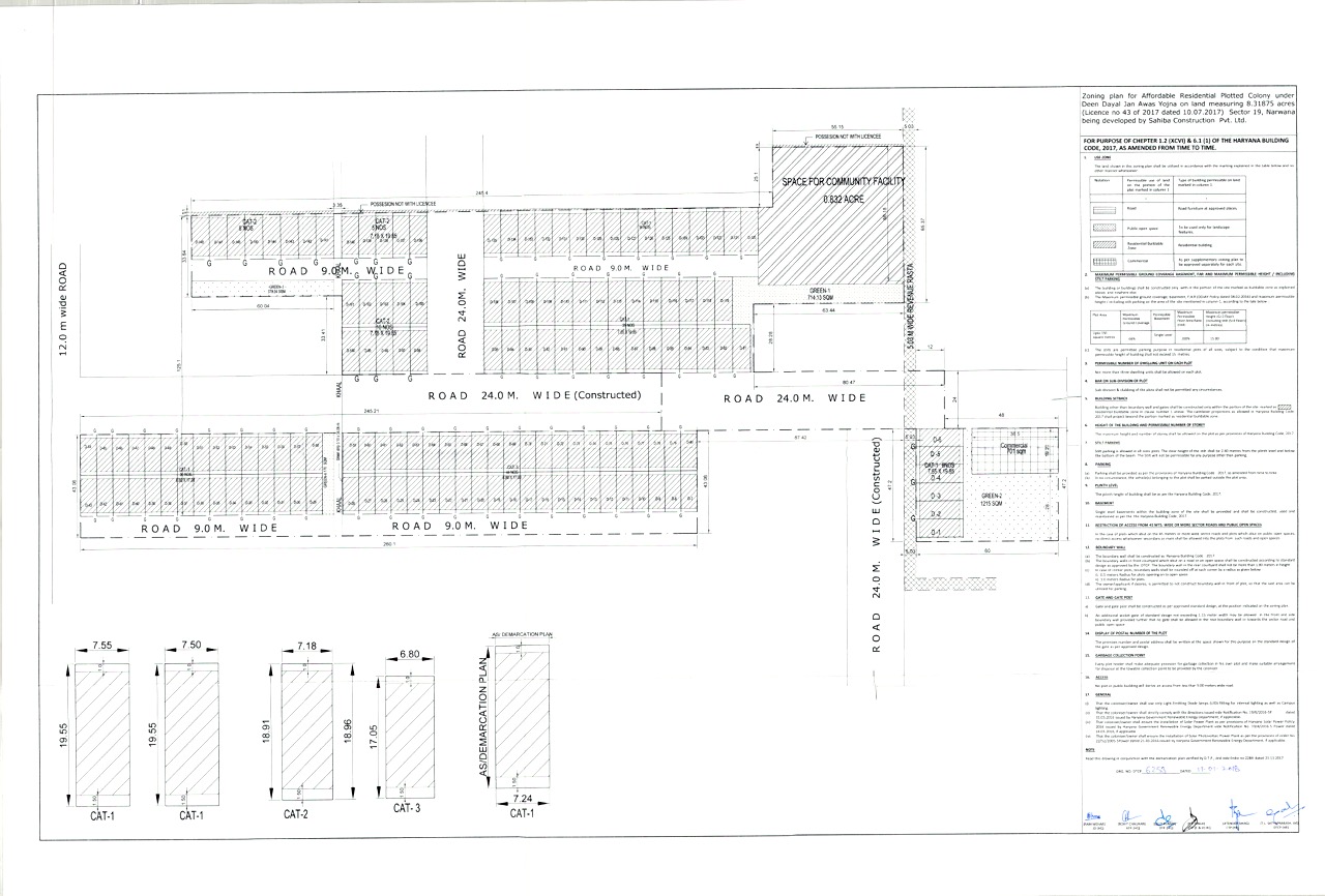
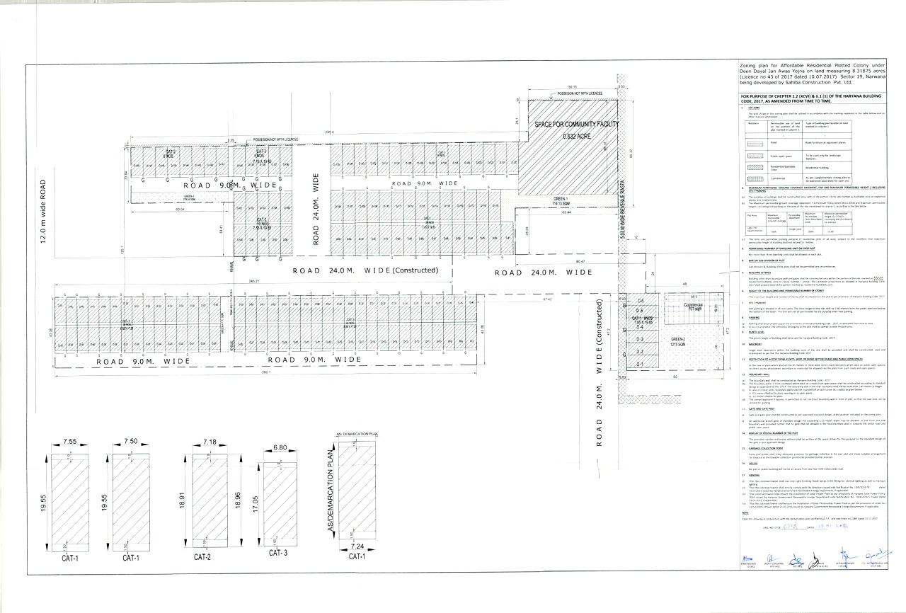
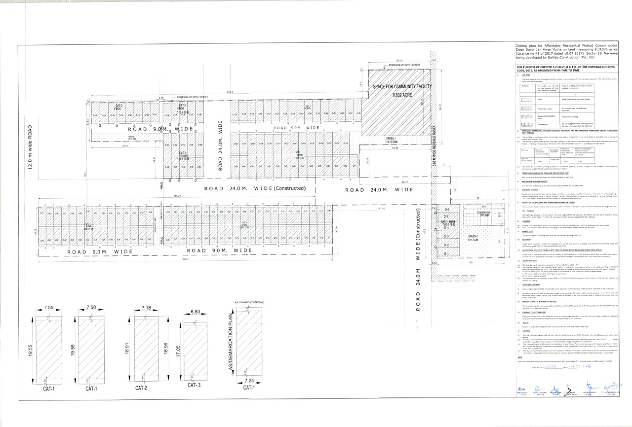
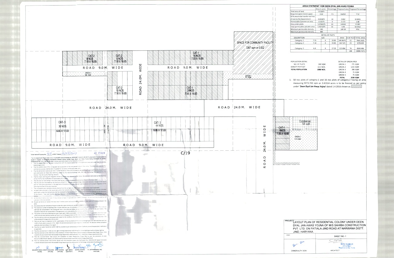
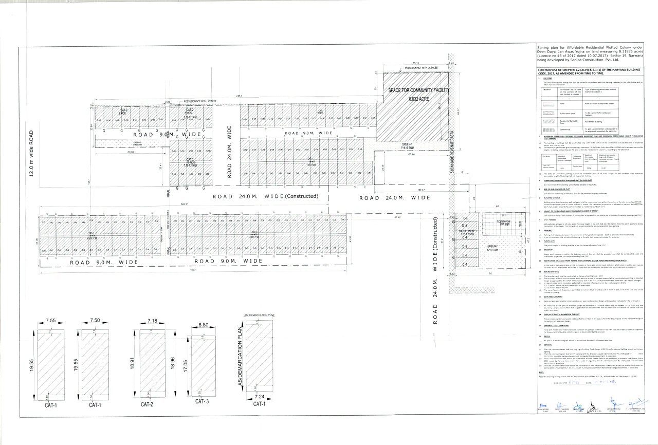
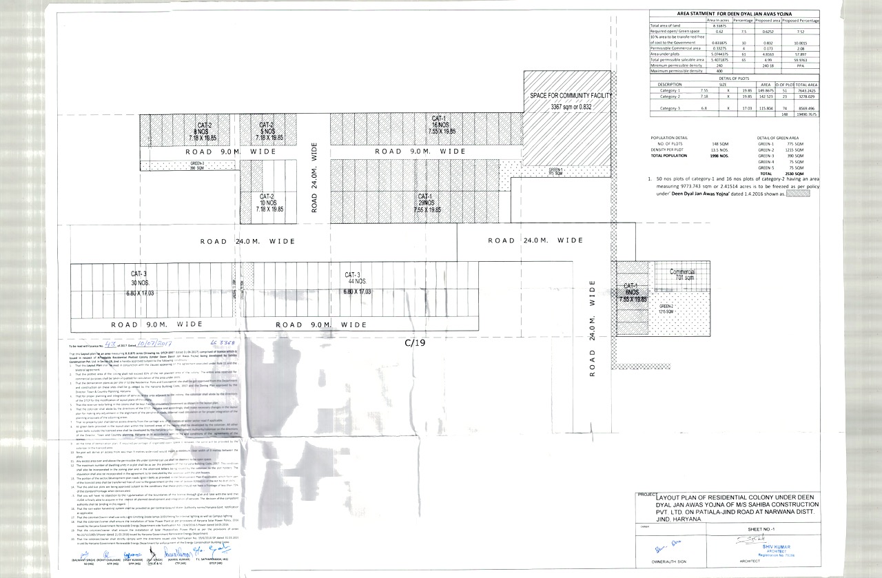
8.31875 (Acre)
65
59.9763
45 (Acre)
43 OF 2017
Yes







390.77 Lakhs
116.463 Lakhs
0 Lakhs
183.181 Lakhs
90.683 Lakhs




Sr. No.Land area under usageArea of land (Acres)
1PLOTS TO BE SOLD 4.8163
2LAND AREA TO BE USED FOR CONSTRUCTION OF APARTMENTS 0
3CONSTRUCTION OF ROADS 1.87
4PAVEMENTS 0
5PARKS AND PLAYGROUNDS 0.49174
6GREEN BELTS 0.133437
7VEHICLE PARKINGS 0
8ELECTRICITY SUB-STATION 0
9CLUB HOUSE 0
10SEWAGE AND SOLID WASTE TREATMENT FACILITY 0
11AREA TO BE LEFT FOR TRANSFERRING TO THE GOVERNMENT FOR COMMUNITY SERVICES 0.832
12ANY OTHER 0
13COMMERCIAL 0.173
Total8.316477




FacilityExternal/ connecting service to be provided by (Name the agency)Whether Approval taken from the agency concerned. Yes/No (Annex details in folder C)
ROADSPWDYes
WATER SUPPLYPWDYes
ELECTRICITYDHPVNYes
SEWAGE DISPOSALPWDYes
STORM WATER DRAINAGEPWDYes




Sr. No.Name of the facilityEstimated cost (In Lakhs)(Within the project area only)Remarks: Yet to be prepared / Submitted to HUDA, Town & Country Planning Department/ as per project report etc. (Annex relevant documents showing costing details etc. in folder C)
1INTERNAL ROADS AND PAVEMENTS64.34AS PER PROJECT REPORT
2WATER SUPPLY SYSTEM18.96AS PER PROJECT REPORT
3STORM WATER DRAINAGE18.90AS PER PROJECT REPORT
4ELECTRICITY SUPPLY SYSTEM15.50AS PER PROJECT REPORT
5SEWAGE TREATMENT & GARBAGE DISPOSAL24.30AS PER PROJECT REPORT
6STREET LIGHTING0YET TO BE PREPARED
7SECURITY AND FIRE FIGHTING0YET TO BE PREPARED
8PLAYGROUNDS AND PARKS6.90AS PER PROJECT REPORT
9CLUB HOUSE/COMMUNITY CENTRE2.60AS PER PROJECT REPORT
10SHOPPING AREA0YET TO BE PREPARED
11RENEWABLE ENERGY SYSTEM0YET TO BE PREPARED
12SCHOOL0YET TO BE PREPARED
13HOSPITAL/DISPENSARY0YET TO BE PREPARED
14ANY OTHER0YET TO BE PREPARED


11-01-2018 (date)
11-01-2018 (date)


Sr. No.Plot/ apartment type Size of the plot/carpet area of the apartments Total number of plots/apartments in the project Total size of the plots/carpet area of the apartments Plots/apartments booked/ sold upto the date of application Yet to be sold/ booked No. of towers to be/ being constructed for booked apartments
1 PLOT Type 1 149.86 51 7642.86 0 51 0
2 PLOT Type 2 142.523 23 3278.029 0 23 0
3 PLOT Type 3 117.64 74 8705.36 12 62 0
Total14819626.249121360






TypeNumber of apartments booked/ sold Write or Annex the stage of construction of the booked/ sold apartments in folder C
NA00


N/A
N/A
N/A
01-01-2018
30
31-12-2019
PROVIDED C-X
DETAILS PROVIDED IN C


PlotsBooked/soldStage of handing over the possession (Write or Annex details)
PLOT12ALREADY STARTED
01-01-2018
30
31-12-2019
PROVIDED IN C-X
DETAILS PROVIDED IN C


0
0
0
0
0





Expenditure incurred till the date of application (In Lakhs)

ParticularsExpenditure
Apartments0
Shops0
Plots205.07

Expenditure to be made in each quarter (In Lakhs)

ParticularsExpenditure to be made in each quarter ()
Apr-JuneJuly-SepOct-DecJan-Mar




Expenditure incurred till the date of application (In Lakhs)

ParticularsExpenditure
Roads & Pavements26.10
Water Supply System12.30
Sewerage treatment & garbage disposal9.6
Electricity Supply System3.81
Storm Water Drainage7.4
Parks and Playgrounds1.5
Clubhouse/community centres2.6
Shopping area0
Other0

Expenditure to be made in each quarter (In Lakhs)

ParticularsExpenditure to be made in each quarter ()
Apr-JuneJuly-SepOct-DecJan-Mar












Particulars Remarks, if any
i. No. of Flats/Apartments constructed148plots
ii. No. of Flats/ Apartments booked12
iii. Total amount sale value of booked Flats, on the date of application/end of last quarter113.54 Lakhs
iv. Total amount received from the allottees (booked Flats), on the date of application/end of last quarter113.54 Lakhs
v. Balance amount to be received from the allottees (booked Flats, after completion), on the date of application/end of last quarter0 Lakhs
vi. Balance amount due and recoverable from the allottees (booked Flats) as on the date of application /end of last quarter0 Lakhs
vii. Amount invested in the project upto the date of application270.146 Lakhs
Land cost (If any)116.463 Lakhs
Apartments0 Lakhs
Infrastructure63 Lakhs
EDC/ Taxes Etc.90.683 Lakhs
viii. Balance cost to be incurred for completion of the project and delivery of possession120 Lakhsdevelpoment going on whole project as a whole
(a) In respect of existing allottees0 Lakhs
(b) In respect of rest of the project0 Lakhs
ix. The amount of loan raised from the banks/ financial institutions/ private persons against the project
Annex detail of the securities furnished to the banks/ financial institutions against the aforesaid loans in folder C
0 Lakhs
x. Total liabilities against the project up-to-date. (Annex details in folder C) 0 Lakhs



Particulars Estimated expenditure planned to be incurred as per service plan estimates or the project report. (In Lakhs)Actual expenditure incurred upto the date of application. (In Lakhs)
I. INTERNAL ROADS AND PAVEMENTS66.3426.10
II. WATER SUPPLY SYSTEM18.912.3
III. STORM WATER DRAINAGE18.97.4
IV. ELECTRICITY SUPPLY SYSTEM15.53.81
V. SEWAGE TREATMENT & GARBAGE DISPOSAL24.39.6
VI. CLUB HOUSE/COMMUNITY CENTRE2.62.6
VII. SCHOOL00
VIII. ANY OTHER00
IX. SOLID WASTE COLLECTION & MGMT SYSTEM00
X. CLUBHOUSE00
XI. NEIGHBOURHOOD SHOPPING00
XII. GREEN AREAS,PARKS,PLAYGROUNDS ETC.6.91.5
XIII. COVERED PARKING00
XIV. OPEN PARKING00
XV. GARAGES00
XVI. SECURITY SYSTEM00
XVII. OTHER FACILITIES AS PER PROJECT REPORT00









Yes
Yes
STATE BANK OF INDIA, NARWANA
37048929727
SBIN0010003
126002311
010003
Bharat Bhushan 10/14, shakti nagar, narwana
no











Yes
Yes
Yes
No
No
No
No
No
No
No


Yes
No
Yes
Yes
Yes
Yes
No
No
Statutory Approvals Statutory Approvals StatusDate
I. LETTER OF INTENTALREADY BEEN OBTAINED07-03-2017
II. LICENSEALREADY BEEN OBTAINED09-07-2017
III. DEMARCATION / LAY OUT PLANALREADY BEEN OBTAINED15-01-2018
IV. ZONINGALREADY BEEN OBTAINEDNA








Yes


Yes









BASANT VIHAR, DDJAY, SECTOR 19, NARWANA
8.31875
0
148
0
12
Initially estimated cost (In Lakhs)Revised cost (In Lakhs)Expenditure incurred upto the date of application (In Lakhs)
Total cost of the project
(Other than cost of land)
273.864273.86463
Cost of the apartments000
Cost of the infrastructure000
Others costs000


113.54 Lakhs
0 Lakhs
0 Lakhs
0 Lakhs
No
31-12-2019
31-12-2019










SPECIFICATION OF CONSTRUCTION
Specification of apartments and other buildings including the following:
1FLOORING DETAILS OF VARIOUS PARTS OF HOUSENA
2WALL FINISHING DETAILSNA
3KITCHEN DETAILSNA
4BATHROOM FITTINGSNA
5WOOD WORK ETCNA
6DOORS AND WINDOS FRAMESNA
7GLASS WORKNA
8ELECTRIC FITTINGSNA
9CONDUCTING AND WIRING DETAILSNA
10CUPBOARD DETAILSNA
11WATER STORAGENA
12LIFT DETAILSNA
13EXTERNAL GLAZINGSNA
13.1WINDOWS/GLAZINGSNA
14DOORSNA
14.1MAIN DOORSNA
14.2INTERNAL DOORSNA
15AIR CONDITIONINGNA
16ELECTRICAL FITTINGSNA
17CNG PIPE LINENA
18PROVISION OF WIFI AND BROADBAND FACILITYNA
19EXTERNAL FINISHING/COLOUR SCHEMENA
20INTERNAL FINISHINGNA
SPECIFICATION UNIT WISE
1 . LIVING/DINING/FOYER/FAMILY LOUNGE
1 . 1 FLOORNA
1 . 2 WALLSNA
1 . 3 CEILINGNA
2 . MASTER BEDROOM/DRESSROOM
2 . 1 FLOORNA
2 . 2 WALLSNA
2 . 3 CEILINGNA
2 . 4 MODULAR WARDROBESNA
3 . MASTER TOILET
3 . 1 FLOORNA
3 . 2 WALLSNA
3 . 3 CEILINGNA
3 . 4 COUNTERSNA
3 . 5 SANITARY WARE/CP FITTINGSNA
3 . 6 FITTING/FIXTURESNA
4 . BED ROOMS
4 . 1 FLOORNA
4 . 2 WALLSNA
4 . 3 CEILINGNA
4 . 4 WARDROBESNA
5 . TOILET
5 . 1 FLOORNA
5 . 2 WALLSNA
5 . 3 CEILINGNA
5 . 4 COUNTERSNA
5 . 5 SANITARY WARE/CP FITTINGSNA
5 . 6 FIXTURESNA
6 . KITCHEN
6 . 1 FLOORNA
6 . 2 WALLSNA
6 . 3 CEILINGNA
6 . 4 COUNTERSNA
6 . 5 FIXTURESNA
6 . 6 KITCHEN APPLIANCESNA
7 . UTILITY ROOMS/UTILITY BALCONY/TOILET
7 . 1 FLOORNA
7 . 2 WALLS & CEILINGNA
7 . 3 TOILETNA
7 . 4 BALCONYNA
8 . SIT-OUTS
8 . 1 FLOORNA
8 . 2 WALLS & CEILINGNA
8 . 3 RAILINGSNA
8 . 4 FIXTURESNA












Sr. No.Document DescriptionDate of Document UploadView Document
1 COPY OF LICENSE ALONG WITH SCHEDULE OF LAND 15-04-2019 View Document
2 SERVICE PLANS SHOWING THE SERVICES ON THE LAYOUT PLAN 15-04-2019 View Document
3 DOCUMENTS RELATING TO THE ENTRY OF LICENSE AND COLLABORATION AGREEMENT IN THE REVENUE RECORD 15-04-2019 View Document
4 IN CASE OF PLOTTED COLONY, THE LATEST LAYOUT PLAN 15-04-2019 View Document
5 DEMARCATION PLAN 15-04-2019 View Document
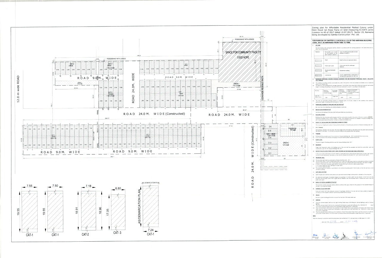
6 ZONING PLAN 15-04-2019 View Document
7 NON DEFAULT CERTIFICATE FROM A CHARTERED ACCOUNTANT 15-04-2019 View Document
8 CERTIFICATE FROM A CHARTERED ACCOUNTANT CERTIFYING THAT THE INFORMSTION PROVIDED BY THE APPLICANT IN FORM REP-1-C-X IS CORRECT AS PER THE BOOKS OF ACCOUNTS/ BALANCE SHEET OF THE APPLICANT 15-04-2019 View Document
9 CASH FLOW STATEMENT OF THE PROPOSED PROJECT 16-04-2019 View Document
10 DECLARATION SUPPORTED BY AFFIDAVIT DULY SIGNED BY THE PROMOTER TO BE ENCLOSED. 16-04-2019 View Document
11 A COMPLETE SET OF THE LAST APPROVED BUILDING PLANS 16-04-2019 View Document
12 IN CASE OF GROUP HOUSING/ COMMERCIAL SITES, A COPY OF THE APPROVED SITE PLAN 16-04-2019 View Document












Sr. No.Document DescriptionDate of Document UploadView Document
1 Extension of Registration 21-10-2020 View Document
2 completion certificate dated:22-12-2020 21-12-2021 View Document