HRERA PanchkulaTemp Project Id : RERA-PKL-PROJ-484-2019
Submission Date : 17-04-2019 06:54:13 AM
Applicant Type : Company
Project Type: ONGOING




MUDRA FINANCE
G12/A, 1ST FLOOR, HAUZ KHAS, NEW DELHI-110016
01244065500
9871240588 (Number Shared by Promoter in Public)
secretarial@vipulgroup.in
https://www.vipulgroup.in
XXXX304J
U70101DL1997PLC085456
 
 


 
 


 
 


 
 


 
 







VIPUL GARDENS TOWER 11
SECTOR-1
DHARUHERA ST
REWARI
01244065500
9811922284 (Number Shared by Promoter in Public)
secretarial@vipulgroup.in
PARVESH MANCHANDA
01244065500
9811922284 (Number Shared by Promoter in Public)
manchanda@vipulgroup.in








As per sub-rule(2) of rule 3 of the Haryana Real Estate (Regulation and Development) Rules,2017, the fee for registration of the project as has been calculated as follows:
-----------------------------------------------------------------------------------------------------------------------
-----------------------------------------------------------------------------------------------------------------------
-----------------------------------------------------------------------------------------------------------------------
-----------------------------------------------------------------------------------------------------------------------
2. The aforesaid fees is hereby deposited vide following Drafts/ Banker’s Cheques:-

Sr No.Draft/Cheque No.Draft DateAmountPayee BankPayable To
1104909-08-201737000AXIS BANK LTDHRERA Panchkula







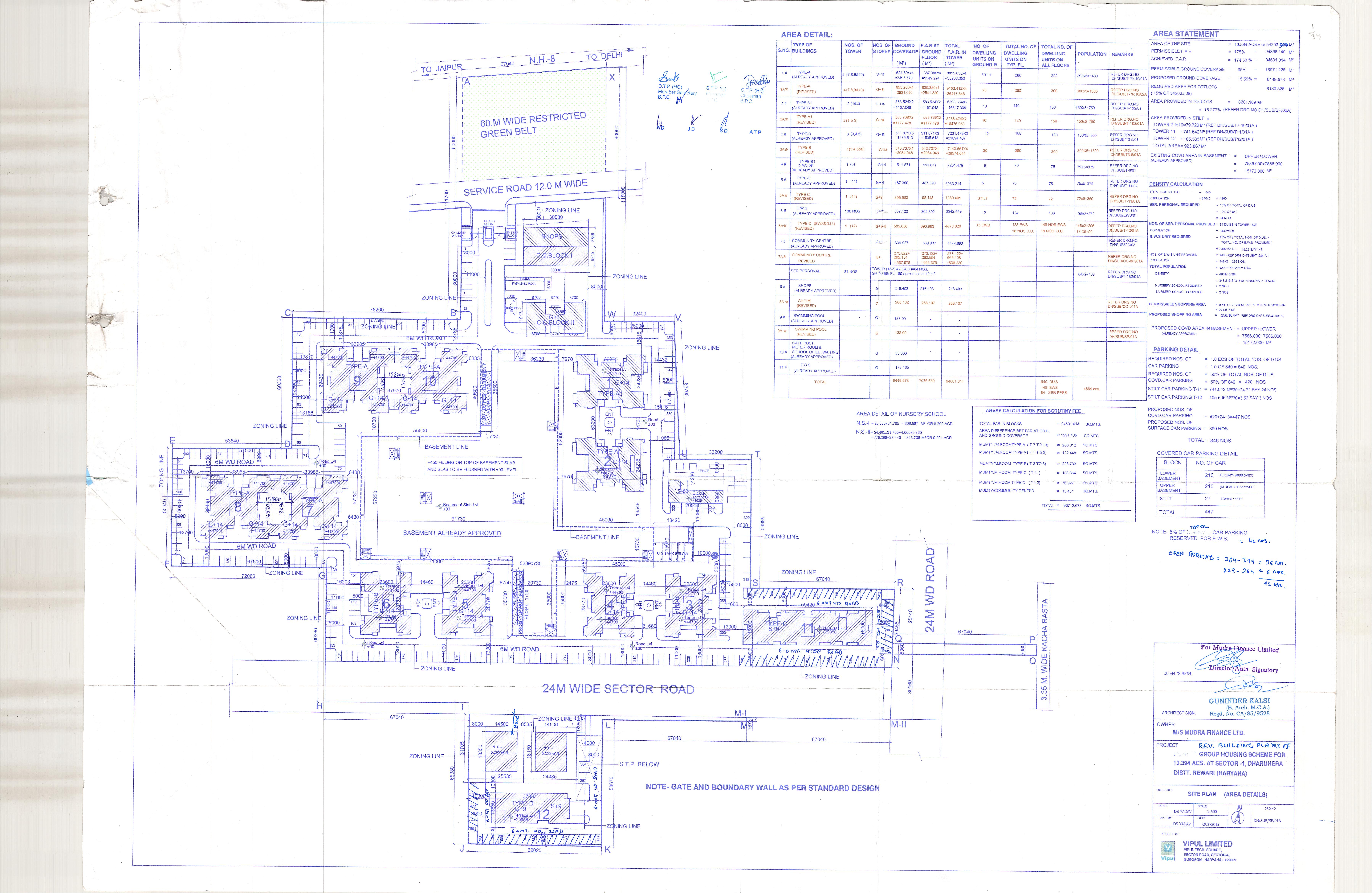
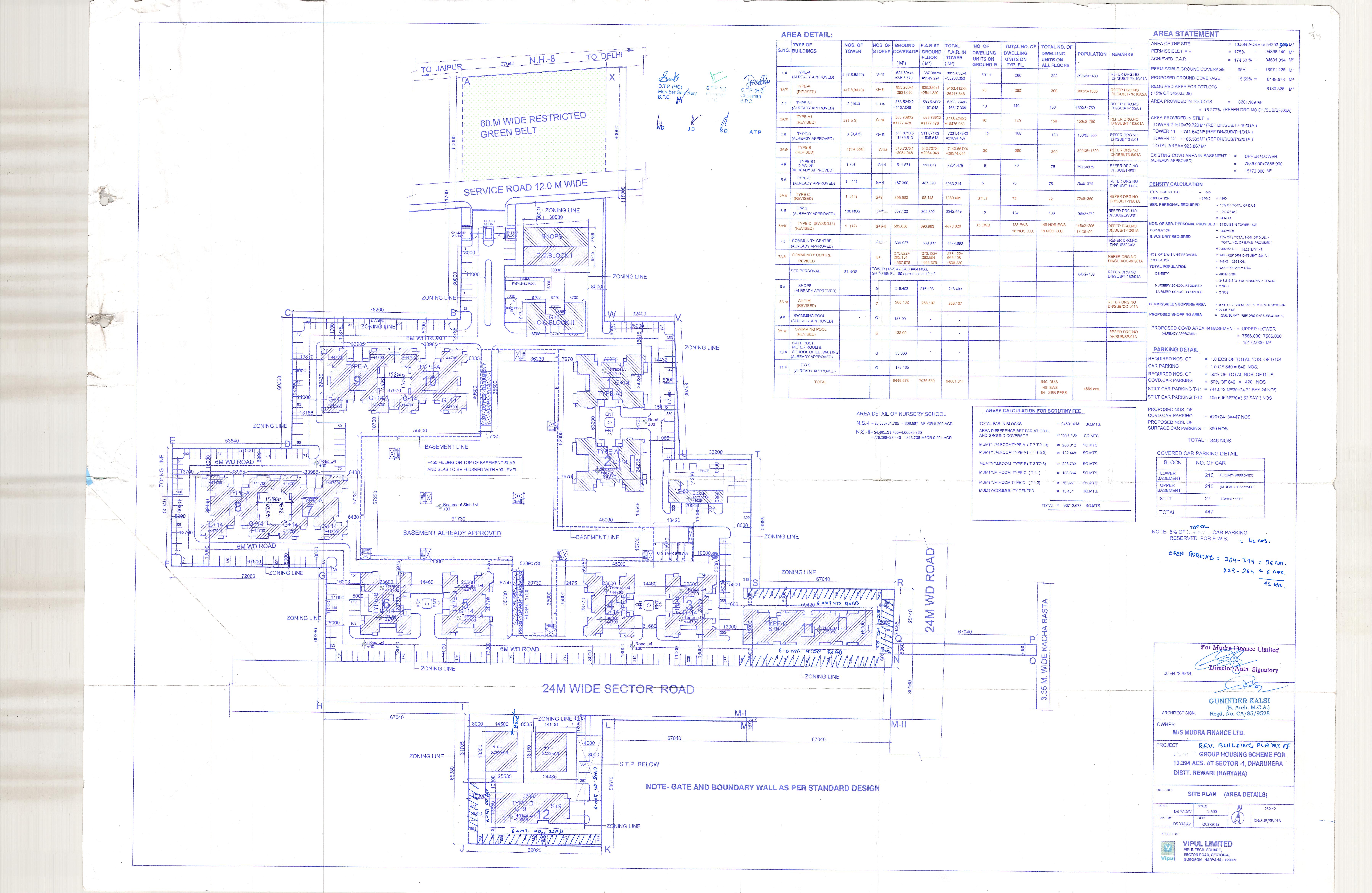
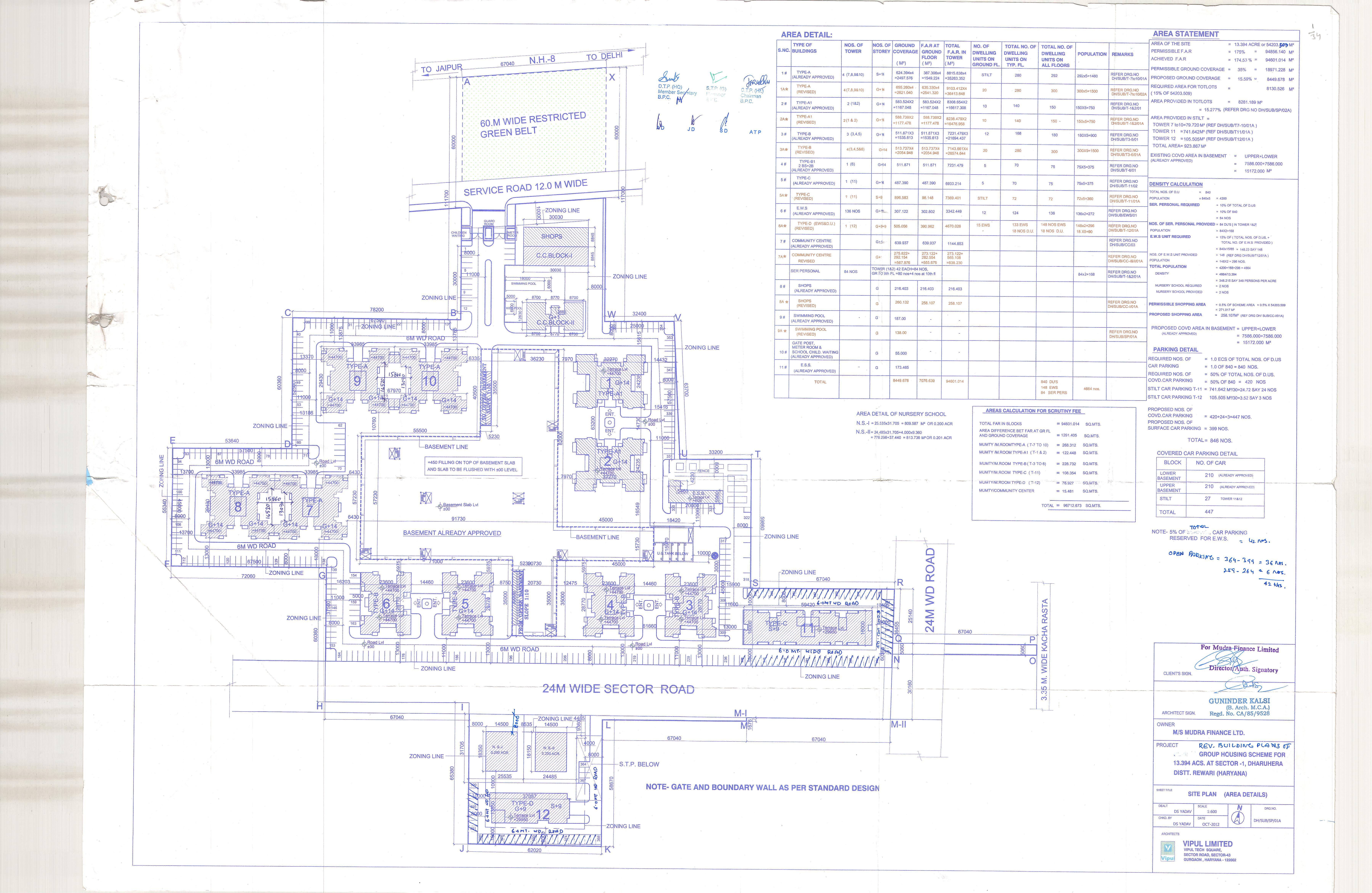
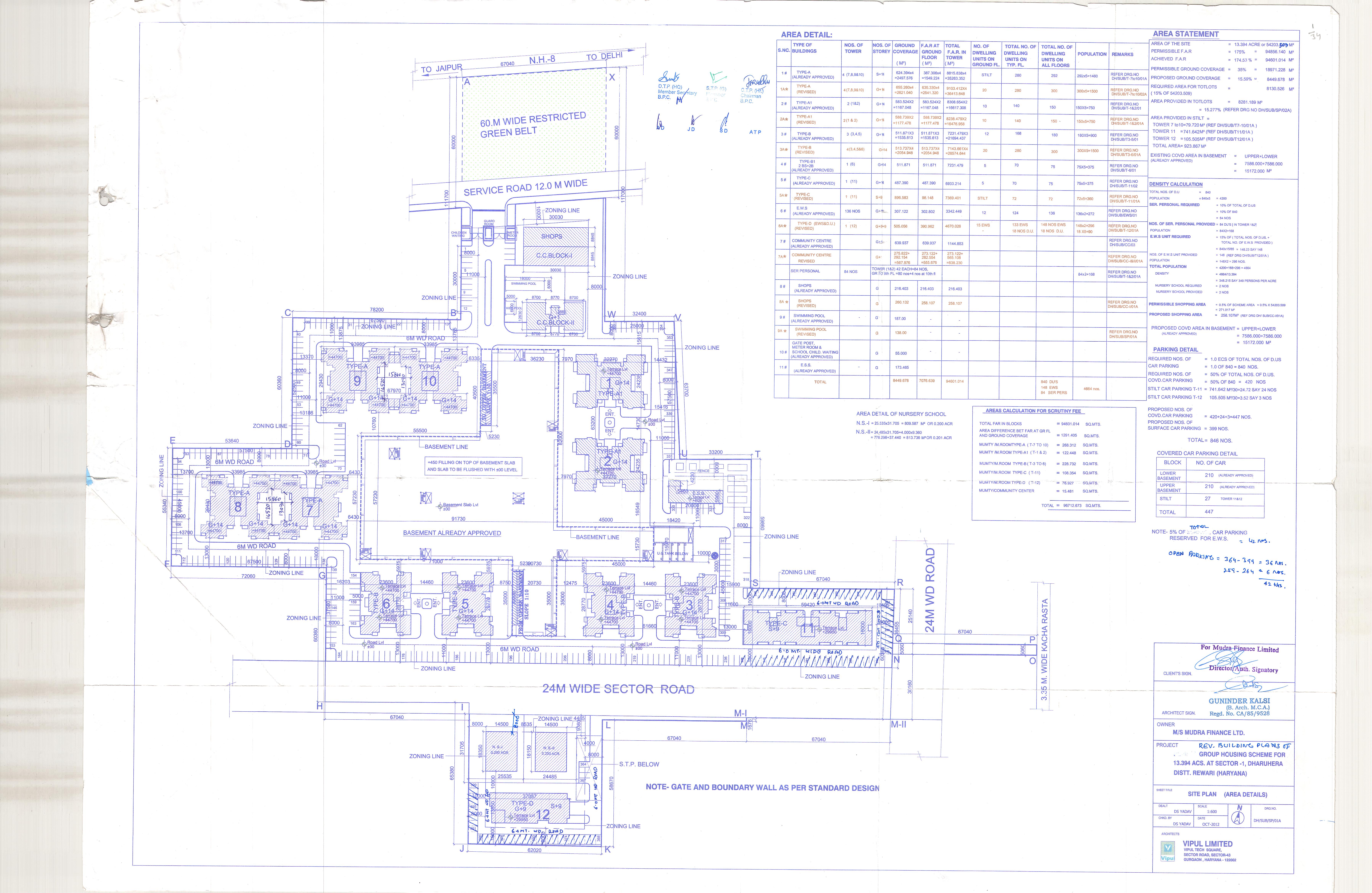
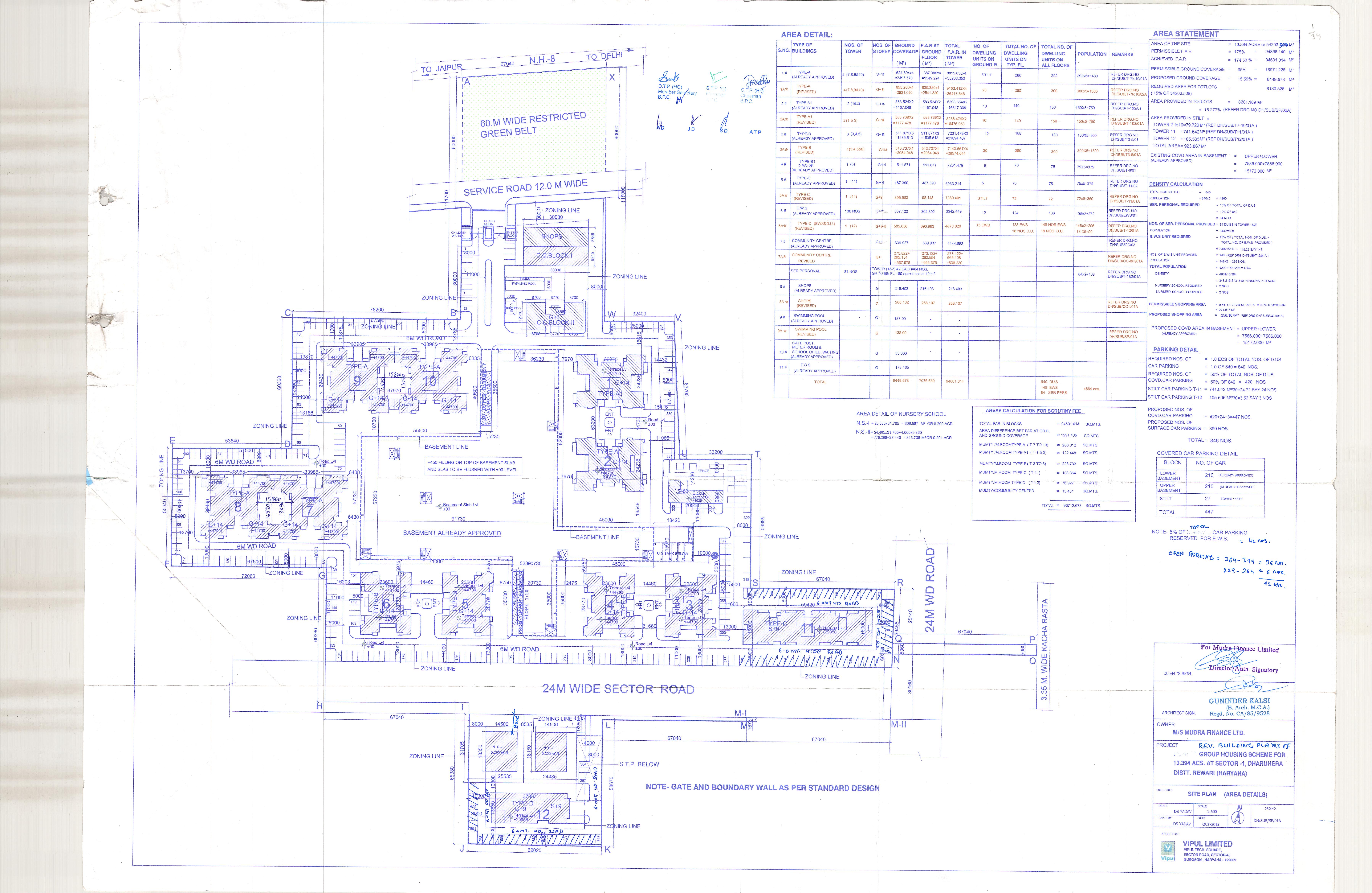
13.394 (Acre)
175
174.53
13.394 (Acre)
40 of 2007
Yes







2390.00 Lakhs
105.00 Lakhs
1865.00 Lakhs
0 Lakhs
295.00 Lakhs




Sr. No.Land area under usageArea of land (Square Meters)
1PLOTS TO BE SOLD 0
2LAND AREA TO BE USED FOR CONSTRUCTION OF APARTMENTS 896.583
3CONSTRUCTION OF ROADS 3178.00
4PAVEMENTS 3221.00
5PARKS AND PLAYGROUNDS 8281.00
6GREEN BELTS 0
7VEHICLE PARKINGS 4988.00
8ELECTRICITY SUB-STATION 799.00
9CLUB HOUSE 567.976
10SEWAGE AND SOLID WASTE TREATMENT FACILITY 358.00
11AREA TO BE LEFT FOR TRANSFERRING TO THE GOVERNMENT FOR COMMUNITY SERVICES 0
12ANY OTHER 0
Total22289.559




FacilityExternal/ connecting service to be provided by (Name the agency)Whether Approval taken from the agency concerned. Yes/No (Annex details in folder C)
ROADSHSVPNo
WATER SUPPLYHSVPNo
ELECTRICITYDHBVLYes
SEWAGE DISPOSALHSVPNo
STORM WATER DRAINAGEHSVPNo




Sr. No.Name of the facilityEstimated cost (In Lakhs)(Within the project area only)Remarks: Yet to be prepared / Submitted to HUDA, Town & Country Planning Department/ as per project report etc. (Annex relevant documents showing costing details etc. in folder C)
1INTERNAL ROADS AND PAVEMENTS330.90SUBMITTED TO TOWN & COUNTRY PLANNING
2WATER SUPPLY SYSTEM268.88SUBMITTED TO TOWN & COUNTRY PLANNING
3STORM WATER DRAINAGE120.22SUBMITTED TO TOWN & COUNTRY PLANNING
4ELECTRICITY SUPPLY SYSTEM620.00AS PER PROJECT REPORT
5SEWAGE TREATMENT & GARBAGE DISPOSAL186.13SUBMITTED TO TOWN & COUNTRY PLANNING
6STREET LIGHTING30.82SUBMITTED TO TOWN & COUNTRY PLANNING
7SECURITY AND FIRE FIGHTING10.00SUBMITTED TO TOWN & COUNTRY PLANNING
8PLAYGROUNDS AND PARKS5.00SUBMITTED TO TOWN & COUNTRY PLANNING
9CLUB HOUSE/COMMUNITY CENTRE200.00SUBMITTED TO TOWN & COUNTRY PLANNING
10SHOPPING AREA30.00SUBMITTED TO TOWN & COUNTRY PLANNING
11RENEWABLE ENERGY SYSTEM0SUBMITTED TO TOWN & COUNTRY PLANNING
12SCHOOL38.00SUBMITTED TO TOWN & COUNTRY PLANNING
13HOSPITAL/DISPENSARY0SUBMITTED TO TOWN & COUNTRY PLANNING
14ANY OTHER0SUBMITTED TO TOWN & COUNTRY PLANNING


NA (date)
NA (date)


Sr. No.Plot/ apartment type Size of the plot/carpet area of the apartments Total number of plots/apartments in the project Total size of the plots/carpet area of the apartments Plots/apartments booked/ sold upto the date of application Yet to be sold/ booked No. of towers to be/ being constructed for booked apartments
1 APARTMENT/SHOPS/OTHER BUILDINGS Type 0 72 0 5 67 1
Total7205671






TypeNumber of apartments booked/ sold Write or Annex the stage of construction of the booked/ sold apartments in folder C
RESIDENTIAL5NEAR TO COMPLETION


01-08-2013
31-07-2019
31-07-2019
10-01-2012
100
31-07-2019
COMPLETE
COMPLETE


PlotsBooked/soldStage of handing over the possession (Write or Annex details)
PLOT0NA
10-01-2012
100
31-07-2019
COMPLETE
COMPLETE


0
0
0
0
0





Expenditure incurred till the date of application (In Lakhs)

ParticularsExpenditure

Expenditure to be made in each quarter (In Lakhs)

ParticularsExpenditure to be made in each quarter ()
Apr-JuneJuly-SepOct-DecJan-Mar




Expenditure incurred till the date of application (In Lakhs)

ParticularsExpenditure

Expenditure to be made in each quarter (In Lakhs)

ParticularsExpenditure to be made in each quarter ()
Apr-JuneJuly-SepOct-DecJan-Mar












Particulars Remarks, if any
i. No. of Flats/Apartments constructed72As on date of application
ii. No. of Flats/ Apartments booked5As on date of application
iii. Total amount sale value of booked Flats, on the date of application/end of last quarter205.00 LakhsAs on date of application
iv. Total amount received from the allottees (booked Flats), on the date of application/end of last quarter196.00 LakhsAs on date of application
v. Balance amount to be received from the allottees (booked Flats, after completion), on the date of application/end of last quarter9.00 LakhsAs on date of application
vi. Balance amount due and recoverable from the allottees (booked Flats) as on the date of application /end of last quarter0 LakhsAs on date of application
vii. Amount invested in the project upto the date of application2265.00 LakhsAs on date of application
Land cost (If any)105.00 LakhsAs on date of application
Apartments1865.00 LakhsAs on date of application
Infrastructure0 LakhsCan't bifurcate as 100% completed
EDC/ Taxes Etc.217.00 LakhsAs on date of application
viii. Balance cost to be incurred for completion of the project and delivery of possession125.00 LakhsAs on date of application
(a) In respect of existing allottees125.00 LakhsAs on date of application
(b) In respect of rest of the project125.00 LakhsAs on date of application
ix. The amount of loan raised from the banks/ financial institutions/ private persons against the project
Annex detail of the securities furnished to the banks/ financial institutions against the aforesaid loans in folder C
1800.00 LakhsAs on date of application
x. Total liabilities against the project up-to-date. (Annex details in folder C) 125.00 LakhsAs on date of application



Particulars Estimated expenditure planned to be incurred as per service plan estimates or the project report. (In Lakhs)Actual expenditure incurred upto the date of application. (In Lakhs)
I. INTERNAL ROADS AND PAVEMENTS330.90112.00
II. WATER SUPPLY SYSTEM268.8871.00
III. STORM WATER DRAINAGE120.2265.00
IV. ELECTRICITY SUPPLY SYSTEM620.00635.00
V. SEWAGE TREATMENT & GARBAGE DISPOSAL186.13172.00
VI. CLUB HOUSE/COMMUNITY CENTRE200.00200.00
VII. SCHOOL38.0022.00
VIII. ANY OTHER00
IX. SOLID WASTE COLLECTION & MGMT SYSTEM00
X. CLUBHOUSE00
XI. NEIGHBOURHOOD SHOPPING30.0030.00
XII. GREEN AREAS,PARKS,PLAYGROUNDS ETC.25.0027.00
XIII. COVERED PARKING00
XIV. OPEN PARKING00
XV. GARAGES00
XVI. SECURITY SYSTEM10.0010.00
XVII. OTHER FACILITIES AS PER PROJECT REPORT00









Yes
Yes
HDFC BANK LTD, MG ROAD GURGAON
57500000113427
HDFC0001203
110240182
001203
HDFC Bank
NA











Yes
Yes
Yes
Yes
Yes
Yes
Yes
Yes
Yes
Yes


Yes
Yes
Yes
Yes
Yes
No
Yes
Yes
Statutory Approvals Statutory Approvals StatusDate
I. LICENCEALREADY BEEN OBTAINED25-01-2007
II. ZONING PLANALREADY BEEN OBTAINED21-06-2007
III. REVISED BUILDING PLANALREADY BEEN OBTAINED01-03-2013
IV. ENVIRONMENTAL CLEARANCEALREADY BEEN OBTAINED22-05-2008
V. SERVICE PLAN ESTIMATEALREADY BEEN OBTAINED03-03-2014
VI. NOC POLLUTION-CTE RENEWALALREADY BEEN OBTAINED31-03-2017
VII. RENEWAL OF LICENCEALREADY BEEN OBTAINED07-06-2017
VIII. HIGHWAY ACCESS PERMISSIONALREADY BEEN OBTAINED01-12-2016
IX. REVISED FIRE FIGHTING SCHEME ALREADY BEEN OBTAINED07-05-2013








Yes


Yes















SPECIFICATION OF CONSTRUCTION
Specification of apartments and other buildings including the following:
1FLOORING DETAILS OF VARIOUS PARTS OF HOUSEVETRIFIED, CERAMICS & WOODEN
2WALL FINISHING DETAILSOBD & PLASTIC PAINT
3KITCHEN DETAILSMARBLE COUNTER
4BATHROOM FITTINGSWASH BASIN & WC
5WOOD WORK ETCNA
6DOORS AND WINDOS FRAMESALUMINIUM & WOODEN WORK
7GLASS WORKTOILET
8ELECTRIC FITTINGSFAN POINT, LIGHT POINT, POWER POINT, AC POINT & DB
9CONDUCTING AND WIRING DETAILSPVC & WIRING OF COPPER & ALUMINIUM
10CUPBOARD DETAILSNA
11WATER STORAGEUGT & OHT
12LIFT DETAILS3
13EXTERNAL GLAZINGSALUMINIUM
13.1WINDOWS/GLAZINGSALUMINIUM WINDOW
14DOORSWOODEN
14.1MAIN DOORSWOODEN
14.2INTERNAL DOORSWOODEN
15AIR CONDITIONINGNA
16ELECTRICAL FITTINGSFAN POINT, LIGHT POINT, POWER POINT, AC POINT & DB
17CNG PIPE LINENA
18PROVISION OF WIFI AND BROADBAND FACILITYNA
19EXTERNAL FINISHING/COLOUR SCHEMEYELLOW & WHITE
20INTERNAL FINISHINGOBD & PLASTIC PAINT
SPECIFICATION UNIT WISE
1 . LIVING/DINING/FOYER/FAMILY LOUNGE
1 . 1 FLOORVETRIFIED
1 . 2 WALLSPLASTIC PAINT
1 . 3 CEILINGOBD
2 . MASTER BEDROOM/DRESSROOM
2 . 1 FLOORWOODEN
2 . 2 WALLSPLASTIC PAINT
2 . 3 CEILINGOBD
2 . 4 MODULAR WARDROBESNA
3 . MASTER TOILET
3 . 1 FLOORCERAMIC
3 . 2 WALLSCERAMICS TILES
3 . 3 CEILINGFALSE CEILING
3 . 4 COUNTERSMARBLE
3 . 5 SANITARY WARE/CP FITTINGSAQUA PLUS
3 . 6 FITTING/FIXTURESAQUA PLUS
4 . BED ROOMS
4 . 1 FLOORVETRIFIED
4 . 2 WALLSPLASTIC PAINT
4 . 3 CEILINGOBD
4 . 4 WARDROBESNA
5 . TOILET
5 . 1 FLOORCERAMIC
5 . 2 WALLSCERAMICS TILES
5 . 3 CEILINGFALSE CEILING
5 . 4 COUNTERSMARBLE
5 . 5 SANITARY WARE/CP FITTINGSAQUA PLUS
5 . 6 FIXTURESAQUA PLUS
6 . KITCHEN
6 . 1 FLOORCERAMIC TILES
6 . 2 WALLSPLASTIC PAINT/ CERAMIC TILES
6 . 3 CEILINGOBD
6 . 4 COUNTERSMARBLE
6 . 5 FIXTURESSS
6 . 6 KITCHEN APPLIANCESWALL MIXTURE
7 . UTILITY ROOMS/UTILITY BALCONY/TOILET
7 . 1 FLOORANTISKID CERAMICS TILES
7 . 2 WALLS & CEILINGEXTERNAL TEXTURE
7 . 3 TOILETCERAMICS TILES
7 . 4 BALCONYEXTERNAL TEXTURE
8 . SIT-OUTS
8 . 1 FLOORNA
8 . 2 WALLS & CEILINGNA
8 . 3 RAILINGSNA
8 . 4 FIXTURESNA












Sr. No.Document DescriptionDate of Document UploadView Document
1 A COMPLETE SET OF THE LAST APPROVED BUILDING PLANS 16-04-2019 View Document
2 DEMARCATION PLAN 16-04-2019 View Document
3 ZONING PLAN 16-04-2019 View Document
4 SERVICE PLANS SHOWING THE SERVICES ON THE LAYOUT PLAN 16-04-2019 View Document
5 COPY OF LICENSE ALONG WITH SCHEDULE OF LAND 16-04-2019 View Document
6 IN CASE OF GROUP HOUSING/ COMMERCIAL SITES, A COPY OF THE APPROVED SITE PLAN 16-04-2019 View Document
7 DECLARATION SUPPORTED BY AFFIDAVIT DULY SIGNED BY THE PROMOTER TO BE ENCLOSED. 17-04-2019 View Document
8 NON DEFAULT CERTIFICATE FROM A CHARTERED ACCOUNTANT 17-04-2019 View Document
9 IN CASE OF PLOTTED COLONY, THE LATEST LAYOUT PLAN 17-04-2019 View Document
10 CERTIFICATE FROM A CHARTERED ACCOUNTANT CERTIFYING THAT THE INFORMSTION PROVIDED BY THE APPLICANT IN FORM REP-1-C-X IS CORRECT AS PER THE BOOKS OF ACCOUNTS/ BALANCE SHEET OF THE APPLICANT 17-04-2019 View Document
11 DOCUMENTS RELATING TO THE ENTRY OF LICENSE AND COLLABORATION AGREEMENT IN THE REVENUE RECORD 17-04-2019 View Document












Sr. No.Document DescriptionDate of Document UploadView Document
1 Registration for second extension 25-06-2021 View Document
2 Extension of Registration of Project. 14-01-2020 View Document
3 Extension approved. 24-09-2025 View Document
4 Corrigendum uploaded. 24-09-2025 View Document