HRERA PanchkulaTemp Project Id : RERA-PKL-PROJ-471-2019
Submission Date : 24-04-2019 11:56:36 AM
Applicant Type : Company
Project Type: ONGOING




MG HOUSING PRIVATE LIMITED
G-127, 12TH FLOOR, HIMALYA HOUSE, 23, KASTOORBA GANDHI MARG, NEW DELHI-110001
01141232222
8800393421 (Number Shared by Promoter in Public)
compliance@mghousing.com
http://www.mghousing.com
XXXX489B
U45400DL2010PTC208619
 
 


 
 


 
 







ANANDAM ESTATE
VILLAGE ALAWALPUR, SECTOR 19 & 24
DHARUHERA ST
REWARI
9650237575
9990227667 (Number Shared by Promoter in Public)
compliance@mghousing.com
PRAVEEN KUMAR
9650237575 (Number Shared by Promoter in Public)
parveen@mghousing.com








As per sub-rule(2) of rule 3 of the Haryana Real Estate (Regulation and Development) Rules,2017, the fee for registration of the project as has been calculated as follows:
-----------------------------------------------------------------------------------------------------------------------
-----------------------------------------------------------------------------------------------------------------------
-----------------------------------------------------------------------------------------------------------------------
-----------------------------------------------------------------------------------------------------------------------
2. The aforesaid fees is hereby deposited vide following Drafts/ Banker’s Cheques:-

Sr No.Draft/Cheque No.Draft DateAmountPayee BankPayable To
150133524-04-2019473000ICICI BANK LIMITED, DELHI OVERSEAS BRANCH.HRERA Panchkula







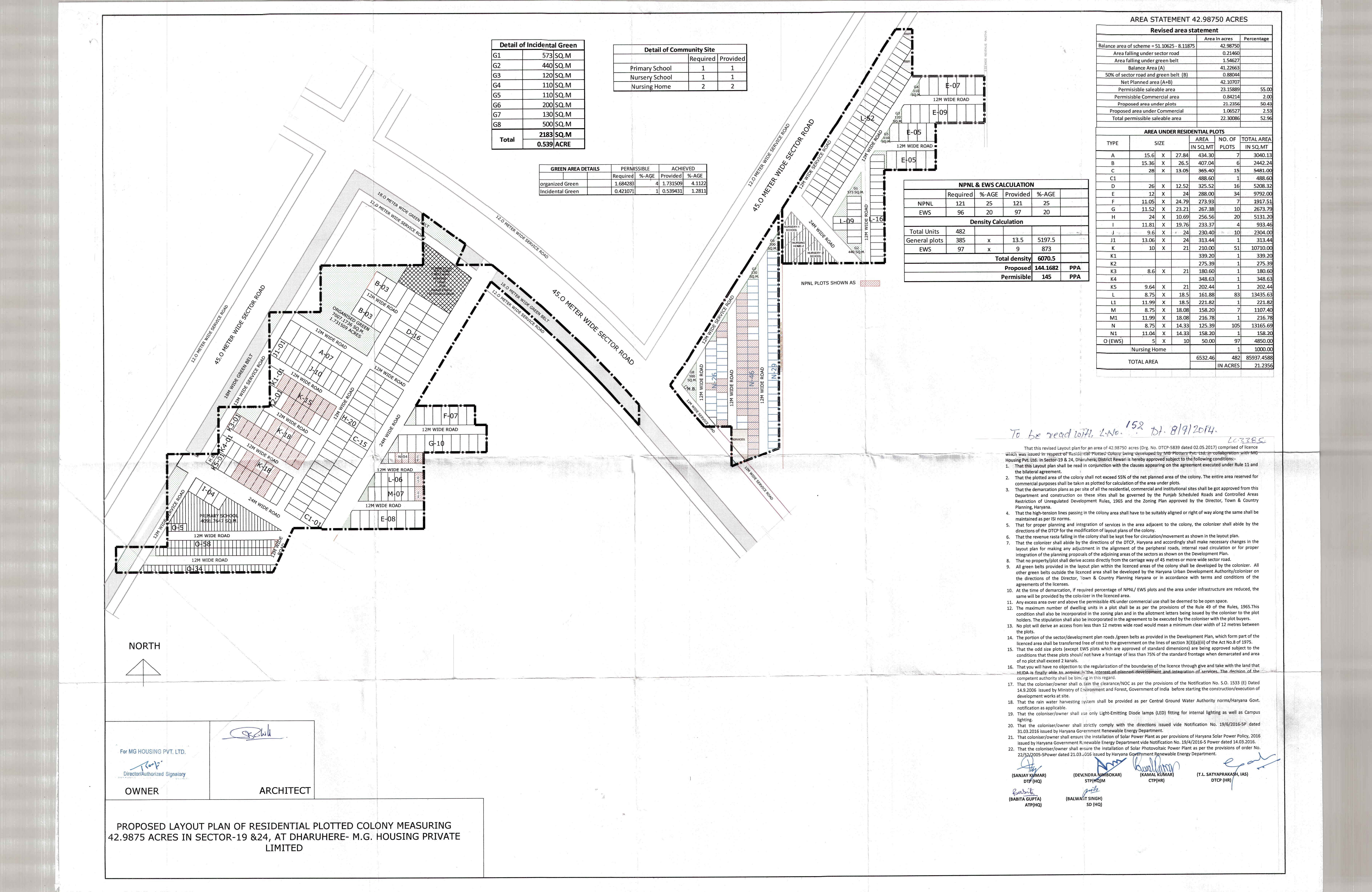
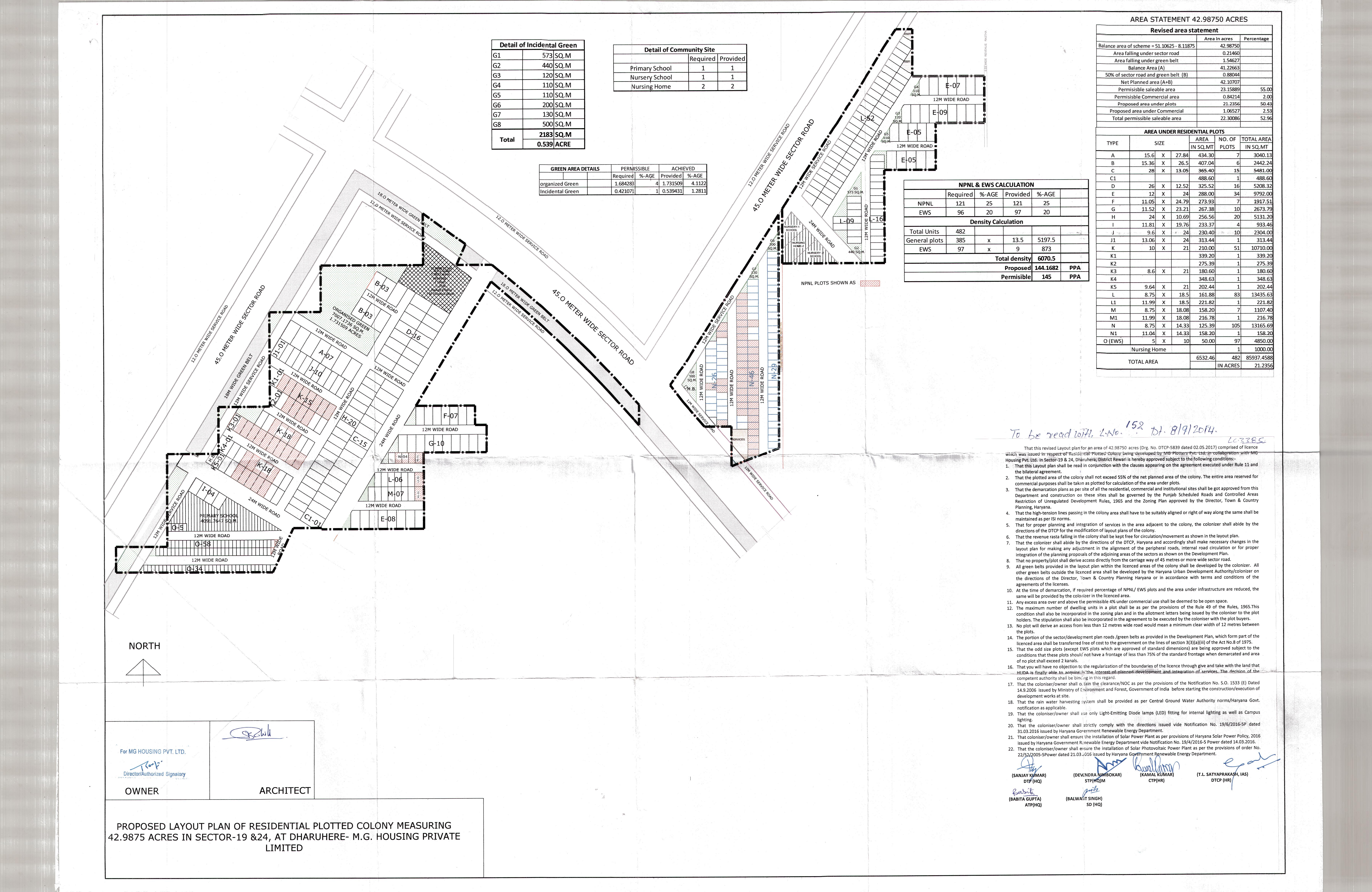
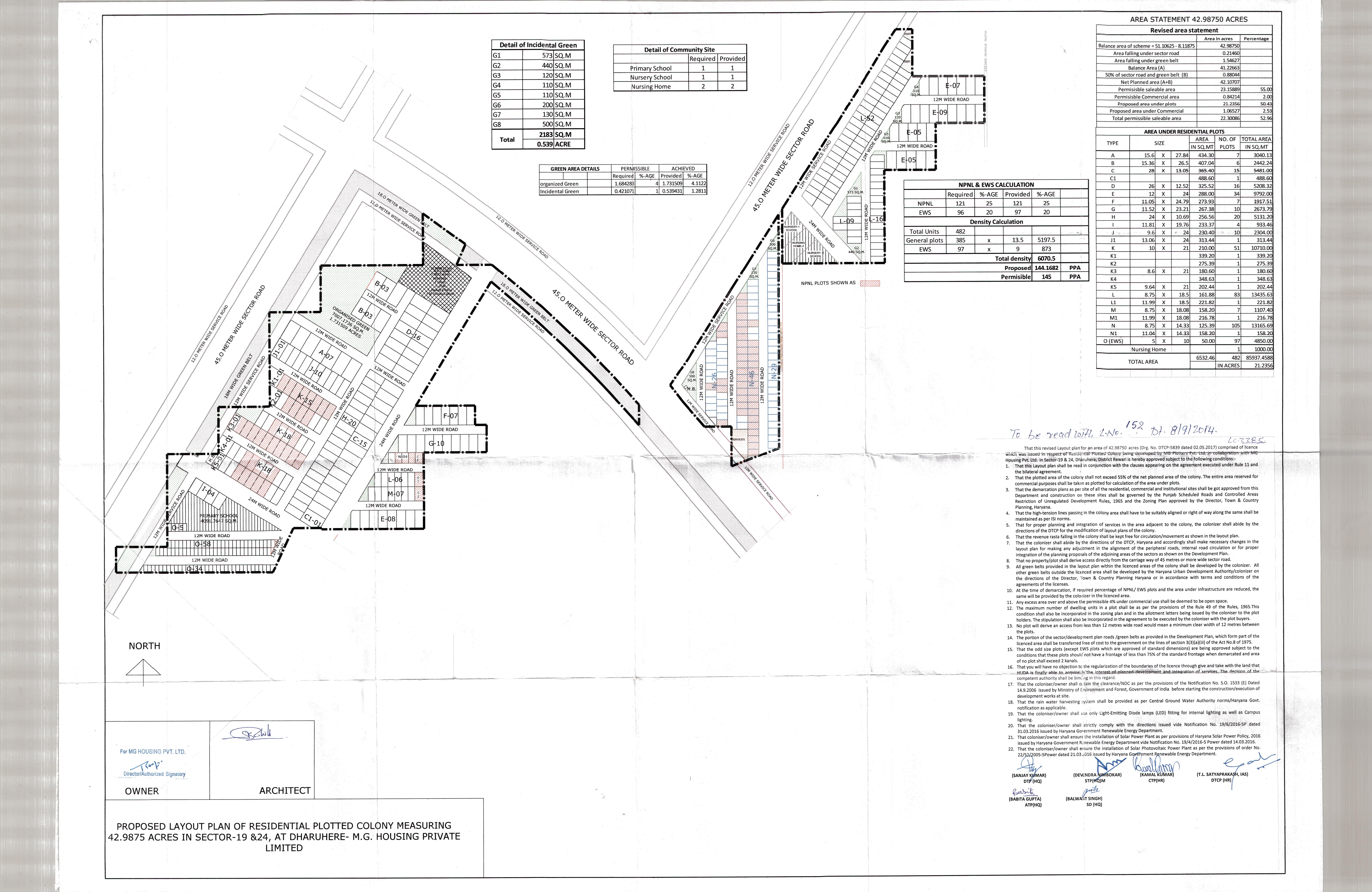
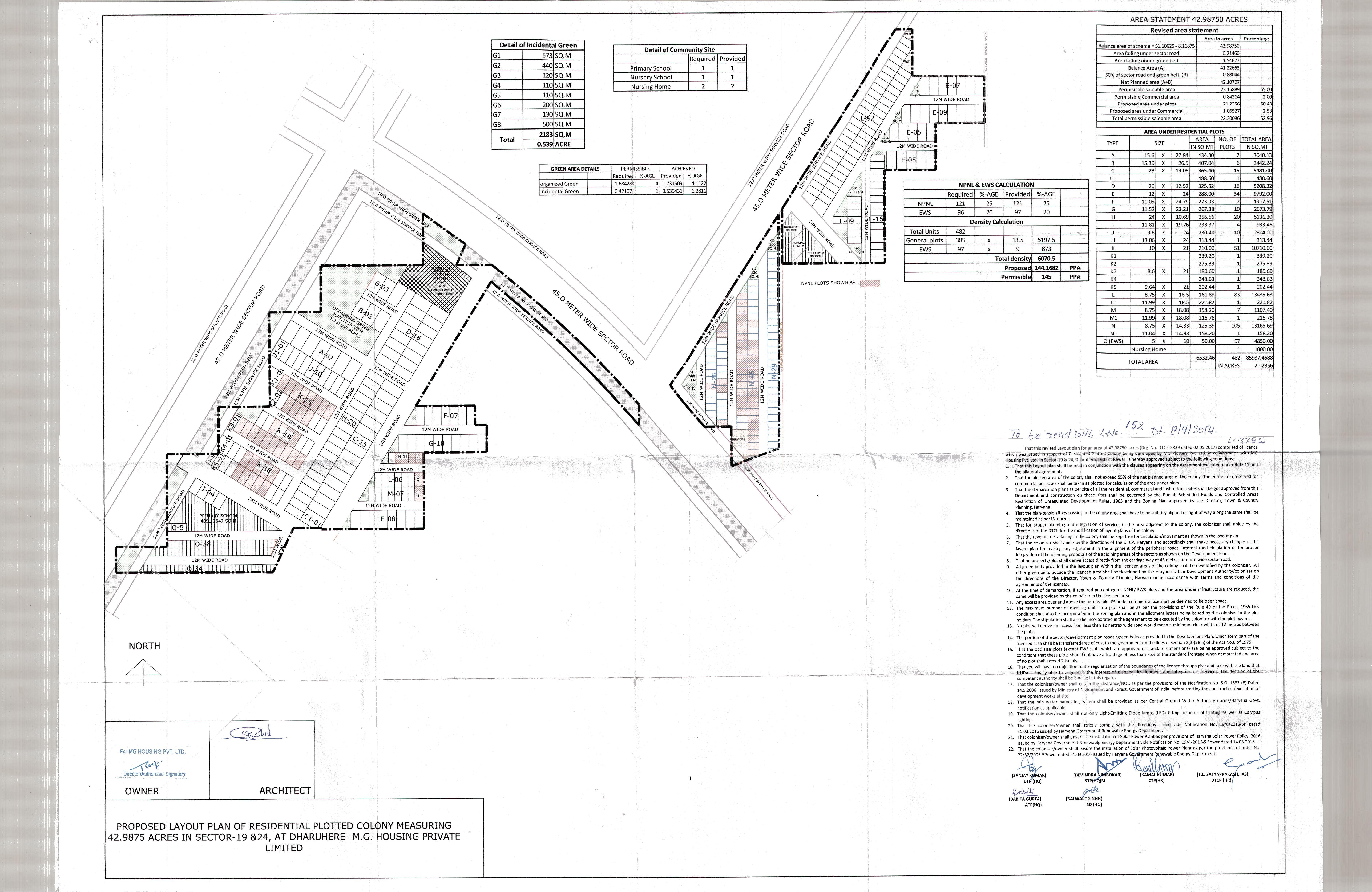
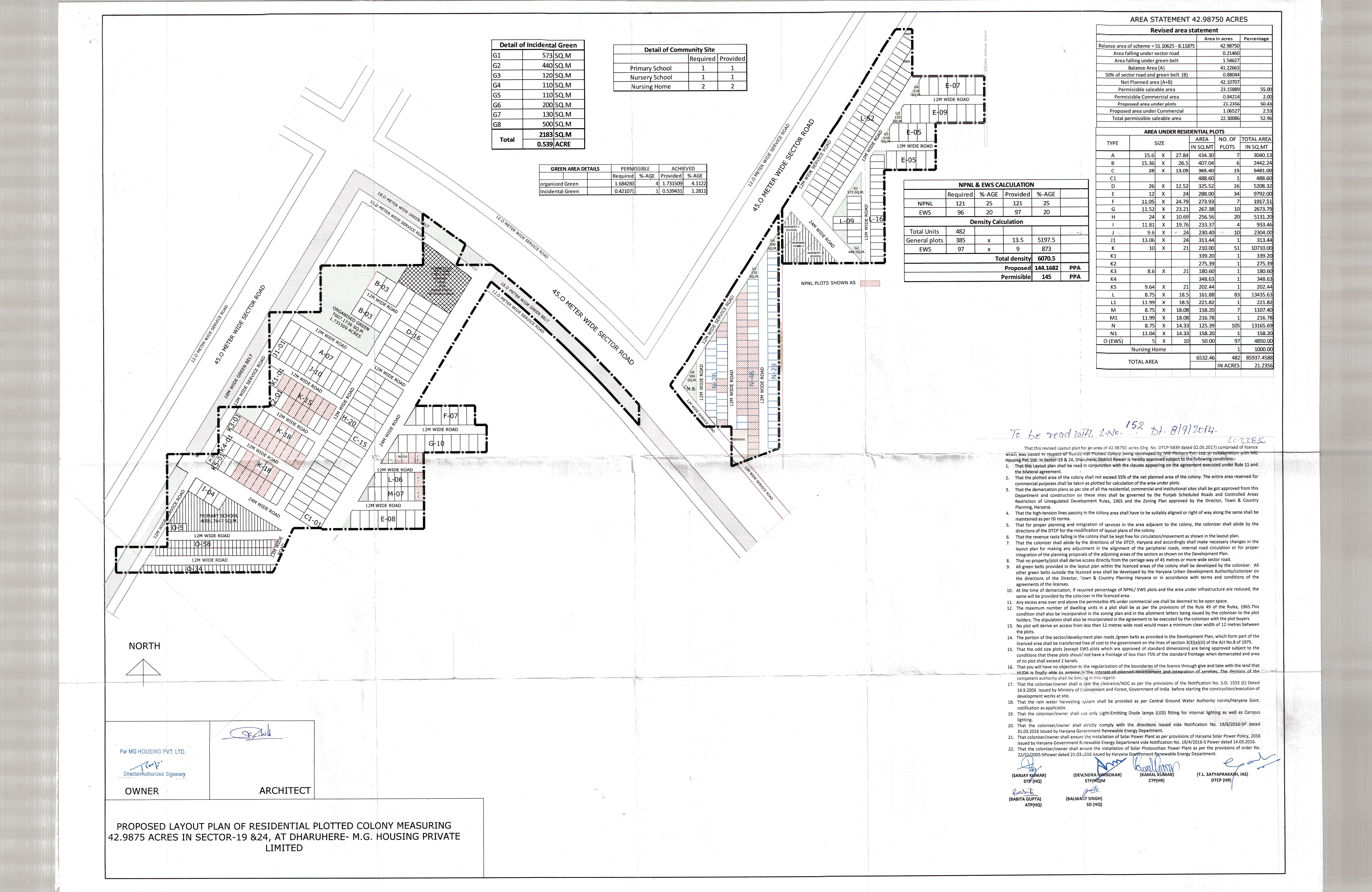
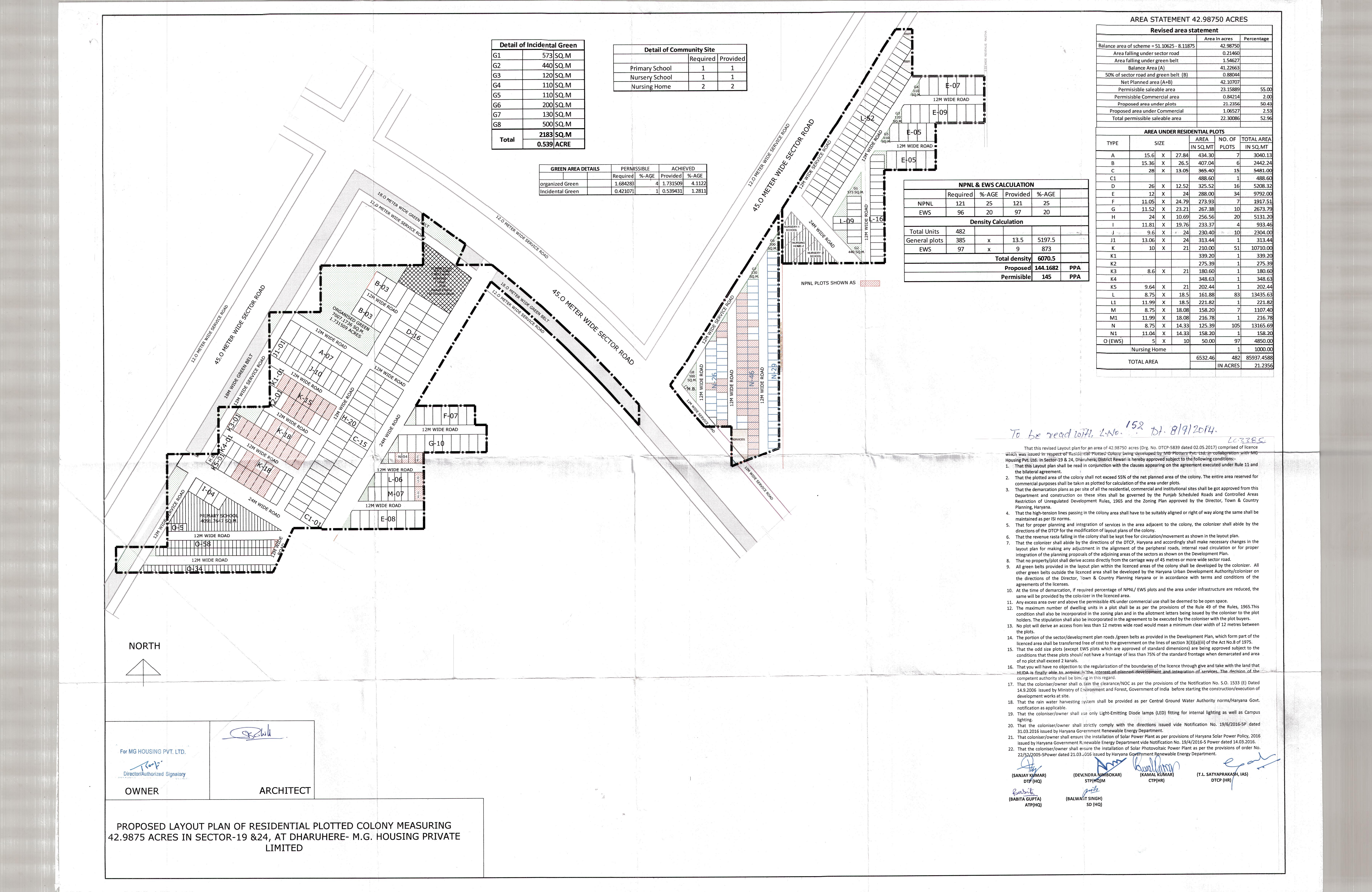
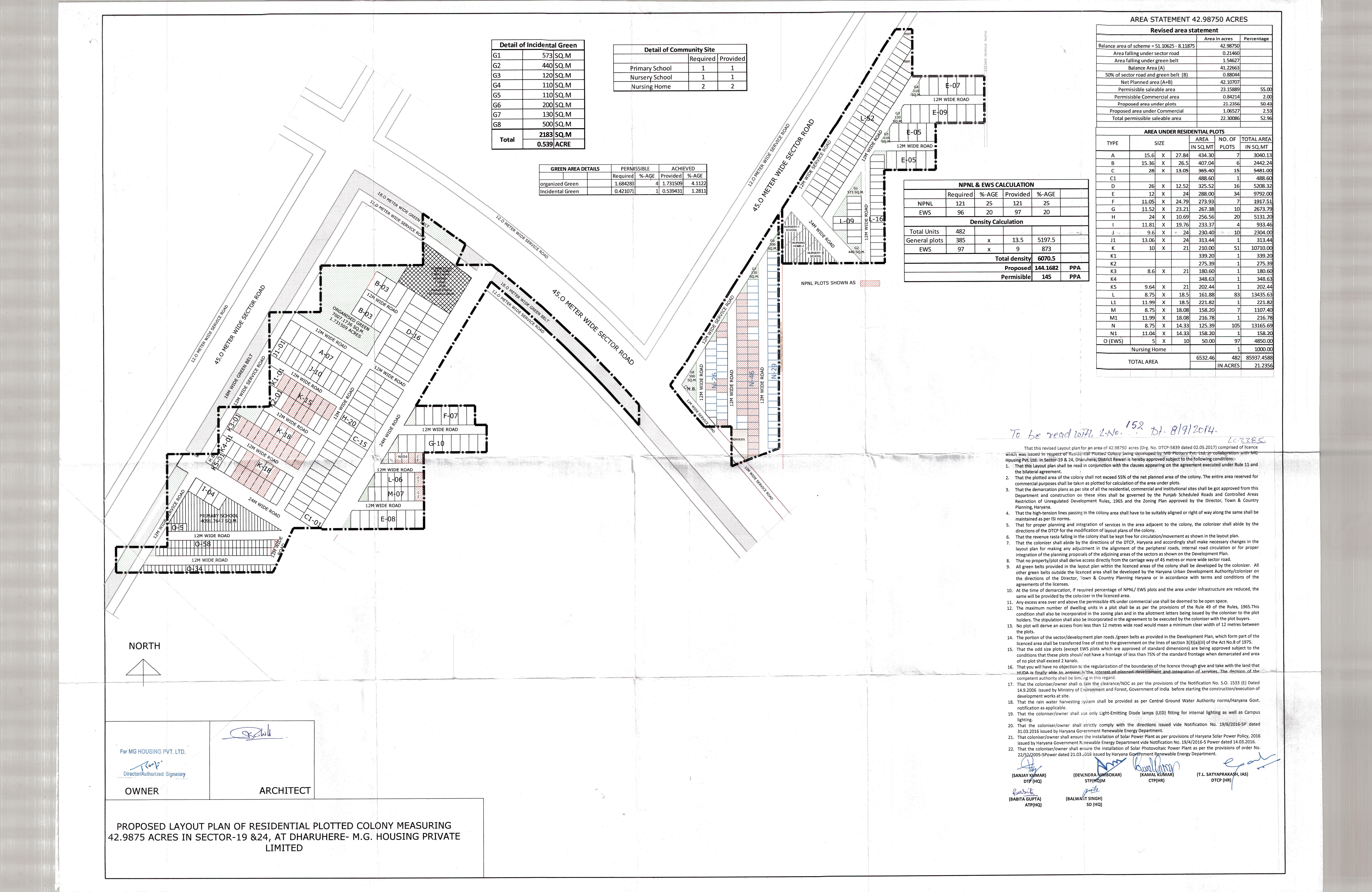
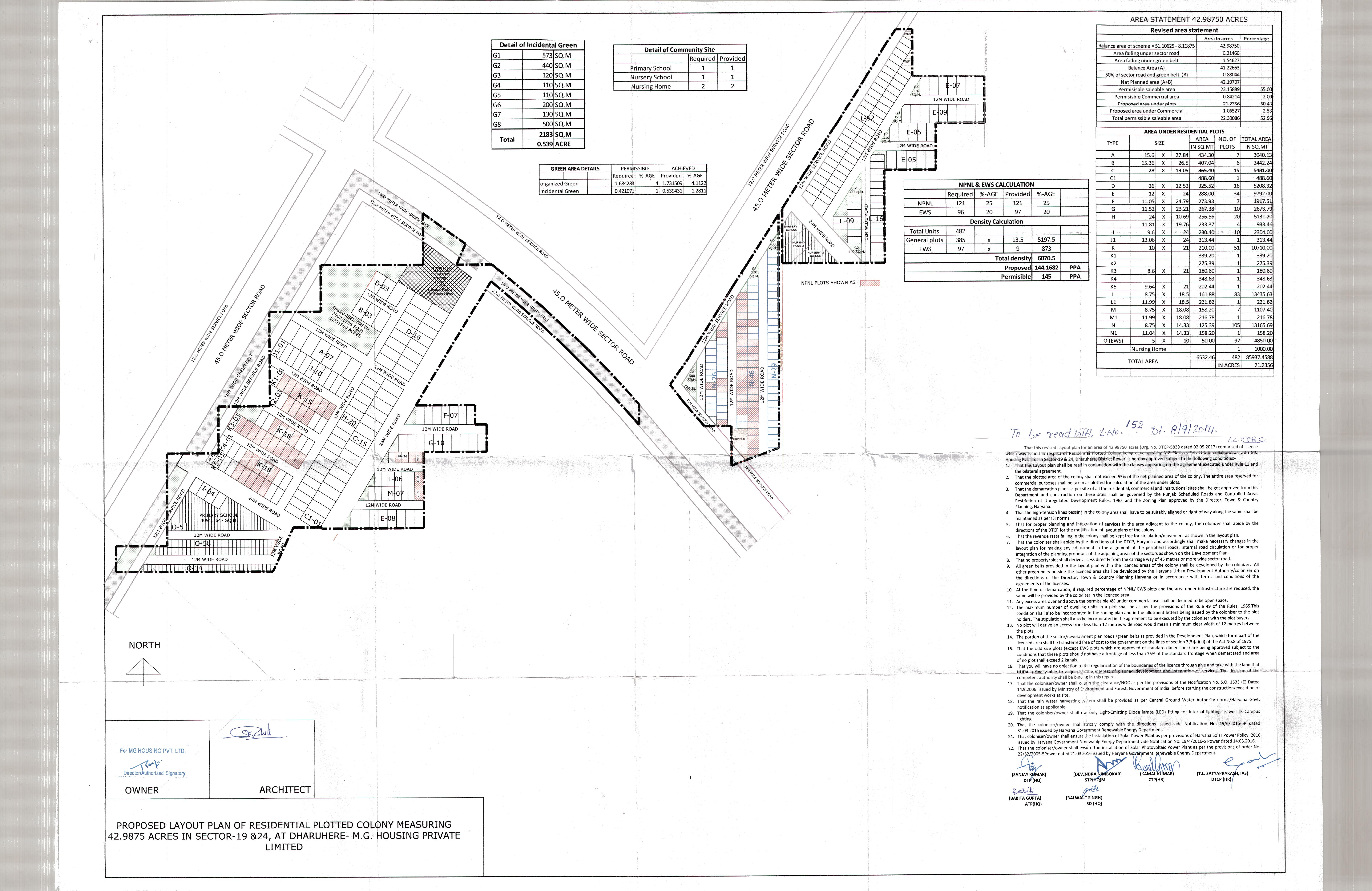
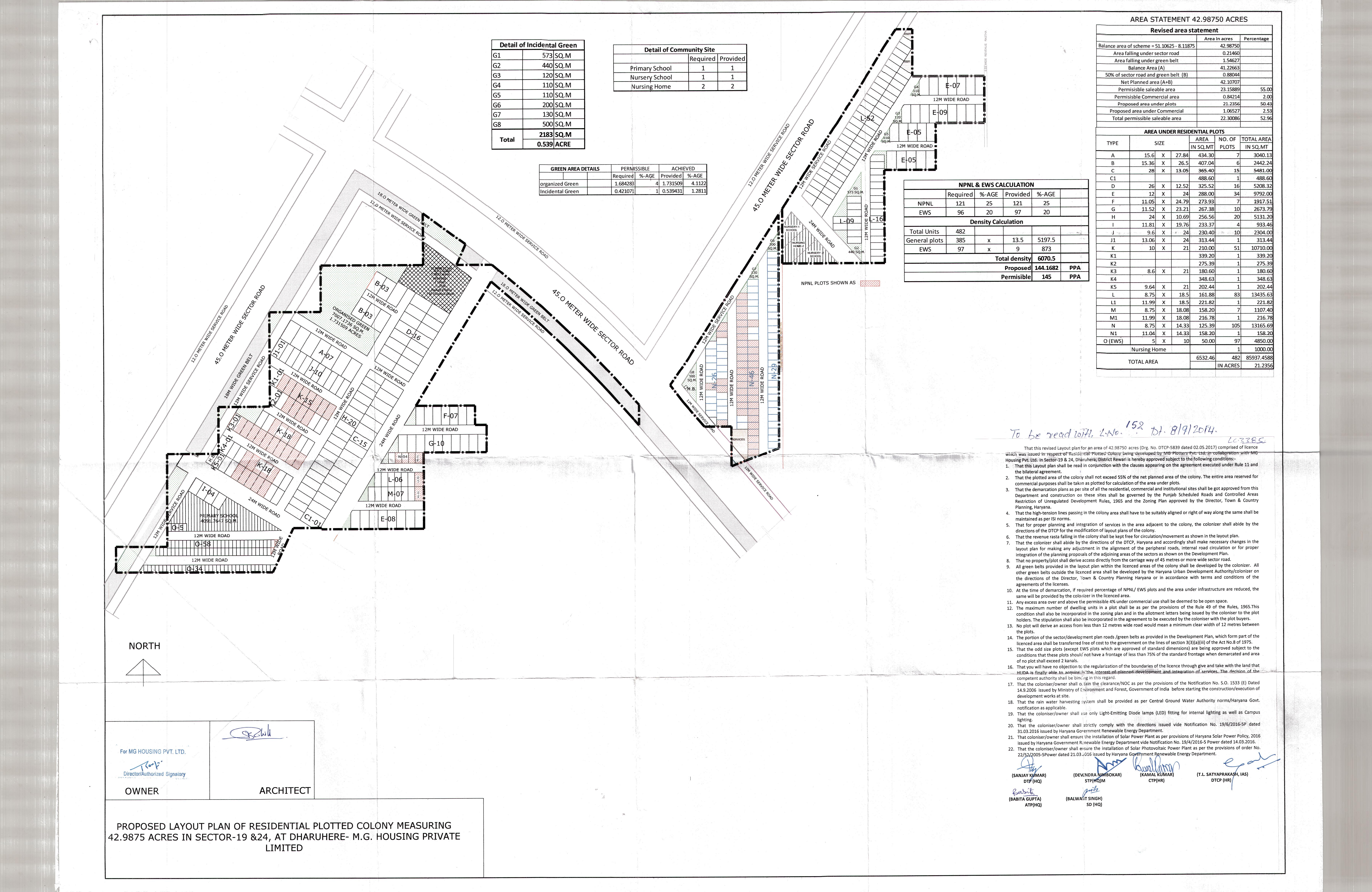
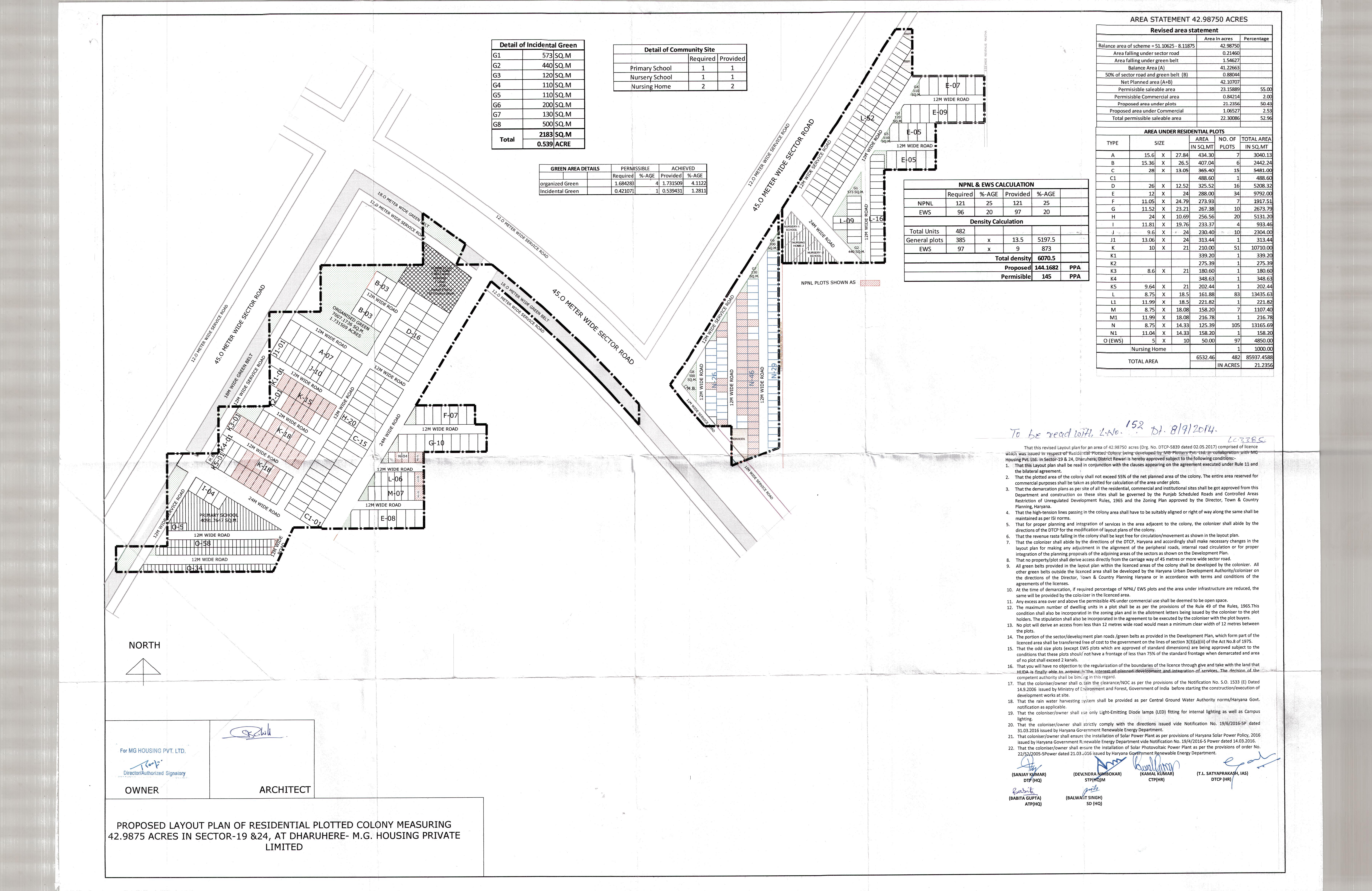
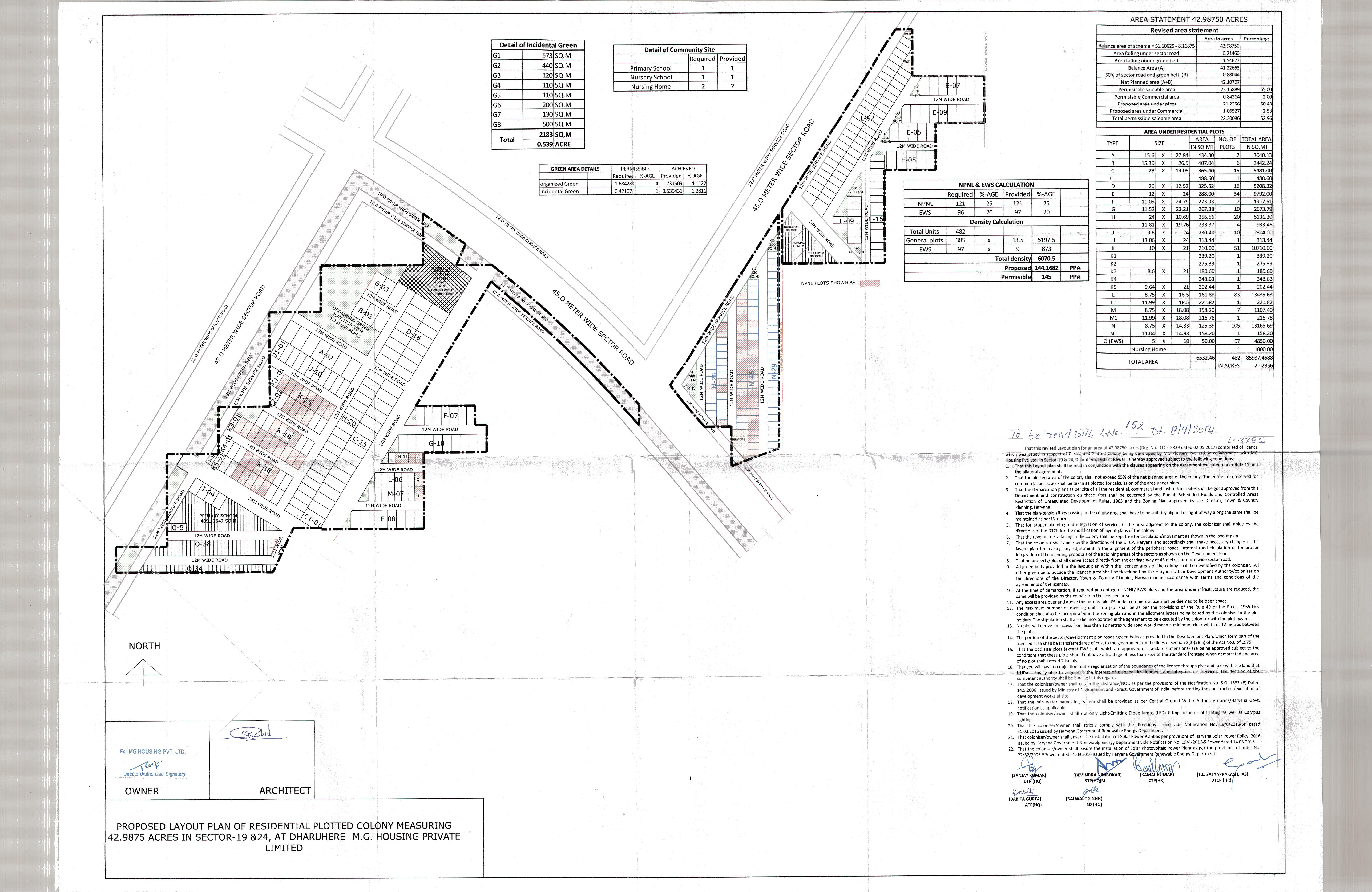
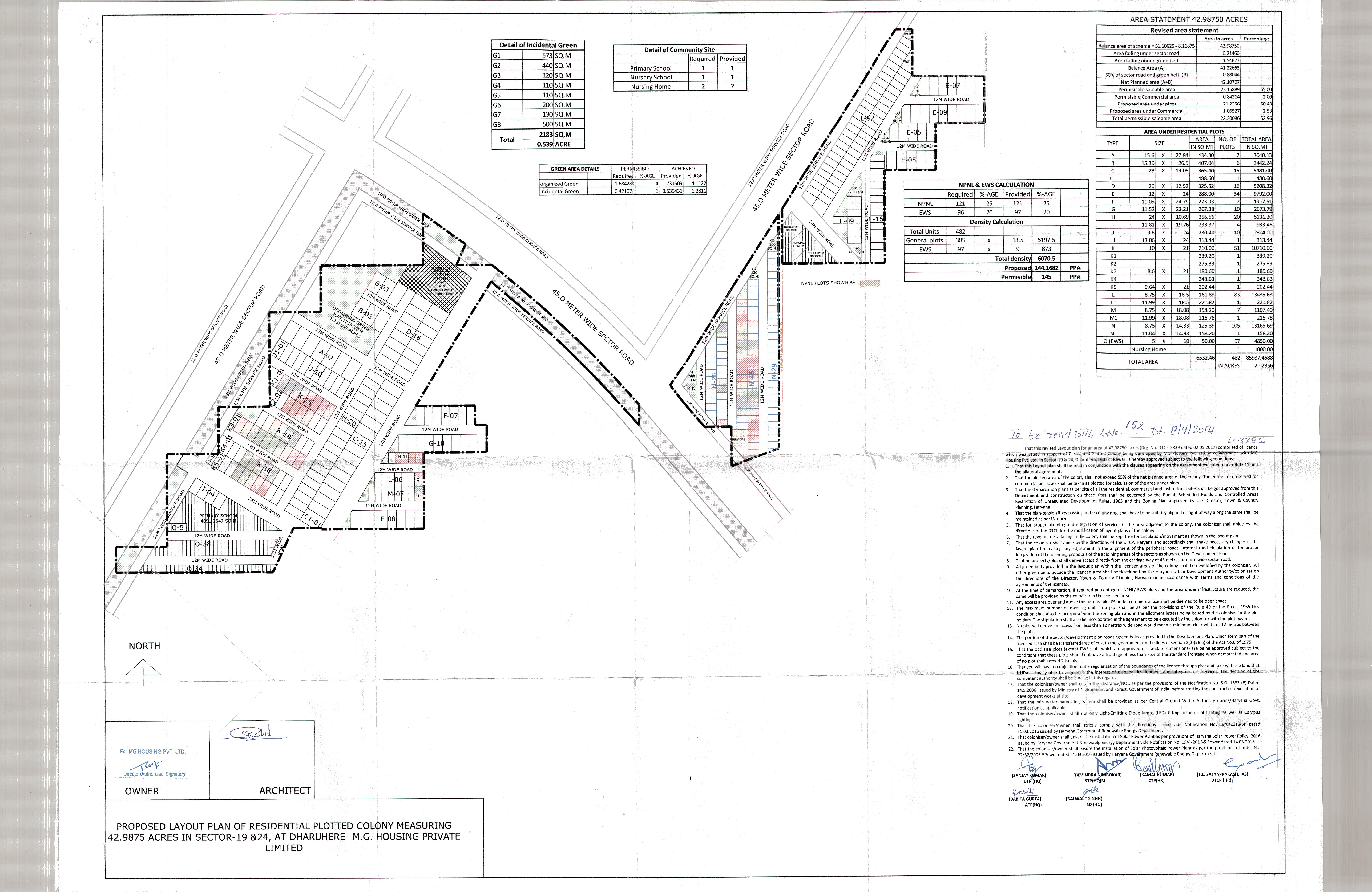
42.9875 (Acre)
0
0
42.9875 (Acre)
License NO. 152 of 2014 dated 08.09.2014 is valid upto 07.09.2019.
No
Address     G-127, 12TH FLOOR, HIMALYA HOUSE, 23, KASTOORBA GANDHI MARG, NEW DELHI-110001
Address     G-127, 12TH FLOOR, HIMALYA HOUSE, 23, KASTOORBA GANDHI MARG, NEW DELHI-110001
Address     G-127, 12TH FLOOR, HIMALYA HOUSE, 23, KASTOORBA GANDHI MARG, NEW DELHI-110001
Address     G-127, 12TH FLOOR, HIMALYA HOUSE, 23, KASTOORBA GANDHI MARG, NEW DELHI-110001
Address     G-127, 12TH FLOOR, HIMALYA HOUSE, 23, KASTOORBA GANDHI MARG, NEW DELHI-110001
Address     G-127, 12TH FLOOR, HIMALYA HOUSE, 23, KASTOORBA GANDHI MARG, NEW DELHI-110001
Annexure-B- REGISTERED COLLABORATION AGREEMENT.
AGREEMENTS HAVE REGISTERED PRIOR TO GRANT OF LICENSE.
Yes
COPY OF COLLABORATION AGREEMENTS ANNEXED IN THE FILE.
No
No
Yes







12273.00 Lakhs
7721.00 Lakhs
0 Lakhs
2150.00 Lakhs
2402.00 Lakhs




Sr. No.Land area under usageArea of land (Acres)
1PLOTS TO BE SOLD 20.988
2LAND AREA TO BE USED FOR CONSTRUCTION OF APARTMENTS 0
3CONSTRUCTION OF ROADS 16.1066
4PAVEMENTS 0
5PARKS AND PLAYGROUNDS 2.2705
6GREEN BELTS 1.546
7VEHICLE PARKINGS 0
8ELECTRICITY SUB-STATION 0
9CLUB HOUSE 0
10SEWAGE AND SOLID WASTE TREATMENT FACILITY 0
11AREA TO BE LEFT FOR TRANSFERRING TO THE GOVERNMENT FOR COMMUNITY SERVICES 1.0111
12ANY OTHER 0
13COMMERCIAL 1.0653
Total42.9875




FacilityExternal/ connecting service to be provided by (Name the agency)Whether Approval taken from the agency concerned. Yes/No (Annex details in folder C)
ROADSHSVPNo
WATER SUPPLYHSVPNo
ELECTRICITYUHBVNLNo
SEWAGE DISPOSALHSVPNo
STORM WATER DRAINAGEHSVPNo




Sr. No.Name of the facilityEstimated cost (In Lakhs)(Within the project area only)Remarks: Yet to be prepared / Submitted to HUDA, Town & Country Planning Department/ as per project report etc. (Annex relevant documents showing costing details etc. in folder C)
1INTERNAL ROADS AND PAVEMENTS516.00AS PER PROJECT REPORT
2WATER SUPPLY SYSTEM258.00AS PER PROJECT REPORT
3STORM WATER DRAINAGE258.00AS PER PROJECT REPORT
4ELECTRICITY SUPPLY SYSTEM430.00AS PER PROJECT REPORT
5SEWAGE TREATMENT & GARBAGE DISPOSAL258.00AS PER PROJECT REPORT
6STREET LIGHTING215.00AS PER PROJECT REPORT
7SECURITY AND FIRE FIGHTING0YET TO BE PREPARED
8PLAYGROUNDS AND PARKS215.00AS PER PROJECT REPORT
9CLUB HOUSE/COMMUNITY CENTRE0YET TO BE PREPARED
10SHOPPING AREA0YET TO BE PREPARED
11RENEWABLE ENERGY SYSTEM0YET TO BE PREPARED
12SCHOOL0YET TO BE PREPARED
13HOSPITAL/DISPENSARY0YET TO BE PREPARED
14ANY OTHER0YET TO BE PREPARED


02-05-2017 (date)
NA (date)


Sr. No.Plot/ apartment type Size of the plot/carpet area of the apartments Total number of plots/apartments in the project Total size of the plots/carpet area of the apartments Plots/apartments booked/ sold upto the date of application Yet to be sold/ booked No. of towers to be/ being constructed for booked apartments
1 PLOT Type J 230.40 10 2304 0 10 0
2 PLOT Type J1 313.44 1 313.44 0 1 0
3 PLOT Type K 210.00 51 10710 0 51 0
4 PLOT Type K1 339.20 1 339.2 0 1 0
5 PLOT Type K2 275.39 1 275.39 0 1 0
6 PLOT Type K3 180.60 1 180.6 0 1 0
7 PLOT Type K4 348.63 1 348.63 0 1 0
8 PLOT Type K5 202.44 1 202.44 0 1 0
9 PLOT Type L 161.88 83 13436.04 40 43 0
10 PLOT Type L1 221.82 1 221.82 0 1 0
11 PLOT Type M 158.20 7 1107.4 0 7 0
12 PLOT Type M1 216.78 1 216.78 0 1 0
13 PLOT Type N 125.39 105 13165.95 37 68 0
14 PLOT Type N1 158.20 1 158.2 0 1 0
15 PLOT Type O- EWS 50.00 97 4850 0 97 0
16 PLOT Type A 434.30 7 3040.1 0 7 0
17 PLOT Type B 407.04 6 2442.24 0 6 0
18 PLOT Type C 365.40 15 5481 10 5 0
19 PLOT Type C1 488.60 1 488.6 0 1 0
20 PLOT Type D 325.52 16 5208.32 0 16 0
21 PLOT Type E 288.00 34 9792 10 24 0
22 PLOT Type F 273.93 7 1917.51 0 7 0
23 PLOT Type G 267.38 10 2673.8 0 10 0
24 PLOT Type H 256.56 20 5131.2 5 15 0
25 PLOT Type I 233.37 4 933.48 0 4 0
Total48284938.141023800






TypeNumber of apartments booked/ sold Write or Annex the stage of construction of the booked/ sold apartments in folder C
00


N/A
N/A
N/A
01-07-2018
59.81
31-12-2019
PROVIDED.
ANNEXURE ATTACHED.


PlotsBooked/soldStage of handing over the possession (Write or Annex details)
PLOT102THE SERVICES WORKS IS HAS COMPLETED ABOUT 60% AND SHALL BE COMPLETED WITHIN THE TIMELINES PROVIDED IN THE APPLICATION.
01-07-2017
59.81
31-12-2019
PROVIDED.
ANNEXURE ATTACHED.


0
0
0
0
0





Expenditure incurred till the date of application (In Lakhs)

ParticularsExpenditure
Apartments0
Shops0
Plots0

Expenditure to be made in each quarter (In Lakhs)

ParticularsExpenditure to be made in each quarter ()
Apr-JuneJuly-SepOct-DecJan-Mar




Expenditure incurred till the date of application (In Lakhs)

ParticularsExpenditure
Roads & Pavements308.73
Water Supply System153.90
Sewerage treatment & garbage disposal153.90
Electricity Supply System256.50
Storm Water Drainage153.90
Parks and Playgrounds128.24
Clubhouse/community centres0
Shopping area0
Other128.24

Expenditure to be made in each quarter (In Lakhs)

ParticularsYear-2018
Jan-MarApr-JuneJuly-SepOct-Dec
Roads & Pavements0
Water Supply System0
Sewerage treatment & garbage disposal0
Electricity Supply System0
Storm Water Drainage0
Parks and Playgrounds0
Clubhouse/community centres0
Shopping area0
Other0

ParticularsYear-2019
Jan-MarApr-JuneJuly-SepOct-Dec
Roads & Pavements069.1369.1369.13
Water Supply System034.7234.7234.72
Sewerage treatment & garbage disposal034.7234.7234.72
Electricity Supply System057.8657.8657.86
Storm Water Drainage034.7234.7234.72
Parks and Playgrounds028.9328.9328.93
Clubhouse/community centres0000
Shopping area0000
Other028.9328.9328.93

ParticularsYear-2020
Jan-MarApr-JuneJuly-SepOct-Dec
Roads & Pavements0000
Water Supply System0000
Sewerage treatment & garbage disposal0000
Electricity Supply System0000
Storm Water Drainage0000
Parks and Playgrounds0000
Clubhouse/community centres0000
Shopping area0000
Other0000

ParticularsYear-2021
Jan-MarApr-JuneJuly-SepOct-Dec
Roads & Pavements000
Water Supply System000
Sewerage treatment & garbage disposal000
Electricity Supply System000
Storm Water Drainage000
Parks and Playgrounds000
Clubhouse/community centres000
Shopping area000
Other000

ParticularsYear-2022
Jan-MarApr-JuneJuly-SepOct-Dec
Roads & Pavements0
Water Supply System0
Sewerage treatment & garbage disposal0
Electricity Supply System0
Storm Water Drainage0
Parks and Playgrounds0
Clubhouse/community centres0
Shopping area0
Other0












Particulars Remarks, if any
i. No. of Flats/Apartments constructed385
ii. No. of Flats/ Apartments booked102
iii. Total amount sale value of booked Flats, on the date of application/end of last quarter4801.16 Lakhs
iv. Total amount received from the allottees (booked Flats), on the date of application/end of last quarter2394.66 Lakhs
v. Balance amount to be received from the allottees (booked Flats, after completion), on the date of application/end of last quarter400.97 Lakhs
vi. Balance amount due and recoverable from the allottees (booked Flats) as on the date of application /end of last quarter400.97 Lakhs
vii. Amount invested in the project upto the date of application19861.00 Lakhs
Land cost (If any)7721.00 Lakhs
Apartments0 Lakhs
Infrastructure1290.00 Lakhs
EDC/ Taxes Etc.10850.00 Lakhs
viii. Balance cost to be incurred for completion of the project and delivery of possession862.00 Lakhs
(a) In respect of existing allottees0 LakhsAs per above
(b) In respect of rest of the project0 LakhsAs per above.
ix. The amount of loan raised from the banks/ financial institutions/ private persons against the project
Annex detail of the securities furnished to the banks/ financial institutions against the aforesaid loans in folder C
7700.00 Lakhs77 Crs.
x. Total liabilities against the project up-to-date. (Annex details in folder C) 0 LakhsNIL



Particulars Estimated expenditure planned to be incurred as per service plan estimates or the project report. (In Lakhs)Actual expenditure incurred upto the date of application. (In Lakhs)
I. INTERNAL ROADS AND PAVEMENTS516.00308.62
II. WATER SUPPLY SYSTEM258.00153.85
III. STORM WATER DRAINAGE258.00153.85
IV. ELECTRICITY SUPPLY SYSTEM430.00256.41
V. SEWAGE TREATMENT & GARBAGE DISPOSAL158.00153.85
VI. CLUB HOUSE/COMMUNITY CENTRE00
VII. SCHOOL00
VIII. ANY OTHER215.00128.00
IX. SOLID WASTE COLLECTION & MGMT SYSTEM00
X. CLUBHOUSE00
XI. NEIGHBOURHOOD SHOPPING00
XII. GREEN AREAS,PARKS,PLAYGROUNDS ETC.215.00128.00
XIII. COVERED PARKING00
XIV. OPEN PARKING00
XV. GARAGES00
XVI. SECURITY SYSTEM00
XVII. OTHER FACILITIES AS PER PROJECT REPORT00









Yes
Yes
ICICI BANK LIMITED, 9A, PHELPS BUILDING, INNER CIRCLE, CONNAUGHT PLACE, NEW DELHI 110001
777705225080
ICIC0000007
110229002
007
Vinay Sharma 421,Turab Nagar , Ghaziabad -201001
Uploaded in Upload Section.











Yes
No
No
No
No
No
No
No
No
No


No
No
No
No
No
No
No
No
Statutory Approvals Statutory Approvals StatusDate
I. LICENSE NO. 152 OF 2014ALREADY BEEN OBTAINED08-09-2014
II. CLARIFICATION REGARDING APPLICABILITY OF FOREST LAWS ON THE LAND. ALREADY BEEN OBTAINED21-10-2014
III. ENVIRONMENTAL CLEARANCE ALREADY BEEN OBTAINED05-10-2015
IV. DTCP ORDER REGARDING REDUCING BY OPTING MIGRATION OF LICENSE POLICY. ALREADY BEEN OBTAINED19-05-2017








Yes


Yes


GIST OF PROVISIONS OF DRAFT AGREEMENT AS PER RERA IS ANNEXED.







MULBERRY COUNTY SECTOR 70 FARIDABAD
10.10
662
0
0
0
Initially estimated cost (In Lakhs)Revised cost (In Lakhs)Expenditure incurred upto the date of application (In Lakhs)
Total cost of the project
(Other than cost of land)
249372493721331
Cost of the apartments000
Cost of the infrastructure000
Others costs000


12500.00 Lakhs
19664.00 Lakhs
5000.00 Lakhs
5000.00 Lakhs
No
31-12-2018
30-08-2020




ANANDAM AWAAS, SECTOR 19 DHARUHERA.
15.00
0
324
0
86
Initially estimated cost (In Lakhs)Revised cost (In Lakhs)Expenditure incurred upto the date of application (In Lakhs)
Total cost of the project
(Other than cost of land)
2494.422494.422070.97
Cost of the apartments000
Cost of the infrastructure000
Others costs000


2373.59 Lakhs
3511.29 Lakhs
3400.00 Lakhs
1900.00 Lakhs
No
31-12-2018
31-12-2019




ANANDAM AWAS SECTOR - 19 & 24 DHARUHERA
13.40
0
280
0
102
Initially estimated cost (In Lakhs)Revised cost (In Lakhs)Expenditure incurred upto the date of application (In Lakhs)
Total cost of the project
(Other than cost of land)
3053.153053.152782.73
Cost of the apartments000
Cost of the infrastructure000
Others costs000


2811.66 Lakhs
3622.35 Lakhs
2600.00 Lakhs
2000.00 Lakhs
No
31-12-2018
31-12-2019










SPECIFICATION OF CONSTRUCTION
Specification of apartments and other buildings including the following:
1FLOORING DETAILS OF VARIOUS PARTS OF HOUSENOT APPLICABLE BEING PLOTTED COLONY.
2WALL FINISHING DETAILSNOT APPLICABLE BEING PLOTTED COLONY.
3KITCHEN DETAILSNOT APPLICABLE BEING PLOTTED COLONY.
4BATHROOM FITTINGSNOT APPLICABLE BEING PLOTTED COLONY.
5WOOD WORK ETCNOT APPLICABLE BEING PLOTTED COLONY.
6DOORS AND WINDOS FRAMESNOT APPLICABLE BEING PLOTTED COLONY.
7GLASS WORKNOT APPLICABLE BEING PLOTTED COLONY.
8ELECTRIC FITTINGSNOT APPLICABLE BEING PLOTTED COLONY.
9CONDUCTING AND WIRING DETAILSNOT APPLICABLE BEING PLOTTED COLONY.
10CUPBOARD DETAILSNOT APPLICABLE BEING PLOTTED COLONY.
11WATER STORAGENOT APPLICABLE BEING PLOTTED COLONY.
12LIFT DETAILSNOT APPLICABLE BEING PLOTTED COLONY.
13EXTERNAL GLAZINGSNOT APPLICABLE BEING PLOTTED COLONY.
13.1WINDOWS/GLAZINGSNOT APPLICABLE BEING PLOTTED COLONY.
14DOORSNOT APPLICABLE BEING PLOTTED COLONY.
14.1MAIN DOORSNOT APPLICABLE BEING PLOTTED COLONY.
14.2INTERNAL DOORSNOT APPLICABLE BEING PLOTTED COLONY.
15AIR CONDITIONINGNOT APPLICABLE BEING PLOTTED COLONY.
16ELECTRICAL FITTINGSNOT APPLICABLE BEING PLOTTED COLONY.
17CNG PIPE LINENOT APPLICABLE BEING PLOTTED COLONY.
18PROVISION OF WIFI AND BROADBAND FACILITYNOT APPLICABLE BEING PLOTTED COLONY.
19EXTERNAL FINISHING/COLOUR SCHEMENOT APPLICABLE BEING PLOTTED COLONY.
20INTERNAL FINISHINGNOT APPLICABLE BEING PLOTTED COLONY.
SPECIFICATION UNIT WISE
1 . LIVING/DINING/FOYER/FAMILY LOUNGE
1 . 1 FLOORNOT APPLICABLE BEING PLOTTED COLONY.
1 . 2 WALLSNOT APPLICABLE BEING PLOTTED COLONY.
1 . 3 CEILINGNOT APPLICABLE BEING PLOTTED COLONY.
2 . MASTER BEDROOM/DRESSROOM
2 . 1 FLOORNOT APPLICABLE BEING PLOTTED COLONY.
2 . 2 WALLSNOT APPLICABLE BEING PLOTTED COLONY.
2 . 3 CEILINGNOT APPLICABLE BEING PLOTTED COLONY.
2 . 4 MODULAR WARDROBESNOT APPLICABLE BEING PLOTTED COLONY.
3 . MASTER TOILET
3 . 1 FLOORNOT APPLICABLE BEING PLOTTED COLONY.
3 . 2 WALLSNOT APPLICABLE BEING PLOTTED COLONY.
3 . 3 CEILINGNOT APPLICABLE BEING PLOTTED COLONY.
3 . 4 COUNTERSNOT APPLICABLE BEING PLOTTED COLONY.
3 . 5 SANITARY WARE/CP FITTINGSNOT APPLICABLE BEING PLOTTED COLONY.
3 . 6 FITTING/FIXTURESNOT APPLICABLE BEING PLOTTED COLONY.
4 . BED ROOMS
4 . 1 FLOORNOT APPLICABLE BEING PLOTTED COLONY.
4 . 2 WALLSNOT APPLICABLE BEING PLOTTED COLONY.
4 . 3 CEILINGNOT APPLICABLE BEING PLOTTED COLONY.
4 . 4 WARDROBESNOT APPLICABLE BEING PLOTTED COLONY.
5 . TOILET
5 . 1 FLOORNOT APPLICABLE BEING PLOTTED COLONY.
5 . 2 WALLSNOT APPLICABLE BEING PLOTTED COLONY.
5 . 3 CEILINGNOT APPLICABLE BEING PLOTTED COLONY.
5 . 4 COUNTERSNOT APPLICABLE BEING PLOTTED COLONY.
5 . 5 SANITARY WARE/CP FITTINGSNOT APPLICABLE BEING PLOTTED COLONY.
5 . 6 FIXTURESNOT APPLICABLE BEING PLOTTED COLONY.
6 . KITCHEN
6 . 1 FLOORNOT APPLICABLE BEING PLOTTED COLONY.
6 . 2 WALLSNOT APPLICABLE BEING PLOTTED COLONY.
6 . 3 CEILINGNOT APPLICABLE BEING PLOTTED COLONY.
6 . 4 COUNTERSNOT APPLICABLE BEING PLOTTED COLONY.
6 . 5 FIXTURESNOT APPLICABLE BEING PLOTTED COLONY.
6 . 6 KITCHEN APPLIANCESNOT APPLICABLE BEING PLOTTED COLONY.
7 . UTILITY ROOMS/UTILITY BALCONY/TOILET
7 . 1 FLOORNOT APPLICABLE BEING PLOTTED COLONY.
7 . 2 WALLS & CEILINGNOT APPLICABLE BEING PLOTTED COLONY.
7 . 3 TOILETNOT APPLICABLE BEING PLOTTED COLONY.
7 . 4 BALCONYNOT APPLICABLE BEING PLOTTED COLONY.
8 . SIT-OUTS
8 . 1 FLOORNOT APPLICABLE BEING PLOTTED COLONY.
8 . 2 WALLS & CEILINGNOT APPLICABLE BEING PLOTTED COLONY.
8 . 3 RAILINGSNOT APPLICABLE BEING PLOTTED COLONY.
8 . 4 FIXTURESNOT APPLICABLE BEING PLOTTED COLONY.












Sr. No.Document DescriptionDate of Document UploadView Document
1 CERTIFICATE FROM A CHARTERED ACCOUNTANT CERTIFYING THAT THE INFORMSTION PROVIDED BY THE APPLICANT IN FORM REP-1-C-X IS CORRECT AS PER THE BOOKS OF ACCOUNTS/ BALANCE SHEET OF THE APPLICANT 05-04-2019 View Document
2 CASH FLOW STATEMENT OF THE PROPOSED PROJECT 05-04-2019 View Document
3 COPY OF LICENSE ALONG WITH SCHEDULE OF LAND 05-04-2019 View Document
4 NON DEFAULT CERTIFICATE FROM A CHARTERED ACCOUNTANT 05-04-2019 View Document
5 IN CASE OF PLOTTED COLONY, THE LATEST LAYOUT PLAN 17-04-2019 View Document
6 IN CASE OF GROUP HOUSING/ COMMERCIAL SITES, A COPY OF THE APPROVED SITE PLAN 17-04-2019 View Document
7 DECLARATION SUPPORTED BY AFFIDAVIT DULY SIGNED BY THE PROMOTER TO BE ENCLOSED. 17-04-2019 View Document












Sr. No.Document DescriptionDate of Document UploadView Document
1 Second Extension of Registration. 20-07-2020 View Document
2 Extension of Registration. 17-01-2020 View Document
3 Third extension. 29-04-2022 View Document
4 License No 152 of 2014 dated 08.09.2014 and order dated 19.05.2017 02-08-2022 View Document