HRERA GurugramTemp Project Id : RERA-GRG-PROJ-202-2019
Submission Date : 15-03-2019 12:51:47 PM
Applicant Type : Company
Project Type: NEW




REGIONAL CONSTRUCTION PVT. LTD.
ROOM NO 205, WELCOME PLAZA,S-551, SCHOOL BLOCK-II, SHAKARPUR, DELHI-110092
01244561500
7905628631 (Number Shared by Promoter in Public)
legal@parasbuildtech.com
https://www.ekamhomes.com
XXXX967F
U45203DL2011PTC212558
 
 


 
 


 
 







EKAM
SECTOR-5, SOHNA, GURUGRAM
GURGAON
GURUGRAM
01244561500
7905628631 (Number Shared by Promoter in Public)
shantanu.majumdar@parasbuildtech.com
SHANTANU
01244561500
7905628631 (Number Shared by Promoter in Public)
shantanu.majumdar@parasbuildtech.com








As per sub-rule(2) of rule 3 of the Haryana Real Estate (Regulation and Development) Rules,2017, the fee for registration of the project as has been calculated as follows:
-----------------------------------------------------------------------------------------------------------------------
-----------------------------------------------------------------------------------------------------------------------
-----------------------------------------------------------------------------------------------------------------------
-----------------------------------------------------------------------------------------------------------------------
2. The aforesaid fees is hereby deposited vide following Drafts/ Banker’s Cheques:-

Sr No.Draft/Cheque No.Draft DateAmountPayee BankPayable To
146222611-03-2019305000HDFC BANKHRERA Gurugram
246788628-03-201945000HDFC BANKHRERA Gurugram
317072325-04-2019600000HDFC BANKHRERA Gurugram
446788528-03-2019350000HDFC BANKHRERA Gurugram







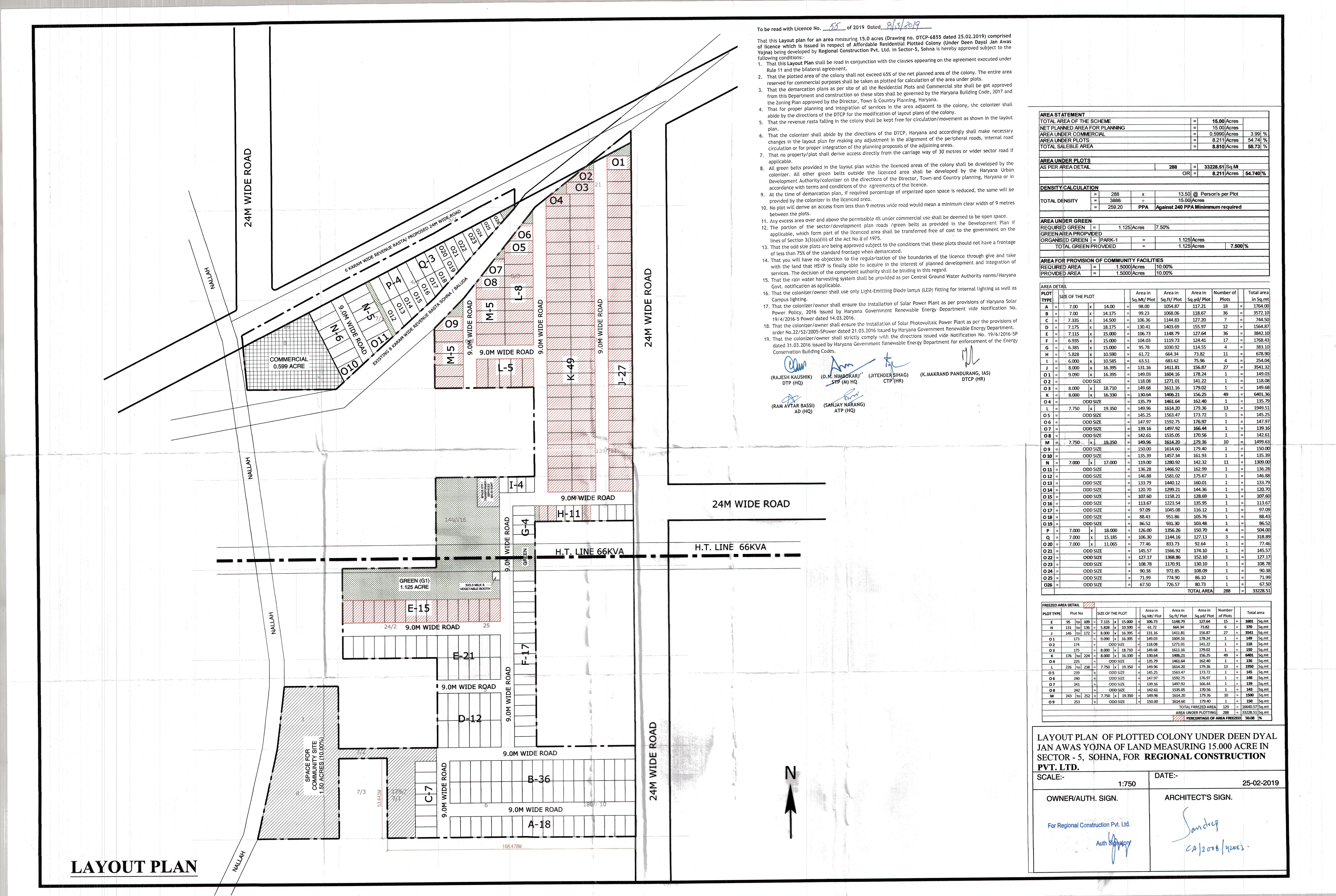
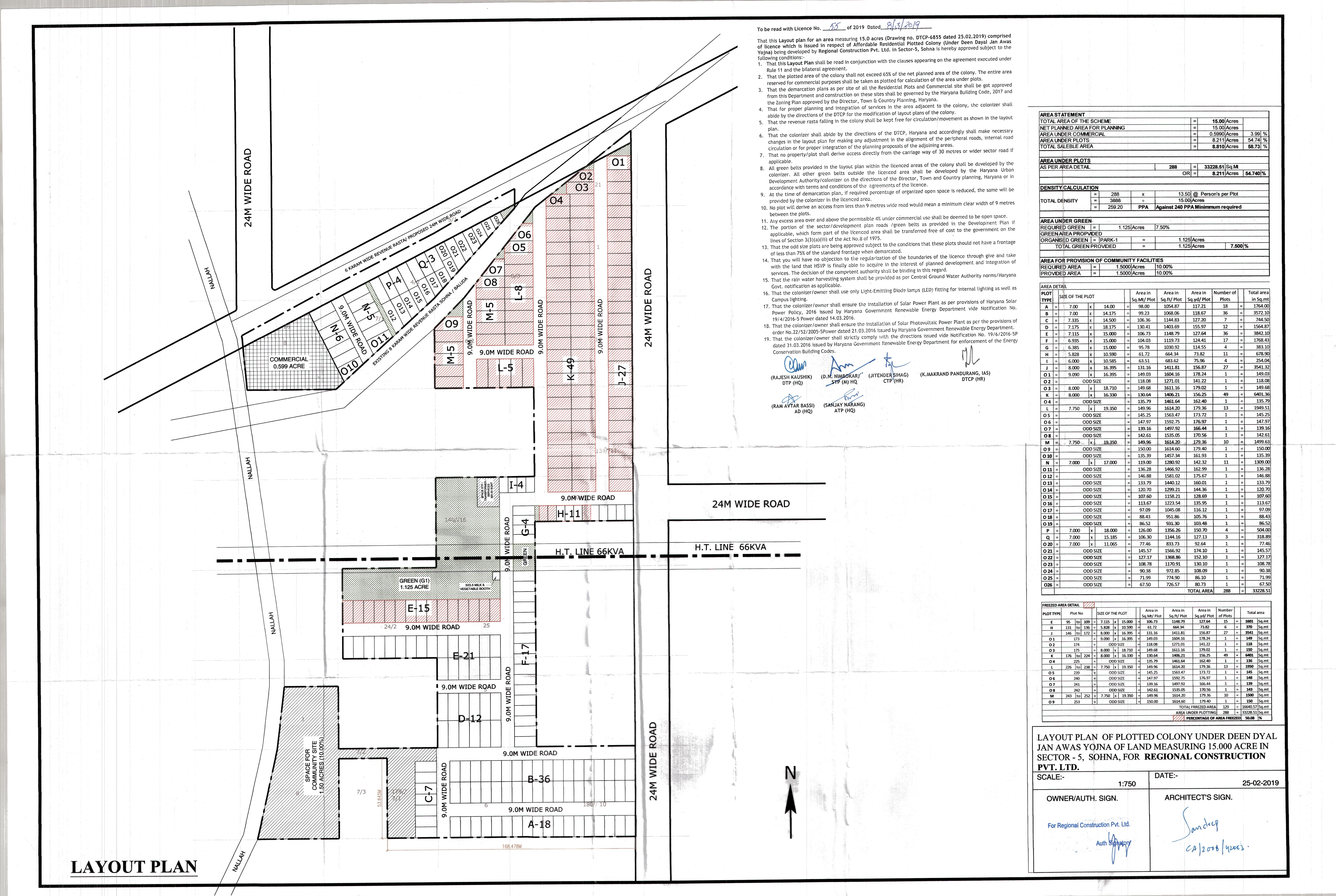
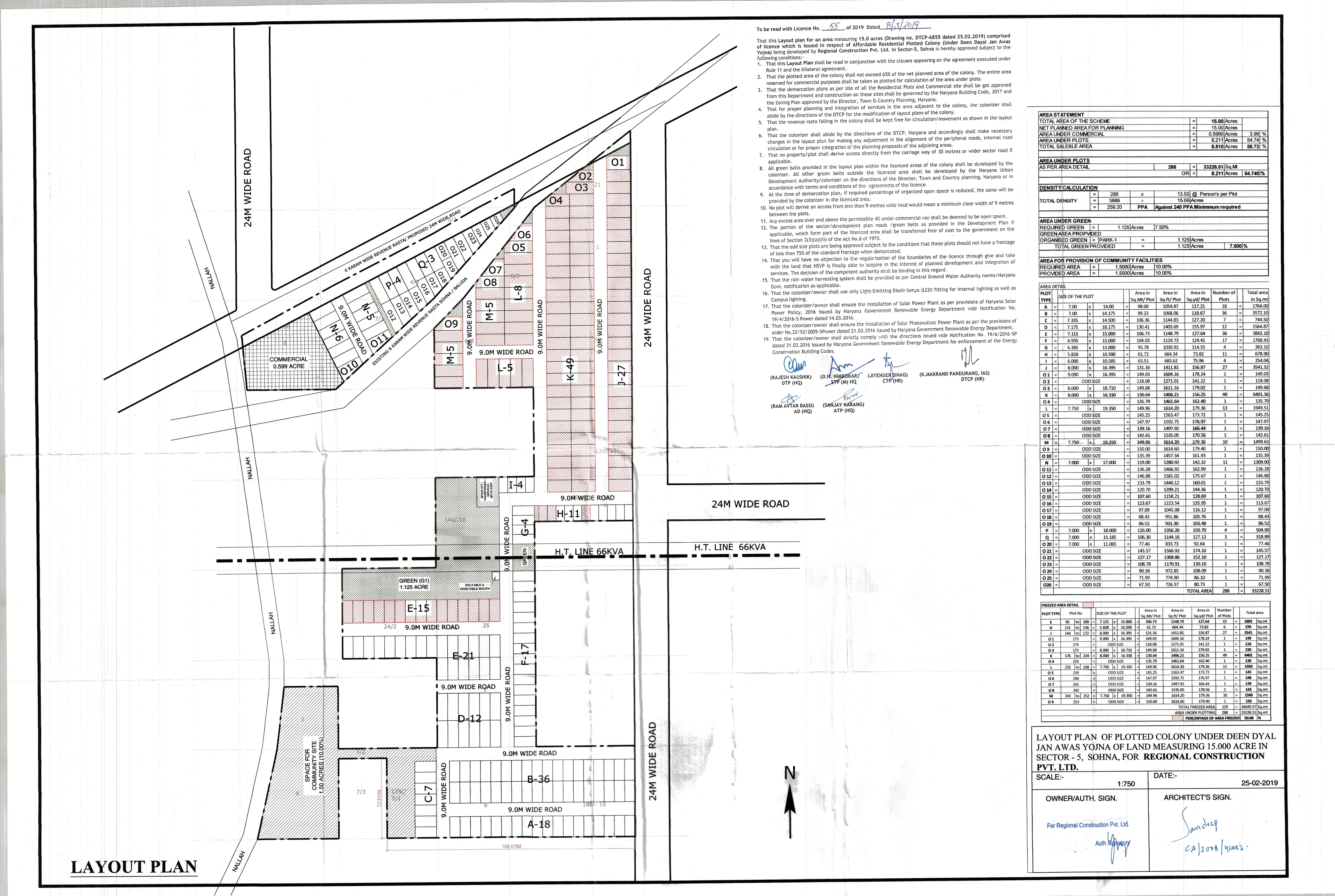
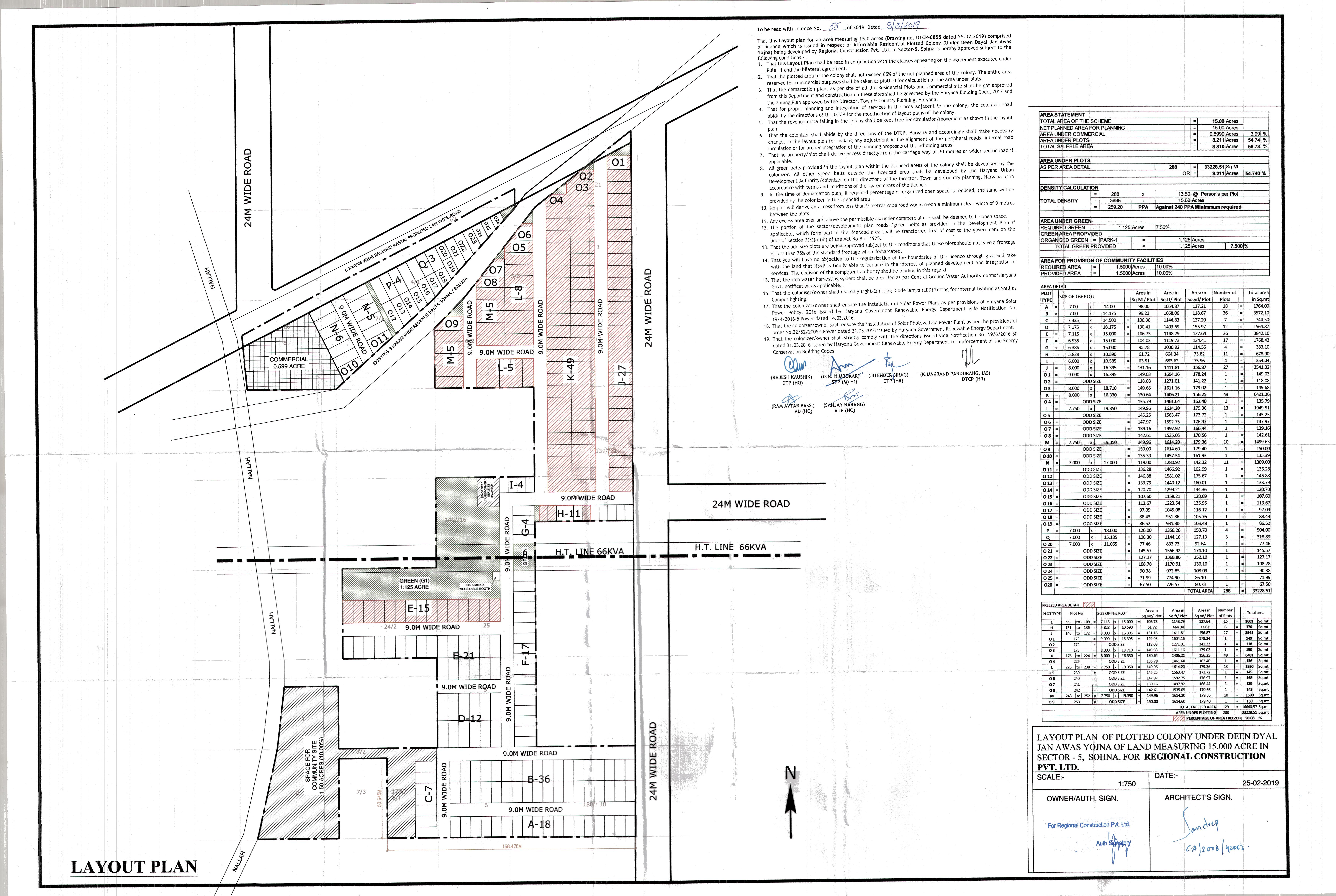
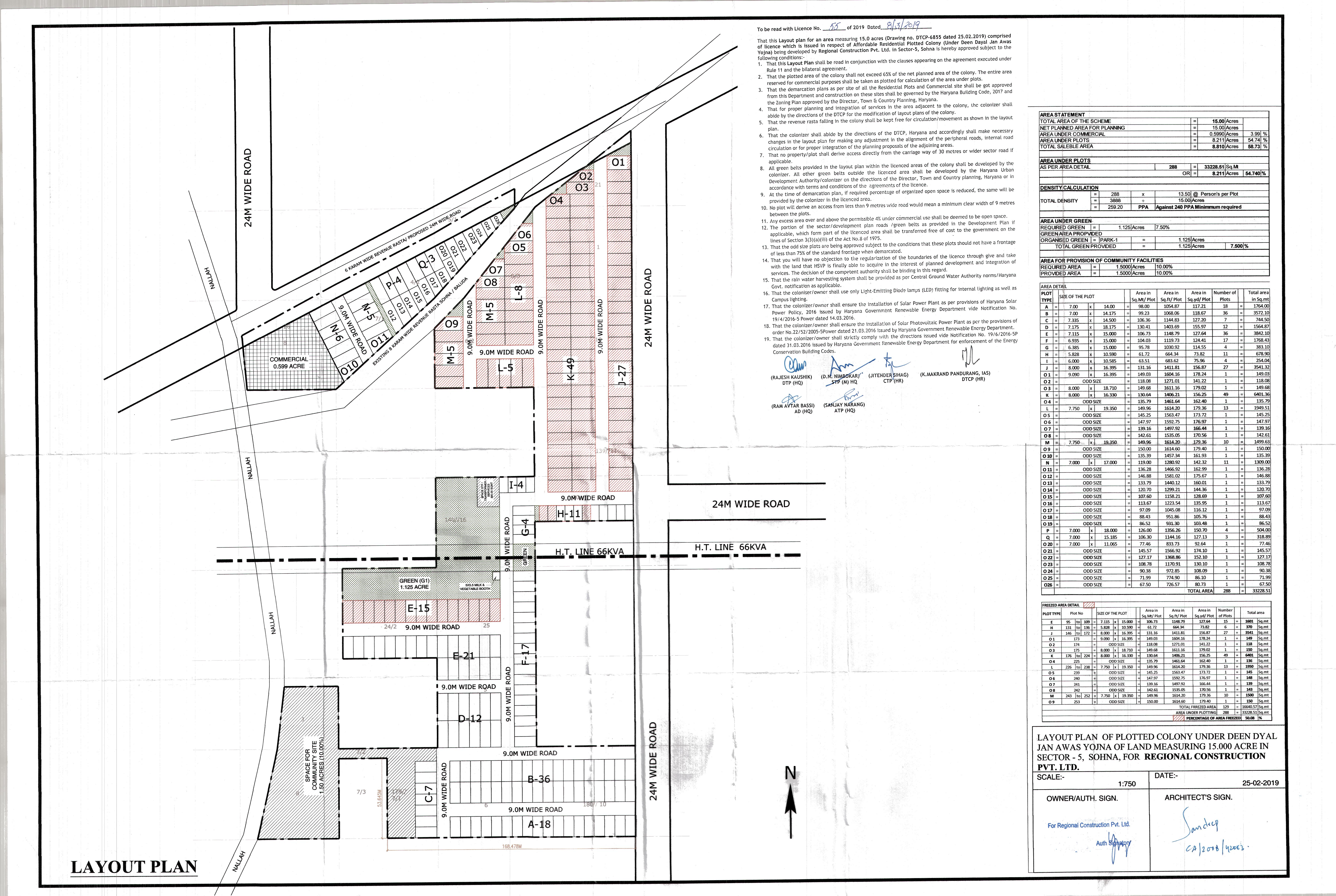
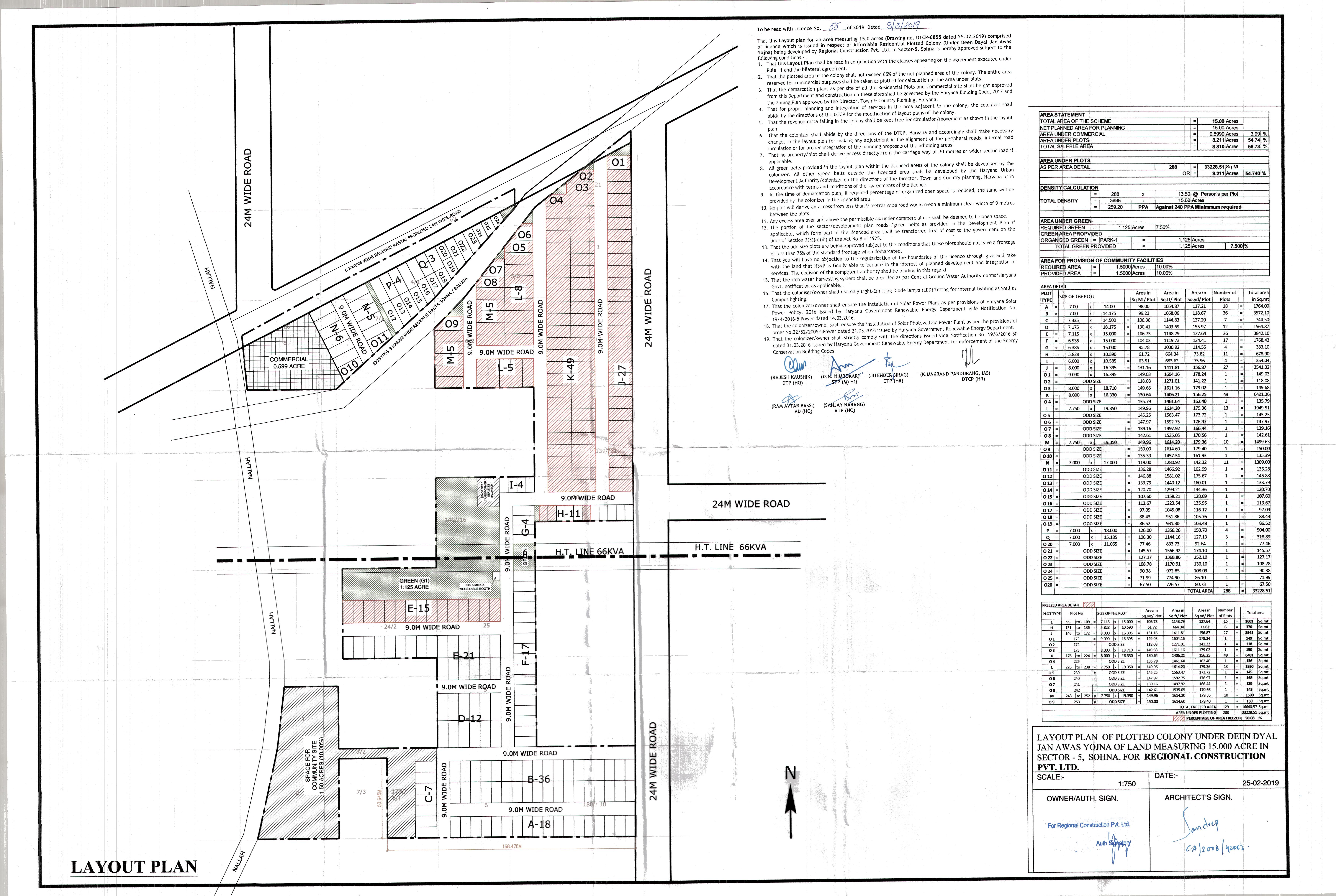
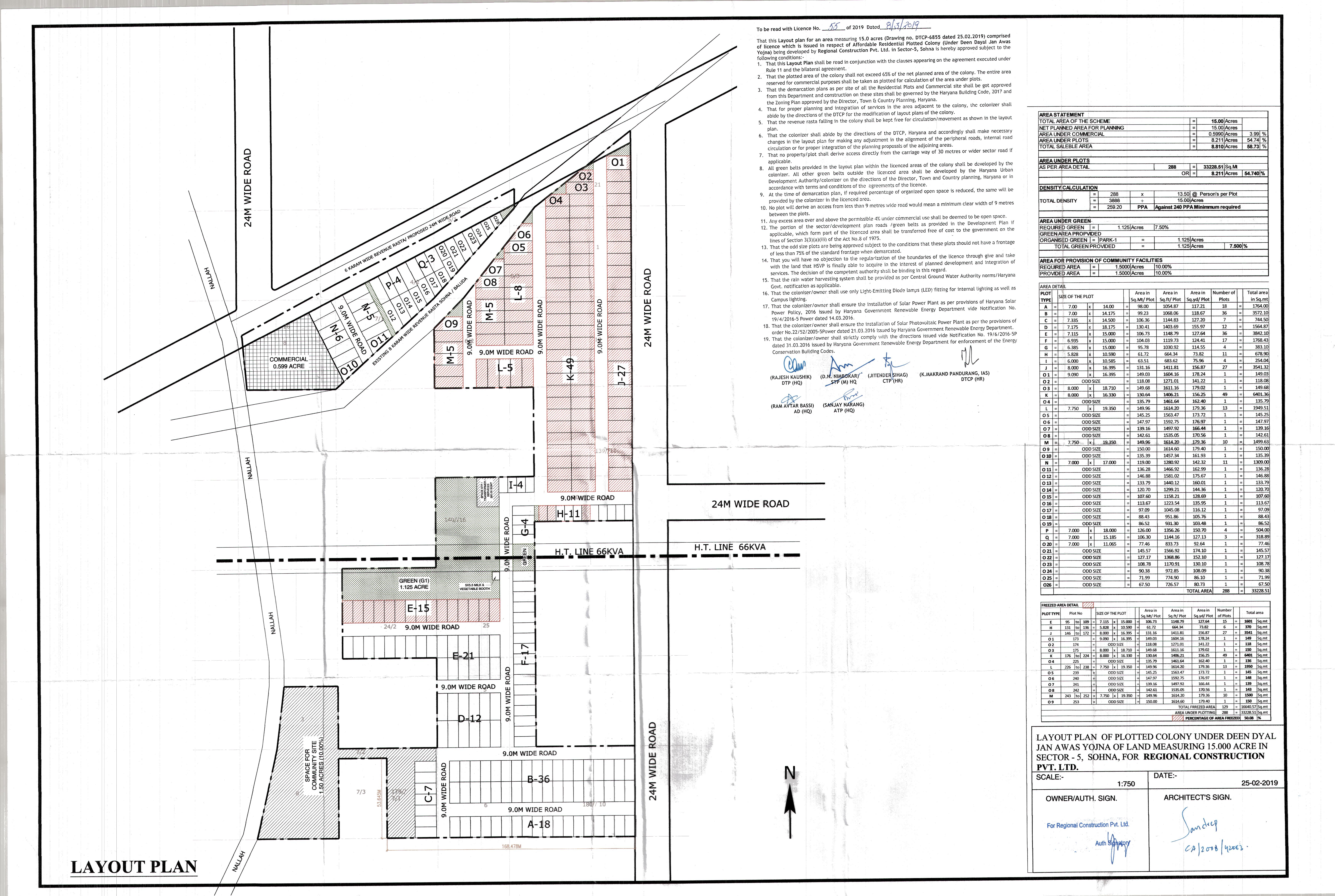
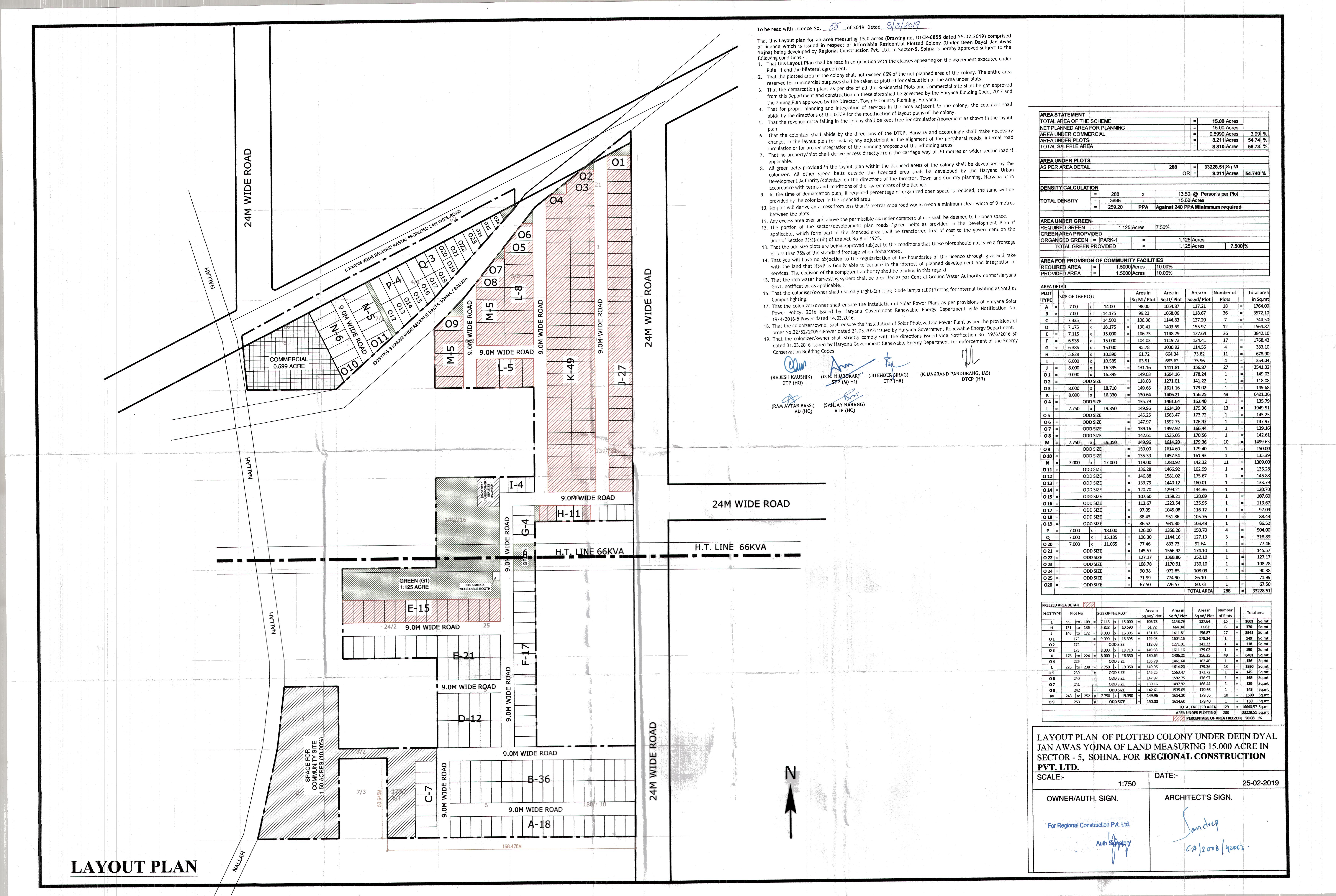
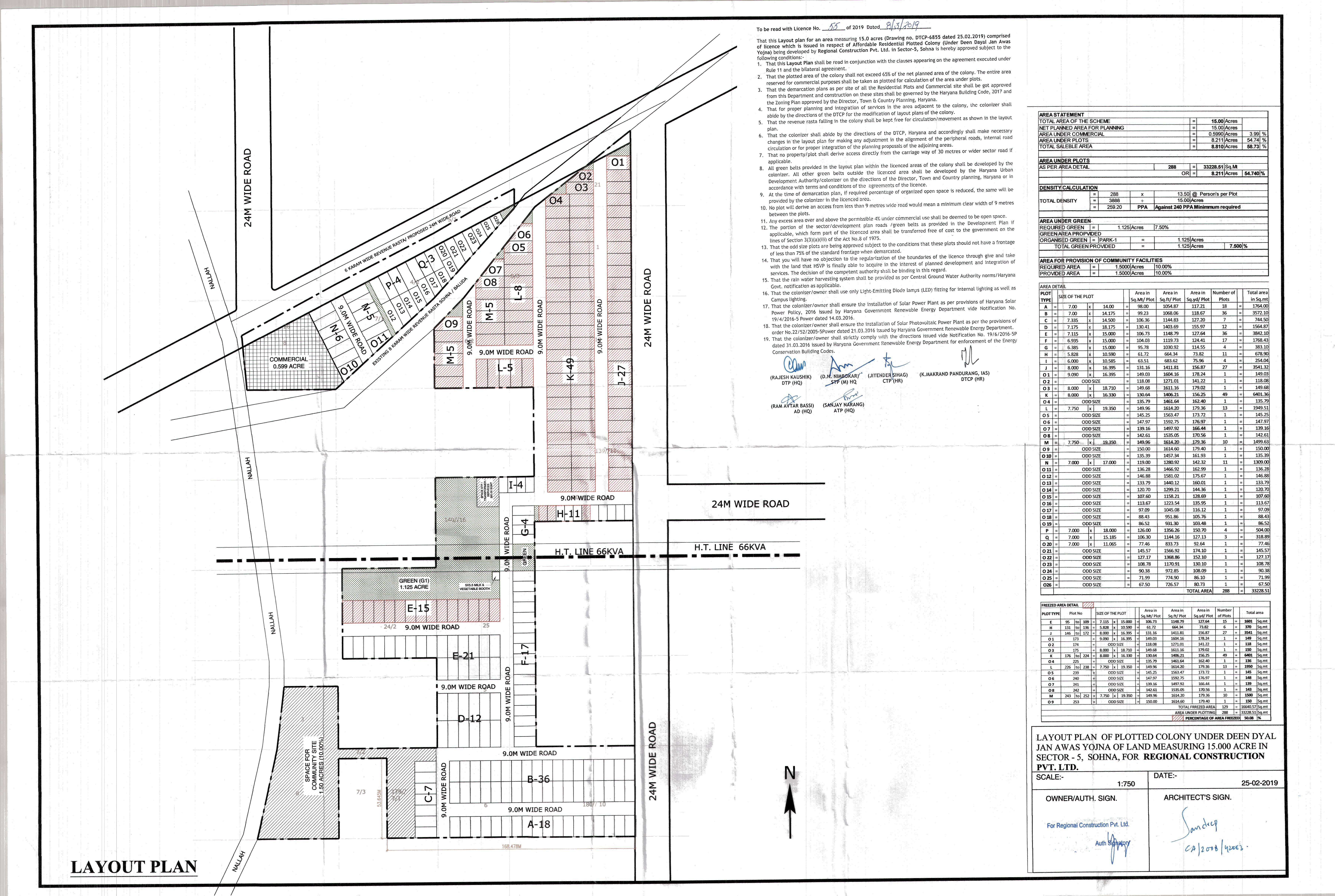
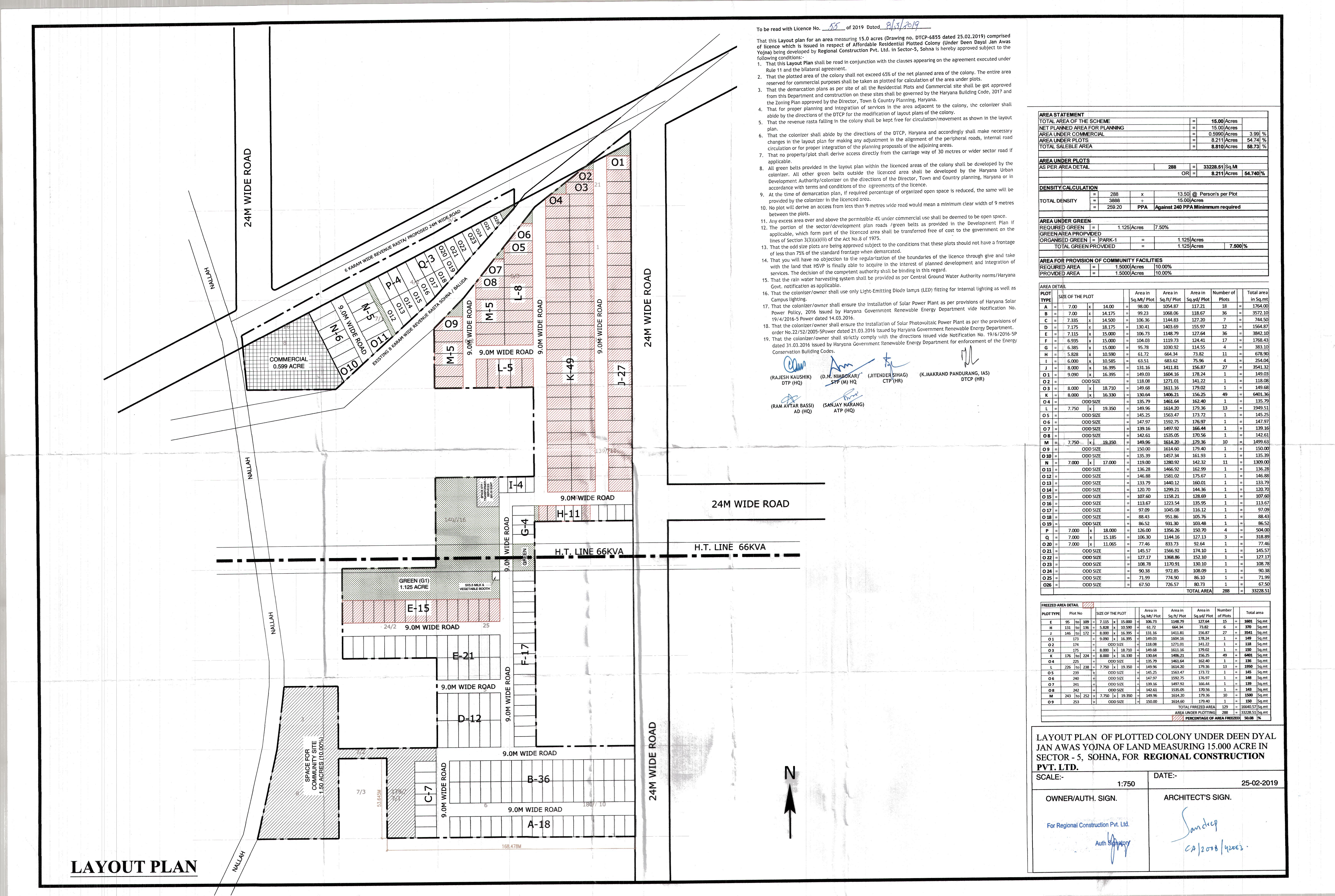
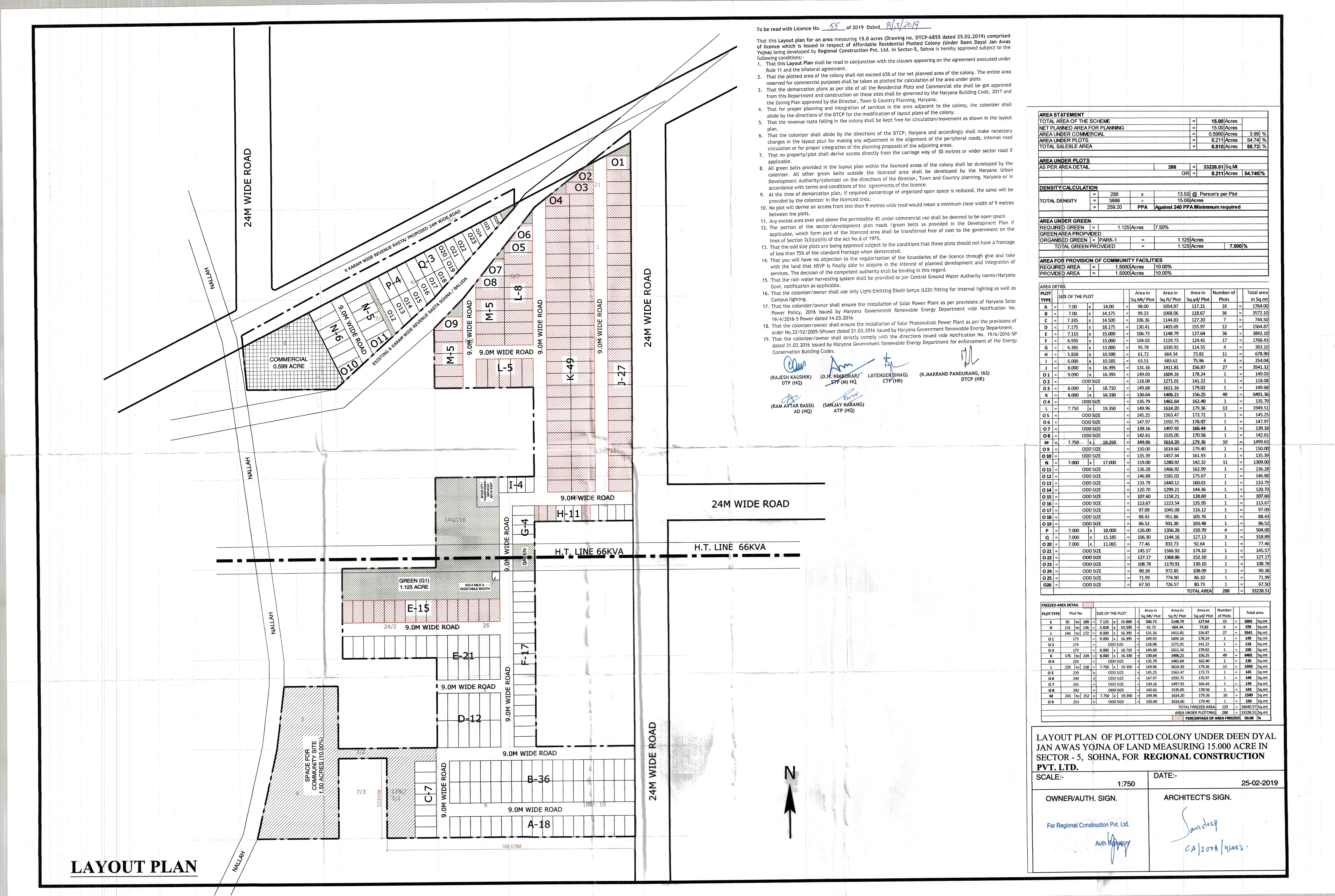
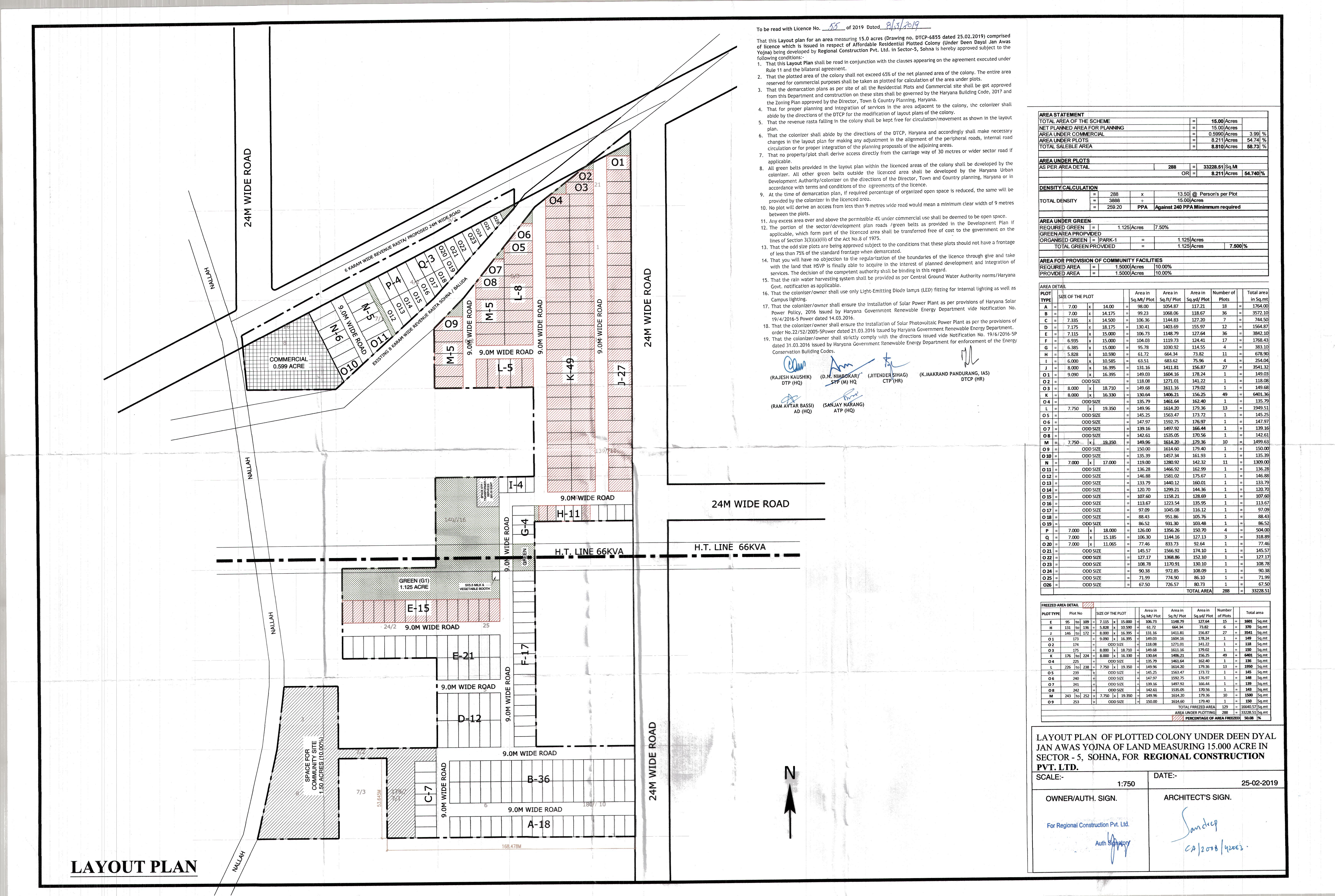
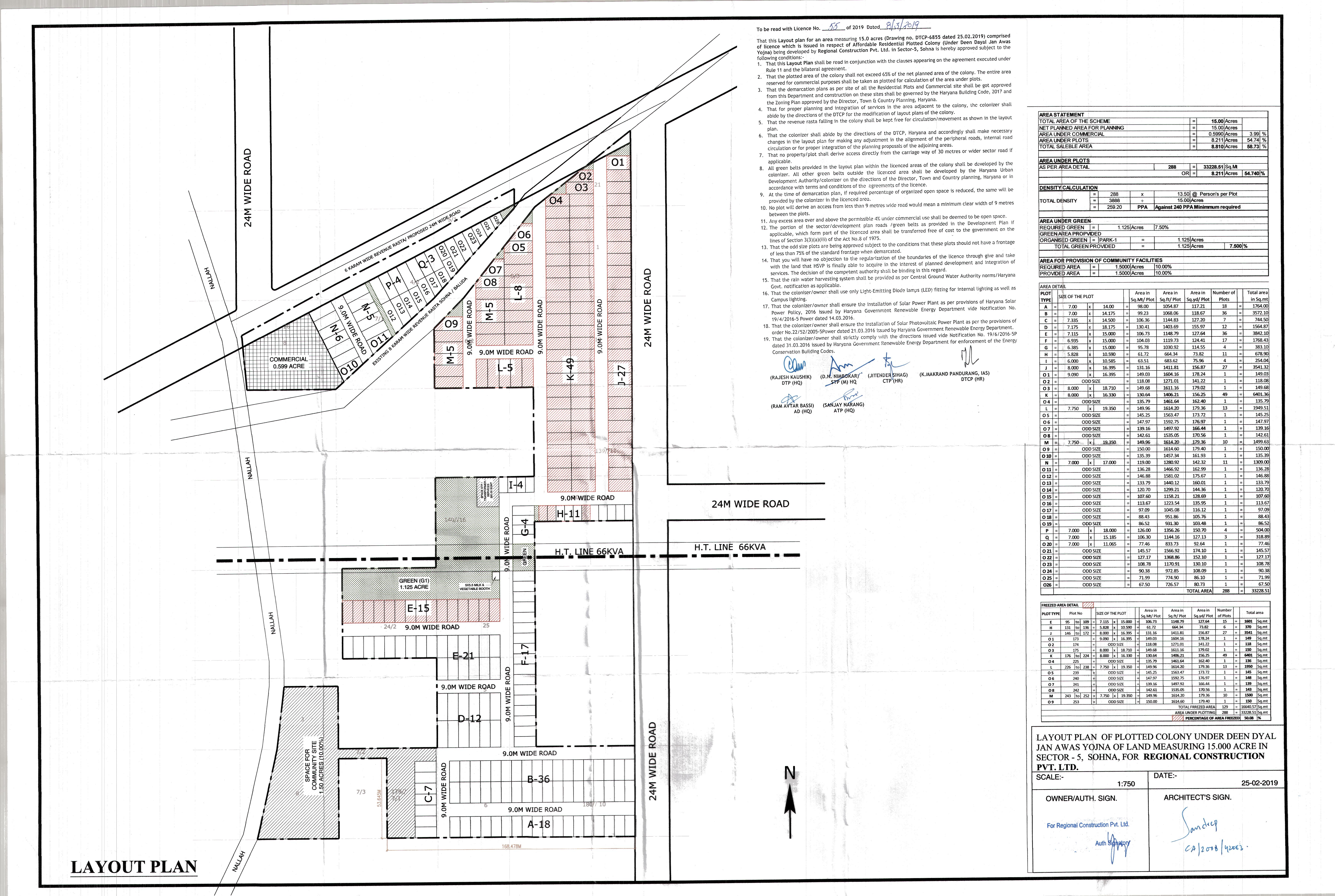
15 (Acre)
0.5990
0
15 (Acre)
55/2019
Yes







6645 Lakhs
1779 Lakhs
0 Lakhs
2583 Lakhs
918 Lakhs




Sr. No.Land area under usageArea of land (Acres)
1PLOTS TO BE SOLD 8.221
2LAND AREA TO BE USED FOR CONSTRUCTION OF APARTMENTS 0
3CONSTRUCTION OF ROADS 0.465
4PAVEMENTS 0.465
5PARKS AND PLAYGROUNDS 0
6GREEN BELTS 1.125
7VEHICLE PARKINGS 0
8ELECTRICITY SUB-STATION 0
9CLUB HOUSE 0
10SEWAGE AND SOLID WASTE TREATMENT FACILITY 0.365
11AREA TO BE LEFT FOR TRANSFERRING TO THE GOVERNMENT FOR COMMUNITY SERVICES 1.50
12ANY OTHER 2.859
Total15




FacilityExternal/ connecting service to be provided by (Name the agency)Whether Approval taken from the agency concerned. Yes/No (Annex details in folder C)
ROADSGMDAYes
WATER SUPPLYHSVPYes
ELECTRICITYDHBVNYes
SEWAGE DISPOSALGMDAYes
STORM WATER DRAINAGEGMDAYes




Sr. No.Name of the facilityEstimated cost (In Lakhs)(Within the project area only)Remarks: Yet to be prepared / Submitted to HUDA, Town & Country Planning Department/ as per project report etc. (Annex relevant documents showing costing details etc. in folder C)
1INTERNAL ROADS AND PAVEMENTS387.28SUBMITTED TO HUDA
2WATER SUPPLY SYSTEM315.84SUBMITTED TO HUDA
3STORM WATER DRAINAGE258.44SUBMITTED TO HUDA
4ELECTRICITY SUPPLY SYSTEM231.30SUBMITTED TO HUDA
5SEWAGE TREATMENT & GARBAGE DISPOSAL282.00SUBMITTED TO HUDA
6STREET LIGHTING0YET TO BE PREPARED
7SECURITY AND FIRE FIGHTING48.30SUBMITTED TO HUDA
8PLAYGROUNDS AND PARKS190.00SUBMITTED TO HUDA
9CLUB HOUSE/COMMUNITY CENTRE0AS PER PROJECT REPORT
10SHOPPING AREA0AS PER PROJECT REPORT
11RENEWABLE ENERGY SYSTEM0YET TO BE PREPARED
12SCHOOL0YET TO BE PREPARED
13HOSPITAL/DISPENSARY0YET TO BE PREPARED
14ANY OTHER0YET TO BE PREPARED
15SIGNAGE AND ART WORK14SUBMITTED TO HUDA
16STONE FLOORING COBBLE AND CLADDING WORK ENTRANCE AREA41SUBMITTED TO HUDA
17MISC WORK20SUBMITTED TO HUDA
18PRE CAST BOUNDARY WALL365.69SUBMITTED TO HUDA
19PROVISION OF LV TELECOM35.34SUBMITTED TO HUDA


NA (date)
NA (date)
01-04-2019
08-03-2025
Sr. No Plot Area(In Square Meter)Number of plots in the project
1 98 18
2 99.23 36
3 106.36 7
4 130.41 12
5 106.73 36
6 104.03 17
7 95.78 4
8 61.72 11
9 63.51 4
10 131.16 27
11 149.03 1
12 118.08 1
13 149.68 1
14 130.64 49
15 135.79 1
16 149.96 13
17 145.25 1
18 147.97 1
19 139.16 1
20 142.61 1
21 149.96 10
22 150.00 1
23 135.39 1
24 119.00 11
25 136.28 1
26 146.88 1
27 133.79 1
28 120.70 1
29 107.60 1
30 113.67 1
31 97.09 1
32 88.43 1
33 86.52 1
34 126.00 4
35 106.30 3
36 77.46 1
37 145.57 1
38 127.17 1
39 108.78 1
40 90.38 1
41 71.99 1
42 67.50 1
Total288


TypeCarpet area(In Square Meter)Number of apartmentsNumber of towers
Apartment/Shops/Other Buildings000





Expenditure incurred till the date of application (In Lakhs)

ParticularsExpenditure
Apartments0
Shops0
Plots0
Cost of Construction9
EDC295
Land Cost Expenditure1779
Other Costs188

Expenditure to be made in each quarter (In Lakhs)

ParticularsYear-2019
Jan-MarApr-JuneJuly-SepOct-Dec
Apartments0000
Shops0000
Plots0000
Other Costs919191
Cost of Construction162162162
EDC111111111
Infrastructure Development Charges9292
Loan Repayment7575

ParticularsYear-2020
Jan-MarApr-JuneJuly-SepOct-Dec
Apartments0000
Shops0000
Plots0000
Loan Repayment757575120
Other Costs91919191
EDC111111111111
Cost of Construction162162162162

ParticularsYear-2021
Jan-MarApr-JuneJuly-SepOct-Dec
Apartments0000
Shops0000
Plots0000
Loan Repayment120120120300
Cost of Construction162808080
Other Costs938080
EDC108

ParticularsYear-2022
Jan-MarApr-JuneJuly-SepOct-Dec
Apartments0000
Shops0000
Plots0000
Cost of Construction80808080
Loan Repayment300300245

ParticularsYear-2023
Jan-MarApr-JuneJuly-SepOct-Dec
Apartments0000
Shops0000
Plots0000
Cost of Construction80808080

ParticularsYear-2024
Jan-MarApr-JuneJuly-SepOct-Dec
Apartments0000
Shops0000
Plots0000
Cost of Construction80808080

ParticularsYear-2025
Jan-MarApr-JuneJuly-SepOct-Dec
Apartments0
Shops0
Plots0
Cost of Construction77




Expenditure incurred till the date of application (In Lakhs)

ParticularsExpenditure
Roads & Pavements0
Water Supply System0
Sewerage treatment & garbage disposal0
Electricity Supply System0
Storm Water Drainage0
Parks and Playgrounds0
Clubhouse/community centres0
Shopping area0
Other0

Expenditure to be made in each quarter (In Lakhs)

ParticularsYear-2019
Jan-MarApr-JuneJuly-SepOct-Dec
Roads & Pavements34343434
Water Supply System24282424
Sewerage treatment & garbage disposal20252020
Electricity Supply System2.32.32.32.3
Storm Water Drainage0000
Parks and Playgrounds1.91.91.91.9
Clubhouse/community centres0000
Shopping area0000
Other0000
Fire Hydrents4.84.84.84.8
Provision of LV Telecom3.13.13.13.1
Pre Cast Bounday Wall36.5036.5036.5036.50
Underground Water Tank0000
Rain Water Harvesting0000
Electrical Sub Station0000
Misc work2222
Stone Flooring and Cobble and Cladding work4.14.14.14.1
Sinage and Art Work1.11.11.11.1
Sewage Treatment Plant28.2028.2028.2028.20

ParticularsYear-2020
Jan-MarApr-JuneJuly-SepOct-Dec
Roads & Pavements34343434
Water Supply System25242424
Sewerage treatment & garbage disposal20202020
Electricity Supply System2.32.32.32.3
Storm Water Drainage0000
Parks and Playgrounds1.91.91.91.9
Clubhouse/community centres0000
Shopping area0000
Other0000
Provision of LV Telecom3.13.13.13.1
Sinage and Art Work1.11.11.11.1
Stone Flooring and Cobble and Cladding work4.14.14.14.1
Misc work2222
Pre Cast Bounday Wall36.536.536.536.5
Sewage Treatment Plant28.228.228.228.2
Underground Water Tank0000
Rain Water Harvesting0000
Electrical Sub Station0000
Fire Hydrents4.84.84.84.8

ParticularsYear-2021
Jan-MarApr-JuneJuly-SepOct-Dec
Roads & Pavements20202020
Water Supply System10101010
Sewerage treatment & garbage disposal8888
Electricity Supply System10101010
Storm Water Drainage0000
Parks and Playgrounds3.5742.463.5
Clubhouse/community centres0000
Shopping area0000
Other0000
Fire Hydrents0000
Underground Water Tank0000
Provision of LV Telecom1.541.51.541.54
Rain Water Harvesting0000
Electrical Sub Station0000
Sewage Treatment Plant10101010
Pre Cast Bounday Wall17.43171717.5
Misc work0000
Stone Flooring and Cobble and Cladding work0000
Sinage and Art Work1111

ParticularsYear-2022
Jan-MarApr-JuneJuly-SepOct-Dec
Roads & Pavements0207.847.44
Water Supply System10101010
Sewerage treatment & garbage disposal8888
Electricity Supply System10101010
Storm Water Drainage0000
Parks and Playgrounds1416.2437.5644
Clubhouse/community centres0000
Shopping area0000
Other0000
Rain Water Harvesting2000
Misc work0000
Pre Cast Bounday Wall04.7600
Sewage Treatment Plant0106.40
Underground Water Tank10000
Electrical Sub Station25000
Provision of LV Telecom0000
Fire Hydrents0000
Sinage and Art Work010.20
Stone Flooring and Cobble and Cladding work1000.56

ParticularsYear-2023
Jan-MarApr-JuneJuly-SepOct-Dec
Roads & Pavements0000
Water Supply System8.84101010
Sewerage treatment & garbage disposal6.02887.42
Electricity Supply System10101010
Storm Water Drainage0000
Parks and Playgrounds17.3399.5613.58
Clubhouse/community centres0000
Shopping area0000
Other0000
Sewage Treatment Plant0000
Electrical Sub Station25252525
Rain Water Harvesting2222
Underground Water Tank10101010
Pre Cast Bounday Wall0000
Misc work0000
Stone Flooring and Cobble and Cladding work110.542
Sinage and Art Work0000
Fire Hydrents054.90
Provision of LV Telecom0000

ParticularsYear-2024
Jan-MarApr-JuneJuly-SepOct-Dec
Roads & Pavements0000
Water Supply System0000
Sewerage treatment & garbage disposal0000
Electricity Supply System62.9101010
Storm Water Drainage0000
Parks and Playgrounds0000
Clubhouse/community centres0000
Shopping area0000
Other0000
Electrical Sub Station0303560
Provision of LV Telecom9000
Fire Hydrents0000
Sinage and Art Work0000
Stone Flooring and Cobble and Cladding work1.1100
Misc work4000
Pre Cast Bounday Wall0000
Sewage Treatment Plant0000
Underground Water Tank034300
Rain Water Harvesting05510

ParticularsYear-2025
Jan-MarApr-JuneJuly-SepOct-Dec
Roads & Pavements0
Water Supply System0
Sewerage treatment & garbage disposal0
Electricity Supply System0
Storm Water Drainage0
Parks and Playgrounds0
Clubhouse/community centres0
Shopping area0
Other0












Yes
No
VATIKA ATRIUM, BLOCK-A, KHASRA NO. 1742/1/2, 1743, VILLAGE-WAZIRABAD GURGAON, SECTOR-53
05720330000640
HDFC0000572
110240093
0572
Mr. Aman Nagar, Address: 25 A,Prikuiti Marg, Sultanpur South, Delhi-110030
Attached











Yes
Yes
Yes
No
No
No
No
No
Yes
Yes


Yes
Yes
Yes
Yes
Yes
Yes
No
No
Statutory Approvals Statutory Approvals StatusDate
I. LICENCE COPYALREADY BEEN OBTAINED08-03-2019
II. SERVICE PLANALREADY BEEN OBTAINED02-04-2019
III. ELECTRICITYALREADY BEEN OBTAINED07-06-2019
IV. WATERALREADY BEEN OBTAINED30-05-2019








Yes


Yes


1. Regional Construction Pvt. Ltd. 2. Buyer 3. Rera Registration No. Provided 4.Plot being sold under DDJAY 5. All charges such as Administrative,Booking Amount etc. 6.Specified Completion Rate













SPECIFICATION OF CONSTRUCTION
Specification of apartments and other buildings including the following:
1FLOORING DETAILS OF VARIOUS PARTS OF HOUSENA PLOTTED PROJECT
2WALL FINISHING DETAILSNA PLOTTED PROJECT
3KITCHEN DETAILSNA PLOTTED PROJECT
4BATHROOM FITTINGSNA PLOTTED PROJECT
5WOOD WORK ETCNA PLOTTED PROJECT
6DOORS AND WINDOS FRAMESNA PLOTTED PROJECT
7GLASS WORKNA PLOTTED PROJECT
8ELECTRIC FITTINGSNA PLOTTED PROJECT
9CONDUCTING AND WIRING DETAILSNA PLOTTED PROJECT
10CUPBOARD DETAILSNA PLOTTED PROJECT
11WATER STORAGENA PLOTTED PROJECT
12LIFT DETAILSNA PLOTTED PROJECT
13EXTERNAL GLAZINGSNA PLOTTED PROJECT
13.1WINDOWS/GLAZINGSNA PLOTTED PROJECT
14DOORSNA PLOTTED PROJECT
14.1MAIN DOORSNA PLOTTED PROJECT
14.2INTERNAL DOORSNA PLOTTED PROJECT
15AIR CONDITIONINGNA PLOTTED PROJECT
16ELECTRICAL FITTINGSNA PLOTTED PROJECT
17CNG PIPE LINENA
18PROVISION OF WIFI AND BROADBAND FACILITYNA PLOTTED PROJECT
19EXTERNAL FINISHING/COLOUR SCHEMENA PLOTTED PROJECT
20INTERNAL FINISHINGNA PLOTTED PROJECT
SPECIFICATION UNIT WISE
1 . LIVING/DINING/FOYER/FAMILY LOUNGE
1 . 1 FLOORNA PLOTTED PROJECT
1 . 2 WALLSNA PLOTTED PROJECT
1 . 3 CEILINGNA PLOTTED PROJECT
2 . MASTER BEDROOM/DRESSROOM
2 . 1 FLOORNA PLOTTED PROJECT
2 . 2 WALLSNA PLOTTED PROJECT
2 . 3 CEILINGNA PLOTTED PROJECT
2 . 4 MODULAR WARDROBESNA PLOTTED PROJECT
3 . MASTER TOILET
3 . 1 FLOORNA PLOTTED PROJECT
3 . 2 WALLSNA PLOTTED PROJECT
3 . 3 CEILINGNA PLOTTED PROJECT
3 . 4 COUNTERSNA PLOTTED PROJECT
3 . 5 SANITARY WARE/CP FITTINGSNA PLOTTED PROJECT
3 . 6 FITTING/FIXTURESNA PLOTTED PROJECT
4 . BED ROOMS
4 . 1 FLOORNA PLOTTED PROJECT
4 . 2 WALLSNA PLOTTED PROJECT
4 . 3 CEILINGNA PLOTTED PROJECT
4 . 4 WARDROBESNA PLOTTED PROJECT
5 . TOILET
5 . 1 FLOORNA PLOTTED PROJECT
5 . 2 WALLSNA PLOTTED PROJECT
5 . 3 CEILINGNA PLOTTED PROJECT
5 . 4 COUNTERSNA PLOTTED PROJECT
5 . 5 SANITARY WARE/CP FITTINGSNA PLOTTED PROJECT
5 . 6 FIXTURESNA PLOTTED PROJECT
6 . KITCHEN
6 . 1 FLOORNA PLOTTED PROJECT
6 . 2 WALLSNA PLOTTED PROJECT
6 . 3 CEILINGNA PLOTTED PROJECT
6 . 4 COUNTERSNA PLOTTED PROJECT
6 . 5 FIXTURESNA PLOTTED PROJECT
6 . 6 KITCHEN APPLIANCESNA PLOTTED PROJECT
7 . UTILITY ROOMS/UTILITY BALCONY/TOILET
7 . 1 FLOORNA PLOTTED PROJECT
7 . 2 WALLS & CEILINGNA PLOTTED PROJECT
7 . 3 TOILETNA PLOTTED PROJECT
7 . 4 BALCONYNA PLOTTED PROJECT
8 . SIT-OUTS
8 . 1 FLOORNA PLOTTED PROJECT
8 . 2 WALLS & CEILINGNA PLOTTED PROJECT
8 . 3 RAILINGSNA PLOTTED PROJECT
8 . 4 FIXTURESNA PLOTTED PROJECT












Sr. No.Document DescriptionDate of Document UploadView Document
1 NON DEFAULT CERTIFICATE FROM A CHARTERED ACCOUNTANT 15-03-2019 View Document
2 COPY OF LICENSE ALONG WITH SCHEDULE OF LAND 15-03-2019 View Document
3 IN CASE OF PLOTTED COLONY, THE LATEST LAYOUT PLAN 15-03-2019 View Document
4 DECLARATION SUPPORTED BY AFFIDAVIT DULY SIGNED BY THE PROMOTER TO BE ENCLOSED. 15-03-2019 View Document
5 IN CASE OF GROUP HOUSING/ COMMERCIAL SITES, A COPY OF THE APPROVED SITE PLAN 15-03-2019 View Document
6 ASSURANCE ELECTRIC 18-06-2019 ------
7 ASSURANCE WATER 18-06-2019 ------
8 CASH FLOW STATEMENT OF THE PROPOSED PROJECT 22-06-2019 View Document
9 ZONING PLAN 20-06-2019 View Document
10 SERVICE PLAN ANNEXURE 22-06-2019 ------
11 DEMARCATION PLAN 20-06-2019 View Document
12 SERVICE PLANS SHOWING THE SERVICES ON THE LAYOUT PLAN 22-06-2019 View Document












Sr. No.Document DescriptionDate of Document UploadView Document
1 Completion Certificate 20-03-2026 View Document