HRERA PanchkulaTemp Project Id : RERA-PKL-PROJ-1658-2025
Submission Date : 24-03-2025 11:35:32 AM
Applicant Type : Firm
Project Type: NEW


DSKR INFRACON LLP
PLOT NO. 87, GROUND FLOOR, OMAXE CITY, SECTOR - 14, PALWAL, HARYANA - 121102
01140543200
8588824699 (Number Shared by Promoter in Public)
info@rpsgroupindia.com
ABB3413
AATFD8766F















RPS URBANIA 2
VILLAGE PALWAL SECTOR 10 PALWAL HARYANA
PALWAL
PALWAL
01140543200
9891025501 (Number Shared by Promoter in Public)
info@rpsgroupindia.com
NARENDRA KUMAR
01140543200
9891025501 (Number Shared by Promoter in Public)
nandlalarya98@gmail.com








As per sub-rule(2) of rule 3 of the Haryana Real Estate (Regulation and Development) Rules,2017, the fee for registration of the project as has been calculated as follows:
-----------------------------------------------------------------------------------------------------------------------
-----------------------------------------------------------------------------------------------------------------------
-----------------------------------------------------------------------------------------------------------------------
-----------------------------------------------------------------------------------------------------------------------
2. The aforesaid fees is hereby deposited vide following Drafts/ Banker’s Cheques:-

Sr No.Draft/Cheque No.Draft DateAmountPayee BankPayable To
11438407-03-2025126329HDFC BANKHRERA Panchkula
21438917-03-20256320HDFC BANKHRERA Panchkula







21928.85 (Sqr/mtrs)
200
200
21928.85 (Sqr/mtrs)
Licence No. 183 of 2024
Yes







1983.5031 Lakhs
1215.29310 Lakhs
0 Lakhs
543.21000 Lakhs
225.00000 Lakhs




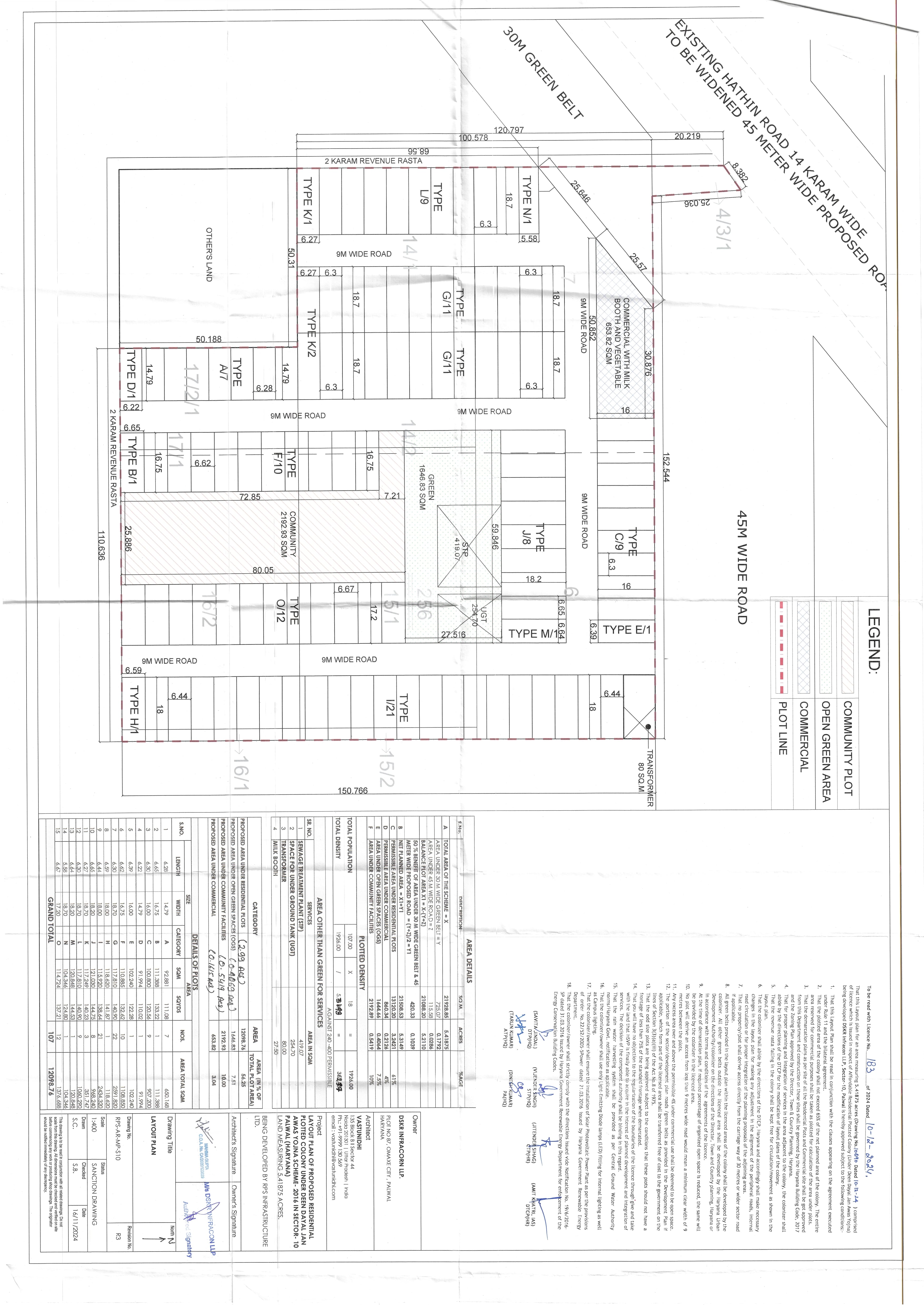
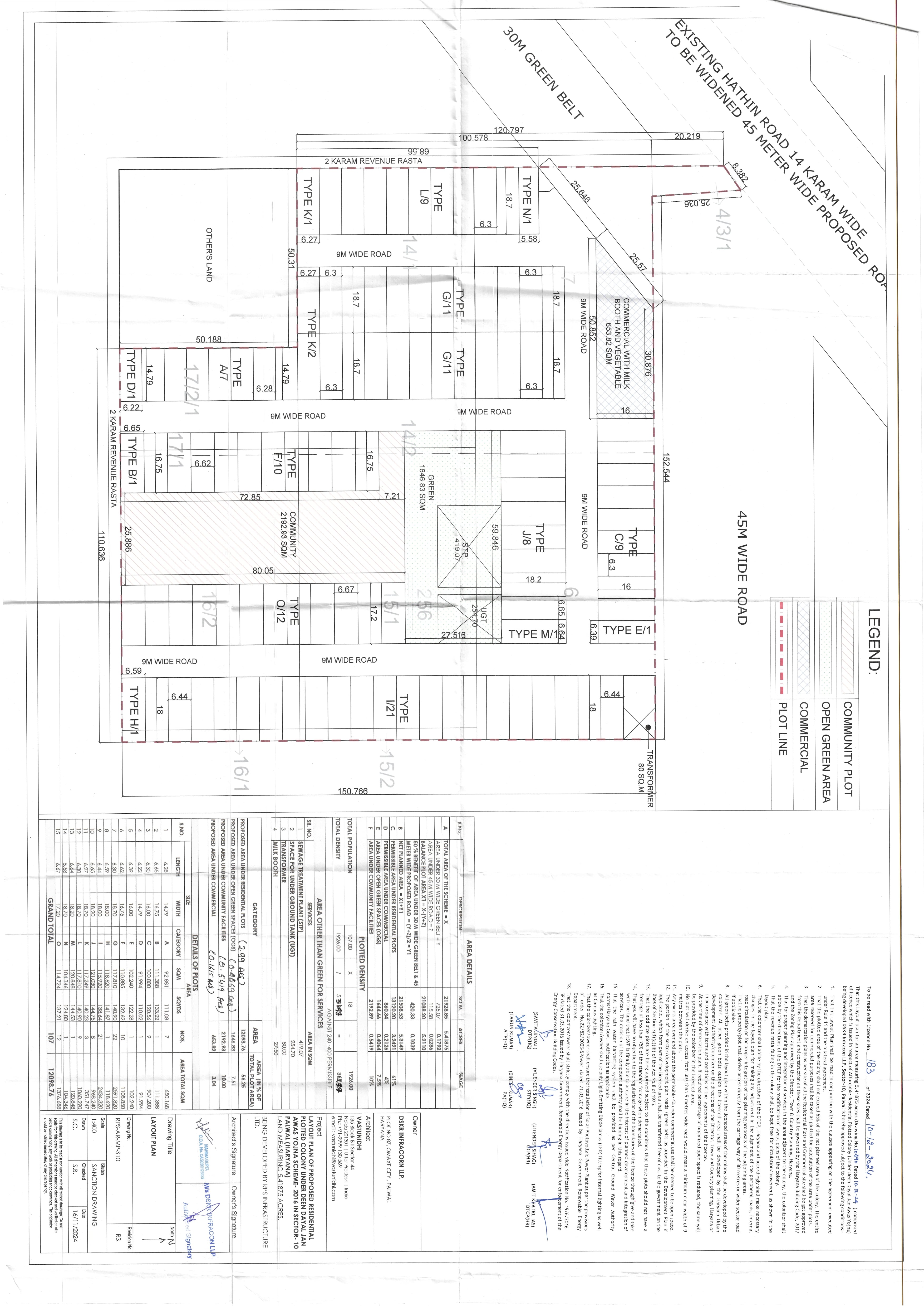
Sr. No.Land area under usageArea of land (Square Meters)
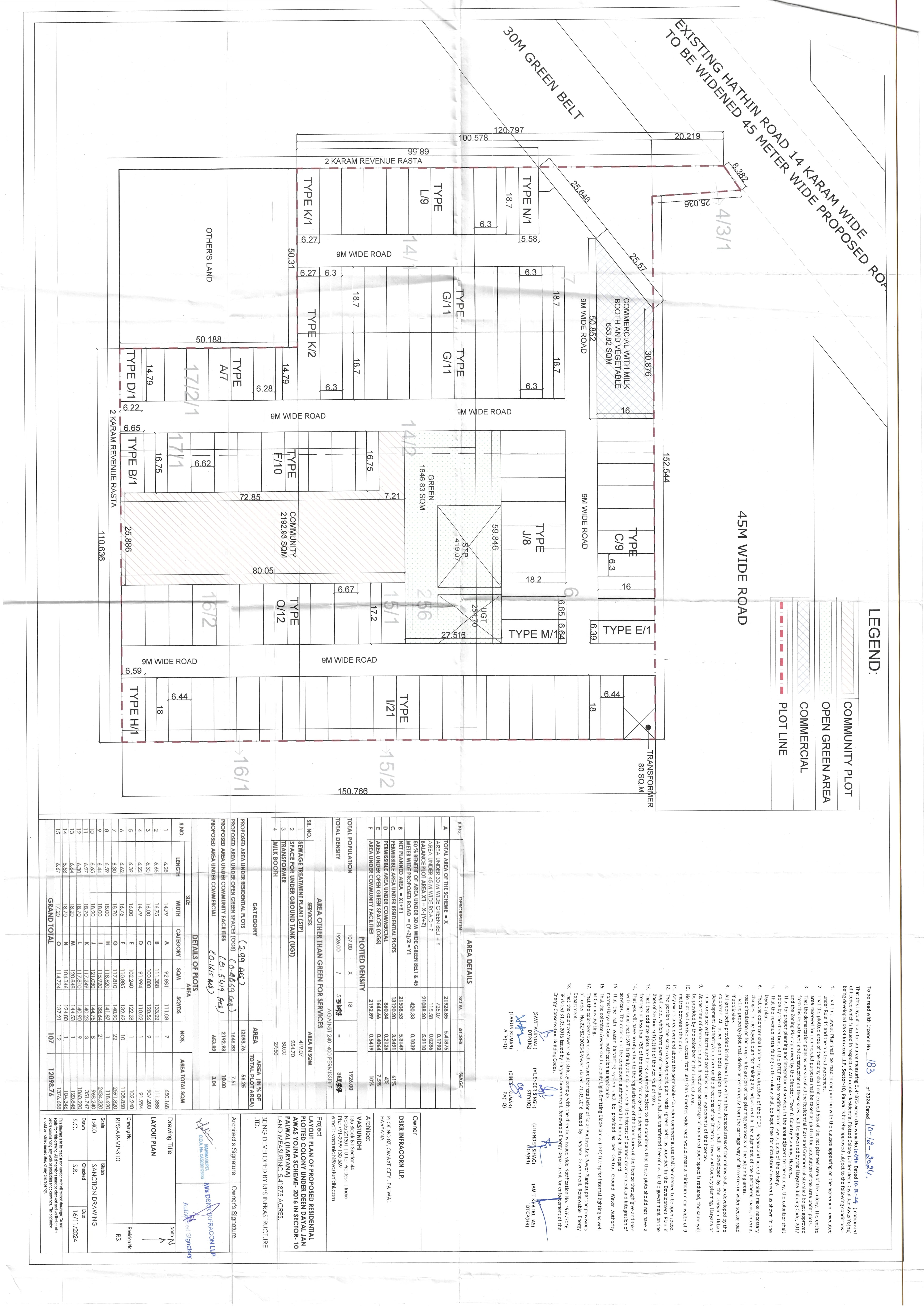
1PLOTS TO BE SOLD 12098.76
2LAND AREA TO BE USED FOR CONSTRUCTION OF APARTMENTS 0
3CONSTRUCTION OF ROADS 4531.44
4PAVEMENTS 0
5PARKS AND PLAYGROUNDS 0
6GREEN BELTS 2371.90
7VEHICLE PARKINGS 0
8ELECTRICITY SUB-STATION 80
9CLUB HOUSE 0
10SEWAGE AND SOLID WASTE TREATMENT FACILITY 0
11AREA TO BE LEFT FOR TRANSFERRING TO THE GOVERNMENT FOR COMMUNITY SERVICES 2192.93
12ANY OTHER 0
13COMMERCIAL 653.82
Total21928.85




FacilityExternal/ connecting service to be provided by (Name the agency)Whether Approval taken from the agency concerned. Yes/No (Annex details in folder C)
ROADSHSVPYes
WATER SUPPLYHSVPNo
ELECTRICITYDHBVNNo
SEWAGE DISPOSALHSVPNo
STORM WATER DRAINAGEHSVPNo




Sr. No.Name of the facilityEstimated cost (In Lakhs)(Within the project area only)Remarks: Yet to be prepared / Submitted to HUDA, Town & Country Planning Department/ as per project report etc. (Annex relevant documents showing costing details etc. in folder C)
1INTERNAL ROADS AND PAVEMENTS61.00000YET TO BE PREPARED
2WATER SUPPLY SYSTEM29.21000YET TO BE PREPARED
3STORM WATER DRAINAGE82.00000YET TO BE PREPARED
4ELECTRICITY SUPPLY SYSTEM91.00000YET TO BE PREPARED
5SEWAGE TREATMENT & GARBAGE DISPOSAL175.00000YET TO BE PREPARED
6STREET LIGHTING14.00000YET TO BE PREPARED
7SECURITY AND FIRE FIGHTING10.00000YET TO BE PREPARED
8PLAYGROUNDS AND PARKS17.00000YET TO BE PREPARED
9CLUB HOUSE/COMMUNITY CENTRE0YET TO BE PREPARED
10SHOPPING AREA30.00000YET TO BE PREPARED
11RENEWABLE ENERGY SYSTEM0YET TO BE PREPARED
12SCHOOL0YET TO BE PREPARED
13HOSPITAL/DISPENSARY0YET TO BE PREPARED
14ANY OTHER0YET TO BE PREPARED
15BOUNDARY WALL GATE AND GUARD ROOM31.00000YET TO BE PREPARED
16SIGNAGE3.00000YET TO BE PREPARED


10-12-2024 (date)
10-12-2024 (date)
01-04-2025
09-12-2029
Sr. No Plot Area(In Square Meter)Number of plots in the project
1 92.881 7
2 111.388 1
3 100.800 9
4 91.994 1
5 102.240 1
6 110.885 10
7 117.810 22
8 118.620 1
9 115.920 21
10 121.030 8
11 117.249 3
12 117.810 9
13 120.848 1
14 104.346 1
15 114.724 12
Total107


TypeCarpet area(In Square Meter)Number of apartmentsNumber of towers
Apartment/Shops/Other Buildings000





Expenditure incurred till the date of application (In Lakhs)

ParticularsExpenditure
Apartments0
Shops0
Plots0

Expenditure to be made in each quarter (In Lakhs)

ParticularsExpenditure to be made in each quarter ()
Apr-JuneJuly-SepOct-DecJan-Mar




Expenditure incurred till the date of application (In Lakhs)

ParticularsExpenditure

Expenditure to be made in each quarter (In Lakhs)

ParticularsYear-2025
Jan-MarApr-JuneJuly-SepOct-Dec
Roads & Pavements2.000005.000005.000005.00000
Water Supply System2.000002.000005.000002.00000
Sewerage treatment & garbage disposal3.0000014.0000014.0000014.00000
Electricity Supply System07.000007.000007.00000
Storm Water Drainage3.000007.000006.000006.00000
Parks and Playgrounds0000
Clubhouse/community centres0000
Shopping area2.000003.000003.000002.00000
Other0000
Boundary Wall Gate and Guard Room2.000003.000003.000003.00000

ParticularsYear-2026
Jan-MarApr-JuneJuly-SepOct-Dec
Roads & Pavements5.000005.000005.000005.00000
Water Supply System2.000002.000002.000002.00000
Sewerage treatment & garbage disposal14.0000014.0000014.0000014.00000
Electricity Supply System7.000007.000007.000007.00000
Storm Water Drainage6.000006.000006.000006.00000
Parks and Playgrounds2.000002.000002.000002.00000
Clubhouse/community centres0000
Shopping area2.000002.000002.000002.00000
Other0000
Street lighting2.000002.000002.00000
Security and Fire Fighting1.000001.000001.000001.00000
Boundary Wall Gate and Guard Room2.000002.000002.000002.00000

ParticularsYear-2027
Jan-MarApr-JuneJuly-SepOct-Dec
Roads & Pavements5.000005.000005.000005.00000
Water Supply System2.000002.000002.000002.00000
Sewerage treatment & garbage disposal14.0000014.0000014.0000014.00000
Electricity Supply System7.000007.000007.000007.00000
Storm Water Drainage6.000006.000006.000006.00000
Parks and Playgrounds2.000002.000002.000001.00000
Clubhouse/community centres0000
Shopping area2.000002.000002.000002.00000
Other0000
Security and Fire Fighting1.000001.000001.000001.00000
Boundary Wall Gate and Guard Room2.000002.000002.000002.00000
Street lighting2.000001.500001.500001.50000

ParticularsYear-2028
Jan-MarApr-JuneJuly-SepOct-Dec
Roads & Pavements2.000002.00000
Water Supply System2.000000.21000
Sewerage treatment & garbage disposal14.000004.00000
Electricity Supply System7.000007.00000
Storm Water Drainage6.000006.00000
Parks and Playgrounds1.000001.00000
Clubhouse/community centres00
Shopping area2.000002.00000
Other00
Signage1.500001.50000
Security and Fire Fighting1.000001.00000
Boundary Wall Gate and Guard Room2.000002.00000
Street lighting1.50000












Yes
No
HDFC BANK
50200106631701
HDFC0000707
110240108
000707
Mr. Rajesh Kumar Dhankar S/o Ran Singh R/o The Heavan 55 Omaxe city Palwal - 121102, Haryana. And Mr. Rakesh Chand Gupta S/o Ramesh Chand Gupta R/o House Number 946, Sector – 15, Faridabad – 121007 Haryana
Attached











Yes
Yes
Yes
No
No
No
No
No
No
No


No
No
No
No
No
Yes
No
No
Statutory Approvals Statutory Approvals StatusDate
I. LICENSE ALREADY BEEN OBTAINED10-12-2024
II. LAYOUT PLANALREADY BEEN OBTAINED10-12-2024
III. DEMARCATION CUM ZONING PLANALREADY BEEN OBTAINED31-01-2025








Yes


Yes


As per HRERA ACT & RULES













SPECIFICATION OF CONSTRUCTION
Specification of apartments and other buildings including the following:
1FLOORING DETAILS OF VARIOUS PARTS OF HOUSENO
2WALL FINISHING DETAILSNO
3KITCHEN DETAILSNO
4BATHROOM FITTINGSNO
5WOOD WORK ETCNO
6DOORS AND WINDOS FRAMESNO
7GLASS WORKNO
8ELECTRIC FITTINGSNO
9CONDUCTING AND WIRING DETAILSNO
10CUPBOARD DETAILSNO
11WATER STORAGENO
12LIFT DETAILSNO
13EXTERNAL GLAZINGSNO
13.1WINDOWS/GLAZINGSNO
14DOORSNO
14.1MAIN DOORSNO
14.2INTERNAL DOORSNO
15AIR CONDITIONINGNO
16ELECTRICAL FITTINGSNO
17CNG PIPE LINENO
18PROVISION OF WIFI AND BROADBAND FACILITYNO
19EXTERNAL FINISHING/COLOUR SCHEMENO
20INTERNAL FINISHINGNO
SPECIFICATION UNIT WISE
1 . LIVING/DINING/FOYER/FAMILY LOUNGE
1 . 1 FLOORNO
1 . 2 WALLSNO
1 . 3 CEILINGNO
2 . MASTER BEDROOM/DRESSROOM
2 . 1 FLOORNO
2 . 2 WALLSNO
2 . 3 CEILINGNO
2 . 4 MODULAR WARDROBESNO
3 . MASTER TOILET
3 . 1 FLOORNO
3 . 2 WALLSNO
3 . 3 CEILINGNO
3 . 4 COUNTERSNO
3 . 5 SANITARY WARE/CP FITTINGSNO
3 . 6 FITTING/FIXTURESNO
4 . BED ROOMS
4 . 1 FLOORNO
4 . 2 WALLSNO
4 . 3 CEILINGNO
4 . 4 WARDROBESNO
5 . TOILET
5 . 1 FLOORNO
5 . 2 WALLSNO
5 . 3 CEILINGNO
5 . 4 COUNTERSNO
5 . 5 SANITARY WARE/CP FITTINGSNO
5 . 6 FIXTURESNO
6 . KITCHEN
6 . 1 FLOORNO
6 . 2 WALLSNO
6 . 3 CEILINGNO
6 . 4 COUNTERSNO
6 . 5 FIXTURESNO
6 . 6 KITCHEN APPLIANCESNO
7 . UTILITY ROOMS/UTILITY BALCONY/TOILET
7 . 1 FLOORNO
7 . 2 WALLS & CEILINGNO
7 . 3 TOILETNO
7 . 4 BALCONYNO
8 . SIT-OUTS
8 . 1 FLOORNO
8 . 2 WALLS & CEILINGNO
8 . 3 RAILINGSNO
8 . 4 FIXTURESNO












Sr. No.Document DescriptionDate of Document UploadView Document
1 CERTIFICATE FROM A CHARTERED ACCOUNTANT CERTIFYING THAT THE INFORMSTION PROVIDED BY THE APPLICANT IN FORM REP-1-C-X IS CORRECT AS PER THE BOOKS OF ACCOUNTS/ BALANCE SHEET OF THE APPLICANT 18-03-2025 View Document
2 A COMPLETE SET OF THE LAST APPROVED BUILDING PLANS 18-03-2025 View Document
3 CASH FLOW STATEMENT OF THE PROPOSED PROJECT 18-03-2025 View Document
4 DEMARCATION PLAN 18-03-2025 View Document
5 IN CASE OF PLOTTED COLONY, THE LATEST LAYOUT PLAN 18-03-2025 View Document
6 ZONING PLAN 18-03-2025 View Document
7 NON DEFAULT CERTIFICATE FROM A CHARTERED ACCOUNTANT 18-03-2025 View Document
8 DECLARATION SUPPORTED BY AFFIDAVIT DULY SIGNED BY THE PROMOTER TO BE ENCLOSED. 18-03-2025 View Document
9 SERVICE PLANS SHOWING THE SERVICES ON THE LAYOUT PLAN 18-03-2025 View Document
10 COPY OF LICENSE ALONG WITH SCHEDULE OF LAND 18-03-2025 View Document
11 IN CASE OF GROUP HOUSING/ COMMERCIAL SITES, A COPY OF THE APPROVED SITE PLAN 18-03-2025 View Document
12 DOCUMENTS RELATING TO THE ENTRY OF LICENSE AND COLLABORATION AGREEMENT IN THE REVENUE RECORD 18-03-2025 View Document












Sr. No.Document DescriptionDate of Document UploadView Document
1 BOARD RESOLUTION 19-03-2026 View Document