HRERA PanchkulaTemp Project Id : RERA-PKL-PROJ-1570-2024
Submission Date : 19-11-2024 12:36:51 PM
Applicant Type : Firm
Project Type: NEW


ADORE HOMES LLP
H. NO. A/43, F/F, FRONT SIDE SHERA MOHALLA GARHI, NEAR EAST OF KAILASH, SOUTH WEST DELHI, NEW DELHI, DELHI, INDIA, 110065
01292265143
8527179991 (Number Shared by Promoter in Public)
adorerealtech@gmail.com
AAN7547
ABNFA6498E















ADORE PRIMA
VILLAGE MIRTAZAPUR & NEEMKA, SECTOR 72 & 73 FARIDABAD
TIGAON ST
FARIDABAD
01292265143
8130999376 (Number Shared by Promoter in Public)
adorerealtech@gmail.com
DILSHAD
01292265143
8130999376 (Number Shared by Promoter in Public)
adorerealtech@gmail.com








As per sub-rule(2) of rule 3 of the Haryana Real Estate (Regulation and Development) Rules,2017, the fee for registration of the project as has been calculated as follows:
-----------------------------------------------------------------------------------------------------------------------
-----------------------------------------------------------------------------------------------------------------------
-----------------------------------------------------------------------------------------------------------------------
-----------------------------------------------------------------------------------------------------------------------
2. The aforesaid fees is hereby deposited vide following Drafts/ Banker’s Cheques:-

Sr No.Draft/Cheque No.Draft DateAmountPayee BankPayable To
12666727-03-20241167000.00IDBI BANKHRERA Panchkula







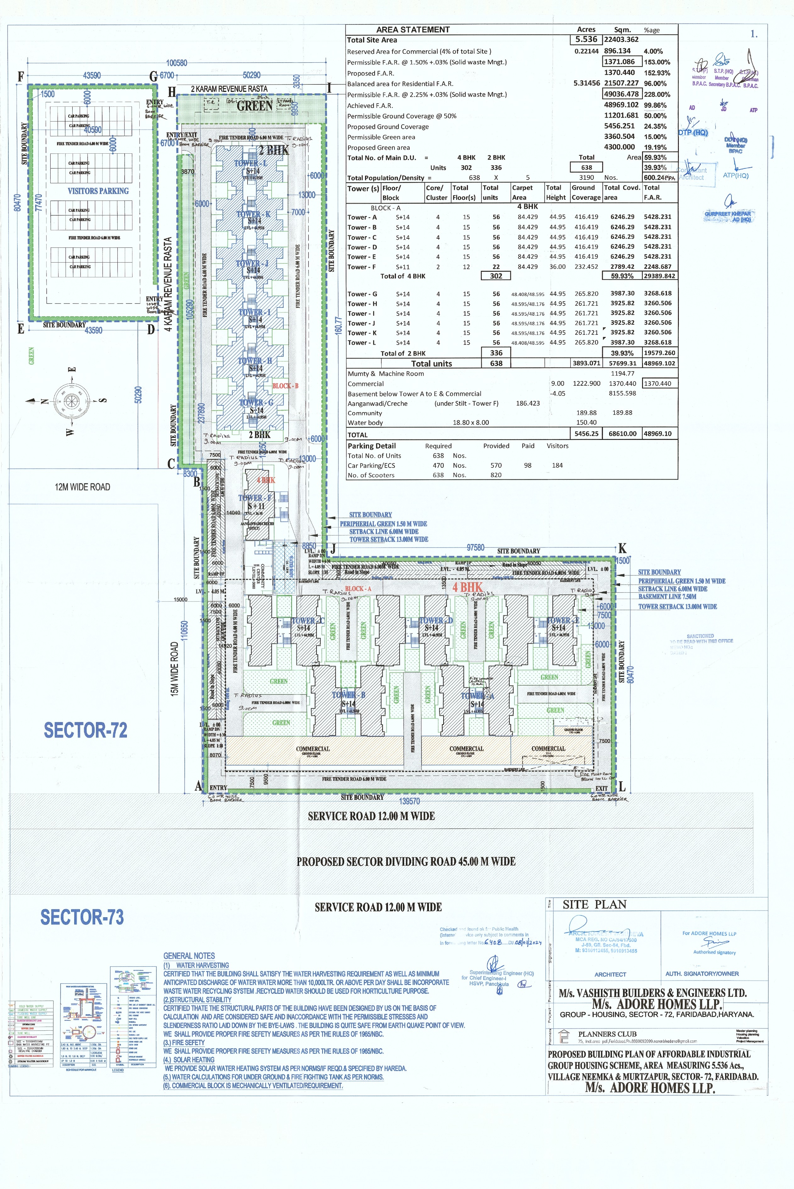
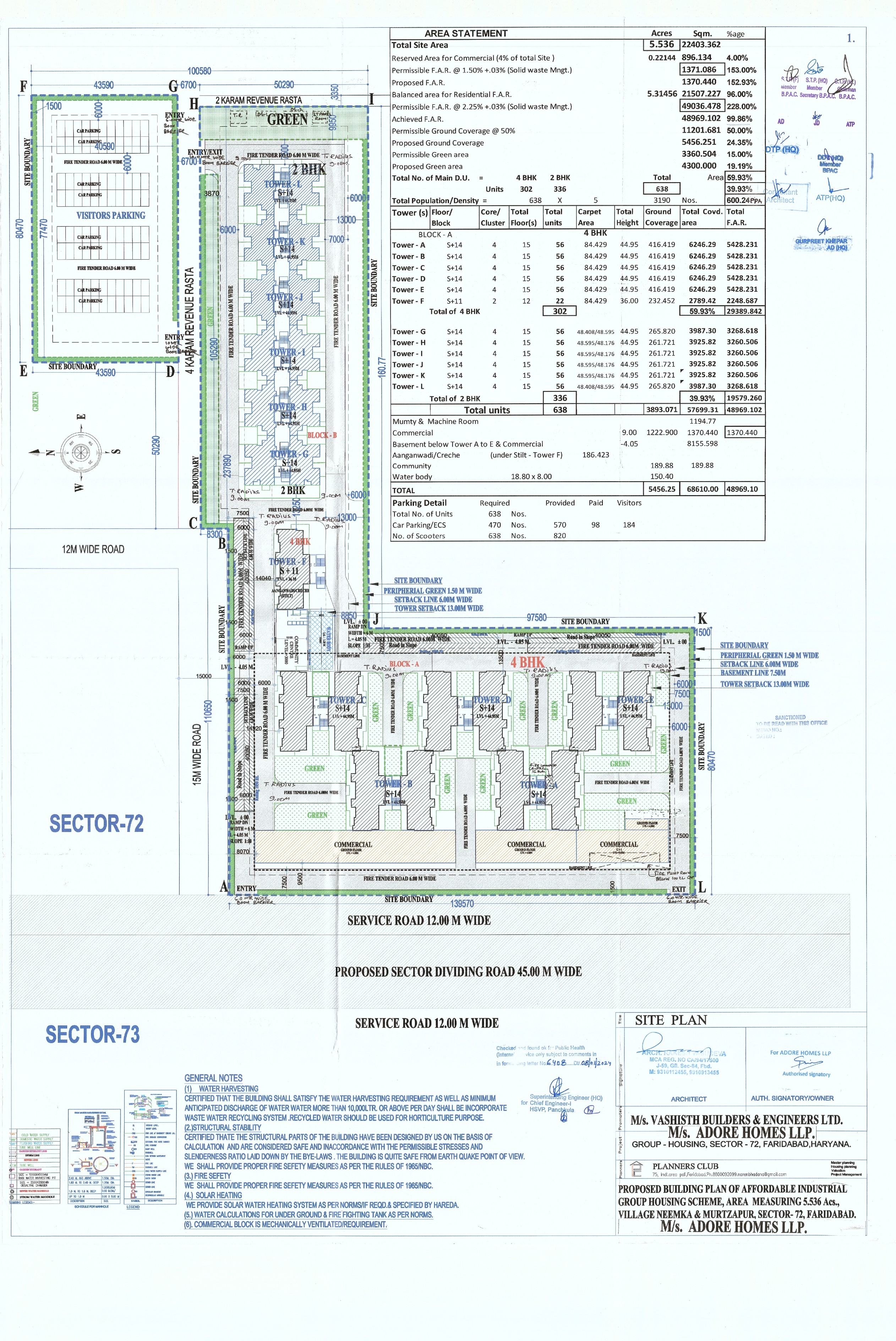
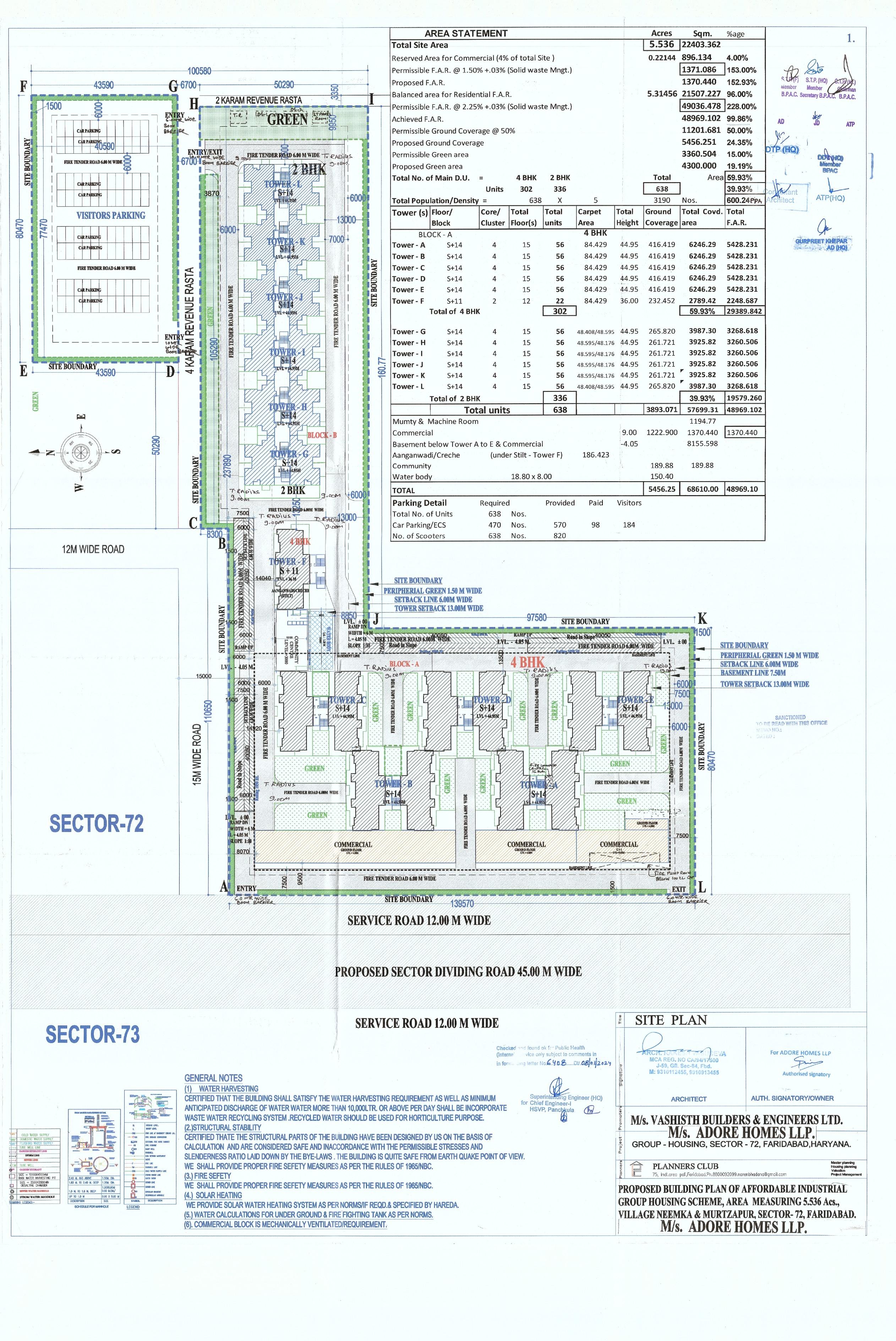
5.536 (Acre)
228
227.68
55.919 (Acre)
LICENSE NO.4 dated 14.01.2018, valid upto 13.01.2028 LICENSE NO.176 dated 01.09.2023, valid upto 31.08.2028 LICENSE NO.78 dated 10.07.2024, valid upto 09.07.2029
No
Address     D-84,2ND FLOOR OKHLA INDUSTRIAL AREA-PHASE-1,DELHI-110020
Address     D-84,2ND FLOOR OKHLA INDUSTRIAL AREA-PHASE-1,DELHI-110020
Address     A-11,1ST FLOOR,DDA SHADE,OKHLA PHASE-1, NEW DELHI-110020
Address     SCF-41, GROUND FLOOR, SECTOR-15, FARIDABAD 121007
Annexure-B- ANNEXURE-A- BY VIRTUE OF CHANGE OF DEVELOPER PERMISSION GRANTED BY DTCP
ANNEXURE- B- BY VIRTUE OF REGISTERED TRANSFER OF DEVELOPMENT AGREEMENT AND REGISTERED POA
Yes
DEVELOPMENT AND MARKETING RIGHTS TRANSFERRED IN LIEU OF FIXED CONSIDERATION AND ENTIRE OBLIGATION OF DTCP AND RERA TO BE FULFILLED BY NEW DEVELOPER( M/S ADORE HOMES LLP.)
No
Yes
Yes







18650.00 Lakhs
3900.00 Lakhs
10560.00 Lakhs
1240.00 Lakhs
2950.00 Lakhs




Sr. No.Land area under usageArea of land (Acres)
1PLOTS TO BE SOLD 0
2LAND AREA TO BE USED FOR CONSTRUCTION OF APARTMENTS 1.26
3CONSTRUCTION OF ROADS 2.38
4PAVEMENTS 0.10
5PARKS AND PLAYGROUNDS 1.08
6GREEN BELTS 0
7VEHICLE PARKINGS 0.42
8ELECTRICITY SUB-STATION 0
9CLUB HOUSE 0.06
10SEWAGE AND SOLID WASTE TREATMENT FACILITY 0.06
11AREA TO BE LEFT FOR TRANSFERRING TO THE GOVERNMENT FOR COMMUNITY SERVICES 0
12ANY OTHER 0.176
Total5.536




FacilityExternal/ connecting service to be provided by (Name the agency)Whether Approval taken from the agency concerned. Yes/No (Annex details in folder C)
ROADSFMDANo
WATER SUPPLYFMDANo
ELECTRICITYDHBVNNo
SEWAGE DISPOSALFMDANo
STORM WATER DRAINAGEFMDANo




Sr. No.Name of the facilityEstimated cost (In Lakhs)(Within the project area only)Remarks: Yet to be prepared / Submitted to HUDA, Town & Country Planning Department/ as per project report etc. (Annex relevant documents showing costing details etc. in folder C)
1INTERNAL ROADS AND PAVEMENTS248AS PER PROJECT REPORT
2WATER SUPPLY SYSTEM155AS PER PROJECT REPORT
3STORM WATER DRAINAGE124AS PER PROJECT REPORT
4ELECTRICITY SUPPLY SYSTEM186AS PER PROJECT REPORT
5SEWAGE TREATMENT & GARBAGE DISPOSAL186AS PER PROJECT REPORT
6STREET LIGHTING100AS PER PROJECT REPORT
7SECURITY AND FIRE FIGHTING100AS PER PROJECT REPORT
8PLAYGROUNDS AND PARKS100AS PER PROJECT REPORT
9CLUB HOUSE/COMMUNITY CENTRE0AS PER PROJECT REPORT
10SHOPPING AREA0AS PER PROJECT REPORT
11RENEWABLE ENERGY SYSTEM0AS PER PROJECT REPORT
12SCHOOL0AS PER PROJECT REPORT
13HOSPITAL/DISPENSARY0AS PER PROJECT REPORT
14ANY OTHER41AS PER PROJECT REPORT


04-10-2023 (date)
18-03-2024 (date)
01-02-2025
31-01-2029
Sr. No Plot Area(In Square Meter)Number of plots in the project
1 0 0
Total0


TypeCarpet area(In Square Meter)Number of apartmentsNumber of towers
Apartment/Shops/Other Buildings84.4293026
Apartment/Shops/Other Buildings48.5952244
Apartment/Shops/Other Buildings48.4081122





Expenditure incurred till the date of application (In Lakhs)

ParticularsExpenditure
Apartments0
Shops0
Plots0

Expenditure to be made in each quarter (In Lakhs)

ParticularsYear-2024
Jan-MarApr-JuneJuly-SepOct-Dec
Apartments0
Shops0
Plots0

ParticularsYear-2025
Jan-MarApr-JuneJuly-SepOct-Dec
Apartments660.00660.00660.00660.00
Shops0000
Plots0000

ParticularsYear-2026
Jan-MarApr-JuneJuly-SepOct-Dec
Apartments660660660660
Shops0000
Plots0000

ParticularsYear-2027
Jan-MarApr-JuneJuly-SepOct-Dec
Apartments660.00660.00660.00660
Shops0000
Plots0000

ParticularsYear-2028
Jan-MarApr-JuneJuly-SepOct-Dec
Apartments660660660660
Shops0000
Plots0000




Expenditure incurred till the date of application (In Lakhs)

ParticularsExpenditure
Roads & Pavements0
Water Supply System0
Sewerage treatment & garbage disposal0
Electricity Supply System0
Storm Water Drainage0
Parks and Playgrounds0
Clubhouse/community centres0
Shopping area0
Other0

Expenditure to be made in each quarter (In Lakhs)

ParticularsYear-2025
Jan-MarApr-JuneJuly-SepOct-Dec
Roads & Pavements15.515.515.515.5
Water Supply System9.59.79.79.70
Sewerage treatment & garbage disposal10.511.711.711.70
Electricity Supply System10.511.711.711.70
Storm Water Drainage7.757.757.757.75
Parks and Playgrounds6.256.256.256.25
Clubhouse/community centres0000
Shopping area0000
Other16151515

ParticularsYear-2026
Jan-MarApr-JuneJuly-SepOct-Dec
Roads & Pavements15.515.515.515.5
Water Supply System9.79.709.79.70
Sewerage treatment & garbage disposal11.711.711.711.7
Electricity Supply System11.711.711.711.7
Storm Water Drainage7.757.757.757.75
Parks and Playgrounds6.256.256.256.25
Clubhouse/community centres0000
Shopping area0000
Other15151515.00

ParticularsYear-2027
Jan-MarApr-JuneJuly-SepOct-Dec
Roads & Pavements15.515.515.515.5
Water Supply System9.79.79.79.7
Sewerage treatment & garbage disposal11.711.711.711.7
Electricity Supply System11.711.711.711.7
Storm Water Drainage7.757.757.757.75
Parks and Playgrounds6.256.256.256.25
Clubhouse/community centres0000
Shopping area0000
Other15151515

ParticularsYear-2028
Jan-MarApr-JuneJuly-SepOct-Dec
Roads & Pavements15.515.515.515.5
Water Supply System9.79.79.79.7
Sewerage treatment & garbage disposal11.711.711.711.7
Electricity Supply System11.711.711.711.7
Storm Water Drainage7.757.757.757.75
Parks and Playgrounds6.256.256.256.25
Clubhouse/community centres0000
Shopping area0000
Other15151515












Yes
No
ICICI BANK SECTOR -35, FARIDABAD
777705160489
ICICI0000857
110229091
000857
MR. JETAISH KUMAR GUPTA R/O 247, SECTOR 28, FARIDABAD & MR KAPTAN SINGH R/O64, VILLAGE BHUDENA, SECTOR 86, FARIDABAD
YES











Yes
Yes
Yes
Yes
Yes
Yes
Yes
Yes
Yes
Yes


No
No
No
No
No
No
No
No
Statutory Approvals Statutory Approvals StatusDate
I. LICENSE NO. 04 OF 2018ALREADY BEEN OBTAINED14-01-2018
II. LICENSE NO. 176 OF 2023ALREADY BEEN OBTAINED01-09-2023








Yes


Yes


IMPORTANT PROVISION OF RERA HAVE BEEN INCORPORATED IN THE DRAFT AGGREEMENTS













SPECIFICATION OF CONSTRUCTION
Specification of apartments and other buildings including the following:
1FLOORING DETAILS OF VARIOUS PARTS OF HOUSEVITRIFIED TILES 2FT*2FT
2WALL FINISHING DETAILSOIL BOUND DISTEMPER (OBD)
3KITCHEN DETAILSCOUNTER TOP– GRANITE, TILE UP TO 2 FT. HEIGHT ABOVE COUNTER
4BATHROOM FITTINGSCPVC PIPES WITH FITTING (ISI MARKED), 1FT*1FT ANTI SKID TILE ON FLOOR
5WOOD WORK ETCNA
6DOORS AND WINDOS FRAMESEXTERNAL UPVC DOORS & WINDOWS
7GLASS WORK5 MM PLAIN GLASS ISI MARKED
8ELECTRIC FITTINGSISI MARKED
9CONDUCTING AND WIRING DETAILSISI MARKED
10CUPBOARD DETAILSNA
11WATER STORAGEWATER TREATMENT PLANT
12LIFT DETAILS2 LIFT IN EACH TOWER
13EXTERNAL GLAZINGSNA
13.1WINDOWS/GLAZINGSNA
14DOORSAS MENTIONED BELOW
14.1MAIN DOORSPRESS STEEL PAINTED WITH FLAT ENAMEL PAINT
14.2INTERNAL DOORSFLUSH DOOR PAINTED WITH FLAT ENAMEL PAINT
15AIR CONDITIONINGNA
16ELECTRICAL FITTINGSISI MARKED
17CNG PIPE LINENA
18PROVISION OF WIFI AND BROADBAND FACILITYNA
19EXTERNAL FINISHING/COLOUR SCHEMEPLAIN TEXTURE PAINT
20INTERNAL FINISHINGOIL BOUND DISTEMPER (OBD)
SPECIFICATION UNIT WISE
1 . LIVING/DINING/FOYER/FAMILY LOUNGE
1 . 1 FLOORVITRIFIED TILES 2FT*2FT
1 . 2 WALLSOIL BOUND DISTEMPER (OBD)
1 . 3 CEILINGOIL BOUND DISTEMPER (OBD)
2 . MASTER BEDROOM/DRESSROOM
2 . 1 FLOORVITRIFIED TILES 2FT*2FT
2 . 2 WALLSOIL BOUND DISTEMPER (OBD)
2 . 3 CEILINGOIL BOUND DISTEMPER (OBD)
2 . 4 MODULAR WARDROBESNA
3 . MASTER TOILET
3 . 1 FLOORVITRIFIED TILES 2FT*2FT
3 . 2 WALLSOIL BOUND DISTEMPER (OBD)
3 . 3 CEILINGOIL BOUND DISTEMPER (OBD)
3 . 4 COUNTERSNA
3 . 5 SANITARY WARE/CP FITTINGSISI MARKED
3 . 6 FITTING/FIXTURESISI MARKED
4 . BED ROOMS
4 . 1 FLOORVITRIFIED TILES
4 . 2 WALLSOIL BOUND DISTEMPER (OBD)
4 . 3 CEILINGOIL BOUND DISTEMPER (OBD)
4 . 4 WARDROBESNA
5 . TOILET
5 . 1 FLOORANTI SKID TILES 1FT*1FT
5 . 2 WALLSWALL TILES
5 . 3 CEILINGOIL BOUND DISTEMPER (OBD)
5 . 4 COUNTERSNA
5 . 5 SANITARY WARE/CP FITTINGSISI MARKED
5 . 6 FIXTURESISI MARKED
6 . KITCHEN
6 . 1 FLOORVITRIFIED TILES 2FT*2FT
6 . 2 WALLSTILES UPTO 2FT HEIGHT ABOVE KITCHEN TOP & OIL BOUND DISTEMPER
6 . 3 CEILINGOIL BOUND DISTEMPER (OBD)
6 . 4 COUNTERSCOUNTER TOP GRANITE
6 . 5 FIXTURESISI MARKED
6 . 6 KITCHEN APPLIANCESNA
7 . UTILITY ROOMS/UTILITY BALCONY/TOILET
7 . 1 FLOORANTI SKID TILES 1 FT * 1FT
7 . 2 WALLS & CEILINGPLAIN TEXURE
7 . 3 TOILETNA
7 . 4 BALCONYANTI SKID TILES
8 . SIT-OUTS
8 . 1 FLOORNA
8 . 2 WALLS & CEILINGNA
8 . 3 RAILINGSNA
8 . 4 FIXTURESNA












Sr. No.Document DescriptionDate of Document UploadView Document
1 NON DEFAULT CERTIFICATE FROM A CHARTERED ACCOUNTANT 19-11-2024 View Document
2 COPY OF LICENSE ALONG WITH SCHEDULE OF LAND 19-11-2024 View Document
3 ZONING PLAN 19-11-2024 View Document
4 IN CASE OF GROUP HOUSING/ COMMERCIAL SITES, A COPY OF THE APPROVED SITE PLAN 19-11-2024 View Document
5 A COMPLETE SET OF THE LAST APPROVED BUILDING PLANS 19-11-2024 View Document
6 CASH FLOW STATEMENT OF THE PROPOSED PROJECT 19-11-2024 View Document
7 CERTIFICATE FROM A CHARTERED ACCOUNTANT CERTIFYING THAT THE INFORMSTION PROVIDED BY THE APPLICANT IN FORM REP-1-C-X IS CORRECT AS PER THE BOOKS OF ACCOUNTS/ BALANCE SHEET OF THE APPLICANT 19-11-2024 View Document
8 DECLARATION SUPPORTED BY AFFIDAVIT DULY SIGNED BY THE PROMOTER TO BE ENCLOSED. 19-11-2024 View Document
9 IN CASE OF PLOTTED COLONY, THE LATEST LAYOUT PLAN 19-11-2024 View Document