HRERA GurugramTemp Project Id : RERA-GRG-PROJ-103-2018
Submission Date : 13-11-2018 02:07:23 AM
Applicant Type : Company
Project Type: ONGOING




PARSVNATH HESSA DEVELOPERS PVT LTD
PARSVNATH TOWER NEAR SHAHDARA METRO STATION SHAHDARA DELHI 110032
01143050100
9205809569 (Number Shared by Promoter in Public)
rera@parsvnath.com
http://www.parsvnath.com
XXXX088D
U45400DL2007PTC166177
 
 


 
 


 
 


 
 


 
 


 
 







PARSVNATH EXOTICA (B5, B6 & EWS)
POCKET B SECTOR-53
GURGAON
GURUGRAM
0000000000
9205809569 (Number Shared by Promoter in Public)
rera@parsvnath.com
MR AVNEESH KUMAR
0000000000
9205809569 (Number Shared by Promoter in Public)
rera@parsvnath.com








As per sub-rule(2) of rule 3 of the Haryana Real Estate (Regulation and Development) Rules,2017, the fee for registration of the project as has been calculated as follows:
-----------------------------------------------------------------------------------------------------------------------
-----------------------------------------------------------------------------------------------------------------------
-----------------------------------------------------------------------------------------------------------------------
-----------------------------------------------------------------------------------------------------------------------
2. The aforesaid fees is hereby deposited vide following Drafts/ Banker’s Cheques:-

Sr No.Draft/Cheque No.Draft DateAmountPayee BankPayable To
11944231-07-2017185000AXIS BANK HRERA Gurugram
21944331-07-2017160000AXIS BANK HRERA Gurugram
32513502-06-2018235780AXIS BANK HRERA Gurugram







4.686 (Acre)
1.75
1.75
48.922 (Acre)
69-74 of 1996 (02-05-2019),52-57 of 1997(13-11-2019),1079-1080 of 2006(01-09-2019),191 of 2007(19-06-2019)
No
Address     NATURE VILLE, W82/A, GREATER KAILASH PART-II, NEW DELHI-110048
Annexure-B- FULLY PAID-UP COLLABORATION AGREEMENT. DETAILS AS PER ATTACHED AGREEMENT’S
DETAILS AS PER ATTACHED AGREEMENT’S
No
DETAILS AS PER ATTACHED AGREEMENT’S
No
Yes
Yes







16821 Lakhs
11008 Lakhs
5620 Lakhs
193 Lakhs
0 Lakhs




Sr. No.Land area under usageArea of land (Square Meters)
1PLOTS TO BE SOLD 0
2LAND AREA TO BE USED FOR CONSTRUCTION OF APARTMENTS 2282
3CONSTRUCTION OF ROADS 1856
4PAVEMENTS 0
5PARKS AND PLAYGROUNDS 1400
6GREEN BELTS 2394
7VEHICLE PARKINGS 0
8ELECTRICITY SUB-STATION 0
9CLUB HOUSE 0
10SEWAGE AND SOLID WASTE TREATMENT FACILITY 0
11AREA TO BE LEFT FOR TRANSFERRING TO THE GOVERNMENT FOR COMMUNITY SERVICES 0
12ANY OTHER 10451
13SHOPPING 580
Total18963




FacilityExternal/ connecting service to be provided by (Name the agency)Whether Approval taken from the agency concerned. Yes/No (Annex details in folder C)
ROADSHUDAYes
WATER SUPPLYHUDAYes
ELECTRICITYDHBVNYes
SEWAGE DISPOSALHUDAYes
STORM WATER DRAINAGEHUDAYes




Sr. No.Name of the facilityEstimated cost (In Lakhs)(Within the project area only)Remarks: Yet to be prepared / Submitted to HUDA, Town & Country Planning Department/ as per project report etc. (Annex relevant documents showing costing details etc. in folder C)
1INTERNAL ROADS AND PAVEMENTS26.78AS PER PROJECT REPORT
2WATER SUPPLY SYSTEM40.566AS PER PROJECT REPORT
3STORM WATER DRAINAGE25.77AS PER PROJECT REPORT
4ELECTRICITY SUPPLY SYSTEM75.94AS PER PROJECT REPORT
5SEWAGE TREATMENT & GARBAGE DISPOSAL3.57AS PER PROJECT REPORT
6STREET LIGHTING7.82AS PER PROJECT REPORT
7SECURITY AND FIRE FIGHTING2AS PER PROJECT REPORT
8PLAYGROUNDS AND PARKS5.47AS PER PROJECT REPORT
9CLUB HOUSE/COMMUNITY CENTRE0AS PER PROJECT REPORT
10SHOPPING AREA0AS PER PROJECT REPORT
11RENEWABLE ENERGY SYSTEM5AS PER PROJECT REPORT
12SCHOOL0AS PER PROJECT REPORT
13HOSPITAL/DISPENSARY0AS PER PROJECT REPORT
14ANY OTHER0AS PER PROJECT REPORT


10-04-2009 (date)
10-04-2009 (date)


Sr. No.Plot/ apartment type Size of the plot/carpet area of the apartments Total number of plots/apartments in the project Total size of the plots/carpet area of the apartments Plots/apartments booked/ sold upto the date of application Yet to be sold/ booked No. of towers to be/ being constructed for booked apartments
1 APARTMENT/SHOPS/OTHER BUILDINGS Type TYPE 1 (B5) 2306 1 2306 1 0 1
2 APARTMENT/SHOPS/OTHER BUILDINGS Type TYPE 2 (B5) 2222 24 53328 34 0 1
3 APARTMENT/SHOPS/OTHER BUILDINGS Type TYPE 3 (B5) 4086 2 8172 2 0 1
4 APARTMENT/SHOPS/OTHER BUILDINGS Type TYPE 4 (B5) 3923 1 3923 1 0 1
5 APARTMENT/SHOPS/OTHER BUILDINGS Type TYPE 1 (B6) 2720 1 2720 1 0 1
6 APARTMENT/SHOPS/OTHER BUILDINGS Type TYPE 2 (B6) 2294 40 91760 40 0 1
7 APARTMENT/SHOPS/OTHER BUILDINGS Type TYPE 3 (B6) 4097 1 4097 1 0 1
8 APARTMENT/SHOPS/OTHER BUILDINGS Type TYPE 4 (B6) 3931 1 3931 1 0 1
9 APARTMENT/SHOPS/OTHER BUILDINGS Type TYPE 5 (B6) 4087 1 4087 1 0 1
10 APARTMENT/SHOPS/OTHER BUILDINGS Type TYPE 5 (B5) 2274 10 22740 10 0 1
11 APARTMENT/SHOPS/OTHER BUILDINGS Type EWS 0 0 0 0 0 1
Total8219706492011






TypeNumber of apartments booked/ sold Write or Annex the stage of construction of the booked/ sold apartments in folder C
B538DETAILS ATTACHED
B644DETAILS ATTACHED


01-02-2010
30-09-2013
31-12-2019
01-02-2010
83
31-12-2019
DETAILS ATTACHED
DETAILS ATTACHED


PlotsBooked/soldStage of handing over the possession (Write or Annex details)
PLOT00
01-02-2010
83
31-12-2019
DETAILS ATTACHED
DETAILS ATTACHED


0
0
164
0
0





Expenditure incurred till the date of application (In Lakhs)

ParticularsExpenditure
Apartments3164
Shops0
Plots0

Expenditure to be made in each quarter (In Lakhs)

ParticularsYear-2018
Jan-MarApr-JuneJuly-SepOct-Dec
Apartments0
Shops0
Plots0




Expenditure incurred till the date of application (In Lakhs)

ParticularsExpenditure
Roads & Pavements19.05
Water Supply System15.22
Sewerage treatment & garbage disposal2.05
Electricity Supply System14.11
Storm Water Drainage10.42
Parks and Playgrounds0
Clubhouse/community centres0
Shopping area0
Other0

Expenditure to be made in each quarter (In Lakhs)

ParticularsExpenditure to be made in each quarter (2018)
Apr-JuneJuly-SepOct-DecJan-Mar












Particulars Remarks, if any
i. No. of Flats/Apartments constructed24282 (Appartments), 160 (EWS)
ii. No. of Flats/ Apartments booked24282 (Appartments), 160 (EWS)
iii. Total amount sale value of booked Flats, on the date of application/end of last quarter21588 Lakhs
iv. Total amount received from the allottees (booked Flats), on the date of application/end of last quarter16974 Lakhs
v. Balance amount to be received from the allottees (booked Flats, after completion), on the date of application/end of last quarter4614 Lakhs
vi. Balance amount due and recoverable from the allottees (booked Flats) as on the date of application /end of last quarter874 Lakhs
vii. Amount invested in the project upto the date of application14233 Lakhs
Land cost (If any)11008 Lakhs
Apartments3164 Lakhs
Infrastructure60.84 Lakhs
EDC/ Taxes Etc.0 Lakhs
viii. Balance cost to be incurred for completion of the project and delivery of possession2588 Lakhs
(a) In respect of existing allottees2588 Lakhs
(b) In respect of rest of the project0 Lakhs
ix. The amount of loan raised from the banks/ financial institutions/ private persons against the project
Annex detail of the securities furnished to the banks/ financial institutions against the aforesaid loans in folder C
0 Lakhs
x. Total liabilities against the project up-to-date. (Annex details in folder C) 0 Lakhs



Particulars Estimated expenditure planned to be incurred as per service plan estimates or the project report. (In Lakhs)Actual expenditure incurred upto the date of application. (In Lakhs)
I. INTERNAL ROADS AND PAVEMENTS26.7819.05
II. WATER SUPPLY SYSTEM40.5615.22
III. STORM WATER DRAINAGE25.7710.42
IV. ELECTRICITY SUPPLY SYSTEM80.9414.11
V. SEWAGE TREATMENT & GARBAGE DISPOSAL3.572.05
VI. CLUB HOUSE/COMMUNITY CENTRE00
VII. SCHOOL00
VIII. ANY OTHER00
IX. SOLID WASTE COLLECTION & MGMT SYSTEM00
X. CLUBHOUSE00
XI. NEIGHBOURHOOD SHOPPING00
XII. GREEN AREAS,PARKS,PLAYGROUNDS ETC.5.470
XIII. COVERED PARKING00
XIV. OPEN PARKING00
XV. GARAGES00
XVI. SECURITY SYSTEM20
XVII. OTHER FACILITIES AS PER PROJECT REPORT00









Yes
Yes
SYNDICATE BANK ARUNACHAL BUILDING BARAKHAMBA ROAD NEW DELHI
90361010016662
SYNB0009036
110025004
9036
Mr. Pradeep Kumar Jain & Mr. Sanjeev Kumar Jain, Parsvnath Tower Near Shahdara Metro Station Shahdara DELHI 110032
Nil











No
Yes
Yes
Yes
Yes
Yes
Yes
Yes
Yes
Yes


Yes
Yes
Yes
Yes
Yes
No
No
Yes
Yes
Yes
Statutory Approvals Statutory Approvals StatusDate
I. AIRPORT HEIGHT CLEARANCE NOC ALREADY BEEN OBTAINED12-08-2015
II. ELECTRICAL LOAD CONNECTIONALREADY BEEN OBTAINED29-02-2008
III. ENVIRONMENTAL CLEARANCEALREADY BEEN OBTAINED05-12-2006
IV. CONSENT TO ESTABLISH ALREADY BEEN OBTAINED10-02-2006
V. CONSENT TO OPERATE ALREADY BEEN OBTAINED31-03-2013
VI. FOREST NOCALREADY BEEN OBTAINED05-05-2015
VII. FIRE SCHEME APPROVAL ALREADY BEEN OBTAINED17-11-2011
VIII. SERVICES ESTIMATES ALREADY BEEN OBTAINED15-01-2018








Yes


Yes


Our draft agreement Based on the Provided under HRERA Rules







PARSVNATH AAKANKSHA FLOOR JODHPUR (RAJASTHAN)
7106
170
0
154
0
Initially estimated cost (In Lakhs)Revised cost (In Lakhs)Expenditure incurred upto the date of application (In Lakhs)
Total cost of the project
(Other than cost of land)
201620161214
Cost of the apartments201620161214
Cost of the infrastructure000
Others costs20205


2486.51 Lakhs
710 Lakhs
0 Lakhs
0 Lakhs
Yes
30-11-2018
30-06-2019




PARSVNATH PLANET PLAZA CUM OFFICE LUCKNOW
38401
142
0
137
0
Initially estimated cost (In Lakhs)Revised cost (In Lakhs)Expenditure incurred upto the date of application (In Lakhs)
Total cost of the project
(Other than cost of land)
353735372930
Cost of the apartments333733372800
Cost of the infrastructure200200130
Others costs404022


4214 Lakhs
740 Lakhs
0 Lakhs
0 Lakhs
Yes
30-11-2015
30-04-2019










SPECIFICATION OF CONSTRUCTION
Specification of apartments and other buildings including the following:
1FLOORING DETAILS OF VARIOUS PARTS OF HOUSELIVING ROOM – MARBLE/STONE FLOORING BED ROOMS WOODEN FLOORING
2WALL FINISHING DETAILSOBD/ENAMEL
3KITCHEN DETAILSMODULAR KITCHEN
4BATHROOM FITTINGSCP WITH ISI MARK
5WOOD WORK ETCNA
6DOORS AND WINDOS FRAMESWOODEN –MIRANDI WOOD
7GLASS WORK6 MM GLASS AS PER DESIGN
8ELECTRIC FITTINGSISI MARKED
9CONDUCTING AND WIRING DETAILSISI MARKED
10CUPBOARD DETAILSNA
11WATER STORAGEOHT
12LIFT DETAILSKONE – 2 NOS – 8 PERSONS /15 PERSONS
13EXTERNAL GLAZINGSWINDOWS – 6 MM GLASS ON ALUMINIUM FRAME AS PER DESIGN
13.1WINDOWS/GLAZINGSWINDOWS – 6 MM GLASS ON ALUMINIUM FRAME AS PER DESIGN
14DOORS40 MM FLUSH
14.1MAIN DOORS40 MM FLUSH
14.2INTERNAL DOORS40 MM FLUSH
15AIR CONDITIONINGSPLIT AIR CONDITIONING 1.5 TON\ 2 TON
16ELECTRICAL FITTINGSISI MARKED
17CNG PIPE LINEIN KITCHEN
18PROVISION OF WIFI AND BROADBAND FACILITYNA
19EXTERNAL FINISHING/COLOUR SCHEMETEXTURE PAINT
20INTERNAL FINISHINGPOP CORNICE
SPECIFICATION UNIT WISE
1 . LIVING/DINING/FOYER/FAMILY LOUNGE
1 . 1 FLOORMARBLE/STONE FLOORING
1 . 2 WALLSOBD/ENAMEL
1 . 3 CEILINGOBD/ENAMEL
2 . MASTER BEDROOM/DRESSROOM
2 . 1 FLOORWOODEN FLOORING
2 . 2 WALLSOBD/ENAMEL
2 . 3 CEILINGOBD/ENAMEL
2 . 4 MODULAR WARDROBESNA
3 . MASTER TOILET
3 . 1 FLOORCOMBINATION OF VITRIFIED/CERAMIC/STONE
3 . 2 WALLSCOMBINATION OF VITRIFIED/CERAMIC/STONE
3 . 3 CEILINGFALL CEILING
3 . 4 COUNTERSSTONE TOPING
3 . 5 SANITARY WARE/CP FITTINGSISI MARK
3 . 6 FITTING/FIXTURESISI MARK
4 . BED ROOMS
4 . 1 FLOORWOODEN FLOORING
4 . 2 WALLSOBD/ENAMEL
4 . 3 CEILINGOBD/ENAMEL
4 . 4 WARDROBESNA
5 . TOILET
5 . 1 FLOORCOMBINATION OF VITRIFIED/CERAMIC/STONE
5 . 2 WALLSCOMBINATION OF VITRIFIED/CERAMIC/STONE
5 . 3 CEILINGFALL CEILING
5 . 4 COUNTERSSTONE TOPING
5 . 5 SANITARY WARE/CP FITTINGSISI MARK
5 . 6 FIXTURESISI MARK
6 . KITCHEN
6 . 1 FLOORVITRIFIED TILES
6 . 2 WALLSCERAMIC TILES AS PER DESIGN
6 . 3 CEILINGOBD/ENAMEL
6 . 4 COUNTERSSTONE TOPING
6 . 5 FIXTURESISI MARK
6 . 6 KITCHEN APPLIANCESNA
7 . UTILITY ROOMS/UTILITY BALCONY/TOILET
7 . 1 FLOORNA
7 . 2 WALLS & CEILINGNA
7 . 3 TOILETNA
7 . 4 BALCONYNA
8 . SIT-OUTS
8 . 1 FLOORNA
8 . 2 WALLS & CEILINGNA
8 . 3 RAILINGSNA
8 . 4 FIXTURESNA












Sr. No.Document DescriptionDate of Document UploadView Document
1 NON DEFAULT CERTIFICATE FROM A CHARTERED ACCOUNTANT 09-11-2018 View Document
2 CASH FLOW STATEMENT OF THE PROPOSED PROJECT 10-11-2018 View Document
3 CERTIFICATE FROM A CHARTERED ACCOUNTANT CERTIFYING THAT THE INFORMSTION PROVIDED BY THE APPLICANT IN FORM REP-1-C-X IS CORRECT AS PER THE BOOKS OF ACCOUNTS/ BALANCE SHEET OF THE APPLICANT 10-11-2018 View Document
4 COPY OF LICENSE ALONG WITH SCHEDULE OF LAND 10-11-2018 View Document
5 DOCUMENTS RELATING TO THE ENTRY OF LICENSE AND COLLABORATION AGREEMENT IN THE REVENUE RECORD 10-11-2018 View Document
6 DEMARCATION PLAN 10-11-2018 View Document
7 ZONING PLAN 10-11-2018 View Document
8 A COMPLETE SET OF THE LAST APPROVED BUILDING PLANS 10-11-2018 View Document
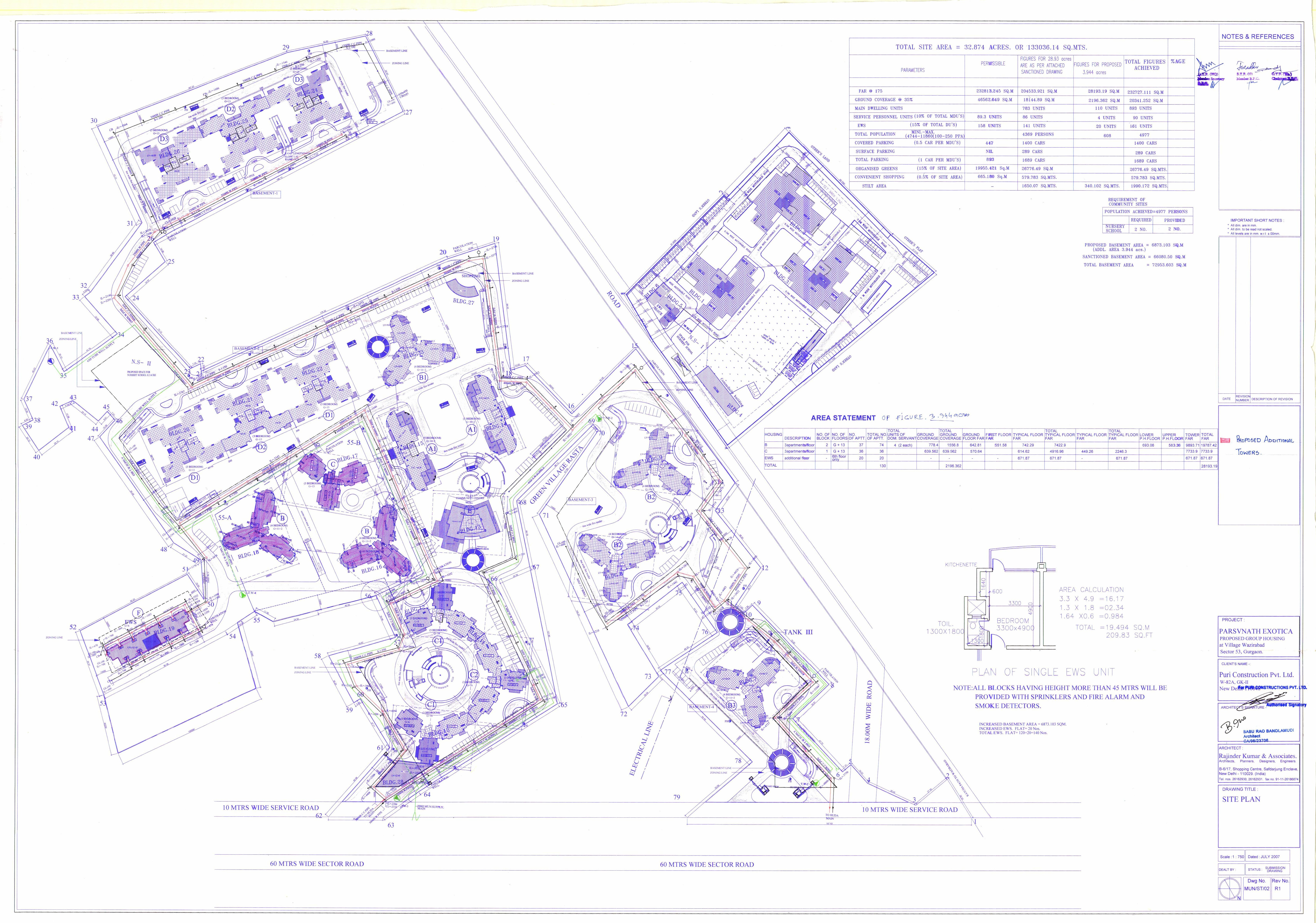
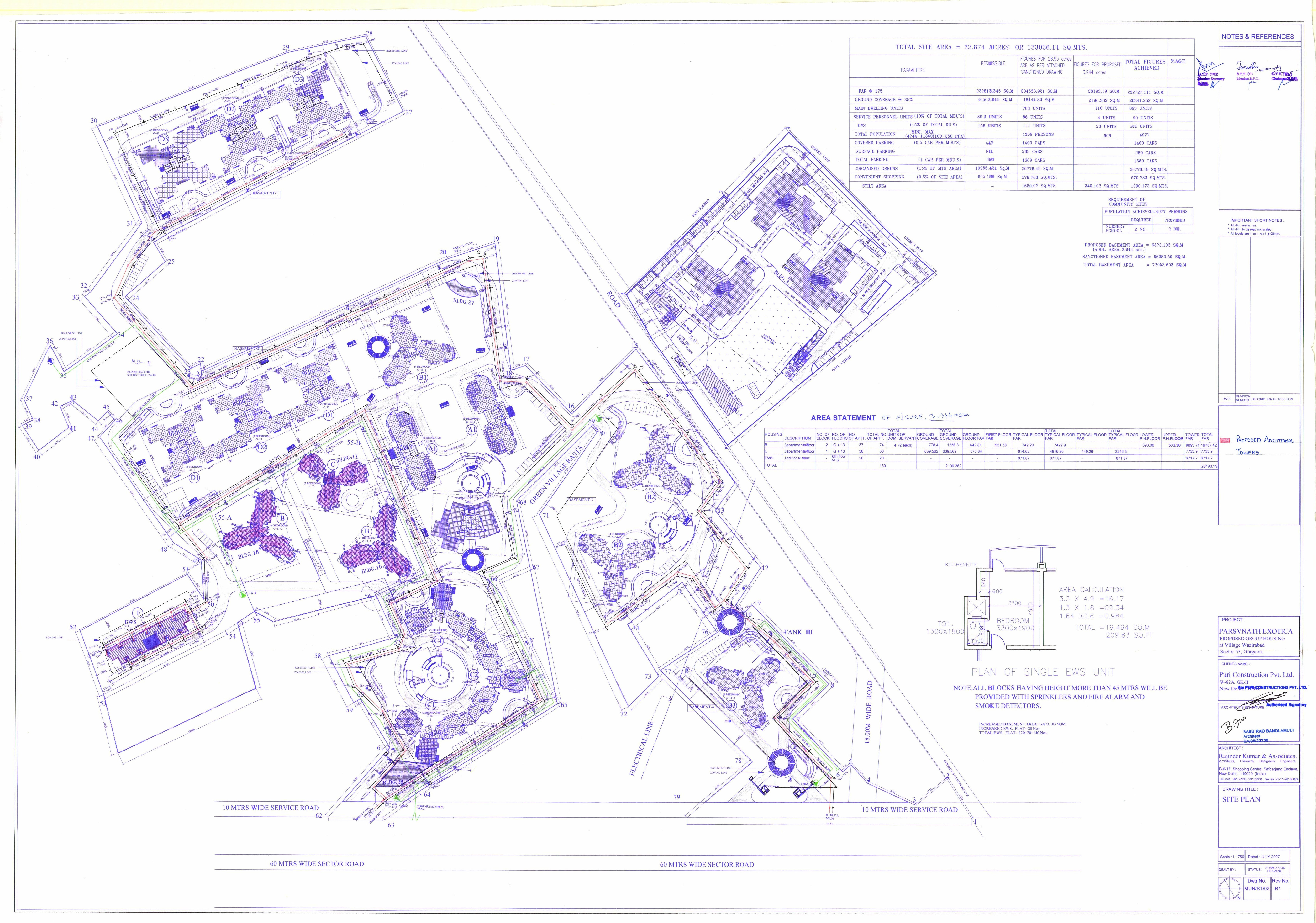
9 IN CASE OF GROUP HOUSING/ COMMERCIAL SITES, A COPY OF THE APPROVED SITE PLAN 10-11-2018 View Document
10 DECLARATION SUPPORTED BY AFFIDAVIT DULY SIGNED BY THE PROMOTER TO BE ENCLOSED. 10-11-2018 ------
11 IN CASE OF PLOTTED COLONY, THE LATEST LAYOUT PLAN 10-11-2018 View Document
12 SERVICE PLANS SHOWING THE SERVICES ON THE LAYOUT PLAN 13-11-2018 View Document