HRERA GurugramTemp Project Id : RERA-GRG-PROJ-95-2018
Submission Date : 29-10-2018 05:06:12 AM
Applicant Type : Firm
Project Type: NEW


GODREJ DEVELOPERS & PROPERTIES LLP
GODREJ ONE, 5TH FLOOR, PIROJSHANAGAR, EASTERN EXPRESS HIGHWAY, VIKHROLI, MUMBAI CITY, MAHARASHTRA-400079
01244956150
9999840950 (Number Shared by Promoter in Public)
GODREJAIR85NCR@GODREJPROPERTIES.COM
AAD7997
AAOFG3726F













GODREJ AIR PHASE-III
SECTOR-85, GURUGRAM
MANESAR
GURUGRAM
01244956150
9999840950 (Number Shared by Promoter in Public)
godrejair85ncr@godrejproperties.com
SUMAN MAJUMDAR
1244956150
9810827486 (Number Shared by Promoter in Public)
Godrejair85ncr@godrejproperties.com








As per sub-rule(2) of rule 3 of the Haryana Real Estate (Regulation and Development) Rules,2017, the fee for registration of the project as has been calculated as follows:
-----------------------------------------------------------------------------------------------------------------------
-----------------------------------------------------------------------------------------------------------------------
-----------------------------------------------------------------------------------------------------------------------
-----------------------------------------------------------------------------------------------------------------------
2. The aforesaid fees is hereby deposited vide following Drafts/ Banker’s Cheques:-

Sr No.Draft/Cheque No.Draft DateAmountPayee BankPayable To
174801-10-2018316700HDFCBANKHRERA Gurugram







2.312 (Acre)
184
184
10.043 (Acre)
115 of 2012
No
Address     RZ- D-5, MAHAVIR ENCLAVE, NEW DELHI DL 110045 IN
Address     RZ- D-5, MAHAVIR ENCLAVE, NEW DELHI DL 110045 IN
Address     RZ- D-5, MAHAVIR ENCLAVE, NEW DELHI DL 110045 IN
Address     RZ- D-5, MAHAVIR ENCLAVE, NEW DELHI DL 110045 IN
Address     WZ-172, PALAM COLONY NEW DELHI DL 110045 IN
Address     RZ- D-5, MAHAVIR ENCLAVE, NEW DELHI DL 110045 IN
Address     H NO 54 VILLAGE ZONAUR MEHRAULI NEW DELHI DL 110047 IN
Address     CHAKARPUR TEHSIL AND DISTRICT GURGAON
Annexure-B- ANNEXURE - A5
AFTER THE GRANT OF LICENSE. DEVELOPMENT AGREEMENT AND GPA DATED 31.10.2017 WERE EXECUTED AND REGISTERED
Yes
GPA AND DEVELOPMENT AGREEMENT DATED 31.10.2017 ARE ANNEXED AS ANNEXURE A-5
Yes
Yes
Yes







22293.9 Lakhs
3313 Lakhs
10670 Lakhs
1017 Lakhs
7294 Lakhs




Sr. No.Land area under usageArea of land (Square Meters)
1PLOTS TO BE SOLD 0
2LAND AREA TO BE USED FOR CONSTRUCTION OF APARTMENTS 1474.7
3CONSTRUCTION OF ROADS 1277.15
4PAVEMENTS 547.35
5PARKS AND PLAYGROUNDS 5289.16
6GREEN BELTS 234.34
7VEHICLE PARKINGS 525
8ELECTRICITY SUB-STATION 0
9CLUB HOUSE 0
10SEWAGE AND SOLID WASTE TREATMENT FACILITY 0
11AREA TO BE LEFT FOR TRANSFERRING TO THE GOVERNMENT FOR COMMUNITY SERVICES 0
12ANY OTHER 0
Total9347.7




FacilityExternal/ connecting service to be provided by (Name the agency)Whether Approval taken from the agency concerned. Yes/No (Annex details in folder C)
ROADSHUDANo
WATER SUPPLYHUDANo
ELECTRICITYDHBVNNo
SEWAGE DISPOSALHUDANo
STORM WATER DRAINAGENANo




Sr. No.Name of the facilityEstimated cost (In Lakhs)(Within the project area only)Remarks: Yet to be prepared / Submitted to HUDA, Town & Country Planning Department/ as per project report etc. (Annex relevant documents showing costing details etc. in folder C)
1INTERNAL ROADS AND PAVEMENTS186YET TO BE PREPARED
2WATER SUPPLY SYSTEM67YET TO BE PREPARED
3STORM WATER DRAINAGE49YET TO BE PREPARED
4ELECTRICITY SUPPLY SYSTEM213YET TO BE PREPARED
5SEWAGE TREATMENT & GARBAGE DISPOSAL46YET TO BE PREPARED
6STREET LIGHTING41YET TO BE PREPARED
7SECURITY AND FIRE FIGHTING131YET TO BE PREPARED
8PLAYGROUNDS AND PARKS57YET TO BE PREPARED
9CLUB HOUSE/COMMUNITY CENTRE461YET TO BE PREPARED
10SHOPPING AREA0YET TO BE PREPARED
11RENEWABLE ENERGY SYSTEM10YET TO BE PREPARED
12SCHOOL0YET TO BE PREPARED
13HOSPITAL/DISPENSARY0YET TO BE PREPARED
14ANY OTHER0YET TO BE PREPARED


28-09-2018 (date)
28-09-2018 (date)
01-02-2019
31-01-2029
Sr. No Plot Area(In Square Meter)Number of plots in the project
1 0 0
Total0


TypeCarpet area(In Square Meter)Number of apartmentsNumber of towers
Apartment/Shops/Other Buildings83.9821
Apartment/Shops/Other Buildings107.87481
Apartment/Shops/Other Buildings127.41982
Apartment/Shops/Other Buildings92.3321
Apartment/Shops/Other Buildings153.68241
Apartment/Shops/Other Buildings153.68261





Expenditure incurred till the date of application (In Lakhs)

ParticularsExpenditure
Apartments0
Shops0
Plots0

Expenditure to be made in each quarter (In Lakhs)

ParticularsExpenditure to be made in each quarter ()
Apr-JuneJuly-SepOct-DecJan-Mar




Expenditure incurred till the date of application (In Lakhs)

ParticularsExpenditure
Roads & Pavements0
Water Supply System0
Sewerage treatment & garbage disposal0
Electricity Supply System0
Storm Water Drainage0
Parks and Playgrounds0
Clubhouse/community centres0
Shopping area0
Other0

Expenditure to be made in each quarter (In Lakhs)

ParticularsExpenditure to be made in each quarter ()
Apr-JuneJuly-SepOct-DecJan-Mar












No
No
HDFC LTD. SPLENDOR TRADE TOWER , GOLF COURSE EXT. ROAD , SEC-65 , GURGAON – 122101
5020003360745
HDFC0003676
110240366
3676
Pratik Bhansali, 3rd Floor, UM House, Tower A, Plot No.35, Sector-44
certifiacte dated 20.09.2018 issued by Ambuj Jain(Charterd accountant)











No
No
Yes
Yes
Yes
Yes
No
Yes
Yes
Yes


Yes
No
No
No
No
No
No
No
Statutory Approvals Statutory Approvals StatusDate
I. LICENSE ALREADY BEEN OBTAINED16-11-2012
II. LICENSE RENEWALALREADY BEEN OBTAINED30-06-2017
III. FOREST NOCALREADY BEEN OBTAINED13-03-2013
IV. NATURAL CONSERVATION ZONE NOC ALREADY BEEN OBTAINED18-07-2018
V. AIRPORT HEIGHT CLEARANCE NOC ALREADY BEEN OBTAINED27-09-2018
VI. HUDA CONSTRUCTION WATER NOCALREADY BEEN OBTAINED06-12-2012
VII. ELECTRICAL LOAD AVAILABILITY ALREADY BEEN OBTAINED05-12-2012
VIII. ENVIRONMENTAL CLEARANCE ALREADY BEEN OBTAINED13-07-2018
IX. CONSENT TO ESTABLISH ALREADY BEEN OBTAINED28-09-2018








Yes


Yes


Consent to establish













SPECIFICATION OF CONSTRUCTION
Specification of apartments and other buildings including the following:
1FLOORING DETAILS OF VARIOUS PARTS OF HOUSEVITRIFIED TILES IN LIVING/DINING, WOODEN FLOORING IN BEDROOMS, ANTI SKID TILES IN TOILETS, KITCHEN, BALCONY & UTILITY OR EQUIVALENT
2WALL FINISHING DETAILSACRYLIC EMULSION IN INTERNAL WALLS, WEATHER PROOF IN EXTERNAL WALLS OR EQUIVALENT
3KITCHEN DETAILSCOUNTER WITH SINK AND CP FITTINGS OR EQUIVALENT
4BATHROOM FITTINGSYES
5WOOD WORK ETCYES
6DOORS AND WINDOS FRAMESTEAK FRAME IN MAIN DOOR, RED MERANTI IN INTERNAL DOORS, ALUMINUM FRAME WITH GLASS FOR WINDOWS & SLIDING DOOR WINDOWS OR EQUIVALENT
7GLASS WORKYES
8ELECTRIC FITTINGSONLY SWITCHES
9CONDUCTING AND WIRING DETAILSYES
10CUPBOARD DETAILSNO WARDROBE PROVIDED
11WATER STORAGEUNDERGROUND WATER TANK
12LIFT DETAILSYES
13EXTERNAL GLAZINGSYES ON WINDOWS
13.1WINDOWS/GLAZINGSALUMINIUM
14DOORSYES
14.1MAIN DOORSTEAK WOOD FRAME VENEER SHUTTER
14.2INTERNAL DOORSRED MERANTI WITH LAMINATE SHUTTER & SKIN DOOR IN TOILETS OR EQUIVALENT
15AIR CONDITIONINGNO
16ELECTRICAL FITTINGSONLY SWITCH
17CNG PIPE LINENO
18PROVISION OF WIFI AND BROADBAND FACILITYYES
19EXTERNAL FINISHING/COLOUR SCHEMEN/A
20INTERNAL FINISHINGN/A
SPECIFICATION UNIT WISE
1 . LIVING/DINING/FOYER/FAMILY LOUNGE
1 . 1 FLOORVITRIFIED TILES
1 . 2 WALLSACRYLIC EMULSION
1 . 3 CEILINGACRYLIC EMULSION
2 . MASTER BEDROOM/DRESSROOM
2 . 1 FLOORLAMINATED WOODEN FLOORING
2 . 2 WALLSACRYLIC EMULSION
2 . 3 CEILINGACRYLIC EMULSION
2 . 4 MODULAR WARDROBESNO
3 . MASTER TOILET
3 . 1 FLOORANTI SKID CERAMIC TILES
3 . 2 WALLSANTI SKID CERAMIC TILES
3 . 3 CEILINGGYPSUM GRID FALSE CEILING
3 . 4 COUNTERSYES
3 . 5 SANITARY WARE/CP FITTINGSYES
3 . 6 FITTING/FIXTURESYES
4 . BED ROOMS
4 . 1 FLOORLAMINATED WOODEN FLOORING
4 . 2 WALLSACRYLIC EMULSION
4 . 3 CEILINGACRYLIC EMULSION
4 . 4 WARDROBESNO
5 . TOILET
5 . 1 FLOORANTI SKID CERAMIC TILES
5 . 2 WALLSANTI SKID CERAMIC TILES
5 . 3 CEILINGGYPSUM GRID FALSE CEILING
5 . 4 COUNTERSYES
5 . 5 SANITARY WARE/CP FITTINGSYES
5 . 6 FIXTURESYES
6 . KITCHEN
6 . 1 FLOORANTI SKID CERAMIC TILES
6 . 2 WALLSANTI SKID CERAMIC TILES & ACRYLIC EMULSION
6 . 3 CEILINGFALSE CEILING ABOVE SINK & PAINT IN REST
6 . 4 COUNTERSNO
6 . 5 FIXTURESYES
6 . 6 KITCHEN APPLIANCESYES
7 . UTILITY ROOMS/UTILITY BALCONY/TOILET
7 . 1 FLOORANTI SKID CERAMIC TILES
7 . 2 WALLS & CEILINGOBD
7 . 3 TOILETANTI SKID CERAMIC TILES
7 . 4 BALCONYANTI SKID CERAMIC TILES
8 . SIT-OUTS
8 . 1 FLOORANTI SKID CERAMIC TILES
8 . 2 WALLS & CEILINGEXTERNAL PAINT
8 . 3 RAILINGSMS
8 . 4 FIXTURESYES












Sr. No.Document DescriptionDate of Document UploadView Document
1 COPY OF LICENSE ALONG WITH SCHEDULE OF LAND 29-10-2018 View Document
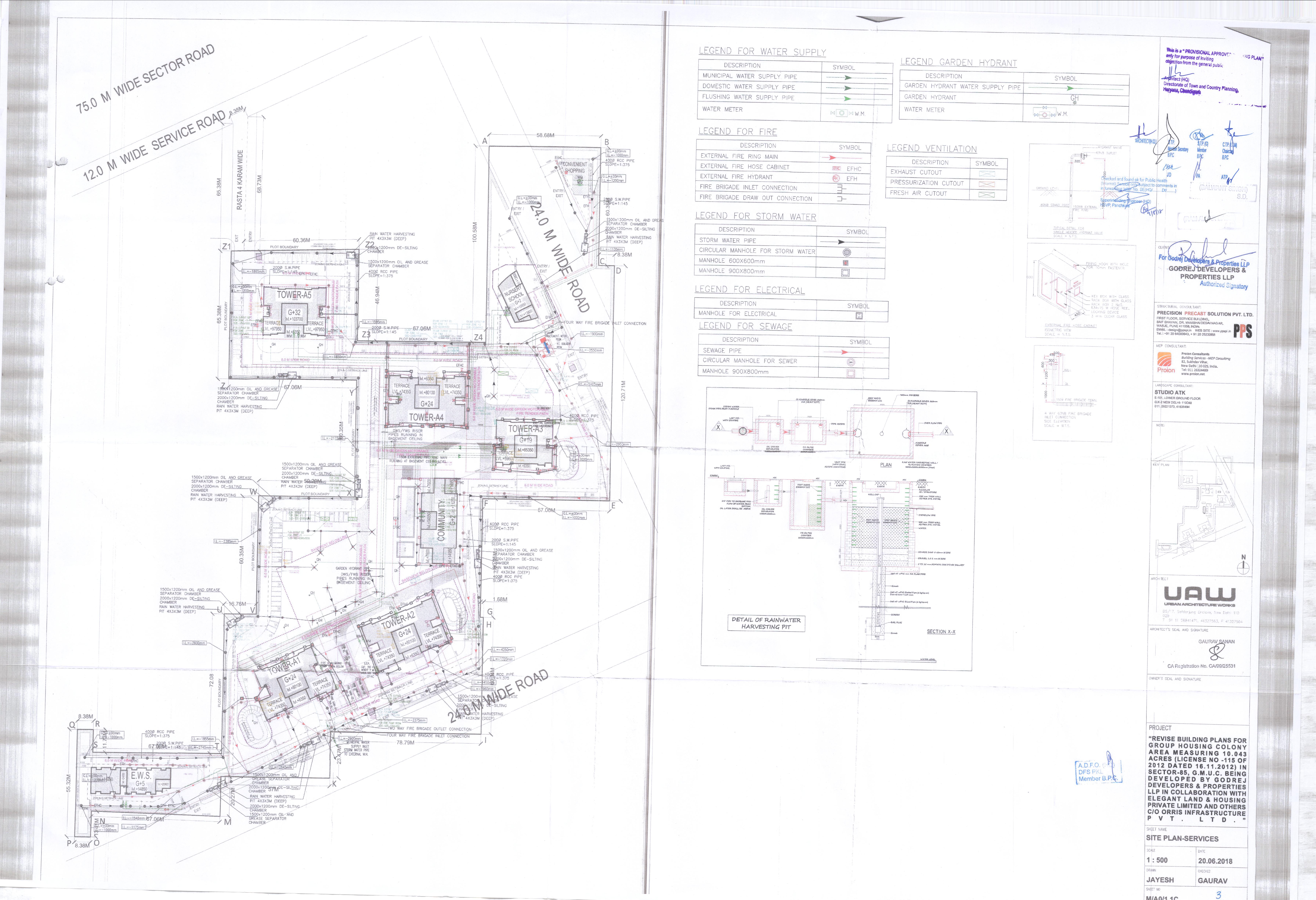
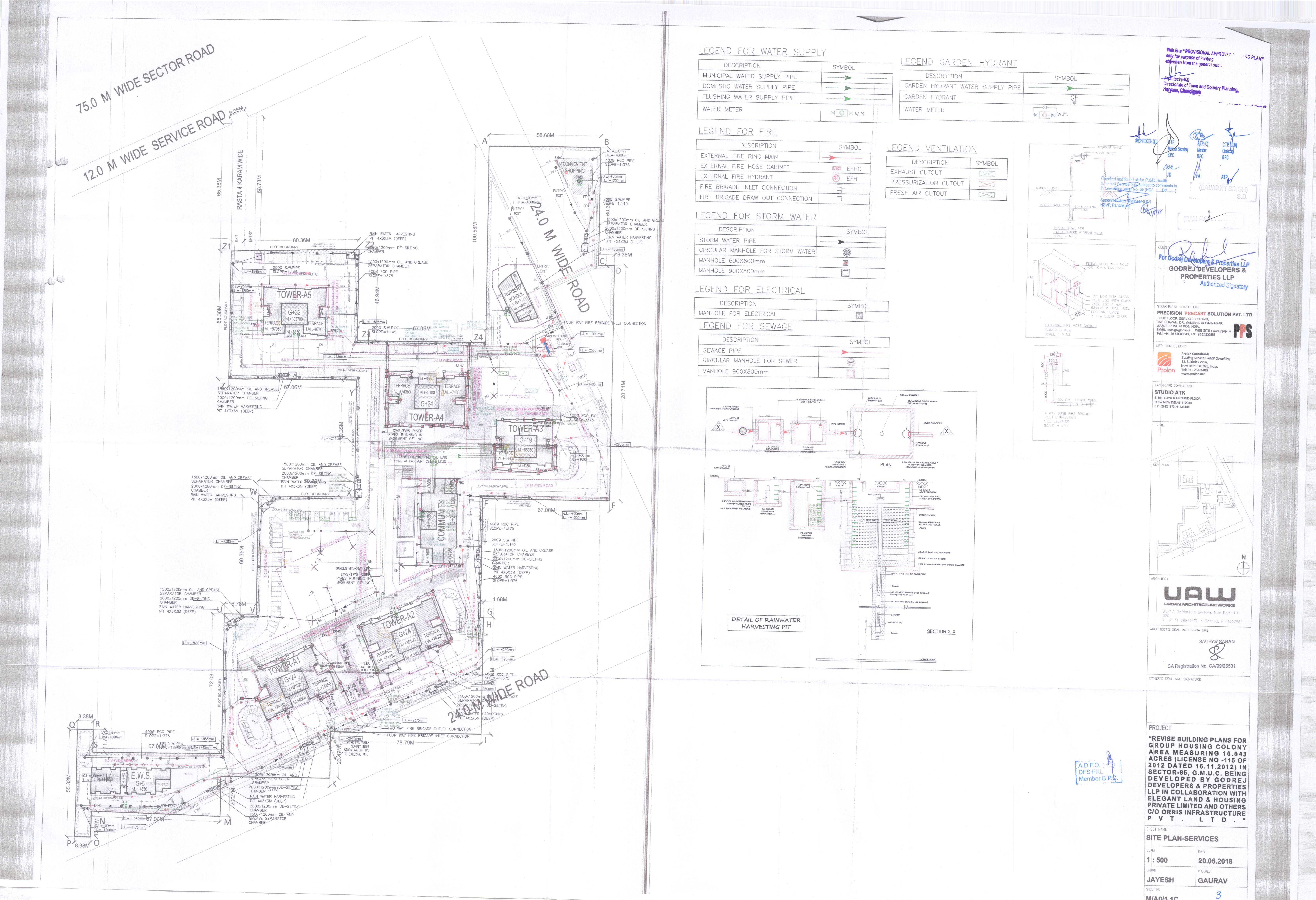
2 SERVICE PLANS SHOWING THE SERVICES ON THE LAYOUT PLAN 29-10-2018 View Document
3 DOCUMENTS RELATING TO THE ENTRY OF LICENSE AND COLLABORATION AGREEMENT IN THE REVENUE RECORD 29-10-2018 View Document
4 IN CASE OF PLOTTED COLONY, THE LATEST LAYOUT PLAN 29-10-2018 View Document
5 DEMARCATION PLAN 29-10-2018 View Document
6 ZONING PLAN 29-10-2018 View Document
7 IN CASE OF GROUP HOUSING/ COMMERCIAL SITES, A COPY OF THE APPROVED SITE PLAN 29-10-2018 View Document
8 A COMPLETE SET OF THE LAST APPROVED BUILDING PLANS 29-10-2018 View Document
9 CERTIFICATE FROM A CHARTERED ACCOUNTANT CERTIFYING THAT THE INFORMSTION PROVIDED BY THE APPLICANT IN FORM REP-1-C-X IS CORRECT AS PER THE BOOKS OF ACCOUNTS/ BALANCE SHEET OF THE APPLICANT 29-10-2018 View Document
10 NON DEFAULT CERTIFICATE FROM A CHARTERED ACCOUNTANT 29-10-2018 View Document
11 CASH FLOW STATEMENT OF THE PROPOSED PROJECT 29-10-2018 View Document












Sr. No.Document DescriptionDate of Document UploadView Document
1 PROJECT CONTINUATION- RC/REP/HARERA/GGM/34 of 2018/7(3)/76/2025/18 DATED 03.07.2025 07-07-2025 View Document