HRERA PanchkulaTemp Project Id : RERA-PKL-PROJ-343-2018
Submission Date : 29-10-2018 12:01:10 PM
Applicant Type : Company
Project Type: NEW




ALESIA BUILDTECH PRIVATE LIMITED
1 F (22-26), OZONE CENTRE, SECTOR-12, FARIDABAD
911292265143
9810099218 (Number Shared by Promoter in Public)
adorerealtech@gmail.com
http://www.adorerealtech.com
XXXX354N
U70102DL2015PTC288079
 
 


 
 


 
 


 
 


 
 







ADORE SAMRIDDHI
VILLAGE RIWAZPUR AND TIKAWALI, SECTOR 89, FARIDABAD
FATEHABAD
FATEHABAD
01292265143
9810099218 (Number Shared by Promoter in Public)
adorerealtech@gmail.com
DILSHAD
01292265143
8130999376 (Number Shared by Promoter in Public)
adorerealtech@gmail.com








As per sub-rule(2) of rule 3 of the Haryana Real Estate (Regulation and Development) Rules,2017, the fee for registration of the project as has been calculated as follows:
-----------------------------------------------------------------------------------------------------------------------
-----------------------------------------------------------------------------------------------------------------------
-----------------------------------------------------------------------------------------------------------------------
-----------------------------------------------------------------------------------------------------------------------
2. The aforesaid fees is hereby deposited vide following Drafts/ Banker’s Cheques:-

Sr No.Draft/Cheque No.Draft DateAmountPayee BankPayable To
127999126-10-2018525000KARUR VYSYA BANKHRERA Panchkula







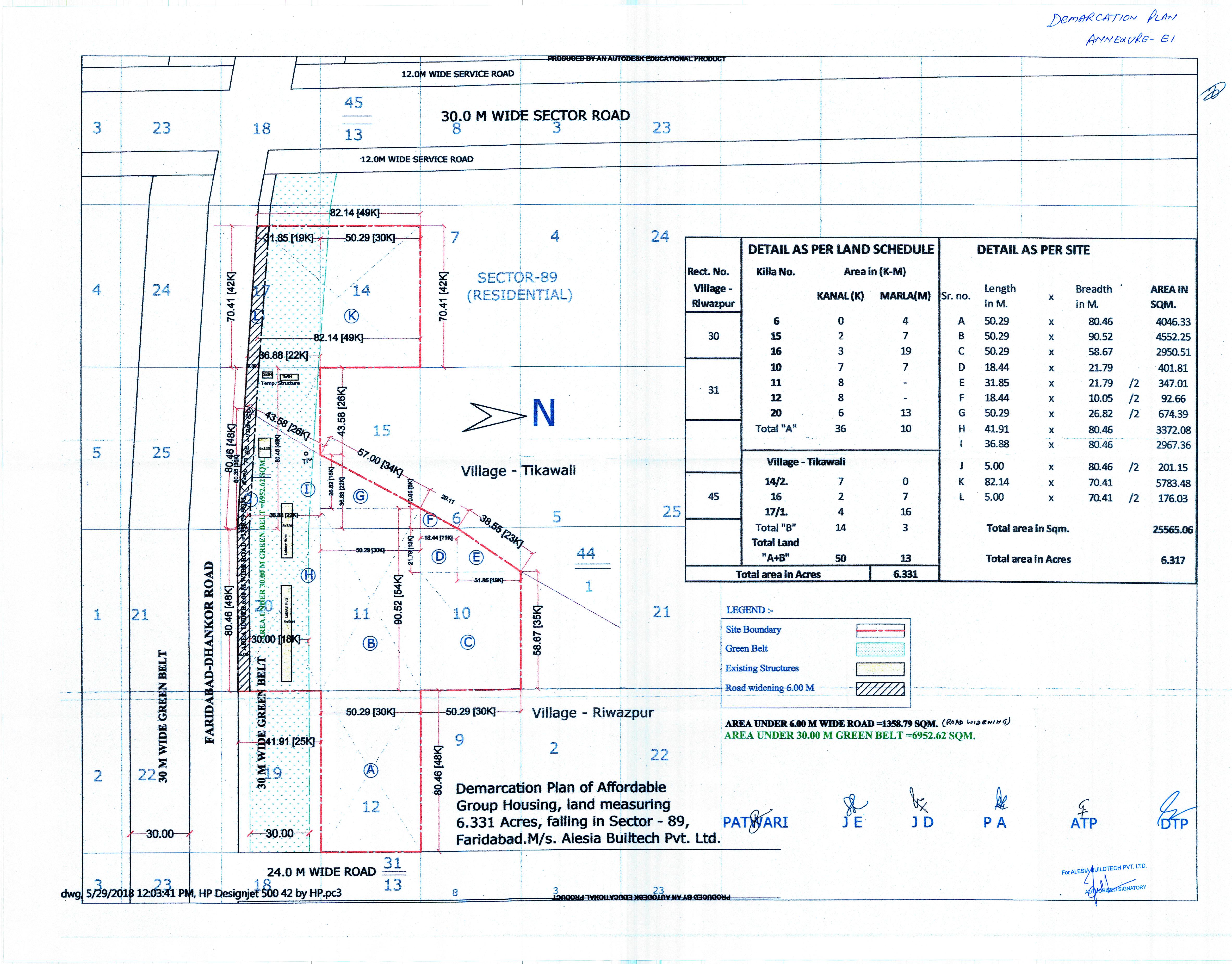
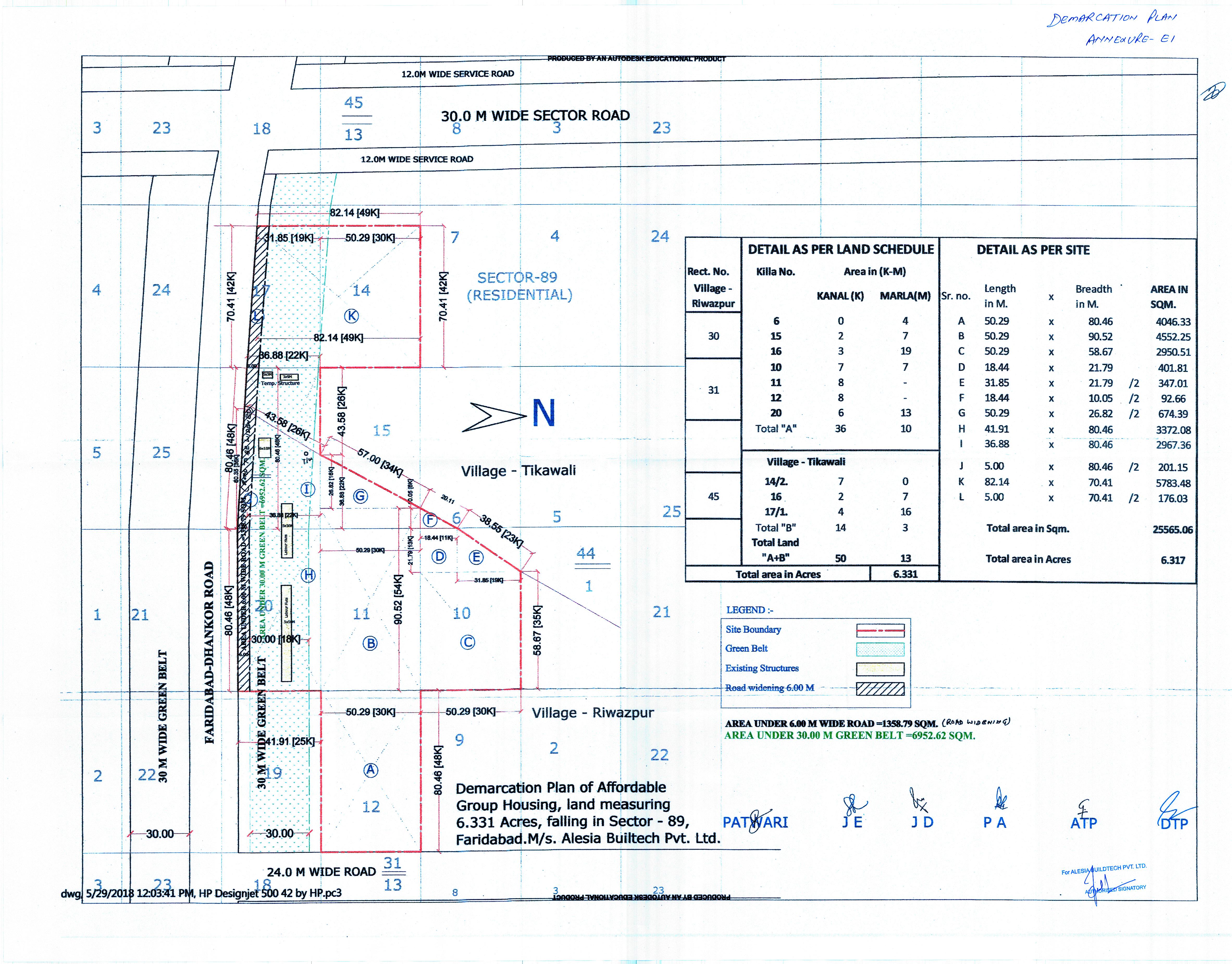
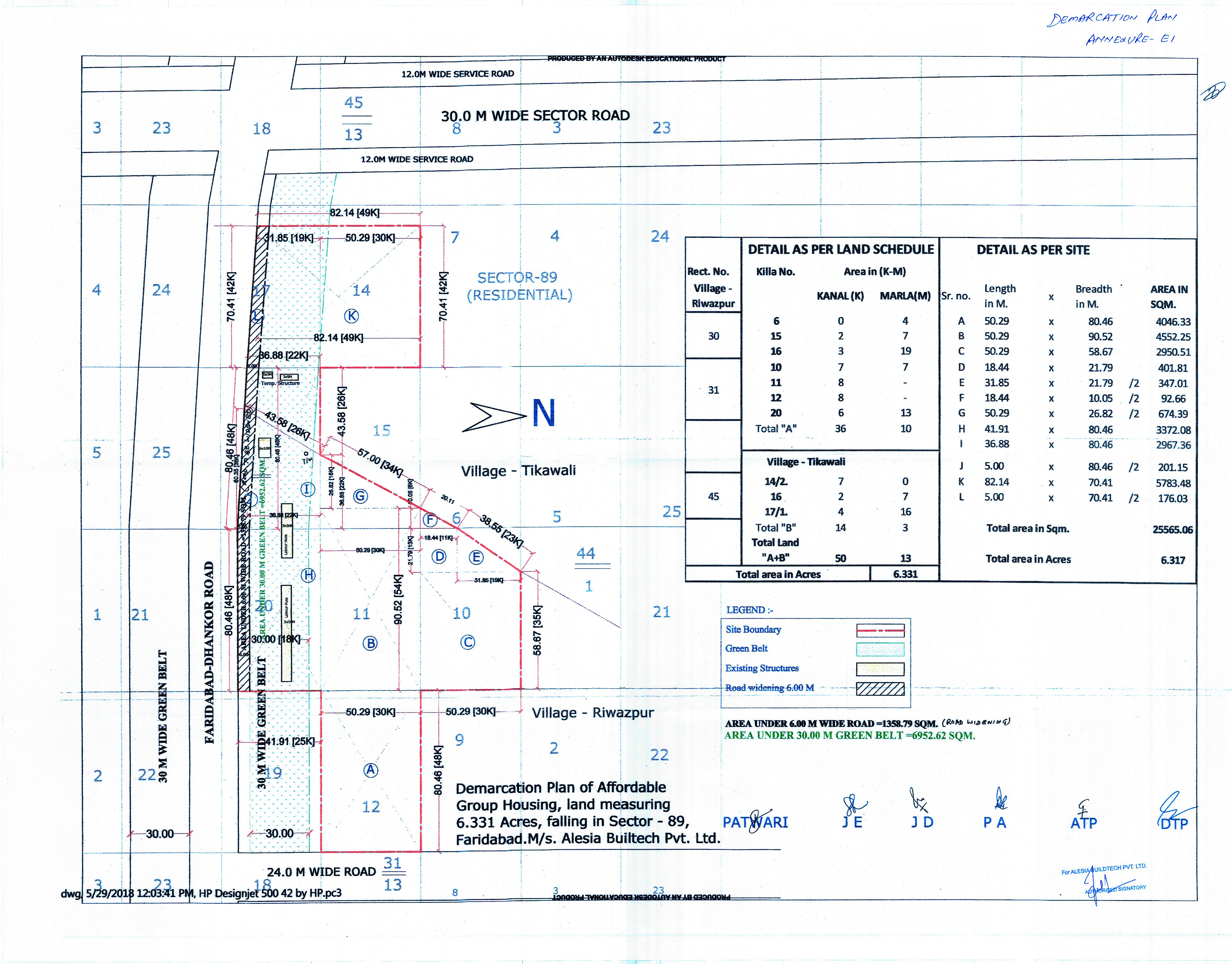
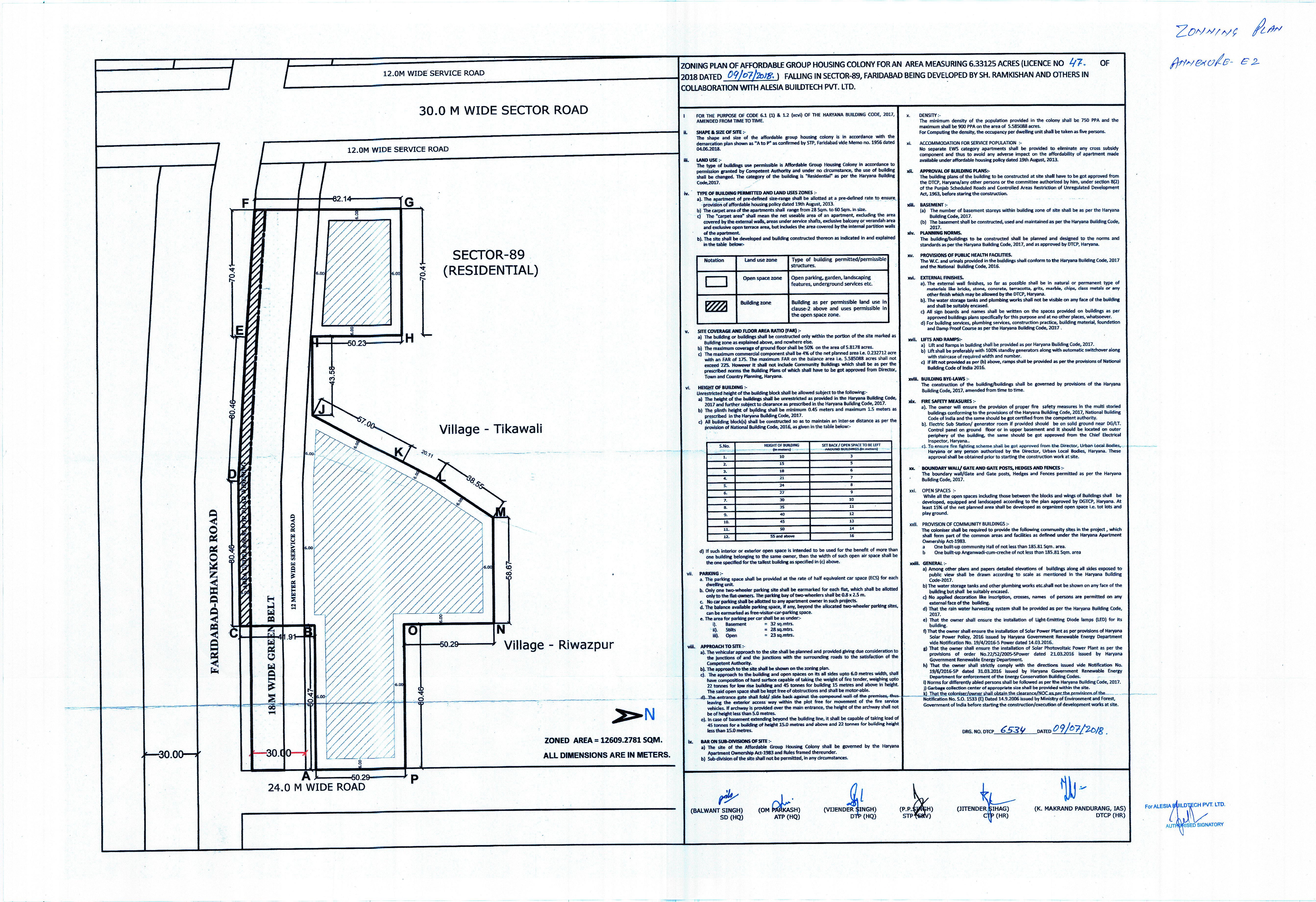
6.331 (Acre)
225
225
6.331 (Acre)
47 of 2018
No
Address     VILLAGE KHERI KALAN, TEHSIL & DISTRICT FARIDABAD
Address     VILLAGE KHERI KALAN, TEHSIL & DISTRICT FARIDABAD
Address     VILLAGE KHERI KALAN, TEHSIL & DISTRICT FARIDABAD
Address     VILLAGE TIKAWALI, TEHSIL & DISTRICT FARIDABAD
Address     VILLAGE TIKAWALI, TEHSIL & DISTRICT FARIDABAD
Annexure-B- REGISTERED COLLABORATION AGREEEMENT (ANNEXURE B2)
YES (ANNEXURE B2)
Yes
ANNEXURE B3
Yes
Yes
No







18223 Lakhs
5550.00 Lakhs
9000 Lakhs
1173 Lakhs
2500 Lakhs




Sr. No.Land area under usageArea of land (Acres)
1PLOTS TO BE SOLD 0.00
2LAND AREA TO BE USED FOR CONSTRUCTION OF APARTMENTS 0.84
3CONSTRUCTION OF ROADS 1.45
4PAVEMENTS 0.00
5PARKS AND PLAYGROUNDS 0.95
6GREEN BELTS 1.03
7VEHICLE PARKINGS 0.69
8ELECTRICITY SUB-STATION 0.00
9CLUB HOUSE 0.00
10SEWAGE AND SOLID WASTE TREATMENT FACILITY 0.00
11AREA TO BE LEFT FOR TRANSFERRING TO THE GOVERNMENT FOR COMMUNITY SERVICES 0.00
12ANY OTHER 0.00
13COMMUNITY CENTRE AND CRECHE 0.12
14SHOPPING AREA 0.23
15ROAD WIDENING 0.34
16SERVICE ROAD 3.69
Total9.34




FacilityExternal/ connecting service to be provided by (Name the agency)Whether Approval taken from the agency concerned. Yes/No (Annex details in folder C)
ROADSHUDANo
WATER SUPPLYHUDAYes
ELECTRICITYDHBVNYes
SEWAGE DISPOSALHUDANo
STORM WATER DRAINAGEHUDANo




Sr. No.Name of the facilityEstimated cost (In Lakhs)(Within the project area only)Remarks: Yet to be prepared / Submitted to HUDA, Town & Country Planning Department/ as per project report etc. (Annex relevant documents showing costing details etc. in folder C)
1INTERNAL ROADS AND PAVEMENTS250SUBMITTED TO HUDA
2WATER SUPPLY SYSTEM260SUBMITTED TO HUDA
3STORM WATER DRAINAGE72SUBMITTED TO HUDA
4ELECTRICITY SUPPLY SYSTEM300SUBMITTED TO HUDA
5SEWAGE TREATMENT & GARBAGE DISPOSAL202SUBMITTED TO HUDA
6STREET LIGHTING24SUBMITTED TO TOWN & COUNTRY PLANNING
7SECURITY AND FIRE FIGHTING0SUBMITTED TO HUDA
8PLAYGROUNDS AND PARKS50SUBMITTED TO TOWN & COUNTRY PLANNING
9CLUB HOUSE/COMMUNITY CENTRE40SUBMITTED TO TOWN & COUNTRY PLANNING
10SHOPPING AREA275SUBMITTED TO TOWN & COUNTRY PLANNING
11RENEWABLE ENERGY SYSTEM0YET TO BE PREPARED
12SCHOOL0YET TO BE PREPARED
13HOSPITAL/DISPENSARY0YET TO BE PREPARED
14ANY OTHER0YET TO BE PREPARED
15STREET LIGHTING24SUBMITTED TO TOWN & COUNTRY PLANNING


23-10-2018 (date)
23-10-2018 (date)
01-12-2018
31-12-2022
Sr. No Plot Area(In Square Meter)Number of plots in the project
1 0 0
Total0


TypeCarpet area(In Square Meter)Number of apartmentsNumber of towers
Apartment/Shops/Other Buildings30961
Apartment/Shops/Other Buildings52.965203
Apartment/Shops/Other Buildings602221





Expenditure incurred till the date of application (In Lakhs)

ParticularsExpenditure

Expenditure to be made in each quarter (In Lakhs)

ParticularsYear-2018
Jan-MarApr-JuneJuly-SepOct-Dec
Apartments50
Shops0
Plots0

ParticularsYear-2019
Jan-MarApr-JuneJuly-SepOct-Dec
Apartments300500600750
Shops0000
Plots0000

ParticularsYear-2020
Jan-MarApr-JuneJuly-SepOct-Dec
Apartments650650650650
Shops0000
Plots0000

ParticularsYear-2021
Jan-MarApr-JuneJuly-SepOct-Dec
Apartments50505050
Shops0000
Plots0000

ParticularsYear-2022
Jan-MarApr-JuneJuly-SepOct-Dec
Apartments252525
Shops000
Plots000




Expenditure incurred till the date of application (In Lakhs)

ParticularsExpenditure

Expenditure to be made in each quarter (In Lakhs)

ParticularsYear-2020
Jan-MarApr-JuneJuly-SepOct-Dec
Roads & Pavements3030
Water Supply System2525
Sewerage treatment & garbage disposal020
Electricity Supply System00
Storm Water Drainage010
Parks and Playgrounds00
Clubhouse/community centres00
Shopping area00
Other00
Street Lighting0
Street Light0

ParticularsYear-2021
Jan-MarApr-JuneJuly-SepOct-Dec
Roads & Pavements30303030
Water Supply System25253535
Sewerage treatment & garbage disposal25292929
Electricity Supply System25252525
Storm Water Drainage10101010
Parks and Playgrounds001010
Clubhouse/community centres001010
Shopping area50505050
Other0000
Street Light005
Street Lighting5

ParticularsYear-2022
Jan-MarApr-JuneJuly-SepOct-Dec
Roads & Pavements303010
Water Supply System354510
Sewerage treatment & garbage disposal29292
Electricity Supply System707060
Storm Water Drainage10102
Parks and Playgrounds101010
Clubhouse/community centres10100
Shopping area252525
Other000
Street Light554












Yes
No
KARUR VYSYA BANK, NIT, FARIDABAD, HARYANA
4204135000004640
IFSCKVBL0004204
110053010
4204
Mr. Kaptan Singh & Mr. Jetaish Kumar Gupta
Annexure D2











No
Yes
Yes
Yes
Yes
Yes
Yes
Yes
Yes
Yes


Yes
Yes
Yes
Yes
Yes
No
No
Yes
Statutory Approvals Statutory Approvals StatusDate
I. ENVIRONMENT CLEARANCEAPPLIED FOR BUT YET TO RECEIVE16-07-2018
II. AIRPORT CLEARANCEAPPLIED FOR BUT YET TO RECEIVE03-08-2018








Yes


Yes


Yes







HAPPY HOMES, SECTOR 86, FARIDABAD
5.00
816
0
776
0
Initially estimated cost (In Lakhs)Revised cost (In Lakhs)Expenditure incurred upto the date of application (In Lakhs)
Total cost of the project
(Other than cost of land)
10000104659765
Cost of the apartments750078007400
Cost of the infrastructure1000965665
Others costs150017001700


15650 Lakhs
150 Lakhs
0 Lakhs
0 Lakhs
No
31-08-2019
30-09-2018




HAPPY HOMES GRAND, SECTOR 85, FARIDABAD
5.05625
730
0
665
0
Initially estimated cost (In Lakhs)Revised cost (In Lakhs)Expenditure incurred upto the date of application (In Lakhs)
Total cost of the project
(Other than cost of land)
12000120004950
Cost of the apartments850085003200
Cost of the infrastructure15001500350
Others costs200020001400


7250 Lakhs
7450 Lakhs
0 Lakhs
0 Lakhs
No
31-01-2021
31-01-2021










SPECIFICATION OF CONSTRUCTION
Specification of apartments and other buildings including the following:
1FLOORING DETAILS OF VARIOUS PARTS OF HOUSEVITRIFIED TILES/ CERAMIC TILES
2WALL FINISHING DETAILSCOLOUR WASH/ DRY DISTEMPER/OIL BOUND DISTEMPER (OBD)
3KITCHEN DETAILSCOUNTER TOP:- MARBLE TOP/ KOTA STONE, TILES UP TO 2 FT HEIGHT ABOVE COUNTER
4BATHROOM FITTINGSPPR PIPES/CPVC PIPES, CP FITTINGS OF ISI MARKED
5WOOD WORK ETCFLUSH DOOR PAINTED WITH FLAT ENAMEL PAINT
6DOORS AND WINDOS FRAMESMS -Z SECTION/ PRESS STEEL/ POWER COATED ALUMINIUM
7GLASS WORK5 MM PLAIN GLASS, ISI MARKED
8ELECTRIC FITTINGSISI MARKED
9CONDUCTING AND WIRING DETAILSISI MARKED
10CUPBOARD DETAILSN.A.
11WATER STORAGEWATER TREATMENT PLANT OF 400 KLD
12LIFT DETAILS2 LIFTS IN EACH TOWER
13EXTERNAL GLAZINGSN.A.
13.1WINDOWS/GLAZINGSN.A.
14DOORSAS MENTIONED BELOW
14.1MAIN DOORSFLUSH DOORS PAINTED WITH FLAT ENAMEL PAINT
14.2INTERNAL DOORSFLUSH DOORS PAINTED WITH FLAT ENAMEL PAINT
15AIR CONDITIONINGN.A.
16ELECTRICAL FITTINGSISI MARKED
17CNG PIPE LINEN.A.
18PROVISION OF WIFI AND BROADBAND FACILITYN.A.
19EXTERNAL FINISHING/COLOUR SCHEMEPLAIN TEXTURE PAINT
20INTERNAL FINISHINGCOLOUR WASH/ DRY DISTEMPER/OIL BOUND DISTEMPER
SPECIFICATION UNIT WISE
1 . LIVING/DINING/FOYER/FAMILY LOUNGE
1 . 1 FLOORVITRIFIED TILES/ CERAMIC TILES
1 . 2 WALLSCOLOUR WASH/ DRY DISTEMPER/OIL BOUND DISTEMPER
1 . 3 CEILINGCOLOUR WASH/ DRY DISTEMPER/OIL BOUND DISTEMPER
2 . MASTER BEDROOM/DRESSROOM
2 . 1 FLOORVITRIFIED TILES/ CERAMIC TILES
2 . 2 WALLSCOLOUR WASH/ DRY DISTEMPER/OIL BOUND DISTEMPER
2 . 3 CEILINGCOLOUR WASH/ DRY DISTEMPER/OIL BOUND DISTEMPER
2 . 4 MODULAR WARDROBESN.A.
3 . MASTER TOILET
3 . 1 FLOORVITRIFIED TILES/ CERAMIC TILES
3 . 2 WALLSCOLOUR WASH/ DRY DISTEMPER/OIL BOUND DISTEMPER
3 . 3 CEILINGCOLOUR WASH/ DRY DISTEMPER/OIL BOUND DISTEMPER
3 . 4 COUNTERSN.A.
3 . 5 SANITARY WARE/CP FITTINGSISI MARKED
3 . 6 FITTING/FIXTURESISI MARKED
4 . BED ROOMS
4 . 1 FLOORVITRIFIED TILES/ CERAMIC TILES
4 . 2 WALLSCOLOUR WASH/ DRY DISTEMPER/OIL BOUND DISTEMPER
4 . 3 CEILINGCOLOUR WASH/ DRY DISTEMPER/OIL BOUND DISTEMPER
4 . 4 WARDROBESN.A.
5 . TOILET
5 . 1 FLOORANKI SKID CERAMIC TILES
5 . 2 WALLSCERAMIC TILES UP TO 5 FT HEIGHT
5 . 3 CEILINGCOLOUR WASH/ DRY DISTEMPER/OIL BOUND DISTEMPER
5 . 4 COUNTERSN.A.
5 . 5 SANITARY WARE/CP FITTINGSISI MARKED
5 . 6 FIXTURESISI MARKED
6 . KITCHEN
6 . 1 FLOORVITRIFIED TILES/ CERAMIC TILES
6 . 2 WALLSCERAMIC TILES UP TO 2 FT HEIGHT ABOVE COUNTER
6 . 3 CEILINGCOLOUR WASH/ DRY DISTEMPER/OIL BOUND DISTEMPER
6 . 4 COUNTERSMARBLE STONE/KOTA STONE
6 . 5 FIXTURESISI MARKED
6 . 6 KITCHEN APPLIANCESN.A.
7 . UTILITY ROOMS/UTILITY BALCONY/TOILET
7 . 1 FLOORVITRIFIED TILES/ CERAMIC TILES
7 . 2 WALLS & CEILINGCOLOUR WASH/ DRY DISTEMPER/OIL BOUND DISTEMPER
7 . 3 TOILETN.A.
7 . 4 BALCONYCERAMIC TILES
8 . SIT-OUTS
8 . 1 FLOORN.A.
8 . 2 WALLS & CEILINGN.A.
8 . 3 RAILINGSN.A.
8 . 4 FIXTURESN.A.












Sr. No.Document DescriptionDate of Document UploadView Document
1 COPY OF LICENSE ALONG WITH SCHEDULE OF LAND 29-10-2018 View Document
2 SERVICE PLANS SHOWING THE SERVICES ON THE LAYOUT PLAN 29-10-2018 View Document
3 DOCUMENTS RELATING TO THE ENTRY OF LICENSE AND COLLABORATION AGREEMENT IN THE REVENUE RECORD 29-10-2018 View Document
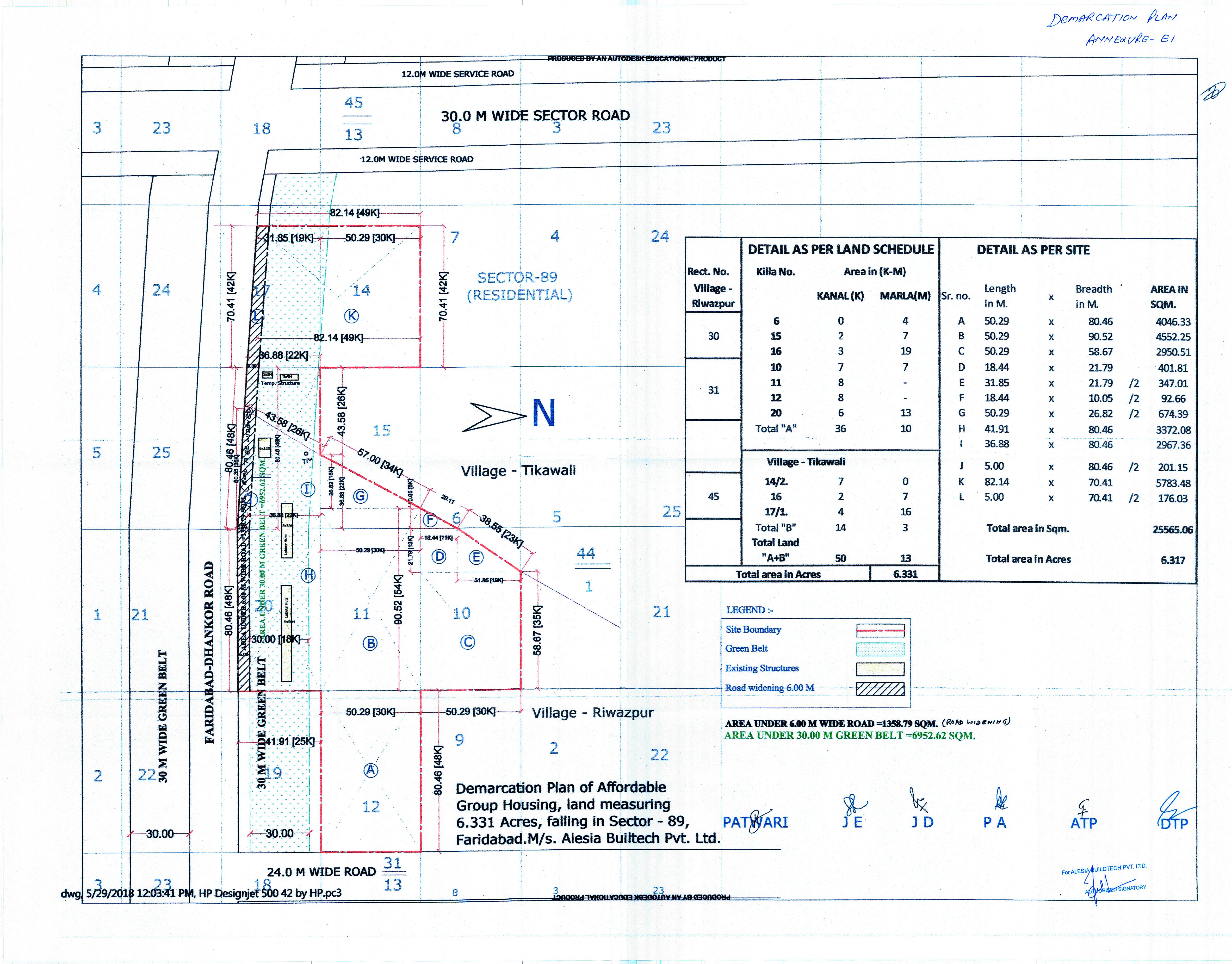
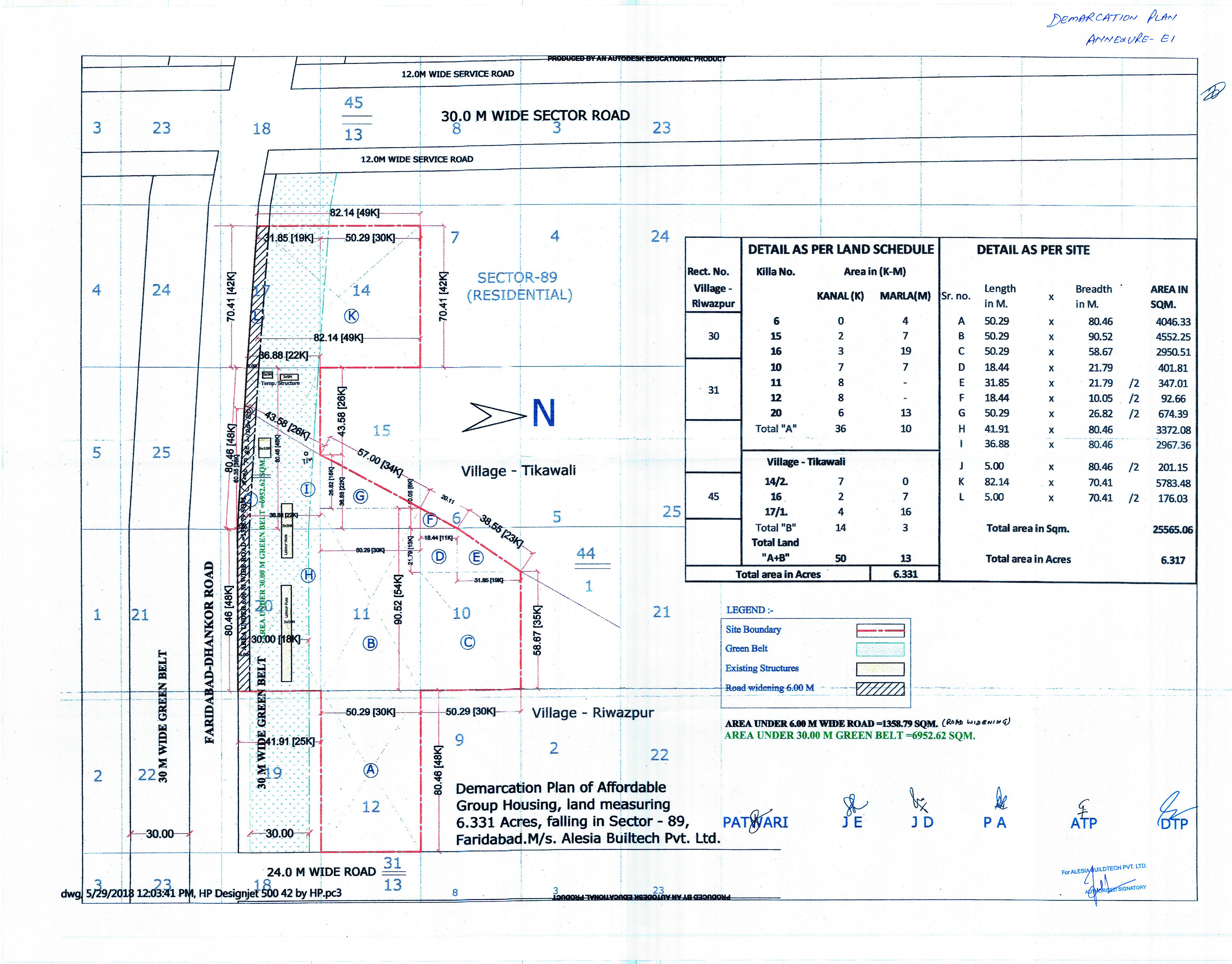
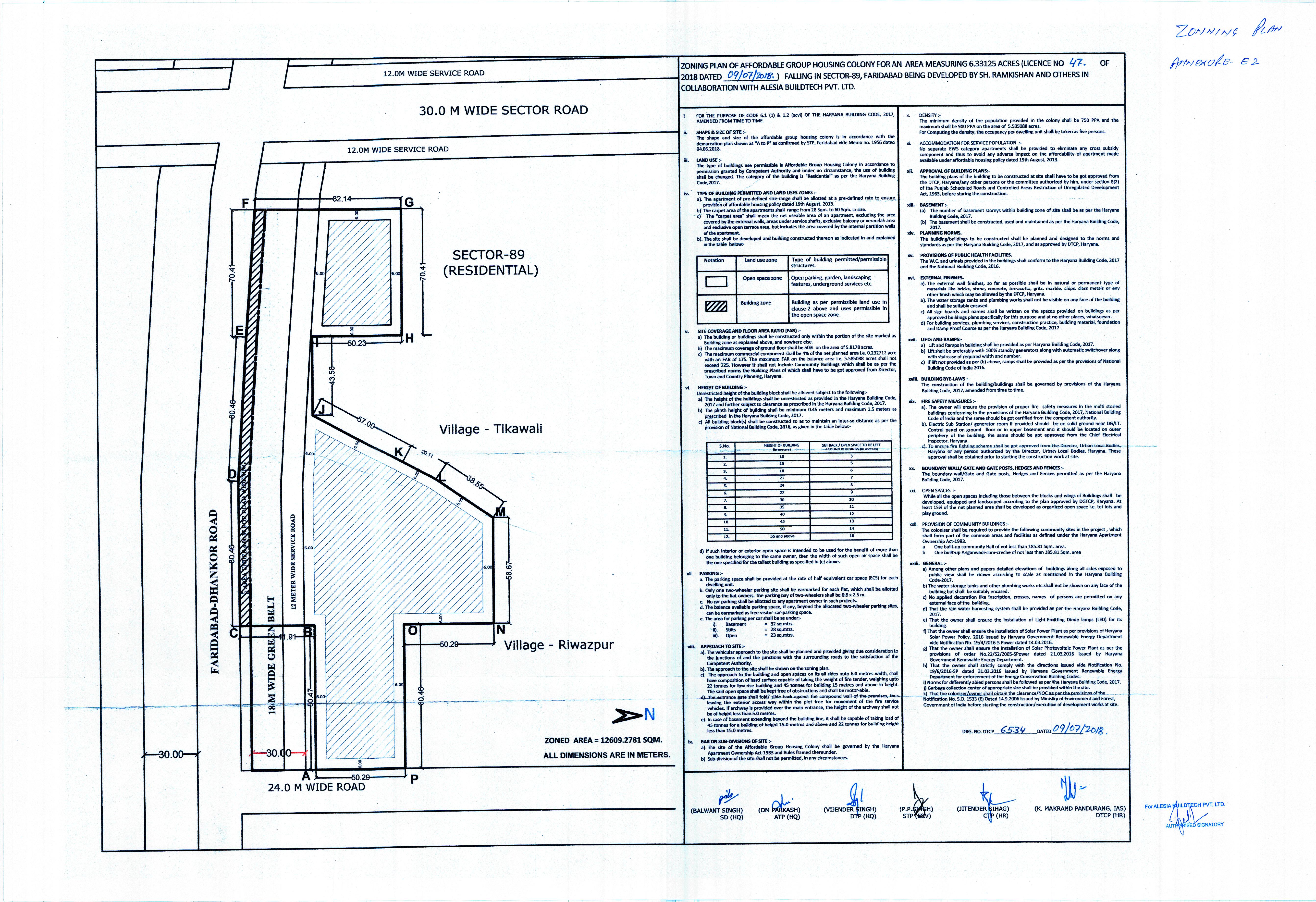
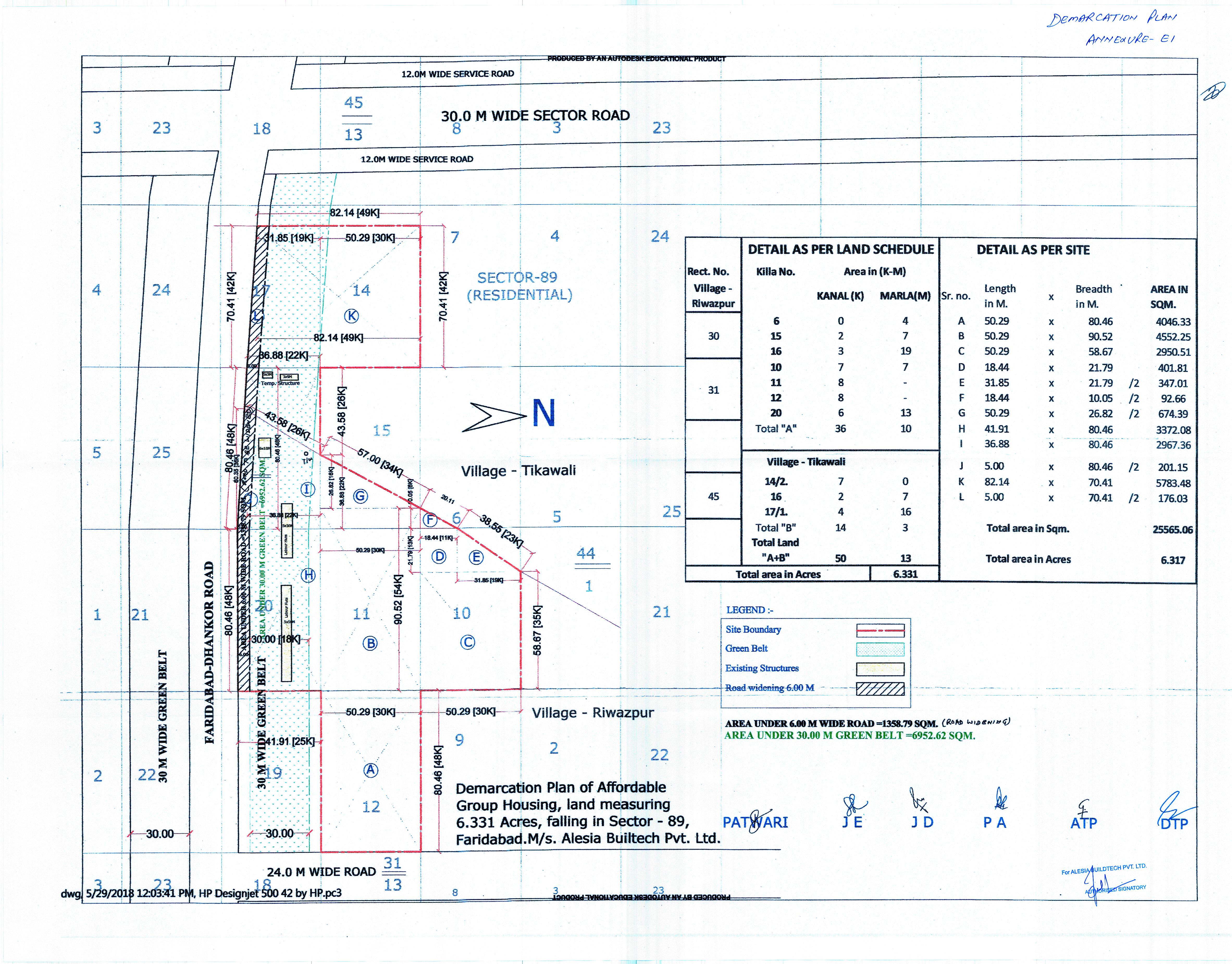
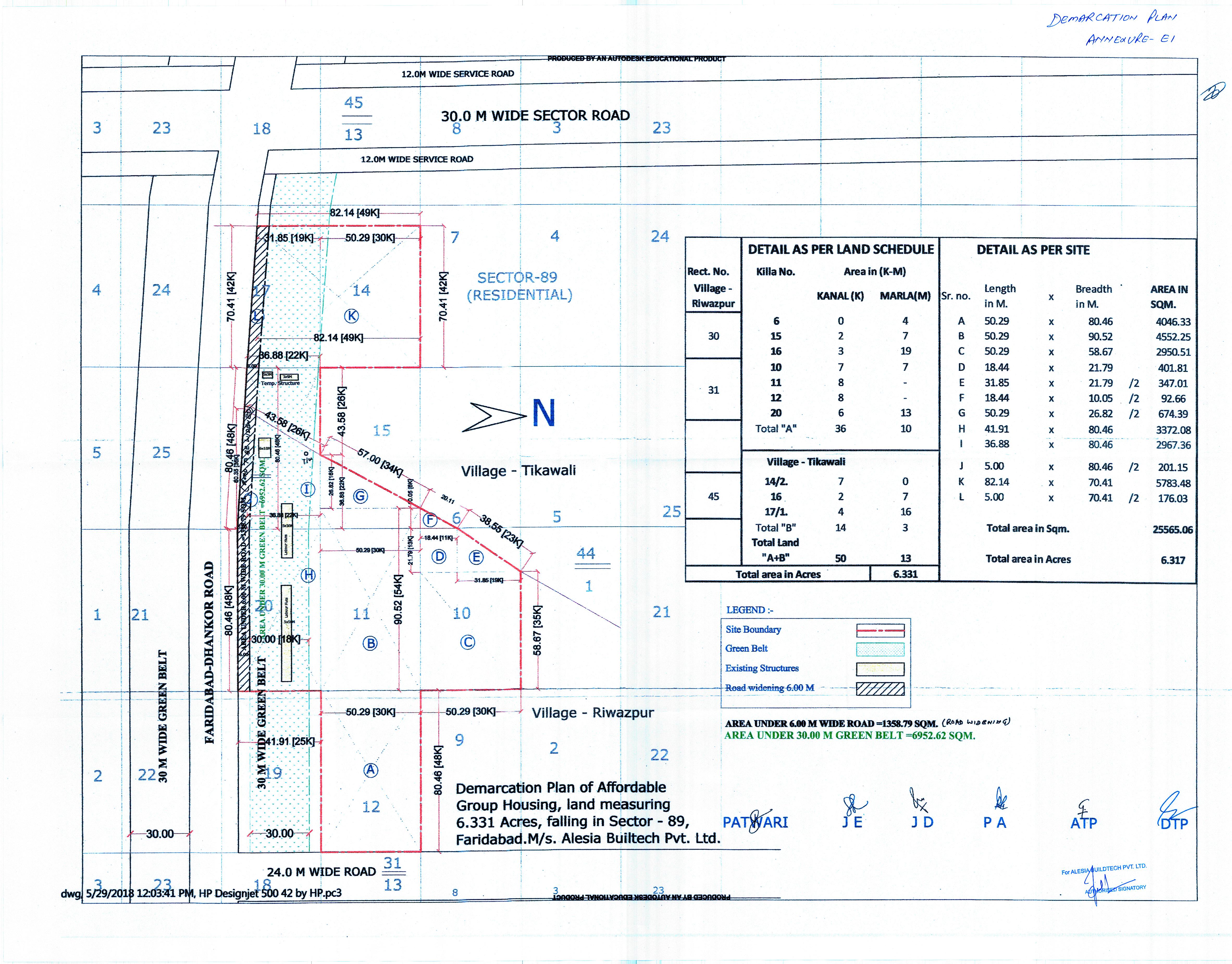
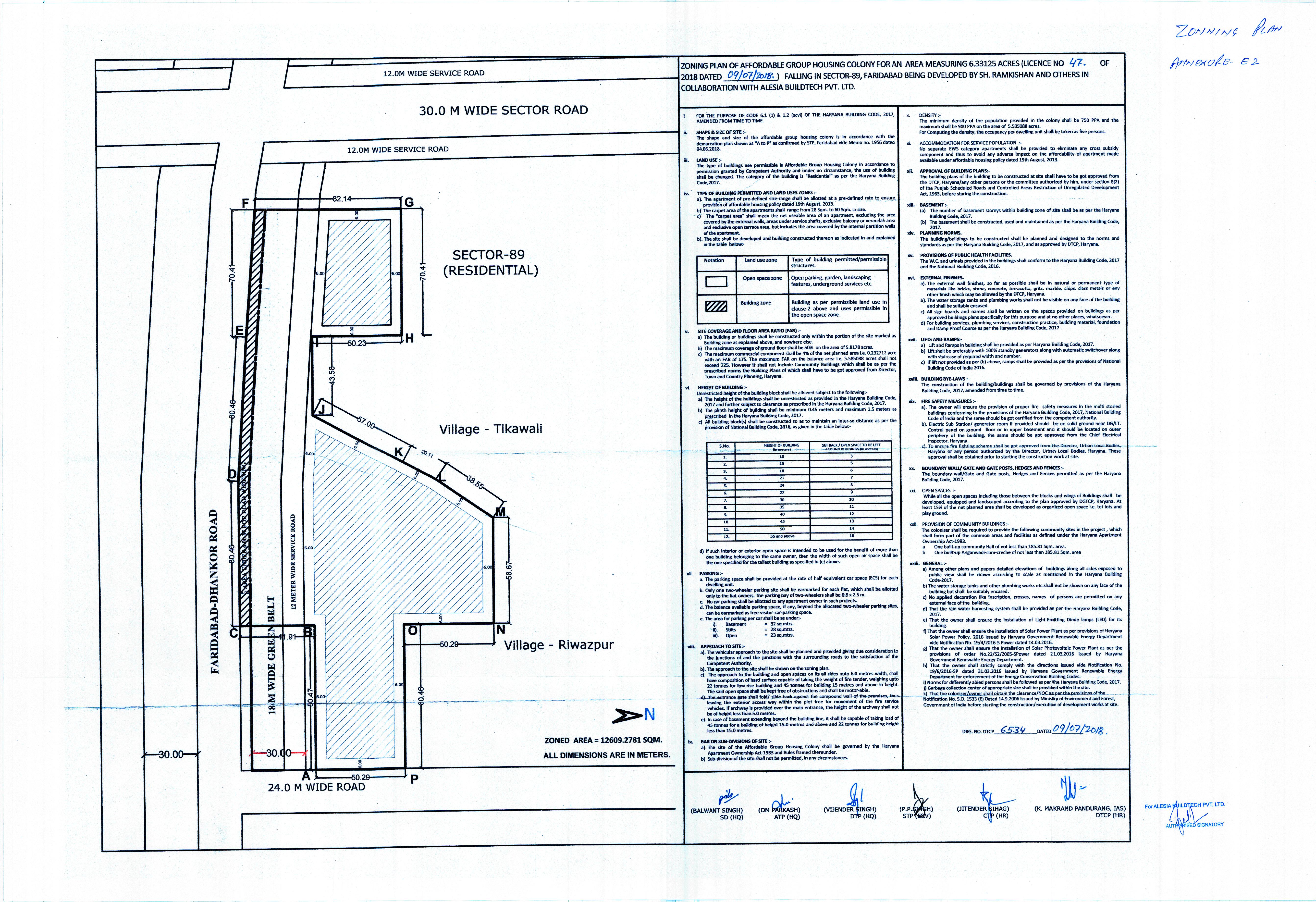
4 DEMARCATION PLAN 29-10-2018 View Document
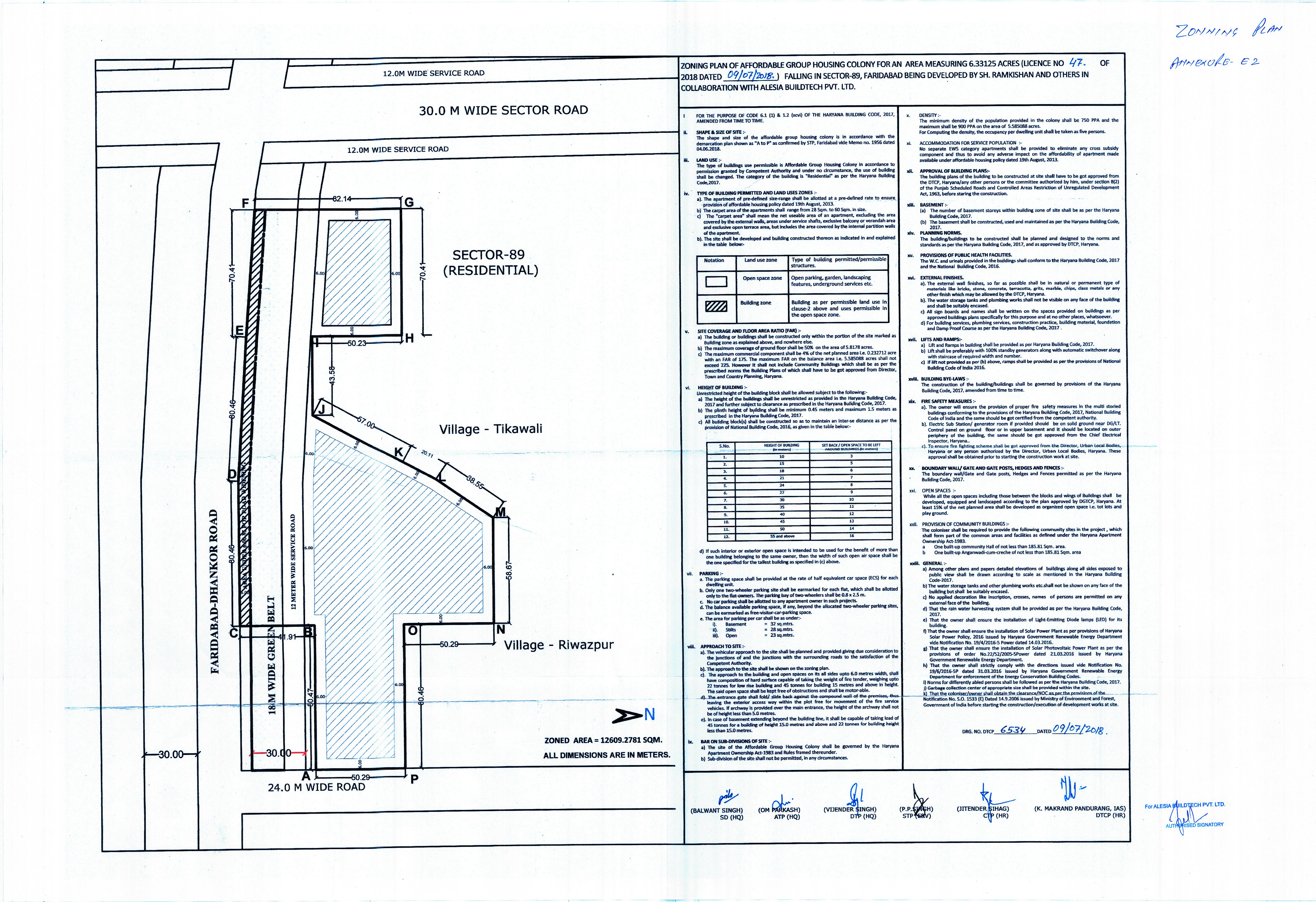
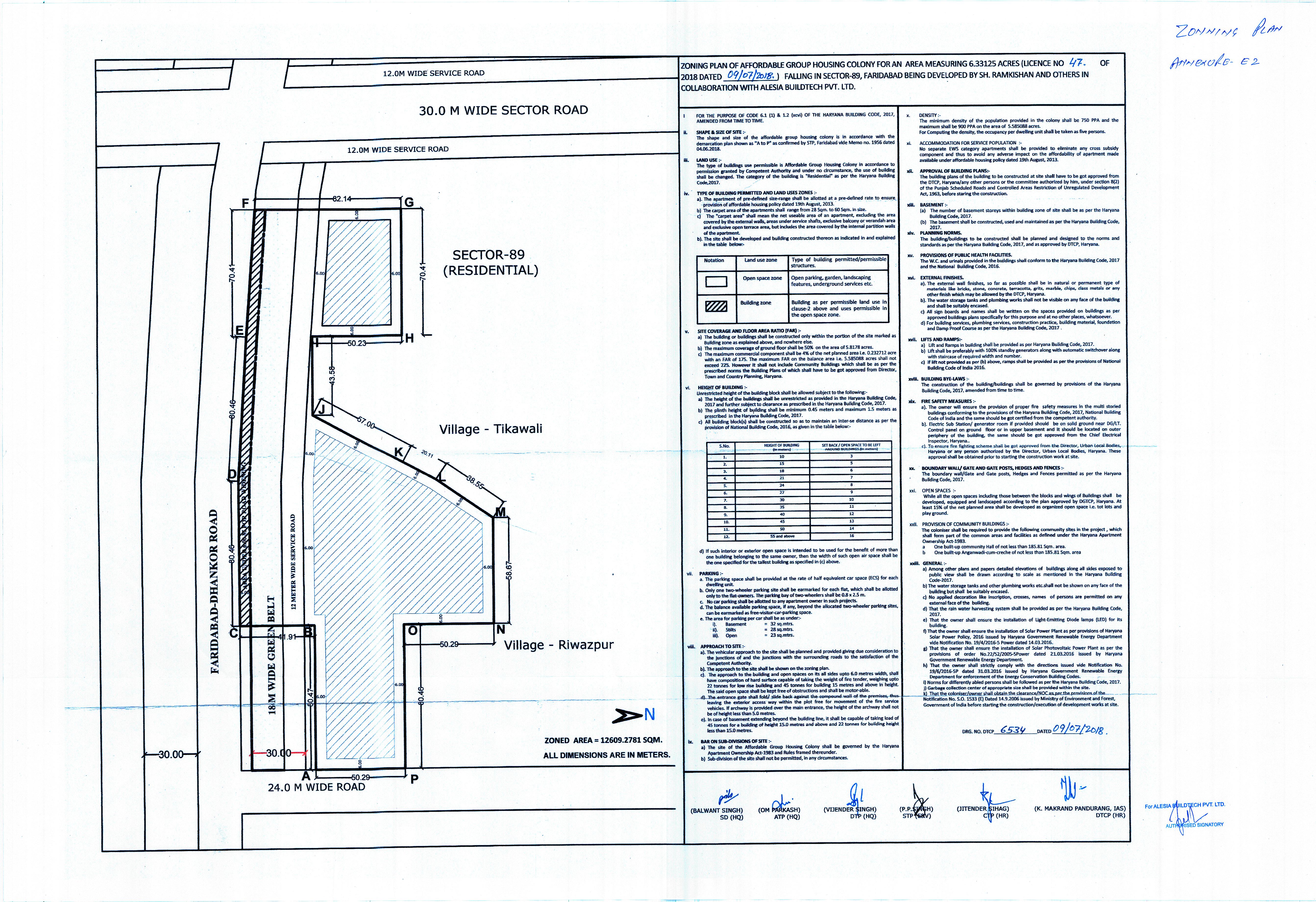
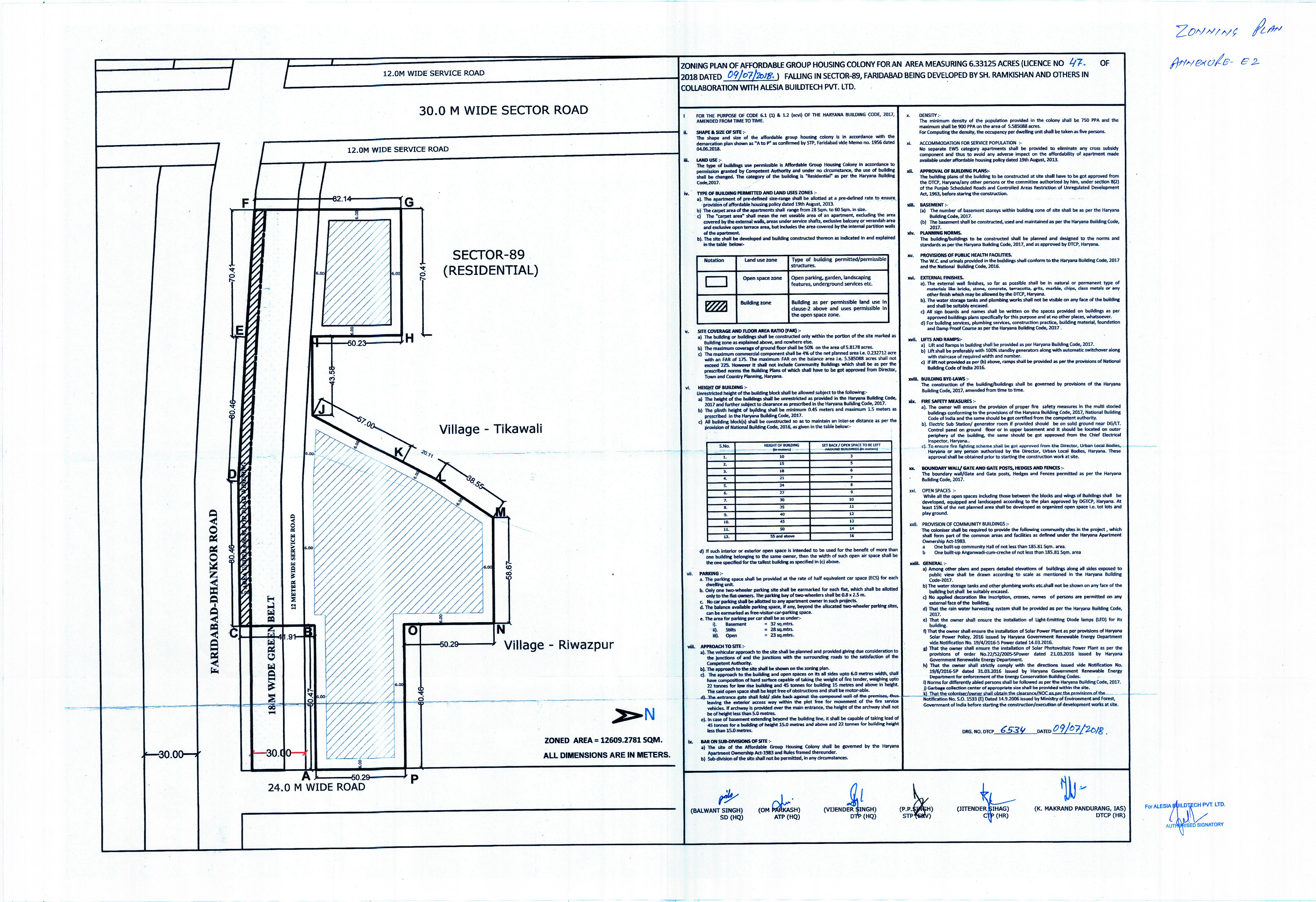
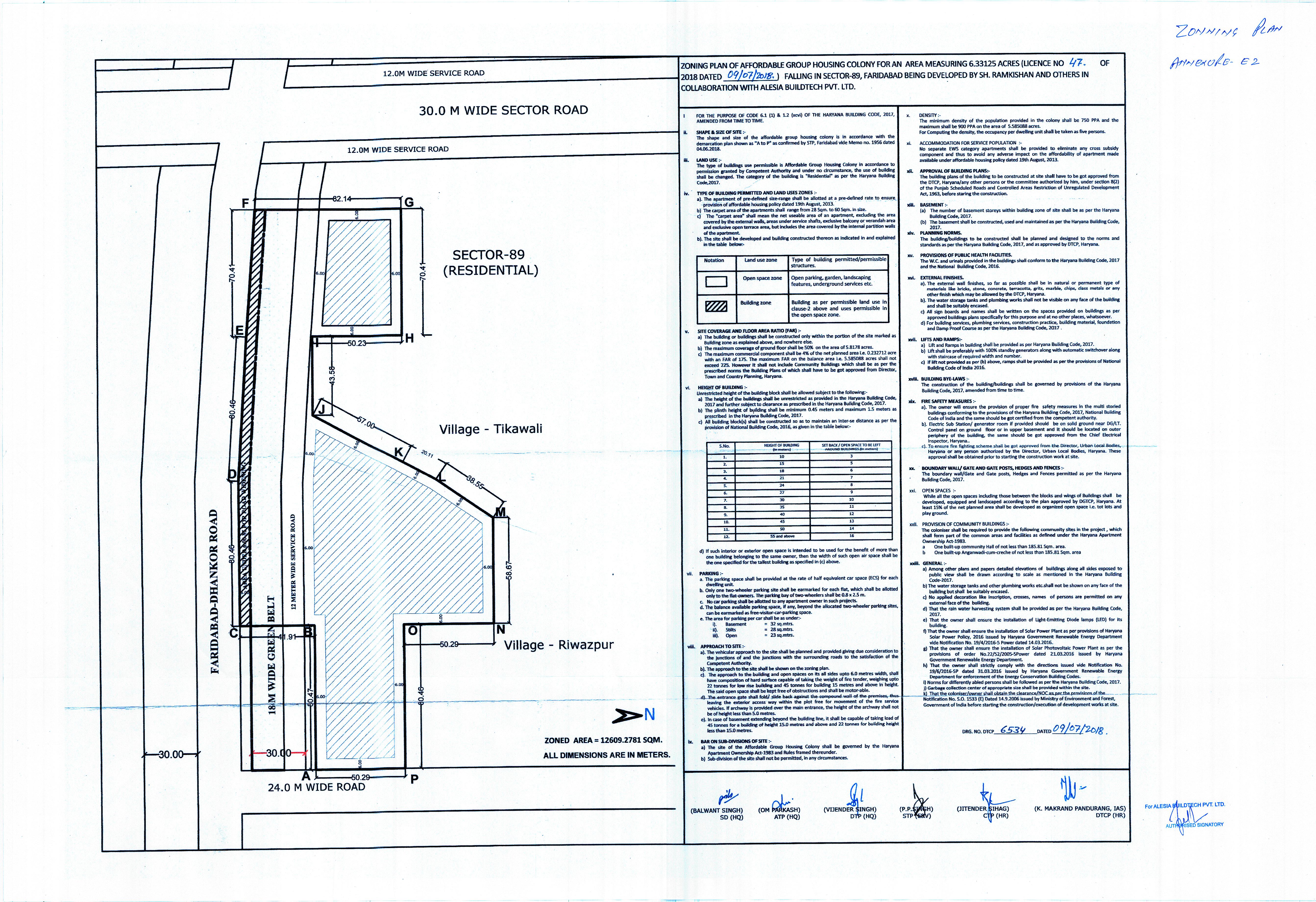
5 ZONING PLAN 29-10-2018 View Document
6 IN CASE OF GROUP HOUSING/ COMMERCIAL SITES, A COPY OF THE APPROVED SITE PLAN 29-10-2018 View Document
7 A COMPLETE SET OF THE LAST APPROVED BUILDING PLANS 29-10-2018 View Document
8 CERTIFICATE FROM A CHARTERED ACCOUNTANT CERTIFYING THAT THE INFORMSTION PROVIDED BY THE APPLICANT IN FORM REP-1-C-X IS CORRECT AS PER THE BOOKS OF ACCOUNTS/ BALANCE SHEET OF THE APPLICANT 29-10-2018 View Document
9 NON DEFAULT CERTIFICATE FROM A CHARTERED ACCOUNTANT 29-10-2018 View Document
10 IN CASE OF PLOTTED COLONY, THE LATEST LAYOUT PLAN 29-10-2018 View Document
11 CASH FLOW STATEMENT OF THE PROPOSED PROJECT 29-10-2018 View Document