HRERA PanchkulaTemp Project Id : RERA-PKL-PROJ-1197-2023
Submission Date : 10-01-2023 04:04:06 PM
Applicant Type : Company
Project Type: NEW




USG BUILDCON PRIVATE LIMITED
10-C, UNDERHILL ROAD, CIVIL LINES, DELHI-110054
01141315203
9810334541 (Number Shared by Promoter in Public)
info@usgroup.in
http://www.usgroup.in
XXXX796P
U45400DL2008PTC184895
 
 


 
 


 
 







US CITY
VILLAGE PADHANA, SECTOR 16 NILOKHERI
NILOKHERI
KARNAL
8930746465 (Number Shared by Promoter in Public)
info@usgroup.in
KAMAL SHARMA
01141315203
8930746465 (Number Shared by Promoter in Public)
info@usgroup.in








As per sub-rule(2) of rule 3 of the Haryana Real Estate (Regulation and Development) Rules,2017, the fee for registration of the project as has been calculated as follows:
-----------------------------------------------------------------------------------------------------------------------
-----------------------------------------------------------------------------------------------------------------------
-----------------------------------------------------------------------------------------------------------------------
-----------------------------------------------------------------------------------------------------------------------
2. The aforesaid fees is hereby deposited vide following Drafts/ Banker’s Cheques:-

Sr No.Draft/Cheque No.Draft DateAmountPayee BankPayable To
1152117-12-2022258500HDFC BANK LIMITED, GURANWALA TOWN, NEW DELHIHRERA Panchkula







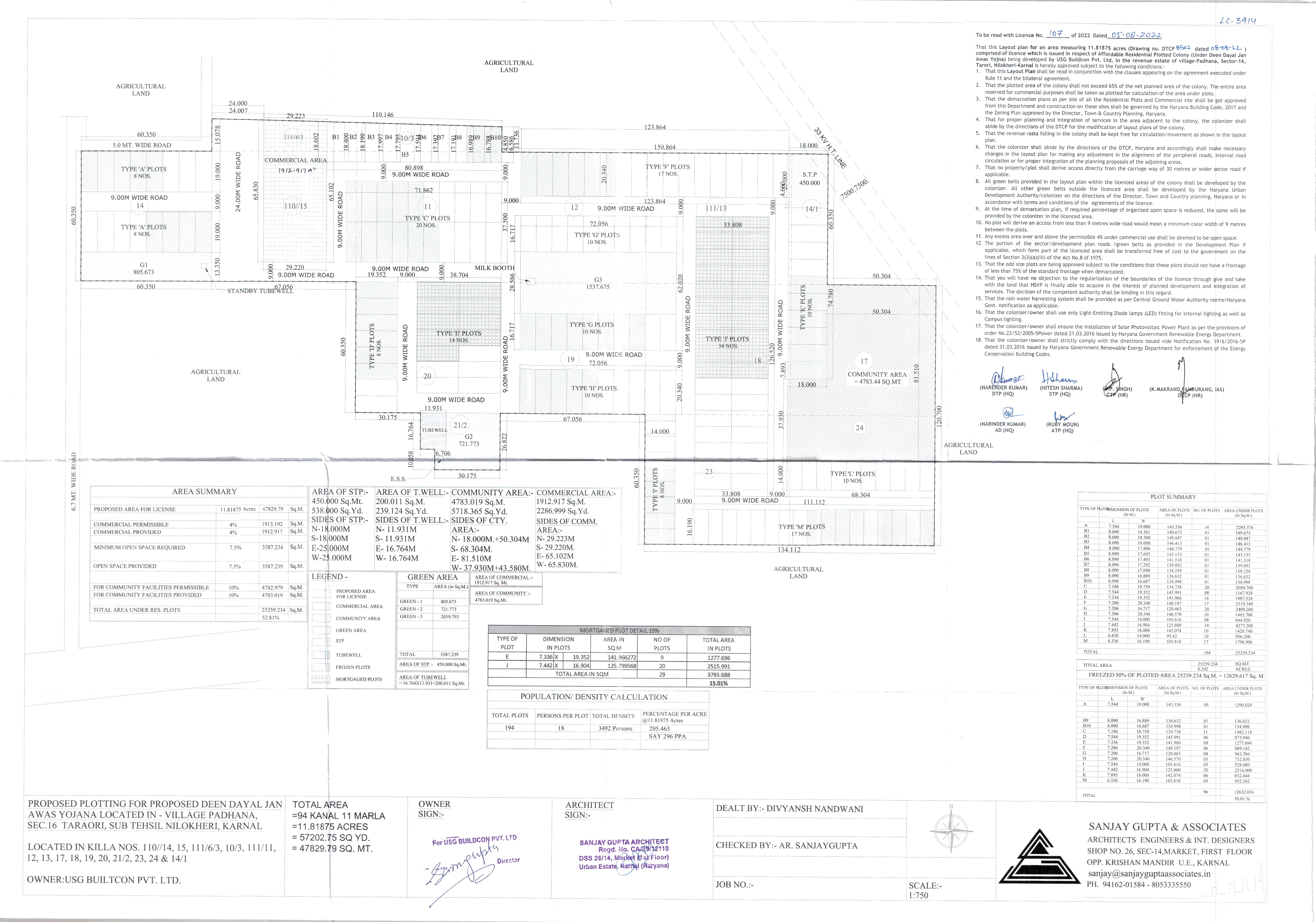
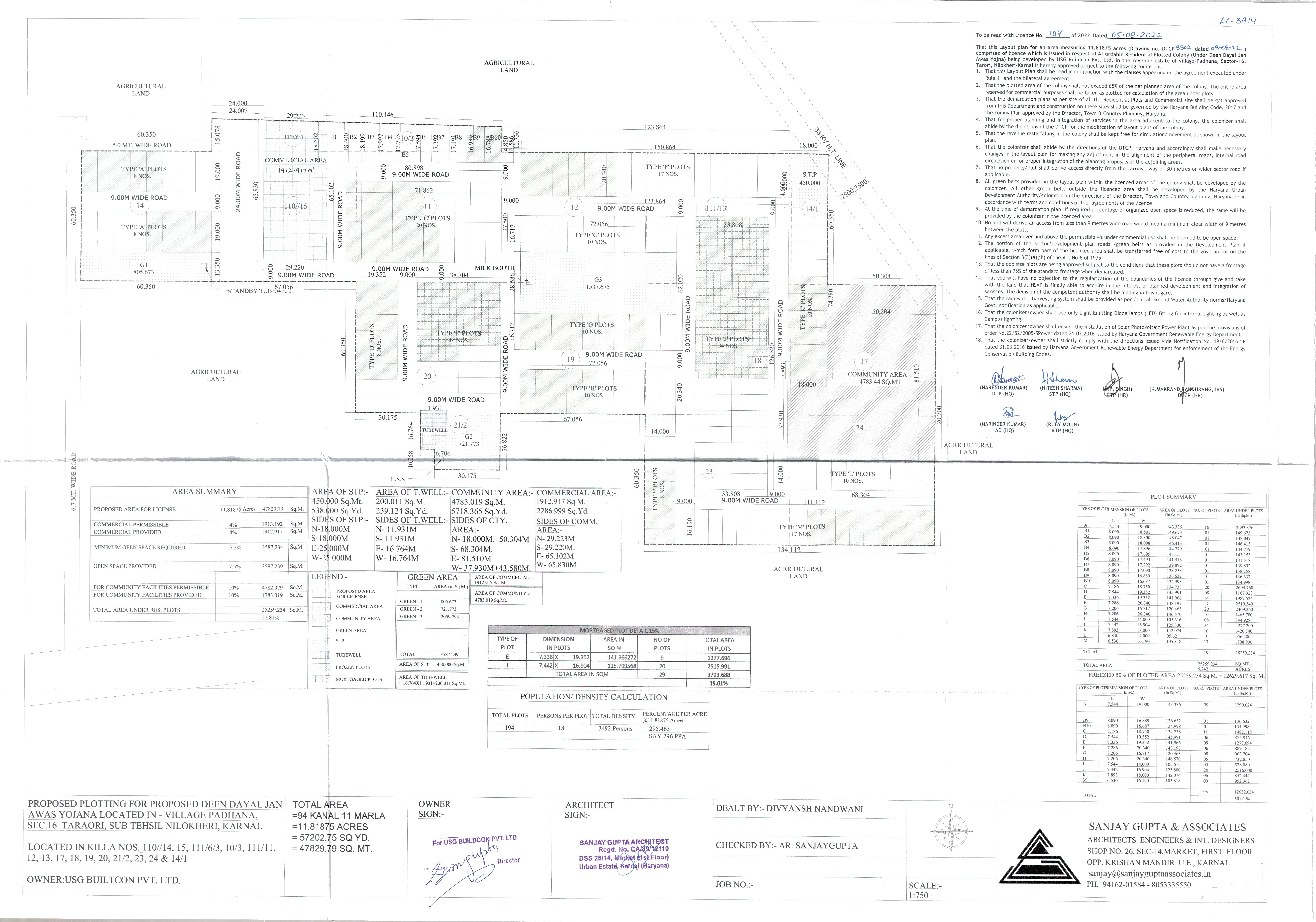
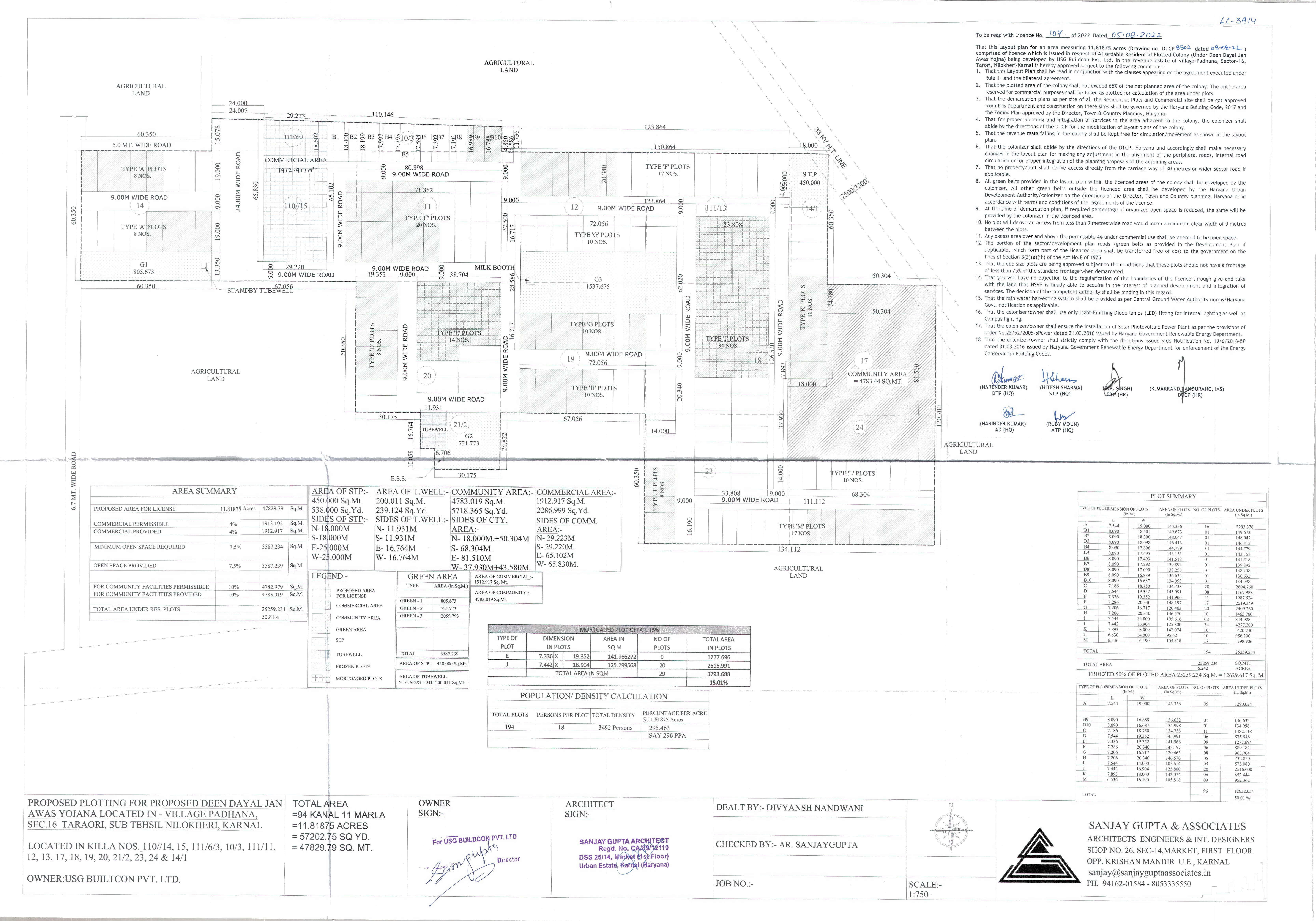
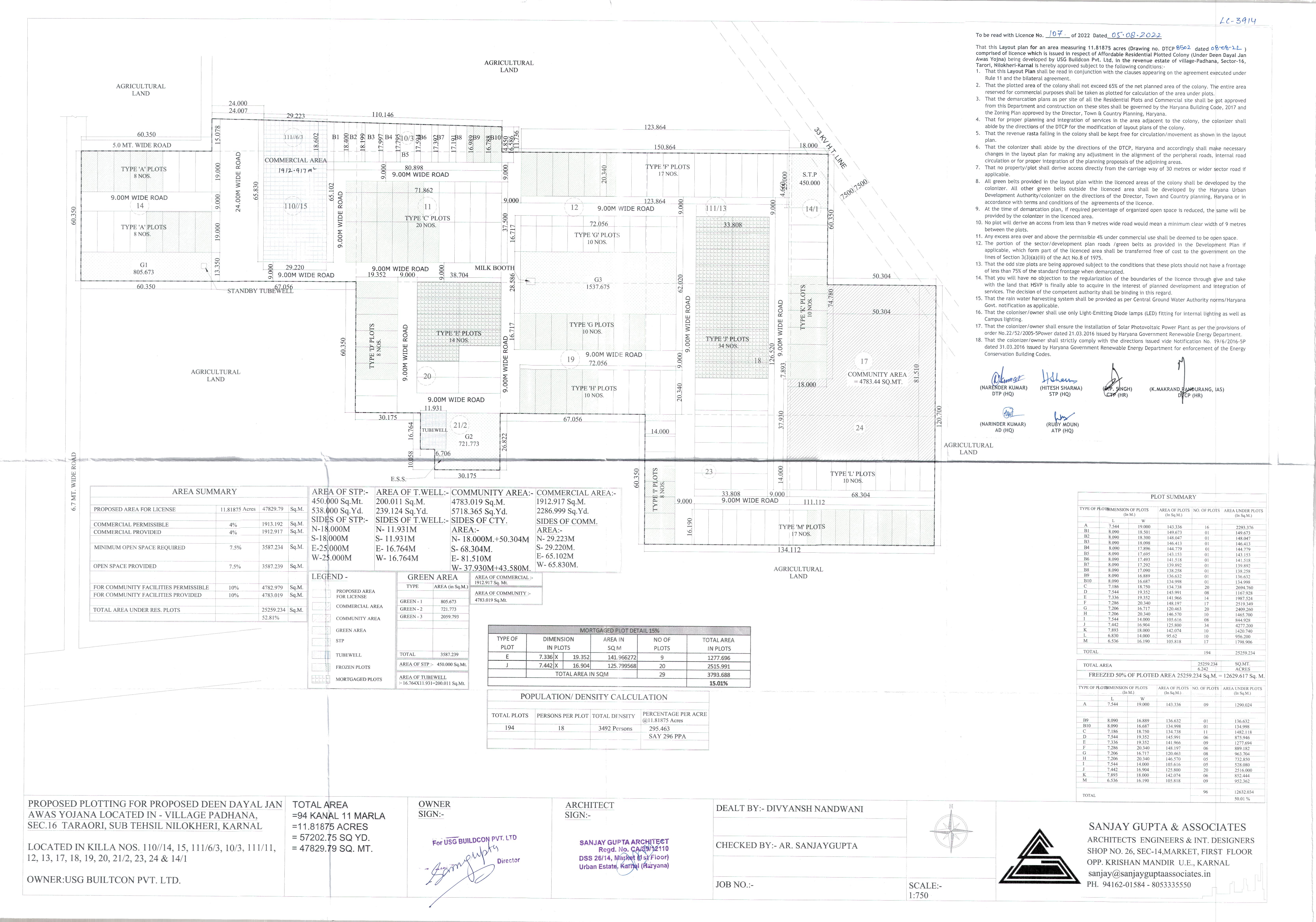
11.81875 (Acre)
100
100
11.81875 (Acre)
License No. 107 of 2022 dated 05.08.2022 (Valid upto 04.08.2027)
Yes







1875.67 Lakhs
593.86 Lakhs
0 Lakhs
1132.5 Lakhs
149.31 Lakhs




Sr. No.Land area under usageArea of land (Acres)
1PLOTS TO BE SOLD 6.24170
2LAND AREA TO BE USED FOR CONSTRUCTION OF APARTMENTS 0
3CONSTRUCTION OF ROADS 3.03602
4PAVEMENTS 0
5PARKS AND PLAYGROUNDS 0.88643
6GREEN BELTS 0
7VEHICLE PARKINGS 0
8ELECTRICITY SUB-STATION 0
9CLUB HOUSE 0
10SEWAGE AND SOLID WASTE TREATMENT FACILITY 0
11AREA TO BE LEFT FOR TRANSFERRING TO THE GOVERNMENT FOR COMMUNITY SERVICES 1.18191
12ANY OTHER 0
13COMMERCIAL 0.47269
Total11.81875




FacilityExternal/ connecting service to be provided by (Name the agency)Whether Approval taken from the agency concerned. Yes/No (Annex details in folder C)
ROADSHSVPNo
WATER SUPPLYHSVPNo
ELECTRICITYUHBVNLNo
SEWAGE DISPOSALHSVPNo
STORM WATER DRAINAGEHSVPNo




Sr. No.Name of the facilityEstimated cost (In Lakhs)(Within the project area only)Remarks: Yet to be prepared / Submitted to HUDA, Town & Country Planning Department/ as per project report etc. (Annex relevant documents showing costing details etc. in folder C)
1INTERNAL ROADS AND PAVEMENTS266.42AS PER PROJECT REPORT
2WATER SUPPLY SYSTEM246.25AS PER PROJECT REPORT
3STORM WATER DRAINAGE60.62AS PER PROJECT REPORT
4ELECTRICITY SUPPLY SYSTEM0YET TO BE PREPARED
5SEWAGE TREATMENT & GARBAGE DISPOSAL169.50AS PER PROJECT REPORT
6STREET LIGHTING45.34AS PER PROJECT REPORT
7SECURITY AND FIRE FIGHTING0YET TO BE PREPARED
8PLAYGROUNDS AND PARKS7.72YET TO BE PREPARED
9CLUB HOUSE/COMMUNITY CENTRE0YET TO BE PREPARED
10SHOPPING AREA0YET TO BE PREPARED
11RENEWABLE ENERGY SYSTEM0YET TO BE PREPARED
12SCHOOL0YET TO BE PREPARED
13HOSPITAL/DISPENSARY0YET TO BE PREPARED
14ANY OTHER336.65AS PER PROJECT REPORT


05-08-2022 (date)
NA (date)
13-01-2023
31-12-2026
Sr. No Plot Area(In Square Meter)Number of plots in the project
1 143.336 16
2 149.673 1
3 148.047 1
4 146.413 1
5 144.779 1
6 143.153 1
7 141.518 1
8 139.892 1
9 136.632 1
10 134.998 1
11 134.738 20
12 145.991 8
13 141.966 14
14 148.197 17
15 120.463 20
16 146.570 10
17 105.616 8
18 125.800 34
19 142.074 10
20 95.62 10
21 105.818 17
22 138.258 1
Total194


TypeCarpet area(In Square Meter)Number of apartmentsNumber of towers
Apartment/Shops/Other Buildings000





Expenditure incurred till the date of application (In Lakhs)

ParticularsExpenditure
Apartments0
Shops0
Plots0

Expenditure to be made in each quarter (In Lakhs)

ParticularsExpenditure to be made in each quarter ()
Apr-JuneJuly-SepOct-DecJan-Mar




Expenditure incurred till the date of application (In Lakhs)

ParticularsExpenditure

Expenditure to be made in each quarter (In Lakhs)

ParticularsYear-2023
Jan-MarApr-JuneJuly-SepOct-Dec
Roads & Pavements14.0214.0214.0214.02
Water Supply System12.9612.9612.9612.96
Sewerage treatment & garbage disposal8.928.928.928.92
Electricity Supply System2.392.392.392.39
Storm Water Drainage3.193.193.193.19
Parks and Playgrounds0.410.410.410.41
Clubhouse/community centres0000
Shopping area0000
Other17.7217.7217.7217.72

ParticularsYear-2024
Jan-MarApr-JuneJuly-SepOct-Dec
Roads & Pavements14.0214.0214.0214.02
Water Supply System12.9612.9612.9612.96
Sewerage treatment & garbage disposal8.928.928.928.92
Electricity Supply System2.392.392.392.39
Storm Water Drainage3.193.193.193.19
Parks and Playgrounds0.410.410.410.41
Clubhouse/community centres0000
Shopping area0000
Other17.7217.7217.7217.72

ParticularsYear-2025
Jan-MarApr-JuneJuly-SepOct-Dec
Roads & Pavements14.0214.0214.0214.02
Water Supply System12.9612.9612.9612.96
Sewerage treatment & garbage disposal8.928.928.928.92
Electricity Supply System2.392.392.392.39
Storm Water Drainage3.193.193.193.19
Parks and Playgrounds0.410.410.410.41
Clubhouse/community centres0000
Shopping area0000
Other17.7217.7217.7217.72

ParticularsYear-2026
Jan-MarApr-JuneJuly-SepOct-Dec
Roads & Pavements14.0214.0214.0270.11
Water Supply System12.9612.9612.9664.80
Sewerage treatment & garbage disposal8.928.928.9244.61
Electricity Supply System2.392.392.3911.93
Storm Water Drainage3.193.193.1915.95
Parks and Playgrounds0.410.410.412.03
Clubhouse/community centres0000
Shopping area0000
Other17.7217.7217.7288.59

ParticularsYear-2027
Jan-MarApr-JuneJuly-SepOct-Dec
Roads & Pavements000
Water Supply System000
Sewerage treatment & garbage disposal000
Electricity Supply System000
Storm Water Drainage000
Parks and Playgrounds000
Clubhouse/community centres000
Shopping area000
Other000












Yes
No
B-10, GUJRANWALA TOWN PART-1 RING ROAD, NEW DELHI-110009
50200004644883
HDFC0000247
110240031
0247
Mr. Servesh Gupta 10C, Under hill road, Civil Lines, New Delhi - 110054.
Uploaded in Upload Section.











Yes
No
No
No
No
No
No
No
No
No


No
No
No
No
No
No
No
No
Statutory Approvals Statutory Approvals StatusDate
I. LICENSE NO. 107 OF 2022 DATED 04.08.2022.ALREADY BEEN OBTAINED05-08-2022








Yes


Yes


The RERA Provisions have been incorporated in the proposed Draft Agreement.













SPECIFICATION OF CONSTRUCTION
Specification of apartments and other buildings including the following:
1FLOORING DETAILS OF VARIOUS PARTS OF HOUSENOT APPLICABLE FOR PLOTTED COLONY
2WALL FINISHING DETAILSNOT APPLICABLE FOR PLOTTED COLONY
3KITCHEN DETAILSNOT APPLICABLE FOR PLOTTED COLONY
4BATHROOM FITTINGSNOT APPLICABLE FOR PLOTTED COLONY
5WOOD WORK ETCNOT APPLICABLE FOR PLOTTED COLONY
6DOORS AND WINDOS FRAMESNOT APPLICABLE FOR PLOTTED COLONY
7GLASS WORKNOT APPLICABLE FOR PLOTTED COLONY
8ELECTRIC FITTINGSNOT APPLICABLE FOR PLOTTED COLONY
9CONDUCTING AND WIRING DETAILSNOT APPLICABLE FOR PLOTTED COLONY
10CUPBOARD DETAILSNOT APPLICABLE FOR PLOTTED COLONY
11WATER STORAGENOT APPLICABLE FOR PLOTTED COLONY
12LIFT DETAILSNOT APPLICABLE FOR PLOTTED COLONY
13EXTERNAL GLAZINGSNOT APPLICABLE FOR PLOTTED COLONY
13.1WINDOWS/GLAZINGSNOT APPLICABLE FOR PLOTTED COLONY
14DOORSNOT APPLICABLE FOR PLOTTED COLONY
14.1MAIN DOORSNOT APPLICABLE FOR PLOTTED COLONY
14.2INTERNAL DOORSNOT APPLICABLE FOR PLOTTED COLONY
15AIR CONDITIONINGNOT APPLICABLE FOR PLOTTED COLONY
16ELECTRICAL FITTINGSNOT APPLICABLE FOR PLOTTED COLONY
17CNG PIPE LINENOT APPLICABLE FOR PLOTTED COLONY
18PROVISION OF WIFI AND BROADBAND FACILITYNOT APPLICABLE FOR PLOTTED COLONY
19EXTERNAL FINISHING/COLOUR SCHEMENOT APPLICABLE FOR PLOTTED COLONY
20INTERNAL FINISHINGNOT APPLICABLE FOR PLOTTED COLONY
SPECIFICATION UNIT WISE
1 . LIVING/DINING/FOYER/FAMILY LOUNGE
1 . 1 FLOORNOT APPLICABLE FOR PLOTTED COLONY
1 . 2 WALLSNOT APPLICABLE FOR PLOTTED COLONY
1 . 3 CEILINGNOT APPLICABLE FOR PLOTTED COLONY
2 . MASTER BEDROOM/DRESSROOM
2 . 1 FLOORNOT APPLICABLE FOR PLOTTED COLONY
2 . 2 WALLSNOT APPLICABLE FOR PLOTTED COLONY
2 . 3 CEILINGNOT APPLICABLE FOR PLOTTED COLONY
2 . 4 MODULAR WARDROBESNOT APPLICABLE FOR PLOTTED COLONY
3 . MASTER TOILET
3 . 1 FLOORNOT APPLICABLE FOR PLOTTED COLONY
3 . 2 WALLSNOT APPLICABLE FOR PLOTTED COLONY
3 . 3 CEILINGNOT APPLICABLE FOR PLOTTED COLONY
3 . 4 COUNTERSNOT APPLICABLE FOR PLOTTED COLONY
3 . 5 SANITARY WARE/CP FITTINGSNOT APPLICABLE FOR PLOTTED COLONY
3 . 6 FITTING/FIXTURESNOT APPLICABLE FOR PLOTTED COLONY
4 . BED ROOMS
4 . 1 FLOORNOT APPLICABLE FOR PLOTTED COLONY
4 . 2 WALLSNOT APPLICABLE FOR PLOTTED COLONY
4 . 3 CEILINGNOT APPLICABLE FOR PLOTTED COLONY
4 . 4 WARDROBESNOT APPLICABLE FOR PLOTTED COLONY
5 . TOILET
5 . 1 FLOORNOT APPLICABLE FOR PLOTTED COLONY
5 . 2 WALLSNOT APPLICABLE FOR PLOTTED COLONY
5 . 3 CEILINGNOT APPLICABLE FOR PLOTTED COLONY
5 . 4 COUNTERSNOT APPLICABLE FOR PLOTTED COLONY
5 . 5 SANITARY WARE/CP FITTINGSNOT APPLICABLE FOR PLOTTED COLONY
5 . 6 FIXTURESNOT APPLICABLE FOR PLOTTED COLONY
6 . KITCHEN
6 . 1 FLOORNOT APPLICABLE FOR PLOTTED COLONY
6 . 2 WALLSNOT APPLICABLE FOR PLOTTED COLONY
6 . 3 CEILINGNOT APPLICABLE FOR PLOTTED COLONY
6 . 4 COUNTERSNOT APPLICABLE FOR PLOTTED COLONY
6 . 5 FIXTURESNOT APPLICABLE FOR PLOTTED COLONY
6 . 6 KITCHEN APPLIANCESNOT APPLICABLE FOR PLOTTED COLONY
7 . UTILITY ROOMS/UTILITY BALCONY/TOILET
7 . 1 FLOORNOT APPLICABLE FOR PLOTTED COLONY
7 . 2 WALLS & CEILINGNOT APPLICABLE FOR PLOTTED COLONY
7 . 3 TOILETNOT APPLICABLE FOR PLOTTED COLONY
7 . 4 BALCONYNOT APPLICABLE FOR PLOTTED COLONY
8 . SIT-OUTS
8 . 1 FLOORNOT APPLICABLE FOR PLOTTED COLONY
8 . 2 WALLS & CEILINGNOT APPLICABLE FOR PLOTTED COLONY
8 . 3 RAILINGSNOT APPLICABLE FOR PLOTTED COLONY
8 . 4 FIXTURESNOT APPLICABLE FOR PLOTTED COLONY












Sr. No.Document DescriptionDate of Document UploadView Document
1 NON DEFAULT CERTIFICATE FROM A CHARTERED ACCOUNTANT 03-01-2023 View Document
2 IN CASE OF GROUP HOUSING/ COMMERCIAL SITES, A COPY OF THE APPROVED SITE PLAN 03-01-2023 View Document
3 COPY OF LICENSE ALONG WITH SCHEDULE OF LAND 03-01-2023 View Document
4 DECLARATION SUPPORTED BY AFFIDAVIT DULY SIGNED BY THE PROMOTER TO BE ENCLOSED. 03-01-2023 View Document
5 IN CASE OF PLOTTED COLONY, THE LATEST LAYOUT PLAN 03-01-2023 View Document