HRERA PanchkulaTemp Project Id : RERA-PKL-PROJ-1181-2022
Submission Date : 24-12-2022 03:59:24 PM
Applicant Type : Company
Project Type: NEW




VIJAYLAXMI INFRABUILD PVT. LTD.
104, 929/1, NAIWALA, FAIZ ROAD, KAROL BAGH, NEW DELHI 110005
01128758433
9810324943 (Number Shared by Promoter in Public)
krishnaramuka@vijaylaxmiinfra.com
http://www.vijaylaxmiinfra.com/
XXXX758P
U45400DL2013PTC253148
 
 


 
 


 
 







VIJAYLAXMI ARCADE
VILLAGE JAUNDHI SECTOR 29
JHAJJAR
JHAJJAR
9810324943 (Number Shared by Promoter in Public)
krishnaramuka@vijaylaxmiinfra.com
SHAKTI SINGH
9416300124 (Number Shared by Promoter in Public)
shaktirajan@rediffmail.com








As per sub-rule(2) of rule 3 of the Haryana Real Estate (Regulation and Development) Rules,2017, the fee for registration of the project as has been calculated as follows:
-----------------------------------------------------------------------------------------------------------------------
-----------------------------------------------------------------------------------------------------------------------
-----------------------------------------------------------------------------------------------------------------------
-----------------------------------------------------------------------------------------------------------------------
2. The aforesaid fees is hereby deposited vide following Drafts/ Banker’s Cheques:-

Sr No.Draft/Cheque No.Draft DateAmountPayee BankPayable To
13113408-12-202213850AXIS BANK LTD.HRERA Panchkula







0.152 (Acre)
0.2283
0.15
5 (Acre)
LC 27 OF 2019
Yes







200.68 Lakhs
31.01 Lakhs
0 Lakhs
169.67 Lakhs
0 Lakhs




Sr. No.Land area under usageArea of land (Acres)
1PLOTS TO BE SOLD 0
2LAND AREA TO BE USED FOR CONSTRUCTION OF APARTMENTS 0
3CONSTRUCTION OF ROADS 0
4PAVEMENTS 0
5PARKS AND PLAYGROUNDS 0
6GREEN BELTS 0
7VEHICLE PARKINGS 0
8ELECTRICITY SUB-STATION 0
9CLUB HOUSE 0
10SEWAGE AND SOLID WASTE TREATMENT FACILITY 0
11AREA TO BE LEFT FOR TRANSFERRING TO THE GOVERNMENT FOR COMMUNITY SERVICES 0
12ANY OTHER 0
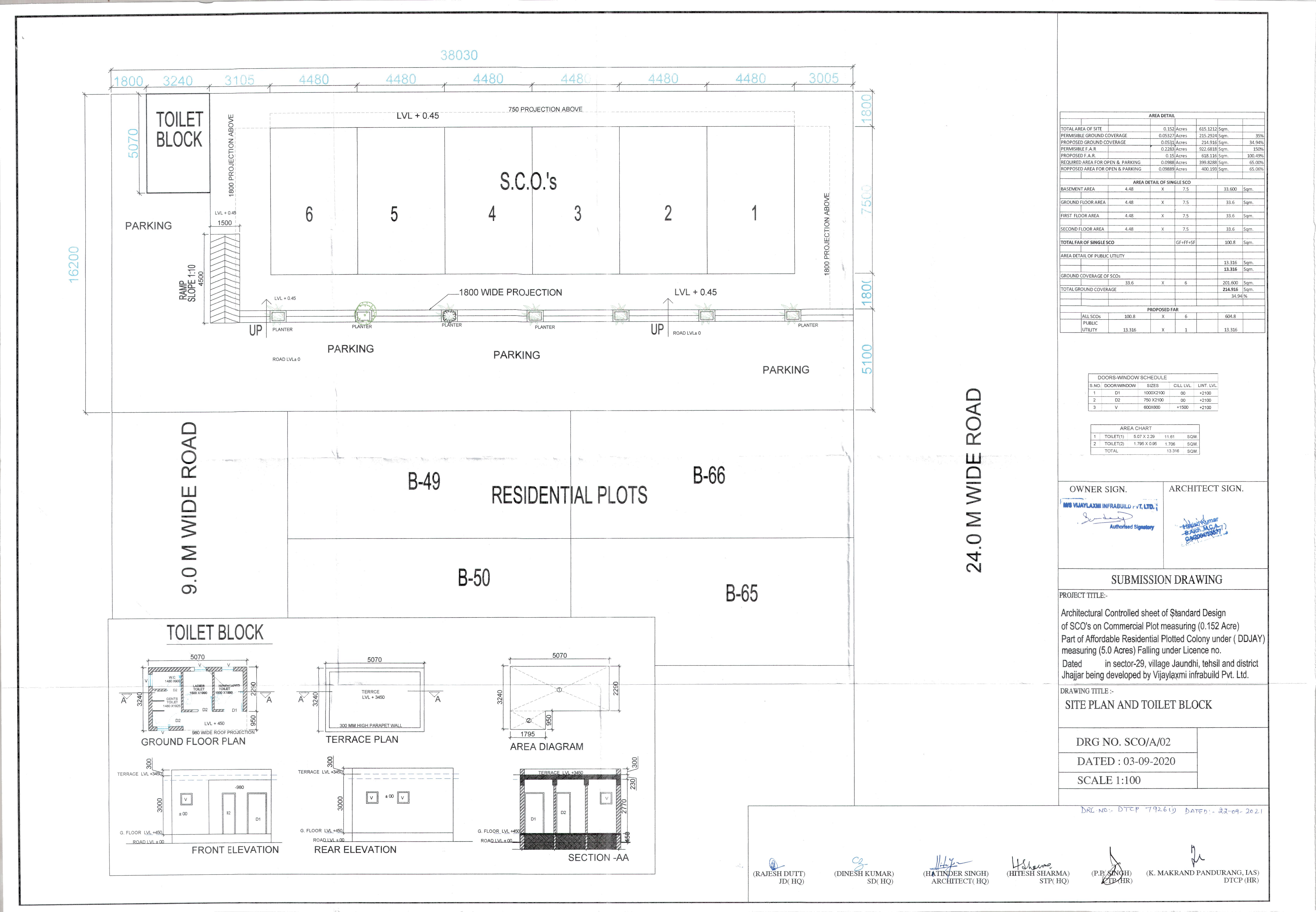
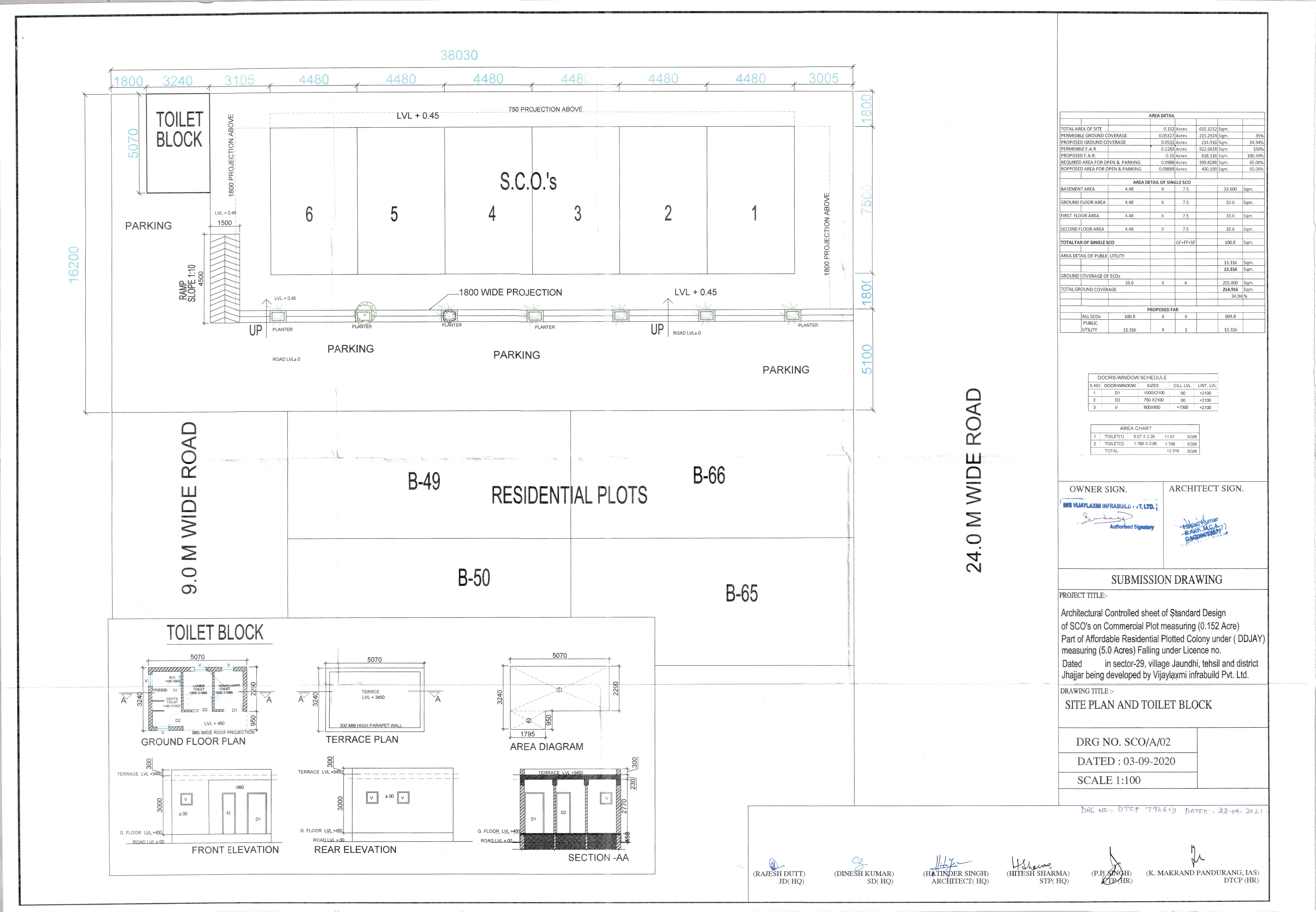
13SHOPPING 0.152
Total0.152




FacilityExternal/ connecting service to be provided by (Name the agency)Whether Approval taken from the agency concerned. Yes/No (Annex details in folder C)
ROADSNHAINo
WATER SUPPLYHUDANo
ELECTRICITYUHBVNLNo
SEWAGE DISPOSALHUDANo
STORM WATER DRAINAGEHUDANo




Sr. No.Name of the facilityEstimated cost (In Lakhs)(Within the project area only)Remarks: Yet to be prepared / Submitted to HUDA, Town & Country Planning Department/ as per project report etc. (Annex relevant documents showing costing details etc. in folder C)
1INTERNAL ROADS AND PAVEMENTS0AS PER PROJECT REPORT
2WATER SUPPLY SYSTEM0AS PER PROJECT REPORT
3STORM WATER DRAINAGE0AS PER PROJECT REPORT
4ELECTRICITY SUPPLY SYSTEM0AS PER PROJECT REPORT
5SEWAGE TREATMENT & GARBAGE DISPOSAL0AS PER PROJECT REPORT
6STREET LIGHTING0AS PER PROJECT REPORT
7SECURITY AND FIRE FIGHTING0AS PER PROJECT REPORT
8PLAYGROUNDS AND PARKS0AS PER PROJECT REPORT
9CLUB HOUSE/COMMUNITY CENTRE0AS PER PROJECT REPORT
10SHOPPING AREA200.68AS PER PROJECT REPORT
11RENEWABLE ENERGY SYSTEM0AS PER PROJECT REPORT
12SCHOOL0AS PER PROJECT REPORT
13HOSPITAL/DISPENSARY0AS PER PROJECT REPORT
14ANY OTHER0AS PER PROJECT REPORT


NA (date)
NA (date)
01-04-2022
31-01-2024
Sr. No Plot Area(In Square Meter)Number of plots in the project
1 0 0
Total0


TypeCarpet area(In Square Meter)Number of apartmentsNumber of towers
Apartment/Shops/Other Buildings359.0460





Expenditure incurred till the date of application (In Lakhs)

ParticularsExpenditure
Apartments0
Shops92.65
Plots0

Expenditure to be made in each quarter (In Lakhs)

ParticularsExpenditure to be made in each quarter ()
Apr-JuneJuly-SepOct-DecJan-Mar




Expenditure incurred till the date of application (In Lakhs)

ParticularsExpenditure
Roads & Pavements0
Water Supply System0
Sewerage treatment & garbage disposal0
Electricity Supply System5.31
Storm Water Drainage0
Parks and Playgrounds0
Clubhouse/community centres0
Shopping area89.75
Other1.64

Expenditure to be made in each quarter (In Lakhs)

ParticularsYear-2023
Jan-MarApr-JuneJuly-SepOct-Dec
Roads & Pavements0000
Water Supply System6322
Sewerage treatment & garbage disposal0000
Electricity Supply System221.691
Storm Water Drainage0000
Parks and Playgrounds0000
Clubhouse/community centres0000
Shopping area15877
Other1110.86

ParticularsYear-2024
Jan-MarApr-JuneJuly-SepOct-Dec
Roads & Pavements0
Water Supply System2
Sewerage treatment & garbage disposal0
Electricity Supply System1
Storm Water Drainage0
Parks and Playgrounds0
Clubhouse/community centres0
Shopping area4.25
Other0.5












Yes
No
KOTAK MAHINDRA BANK LTD
0147048729
KKBK0000285
110485014
0285
KULDIP SINGH RATHEE AND VIJAY RATHEE R/O FARM NO 82 ROAD NO.4 SILVER OAK MARG GHITORNI NEW DELHI 110030
NO DEBT/LIABILITY











Yes
Yes
Yes
Yes
Yes
Yes
No
Yes
Yes
No


No
No
No
No
No
No
No
No
Statutory Approvals Statutory Approvals StatusDate
I. LICENSEALREADY BEEN OBTAINED24-02-2019








Yes


Yes









VIJAYLAXMI GREENS, VILLAGE JAUNDHI, SEC 29, JHAJJAR
13.125
0
228
0
228
Initially estimated cost (In Lakhs)Revised cost (In Lakhs)Expenditure incurred upto the date of application (In Lakhs)
Total cost of the project
(Other than cost of land)
151415141509.44
Cost of the apartments000
Cost of the infrastructure125812581249.56
Others costs256256259.88


4914.01 Lakhs
0 Lakhs
0 Lakhs
0 Lakhs
No
29-11-2019
29-11-2019




VIJAYLAXMI GREENS I, VILLAGE JAUNDHI, SEC 29, JHAJJAR
5
0
88
0
88
Initially estimated cost (In Lakhs)Revised cost (In Lakhs)Expenditure incurred upto the date of application (In Lakhs)
Total cost of the project
(Other than cost of land)
490.85490.85490.85
Cost of the apartments000
Cost of the infrastructure421.85421.85421.85
Others costs696969


1816.94 Lakhs
0 Lakhs
0 Lakhs
0 Lakhs
No
31-12-2021
12-10-2021




VIJAYLAXMI GREENS II, VILLAGE JAUNDHI, SEC 29, JHAJJAR
13.35625
0
234
0
112
Initially estimated cost (In Lakhs)Revised cost (In Lakhs)Expenditure incurred upto the date of application (In Lakhs)
Total cost of the project
(Other than cost of land)
1653.521653.521614.2
Cost of the apartments000
Cost of the infrastructure142714271397.63
Others costs226.52226.52216.57


2993.04 Lakhs
5097 Lakhs
0 Lakhs
0 Lakhs
No
31-03-2023
15-11-2022










SPECIFICATION OF CONSTRUCTION
Specification of apartments and other buildings including the following:
1FLOORING DETAILS OF VARIOUS PARTS OF HOUSEVITRIFIED TILES
2WALL FINISHING DETAILSCEREMIC TILES UPTO 7 FEET HEIGHT OIL BOUND DISTEMPER
3KITCHEN DETAILSNA
4BATHROOM FITTINGSNA
5WOOD WORK ETCNA
6DOORS AND WINDOS FRAMESPOWDER COATED ALUMINUM WITH GLAZING FF - HARDWOOD FRAME WITH FLUSH SHUTTER IN ENAMEL PAINT
7GLASS WORKNA
8ELECTRIC FITTINGSMODULAR SWITCHES & SOCKETS
9CONDUCTING AND WIRING DETAILSNA
10CUPBOARD DETAILSNA
11WATER STORAGENA
12LIFT DETAILSNA
13EXTERNAL GLAZINGSNA
13.1WINDOWS/GLAZINGSPOWDER COATED ALUMINUM WITH GLAZING
14DOORSGF - LOCKABLE DOOR WITH MS ROLLING SHUTTER
14.1MAIN DOORSPOWDER COATED ALUMINUM WITH GLAZING
14.2INTERNAL DOORSNA
15AIR CONDITIONINGNA
16ELECTRICAL FITTINGSCOPPER WIRING
17CNG PIPE LINENA
18PROVISION OF WIFI AND BROADBAND FACILITYNA
19EXTERNAL FINISHING/COLOUR SCHEMEAPEX PAINT
20INTERNAL FINISHINGNA
SPECIFICATION UNIT WISE
1 . LIVING/DINING/FOYER/FAMILY LOUNGE
1 . 1 FLOORNA
1 . 2 WALLSNA
1 . 3 CEILINGNA
2 . MASTER BEDROOM/DRESSROOM
2 . 1 FLOORNA
2 . 2 WALLSNA
2 . 3 CEILINGNA
2 . 4 MODULAR WARDROBESNA
3 . MASTER TOILET
3 . 1 FLOORNA
3 . 2 WALLSNA
3 . 3 CEILINGNA
3 . 4 COUNTERSNA
3 . 5 SANITARY WARE/CP FITTINGSNA
3 . 6 FITTING/FIXTURESNA
4 . BED ROOMS
4 . 1 FLOORNA
4 . 2 WALLSNA
4 . 3 CEILINGNA
4 . 4 WARDROBESNA
5 . TOILET
5 . 1 FLOORNA
5 . 2 WALLSNA
5 . 3 CEILINGNA
5 . 4 COUNTERSNA
5 . 5 SANITARY WARE/CP FITTINGSNA
5 . 6 FIXTURESNA
6 . KITCHEN
6 . 1 FLOORNA
6 . 2 WALLSNA
6 . 3 CEILINGNA
6 . 4 COUNTERSNA
6 . 5 FIXTURESNA
6 . 6 KITCHEN APPLIANCESNA
7 . UTILITY ROOMS/UTILITY BALCONY/TOILET
7 . 1 FLOORNA
7 . 2 WALLS & CEILINGNA
7 . 3 TOILETNA
7 . 4 BALCONYNA
8 . SIT-OUTS
8 . 1 FLOORNA
8 . 2 WALLS & CEILINGNA
8 . 3 RAILINGSNA
8 . 4 FIXTURESNA












Sr. No.Document DescriptionDate of Document UploadView Document
1 APPROVAL LETTER- DEMARCATION PLAN 24-12-2022 ------
2 COPY OF LICENSE ALONG WITH SCHEDULE OF LAND 05-12-2022 View Document
3 BALANCE SHEET 2020-21 24-12-2022 ------
4 ALLOTMENT AGREEMENT 23-12-2022 ------
5 CA CERTIFICATE - MONEY UTILISATION STATEMENT 23-12-2022 ------
6 DTCP APPROVAL 23-12-2022 ------
7 CERTIFICATE FROM A CHARTERED ACCOUNTANT CERTIFYING THAT THE INFORMSTION PROVIDED BY THE APPLICANT IN FORM REP-1-C-X IS CORRECT AS PER THE BOOKS OF ACCOUNTS/ BALANCE SHEET OF THE APPLICANT 23-12-2022 View Document
8 DEMARCATION PLAN 24-12-2022 View Document
9 ZONING PLAN 23-12-2022 View Document
10 NON DEFAULT CERTIFICATE FROM A CHARTERED ACCOUNTANT 23-12-2022 View Document
11 BALANCE SHEET 2021-22 24-12-2022 ------
12 A COMPLETE SET OF THE LAST APPROVED BUILDING PLANS 23-12-2022 View Document
13 PROJECT REPORT 23-12-2022 ------
14 IN CASE OF PLOTTED COLONY, THE LATEST LAYOUT PLAN 23-12-2022 View Document
15 IN CASE OF GROUP HOUSING/ COMMERCIAL SITES, A COPY OF THE APPROVED SITE PLAN 23-12-2022 View Document
16 DECLARATION SUPPORTED BY AFFIDAVIT DULY SIGNED BY THE PROMOTER TO BE ENCLOSED. 23-12-2022 View Document
17 DD 24-12-2022 ------
18 SERVICE PLANS SHOWING THE SERVICES ON THE LAYOUT PLAN 24-12-2022 View Document
19 BALANCE SHEET 2019-20 24-12-2022 ------