HRERA GurugramTemp Project Id : RERA-GRG-PROJ-1137-2022
Submission Date : 22-08-2022 05:34:12 PM
Applicant Type : Company
Project Type: NEW




STERNAL BUILDCON PRIVATE LIMITED
13TH FLOOR, DR. GOPAL DAS BHAWAN, 28 BARAKHAMBA ROAD, CONNAUGHT PLACE, NEW DELHI CENTRAL DELHI DL 110001
01244908200
9810899381 (Number Shared by Promoter in Public)
compliance@signatureglobal.in
https://www.signatureglobal.in/
XXXX457N
U70109DL2009PTC195052
 
 


 
 


 
 


 
 


 
 


 
 







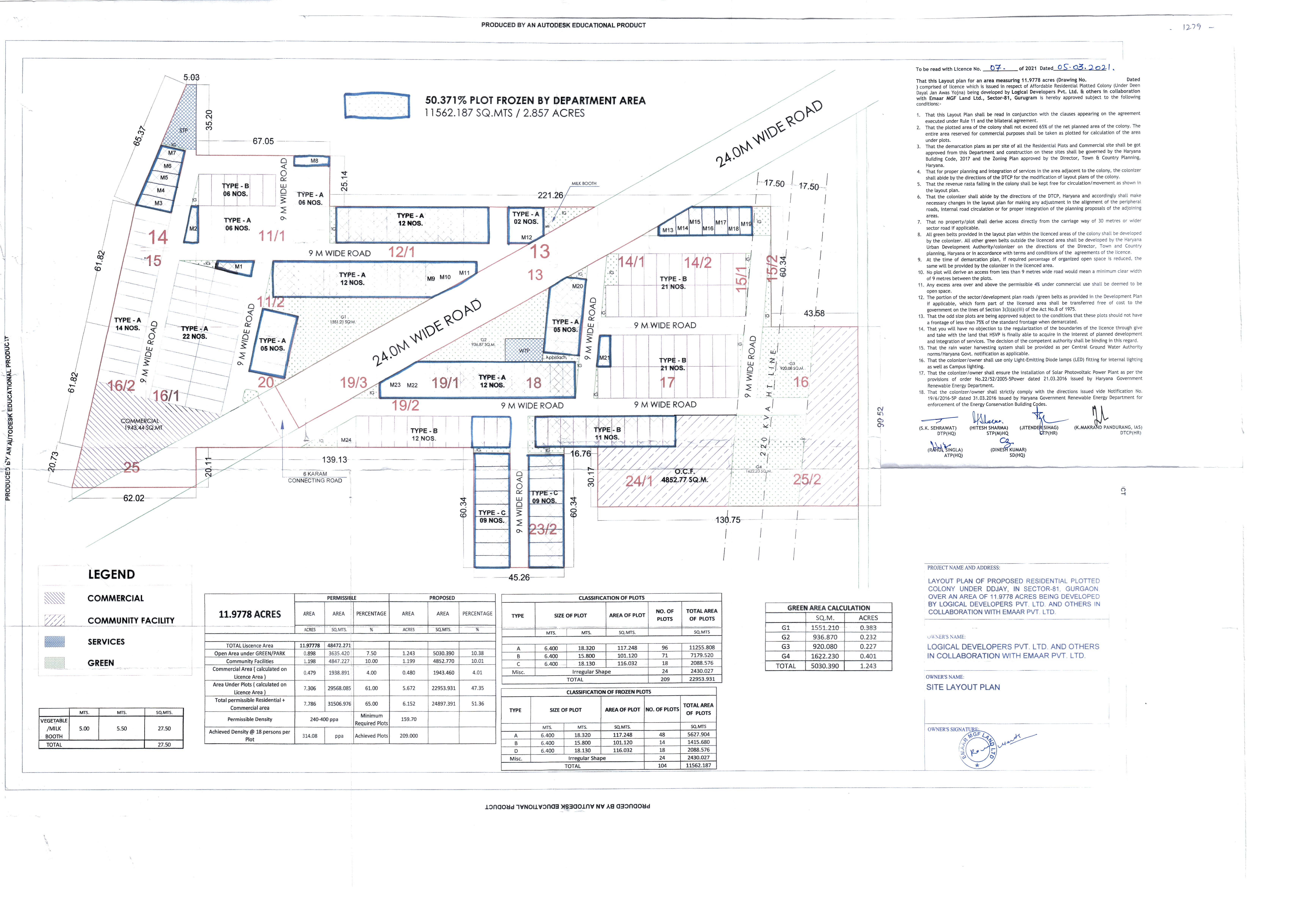
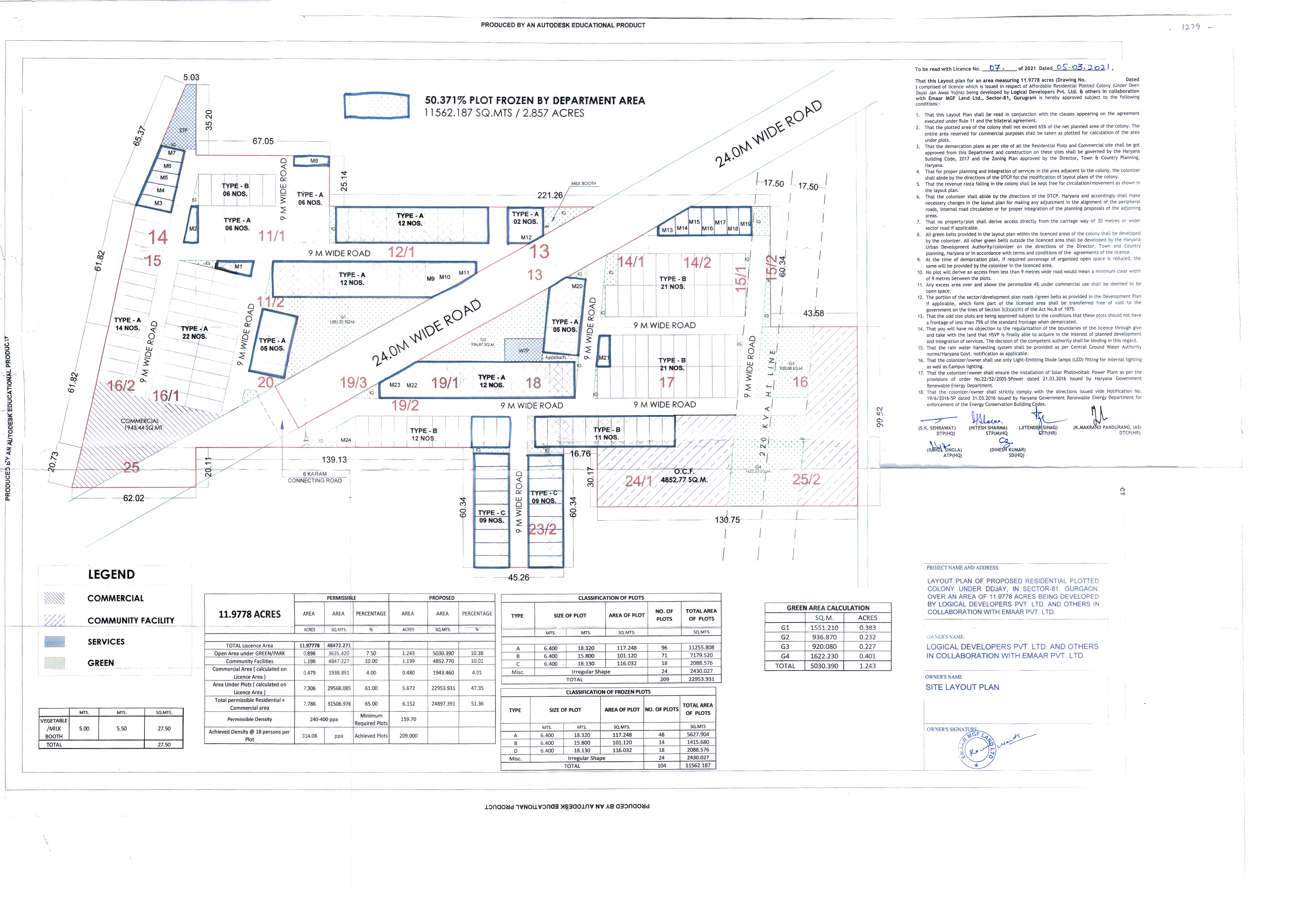
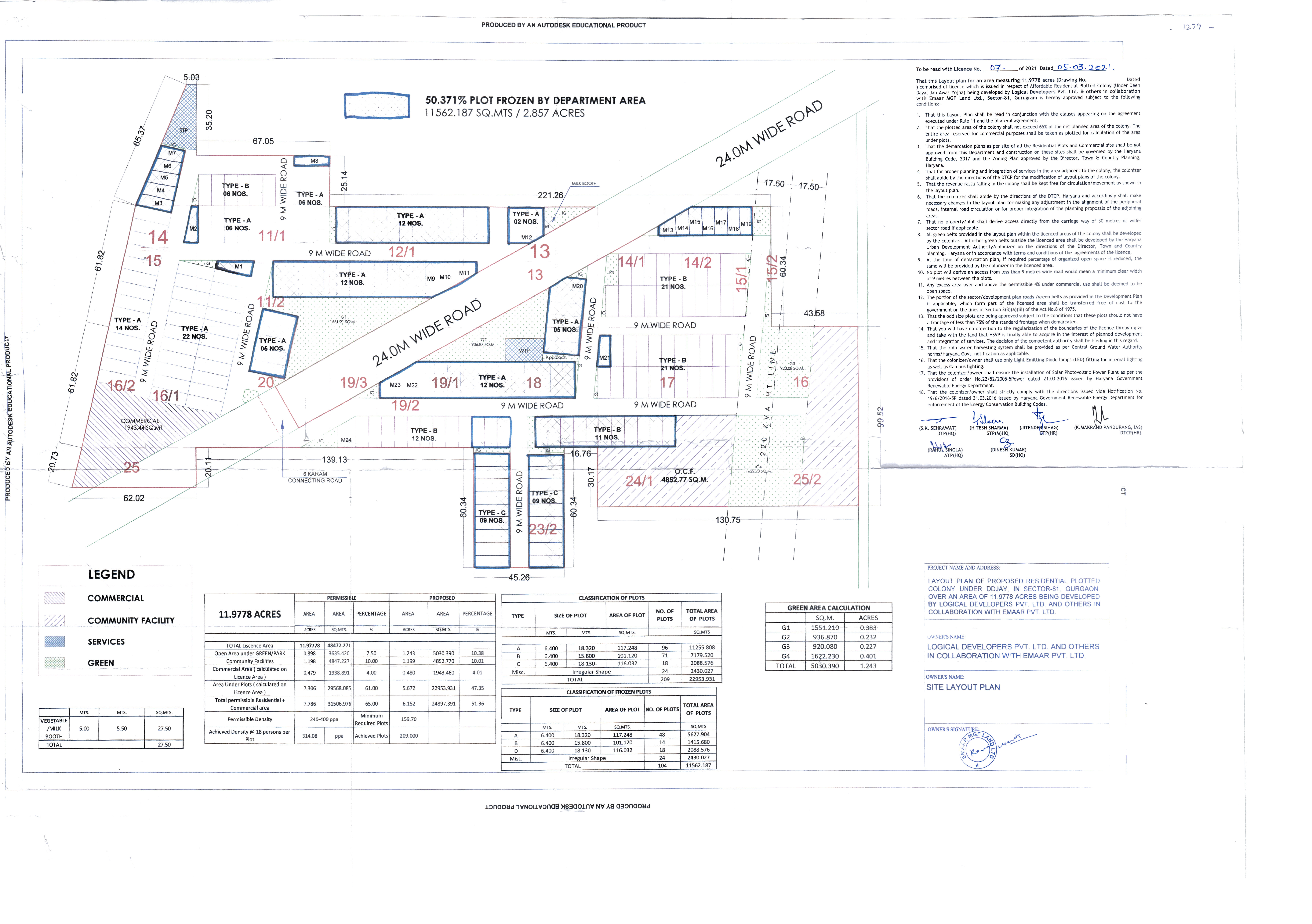
SIGNATURE GLOBAL CITY 81(2)
VILLAGE NAKHDOLA,SECTOR-81, GURUGRAM
MANESAR
GURUGRAM
01244908200
9810899381 (Number Shared by Promoter in Public)
compliance@sigantureglobal.in
MANISH GARG
9205187720 (Number Shared by Promoter in Public)
manish.garg@signatureglobal.in








As per sub-rule(2) of rule 3 of the Haryana Real Estate (Regulation and Development) Rules,2017, the fee for registration of the project as has been calculated as follows:
-----------------------------------------------------------------------------------------------------------------------
-----------------------------------------------------------------------------------------------------------------------
-----------------------------------------------------------------------------------------------------------------------
-----------------------------------------------------------------------------------------------------------------------
2. The aforesaid fees is hereby deposited vide following Drafts/ Banker’s Cheques:-

Sr No.Draft/Cheque No.Draft DateAmountPayee BankPayable To
186194419-08-2022805838INDUSIND BANK, BARAKHAMBA ROADHRERA Gurugram
286194719-08-2022305242INDUSIND BANK, BARAKHAMBA ROADHRERA Gurugram







2.7899 (Acre)
2.64
2.64
11.9778 (Acre)
07 of 2021 dated 05.03.2021
No
Address     306-308, 3RD FLOOR, SQUARE ONE, SAKET, NEW DELHI-110017
Address     306-308, 3RD FLOOR, SQUARE ONE, SAKET, NEW DELHI-110017
Address     306-308, 3RD FLOOR, SQUARE ONE, SAKET, NEW DELHI-110017
Address     EMAAR BUSINESS PARK, MG ROAD, SIKANDERPUR CHOWK, SECTOR-28, GURUGRAM, HARYANA-122002
Annexure-B- CHANGE OF DEVELOPER
AFTER GRANT OF LICENCE
No
ATTACHED
No
No
No







13957.15 Lakhs
1883.18 Lakhs
9750.18 Lakhs
0 Lakhs
2323.97 Lakhs




Sr. No.Land area under usageArea of land (Acres)
1PLOTS TO BE SOLD 0
2LAND AREA TO BE USED FOR CONSTRUCTION OF APARTMENTS 2.7899
3CONSTRUCTION OF ROADS 0
4PAVEMENTS 0
5PARKS AND PLAYGROUNDS 0
6GREEN BELTS 0
7VEHICLE PARKINGS 0
8ELECTRICITY SUB-STATION 0
9CLUB HOUSE 0
10SEWAGE AND SOLID WASTE TREATMENT FACILITY 0
11AREA TO BE LEFT FOR TRANSFERRING TO THE GOVERNMENT FOR COMMUNITY SERVICES 0
12ANY OTHER 0
Total2.7899




FacilityExternal/ connecting service to be provided by (Name the agency)Whether Approval taken from the agency concerned. Yes/No (Annex details in folder C)
ROADSGMDA-CONNECTEDNo
WATER SUPPLYGMDANo
ELECTRICITYDHBVNNo
SEWAGE DISPOSALGMDANo
STORM WATER DRAINAGENANo




Sr. No.Name of the facilityEstimated cost (In Lakhs)(Within the project area only)Remarks: Yet to be prepared / Submitted to HUDA, Town & Country Planning Department/ as per project report etc. (Annex relevant documents showing costing details etc. in folder C)
1INTERNAL ROADS AND PAVEMENTS0AS PER PROJECT REPORT
2WATER SUPPLY SYSTEM0AS PER PROJECT REPORT
3STORM WATER DRAINAGE0AS PER PROJECT REPORT
4ELECTRICITY SUPPLY SYSTEM0AS PER PROJECT REPORT
5SEWAGE TREATMENT & GARBAGE DISPOSAL0AS PER PROJECT REPORT
6STREET LIGHTING0AS PER PROJECT REPORT
7SECURITY AND FIRE FIGHTING0AS PER PROJECT REPORT
8PLAYGROUNDS AND PARKS0AS PER PROJECT REPORT
9CLUB HOUSE/COMMUNITY CENTRE0AS PER PROJECT REPORT
10SHOPPING AREA0YET TO BE PREPARED
11RENEWABLE ENERGY SYSTEM0AS PER PROJECT REPORT
12SCHOOL0AS PER PROJECT REPORT
13HOSPITAL/DISPENSARY0AS PER PROJECT REPORT
14ANY OTHER0AS PER PROJECT REPORT


05-03-2021 (date)
08-08-2022 (date)
01-09-2022
28-02-2026
Sr. No Plot Area(In Square Meter)Number of plots in the project
1 0 0
Total0


TypeCarpet area(In Square Meter)Number of apartmentsNumber of towers
Apartment/Shops/Other Buildings66.1419248
Apartment/Shops/Other Buildings54.9405614
Apartment/Shops/Other Buildings63.557218
Apartment/Shops/Other Buildings64.4541
Apartment/Shops/Other Buildings58.3341
Apartment/Shops/Other Buildings58.0741
Apartment/Shops/Other Buildings54.3841
Apartment/Shops/Other Buildings48.9741
Apartment/Shops/Other Buildings43.9341
Apartment/Shops/Other Buildings43.541
Apartment/Shops/Other Buildings51.2741
Apartment/Shops/Other Buildings59.2841
Apartment/Shops/Other Buildings51.5341
Apartment/Shops/Other Buildings55.5641
Apartment/Shops/Other Buildings35.7741
Apartment/Shops/Other Buildings28.28541
Apartment/Shops/Other Buildings41.5241
Apartment/Shops/Other Buildings50.15205
Apartment/Shops/Other Buildings49.4941
Apartment/Shops/Other Buildings50.5141
Apartment/Shops/Other Buildings86.7241





Expenditure incurred till the date of application (In Lakhs)

ParticularsExpenditure
Apartments0
Shops0
Plots0
EDC213.02
IDC72.6
Land cost1883.18
Other Cost95.44

Expenditure to be made in each quarter (In Lakhs)

ParticularsYear-2022
Jan-MarApr-JuneJuly-SepOct-Dec
Apartments00200.00400.00
Shops0000
Plots0000
OTHER COST0093.1298.86
EDC55.19

ParticularsYear-2023
Jan-MarApr-JuneJuly-SepOct-Dec
Apartments500.00500.00700.00700.00
Shops0000
Plots0000
OTHER COST119.0989.32134.54129.77
EDC50.3722.66

ParticularsYear-2024
Jan-MarApr-JuneJuly-SepOct-Dec
Apartments1250125010001000
Shops0000
Plots0000
OTHER COST100.00200.00200.00200.00

ParticularsYear-2025
Jan-MarApr-JuneJuly-SepOct-Dec
Apartments10001250
Shops00
Plots00
OTHER COST200.00250.00




Expenditure incurred till the date of application (In Lakhs)

ParticularsExpenditure
Roads & Pavements0
Water Supply System0
Sewerage treatment & garbage disposal0
Electricity Supply System0
Storm Water Drainage0
Parks and Playgrounds0
Clubhouse/community centres0
Shopping area0
Other0

Expenditure to be made in each quarter (In Lakhs)

ParticularsYear-2022
Jan-MarApr-JuneJuly-SepOct-Dec
Roads & Pavements0
Water Supply System0
Sewerage treatment & garbage disposal0
Electricity Supply System0
Storm Water Drainage0
Parks and Playgrounds0
Clubhouse/community centres0
Shopping area0
Other0












Yes
No
KOTAK MAHINDRA BANK LTD., UNIT NO. 8 & 9, SEWA CORPORATE PARK, MG ROAD, GURUGRAM- 122002 HARYANA
4047102369
KKBK0000261
110485003
000261
Pradeep Kumar Aggarwal & Lalit Kumar Aggarwal, Address-House No 34 Road No 61 West Punjabi Bagh Delhi 110026
Attached











Yes
Yes
Yes
Yes
Yes
Yes
Yes
Yes
Yes
Yes


Yes
Yes
Yes
Yes
Yes
Yes
Yes
Yes
Statutory Approvals Statutory Approvals StatusDate
I. LICENSE APPROVALALREADY BEEN OBTAINED05-03-2021
II. ZONING PLAN APPROVALALREADY BEEN OBTAINED20-04-2021
III. SITE LAYOUT PLAN APPROVALALREADY BEEN OBTAINED05-03-2021
IV. ENVIRONMENT CLEARANCE APPROVAL BASED ON LATEST APPROVED BUILDING PLANALREADY BEEN OBTAINED03-03-2021
V. BUILDING PLANALREADY BEEN OBTAINED08-08-2022
VI. COMMERCIAL BUILDING PLANALREADY BEEN OBTAINED24-05-2021








Yes


Yes


As attached







SERENAS, REVENUE ESTATE OF VILLAGE DHUNELA TEHSIL SOHNA DISTRICT GURUGRAM
9.775
1304
0
1268
0
Initially estimated cost (In Lakhs)Revised cost (In Lakhs)Expenditure incurred upto the date of application (In Lakhs)
Total cost of the project
(Other than cost of land)
26024028838.95
Cost of the apartments14959.36018026.77
Cost of the infrastructure1114.5200
Others costs9950.12010812.18


21062.78 Lakhs
889.10 Lakhs
5000 Lakhs
5000 Lakhs
No
17-05-2021
17-05-2021




SIGNATURE GLOBAL CITY 81, VILLAGE NAKHDOLA, SECTOR 81 TEHSIL GURGAON DISTRICT GURUGRAM
11.9778
209
0
0
0
Initially estimated cost (In Lakhs)Revised cost (In Lakhs)Expenditure incurred upto the date of application (In Lakhs)
Total cost of the project
(Other than cost of land)
12745.0604006.80
Cost of the apartments000
Cost of the infrastructure1591.20731.67
Others costs11153.8603275.12


0 Lakhs
0 Lakhs
2500 Lakhs
2403.52 Lakhs
No
30-06-2023
30-06-2023




SIGNATURE GLOBAL CITY 81, VILLAGE NAKHDOLA, SECTOR 81 TEHSIL GURGAON DISTRICT GURUGRAM
9.12
418
0
0
0
Initially estimated cost (In Lakhs)Revised cost (In Lakhs)Expenditure incurred upto the date of application (In Lakhs)
Total cost of the project
(Other than cost of land)
22287.91007545.80
Cost of the apartments1100003413.29
Cost of the infrastructure1068.60231.67
Others costs10219.3103900.84


8144.04 Lakhs
14459.8 Lakhs
2403.52 Lakhs
2403.52 Lakhs
No
28-02-2024
28-02-2024




SIGNATURE GLOBAL INFINITY, SECTOR-36 TEHSIL GURGAON DISTRICT GURUGRAM
2.15
595
0
595
0
Initially estimated cost (In Lakhs)Revised cost (In Lakhs)Expenditure incurred upto the date of application (In Lakhs)
Total cost of the project
(Other than cost of land)
14258.1100
Cost of the apartments9898.8302663.03
Cost of the infrastructure431.620114.20
Others costs3927.640331.6


2133.06 Lakhs
14602.72 Lakhs
2000 Lakhs
2000 Lakhs
No
28-02-2026
28-02-2026




SIGNATURE GLOBAL SUPERBIA, VILLAGE DHORKA, SECTOR 95, GURUGRAM, HARYANA TEHSIL GURGAON DISTRICT GURUGRAM
7.325
1166
0
0
0
Initially estimated cost (In Lakhs)Revised cost (In Lakhs)Expenditure incurred upto the date of application (In Lakhs)
Total cost of the project
(Other than cost of land)
25914.4003444.52
Cost of the apartments13259.2002795.56
Cost of the infrastructure868.2000
Others costs1178703444.52


10425.58 Lakhs
18451.41 Lakhs
6000 Lakhs
6000 Lakhs
No
31-12-2024
31-12-2024




THE MILLENNIA-3, VILLAGE GADOLI KALAN, SECTOR 37D TEHSIL GURGAON DISTRICT GURUGRAM
9.103
1322
0
0
0
Initially estimated cost (In Lakhs)Revised cost (In Lakhs)Expenditure incurred upto the date of application (In Lakhs)
Total cost of the project
(Other than cost of land)
32438.37011969.13
Cost of the apartments16180.6005873.24
Cost of the infrastructure1130.8700
Others costs14926.906095.89


20307.88 Lakhs
15719.44 Lakhs
0 Lakhs
0 Lakhs
No
31-12-2024
31-12-2024




THE MILLENNIA-IV, VILLAGE GADAULI KALAN, SECTOR 37D, GURUGRAM-MANESAR, DIST. GURUGRAM, HARYANA TEHSIL GURGAON DISTRICT GURUGRAM
5.89
814
0
0
0
Initially estimated cost (In Lakhs)Revised cost (In Lakhs)Expenditure incurred upto the date of application (In Lakhs)
Total cost of the project
(Other than cost of land)
23688.9503533.40
Cost of the apartments11202.8901644.03
Cost of the infrastructure731.7600
Others costs11754.301689.37


6527.68 Lakhs
20658.09 Lakhs
0 Lakhs
0 Lakhs
No
31-12-2025
31-12-2025










SPECIFICATION OF CONSTRUCTION
Specification of apartments and other buildings including the following:
1FLOORING DETAILS OF VARIOUS PARTS OF HOUSEVITRIFIED & CERAMIC TILES
2WALL FINISHING DETAILSCERAMIC KAJARIA, VARMORA, ORIENT
3KITCHEN DETAILSOPEN KITCHEN
4BATHROOM FITTINGSKAJARIA, VARMORA, ORIENT
5WOOD WORK ETCNA
6DOORS AND WINDOS FRAMESLAMINATED, 34MM THICK
7GLASS WORKLAMINATED, 34MM THICK
8ELECTRIC FITTINGSPOLYCAB/HA VELLS/RR CABLES
9CONDUCTING AND WIRING DETAILSPOLYCAB/HA VELLS/RR CABLES
10CUPBOARD DETAILSNA
11WATER STORAGENA
12LIFT DETAILSOTIS/FUGITE CH
13EXTERNAL GLAZINGSNA
13.1WINDOWS/GLAZINGSNA
14DOORSLAMINATED, 34MM THICK
14.1MAIN DOORSLAMINATED, 34MM THICK
14.2INTERNAL DOORSLAMINATED, 34MM THICK
15AIR CONDITIONINGNA
16ELECTRICAL FITTINGSAKG/BEC/MO RPACK
17CNG PIPE LINENA
18PROVISION OF WIFI AND BROADBAND FACILITYNA
19EXTERNAL FINISHING/COLOUR SCHEMENA
20INTERNAL FINISHINGNA
SPECIFICATION UNIT WISE
1 . LIVING/DINING/FOYER/FAMILY LOUNGE
1 . 1 FLOORVITRIFIED & CERAMIC TILES
1 . 2 WALLSOBD
1 . 3 CEILINGOBD
2 . MASTER BEDROOM/DRESSROOM
2 . 1 FLOORVITRIFIED & CERAMIC TILES
2 . 2 WALLSOBD
2 . 3 CEILINGOBD
2 . 4 MODULAR WARDROBESNA
3 . MASTER TOILET
3 . 1 FLOORVITRIFIED & CERAMIC TILES
3 . 2 WALLSOBD
3 . 3 CEILINGOBD
3 . 4 COUNTERSNA
3 . 5 SANITARY WARE/CP FITTINGSVECTOW/BIR LA/SUPREM E
3 . 6 FITTING/FIXTURESNA
4 . BED ROOMS
4 . 1 FLOORVITRIFIED & CERAMIC TILES
4 . 2 WALLSOBD
4 . 3 CEILINGOBD
4 . 4 WARDROBESNA
5 . TOILET
5 . 1 FLOORVITRIFIED & CERAMIC TILES
5 . 2 WALLSOBD
5 . 3 CEILINGOBD
5 . 4 COUNTERSNA
5 . 5 SANITARY WARE/CP FITTINGSVECTOW/BIR LA/SUPREM E
5 . 6 FIXTURESNA
6 . KITCHEN
6 . 1 FLOORVITRIFIED & CERAMIC TILES
6 . 2 WALLSOBD
6 . 3 CEILINGOBD
6 . 4 COUNTERSNA
6 . 5 FIXTURESNA
6 . 6 KITCHEN APPLIANCESNA
7 . UTILITY ROOMS/UTILITY BALCONY/TOILET
7 . 1 FLOORVITRIFIED & CERAMIC TILES
7 . 2 WALLS & CEILINGOBD
7 . 3 TOILETNA
7 . 4 BALCONYNA
8 . SIT-OUTS
8 . 1 FLOORNA
8 . 2 WALLS & CEILINGNA
8 . 3 RAILINGSNA
8 . 4 FIXTURESNA












Sr. No.Document DescriptionDate of Document UploadView Document
1 COPY OF LICENSE ALONG WITH SCHEDULE OF LAND 18-08-2022 View Document
2 SERVICE PLANS SHOWING THE SERVICES ON THE LAYOUT PLAN 18-08-2022 View Document
3 DEMARCATION PLAN 18-08-2022 View Document
4 ZONING PLAN 18-08-2022 View Document
5 IN CASE OF GROUP HOUSING/ COMMERCIAL SITES, A COPY OF THE APPROVED SITE PLAN 18-08-2022 View Document
6 A COMPLETE SET OF THE LAST APPROVED BUILDING PLANS 18-08-2022 View Document
7 CERTIFICATE FROM A CHARTERED ACCOUNTANT CERTIFYING THAT THE INFORMSTION PROVIDED BY THE APPLICANT IN FORM REP-1-C-X IS CORRECT AS PER THE BOOKS OF ACCOUNTS/ BALANCE SHEET OF THE APPLICANT 18-08-2022 View Document
8 DECLARATION SUPPORTED BY AFFIDAVIT DULY SIGNED BY THE PROMOTER TO BE ENCLOSED. 18-08-2022 View Document
9 DOCUMENTS RELATING TO THE ENTRY OF LICENSE AND COLLABORATION AGREEMENT IN THE REVENUE RECORD 15-10-2022 View Document
10 BUILDING PLAN OF PLOT-TYPE M-M17 17-10-2022 ------
11 BANK UNDERTAKING 15-10-2022 ------
12 BR III CITY 81A 15-10-2022 ------
13 CHANGE OF DEVELOPER ORDER 15-10-2022 ------
14 ENVIRONMENT CLEARANCE 15-10-2022 ------
15 FLOOR PLAN 15-10-2022 ------
16 SERVICE ESTIMATE 15-10-2022 ------
17 STORM WATER PLAN 15-10-2022 ------
18 SWEARAGE PLAN 15-10-2022 ------
19 WATER SUPPLY PLAN 15-10-2022 ------
20 BUILDING PLAN OF PLOT-TYPE B-B11,13,17,19,21,23 17-10-2022 ------
21 BUILDING PLAN OF PLOT-TYPE C-C1,3,5,7,9,11,13,15,17 17-10-2022 ------
22 BUILDING PLAN OF PLOT-TYPE M-M9 17-10-2022 ------
23 BUILDING PLAN OF PLOT-TYPE M-M11 17-10-2022 ------
24 BUILDING PLAN OF PLOT-TYPE C-C2,4,6,8,10,12,14,16,18 17-10-2022 ------
25 BUILDING PLAN OF PLOT-TYPE M-M1 17-10-2022 ------
26 BUILDING PLAN OF PLOT-TYPE M-M2 17-10-2022 ------
27 BUILDING PLAN OF PLOT-TYPE M-M3 17-10-2022 ------
28 BUILDING PLAN OF PLOT-TYPE M-M4 17-10-2022 ------
29 BUILDING PLAN OF PLOT-TYPE M-M5 17-10-2022 ------
30 BUILDING PLAN OF PLOT-TYPE M-M6 17-10-2022 ------
31 BUILDING PLAN OF PLOT-TYPE M-M7 17-10-2022 ------
32 BUILDING PLAN OF PLOT-TYPE M-M8 17-10-2022 ------
33 BUILDING PLAN OF PLOT-TYPE M-M10 17-10-2022 ------
34 BUILDING PLAN OF PLOT-TYPE M-M12 17-10-2022 ------
35 BUILDING PLAN OF PLOT-TYPE M-M13 17-10-2022 ------
36 BUILDING PLAN OF PLOT-TYPE M-M14 17-10-2022 ------
37 BUILDING PLAN OF PLOT-TYPE M-M15 17-10-2022 ------
38 BUILDING PLAN OF PLOT-TYPE M-M16 17-10-2022 ------
39 BUILDING PLAN OF PLOT-TYPE M-M18 17-10-2022 ------
40 BUILDING PLAN OF PLOT-TYPE M-M19 17-10-2022 ------
41 BUILDING PLAN OF PLOT-TYPE M-M20 17-10-2022 ------
42 BUILDING PLAN OF PLOT-TYPE M-M21 17-10-2022 ------
43 BUILDING PLAN OF PLOT-TYPE M-M22 17-10-2022 ------
44 CA CERTIFICATE FOR PROMOTER EQUITY 21-06-2023 ------
45 IN CASE OF PLOTTED COLONY, THE LATEST LAYOUT PLAN 21-06-2023 View Document
46 NON DEFAULT CERTIFICATE FROM A CHARTERED ACCOUNTANT 21-06-2023 View Document
47 CASH FLOW STATEMENT OF THE PROPOSED PROJECT 21-06-2023 View Document
48 CA CERTIFICATE FOR COST INCURRED 21-06-2023 ------












Sr. No.Document DescriptionDate of Document UploadView Document
1 Extension No. 07 of 2026 dated 11.03.2026 12-03-2026 View Document