HRERA PanchkulaTemp Project Id : RERA-PKL-PROJ-1089-2022
Submission Date : 11-01-2023 04:46:43 PM
Applicant Type : Company
Project Type: NEW




DESIGNER REALTORS PRIVATE LIMITED
OT-16, 3RD FLOOR, NEXT DOOR PARKLANDS, SECTOR-76 FARIDABAD FARIDABAD HR 121004 IN
01149572787
9717790021 (Number Shared by Promoter in Public)
rera.panchkula@bptp.com
http://bptp.com
XXXX057G
U70102HR2009PTC083191
 
 


 
 


 
 







DISTRICT WALK D
SECTOR 84 FARIDABAD
FARIDABAD
FARIDABAD
01149572787
0114957278 (Number Shared by Promoter in Public)
rera.panchkula@bptp.com
SANJAY ARYA
01149572787
9818161073 (Number Shared by Promoter in Public)
rera.panchkula@bptp.com








As per sub-rule(2) of rule 3 of the Haryana Real Estate (Regulation and Development) Rules,2017, the fee for registration of the project as has been calculated as follows:
-----------------------------------------------------------------------------------------------------------------------
-----------------------------------------------------------------------------------------------------------------------
-----------------------------------------------------------------------------------------------------------------------
-----------------------------------------------------------------------------------------------------------------------
2. The aforesaid fees is hereby deposited vide following Drafts/ Banker’s Cheques:-

Sr No.Draft/Cheque No.Draft DateAmountPayee BankPayable To
150937930-12-202284863RBL BANK LIMITEDHRERA Panchkula







0.466 (Acre)
1.50
1.30
11.65 (Acre)
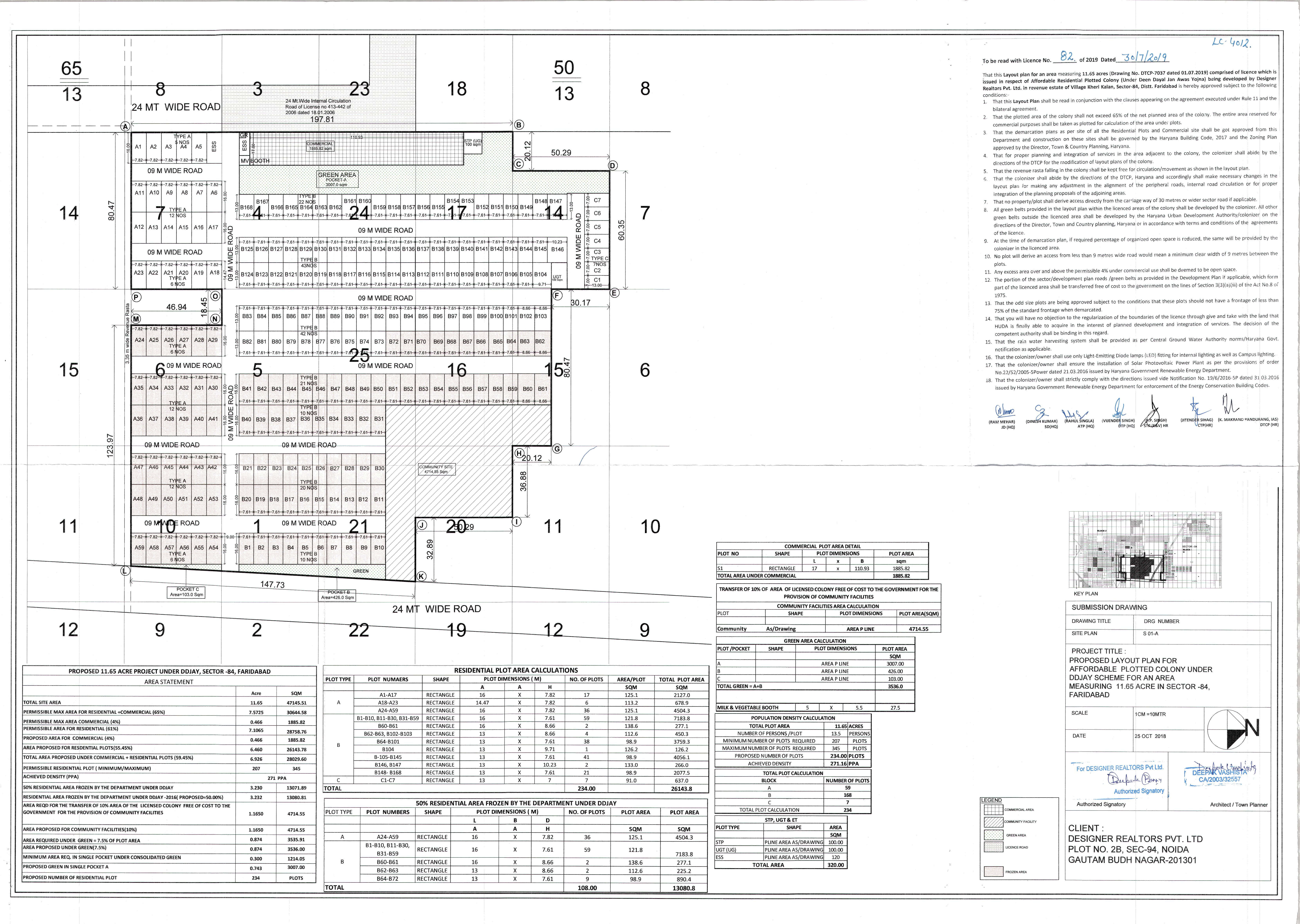
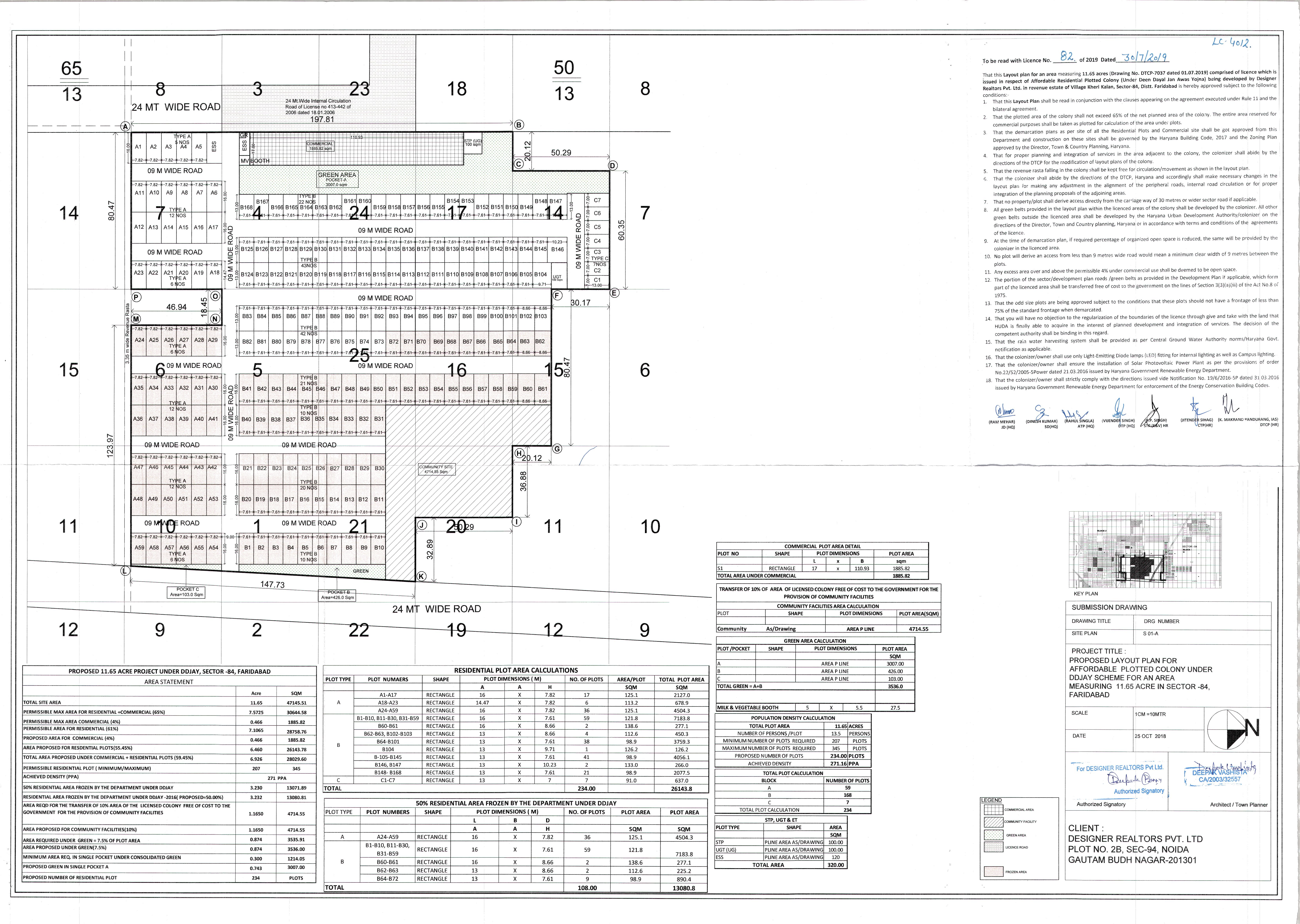
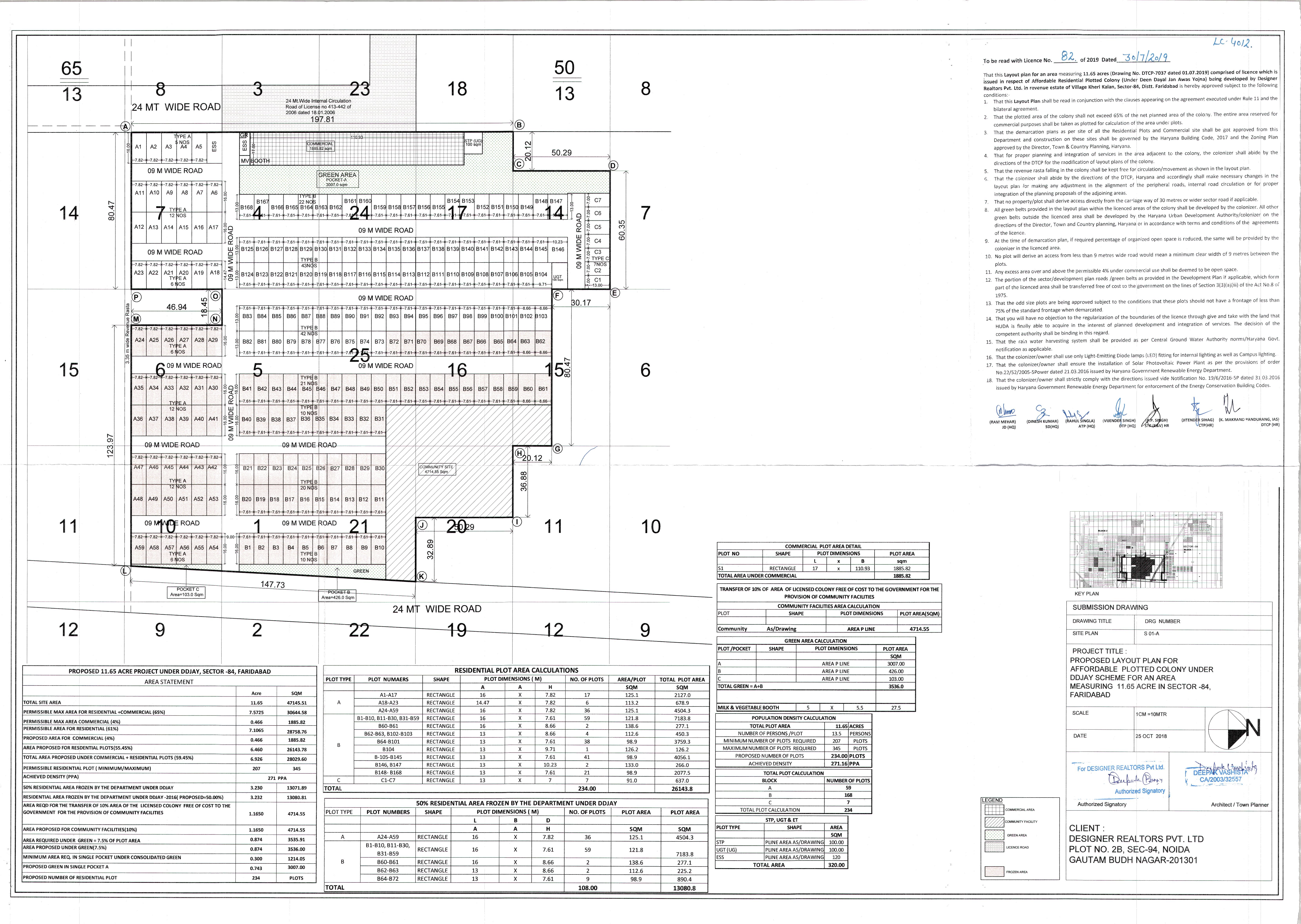
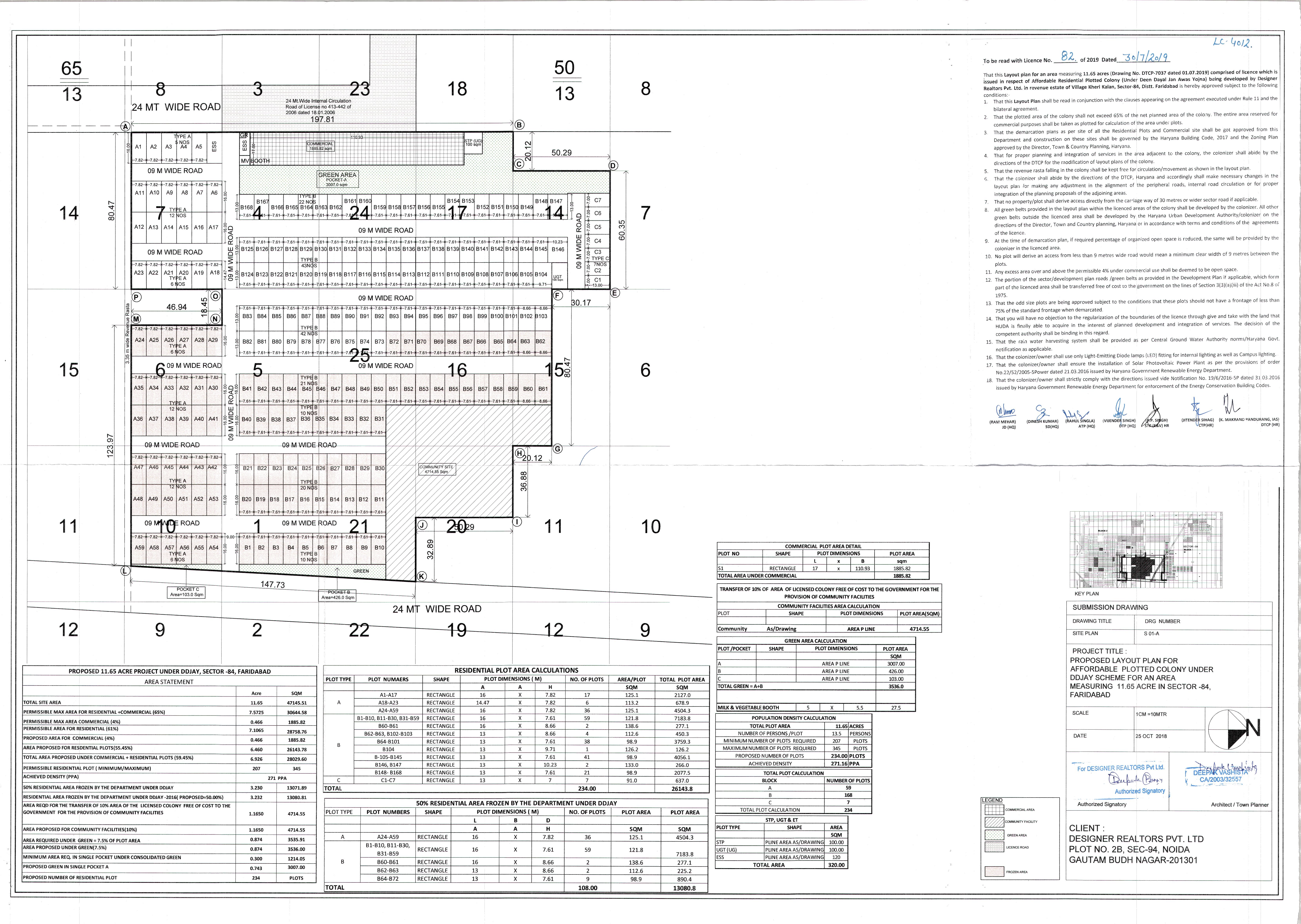
License no 82 of 2019 dated 30.07.2019
No
Address     OT-15, 3RD FLOOR, NEXT DOOR, PARKLANDS, SECTOR-76 FARIDABAD FARIDABAD HR 121004 IN
Address     OT-15, 3RD FLOOR, NEXT DOOR, PARKLANDS, SECTOR-76 FARIDABAD FARIDABAD HR 121004 IN
Address     OT-16, 3RD FLOOR, NEXT DOOR, PARKLANDS, SECTOR-76 FARIDABAD FARIDABAD HR 121004 IN
Address     OT-14, 3RD FLOOR, NEXT DOOR, PARKLANDS, SECTOR-76 FARIDABAD FARIDABAD HR 121004 IN
Address     OT-14, 3RD FLOOR, NEXT DOOR, PARKLANDS, SECTOR-76 FARIDABAD FARIDABAD HR 121004 IN
Annexure-B- AS A COLLABORATOR/ DEVELOPER.
BY VIRTUE OF REGISTERED COLLABORATION AGREEMENT
Yes
THE LANDOWNERS HEREBY GRANTS, TRANSFER AND CONVEYS TO THE DEVELOPER , DEVELOPMENT RIGHTS OVER LAND.
No
No
Yes







1297.88 Lakhs
81.10 Lakhs
870.3 Lakhs
95.15 Lakhs
251.33 Lakhs




Sr. No.Land area under usageArea of land (Acres)
1PLOTS TO BE SOLD 0
2LAND AREA TO BE USED FOR CONSTRUCTION OF APARTMENTS 0.186
3CONSTRUCTION OF ROADS 0.28
4PAVEMENTS 0
5PARKS AND PLAYGROUNDS 0
6GREEN BELTS 0
7VEHICLE PARKINGS 0
8ELECTRICITY SUB-STATION 0
9CLUB HOUSE 0
10SEWAGE AND SOLID WASTE TREATMENT FACILITY 0
11AREA TO BE LEFT FOR TRANSFERRING TO THE GOVERNMENT FOR COMMUNITY SERVICES 0
12ANY OTHER 0
Total0.466




FacilityExternal/ connecting service to be provided by (Name the agency)Whether Approval taken from the agency concerned. Yes/No (Annex details in folder C)
ROADSHSVPNo
WATER SUPPLYHSVPNo
ELECTRICITYDHBVNNo
SEWAGE DISPOSALHSVPNo
STORM WATER DRAINAGEHSVPNo




Sr. No.Name of the facilityEstimated cost (In Lakhs)(Within the project area only)Remarks: Yet to be prepared / Submitted to HUDA, Town & Country Planning Department/ as per project report etc. (Annex relevant documents showing costing details etc. in folder C)
1INTERNAL ROADS AND PAVEMENTS25SUBMITTED TO HUDA
2WATER SUPPLY SYSTEM8SUBMITTED TO HUDA
3STORM WATER DRAINAGE12SUBMITTED TO HUDA
4ELECTRICITY SUPPLY SYSTEM20SUBMITTED TO HUDA
5SEWAGE TREATMENT & GARBAGE DISPOSAL15SUBMITTED TO HUDA
6STREET LIGHTING5SUBMITTED TO HUDA
7SECURITY AND FIRE FIGHTING0SUBMITTED TO HUDA
8PLAYGROUNDS AND PARKS10SUBMITTED TO HUDA
9CLUB HOUSE/COMMUNITY CENTRE0SUBMITTED TO HUDA
10SHOPPING AREA0SUBMITTED TO HUDA
11RENEWABLE ENERGY SYSTEM0SUBMITTED TO HUDA
12SCHOOL0SUBMITTED TO HUDA
13HOSPITAL/DISPENSARY0SUBMITTED TO HUDA
14ANY OTHER0SUBMITTED TO HUDA


30-07-2019 (date)
17-10-2022 (date)
01-02-2023
31-12-2027
Sr. No Plot Area(In Square Meter)Number of plots in the project
1 0 0
Total0


TypeCarpet area(In Square Meter)Number of apartmentsNumber of towers
Apartment/Shops/Other Buildings8761.90221
Apartment/Shops/Other Buildings5932.04221
Apartment/Shops/Other Buildings7025.02201





Expenditure incurred till the date of application (In Lakhs)

ParticularsExpenditure
Apartments0
Shops0
Plots0

Expenditure to be made in each quarter (In Lakhs)

ParticularsYear-2023
Jan-MarApr-JuneJuly-SepOct-Dec
Apartments0000
Shops54.354.354.354.3
Plots0000

ParticularsYear-2024
Jan-MarApr-JuneJuly-SepOct-Dec
Apartments0000
Shops54.354.354.354.3
Plots0000

ParticularsYear-2025
Jan-MarApr-JuneJuly-SepOct-Dec
Apartments0000
Shops54.354.354.354.5
Plots0000

ParticularsYear-2026
Jan-MarApr-JuneJuly-SepOct-Dec
Apartments0000
Shops54.354.354.354.3
Plots0000




Expenditure incurred till the date of application (In Lakhs)

ParticularsExpenditure
Roads & Pavements0
Water Supply System0
Sewerage treatment & garbage disposal0
Electricity Supply System0
Storm Water Drainage0
Parks and Playgrounds0
Clubhouse/community centres0
Shopping area0
Other0

Expenditure to be made in each quarter (In Lakhs)

ParticularsYear-2023
Jan-MarApr-JuneJuly-SepOct-Dec
Roads & Pavements1.561.561.561.56
Water Supply System0.500.500.500.50
Sewerage treatment & garbage disposal0.940.940.940.94
Electricity Supply System1.251.251.251.25
Storm Water Drainage0.750.750.750.75
Parks and Playgrounds0.630.6300.63
Clubhouse/community centres0000
Shopping area0000
Other0.310.310.310.31

ParticularsYear-2024
Jan-MarApr-JuneJuly-SepOct-Dec
Roads & Pavements1.561.561.561.56
Water Supply System0.500.500.500.50
Sewerage treatment & garbage disposal0.940.940.940.94
Electricity Supply System1.251.251.251.25
Storm Water Drainage0.750.750.750.75
Parks and Playgrounds0.630.630.630.63
Clubhouse/community centres0000
Shopping area0000
Other0.310.310.310.31

ParticularsYear-2025
Jan-MarApr-JuneJuly-SepOct-Dec
Roads & Pavements1.561.561.561.56
Water Supply System0.500.500.500.50
Sewerage treatment & garbage disposal0.940.940.940.94
Electricity Supply System1.251.751.251.25
Storm Water Drainage0.750.750.750.75
Parks and Playgrounds00.630.630.63
Clubhouse/community centres0000
Shopping area0000
Other0.310.310.310.31

ParticularsYear-2026
Jan-MarApr-JuneJuly-SepOct-Dec
Roads & Pavements1.561.561.561.56
Water Supply System0.500.500.500.50
Sewerage treatment & garbage disposal0.940.940.940.94
Electricity Supply System1.251.251.251.25
Storm Water Drainage0.750.940.750.75
Parks and Playgrounds00.630.630.63
Clubhouse/community centres0000
Shopping area0000
Other0.310.310.310.31












Yes
No
ICICI BANK NAURANG HOUSE, K.G. MARG, NEW DELHI - 110001
777705200309
ICIC0000343
110229051
00343
1. Kabul Chawla Add: & Amrita Shergill Marg New Delhi 2. Sudhanshu Tripathi ADD; 202, 3RD Floor, Jor Bagh New Delhi , 3. Manik Malik,CFO, Address: D-2/2406, Vasant Kunj, Delhi-110070(Email:Manik.malik@bptp.com) 4. Sanjeev Loknath Agrawal, DGM (Finance and Accounts), Address: Flat No-32,Sudershan Apartments, IP Extension, New Delhi-110092 (Email: Sanjeev.agrawal@bptp.com) 5 , Rajan Nayaar, 6. Rakesh Agrawal, SGM(Finance and Accounts), Address: D-308,Narwama Apartment, 89, IP Extension, Patparganj, New Delhi-110092 (Email: rakesh.agrawal@bptp.com) 7. Amit Kumar Singhal, AGM(Finance and Accounts), Address: E3/28 Nand Nagri, Mandoli,North East, Delhi-110093 (Email: amit1.singhal@bptp.com
As Attached











Yes
No
Yes
Yes
Yes
Yes
No
No
Yes
No


No
No
No
No
No
No
No
No
Statutory Approvals Statutory Approvals StatusDate
I. LICENSE NO 82 OF 2019 ALREADY BEEN OBTAINED30-07-2019
II. APPROVAL OF ZONING PLANALREADY BEEN OBTAINED16-12-2021
III. APPROVAL OF BUILDING PLANALREADY BEEN OBTAINED17-10-2022
IV. SERVICE ESTIMATES APPROVEDALREADY BEEN OBTAINED22-12-2021








Yes


Yes


As per the attached Builder Buyer Agreement.







BPTP DISTRICT 5 BLOCK B
11.184
0
234
0
228
Initially estimated cost (In Lakhs)Revised cost (In Lakhs)Expenditure incurred upto the date of application (In Lakhs)
Total cost of the project
(Other than cost of land)
3895.302043.11
Cost of the apartments000
Cost of the infrastructure1616.000898.12
Others costs2279.3001144


11947 Lakhs
6242 Lakhs
0 Lakhs
0 Lakhs
No
01-08-2019
29-07-2024










SPECIFICATION OF CONSTRUCTION
Specification of apartments and other buildings including the following:
1FLOORING DETAILS OF VARIOUS PARTS OF HOUSEIPS VITRIFIED TILES/STONE
2WALL FINISHING DETAILSEMULSION
3KITCHEN DETAILSNOT APPLICABLE
4BATHROOM FITTINGSAS/ IS CODE
5WOOD WORK ETCNOT APPLICABLE
6DOORS AND WINDOS FRAMESALUMINUM / UPVS
7GLASS WORKTOUGHENED GLASS – IN SHOP FRONT
8ELECTRIC FITTINGSAS/ IS CODE
9CONDUCTING AND WIRING DETAILSAS/ IS CODE
10CUPBOARD DETAILSNOT APPLICABLE
11WATER STORAGEAS/NBC
12LIFT DETAILSAS/NBC
13EXTERNAL GLAZINGSALUMINUM / UPVS
13.1WINDOWS/GLAZINGSALUMINUM / UPVS
14DOORSAS PER MENTIONED 14.1 AND 14.2
14.1MAIN DOORSALUMINUM / UPVS
14.2INTERNAL DOORSFLUSH DOORS
15AIR CONDITIONINGNOT APPLICABLE
16ELECTRICAL FITTINGSNOT APPLICABLE
17CNG PIPE LINENOT APPLICABLE
18PROVISION OF WIFI AND BROADBAND FACILITYAS / IS CODE
19EXTERNAL FINISHING/COLOUR SCHEMETEXTURE PAINT
20INTERNAL FINISHINGEMULSION PAINT
SPECIFICATION UNIT WISE
1 . LIVING/DINING/FOYER/FAMILY LOUNGE
1 . 1 FLOORNOT APPLICABLE
1 . 2 WALLSNOT APPLICABLE
1 . 3 CEILINGNOT APPLICABLE
2 . MASTER BEDROOM/DRESSROOM
2 . 1 FLOORNOT APPLICABLE
2 . 2 WALLSNOT APPLICABLE
2 . 3 CEILINGNOT APPLICABLE
2 . 4 MODULAR WARDROBESNOT APPLICABLE
3 . MASTER TOILET
3 . 1 FLOORNOT APPLICABLE
3 . 2 WALLSNOT APPLICABLE
3 . 3 CEILINGNOT APPLICABLE
3 . 4 COUNTERSNOT APPLICABLE
3 . 5 SANITARY WARE/CP FITTINGSNOT APPLICABLE
3 . 6 FITTING/FIXTURESNOT APPLICABLE
4 . BED ROOMS
4 . 1 FLOORNOT APPLICABLE
4 . 2 WALLSNOT APPLICABLE
4 . 3 CEILINGNOT APPLICABLE
4 . 4 WARDROBESNOT APPLICABLE
5 . TOILET
5 . 1 FLOORNOT APPLICABLE
5 . 2 WALLSNOT APPLICABLE
5 . 3 CEILINGNOT APPLICABLE
5 . 4 COUNTERSNOT APPLICABLE
5 . 5 SANITARY WARE/CP FITTINGSNOT APPLICABLE
5 . 6 FIXTURESNOT APPLICABLE
6 . KITCHEN
6 . 1 FLOORNOT APPLICABLE
6 . 2 WALLSNOT APPLICABLE
6 . 3 CEILINGNOT APPLICABLE
6 . 4 COUNTERSNOT APPLICABLE
6 . 5 FIXTURESNOT APPLICABLE
6 . 6 KITCHEN APPLIANCESNOT APPLICABLE
7 . UTILITY ROOMS/UTILITY BALCONY/TOILET
7 . 1 FLOORNOT APPLICABLE
7 . 2 WALLS & CEILINGNOT APPLICABLE
7 . 3 TOILETNOT APPLICABLE
7 . 4 BALCONYNOT APPLICABLE
8 . SIT-OUTS
8 . 1 FLOORNOT APPLICABLE
8 . 2 WALLS & CEILINGNOT APPLICABLE
8 . 3 RAILINGSNOT APPLICABLE
8 . 4 FIXTURESNOT APPLICABLE












Sr. No.Document DescriptionDate of Document UploadView Document
1 COPY OF LICENSE ALONG WITH SCHEDULE OF LAND 15-07-2022 View Document
2 NON DEFAULT CERTIFICATE FROM A CHARTERED ACCOUNTANT 15-07-2022 View Document
3 IN CASE OF PLOTTED COLONY, THE LATEST LAYOUT PLAN 15-07-2022 View Document
4 ZONING PLAN 15-07-2022 View Document
5 DECLARATION SUPPORTED BY AFFIDAVIT DULY SIGNED BY THE PROMOTER TO BE ENCLOSED. 15-07-2022 View Document
6 IN CASE OF GROUP HOUSING/ COMMERCIAL SITES, A COPY OF THE APPROVED SITE PLAN 15-07-2022 View Document
7 REP II 10-01-2023 View Document