HRERA GurugramTemp Project Id : RERA-GRG-PROJ-1060-2022
Submission Date : 12-05-2022 08:42:07 PM
Applicant Type : Company
Project Type: NEW




DLF LIMITED
3RD FLOOR, DLF SHOPPING MALL, ARJUN MARG, DLF CITY PHASE I, GURUGRAM - 122002
01244769000
9711080232 (Number Shared by Promoter in Public)
haryanarera@dlf.in
https://www.dlf.in
XXXX494N
L7010HR1963PLC002484
 
 


 
 


 
 


 
 


 
 


 
 


 
 


 
 


 
 


 
 


 
 


 
 


 
 


 
 


 
 


 
 







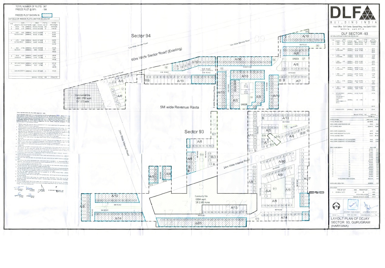
INDEPENDENT FLOORS AT DLF GARDENCITY ENCLAVE
SECTOR 93
HARSARU ST
GURUGRAM
1244769000
9711080232 (Number Shared by Promoter in Public)
haryanarera@dlf.in
YUDHVEER SINGH
1244769000
9711080232 (Number Shared by Promoter in Public)
haryanarera@dlf.in








As per sub-rule(2) of rule 3 of the Haryana Real Estate (Regulation and Development) Rules,2017, the fee for registration of the project as has been calculated as follows:
-----------------------------------------------------------------------------------------------------------------------
-----------------------------------------------------------------------------------------------------------------------
-----------------------------------------------------------------------------------------------------------------------
-----------------------------------------------------------------------------------------------------------------------
2. The aforesaid fees is hereby deposited vide following Drafts/ Banker’s Cheques:-

Sr No.Draft/Cheque No.Draft DateAmountPayee BankPayable To
152069404-05-20221388300ICICI BANKHRERA Gurugram







3.57 (Acre)
2.64
2.64
26.91875 (Acre)
94 of 2021 Dated 12.11.2021
No
Address     1ST FLOOR, SHOPPING MALL COMPLEX, ARJUN MARG, DLF PHASE-I, DLF CITY, GURUGRAM HR 122002 IN
Address     1ST FLOOR, SHOPPING MALL COMPLEX, ARJUN MARG, DLF PHASE-I, DLF CITY, GURUGRAM HR 122002 IN
Address     1ST FLOOR, SHOPPING MALL COMPLEX, ARJUN MARG, DLF PHASE-I, DLF CITY, GURUGRAM HR 122002 IN
Address     1ST FLOOR, DLF GATEWAY TOWER, R BLOCK, DLF CITY,PHASE-III GURUGRAM HR 122002 IN
Address     3RD FLOOR, DLF SHOPPING MALL, ARJUN MARG, DLF CITY PHASE I, GURUGRAM - 122002
Annexure-B- COLLABORATOR
YES
Yes
AS PER THE HARERA ACT
No
Yes
Yes







30342 Lakhs
6874 Lakhs
18345 Lakhs
1367 Lakhs
3756 Lakhs




Sr. No.Land area under usageArea of land (Square Meters)
1PLOTS TO BE SOLD 0
2LAND AREA TO BE USED FOR CONSTRUCTION OF APARTMENTS 14446.5
3CONSTRUCTION OF ROADS 0
4PAVEMENTS 0
5PARKS AND PLAYGROUNDS 0
6GREEN BELTS 0
7VEHICLE PARKINGS 0
8ELECTRICITY SUB-STATION 0
9CLUB HOUSE 0
10SEWAGE AND SOLID WASTE TREATMENT FACILITY 0
11AREA TO BE LEFT FOR TRANSFERRING TO THE GOVERNMENT FOR COMMUNITY SERVICES 0
12ANY OTHER 0
Total14446.5




FacilityExternal/ connecting service to be provided by (Name the agency)Whether Approval taken from the agency concerned. Yes/No (Annex details in folder C)
ROADSALREADY CONNECTEDYes
WATER SUPPLYGMDAYes
ELECTRICITYDHBVNYes
SEWAGE DISPOSALGMDAYes
STORM WATER DRAINAGEGMDAYes




Sr. No.Name of the facilityEstimated cost (In Lakhs)(Within the project area only)Remarks: Yet to be prepared / Submitted to HUDA, Town & Country Planning Department/ as per project report etc. (Annex relevant documents showing costing details etc. in folder C)
1INTERNAL ROADS AND PAVEMENTS146AS PER PROJECT REPORT
2WATER SUPPLY SYSTEM71AS PER PROJECT REPORT
3STORM WATER DRAINAGE69AS PER PROJECT REPORT
4ELECTRICITY SUPPLY SYSTEM249AS PER PROJECT REPORT
5SEWAGE TREATMENT & GARBAGE DISPOSAL95AS PER PROJECT REPORT
6STREET LIGHTING30AS PER PROJECT REPORT
7SECURITY AND FIRE FIGHTING37AS PER PROJECT REPORT
8PLAYGROUNDS AND PARKS315AS PER PROJECT REPORT
9CLUB HOUSE/COMMUNITY CENTRE0AS PER PROJECT REPORT
10SHOPPING AREA0AS PER PROJECT REPORT
11RENEWABLE ENERGY SYSTEM0AS PER PROJECT REPORT
12SCHOOL0AS PER PROJECT REPORT
13HOSPITAL/DISPENSARY0AS PER PROJECT REPORT
14ANY OTHER0AS PER PROJECT REPORT
15PARKING41AS PER PROJECT REPORT
16STP72AS PER PROJECT REPORT
17UNDERGROUND WATER TANK65AS PER PROJECT REPORT
18RAIN WATER HARVESTING52AS PER PROJECT REPORT
19CONST OF CIRCULATION ROADS53AS PER PROJECT REPORT
20EARTH WORKS72AS PER PROJECT REPORT


21-02-2022 (date)
27-05-2022 (date)
29-09-2022
19-08-2027
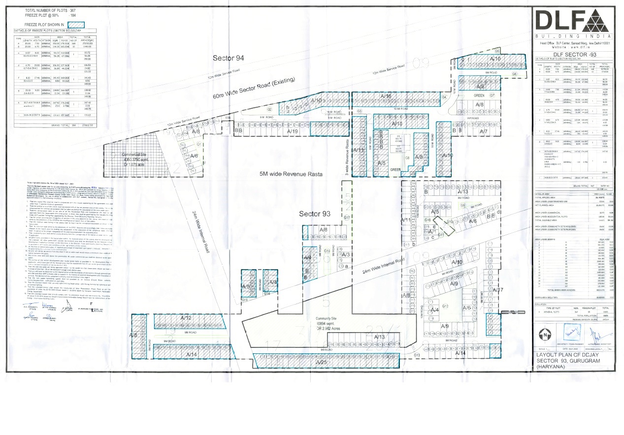
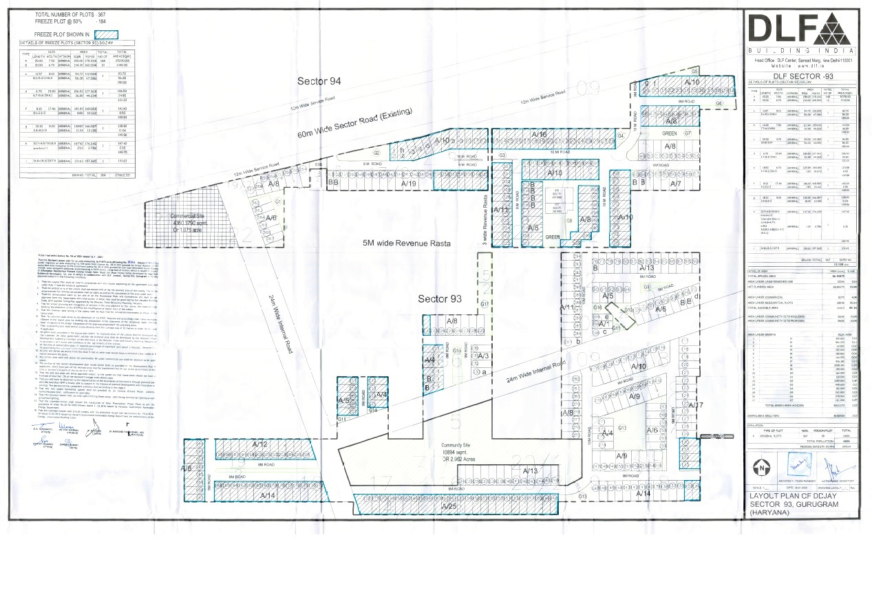
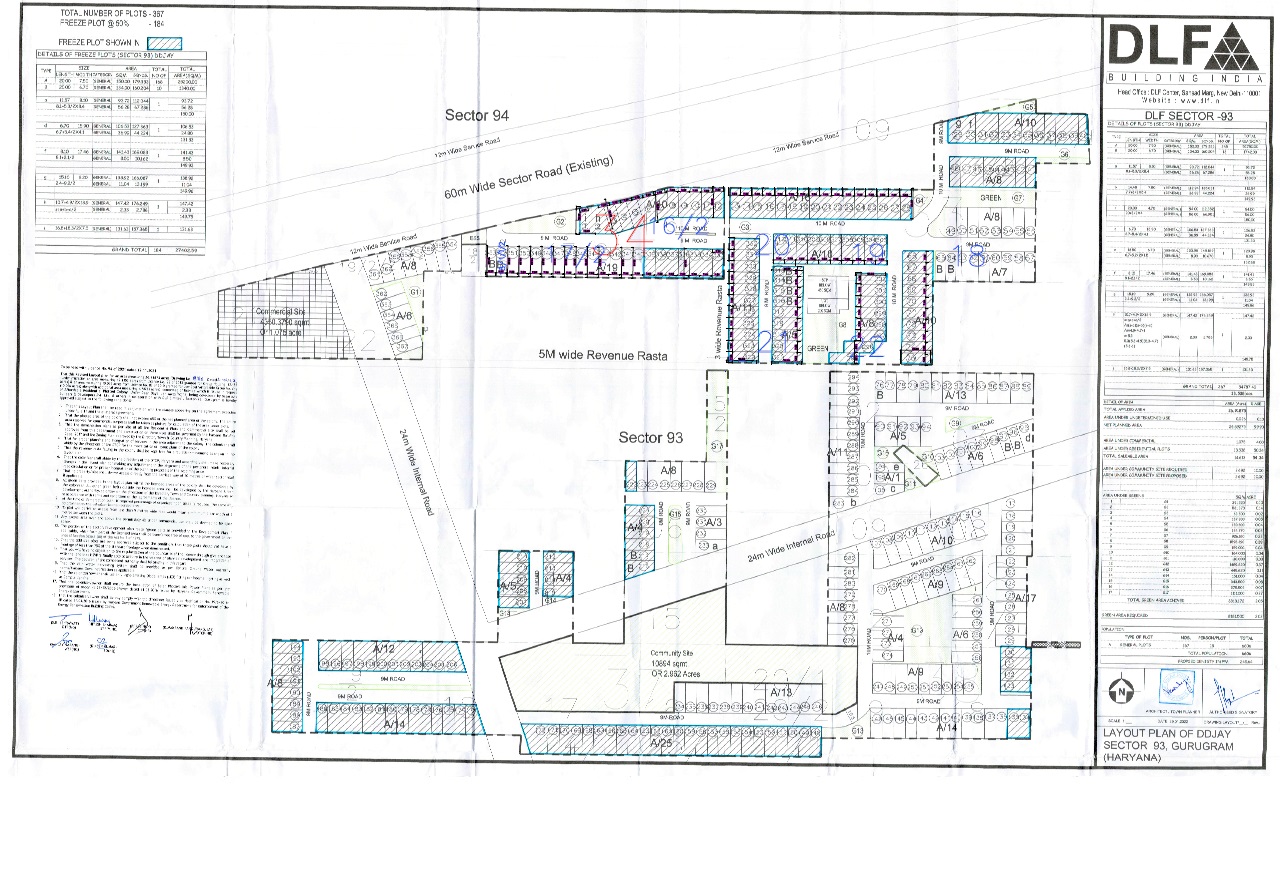
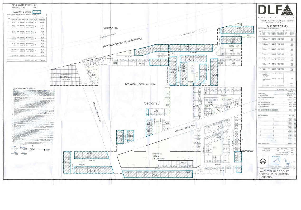
Sr. No Plot Area(In Square Meter)Number of plots in the project
1 132.60 2
2 134.00 4
3 145.30 1
4 150.00 90
Total97


TypeCarpet area(In Square Meter)Number of apartmentsNumber of towers
Apartment/Shops/Other Buildings73.9542
Apartment/Shops/Other Buildings74.6944
Apartment/Shops/Other Buildings81.0141
Apartment/Shops/Other Buildings83.61490





Expenditure incurred till the date of application (In Lakhs)

ParticularsExpenditure
Apartments0
Shops0
Plots0
EDC320
IDC62
Others132

Expenditure to be made in each quarter (In Lakhs)

ParticularsYear-2022
Jan-MarApr-JuneJuly-SepOct-Dec
Apartments0376752
Shops000
Plots000
Others5113413
IDC76
EDC391

ParticularsYear-2023
Jan-MarApr-JuneJuly-SepOct-Dec
Apartments91791716691669
Shops0000
Plots0000
Others6679399

ParticularsYear-2024
Jan-MarApr-JuneJuly-SepOct-Dec
Apartments1669183518351082
Shops0000
Plots0000

ParticularsYear-2025
Jan-MarApr-JuneJuly-SepOct-Dec
Apartments917917917917
Shops0000
Plots0000

ParticularsYear-2026
Jan-MarApr-JuneJuly-SepOct-Dec
Apartments917541165165
Shops0000
Plots0000
Others334

ParticularsYear-2027
Jan-MarApr-JuneJuly-SepOct-Dec
Apartments165000
Shops0000
Plots0000
Others446446446
Land6874




Expenditure incurred till the date of application (In Lakhs)

ParticularsExpenditure
Roads & Pavements0
Water Supply System0
Sewerage treatment & garbage disposal0
Electricity Supply System0
Storm Water Drainage0
Parks and Playgrounds0
Clubhouse/community centres0
Shopping area0
Other0

Expenditure to be made in each quarter (In Lakhs)

ParticularsYear-2022
Jan-MarApr-JuneJuly-SepOct-Dec
Roads & Pavements000
Water Supply System181818
Sewerage treatment & garbage disposal242424
Electricity Supply System06262
Storm Water Drainage171717
Parks and Playgrounds000
Clubhouse/community centres000
Shopping area000
Other8011083

ParticularsYear-2023
Jan-MarApr-JuneJuly-SepOct-Dec
Roads & Pavements3058580
Water Supply System18000
Sewerage treatment & garbage disposal24000
Electricity Supply System626200
Storm Water Drainage17000
Parks and Playgrounds000157
Clubhouse/community centres0000
Shopping area0000
Other8122915

ParticularsYear-2024
Jan-MarApr-JuneJuly-SepOct-Dec
Roads & Pavements0
Water Supply System0
Sewerage treatment & garbage disposal0
Electricity Supply System0
Storm Water Drainage0
Parks and Playgrounds158
Clubhouse/community centres0
Shopping area0
Other22












Yes
No
ICICI BANK LTD., GROUND FLOOR, GOPAL DAS BHAWAN, CONNAUGHT PLACE, NEW DELHI, 110001
000705053162
ICIC0001352
110229137
1352
01. Mr. Vivek Anand (E1001, Palm Springs, Golf Course Road, opposite IBIS Hotel, Sector 54, Gurgaon, Haryana 122002) 02. Mr. Puneet Rakheja (H.No. 386, Sector 31, Faridabad, Haryana 121003) 03. Mr. Pankaj Jain (C701, Apex Acacia Valley, Sector 3, Ghaziabad, Uttar Pradesh 201010) 04. Mr. Saurabh Kumar Gupta (1116, Vikas Kunj, Vikaspuri, Delhi 110018) 05. Mr. Gaurav Arora (A-33, Near Mehfil Banquet Hall, Mahendru Enclave, GT Karnal Road, Delhi 110009) 06. Ms. Sandhya Singla (Neelanchal Apartments, Plot No. 3, Sector 4, Dwarka, Delhi 110075) 07. Mr. Ashok Nanda (A255, Surya Nagar, Chander Nagar, Ghaziabad, Uttar Pradesh 201011) 08. Mr. Rajeev Singhal (Flat No. 14, Tower No. 4, Raj Nagar Extension, Signature Homes, Ghaziabad, Uttar Pradesh 201001) 09. Mr. Sujeet Kumar Sinha (C-061, DLF New Town Heights, IMT Manesar, Sector 91, Gurgaon, Haryana 122505) 10. Mr. Pankaj Kumar (A3, Rajcottage 1/18, Rajendra Nagar, Ghaziabad, Uttar Pradesh 201005)
Uploaded











Yes
Yes
No
No
Yes
No
No
No
No
No


Yes
No
Yes
Yes
Yes
No
No
No
Statutory Approvals Statutory Approvals StatusDate
I. SERVICE PLAN ESTIMATESALREADY BEEN OBTAINED24-01-2022
II. ELECTRICAL LOAD AVAILABILITYALREADY BEEN OBTAINED22-10-2021
III. STORM WATER DRAINAGEALREADY BEEN OBTAINED28-12-2021
IV. SEWAGE DISPOSALALREADY BEEN OBTAINED29-12-2022
V. WATER SUPPLYALREADY BEEN OBTAINED19-10-2021
VI. LAYOUT PLAN ALREADY BEEN OBTAINED21-02-2022
VII. ENVIRONMENT CLEARANCEALREADY BEEN OBTAINED28-04-2022








Yes


Yes


As Per HARERA Act & Rules







DLF GARDENCITY
16.25
0
109
0
109
Initially estimated cost (In Lakhs)Revised cost (In Lakhs)Expenditure incurred upto the date of application (In Lakhs)
Total cost of the project
(Other than cost of land)
14392040172
Cost of the apartments000
Cost of the infrastructure14192010159
Others costs12277122876142


0 Lakhs
0 Lakhs
0 Lakhs
0 Lakhs
No
27-06-2023
27-06-2023




INDEPENDENT FLOORS AT DLF GARDENCITY SECTOR 91/92, GURUGRAM
0.969
72
18
72
18
Initially estimated cost (In Lakhs)Revised cost (In Lakhs)Expenditure incurred upto the date of application (In Lakhs)
Total cost of the project
(Other than cost of land)
484751042062
Cost of the apartments411344421575
Cost of the infrastructure000
Others costs16041532798


1668 Lakhs
7015 Lakhs
0 Lakhs
1083 Lakhs
No
20-06-2024
01-12-2022




INDEPENDENT FLOORS AT DLF GARDENCITY SECTOR 91/92, GURUGRAM
1.096
52
13
52
13
Initially estimated cost (In Lakhs)Revised cost (In Lakhs)Expenditure incurred upto the date of application (In Lakhs)
Total cost of the project
(Other than cost of land)
613359661867
Cost of the apartments45354555634
Cost of the infrastructure000
Others costs292527381517


2089 Lakhs
8091 Lakhs
0 Lakhs
173 Lakhs
No
19-11-2024
01-08-2023




INDEPENDENT FLOORS AT DLF GARDENCITY SECTOR 91/92, GURUGRAM
2.246
124
31
124
31
Initially estimated cost (In Lakhs)Revised cost (In Lakhs)Expenditure incurred upto the date of application (In Lakhs)
Total cost of the project
(Other than cost of land)
12800126722426
Cost of the apartments100009721575
Cost of the infrastructure000
Others costs340035071930


1533 Lakhs
18740 Lakhs
0 Lakhs
0 Lakhs
No
31-03-2025
01-08-2023




GARDENCITY ARCADE, SECTOR 92, GURUGRAM
1.42
99
1
99
1
Initially estimated cost (In Lakhs)Revised cost (In Lakhs)Expenditure incurred upto the date of application (In Lakhs)
Total cost of the project
(Other than cost of land)
630867381323
Cost of the apartments4162459291
Cost of the infrastructure000
Others costs266226621275


0 Lakhs
0 Lakhs
0 Lakhs
0 Lakhs
No
29-04-2025
01-03-2024




INDEPENDENT FLOORS AT DLF CITY PHASE III, SECTOR 24, GURUGRAM, HARYANA
1.243
48
12
48
12
Initially estimated cost (In Lakhs)Revised cost (In Lakhs)Expenditure incurred upto the date of application (In Lakhs)
Total cost of the project
(Other than cost of land)
622262222249
Cost of the apartments519751971438
Cost of the infrastructure000
Others costs620362033030


3983.43 Lakhs
14653.40 Lakhs
0 Lakhs
2287 Lakhs
No
31-12-2024
31-12-2024




INDEPENDENT FLOORS AT DLF CITY PHASE I, SECTOR 24, GURUGRAM, HARYANA
0.621
28
7
28
7
Initially estimated cost (In Lakhs)Revised cost (In Lakhs)Expenditure incurred upto the date of application (In Lakhs)
Total cost of the project
(Other than cost of land)
36923692784
Cost of the apartments30883088439
Cost of the infrastructure000
Others costs19821982875


1308.31 Lakhs
10900.80 Lakhs
0 Lakhs
657 Lakhs
No
28-02-2024
28-02-2024




SIRIS ESTATE, SECTOR 24, GURUGRAM, HARYANA
1.243
48
12
48
12
Initially estimated cost (In Lakhs)Revised cost (In Lakhs)Expenditure incurred upto the date of application (In Lakhs)
Total cost of the project
(Other than cost of land)
623062302569
Cost of the apartments513351331732
Cost of the infrastructure000
Others costs805480544048


3362.99 Lakhs
13848.88 Lakhs
0 Lakhs
2395 Lakhs
No
31-10-2024
31-10-2024




SUMMIT PLAZA, SECTOR 54, GURUGRAM
2.65
311
1
311
1
Initially estimated cost (In Lakhs)Revised cost (In Lakhs)Expenditure incurred upto the date of application (In Lakhs)
Total cost of the project
(Other than cost of land)
31438314383514
Cost of the apartments25814258142238
Cost of the infrastructure000
Others costs683368331457


1275 Lakhs
9265 Lakhs
0 Lakhs
794 Lakhs
No
30-06-2026
30-06-2024




THE GROVE, DLF 5, SECTOR 54, GURUGRAM
5.3073
292
73
292
73
Initially estimated cost (In Lakhs)Revised cost (In Lakhs)Expenditure incurred upto the date of application (In Lakhs)
Total cost of the project
(Other than cost of land)
51674516742034
Cost of the apartments4286042860513
Cost of the infrastructure000
Others costs31118311182915


0 Lakhs
0 Lakhs
0 Lakhs
0 Lakhs
No
31-12-2025
31-12-2025










SPECIFICATION OF CONSTRUCTION
Specification of apartments and other buildings including the following:
1FLOORING DETAILS OF VARIOUS PARTS OF HOUSEIPS FLOORING / TILES / GRANITE
2WALL FINISHING DETAILSWHITE WASH / OBD
3KITCHEN DETAILSWHITE WASH / OBD
4BATHROOM FITTINGSNA
5WOOD WORK ETCNIL
6DOORS AND WINDOS FRAMESWOODEN FRAMES FOR DOORS UPVC/AL/MS FRAMES FOR WINDOWS
7GLASS WORKPLAIN GLASS
8ELECTRIC FITTINGSMODULAR FITTINGS
9CONDUCTING AND WIRING DETAILSPVC CONDUITS, FRLS WIRING
10CUPBOARD DETAILSNIL
11WATER STORAGEOHT WATER TANKS
12LIFT DETAILSBRANDED MAKE
13EXTERNAL GLAZINGSSINGLE GLASS UNIT WITH CLEAR GLASS UPVC/AL FRAMES AND SHUTTERS IN HABITABLE ROOMS. CLEAR/FROSTED GLASS IN TOILETS
13.1WINDOWS/GLAZINGSSINGLE GLASS UNIT WITH CLEAR GLASS UPVC/AL FRAMES AND SHUTTERS IN HABITABLE ROOMS. CLEAR/FROSTED GLASS IN TOILETS
14DOORSFLUSH DOOR
14.1MAIN DOORSFLUSH DOOR
14.2INTERNAL DOORSFLUSH DOOR
15AIR CONDITIONINGLIVING, DINING & BEDROOMS
16ELECTRICAL FITTINGSMODULAR FITTINGS
17CNG PIPE LINENIL
18PROVISION OF WIFI AND BROADBAND FACILITYNIL
19EXTERNAL FINISHING/COLOUR SCHEMEWEATHER SHIELD PAINT ON EXTERNAL SURFACES, OBD IN STILTS.
20INTERNAL FINISHINGWHITE WASH / OBD
SPECIFICATION UNIT WISE
1 . LIVING/DINING/FOYER/FAMILY LOUNGE
1 . 1 FLOORINDIAN MARBLE
1 . 2 WALLSACRYLIC EMULSION / OBD
1 . 3 CEILINGACRYLIC EMULSION / OBD
2 . MASTER BEDROOM/DRESSROOM
2 . 1 FLOORLAMINATED WOODEN
2 . 2 WALLSACRYLIC EMULSION / OBD
2 . 3 CEILINGACRYLIC EMULSION / OBD
2 . 4 MODULAR WARDROBESNIL
3 . MASTER TOILET
3 . 1 FLOORANTI-SKID TILES
3 . 2 WALLSCOMBINATION OF TILES, ACRYLIC EMULSION PAINT & MIRROR
3 . 3 CEILINGACRYLIC EMULSION PAINT / OBD
3 . 4 COUNTERSGRANITE / SYNTHETIC STONE
3 . 5 SANITARY WARE/CP FITTINGSCP FITTINGS, WASH BASIN, FLOOR MOUNTED / WALL-HUNG WC
3 . 6 FITTING/FIXTURESEXHAUST FAN, TOWEL RAIL / RING, GEYSER
4 . BED ROOMS
4 . 1 FLOORLAMINATED WOODEN FLOORING
4 . 2 WALLSACRYLIC EMULSION PAINT / OBD
4 . 3 CEILINGACRYLIC EMULSION PAINT / OBD
4 . 4 WARDROBESNIL
5 . TOILET
5 . 1 FLOORIPS FLOORING / TILES
5 . 2 WALLSCOMBINATION OF TILES, ACRYLIC EMULSION PAINT & MIRROR
5 . 3 CEILINGWHITEWASH / OBD
5 . 4 COUNTERSGRANITE / SYNTHETIC STONE
5 . 5 SANITARY WARE/CP FITTINGSCP FITTINGS, WASH BASIN, FLOOR MOUNTED / WALL-HUNG WC
5 . 6 FIXTURESEXHAUST FAN, TOWEL RAIL / RING, GEYSER
6 . KITCHEN
6 . 1 FLOORANTI-SKID TILES
6 . 2 WALLSTILES UP-TO 2’ ABOVE COUNTER & OBD / ACRYLIC EMULSION PAINT IN BALANCE AREA
6 . 3 CEILINGOBD / ACRYLIC EMULSION PAINT
6 . 4 COUNTERSGRANITE /SYNTHETIC STONE
6 . 5 FIXTURESCP FITTINGS, SS SINK, EXHAUST FAN
6 . 6 KITCHEN APPLIANCESNIL
7 . UTILITY ROOMS/UTILITY BALCONY/TOILET
7 . 1 FLOORIPS / TILES
7 . 2 WALLS & CEILINGWHITEWASH
7 . 3 TOILETTILE FLOORING & CLADDING, CONVENTIONAL CP FITTINGS, CHINAWARE
7 . 4 BALCONYIPS / TILES
8 . SIT-OUTS
8 . 1 FLOORIPS / TILES
8 . 2 WALLS & CEILINGOBD
8 . 3 RAILINGSMS RAILINGS
8 . 4 FIXTURESNA












Sr. No.Document DescriptionDate of Document UploadView Document
1 DEMARCATION PLAN 04-05-2022 View Document
2 SERVICE PLANS SHOWING THE SERVICES ON THE LAYOUT PLAN 04-05-2022 View Document
3 DOCUMENTS RELATING TO THE ENTRY OF LICENSE AND COLLABORATION AGREEMENT IN THE REVENUE RECORD 04-05-2022 View Document
4 COPY OF LICENSE ALONG WITH SCHEDULE OF LAND 04-05-2022 View Document
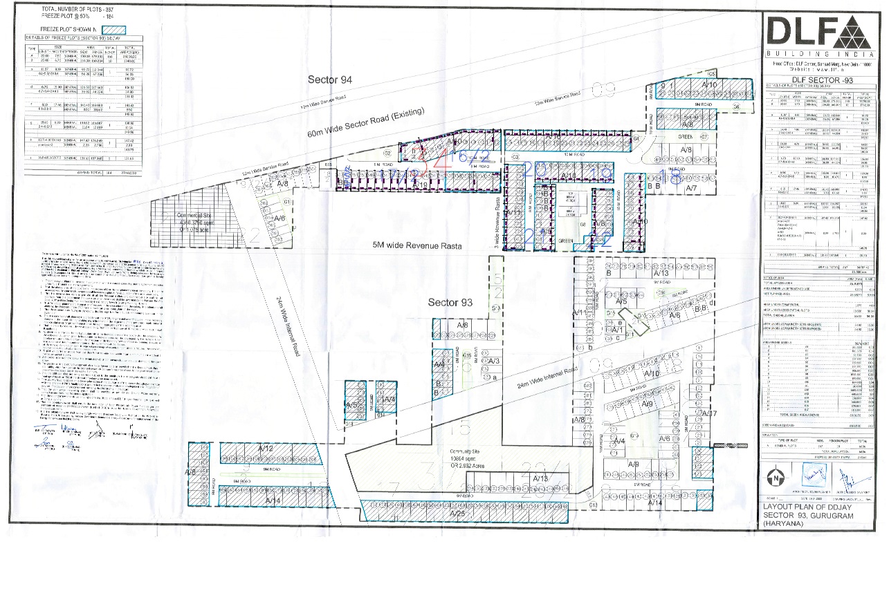
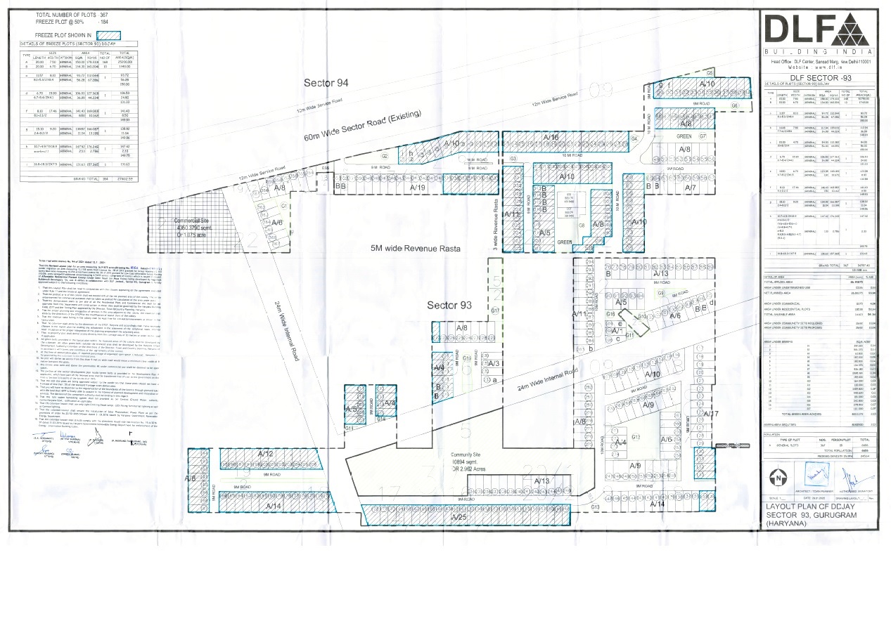
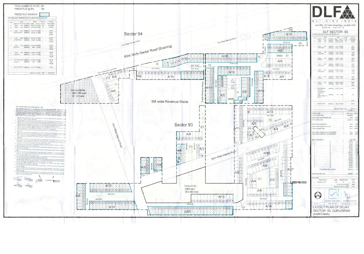
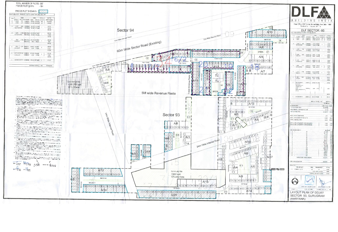
5 IN CASE OF PLOTTED COLONY, THE LATEST LAYOUT PLAN 04-05-2022 View Document
6 IN CASE OF GROUP HOUSING/ COMMERCIAL SITES, A COPY OF THE APPROVED SITE PLAN 04-05-2022 View Document
7 DECLARATION SUPPORTED BY AFFIDAVIT DULY SIGNED BY THE PROMOTER TO BE ENCLOSED. 04-05-2022 View Document
8 CASH FLOW STATEMENT OF THE PROPOSED PROJECT 11-05-2022 View Document
9 CERTIFICATE FROM A CHARTERED ACCOUNTANT CERTIFYING THAT THE INFORMSTION PROVIDED BY THE APPLICANT IN FORM REP-1-C-X IS CORRECT AS PER THE BOOKS OF ACCOUNTS/ BALANCE SHEET OF THE APPLICANT 11-05-2022 View Document
10 NON DEFAULT CERTIFICATE FROM A CHARTERED ACCOUNTANT 11-05-2022 View Document
11 BUILDING PLANS -8 09-08-2022 ------
12 BR-III SANCTION LETTER- 97 PLOTS 09-08-2022 ------
13 BUILDING PLANS -1 09-08-2022 ------
14 BUILDING PLANS -2 09-08-2022 ------
15 BUILDING PLANS -3 09-08-2022 ------
16 BUILDING PLANS -4 09-08-2022 ------
17 BUILDING PLANS -5 09-08-2022 ------
18 BUILDING PLANS -6 09-08-2022 ------
19 BUILDING PLANS -7 09-08-2022 ------
20 BUILDING PLANS -9 09-08-2022 ------
21 BUILDING PLANS -10 09-08-2022 ------
22 BUILDING PLANS -11 09-08-2022 ------
23 BUILDING PLANS -12 09-08-2022 ------
24 BUILDING PLANS -13 09-08-2022 ------
25 BUILDING PLANS -14 09-08-2022 ------
26 BUILDING PLANS -15 09-08-2022 ------
27 BUILDING PLANS -17 09-08-2022 ------
28 BUILDING PLANS -18 09-08-2022 ------
29 BUILDING PLANS -19 09-08-2022 ------
30 BUILDING PLANS -20 09-08-2022 ------
31 BUILDING PLANS -21 09-08-2022 ------
32 BUILDING PLANS -22 09-08-2022 ------
33 BUILDING PLANS -24 09-08-2022 ------
34 BUILDING PLANS -16 09-08-2022 ------
35 BUILDING PLANS -25 09-08-2022 ------