HRERA PanchkulaTemp Project Id : RERA-PKL-PROJ-1027-2022
Submission Date : 11-03-2022 12:51:29 PM
Applicant Type : Company
Project Type: NEW




CNR LEADING SOFTEK PVT. LTD
OFFICE 26/1, VISHWASH NAGAR, GALI NO. 13, SHAHDARA, DELHI- 110032
01202854696
7417824691 (Number Shared by Promoter in Public)
cnr9limited@gmail.com
http://royalstreet.in/
XXXX720P
U74140DL1999PTC102964
 
 


 
 


 
 


 
 


 
 







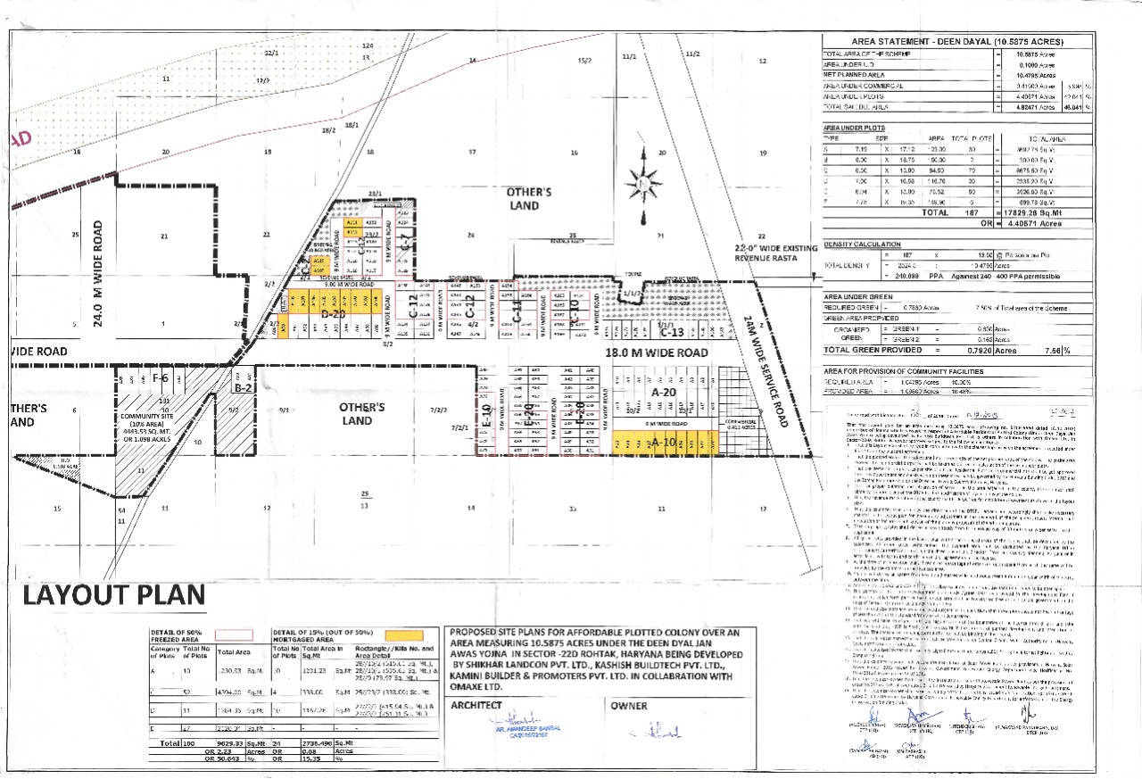
ROYAL STREET
VILLAGE SUNARI KALAN AND MAYANA SECTOR 22D ROHTAK
ROHTAK
ROHTAK
01202854696
7417824691 (Number Shared by Promoter in Public)
cnr9limited@gmail.com
MOHIT BINJOLA
01202854696
7417824691 (Number Shared by Promoter in Public)
cnr9limited@gmail.com








As per sub-rule(2) of rule 3 of the Haryana Real Estate (Regulation and Development) Rules,2017, the fee for registration of the project as has been calculated as follows:
-----------------------------------------------------------------------------------------------------------------------
-----------------------------------------------------------------------------------------------------------------------
-----------------------------------------------------------------------------------------------------------------------
-----------------------------------------------------------------------------------------------------------------------
2. The aforesaid fees is hereby deposited vide following Drafts/ Banker’s Cheques:-

Sr No.Draft/Cheque No.Draft DateAmountPayee BankPayable To
187479609-03-2022214500STATE BANK OF INDIAHRERA Panchkula
287479810-03-202228805STATE BANK OF INDIAHRERA Panchkula







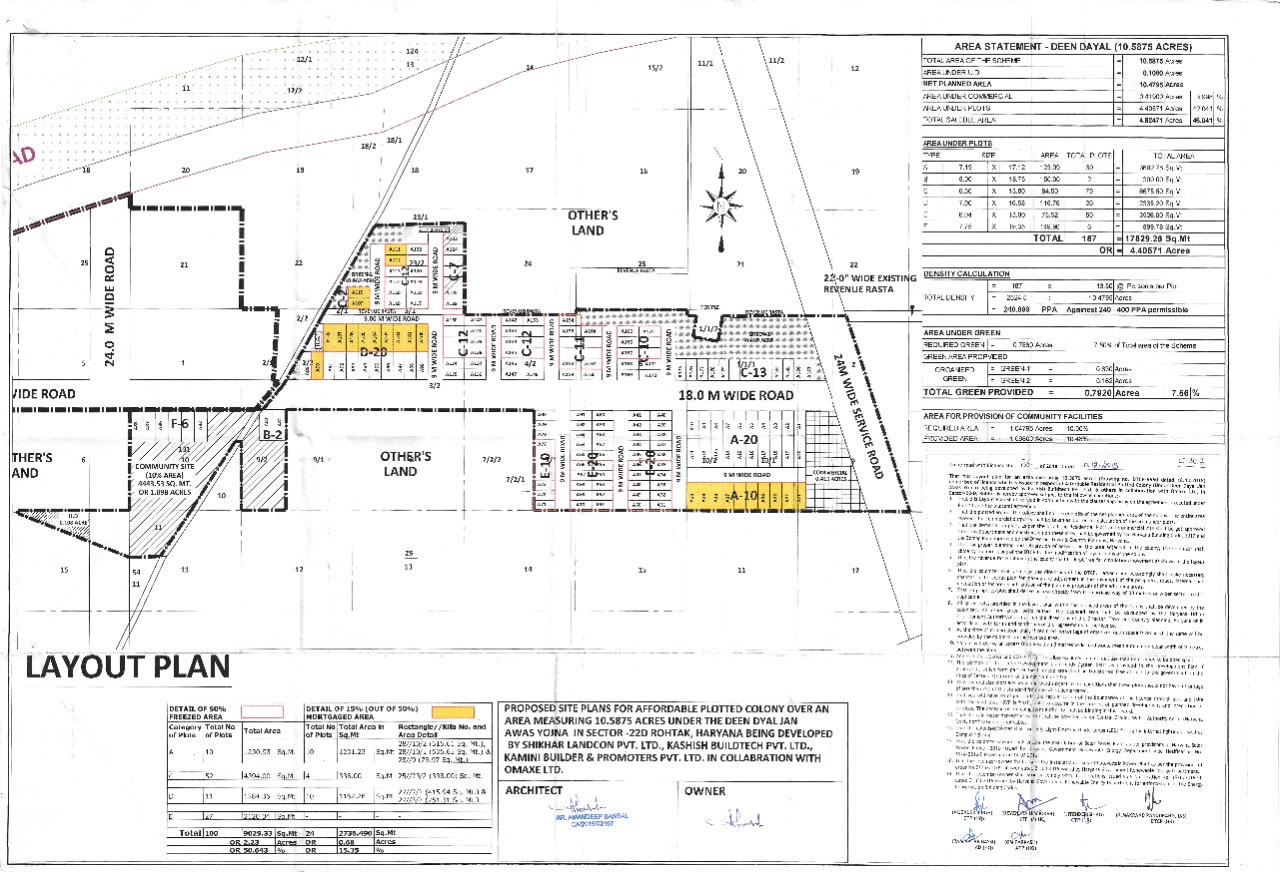
10.5875 (Acre)
2
2
10.5875 (Acre)
86 of 2018 (10-12-2018)
Yes







3405 Lakhs
2434 Lakhs
0 Lakhs
971 Lakhs
329 Lakhs




Sr. No.Land area under usageArea of land (Square Meters)
1PLOTS TO BE SOLD 17829.248
2LAND AREA TO BE USED FOR CONSTRUCTION OF APARTMENTS 0
3CONSTRUCTION OF ROADS 15222.600
4PAVEMENTS 0
5PARKS AND PLAYGROUNDS 3205.105
6GREEN BELTS 0
7VEHICLE PARKINGS 0
8ELECTRICITY SUB-STATION 0
9CLUB HOUSE 0
10SEWAGE AND SOLID WASTE TREATMENT FACILITY 300.00
11AREA TO BE LEFT FOR TRANSFERRING TO THE GOVERNMENT FOR COMMUNITY SERVICES 4443.441
12ANY OTHER 150.0
13COMMERCIAL 1695.63
Total42846.024




FacilityExternal/ connecting service to be provided by (Name the agency)Whether Approval taken from the agency concerned. Yes/No (Annex details in folder C)
ROADSHSVPNo
WATER SUPPLYHSVPNo
ELECTRICITYUHBVNNo
SEWAGE DISPOSALHSVPNo
STORM WATER DRAINAGEHSVPNo




Sr. No.Name of the facilityEstimated cost (In Lakhs)(Within the project area only)Remarks: Yet to be prepared / Submitted to HUDA, Town & Country Planning Department/ as per project report etc. (Annex relevant documents showing costing details etc. in folder C)
1INTERNAL ROADS AND PAVEMENTS50YET TO BE PREPARED
2WATER SUPPLY SYSTEM30YET TO BE PREPARED
3STORM WATER DRAINAGE0YET TO BE PREPARED
4ELECTRICITY SUPPLY SYSTEM20YET TO BE PREPARED
5SEWAGE TREATMENT & GARBAGE DISPOSAL20YET TO BE PREPARED
6STREET LIGHTING0YET TO BE PREPARED
7SECURITY AND FIRE FIGHTING0YET TO BE PREPARED
8PLAYGROUNDS AND PARKS30YET TO BE PREPARED
9CLUB HOUSE/COMMUNITY CENTRE0YET TO BE PREPARED
10SHOPPING AREA0YET TO BE PREPARED
11RENEWABLE ENERGY SYSTEM0YET TO BE PREPARED
12SCHOOL0YET TO BE PREPARED
13HOSPITAL/DISPENSARY0YET TO BE PREPARED
14ANY OTHER78YET TO BE PREPARED


10-12-2018 (date)
NA (date)
15-03-2022
14-03-2024
Sr. No Plot Area(In Square Meter)Number of plots in the project
1 123.09 20
2 123.02 10
3 82.55 1
4 78 18
5 82.55 2
6 78 18
7 82.55 2
8 78 9
9 149.89 1
10 148.65 1
11 149.89 6
12 115.34 1
13 116.76 19
14 84.5 79
15 1105.01 1
16 592.94 1
Total189


TypeCarpet area(In Square Meter)Number of apartmentsNumber of towers
Apartment/Shops/Other Buildings000





Expenditure incurred till the date of application (In Lakhs)

ParticularsExpenditure

Expenditure to be made in each quarter (In Lakhs)

ParticularsYear-2022
Jan-MarApr-JuneJuly-SepOct-Dec
Apartments000
Shops000
Plots505050

ParticularsYear-2023
Jan-MarApr-JuneJuly-SepOct-Dec
Apartments0000
Shops0000
Plots50255013

ParticularsYear-2024
Jan-MarApr-JuneJuly-SepOct-Dec
Apartments0
Shops0
Plots12




Expenditure incurred till the date of application (In Lakhs)

ParticularsExpenditure
Roads & Pavements0
Water Supply System0
Sewerage treatment & garbage disposal0
Electricity Supply System0
Storm Water Drainage0
Parks and Playgrounds0
Clubhouse/community centres0
Shopping area0
Other0

Expenditure to be made in each quarter (In Lakhs)

ParticularsExpenditure to be made in each quarter (2024)
Apr-JuneJuly-SepOct-DecJan-Mar












No
No
YES BANK LTD C- 37 RAJ NAGAR DISTRICT CENTER GAZIABAD
003872500000163
YESB0000038
110532012
0038
CNR Leading Softek Pvt Ltd Royal Street Collection Account











Yes
Yes
Yes
No
No
No
No
No
No
No


No
No
No
No
No
No
No
No
Statutory Approvals Statutory Approvals StatusDate
I. LISENCE NO 86 OF 2018ALREADY BEEN OBTAINED10-12-2018
II. LAYOUT PLANALREADY BEEN OBTAINED10-12-2018








No


No















SPECIFICATION OF CONSTRUCTION
Specification of apartments and other buildings including the following:
1FLOORING DETAILS OF VARIOUS PARTS OF HOUSENA
2WALL FINISHING DETAILSNA
3KITCHEN DETAILSNA
4BATHROOM FITTINGSNA
5WOOD WORK ETCNA
6DOORS AND WINDOS FRAMESNA
7GLASS WORKNA
8ELECTRIC FITTINGSNA
9CONDUCTING AND WIRING DETAILSNA
10CUPBOARD DETAILSNA
11WATER STORAGENA
12LIFT DETAILSNA
13EXTERNAL GLAZINGSNA
13.1WINDOWS/GLAZINGSNA
14DOORSNA
14.1MAIN DOORSNA
14.2INTERNAL DOORSNA
15AIR CONDITIONINGNA
16ELECTRICAL FITTINGSNA
17CNG PIPE LINENA
18PROVISION OF WIFI AND BROADBAND FACILITYNA
19EXTERNAL FINISHING/COLOUR SCHEMENA
20INTERNAL FINISHINGNA
SPECIFICATION UNIT WISE
1 . LIVING/DINING/FOYER/FAMILY LOUNGE
1 . 1 FLOORNA
1 . 2 WALLSNA
1 . 3 CEILINGNA
2 . MASTER BEDROOM/DRESSROOM
2 . 1 FLOORNA
2 . 2 WALLSNA
2 . 3 CEILINGNA
2 . 4 MODULAR WARDROBESNA
3 . MASTER TOILET
3 . 1 FLOORNA
3 . 2 WALLSNA
3 . 3 CEILINGNA
3 . 4 COUNTERSNA
3 . 5 SANITARY WARE/CP FITTINGSNA
3 . 6 FITTING/FIXTURESNA
4 . BED ROOMS
4 . 1 FLOORNA
4 . 2 WALLSNA
4 . 3 CEILINGNA
4 . 4 WARDROBESNA
5 . TOILET
5 . 1 FLOORNA
5 . 2 WALLSNA
5 . 3 CEILINGNA
5 . 4 COUNTERSNA
5 . 5 SANITARY WARE/CP FITTINGSNA
5 . 6 FIXTURESNA
6 . KITCHEN
6 . 1 FLOORNA
6 . 2 WALLSNA
6 . 3 CEILINGNA
6 . 4 COUNTERSNA
6 . 5 FIXTURESNA
6 . 6 KITCHEN APPLIANCESNA
7 . UTILITY ROOMS/UTILITY BALCONY/TOILET
7 . 1 FLOORNA
7 . 2 WALLS & CEILINGNA
7 . 3 TOILETNA
7 . 4 BALCONYNA
8 . SIT-OUTS
8 . 1 FLOORNA
8 . 2 WALLS & CEILINGNA
8 . 3 RAILINGSNA
8 . 4 FIXTURESNA












Sr. No.Document DescriptionDate of Document UploadView Document
1 COPY OF LICENSE ALONG WITH SCHEDULE OF LAND 02-03-2022 View Document
2 SERVICE PLANS SHOWING THE SERVICES ON THE LAYOUT PLAN 02-03-2022 View Document
3 ZONING PLAN 02-03-2022 View Document
4 DEMARCATION PLAN 05-03-2022 View Document
5 CASH FLOW STATEMENT OF THE PROPOSED PROJECT 08-03-2022 View Document
6 CERTIFICATE FROM A CHARTERED ACCOUNTANT CERTIFYING THAT THE INFORMSTION PROVIDED BY THE APPLICANT IN FORM REP-1-C-X IS CORRECT AS PER THE BOOKS OF ACCOUNTS/ BALANCE SHEET OF THE APPLICANT 08-03-2022 View Document
7 DECLARATION SUPPORTED BY AFFIDAVIT DULY SIGNED BY THE PROMOTER TO BE ENCLOSED. 08-03-2022 View Document
8 NON DEFAULT CERTIFICATE FROM A CHARTERED ACCOUNTANT 08-03-2022 View Document
9 IN CASE OF PLOTTED COLONY, THE LATEST LAYOUT PLAN 09-03-2022 View Document
10 IN CASE OF GROUP HOUSING/ COMMERCIAL SITES, A COPY OF THE APPROVED SITE PLAN 09-03-2022 View Document
11 ALLOTMENT LETTER 16-05-2022 View Document
12 AGREEMENT TO SALE 16-05-2022 View Document












Sr. No.Document DescriptionDate of Document UploadView Document
1 RC APPROVED 05-07-2024 View Document
2 Continuation of registration uploaded. 20-08-2025 View Document
3 Extension uploaded 10-11-2025 View Document