HRERA PanchkulaTemp Project Id : RERA-PKL-PROJ-1026-2022
Submission Date : 28-03-2022 10:21:19 AM
Applicant Type : Company
Project Type: NEW




OMAXE WORLD STREET PRIVATE LIMITED
O, SECTOR - 79, OMAXE CITY CENTRE, FARIDABAD, FARIDABAD, HARYANA - 121004
9876911201 (Number Shared by Promoter in Public)
haryana_rera@omaxe.com
http://www.omaxe.com
XXXX560L
U74120HR2007PTC036993
 
 


 
 


 
 


 
 







WORLD STREET PHASE - 3
VILLAGE BHATOLA, SECTOR79, FARIDABAD
FARIDABAD
FARIDABAD
9876911201 (Number Shared by Promoter in Public)
haryana_rera@omaxe.com
PREM DAGAR
9876911201 (Number Shared by Promoter in Public)
haryana_rera@omaxe.com








As per sub-rule(2) of rule 3 of the Haryana Real Estate (Regulation and Development) Rules,2017, the fee for registration of the project as has been calculated as follows:
-----------------------------------------------------------------------------------------------------------------------
-----------------------------------------------------------------------------------------------------------------------
-----------------------------------------------------------------------------------------------------------------------
-----------------------------------------------------------------------------------------------------------------------
2. The aforesaid fees is hereby deposited vide following Drafts/ Banker’s Cheques:-

Sr No.Draft/Cheque No.Draft DateAmountPayee BankPayable To
11158923-03-20222047600IDBI BANKHRERA Panchkula







45501.77 (Sqr/mtrs)
1.50
98.84
45501.77 (Sqr/mtrs)
Licence No 54 of 2021
Yes







10090 Lakhs
9303 Lakhs
787 Lakhs
0 Lakhs
0 Lakhs




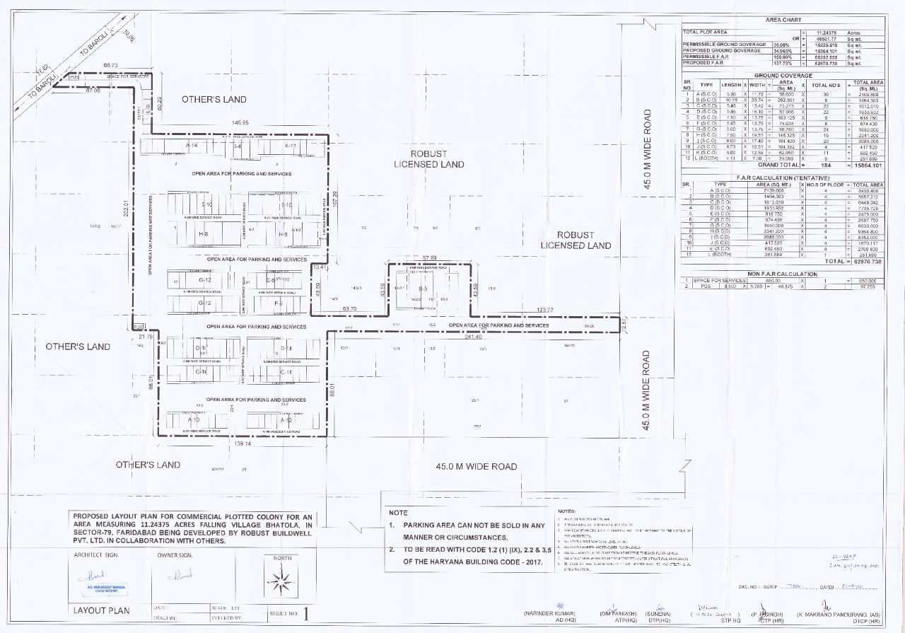
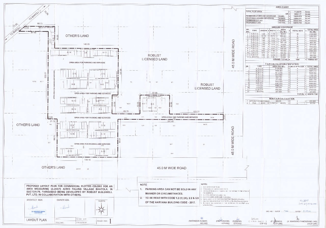
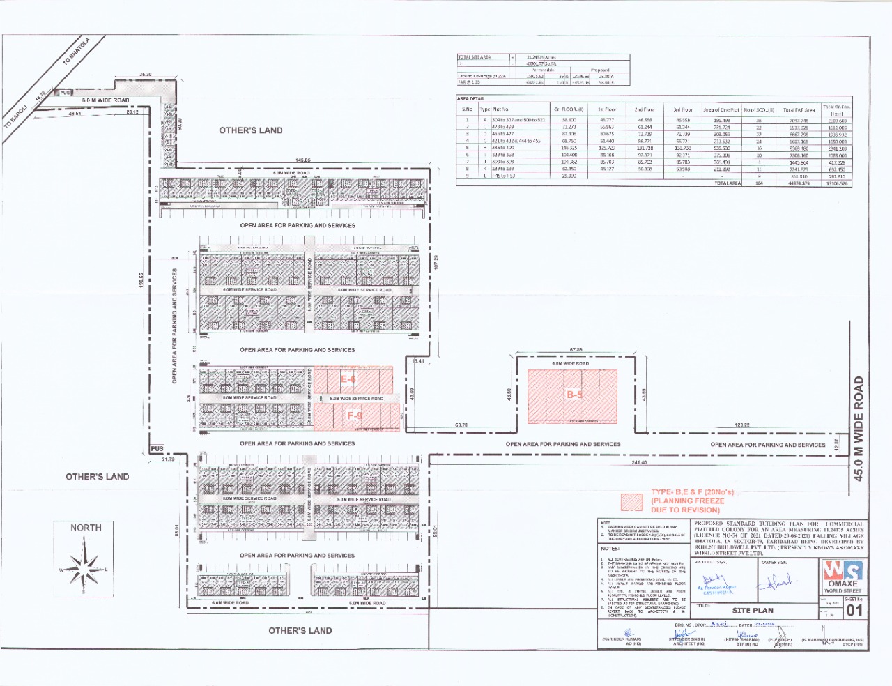
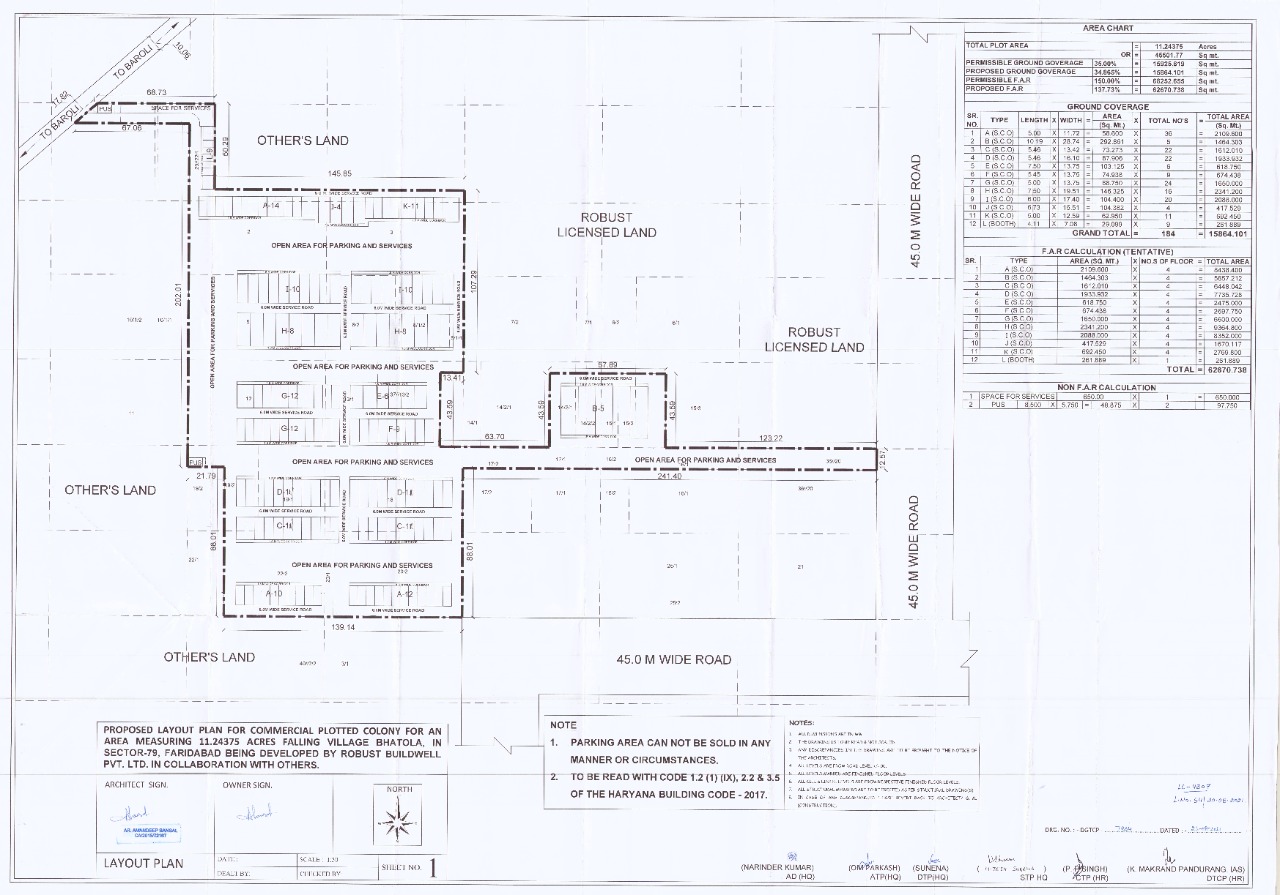
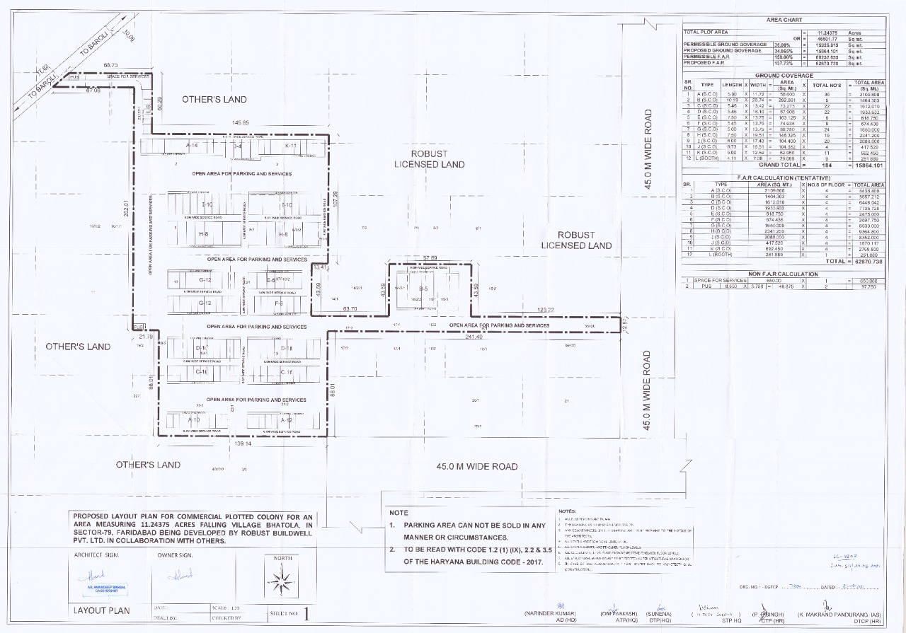
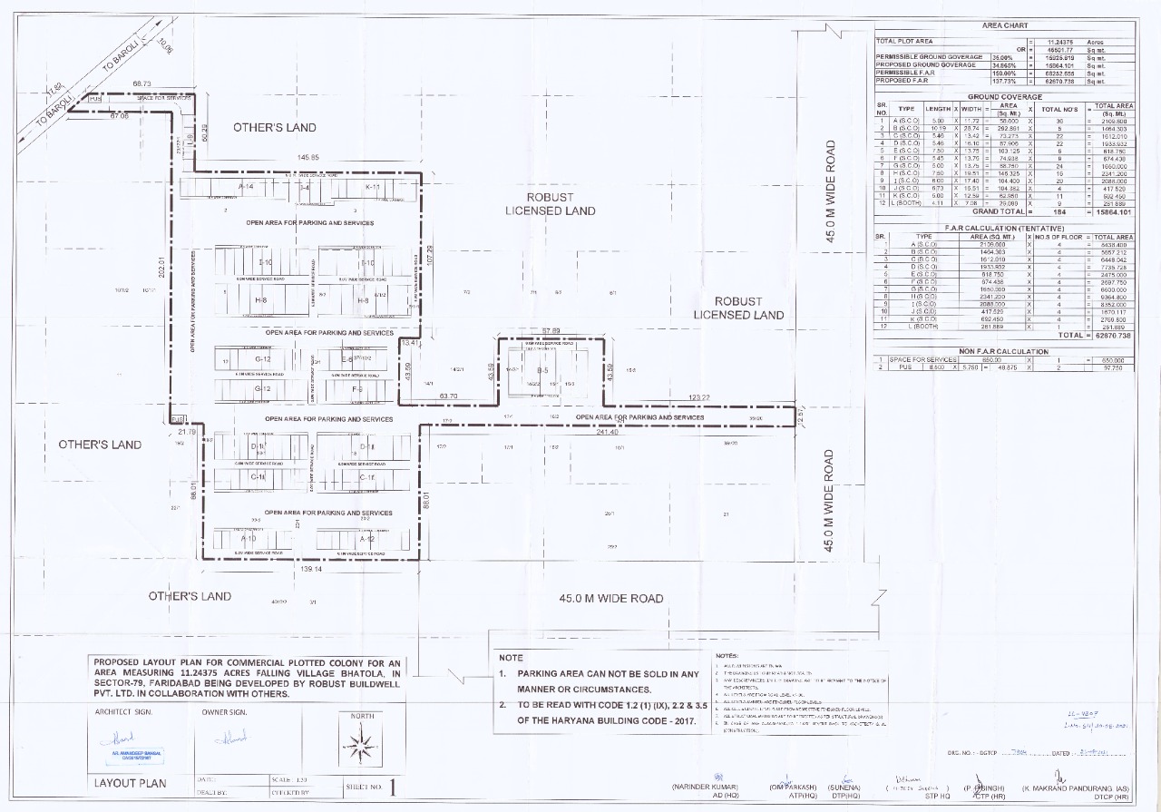
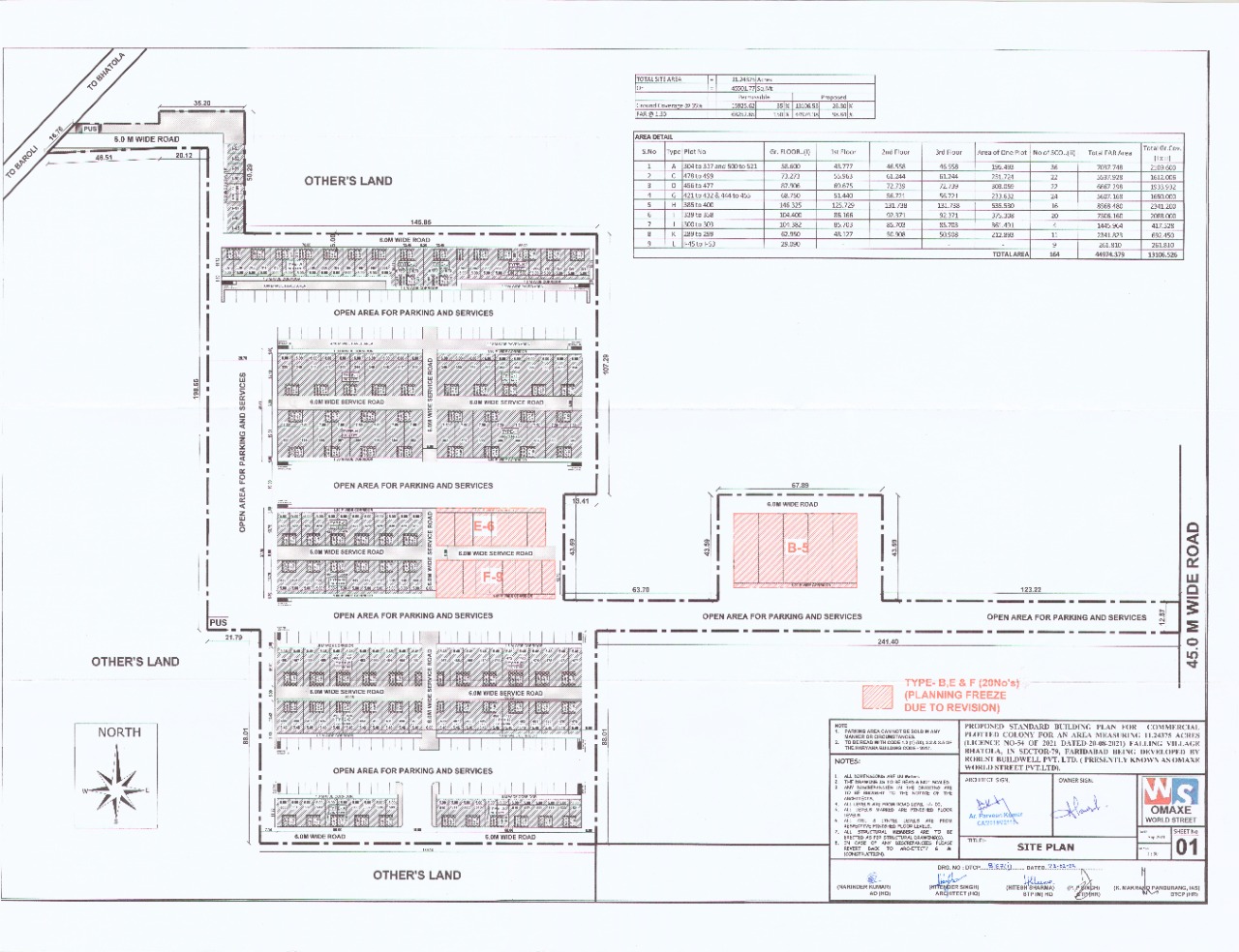
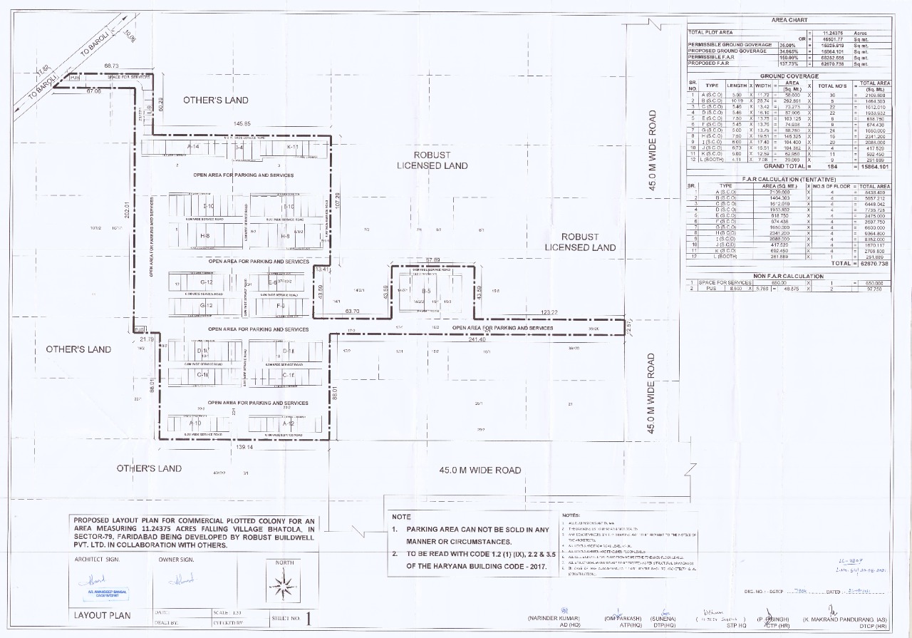
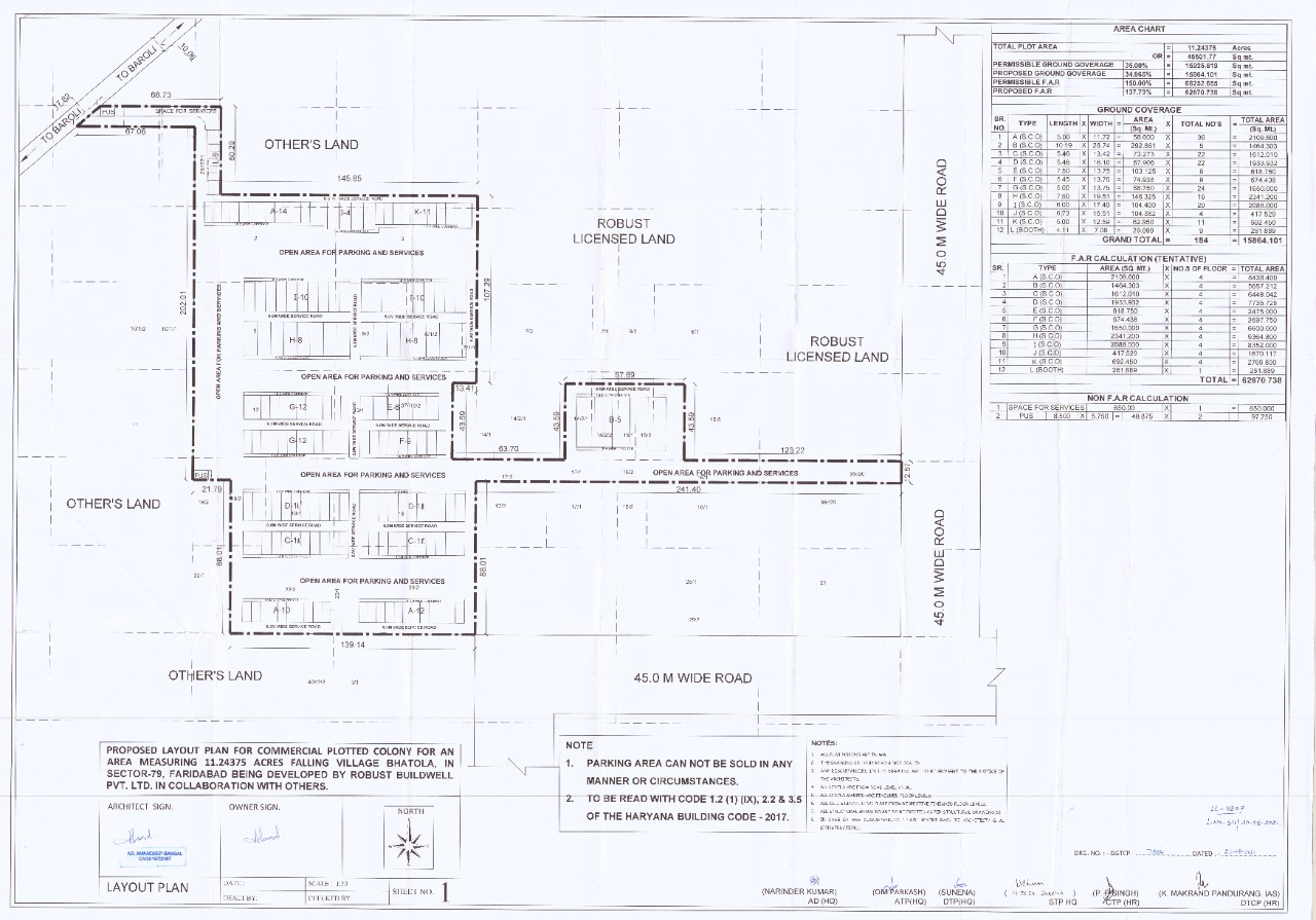
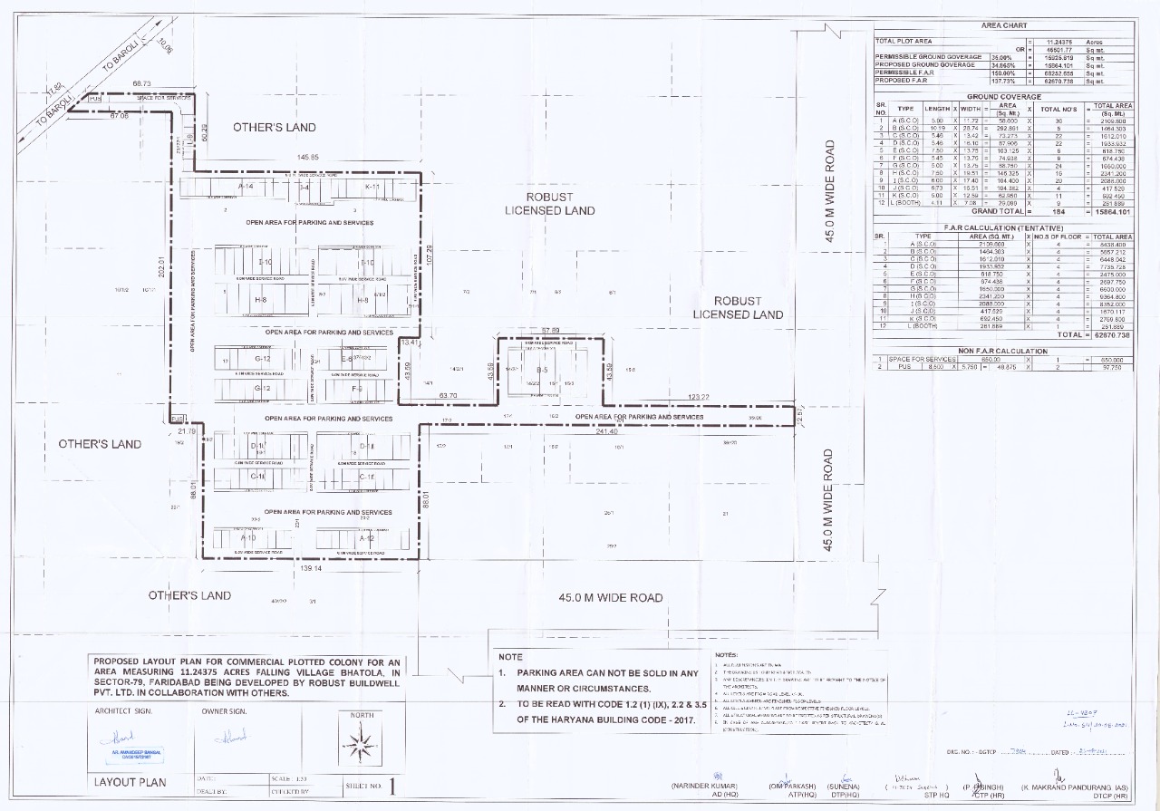
Sr. No.Land area under usageArea of land (Square Meters)
1PLOTS TO BE SOLD 18210.825
2LAND AREA TO BE USED FOR CONSTRUCTION OF APARTMENTS 0
3CONSTRUCTION OF ROADS 9484.81
4PAVEMENTS 0
5PARKS AND PLAYGROUNDS 0
6GREEN BELTS 0
7VEHICLE PARKINGS 15782.71
8ELECTRICITY SUB-STATION 0
9CLUB HOUSE 0
10SEWAGE AND SOLID WASTE TREATMENT FACILITY 2023.425
11AREA TO BE LEFT FOR TRANSFERRING TO THE GOVERNMENT FOR COMMUNITY SERVICES 0
12ANY OTHER 0
Total45501.77




FacilityExternal/ connecting service to be provided by (Name the agency)Whether Approval taken from the agency concerned. Yes/No (Annex details in folder C)
ROADSNo
WATER SUPPLYNo
ELECTRICITYNo
SEWAGE DISPOSALNo
STORM WATER DRAINAGENo




Sr. No.Name of the facilityEstimated cost (In Lakhs)(Within the project area only)Remarks: Yet to be prepared / Submitted to HUDA, Town & Country Planning Department/ as per project report etc. (Annex relevant documents showing costing details etc. in folder C)
1INTERNAL ROADS AND PAVEMENTS95YET TO BE PREPARED
2WATER SUPPLY SYSTEM30YET TO BE PREPARED
3STORM WATER DRAINAGE20YET TO BE PREPARED
4ELECTRICITY SUPPLY SYSTEM75YET TO BE PREPARED
5SEWAGE TREATMENT & GARBAGE DISPOSAL40YET TO BE PREPARED
6STREET LIGHTING0YET TO BE PREPARED
7SECURITY AND FIRE FIGHTING0YET TO BE PREPARED
8PLAYGROUNDS AND PARKS8YET TO BE PREPARED
9CLUB HOUSE/COMMUNITY CENTRE0YET TO BE PREPARED
10SHOPPING AREA43YET TO BE PREPARED
11RENEWABLE ENERGY SYSTEM0YET TO BE PREPARED
12SCHOOL0YET TO BE PREPARED
13HOSPITAL/DISPENSARY0YET TO BE PREPARED
14ANY OTHER154.8YET TO BE PREPARED


20-08-2021 (date)
22-02-2022 (date)
20-08-2021
19-08-2026
Sr. No Plot Area(In Square Meter)Number of plots in the project
1 58.60 36
2 292.861 5
3 73.273 22
4 87.906 22
5 103.125 6
6 74.938 9
7 68.750 24
8 146.325 16
9 104.40 20
10 104.382 4
11 62.950 11
12 29.099 9
Total184


TypeCarpet area(In Square Meter)Number of apartmentsNumber of towers
Apartment/Shops/Other Buildings000





Expenditure incurred till the date of application (In Lakhs)

ParticularsExpenditure

Expenditure to be made in each quarter (In Lakhs)

ParticularsYear-2022
Jan-MarApr-JuneJuly-SepOct-Dec
Apartments0000
Shops0000
Plots50505050

ParticularsYear-2023
Jan-MarApr-JuneJuly-SepOct-Dec
Apartments0000
Shops0000
Plots50505050

ParticularsYear-2024
Jan-MarApr-JuneJuly-SepOct-Dec
Apartments0000
Shops0000
Plots50505050




Expenditure incurred till the date of application (In Lakhs)

ParticularsExpenditure

Expenditure to be made in each quarter (In Lakhs)

ParticularsYear-2022
Jan-MarApr-JuneJuly-SepOct-Dec
Roads & Pavements1510020
Water Supply System010100
Sewerage treatment & garbage disposal150150
Electricity Supply System010010
Storm Water Drainage0000
Parks and Playgrounds8000
Clubhouse/community centres0000
Shopping area0000
Other08.9138

ParticularsYear-2023
Jan-MarApr-JuneJuly-SepOct-Dec
Roads & Pavements02500
Water Supply System00100
Sewerage treatment & garbage disposal0000
Electricity Supply System200100
Storm Water Drainage00015
Parks and Playgrounds0000
Clubhouse/community centres0000
Shopping area00180
Other2015025

ParticularsYear-2024
Jan-MarApr-JuneJuly-SepOct-Dec
Roads & Pavements100150
Water Supply System0000
Sewerage treatment & garbage disposal10000
Electricity Supply System010015
Storm Water Drainage0005
Parks and Playgrounds0000
Clubhouse/community centres0000
Shopping area25000
Other0153016

ParticularsYear-2025
Jan-MarApr-JuneJuly-SepOct-Dec
Roads & Pavements0000
Water Supply System0000
Sewerage treatment & garbage disposal0000
Electricity Supply System0000
Storm Water Drainage0000
Parks and Playgrounds0000
Clubhouse/community centres0000
Shopping area0000
Other2222

ParticularsYear-2026
Jan-MarApr-JuneJuly-SepOct-Dec
Roads & Pavements000
Water Supply System000
Sewerage treatment & garbage disposal000
Electricity Supply System000
Storm Water Drainage000
Parks and Playgrounds000
Clubhouse/community centres000
Shopping area000
Other222.9












Yes
No
YES BANK , D -12 SOUTH EXTENSION PART - 2, NEW DELHI-110049
001672500000249
YESB0000016
110532006
016
Kapil Mangla











Yes
Yes
Yes
No
Yes
No
No
No
No
Yes


Yes
No
No
Yes
No
No
No
No
Statutory Approvals Statutory Approvals StatusDate
I. ENVIRONMENTAL CLEARANCE ALREADY BEEN OBTAINED24-11-2021








Yes


Yes









AREA 28384.54 SQ. MTRS. COMMERCIAL CUM RESIDENTIAL COLONY SITUATED IN VILLAGE BHATOLA, SECTOR 79, FARIDABAD, HARYANA
28384.54
0
184
0
0
Initially estimated cost (In Lakhs)Revised cost (In Lakhs)Expenditure incurred upto the date of application (In Lakhs)
Total cost of the project
(Other than cost of land)
705505906.57
Cost of the apartments619306193
Cost of the infrastructure8620832
Others costs000


10539 Lakhs
0 Lakhs
0 Lakhs
10432 Lakhs
No
01-12-2027
01-06-2028










SPECIFICATION OF CONSTRUCTION
Specification of apartments and other buildings including the following:
1FLOORING DETAILS OF VARIOUS PARTS OF HOUSENA
2WALL FINISHING DETAILSNA
3KITCHEN DETAILSNA
4BATHROOM FITTINGSNA
5WOOD WORK ETCNA
6DOORS AND WINDOS FRAMESNA
7GLASS WORKNA
8ELECTRIC FITTINGSNA
9CONDUCTING AND WIRING DETAILSNA
10CUPBOARD DETAILSNA
11WATER STORAGENA
12LIFT DETAILSNA
13EXTERNAL GLAZINGSNA
13.1WINDOWS/GLAZINGSNA
14DOORSNA
14.1MAIN DOORSNA
14.2INTERNAL DOORSNA
15AIR CONDITIONINGNA
16ELECTRICAL FITTINGSNA
17CNG PIPE LINENA
18PROVISION OF WIFI AND BROADBAND FACILITYNA
19EXTERNAL FINISHING/COLOUR SCHEMENA
20INTERNAL FINISHINGNA
SPECIFICATION UNIT WISE
1 . LIVING/DINING/FOYER/FAMILY LOUNGE
1 . 1 FLOORNA
1 . 2 WALLSNA
1 . 3 CEILINGNA
2 . MASTER BEDROOM/DRESSROOM
2 . 1 FLOORNA
2 . 2 WALLSNA
2 . 3 CEILINGNA
2 . 4 MODULAR WARDROBESNA
3 . MASTER TOILET
3 . 1 FLOORNA
3 . 2 WALLSNA
3 . 3 CEILINGNA
3 . 4 COUNTERSNA
3 . 5 SANITARY WARE/CP FITTINGSNA
3 . 6 FITTING/FIXTURESNA
4 . BED ROOMS
4 . 1 FLOORNA
4 . 2 WALLSNA
4 . 3 CEILINGNA
4 . 4 WARDROBESNA
5 . TOILET
5 . 1 FLOORNA
5 . 2 WALLSNA
5 . 3 CEILINGNA
5 . 4 COUNTERSNA
5 . 5 SANITARY WARE/CP FITTINGSNA
5 . 6 FIXTURESNA
6 . KITCHEN
6 . 1 FLOORNA
6 . 2 WALLSNA
6 . 3 CEILINGNA
6 . 4 COUNTERSNA
6 . 5 FIXTURESNA
6 . 6 KITCHEN APPLIANCESNA
7 . UTILITY ROOMS/UTILITY BALCONY/TOILET
7 . 1 FLOORNA
7 . 2 WALLS & CEILINGNA
7 . 3 TOILETNA
7 . 4 BALCONYNA
8 . SIT-OUTS
8 . 1 FLOORNA
8 . 2 WALLS & CEILINGNA
8 . 3 RAILINGSNA
8 . 4 FIXTURESNA












Sr. No.Document DescriptionDate of Document UploadView Document
1 COPY OF LICENSE ALONG WITH SCHEDULE OF LAND 28-02-2022 View Document
2 SERVICE PLANS SHOWING THE SERVICES ON THE LAYOUT PLAN 28-02-2022 View Document
3 ZONING PLAN 28-02-2022 View Document
4 IN CASE OF GROUP HOUSING/ COMMERCIAL SITES, A COPY OF THE APPROVED SITE PLAN 28-02-2022 View Document
5 DEMARCATION PLAN 28-02-2022 View Document
6 DOCUMENTS RELATING TO THE ENTRY OF LICENSE AND COLLABORATION AGREEMENT IN THE REVENUE RECORD 28-02-2022 View Document
7 IN CASE OF PLOTTED COLONY, THE LATEST LAYOUT PLAN 02-03-2022 View Document
8 CASH FLOW STATEMENT OF THE PROPOSED PROJECT 07-03-2022 View Document
9 CERTIFICATE FROM A CHARTERED ACCOUNTANT CERTIFYING THAT THE INFORMSTION PROVIDED BY THE APPLICANT IN FORM REP-1-C-X IS CORRECT AS PER THE BOOKS OF ACCOUNTS/ BALANCE SHEET OF THE APPLICANT 07-03-2022 View Document
10 A COMPLETE SET OF THE LAST APPROVED BUILDING PLANS 07-03-2022 View Document
11 DECLARATION SUPPORTED BY AFFIDAVIT DULY SIGNED BY THE PROMOTER TO BE ENCLOSED. 08-03-2022 View Document
12 NON DEFAULT CERTIFICATE FROM A CHARTERED ACCOUNTANT 08-03-2022 View Document