HRERA PanchkulaTemp Project Id : RERA-PKL-PROJ-1017-2022
Submission Date : 04-02-2022 11:32:53 AM
Applicant Type : Company
Project Type: NEW




ESSEL INFRA LLP
LGF-10, VASANT SQUARE, PLOT-A, SECTOR-B, POCKET-V, COMMUNITY CENTRE, VASANT KUNJ NEW DELHI
01244691000
9654131894 (Number Shared by Promoter in Public)
info@suncityprojects.com
http://suncityprojects.com
XXXX413B
AAC0412
 
 


 
 


 
 







SUNCITY 35
SECTOR 35, ROHTAK
ROHTAK
ROHTAK
01244691000
9810656416 (Number Shared by Promoter in Public)
info@suncityprojects.com
S C GOEL
01244691000
9810656416 (Number Shared by Promoter in Public)
sc.goel@suncityprojects.com








As per sub-rule(2) of rule 3 of the Haryana Real Estate (Regulation and Development) Rules,2017, the fee for registration of the project as has been calculated as follows:
-----------------------------------------------------------------------------------------------------------------------
-----------------------------------------------------------------------------------------------------------------------
-----------------------------------------------------------------------------------------------------------------------
-----------------------------------------------------------------------------------------------------------------------
2. The aforesaid fees is hereby deposited vide following Drafts/ Banker’s Cheques:-

Sr No.Draft/Cheque No.Draft DateAmountPayee BankPayable To
151334503-02-2022363575ICICI BANKHRERA Panchkula







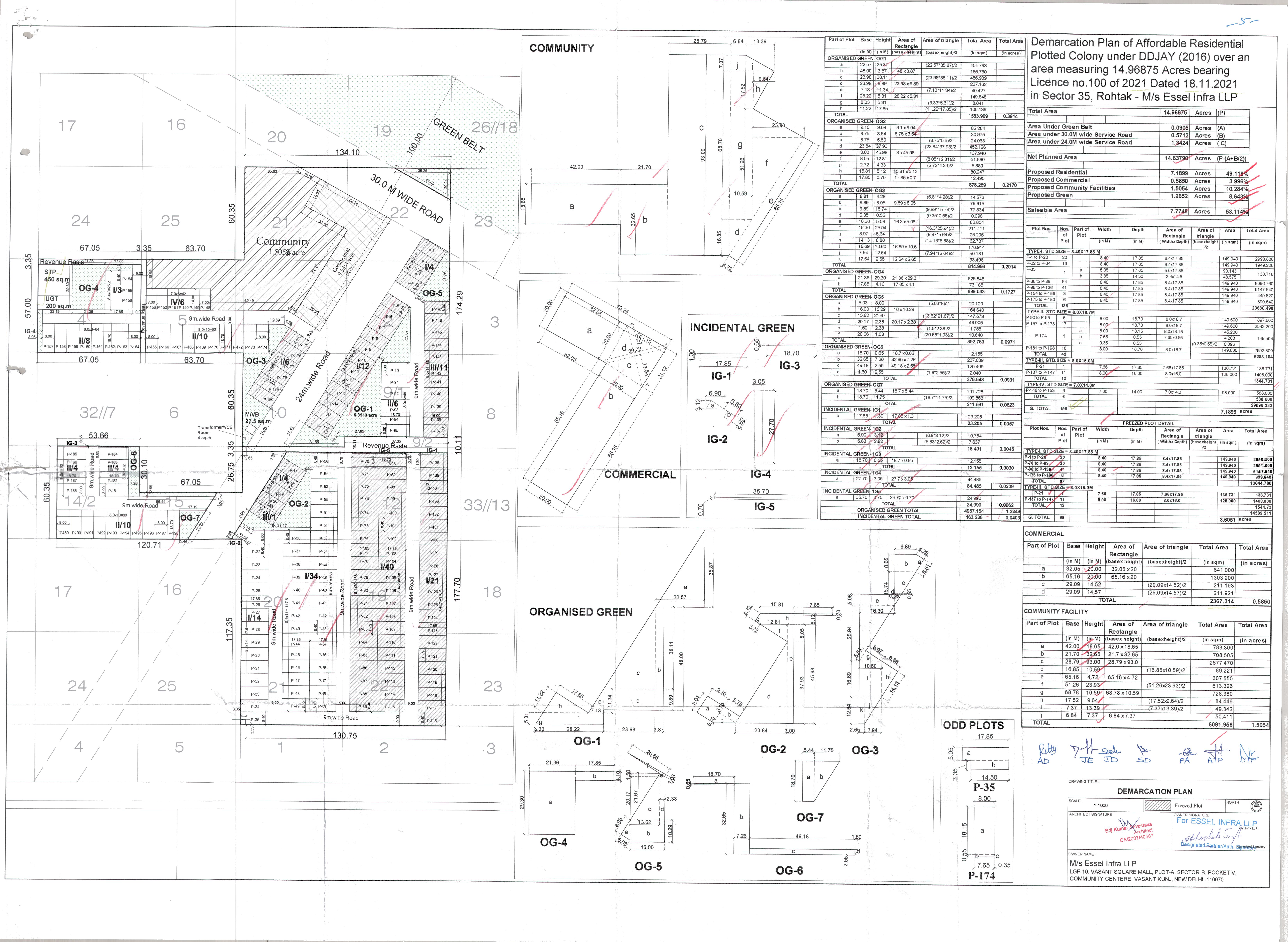
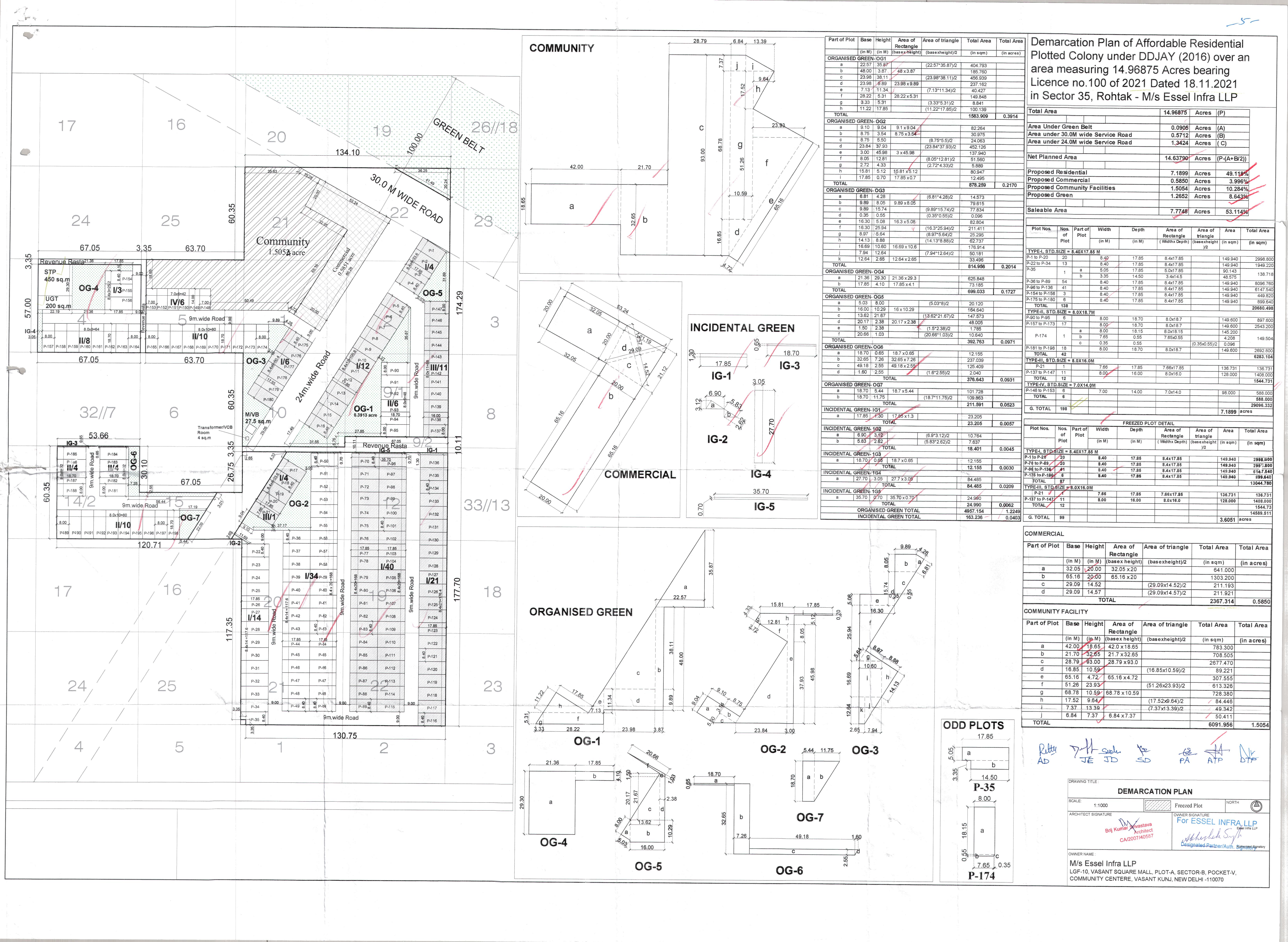
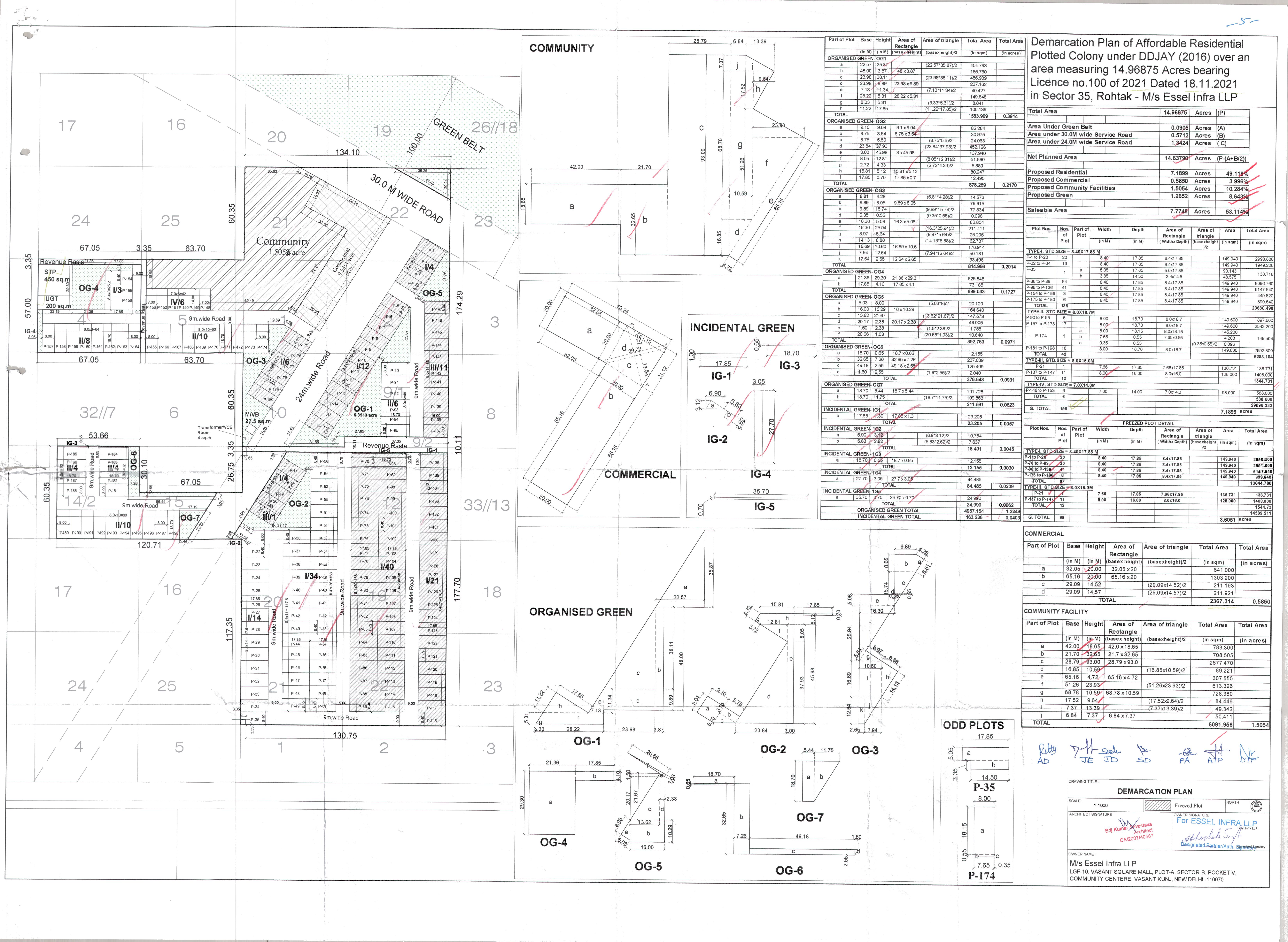
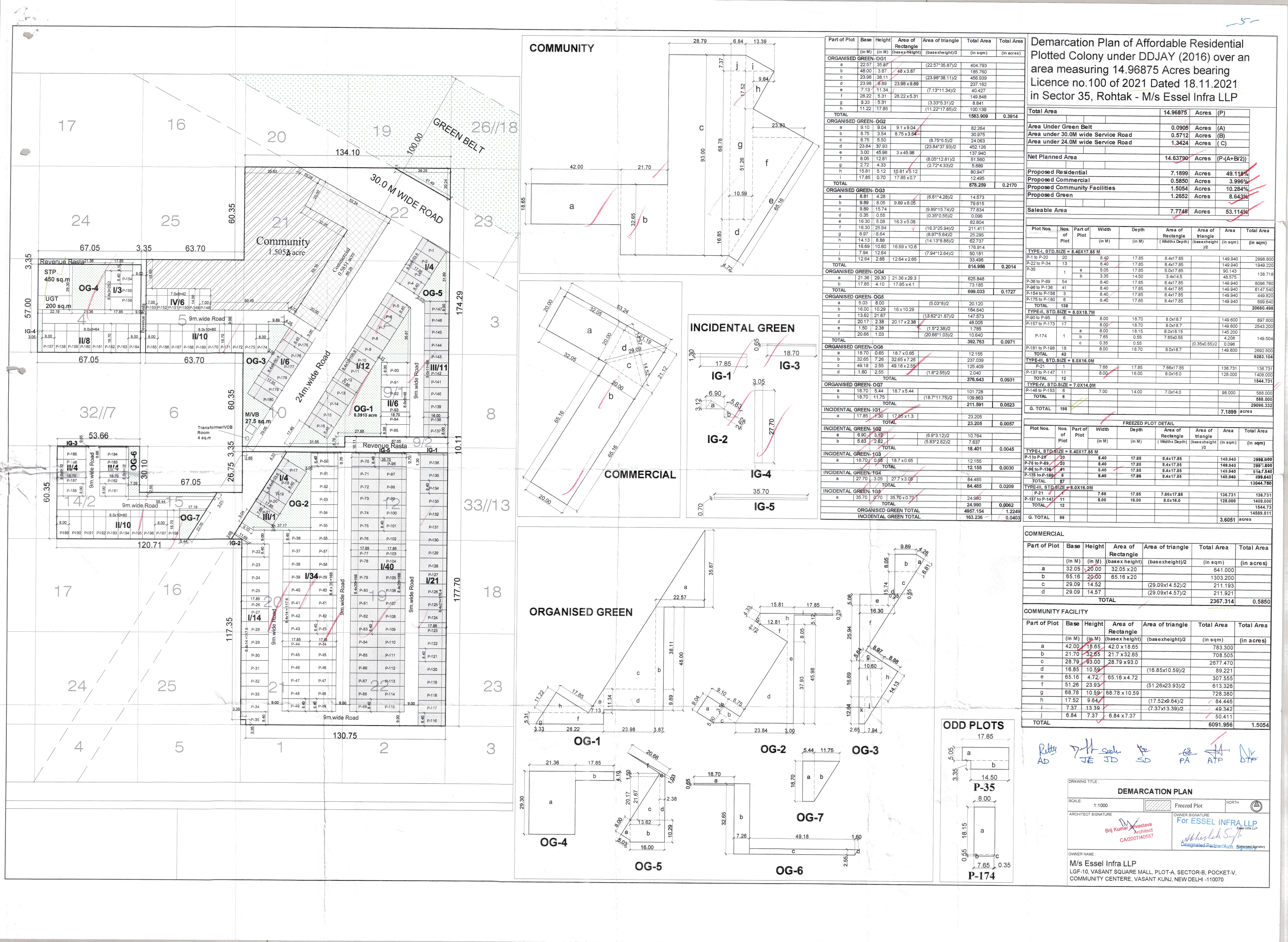
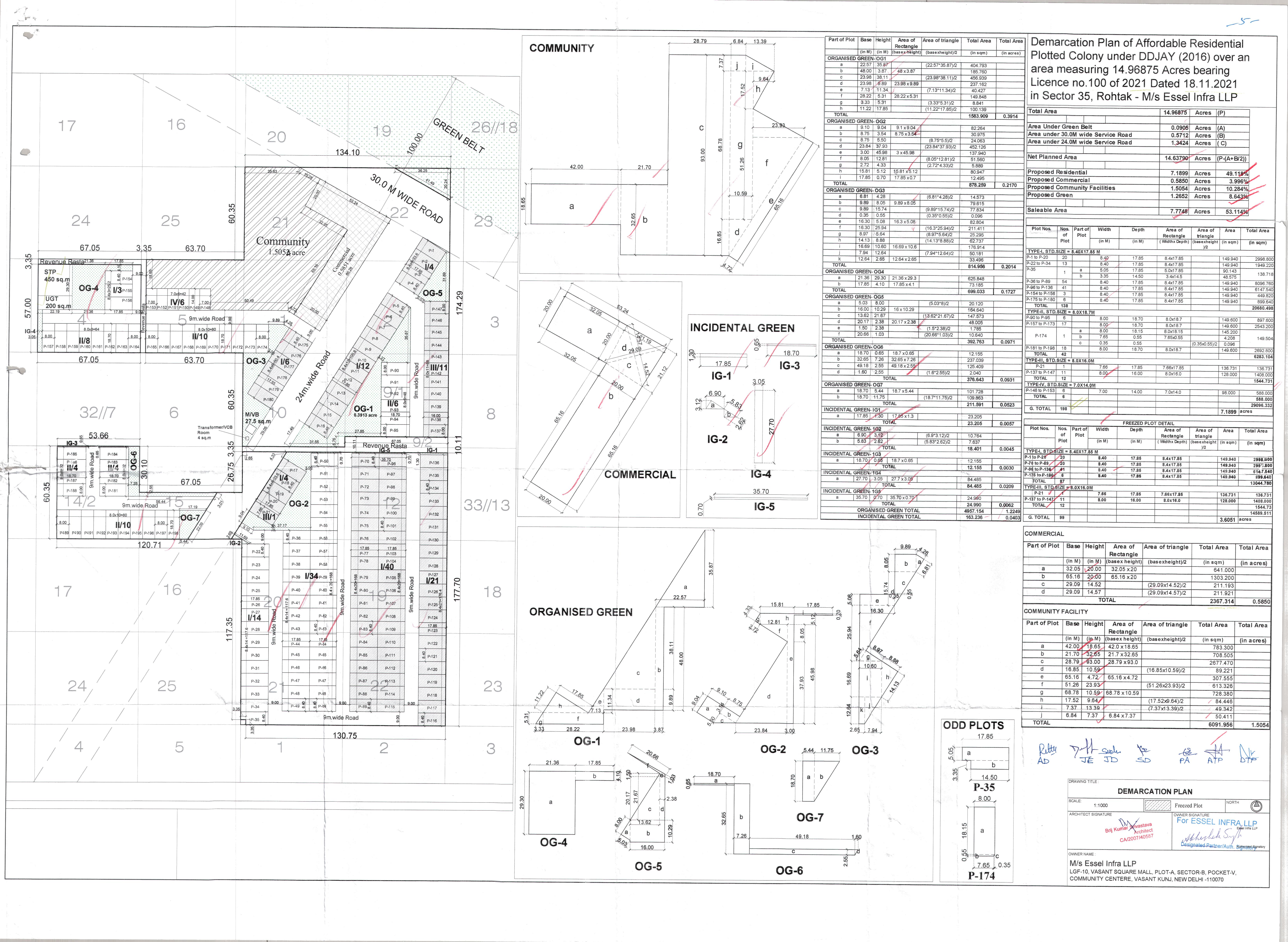
14.96875 (Acre)
Plotted Colony ( Individual plots FAR 2.64)
2.64
14.96875 (Acre)
DTCP License No. 100 of 2021 dated 18.11.2021
Yes







5486.06 Lakhs
4178.55 Lakhs
0 Lakhs
763 Lakhs
544.51 Lakhs




Sr. No.Land area under usageArea of land (Acres)
1PLOTS TO BE SOLD 7.1905
2LAND AREA TO BE USED FOR CONSTRUCTION OF APARTMENTS 0
3CONSTRUCTION OF ROADS 1.9136
4PAVEMENTS 0
5PARKS AND PLAYGROUNDS 1.2576
6GREEN BELTS 0.0905
7VEHICLE PARKINGS 0
8ELECTRICITY SUB-STATION 0.000988
9CLUB HOUSE 0
10SEWAGE AND SOLID WASTE TREATMENT FACILITY 0.1111
11AREA TO BE LEFT FOR TRANSFERRING TO THE GOVERNMENT FOR COMMUNITY SERVICES 1.5052
12ANY OTHER 2.264762
13COMMERCIAL 0.5851
14UGT 0.0494
Total14.96875




FacilityExternal/ connecting service to be provided by (Name the agency)Whether Approval taken from the agency concerned. Yes/No (Annex details in folder C)
ROADSALREADY CONNECTEDNo
WATER SUPPLYMUNICIPAL CORPORATION, ROHTAK No
ELECTRICITYDHBVN, ROHTAKNo
SEWAGE DISPOSALMUNICIPAL CORPORATION, ROHTAK No
STORM WATER DRAINAGEMUNICIPAL CORPORATION, ROHTAK No




Sr. No.Name of the facilityEstimated cost (In Lakhs)(Within the project area only)Remarks: Yet to be prepared / Submitted to HUDA, Town & Country Planning Department/ as per project report etc. (Annex relevant documents showing costing details etc. in folder C)
1INTERNAL ROADS AND PAVEMENTS246.59SUBMITTED TO HUDA
2WATER SUPPLY SYSTEM131.99SUBMITTED TO HUDA
3STORM WATER DRAINAGE108.35SUBMITTED TO HUDA
4ELECTRICITY SUPPLY SYSTEM88.13SUBMITTED TO HUDA
5SEWAGE TREATMENT & GARBAGE DISPOSAL175.64SUBMITTED TO HUDA
6STREET LIGHTING0YET TO BE PREPARED
7SECURITY AND FIRE FIGHTING0YET TO BE PREPARED
8PLAYGROUNDS AND PARKS12.15SUBMITTED TO HUDA
9CLUB HOUSE/COMMUNITY CENTRE0YET TO BE PREPARED
10SHOPPING AREA0YET TO BE PREPARED
11RENEWABLE ENERGY SYSTEM0YET TO BE PREPARED
12SCHOOL0YET TO BE PREPARED
13HOSPITAL/DISPENSARY0YET TO BE PREPARED
14ANY OTHER0.15SUBMITTED TO HUDA


18-11-2021 (date)
NA (date)
19-11-2021
17-11-2026
Sr. No Plot Area(In Square Meter)Number of plots in the project
1 149.94 137
2 149.60 41
3 128 11
4 98 6
5 136.731 1
6 138.718 1
7 149.504 1
Total198


TypeCarpet area(In Square Meter)Number of apartmentsNumber of towers
Apartment/Shops/Other Buildings000





Expenditure incurred till the date of application (In Lakhs)

ParticularsExpenditure

Expenditure to be made in each quarter (In Lakhs)

ParticularsExpenditure to be made in each quarter ()
Apr-JuneJuly-SepOct-DecJan-Mar




Expenditure incurred till the date of application (In Lakhs)

ParticularsExpenditure

Expenditure to be made in each quarter (In Lakhs)

ParticularsExpenditure to be made in each quarter ()
Apr-JuneJuly-SepOct-DecJan-Mar












Yes
No
ICICI BANK, OFFICE NUMBER 11, TIMES TOWER, M G ROAD, GURGAON - 122001
777705151021
ICIC0001143
110229199
001143
Ankit Goel, R/o Essel House, Mandi Road, Sultanpur, New Delhi
Uploaded certificate issued by a Chartered Accountant that the applicant has not defaulted in its debt liabilities in the past five years











Yes
Yes
Yes
No
No
No
No
No
No
No


Yes
No
Yes
Yes
Yes
Yes
Yes
No
Statutory Approvals Statutory Approvals StatusDate
I. LICENSEALREADY BEEN OBTAINED18-11-2021
II. FOREST NOCALREADY BEEN OBTAINED20-12-2021
III. ZONING APPROVALALREADY BEEN OBTAINED28-01-2022








Yes


Yes


Draft agreement Attatched













SPECIFICATION OF CONSTRUCTION
Specification of apartments and other buildings including the following:
1FLOORING DETAILS OF VARIOUS PARTS OF HOUSENA
2WALL FINISHING DETAILSNA
3KITCHEN DETAILSNA
4BATHROOM FITTINGSNA
5WOOD WORK ETCNA
6DOORS AND WINDOS FRAMESNA
7GLASS WORKNA
8ELECTRIC FITTINGSNA
9CONDUCTING AND WIRING DETAILSNA
10CUPBOARD DETAILSNA
11WATER STORAGENA
12LIFT DETAILSNA
13EXTERNAL GLAZINGSNA
13.1WINDOWS/GLAZINGSNA
14DOORSNA
14.1MAIN DOORSNA
14.2INTERNAL DOORSNA
15AIR CONDITIONINGNA
16ELECTRICAL FITTINGSNA
17CNG PIPE LINENA
18PROVISION OF WIFI AND BROADBAND FACILITYNA
19EXTERNAL FINISHING/COLOUR SCHEMENA
20INTERNAL FINISHINGNA
SPECIFICATION UNIT WISE
1 . LIVING/DINING/FOYER/FAMILY LOUNGE
1 . 1 FLOORNA
1 . 2 WALLSNA
1 . 3 CEILINGNA
2 . MASTER BEDROOM/DRESSROOM
2 . 1 FLOORNA
2 . 2 WALLSNA
2 . 3 CEILINGNA
2 . 4 MODULAR WARDROBESNA
3 . MASTER TOILET
3 . 1 FLOORNA
3 . 2 WALLSNA
3 . 3 CEILINGNA
3 . 4 COUNTERSNA
3 . 5 SANITARY WARE/CP FITTINGSNA
3 . 6 FITTING/FIXTURESNA
4 . BED ROOMS
4 . 1 FLOORNA
4 . 2 WALLSNA
4 . 3 CEILINGNA
4 . 4 WARDROBESNA
5 . TOILET
5 . 1 FLOORNA
5 . 2 WALLSNA
5 . 3 CEILINGNA
5 . 4 COUNTERSNA
5 . 5 SANITARY WARE/CP FITTINGSNA
5 . 6 FIXTURESNA
6 . KITCHEN
6 . 1 FLOORNA
6 . 2 WALLSNA
6 . 3 CEILINGNA
6 . 4 COUNTERSNA
6 . 5 FIXTURESNA
6 . 6 KITCHEN APPLIANCESNA
7 . UTILITY ROOMS/UTILITY BALCONY/TOILET
7 . 1 FLOORNA
7 . 2 WALLS & CEILINGNA
7 . 3 TOILETNA
7 . 4 BALCONYNA
8 . SIT-OUTS
8 . 1 FLOORNA
8 . 2 WALLS & CEILINGNA
8 . 3 RAILINGSNA
8 . 4 FIXTURESNA












Sr. No.Document DescriptionDate of Document UploadView Document
1 COPY OF LICENSE ALONG WITH SCHEDULE OF LAND 31-01-2022 View Document
2 IN CASE OF PLOTTED COLONY, THE LATEST LAYOUT PLAN 31-01-2022 View Document
3 IN CASE OF GROUP HOUSING/ COMMERCIAL SITES, A COPY OF THE APPROVED SITE PLAN 31-01-2022 View Document
4 DECLARATION SUPPORTED BY AFFIDAVIT DULY SIGNED BY THE PROMOTER TO BE ENCLOSED. 31-01-2022 View Document
5 NON DEFAULT CERTIFICATE FROM A CHARTERED ACCOUNTANT 03-02-2022 View Document
6 CERTIFICATE FROM A CHARTERED ACCOUNTANT CERTIFYING THAT THE INFORMSTION PROVIDED BY THE APPLICANT IN FORM REP-1-C-X IS CORRECT AS PER THE BOOKS OF ACCOUNTS/ BALANCE SHEET OF THE APPLICANT 04-02-2022 View Document
7 DEMARCATION PLAN 04-02-2022 View Document
8 ZONING PLAN 04-02-2022 View Document
9 SERVICE PLANS SHOWING THE SERVICES ON THE LAYOUT PLAN 04-02-2022 View Document












Sr. No.Document DescriptionDate of Document UploadView Document
1 Completion Certificate dated-14.11.2022 12-04-2023 View Document