HRERA PanchkulaTemp Project Id : RERA-PKL-PROJ-1013-2022
Submission Date : 23-01-2022 07:17:12 PM
Applicant Type : Company
Project Type: ONGOING




RAS DEVELOPMENTS PVT LTD
203, 2ND FLOOR, CHIRANJIVE TOWER, NEHRU PLACE- NEW DELHI
01146525031
8130691129 (Number Shared by Promoter in Public)
INFO@RASINDIA.NET
XXXX308P
U74899DL2004PTC125080
 
 


 
 


 
 


 
 







RAS RESIDENCY 2
SECTOR 36 KARNAL
KARNAL
KARNAL
01846540555
8130691129 (Number Shared by Promoter in Public)
RAS.OFFICE.KNL@GMAIL.COM
RUPESH ATTRI
01846540555
8130691129 (Number Shared by Promoter in Public)
RUPESH@RASINDIA.NET








As per sub-rule(2) of rule 3 of the Haryana Real Estate (Regulation and Development) Rules,2017, the fee for registration of the project as has been calculated as follows:
-----------------------------------------------------------------------------------------------------------------------
-----------------------------------------------------------------------------------------------------------------------
-----------------------------------------------------------------------------------------------------------------------
-----------------------------------------------------------------------------------------------------------------------
2. The aforesaid fees is hereby deposited vide following Drafts/ Banker’s Cheques:-

Sr No.Draft/Cheque No.Draft DateAmountPayee BankPayable To
13071805-08-201768000HDFCHRERA Panchkula
286591618-01-2022170000PNBHRERA Panchkula







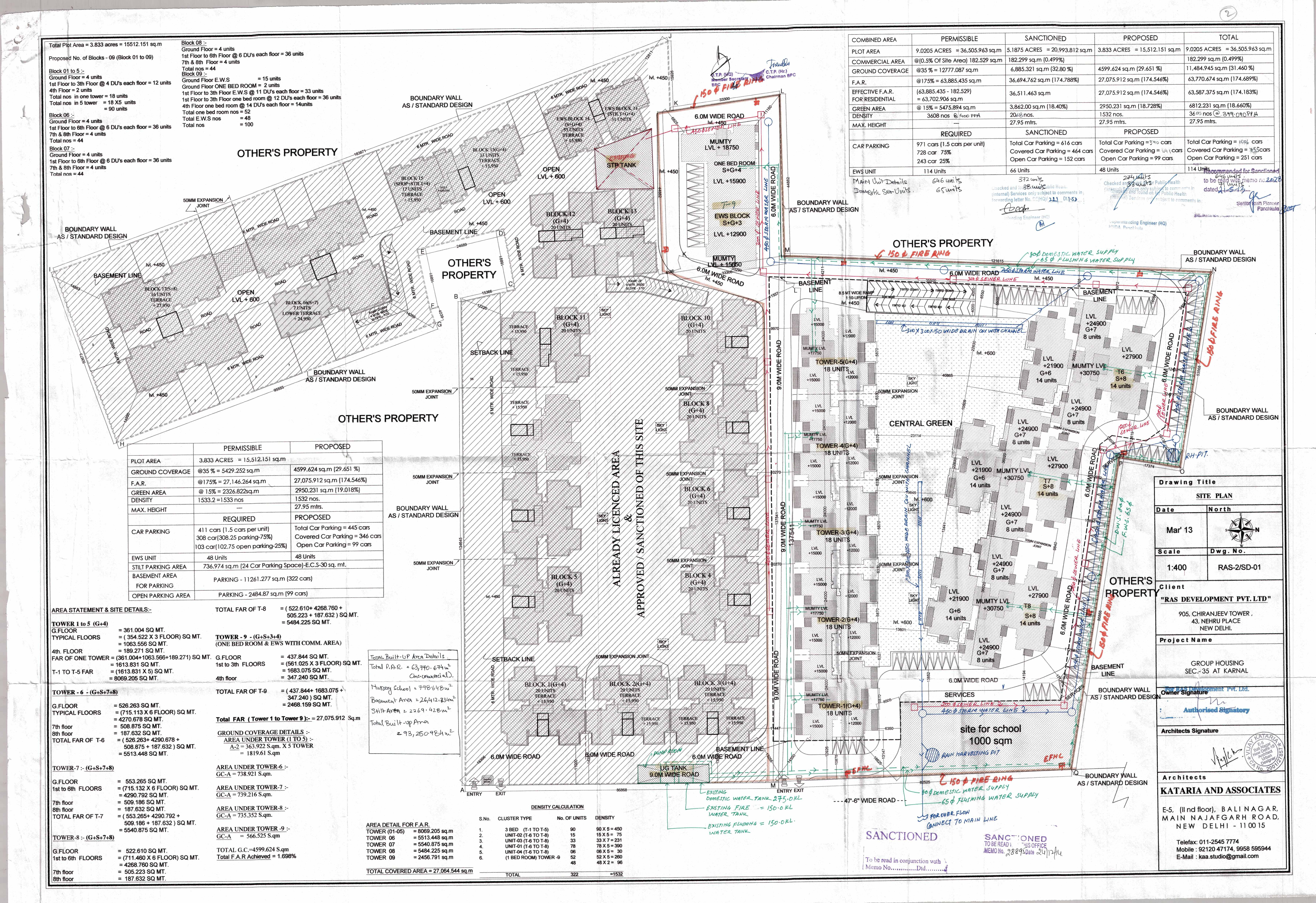
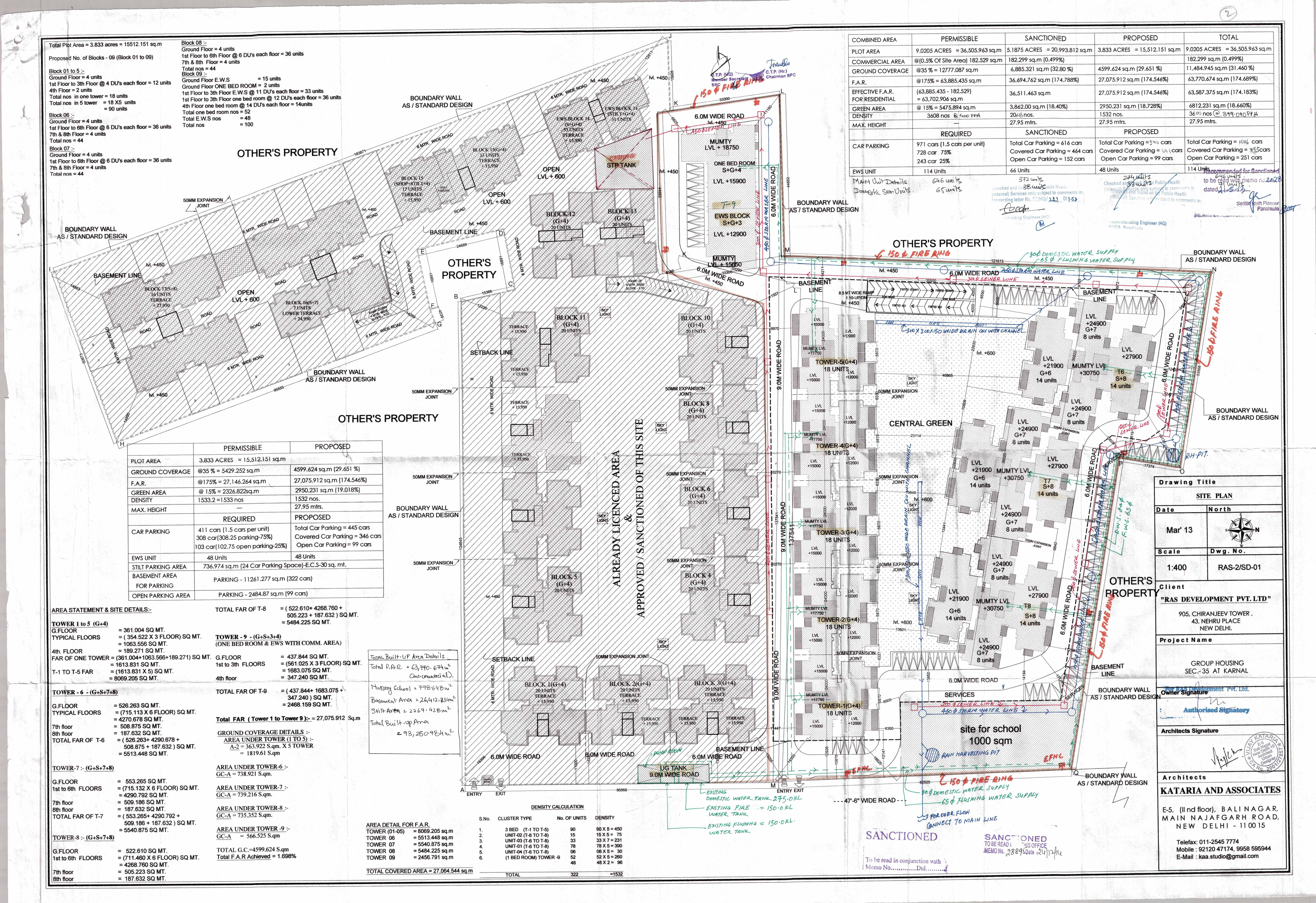
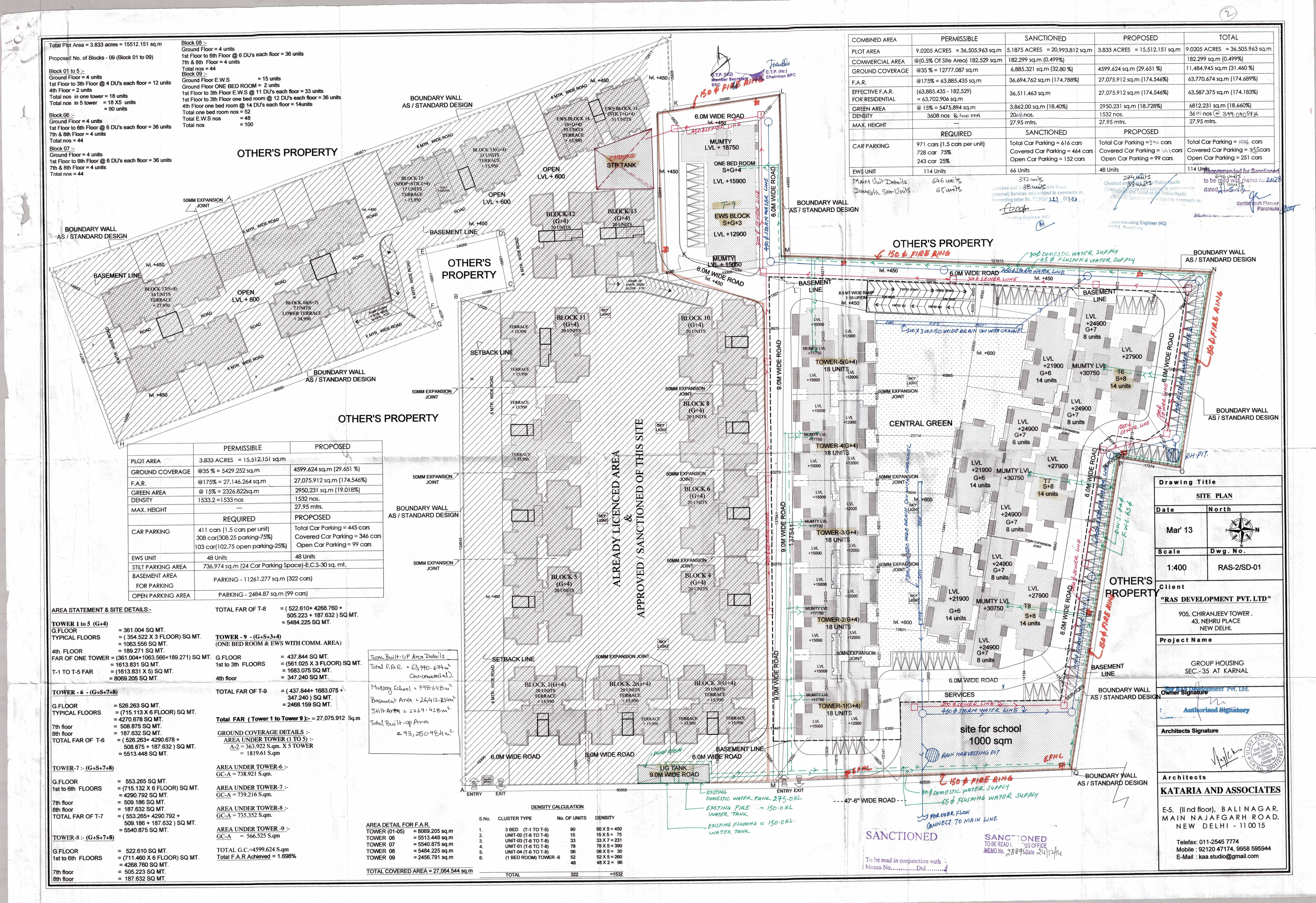
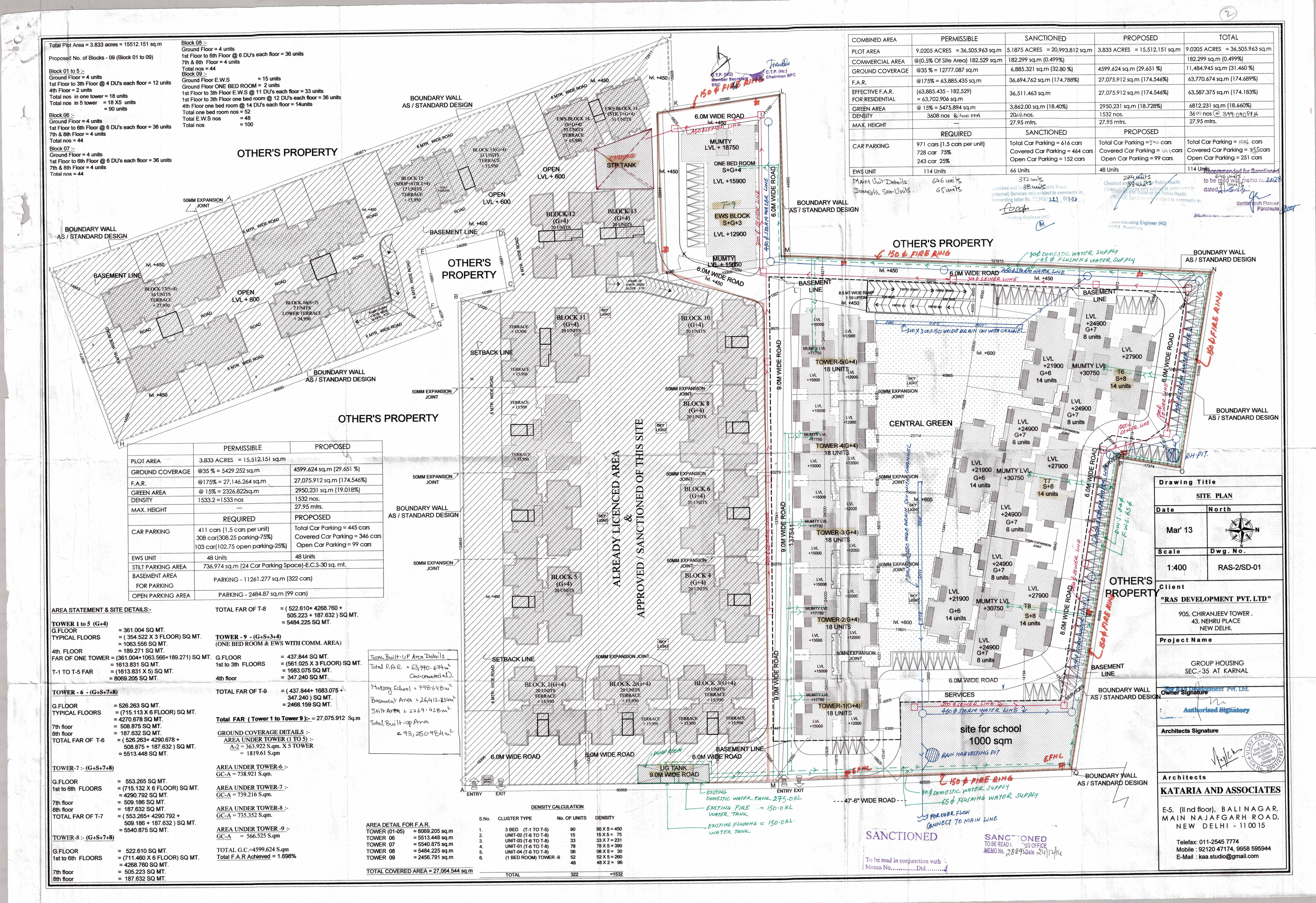
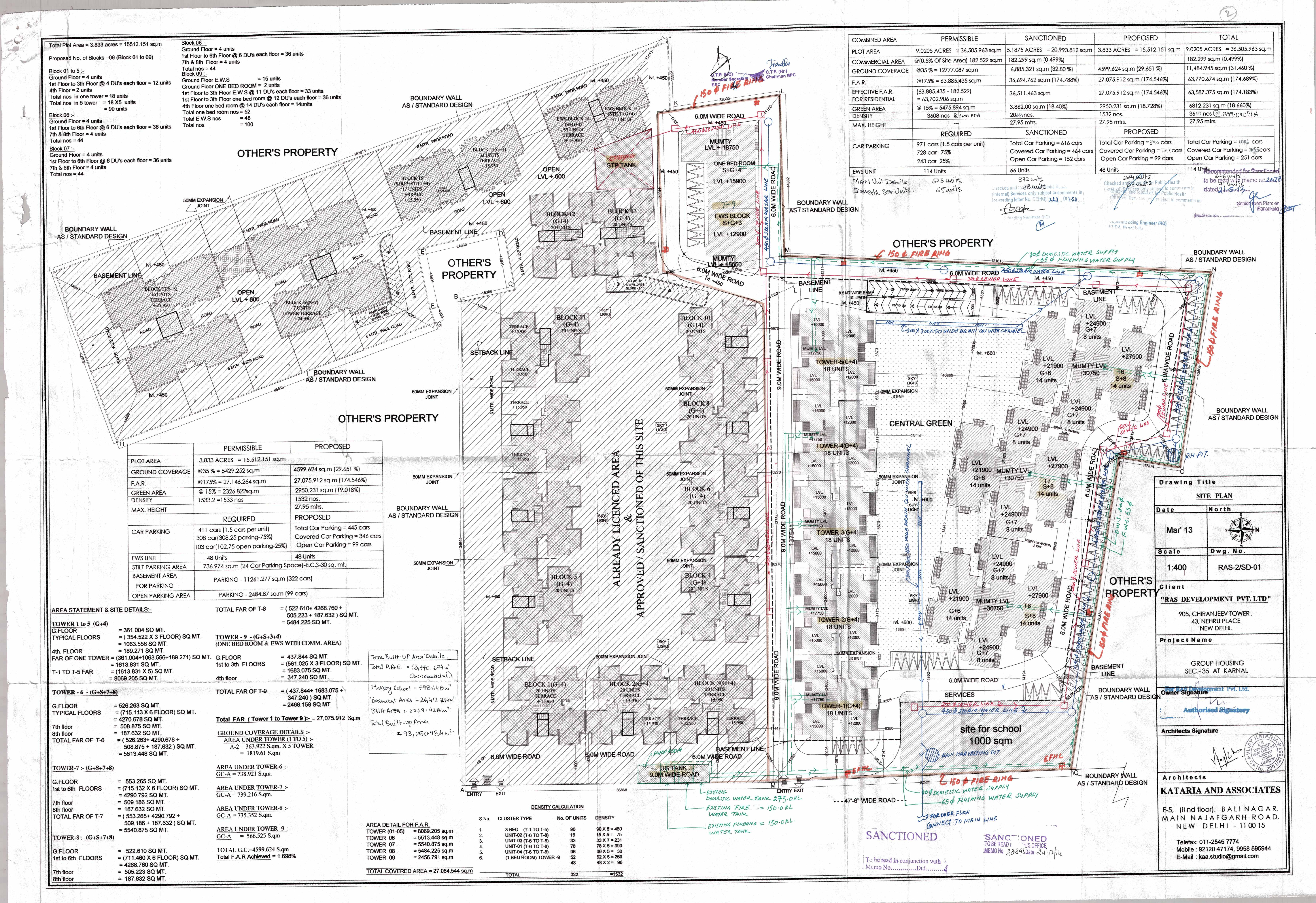
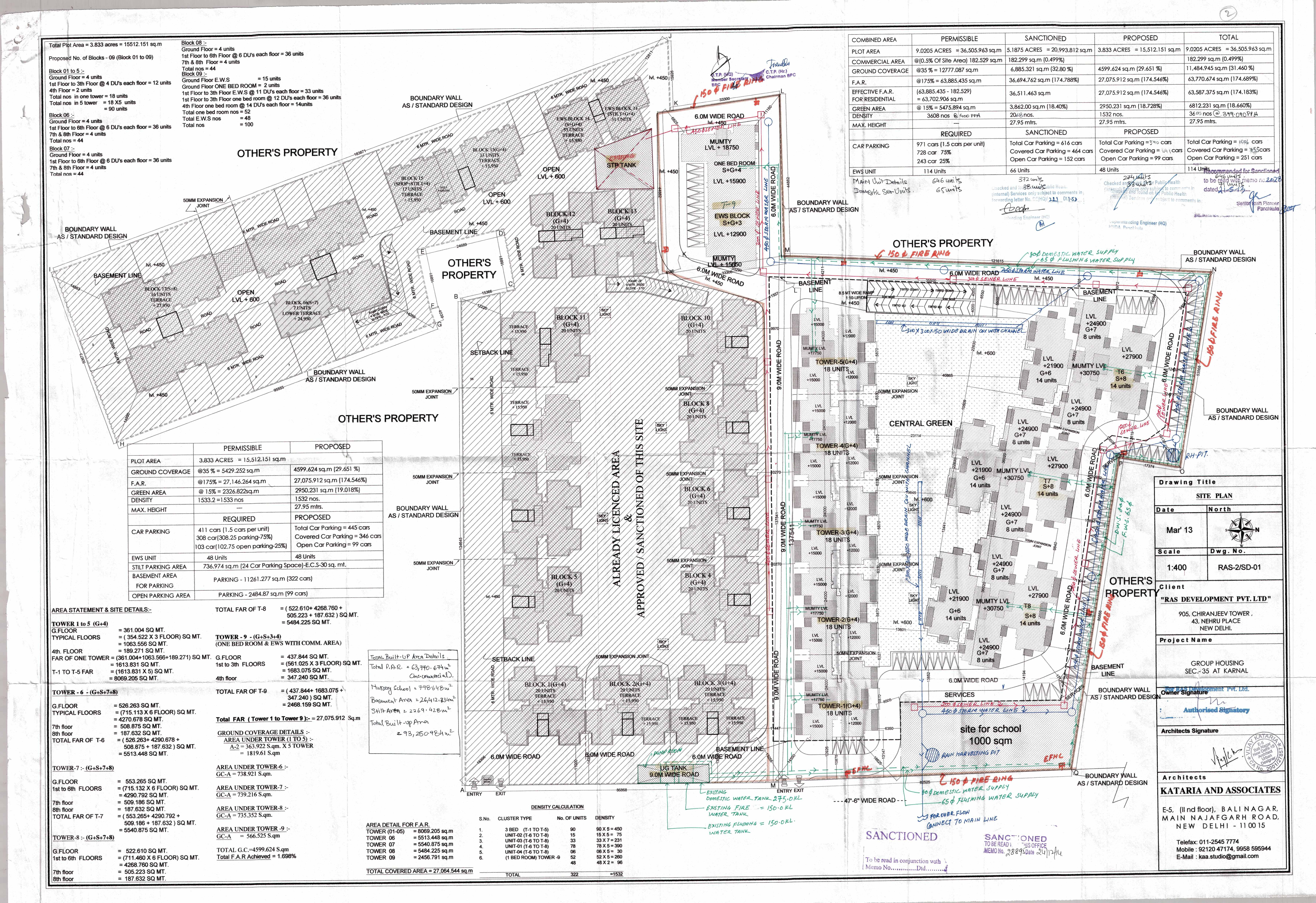
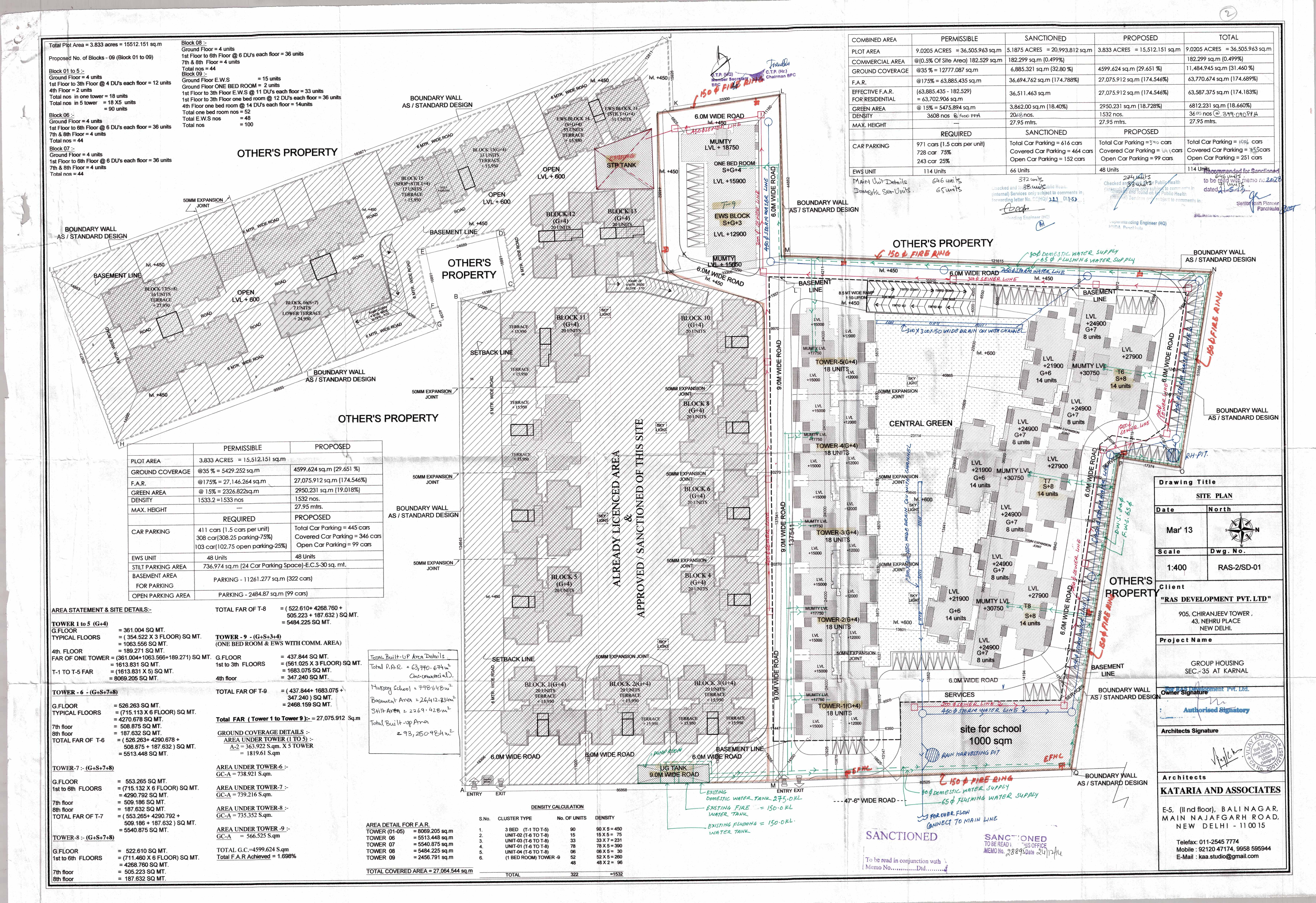
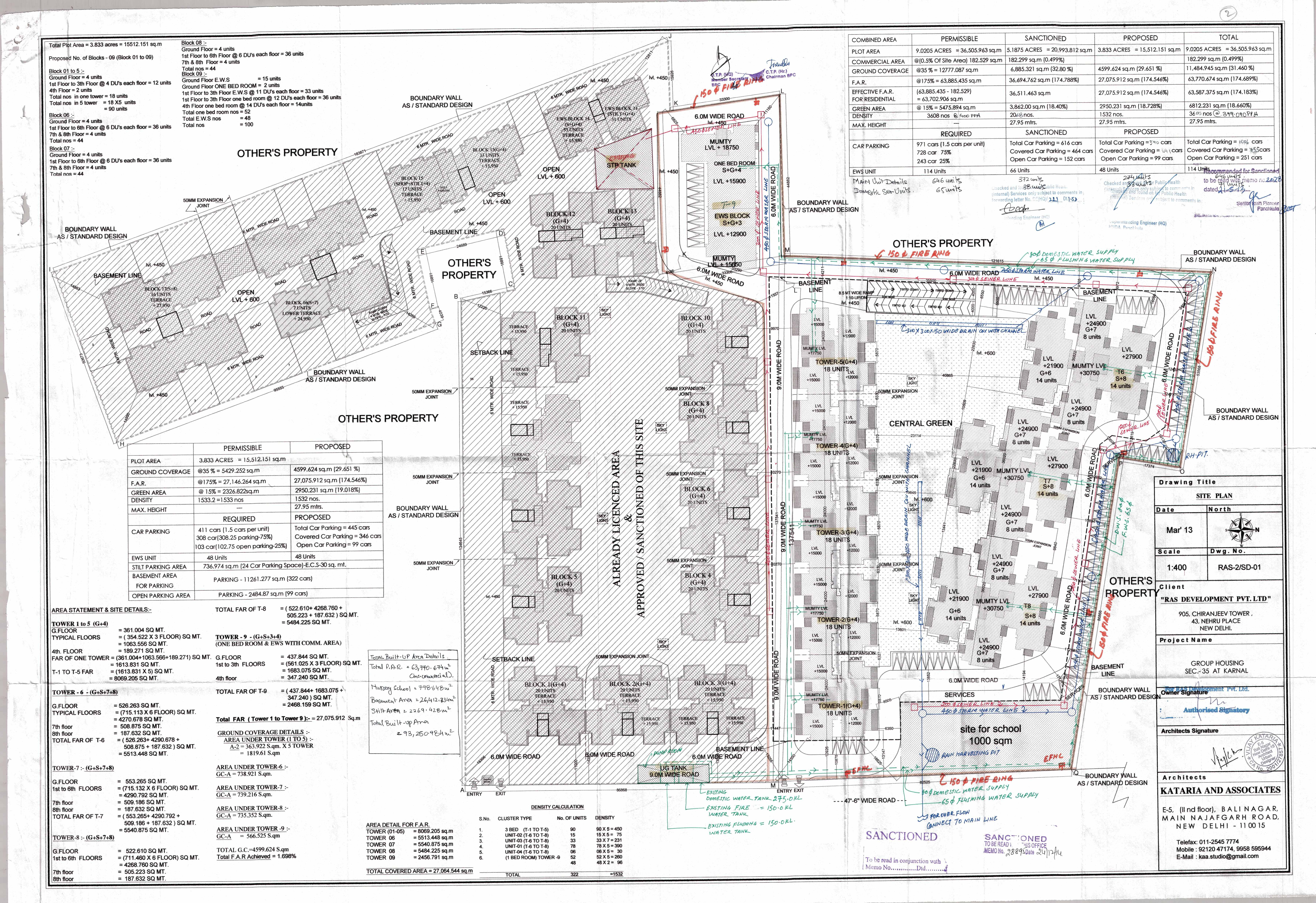
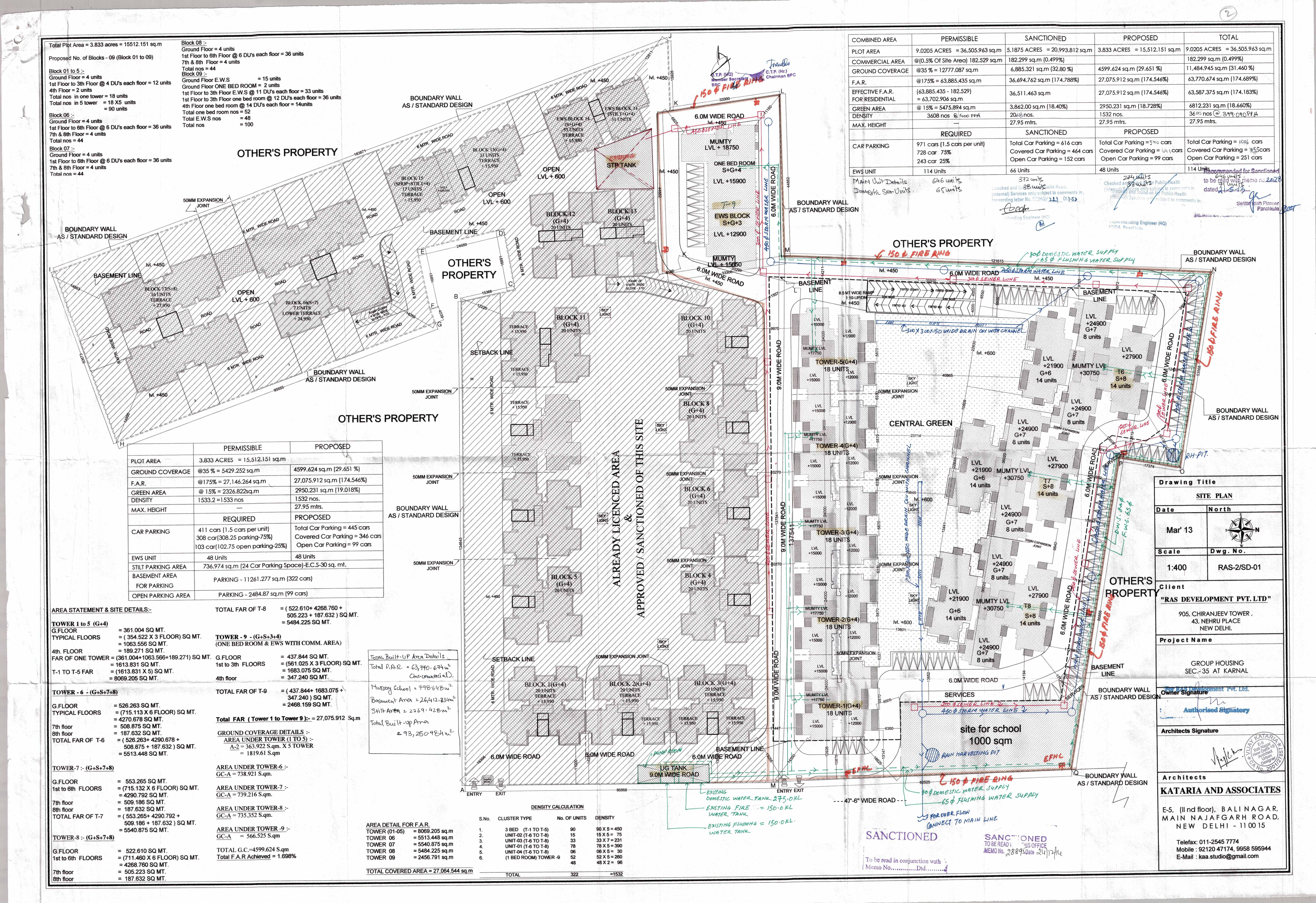
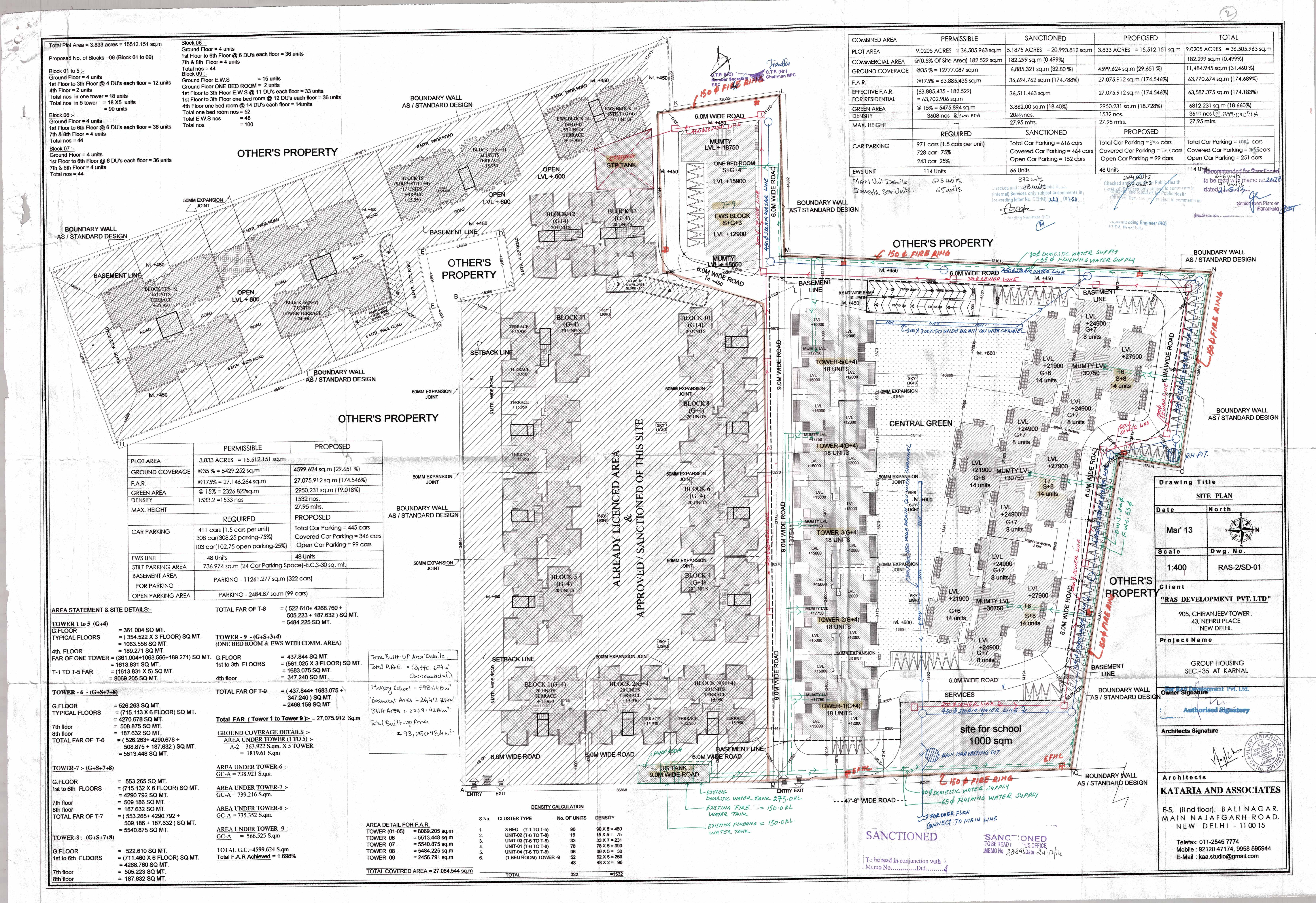
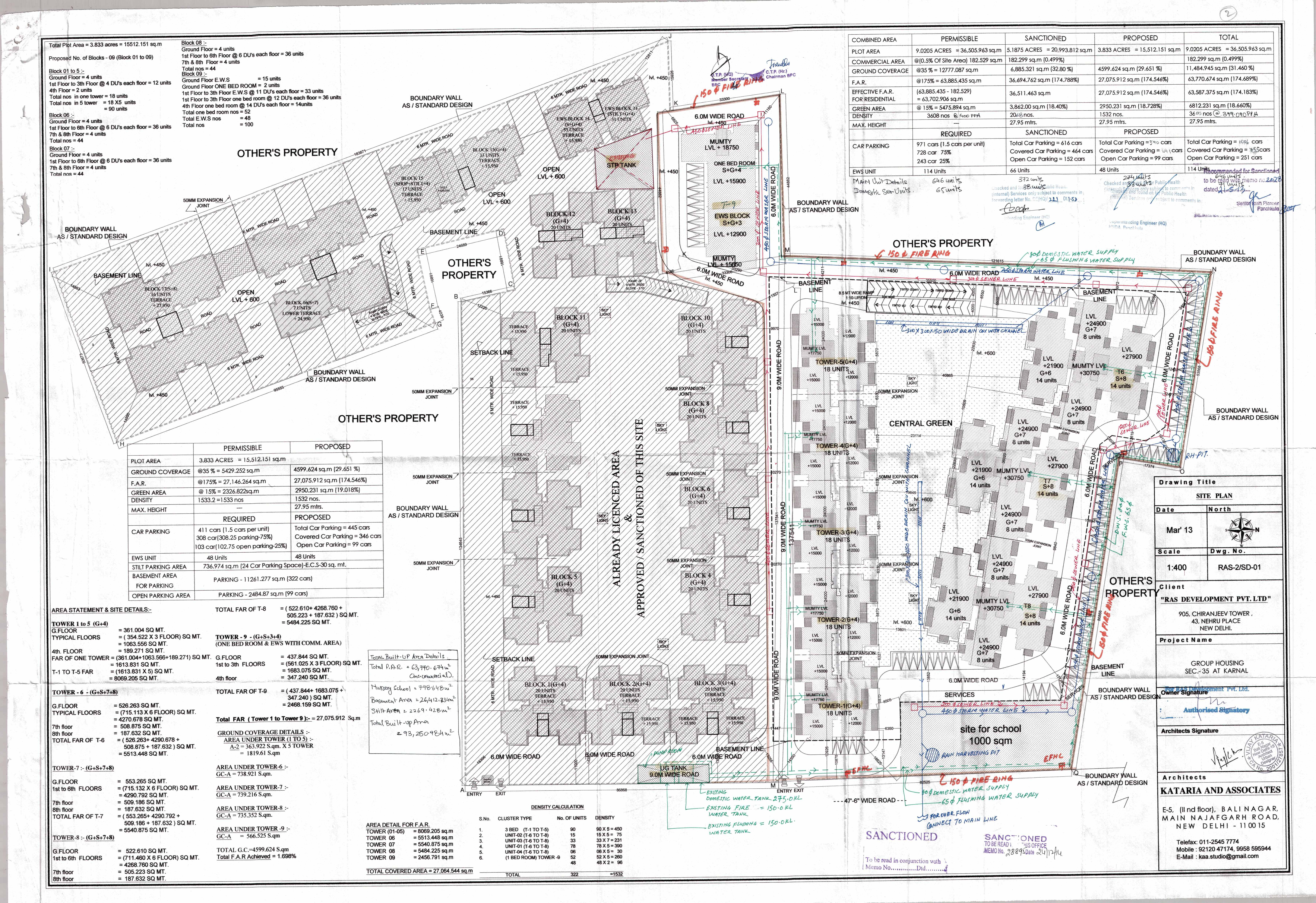
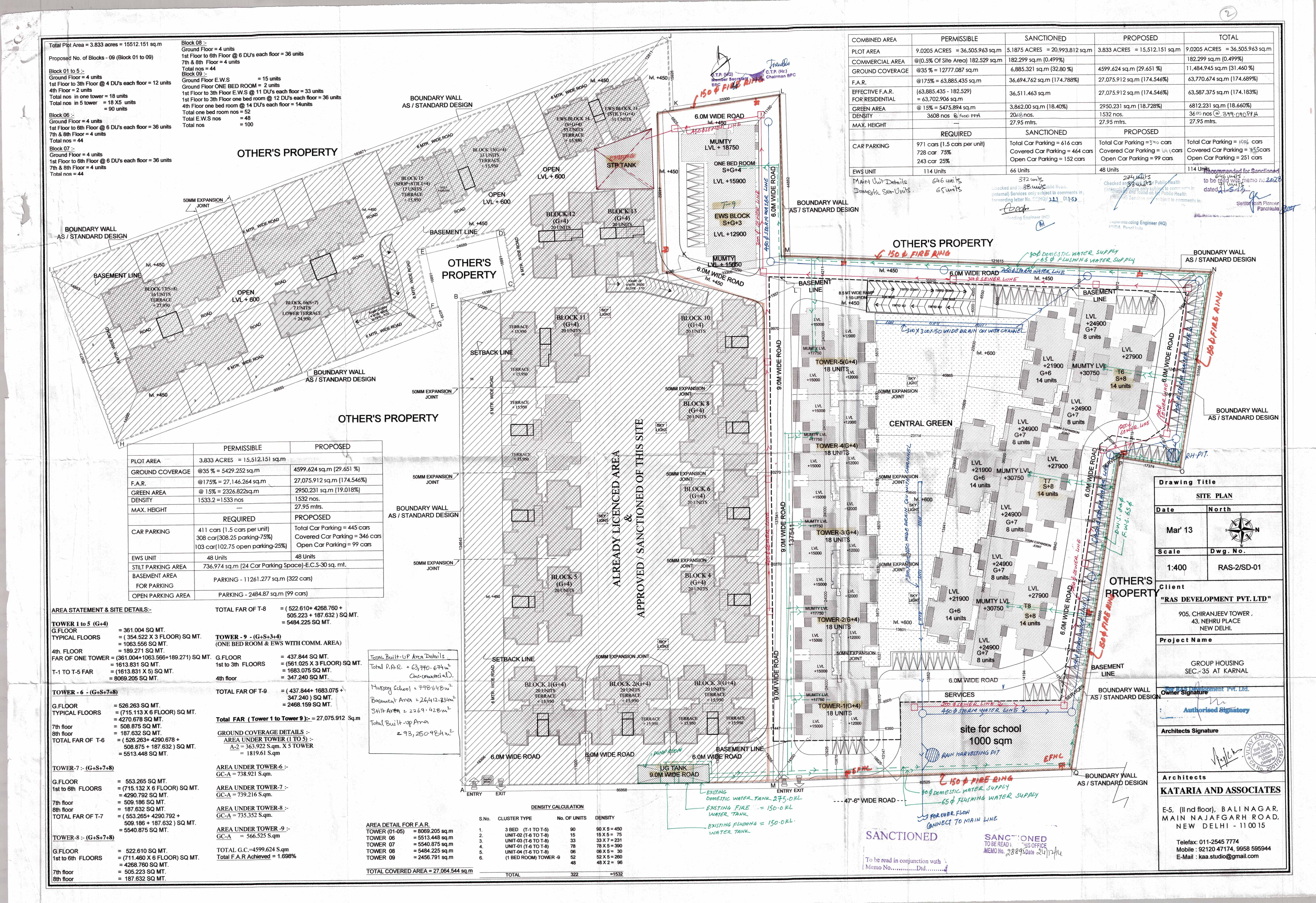
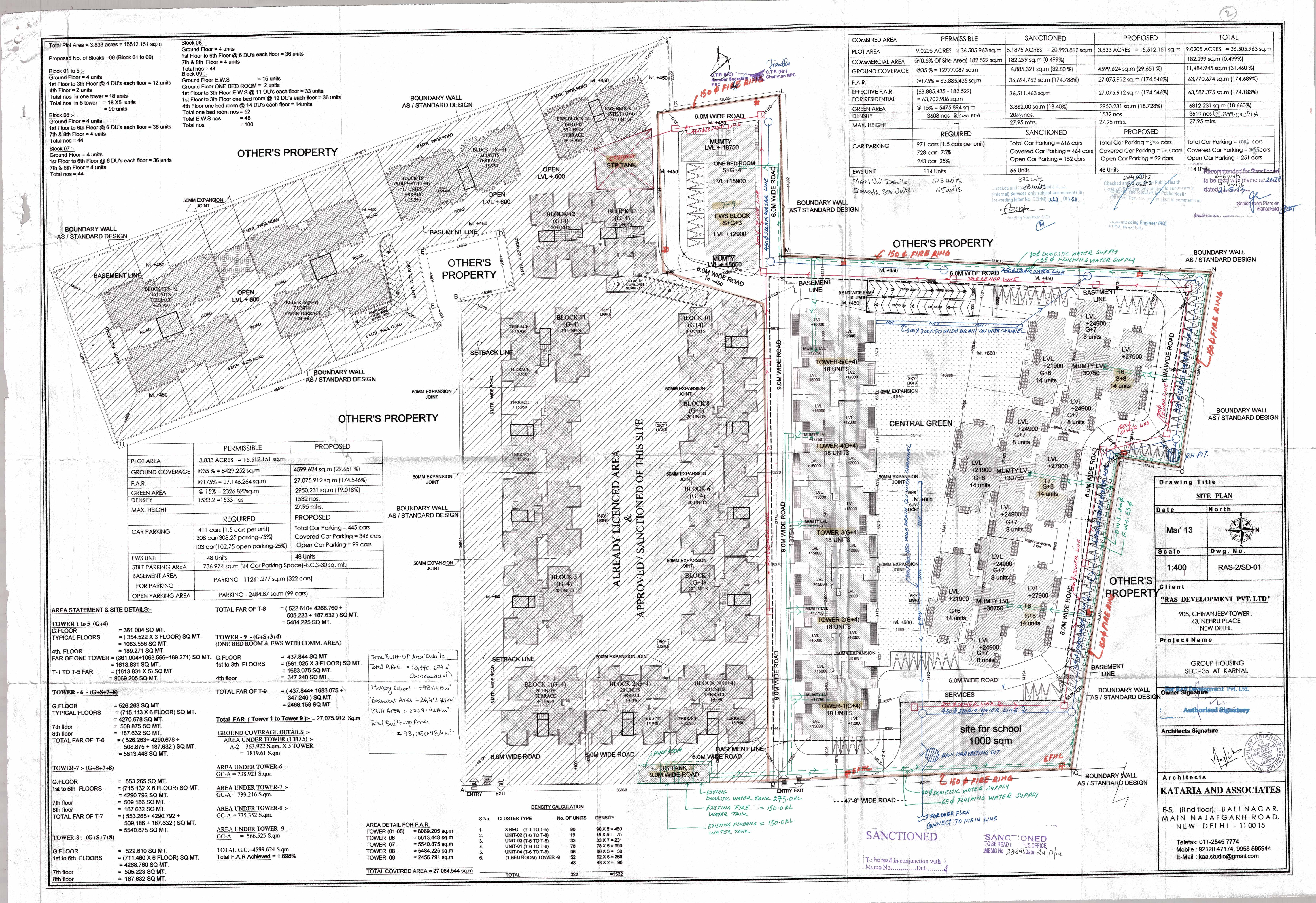
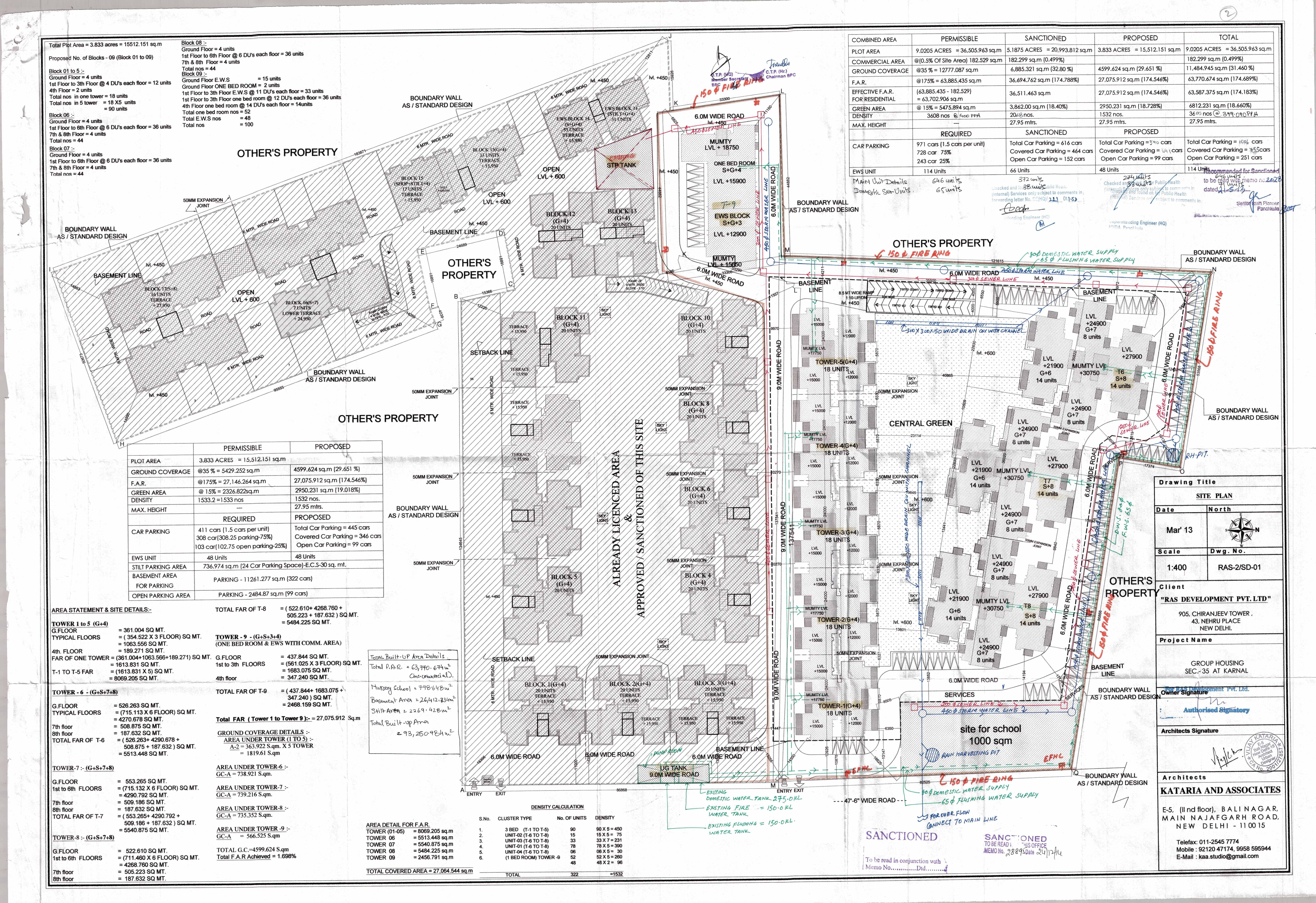
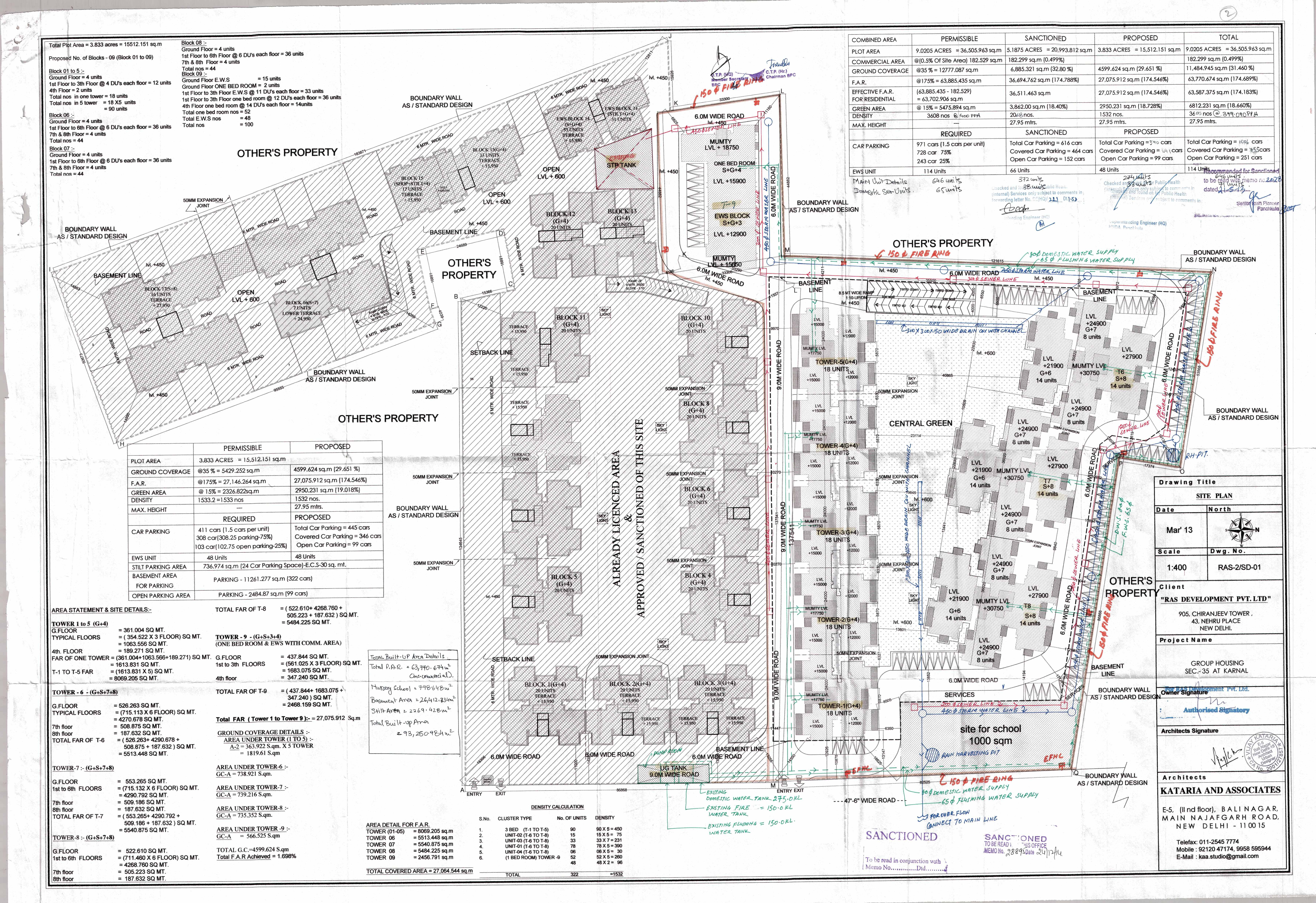
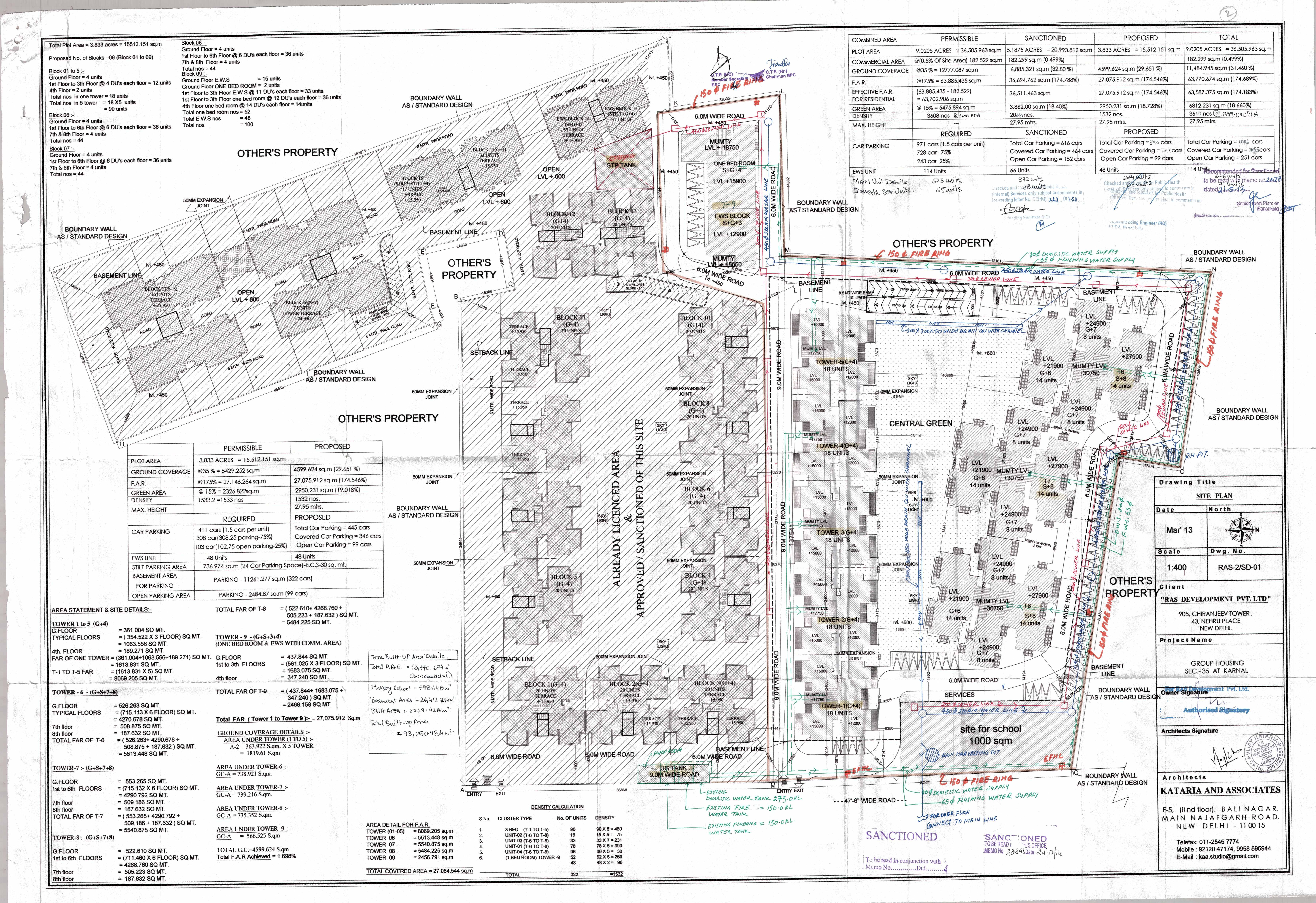
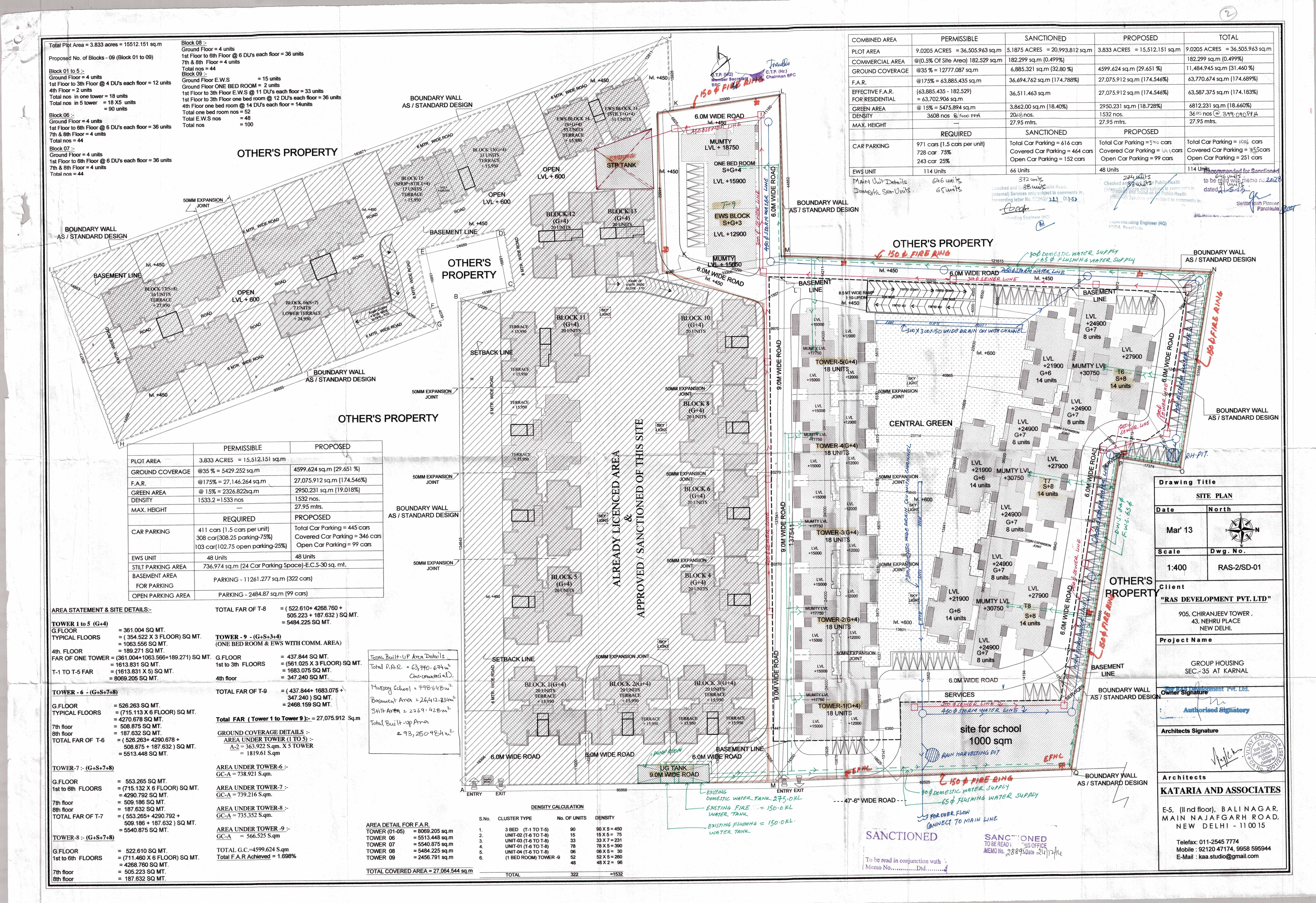
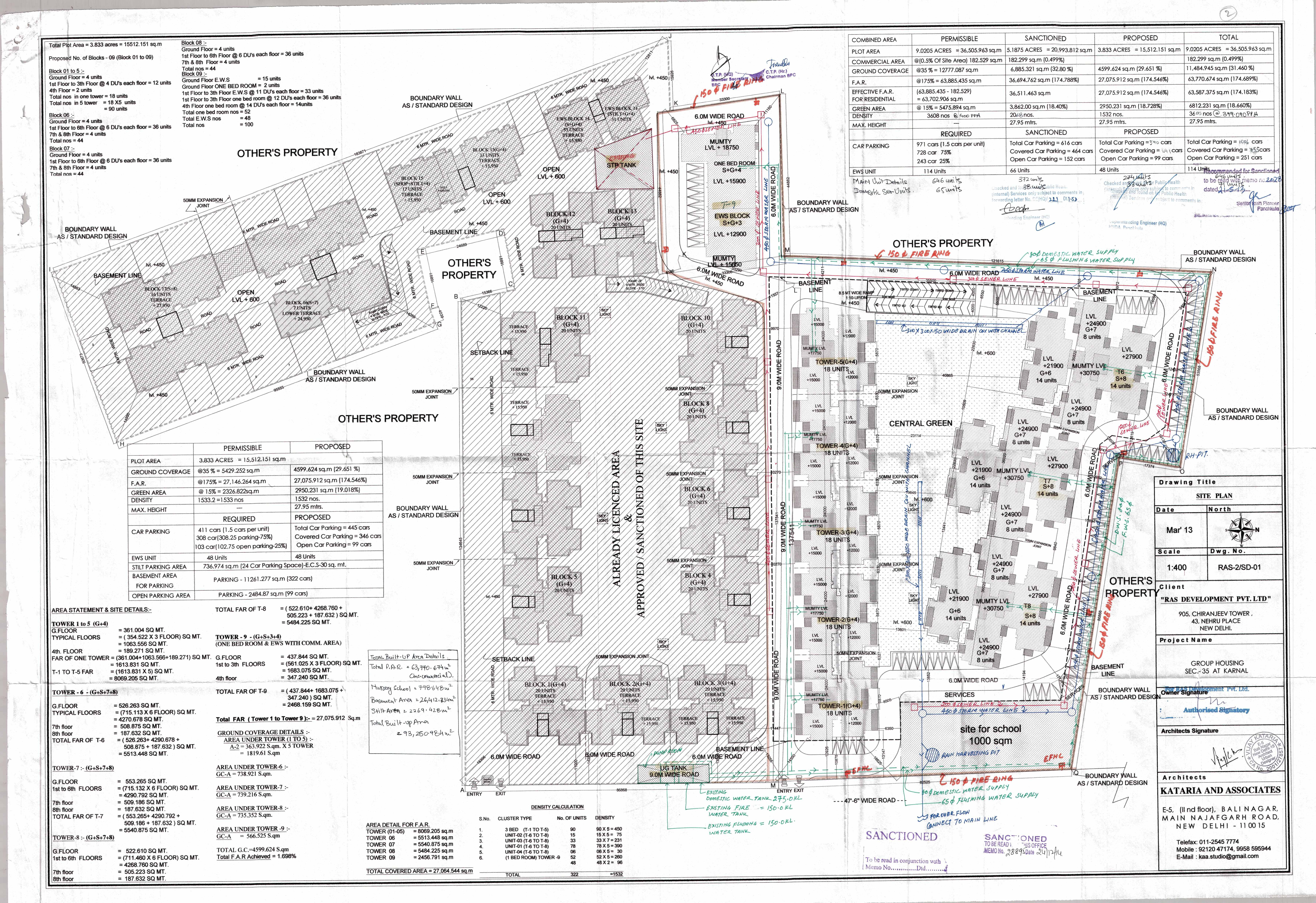
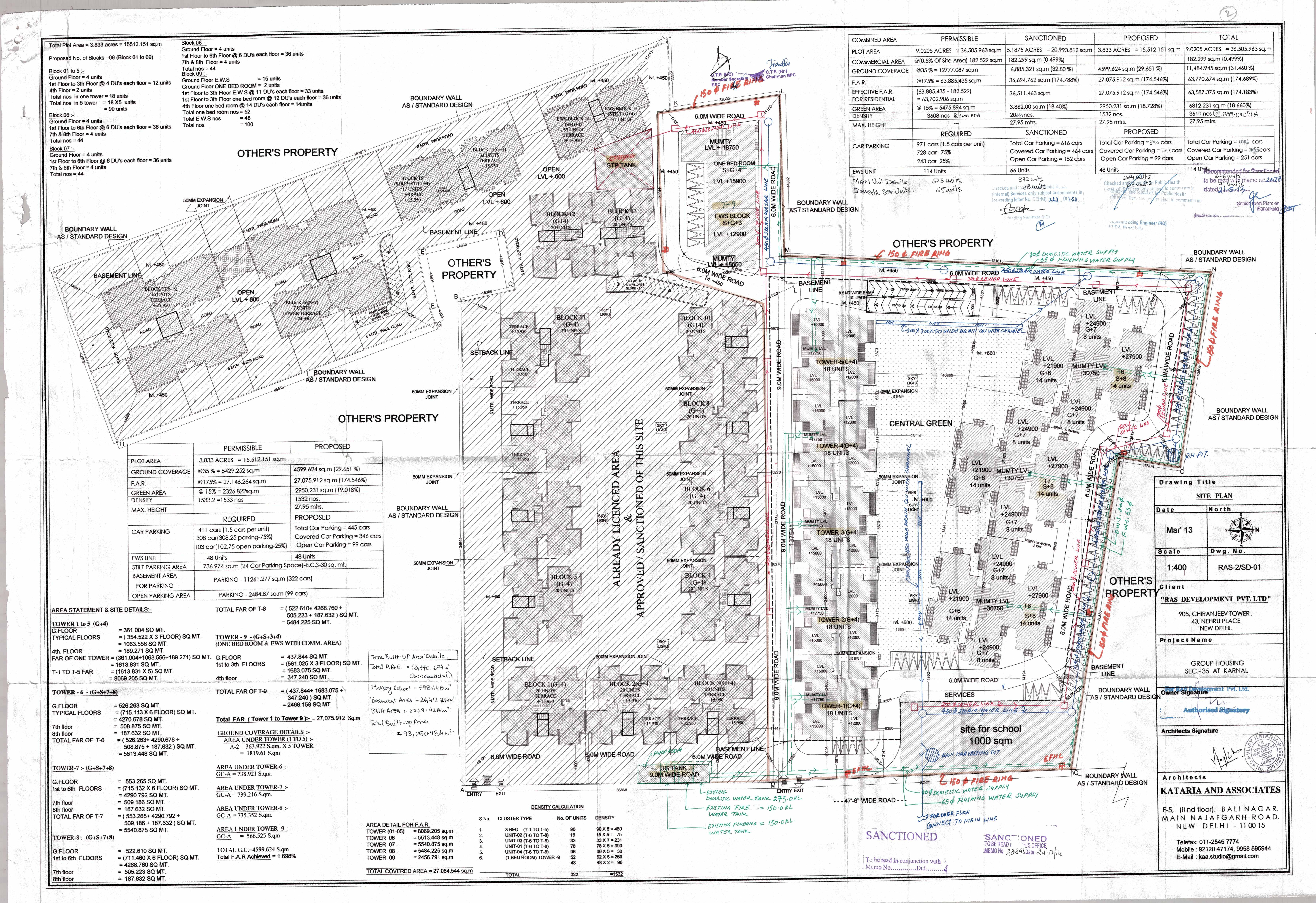
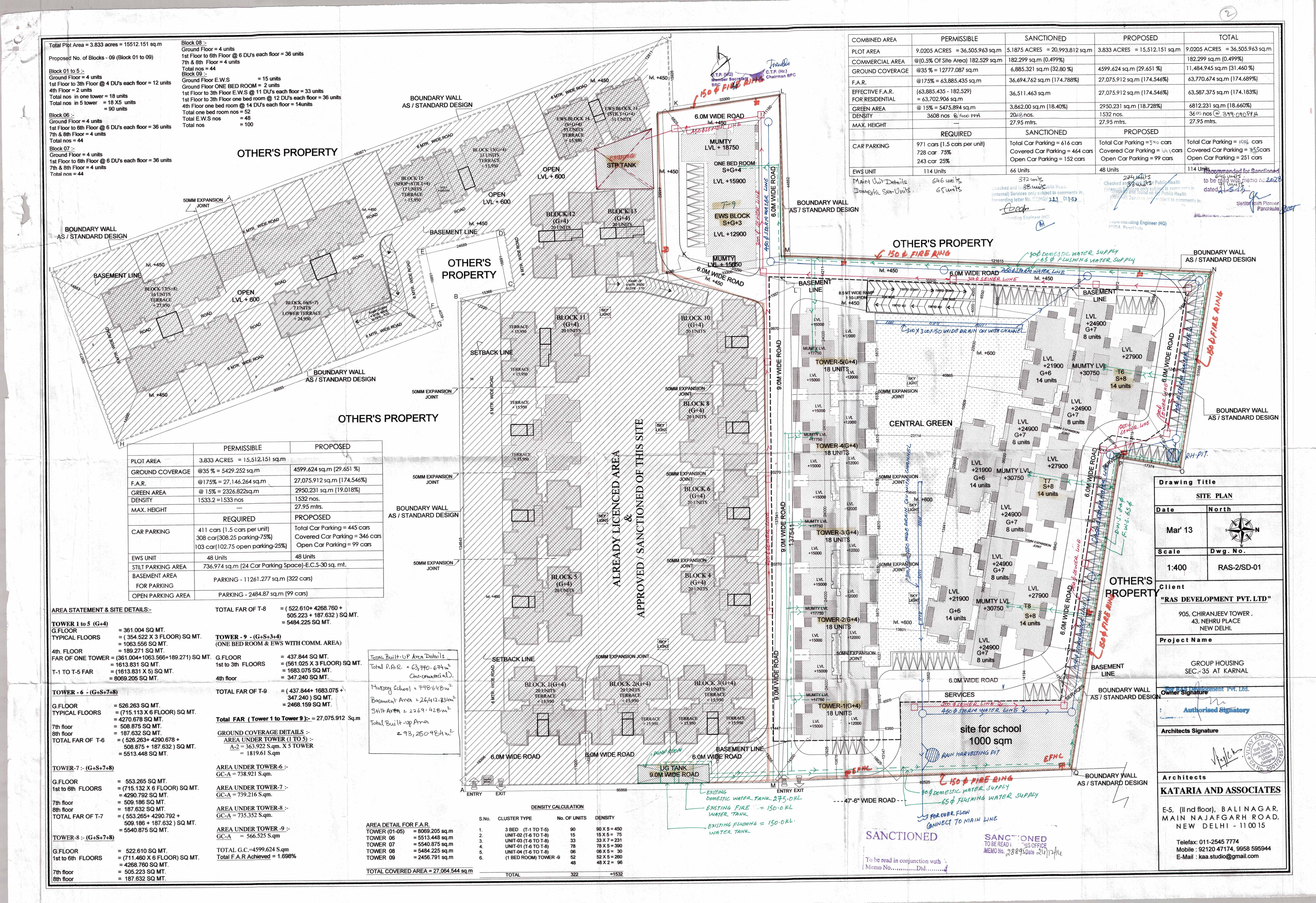
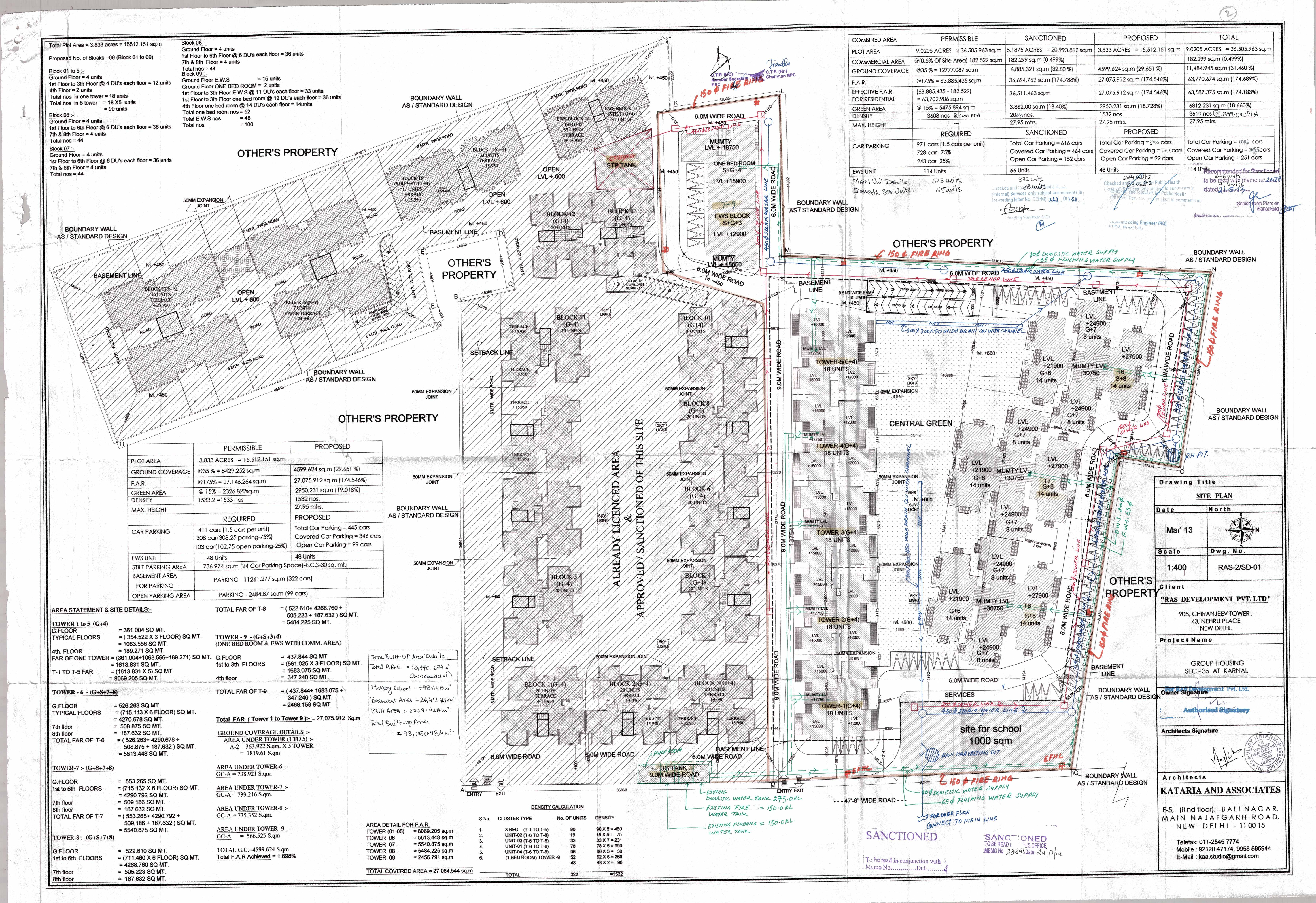
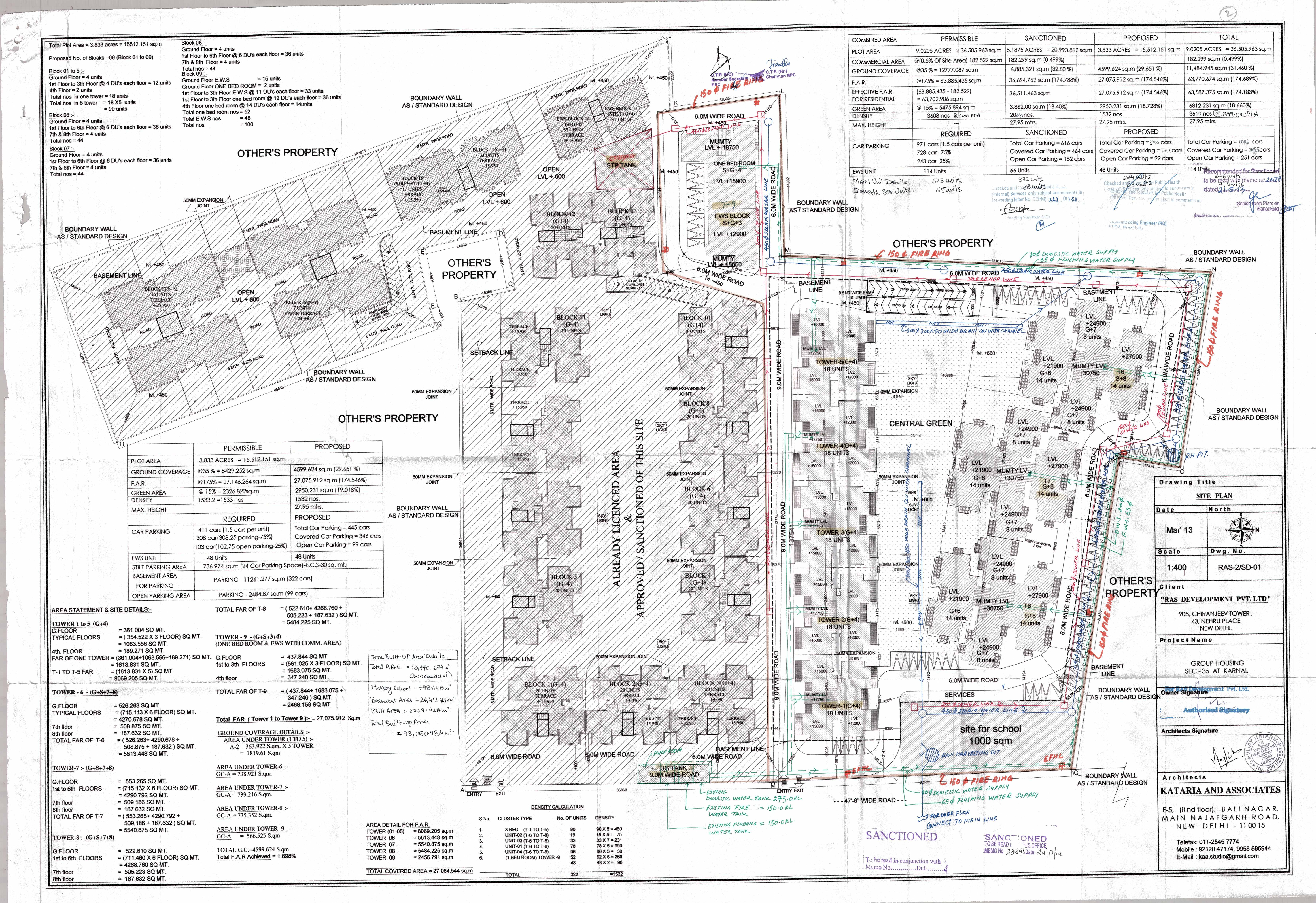
3.833 (Acre)
27146.26
174.5
3.833 (Acre)
112 OF 2011 DATED 17.12.2011
Yes







8400 Lakhs
270 Lakhs
3897 Lakhs
636 Lakhs
3597 Lakhs




Sr. No.Land area under usageArea of land (Square Meters)
1PLOTS TO BE SOLD 0
2LAND AREA TO BE USED FOR CONSTRUCTION OF APARTMENTS 4599
3CONSTRUCTION OF ROADS 3250
4PAVEMENTS 0
5PARKS AND PLAYGROUNDS 2950
6GREEN BELTS 0
7VEHICLE PARKINGS 3643
8ELECTRICITY SUB-STATION 120
9CLUB HOUSE 0
10SEWAGE AND SOLID WASTE TREATMENT FACILITY 330
11AREA TO BE LEFT FOR TRANSFERRING TO THE GOVERNMENT FOR COMMUNITY SERVICES 0
12ANY OTHER 620
Total15512




FacilityExternal/ connecting service to be provided by (Name the agency)Whether Approval taken from the agency concerned. Yes/No (Annex details in folder C)
ROADSHUDANo
WATER SUPPLYHUDANo
ELECTRICITYUHBVNNo
SEWAGE DISPOSALHUDANo
STORM WATER DRAINAGEHUDANo




Sr. No.Name of the facilityEstimated cost (In Lakhs)(Within the project area only)Remarks: Yet to be prepared / Submitted to HUDA, Town & Country Planning Department/ as per project report etc. (Annex relevant documents showing costing details etc. in folder C)
1INTERNAL ROADS AND PAVEMENTS44SUBMITTED TO HUDA
2WATER SUPPLY SYSTEM42SUBMITTED TO HUDA
3STORM WATER DRAINAGE22SUBMITTED TO HUDA
4ELECTRICITY SUPPLY SYSTEM90YET TO BE PREPARED
5SEWAGE TREATMENT & GARBAGE DISPOSAL49SUBMITTED TO HUDA
6STREET LIGHTING7SUBMITTED TO HUDA
7SECURITY AND FIRE FIGHTING80YET TO BE PREPARED
8PLAYGROUNDS AND PARKS8SUBMITTED TO HUDA
9CLUB HOUSE/COMMUNITY CENTRE0YET TO BE PREPARED
10SHOPPING AREA0YET TO BE PREPARED
11RENEWABLE ENERGY SYSTEM16YET TO BE PREPARED
12SCHOOL60YET TO BE PREPARED
13HOSPITAL/DISPENSARY0YET TO BE PREPARED
14ANY OTHER218YET TO BE PREPARED


24-12-2014 (date)
24-12-2014 (date)


Sr. No.Plot/ apartment type Size of the plot/carpet area of the apartments Total number of plots/apartments in the project Total size of the plots/carpet area of the apartments Plots/apartments booked/ sold upto the date of application Yet to be sold/ booked No. of towers to be/ being constructed for booked apartments
1 APARTMENT/SHOPS/OTHER BUILDINGS Type TYPE1 81.62 90 7345.8 20 64 2
2 APARTMENT/SHOPS/OTHER BUILDINGS Type TYPE2 104.05 78 8115.9 0 78 0
3 APARTMENT/SHOPS/OTHER BUILDINGS Type TYPE3 125.27 15 1879.05 0 15 0
4 APARTMENT/SHOPS/OTHER BUILDINGS Type TYPE4 129 33 4257 0 33 0
5 APARTMENT/SHOPS/OTHER BUILDINGS Type EWS&STUDIO; 16.96 100 1696 46 54 1
Total31623293.75662443






TypeNumber of apartments booked/ sold Write or Annex the stage of construction of the booked/ sold apartments in folder C
TYPE120TOWER1 IS COMPLETED AND TOWER2 CONSTRUCTION IS IN PROGRESS
EWS&STUDIOS;46EWS CONSTRUCTION IS IN PROCESS AND STUDIO APARTMENT COMPLETED
EWS&STUDIOS;46EWS CONSTRUCTION IS IN PROCESS AND STUDIO APARTMENT COMPLETED
EWS&STUDIOS;46EWS CONSTRUCTION IS IN PROCESS AND STUDIO APARTMENT COMPLETED


20-04-2015
29-07-2022
29-11-2023
20-04-2015
15
30-10-2027
PROVIDED
PROVIDED


PlotsBooked/soldStage of handing over the possession (Write or Annex details)
PLOT00
20-04-2015
15
30-09-2027


322
24
0
99
0





Expenditure incurred till the date of application (In Lakhs)

ParticularsExpenditure

Expenditure to be made in each quarter (In Lakhs)

ParticularsYear-2027
Jan-MarApr-JuneJuly-SepOct-Dec
Apartments80
Shops0
Plots0




Expenditure incurred till the date of application (In Lakhs)

ParticularsExpenditure

Expenditure to be made in each quarter (In Lakhs)

ParticularsExpenditure to be made in each quarter (2027)
Apr-JuneJuly-SepOct-DecJan-Mar












Particulars Remarks, if any
i. No. of Flats/Apartments constructed76
ii. No. of Flats/ Apartments booked66
iii. Total amount sale value of booked Flats, on the date of application/end of last quarter606 Lakhs
iv. Total amount received from the allottees (booked Flats), on the date of application/end of last quarter351 Lakhs
v. Balance amount to be received from the allottees (booked Flats, after completion), on the date of application/end of last quarter255 Lakhs
vi. Balance amount due and recoverable from the allottees (booked Flats) as on the date of application /end of last quarter255 Lakhs
vii. Amount invested in the project upto the date of application1674 Lakhs
Land cost (If any)270 Lakhs
Apartments310 Lakhs
Infrastructure112 Lakhs
EDC/ Taxes Etc.982 Lakhs
viii. Balance cost to be incurred for completion of the project and delivery of possession6726 Lakhs
(a) In respect of existing allottees48 Lakhs
(b) In respect of rest of the project6678 Lakhs
ix. The amount of loan raised from the banks/ financial institutions/ private persons against the project
Annex detail of the securities furnished to the banks/ financial institutions against the aforesaid loans in folder C
0 Lakhs
x. Total liabilities against the project up-to-date. (Annex details in folder C) 0 Lakhs



Particulars Estimated expenditure planned to be incurred as per service plan estimates or the project report. (In Lakhs)Actual expenditure incurred upto the date of application. (In Lakhs)
I. INTERNAL ROADS AND PAVEMENTS4420
II. WATER SUPPLY SYSTEM420
III. STORM WATER DRAINAGE226
IV. ELECTRICITY SUPPLY SYSTEM900
V. SEWAGE TREATMENT & GARBAGE DISPOSAL4912
VI. CLUB HOUSE/COMMUNITY CENTRE00
VII. SCHOOL600
VIII. ANY OTHER23473
IX. SOLID WASTE COLLECTION & MGMT SYSTEM40
X. CLUBHOUSE00
XI. NEIGHBOURHOOD SHOPPING00
XII. GREEN AREAS,PARKS,PLAYGROUNDS ETC.81
XIII. COVERED PARKING00
XIV. OPEN PARKING00
XV. GARAGES00
XVI. SECURITY SYSTEM140
XVII. OTHER FACILITIES AS PER PROJECT REPORT690









Yes
Yes
PUNJAB NATIONAL BANK SADAR BAZAR KARNAL
07231131003308
PUNB0072310
132022104
0723
Mr Anil kumar gupta 203 chiranjiv tower,nehru place
ATTACHED











Yes
No
Yes
Yes
Yes
Yes
Yes
Yes
Yes
Yes


No
No
No
No
No
No
No
No
Statutory Approvals Statutory Approvals StatusDate
I. PARKING PLANAPPLIED FOR BUT YET TO RECEIVENA
II. STREET LIGHT PLANAPPLIED FOR BUT YET TO RECEIVENA
III. ROADS AND PAVMENT PLANAPPLIED FOR BUT YET TO RECEIVENA
IV. WATER SUPPLY PLANAPPLIED FOR BUT YET TO RECEIVENA
V. SEWERAGE AND GARBAGE PLANDISPOSALAPPLIED FOR BUT YET TO RECEIVENA
VI. STORM WATER DRAINAGEAPPLIED FOR BUT YET TO RECEIVENA
VII. ELECTRICITY SUPPLY PLANYET TO FILE FOR APPROVALNA
VIII. 10% LAND TO BE TRANSFERED TO THE GOVT FOR COMMUNITY FACILITYYET TO FILE FOR APPROVALNA








Yes


Yes


NA













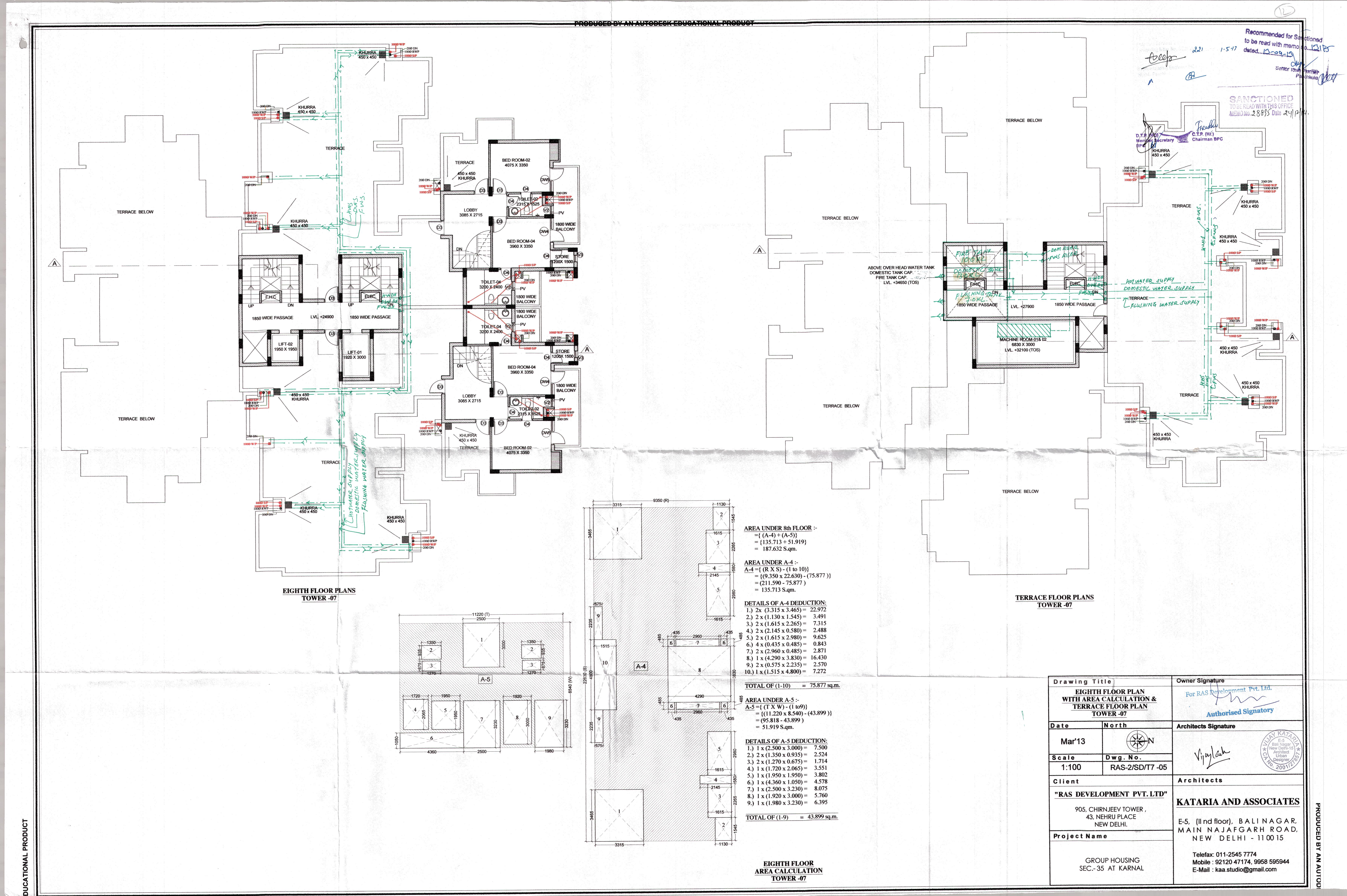
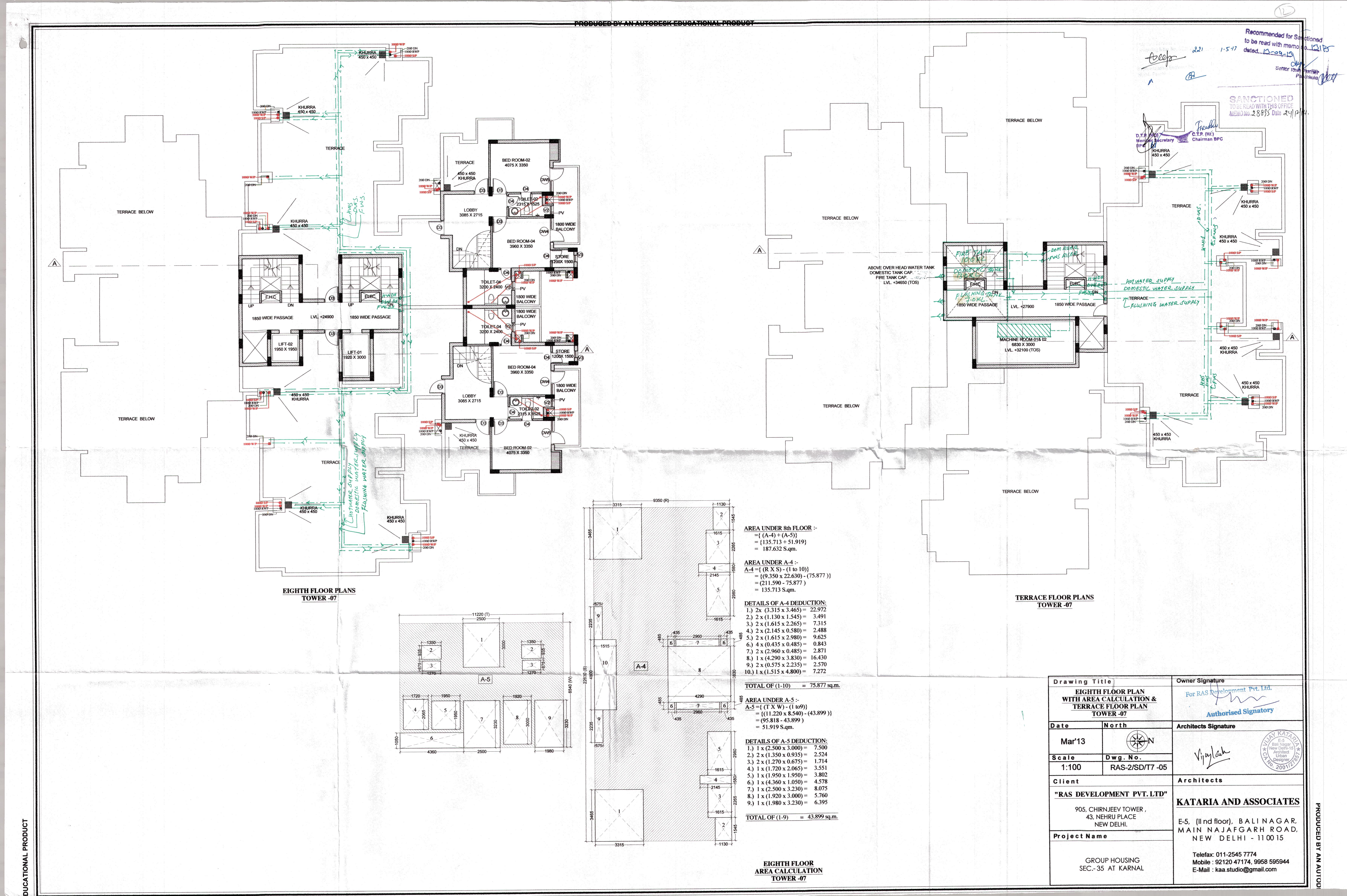
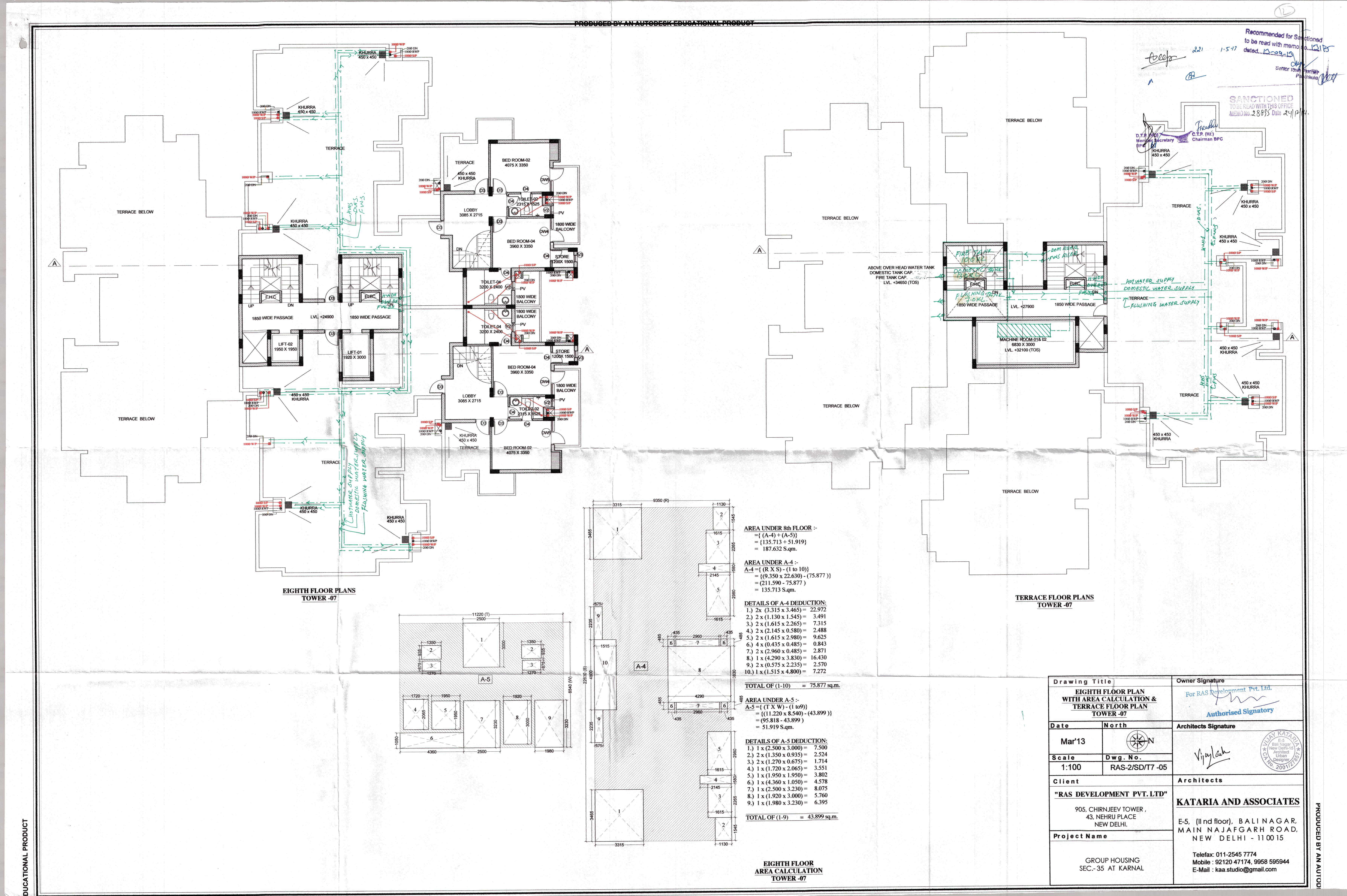
SPECIFICATION OF CONSTRUCTION
Specification of apartments and other buildings including the following:
1FLOORING DETAILS OF VARIOUS PARTS OF HOUSEVITRIFIED TILES IN DRAWING ROOM & BEDROOMS
2WALL FINISHING DETAILSPLASTER WITH PAINT
3KITCHEN DETAILSCARAMIC TILE ON WALL
4BATHROOM FITTINGSALL CP FITTING
5WOOD WORK ETCIMPORTED WOOD & FLUSH DOOR
6DOORS AND WINDOS FRAMESAS PER SANCTION PLAN
7GLASS WORKAS PER SANCTION PLAN
8ELECTRIC FITTINGSAS PER SANCTION PLAN
9CONDUCTING AND WIRING DETAILSISI APPROVED
10CUPBOARD DETAILSNA
11WATER STORAGEAS PER SERVICE ESTIMATE
12LIFT DETAILSPROVIDED
13EXTERNAL GLAZINGSNA
13.1WINDOWS/GLAZINGSNA
14DOORSFLUSH DOOR
14.1MAIN DOORSFLUSH DOOR
14.2INTERNAL DOORSFLUSH DOOR
15AIR CONDITIONINGNA
16ELECTRICAL FITTINGSISI APPROVED
17CNG PIPE LINENA
18PROVISION OF WIFI AND BROADBAND FACILITYNA
19EXTERNAL FINISHING/COLOUR SCHEMEPLASTER WITH PAINT
20INTERNAL FINISHINGPLASTER WITH PAINT
SPECIFICATION UNIT WISE
1 . LIVING/DINING/FOYER/FAMILY LOUNGE
1 . 1 FLOORVITRIFIED TILE
1 . 2 WALLSPLASTER WITH PAINT
1 . 3 CEILINGPOP WITH PAINT
2 . MASTER BEDROOM/DRESSROOM
2 . 1 FLOORVITRIFIED TILES
2 . 2 WALLSPLASTER WITH PAINT
2 . 3 CEILINGPOP WITH PAINT
2 . 4 MODULAR WARDROBESNA
3 . MASTER TOILET
3 . 1 FLOORANTI SKID TILES
3 . 2 WALLSCARAMIC TILE
3 . 3 CEILINGPVC CEILING
3 . 4 COUNTERSNA
3 . 5 SANITARY WARE/CP FITTINGSPROVIDING
3 . 6 FITTING/FIXTURESAS PER AGREEMENT
4 . BED ROOMS
4 . 1 FLOORVITRIFIED TILE
4 . 2 WALLSPLASTER WITH PAINT
4 . 3 CEILINGPOP WITH PAINT
4 . 4 WARDROBESAS PER AGREEMENT
5 . TOILET
5 . 1 FLOORANTI SKID TILE
5 . 2 WALLSCERAMIC TILE
5 . 3 CEILINGPVC CEILING
5 . 4 COUNTERSNA
5 . 5 SANITARY WARE/CP FITTINGSPROVIDING
5 . 6 FIXTURESNA
6 . KITCHEN
6 . 1 FLOORVITRIFIED TILE
6 . 2 WALLSCERAMIC TILE
6 . 3 CEILINGPOP WITH PAINT
6 . 4 COUNTERSAS PER AGREEMENT
6 . 5 FIXTURESNA
6 . 6 KITCHEN APPLIANCESAS PER AGREEMENT
7 . UTILITY ROOMS/UTILITY BALCONY/TOILET
7 . 1 FLOORNA
7 . 2 WALLS & CEILINGNA
7 . 3 TOILETNA
7 . 4 BALCONYANTI SKID TILE
8 . SIT-OUTS
8 . 1 FLOORNA
8 . 2 WALLS & CEILINGNA
8 . 3 RAILINGSMS RAILING
8 . 4 FIXTURESNA












Sr. No.Document DescriptionDate of Document UploadView Document
1 COPY OF LICENSE ALONG WITH SCHEDULE OF LAND 22-01-2022 View Document
2 DEMARCATION PLAN 22-01-2022 View Document
3 SERVICE PLANS SHOWING THE SERVICES ON THE LAYOUT PLAN 22-01-2022 View Document
4 DOCUMENTS RELATING TO THE ENTRY OF LICENSE AND COLLABORATION AGREEMENT IN THE REVENUE RECORD 22-01-2022 View Document
5 IN CASE OF GROUP HOUSING/ COMMERCIAL SITES, A COPY OF THE APPROVED SITE PLAN 22-01-2022 View Document
6 CASH FLOW STATEMENT OF THE PROPOSED PROJECT 22-01-2022 View Document
7 DECLARATION SUPPORTED BY AFFIDAVIT DULY SIGNED BY THE PROMOTER TO BE ENCLOSED. 22-01-2022 View Document
8 CERTIFICATE FROM A CHARTERED ACCOUNTANT CERTIFYING THAT THE INFORMSTION PROVIDED BY THE APPLICANT IN FORM REP-1-C-X IS CORRECT AS PER THE BOOKS OF ACCOUNTS/ BALANCE SHEET OF THE APPLICANT 22-01-2022 View Document
9 NON DEFAULT CERTIFICATE FROM A CHARTERED ACCOUNTANT 22-01-2022 View Document
10 IN CASE OF PLOTTED COLONY, THE LATEST LAYOUT PLAN 22-01-2022 View Document
11 ZONING PLAN 22-01-2022 View Document
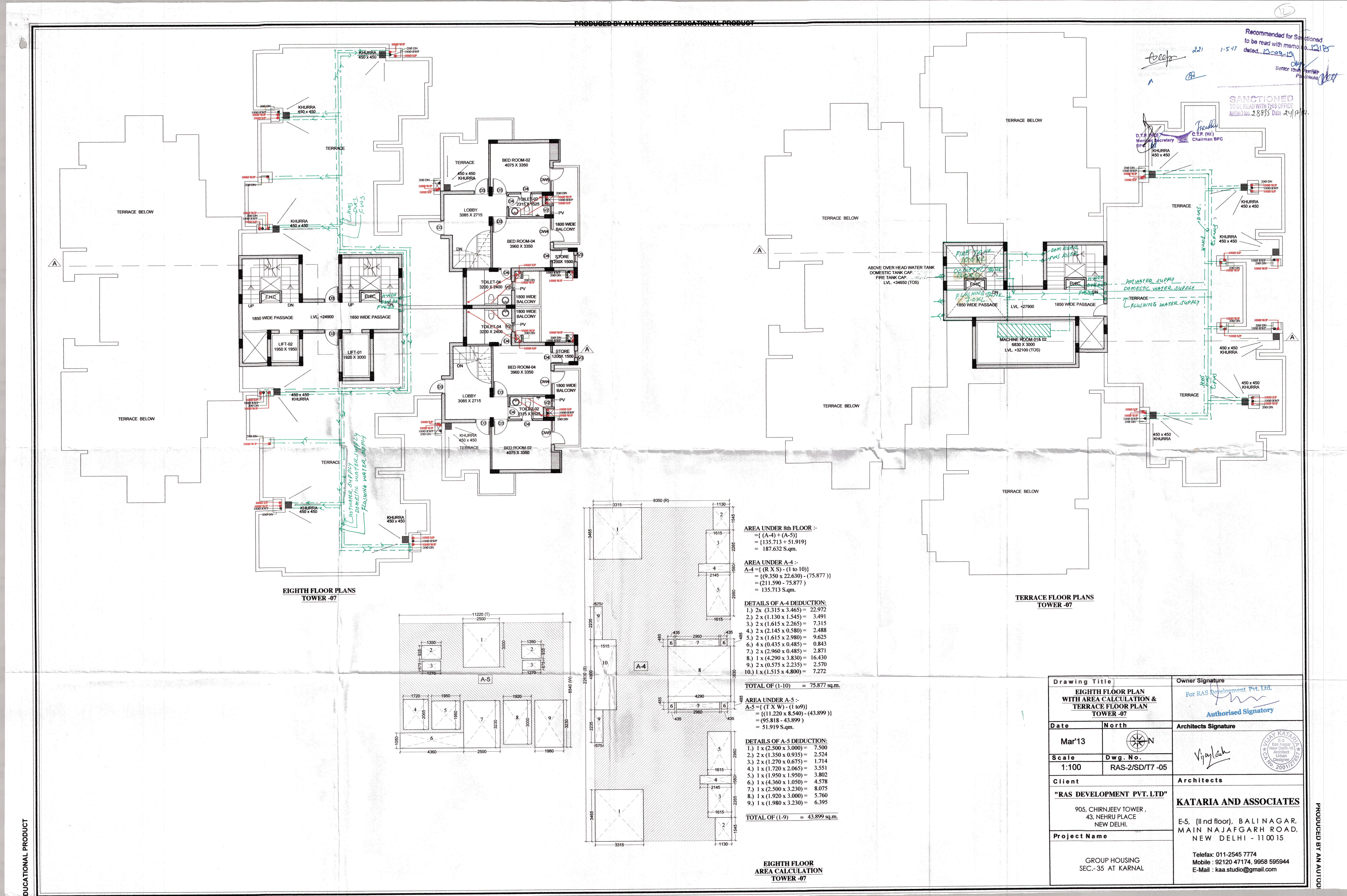
12 A COMPLETE SET OF THE LAST APPROVED BUILDING PLANS 22-01-2022 View Document