HRERA PanchkulaTemp Project Id : RERA-PKL-PROJ-998-2021
Submission Date : 31-03-2022 05:51:35 PM
Applicant Type : Firm
Project Type: NEW


SANKALPINFRALINE LLP
DEEP CHAMBERS KH NO 72/11/2 MUNDKA NEW DELHI-110041
9899406088 (Number Shared by Promoter in Public)
pllathar@gmail.com
AAK6922
ADMFS1200K



















SANKALP CITY
SECTOR 15
JIND
JIND
9811844044 (Number Shared by Promoter in Public)
pllathar@gmail.com
PARDEEP LATHAR
9811844044 (Number Shared by Promoter in Public)
pllathar@gmail.com








As per sub-rule(2) of rule 3 of the Haryana Real Estate (Regulation and Development) Rules,2017, the fee for registration of the project as has been calculated as follows:
-----------------------------------------------------------------------------------------------------------------------
-----------------------------------------------------------------------------------------------------------------------
-----------------------------------------------------------------------------------------------------------------------
-----------------------------------------------------------------------------------------------------------------------
2. The aforesaid fees is hereby deposited vide following Drafts/ Banker’s Cheques:-

Sr No.Draft/Cheque No.Draft DateAmountPayee BankPayable To
1031-03-2022120000ONLINEHRERA Panchkula







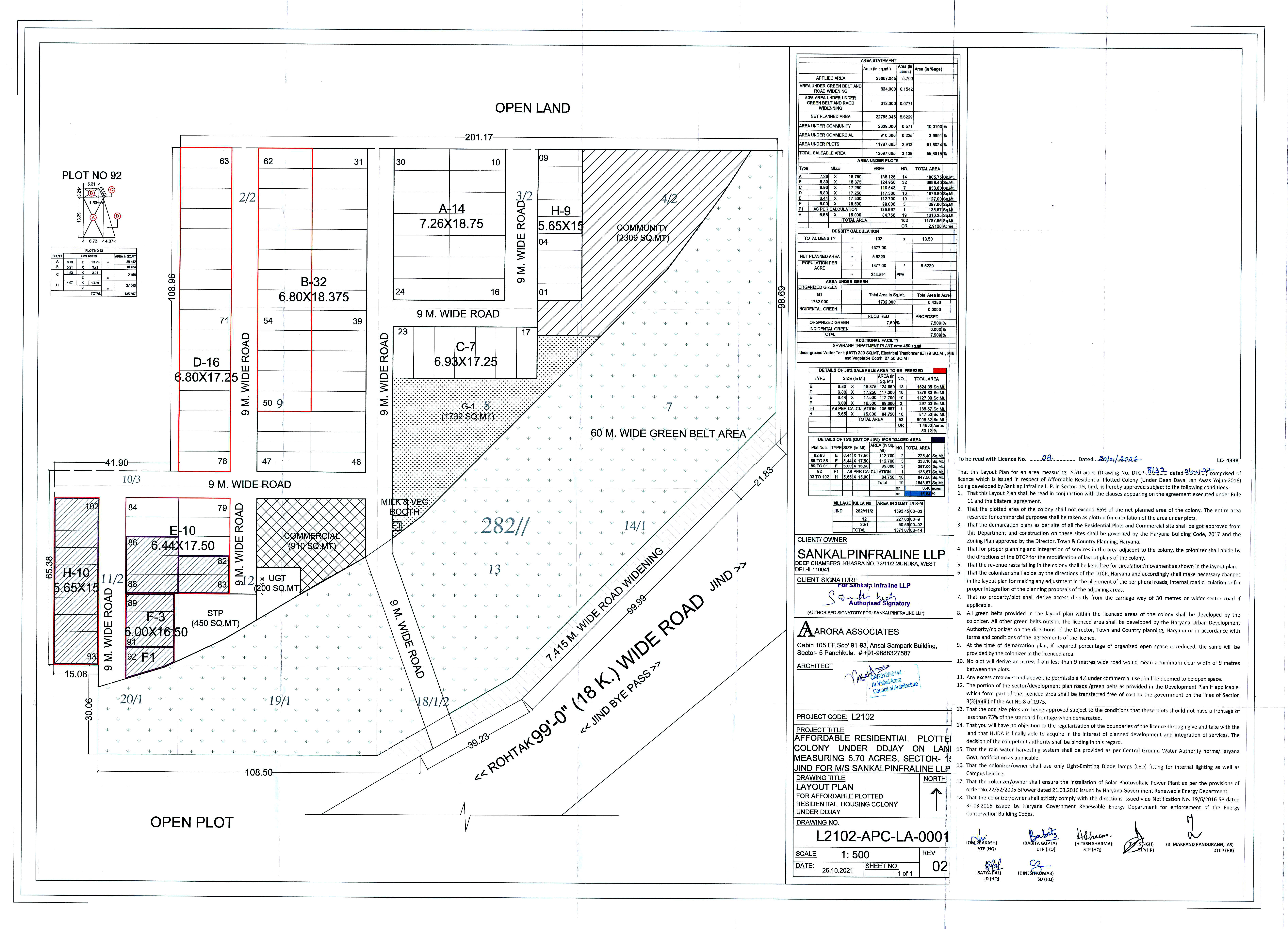
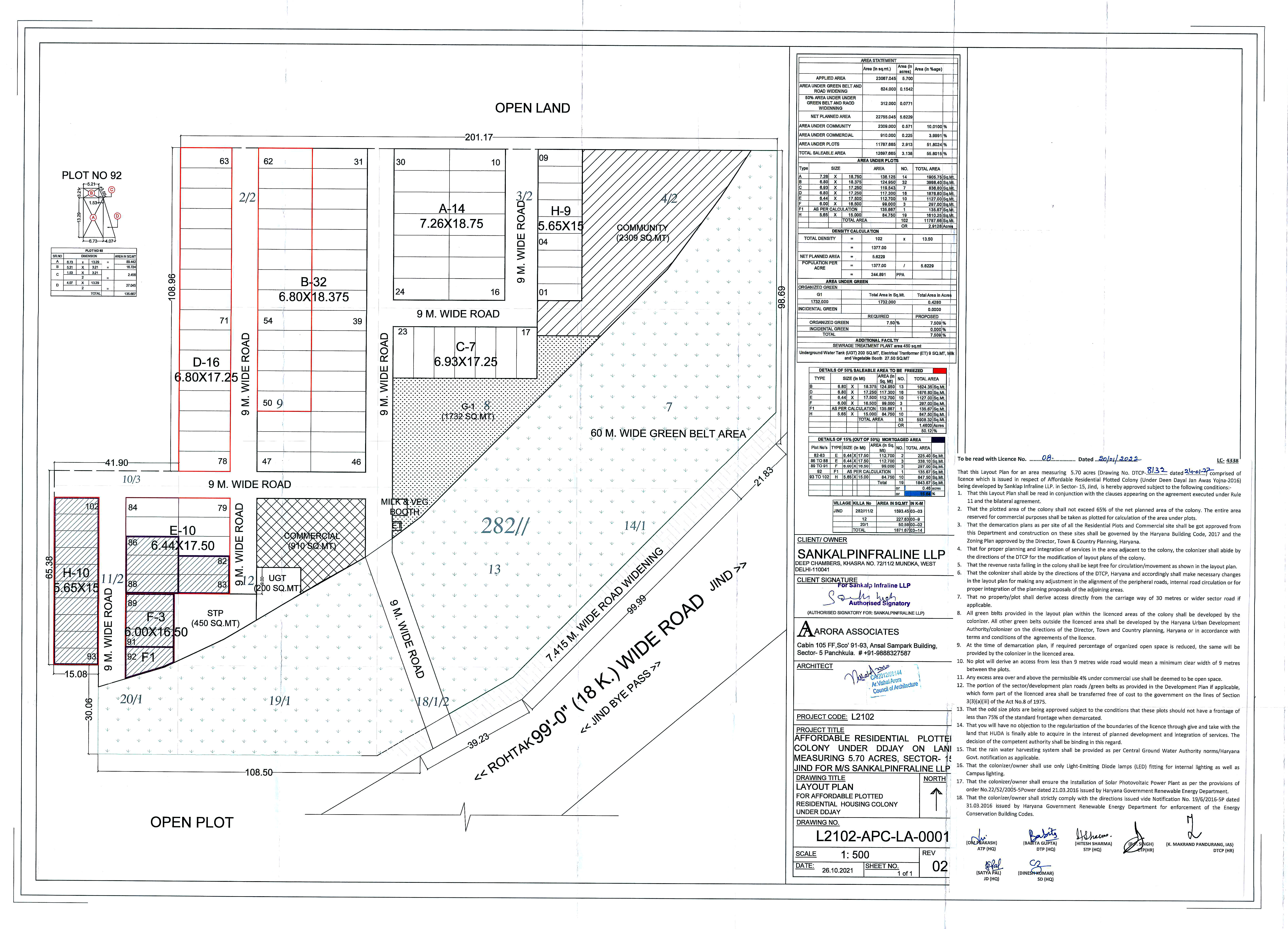
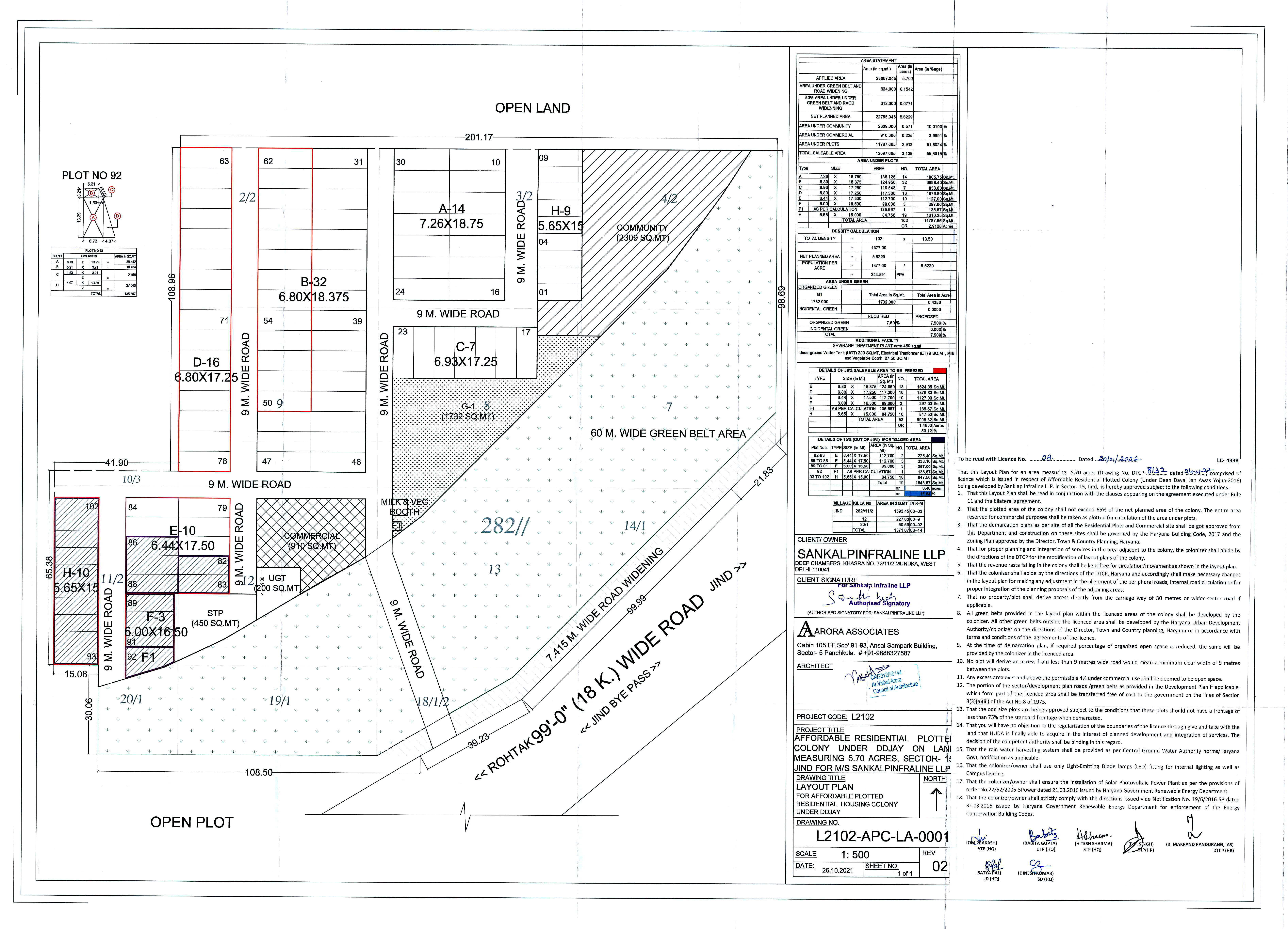
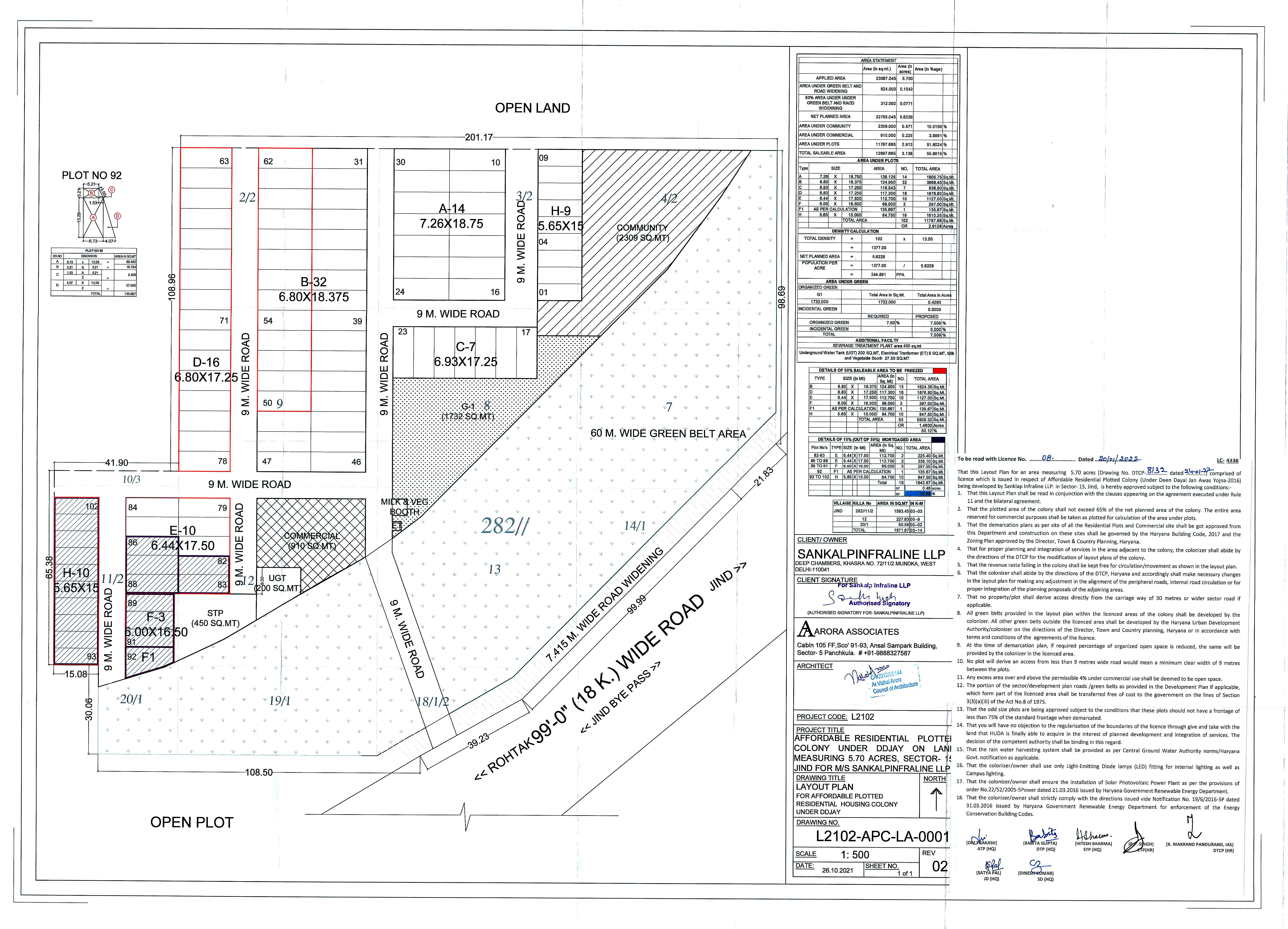
5.70 (Acre)
2
0
5.70 (Acre)
08 of 2022
Yes







1456.65 Lakhs
1156.65 Lakhs
0 Lakhs
200 Lakhs
100 Lakhs




Sr. No.Land area under usageArea of land (Acres)
1PLOTS TO BE SOLD 2.913
2LAND AREA TO BE USED FOR CONSTRUCTION OF APARTMENTS 0
3CONSTRUCTION OF ROADS 1.7786
4PAVEMENTS 0
5PARKS AND PLAYGROUNDS 0.0428
6GREEN BELTS 0
7VEHICLE PARKINGS 0
8ELECTRICITY SUB-STATION 0.0022
9CLUB HOUSE 0
10SEWAGE AND SOLID WASTE TREATMENT FACILITY 0.1112
11AREA TO BE LEFT FOR TRANSFERRING TO THE GOVERNMENT FOR COMMUNITY SERVICES 0.5710
12ANY OTHER 0
13COMMERCIAL 0.225
14UGT 0.0494
15MILK 0.0068
Total5.7




FacilityExternal/ connecting service to be provided by (Name the agency)Whether Approval taken from the agency concerned. Yes/No (Annex details in folder C)
ROADSHSVPNo
WATER SUPPLYHSVPNo
ELECTRICITYUHBVNNo
SEWAGE DISPOSALHSVPNo
STORM WATER DRAINAGEHSVPNo




Sr. No.Name of the facilityEstimated cost (In Lakhs)(Within the project area only)Remarks: Yet to be prepared / Submitted to HUDA, Town & Country Planning Department/ as per project report etc. (Annex relevant documents showing costing details etc. in folder C)
1INTERNAL ROADS AND PAVEMENTS20YET TO BE PREPARED
2WATER SUPPLY SYSTEM20YET TO BE PREPARED
3STORM WATER DRAINAGE20YET TO BE PREPARED
4ELECTRICITY SUPPLY SYSTEM15YET TO BE PREPARED
5SEWAGE TREATMENT & GARBAGE DISPOSAL100YET TO BE PREPARED
6STREET LIGHTING10YET TO BE PREPARED
7SECURITY AND FIRE FIGHTING5YET TO BE PREPARED
8PLAYGROUNDS AND PARKS10YET TO BE PREPARED
9CLUB HOUSE/COMMUNITY CENTRE0YET TO BE PREPARED
10SHOPPING AREA0YET TO BE PREPARED
11RENEWABLE ENERGY SYSTEM0YET TO BE PREPARED
12SCHOOL0YET TO BE PREPARED
13HOSPITAL/DISPENSARY0YET TO BE PREPARED
14ANY OTHER0YET TO BE PREPARED


20-01-2022 (date)
NA (date)
01-04-2022
31-12-2026
Sr. No Plot Area(In Square Meter)Number of plots in the project
1 136.125 15
2 124.95 32
3 120 7
4 118 16
5 112 10
6 100 3
7 85 19
Total102


TypeCarpet area(In Square Meter)Number of apartmentsNumber of towers
Apartment/Shops/Other Buildings000





Expenditure incurred till the date of application (In Lakhs)

ParticularsExpenditure
Apartments0
Shops0
Plots0

Expenditure to be made in each quarter (In Lakhs)

ParticularsExpenditure to be made in each quarter ()
Apr-JuneJuly-SepOct-DecJan-Mar




Expenditure incurred till the date of application (In Lakhs)

ParticularsExpenditure
Roads & Pavements0
Water Supply System0
Sewerage treatment & garbage disposal0
Electricity Supply System0
Storm Water Drainage0
Parks and Playgrounds0
Clubhouse/community centres0
Shopping area0
Other0

Expenditure to be made in each quarter (In Lakhs)

ParticularsExpenditure to be made in each quarter ()
Apr-JuneJuly-SepOct-DecJan-Mar












Yes
No
ICICI BANK, 2/33 SHANTI NIKETAN, NEW DELHI-110021
031305001932
ICIC0000313
110229040
0313
PRADEEP KUMAR LATHAR & SHIV KUMAR KANODIA
done











Yes
No
No
No
No
No
No
No
No
No


No
No
No
No
No
No
No
No
Statutory Approvals Statutory Approvals StatusDate
I. LAYOUT PLANALREADY BEEN OBTAINED20-01-2022
II. DEMARCATION PLANAPPLIED FOR BUT YET TO RECEIVE15-02-2022








Yes


Yes















SPECIFICATION OF CONSTRUCTION
Specification of apartments and other buildings including the following:
1FLOORING DETAILS OF VARIOUS PARTS OF HOUSENA
2WALL FINISHING DETAILSNA
3KITCHEN DETAILSNA
4BATHROOM FITTINGSNA
5WOOD WORK ETCNA
6DOORS AND WINDOS FRAMESNA
7GLASS WORKNA
8ELECTRIC FITTINGSNA
9CONDUCTING AND WIRING DETAILSNA
10CUPBOARD DETAILSNA
11WATER STORAGENA
12LIFT DETAILSNA
13EXTERNAL GLAZINGSNA
13.1WINDOWS/GLAZINGSNA
14DOORSNA
14.1MAIN DOORSNA
14.2INTERNAL DOORSNA
15AIR CONDITIONINGNA
16ELECTRICAL FITTINGSNA
17CNG PIPE LINENA
18PROVISION OF WIFI AND BROADBAND FACILITYNA
19EXTERNAL FINISHING/COLOUR SCHEMENA
20INTERNAL FINISHINGNA
SPECIFICATION UNIT WISE
1 . LIVING/DINING/FOYER/FAMILY LOUNGE
1 . 1 FLOORNA
1 . 2 WALLSNA
1 . 3 CEILINGNA
2 . MASTER BEDROOM/DRESSROOM
2 . 1 FLOORNA
2 . 2 WALLSNA
2 . 3 CEILINGNA
2 . 4 MODULAR WARDROBESNA
3 . MASTER TOILET
3 . 1 FLOORNA
3 . 2 WALLSNA
3 . 3 CEILINGNA
3 . 4 COUNTERSNA
3 . 5 SANITARY WARE/CP FITTINGSNA
3 . 6 FITTING/FIXTURESNA
4 . BED ROOMS
4 . 1 FLOORNA
4 . 2 WALLSNA
4 . 3 CEILINGNA
4 . 4 WARDROBESNA
5 . TOILET
5 . 1 FLOORNA
5 . 2 WALLSNA
5 . 3 CEILINGNA
5 . 4 COUNTERSNA
5 . 5 SANITARY WARE/CP FITTINGSNA
5 . 6 FIXTURESNA
6 . KITCHEN
6 . 1 FLOORNA
6 . 2 WALLSNA
6 . 3 CEILINGNA
6 . 4 COUNTERSNA
6 . 5 FIXTURESNA
6 . 6 KITCHEN APPLIANCESNA
7 . UTILITY ROOMS/UTILITY BALCONY/TOILET
7 . 1 FLOORNA
7 . 2 WALLS & CEILINGNA
7 . 3 TOILETNA
7 . 4 BALCONYNA
8 . SIT-OUTS
8 . 1 FLOORNA
8 . 2 WALLS & CEILINGNA
8 . 3 RAILINGSNA
8 . 4 FIXTURESNA












Sr. No.Document DescriptionDate of Document UploadView Document
1 IN CASE OF GROUP HOUSING/ COMMERCIAL SITES, A COPY OF THE APPROVED SITE PLAN 04-01-2022 View Document
2 A COMPLETE SET OF THE LAST APPROVED BUILDING PLANS 04-01-2022 View Document
3 CASH FLOW STATEMENT OF THE PROPOSED PROJECT 04-01-2022 View Document
4 COPY OF LICENSE ALONG WITH SCHEDULE OF LAND 01-02-2022 View Document
5 SERVICE PLANS SHOWING THE SERVICES ON THE LAYOUT PLAN 01-02-2022 View Document
6 IN CASE OF PLOTTED COLONY, THE LATEST LAYOUT PLAN 01-02-2022 View Document
7 CERTIFICATE FROM A CHARTERED ACCOUNTANT CERTIFYING THAT THE INFORMSTION PROVIDED BY THE APPLICANT IN FORM REP-1-C-X IS CORRECT AS PER THE BOOKS OF ACCOUNTS/ BALANCE SHEET OF THE APPLICANT 04-03-2022 View Document
8 NON DEFAULT CERTIFICATE FROM A CHARTERED ACCOUNTANT 04-03-2022 View Document
9 DOCUMENTS RELATING TO THE ENTRY OF LICENSE AND COLLABORATION AGREEMENT IN THE REVENUE RECORD 11-03-2022 View Document
10 DECLARATION SUPPORTED BY AFFIDAVIT DULY SIGNED BY THE PROMOTER TO BE ENCLOSED. 31-03-2022 View Document
11 DEMARCATION PLAN 31-03-2022 View Document
12 ZONING PLAN 31-03-2022 View Document












Sr. No.Document DescriptionDate of Document UploadView Document
1 Completion Certificate 20-03-2026 View Document
2 STANDARD DESIGN OF SCO 20-03-2026 View Document