HRERA GurugramTemp Project Id : RERA-GRG-PROJ-887-2021
Submission Date : 06-07-2021 01:00:55 PM
Applicant Type : Company
Project Type: NEW




STERNAL BUILDCON PRIVATE LIMITED
13TH FLOOR, DR. GOPAL DAS BHAWAN, 28 BARAKHAMBA ROAD, CONNAUGHT PLACE, NEW DELHI CENTRAL DELHI DL 110001
01244908200
9810899381 (Number Shared by Promoter in Public)
compliance@signatureglobal.in
https://www.signatureglobal.in/
XXXX457N
U70109DL2009PTC195052
 
 


 
 


 
 


 
 


 
 







SIGNATURE GLOBAL CITY 81-(1)
VILLAGE NAKHDOLA, SECTOR 81
GURGAON
GURUGRAM
01244908200
9810899381 (Number Shared by Promoter in Public)
compliance@signatureglobal.in
SANJAY KUMAR VARSHNEY
01244908200
9810899381 (Number Shared by Promoter in Public)
compliance@signatureglobal.in








As per sub-rule(2) of rule 3 of the Haryana Real Estate (Regulation and Development) Rules,2017, the fee for registration of the project as has been calculated as follows:
-----------------------------------------------------------------------------------------------------------------------
-----------------------------------------------------------------------------------------------------------------------
-----------------------------------------------------------------------------------------------------------------------
-----------------------------------------------------------------------------------------------------------------------
2. The aforesaid fees is hereby deposited vide following Drafts/ Banker’s Cheques:-

Sr No.Draft/Cheque No.Draft DateAmountPayee BankPayable To
15202107058215960605-07-2021793959YES BANK LIMITEDHRERA Gurugram
25202107058216007605-07-2021300743YES BANK LIMITEDHRERA Gurugram







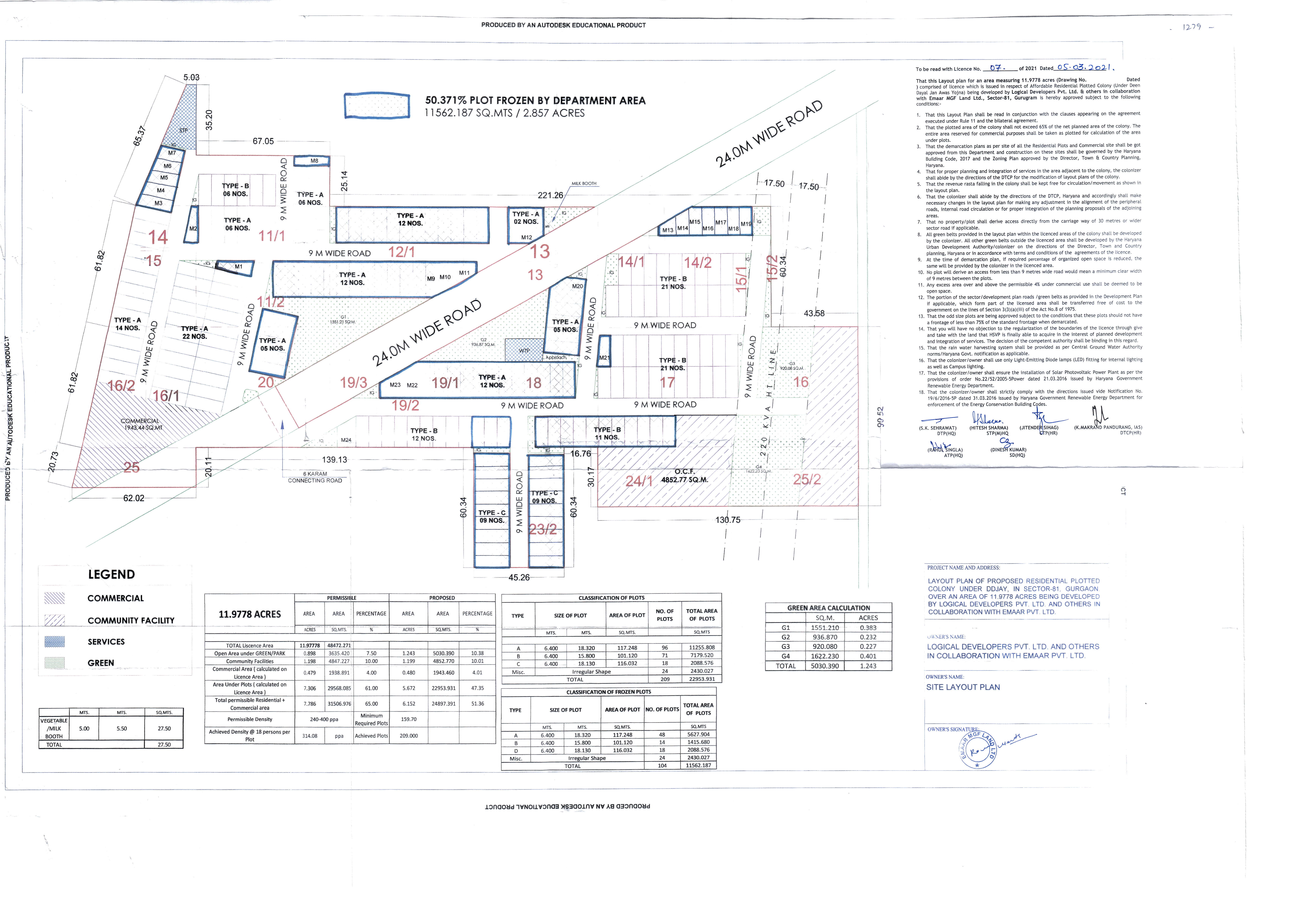
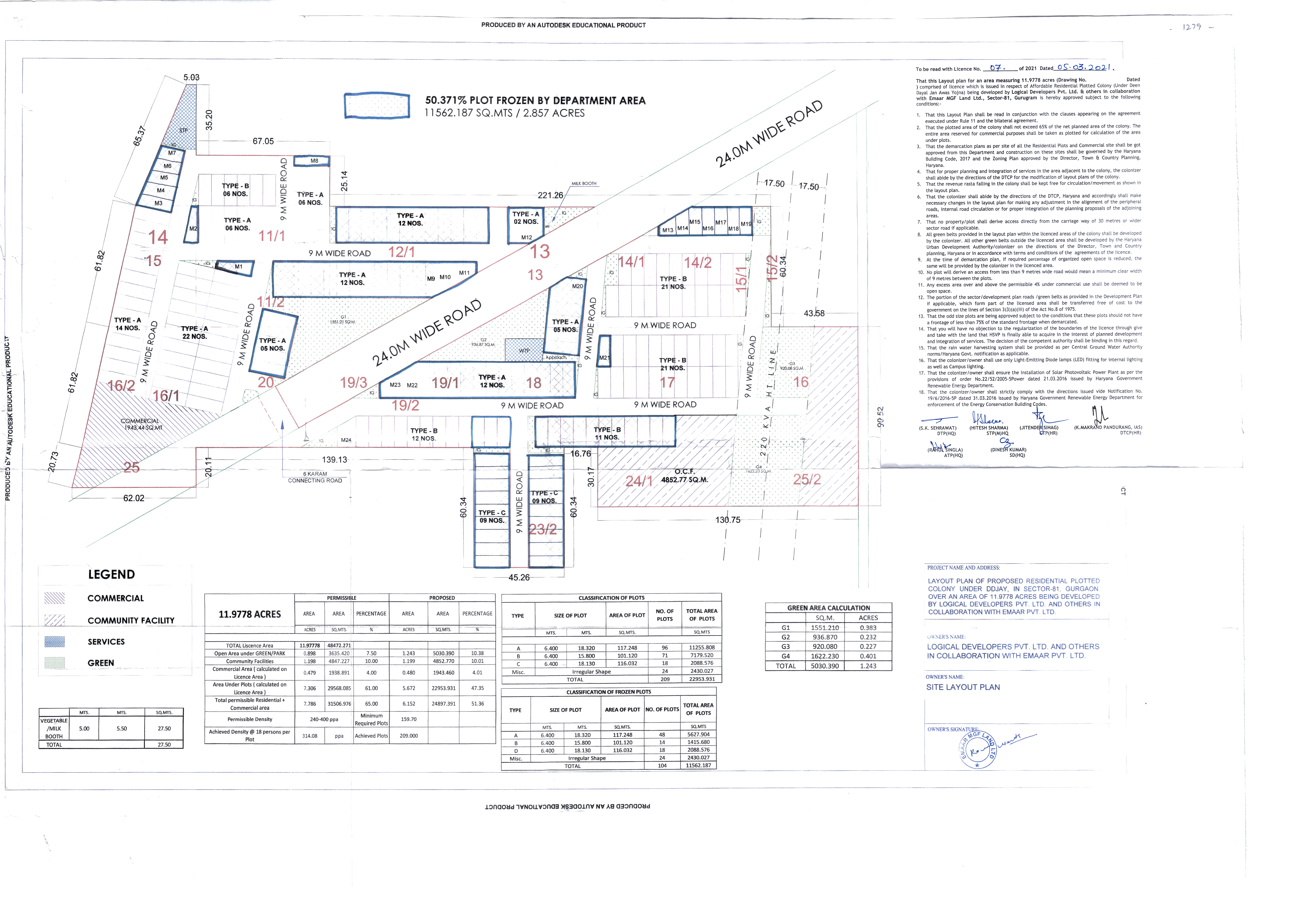
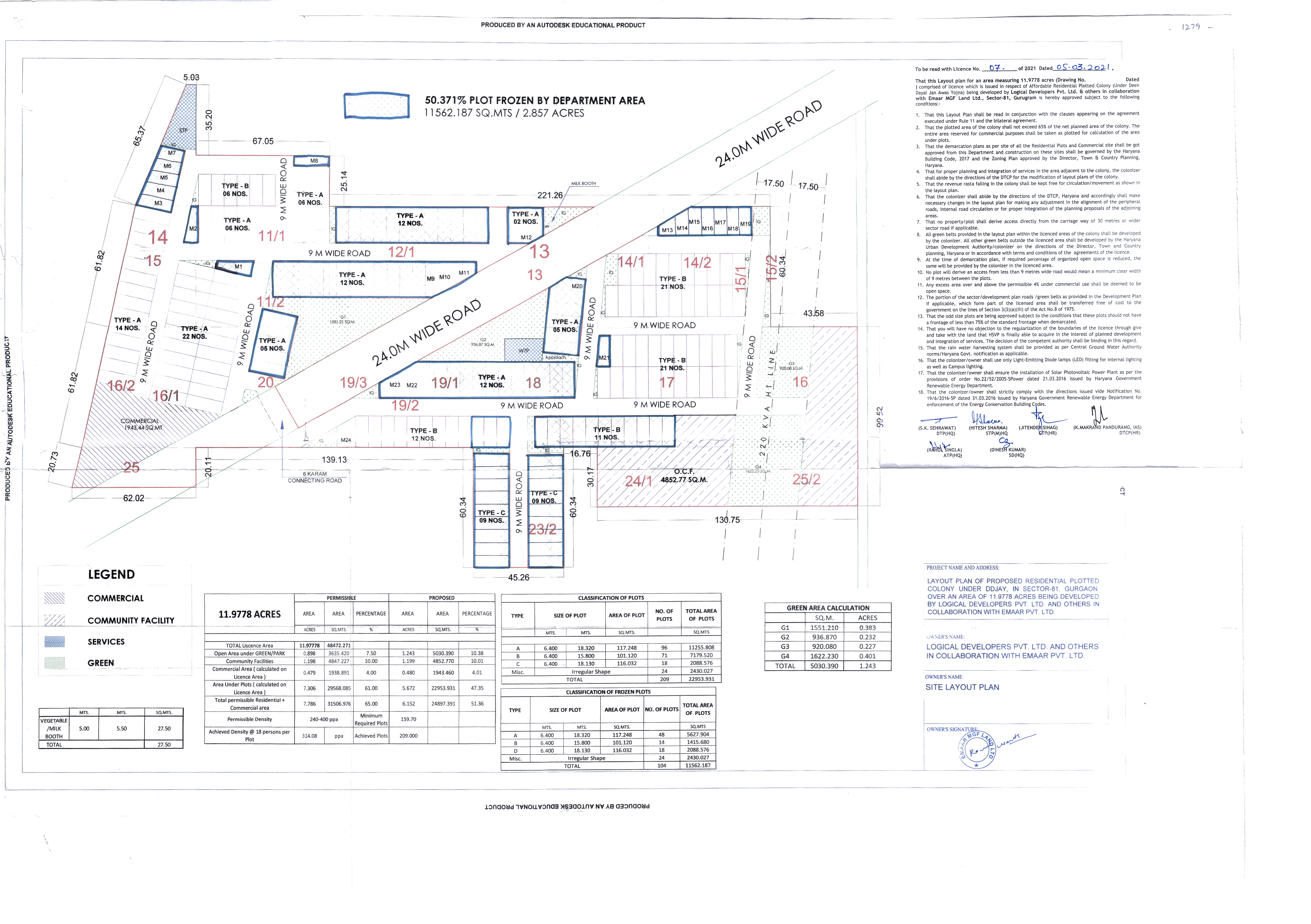
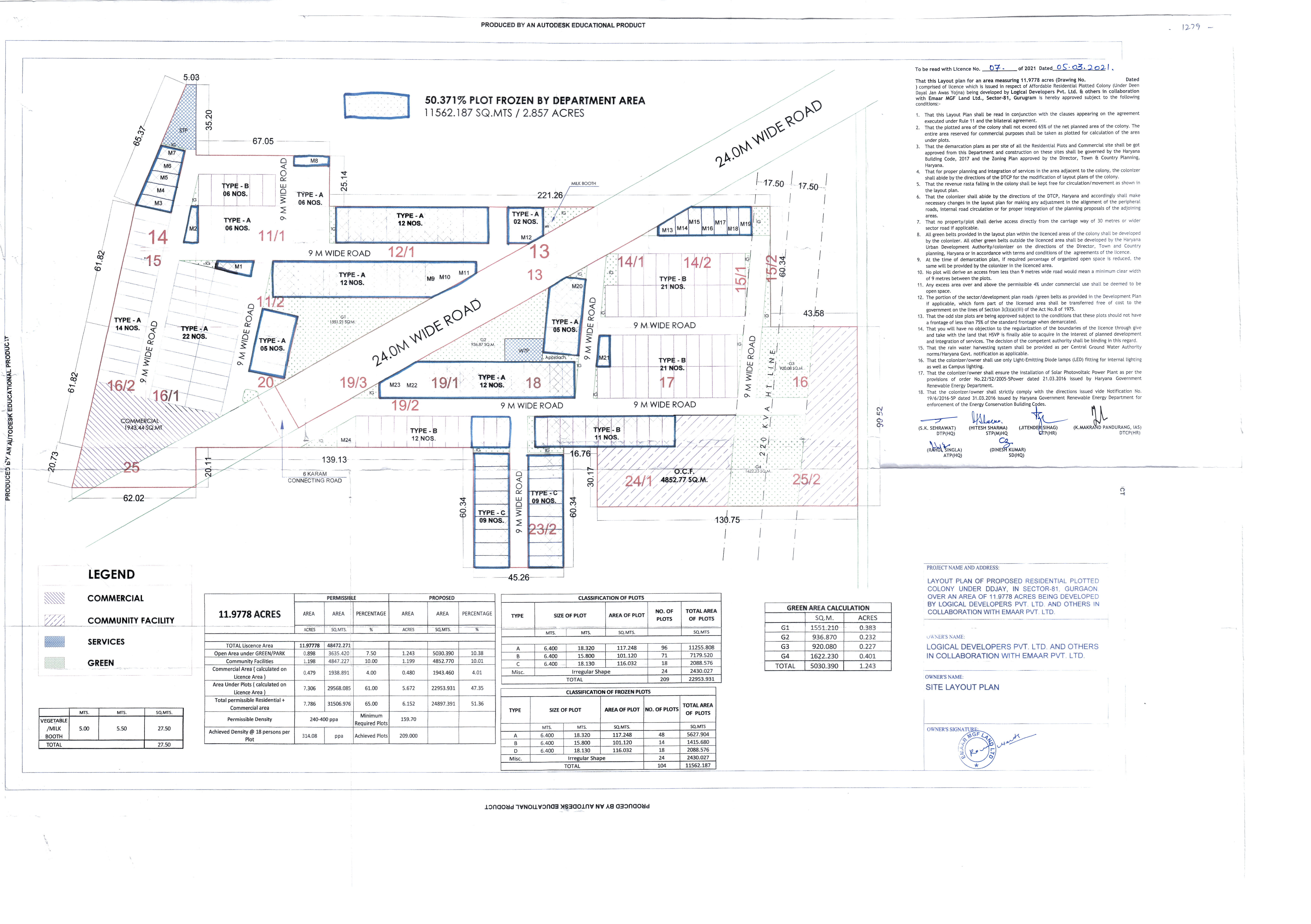
9.12 (Acre)
2.64
2.41
11.9778 (Acre)
07 of 2021 dated 05.03.2021
No
Address     306-308, 3RD FLOOR, SQUARE ONE, SAKET, NEW DELHI – 110017
Address     306-308, 3RD FLOOR, SQUARE ONE, SAKET, NEW DELHI – 110017
Address     306-308, 3RD FLOOR, SQUARE ONE, SAKET, NEW DELHI – 110017
Address     306-308, 3RD FLOOR, SQUARE ONE, SAKET, NEW DELHI – 110017
Address     306-308, 3RD FLOOR, SQUARE ONE, SAKET, NEW DELHI – 110017
Address     306-308, 3RD FLOOR, SQUARE ONE, SAKET, NEW DELHI – 110017
Annexure-B- COLLABORATION ATTACHED
YES
Yes
ATTACHED
No
Yes
Yes







22287.91 Lakhs
6009.73 Lakhs
11000 Lakhs
836.93 Lakhs
4441.25 Lakhs




Sr. No.Land area under usageArea of land (Acres)
1PLOTS TO BE SOLD 0
2LAND AREA TO BE USED FOR CONSTRUCTION OF APARTMENTS 2.81
3CONSTRUCTION OF ROADS 0
4PAVEMENTS 0
5PARKS AND PLAYGROUNDS 0
6GREEN BELTS 0
7VEHICLE PARKINGS 0
8ELECTRICITY SUB-STATION 0
9CLUB HOUSE 1.199
10SEWAGE AND SOLID WASTE TREATMENT FACILITY 0.10
11AREA TO BE LEFT FOR TRANSFERRING TO THE GOVERNMENT FOR COMMUNITY SERVICES 1.199
12ANY OTHER 0
13ROADS AND PAVEMENTS 3.28
14PARKS PLAYGROUNDS AND OPEN SPACES 1.243
15AREA UNDER COMMERCIAL UNITS 0.480
Total10.311




FacilityExternal/ connecting service to be provided by (Name the agency)Whether Approval taken from the agency concerned. Yes/No (Annex details in folder C)
ROADSNHAIYes
WATER SUPPLYGMDAYes
ELECTRICITYDHBVNYes
SEWAGE DISPOSALGMDAYes
STORM WATER DRAINAGENANo
STPGMDAYes




Sr. No.Name of the facilityEstimated cost (In Lakhs)(Within the project area only)Remarks: Yet to be prepared / Submitted to HUDA, Town & Country Planning Department/ as per project report etc. (Annex relevant documents showing costing details etc. in folder C)
1INTERNAL ROADS AND PAVEMENTS213.44SUBMITTED TO HUDA
2WATER SUPPLY SYSTEM159.73SUBMITTED TO HUDA
3STORM WATER DRAINAGE51.82SUBMITTED TO HUDA
4ELECTRICITY SUPPLY SYSTEM0YET TO BE PREPARED
5SEWAGE TREATMENT & GARBAGE DISPOSAL127.33SUBMITTED TO HUDA
6STREET LIGHTING18.38SUBMITTED TO HUDA
7SECURITY AND FIRE FIGHTING0YET TO BE PREPARED
8PLAYGROUNDS AND PARKS0YET TO BE PREPARED
9CLUB HOUSE/COMMUNITY CENTRE0YET TO BE PREPARED
10SHOPPING AREA0YET TO BE PREPARED
11RENEWABLE ENERGY SYSTEM0YET TO BE PREPARED
12SCHOOL0YET TO BE PREPARED
13HOSPITAL/DISPENSARY0YET TO BE PREPARED
14ANY OTHER0SUBMITTED TO HUDA
15PARKING4.73SUBMITTED TO HUDA
16MAINTENANCE OF SERVICE 261.50YET TO BE PREPARED
17PARKING4.73YET TO BE PREPARED


08-03-2021 (date)
12-07-2021 (date)
06-07-2021
06-07-2021
Sr. No Plot Area(In Square Meter)Number of plots in the project
1 0 0
Total0


TypeCarpet area(In Square Meter)Number of apartmentsNumber of towers
Apartment/Shops/Other Buildings11650.5619248
Apartment/Shops/Other Buildings1826.64369
Apartment/Shops/Other Buildings8524.3216842
Apartment/Shops/Other Buildings1217.76246
Apartment/Shops/Other Buildings23219.28420105





Expenditure incurred till the date of application (In Lakhs)

ParticularsExpenditure
Apartments0
Shops0
Plots0
External Development Charges679.82
Infrastructure Development Charges231.67
Land Cost Expenditure1648.3

Expenditure to be made in each quarter (In Lakhs)

ParticularsYear-2021
Jan-MarApr-JuneJuly-SepOct-Dec
Apartments10001000
Shops00
Plots00
Others Cost487.61426.14
Infrastructure Development charges0
External Development charges95.540
Land Cost Expenditure872.281744.56
InternalDevelopment charges73.49
Infrastructure Development charge0
Internal Development Work189.72

ParticularsYear-2022
Jan-MarApr-JuneJuly-SepOct-Dec
Apartments10001000010001000
Shops0000
Plots0000
Land Cost Expenditure1744.56000
Infrastructure Development charges0000
InternalDevelopment charges213.7198.51261.50
Others Cost426.14326.14276.14276.14
External Development charges84.42080.570
Internal Development charges0

ParticularsYear-2023
Jan-MarApr-JuneJuly-SepOct-Dec
Apartments1000100010001000
Shops0000
Plots0000
Infrastructure Development charges0000
Internal Development charges0000
Others Cost185.91170.68155.46140.23
Land Cost Expenditure0000
External Development charges76.31000

ParticularsYear-2024
Jan-MarApr-JuneJuly-SepOct-Dec
Apartments1000
Shops0
Plots0
Internal Development charges0
Infrastructure Development charges0
External Development charges0
Land Cost Expenditure0
Others Cost250




Expenditure incurred till the date of application (In Lakhs)

ParticularsExpenditure
Roads & Pavements0
Water Supply System0
Sewerage treatment & garbage disposal0
Electricity Supply System0
Storm Water Drainage0
Parks and Playgrounds0
Clubhouse/community centres0
Shopping area0
Other0

Expenditure to be made in each quarter (In Lakhs)

ParticularsYear-2021
Jan-MarApr-JuneJuly-SepOct-Dec
Roads & Pavements25.8567.53
Water Supply System19.3450.54
Sewerage treatment & garbage disposal15.4240.29
Electricity Supply System00
Storm Water Drainage8.9121.69
Parks and Playgrounds0.811.98
Clubhouse/community centres00
Shopping area00
Other00
Street Light3.167.69

ParticularsYear-2022
Jan-MarApr-JuneJuly-SepOct-Dec
Roads & Pavements79.210
Water Supply System59.270
Sewerage treatment & garbage disposal47.250
Electricity Supply System00
Storm Water Drainage19.350
Parks and Playgrounds1.770
Clubhouse/community centres00
Shopping area00
Other00
Street Light6.860.67












Yes
No
INDUSIND BANK LIMITED, DR. GOPAL DAS BHAWAN, 28, BARAKHAMBA ROAD, NEW DELHI-110001
259999012348
INDB0000005
110234002
000005
Lalit Kumar Aggarwal and Pradeep Kumar Aggarwal Address: 34, Road No. 61, Punjabi Bagh, New Delhi-110026
Attached











Yes
Yes
Yes
Yes
Yes
Yes
Yes
Yes
Yes
No


Yes
No
Yes
Yes
Yes
Yes
No
No
Statutory Approvals Statutory Approvals StatusDate
I. LICENSE 07 OF 2021ALREADY BEEN OBTAINED05-03-2021
II. SEWAGE DISPOSAL GMDA/SEW/2021/396ALREADY BEEN OBTAINED25-06-2021
III. STP GMDA/SEW/2021/393ALREADY BEEN OBTAINED25-03-2021
IV. ELECTRICAL LOAD AVAILABILITY NO. CH. /DRG.-PLCALREADY BEEN OBTAINED25-06-2021








Yes


Yes


Attached













SPECIFICATION OF CONSTRUCTION
Specification of apartments and other buildings including the following:
1FLOORING DETAILS OF VARIOUS PARTS OF HOUSEVITRIFIED & CERAMIC TILES
2WALL FINISHING DETAILSOBD
3KITCHEN DETAILSISI MARKED
4BATHROOM FITTINGSISI MARKED
5WOOD WORK ETCHARD WOOD
6DOORS AND WINDOS FRAMESWOODEN(DOOR FRAME), ALUMINIUMN/UPVC(WINDOW FRAME)
7GLASS WORKISI MARKED
8ELECTRIC FITTINGSISI MARKED
9CONDUCTING AND WIRING DETAILSISI MARKED
10CUPBOARD DETAILSNA
11WATER STORAGERCC/PVC
12LIFT DETAILSISI MARKED
13EXTERNAL GLAZINGSNA
13.1WINDOWS/GLAZINGSALUMINIUMN/UPVC
14DOORSNA
14.1MAIN DOORSFLUSH DOOR
14.2INTERNAL DOORSFLUSH DOOR
15AIR CONDITIONINGNA
16ELECTRICAL FITTINGSISI MARKED
17CNG PIPE LINENA
18PROVISION OF WIFI AND BROADBAND FACILITYNA
19EXTERNAL FINISHING/COLOUR SCHEMETEXTURE PAINT
20INTERNAL FINISHINGNA
SPECIFICATION UNIT WISE
1 . LIVING/DINING/FOYER/FAMILY LOUNGE
1 . 1 FLOORVITRIFIED TILE
1 . 2 WALLSOBD
1 . 3 CEILINGOBD
2 . MASTER BEDROOM/DRESSROOM
2 . 1 FLOORVITRIFIED TILE
2 . 2 WALLSOBD
2 . 3 CEILINGOBD
2 . 4 MODULAR WARDROBESNA
3 . MASTER TOILET
3 . 1 FLOORCERAMIC TILE(ANTI-SKID)
3 . 2 WALLSCERAMIC TILE
3 . 3 CEILINGGRID CEILING
3 . 4 COUNTERSNA
3 . 5 SANITARY WARE/CP FITTINGSISI MARKED
3 . 6 FITTING/FIXTURESISI MARKED
4 . BED ROOMS
4 . 1 FLOORVITRIFIED TILE
4 . 2 WALLSOBD
4 . 3 CEILINGOBD
4 . 4 WARDROBESNA
5 . TOILET
5 . 1 FLOORVITRIFIED TILE
5 . 2 WALLSOBD
5 . 3 CEILINGOBD
5 . 4 COUNTERSNA
5 . 5 SANITARY WARE/CP FITTINGSISI MARKED
5 . 6 FIXTURESISI MARKED
6 . KITCHEN
6 . 1 FLOORVITRIFIED TILES
6 . 2 WALLSOBD
6 . 3 CEILINGOBD
6 . 4 COUNTERSGRANITE
6 . 5 FIXTURESISI MARKED
6 . 6 KITCHEN APPLIANCESNA
7 . UTILITY ROOMS/UTILITY BALCONY/TOILET
7 . 1 FLOORNA
7 . 2 WALLS & CEILINGNA
7 . 3 TOILETNA
7 . 4 BALCONYNA
8 . SIT-OUTS
8 . 1 FLOORNA
8 . 2 WALLS & CEILINGNA
8 . 3 RAILINGSNA
8 . 4 FIXTURESNA












Sr. No.Document DescriptionDate of Document UploadView Document
1COPY OF LICENSE ALONG WITH SCHEDULE OF LAND06-07-2021 View Document
2DOCUMENTS RELATING TO THE ENTRY OF LICENSE AND COLLABORATION AGREEMENT IN THE REVENUE RECORD06-07-2021 View Document
3IN CASE OF PLOTTED COLONY, THE LATEST LAYOUT PLAN06-07-2021 View Document
4DEMARCATION PLAN06-07-2021 View Document
5IN CASE OF GROUP HOUSING/ COMMERCIAL SITES, A COPY OF THE APPROVED SITE PLAN06-07-2021 View Document
6ZONING PLAN06-07-2021 View Document
7NON DEFAULT CERTIFICATE FROM A CHARTERED ACCOUNTANT06-07-2021 View Document
8DECLARATION SUPPORTED BY AFFIDAVIT DULY SIGNED BY THE PROMOTER TO BE ENCLOSED.06-07-2021 View Document
9WATER NOC06-07-2021 View Document
10STP NOC06-07-2021 View Document
11SEWERAGE NOC06-07-2021 View Document
12NON06-07-2021 View Document












Sr. No.Document DescriptionDate of Document UploadView Document
1 Extension No. 05 of 2024 dated 13.05.2024 23-05-2024 View Document
2 PROJECT CONTINUATION- RC/REP/HARERA/GGM/46 of 2021/7(3)/67/2025/09 DATED 01.05.2025 04-07-2025 View Document