HRERA GurugramTemp Project Id : RERA-GRG-PROJ-878-2021
Submission Date : 09-07-2021 01:57:12 PM
Applicant Type : Company
Project Type: NEW




HANS PROPCON PVT. LTD., GLORY INFRACON PVT. LTD., BLOSSOM PROPBUILD PVT. LTD.
6TH FLOOR, M3M TEE POINT, NORTH BLOCK, SECTOR-65, GURUGRAM, 1220101, HARYANA
01244732000
9711348349 (Number Shared by Promoter in Public)
hanspropconpvtltd@gmail.com
http://hanspropcon.com
XXXX912R
U70109HR2012PTC056062
 
 


 
 


 
 


 
 







M3M FLORA68
SECTOR -68, GURUGRAM
BADSHAHPUR ST
GURUGRAM
01244732000
9811486979 (Number Shared by Promoter in Public)
hanspropconpvtltd@gmail.com
YAS PAL RAN
01244732000
9811486979 (Number Shared by Promoter in Public)
hanspropconpvtltd@gmail.com








As per sub-rule(2) of rule 3 of the Haryana Real Estate (Regulation and Development) Rules,2017, the fee for registration of the project as has been calculated as follows:
-----------------------------------------------------------------------------------------------------------------------
-----------------------------------------------------------------------------------------------------------------------
-----------------------------------------------------------------------------------------------------------------------
-----------------------------------------------------------------------------------------------------------------------
2. The aforesaid fees is hereby deposited vide following Drafts/ Banker’s Cheques:-

Sr No.Draft/Cheque No.Draft DateAmountPayee BankPayable To
1217307-07-2021202700AXIS BANKHRERA Gurugram
2217407-07-2021110200AXIS BANKHRERA Gurugram







0.905 (Acre)
11014.247
1.84
13.2118 (Acre)
93 of 2014 dated 13.08.2014
Yes







5270.73 Lakhs
544.21 Lakhs
3390.79 Lakhs
423.12 Lakhs
912.61 Lakhs




Sr. No.Land area under usageArea of land (Acres)
1PLOTS TO BE SOLD 0
2LAND AREA TO BE USED FOR CONSTRUCTION OF APARTMENTS 0.183
3CONSTRUCTION OF ROADS 0.520
4PAVEMENTS 0
5PARKS AND PLAYGROUNDS 0.20
6GREEN BELTS 0
7VEHICLE PARKINGS 0
8ELECTRICITY SUB-STATION 0
9CLUB HOUSE 0
10SEWAGE AND SOLID WASTE TREATMENT FACILITY 0
11AREA TO BE LEFT FOR TRANSFERRING TO THE GOVERNMENT FOR COMMUNITY SERVICES 0
12ANY OTHER 0
13RAINWATER 0.002
Total0.905




FacilityExternal/ connecting service to be provided by (Name the agency)Whether Approval taken from the agency concerned. Yes/No (Annex details in folder C)
ROADSGMDA Yes
WATER SUPPLYGMDA Yes
ELECTRICITYDHBVNL Yes
SEWAGE DISPOSALGMDA Yes
STORM WATER DRAINAGEGMDA Yes




Sr. No.Name of the facilityEstimated cost (In Lakhs)(Within the project area only)Remarks: Yet to be prepared / Submitted to HUDA, Town & Country Planning Department/ as per project report etc. (Annex relevant documents showing costing details etc. in folder C)
1INTERNAL ROADS AND PAVEMENTS76.46AS PER PROJECT REPORT
2WATER SUPPLY SYSTEM45.68AS PER PROJECT REPORT
3STORM WATER DRAINAGE8.33AS PER PROJECT REPORT
4ELECTRICITY SUPPLY SYSTEM30.00AS PER PROJECT REPORT
5SEWAGE TREATMENT & GARBAGE DISPOSAL4.50AS PER PROJECT REPORT
6STREET LIGHTING30.00AS PER PROJECT REPORT
7SECURITY AND FIRE FIGHTING44.25AS PER PROJECT REPORT
8PLAYGROUNDS AND PARKS1.74YET TO BE PREPARED
9CLUB HOUSE/COMMUNITY CENTRE0YET TO BE PREPARED
10SHOPPING AREA0YET TO BE PREPARED
11RENEWABLE ENERGY SYSTEM0YET TO BE PREPARED
12SCHOOL0YET TO BE PREPARED
13HOSPITAL/DISPENSARY0YET TO BE PREPARED
14ANY OTHER0AS PER PROJECT REPORT
15ELECTRICAL SUB STATION100AS PER PROJECT REPORT
16INFRA ESTABLISHMENT82.16AS PER PROJECT REPORT


06-07-2021 (date)
06-07-2021 (date)
24-06-2021
30-06-2026
Sr. No Plot Area(In Square Meter)Number of plots in the project
1 0 0
Total0


TypeCarpet area(In Square Meter)Number of apartmentsNumber of towers
Apartment/Shops/Other Buildings87931141





Expenditure incurred till the date of application (In Lakhs)

ParticularsExpenditure
Apartments1559.28
Shops0
Plots0
EDC122.64
Land Cost544.21
Other Cost11.21

Expenditure to be made in each quarter (In Lakhs)

ParticularsYear-2021
Jan-MarApr-JuneJuly-SepOct-Dec
Apartments000
Shops000
Plots000

ParticularsYear-2022
Jan-MarApr-JuneJuly-SepOct-Dec
Apartments0242.46241.38274.44
Shops0000
Plots0000
Other Cost57.5388.90

ParticularsYear-2023
Jan-MarApr-JuneJuly-SepOct-Dec
Apartments390.49459.95222.790
Shops0000
Plots0000
Other Cost97.90172.33164.0080.66

ParticularsYear-2024
Jan-MarApr-JuneJuly-SepOct-Dec
Apartments0000
Shops0000
Plots0000
Other Cost67.8128.5112.789.03

ParticularsYear-2025
Jan-MarApr-JuneJuly-SepOct-Dec
Apartments0
Shops0
Plots0




Expenditure incurred till the date of application (In Lakhs)

ParticularsExpenditure
Roads & Pavements0
Water Supply System0
Sewerage treatment & garbage disposal0
Electricity Supply System0
Storm Water Drainage0
Parks and Playgrounds0
Clubhouse/community centres0
Shopping area0
Other0

Expenditure to be made in each quarter (In Lakhs)

ParticularsYear-2022
Jan-MarApr-JuneJuly-SepOct-Dec
Roads & Pavements6.127.6511.47
Water Supply System3.206.856.85
Sewerage treatment & garbage disposal0.320.680.68
Electricity Supply System004.50
Storm Water Drainage0.670.831.25
Parks and Playgrounds00.090.09
Clubhouse/community centres000
Shopping area000
Other000.05
Infra Establishment16.4324.6524.65
Street Light33
Electrical Sub Station250
Fire Fighting4.424.42

ParticularsYear-2023
Jan-MarApr-JuneJuly-SepOct-Dec
Roads & Pavements16.0619.1216.060
Water Supply System7.3110.0511.420
Sewerage treatment & garbage disposal0.720.991.130
Electricity Supply System7.509.009.000
Storm Water Drainage1.671.832.080
Parks and Playgrounds0.520.520.520
Clubhouse/community centres0000
Shopping area0000
Other0000
Security Firefighting11.0611.0613.270
Street Light7.507.5090
Electrical Sub Station2525250
Infra Establishment16.43000
Parking0000

ParticularsYear-2024
Jan-MarApr-JuneJuly-SepOct-Dec
Roads & Pavements0000
Water Supply System0000
Sewerage treatment & garbage disposal0000
Electricity Supply System0000
Storm Water Drainage0000
Parks and Playgrounds0000
Clubhouse/community centres0000
Shopping area0000
Other0000

ParticularsYear-2025
Jan-MarApr-JuneJuly-SepOct-Dec
Roads & Pavements000
Water Supply System000
Sewerage treatment & garbage disposal000
Electricity Supply System000
Storm Water Drainage000
Parks and Playgrounds000
Clubhouse/community centres000
Shopping area000
Other000












Yes
Yes
ICICI BANK LTD., SHOP NO. 19,20, VIPUL PLAZA, SUNCITY, SECTOR-54, GURUGRAM, HARYANA
777705001550
ICIC0000399
110229060
0399
1. Vyom Shakti Nigam-D3/103 Paras city E3 Arera Colony Bhopal M.P. 462016 2. Amanjot Kaur Sahni- 3/66 Subash Nagar West Delhi-110027 3. Pratap Singh- 10A, Pocket -2, Mayur Vihar, East Delhi 4. Ms. Shubhna Bakshi-H.N.10/6 DLF phase-1, Sikandarpur, Gurugram-122001, haryana 5. ms. Surbhi Flat No. 3-905, 9th Floor, Sector 103, Daultabad Gurugram 122001, haryana 6. Mr. Vidya Sagar-3G-208, NIT faridabad 7. Pradeep Kumar katiyan 357, NBakhoti, Thaana Vihar, Kanpur-209202, Uttar Pradesh
Yes











Yes
Yes
Yes
Yes
Yes
Yes
Yes
Yes
Yes
Yes


Yes
No
Yes
Yes
Yes
No
No
Yes
Statutory Approvals Statutory Approvals StatusDate
I. LICENCEALREADY BEEN OBTAINED13-08-2014
II. LICENCE RENEWALALREADY BEEN OBTAINED13-05-2020
III. ZONINGALREADY BEEN OBTAINED29-10-2014
IV. BUILDING PLAN ALREADY BEEN OBTAINED06-07-2021
V. ENVIRONMENT CLEARANCE ALREADY BEEN OBTAINED26-11-2021
VI. AIRPORT HEIGHT NOCALREADY BEEN OBTAINED19-09-2019
VII. FOREST NOCALREADY BEEN OBTAINED15-07-2014
VIII. SERVICE ESTIMATESAPPLIED FOR BUT YET TO RECEIVE12-01-2022








Yes


Yes


AS PER HARERA NORMS













SPECIFICATION OF CONSTRUCTION
Specification of apartments and other buildings including the following:
1FLOORING DETAILS OF VARIOUS PARTS OF HOUSEVITRIFIED TILE/LAMINATED WOODEN FLOOR/CERAMIC TILE
2WALL FINISHING DETAILSPLASTER WITH PAINT
3KITCHEN DETAILSN.A.
4BATHROOM FITTINGSAS PER APPROVED MAKE
5WOOD WORK ETCN.A.
6DOORS AND WINDOS FRAMESHARDWOOD DOOR FRAME WITH FLUSH DOOR/LAMINATE
7GLASS WORKN.A.
8ELECTRIC FITTINGSAS PER APPROVED MAKE
9CONDUCTING AND WIRING DETAILSAS PER APPROVED MAKE
10CUPBOARD DETAILSN.A.
11WATER STORAGEAS PER NORMS
12LIFT DETAILSNA
13EXTERNAL GLAZINGSUPVC/POWDER COATED OR ANODIZED ALUMINIUM GLAZING
13.1WINDOWS/GLAZINGSUPVC/ POWDER COATED OR ANODIZED ALUMINIUM GLAZING
14DOORSNA
14.1MAIN DOORSHARDWOOD DOOR FRAME WITH FLUSH DOOR/LAMINATE
14.2INTERNAL DOORSHARDWOOD DOOR FRAME WITH FLUSH DOOR/LAMINATE
15AIR CONDITIONINGWIRING AND POWER SOCKET TO BE PROVIDED
16ELECTRICAL FITTINGSAS PER APPROVED MAKE
17CNG PIPE LINEMILD STEEL
18PROVISION OF WIFI AND BROADBAND FACILITY -
19EXTERNAL FINISHING/COLOUR SCHEMECOMBINATION OF GLAZING AND EXTERNAL PAINT
20INTERNAL FINISHINGPLASTER WITH PAINT
SPECIFICATION UNIT WISE
1 . LIVING/DINING/FOYER/FAMILY LOUNGE
1 . 1 FLOORVITRIFIED TILE
1 . 2 WALLSPLASTIC EMULSION WITH ROLLER FINISH
1 . 3 CEILINGPLASTIC EMULSION
2 . MASTER BEDROOM/DRESSROOM
2 . 1 FLOORLAMINATED WOODEN FLOORING
2 . 2 WALLSPLASTIC EMULSION WITH ROLLER FINISH
2 . 3 CEILINGPLASTIC EMULSION
2 . 4 MODULAR WARDROBESN.A.
3 . MASTER TOILET
3 . 1 FLOORANTI-SKID CERAMIC TILES
3 . 2 WALLSCOMBINATION OF CERAMIC TILES, OIL BOUND DISTEMPER
3 . 3 CEILINGOIL BOUND DISTEMPER PAINT
3 . 4 COUNTERSGRANITE COUNTER
3 . 5 SANITARY WARE/CP FITTINGSAS PER APPROVED MAKE
3 . 6 FITTING/FIXTURESAS PER APPROVED MAKE
4 . BED ROOMS
4 . 1 FLOORWOODEN LAMINATED FLOOR
4 . 2 WALLSPLASTIC EMULSION
4 . 3 CEILINGPLASTIC EMULSION
4 . 4 WARDROBESN.A.
5 . TOILET
5 . 1 FLOORANTI-SKID CERAMIC TILES
5 . 2 WALLSCOMBINATION OF CERAMIC TILES, OIL BOUND DISTEMPER
5 . 3 CEILINGOIL BOUND DISTEMPER
5 . 4 COUNTERSGRANITE/ MARBLE COUNTER
5 . 5 SANITARY WARE/CP FITTINGSAS PER APPROVED MAKE
5 . 6 FIXTURESAS PER APPROVED MAKE
6 . KITCHEN
6 . 1 FLOORANTI-SKID CERAMIC TILES
6 . 2 WALLS600 MM CERAMIC TILE ABOVE COUNTER, OBD PAINT
6 . 3 CEILINGOBD
6 . 4 COUNTERSGRANITE COUNTER
6 . 5 FIXTURESSS SINK AND CP FITTINGS
6 . 6 KITCHEN APPLIANCESN.A.
7 . UTILITY ROOMS/UTILITY BALCONY/TOILET
7 . 1 FLOORANTI-SKID CERAMIC TILES
7 . 2 WALLS & CEILINGOBD
7 . 3 TOILETCERAMIC TILES
7 . 4 BALCONYCERAMIC TILES
8 . SIT-OUTS
8 . 1 FLOORCERAMIC TILES
8 . 2 WALLS & CEILINGOBD IN CEILING, OUTER WALLS AS PER EXTERNAL WALL FINISH
8 . 3 RAILINGSMS RAILING
8 . 4 FIXTURESN.A.












Sr. No.Document DescriptionDate of Document UploadView Document
1COPY OF LICENSE ALONG WITH SCHEDULE OF LAND16-06-2021 View Document
2ZONING PLAN16-06-2021 View Document
3LICENCE RENEWAL16-06-2021 View Document
4LC-IV16-06-2021 View Document
5LOI16-06-2021 View Document
6AIRPORT HEIGHT CLEARANCE16-06-2021 View Document
7FOREST NOC16-06-2021 View Document
8DEMARCATION PLAN08-07-2021 View Document
9NON-ENCUMBRANCE CERTIFICATE08-07-2021 View Document
10IN CASE OF GROUP HOUSING/ COMMERCIAL SITES, A COPY OF THE APPROVED SITE PLAN08-07-2021 View Document
11IN CASE OF PLOTTED COLONY, THE LATEST LAYOUT PLAN08-07-2021 View Document
12DEMAND DRAFTS09-07-2021 View Document
13SITE PLAN-GARDEN HYDRANT LINE04-09-2021 View Document
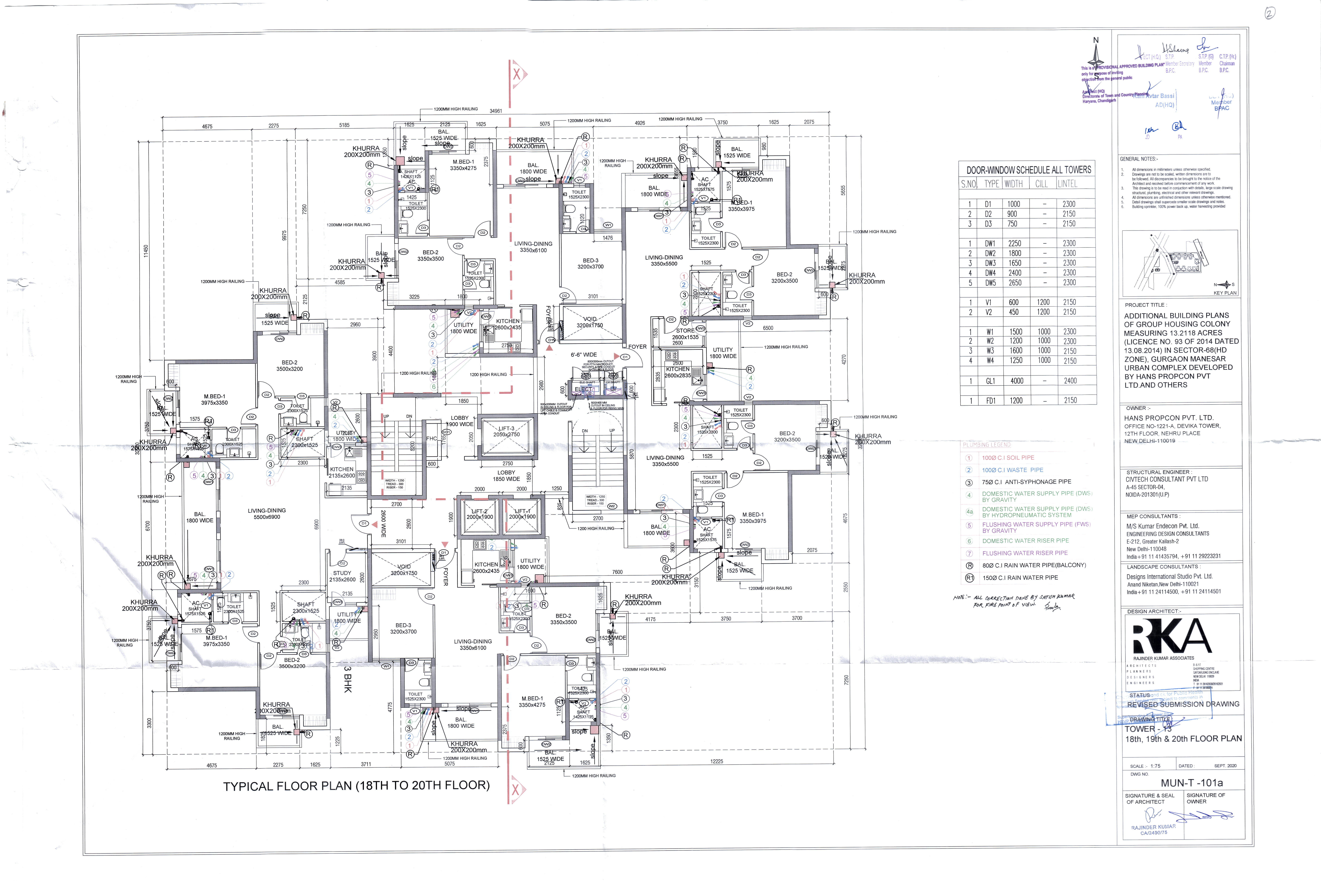
1418TH, 19TH AND 20TH FLOOR PLANS04-09-2021 View Document
15ELEVATIONS A AND C04-09-2021 View Document
16ELEVATIONS D AND B04-09-2021 View Document
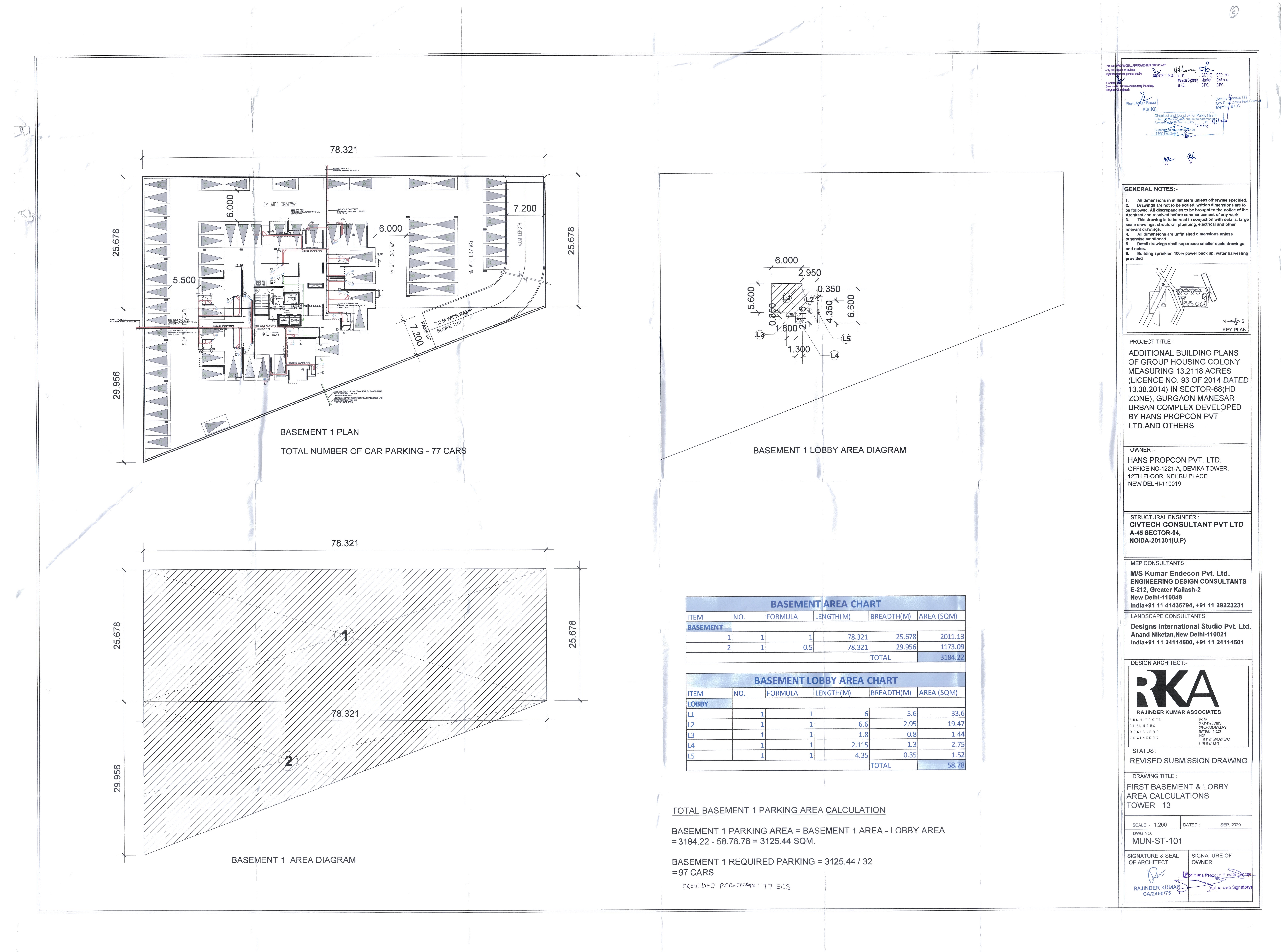
17FIRST BASEMENT04-09-2021 View Document
18FRAMING PLAN04-09-2021 View Document
19GROUND AND 1ST TO 17TH FLOOR PLANS04-09-2021 View Document
20SECTION XX04-09-2021 View Document
21SECOND BASEMENT04-09-2021 View Document
22SITE PLAN-COLD WATER SUPPLY LINE04-09-2021 View Document
23SITE PLAN-FIRE LINE04-09-2021 View Document
24SITE PLAN-ROAD LAYOUT04-09-2021 View Document
25SITE PLAN-SEWER MANHOLE04-09-2021 View Document
26SITE PLAN-STORM WATER LINE04-09-2021 View Document
27DOCUMENTS RELATING TO THE ENTRY OF LICENSE AND COLLABORATION AGREEMENT IN THE REVENUE RECORD04-09-2021 View Document
28CERTIFICATE FROM A CHARTERED ACCOUNTANT CERTIFYING THAT THE INFORMSTION PROVIDED BY THE APPLICANT IN FORM REP-1-C-X IS CORRECT AS PER THE BOOKS OF ACCOUNTS/ BALANCE SHEET OF THE APPLICANT04-09-2021 View Document
29NON DEFAULT CERTIFICATE FROM A CHARTERED ACCOUNTANT04-09-2021 View Document
30TDR & ORDER04-09-2021 View Document
31STATUS OF STATUTORY APPROVALS- SERVICE ESTIMATES REPORT04-09-2021 View Document
32SEWERAGE15-07-2022 View Document
33FIRE FIGHTING15-07-2022 View Document
34FLUSHING WATER SUPPLY15-07-2022 View Document
35HANS PROPCON T13 STP & UGT LOCATION15-07-2022 View Document
36ROADS15-07-2022 View Document
37STORM WATER DRAINAGE15-07-2022 View Document
38WATER SUPPLY15-07-2022 View Document
3942LD-FLORA6815-07-2022 View Document
40EC WITH EXPENSION LETTER15-07-2022 View Document
41FIRE SCHEME APPROVAL15-07-2022 View Document
42FIRE SCHEME APPROVAL15-07-2022 View Document
43ENVIRONMENT CLEARANCE 16-07-2022 View Document
44CASH FLOW STATEMENT OF THE PROPOSED PROJECT16-07-2022 View Document
45DECLARATION SUPPORTED BY AFFIDAVIT DULY SIGNED BY THE PROMOTER TO BE ENCLOSED.16-07-2022 View Document
46PERT CHART16-07-2022 View Document
47SERVICE PLAN ESTIMATE REPORT16-07-2022 View Document
48SERVICE PLAN ESTIMATES APPROVAL16-07-2022 View Document
49PROJECT REPORT-M3M FLORA6816-07-2022 View Document












Sr. No.Document DescriptionDate of Document UploadView Document
1 Occupation Certificate 10-04-2024 View Document