HRERA GurugramTemp Project Id : RERA-GRG-PROJ-874-2021
Submission Date : 07-07-2021 11:51:46 AM
Applicant Type : Company
Project Type: NEW




COUNTRYWIDE PROMOTERS PRIVATE LIMITED
OT-14, 3RD FLOOR, NEXT DOOR PARKLANDS, SECTOR-76 FARIDABD FARIDABAD HR 121004 IN
01149572787
9717790021 (Number Shared by Promoter in Public)
rera.gurugram@bptp.com
http://bptp.com
XXXX280H
U70101HR1996PTC082720
 
 


 
 


 
 


 
 







102 EDEN ESTATE II
SECTOR 102 & 102 A GURUGRAM
GURGAON
GURUGRAM
01149572787
8527571177 (Number Shared by Promoter in Public)
rera.gurugram@bptp.com
RAM PHOOL BAIRWA
01149572787
8527571177 (Number Shared by Promoter in Public)
ramphool.bairwa@bptp.com








As per sub-rule(2) of rule 3 of the Haryana Real Estate (Regulation and Development) Rules,2017, the fee for registration of the project as has been calculated as follows:
-----------------------------------------------------------------------------------------------------------------------
-----------------------------------------------------------------------------------------------------------------------
-----------------------------------------------------------------------------------------------------------------------
-----------------------------------------------------------------------------------------------------------------------
2. The aforesaid fees is hereby deposited vide following Drafts/ Banker’s Cheques:-

Sr No.Draft/Cheque No.Draft DateAmountPayee BankPayable To
112345607-07-2021569089.688RBL BANK LIMITEDHRERA Gurugram







7.03125 (Acre)
0
0
7.03125 (Acre)
License No. 41 of 2021 Dated 23.07.2021
No
Address     OT-14, 3RD FLOOR, NEXT DOOR, PARKLANDS, SECTOR-75 FARIDABAD FARIDABAD HR 121004 IN
Address     OT-16, 3RD FLOOR, NEXT DOOR, PARKLANDS, SECTOR-75 FARIDABAD FARIDABAD HR 121004 IN
Address     OT-14, 3RD FLOOR, NEXT DOOR, PARKLANDS, SECTOR-75 FARIDABAD FARIDABAD HR 121004 IN
Address     OT-15, 3RD FLOOR, NEXT DOOR, PARKLANDS, SECTOR-75 FARIDABAD FARIDABAD HR 121004 IN
Address     OT-15, 3RD FLOOR, NEXT DOOR, PARKLANDS, SECTOR-75 FARIDABAD FARIDABAD HR 121004 IN
Annexure-B- AS A COLLABORATOR.
BEFORE THE GRANT OF LICENSE
Yes
THE DEVELOPER SHALL REIMBURSE THE LAND OWNERS ALL COST AND EXPENSES INCURRED BY THE LAND OWNER TO ACQUIRE LAND. ADDITIONALLY RS 35,000/- PER ACRE ON THE SAID LAND WILL BE GIVEN FOR MAINTAING THE REVENUE RECORD.
No
Yes
Yes







2594.88 Lakhs
761.75 Lakhs
0 Lakhs
954.81 Lakhs
878.32 Lakhs




Sr. No.Land area under usageArea of land (Acres)
1PLOTS TO BE SOLD 3.065
2LAND AREA TO BE USED FOR CONSTRUCTION OF APARTMENTS 0
3CONSTRUCTION OF ROADS 3.15923
4PAVEMENTS 0
5PARKS AND PLAYGROUNDS 0.0813
6GREEN BELTS 0
7VEHICLE PARKINGS 0
8ELECTRICITY SUB-STATION 0.17182
9CLUB HOUSE 0
10SEWAGE AND SOLID WASTE TREATMENT FACILITY 0
11AREA TO BE LEFT FOR TRANSFERRING TO THE GOVERNMENT FOR COMMUNITY SERVICES 0
12ANY OTHER 0.5539
Total7.03125




FacilityExternal/ connecting service to be provided by (Name the agency)Whether Approval taken from the agency concerned. Yes/No (Annex details in folder C)
ROADSGMDA-CONNECTEDYes
WATER SUPPLYGMDAYes
ELECTRICITYDHBVNYes
SEWAGE DISPOSALGMDAYes
STORM WATER DRAINAGEGMDAYes




Sr. No.Name of the facilityEstimated cost (In Lakhs)(Within the project area only)Remarks: Yet to be prepared / Submitted to HUDA, Town & Country Planning Department/ as per project report etc. (Annex relevant documents showing costing details etc. in folder C)
1INTERNAL ROADS AND PAVEMENTS208.35SUBMITTED TO HUDA
2WATER SUPPLY SYSTEM139.82SUBMITTED TO HUDA
3STORM WATER DRAINAGE34.91SUBMITTED TO HUDA
4ELECTRICITY SUPPLY SYSTEM64.8AS PER PROJECT REPORT
5SEWAGE TREATMENT & GARBAGE DISPOSAL27.31SUBMITTED TO HUDA
6STREET LIGHTING26.98SUBMITTED TO HUDA
7SECURITY AND FIRE FIGHTING0YET TO BE PREPARED
8PLAYGROUNDS AND PARKS6SUBMITTED TO HUDA
9CLUB HOUSE/COMMUNITY CENTRE0YET TO BE PREPARED
10SHOPPING AREA0YET TO BE PREPARED
11RENEWABLE ENERGY SYSTEM0YET TO BE PREPARED
12SCHOOL0YET TO BE PREPARED
13HOSPITAL/DISPENSARY0YET TO BE PREPARED
14ANY OTHER0YET TO BE PREPARED
15ELECTRIC SUBSTATION30.37AS PER PROJECT REPORT
16STP107.05SUBMITTED TO HUDA
17UNDERGROUND WATER TANK88.63SUBMITTED TO HUDA
18MTC CHARGES FOR RESURFACING OF ROAD AND OTHERS220.59SUBMITTED TO HUDA


23-07-2021 (date)
NA (date)
01-09-2021
31-03-2025
Sr. No Plot Area(In Square Meter)Number of plots in the project
1 177.99 1
2 165.15 4
3 152.13 1
4 115.74 1
5 165.15 3
6 160.97 1
7 158.32 1
8 165.15 1
9 176.41 1
10 188.22 2
11 246.42 1
12 167.00 1
13 204.51 1
14 208.08 1
15 201.97 1
16 200.48 1
17 193.42 3
18 201.65 9
19 194.07 10
20 154.25 1
21 151.20 6
22 155.96 1
23 151.55 1
24 150.89 5
25 150.88 1
26 156.42 1
27 159.00 4
28 51.12 1
29 50.40 10
30 54.39 1
31 58.80 1
32 75.98 1
33 60.24 1
34 75.72 1
Total80


TypeCarpet area(In Square Meter)Number of apartmentsNumber of towers
Apartment/Shops/Other Buildings000





Expenditure incurred till the date of application (In Lakhs)

ParticularsExpenditure
Apartments0
Shops0
Plots0
External Development Charges731.92
Infrastructure Development Charges142.27
Land Cost761.64
Others Cost5.75

Expenditure to be made in each quarter (In Lakhs)

ParticularsExpenditure to be made in each quarter ()
Apr-JuneJuly-SepOct-DecJan-Mar




Expenditure incurred till the date of application (In Lakhs)

ParticularsExpenditure

Expenditure to be made in each quarter (In Lakhs)

ParticularsYear-2021
Jan-MarApr-JuneJuly-SepOct-Dec
Roads & Pavements017.5217.52
Water Supply System011.6511.65
Sewerage treatment & garbage disposal04.64.6
Electricity Supply System07.27.2
Storm Water Drainage05.815.81
Parks and Playgrounds000
Clubhouse/community centres000
Shopping area000
Other000
Underground water tank7.387.38
MTC Charges for resurfacing of Road and Others13.9514.72
STP8.928.92
Electric Substation2.532.53

ParticularsYear-2022
Jan-MarApr-JuneJuly-SepOct-Dec
Roads & Pavements16.7516.7516.7516.75
Water Supply System11.6511.6511.6511.65
Sewerage treatment & garbage disposal4.64.64.64.6
Electricity Supply System7.27.27.27.2
Storm Water Drainage5.815.815.815.81
Parks and Playgrounds0011
Clubhouse/community centres0000
Shopping area0000
Other0000
STP8.928.927.927.92
Electric Substation2.532.532.532.53
MTC Charges for resurfacing of Road and Others14.7214.7214.7214.72
Underground water tank7.387.387.387.38

ParticularsYear-2023
Jan-MarApr-JuneJuly-SepOct-Dec
Roads & Pavements16.7516.7516.7516.75
Water Supply System11.6511.6511.6511.65
Sewerage treatment & garbage disposal4.6000
Electricity Supply System7.27.367.360
Storm Water Drainage5.81000
Parks and Playgrounds1111
Clubhouse/community centres0000
Shopping area0000
Other0000
Underground water tank7.387.387.387.38
Electric Substation2.532.532.532.53
STP8.928.928.928.92
MTC Charges for resurfacing of Road and Others13.7223.9723.9731.33

ParticularsYear-2024
Jan-MarApr-JuneJuly-SepOct-Dec
Roads & Pavements16.7516.75
Water Supply System11.6511.65
Sewerage treatment & garbage disposal00
Electricity Supply System00
Storm Water Drainage00
Parks and Playgrounds10
Clubhouse/community centres00
Shopping area00
Other00
Electric Substation00
STP8.928.92
Underground water tank7.387.38
MTC Charges for resurfacing of Road and Others33.8634.86












Yes
No
BARAKHAMBA ROAD GOPAL DAS BHAWAN BRANCH
250010210201
INDB0000005
110234002
000005
1. Manik Malik,CFO, Address: D-2/2406, Vasant Kunj, Delhi-110070(Email:Manik.malik@bptp.com) 2. Sanjeev Loknath Agrawal, DGM (Finance and Accounts), Address: Flat No-32,Sudershan Apartments, IP Extension, New Delhi-110092 (Email: Sanjeev.agrawal@bptp.com) 3. Rakesh Agrawal, SGM(Finance and Accounts), Address: D-308,Narwama Apartment, 89, IP Extension, Patparganj, New Delhi-110092 (Email: rakesh.agrawal@bptp.com) 4. Amit Kumar Singhal, AGM(Finance and Accounts), Address: E3/28 Nand Nagri, Mandoli,North East, Delhi-110093 (Email: amit1.singhal@bptp.com)
As Attached











Yes
Yes
No
No
No
No
No
No
No
No


Yes
Yes
Yes
Yes
Yes
No
Yes
No
Statutory Approvals Statutory Approvals StatusDate
I. LICENSE NO. 41 OF 2021ALREADY BEEN OBTAINED23-07-2021
II. NATURAL CONSERVATION ZONEALREADY BEEN OBTAINED14-10-2014
III. FOREST NOCALREADY BEEN OBTAINED10-03-2021
IV. SERVICE PLAN ESTIMATEAPPLIED FOR BUT YET TO RECEIVE03-08-2021
V. DEMARCATION CUM ZONINGAPPLIED FOR BUT YET TO RECEIVE14-04-2021








Yes


Yes


Possession as per RERA Certificate







PHASE-I, PLOTS, SECTOR-81(EDEN ESTATE)
15.12
0
168
0
163
Initially estimated cost (In Lakhs)Revised cost (In Lakhs)Expenditure incurred upto the date of application (In Lakhs)
Total cost of the project
(Other than cost of land)
3183.003471.303830.49
Cost of the apartments000
Cost of the infrastructure1001.003000.00847.46
Others costs440.00471.302983.03


12910 Lakhs
4577 Lakhs
2000 Lakhs
1720 Lakhs
No
08-10-2018
30-06-2022




BPTP DISTRICT 1 BLOCK B
10.056
0
189
0
60
Initially estimated cost (In Lakhs)Revised cost (In Lakhs)Expenditure incurred upto the date of application (In Lakhs)
Total cost of the project
(Other than cost of land)
365701234.27
Cost of the apartments000
Cost of the infrastructure1453.000109.36
Others costs2204.6001124.91


1938.70 Lakhs
2704.48 Lakhs
1430.00 Lakhs
1230.00 Lakhs
No
06-08-2019
01-08-2024




BPTP DISTRICT 1 BLOCK A
12.373
0
220
0
110
Initially estimated cost (In Lakhs)Revised cost (In Lakhs)Expenditure incurred upto the date of application (In Lakhs)
Total cost of the project
(Other than cost of land)
4504.3901644.65
Cost of the apartments000
Cost of the infrastructure1786.00088.43
Others costs2718.3901556.22


2527.04 Lakhs
4760.71 Lakhs
1757 Lakhs
1511 Lakhs
No
01-08-2019
29-07-2024




BPTP DISTRICT 1 BLOCK C
12.72
0
244
0
68
Initially estimated cost (In Lakhs)Revised cost (In Lakhs)Expenditure incurred upto the date of application (In Lakhs)
Total cost of the project
(Other than cost of land)
464001929.53
Cost of the apartments000
Cost of the infrastructure1838.000498.88
Others costs2802.1101430.65


1385 Lakhs
4391 Lakhs
1809 Lakhs
1506 Lakhs
No
20-08-2019
18-08-2024




102 EDEN ESTATE
28.67
45
235
36
48
Initially estimated cost (In Lakhs)Revised cost (In Lakhs)Expenditure incurred upto the date of application (In Lakhs)
Total cost of the project
(Other than cost of land)
21082.43019000.65
Cost of the apartments000
Cost of the infrastructure4278.502587
Others costs16803.93016413.65


91674.41 Lakhs
17173.38 Lakhs
11500 Lakhs
11500 Lakhs
Yes
01-10-2020
30-04-2024










SPECIFICATION OF CONSTRUCTION
Specification of apartments and other buildings including the following:
1FLOORING DETAILS OF VARIOUS PARTS OF HOUSENOT APPLICABLE
2WALL FINISHING DETAILSNOT APPLICABLE
3KITCHEN DETAILSNOT APPLICABLE
4BATHROOM FITTINGSNOT APPLICABLE
5WOOD WORK ETCNOT APPLICABLE
6DOORS AND WINDOS FRAMESNOT APPLICABLE
7GLASS WORKNOT APPLICABLE
8ELECTRIC FITTINGSNOT APPLICABLE
9CONDUCTING AND WIRING DETAILSNOT APPLICABLE
10CUPBOARD DETAILSNOT APPLICABLE
11WATER STORAGENOT APPLICABLE
12LIFT DETAILSNOT APPLICABLE
13EXTERNAL GLAZINGSNOT APPLICABLE
13.1WINDOWS/GLAZINGSNOT APPLICABLE
14DOORSNOT APPLICABLE
14.1MAIN DOORSNOT APPLICABLE
14.2INTERNAL DOORSNOT APPLICABLE
15AIR CONDITIONINGNOT APPLICABLE
16ELECTRICAL FITTINGSNOT APPLICABLE
17CNG PIPE LINENOT APPLICABLE
18PROVISION OF WIFI AND BROADBAND FACILITYNOT APPLICABLE
19EXTERNAL FINISHING/COLOUR SCHEMENOT APPLICABLE
20INTERNAL FINISHINGNOT APPLICABLE
SPECIFICATION UNIT WISE
1 . LIVING/DINING/FOYER/FAMILY LOUNGE
1 . 1 FLOORNOT APPLICABLE
1 . 2 WALLSNOT APPLICABLE
1 . 3 CEILINGNOT APPLICABLE
2 . MASTER BEDROOM/DRESSROOM
2 . 1 FLOORNOT APPLICABLE
2 . 2 WALLSNOT APPLICABLE
2 . 3 CEILINGNOT APPLICABLE
2 . 4 MODULAR WARDROBESNOT APPLICABLE
3 . MASTER TOILET
3 . 1 FLOORNOT APPLICABLE
3 . 2 WALLSNOT APPLICABLE
3 . 3 CEILINGNOT APPLICABLE
3 . 4 COUNTERSNOT APPLICABLE
3 . 5 SANITARY WARE/CP FITTINGSNOT APPLICABLE
3 . 6 FITTING/FIXTURESNOT APPLICABLE
4 . BED ROOMS
4 . 1 FLOORNOT APPLICABLE
4 . 2 WALLSNOT APPLICABLE
4 . 3 CEILINGNOT APPLICABLE
4 . 4 WARDROBESNOT APPLICABLE
5 . TOILET
5 . 1 FLOORNOT APPLICABLE
5 . 2 WALLSNOT APPLICABLE
5 . 3 CEILINGNOT APPLICABLE
5 . 4 COUNTERSNOT APPLICABLE
5 . 5 SANITARY WARE/CP FITTINGSNOT APPLICABLE
5 . 6 FIXTURESNOT APPLICABLE
6 . KITCHEN
6 . 1 FLOORNOT APPLICABLE
6 . 2 WALLSNOT APPLICABLE
6 . 3 CEILINGNOT APPLICABLE
6 . 4 COUNTERSNOT APPLICABLE
6 . 5 FIXTURESNOT APPLICABLE
6 . 6 KITCHEN APPLIANCESNOT APPLICABLE
7 . UTILITY ROOMS/UTILITY BALCONY/TOILET
7 . 1 FLOORNOT APPLICABLE
7 . 2 WALLS & CEILINGNOT APPLICABLE
7 . 3 TOILETNOT APPLICABLE
7 . 4 BALCONYNOT APPLICABLE
8 . SIT-OUTS
8 . 1 FLOORNOT APPLICABLE
8 . 2 WALLS & CEILINGNOT APPLICABLE
8 . 3 RAILINGSNOT APPLICABLE
8 . 4 FIXTURESNOT APPLICABLE












Sr. No.Document DescriptionDate of Document UploadView Document
1 IN CASE OF GROUP HOUSING/ COMMERCIAL SITES, A COPY OF THE APPROVED SITE PLAN 07-07-2021 View Document
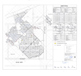
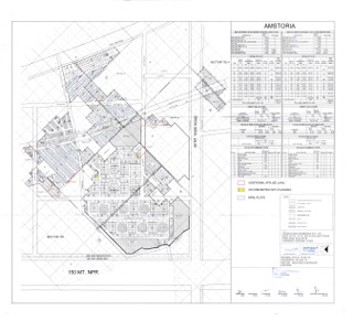
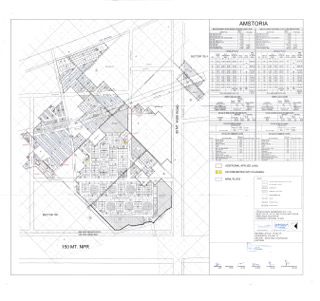
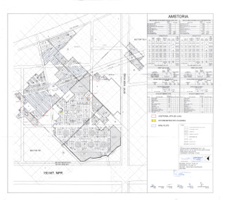
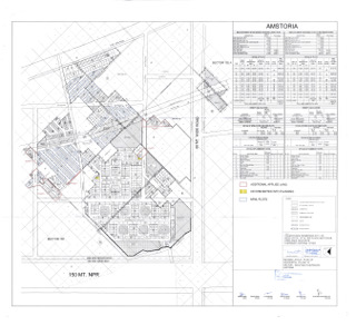
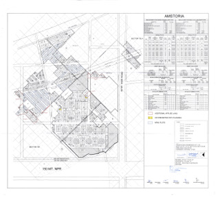
2 IN CASE OF PLOTTED COLONY, THE LATEST LAYOUT PLAN 16-10-2021 View Document
3 DEMARCATION PLAN 16-10-2021 View Document
4 NON DEFAULT CERTIFICATE FROM A CHARTERED ACCOUNTANT 16-10-2021 View Document
5 CERTIFICATE FROM A CHARTERED ACCOUNTANT CERTIFYING THAT THE INFORMSTION PROVIDED BY THE APPLICANT IN FORM REP-1-C-X IS CORRECT AS PER THE BOOKS OF ACCOUNTS/ BALANCE SHEET OF THE APPLICANT 16-10-2021 View Document
6 CASH FLOW STATEMENT OF THE PROPOSED PROJECT 16-10-2021 View Document
7 COPY OF LICENSE ALONG WITH SCHEDULE OF LAND 16-10-2021 View Document
8 STORM WATER LAYOUT 08-11-2021 ------
9 SEWEAGE PLAN 08-11-2021 ------
10 ROAD LAYOUT --MODEL 08-11-2021 ------
11 PL-EXTERNAL FLUSHING WATER SUPPY LAYOUT --MODEL 08-11-2021 ------
12 NCZ REPORT BY DTP_GGN FOR PANCHKULA DTD 14.10.2014 08-11-2021 ------
13 NCZ REPORT BY DTP_GGN DTD 14.10.2014 ANNEXURES (SR. NO. 08 TO 12) SEC-102 08-11-2021 ------
14 LOI703125ACS 08-11-2021 ------
15 LC-IV-B 08-11-2021 ------
16 FOREST_NOC_KERKI_MAJRA_&__DANKOT 08-11-2021 ------
17 DECLARATION SUPPORTED BY AFFIDAVIT DULY SIGNED BY THE PROMOTER TO BE ENCLOSED. 08-11-2021 View Document
18 TOR EC 08-11-2021 ------
19 DOCUMENTS RELATING TO THE ENTRY OF LICENSE AND COLLABORATION AGREEMENT IN THE REVENUE RECORD 08-11-2021 View Document
20 ADDITIONAL DOCS_ BANK UNDERTAKING 08-11-2021 ------
21 ADDITIONAL DOCUMENTS MASTER AFFIDAVIT 08-11-2021 ------
22 ENTRYOF COLLABORATION IN REVENUE RECORD 08-11-2021 ------
23 NON ENCUMBRANCE CERTIFICATE 06-01-2022 ------












Sr. No.Document DescriptionDate of Document UploadView Document
1 Addendum to the Registration Certificate- Changes in UD areas adjacent to additional license no. 165 of 2024 dated 28.11.2024. 19-06-2025 View Document