HRERA GurugramTemp Project Id : RERA-GRG-PROJ-873-2021
Submission Date : 08-06-2021 06:38:17 PM
Applicant Type : Firm
Project Type: NEW


MRG CASTLE REALITY LLP
UNIT NO. 131, VATIKA TOWER, SECTOR-54, GURUGRAM
01246036000
9625935263 (Number Shared by Promoter in Public)
compliances@mrgworld.com
AAU2278
ABPFM0852J













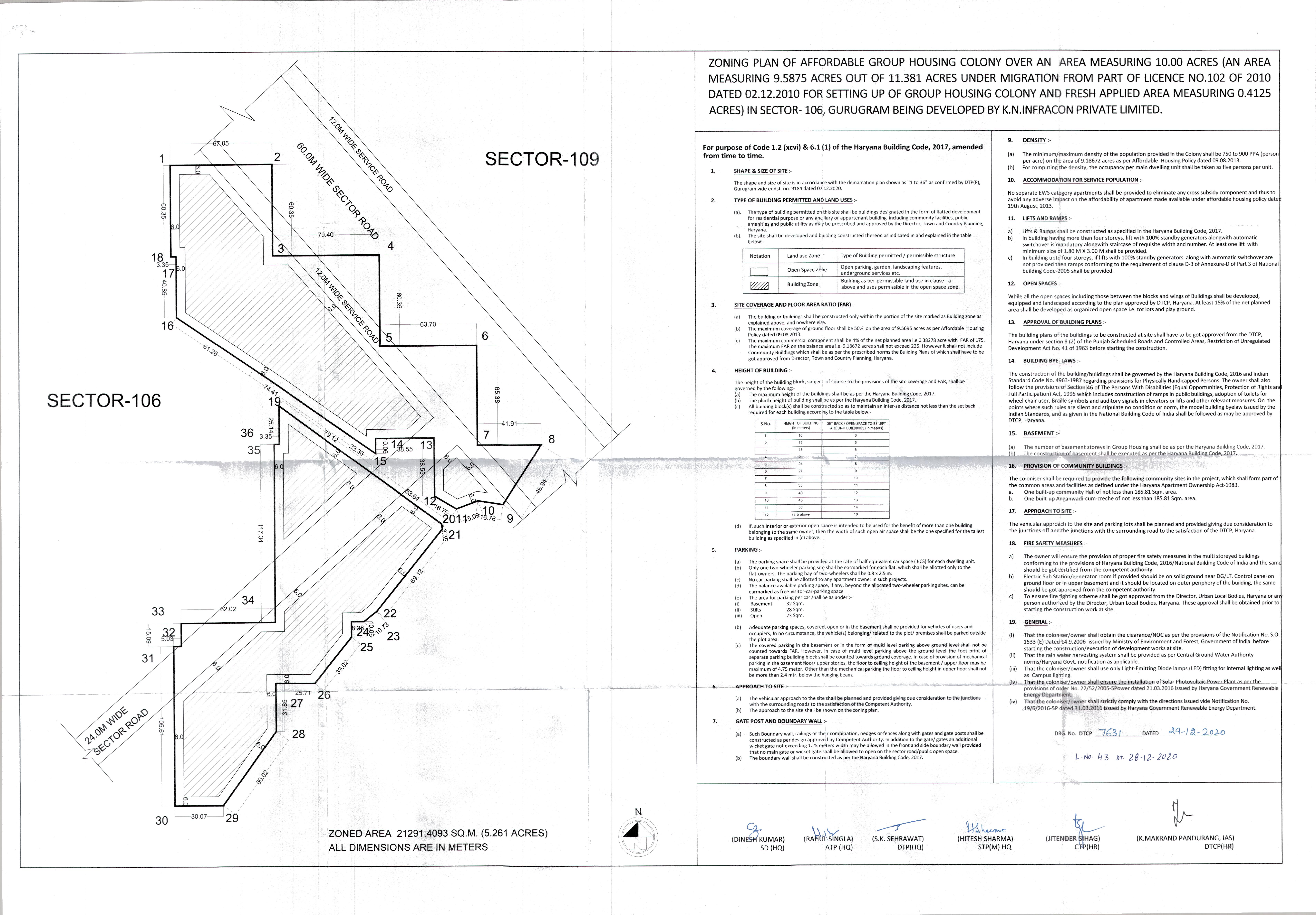
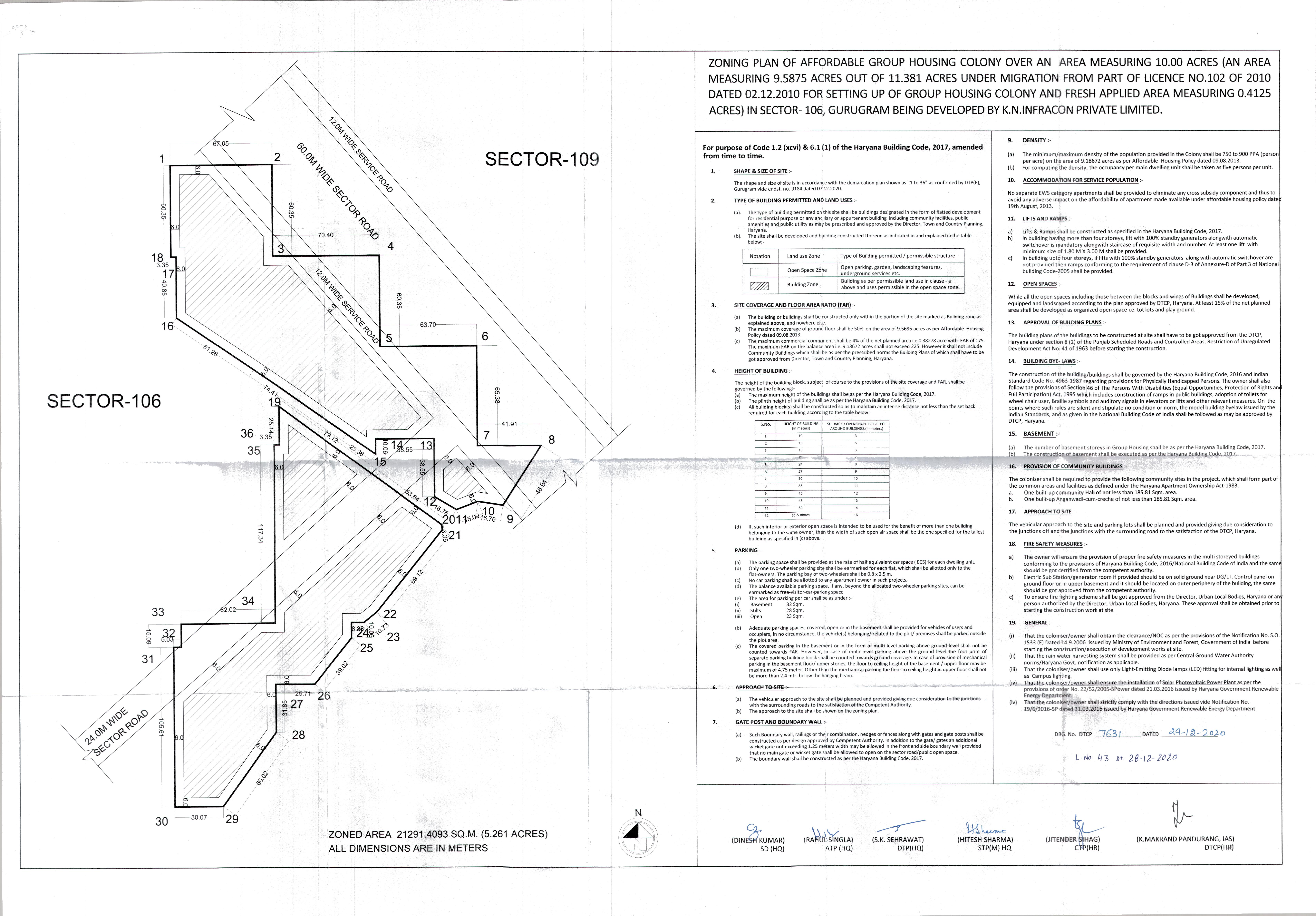
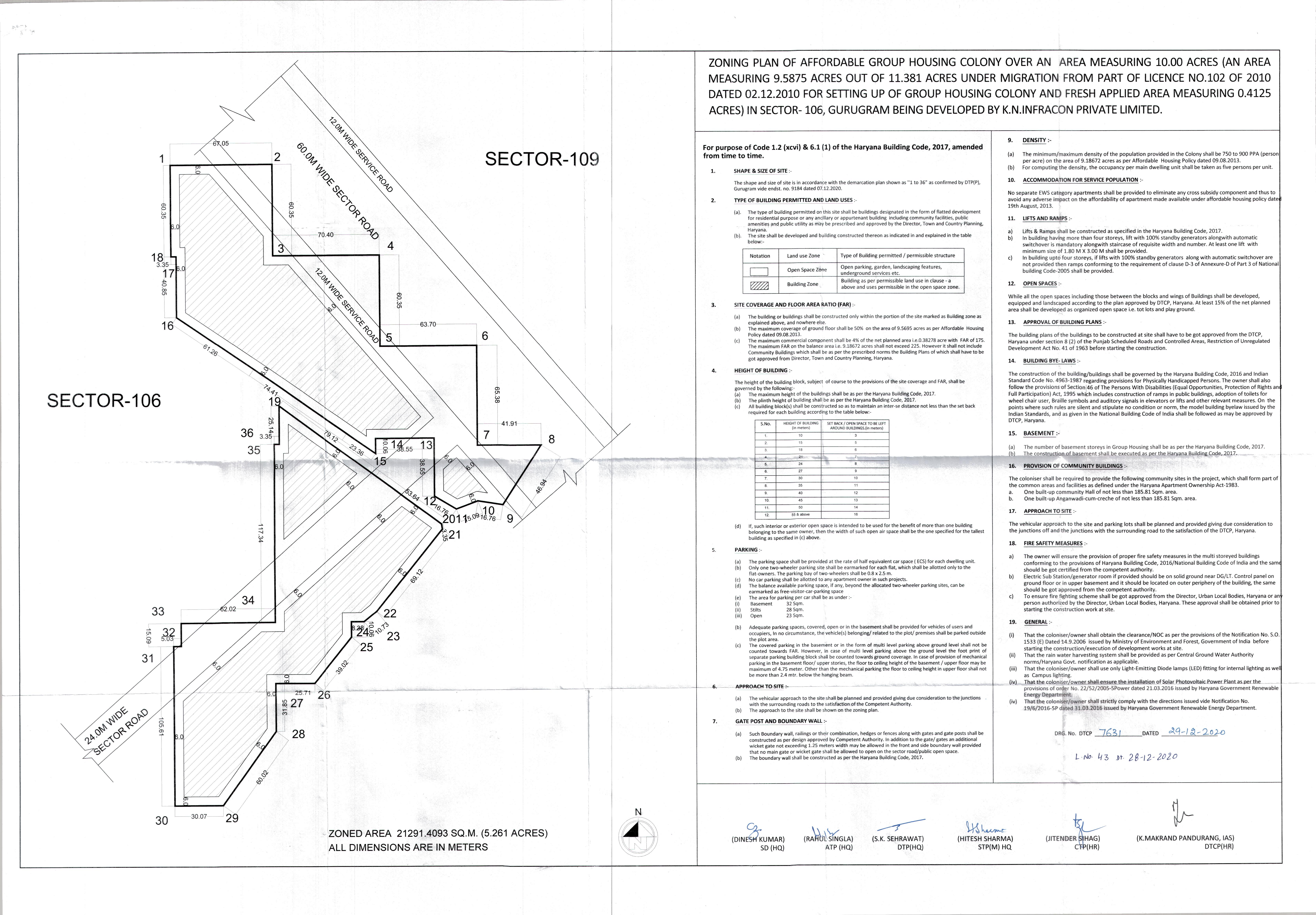
THE SKYLINE
VILLAGE BABUPUR, SECTOR-106
GURGAON
GURUGRAM
01246036000
9899076262 (Number Shared by Promoter in Public)
neeraj.mishra@mrgworld.com
NEERAJ MISHRA
01246036000
9899076262 (Number Shared by Promoter in Public)
neeraj.mishra@mrgworld.com








As per sub-rule(2) of rule 3 of the Haryana Real Estate (Regulation and Development) Rules,2017, the fee for registration of the project as has been calculated as follows:
-----------------------------------------------------------------------------------------------------------------------
-----------------------------------------------------------------------------------------------------------------------
-----------------------------------------------------------------------------------------------------------------------
-----------------------------------------------------------------------------------------------------------------------
2. The aforesaid fees is hereby deposited vide following Drafts/ Banker’s Cheques:-

Sr No.Draft/Cheque No.Draft DateAmountPayee BankPayable To
130407-06-20212275870AU SMALL FINANCE BANKHRERA Gurugram
230507-06-2021913942AU SMALL FINANCE BANKHRERA Gurugram







10 (Acre)
2.40
2.40
10 (Acre)
43 of 2020 (28-12-2020)
Yes







37565.79 Lakhs
5481 Lakhs
23026.25 Lakhs
1491.90 Lakhs
6866.26 Lakhs




Sr. No.Land area under usageArea of land (Acres)
1PLOTS TO BE SOLD 0
2LAND AREA TO BE USED FOR CONSTRUCTION OF APARTMENTS 1.832
3CONSTRUCTION OF ROADS 2.4502
4PAVEMENTS 0
5PARKS AND PLAYGROUNDS 1.9158
6GREEN BELTS 0
7VEHICLE PARKINGS 1.353
8ELECTRICITY SUB-STATION 0.109
9CLUB HOUSE 0.188
10SEWAGE AND SOLID WASTE TREATMENT FACILITY 0
11AREA TO BE LEFT FOR TRANSFERRING TO THE GOVERNMENT FOR COMMUNITY SERVICES 0
12ANY OTHER 0.7803
13COMMERCIAL 1.0535
Total9.6818




FacilityExternal/ connecting service to be provided by (Name the agency)Whether Approval taken from the agency concerned. Yes/No (Annex details in folder C)
ROADSNANo
WATER SUPPLYGMDAYes
ELECTRICITYDHBVNYes
SEWAGE DISPOSALGMDAYes
STORM WATER DRAINAGENANo




Sr. No.Name of the facilityEstimated cost (In Lakhs)(Within the project area only)Remarks: Yet to be prepared / Submitted to HUDA, Town & Country Planning Department/ as per project report etc. (Annex relevant documents showing costing details etc. in folder C)
1INTERNAL ROADS AND PAVEMENTS216.35SUBMITTED TO TOWN & COUNTRY PLANNING
2WATER SUPPLY SYSTEM525.70SUBMITTED TO TOWN & COUNTRY PLANNING
3STORM WATER DRAINAGE113.44SUBMITTED TO TOWN & COUNTRY PLANNING
4ELECTRICITY SUPPLY SYSTEM0YET TO BE PREPARED
5SEWAGE TREATMENT & GARBAGE DISPOSAL293.05SUBMITTED TO TOWN & COUNTRY PLANNING
6STREET LIGHTING38.37SUBMITTED TO TOWN & COUNTRY PLANNING
7SECURITY AND FIRE FIGHTING0YET TO BE PREPARED
8PLAYGROUNDS AND PARKS0YET TO BE PREPARED
9CLUB HOUSE/COMMUNITY CENTRE0YET TO BE PREPARED
10SHOPPING AREA0YET TO BE PREPARED
11RENEWABLE ENERGY SYSTEM0YET TO BE PREPARED
12SCHOOL0YET TO BE PREPARED
13HOSPITAL/DISPENSARY0YET TO BE PREPARED
14ANY OTHER304.99SUBMITTED TO TOWN & COUNTRY PLANNING


29-12-2020 (date)
12-05-2021 (date)
15-07-2021
30-06-2025
Sr. No Plot Area(In Square Meter)Number of plots in the project
1 0 0
Total0


TypeCarpet area(In Square Meter)Number of apartmentsNumber of towers
Apartment/Shops/Other Buildings77398.064133412
Apartment/Shops/Other Buildings36001
Apartment/Shops/Other Buildings50171834





Expenditure incurred till the date of application (In Lakhs)

ParticularsExpenditure
Apartments0
Shops0
Plots0
Construction Cost620.86
EDC117.26
Land Cost1275.45
Other Cost148.75

Expenditure to be made in each quarter (In Lakhs)

ParticularsYear-2021
Jan-MarApr-JuneJuly-SepOct-Dec
Apartments00
Shops00
Plots00
Other Cost532.55537.08
Construction Cost960.511413.43
EDC58.63

ParticularsYear-2022
Jan-MarApr-JuneJuly-SepOct-Dec
Apartments0000
Shops0000
Plots0000
Land Cost1689.982420.78
EDC58.6358.63
Construction Cost2088.542144.522045.241945.96
Other Cost543.83544.39372.85371.86

ParticularsYear-2023
Jan-MarApr-JuneJuly-SepOct-Dec
Apartments0000
Shops0000
Plots0000
Construction Cost1846.681846.681846.681846.68
EDC58.6358.63
Other Cost370.87370.87370.87370.87

ParticularsYear-2024
Jan-MarApr-JuneJuly-SepOct-Dec
Apartments000
Shops000
Plots000
Other Cost370.87365.90363.52
EDC58.63
Construction Cost1846.681350.271112.00




Expenditure incurred till the date of application (In Lakhs)

ParticularsExpenditure
Roads & Pavements0
Water Supply System0
Sewerage treatment & garbage disposal0
Electricity Supply System0
Storm Water Drainage0
Parks and Playgrounds0
Clubhouse/community centres0
Shopping area0
Other0

Expenditure to be made in each quarter (In Lakhs)

ParticularsExpenditure to be made in each quarter (2024)
Apr-JuneJuly-SepOct-DecJan-Mar












Yes
No
HDFC BANK LIMITED, GROUND FLOOR, JEHANGIR BUILDING, M.G ROAD, FORT, MUMBAI-400001
57500000659021
HDFC0000060
400240015
60
Ashok Kumar 125, Deepali enclave, Pitampura, New Delhi-110034
attached











Yes
No
Yes
Yes
Yes
Yes
Yes
Yes
Yes
Yes


Yes
Yes
Yes
Yes
Yes
No
Yes
Yes
Statutory Approvals Statutory Approvals StatusDate
I. ZP-1456/SD(DK)/2021/11725ALREADY BEEN OBTAINED12-05-2021








Yes


Yes


Yes













SPECIFICATION OF CONSTRUCTION
Specification of apartments and other buildings including the following:
1FLOORING DETAILS OF VARIOUS PARTS OF HOUSEVITRIFIED & CERAMIC TILES
2WALL FINISHING DETAILSOBD
3KITCHEN DETAILSISI MARKED
4BATHROOM FITTINGSISI MARKED
5WOOD WORK ETCNOT PROVIDING
6DOORS AND WINDOS FRAMESWOODEN/ALUMINIUMN /UPVC/MS/WPC
7GLASS WORKISI MARKED
8ELECTRIC FITTINGSISI MARKED
9CONDUCTING AND WIRING DETAILSISI MARKED
10CUPBOARD DETAILSNOT PROVIDING
11WATER STORAGERCC/PVC
12LIFT DETAILSISI MARKED
13EXTERNAL GLAZINGSWOODEN/ALUMINIUMN /UPVC/MS/WPC
13.1WINDOWS/GLAZINGSWOODEN/ALUMINIUMN /UPVC/MS/WPC
14DOORSFLUSH DOOR/MS DOOR/PVC DOOR/WPC DOOR
14.1MAIN DOORSFLUSH DOOR/MS DOOR
14.2INTERNAL DOORSFLUSH DOOR/MS DOOR/PVC DOOR/WPC DOOR
15AIR CONDITIONINGNOT PROVIDING
16ELECTRICAL FITTINGSISI MARKED
17CNG PIPE LINENOT PROVIDING
18PROVISION OF WIFI AND BROADBAND FACILITYNOT PROVIDING
19EXTERNAL FINISHING/COLOUR SCHEMEEXTERNAL GRADE PAINT
20INTERNAL FINISHINGOBD
SPECIFICATION UNIT WISE
1 . LIVING/DINING/FOYER/FAMILY LOUNGE
1 . 1 FLOORVITRIFIED TILE/PORCELAIN
1 . 2 WALLSOBD
1 . 3 CEILINGOBD
2 . MASTER BEDROOM/DRESSROOM
2 . 1 FLOORVITRIFIED TILE/PORCELAIN
2 . 2 WALLSOBD
2 . 3 CEILINGOBD
2 . 4 MODULAR WARDROBESNA
3 . MASTER TOILET
3 . 1 FLOORCERAMIC TILE(ANTI-SKID)
3 . 2 WALLSCERAMIC TILE
3 . 3 CEILINGGRID CEILING
3 . 4 COUNTERSNA
3 . 5 SANITARY WARE/CP FITTINGSISI MARKED
3 . 6 FITTING/FIXTURESISI MARKED
4 . BED ROOMS
4 . 1 FLOORVITRIFIED TILE/PORCELAIN
4 . 2 WALLSOBD
4 . 3 CEILINGOBD
4 . 4 WARDROBESNA
5 . TOILET
5 . 1 FLOORCERAMIC TILE(ANTI-SKID)
5 . 2 WALLSOBD
5 . 3 CEILINGOBD
5 . 4 COUNTERSNA
5 . 5 SANITARY WARE/CP FITTINGSISI MARKED
5 . 6 FIXTURESISI MARKED
6 . KITCHEN
6 . 1 FLOORVITRIFIED TILE/PORCELAIN
6 . 2 WALLSOBD
6 . 3 CEILINGOBD
6 . 4 COUNTERSBLACK GRANITE
6 . 5 FIXTURESISI MARKED
6 . 6 KITCHEN APPLIANCESNA
7 . UTILITY ROOMS/UTILITY BALCONY/TOILET
7 . 1 FLOORCREAMIC
7 . 2 WALLS & CEILINGOBD
7 . 3 TOILETNA
7 . 4 BALCONYNA
8 . SIT-OUTS
8 . 1 FLOORNA
8 . 2 WALLS & CEILINGNA
8 . 3 RAILINGSNA
8 . 4 FIXTURESNA












Sr. No.Document DescriptionDate of Document UploadView Document
1 IN PRINCIPLE APPROVAL- COD AND LICENSE 20-07-2021 View Document
2 LICENSE K N INFRACON 10 ACRES 20-07-2021 View Document
3 TOWER 9 ELEVATION AND SECTION 20-07-2021 View Document
4 SITE LAYOUT FIRE LAYOUT 20-07-2021 View Document
5 AAI NOC SECTOR-106 20-07-2021 View Document
6 APPROVAL FRESH WATER SUPPLY 20-07-2021 View Document
7 APPROVAL SEWARGE CONNECTION 20-07-2021 View Document
8 APPROVAL STP TREATED WATER 20-07-2021 View Document
9 ARAVALI APPROVAL 20-07-2021 View Document
10 BR III K N INFRACON, SECTOR 106, 10 ACRES 20-07-2021 View Document
11 COD AND TOL PERMISSION 20-07-2021 View Document
12 DHBVN APPROVAL 20-07-2021 View Document
13 APPROVED DEMARCATION PLAN 20-07-2021 View Document
14 EC MINUTES 20-07-2021 View Document
15 EC 20-07-2021 View Document
16 FIRE FIGHTING ACKNOWLEDGEMENT 20-07-2021 View Document
17 FOREST PERMISSION 20-07-2021 View Document
18 IGBC CERTIFICATE 20-07-2021 View Document
19 IN PRINCIPLE APPROVAL- COD KN 20-07-2021 View Document
20 IN PRINCIPLE APPROVAL-TF OF LICENCE KN 20-07-2021 View Document
21 LC IV 20-07-2021 View Document
22 LICENCE CLEAR COPY 20-07-2021 View Document
23 LOI 10 ACRES 20-07-2021 View Document
24 SERVICE PLAN ESTIMATE NEW 20-07-2021 View Document
25 SERVICE PLAN ESTIMATE 20-07-2021 View Document
26 SEWERAGE ASSURANCE AND STP 20-07-2021 View Document
27 SIZRA 20-07-2021 View Document
28 ZONING PLAN 20-07-2021 View Document
29 CASH FLOW STATEMENT OF THE PROPOSED PROJECT 20-07-2021 View Document
30 CERTIFICATE FROM A CHARTERED ACCOUNTANT CERTIFYING THAT THE INFORMSTION PROVIDED BY THE APPLICANT IN FORM REP-1-C-X IS CORRECT AS PER THE BOOKS OF ACCOUNTS/ BALANCE SHEET OF THE APPLICANT 20-07-2021 View Document
31 JAMABANDI & MUTATION 23.06.2021 20-07-2021 View Document
32 JAMABANDI- 10.964 ACRES 20-07-2021 View Document
33 COMMERCIAL BUILDING ELEVATIONS 20-07-2021 View Document
34 LATEST MUTATION AND JAMABANDI- 19062021 20-07-2021 View Document
35 SALE DEED -KN INFRACON & TRUETRUST (SEC-106) DT 23.10.2019 20-07-2021 View Document
36 SALE DEED -KN INFRACON & TRUETRUST (SEC-106) 20-07-2021 View Document
37 BASEMENT LAYOUT 20-07-2021 View Document
38 COMMERCIAL BUILDING LAYOUT 20-07-2021 View Document
39 COMMUNITY CRECHE AND MULITLEVEL PARKING 20-07-2021 View Document
40 PL-MRG-SITE STORM 20-07-2021 View Document
41 PL-MRG-SITE WATER SUPPLY 20-07-2021 View Document
42 PL-MRG-SITE-SEWER 20-07-2021 View Document
43 SITE GROUND FLOOR LAYOUT 20-07-2021 View Document
44 GREEN AREA 20-07-2021 View Document
45 PARKING 20-07-2021 View Document
46 SITE LAYOUT PLAN 20-07-2021 View Document
47 TOWER 1 AREA DIAGRAM 20-07-2021 View Document
48 TOWER 3 AND 4 SECTIONS 20-07-2021 View Document
49 TOWER 1 ELEVATION 20-07-2021 View Document
50 TOWER 1 LAYOUT 20-07-2021 View Document
51 TOWER 1 SECTIONS 20-07-2021 View Document
52 TOWER 2 AREA DIAGRAMS 20-07-2021 View Document
53 TOWER 2 ELEVATIONS 20-07-2021 View Document
54 TOWER 2 LAYOUT 20-07-2021 View Document
55 TOWER 2 SECTIONS 20-07-2021 View Document
56 TOWER 3 AND 4 AREA DIAGRAMS 20-07-2021 View Document
57 TOWER 7 8 9 10 11 AREA DIAGRAMS 20-07-2021 View Document
58 TOWER 3 AND 4 ELEVATIONS 20-07-2021 View Document
59 TOWER 3 AND 4 LAYOUT 20-07-2021 View Document
60 TOWER 5 AREA DIAGRAMS AND CARPET AREA 20-07-2021 View Document
61 TOWER 5 ELEVATIONS 20-07-2021 View Document
62 TOWER 5 LAYOUT AREA DIAGRAMS AND AREA SHEETS 20-07-2021 View Document
63 TOWER 5 LAYOUT 20-07-2021 View Document
64 TOWER 5 SECTIONS 20-07-2021 View Document
65 TOWER 6 LAYOUT 20-07-2021 View Document
66 TOWER 7 8 10 11 ELEVATIONS 20-07-2021 View Document
67 TOWER1 LAYOUT AND CARPET AREA 20-07-2021 View Document
68 COPY OF LICENSE ALONG WITH SCHEDULE OF LAND 08-06-2021 View Document
69 SERVICE PLANS SHOWING THE SERVICES ON THE LAYOUT PLAN 08-06-2021 View Document
70 IN CASE OF PLOTTED COLONY, THE LATEST LAYOUT PLAN 08-06-2021 View Document
71 IN CASE OF GROUP HOUSING/ COMMERCIAL SITES, A COPY OF THE APPROVED SITE PLAN 08-06-2021 View Document
72 A COMPLETE SET OF THE LAST APPROVED BUILDING PLANS 08-06-2021 View Document
73 NON DEFAULT CERTIFICATE FROM A CHARTERED ACCOUNTANT 08-06-2021 View Document
74 DECLARATION SUPPORTED BY AFFIDAVIT DULY SIGNED BY THE PROMOTER TO BE ENCLOSED. 08-06-2021 View Document
75 DOCUMENTS RELATING TO THE ENTRY OF LICENSE AND COLLABORATION AGREEMENT IN THE REVENUE RECORD 08-06-2021 View Document