HRERA GurugramTemp Project Id : RERA-GRG-PROJ-786-2020
Submission Date : 12-01-2021 11:51:39 AM
Applicant Type : Firm
Project Type: NEW


ADANI M2K PROJECTS LLP
PLOT 83, ADANI HOUSE, SECTOR 32, INSTITUTIONAL AREA, GURUGRAM- 122001
01242555155
9910555678 (Number Shared by Promoter in Public)
Praveen.shukla@adani.com
AAA5931
AAUFA0904F













OYSTER ARCADE
VILLAGE KHERKI MAJRA, SECTOR 102 GURUGRAM
KADIPUR ST
GURUGRAM
01242555155
8448083387 (Number Shared by Promoter in Public)
aman.bagga@adani.com
MR AMAN BAGGA
01242555155
8448083387 (Number Shared by Promoter in Public)
aman.bagga@adani.com








As per sub-rule(2) of rule 3 of the Haryana Real Estate (Regulation and Development) Rules,2017, the fee for registration of the project as has been calculated as follows:
-----------------------------------------------------------------------------------------------------------------------
-----------------------------------------------------------------------------------------------------------------------
-----------------------------------------------------------------------------------------------------------------------
-----------------------------------------------------------------------------------------------------------------------
2. The aforesaid fees is hereby deposited vide following Drafts/ Banker’s Cheques:-

Sr No.Draft/Cheque No.Draft DateAmountPayee BankPayable To
150747609-12-2020202350ICICI BANKHRERA Gurugram
250747909-12-2020101200ICICI BANKHRERA Gurugram
350892010-06-2021151800ICICI BANK BY DDHRERA Gurugram
4315990915-07-2021151721ICICI BANK BY RTGSHRERA Gurugram







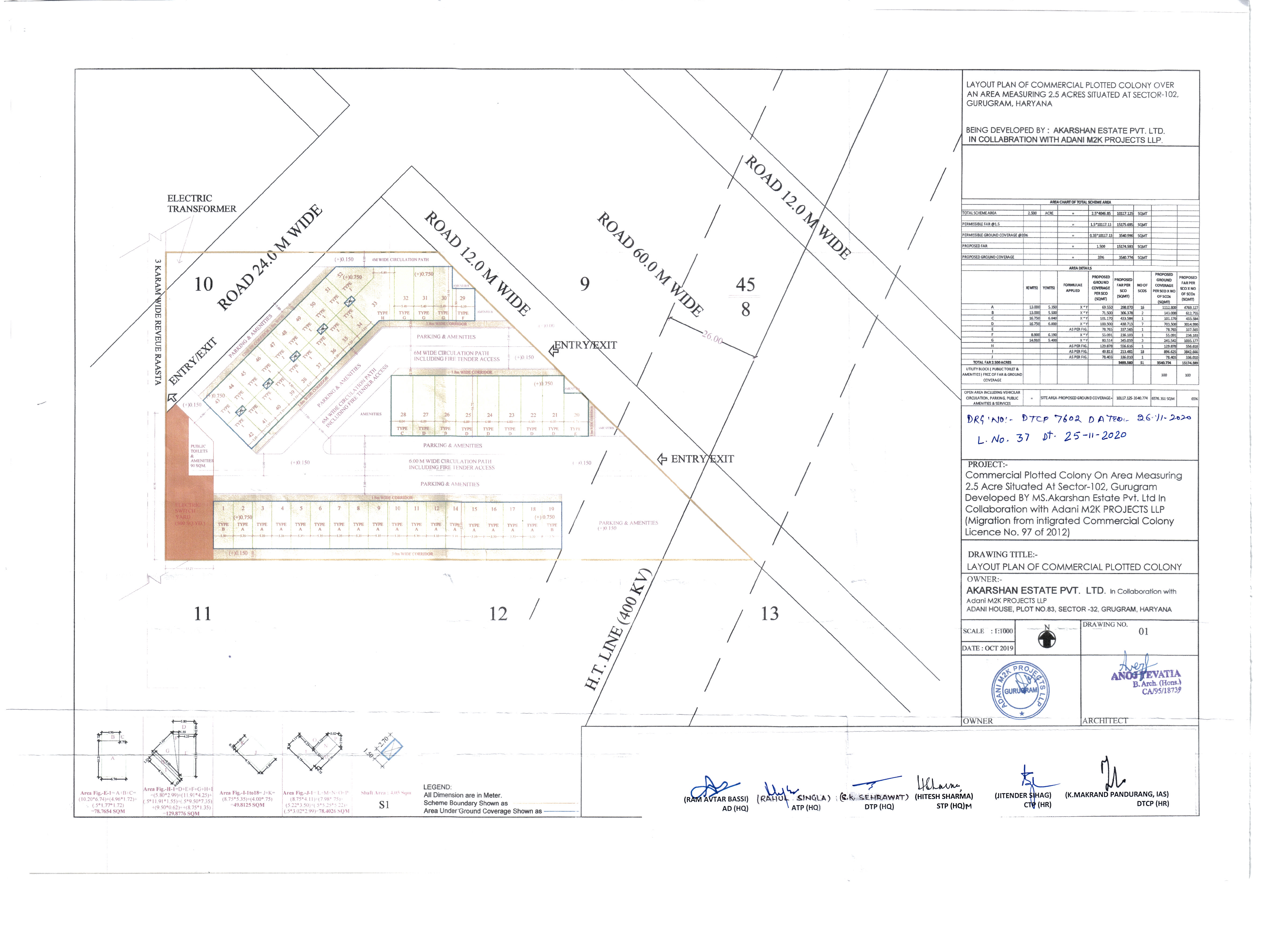
2.5 (Acre)
1.5
1.5
2.5 (Acre)
37 OF 2020 DATED 25.11.2020
No
Address     PLOT 83, SECTOR 32, INSTITUTIONAL AREA, GURUGRAM- 122001
Annexure-B- AS A COLLABORATOR
JDA WAS EXECUTED BEFORE GRANT OF LICENCE
Yes
25 % OF SALE PROCEEDS TO THE COLLABORATOR 75 % OF SALE PROCEEDS TO THE LICENCE HOLDER. (AS PER THE SUPPLEMENTARY JDA DATED 16.01.2020)
No
Yes
Yes







2518.81 Lakhs
93.01 Lakhs
0 Lakhs
293.53 Lakhs
2132.27 Lakhs




Sr. No.Land area under usageArea of land (Acres)
1PLOTS TO BE SOLD 0.875
2LAND AREA TO BE USED FOR CONSTRUCTION OF APARTMENTS 0
3CONSTRUCTION OF ROADS 0
4PAVEMENTS 0
5PARKS AND PLAYGROUNDS 0
6GREEN BELTS 0
7VEHICLE PARKINGS 0
8ELECTRICITY SUB-STATION 0.104
9CLUB HOUSE 0
10SEWAGE AND SOLID WASTE TREATMENT FACILITY 0.027
11AREA TO BE LEFT FOR TRANSFERRING TO THE GOVERNMENT FOR COMMUNITY SERVICES 0
12ANY OTHER 0
13ROADS 1.412
14TOILET 0.022
15UGT OR WTP UNDERGROUND 0.032
16RAIN WATER HARVESTING SYSTEM UNDERGROUND 0.028
Total2.5




FacilityExternal/ connecting service to be provided by (Name the agency)Whether Approval taken from the agency concerned. Yes/No (Annex details in folder C)
ROADSALREADY CONNECTEDYes
WATER SUPPLYGMDAYes
ELECTRICITYDHBVNYes
SEWAGE DISPOSALGMDAYes
STORM WATER DRAINAGEGMDAYes




Sr. No.Name of the facilityEstimated cost (In Lakhs)(Within the project area only)Remarks: Yet to be prepared / Submitted to HUDA, Town & Country Planning Department/ as per project report etc. (Annex relevant documents showing costing details etc. in folder C)
1INTERNAL ROADS AND PAVEMENTS95.69SUBMITTED TO TOWN & COUNTRY PLANNING
2WATER SUPPLY SYSTEM97.23SUBMITTED TO TOWN & COUNTRY PLANNING
3STORM WATER DRAINAGE43.94SUBMITTED TO TOWN & COUNTRY PLANNING
4ELECTRICITY SUPPLY SYSTEM0SUBMITTED TO TOWN & COUNTRY PLANNING
5SEWAGE TREATMENT & GARBAGE DISPOSAL42.09SUBMITTED TO TOWN & COUNTRY PLANNING
6STREET LIGHTING9.59SUBMITTED TO TOWN & COUNTRY PLANNING
7SECURITY AND FIRE FIGHTING0SUBMITTED TO TOWN & COUNTRY PLANNING
8PLAYGROUNDS AND PARKS4.99SUBMITTED TO TOWN & COUNTRY PLANNING
9CLUB HOUSE/COMMUNITY CENTRE0SUBMITTED TO TOWN & COUNTRY PLANNING
10SHOPPING AREA0SUBMITTED TO TOWN & COUNTRY PLANNING
11RENEWABLE ENERGY SYSTEM0SUBMITTED TO TOWN & COUNTRY PLANNING
12SCHOOL0SUBMITTED TO TOWN & COUNTRY PLANNING
13HOSPITAL/DISPENSARY0SUBMITTED TO TOWN & COUNTRY PLANNING
14ANY OTHER0SUBMITTED TO TOWN & COUNTRY PLANNING


26-11-2020 (date)
NA (date)
01-01-2021
24-11-2025
Sr. No Plot Area(In Square Meter)Number of plots in the project
1 69.550 16
2 71.5 2
3 101.170 1
4 100.500 7
5 78.765 1
6 55.091 1
7 80.514 3
8 129.878 1
9 49.813 18
10 78.403 1
Total51


TypeCarpet area(In Square Meter)Number of apartmentsNumber of towers
Apartment/Shops/Other Buildings000





Expenditure incurred till the date of application (In Lakhs)

ParticularsExpenditure
Apartments0
Shops0
Plots0
Conversion Charges127.48
EDC464.25
IDC45.00
LAND COST93.01
Licence Fess675.00
OTHER COST1.52

Expenditure to be made in each quarter (In Lakhs)

ParticularsYear-2021
Jan-MarApr-JuneJuly-SepOct-Dec
Apartments000
Shops000
Plots000
IDC106.760
EDC192.2448.06
LAND COST00
OTHERS48.1916.69

ParticularsYear-2022
Jan-MarApr-JuneJuly-SepOct-Dec
Apartments0000
Shops0000
Plots0000
OTHERS15.2313.5012.3310.87
LAND COST0000
EDC48.0648.0648.0648.06
IDC0000

ParticularsYear-2023
Jan-MarApr-JuneJuly-SepOct-Dec
Apartments000
Shops000
Plots000
LAND COST000
OTHERS9.427.871.45
IDC000
EDC48.0648.0648.06




Expenditure incurred till the date of application (In Lakhs)

ParticularsExpenditure
Roads & Pavements0
Water Supply System0
Sewerage treatment & garbage disposal0
Electricity Supply System0
Storm Water Drainage0
Parks and Playgrounds0
Clubhouse/community centres0
Shopping area0
Other0
Electrical sub station0
STP0
Street lighting0
Underground water tank0

Expenditure to be made in each quarter (In Lakhs)

ParticularsYear-2021
Jan-MarApr-JuneJuly-SepOct-Dec
Roads & Pavements0000
Water Supply System0000
Sewerage treatment & garbage disposal0000
Electricity Supply System0000
Storm Water Drainage0000
Parks and Playgrounds0000
Clubhouse/community centres0000
Shopping area0000
Other0000
Street lighting00
Play grounds and parks00
Security and fire fighting00

ParticularsYear-2022
Jan-MarApr-JuneJuly-SepOct-Dec
Roads & Pavements008.6117.22
Water Supply System08.7517.5017.50
Sewerage treatment & garbage disposal0.764.929.4711.36
Electricity Supply System0000
Storm Water Drainage0.795.149.8911.86
Parks and Playgrounds0000
Clubhouse/community centres0000
Shopping area0000
Other0000
Security and fire fighting000
STREET LIGHTING2.59

ParticularsYear-2023
Jan-MarApr-JuneJuly-SepOct-Dec
Roads & Pavements25.8425.848.610
Water Supply System26.2517.5009.72
Sewerage treatment & garbage disposal9.471.8904.21
Electricity Supply System0000
Storm Water Drainage9.891.9804.39
Parks and Playgrounds1.351.351.800.50
Clubhouse/community centres0000
Shopping area0000
Other0000
STREET LIGHTING2.593.4500.96

ParticularsYear-2024
Jan-MarApr-JuneJuly-SepOct-Dec
Roads & Pavements0
Water Supply System0
Sewerage treatment & garbage disposal0
Electricity Supply System0
Storm Water Drainage0
Parks and Playgrounds0
Clubhouse/community centres0
Shopping area0
Other0
STREET LIGHTING0.96












Yes
No
INDUSIND BANK, SECTOR 31, GURUGRAM, HARYANA
251000555551
INDB0000518
110234047
518
Mr Atul Jain Mr. Devkishan Karnani Plot No. 83, Adani House, Sector 32, Gurugram 122001
Uploaded











Yes
No
No
No
No
No
No
No
No
No


Yes
Yes
Yes
Yes
Yes
No
Yes
Yes
Statutory Approvals Statutory Approvals StatusDate
I. LICENCE 37 OF 2020ALREADY BEEN OBTAINED25-11-2020
II. WATER SUPPLY (DRINKING)ALREADY BEEN OBTAINED30-06-2021
III. SEWAGE DISPOSALALREADY BEEN OBTAINED25-06-2021
IV. STORM WATER DRAINAGEALREADY BEEN OBTAINED25-06-2021
V. LAYOUT PLANALREADY BEEN OBTAINED26-11-2020








Yes


Yes


As per RERA Norms













SPECIFICATION OF CONSTRUCTION
Specification of apartments and other buildings including the following:
1FLOORING DETAILS OF VARIOUS PARTS OF HOUSENA
2WALL FINISHING DETAILSNA
3KITCHEN DETAILSNA
4BATHROOM FITTINGSNA
5WOOD WORK ETCNA
6DOORS AND WINDOS FRAMESNA
7GLASS WORKNA
8ELECTRIC FITTINGSNA
9CONDUCTING AND WIRING DETAILSNA
10CUPBOARD DETAILSNA
11WATER STORAGENA
12LIFT DETAILSNA
13EXTERNAL GLAZINGSNA
13.1WINDOWS/GLAZINGSNA
14DOORSNA
14.1MAIN DOORSNA
14.2INTERNAL DOORSNA
15AIR CONDITIONINGNA
16ELECTRICAL FITTINGSNA
17CNG PIPE LINENA
18PROVISION OF WIFI AND BROADBAND FACILITYNA
19EXTERNAL FINISHING/COLOUR SCHEMENA
20INTERNAL FINISHINGNA
SPECIFICATION UNIT WISE
1 . LIVING/DINING/FOYER/FAMILY LOUNGE
1 . 1 FLOORNA
1 . 2 WALLSNA
1 . 3 CEILINGNA
2 . MASTER BEDROOM/DRESSROOM
2 . 1 FLOORNA
2 . 2 WALLSNA
2 . 3 CEILINGNA
2 . 4 MODULAR WARDROBESNA
3 . MASTER TOILET
3 . 1 FLOORNA
3 . 2 WALLSNA
3 . 3 CEILINGNA
3 . 4 COUNTERSNA
3 . 5 SANITARY WARE/CP FITTINGSNA
3 . 6 FITTING/FIXTURESNA
4 . BED ROOMS
4 . 1 FLOORNA
4 . 2 WALLSNA
4 . 3 CEILINGNA
4 . 4 WARDROBESNA
5 . TOILET
5 . 1 FLOORNA
5 . 2 WALLSNA
5 . 3 CEILINGNA
5 . 4 COUNTERSNA
5 . 5 SANITARY WARE/CP FITTINGSNA
5 . 6 FIXTURESNA
6 . KITCHEN
6 . 1 FLOORNA
6 . 2 WALLSNA
6 . 3 CEILINGNA
6 . 4 COUNTERSNA
6 . 5 FIXTURESNA
6 . 6 KITCHEN APPLIANCESNA
7 . UTILITY ROOMS/UTILITY BALCONY/TOILET
7 . 1 FLOORNA
7 . 2 WALLS & CEILINGNA
7 . 3 TOILETNA
7 . 4 BALCONYNA
8 . SIT-OUTS
8 . 1 FLOORNA
8 . 2 WALLS & CEILINGNA
8 . 3 RAILINGSNA
8 . 4 FIXTURESNA












Sr. No.Document DescriptionDate of Document UploadView Document
1COPY OF LICENSE ALONG WITH SCHEDULE OF LAND14-12-2020 View Document
2IN CASE OF PLOTTED COLONY, THE LATEST LAYOUT PLAN14-12-2020 View Document
3DEMARCATION PLAN14-12-2020 View Document
4NON DEFAULT CERTIFICATE FROM A CHARTERED ACCOUNTANT14-12-2020 View Document
5SERVICE PLANS SHOWING THE SERVICES ON THE LAYOUT PLAN07-12-2021 View Document
6DOCUMENTS RELATING TO THE ENTRY OF LICENSE AND COLLABORATION AGREEMENT IN THE REVENUE RECORD07-12-2021 View Document
7ZONING PLAN07-12-2021 View Document
8IN CASE OF GROUP HOUSING/ COMMERCIAL SITES, A COPY OF THE APPROVED SITE PLAN07-12-2021 View Document
9A COMPLETE SET OF THE LAST APPROVED BUILDING PLANS07-12-2021 View Document
10CASH FLOW STATEMENT OF THE PROPOSED PROJECT07-12-2021 View Document
11DECLARATION SUPPORTED BY AFFIDAVIT DULY SIGNED BY THE PROMOTER TO BE ENCLOSED.07-12-2021 View Document
12E DOCUMENT 5107-12-2021 View Document
13A SCO 102 SUPERIMPOSED LAYOUT07-12-2021 View Document
14CA CERTIFICATE REP-I07-12-2021 View Document
15 COORDINATED LAYOUT07-12-2021 View Document
16REP II07-12-2021 View Document
17STORM WATER LAYOUT07-12-2021 View Document
18EXTERNAL LIGHT LAYOUT13-12-2021 View Document
19ROAD LAYOUT13-12-2021 View Document
20SEWER WATER DRAINAGE LAYOUT13-12-2021 View Document
21WATER SUPPLY LAYOUT13-12-2021 View Document
22CERTIFICATE FROM A CHARTERED ACCOUNTANT CERTIFYING THAT THE INFORMSTION PROVIDED BY THE APPLICANT IN FORM REP-1-C-X IS CORRECT AS PER THE BOOKS OF ACCOUNTS/ BALANCE SHEET OF THE APPLICANT13-12-2021 View Document
23SERVICE PLAN ESTIMATE APPROVAL LETTER13-12-2021 View Document