HRERA GurugramTemp Project Id : RERA-GRG-PROJ-763-2020
Submission Date : 03-04-2021 10:35:33 PM
Applicant Type : Company
Project Type: NEW




MILLENNIUM DIPLOMATS PVT.LTD.
1004 H-I,JMD MEGAPOLIS,SECTOR-48 SOHNA ROAD,GURUGRAM ,HARYANA
9540677722 (Number Shared by Promoter in Public)
diplomatsgolf@gmail.com
http://www.diplomatsgroup.in
XXXX738F
U45400DL2007PTC163434
 
 


 
 


 
 


 
 







DIPLOMATS GOLF LINK
VILLAGE SARAI ALWARDI,SECTOR-110
GURGAON
GURUGRAM
9212794033 (Number Shared by Promoter in Public)
Info@diplomatsgroup.in
RAM SHANKER SINGH
9212794033 (Number Shared by Promoter in Public)
info@diplomatsgroup.in








As per sub-rule(2) of rule 3 of the Haryana Real Estate (Regulation and Development) Rules,2017, the fee for registration of the project as has been calculated as follows:
-----------------------------------------------------------------------------------------------------------------------
-----------------------------------------------------------------------------------------------------------------------
-----------------------------------------------------------------------------------------------------------------------
-----------------------------------------------------------------------------------------------------------------------
2. The aforesaid fees is hereby deposited vide following Drafts/ Banker’s Cheques:-

Sr No.Draft/Cheque No.Draft DateAmountPayee BankPayable To
12578403-04-2021954338HDFC BANKHRERA Gurugram
22582611-05-2021700000HDFC BANKHRERA Gurugram
32595214-07-2021700000HDFC BANKHRERA Gurugram
42603309-08-2021162482HDFC BANKHRERA Gurugram







40610.14 (Sqr/mtrs)
2.37
2.37
40610.14 (Sqr/mtrs)
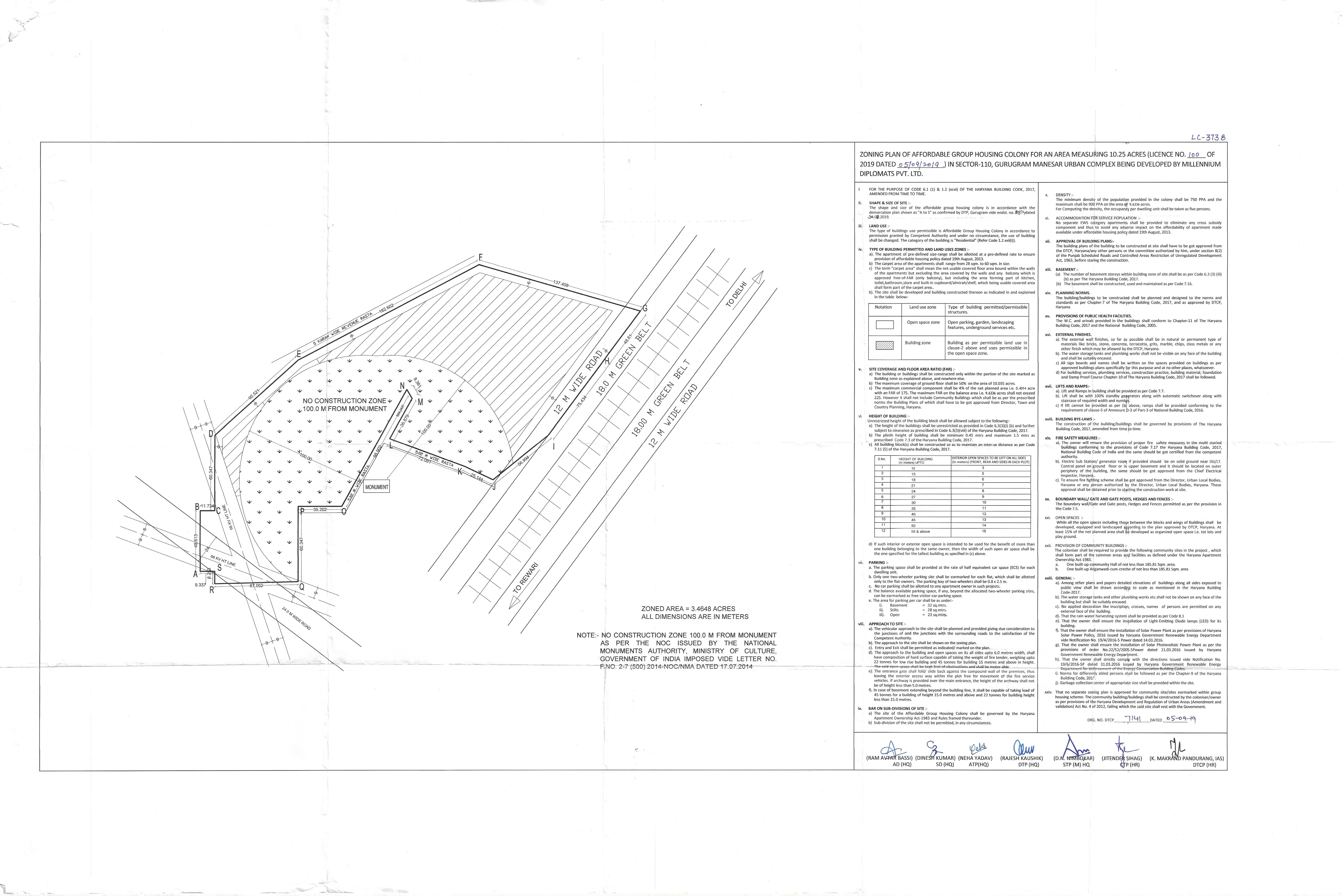
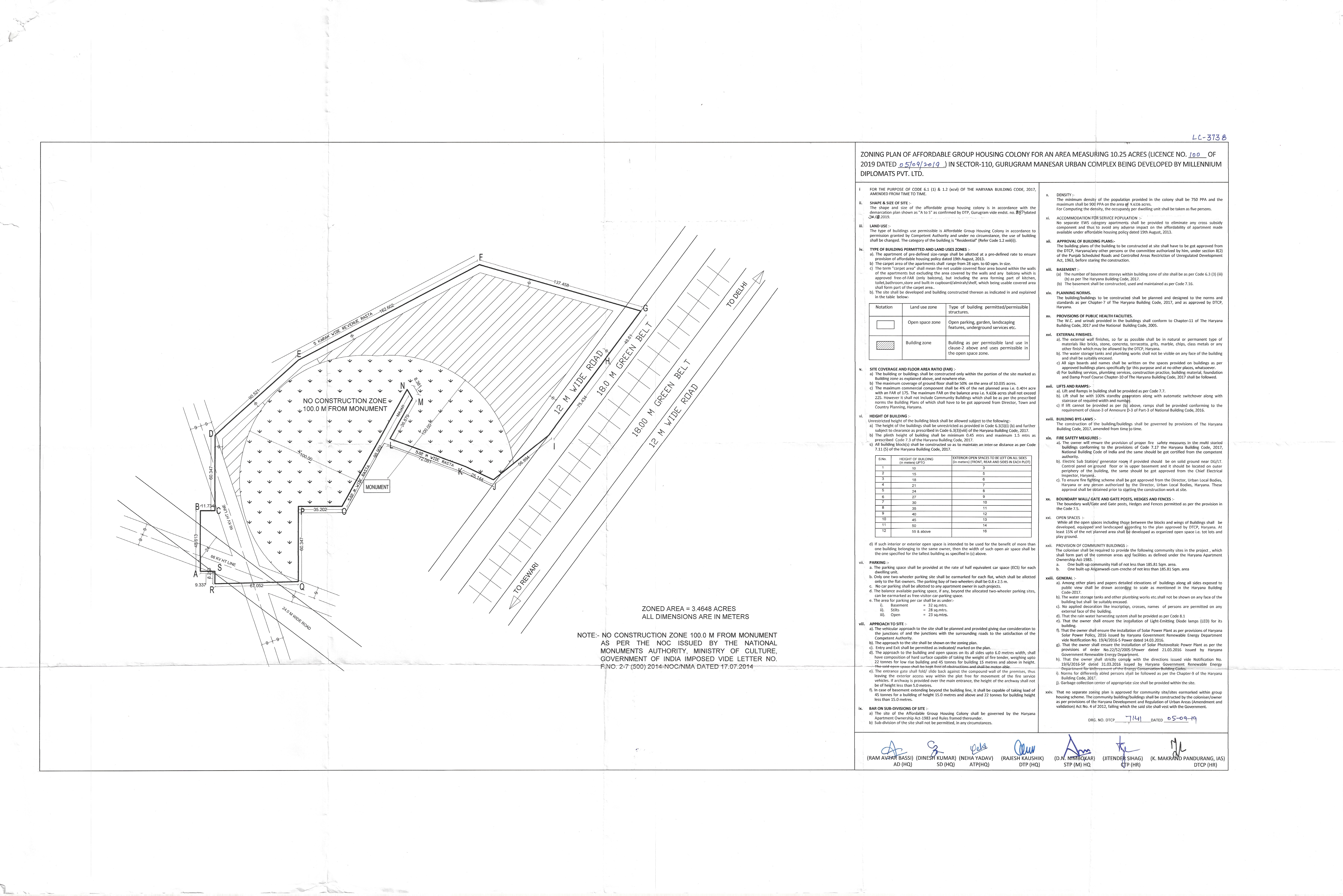
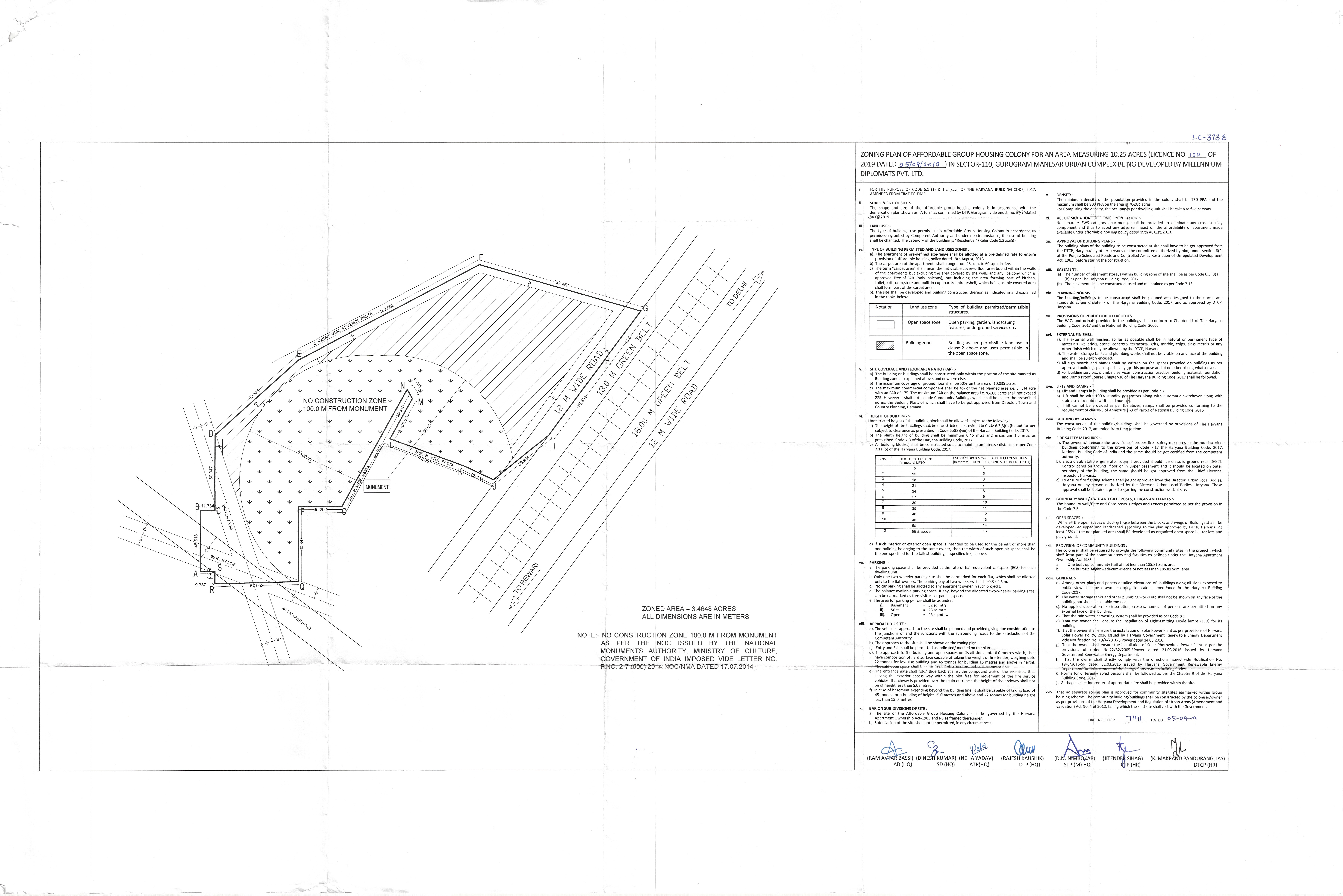
100 of 2019
Yes







36805.16 Lakhs
7056.06 Lakhs
22243.92 Lakhs
2951.00 Lakhs
4554.18 Lakhs




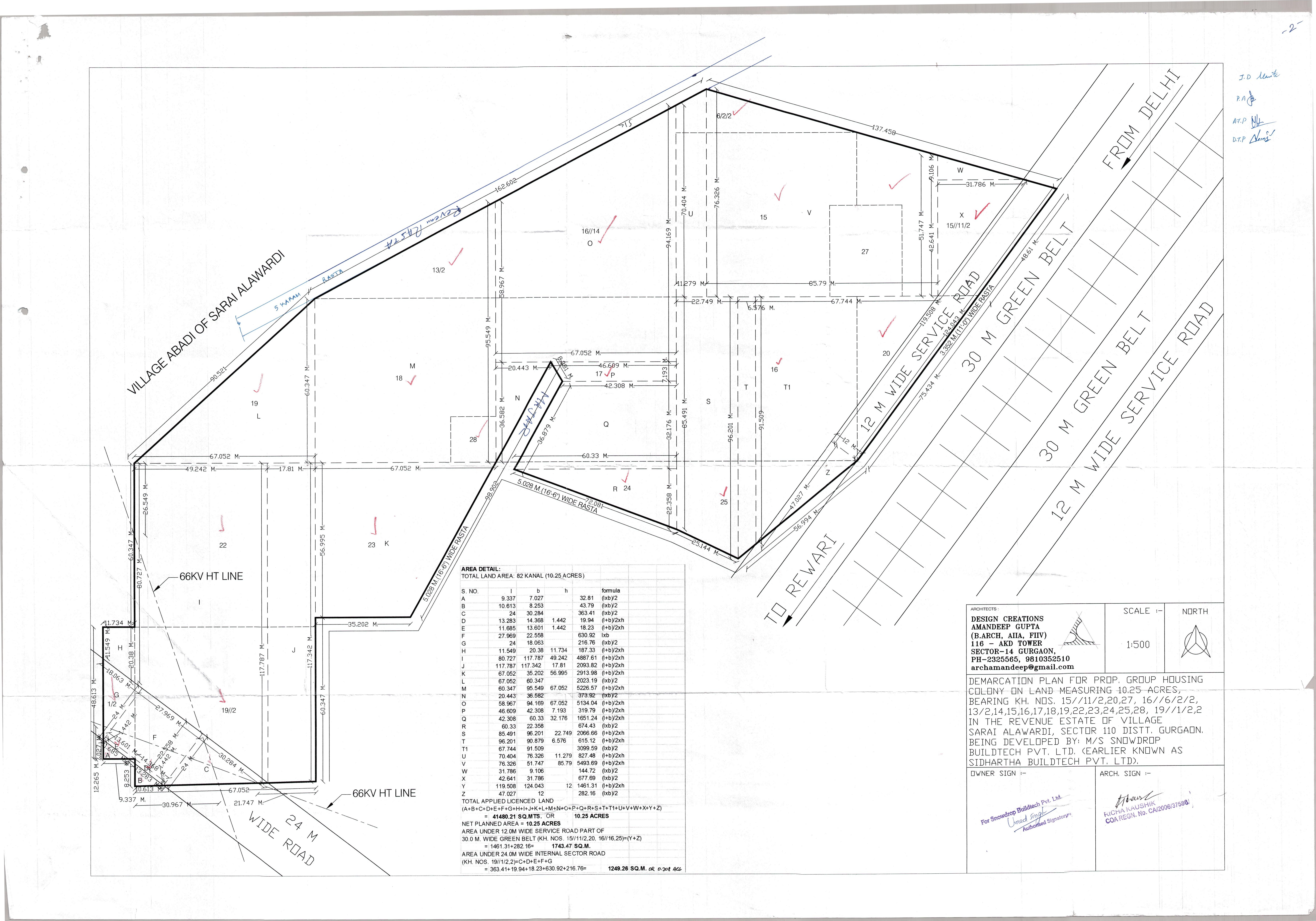
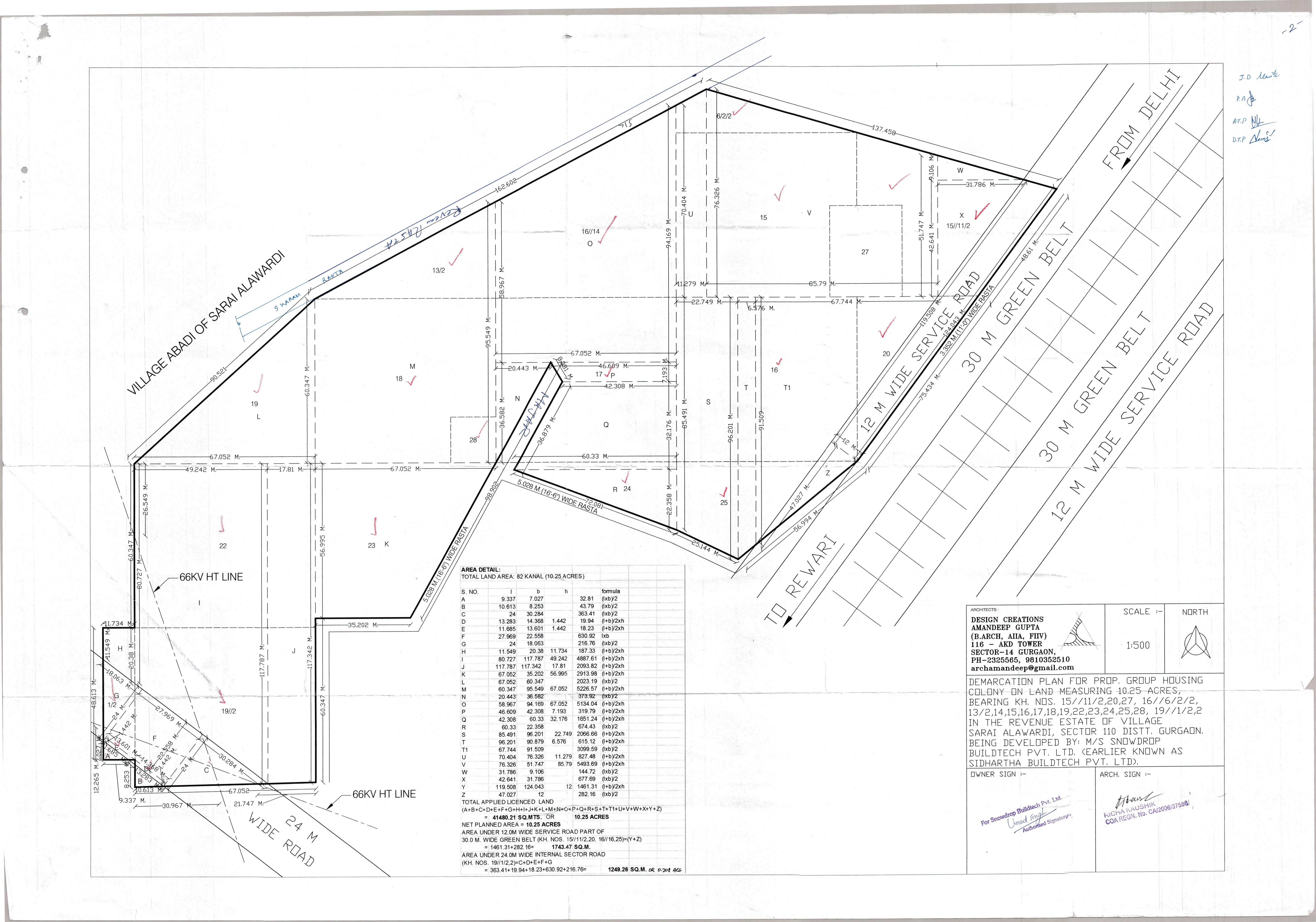
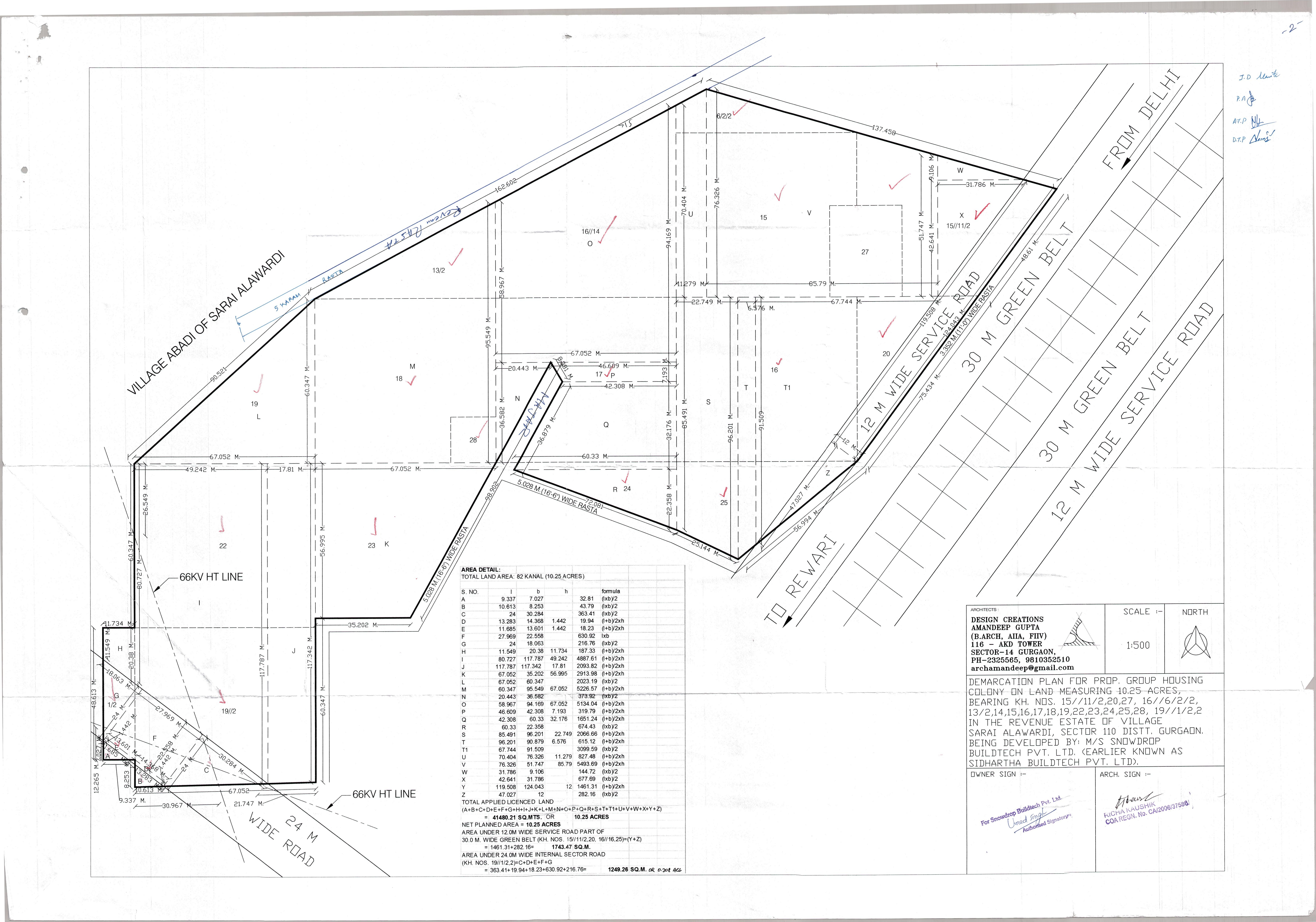
Sr. No.Land area under usageArea of land (Square Meters)
1PLOTS TO BE SOLD 0
2LAND AREA TO BE USED FOR CONSTRUCTION OF APARTMENTS 1.3366
3CONSTRUCTION OF ROADS 0.4596
4PAVEMENTS 0
5PARKS AND PLAYGROUNDS 1.0103
6GREEN BELTS 0
7VEHICLE PARKINGS 3.7580
8ELECTRICITY SUB-STATION 0.1100
9CLUB HOUSE 0
10SEWAGE AND SOLID WASTE TREATMENT FACILITY 0.2150
11AREA TO BE LEFT FOR TRANSFERRING TO THE GOVERNMENT FOR COMMUNITY SERVICES 0
12ANY OTHER 0
Total6.8895




FacilityExternal/ connecting service to be provided by (Name the agency)Whether Approval taken from the agency concerned. Yes/No (Annex details in folder C)
ROADSHSVP- ALREADY CONNECTEDYes
WATER SUPPLYHSVPYes
ELECTRICITYDHBVNYes
SEWAGE DISPOSALHSVPYes
STORM WATER DRAINAGEHSVP-UNDERTAKINGYes




Sr. No.Name of the facilityEstimated cost (In Lakhs)(Within the project area only)Remarks: Yet to be prepared / Submitted to HUDA, Town & Country Planning Department/ as per project report etc. (Annex relevant documents showing costing details etc. in folder C)
1INTERNAL ROADS AND PAVEMENTS225.0SUBMITTED TO TOWN & COUNTRY PLANNING
2WATER SUPPLY SYSTEM90.0SUBMITTED TO TOWN & COUNTRY PLANNING
3STORM WATER DRAINAGE75.0SUBMITTED TO TOWN & COUNTRY PLANNING
4ELECTRICITY SUPPLY SYSTEM96.0SUBMITTED TO TOWN & COUNTRY PLANNING
5SEWAGE TREATMENT & GARBAGE DISPOSAL120.0SUBMITTED TO TOWN & COUNTRY PLANNING
6STREET LIGHTING85.0SUBMITTED TO TOWN & COUNTRY PLANNING
7SECURITY AND FIRE FIGHTING800.0SUBMITTED TO TOWN & COUNTRY PLANNING
8PLAYGROUNDS AND PARKS50.0SUBMITTED TO TOWN & COUNTRY PLANNING
9CLUB HOUSE/COMMUNITY CENTRE0YET TO BE PREPARED
10SHOPPING AREA0YET TO BE PREPARED
11RENEWABLE ENERGY SYSTEM22.50SUBMITTED TO TOWN & COUNTRY PLANNING
12SCHOOL0YET TO BE PREPARED
13HOSPITAL/DISPENSARY0YET TO BE PREPARED
14ANY OTHER0YET TO BE PREPARED


15-03-2021 (date)
15-03-2021 (date)
01-07-2021
31-03-2025
Sr. No Plot Area(In Square Meter)Number of plots in the project
1 0 0
Total0


TypeCarpet area(In Square Meter)Number of apartmentsNumber of towers
Apartment/Shops/Other Buildings80551.09144511
Apartment/Shops/Other Buildings2323.65722





Expenditure incurred till the date of application (In Lakhs)

ParticularsExpenditure
Apartments0
Shops0
Plots0

Expenditure to be made in each quarter (In Lakhs)

ParticularsYear-2021
Jan-MarApr-JuneJuly-SepOct-Dec
Apartments000
Shops000
Plots000
Other Cost80.7053.80269.00
Cost of Construction of Community Facilities6.004.0020.01
Construction Cost667.32444.882224.39
EDC327.52

ParticularsYear-2022
Jan-MarApr-JuneJuly-SepOct-Dec
Apartments0000
Shops0000
Plots0000
Other Cost134.50134.50201.75201.75
Cost of Construction of Community Facilities10.0010.0015.0015.0
Construction Cost1112.201112.201668.291668.29
EDC310.78295.61

ParticularsYear-2023
Jan-MarApr-JuneJuly-SepOct-Dec
Apartments0000
Shops0000
Plots0000
Other Cost201.75201.75201.75201.75
Construction Cost1668.291668.291668.291668.29
Cost of Construction of Community Facilities15.015.015.015.0
EDC279.4

ParticularsYear-2024
Jan-MarApr-JuneJuly-SepOct-Dec
Apartments0000
Shops0000
Plots0000
Other Cost201.7567.25201.75134.50
Construction Cost1668.29556.101668.291112.20
Cost of Construction of Community Facilities15.05.015.010.0

ParticularsYear-2025
Jan-MarApr-JuneJuly-SepOct-Dec
Apartments0
Shops0
Plots0
Construction Cost1668.29
Cost of Construction of Community Facilities15.0
Other Cost201.75




Expenditure incurred till the date of application (In Lakhs)

ParticularsExpenditure
Roads & Pavements0
Water Supply System0
Sewerage treatment & garbage disposal0
Electricity Supply System0
Storm Water Drainage0
Parks and Playgrounds0
Clubhouse/community centres0
Shopping area0
Other0

Expenditure to be made in each quarter (In Lakhs)

ParticularsYear-2022
Jan-MarApr-JuneJuly-SepOct-Dec
Roads & Pavements000
Water Supply System000
Sewerage treatment & garbage disposal000
Electricity Supply System000
Storm Water Drainage000
Parks and Playgrounds000
Clubhouse/community centres000
Shopping area000
Other000
IDW268.27268.27268.27

ParticularsYear-2023
Jan-MarApr-JuneJuly-SepOct-Dec
Roads & Pavements0000
Water Supply System0000
Sewerage treatment & garbage disposal0000
Electricity Supply System0000
Storm Water Drainage0000
Parks and Playgrounds0000
Clubhouse/community centres0000
Shopping area0000
Other0000
IDW268.27268.27268.27268.27

ParticularsYear-2024
Jan-MarApr-JuneJuly-SepOct-Dec
Roads & Pavements0000
Water Supply System0000
Sewerage treatment & garbage disposal0000
Electricity Supply System0000
Storm Water Drainage0000
Parks and Playgrounds0000
Clubhouse/community centres0000
Shopping area0000
Other0000
IDW268.27268.27268.27268.27

ParticularsYear-2025
Jan-MarApr-JuneJuly-SepOct-Dec
Roads & Pavements0
Water Supply System0
Sewerage treatment & garbage disposal0
Electricity Supply System0
Storm Water Drainage0
Parks and Playgrounds0
Clubhouse/community centres0
Shopping area0
Other0
IDW268.27












Yes
No
HDFC BANK ,MAIN MARKET SECTOR 31,GURUGRAM
50200057701838
HDFC0000622
HDFC0000622
0622
Sandeep, Address: Village Purkhas Dhiran ,Sonipat, Haryana and Ramesh Kumar, Address: Sector 56 Gurugram











Yes
Yes
Yes
Yes
Yes
Yes
Yes
Yes
Yes
Yes


Yes
Yes
Yes
Yes
Yes
Yes
Yes
Yes
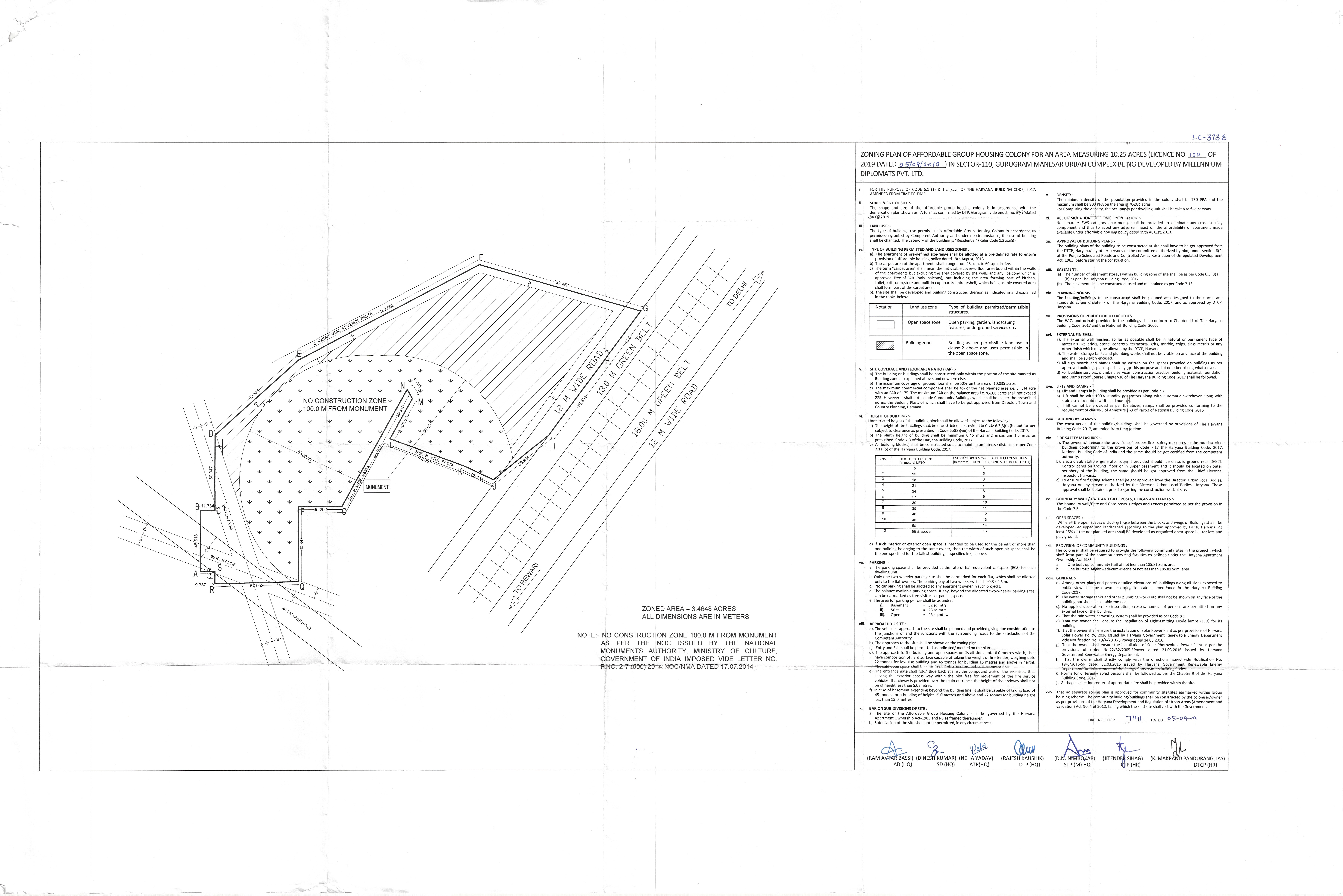
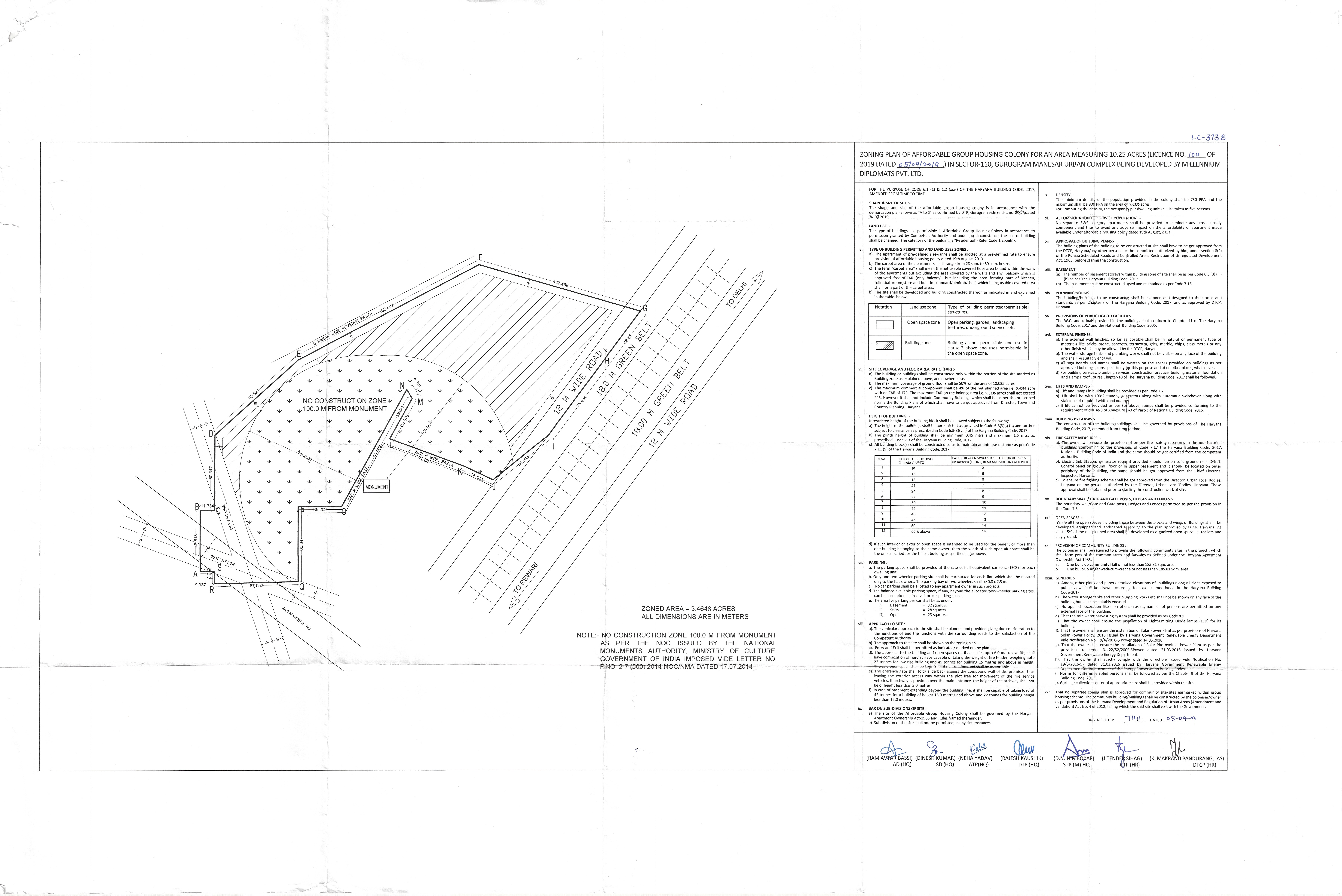
Statutory Approvals Statutory Approvals StatusDate
I. LICENSEALREADY BEEN OBTAINEDNA








Yes


Yes















SPECIFICATION OF CONSTRUCTION
Specification of apartments and other buildings including the following:
1FLOORING DETAILS OF VARIOUS PARTS OF HOUSETILES
2WALL FINISHING DETAILSOBD
3KITCHEN DETAILSISI MARKED
4BATHROOM FITTINGSISI MARKED
5WOOD WORK ETCHARD WOOD
6DOORS AND WINDOS FRAMESALUMINIUM /UPC/EQUIVALENT
7GLASS WORKISI MARKED
8ELECTRIC FITTINGSISI MARKED
9CONDUCTING AND WIRING DETAILSISI MARKED
10CUPBOARD DETAILSNA
11WATER STORAGERCC/UPVC
12LIFT DETAILSISI MARKED
13EXTERNAL GLAZINGSALUMINIUM /UPVC
13.1WINDOWS/GLAZINGSALUMINIUM /UPVC
14DOORSPAINTED HARDWOOD FRAME WITH FLUSH DOOR
14.1MAIN DOORSPAINTED HARDWOOD FRAME WITH FLUSH DOOR
14.2INTERNAL DOORSPAINTED HARDWOOD FRAME WITH FLUSH DOOR
15AIR CONDITIONINGNA
16ELECTRICAL FITTINGSISI MARKED
17CNG PIPE LINENA
18PROVISION OF WIFI AND BROADBAND FACILITYNA
19EXTERNAL FINISHING/COLOUR SCHEMETEXTURE PAINT
20INTERNAL FINISHINGOBD
SPECIFICATION UNIT WISE
1 . LIVING/DINING/FOYER/FAMILY LOUNGE
1 . 1 FLOORTILES
1 . 2 WALLSOBD
1 . 3 CEILINGOBD/WHITE WASH
2 . MASTER BEDROOM/DRESSROOM
2 . 1 FLOORTILES
2 . 2 WALLSOBD
2 . 3 CEILINGOBD /WHITE WASH
2 . 4 MODULAR WARDROBESNA
3 . MASTER TOILET
3 . 1 FLOORCERAMICS TILES
3 . 2 WALLSCERAMICS TILES
3 . 3 CEILINGGRID CEILING
3 . 4 COUNTERSNA
3 . 5 SANITARY WARE/CP FITTINGSNA
3 . 6 FITTING/FIXTURESISI MARKED
4 . BED ROOMS
4 . 1 FLOORTILES
4 . 2 WALLSOBD
4 . 3 CEILINGOBD/COLOUR WASH
4 . 4 WARDROBESNA
5 . TOILET
5 . 1 FLOORCERAMICS TILES
5 . 2 WALLSCERAMICS TILES
5 . 3 CEILINGGRID CELING
5 . 4 COUNTERSNA
5 . 5 SANITARY WARE/CP FITTINGSISI MARKED
5 . 6 FIXTURESISI MARKED
6 . KITCHEN
6 . 1 FLOORTILES
6 . 2 WALLSTILES UPTO 2'
6 . 3 CEILINGOBD/COLOUR WASH
6 . 4 COUNTERSMARBLE /GRANITE
6 . 5 FIXTURESISI MARKED
6 . 6 KITCHEN APPLIANCESNA
7 . UTILITY ROOMS/UTILITY BALCONY/TOILET
7 . 1 FLOORNA
7 . 2 WALLS & CEILINGNA
7 . 3 TOILETNA
7 . 4 BALCONYNA
8 . SIT-OUTS
8 . 1 FLOORNA
8 . 2 WALLS & CEILINGNA
8 . 3 RAILINGSNA
8 . 4 FIXTURESNA












Sr. No.Document DescriptionDate of Document UploadView Document
1 COPY OF LICENSE ALONG WITH SCHEDULE OF LAND 02-04-2021 View Document
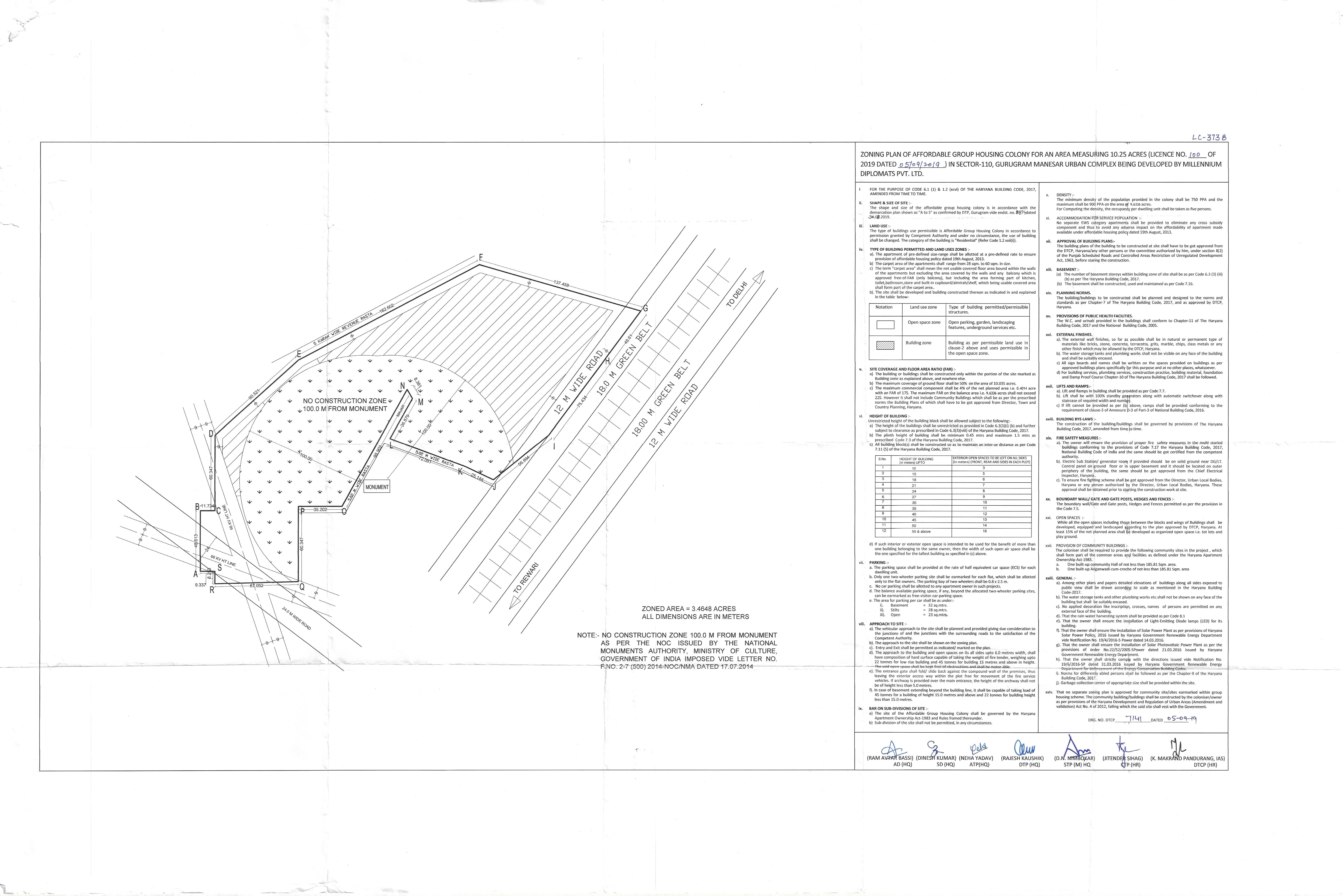
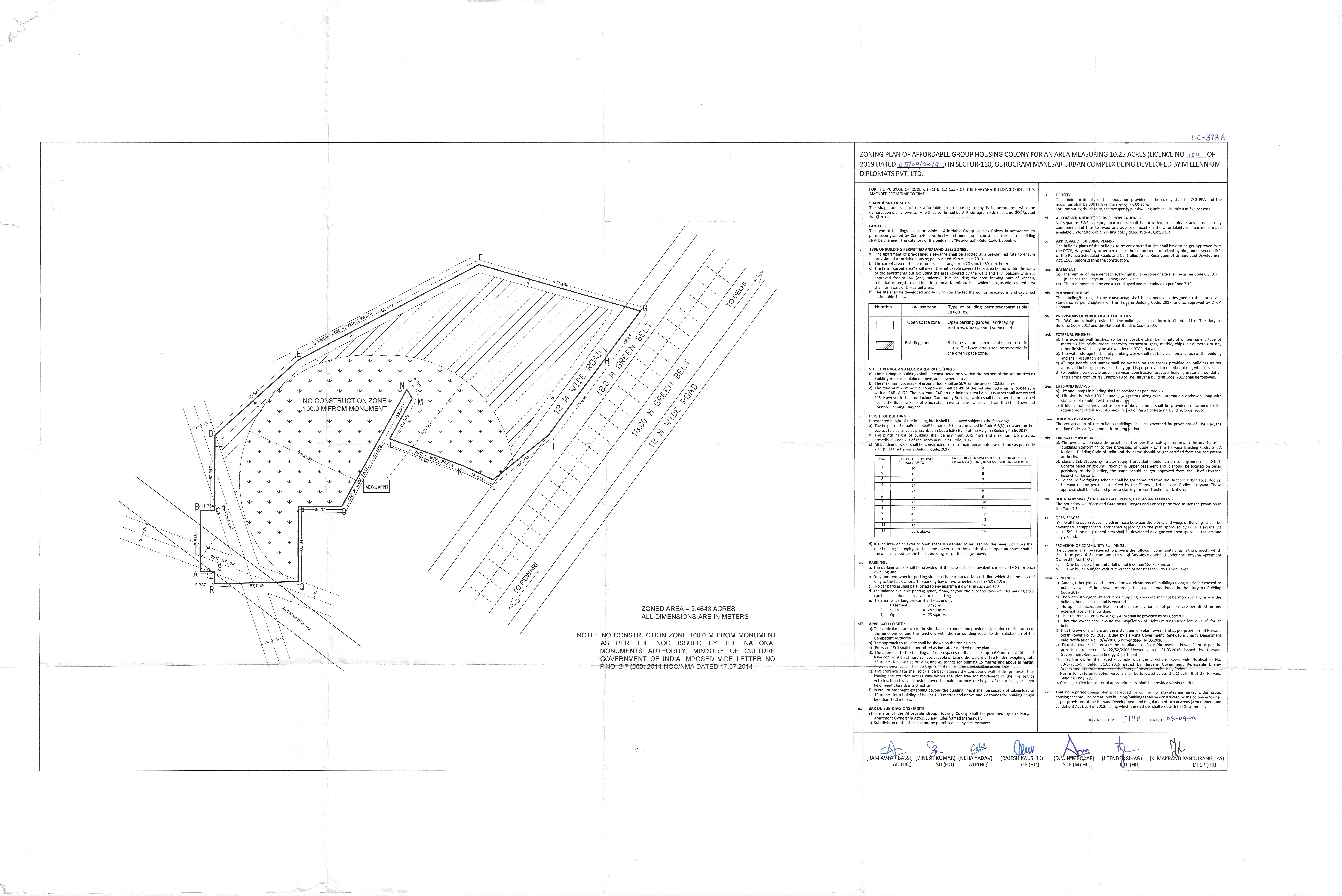
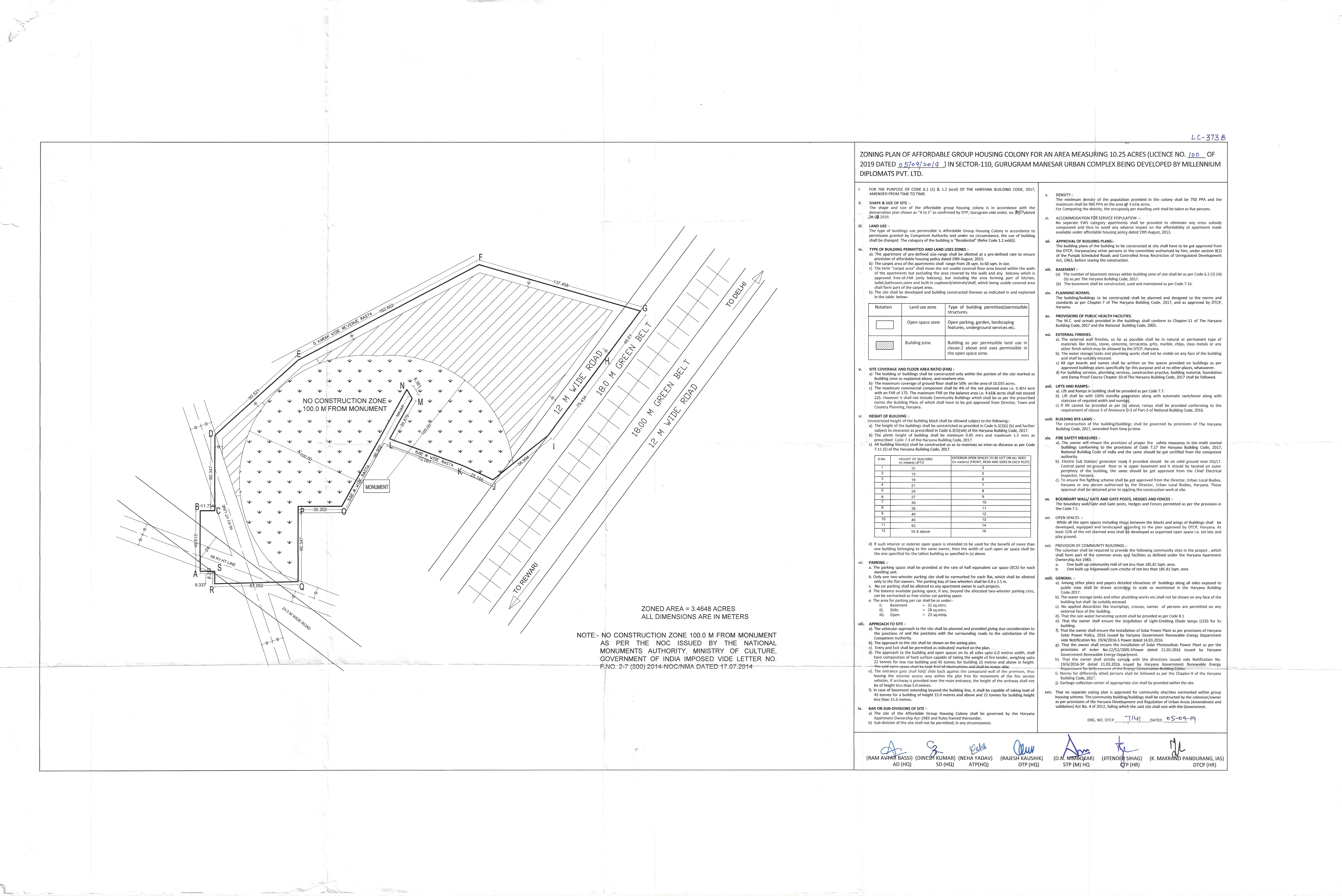
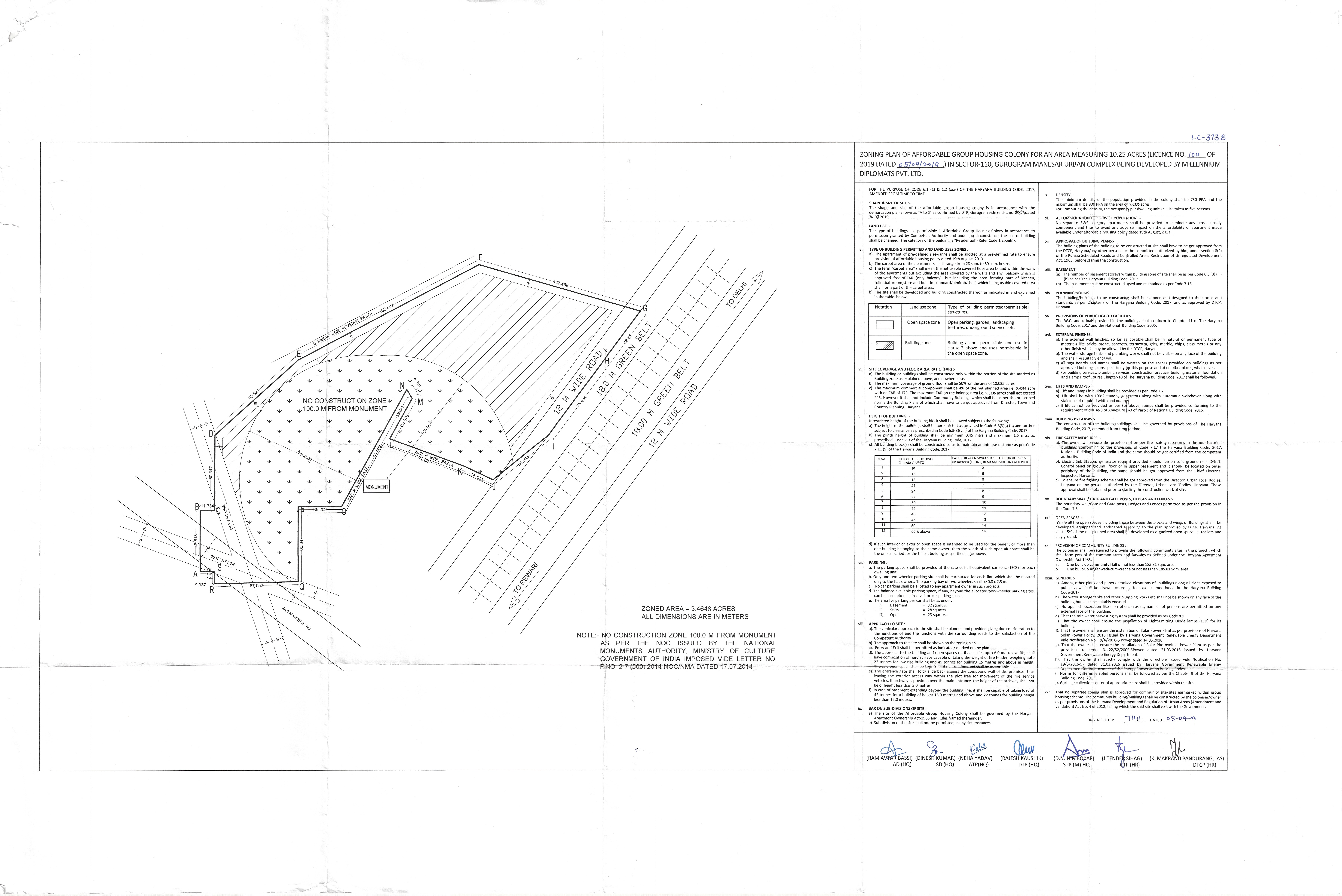
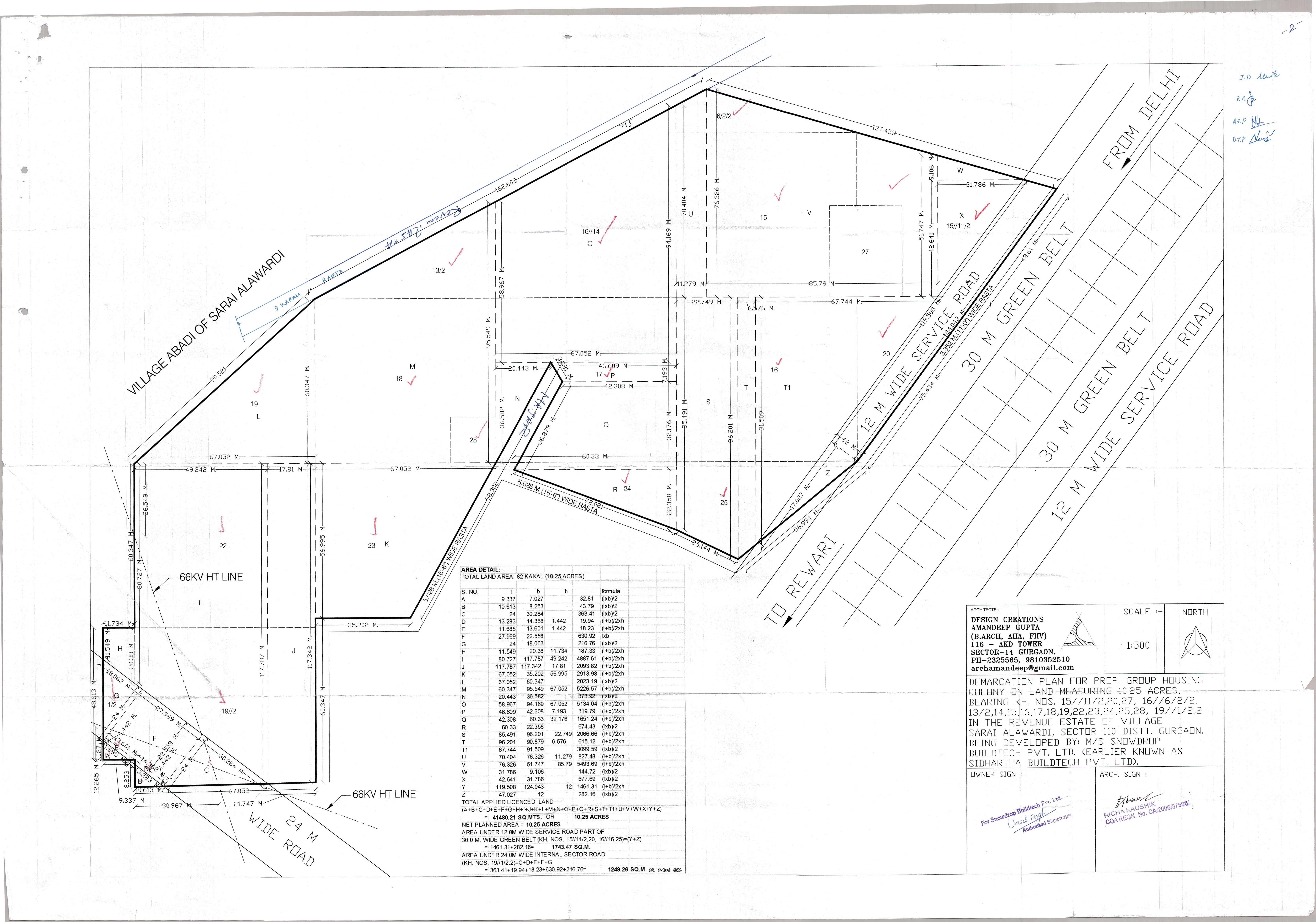
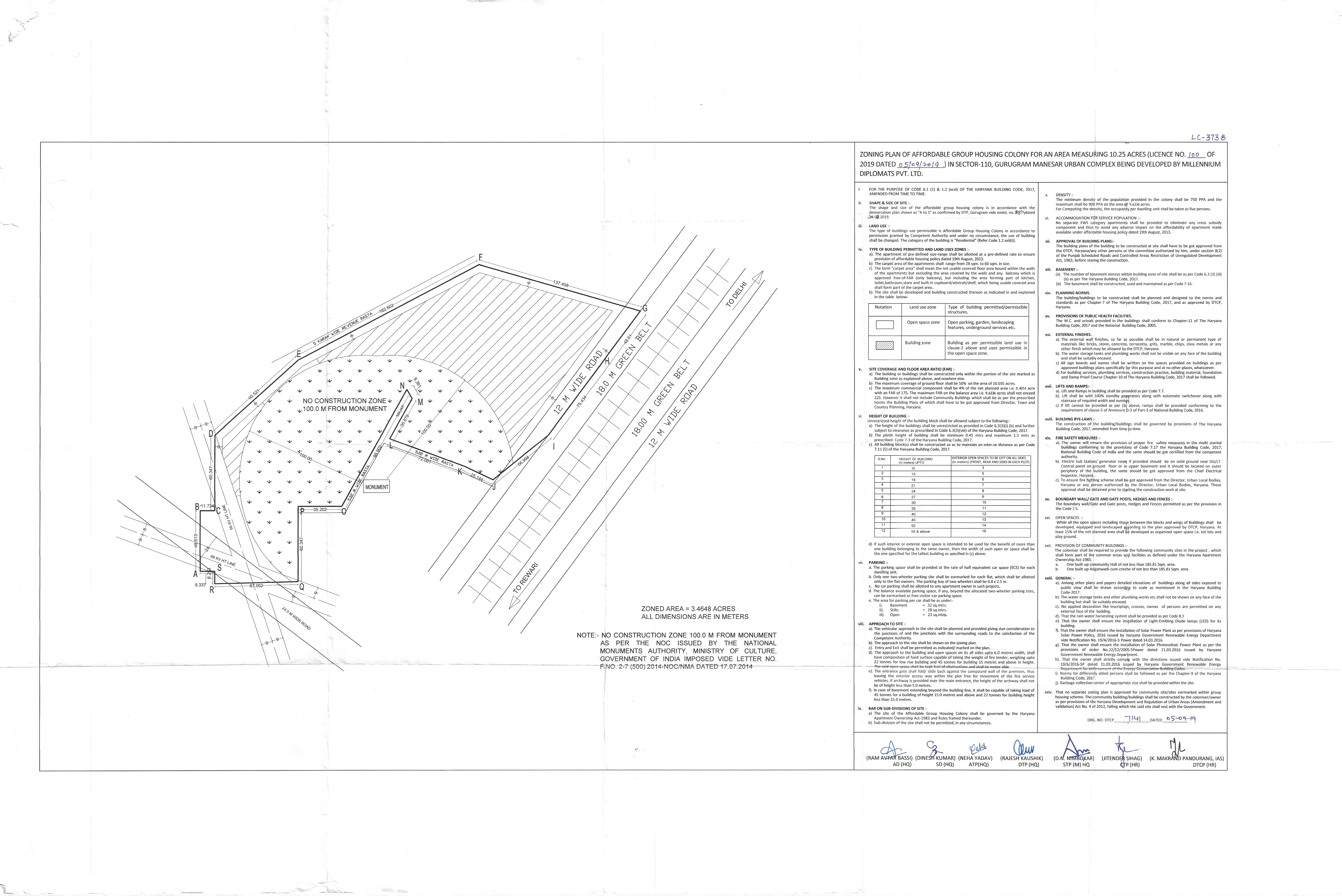
2 ZONING PLAN 02-04-2021 View Document
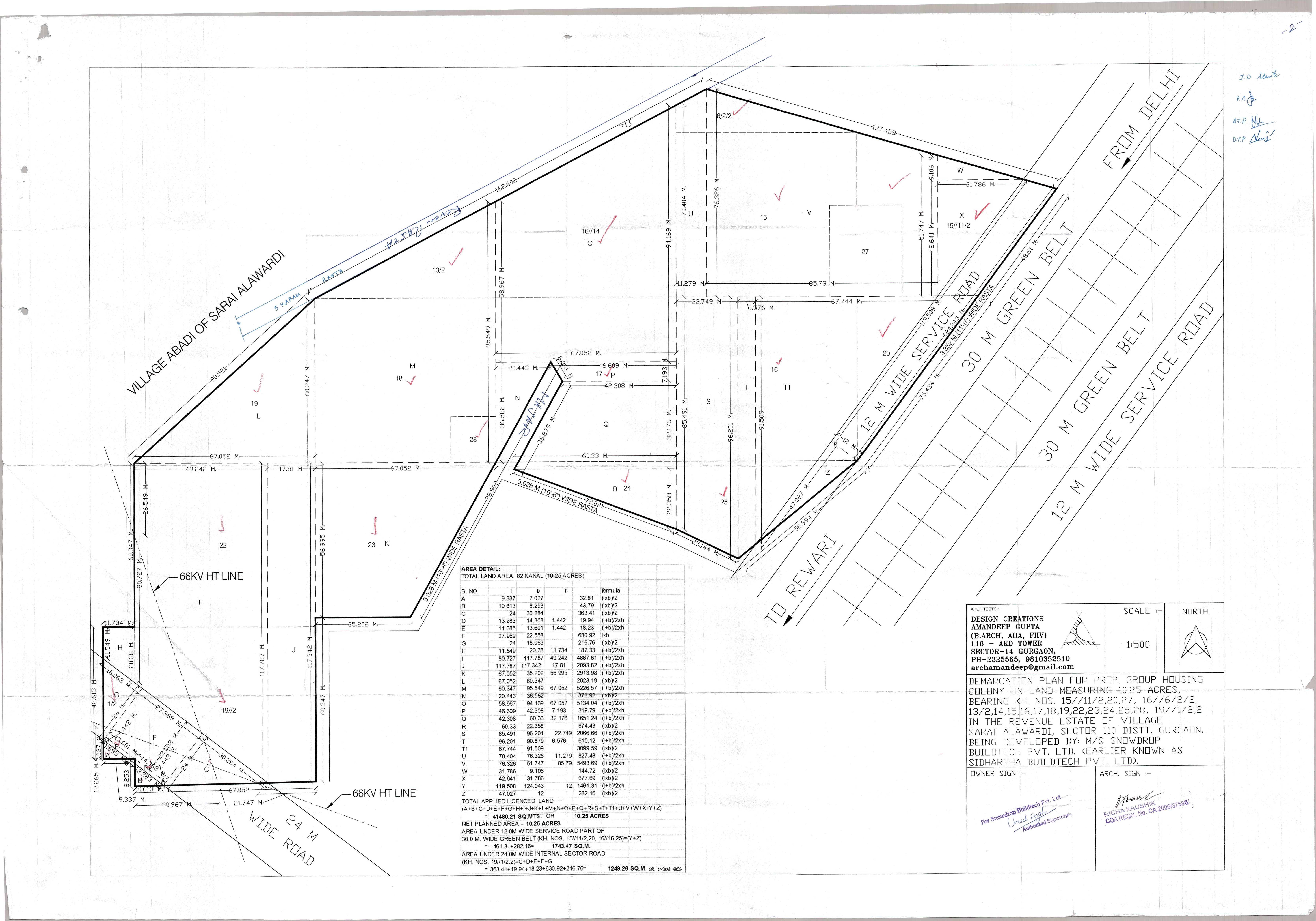
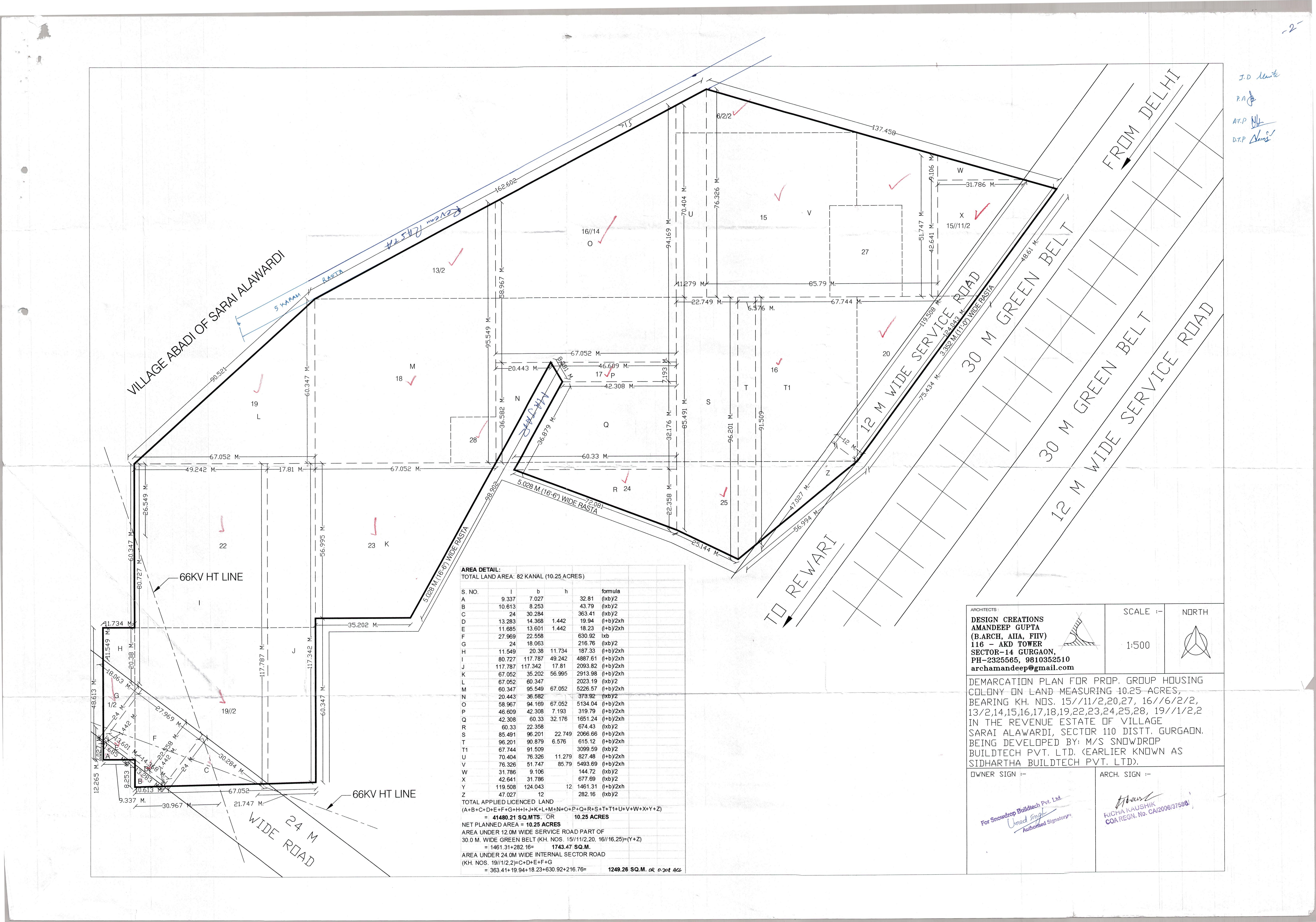
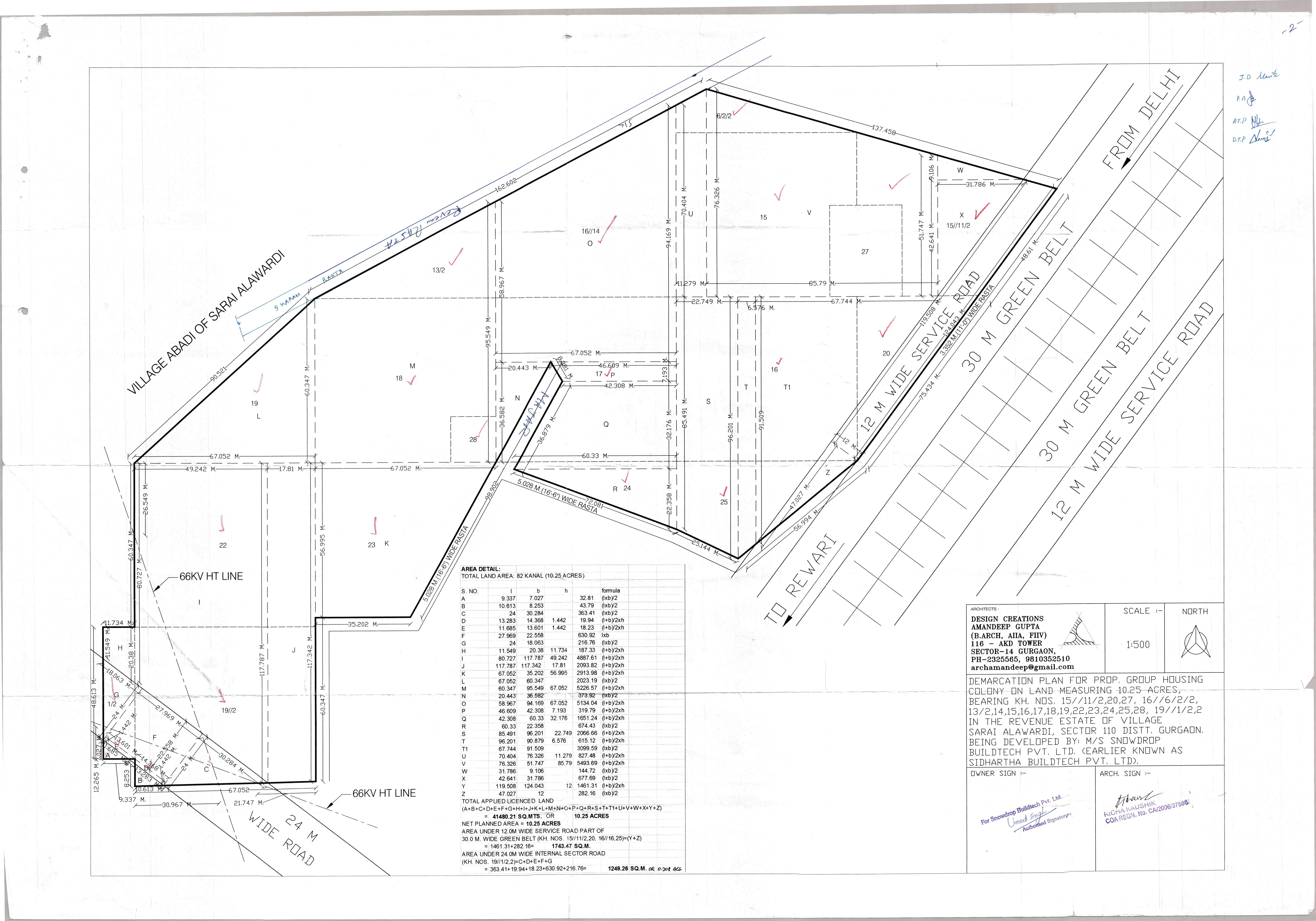
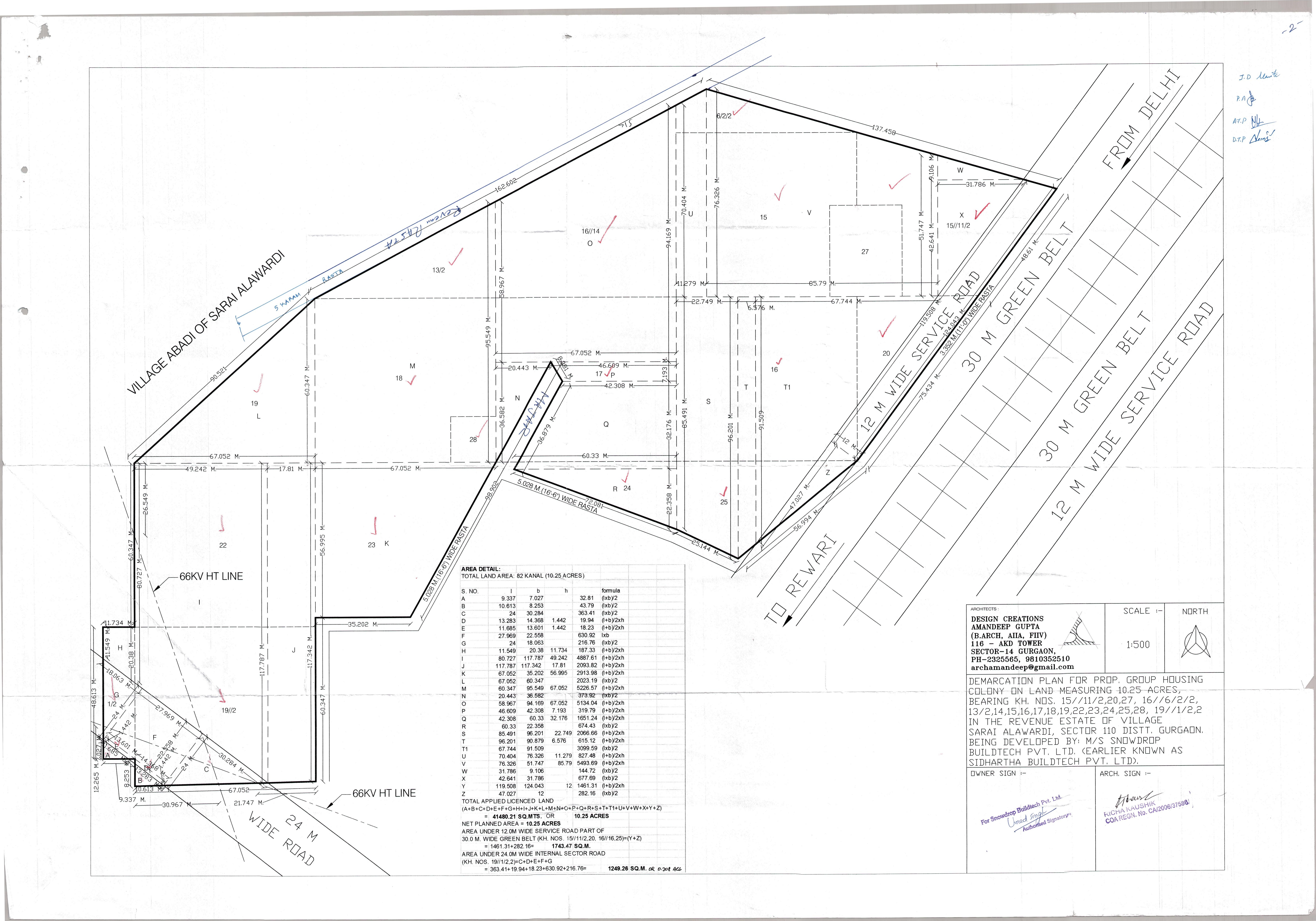
3 DEMARCATION PLAN 03-04-2021 View Document
4 IN CASE OF GROUP HOUSING/ COMMERCIAL SITES, A COPY OF THE APPROVED SITE PLAN 03-04-2021 View Document
5 SERVICE PLANS SHOWING THE SERVICES ON THE LAYOUT PLAN 03-04-2021 View Document
6 A COMPLETE SET OF THE LAST APPROVED BUILDING PLANS 03-04-2021 View Document
7 NON DEFAULT CERTIFICATE FROM A CHARTERED ACCOUNTANT 03-04-2021 View Document
8 DOCUMENTS RELATING TO THE ENTRY OF LICENSE AND COLLABORATION AGREEMENT IN THE REVENUE RECORD 03-04-2021 View Document
9 DECLARATION SUPPORTED BY AFFIDAVIT DULY SIGNED BY THE PROMOTER TO BE ENCLOSED. 03-04-2021 View Document
10 CERTIFICATE FROM A CHARTERED ACCOUNTANT CERTIFYING THAT THE INFORMSTION PROVIDED BY THE APPLICANT IN FORM REP-1-C-X IS CORRECT AS PER THE BOOKS OF ACCOUNTS/ BALANCE SHEET OF THE APPLICANT 03-04-2021 View Document
11 CASH FLOW STATEMENT OF THE PROPOSED PROJECT 03-04-2021 View Document
12 IN CASE OF PLOTTED COLONY, THE LATEST LAYOUT PLAN 03-04-2021 View Document