HRERA GurugramTemp Project Id : RERA-GRG-PROJ-762-2020
Submission Date : 20-10-2020 08:58:07 PM
Applicant Type : Company
Project Type: ONGOING




JMD LIMITED
3RD FLOOR, JMD REGENT SQUARE, M.G. ROAD, GURGAON, HARYANA 122001
01244636363
9899006699 (Number Shared by Promoter in Public)
info@jmdgroup.in
http://jmdgroup.in
XXXX244K
U74899DL1989PLC038093
 
 


 
 


 
 


 
 


 
 


 
 


 
 







JMD SUBURBIO-1
SECTOR 67
BADSHAHPUR ST
GURUGRAM
01244636363
9540054388 (Number Shared by Promoter in Public)
jmd@jmdgroup.in
RAJESH SRIVASTAVA
01244636363
9540054388 (Number Shared by Promoter in Public)
jmd@jmdgroup.in








As per sub-rule(2) of rule 3 of the Haryana Real Estate (Regulation and Development) Rules,2017, the fee for registration of the project as has been calculated as follows:
-----------------------------------------------------------------------------------------------------------------------
-----------------------------------------------------------------------------------------------------------------------
-----------------------------------------------------------------------------------------------------------------------
-----------------------------------------------------------------------------------------------------------------------
2. The aforesaid fees is hereby deposited vide following Drafts/ Banker’s Cheques:-

Sr No.Draft/Cheque No.Draft DateAmountPayee BankPayable To
114658931-08-2021750000KOTAK MAHINDRA BANKHRERA Gurugram
214678114-02-20221913500KOTAK MAHINDRA BANKHRERA Gurugram
33923119-09-2018430000KOTAK MAHINDRA BANK (RTGS)HRERA Gurugram







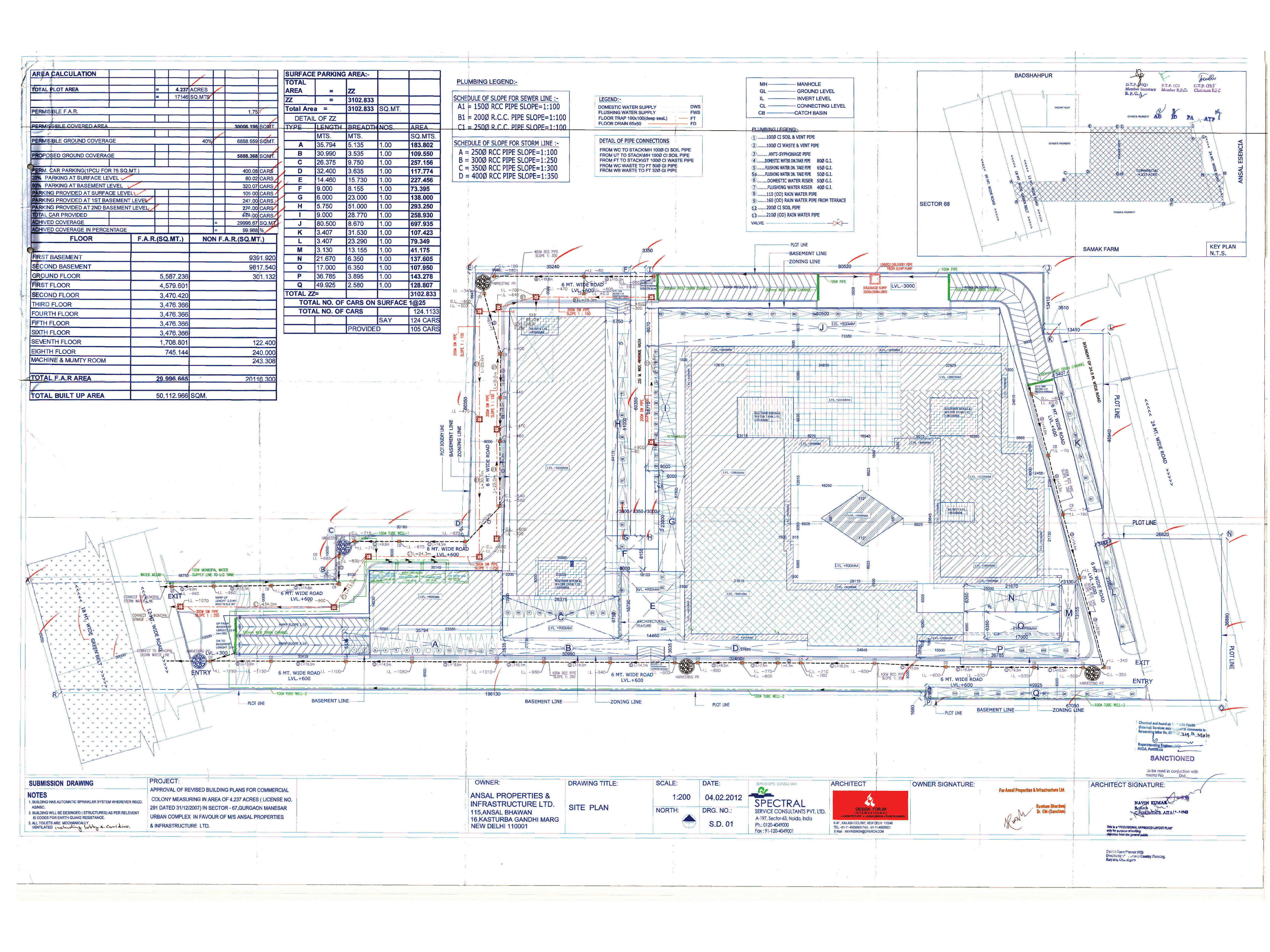
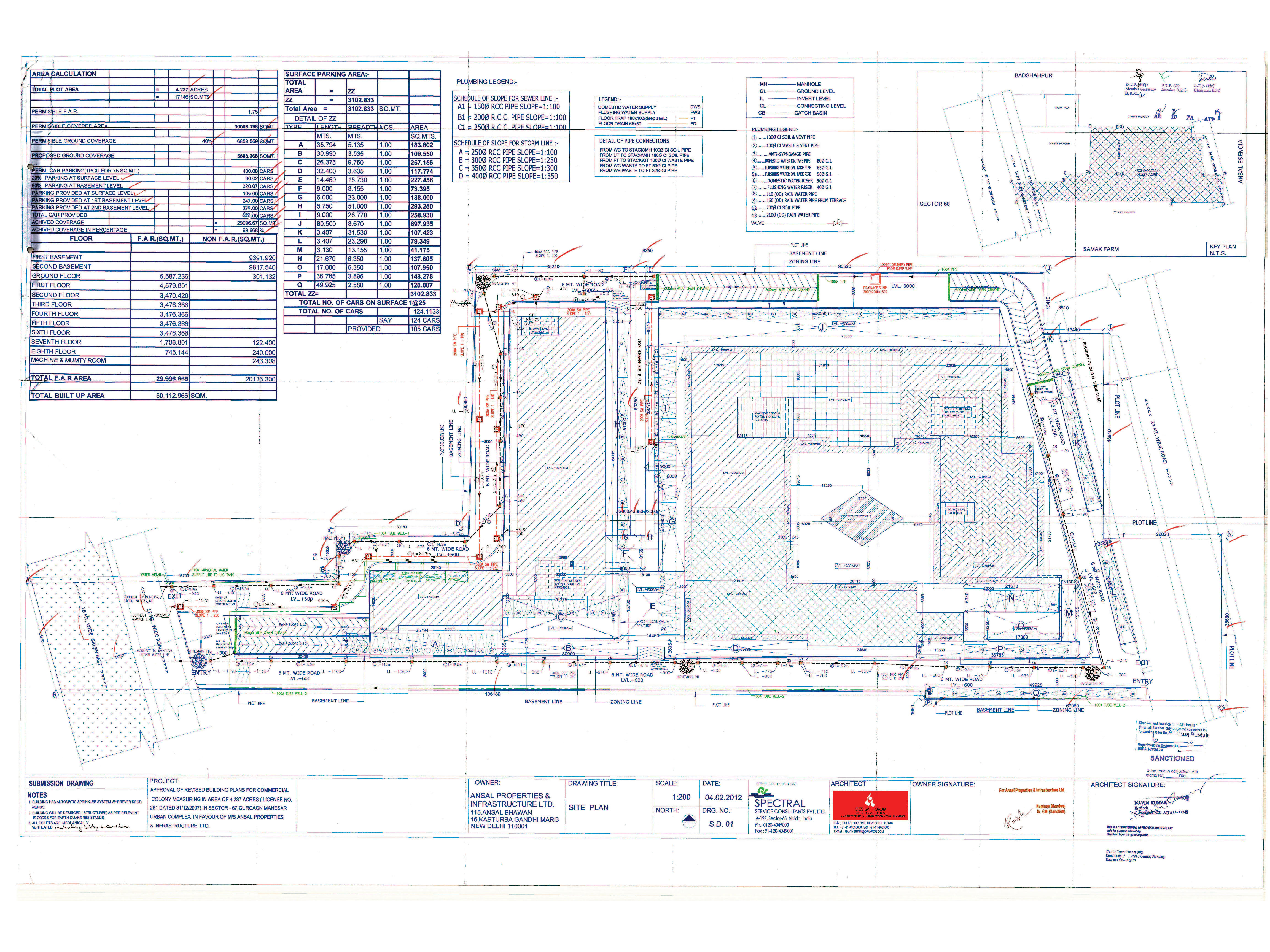
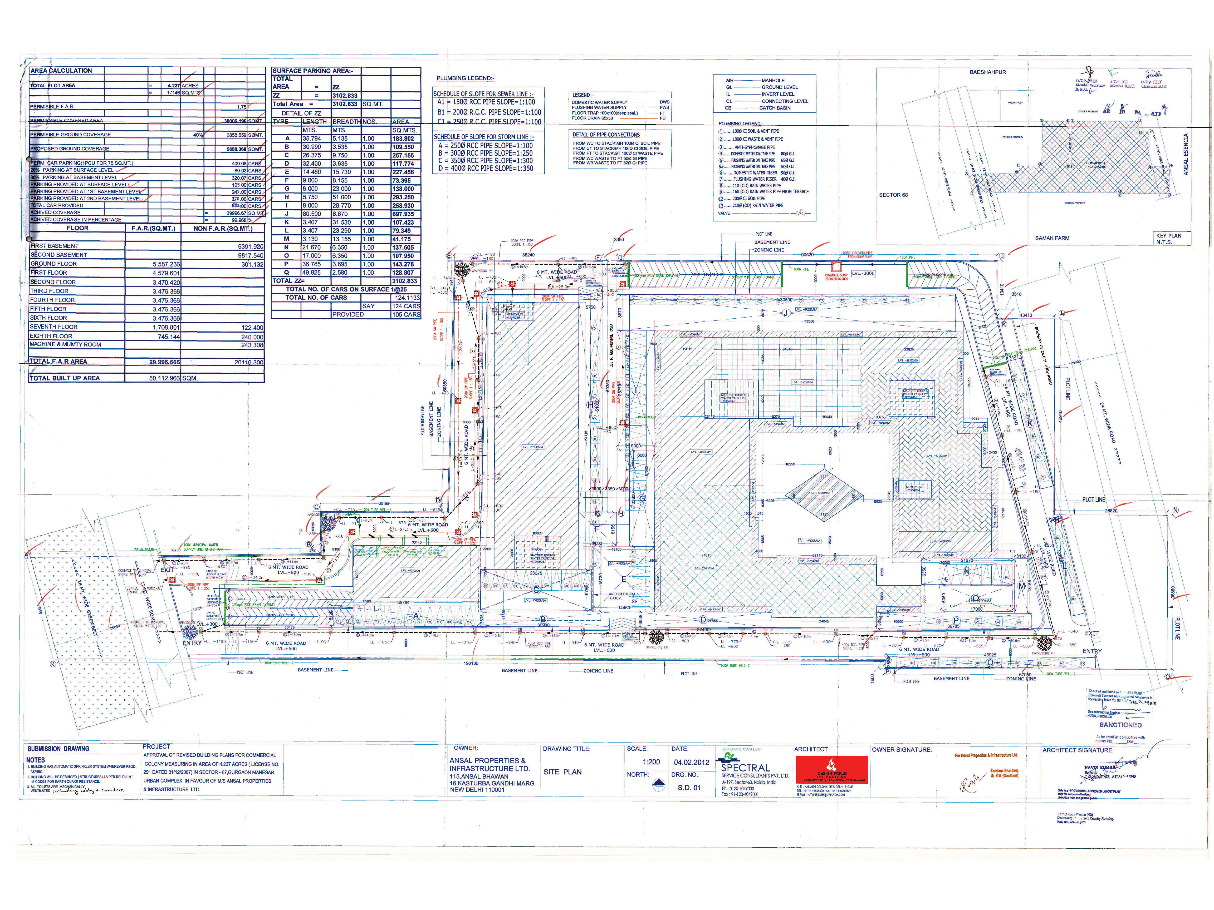
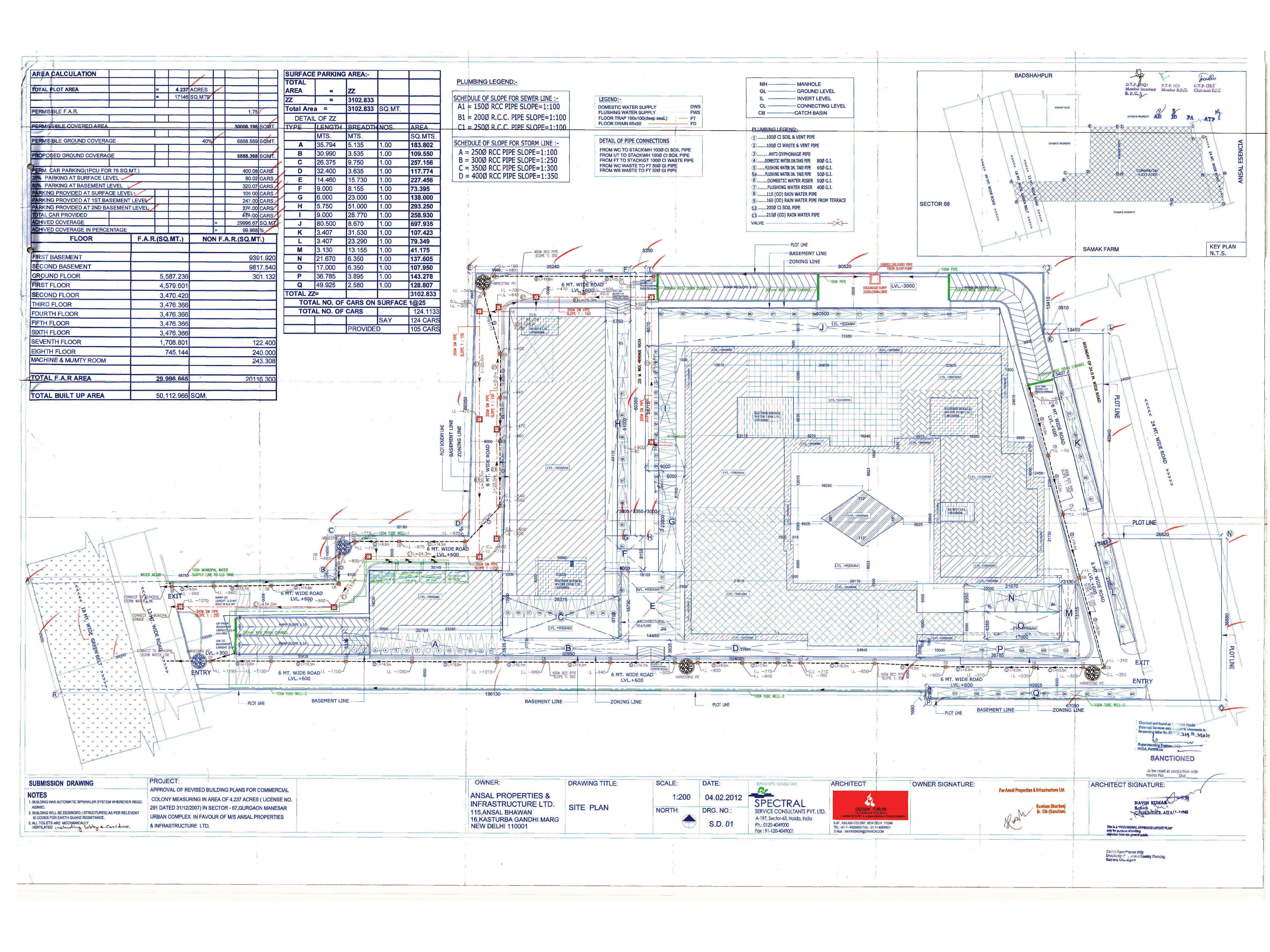
2.912007 (Acre)
1.75
1.75
4.237 (Acre)
291 of 2007 dated 31/5/2007 by DTCP, Haryana
No
Address     115, ANSAL BHAWAN,16 KASTURBA GANDHI MARG ,NEW DELHI 110001
Annexure-B- CHANGE OF DEVELOPER , CONVEYANCE DEED, ANNEXED
NA
No
NA
Yes
Yes
Yes







13916.02 Lakhs
3910.20 Lakhs
4803.16 Lakhs
1179.39 Lakhs
4023.27 Lakhs




Sr. No.Land area under usageArea of land (Acres)
1PLOTS TO BE SOLD 0
2LAND AREA TO BE USED FOR CONSTRUCTION OF APARTMENTS 1.000053
3CONSTRUCTION OF ROADS 0.2298
4PAVEMENTS 0
5PARKS AND PLAYGROUNDS 0.2298
6GREEN BELTS 0
7VEHICLE PARKINGS 1.337454
8ELECTRICITY SUB-STATION 0
9CLUB HOUSE 0
10SEWAGE AND SOLID WASTE TREATMENT FACILITY 0
11AREA TO BE LEFT FOR TRANSFERRING TO THE GOVERNMENT FOR COMMUNITY SERVICES 0
12ANY OTHER 0.1149
Total2.912007




FacilityExternal/ connecting service to be provided by (Name the agency)Whether Approval taken from the agency concerned. Yes/No (Annex details in folder C)
ROADSHUDAYes
WATER SUPPLYHUDAYes
ELECTRICITYDHBVNYes
SEWAGE DISPOSALHUDAYes
STORM WATER DRAINAGEHUDANo




Sr. No.Name of the facilityEstimated cost (In Lakhs)(Within the project area only)Remarks: Yet to be prepared / Submitted to HUDA, Town & Country Planning Department/ as per project report etc. (Annex relevant documents showing costing details etc. in folder C)
1INTERNAL ROADS AND PAVEMENTS95.35SUBMITTED TO TOWN & COUNTRY PLANNING
2WATER SUPPLY SYSTEM131.30SUBMITTED TO TOWN & COUNTRY PLANNING
3STORM WATER DRAINAGE48.32SUBMITTED TO TOWN & COUNTRY PLANNING
4ELECTRICITY SUPPLY SYSTEM304.82SUBMITTED TO TOWN & COUNTRY PLANNING
5SEWAGE TREATMENT & GARBAGE DISPOSAL86.45SUBMITTED TO TOWN & COUNTRY PLANNING
6STREET LIGHTING14.71SUBMITTED TO TOWN & COUNTRY PLANNING
7SECURITY AND FIRE FIGHTING162.19SUBMITTED TO TOWN & COUNTRY PLANNING
8PLAYGROUNDS AND PARKS5.22SUBMITTED TO TOWN & COUNTRY PLANNING
9CLUB HOUSE/COMMUNITY CENTRE0SUBMITTED TO TOWN & COUNTRY PLANNING
10SHOPPING AREA0SUBMITTED TO TOWN & COUNTRY PLANNING
11RENEWABLE ENERGY SYSTEM37.25SUBMITTED TO TOWN & COUNTRY PLANNING
12SCHOOL0SUBMITTED TO TOWN & COUNTRY PLANNING
13HOSPITAL/DISPENSARY0SUBMITTED TO TOWN & COUNTRY PLANNING
14ANY OTHER0SUBMITTED TO TOWN & COUNTRY PLANNING
15STP18.72SUBMITTED TO TOWN & COUNTRY PLANNING
16UNDER GROUND WATER TANK37.25SUBMITTED TO TOWN & COUNTRY PLANNING
17RAIN WATER HARVESTING7SUBMITTED TO TOWN & COUNTRY PLANNING
18ELECTRICAL SUB STATION213.06SUBMITTED TO TOWN & COUNTRY PLANNING
19SECTOR RAOD17.75SUBMITTED TO TOWN & COUNTRY PLANNING


NA (date)
NA (date)


Sr. No.Plot/ apartment type Size of the plot/carpet area of the apartments Total number of plots/apartments in the project Total size of the plots/carpet area of the apartments Plots/apartments booked/ sold upto the date of application Yet to be sold/ booked No. of towers to be/ being constructed for booked apartments
1 APARTMENT/SHOPS/OTHER BUILDINGS Type TOWER A,B,C 22176.90 519 11509811.1 269 250 3
Total51911509811.12692503






TypeNumber of apartments booked/ sold Write or Annex the stage of construction of the booked/ sold apartments in folder C
TOWER- A,B & C269ALREADY CONSTRUCTED OC RECEIVED


13-11-2013
18-10-2018
18-10-2018
13-11-2013
0
30-12-2024
ANNEXED
ANNEXED


PlotsBooked/soldStage of handing over the possession (Write or Annex details)
PLOT00
13-11-2013
0
30-12-2024
ANNEXED
ANNEXED


355
0
0
72
0





Expenditure incurred till the date of application (In Lakhs)

ParticularsExpenditure
Apartments4803.1
Shops0
Plots0

Expenditure to be made in each quarter (In Lakhs)

ParticularsYear-2020
Jan-MarApr-JuneJuly-SepOct-Dec
Apartments00
Shops00
Plots00




Expenditure incurred till the date of application (In Lakhs)

ParticularsExpenditure
Roads & Pavements95.35
Water Supply System131.30
Sewerage treatment & garbage disposal86.45
Electricity Supply System304.82
Storm Water Drainage48.32
Parks and Playgrounds5.22
Clubhouse/community centres0
Shopping area0
Other0
electrical sub station146.34
fire alarm and fire fighting162.19
rain water harvesting7
renewable energy7.45
stp18.72
strret light14.71
under ground water tank44.95

Expenditure to be made in each quarter (In Lakhs)

ParticularsYear-2020
Jan-MarApr-JuneJuly-SepOct-Dec
Roads & Pavements0000
Water Supply System0000
Sewerage treatment & garbage disposal0000
Electricity Supply System0000
Storm Water Drainage0000
Parks and Playgrounds0000
Clubhouse/community centres0000
Shopping area0000
Other0000
STP0000
renewd Energy00
Security Fire Fighting0000
Street Light0000
Electrical Sub station0000
Rain water Harvesing00
Under Grounfd Tank00
Rain water Harvesting00
Under Ground Tank00
Renewed Energy00

ParticularsYear-2021
Jan-MarApr-JuneJuly-SepOct-Dec
Roads & Pavements0000
Water Supply System0000
Sewerage treatment & garbage disposal0000
Electricity Supply System0000
Storm Water Drainage0000
Parks and Playgrounds0000
Clubhouse/community centres0000
Shopping area0000
Other0000
Under Ground Tank0000
Electrical Sub station0000
Rain water Harvesting0000
Street Light0000
Security Fire Fighting0000
Renewed Energy0000
STP0000

ParticularsYear-2022
Jan-MarApr-JuneJuly-SepOct-Dec
Roads & Pavements0
Water Supply System0
Sewerage treatment & garbage disposal0
Electricity Supply System0
Storm Water Drainage0
Parks and Playgrounds0
Clubhouse/community centres0
Shopping area0
Other0
Renewed Energy0
STP0
Rain water Harvesting0
Electrical Sub station0
Under Ground Tank0
Security Fire Fighting0
Renewable Electrical energy0
Street Light0

ParticularsYear-2023
Jan-MarApr-JuneJuly-SepOct-Dec
Roads & Pavements0
Water Supply System0
Sewerage treatment & garbage disposal0
Electricity Supply System0
Storm Water Drainage0
Parks and Playgrounds0
Clubhouse/community centres0
Shopping area0
Other0
Electrical Sub station0
Security Fire Fighting0
Renewed Energy0
STP0
Under Ground Tank0
Rain water Harvesting0
Street Light0
Renewable Electrical energy0

ParticularsYear-2024
Jan-MarApr-JuneJuly-SepOct-Dec
Roads & Pavements00
Water Supply System00
Sewerage treatment & garbage disposal00
Electricity Supply System00
Storm Water Drainage00
Parks and Playgrounds00
Clubhouse/community centres00
Shopping area00
Other00
Renewed Energy029.8
Electrical Sub Station3036.05












Particulars Remarks, if any
i. No. of Flats/Apartments constructed519
ii. No. of Flats/ Apartments booked269sold unit is Approx 45 %
iii. Total amount sale value of booked Flats, on the date of application/end of last quarter15995.54 LakhsOC obtained dated 18/10/18
iv. Total amount received from the allottees (booked Flats), on the date of application/end of last quarter9381.15 LakhsOC obtained dated 18/10/18
v. Balance amount to be received from the allottees (booked Flats, after completion), on the date of application/end of last quarter923.48 LakhsOC obtained dated 18/10/18
vi. Balance amount due and recoverable from the allottees (booked Flats) as on the date of application /end of last quarter923.48 Lakhs
vii. Amount invested in the project upto the date of application13827.22 Lakhs
Land cost (If any)3910.2 Lakhs
Apartments4803.16 Lakhs
Infrastructure1090.57 Lakhs
EDC/ Taxes Etc.4023.29 Lakhs
viii. Balance cost to be incurred for completion of the project and delivery of possession96.52 LakhsOC obtained dated 18/10/18
(a) In respect of existing allottees96.52 Lakhs
(b) In respect of rest of the project96.52 LakhsCompletion certificate pending
ix. The amount of loan raised from the banks/ financial institutions/ private persons against the project
Annex detail of the securities furnished to the banks/ financial institutions against the aforesaid loans in folder C
5200 LakhsBuilder paid secured loan
x. Total liabilities against the project up-to-date. (Annex details in folder C) 0 Lakhs



Particulars Estimated expenditure planned to be incurred as per service plan estimates or the project report. (In Lakhs)Actual expenditure incurred upto the date of application. (In Lakhs)
I. INTERNAL ROADS AND PAVEMENTS95.3595.35
II. WATER SUPPLY SYSTEM131.30131.30
III. STORM WATER DRAINAGE48.3248.32
IV. ELECTRICITY SUPPLY SYSTEM304.82304.82
V. SEWAGE TREATMENT & GARBAGE DISPOSAL86.4586.45
VI. CLUB HOUSE/COMMUNITY CENTRE00
VII. SCHOOL00
VIII. ANY OTHER00
IX. SOLID WASTE COLLECTION & MGMT SYSTEM00
X. CLUBHOUSE00
XI. NEIGHBOURHOOD SHOPPING00
XII. GREEN AREAS,PARKS,PLAYGROUNDS ETC.5.225.22
XIII. COVERED PARKING00
XIV. OPEN PARKING00
XV. GARAGES00
XVI. SECURITY SYSTEM162.19162.19
XVII. OTHER FACILITIES AS PER PROJECT REPORT353.44256.92









Yes
Yes
PUNJAB NATIONAL BANK
12381652000148
PUNB0123810
110022186
23810
Mr Sunil Bedi & Mr Karan Bedi , Address: W-24, Greater Kailash 1, New Delhi 110030 Mobile no. 9899006699 Email id- karanbedi@jmdgroup.in
YES











Yes
Yes
Yes
Yes
Yes
Yes
Yes
Yes
Yes
Yes


Yes
Yes
Yes
Yes
Yes
Yes
Yes
Yes
Statutory Approvals Statutory Approvals StatusDate
I. ENVIRONMENT CLEARANCE ALREADY BEEN OBTAINEDNA
II. BR-IIIALREADY BEEN OBTAINEDNA
III. ELECTRICAL SCHEME APPROVAL ALREADY BEEN OBTAINEDNA
IV. SERVICE PLAN AND ESIMATEALREADY BEEN OBTAINEDNA
V. FIRE NOCALREADY BEEN OBTAINEDNA
VI. OCCUPANCY CERTIFICATE ALREADY BEEN OBTAINED18-07-2018








Yes


Yes


Yes













SPECIFICATION OF CONSTRUCTION
Specification of apartments and other buildings including the following:
1FLOORING DETAILS OF VARIOUS PARTS OF HOUSEGRANITE & TILES WORK
2WALL FINISHING DETAILSGRANITE WORK, PLASTIC PAINTS
3KITCHEN DETAILSGRANITE & TILES WORK
4BATHROOM FITTINGSHIND WARE, JAGUAR,TOTO
5WOOD WORK ETCIVORY TEAK WOOD
6DOORS AND WINDOS FRAMESPOWDER COATED ALUMINIUM SECTION
7GLASS WORKTOUGHENED GLASS WORK
8ELECTRIC FITTINGSANCHOR AROMA
9CONDUCTING AND WIRING DETAILSPVC CONDUCTING, POLY CAB WIRING
10CUPBOARD DETAILSTEAK WOOD
11WATER STORAGER CC TANK
12LIFT DETAILSJOHNSON LIFTS SIX NOS WITH MAX. CAPACITY 680 KGS
13EXTERNAL GLAZINGSTOUGHENED GLASS 12 MM THICK
13.1WINDOWS/GLAZINGSTOUGHENED GLASS 6 MM THICK
14DOORSFLUSH DOORS
14.1MAIN DOORSGLASS DOORS
14.2INTERNAL DOORSMANDARIN WOOD FLUSH DOORS
15AIR CONDITIONINGNON AC BUILDING WITH PROVISION OF DX SYSTEM COOLING FOR SHOPS. ALSO SPILT AC IN IMPERIAL SUITES
16ELECTRICAL FITTINGSANCHOR AROMA
17CNG PIPE LINENA NOW
18PROVISION OF WIFI AND BROADBAND FACILITYYES
19EXTERNAL FINISHING/COLOUR SCHEMETEXTURE PAINT SHADE IVORY
20INTERNAL FINISHINGPLASTIC PAINTS
SPECIFICATION UNIT WISE
1 . LIVING/DINING/FOYER/FAMILY LOUNGE
1 . 1 FLOORVITRIFIED TILES
1 . 2 WALLSPLASTIC PAINTS
1 . 3 CEILINGPOP FALSE CEILING
2 . MASTER BEDROOM/DRESSROOM
2 . 1 FLOORWOODEN FLOORING
2 . 2 WALLSPLASTIC PAINTS
2 . 3 CEILINGPOP FALSE CEILING
2 . 4 MODULAR WARDROBESYES
3 . MASTER TOILET
3 . 1 FLOORVITRIFIED TILES
3 . 2 WALLSPLASTIC PAINTS
3 . 3 CEILINGPOP FALSE CEILING
3 . 4 COUNTERSGRANITE COUNTERS
3 . 5 SANITARY WARE/CP FITTINGSTOTO , HIND WARE , JAGUAR
3 . 6 FITTING/FIXTURESTOTO , HIND WARE , JAGUAR
4 . BED ROOMS
4 . 1 FLOORNA
4 . 2 WALLSNA
4 . 3 CEILINGNA
4 . 4 WARDROBESNA
5 . TOILET
5 . 1 FLOORNA
5 . 2 WALLSNA
5 . 3 CEILINGNA
5 . 4 COUNTERSNA
5 . 5 SANITARY WARE/CP FITTINGSNA
5 . 6 FIXTURESNA
6 . KITCHEN
6 . 1 FLOORVITRIFIED TILES
6 . 2 WALLSPLASTIC PAINTS
6 . 3 CEILINGPOP FALSE CEILING
6 . 4 COUNTERSGRANITE TOP COUNTERS
6 . 5 FIXTURESTOTO , HIND WARE , JAGUAR
6 . 6 KITCHEN APPLIANCESPHILIPS,LG MAKE
7 . UTILITY ROOMS/UTILITY BALCONY/TOILET
7 . 1 FLOORTILES
7 . 2 WALLS & CEILINGTILES
7 . 3 TOILETNA
7 . 4 BALCONYTILES
8 . SIT-OUTS
8 . 1 FLOORNA
8 . 2 WALLS & CEILINGNA
8 . 3 RAILINGSNA
8 . 4 FIXTURESNA












Sr. No.Document DescriptionDate of Document UploadView Document
1 IN CASE OF PLOTTED COLONY, THE LATEST LAYOUT PLAN 20-10-2020 View Document
2 A COMPLETE SET OF THE LAST APPROVED BUILDING PLANS 20-10-2020 View Document
3 NOC FOR HEIGHT CLEARANCE 20-10-2020 ------
4 ELECTRICAL LOAD APPROVAL 20-10-2020 ------
5 APPROVAL OF FIRE FIGHTING SCHEME 20-10-2020 ------
6 APPROVED SERVICE PLAN ESTIMATE 20-10-2020 ------
7 OCUPANCY CERTIFICATE 20-10-2020 ------
8 CHANGE OF DEVELOPER 20-10-2020 ------
9 LOI 20-10-2020 ------
10 ZONING PLAN 20-10-2020 View Document
11 CERTIFICATE FROM A CHARTERED ACCOUNTANT CERTIFYING THAT THE INFORMSTION PROVIDED BY THE APPLICANT IN FORM REP-1-C-X IS CORRECT AS PER THE BOOKS OF ACCOUNTS/ BALANCE SHEET OF THE APPLICANT 02-03-2022 View Document
12 FLOOR PLAN 05-03-2022 ------
13 NON DEFAULT CERTIFICATE FROM A CHARTERED ACCOUNTANT 05-03-2022 View Document
14 WATER SUPPLY PLAN 05-03-2022 ------
15 SEWERAGE PLAN 05-03-2022 ------
16 ROAD PLAN 05-03-2022 ------
17 DECLARATION SUPPORTED BY AFFIDAVIT DULY SIGNED BY THE PROMOTER TO BE ENCLOSED. 05-03-2022 View Document
18 DEMARCATION PLAN 05-03-2022 View Document
19 COPY OF LICENSE ALONG WITH SCHEDULE OF LAND 05-03-2022 View Document
20 IN CASE OF GROUP HOUSING/ COMMERCIAL SITES, A COPY OF THE APPROVED SITE PLAN 05-03-2022 View Document
21 ELEVATION PLAN 05-03-2022 ------
22 SECTION PLAN 05-03-2022 ------
23 PARKING PLAN 05-03-2022 ------
24 ELECTRICAL PLAN 05-03-2022 ------
25 SWM PLAN 05-03-2022 ------
26 DOCUMENTS RELATING TO THE ENTRY OF LICENSE AND COLLABORATION AGREEMENT IN THE REVENUE RECORD 05-03-2022 View Document
27 BUILDING PLANS 05-03-2022 ------
28 CASH FLOW STATEMENT OF THE PROPOSED PROJECT 05-03-2022 View Document
29 SERVICE PLANS SHOWING THE SERVICES ON THE LAYOUT PLAN 05-03-2022 View Document
30 STREET LIGHT PLAN 05-03-2022 ------
31 LANDSCAPE PLAN 07-04-2022 ------
32 SUPER IMPOSED 07-04-2022 ------
33 STRUCTURE DRAWINGS 07-04-2022 ------