HRERA GurugramTemp Project Id : RERA-GRG-PROJ-730-2020
Submission Date : 11-12-2020 04:24:38 PM
Applicant Type : Company
Project Type: ONGOING




SECTOR 113 GATEVIDA DEVELOPERS PRIVATE LIMITED
FLAT NO. GF-3, NAURANG HOUSE, PLOT NO.5, BLOCK-134 21, KASTURBA GANDHI MARG, NEW DELHI CENTRAL DELHI 110001
01244325304
7832901406 (Number Shared by Promoter in Public)
satpalsingh@tatarealty.in
XXXX552R
U45202DL2011PTC277182
 
 


 
 


 
 


 
 


 
 


 
 


 
 


 
 







GURGAON GATE WAY
SECTOR 113 GATEVIDA DEVELOPERS PRIVATE LIMITED
GURGAON
GURUGRAM
01244325304
7832901406 (Number Shared by Promoter in Public)
satpalsingh@tatarealty.in
SATPAL SINGH
01244325304
7832901406 (Number Shared by Promoter in Public)
satpalsingh@tatarealty.in








As per sub-rule(2) of rule 3 of the Haryana Real Estate (Regulation and Development) Rules,2017, the fee for registration of the project as has been calculated as follows:
-----------------------------------------------------------------------------------------------------------------------
-----------------------------------------------------------------------------------------------------------------------
-----------------------------------------------------------------------------------------------------------------------
-----------------------------------------------------------------------------------------------------------------------
2. The aforesaid fees is hereby deposited vide following Drafts/ Banker’s Cheques:-

Sr No.Draft/Cheque No.Draft DateAmountPayee BankPayable To
135071320-07-20171913000HDFC BANK, HARSHA BHAWAN, DELHI HRERA Gurugram







4.038 (Acre)
1.75
1.75
8.875 (Acre)
85 OF 2012 UPTO 28th Aug, 2020
No
Address     128, GROUND FLOOR, SECTOR 44, GURUGRAM
Annexure-B- ANNEXURE-B
YES
Yes
ATTACHED
Yes
Yes
Yes







14339.52 Lakhs
3385.10 Lakhs
9679.62 Lakhs
584.02 Lakhs
690.78 Lakhs




Sr. No.Land area under usageArea of land (Square Meters)
1PLOTS TO BE SOLD 0
2LAND AREA TO BE USED FOR CONSTRUCTION OF APARTMENTS 1109.086
3CONSTRUCTION OF ROADS 4196.40
4PAVEMENTS 865.80
5PARKS AND PLAYGROUNDS 7210.50
6GREEN BELTS 481.00
7VEHICLE PARKINGS 62.50
8ELECTRICITY SUB-STATION 68.00
9CLUB HOUSE 0
10SEWAGE AND SOLID WASTE TREATMENT FACILITY 0
11AREA TO BE LEFT FOR TRANSFERRING TO THE GOVERNMENT FOR COMMUNITY SERVICES 1710.80
12ANY OTHER 637.538
Total16341.624




FacilityExternal/ connecting service to be provided by (Name the agency)Whether Approval taken from the agency concerned. Yes/No (Annex details in folder C)
ROADSNANo
WATER SUPPLYHUDAYes
ELECTRICITYDHBVNYes
SEWAGE DISPOSALHUDAYes
STORM WATER DRAINAGEHUDAYes




Sr. No.Name of the facilityEstimated cost (In Lakhs)(Within the project area only)Remarks: Yet to be prepared / Submitted to HUDA, Town & Country Planning Department/ as per project report etc. (Annex relevant documents showing costing details etc. in folder C)
1INTERNAL ROADS AND PAVEMENTS124.88SUBMITTED TO HUDA
2WATER SUPPLY SYSTEM116.92SUBMITTED TO HUDA
3STORM WATER DRAINAGE43.84SUBMITTED TO HUDA
4ELECTRICITY SUPPLY SYSTEM71.63SUBMITTED TO HUDA
5SEWAGE TREATMENT & GARBAGE DISPOSAL80.24SUBMITTED TO HUDA
6STREET LIGHTING12.35AS PER PROJECT REPORT
7SECURITY AND FIRE FIGHTING0AS PER PROJECT REPORT
8PLAYGROUNDS AND PARKS4.52SUBMITTED TO HUDA
9CLUB HOUSE/COMMUNITY CENTRE44.70SUBMITTED TO HUDA
10SHOPPING AREA0YET TO BE PREPARED
11RENEWABLE ENERGY SYSTEM0YET TO BE PREPARED
12SCHOOL0YET TO BE PREPARED
13HOSPITAL/DISPENSARY0YET TO BE PREPARED
14ANY OTHER129.64SUBMITTED TO HUDA


02-04-2013 (date)
06-03-2016 (date)


Sr. No.Plot/ apartment type Size of the plot/carpet area of the apartments Total number of plots/apartments in the project Total size of the plots/carpet area of the apartments Plots/apartments booked/ sold upto the date of application Yet to be sold/ booked No. of towers to be/ being constructed for booked apartments
1 APARTMENT/SHOPS/OTHER BUILDINGS Type 3 BHK 122.670 41 5029.47 4 37 1
2 APARTMENT/SHOPS/OTHER BUILDINGS Type 3 BHK 125.961 44 5542.284 4 40 1
3 APARTMENT/SHOPS/OTHER BUILDINGS Type 3 BHK 281.080 2 562.16 0 2 1
4 APARTMENT/SHOPS/OTHER BUILDINGS Type 3 BHK 170.874 1 170.874 0 1 1
5 APARTMENT/SHOPS/OTHER BUILDINGS Type 3 BHK 149.300 5 746.5 0 5 1
6 APARTMENT/SHOPS/OTHER BUILDINGS Type 3 BHK 148.770 7 1041.39 0 7 1
7 APARTMENT/SHOPS/OTHER BUILDINGS Type 3 BHK 145.070 1 145.07 0 1 1
Total10113237.7488937






TypeNumber of apartments booked/ sold Write or Annex the stage of construction of the booked/ sold apartments in folder C
3 BHK8CONSTRUCTION COMPLETED AND RECEIVED THE OC ON 15.02.2019


01-09-2013
15-02-2019
15-02-2019
01-04-2017
100
15-02-2019


PlotsBooked/soldStage of handing over the possession (Write or Annex details)
PLOT00
14-09-2017
100
15-02-2019


202
0
0
5
0





Expenditure incurred till the date of application (In Lakhs)

ParticularsExpenditure
Apartments7506.19
Shops0
Plots0

Expenditure to be made in each quarter (In Lakhs)

ParticularsYear-2017
Jan-MarApr-JuneJuly-SepOct-Dec
Apartments128.4301023
Shops000
Plots000

ParticularsYear-2018
Jan-MarApr-JuneJuly-SepOct-Dec
Apartments2500195342
Shops0000
Plots0000

ParticularsYear-2019
Jan-MarApr-JuneJuly-SepOct-Dec
Apartments235
Shops0
Plots0




Expenditure incurred till the date of application (In Lakhs)

ParticularsExpenditure

Expenditure to be made in each quarter (In Lakhs)

ParticularsYear-2017
Jan-MarApr-JuneJuly-SepOct-Dec
Roads & Pavements33.8937.7421.97
Water Supply System13.4028.434.48
Sewerage treatment & garbage disposal10.608.048.25
Electricity Supply System9.9814.148.15
Storm Water Drainage18.6210.8110.81
Parks and Playgrounds004.52
Clubhouse/community centres000
Shopping area000
Other42.4912.904.39

ParticularsYear-2018
Jan-MarApr-JuneJuly-SepOct-Dec
Roads & Pavements6.4314.204.845.80
Water Supply System32.7519.997.207.20
Sewerage treatment & garbage disposal12.2013.1113.139.25
Electricity Supply System3.033.7228.4111.07
Storm Water Drainage3.60000
Parks and Playgrounds0000
Clubhouse/community centres0000
Shopping area0000
Other18.856.4627.278.41

ParticularsYear-2019
Jan-MarApr-JuneJuly-SepOct-Dec
Roads & Pavements0
Water Supply System3.46
Sewerage treatment & garbage disposal5.65
Electricity Supply System5.47
Storm Water Drainage0
Parks and Playgrounds0
Clubhouse/community centres0
Shopping area0
Other3.60












Particulars Remarks, if any
i. No. of Flats/Apartments constructed101
ii. No. of Flats/ Apartments booked8
iii. Total amount sale value of booked Flats, on the date of application/end of last quarter1971.50 Lakhs
iv. Total amount received from the allottees (booked Flats), on the date of application/end of last quarter457.55 Lakhs
v. Balance amount to be received from the allottees (booked Flats, after completion), on the date of application/end of last quarter1513.95 Lakhs
vi. Balance amount due and recoverable from the allottees (booked Flats) as on the date of application /end of last quarter0 Lakhs
vii. Amount invested in the project upto the date of application0 Lakhs
Land cost (If any)3385.10 Lakhs
Apartments7506.19 Lakhs
Infrastructure114.70 Lakhs
EDC/ Taxes Etc.690.78 Lakhs
viii. Balance cost to be incurred for completion of the project and delivery of possession2642.75 Lakhs
(a) In respect of existing allottees2173.43 Lakhs
(b) In respect of rest of the project469.32 Lakhs
ix. The amount of loan raised from the banks/ financial institutions/ private persons against the project
Annex detail of the securities furnished to the banks/ financial institutions against the aforesaid loans in folder C
7239 Lakhs
x. Total liabilities against the project up-to-date. (Annex details in folder C) 7500 LakhsLoan Outstanding as on 30.11.2020.



Particulars Estimated expenditure planned to be incurred as per service plan estimates or the project report. (In Lakhs)Actual expenditure incurred upto the date of application. (In Lakhs)
I. INTERNAL ROADS AND PAVEMENTS124.88124.88
II. WATER SUPPLY SYSTEM116.92116.92
III. STORM WATER DRAINAGE43.8443.84
IV. ELECTRICITY SUPPLY SYSTEM83.9883.98
V. SEWAGE TREATMENT & GARBAGE DISPOSAL80.2480.24
VI. CLUB HOUSE/COMMUNITY CENTRE44.7044.70
VII. SCHOOL00
VIII. ANY OTHER00
IX. SOLID WASTE COLLECTION & MGMT SYSTEM083.98
X. CLUBHOUSE00
XI. NEIGHBOURHOOD SHOPPING00
XII. GREEN AREAS,PARKS,PLAYGROUNDS ETC.4.524.52
XIII. COVERED PARKING00
XIV. OPEN PARKING00
XV. GARAGES00
XVI. SECURITY SYSTEM00
XVII. OTHER FACILITIES AS PER PROJECT REPORT84.9484.94









Yes
Yes
STATE BANK OF INDIA, CAG BRANCH MUMBAI 3RD FLOOR, NEVILLE HOUSE, J.N HEREDIA MARG BALLARD ESTATE MUMBAI- 400001, MAHARASHTRA
36113733309
SBIN0009995
400002133
9995
Attached
Attached











Yes
Yes
Yes
Yes
Yes
Yes
Yes
Yes
Yes
Yes


Yes
Yes
Yes
Yes
Yes
No
Yes
Yes
Statutory Approvals Statutory Approvals StatusDate
I. HEIGHT APPROVAL FROM AAIALREADY BEEN OBTAINED13-12-2011
II. HEIGHT APPROVAL FROM AAIALREADY BEEN OBTAINED27-06-2019
III. BUILDING PLAN APPROVAL FROM DT & CP HARYANAALREADY BEEN OBTAINED03-06-2016
IV. FIRE NOC FROM HARYANA FIRE SERVICEALREADY BEEN OBTAINED12-04-2017
V. FOREST DEPARTMENT CLEARANCEALREADY BEEN OBTAINED08-05-2013
VI. LOAD SANCTION APPROVALALREADY BEEN OBTAINED28-06-2017
VII. OCCUPANCY CERTIFICATEALREADY BEEN OBTAINED15-02-2019
VIII. NOC FOR USE OF WATER FOR CONSTRUCTION FROM HUDAALREADY BEEN OBTAINED21-03-2013








Yes


Yes


As provided













SPECIFICATION OF CONSTRUCTION
Specification of apartments and other buildings including the following:
1FLOORING DETAILS OF VARIOUS PARTS OF HOUSEMARBLE, LAMINATED WOOD, ENGINEERED WOOD, TILES
2WALL FINISHING DETAILSPLASTICEMULSIONPAINT, CERAMIC TILE DADO IN TOILET
3KITCHEN DETAILSVITRIFIED TILE FLOORING, 600MM HIGH TILE DADO ON WALLS, STAINLESS STEEL SINK, EXHAUST FAN
4BATHROOM FITTINGSVITRIFIED TILE FLOORING, CERAMIC TILE DADO, CP FITTINGS AND CHINAWARE
5WOOD WORK ETCNA
6DOORS AND WINDOS FRAMESEXTERNAL WINDOWS/DOORS –ALUMINIUM , INTERNAL DOORS WOODEN PAINTED/POLISHED DOOR FRAMES
7GLASS WORKSS RAILING WITH GLASS
8ELECTRIC FITTINGSMODULAR SWITCHES
9CONDUCTING AND WIRING DETAILSCONCEALED CONDUITING AND WIRING
10CUPBOARD DETAILSNA
11WATER STORAGEUNDER GROUND AND OVER HEAD WATER TANKS
12LIFT DETAILSBRANDED LIFTS
13EXTERNAL GLAZINGSALUMINIUM WITH GLASS
13.1WINDOWS/GLAZINGSALUMINIUM WITH GLASS
14DOORSINTERNAL DOORS FLUSH DOORS WITH VENEER/LAMINATE
14.1MAIN DOORSFLUSH DOOR WITH VENEER POLISHED
14.2INTERNAL DOORSFLUSHDOOR WITH LAMINATE
15AIR CONDITIONINGTOWER F-AIR-CONDITIONERFITTEDINALL ROOMS, TOWER A- AIRCONDITIONER FITTED IN LIVING AND DINING ONLY
16ELECTRICAL FITTINGSMODULAR SWITCHES
17CNG PIPE LINENA
18PROVISION OF WIFI AND BROADBAND FACILITYPROVISION ONLY
19EXTERNAL FINISHING/COLOUR SCHEMETEXTURE/WEATHER PROOF PAINT
20INTERNAL FINISHINGPLASTICEMULSION/ OBD PAINT
SPECIFICATION UNIT WISE
1 . LIVING/DINING/FOYER/FAMILY LOUNGE
1 . 1 FLOORMARBLE FLOORING
1 . 2 WALLSPLASTICE EMULSION PAINT, MODULAR SWITCHES
1 . 3 CEILINGFALSE CEILING WITH PAINT
2 . MASTER BEDROOM/DRESSROOM
2 . 1 FLOORENGINEERED WOODEN FLOORING
2 . 2 WALLSPLASTICE EMULSIONPAINT, MODULAR SWITCHES
2 . 3 CEILINGFALSE CEILING WITH PAINT
2 . 4 MODULAR WARDROBES• NOT APPLICABLE
3 . MASTER TOILET
3 . 1 FLOOR• VITRIFIED TILES
3 . 2 WALLS• DADO IN CERAMIC TILES
3 . 3 CEILINGFALSE CEILING WITH PAINT
3 . 4 COUNTERSNOT APPLICABLE
3 . 5 SANITARY WARE/CP FITTINGSCP AND SANITARY FITTINGS
3 . 6 FITTING/FIXTURES• EXHAUST FAN • GEYSER
4 . BED ROOMS
4 . 1 FLOOR• VITRIFIED TILE
4 . 2 WALLS• PLASTIC EMULSION PAINT
4 . 3 CEILINGFALSE CEILING WITH PAINT
4 . 4 WARDROBESNOT APPLICABLE
5 . TOILET
5 . 1 FLOOR• VITRIFIED TILES
5 . 2 WALLS• CERAMICTILES
5 . 3 CEILINGFALSE CEILING WITH PAINT
5 . 4 COUNTERSNOT APPLICABLE
5 . 5 SANITARY WARE/CP FITTINGS• CPANDSANITARYFITTINGS • MODULARSWITCHES
5 . 6 FIXTURES• EXHAUST FAN
6 . KITCHEN
6 . 1 FLOOR• VITRIFIEDTILES
6 . 2 WALLS• PLASTICEMULSIONPAINT WITH 600MM CERAMIC TILE DADO ABOVE COUNTER
6 . 3 CEILING• OBD PAINT
6 . 4 COUNTERSNOT APPLICABLE
6 . 5 FIXTURES• MODULAR SWITCHES
6 . 6 KITCHEN APPLIANCES• GEYSER • EXHAUST FAN • STAINLESSSTEELSINK
7 . UTILITY ROOMS/UTILITY BALCONY/TOILET
7 . 1 FLOOR• ANTISKID CERAMIC TILES
7 . 2 WALLS & CEILINGNA
7 . 3 TOILET• VITRIFIED TILES
7 . 4 BALCONY• ANTISKID VITRIFIED TILES, ANODIZED ALUMINIUM SLIDING / SINGLE SHUTTER DOOR.
8 . SIT-OUTS
8 . 1 FLOORNOT APPLICABLE
8 . 2 WALLS & CEILINGNOT APPLICABLE
8 . 3 RAILINGSNOT APPLICABLE
8 . 4 FIXTURESNOT APPLICABLE












Sr. No.Document DescriptionDate of Document UploadView Document
1 PARKING DRG NO.MP 005 26-11-2020 View Document
2 DETAILS OF FAR ACHEIVED AND PERMISSIBLE - APPROVED SITE PLAN 26-11-2020 View Document
3 PARKING DRG NO.MP 004A 26-11-2020 View Document
4 PARKING DRG NO.MP 004 26-11-2020 View Document
5 ROAD AND FOOTPATH PLAN 26-11-2020 View Document
6 PARKING DRG NO.MP 005A 26-11-2020 View Document
7 DECLARATION SUPPORTED BY AFFIDAVIT DULY SIGNED BY THE PROMOTER TO BE ENCLOSED. 26-11-2020 View Document
8 STREET LIGHTING PLAN 26-11-2020 View Document
9 CASH FLOW STATEMENT OF THE PROPOSED PROJECT 26-11-2020 View Document
10 DETAILS OF PERMISSIBLE FAR ZONING 21 ACRES 26-11-2020 View Document
11 PARKING DRG NO.MP 003 26-11-2020 View Document
12 DETAILS OF FAR ACHEIVED AND PERMISSIBLE - APPROVED SITE PLAN 26-11-2020 View Document
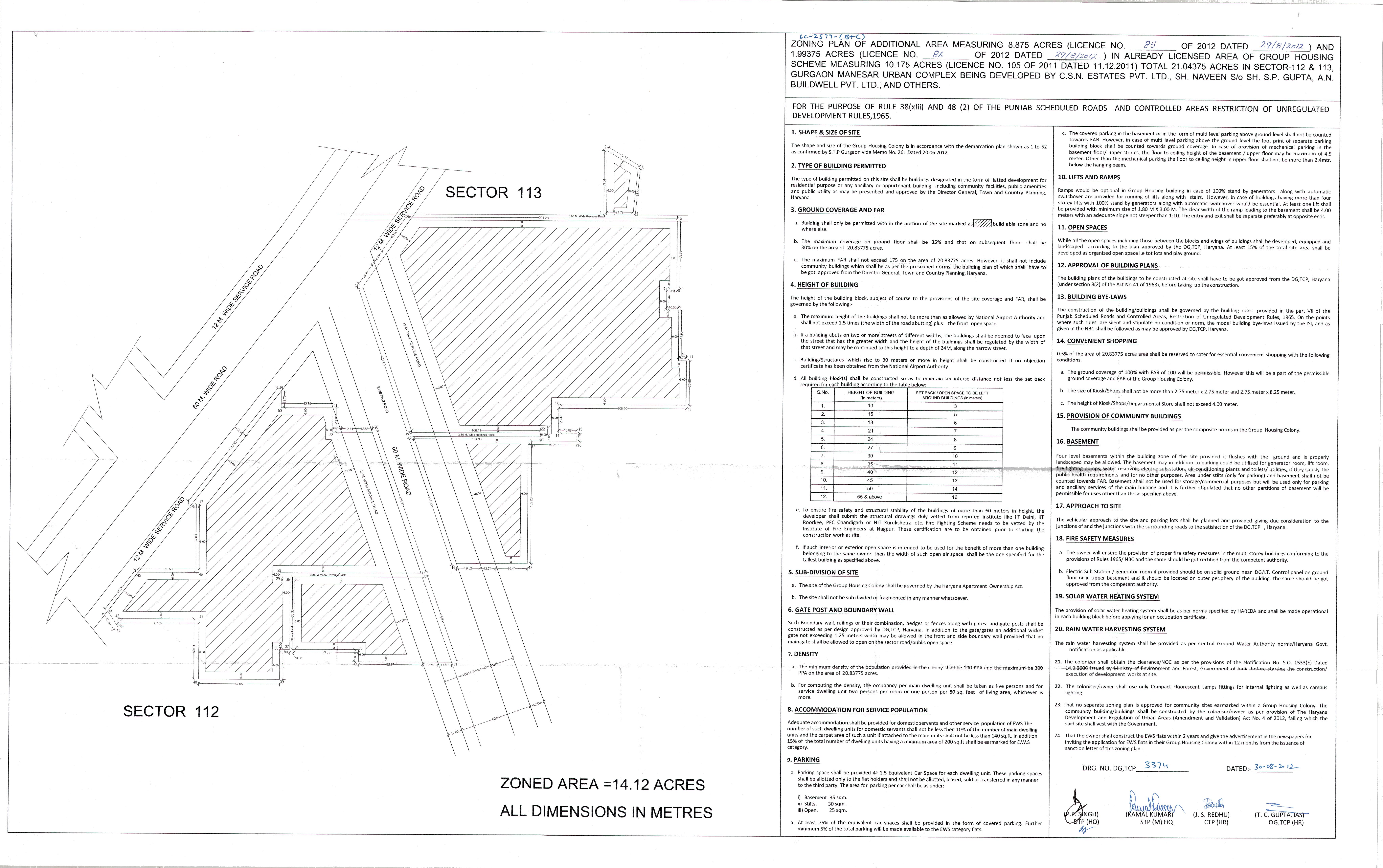
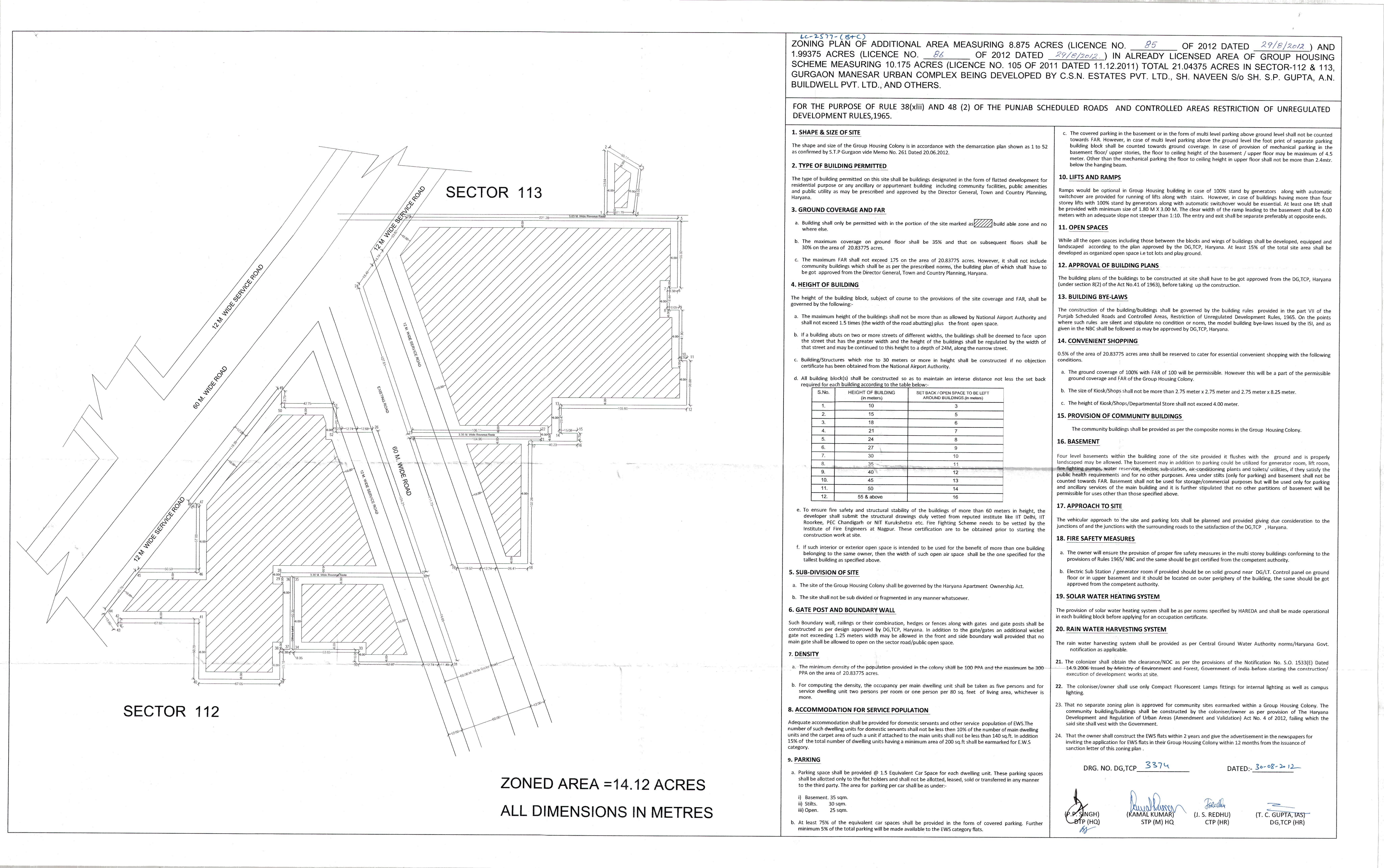
13 ZONING PLAN 23-08-2020 View Document
14 FOREST DEPARTMENT CLEARANCE 23-08-2020 View Document
15 DEMARCATION PLAN 23-08-2020 View Document
16 SERVICE PLANS SHOWING THE SERVICES ON THE LAYOUT PLAN-2 23-08-2020 View Document
17 BUILDING PLAN - BR III 23-08-2020 View Document
18 SERVICE PLANS SHOWING THE SERVICES ON THE LAYOUT PLAN-3 23-08-2020 View Document
19 LOWER BASEMENT PLAN 23-08-2020 View Document
20 NON DEFAULT CERTIFICATE FROM A CHARTERED ACCOUNTANT 23-08-2020 View Document
21 SERVICE PLANS SHOWING THE SERVICES ON THE LAYOUT PLAN-4 23-08-2020 View Document
22 CERTIFICATE FROM A CHARTERED ACCOUNTANT CERTIFYING THAT THE INFORMSTION PROVIDED BY THE APPLICANT IN FORM REP-1-C-X IS CORRECT AS PER THE BOOKS OF ACCOUNTS/ BALANCE SHEET OF THE APPLICANT 23-08-2020 View Document
23 SERVICE PLANS SHOWING THE SERVICES ON THE LAYOUT PLAN-5 23-08-2020 View Document
24 DRAFT OF ALLOTMENT LETTER 04-09-2020 View Document
25 DD FOR THE PROJECT REGISTRATION FEE 23-08-2020 View Document
26 STORM WATER DRAINAGE 23-08-2020 View Document
27 AIRPORT AUTHORITY OF INDIA NOC DATED 13-12-2011 23-08-2020 View Document
28 AIRPORT AUTHORITY OF INDIA NOC DATED 27.06.2019 23-08-2020 View Document
29 FLOOR PLAN BUILDING A 23-08-2020 View Document
30 ENVIRONMENT CLEARANCE NOC 23-08-2020 View Document
31 NOC FROM FIRE DEPARTMENT 23-08-2020 View Document
32 ELECTRIFICATION PLAN APPROVAL 23-08-2020 View Document
33 SITE PLAN 23-08-2020 View Document
34 OCCUPANCY CERTIFICATE 23-08-2020 View Document
35 ELEVATION AND SECTION TOWER A 23-08-2020 View Document
36 A COMPLETE SET OF THE LAST APPROVED BUILDING PLANS 24-08-2020 View Document
37 IN CASE OF GROUP HOUSING/ COMMERCIAL SITES, A COPY OF THE APPROVED SITE PLAN 23-08-2020 View Document
38 FLOOR PLAN BUILDING A 23-08-2020 View Document
39 ELEVATION AND SECTION BUILDING F 23-08-2020 View Document
40 FLOOR PLAN BUILDING A 23-08-2020 View Document
41 TERRACE PLAN BUILDING A 23-08-2020 View Document
42 FLOOR PLAN BUILDING F 23-08-2020 View Document
43 FLOOR PLAN BUILDING F 23-08-2020 View Document
44 SERVICE PLANS SHOWING THE SERVICES ON THE LAYOUT PLAN 23-08-2020 View Document
45 SERVICE PLANS SHOWING THE SERVICES ON THE LAYOUT PLAN-1 23-08-2020 View Document
46 COPY OF LICENSE ALONG WITH SCHEDULE OF LAND 04-09-2020 View Document
47 DRAFT OF BUILDER BUYER AGREEMENT 04-09-2020 View Document
48 DOCUMENTS RELATING TO THE ENTRY OF LICENSE AND COLLABORATION AGREEMENT IN THE REVENUE RECORD 04-09-2020 View Document
49 COLLOBORATION AGREEMENT ABAGH HI TECH 04-09-2020 View Document
50 COLLOBORATION AGREEMENT OMPRAKASH 04-09-2020 View Document
51 IN CASE OF PLOTTED COLONY, THE LATEST LAYOUT PLAN 04-09-2020 View Document
52 COLLORBORATION AGREEMENT AN BUILDWELL 04-09-2020 View Document
53 COLLOBORATION AGREEMENT NAVEEN GUPTA 04-09-2020 View Document
54 COLLOBORATION AGREEMENT BHAY RAM 04-09-2020 View Document
55 SERVICE ESTIMATES 11-05-2021 View Document
56 SERVICE APPROVAL LETTER 11-05-2021 View Document
57 SERVICE ESTIMATES 11-05-2021 View Document
58 FIRE APPROVAL 11-05-2021 View Document
59 NON-ENCUMBRANCE CERTIFICATE 11-05-2021 View Document
60 AUTHORISED SIGNATORY TO OPERATE THE BANK ACCOUNT 11-05-2021 View Document












Sr. No.Document DescriptionDate of Document UploadView Document
1 Occupation Certificate 12-07-2024 View Document
2 Occupation Certificate 12-07-2024 View Document