HRERA GurugramTemp Project Id : RERA-GRG-PROJ-721-2020
Submission Date : 11-08-2020 01:38:10 PM
Applicant Type : Company
Project Type: ONGOING




EMAAR MGF LAND LTD
EMAAR BUSINESS PARK, SIKANDERPUR SECTOR- 28, GURUGRAM, HARYANA 122001
1244421155
9743999521 (Number Shared by Promoter in Public)
coordination@emaar-india.com
http://emaar-india.com/
XXXX308B
U45201DL2005PLC133161
 
 


 
 


 
 







PALM DRIVE & PALM TERRACE SELECT
SECTOR 66
BADSHAHPUR ST
GURUGRAM
1244421155
9811907004 (Number Shared by Promoter in Public)
coordination@emaar-india.com
RAJNISH BHARDWAJ
1244421155
9811907004 (Number Shared by Promoter in Public)
Rajnish.Bhardwaj@Emaar-India.com








As per sub-rule(2) of rule 3 of the Haryana Real Estate (Regulation and Development) Rules,2017, the fee for registration of the project as has been calculated as follows:
-----------------------------------------------------------------------------------------------------------------------
-----------------------------------------------------------------------------------------------------------------------
-----------------------------------------------------------------------------------------------------------------------
-----------------------------------------------------------------------------------------------------------------------
2. The aforesaid fees is hereby deposited vide following Drafts/ Banker’s Cheques:-

Sr No.Draft/Cheque No.Draft DateAmountPayee BankPayable To
120412113-07-20201155415.780HSBCHRERA Gurugram
219927204-10-20182413241HSBCHRERA Gurugram







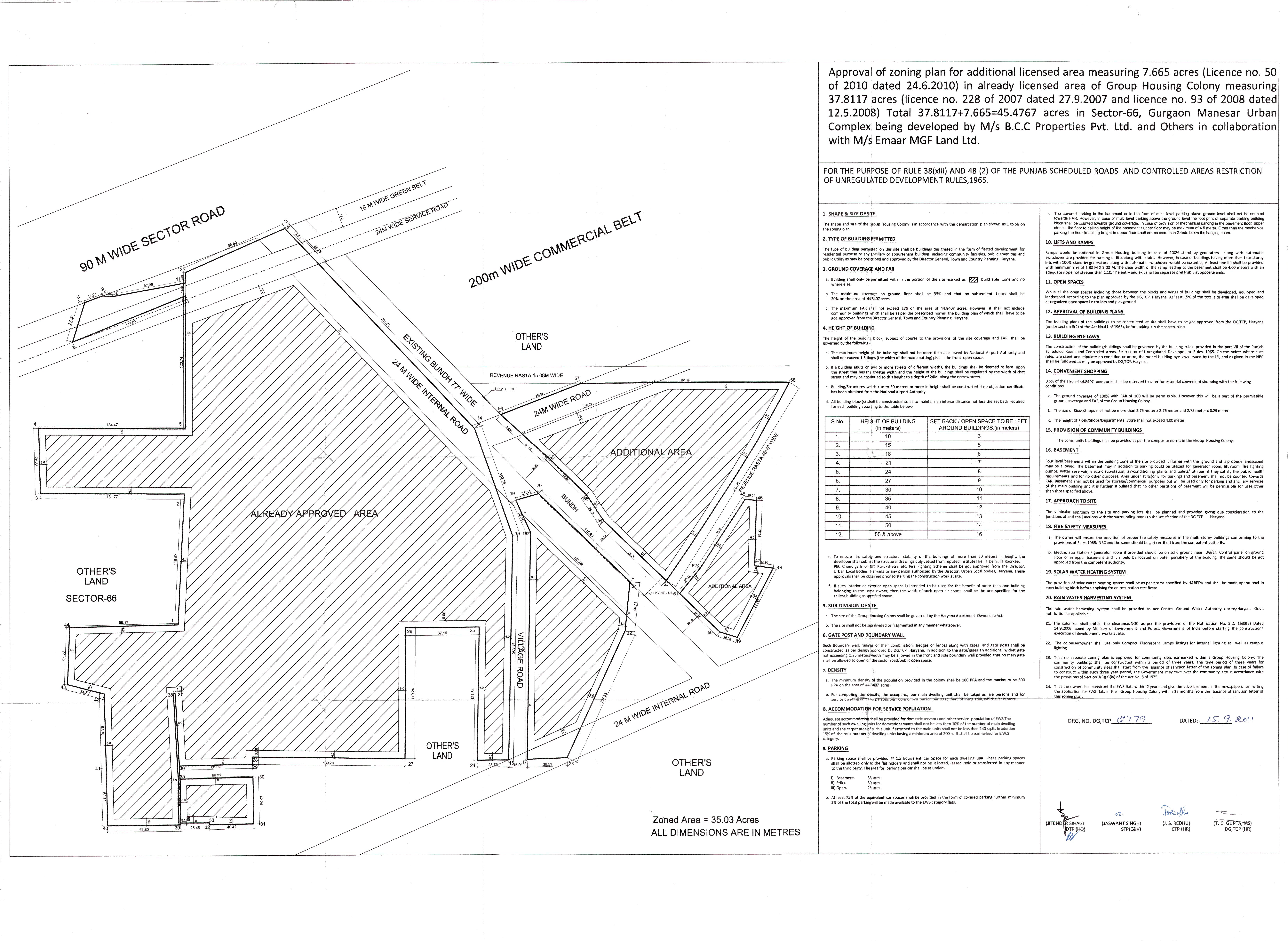
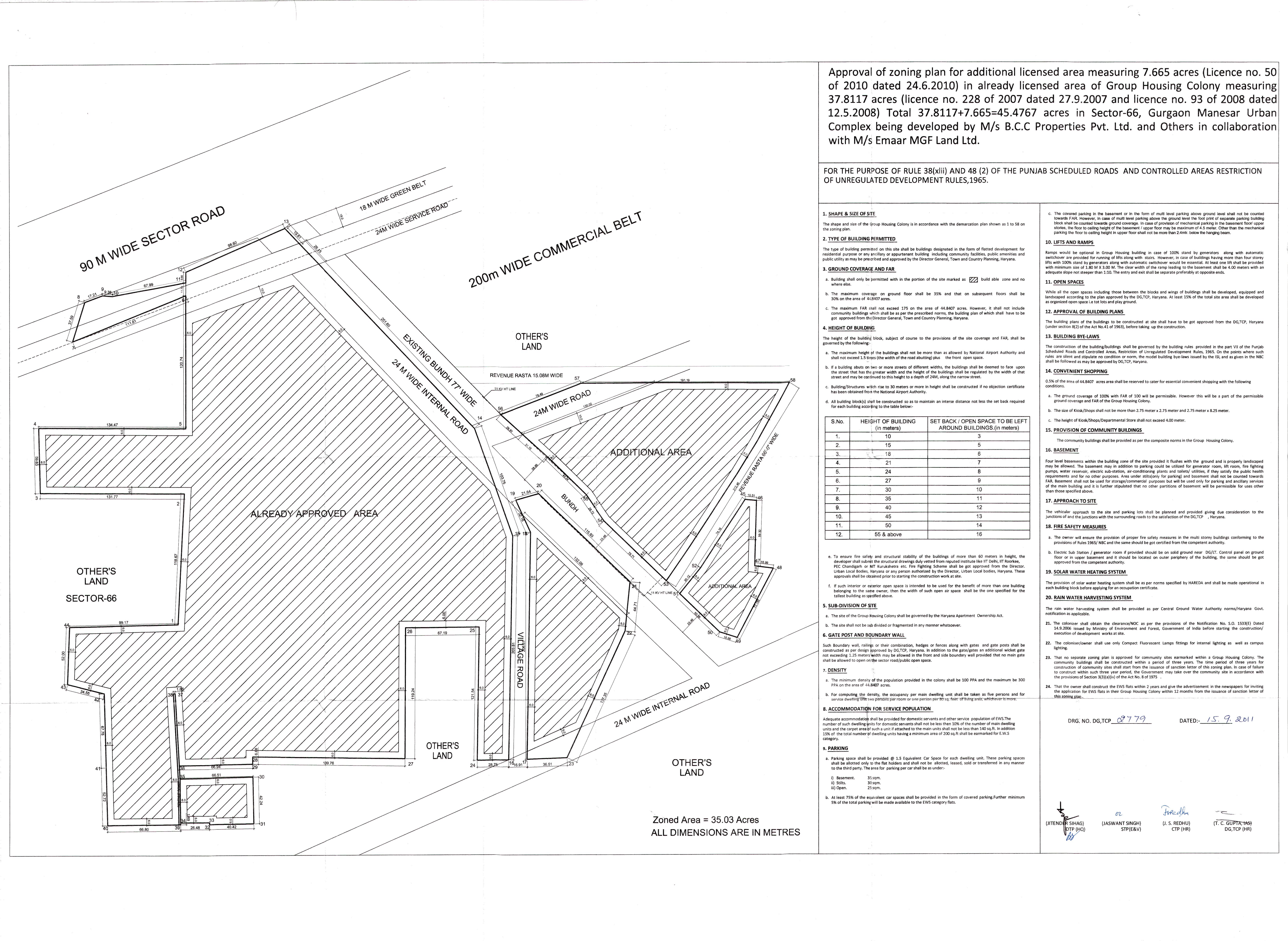
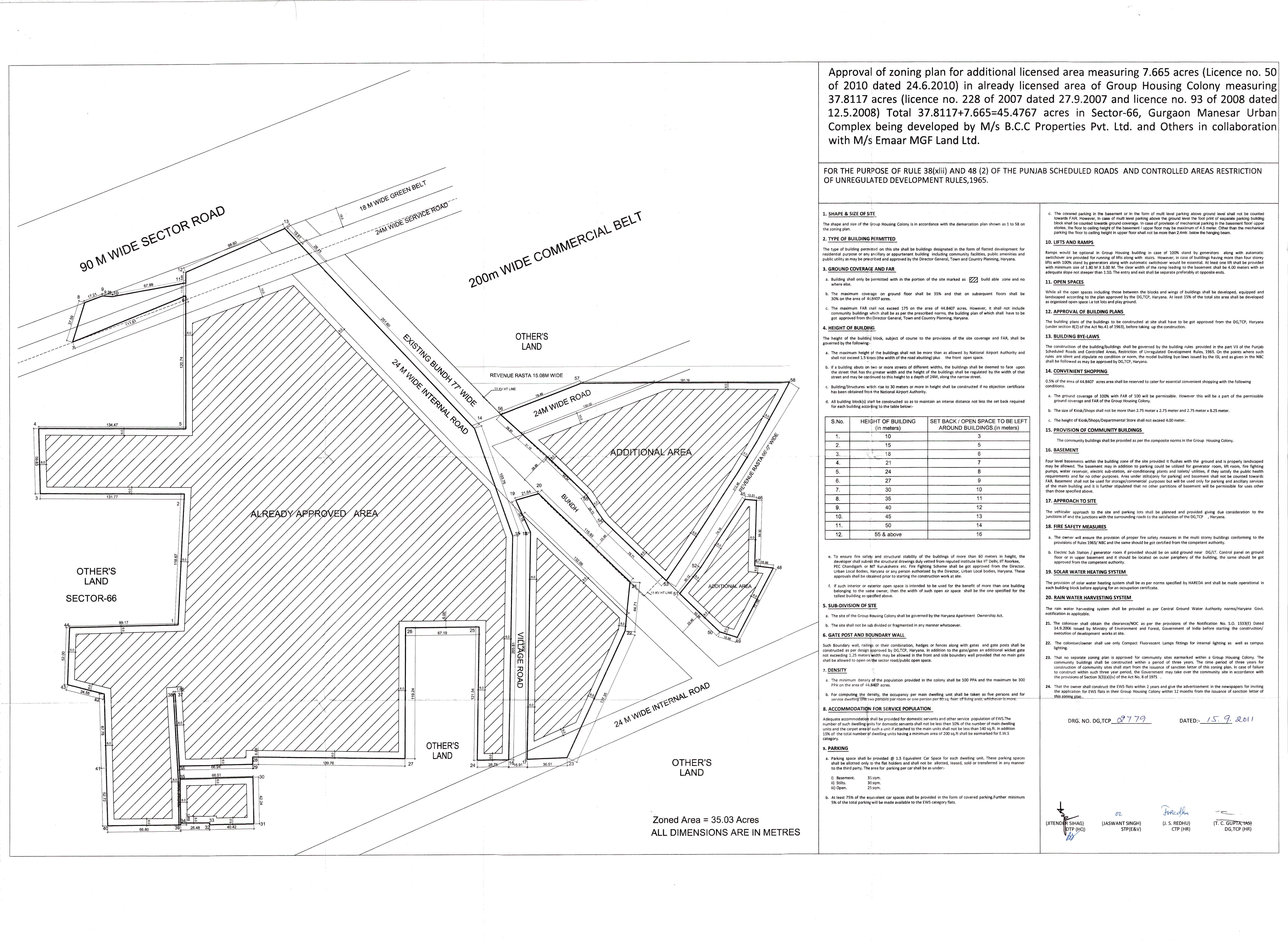
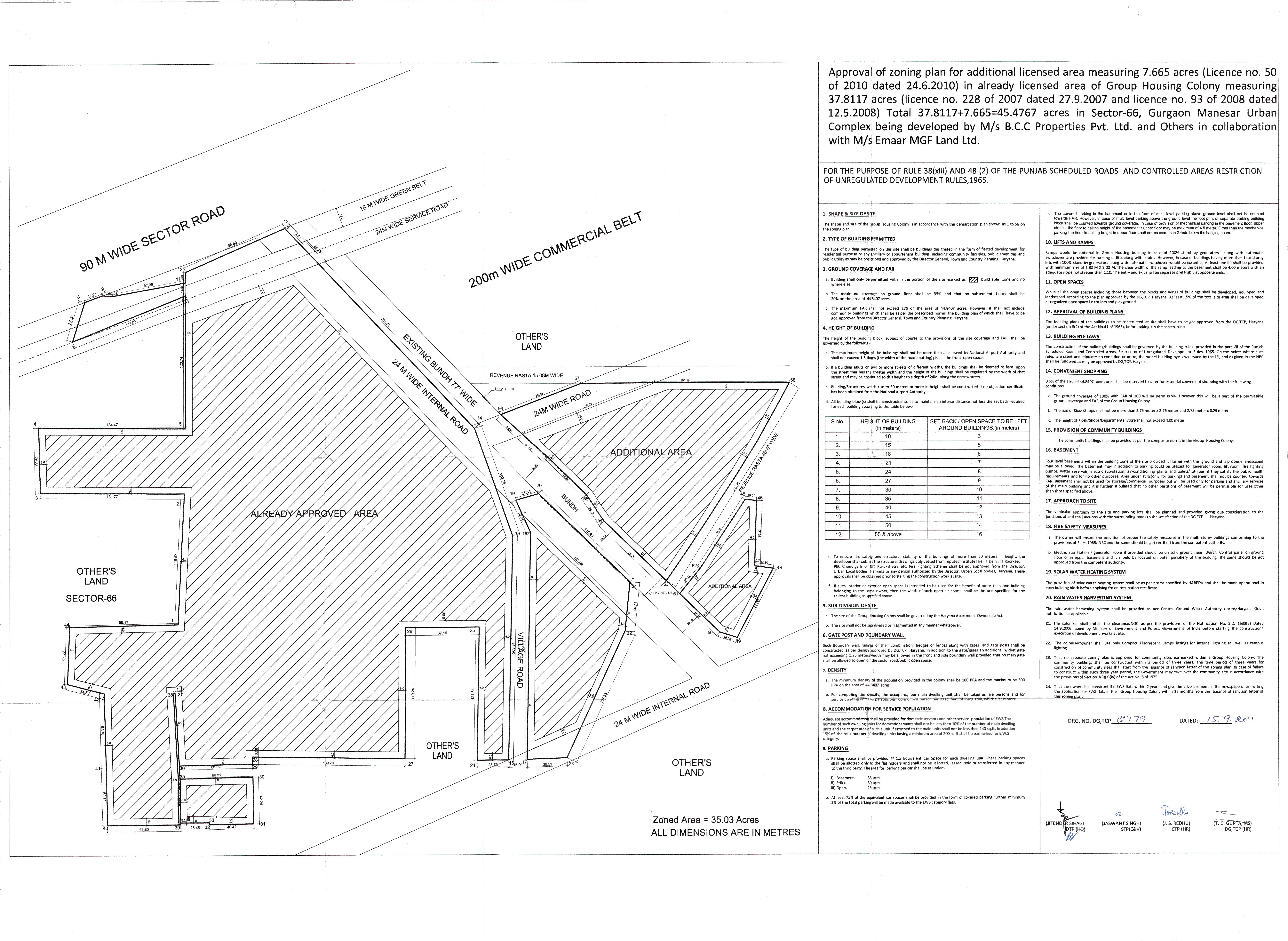
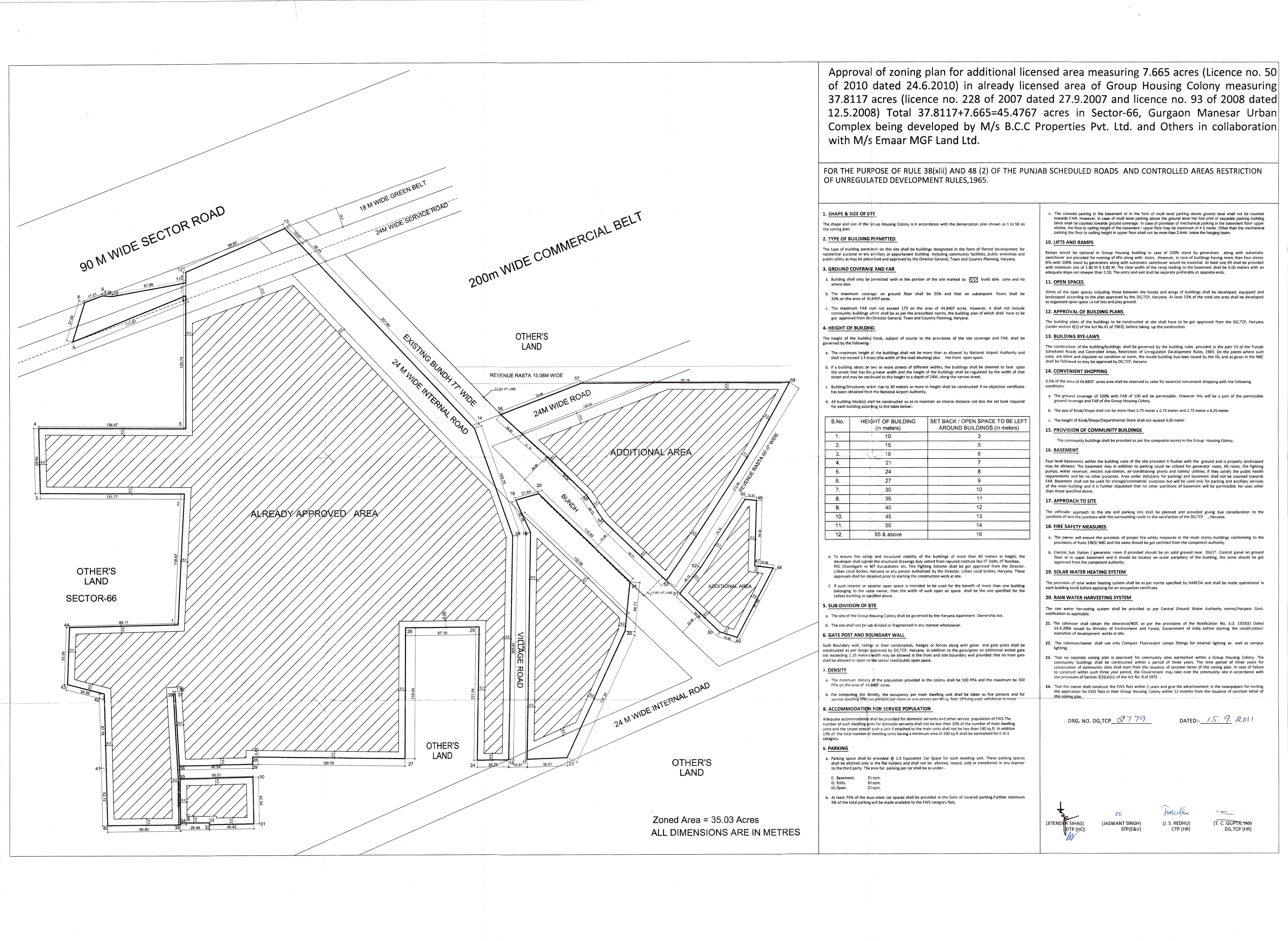
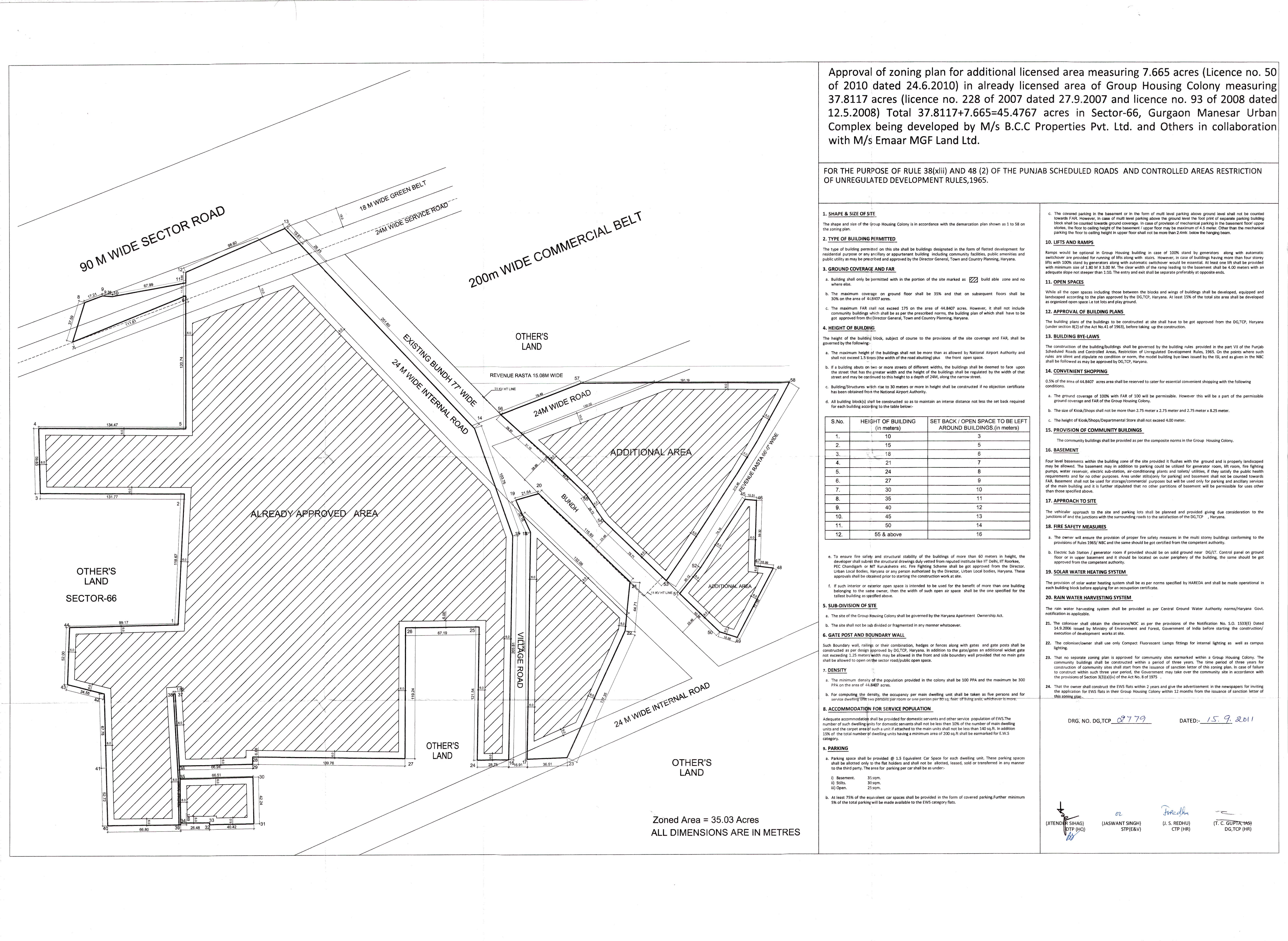
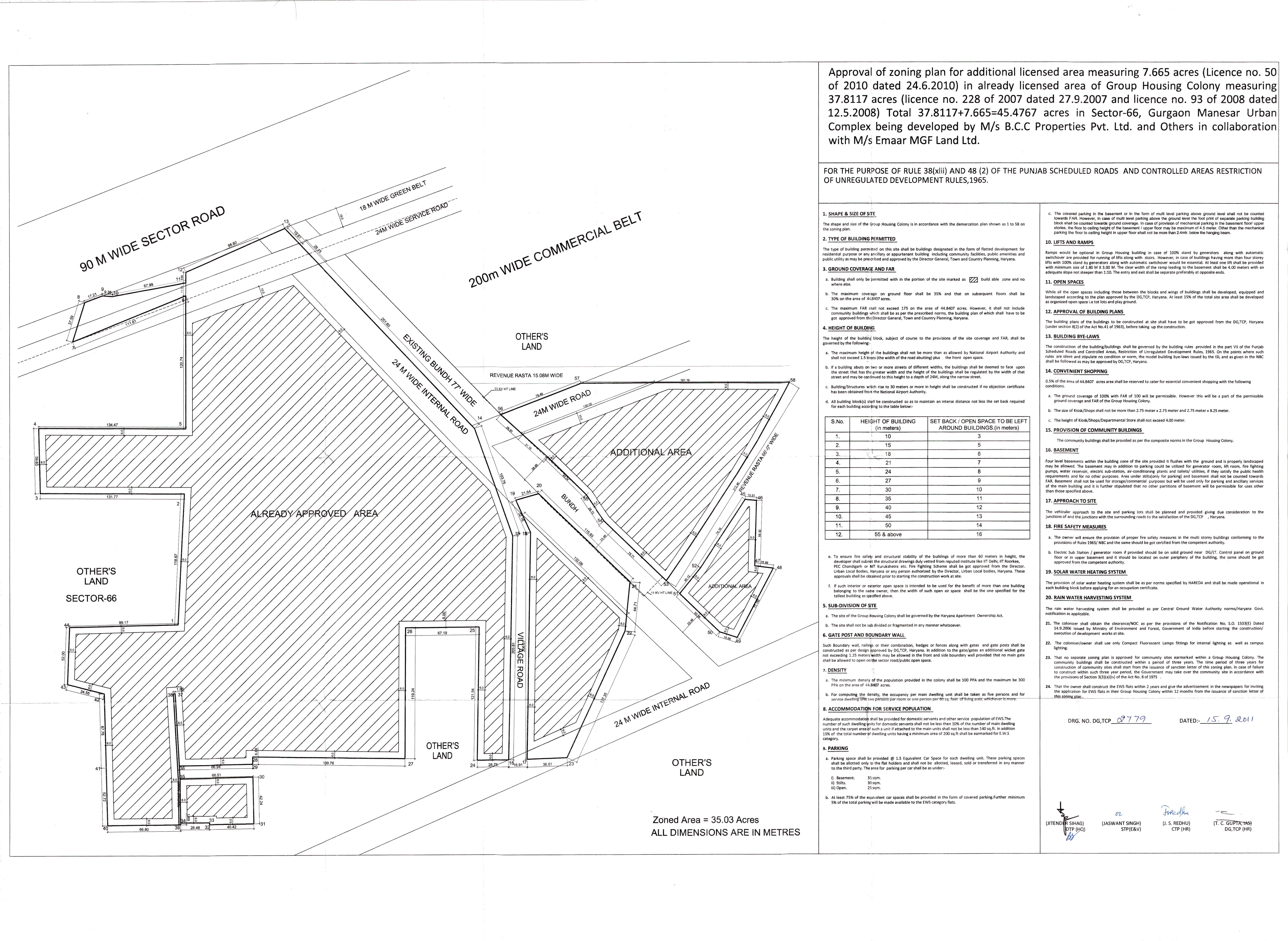
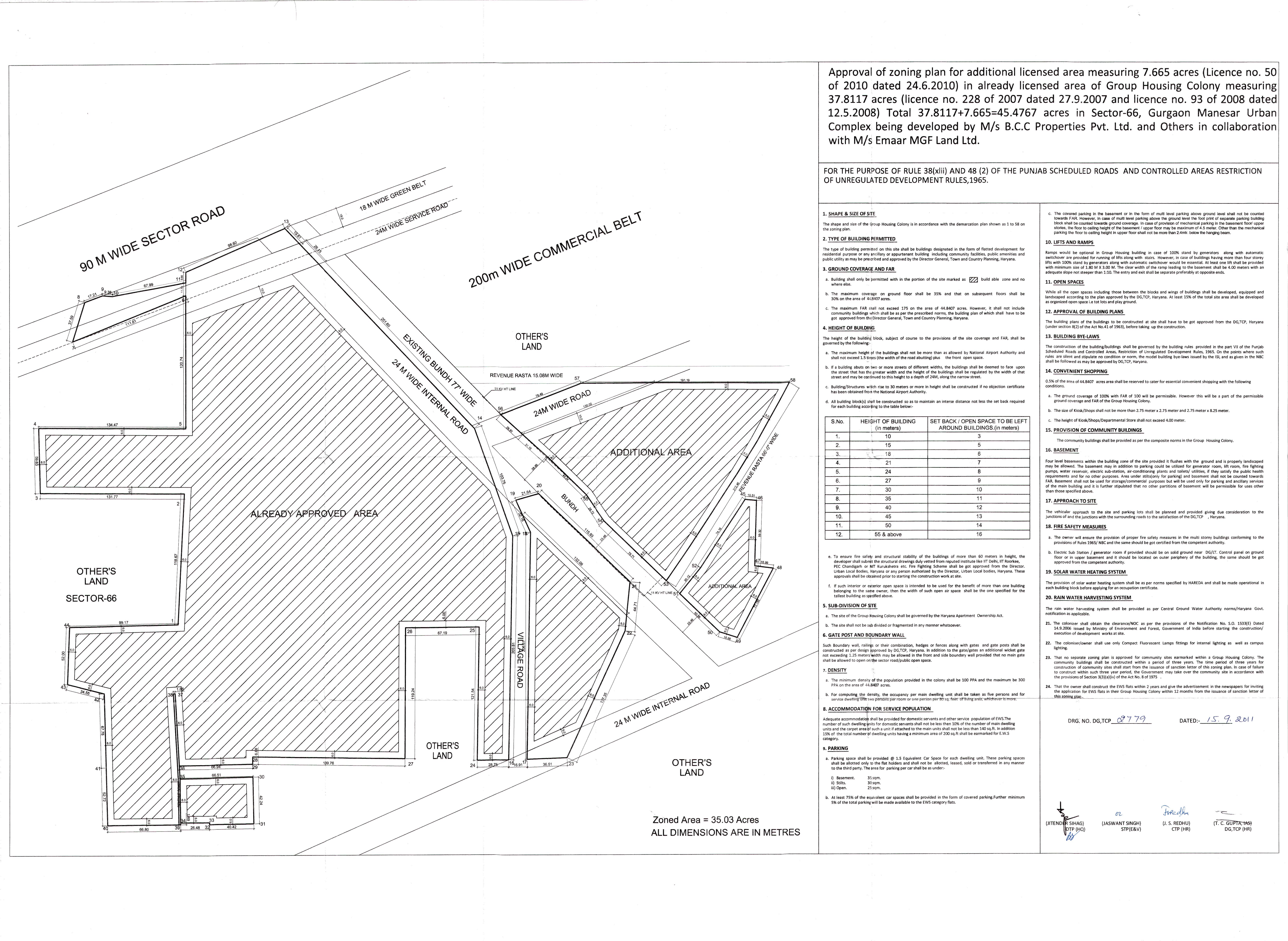
17.429 (Acre)
175
173.85
45.4767 (Acre)
228 of 2007, 93 of 2008, 50 of 2010
No
Address     306-308, SQUARE ONE, C2, DISTRICT CENTRE SAKET, NEW DELHI- 110017
Address     306-308, SQUARE ONE, C2, DISTRICT CENTRE SAKET, NEW DELHI- 110017
Address     306-308, SQUARE ONE, C2, DISTRICT CENTRE SAKET, NEW DELHI- 110017
Address     306-308, SQUARE ONE, C2, DISTRICT CENTRE SAKET, NEW DELHI- 110017
Address     306-308, SQUARE ONE, C2, DISTRICT CENTRE SAKET, NEW DELHI- 110017
Address     306-308, SQUARE ONE, C2, DISTRICT CENTRE SAKET, NEW DELHI- 110017
Address     306-308, SQUARE ONE, C2, DISTRICT CENTRE SAKET, NEW DELHI- 110017
Annexure-B- AS DEVELOPER
BY VIRTUE OF A COLLABORATION AGREEMENT
No
THE OWNER SHALL BE ENTITLED TO RETAIN SUCH PORTION OF THE REVENUE AS IS EQUIVALENT TO (A) THE COST OF THE LAND AND PERCENTAGE(ONE PERCENT) MARK UP ON THE COST OF LAND OR (B) THE CIRCLE RATE AS APPLICABLE TO THE STATE OR (C) RS 25000 PER ACRE WHICHEVER IS LOWER, AS CONSIDERATION IN RESPECT OF THE RIGHTS ASSIGNED TO THE DEVELOPER FOR DEVELOPMENT OF THE PROJECT WHICH SHALL BECAME PAYABLE AS AND WHEN THE REVENUE IS RECOGNIZED BY THE DEVELOPER IN RESPECT OF SUCH LAND.
No
Yes
Yes







62449.48 Lakhs
6106.00 Lakhs
37233.87 Lakhs
3761.00 Lakhs
15348.61 Lakhs




Sr. No.Land area under usageArea of land (Acres)
1PLOTS TO BE SOLD 0
2LAND AREA TO BE USED FOR CONSTRUCTION OF APARTMENTS 3.75
3CONSTRUCTION OF ROADS 6.00
4PAVEMENTS 0
5PARKS AND PLAYGROUNDS 3.378
6GREEN BELTS 0
7VEHICLE PARKINGS 1.44
8ELECTRICITY SUB-STATION 0
9CLUB HOUSE 0
10SEWAGE AND SOLID WASTE TREATMENT FACILITY 0
11AREA TO BE LEFT FOR TRANSFERRING TO THE GOVERNMENT FOR COMMUNITY SERVICES 0
12ANY OTHER 0
13COMMERCIAL UNITS 0.22
14COMMUNITY CENTRE 0.24
15SCHOOLS 2.40
Total17.428




FacilityExternal/ connecting service to be provided by (Name the agency)Whether Approval taken from the agency concerned. Yes/No (Annex details in folder C)
ROADSALREADY CONNECTEDYes
WATER SUPPLYGMDAYes
ELECTRICITYDHBVNYes
SEWAGE DISPOSALNAYes
STORM WATER DRAINAGEGMDAYes




Sr. No.Name of the facilityEstimated cost (In Lakhs)(Within the project area only)Remarks: Yet to be prepared / Submitted to HUDA, Town & Country Planning Department/ as per project report etc. (Annex relevant documents showing costing details etc. in folder C)
1INTERNAL ROADS AND PAVEMENTS323.19AS PER PROJECT REPORT
2WATER SUPPLY SYSTEM120.85AS PER PROJECT REPORT
3STORM WATER DRAINAGE546.27AS PER PROJECT REPORT
4ELECTRICITY SUPPLY SYSTEM186.80AS PER PROJECT REPORT
5SEWAGE TREATMENT & GARBAGE DISPOSAL145.67AS PER PROJECT REPORT
6STREET LIGHTING16.62AS PER PROJECT REPORT
7SECURITY AND FIRE FIGHTING96.09AS PER PROJECT REPORT
8PLAYGROUNDS AND PARKS139.63AS PER PROJECT REPORT
9CLUB HOUSE/COMMUNITY CENTRE0YET TO BE PREPARED
10SHOPPING AREA0YET TO BE PREPARED
11RENEWABLE ENERGY SYSTEM9.43AS PER PROJECT REPORT
12SCHOOL0YET TO BE PREPARED
13HOSPITAL/DISPENSARY0YET TO BE PREPARED
14ANY OTHER0YET TO BE PREPARED
15PARKING13.98AS PER PROJECT REPORT
16STP107.59AS PER PROJECT REPORT
17UGT107.55AS PER PROJECT REPORT
18RAIN WATER HARVESTING32.99AS PER PROJECT REPORT
19ELECTRICAL SUB STATION560.69AS PER PROJECT REPORT


27-09-2007 (date)
09-06-2008 (date)


Sr. No.Plot/ apartment type Size of the plot/carpet area of the apartments Total number of plots/apartments in the project Total size of the plots/carpet area of the apartments Plots/apartments booked/ sold upto the date of application Yet to be sold/ booked No. of towers to be/ being constructed for booked apartments
1 APARTMENT/SHOPS/OTHER BUILDINGS Type THE ENCLAVE-TOWER P- 3BHK 110.84 32 3546.88 32 0 1
2 APARTMENT/SHOPS/OTHER BUILDINGS Type THE ENCLAVE- TOWER P- 4 BHK 150.23 32 4807.36 32 0 1
3 APARTMENT/SHOPS/OTHER BUILDINGS Type THE ENCLAVE- TOWER Q- 3 BHK 107.32 31 3326.92 31 0 1
4 APARTMENT/SHOPS/OTHER BUILDINGS Type THE ENCLAVE- TOWER Q- 3 BHK 110.84 33 3657.72 33 0 1
5 APARTMENT/SHOPS/OTHER BUILDINGS Type PALM TERRACES- BLOCK U1- 4 BHK 125.99 120 15118.8 120 0 1
6 APARTMENT/SHOPS/OTHER BUILDINGS Type PALM TERRACE- BLOCK W (TOWER S8 & S9)- 4 BHK 125.99 56 7055.44 56 0 1
7 APARTMENT/SHOPS/OTHER BUILDINGS Type PREMIER TERRACES- TOWER F- 3 BHK 120.50 32 3856 32 0 1
8 APARTMENT/SHOPS/OTHER BUILDINGS Type PREMIER TERRACES- TOWER F- 3 BHK 127.67 29 3702.43 29 0 1
9 APARTMENT/SHOPS/OTHER BUILDINGS Type PREMIER TERRACES- TOWER F- 3 BHK 107.32 1 107.32 1 0 1
10 APARTMENT/SHOPS/OTHER BUILDINGS Type PREMIER TERRACES- TOWER F-4 BHK 159.52 18 2871.36 18 0 1
11 APARTMENT/SHOPS/OTHER BUILDINGS Type PREMIER TERRACES- TOWER F-4 BHK 228.63 1 228.63 1 0 1
12 APARTMENT/SHOPS/OTHER BUILDINGS Type PREMIER TERRACES- TOWER F-4 BHK 235.60 1 235.6 1 0 1
13 APARTMENT/SHOPS/OTHER BUILDINGS Type PREMIER TERRACES- TOWER F-4 BHK 274.75 2 549.5 2 0 1
14 APARTMENT/SHOPS/OTHER BUILDINGS Type PREMIER TERRACES- TOWER G- 3 BHK 107.32 2 214.64 2 0 1
15 APARTMENT/SHOPS/OTHER BUILDINGS Type PREMIER TERRACES- TOWER G- 3 BHK 120.50 62 7471 62 0 1
16 APARTMENT/SHOPS/OTHER BUILDINGS Type PREMIER TERRACES- TOWER G- 3 BHK 127.67 30 3830.1 30 0 1
17 APARTMENT/SHOPS/OTHER BUILDINGS Type PREMIER TERRACES- TOWER G- 4 BHK 228.63 1 228.63 1 0 1
18 APARTMENT/SHOPS/OTHER BUILDINGS Type PREMIER TERRACES- TOWER G- 4 BHK 235.60 1 235.6 1 0 1
19 APARTMENT/SHOPS/OTHER BUILDINGS Type PREMIER TERRACES- TOWER G- 4 BHK 242.78 2 485.56 2 0 1
20 APARTMENT/SHOPS/OTHER BUILDINGS Type PREMIER TERRACES- TOWER G- 4 BHK 274.75 2 549.5 2 0 1
21 APARTMENT/SHOPS/OTHER BUILDINGS Type PREMIER TERRACES- TOWER H- 3 BHK 107.32 5 536.6 5 0 1
22 APARTMENT/SHOPS/OTHER BUILDINGS Type PREMIER TERRACES- TOWER H- 3 BHK 120.50 60 7230 60 0 1
23 APARTMENT/SHOPS/OTHER BUILDINGS Type PREMIER TERRACES- TOWER H- 3 BHK 127.67 29 3702.43 29 0 1
24 APARTMENT/SHOPS/OTHER BUILDINGS Type PREMIER TERRACES- TOWER H- 4 BHK 228.63 1 228.63 1 0 1
25 APARTMENT/SHOPS/OTHER BUILDINGS Type PREMIER TERRACES- TOWER H- 4 BHK 242.78 3 728.34 3 0 1
26 APARTMENT/SHOPS/OTHER BUILDINGS Type PREMIER TERRACES- TOWER H- 4 BHK 274.75 2 549.5 2 0 1
27 APARTMENT/SHOPS/OTHER BUILDINGS Type VILLAS AT THE PALM DRIVE - 5 BHK 348.90 4 1395.6 4 0 1
28 APARTMENT/SHOPS/OTHER BUILDINGS Type PALM TERRACE SELECT PTS 01 - 4 BHK 149.95 20 2999 20 0 1
29 APARTMENT/SHOPS/OTHER BUILDINGS Type PALM TERRACE SELECT PTS 02 - 4 BHK 149.95 20 2999 20 0 1
30 APARTMENT/SHOPS/OTHER BUILDINGS Type PALM TERRACE SELECT PTS 03 - 4 BHK 149.95 20 2999 20 0 1
31 APARTMENT/SHOPS/OTHER BUILDINGS Type PALM TERRACE SELECT PTS 04 - 4 BHK 149.95 20 2999 20 0 1
32 APARTMENT/SHOPS/OTHER BUILDINGS Type PALM TERRACE SELECT PTS 05 - 4 BHK 149.95 22 3298.9 22 0 1
33 APARTMENT/SHOPS/OTHER BUILDINGS Type PALM TERRACE SELECT PTS 05 - 5 BHK 203.78 2 407.56 2 0 1
34 APARTMENT/SHOPS/OTHER BUILDINGS Type PALM TERRACE SELECT PTS 06 - 4 BHK 149.95 22 3298.9 22 0 1
35 APARTMENT/SHOPS/OTHER BUILDINGS Type PALM TERRACE SELECT PTS 06 - 5 BHK 203.78 2 407.56 2 0 1
36 APARTMENT/SHOPS/OTHER BUILDINGS Type PALM TERRACE SELECT PTS EWS – 1BR 15.24 48 731.52 0 48 1
37 APARTMENT/SHOPS/OTHER BUILDINGS Type PTS-PALM BAZAR- PB-GF-01& PB-GF-04 19.0 2 38 2 0 1
38 APARTMENT/SHOPS/OTHER BUILDINGS Type PTS-PALM BAZAR- PB-GF-02 18.9 1 18.9 1 0 1
39 APARTMENT/SHOPS/OTHER BUILDINGS Type PTS-PALM BAZAR- PB-GF-03 22.7 1 22.7 1 0 1
40 APARTMENT/SHOPS/OTHER BUILDINGS Type PTS-PALM BAZAR- PB-GF-03 15.2 1 15.2 1 0 1
41 APARTMENT/SHOPS/OTHER BUILDINGS Type PTS-PALM BAZAR- PB-GF-06 11.5 1 11.5 1 0 1
42 APARTMENT/SHOPS/OTHER BUILDINGS Type PTS-PALM BAZAR- PB-GF-07 8.5 1 8.5 1 0 1
43 APARTMENT/SHOPS/OTHER BUILDINGS Type PALM DRIVE -THE PALM ARCADE- TPD-CS-01,02,03,04,16,17,18,19, 20, 21, 22, 23 22.69 12 272.28 12 0 1
44 APARTMENT/SHOPS/OTHER BUILDINGS Type PALM DRIVE -THE PALM ARCADE- TPD-CS-05 19.31 1 19.31 1 0 1
45 APARTMENT/SHOPS/OTHER BUILDINGS Type PALM DRIVE -THE PALM ARCADE- TPD-CS-06, 07 15.79 2 31.58 2 0 1
46 APARTMENT/SHOPS/OTHER BUILDINGS Type PALM DRIVE -THE PALM ARCADE- TPD-CS-08 20.72 1 20.72 1 0 1
47 APARTMENT/SHOPS/OTHER BUILDINGS Type PALM DRIVE -THE PALM ARCADE- TPD-CS-09,11,12A,14 19.94 4 79.76 4 0 1
48 APARTMENT/SHOPS/OTHER BUILDINGS Type PALM DRIVE -THE PALM ARCADE- TPD-CS-10 19.74 1 19.74 1 0 1
49 APARTMENT/SHOPS/OTHER BUILDINGS Type PALM DRIVE -THE PALM ARCADE- TPD-CS-12 19.80 1 19.8 1 0 1
50 APARTMENT/SHOPS/OTHER BUILDINGS Type PALM DRIVE -THE PALM ARCADE- TPD-CS-15 19.71 1 19.71 1 0 1
51 APARTMENT/SHOPS/OTHER BUILDINGS Type PALM DRIVE -THE PALM ARCADE- TPD-CS-24-30 21.73 7 152.11 7 0 1
Total80597340.347574851






TypeNumber of apartments booked/ sold Write or Annex the stage of construction of the booked/ sold apartments in folder C
PREMIER TERRACES- TOWER H- 4 BHK2OC RECEIVED
VILLAS AT THE PALM DRIVE - 5 BHK4OC RECEIVED
PALM TERRACE SELECT PTS 01 - 4 BHK20OC RECEIVED
PALM TERRACE SELECT PTS 02 - 4 BHK20OC RECEIVED
PALM TERRACE SELECT PTS 03 - 4 BHK20OC RECEIVED
PALM TERRACE SELECT PTS 04 - 4 BHK20OC RECEIVED
PALM TERRACE SELECT PTS 05 - 4 BHK22OC RECEIVED
PALM TERRACE SELECT PTS 05 - 5 BHK2OC RECEIVED
PALM TERRACE SELECT PTS 06 - 4 BHK22OC RECEIVED
PALM TERRACE SELECT PTS 06 - 5 BHK2OC RECEIVED
PTS-PALM BAZAR- PB-GF-01& PB-GF-042OC RECEIVED
PTS-PALM BAZAR- PB-GF-021OC RECEIVED
PTS-PALM BAZAR- PB-GF-031OC RECEIVED
THE ENCLAVE-TOWER P- 3BHK32OC RECEIVED
THE ENCLAVE- TOWER P- 4 BHK32OC RECEIVED
THE ENCLAVE- TOWER Q- 3 BHK31OC RECEIVED
THE ENCLAVE- TOWER Q- 3 BHK33OC RECEIVED
PALM TERRACES- BLOCK U1- 4 BHK120OC RECEIVED
PALM TERRACE- BLOCK W (TOWER S8 & S9)- 4 BHK56OC RECEIVED
PREMIER TERRACES- TOWER F- 3 BHK32OC RECEIVED
PREMIER TERRACES- TOWER F- 3 BHK29OC RECEIVED
PREMIER TERRACES- TOWER F- 3 BHK1OC RECEIVED
PREMIER TERRACES- TOWER F-4 BHK18OC RECEIVED
PREMIER TERRACES- TOWER F-4 BHK1OC RECEIVED
PREMIER TERRACES- TOWER F-4 BHK1OC RECEIVED
PREMIER TERRACES- TOWER F-4 BHK2OC RECEIVED
PREMIER TERRACES- TOWER G- 3 BHK2OC RECEIVED
PREMIER TERRACES- TOWER G- 3 BHK62OC RECEIVED
PREMIER TERRACES- TOWER G- 3 BHK30OC RECEIVED
PREMIER TERRACES- TOWER G- 4 BHK1OC RECEIVED
PREMIER TERRACES- TOWER G- 4 BHK1OC RECEIVED
PREMIER TERRACES- TOWER G- 4 BHK2OC RECEIVED
PREMIER TERRACES- TOWER G- 4 BHK2OC RECEIVED
PREMIER TERRACES- TOWER H- 3 BHK5OC RECEIVED
PREMIER TERRACES- TOWER H- 3 BHK60OC RECEIVED
PREMIER TERRACES- TOWER H- 3 BHK29OC RECEIVED
PREMIER TERRACES- TOWER H- 4 BHK1OC RECEIVED
PREMIER TERRACES- TOWER H- 4 BHK3OC RECEIVED
PTS-PALM BAZAR- PB-GF-051OC RECEIVED
PTS-PALM BAZAR- PB-GF-061OC RECEIVED
PTS-PALM BAZAR- PB-GF-071OC RECEIVED
PALM DRIVE -THE PALM ARCADE- TPD-CS-01,02,03,04,16,17,18,19, 20, 21, 22, 2312OC RECEIVED
PALM DRIVE -THE PALM ARCADE- TPD-CS-051OC RECEIVED
PALM DRIVE -THE PALM ARCADE- TPD-CS-06, 072OC RECEIVED
PALM DRIVE -THE PALM ARCADE- TPD-CS-081OC RECEIVED
PALM DRIVE -THE PALM ARCADE- TPD-CS-09,11,12A,144OC RECEIVED
PALM DRIVE -THE PALM ARCADE- TPD-CS-101OC RECEIVED
PALM DRIVE -THE PALM ARCADE- TPD-CS-121OC RECEIVED
PALM DRIVE -THE PALM ARCADE- TPD-CS-151OC RECEIVED
PALM DRIVE -THE PALM ARCADE- TPD-CS-24-307OC RECEIVED


30-04-2008
08-08-2022
08-08-2022
30-04-2008
100
08-08-2022


PlotsBooked/soldStage of handing over the possession (Write or Annex details)
PLOT00
30-04-2008
100
08-08-2022


1000
0
219
229
0





Expenditure incurred till the date of application (In Lakhs)

ParticularsExpenditure
Apartments36064
Shops0
Plots0
Land Cost6106
Other Costs Including EDC IDC and Taxes15178

Expenditure to be made in each quarter (In Lakhs)

ParticularsYear-2019
Jan-MarApr-JuneJuly-SepOct-Dec
Apartments0000
Shops0000
Plots0000
Contingency417278139557
Any cost171




Expenditure incurred till the date of application (In Lakhs)

ParticularsExpenditure
Roads & Pavements323.19
Water Supply System120.85
Sewerage treatment & garbage disposal145.67
Electricity Supply System186.80
Storm Water Drainage546.27
Parks and Playgrounds139.63
Clubhouse/community centres0
Shopping area0
Other0
ELECTRICAL SUB STATION560.69
PARKING13.98
RAIN WATER HARVESTING32.99
RENEWABLE ENERGY SYSTEM9.43
SECURITY AND FIRE FIGHTING96.09
STP107.59
STREET LIGHTING16.62
UGT107.55

Expenditure to be made in each quarter (In Lakhs)

ParticularsExpenditure to be made in each quarter (2019)
Apr-JuneJuly-SepOct-DecJan-Mar












Particulars Remarks, if any
i. No. of Flats/Apartments constructed805
ii. No. of Flats/ Apartments booked757
iii. Total amount sale value of booked Flats, on the date of application/end of last quarter89171 Lakhs
iv. Total amount received from the allottees (booked Flats), on the date of application/end of last quarter89171 Lakhs
v. Balance amount to be received from the allottees (booked Flats, after completion), on the date of application/end of last quarter0 Lakhs
vi. Balance amount due and recoverable from the allottees (booked Flats) as on the date of application /end of last quarter72 Lakhs
vii. Amount invested in the project upto the date of application0 Lakhs
Land cost (If any)6106 Lakhs
Apartments36064 Lakhs
Infrastructure3539 Lakhs
EDC/ Taxes Etc.15178 Lakhs
viii. Balance cost to be incurred for completion of the project and delivery of possession1563 Lakhs
(a) In respect of existing allottees0 Lakhs
(b) In respect of rest of the project1563 Lakhs
ix. The amount of loan raised from the banks/ financial institutions/ private persons against the project
Annex detail of the securities furnished to the banks/ financial institutions against the aforesaid loans in folder C
0 Lakhs
x. Total liabilities against the project up-to-date. (Annex details in folder C) 0 Lakhs



Particulars Estimated expenditure planned to be incurred as per service plan estimates or the project report. (In Lakhs)Actual expenditure incurred upto the date of application. (In Lakhs)
I. INTERNAL ROADS AND PAVEMENTS323.19323.19
II. WATER SUPPLY SYSTEM228.4228.4
III. STORM WATER DRAINAGE546.27546.27
IV. ELECTRICITY SUPPLY SYSTEM747.49747.49
V. SEWAGE TREATMENT & GARBAGE DISPOSAL253.26253.26
VI. CLUB HOUSE/COMMUNITY CENTRE998.18998.18
VII. SCHOOL390.3390.3
VIII. ANY OTHER00
IX. SOLID WASTE COLLECTION & MGMT SYSTEM00
X. CLUBHOUSE00
XI. NEIGHBOURHOOD SHOPPING46.2346.23
XII. GREEN AREAS,PARKS,PLAYGROUNDS ETC.139.63139.63
XIII. COVERED PARKING13.9813.98
XIV. OPEN PARKING00
XV. GARAGES00
XVI. SECURITY SYSTEM00
XVII. OTHER FACILITIES AS PER PROJECT REPORT155.13155.13









Yes
Yes
KOTAK MAHINDRA BANK
503011042870
KKBK0000172
110485003
172
Rahul bindle, Address: 306-308, SQUARE ONE, C2, DISTRICT CENTRE SAKET, NEW DELHI- 110017
YES











Yes
Yes
Yes
Yes
Yes
Yes
Yes
Yes
Yes
Yes


Yes
Yes
Yes
Yes
Yes
No
Yes
Yes
Statutory Approvals Statutory Approvals StatusDate
I. LICENSE 228 OF 2007ALREADY BEEN OBTAINED27-09-2007
II. LICENSE 93 OF 2008ALREADY BEEN OBTAINED12-05-2008
III. LICENSE 50 OF 2010ALREADY BEEN OBTAINED24-06-2010
IV. ZONING PLAN APPROVALALREADY BEEN OBTAINED16-09-2011
V. BUILDING PLANALREADY BEEN OBTAINED09-06-2008
VI. ENVIRONMENT CLEARANCEALREADY BEEN OBTAINED21-04-2008
VII. AIRPORT HEIGHT CLEARANCEALREADY BEEN OBTAINED11-08-2008
VIII. FIRE SCHEME APPROVALALREADY BEEN OBTAINED17-04-2014
IX. SERVICE PLAN ESTIMATES APPROVALALREADY BEEN OBTAINED03-11-2014
X. FOREST NOCALREADY BEEN OBTAINED11-12-2013
XI. OCCUPATION CERTIFICATE- ZP-308/SD(BS)/2015/5233ALREADY BEEN OBTAINED01-04-2015
XII. OCCUPATION CERTIFICATE -ZP-308/SD(BS)/2017/2699ALREADY BEEN OBTAINED13-02-2017
XIII. OCCUPATION CERTIFICATE- ZP-308-VOL-I/SD(BS)/2019/3486ALREADY BEEN OBTAINED25-01-2018
XIV. OCCUPATION CERTIFICATE - ZP-308-VOL-I/SD(DK)/2019/6902ALREADY BEEN OBTAINED08-03-2019
XV. OCCUPATION CERTIFICATE - ZP-308-VOL-1/SD(DK)/2019/19101ALREADY BEEN OBTAINED08-08-2019








Yes


Yes


The company proposes to hand over the possession of the apartment/villa/penthouse within 24 months from the date of execution of this buyer’s agreement.







PALM HEIGHTS, SECTOR 77, GURUGRAM
5.50
297
0
148
0
Initially estimated cost (In Lakhs)Revised cost (In Lakhs)Expenditure incurred upto the date of application (In Lakhs)
Total cost of the project
(Other than cost of land)
20000200005548
Cost of the apartments18143181434156
Cost of the infrastructure000
Others costs185718571392


1615 Lakhs
14821 Lakhs
0 Lakhs
2464 Lakhs
Yes
31-08-2022
31-08-2022










SPECIFICATION OF CONSTRUCTION
Specification of apartments and other buildings including the following:
1FLOORING DETAILS OF VARIOUS PARTS OF HOUSEIMPORTED MARBLE/ VITRIFIED TILES / LAMINATED WOODEN FLOORING / CERAMIC TILE
2WALL FINISHING DETAILSACRYLIC EMULSION / OIL BOUND DISTEMPER / DRY DISTEMPER
3KITCHEN DETAILSNA
4BATHROOM FITTINGSWHITE CHINAWARE & CP FITTINGS
5WOOD WORK ETCNA
6DOORS AND WINDOS FRAMESSEASONED HARDWOOD FRAME / UPVC
7GLASS WORKMODULAR SWITCHES
8ELECTRIC FITTINGSPVC CONDUITS AND WIRING
9CONDUCTING AND WIRING DETAILSPVC CONDUITS AND WIRING
10CUPBOARD DETAILSNA
11WATER STORAGEUNDER GROUND AND OVER HEAD WATER TANK
12LIFT DETAILSPROVIDED
13EXTERNAL GLAZINGSUPVC
13.1WINDOWS/GLAZINGSUPVC
14DOORSSEASONED HARDWOOD FRAME WITH EUROPEAN STYLE MOULDED SHUTTER
14.1MAIN DOORSSEASONED HARDWOOD FRAME WITH EUROPEAN STYLE MOULDED SHUTTER
14.2INTERNAL DOORSSEASONED HARDWOOD FRAME WITH FLUSH SHUTTER
15AIR CONDITIONINGNA
16ELECTRICAL FITTINGSNA
17CNG PIPE LINENA
18PROVISION OF WIFI AND BROADBAND FACILITYNA
19EXTERNAL FINISHING/COLOUR SCHEMEWEATHER PROOF PAINT
20INTERNAL FINISHINGNA
SPECIFICATION UNIT WISE
1 . LIVING/DINING/FOYER/FAMILY LOUNGE
1 . 1 FLOORIMPORTED MARBLE
1 . 2 WALLSPOP PUNNING WITH ACRYLIC EMULSION PAINT
1 . 3 CEILINGPOP PUNNING WITH ACRYLIC EMULSION PAINT
2 . MASTER BEDROOM/DRESSROOM
2 . 1 FLOORENGINEERED WOODEN FLOORING
2 . 2 WALLSPOP PUNNING WITH ACRYLIC EMULSION PAINT
2 . 3 CEILINGPOP PUNNING WITH ACRYLIC EMULSION PAINT
2 . 4 MODULAR WARDROBESNA
3 . MASTER TOILET
3 . 1 FLOORIMPORTED MARBLE
3 . 2 WALLSCOMBINATION OF IMPORTED MARBLE & ACRYLIC EMULSION
3 . 3 CEILINGFALSE CEILING WITH ACRYLIC EMULSION PAINT
3 . 4 COUNTERSNA
3 . 5 SANITARY WARE/CP FITTINGSWHITE CHINAWARE & CP FITTINGS
3 . 6 FITTING/FIXTURESNA
4 . BED ROOMS
4 . 1 FLOORLAMINATED WOODEN FLOORING
4 . 2 WALLSPOP PUNNING WITH ACRYLIC EMULSION PAINT
4 . 3 CEILINGPOP PUNNING WITH ACRYLIC EMULSION PAINT
4 . 4 WARDROBESNA
5 . TOILET
5 . 1 FLOORVITRIFIED TILES
5 . 2 WALLSCOMBINATION OF TILES & ACRYLIC EMULSION PAINT
5 . 3 CEILINGACRYLIC EMULSION PAINT
5 . 4 COUNTERSNA
5 . 5 SANITARY WARE/CP FITTINGSWHITE CHINAWARE & CP FITTINGS
5 . 6 FIXTURESCP FITTINGS
6 . KITCHEN
6 . 1 FLOORVITRIFIED TILES
6 . 2 WALLSPOP PUNNING WITH ACRYLIC EMULSION PAINT
6 . 3 CEILINGPOP PUNNING WITH ACRYLIC EMULSION PAINT
6 . 4 COUNTERSGRANITE COUNTER TOP WITH STORAGE CABINET
6 . 5 FIXTURESSATINLESS STEEL SINGLE DRAIN BOARD SINK
6 . 6 KITCHEN APPLIANCESCHIMNEY & HOB
7 . UTILITY ROOMS/UTILITY BALCONY/TOILET
7 . 1 FLOORCERAMIC TILES
7 . 2 WALLS & CEILINGPOP PUNNING WITH OIL BOUND DISTEMPER
7 . 3 TOILETNA
7 . 4 BALCONYANTI SKID TILES
8 . SIT-OUTS
8 . 1 FLOORNA
8 . 2 WALLS & CEILINGNA
8 . 3 RAILINGSNA
8 . 4 FIXTURESNA












Sr. No.Document DescriptionDate of Document UploadView Document
1ZONING PLAN12-10-2020 View Document
2IN CASE OF GROUP HOUSING/ COMMERCIAL SITES, A COPY OF THE APPROVED SITE PLAN11-08-2020 View Document
3COPY OF LICENSE ALONG WITH SCHEDULE OF LAND11-08-2020 View Document
4DECLARATION SUPPORTED BY AFFIDAVIT DULY SIGNED BY THE PROMOTER TO BE ENCLOSED.11-08-2020 View Document
5IN CASE OF PLOTTED COLONY, THE LATEST LAYOUT PLAN11-08-2020 View Document
6OCCUPATION CERTIFICATE - PALM DRIVE DT 13.02.201705-09-2020 View Document
7LAYOUT PLAN05-09-2020 View Document
8ENVIRONMENTAL CLEARANCE05-09-2020 View Document
9SERVICE PLAN ESTIMATE REPORT FINAL05-09-2020 View Document
10ARAVALI NOC THROUGH DC05-09-2020 View Document
11SERVICE PLANS SHOWING THE SERVICES ON THE LAYOUT PLAN05-09-2020 View Document
12AAI NOC05-09-2020 View Document
13LOI 6.1937 AC GH05-09-2020 View Document
14OC ISSUED ON 08.08.2019 FROM 4TH FLOOR AND ABOVE - GH 45.4767 ACRES PTS (ZP-308)05-09-2020 View Document
15BRIII05-09-2020 View Document
16A COMPLETE SET OF THE LAST APPROVED BUILDING PLANS05-09-2020 View Document
17LC-IV & LC-IV-A05-09-2020 View Document
18TPD J-PH-PH-04 BBA05-09-2020 View Document
19FIRE NOC05-09-2020 View Document
20NON DEFAULT CERTIFICATE FROM A CHARTERED ACCOUNTANT05-09-2020 View Document
21LICENSE 50 OF 201005-09-2020 View Document
22LICENSE 93 OF 200805-09-2020 View Document
23LICENSE 228 OF 200705-09-2020 View Document
24LOI 31.618 AC GH05-09-2020 View Document
25SUPERIMPOSE RERA DWG05-09-2020 View Document
26OCCUPATION CERTIFICATE - GH COLONY 45.4767 ACRES DT. 2501201805-09-2020 View Document
27PART OC PALM DRIVE 01.04.201505-09-2020 View Document
28REP II05-09-2020 View Document
29OC ISSUED ON 08.03.2019 UPTO G+3 LEVEL - GH 45.4767 ACRES PTS (ZP-308)05-09-2020 View Document
30APPROVED ZONING12-10-2020 View Document
31BUILDING PLANS (2)12-10-2020 View Document












Sr. No.Document DescriptionDate of Document UploadView Document
1 OC uploaded 24-08-2023 View Document