HRERA GurugramTemp Project Id : RERA-GRG-PROJ-718-2020
Submission Date : 25-08-2020 11:06:47 PM
Applicant Type : Company
Project Type: ONGOING




M/S. ANSAL PROPERTIES & INFRASTRUCTURE LTD.
115, ANSAL BHAWAN, 16 K.G. MARG, NEW DELHI-110001
01166038308
9811206155 (Number Shared by Promoter in Public)
apisanctions_hr@ansalapi.com
http://www.ansalapi.com
XXXX006D
L45101DL1967PLC004759
 
 


 
 


 
 


 
 







FERNHILL (PHASE-2)
SRP BUILDERS LTD., SCF-75-76,1ST FLOOR, SECTOR-15, FARIDABAD
GURGAON
GURUGRAM
01166038308
0116603830 (Number Shared by Promoter in Public)
fernhill@ansalapi.com
ABHISHEK AGARWAL
01166038308
9811206155 (Number Shared by Promoter in Public)
abhishekagarwal@ansalapi.com








As per sub-rule(2) of rule 3 of the Haryana Real Estate (Regulation and Development) Rules,2017, the fee for registration of the project as has been calculated as follows:
-----------------------------------------------------------------------------------------------------------------------
-----------------------------------------------------------------------------------------------------------------------
-----------------------------------------------------------------------------------------------------------------------
-----------------------------------------------------------------------------------------------------------------------
2. The aforesaid fees is hereby deposited vide following Drafts/ Banker’s Cheques:-

Sr No.Draft/Cheque No.Draft DateAmountPayee BankPayable To
17442831-07-2017641562HDFCHRERA Gurugram







9.912 (Acre)
175
175
14.412 (Acre)
Licence No. 48 dated 21.6.2010
No
Address     SCF-75-76, 1ST FLOOR, SECTOR-15 MARKET, FARIDABAD
Annexure-B- MOU EXECUTED BETWEEN LICENCEE AND SAMYAK PROJECTS LTD. IN COLLABORATION WITH M/S ANSAL PROPERTIES INFRASTRUCTURE LTD.
COLLABORATION EXECUTED AFTER GRANT OF LICENCE
No
ATTACHED
Yes
No
Yes







24980.29 Lakhs
8079.25 Lakhs
14875.63 Lakhs
494.13 Lakhs
1531.27 Lakhs




Sr. No.Land area under usageArea of land (Square Meters)
1PLOTS TO BE SOLD 0
2LAND AREA TO BE USED FOR CONSTRUCTION OF APARTMENTS 102356.59
3CONSTRUCTION OF ROADS 9122.95
4PAVEMENTS 0
5PARKS AND PLAYGROUNDS 0
6GREEN BELTS 0
7VEHICLE PARKINGS 23.69
8ELECTRICITY SUB-STATION 0
9CLUB HOUSE 0
10SEWAGE AND SOLID WASTE TREATMENT FACILITY 0
11AREA TO BE LEFT FOR TRANSFERRING TO THE GOVERNMENT FOR COMMUNITY SERVICES 0
12ANY OTHER 0
Total111503.23




FacilityExternal/ connecting service to be provided by (Name the agency)Whether Approval taken from the agency concerned. Yes/No (Annex details in folder C)
ROADSGMDANo
WATER SUPPLYGMDANo
ELECTRICITYDHBVNNo
SEWAGE DISPOSALGMDANo
STORM WATER DRAINAGEGMMDANo




Sr. No.Name of the facilityEstimated cost (In Lakhs)(Within the project area only)Remarks: Yet to be prepared / Submitted to HUDA, Town & Country Planning Department/ as per project report etc. (Annex relevant documents showing costing details etc. in folder C)
1INTERNAL ROADS AND PAVEMENTS0SUBMITTED TO HUDA
2WATER SUPPLY SYSTEM0SUBMITTED TO HUDA
3STORM WATER DRAINAGE0SUBMITTED TO HUDA
4ELECTRICITY SUPPLY SYSTEM0SUBMITTED TO HUDA
5SEWAGE TREATMENT & GARBAGE DISPOSAL0SUBMITTED TO HUDA
6STREET LIGHTING0SUBMITTED TO HUDA
7SECURITY AND FIRE FIGHTING0SUBMITTED TO HUDA
8PLAYGROUNDS AND PARKS0SUBMITTED TO HUDA
9CLUB HOUSE/COMMUNITY CENTRE0SUBMITTED TO HUDA
10SHOPPING AREA0SUBMITTED TO HUDA
11RENEWABLE ENERGY SYSTEM0SUBMITTED TO HUDA
12SCHOOL0SUBMITTED TO HUDA
13HOSPITAL/DISPENSARY0SUBMITTED TO HUDA
14ANY OTHER0SUBMITTED TO HUDA


20-05-2014 (date)
20-05-2014 (date)


Sr. No.Plot/ apartment type Size of the plot/carpet area of the apartments Total number of plots/apartments in the project Total size of the plots/carpet area of the apartments Plots/apartments booked/ sold upto the date of application Yet to be sold/ booked No. of towers to be/ being constructed for booked apartments
1 APARTMENT/SHOPS/OTHER BUILDINGS Type TOWER-E,F (2BHK+2T+KIDS) 112.96 0 0 0 0 0
2 APARTMENT/SHOPS/OTHER BUILDINGS Type TOWER-E,F (2BHK+2T) 93.65 0 0 0 0 0
3 APARTMENT/SHOPS/OTHER BUILDINGS Type TOWER-G,H,J,K,L&M(3BHK+3T) 128.46 0 0 0 0 0
4 APARTMENT/SHOPS/OTHER BUILDINGS Type TOWER-G,H,J,K,L&M(2BHK+2T+KIDS) 112.37 0 0 0 0 0
Total00000






TypeNumber of apartments booked/ sold Write or Annex the stage of construction of the booked/ sold apartments in folder C
TOWER-E,F (2BHK+2T+KIDS)060%
TOWER-E,F (2BHK+2T)060%
TOWER-G,H,J,K,L&M(3BHK+3T)060%
TOWER-G,H,J,K,L&M(2BHK+2T+KIDS)060%


01-01-2018
31-12-2019
31-12-2020
01-01-2018
70
31-12-2019
31/122020
ATTACHED


PlotsBooked/soldStage of handing over the possession (Write or Annex details)
PLOT168NOT APPLICABLE IN GH
01-01-2020
70
31-12-2019
31/12/2020
ATTACHED


0
0
808
287
0





Expenditure incurred till the date of application (In Lakhs)

ParticularsExpenditure
Apartments112
Shops1
Plots1

Expenditure to be made in each quarter (In Lakhs)

ParticularsExpenditure to be made in each quarter ()
Apr-JuneJuly-SepOct-DecJan-Mar




Expenditure incurred till the date of application (In Lakhs)

ParticularsExpenditure
Roads & Pavements235.26
Water Supply System228.36
Sewerage treatment & garbage disposal133.69
Electricity Supply System38.02
Storm Water Drainage124.78
Parks and Playgrounds0
Clubhouse/community centres0
Shopping area0
Other0

Expenditure to be made in each quarter (In Lakhs)

ParticularsExpenditure to be made in each quarter ()
Apr-JuneJuly-SepOct-DecJan-Mar












Particulars Remarks, if any
i. No. of Flats/Apartments constructed704
ii. No. of Flats/ Apartments booked704
iii. Total amount sale value of booked Flats, on the date of application/end of last quarter0 Lakhs
iv. Total amount received from the allottees (booked Flats), on the date of application/end of last quarter13159.44 Lakhs
v. Balance amount to be received from the allottees (booked Flats, after completion), on the date of application/end of last quarter0 Lakhs
vi. Balance amount due and recoverable from the allottees (booked Flats) as on the date of application /end of last quarter0 Lakhs
vii. Amount invested in the project upto the date of application0 Lakhs
Land cost (If any)0 Lakhs
Apartments0 Lakhs
Infrastructure0 Lakhs
EDC/ Taxes Etc.0 Lakhs
viii. Balance cost to be incurred for completion of the project and delivery of possession0 Lakhs
(a) In respect of existing allottees0 Lakhs
(b) In respect of rest of the project0 Lakhs
ix. The amount of loan raised from the banks/ financial institutions/ private persons against the project
Annex detail of the securities furnished to the banks/ financial institutions against the aforesaid loans in folder C
0 Lakhs
x. Total liabilities against the project up-to-date. (Annex details in folder C) 0 Lakhs



Particulars Estimated expenditure planned to be incurred as per service plan estimates or the project report. (In Lakhs)Actual expenditure incurred upto the date of application. (In Lakhs)
I. INTERNAL ROADS AND PAVEMENTS235.260
II. WATER SUPPLY SYSTEM228.360
III. STORM WATER DRAINAGE124.780
IV. ELECTRICITY SUPPLY SYSTEM38.020
V. SEWAGE TREATMENT & GARBAGE DISPOSAL133.690
VI. CLUB HOUSE/COMMUNITY CENTRE00
VII. SCHOOL00
VIII. ANY OTHER00
IX. SOLID WASTE COLLECTION & MGMT SYSTEM00
X. CLUBHOUSE00
XI. NEIGHBOURHOOD SHOPPING00
XII. GREEN AREAS,PARKS,PLAYGROUNDS ETC.7.390
XIII. COVERED PARKING00
XIV. OPEN PARKING00
XV. GARAGES00
XVI. SECURITY SYSTEM00
XVII. OTHER FACILITIES AS PER PROJECT REPORT322.210









Yes
Yes
PNB
233445566
PUNB40674
ddheuueh23
13232gddgd
sandeep kumar











No
No
Yes
Yes
Yes
Yes
Yes
Yes
Yes
Yes


Yes
Yes
Yes
Yes
Yes
No
Yes
Yes
Statutory Approvals Statutory Approvals StatusDate
I. LICENCEALREADY BEEN OBTAINED26-06-2010
II. LAYOUT PLANALREADY BEEN OBTAINEDNA
III. ZONING PLANALREADY BEEN OBTAINEDNA
IV. BUILDING PLANALREADY BEEN OBTAINED20-05-2014
V. HEIGHT CLEARANCEALREADY BEEN OBTAINED19-05-2014
VI. ARAVALI NOCALREADY BEEN OBTAINED29-05-2014
VII. FOREST NOCALREADY BEEN OBTAINED11-04-2014
VIII. CONSENT TO ESTABLISHALREADY BEEN OBTAINED26-02-2015
IX. FIRE SCHEME APPROVALAPPLIED FOR BUT YET TO RECEIVE29-12-2016
X. SERVICE ESTIMATEAPPLIED FOR BUT YET TO RECEIVENA








No


No















SPECIFICATION OF CONSTRUCTION
Specification of apartments and other buildings including the following:
1FLOORING DETAILS OF VARIOUS PARTS OF HOUSEVITRIFIED TILES, LAMINATED WOODEN FLOORING
2WALL FINISHING DETAILSCERAMIC TILES
3KITCHEN DETAILSCERAMIC TILES, POLISHED GRANITE
4BATHROOM FITTINGSNA
5WOOD WORK ETCNA
6DOORS AND WINDOS FRAMESNA
7GLASS WORKNA
8ELECTRIC FITTINGSNA
9CONDUCTING AND WIRING DETAILSNA
10CUPBOARD DETAILSNA
11WATER STORAGENA
12LIFT DETAILSNA
13EXTERNAL GLAZINGSNA
13.1WINDOWS/GLAZINGSNA
14DOORSNA
14.1MAIN DOORSNA
14.2INTERNAL DOORSNA
15AIR CONDITIONINGNA
16ELECTRICAL FITTINGSNA
17CNG PIPE LINENA
18PROVISION OF WIFI AND BROADBAND FACILITYNA
19EXTERNAL FINISHING/COLOUR SCHEMENA
20INTERNAL FINISHINGNA
SPECIFICATION UNIT WISE
1 . LIVING/DINING/FOYER/FAMILY LOUNGE
1 . 1 FLOORNA
1 . 2 WALLSNA
1 . 3 CEILINGNA
2 . MASTER BEDROOM/DRESSROOM
2 . 1 FLOORNA
2 . 2 WALLSNA
2 . 3 CEILINGNA
2 . 4 MODULAR WARDROBESNA
3 . MASTER TOILET
3 . 1 FLOORNA
3 . 2 WALLSNA
3 . 3 CEILINGNA
3 . 4 COUNTERSNA
3 . 5 SANITARY WARE/CP FITTINGSNA
3 . 6 FITTING/FIXTURESNA
4 . BED ROOMS
4 . 1 FLOORNA
4 . 2 WALLSNA
4 . 3 CEILINGNA
4 . 4 WARDROBESNA
5 . TOILET
5 . 1 FLOORNA
5 . 2 WALLSNA
5 . 3 CEILINGNA
5 . 4 COUNTERSNA
5 . 5 SANITARY WARE/CP FITTINGSNA
5 . 6 FIXTURESNA
6 . KITCHEN
6 . 1 FLOORNA
6 . 2 WALLSNA
6 . 3 CEILINGNA
6 . 4 COUNTERSNA
6 . 5 FIXTURESNA
6 . 6 KITCHEN APPLIANCESNA
7 . UTILITY ROOMS/UTILITY BALCONY/TOILET
7 . 1 FLOORNA
7 . 2 WALLS & CEILINGNA
7 . 3 TOILETNA
7 . 4 BALCONYNA
8 . SIT-OUTS
8 . 1 FLOORNA
8 . 2 WALLS & CEILINGNA
8 . 3 RAILINGSNA
8 . 4 FIXTURESNA












Sr. No.Document DescriptionDate of Document UploadView Document
1 COPY OF LICENSE ALONG WITH SCHEDULE OF LAND 22-08-2020 View Document
2 ZONING PLAN 22-08-2020 View Document
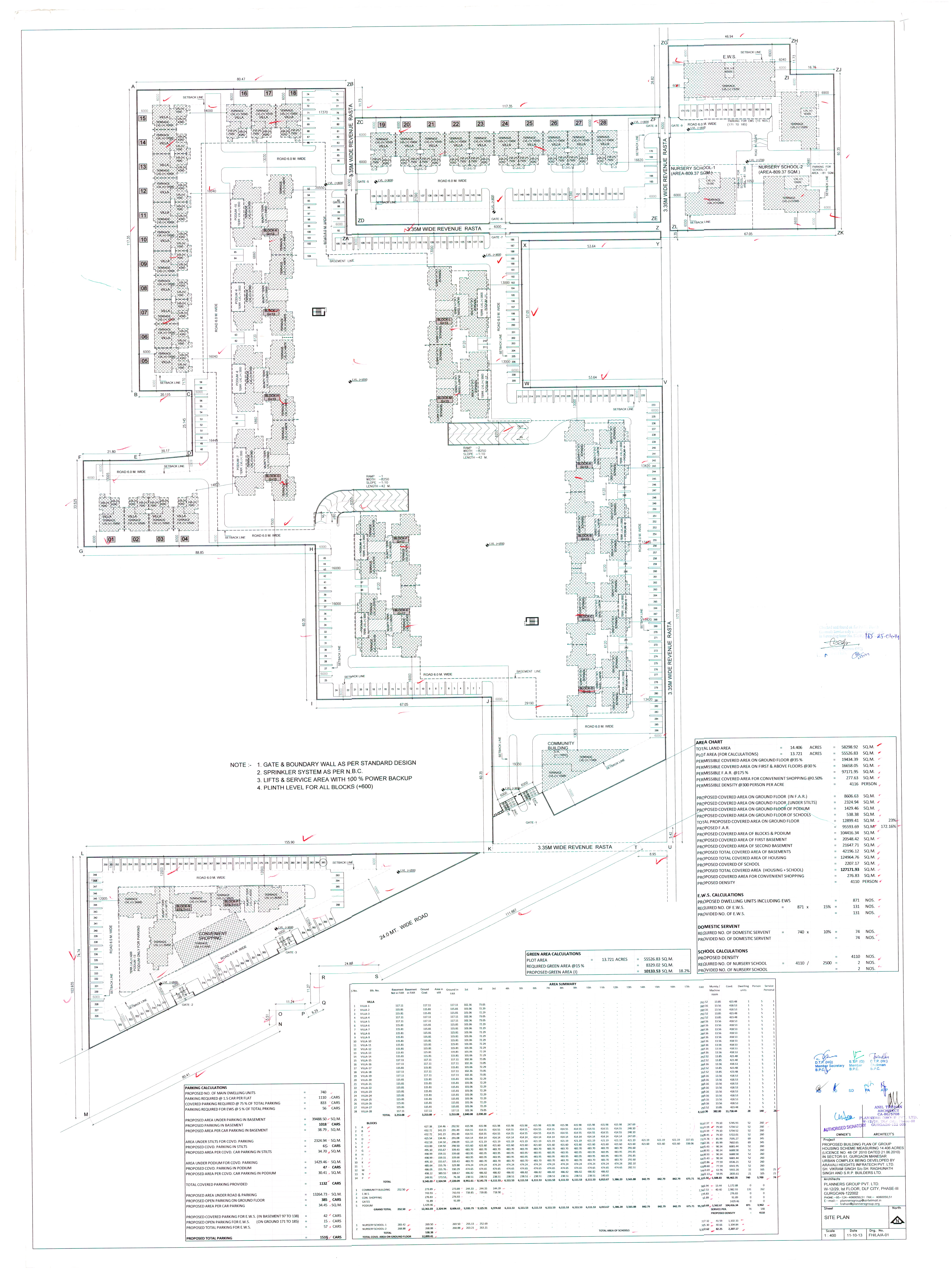
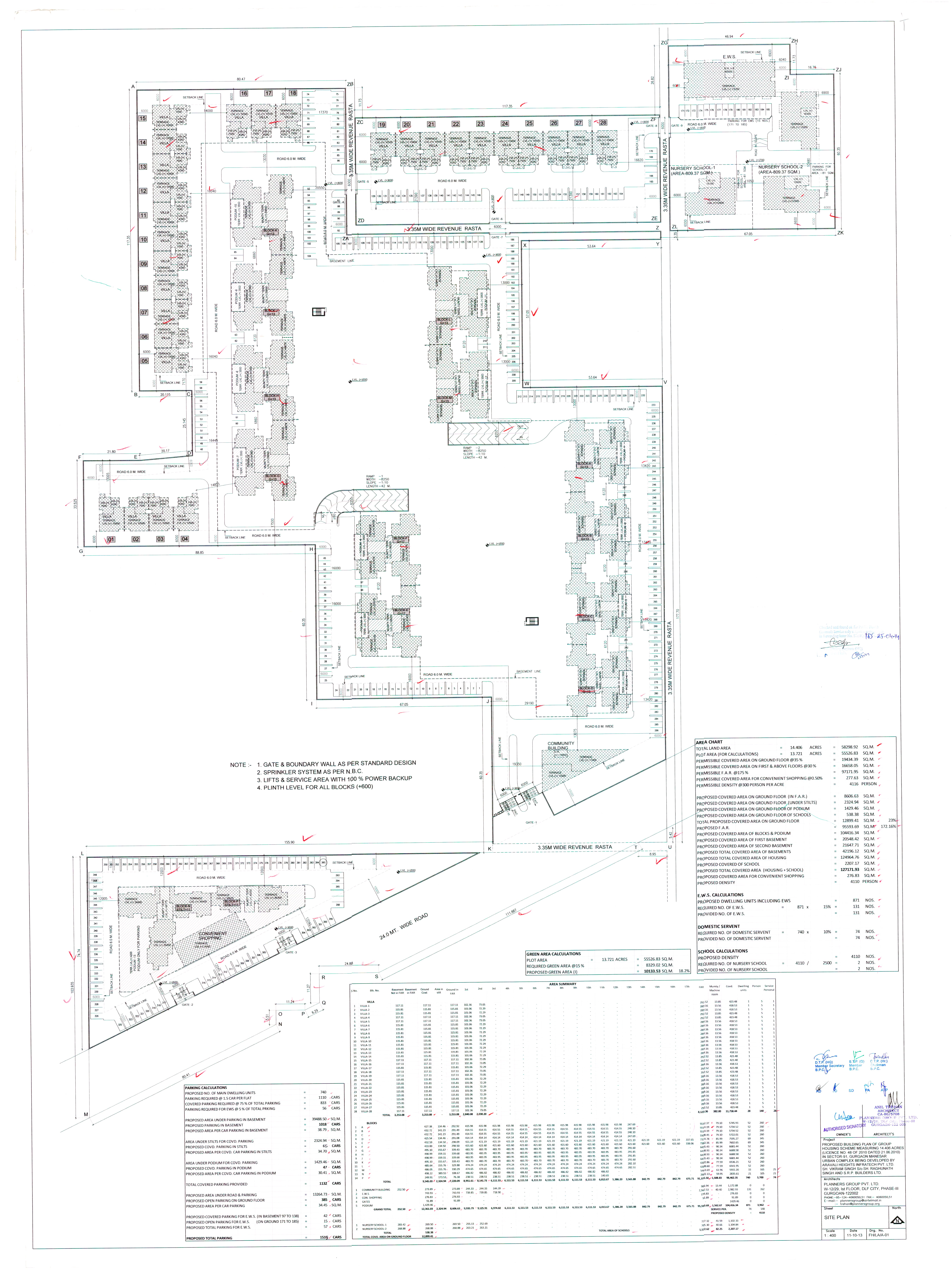
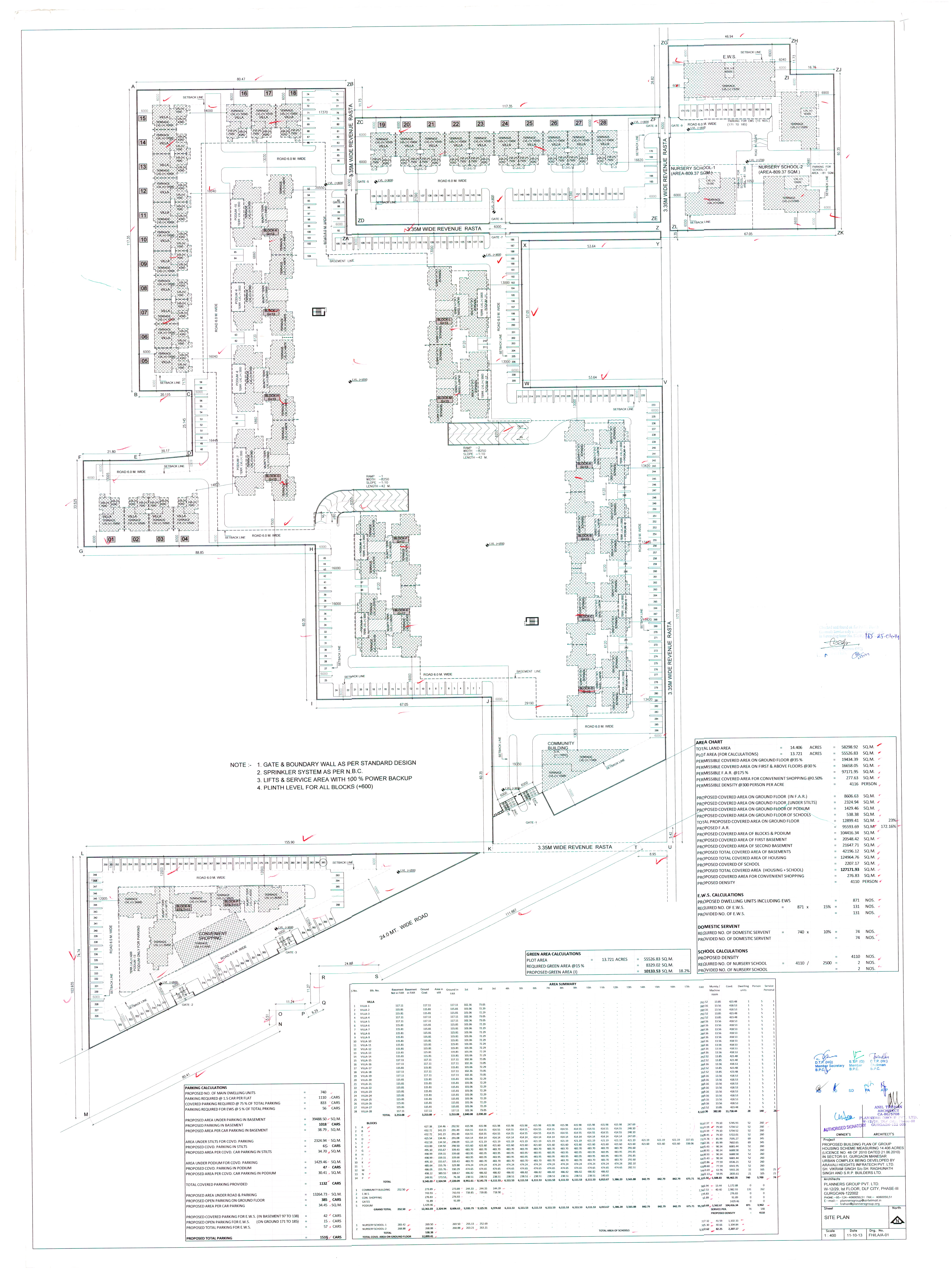
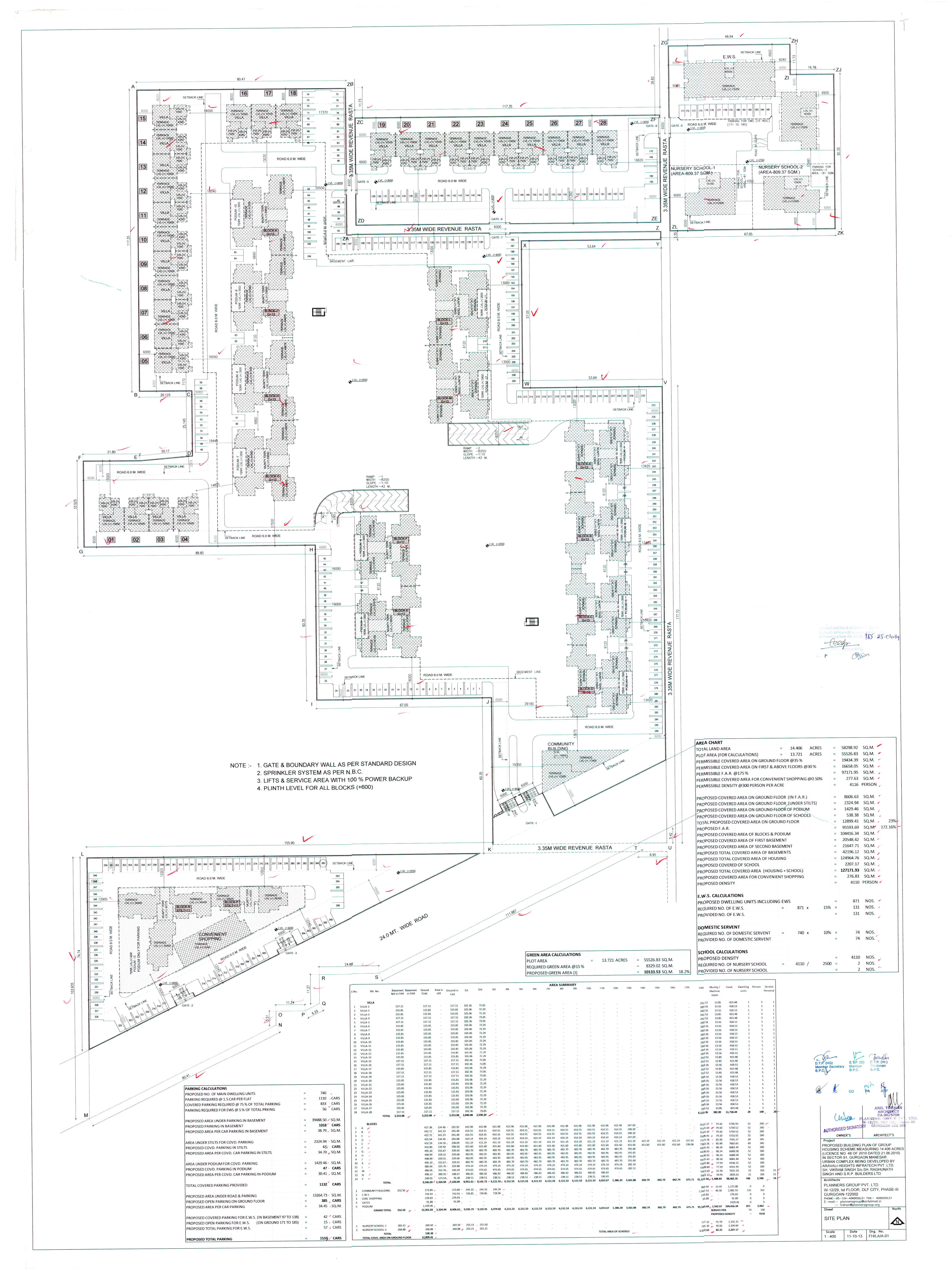
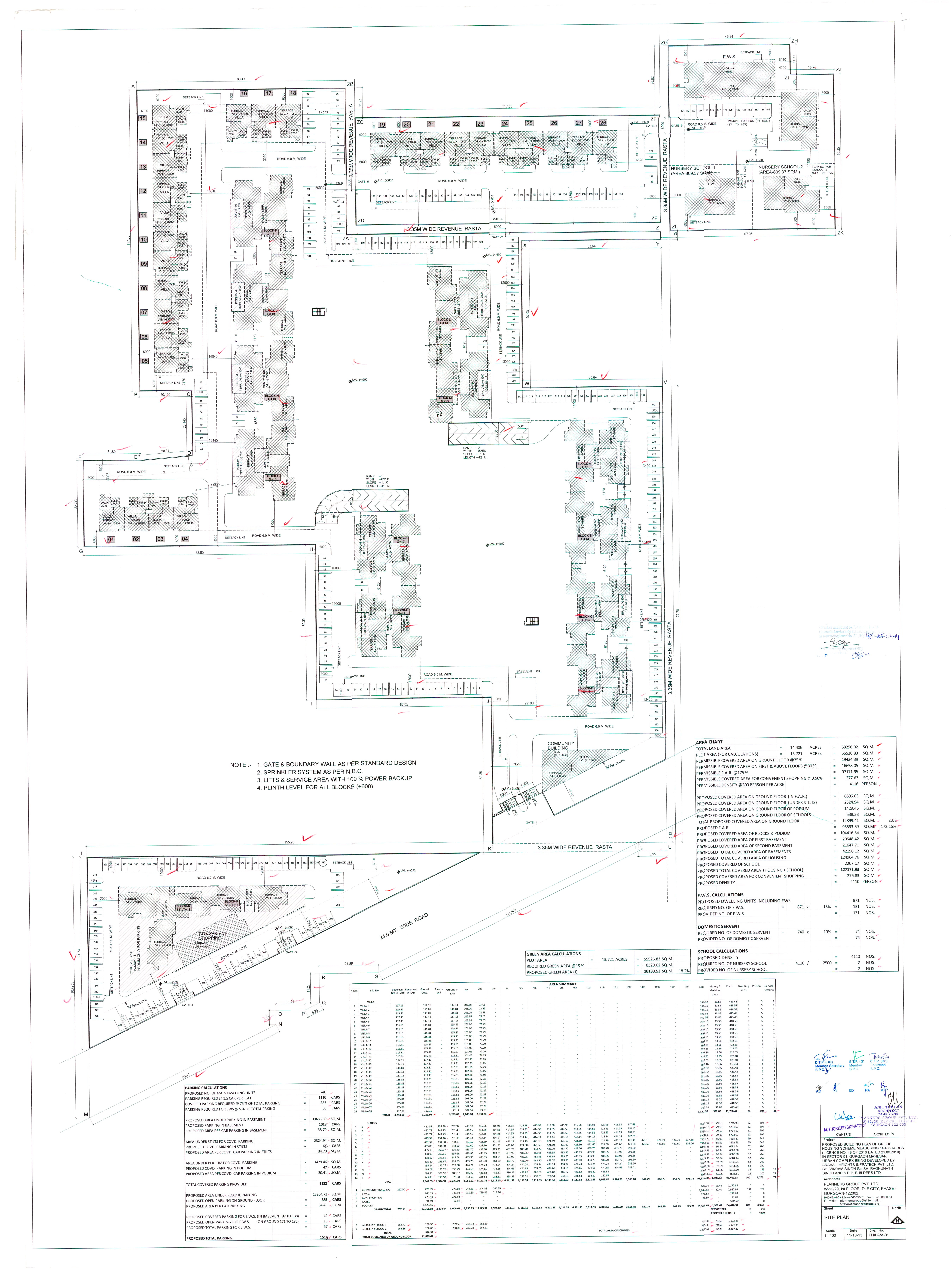
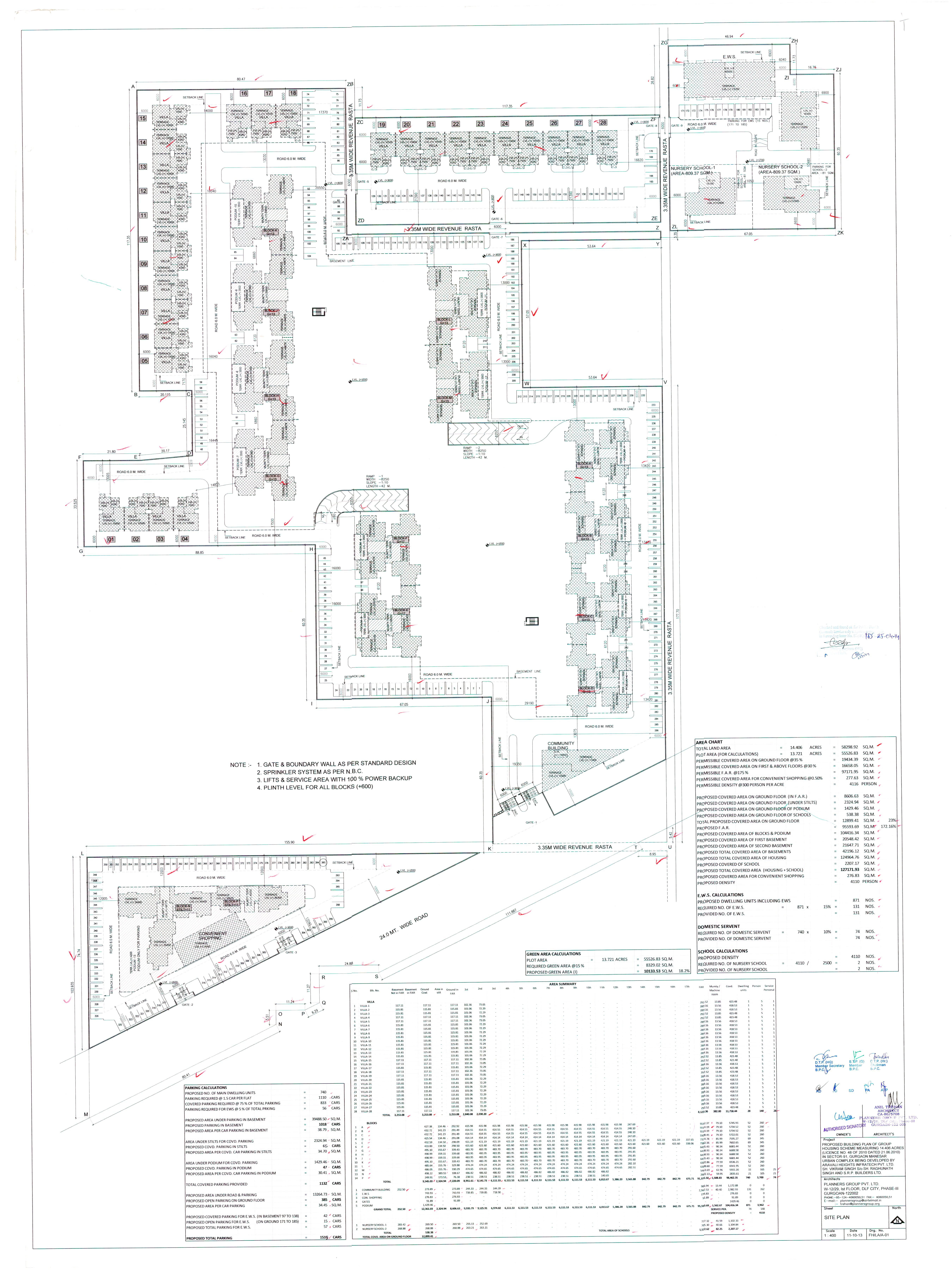
3 IN CASE OF GROUP HOUSING/ COMMERCIAL SITES, A COPY OF THE APPROVED SITE PLAN 22-08-2020 View Document
4 A COMPLETE SET OF THE LAST APPROVED BUILDING PLANS 22-08-2020 View Document
5 IN CASE OF PLOTTED COLONY, THE LATEST LAYOUT PLAN 25-08-2020 View Document
6 DECLARATION SUPPORTED BY AFFIDAVIT DULY SIGNED BY THE PROMOTER TO BE ENCLOSED. 25-08-2020 View Document
7 NON DEFAULT CERTIFICATE FROM A CHARTERED ACCOUNTANT 25-08-2020 View Document