HRERA PanchkulaTemp Project Id : RERA-PKL-PROJ-114-2018
Submission Date : 29-10-2018 04:17:40 AM
Applicant Type : Company
Project Type: ONGOING




KAMAL IDEAL INFRATECH PVT. LTD.
F-35, SHOP NO. 2, CENTRAL MARKET, KIRTI NAGAR, NEW DELHI-110015
01145026633
9810190719 (Number Shared by Promoter in Public)
kamalidealinfratech@gmail.com
XXXX630M
U70102DL2012PTC232348
 
 


 
 


 
 


 
 


 
 







SAPPHIRE FLOORS AND SAPPHIRE HEIGHTS
VILLAGE NAGAL KALAN, SECTOR-64, DISTRICT SONEPAT
SONIPAT
SONIPAT
01145026633
9810190719 (Number Shared by Promoter in Public)
kamalidealinfratech@gmail.com
DEEPAK SHARMA
01147026633
9810190710 (Number Shared by Promoter in Public)
deetwin2007@gmail.com








As per sub-rule(2) of rule 3 of the Haryana Real Estate (Regulation and Development) Rules,2017, the fee for registration of the project as has been calculated as follows:
-----------------------------------------------------------------------------------------------------------------------
-----------------------------------------------------------------------------------------------------------------------
-----------------------------------------------------------------------------------------------------------------------
-----------------------------------------------------------------------------------------------------------------------
2. The aforesaid fees is hereby deposited vide following Drafts/ Banker’s Cheques:-

Sr No.Draft/Cheque No.Draft DateAmountPayee BankPayable To
18768031-07-20171065670KOTAK MAHINDRA HRERA Panchkula







4.96 (Acre)
175
168.78
10.8357 (Acre)
74OF2008
No
Address     B-47 CONNAUGHT PLACE NEW DELHI
Address     B-47 CONNAUGHT PLACE NEW DELHI
Address     B-47 CONNAUGHT PLACE NEW DELHI
Address     B-47 CONNAUGHT PLACE NEW DELHI
Address     B-47 CONNAUGHT PLACE NEW DELHI
Address     B-47 CONNAUGHT PLACE NEW DELHI
Address     B-47 CONNAUGHT PLACE NEW DELHI
Address     B-47 CONNAUGHT PLACE NEW DELHI
Address     B-47 CONNAUGHT PLACE NEW DELHI
Address     B-47 CONNAUGHT PLACE NEW DELHI
Address     B-47 CONNAUGHT PLACE NEW DELHI
Address     B-47 CONNAUGHT PLACE NEW DELHI
Address     B-47 CONNAUGHT PLACE NEW DELHI
Address     B-47 CONNAUGHT PLACE NEW DELHI
Address     B-47 CONNAUGHT PLACE NEW DELHI
Annexure-B- ANNEXURE 2 PART B
NA
No
NA
Yes
Yes
Yes







17484 Lakhs
1622 Lakhs
14075 Lakhs
425 Lakhs
1362 Lakhs




Sr. No.Land area under usageArea of land (Acres)
1PLOTS TO BE SOLD 0
2LAND AREA TO BE USED FOR CONSTRUCTION OF APARTMENTS 1.477
3CONSTRUCTION OF ROADS 1.796
4PAVEMENTS 0.370
5PARKS AND PLAYGROUNDS 0.400
6GREEN BELTS 0.586
7VEHICLE PARKINGS 0.281
8ELECTRICITY SUB-STATION 0.050
9CLUB HOUSE 0
10SEWAGE AND SOLID WASTE TREATMENT FACILITY 0
11AREA TO BE LEFT FOR TRANSFERRING TO THE GOVERNMENT FOR COMMUNITY SERVICES 0
12ANY OTHER 0
Total4.96




FacilityExternal/ connecting service to be provided by (Name the agency)Whether Approval taken from the agency concerned. Yes/No (Annex details in folder C)
ROADSHUDANo
WATER SUPPLYHUANo
ELECTRICITYUHBVNNo
SEWAGE DISPOSALHUDANo
STORM WATER DRAINAGEHUDA No




Sr. No.Name of the facilityEstimated cost (In Lakhs)(Within the project area only)Remarks: Yet to be prepared / Submitted to HUDA, Town & Country Planning Department/ as per project report etc. (Annex relevant documents showing costing details etc. in folder C)
1INTERNAL ROADS AND PAVEMENTS0YET TO BE PREPARED
2WATER SUPPLY SYSTEM0YET TO BE PREPARED
3STORM WATER DRAINAGE0YET TO BE PREPARED
4ELECTRICITY SUPPLY SYSTEM0YET TO BE PREPARED
5SEWAGE TREATMENT & GARBAGE DISPOSAL0YET TO BE PREPARED
6STREET LIGHTING0YET TO BE PREPARED
7SECURITY AND FIRE FIGHTING0YET TO BE PREPARED
8PLAYGROUNDS AND PARKS0YET TO BE PREPARED
9CLUB HOUSE/COMMUNITY CENTRE0YET TO BE PREPARED
10SHOPPING AREA0YET TO BE PREPARED
11RENEWABLE ENERGY SYSTEM0YET TO BE PREPARED
12SCHOOL0YET TO BE PREPARED
13HOSPITAL/DISPENSARY0YET TO BE PREPARED
14ANY OTHER0YET TO BE PREPARED
15TOTAL COST425YET TO BE PREPARED


05-03-2015 (date)
05-03-2015 (date)


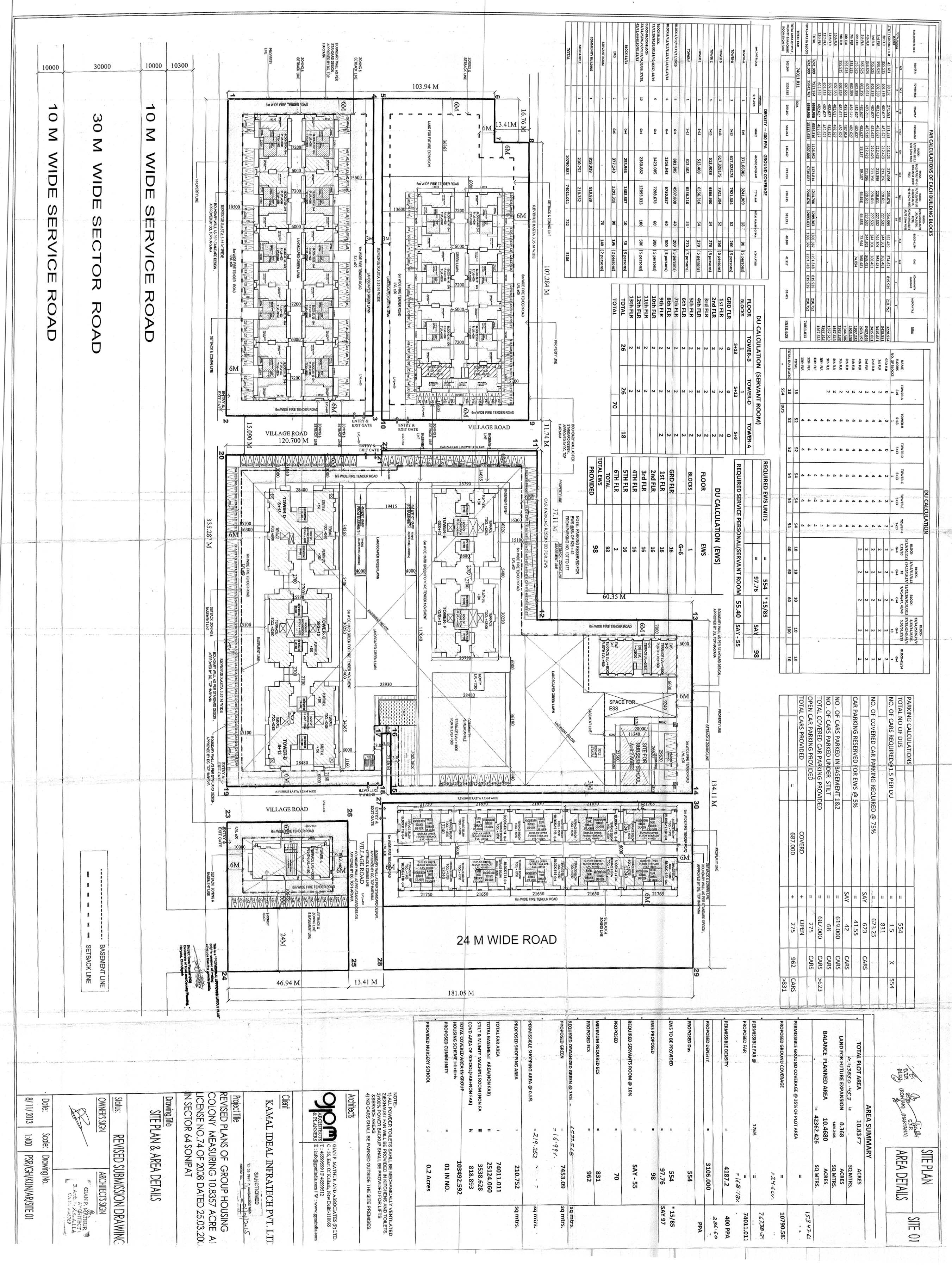
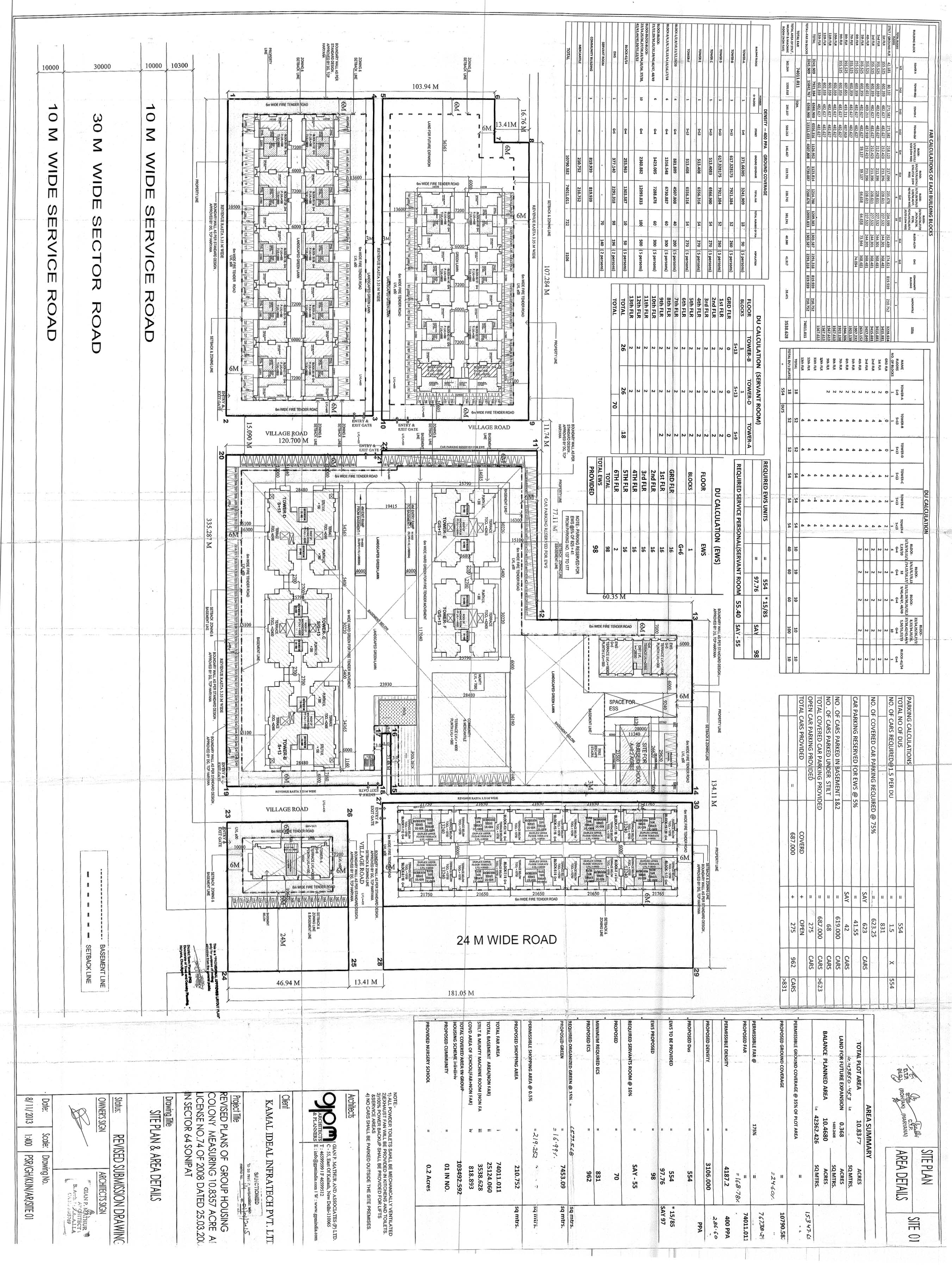
Sr. No.Plot/ apartment type Size of the plot/carpet area of the apartments Total number of plots/apartments in the project Total size of the plots/carpet area of the apartments Plots/apartments booked/ sold upto the date of application Yet to be sold/ booked No. of towers to be/ being constructed for booked apartments
1 APARTMENT/SHOPS/OTHER BUILDINGS Type TOWER D 141.19 26 3670.94 4 22 1
2 APARTMENT/SHOPS/OTHER BUILDINGS Type TOWER D 99.0 26 2574 21 5 1
3 APARTMENT/SHOPS/OTHER BUILDINGS Type TOWER 4 89.5 80 7160 45 35 1
4 APARTMENT/SHOPS/OTHER BUILDINGS Type TOWER 4 108.58 25 2714.5 5 15 1
5 APARTMENT/SHOPS/OTHER BUILDINGS Type TOWER 5 97.49 128 12478.72 53 75 1
6 APARTMENT/SHOPS/OTHER BUILDINGS Type TOWER 5 116.00 32 3712 5 27 1
7 APARTMENT/SHOPS/OTHER BUILDINGS Type TOWER 6 101.80 8 814.4 0 8 1
8 APARTMENT/SHOPS/OTHER BUILDINGS Type TOWER 6 124.39 2 248.78 0 2 1
Total32733373.341331898






TypeNumber of apartments booked/ sold Write or Annex the stage of construction of the booked/ sold apartments in folder C
3 BHK119STRUCTURE OF 100 UNITS IS READY
3 BHK + SERVANT ROOM4FIRST FLOOR SLAB IS READY
4 BHK10STRUCTURE OF 10 UNIT READY


01-01-2015
28-02-2018
31-10-2018
01-12-2019
0
30-12-2021
PROVIDED
ANNEXURE C


PlotsBooked/soldStage of handing over the possession (Write or Annex details)
PLOT00
01-10-2018
0
02-10-2018
NA
NA


0
0
75
270
0





Expenditure incurred till the date of application (In Lakhs)

ParticularsExpenditure
Apartments978
Shops0
Plots0

Expenditure to be made in each quarter (In Lakhs)

ParticularsYear-2018
Jan-MarApr-JuneJuly-SepOct-Dec
Apartments978
Shops0
Plots0




Expenditure incurred till the date of application (In Lakhs)

ParticularsExpenditure

Expenditure to be made in each quarter (In Lakhs)

ParticularsYear-2018
Jan-MarApr-JuneJuly-SepOct-Dec
Roads & Pavements0
Water Supply System0
Sewerage treatment & garbage disposal0
Electricity Supply System0
Storm Water Drainage0
Parks and Playgrounds0
Clubhouse/community centres0
Shopping area0
Other0

ParticularsYear-2019
Jan-MarApr-JuneJuly-SepOct-Dec
Roads & Pavements0
Water Supply System0
Sewerage treatment & garbage disposal0
Electricity Supply System0
Storm Water Drainage0
Parks and Playgrounds0
Clubhouse/community centres0
Shopping area0
Other0












Particulars Remarks, if any
i. No. of Flats/Apartments constructed322
ii. No. of Flats/ Apartments booked133
iii. Total amount sale value of booked Flats, on the date of application/end of last quarter7550 Lakhs
iv. Total amount received from the allottees (booked Flats), on the date of application/end of last quarter1955 Lakhs
v. Balance amount to be received from the allottees (booked Flats, after completion), on the date of application/end of last quarter5594 Lakhs
vi. Balance amount due and recoverable from the allottees (booked Flats) as on the date of application /end of last quarter5595 Lakhs
vii. Amount invested in the project upto the date of application3962 Lakhs
Land cost (If any)1622 Lakhs
Apartments978 Lakhs
Infrastructure0 Lakhs
EDC/ Taxes Etc.1362 Lakhs
viii. Balance cost to be incurred for completion of the project and delivery of possession13522 Lakhs
(a) In respect of existing allottees5595 Lakhs
(b) In respect of rest of the project7927 Lakhs
ix. The amount of loan raised from the banks/ financial institutions/ private persons against the project
Annex detail of the securities furnished to the banks/ financial institutions against the aforesaid loans in folder C
220 Lakhsin lieu of Tower C
x. Total liabilities against the project up-to-date. (Annex details in folder C) 13522 Lakhs



Particulars Estimated expenditure planned to be incurred as per service plan estimates or the project report. (In Lakhs)Actual expenditure incurred upto the date of application. (In Lakhs)
I. INTERNAL ROADS AND PAVEMENTS180.910
II. WATER SUPPLY SYSTEM113.370
III. STORM WATER DRAINAGE48.990
IV. ELECTRICITY SUPPLY SYSTEM18.380
V. SEWAGE TREATMENT & GARBAGE DISPOSAL57.690
VI. CLUB HOUSE/COMMUNITY CENTRE00
VII. SCHOOL00
VIII. ANY OTHER00
IX. SOLID WASTE COLLECTION & MGMT SYSTEM00
X. CLUBHOUSE00
XI. NEIGHBOURHOOD SHOPPING00
XII. GREEN AREAS,PARKS,PLAYGROUNDS ETC.00
XIII. COVERED PARKING00
XIV. OPEN PARKING00
XV. GARAGES00
XVI. SECURITY SYSTEM00
XVII. OTHER FACILITIES AS PER PROJECT REPORT00









Yes
Yes
STATE BANK OF INDIA DLF INDUSTRIAL AREA KIRTI NAGAR NEW DELHI -110015
000061219900817
SBIN0031568
110002614
31568
(1)CHANDER SHEKHAR GROVER R/O N-102 A KIRTI NAGAR NEW DELHI (2)DEEPAK SHARMA R/O M-59 KIRTI NAGAR NEW DELHI -110015 (3)RAVI SHARMA R/O B-1/618 JANAK PURI NEW DELHI -110058 (4) VIKAS TUSHIR HOUSE R/O NO 665 VILLAGE NANGAL KALAN TEHSIL DISTRICT SONIPAT











No
No
Yes
Yes
Yes
Yes
Yes
Yes
Yes
Yes


Yes
No
Yes
Yes
Yes
No
No
Yes
Statutory Approvals Statutory Approvals StatusDate
I. NOC FOREST DEPARTMENTALREADY BEEN OBTAINED05-12-2013
II. NOC PWD ROAD PERMISSIONALREADY BEEN OBTAINED14-07-2014
III. LICENSE NO 74 OF 2008ALREADY BEEN OBTAINED26-03-2008
IV. LICENSE RENEWAL VALID UPTO 25.03.2020ALREADY BEEN OBTAINED04-10-2018
V. REVISED ZONING PLAN ALREADY BEEN OBTAINED11-10-2013
VI. REVISED BUILDING PLAN ALREADY BEEN OBTAINED05-03-2015
VII. ENVIRONMENT CLEARENCE ALREADY BEEN OBTAINED06-08-2014
VIII. NOC FIRE DISTANCE ALREADY BEEN OBTAINED28-10-2018
IX. APPROVAL OF FIRE FIGHTING SCHEME APPLIED FOR BUT YET TO RECEIVE12-10-2018
X. SERVICE PLAN ESTIMATEAPPLIED FOR BUT YET TO RECEIVE09-10-2017
XI. ELECTRICAL SCEHEMEYET TO FILE FOR APPROVAL18-12-2018








Yes


Yes


NA













SPECIFICATION OF CONSTRUCTION
Specification of apartments and other buildings including the following:
1FLOORING DETAILS OF VARIOUS PARTS OF HOUSEVITRIFIED TILES
2WALL FINISHING DETAILSLIVING/DINING- PAINTED IN ALL BOUND DISTEMPER/BEDROOM IN DRY DISTEMPER STAIRCASE AREA- OIL BOUND DISTEMPER/DRY DISTEMPER EXTERNAL FAçADE-TEXTURED PAINT FINISH/EXTERIOR EMULSION
3KITCHEN DETAILSGRANITE/MARBLE COUNTERS WITH RECESSED SINGLE BOWL STAINLESS STEEL SINK
4BATHROOM FITTINGSPARRYWARE OR EQUIVALENT
5WOOD WORK ETCMIRANDI WOOD ALL CHOWKHTA
6DOORS AND WINDOS FRAMESDOOR/WINDOW FRAMES-NATURAL SEASONED HARDWOOD(YELLOW/RED MIRANDI WOOD)
7GLASS WORKNO
8ELECTRIC FITTINGSMODULAR SWITCHES
9CONDUCTING AND WIRING DETAILSELECTRICAL WIRING WITH COPPER CONDUCTORS IN CONCEALED CONDULTS AS PER ISI CODE. SWITCHES AND SOCKETS OF REPUTED MARKERS
10CUPBOARD DETAILSNO
11WATER STORAGEOVER HEAD TANK
12LIFT DETAILSMRL LIFT WITH ARDS SYSTEM
13EXTERNAL GLAZINGSMS GLAZINGS
13.1WINDOWS/GLAZINGSWINDOWS-UPVC FRAMES & SHUTTERS
14DOORSFLUSH DOORS
14.1MAIN DOORSFLUSH DOORS
14.2INTERNAL DOORSFLUSH DOORS
15AIR CONDITIONINGNO
16ELECTRICAL FITTINGSMODULAR SWITCHES
17CNG PIPE LINENO
18PROVISION OF WIFI AND BROADBAND FACILITYNO
19EXTERNAL FINISHING/COLOUR SCHEMETEXTURED PAINT FINISH/EXTERIOR EMULSION
20INTERNAL FINISHINGPAINTED IN ALL BOUND DISTEMPER/BEDROOM IN DRY DISTEMPER
SPECIFICATION UNIT WISE
1 . LIVING/DINING/FOYER/FAMILY LOUNGE
1 . 1 FLOORVITRIFIED TILES WITH SKIRTING
1 . 2 WALLSPAINTED IN ALL BOUND DISTEMPER/BEDROOM IN DRY DISTEMPER
1 . 3 CEILINGPAINTED IN ALL BOUND DISTEMPER/BEDROOM IN DRY DISTEMPER
2 . MASTER BEDROOM/DRESSROOM
2 . 1 FLOORVITRIFIED TILES WITH SKIRTING
2 . 2 WALLSPAINTED IN ALL BOUND DISTEMPER/BEDROOM IN DRY DISTEMPER
2 . 3 CEILINGPAINTED IN ALL BOUND DISTEMPER/BEDROOM IN DRY DISTEMPER
2 . 4 MODULAR WARDROBESNO
3 . MASTER TOILET
3 . 1 FLOORANTI SKID TILES
3 . 2 WALLSGLAZED TILES UPTO CEILING HEIGHT
3 . 3 CEILINGGYPSUM BOARD
3 . 4 COUNTERSGRANITE STONE COUNTER TOP
3 . 5 SANITARY WARE/CP FITTINGSWHITE SANITARY FIXTURE WITH CP FITTINGS, STAINLESS STEEL KITCHEN SINK WITH DRAIN BOARD
3 . 6 FITTING/FIXTURESTOILETS-WHITE SANITARY WARE(CERA/PARRYWARE MAKE OR EQUIVALENT)
4 . BED ROOMS
4 . 1 FLOORVITRIFIED TILES WITH SKIRTING
4 . 2 WALLSPAINTED IN ALL BOUND DISTEMPER
4 . 3 CEILINGPAINTED IN ALL BOUND DISTEMPER
4 . 4 WARDROBESNO
5 . TOILET
5 . 1 FLOORANTI SKID TILES
5 . 2 WALLSGLAZED TILES UPTO CEILING HEIGHT
5 . 3 CEILINGGYPSUM BOARD
5 . 4 COUNTERSGRANITE STONE COUNTER TOP
5 . 5 SANITARY WARE/CP FITTINGSWHITE SANITARY FIXTURE WITH CP FITTINGS, STAINLESS STEEL KITCHEN SINK WITH DRAIN BOARD
5 . 6 FIXTURESTOILETS-WHITE SANITARY WARE(CERA/PARRYWARE MAKE OR EQUIVALE
6 . KITCHEN
6 . 1 FLOORPORCELAIN /CERAMIC TILES
6 . 2 WALLSCERAMIC TILES 600 MM ABOVE COUNTER
6 . 3 CEILINGPAINTED IN ALL BOUND DISTEMPER
6 . 4 COUNTERSGRANITE STONE COUNTER TOP
6 . 5 FIXTURES(CERA/PARRYWARE MAKE OR EQUIVALENT
6 . 6 KITCHEN APPLIANCESNO
7 . UTILITY ROOMS/UTILITY BALCONY/TOILET
7 . 1 FLOORANTI SKID TILES
7 . 2 WALLS & CEILINGPAINTED IN ALL BOUND DISTEMPER
7 . 3 TOILETANTI SKID TILES
7 . 4 BALCONYANTI SKID TILES
8 . SIT-OUTS
8 . 1 FLOORANTI SKID TILES
8 . 2 WALLS & CEILINGPAINTED IN ALL BOUND DISTEMPER
8 . 3 RAILINGSMS RAILING
8 . 4 FIXTURES(CERA/PARRYWARE MAKE OR EQUIVALENT












Sr. No.Document DescriptionDate of Document UploadView Document
1 A COMPLETE SET OF THE LAST APPROVED BUILDING PLANS 23-10-2018 View Document
2 ZONING PLAN 23-10-2018 View Document
3 IN CASE OF GROUP HOUSING/ COMMERCIAL SITES, A COPY OF THE APPROVED SITE PLAN 23-10-2018 View Document
4 COPY OF LICENSE ALONG WITH SCHEDULE OF LAND 23-10-2018 View Document
5 CASH FLOW STATEMENT OF THE PROPOSED PROJECT 29-10-2018 View Document
6 CERTIFICATE FROM A CHARTERED ACCOUNTANT CERTIFYING THAT THE INFORMSTION PROVIDED BY THE APPLICANT IN FORM REP-1-C-X IS CORRECT AS PER THE BOOKS OF ACCOUNTS/ BALANCE SHEET OF THE APPLICANT 29-10-2018 View Document
7 NON DEFAULT CERTIFICATE FROM A CHARTERED ACCOUNTANT 29-10-2018 View Document
8 IN CASE OF PLOTTED COLONY, THE LATEST LAYOUT PLAN 29-10-2018 View Document
9 DECLARATION SUPPORTED BY AFFIDAVIT DULY SIGNED BY THE PROMOTER TO BE ENCLOSED. 29-10-2018 ------












Sr. No.Document DescriptionDate of Document UploadView Document
1 RC APPROVED 22-02-2025 View Document