HRERA PanchkulaTemp Project Id : RERA-PKL-PROJ-848-2020
Submission Date : 01-06-2020 03:19:52 PM
Applicant Type : Company
Project Type: NEW




PARDOS AFFORDABLE HOUSING PRIVATE LIMITED
61-63, PANCHKUIAN ROAD, SECOND FLOOR, NEW DELHI 110001
1141204444
9810571165 (Number Shared by Promoter in Public)
dmi@dmialternatives.in
http://okas.co.in/
XXXX582D
U45500DL2018PTC334289
 
 


 
 


 
 


 
 


 
 







OKAS ENCLAVE 2
VILLAGE MALPURA
DHARUHERA ST
REWARI
01141204400
9810571165 (Number Shared by Promoter in Public)
dmi@dmialternatives.in
VIKAS KUMAR
01123221161
9899715578 (Number Shared by Promoter in Public)
info@ctcgeo.in








As per sub-rule(2) of rule 3 of the Haryana Real Estate (Regulation and Development) Rules,2017, the fee for registration of the project as has been calculated as follows:
-----------------------------------------------------------------------------------------------------------------------
-----------------------------------------------------------------------------------------------------------------------
-----------------------------------------------------------------------------------------------------------------------
-----------------------------------------------------------------------------------------------------------------------
2. The aforesaid fees is hereby deposited vide following Drafts/ Banker’s Cheques:-

Sr No.Draft/Cheque No.Draft DateAmountPayee BankPayable To
119333520-05-2020290392KOTAK MAHINDRA BANKHRERA Panchkula







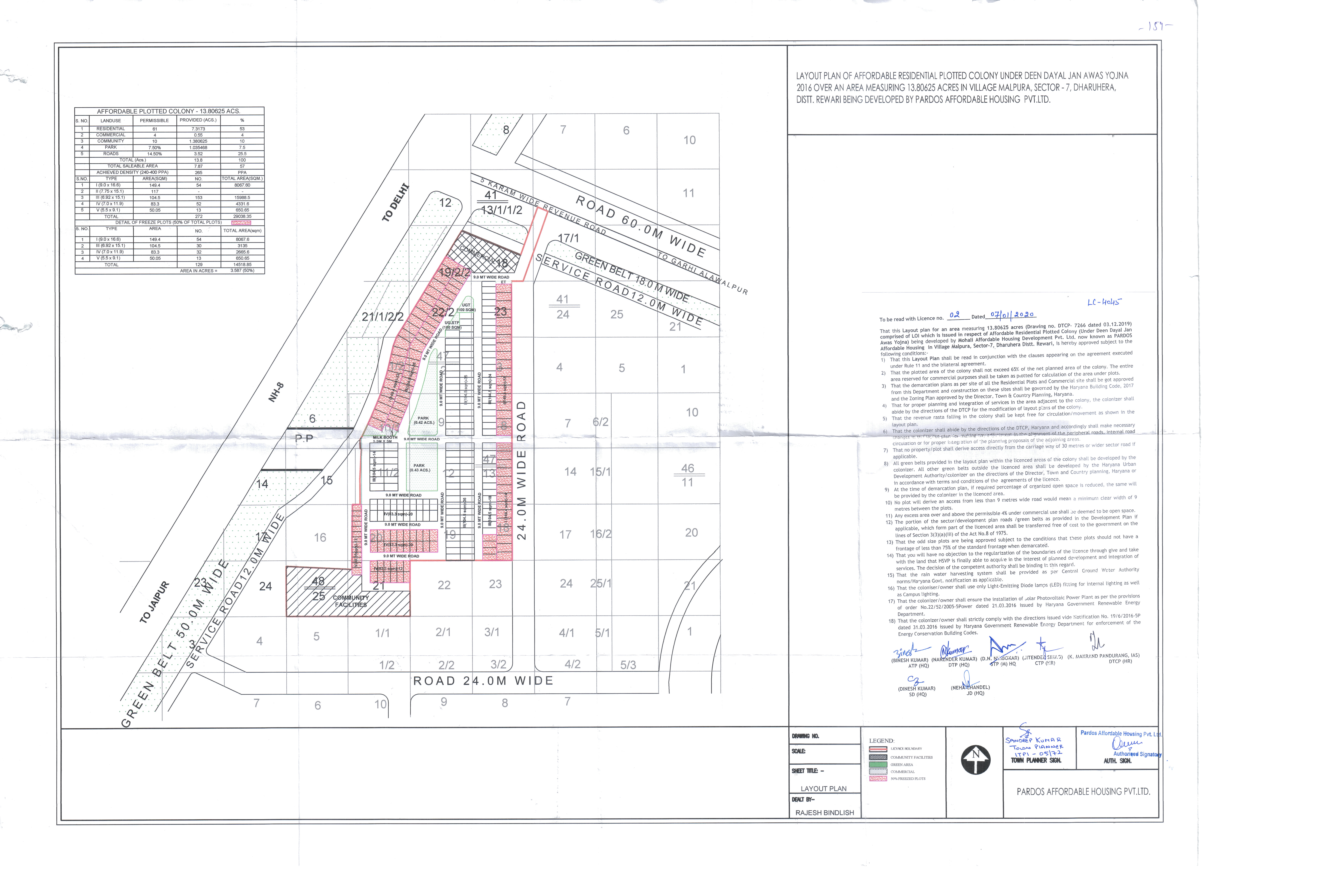
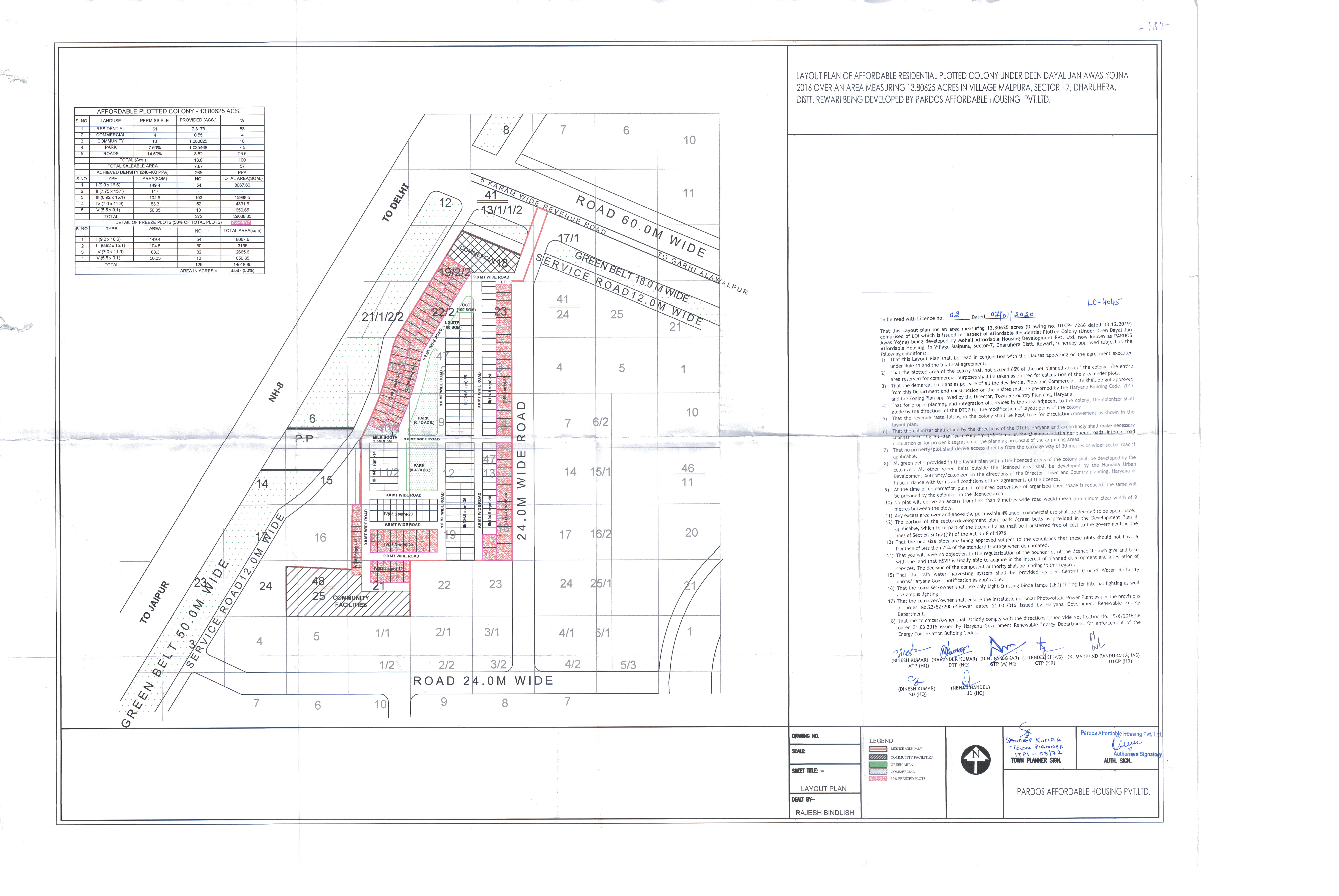
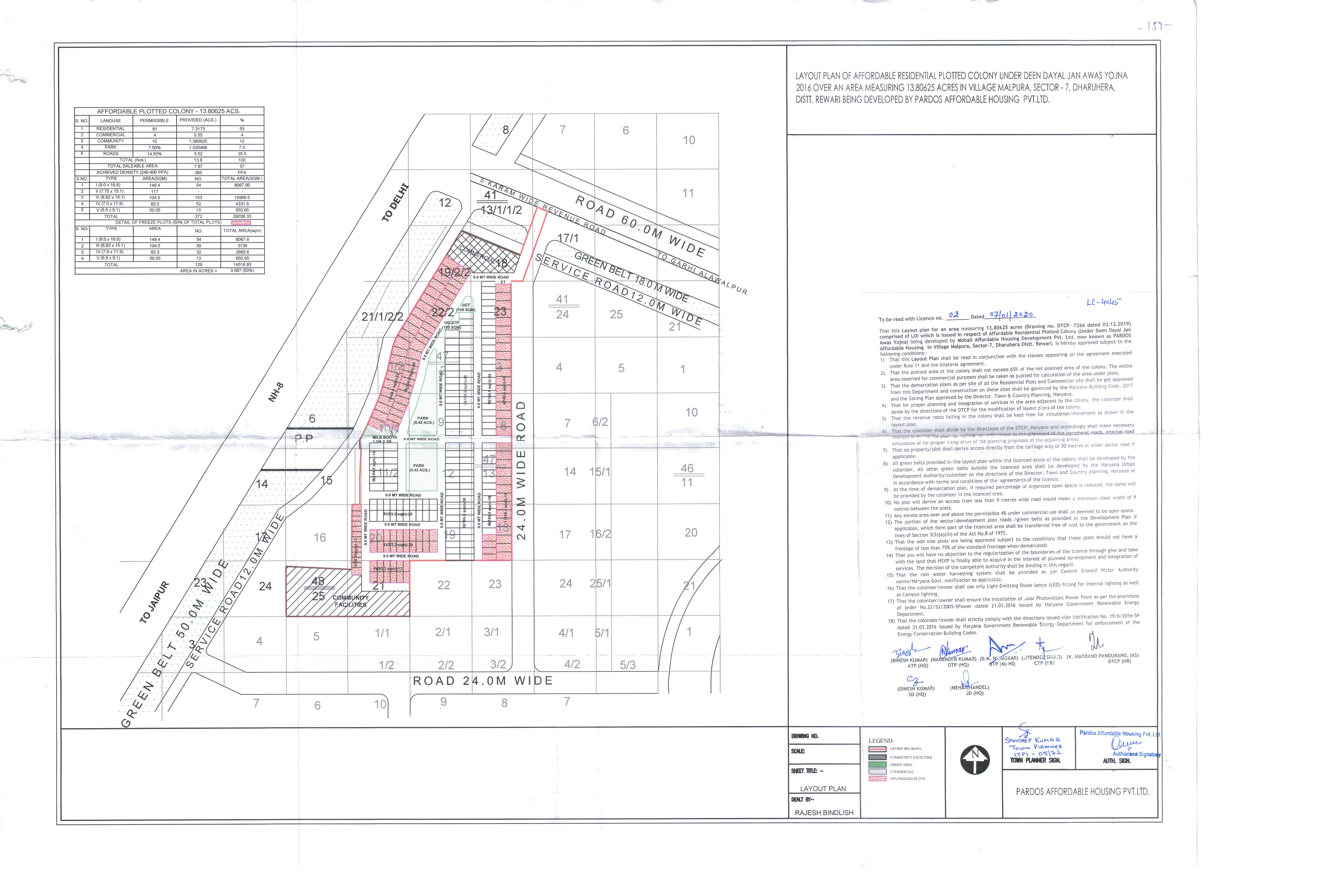
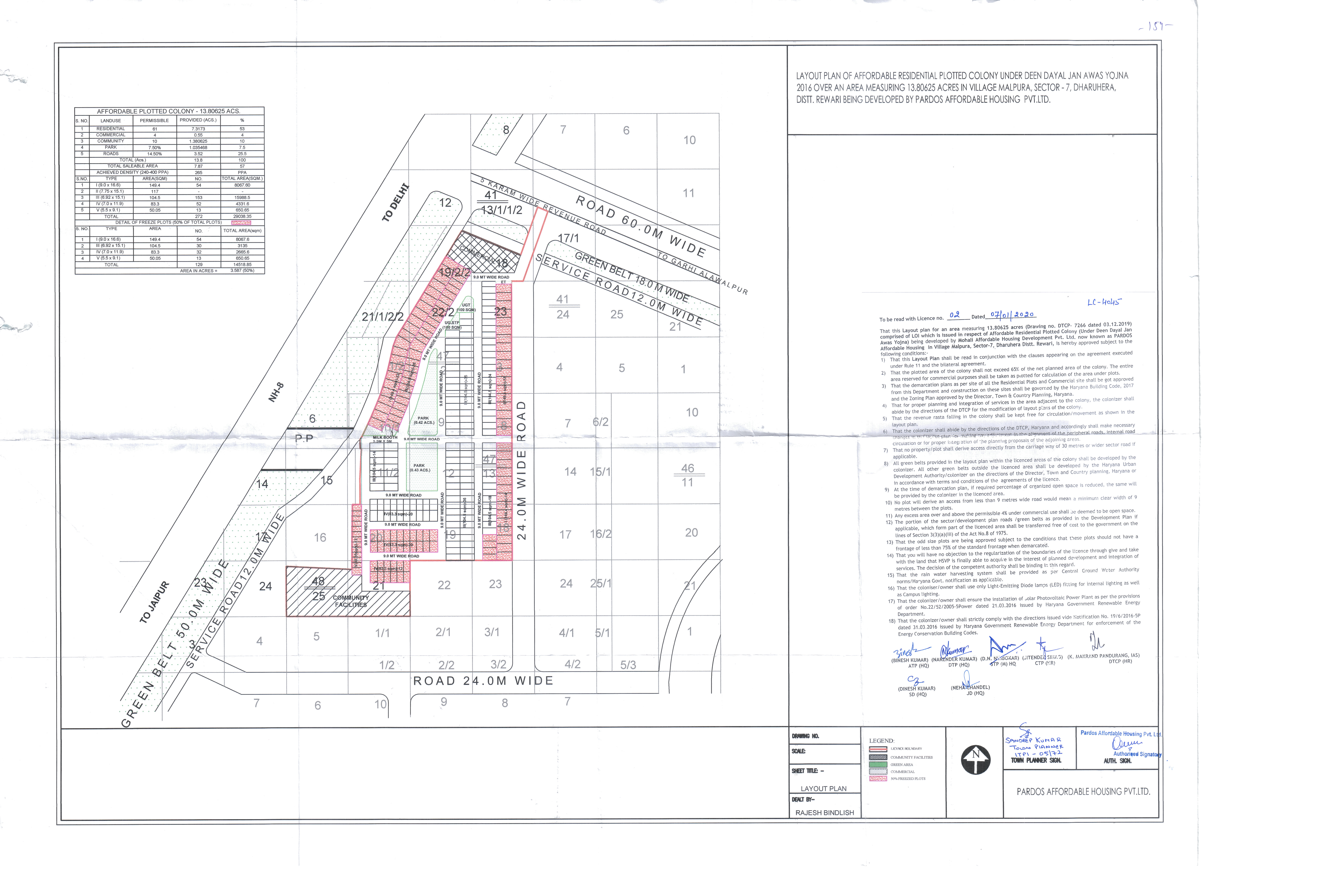
13.80625 (Acre)
NA
0
13.80625 (Acre)
LC-02 of 2020
Yes







5460 Lakhs
3793 Lakhs
0 Lakhs
905 Lakhs
763 Lakhs




Sr. No.Land area under usageArea of land (Acres)
1PLOTS TO BE SOLD 7.3979
2LAND AREA TO BE USED FOR CONSTRUCTION OF APARTMENTS 0
3CONSTRUCTION OF ROADS 3.404129
4PAVEMENTS 0
5PARKS AND PLAYGROUNDS 1.070
6GREEN BELTS 0
7VEHICLE PARKINGS 0
8ELECTRICITY SUB-STATION 0
9CLUB HOUSE 0
10SEWAGE AND SOLID WASTE TREATMENT FACILITY 0
11AREA TO BE LEFT FOR TRANSFERRING TO THE GOVERNMENT FOR COMMUNITY SERVICES 1.381871
12ANY OTHER 0
13COMMERCIAL 0.55
Total13.8039




FacilityExternal/ connecting service to be provided by (Name the agency)Whether Approval taken from the agency concerned. Yes/No (Annex details in folder C)
ROADSHARYANA SHAHARI VIKAS PRADHIKARANNo
WATER SUPPLYDAKSHIN HARYANA BIJLI VITRAN NIGAMNo
ELECTRICITYHARYANA SHAHARI VIKAS PRADHIKARANNo
SEWAGE DISPOSALHARYANA SHAHARI VIKAS PRADHIKARANNo
STORM WATER DRAINAGEHARYANA SHAHARI VIKAS PRADHIKARANNo




Sr. No.Name of the facilityEstimated cost (In Lakhs)(Within the project area only)Remarks: Yet to be prepared / Submitted to HUDA, Town & Country Planning Department/ as per project report etc. (Annex relevant documents showing costing details etc. in folder C)
1INTERNAL ROADS AND PAVEMENTS351.13YET TO BE PREPARED
2WATER SUPPLY SYSTEM169.84YET TO BE PREPARED
3STORM WATER DRAINAGE107.54YET TO BE PREPARED
4ELECTRICITY SUPPLY SYSTEM0YET TO BE PREPARED
5SEWAGE TREATMENT & GARBAGE DISPOSAL216.98YET TO BE PREPARED
6STREET LIGHTING52.97YET TO BE PREPARED
7SECURITY AND FIRE FIGHTING0YET TO BE PREPARED
8PLAYGROUNDS AND PARKS6.05YET TO BE PREPARED
9CLUB HOUSE/COMMUNITY CENTRE0YET TO BE PREPARED
10SHOPPING AREA0YET TO BE PREPARED
11RENEWABLE ENERGY SYSTEM0YET TO BE PREPARED
12SCHOOL0YET TO BE PREPARED
13HOSPITAL/DISPENSARY0YET TO BE PREPARED
14ANY OTHER0YET TO BE PREPARED


NA (date)
NA (date)
01-07-2020
31-12-2022
Sr. No Plot Area(In Square Meter)Number of plots in the project
1 127.822 1
2 142.094 1
3 146.08 1
4 146.168 1
5 147.968 1
6 148.316 1
7 148.735 1
8 148.795 1
9 148.934 1
10 149.025 1
11 149.369 1
12 149.4 42
13 149.453 1
14 149.536 1
15 149.732 1
16 149.779 1
17 149.791972 1
18 149.877 1
19 149.908 1
20 149.93 1
21 149.49 1
22 55.69 1
23 55.993 1
24 56.295 1
25 56.598 1
26 56.9 1
27 57.2 1
28 57.505 1
29 58.11 1
30 58.413 1
31 58.715 1
32 83.3 32
33 83.433 10
34 95.888 2
35 102.1615 4
36 102.935 4
37 57.808 1
38 104.492 134
39 104.592 1
40 107.973 1
41 113.159 1
42 114.609 1
43 121.039 1
44 123.201 1
45 125.9944 1
46 126.236 2
47 126.463 2
48 127.1873 2
Total272


TypeCarpet area(In Square Meter)Number of apartmentsNumber of towers
Apartment/Shops/Other Buildings000





Expenditure incurred till the date of application (In Lakhs)

ParticularsExpenditure
Apartments0
Shops0
Plots0

Expenditure to be made in each quarter (In Lakhs)

ParticularsExpenditure to be made in each quarter ()
Apr-JuneJuly-SepOct-DecJan-Mar




Expenditure incurred till the date of application (In Lakhs)

ParticularsExpenditure
Roads & Pavements0
Water Supply System0
Sewerage treatment & garbage disposal0
Electricity Supply System0
Storm Water Drainage0
Parks and Playgrounds0
Clubhouse/community centres0
Shopping area0
Other0

Expenditure to be made in each quarter (In Lakhs)

ParticularsYear-2020
Jan-MarApr-JuneJuly-SepOct-Dec
Roads & Pavements43.8943.89
Water Supply System00
Sewerage treatment & garbage disposal00
Electricity Supply System00
Storm Water Drainage00
Parks and Playgrounds00
Clubhouse/community centres00
Shopping area00
Other00

ParticularsYear-2021
Jan-MarApr-JuneJuly-SepOct-Dec
Roads & Pavements43.8943.8943.8943.89
Water Supply System28.3128.3128.3128.31
Sewerage treatment & garbage disposal36.1636.1636.1636.16
Electricity Supply System0000
Storm Water Drainage17.9217.9217.9217.92
Parks and Playgrounds0000
Clubhouse/community centres0000
Shopping area0000
Other00019.67

ParticularsYear-2022
Jan-MarApr-JuneJuly-SepOct-Dec
Roads & Pavements43.8943.89
Water Supply System28.3128.31
Sewerage treatment & garbage disposal36.1636.16
Electricity Supply System00
Storm Water Drainage17.9217.92
Parks and Playgrounds00
Clubhouse/community centres00
Shopping area00
Other19.6719.67












Yes
No
KOTAK MAHINDRA BANK LTD GROUND FLOOR, AMBADEEP BUILDING, 14 KASTURBA GANDHI MARG,NEW DELHI-110001,INDIA.
8913814110
KKBK0000172
110485002
0172
Jassa Chawla, 120 Sunder Nagar, Lodhi Road, Central Delhi, Delhi, 110003
Yes











Yes
Yes
No
No
No
No
No
No
No
No


Yes
No
No
No
No
Yes
No
No
Statutory Approvals Statutory Approvals StatusDate
I. ZONING PLANAPPLIED FOR BUT YET TO RECEIVENA








Yes


Yes















SPECIFICATION OF CONSTRUCTION
Specification of apartments and other buildings including the following:
1FLOORING DETAILS OF VARIOUS PARTS OF HOUSENA
2WALL FINISHING DETAILSNA
3KITCHEN DETAILSNA
4BATHROOM FITTINGSNA
5WOOD WORK ETCNA
6DOORS AND WINDOS FRAMESNA
7GLASS WORKNA
8ELECTRIC FITTINGSNA
9CONDUCTING AND WIRING DETAILSNA
10CUPBOARD DETAILSNA
11WATER STORAGENA
12LIFT DETAILSNA
13EXTERNAL GLAZINGSNA
13.1WINDOWS/GLAZINGSNA
14DOORSNA
14.1MAIN DOORSNA
14.2INTERNAL DOORSNA
15AIR CONDITIONINGNA
16ELECTRICAL FITTINGSNA
17CNG PIPE LINENA
18PROVISION OF WIFI AND BROADBAND FACILITYNA
19EXTERNAL FINISHING/COLOUR SCHEMENA
20INTERNAL FINISHINGNA
SPECIFICATION UNIT WISE
1 . LIVING/DINING/FOYER/FAMILY LOUNGE
1 . 1 FLOORNA
1 . 2 WALLSNA
1 . 3 CEILINGNA
2 . MASTER BEDROOM/DRESSROOM
2 . 1 FLOORNA
2 . 2 WALLSNA
2 . 3 CEILINGNA
2 . 4 MODULAR WARDROBESNA
3 . MASTER TOILET
3 . 1 FLOORNA
3 . 2 WALLSNA
3 . 3 CEILINGNA
3 . 4 COUNTERSNA
3 . 5 SANITARY WARE/CP FITTINGSNA
3 . 6 FITTING/FIXTURESNA
4 . BED ROOMS
4 . 1 FLOORNA
4 . 2 WALLSNA
4 . 3 CEILINGNA
4 . 4 WARDROBESNA
5 . TOILET
5 . 1 FLOORNA
5 . 2 WALLSNA
5 . 3 CEILINGNA
5 . 4 COUNTERSNA
5 . 5 SANITARY WARE/CP FITTINGSNA
5 . 6 FIXTURESNA
6 . KITCHEN
6 . 1 FLOORNA
6 . 2 WALLSNA
6 . 3 CEILINGNA
6 . 4 COUNTERSNA
6 . 5 FIXTURESNA
6 . 6 KITCHEN APPLIANCESNA
7 . UTILITY ROOMS/UTILITY BALCONY/TOILET
7 . 1 FLOORNA
7 . 2 WALLS & CEILINGNA
7 . 3 TOILETNA
7 . 4 BALCONYNA
8 . SIT-OUTS
8 . 1 FLOORNA
8 . 2 WALLS & CEILINGNA
8 . 3 RAILINGSNA
8 . 4 FIXTURESNA












Sr. No.Document DescriptionDate of Document UploadView Document
1 COPY OF LICENSE ALONG WITH SCHEDULE OF LAND 27-05-2020 View Document
2 CERTIFICATE FROM A CHARTERED ACCOUNTANT CERTIFYING THAT THE INFORMSTION PROVIDED BY THE APPLICANT IN FORM REP-1-C-X IS CORRECT AS PER THE BOOKS OF ACCOUNTS/ BALANCE SHEET OF THE APPLICANT 27-05-2020 View Document
3 DEMARCATION PLAN 27-05-2020 View Document
4 IN CASE OF PLOTTED COLONY, THE LATEST LAYOUT PLAN 27-05-2020 View Document
5 NON DEFAULT CERTIFICATE FROM A CHARTERED ACCOUNTANT 27-05-2020 View Document
6 IN CASE OF GROUP HOUSING/ COMMERCIAL SITES, A COPY OF THE APPROVED SITE PLAN 27-05-2020 View Document
7 DECLARATION SUPPORTED BY AFFIDAVIT DULY SIGNED BY THE PROMOTER TO BE ENCLOSED. 17-07-2020 View Document












Sr. No.Document DescriptionDate of Document UploadView Document
1 Certificate for extension of registration 11-01-2023 View Document
2 Completion Certificate 12-09-2023 View Document