HRERA GurugramTemp Project Id : RERA-GRG-PROJ-649-2020
Submission Date : 22-02-2020 07:06:14 AM
Applicant Type : Company
Project Type: ONGOING




TULIP INFRATECH PVT. LTD.
76 G, SECTOR 18, GURUGRAM, HARYANA
0124441777
9811065104 (Number Shared by Promoter in Public)
info@tulipgroup.in
http://tulipgroup.in
XXXX755E
U70101DL2005PTC144086
 
 


 
 


 
 


 
 







TULIP VIOLET-II
SECTOR 69 & 70, GURUGRAM, HARYANA
GURGAON
GURUGRAM
01244948700
9549999636 (Number Shared by Promoter in Public)
info@tulipgroup.in
RAJENDER SHARMA
01244948700
9549999636 (Number Shared by Promoter in Public)
info@tulipgroup.in








As per sub-rule(2) of rule 3 of the Haryana Real Estate (Regulation and Development) Rules,2017, the fee for registration of the project as has been calculated as follows:
-----------------------------------------------------------------------------------------------------------------------
-----------------------------------------------------------------------------------------------------------------------
-----------------------------------------------------------------------------------------------------------------------
-----------------------------------------------------------------------------------------------------------------------
2. The aforesaid fees is hereby deposited vide following Drafts/ Banker’s Cheques:-

Sr No.Draft/Cheque No.Draft DateAmountPayee BankPayable To
147709619-09-20181480000PNBHRERA Gurugram







8.44 (Sqr/mtrs)
175
169.26
25.44 (Sqr/mtrs)
78 of 2010 (15.10.2010) DTCP
No
Address     915, TYAGI MOHALLA, DARBARIPUR (162) BADSHAHPUR, GURGAON, HARYANA-122101
Address     HOUSE NO.-2, BLOCK-4, BADSHAHPUR FARRUKHNAGAR, GURGAON, HARYANA-122101
Address     635, SECTOR-15, PART-1, VILL- JHARSA, GURGAON, FARRUKHNAGAR, HARYANA-122001
Annexure-B- COLLABORATION AGREEMENT
AGREEMENT MADE BEFORE THE GRANT OF THE LICENCE
Yes
ONE COLLABORATION AGREEMENT ONLY
No
Yes
Yes







1450000000 Lakhs
0 Lakhs
0 Lakhs
0 Lakhs
0 Lakhs




Sr. No.Land area under usageArea of land (Square Meters)
1PLOTS TO BE SOLD 0
2LAND AREA TO BE USED FOR CONSTRUCTION OF APARTMENTS 12342.98
3CONSTRUCTION OF ROADS 12178.105
4PAVEMENTS 12178.105
5PARKS AND PLAYGROUNDS 15688.93
6GREEN BELTS 15688.93
7VEHICLE PARKINGS 12650
8ELECTRICITY SUB-STATION 300
9CLUB HOUSE 329.55
10SEWAGE AND SOLID WASTE TREATMENT FACILITY 825.1
11AREA TO BE LEFT FOR TRANSFERRING TO THE GOVERNMENT FOR COMMUNITY SERVICES 0
12ANY OTHER 0
Total82181.7




FacilityExternal/ connecting service to be provided by (Name the agency)Whether Approval taken from the agency concerned. Yes/No (Annex details in folder C)
ROADSHUDAYes
WATER SUPPLYHUDAYes
ELECTRICITYCHIEF ELECTRICAL INSPECTOR, HARYANAYes
SEWAGE DISPOSALHUDAYes
STORM WATER DRAINAGEHUDAYes




Sr. No.Name of the facilityEstimated cost (In Lakhs)(Within the project area only)Remarks: Yet to be prepared / Submitted to HUDA, Town & Country Planning Department/ as per project report etc. (Annex relevant documents showing costing details etc. in folder C)
1INTERNAL ROADS AND PAVEMENTS0YET TO BE PREPARED
2WATER SUPPLY SYSTEM0YET TO BE PREPARED
3STORM WATER DRAINAGE0YET TO BE PREPARED
4ELECTRICITY SUPPLY SYSTEM0YET TO BE PREPARED
5SEWAGE TREATMENT & GARBAGE DISPOSAL0YET TO BE PREPARED
6STREET LIGHTING0YET TO BE PREPARED
7SECURITY AND FIRE FIGHTING0YET TO BE PREPARED
8PLAYGROUNDS AND PARKS0YET TO BE PREPARED
9CLUB HOUSE/COMMUNITY CENTRE0YET TO BE PREPARED
10SHOPPING AREA0YET TO BE PREPARED
11RENEWABLE ENERGY SYSTEM0YET TO BE PREPARED
12SCHOOL0YET TO BE PREPARED
13HOSPITAL/DISPENSARY0YET TO BE PREPARED
14ANY OTHER0YET TO BE PREPARED


11-03-2015 (date)
11-03-2015 (date)


Sr. No.Plot/ apartment type Size of the plot/carpet area of the apartments Total number of plots/apartments in the project Total size of the plots/carpet area of the apartments Plots/apartments booked/ sold upto the date of application Yet to be sold/ booked No. of towers to be/ being constructed for booked apartments
1 APARTMENT/SHOPS/OTHER BUILDINGS Type A-3,6,7,14 116.685 180 21003.3 0 0 0
2 APARTMENT/SHOPS/OTHER BUILDINGS Type A-3,6,7,14 105.909 60 6354.54 0 0 0
3 APARTMENT/SHOPS/OTHER BUILDINGS Type B-1,2,5,6,7 & 11 192.586 6 1155.516 0 0 0
4 APARTMENT/SHOPS/OTHER BUILDINGS Type B-1,2,5,6,7 & 11 187.848 18 3381.264 0 0 0
5 APARTMENT/SHOPS/OTHER BUILDINGS Type B-1,2,5,6,7 & 11 96.897 78 7557.966 0 0 0
6 APARTMENT/SHOPS/OTHER BUILDINGS Type B-1,2,5,6,7 & 11 94.482 228 21541.896 0 0 0
7 APARTMENT/SHOPS/OTHER BUILDINGS Type B-1,2,5,6,7 & 11 78.410 6 470.46 0 0 0
Total57661464.942000






TypeNumber of apartments booked/ sold Write or Annex the stage of construction of the booked/ sold apartments in folder C
576000


18-12-2018
31-12-2019
05-07-2019
18-12-2018
0
31-12-2019
NA
NA


PlotsBooked/soldStage of handing over the possession (Write or Annex details)
PLOT000
31-12-2018
0
31-12-2019
00
00


1000
0
517
506
0





Expenditure incurred till the date of application (In Lakhs)

ParticularsExpenditure
Apartments0
Shops0
Plots0

Expenditure to be made in each quarter (In Lakhs)

ParticularsExpenditure to be made in each quarter ()
Apr-JuneJuly-SepOct-DecJan-Mar




Expenditure incurred till the date of application (In Lakhs)

ParticularsExpenditure
Roads & Pavements0
Water Supply System0
Sewerage treatment & garbage disposal0
Electricity Supply System0
Storm Water Drainage0
Parks and Playgrounds0
Clubhouse/community centres0
Shopping area0
Other0

Expenditure to be made in each quarter (In Lakhs)

ParticularsExpenditure to be made in each quarter ()
Apr-JuneJuly-SepOct-DecJan-Mar












Particulars Remarks, if any
i. No. of Flats/Apartments constructed576
ii. No. of Flats/ Apartments booked0
iii. Total amount sale value of booked Flats, on the date of application/end of last quarter0 Lakhs
iv. Total amount received from the allottees (booked Flats), on the date of application/end of last quarter0 Lakhs
v. Balance amount to be received from the allottees (booked Flats, after completion), on the date of application/end of last quarter0 Lakhs
vi. Balance amount due and recoverable from the allottees (booked Flats) as on the date of application /end of last quarter0 Lakhs
vii. Amount invested in the project upto the date of application0 Lakhs
Land cost (If any)0 Lakhs
Apartments0 Lakhs
Infrastructure0 Lakhs
EDC/ Taxes Etc.0 Lakhs
viii. Balance cost to be incurred for completion of the project and delivery of possession0 Lakhs
(a) In respect of existing allottees0 Lakhs
(b) In respect of rest of the project0 Lakhs
ix. The amount of loan raised from the banks/ financial institutions/ private persons against the project
Annex detail of the securities furnished to the banks/ financial institutions against the aforesaid loans in folder C
0 Lakhs
x. Total liabilities against the project up-to-date. (Annex details in folder C) 0 Lakhs



Particulars Estimated expenditure planned to be incurred as per service plan estimates or the project report. (In Lakhs)Actual expenditure incurred upto the date of application. (In Lakhs)
I. INTERNAL ROADS AND PAVEMENTS00
II. WATER SUPPLY SYSTEM00
III. STORM WATER DRAINAGE00
IV. ELECTRICITY SUPPLY SYSTEM00
V. SEWAGE TREATMENT & GARBAGE DISPOSAL00
VI. CLUB HOUSE/COMMUNITY CENTRE00
VII. SCHOOL00
VIII. ANY OTHER00
IX. SOLID WASTE COLLECTION & MGMT SYSTEM00
X. CLUBHOUSE00
XI. NEIGHBOURHOOD SHOPPING00
XII. GREEN AREAS,PARKS,PLAYGROUNDS ETC.00
XIII. COVERED PARKING00
XIV. OPEN PARKING00
XV. GARAGES00
XVI. SECURITY SYSTEM00
XVII. OTHER FACILITIES AS PER PROJECT REPORT00









Yes
No
PNB, ECE HOUSE, 26 A, KG MARG, CP, NEW DELHI-110001
1120002102315547
PUNB0112000
110024043
1120
Mr. Atul Rai Tulip Infratech Pvt Ltd, 76 G, Sector 18, Gurugram, Haryana
NA











Yes
Yes
Yes
Yes
Yes
Yes
Yes
Yes
Yes
Yes


Yes
Yes
Yes
Yes
Yes
Yes
Yes
Yes
Statutory Approvals Statutory Approvals StatusDate
I. SITE PLAN LAYOUTALREADY BEEN OBTAINED11-03-2015








Yes


Yes


Gist of the Flat Buyer Agreement







TULIP LEMON, SECTOR 69 & 70 GURUGRAM
5.06875
754
0
0
0
Initially estimated cost (In Lakhs)Revised cost (In Lakhs)Expenditure incurred upto the date of application (In Lakhs)
Total cost of the project
(Other than cost of land)
853140622.0000
Cost of the apartments630969807.0000
Cost of the infrastructure143400000.0000
Others costs78770815.0000


0 Lakhs
0 Lakhs
0 Lakhs
0 Lakhs
No
24-09-2019
06-02-2019










SPECIFICATION OF CONSTRUCTION
Specification of apartments and other buildings including the following:
1FLOORING DETAILS OF VARIOUS PARTS OF HOUSELAMINATED WOODEN FLOORING/ANTI SKID TILES/ VITRIFIED TILES OR EQUIVALENT
2WALL FINISHING DETAILSPAINT FINISHES
3KITCHEN DETAILSMARBLE/GRANITE COUNTER WITH SS SINK
4BATHROOM FITTINGSWHITE SANITARY, CP FITTING AND MIRROR
5WOOD WORK ETCNOT APPLICABLE
6DOORS AND WINDOS FRAMESUPVC/ HARDWOOD
7GLASS WORKNOT APPLICABLE
8ELECTRIC FITTINGSSWITCHES ONLY (NO LIGHTS & FIXTURES)
9CONDUCTING AND WIRING DETAILSTYPE OF ELECTRICAL WIRES USED: COPPER WIRES
10CUPBOARD DETAILSNOT APPLICABLE
11WATER STORAGEOVER HEAD TANK
12LIFT DETAILS2 NOS, CAPACITY10 & 13 PERSON, KONE
13EXTERNAL GLAZINGSNOT APPLICABLE
13.1WINDOWS/GLAZINGSUPVC WINDOWS
14DOORSFLUSH DOOR
14.1MAIN DOORSFLUSH DOOR
14.2INTERNAL DOORSFLUSH DOOR
15AIR CONDITIONINGNOT APPLICABLE
16ELECTRICAL FITTINGSNOT APPLICABLE
17CNG PIPE LINENOT APPLICABLE
18PROVISION OF WIFI AND BROADBAND FACILITYNOT APPLICABLE
19EXTERNAL FINISHING/COLOUR SCHEMEPAINT FINISHES
20INTERNAL FINISHINGPAINT FINISHES
SPECIFICATION UNIT WISE
1 . LIVING/DINING/FOYER/FAMILY LOUNGE
1 . 1 FLOORVITRIFIED TILES
1 . 2 WALLSPAINT FINISHES
1 . 3 CEILINGPAINT FINISHES
2 . MASTER BEDROOM/DRESSROOM
2 . 1 FLOORLAMINATED WOODEN FLOORING
2 . 2 WALLSPAINT FINISHES
2 . 3 CEILINGPAINT FINISHES
2 . 4 MODULAR WARDROBESNOT APPLICABLE
3 . MASTER TOILET
3 . 1 FLOORCERAMIC TILES
3 . 2 WALLSCERAMIC TILES
3 . 3 CEILINGPAINT FINISHES
3 . 4 COUNTERSNOT APPLICABLE
3 . 5 SANITARY WARE/CP FITTINGSWHITE EWC AND BASIN AND C.P. FITTINGS
3 . 6 FITTING/FIXTURESPROVISION FOR HOT AND COLD WATER SUPPLY C P FITTINGS
4 . BED ROOMS
4 . 1 FLOORVITRIFIED TILES
4 . 2 WALLSPAINT FINISHES
4 . 3 CEILINGPAINT FINISHES
4 . 4 WARDROBESNOT APPLICABLE
5 . TOILET
5 . 1 FLOORCERAMIC TILES
5 . 2 WALLSCERAMIC TILES
5 . 3 CEILINGPAINT FINISHES
5 . 4 COUNTERSNOT APPLICABLE
5 . 5 SANITARY WARE/CP FITTINGSWHITE EWC AND BASIN AND C.P. FITTINGS
5 . 6 FIXTURESPROVISION FOR HOT AND COLD WATER SUPPLY C P FITTINGS
6 . KITCHEN
6 . 1 FLOORANTI SKID TILES/ VITRIFIED TILES/ CERAMIC TILES
6 . 2 WALLS2’ DEDO ABOVE COUNTER
6 . 3 CEILINGPAINT FINISHES
6 . 4 COUNTERSGRANITE/MARBLE COUNTERS
6 . 5 FIXTURESSTAINLESS STEEL SINK WITH MIXTURE
6 . 6 KITCHEN APPLIANCESNOT APPLICABLE
7 . UTILITY ROOMS/UTILITY BALCONY/TOILET
7 . 1 FLOORNOT APPLICABLE
7 . 2 WALLS & CEILINGNOT APPLICABLE
7 . 3 TOILETNOT APPLICABLE
7 . 4 BALCONYNOT APPLICABLE
8 . SIT-OUTS
8 . 1 FLOORNOT APPLICABLE
8 . 2 WALLS & CEILINGNOT APPLICABLE
8 . 3 RAILINGSNOT APPLICABLE
8 . 4 FIXTURESNOT APPLICABLE












Sr. No.Document DescriptionDate of Document UploadView Document
1 COPY OF LICENSE ALONG WITH SCHEDULE OF LAND 22-02-2020 View Document
2 DEMARCATION PLAN 22-02-2020 View Document
3 DOCUMENTS RELATING TO THE ENTRY OF LICENSE AND COLLABORATION AGREEMENT IN THE REVENUE RECORD 22-02-2020 View Document
4 CASH FLOW STATEMENT OF THE PROPOSED PROJECT 22-02-2020 View Document
5 IN CASE OF PLOTTED COLONY, THE LATEST LAYOUT PLAN 22-02-2020 View Document
6 NON DEFAULT CERTIFICATE FROM A CHARTERED ACCOUNTANT 22-02-2020 View Document
7 A COMPLETE SET OF THE LAST APPROVED BUILDING PLANS 22-02-2020 View Document
8 CERTIFICATE FROM A CHARTERED ACCOUNTANT CERTIFYING THAT THE INFORMSTION PROVIDED BY THE APPLICANT IN FORM REP-1-C-X IS CORRECT AS PER THE BOOKS OF ACCOUNTS/ BALANCE SHEET OF THE APPLICANT 22-02-2020 View Document
9 DECLARATION SUPPORTED BY AFFIDAVIT DULY SIGNED BY THE PROMOTER TO BE ENCLOSED. 22-02-2020 View Document
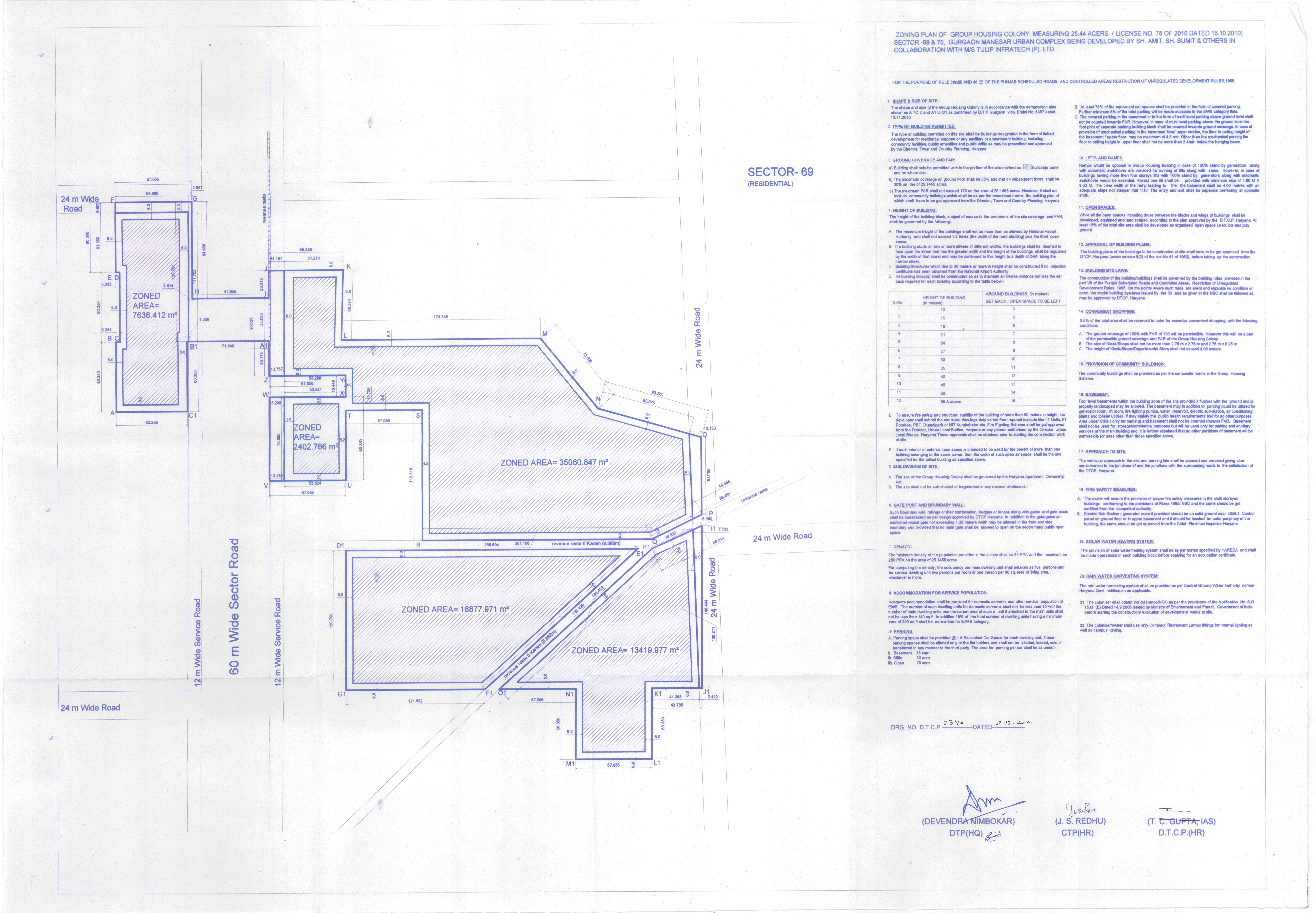
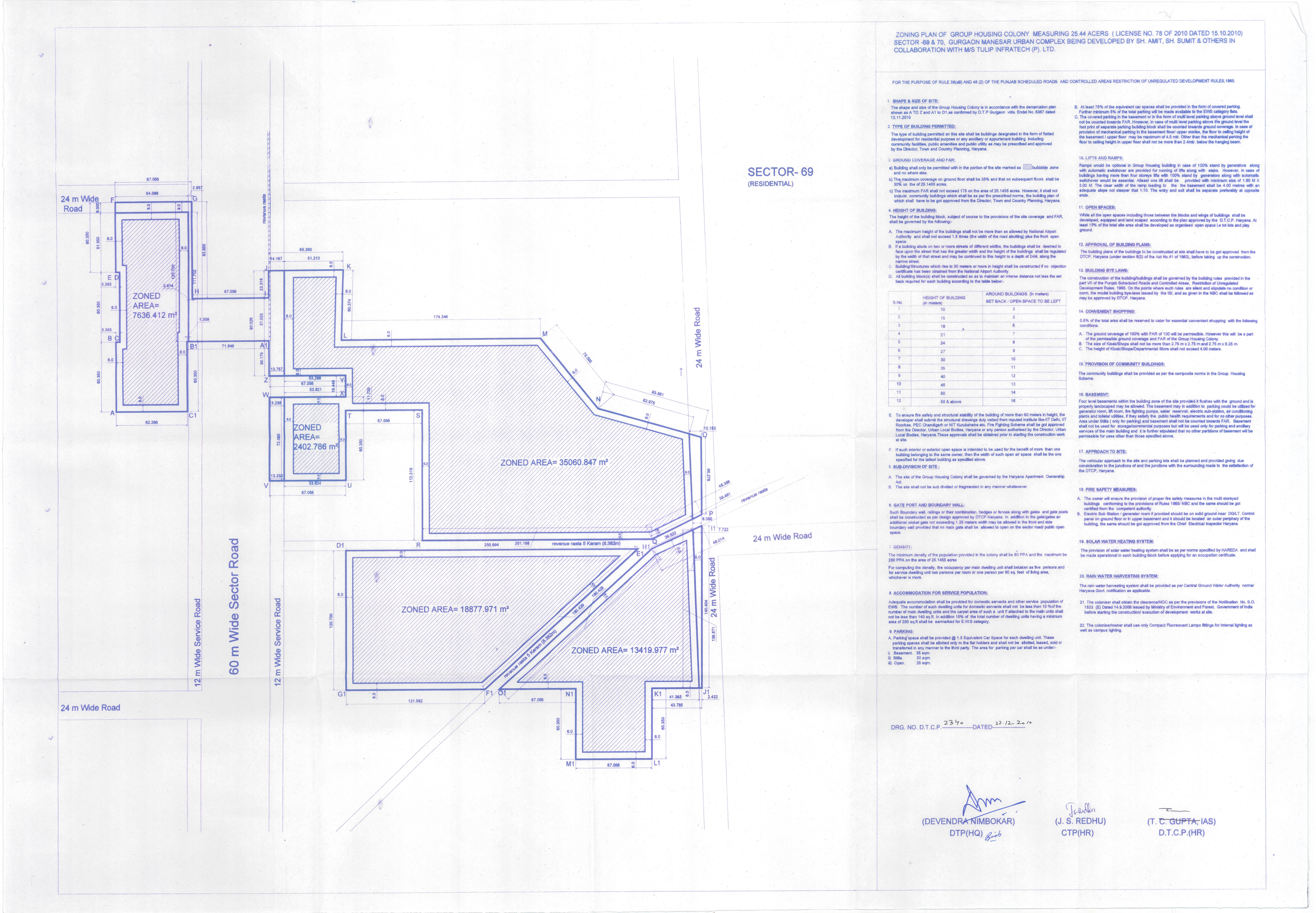
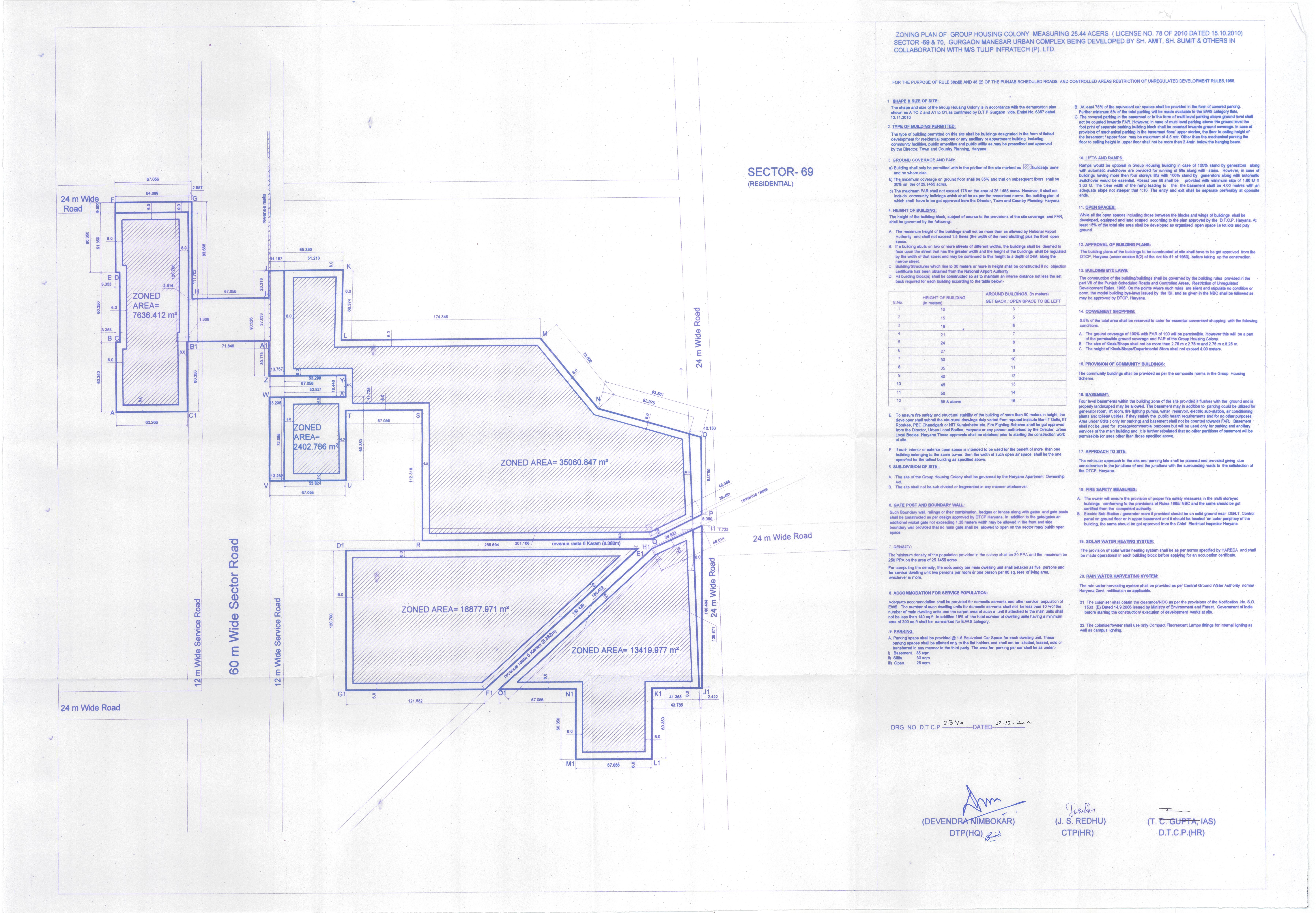
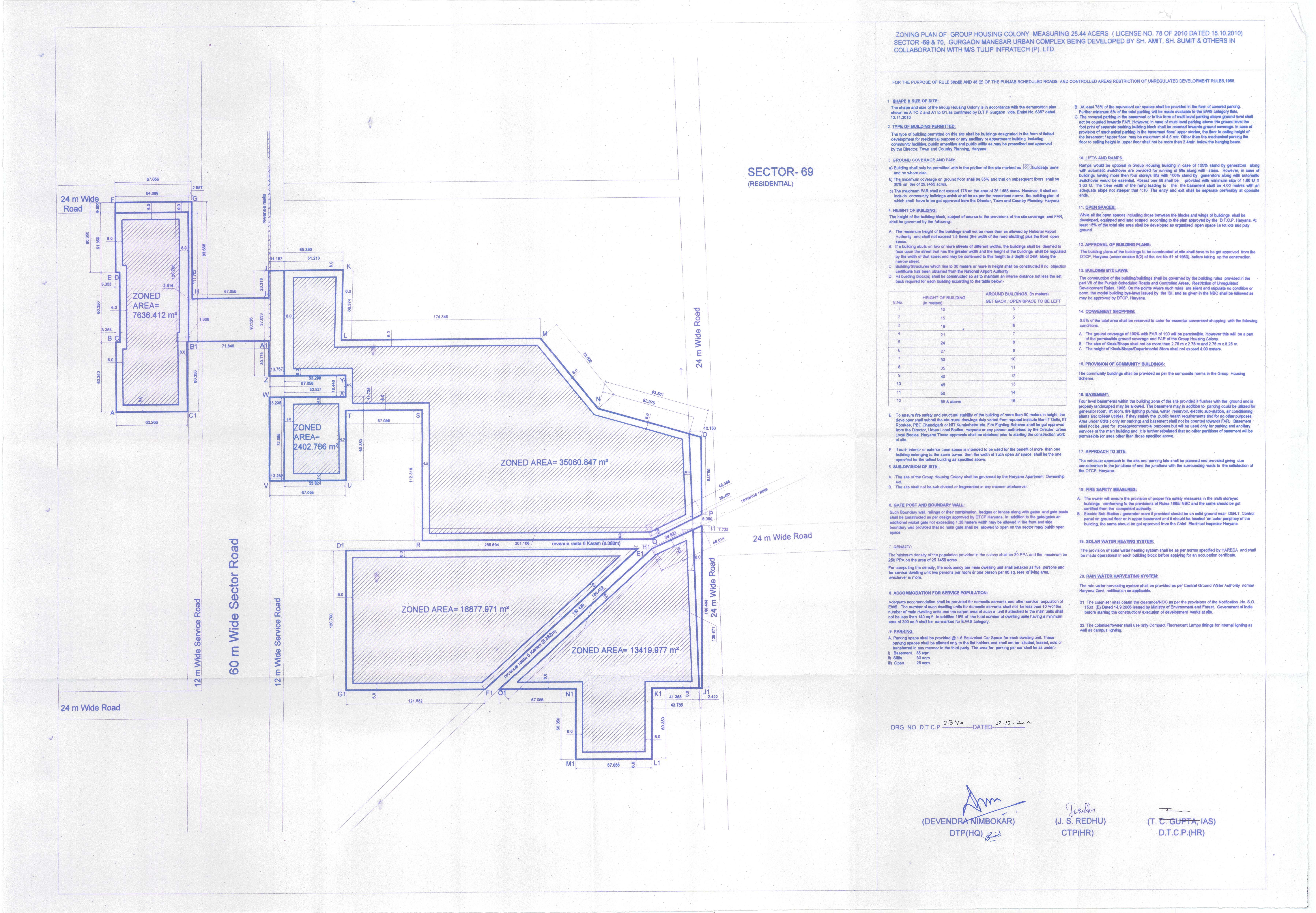
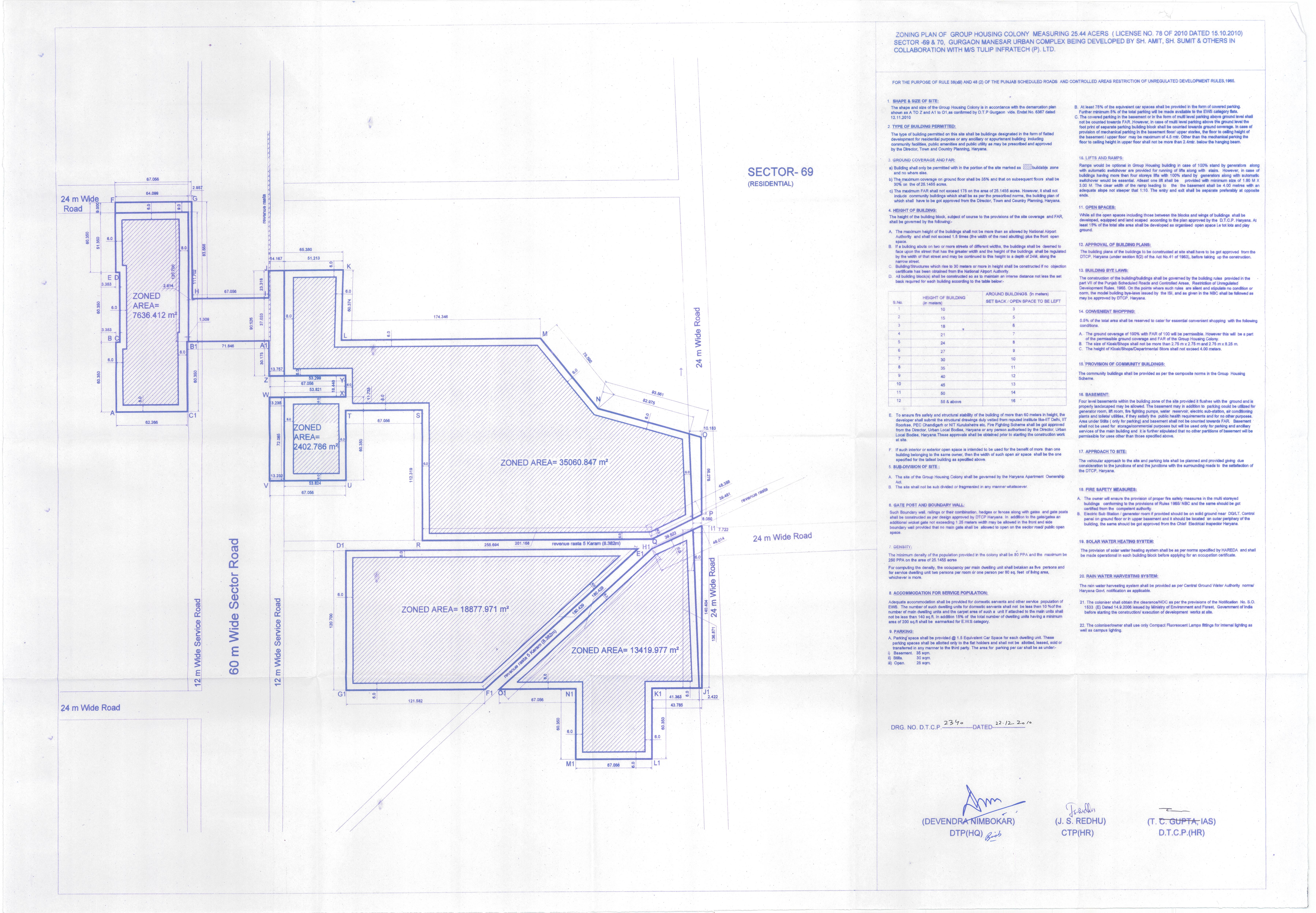
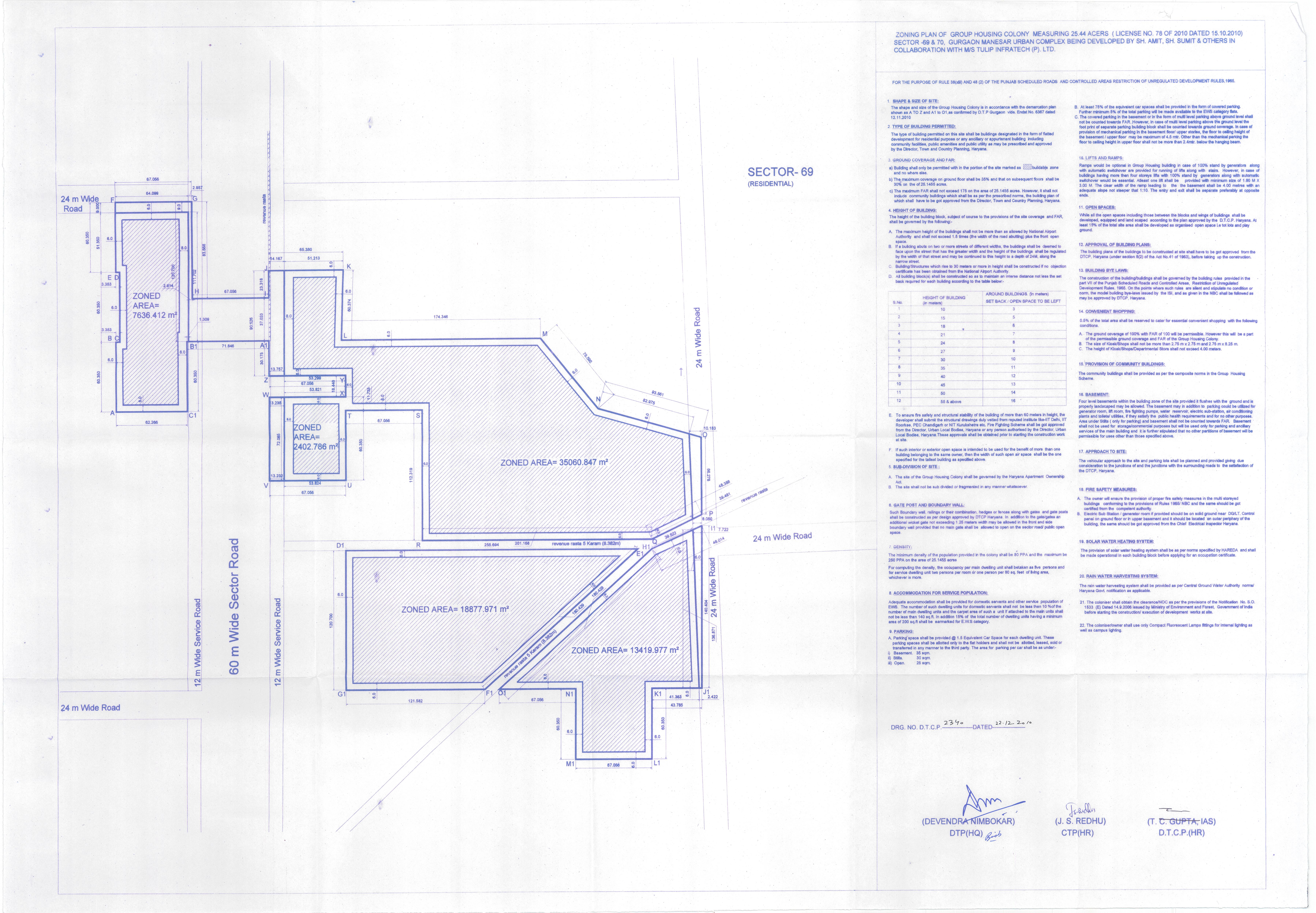
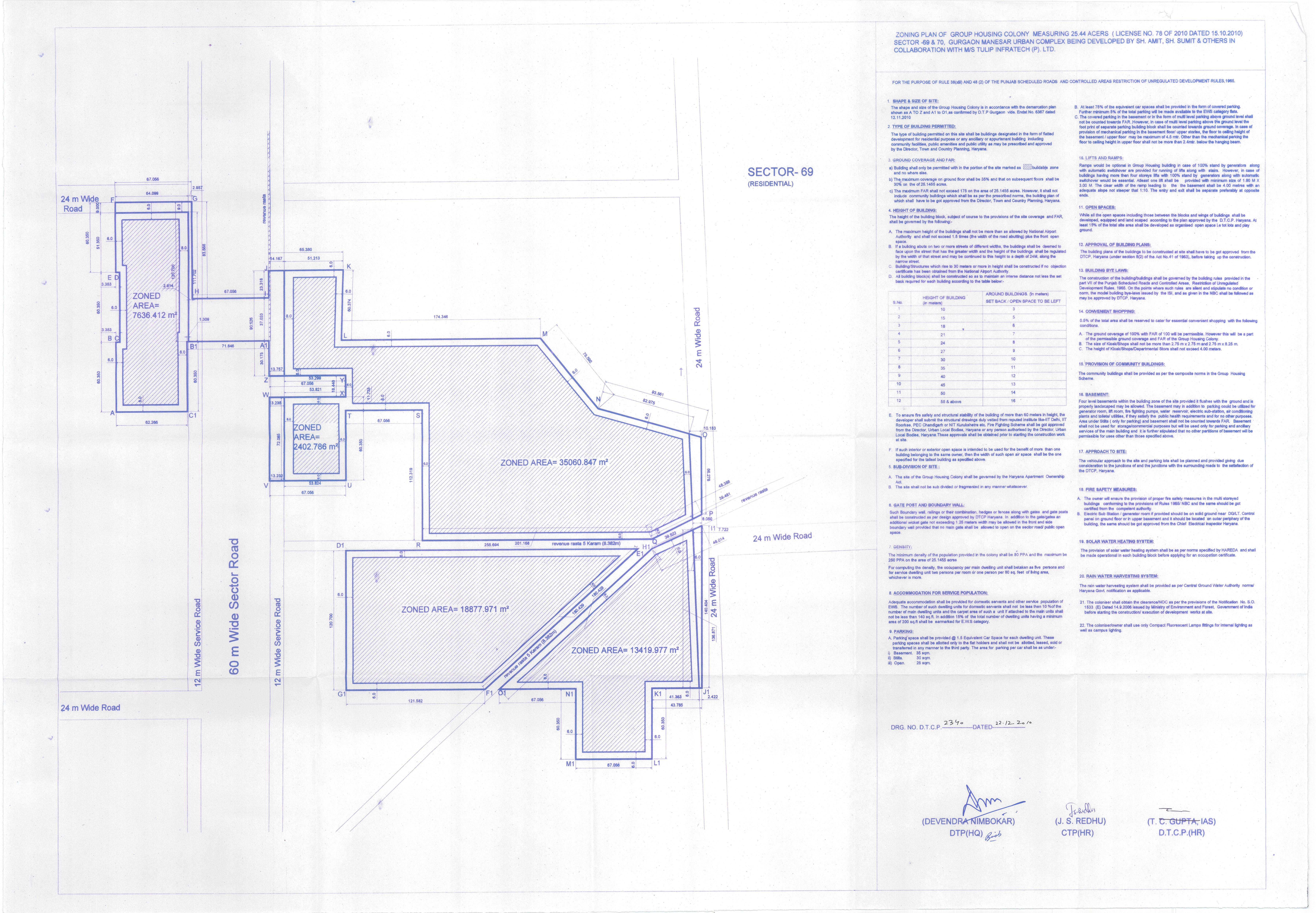
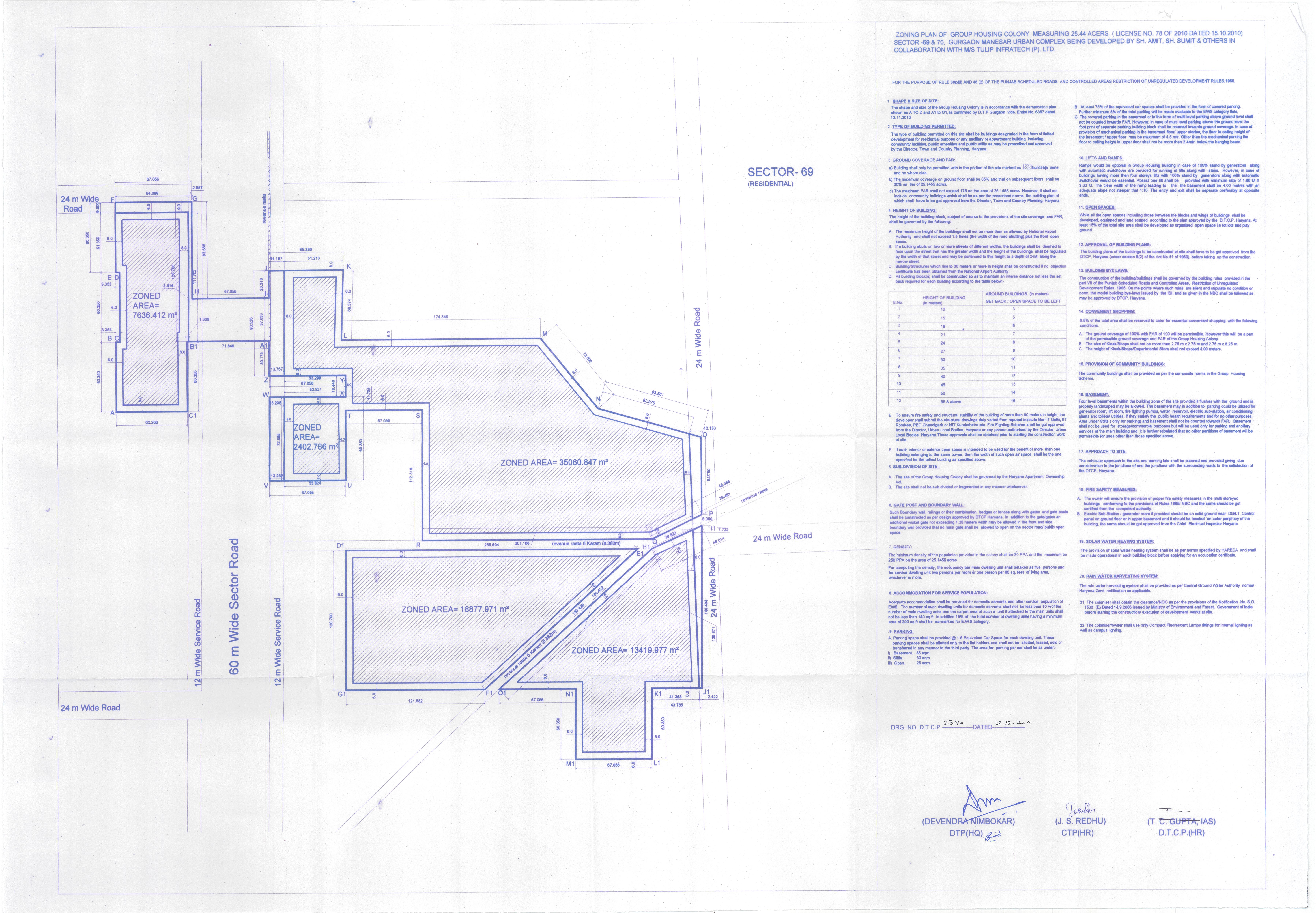
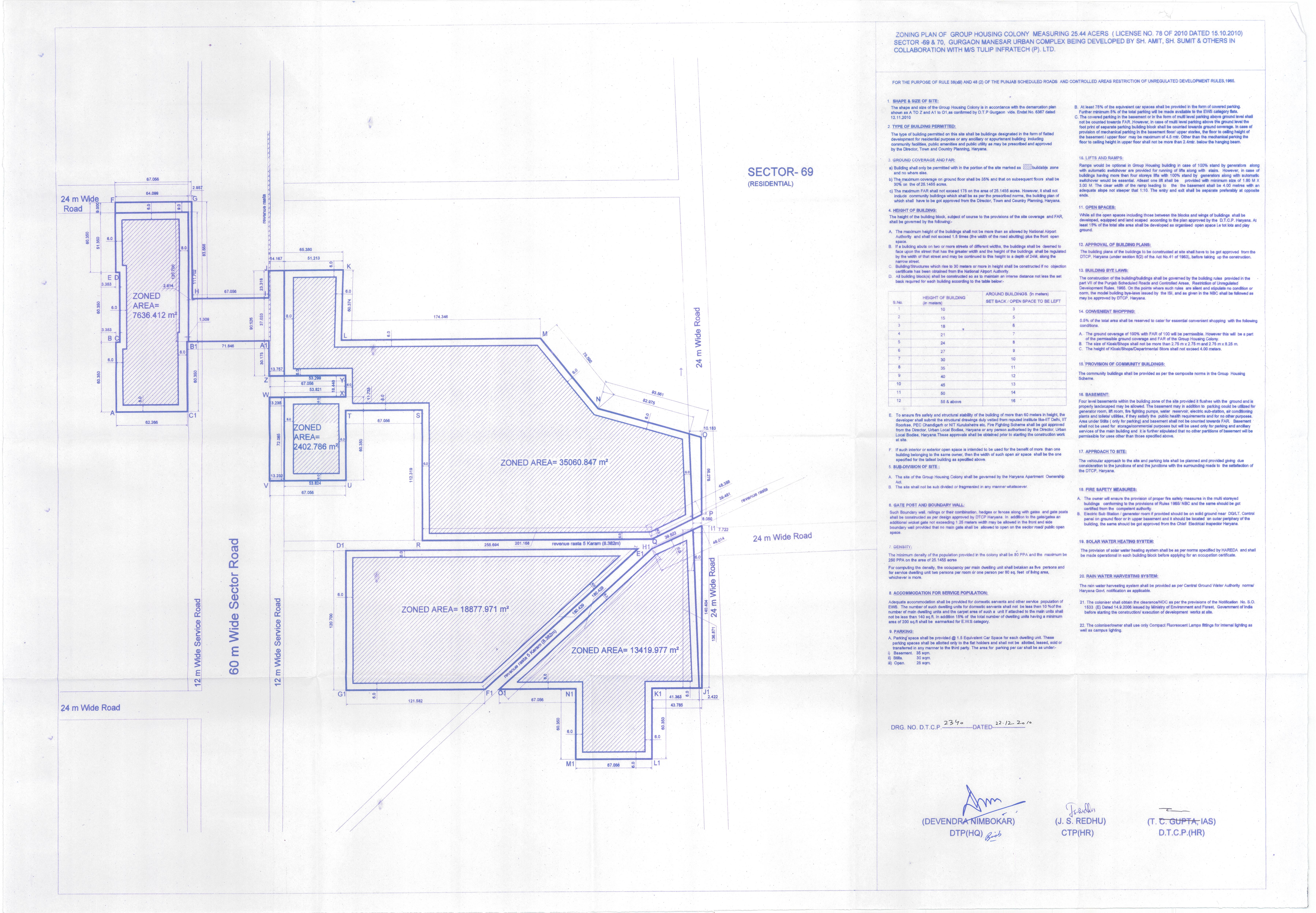
10 ZONING PLAN 22-02-2020 View Document
11 IN CASE OF GROUP HOUSING/ COMMERCIAL SITES, A COPY OF THE APPROVED SITE PLAN 22-02-2020 View Document
12 SERVICE PLANS SHOWING THE SERVICES ON THE LAYOUT PLAN 22-02-2020 View Document