HRERA GurugramTemp Project Id : RERA-GRG-PROJ-599-2020
Submission Date : 29-05-2020 06:44:21 PM
Applicant Type : Company
Project Type: ONGOING




ADVANCE INDIA PROJECTS LIMITED
THE MASTERPIECE, GOLF COURSE ROAD, SECTOR - 54, GURUGRAM - 122002, HARYANA, INDIA
9211160000
8800563717 (Number Shared by Promoter in Public)
rera-haryana@aipl.com
https://aipl.com/aipl-joy-street-gurugram
XXXX859J
U45209HR1997PLC080240
 
 


 
 


 
 


 
 


 
 


 
 


 
 







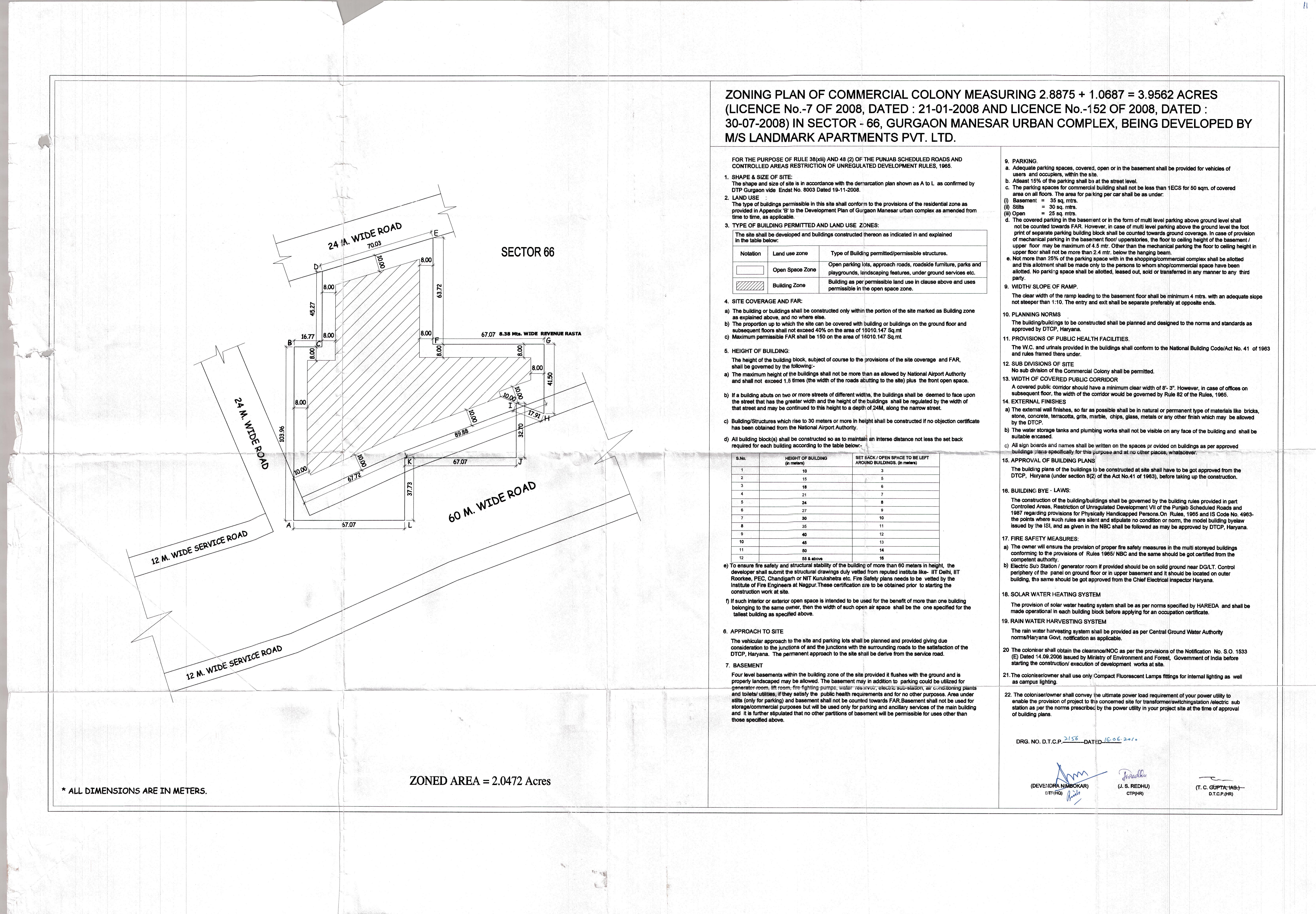
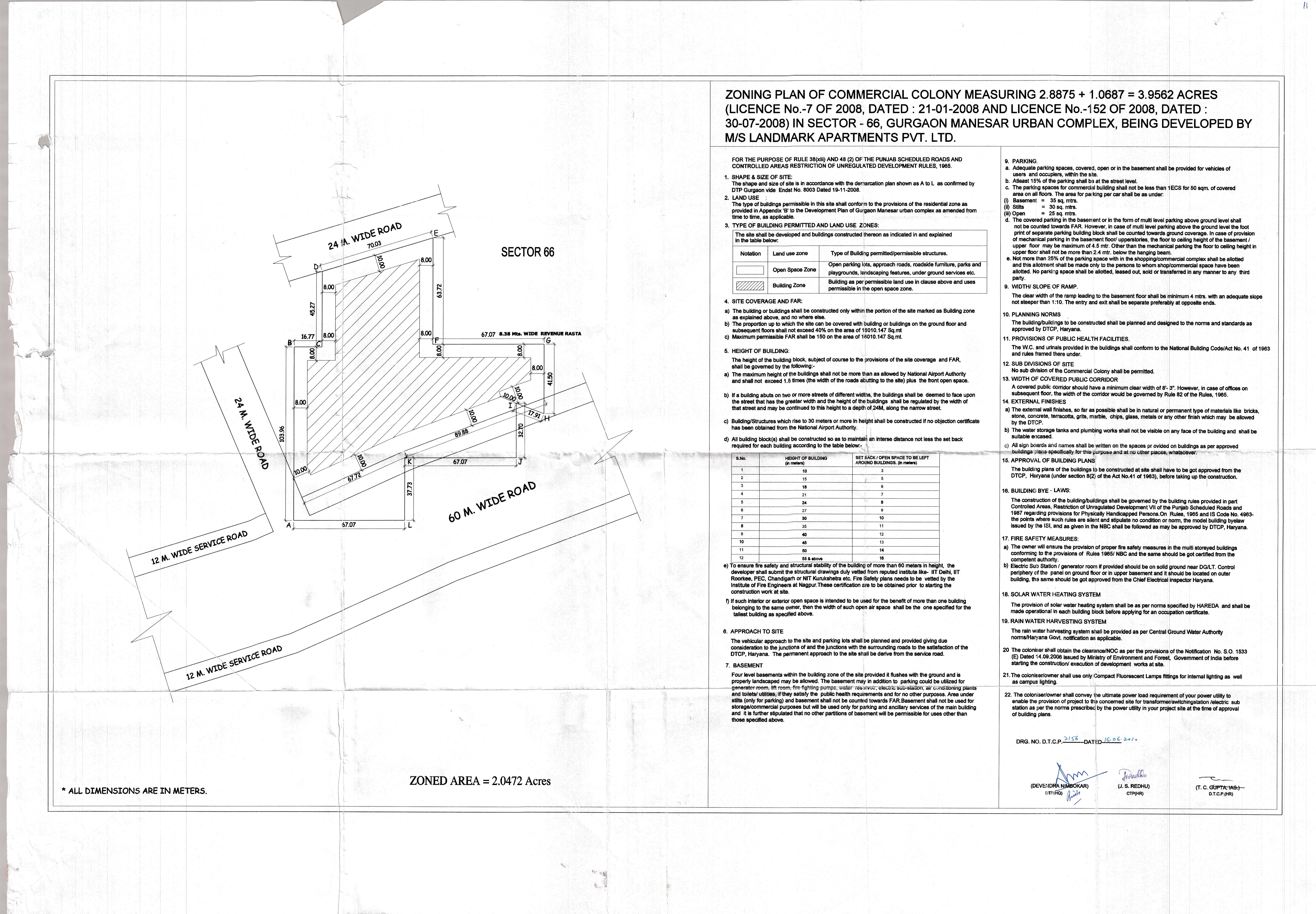
AIPL JOY STREET
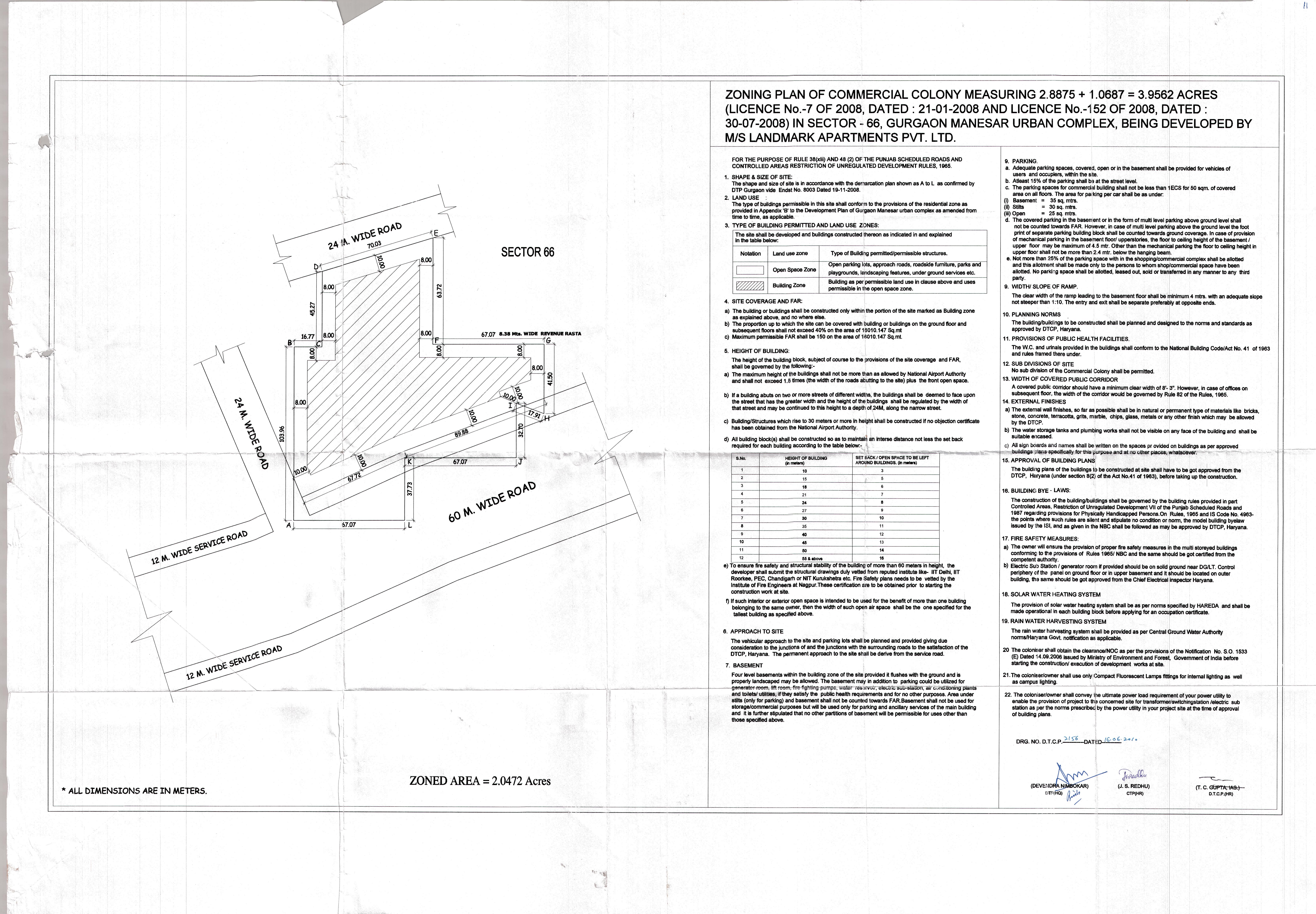
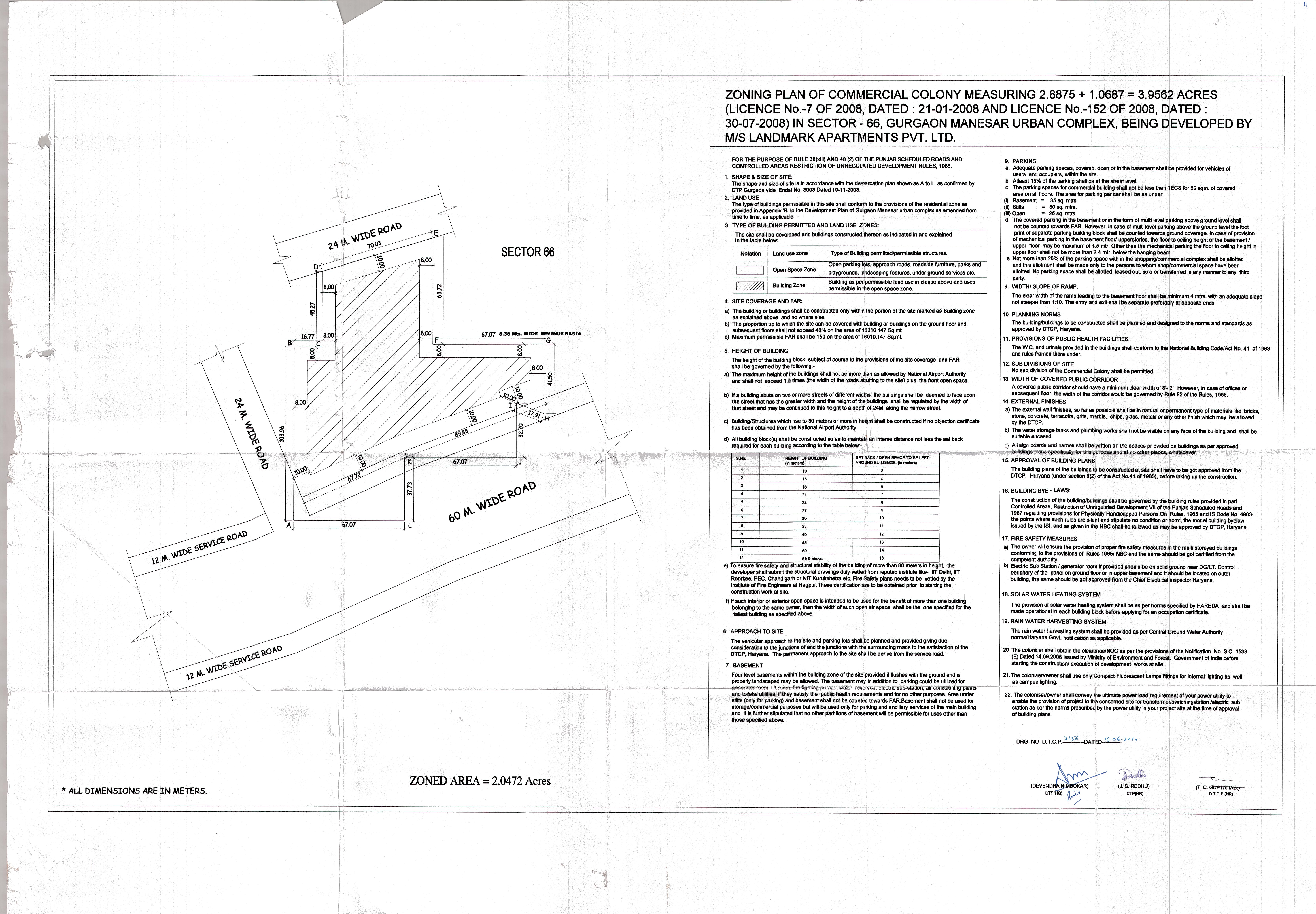
SECTOR 66, GURUGRAM
GURGAON
GURUGRAM
9211160000
8800563717 (Number Shared by Promoter in Public)
rera-haryana@aipl.com
MANOJ KUMAR
9211160000
8800563717 (Number Shared by Promoter in Public)
rera-haryana@aipl.com








As per sub-rule(2) of rule 3 of the Haryana Real Estate (Regulation and Development) Rules,2017, the fee for registration of the project as has been calculated as follows:
-----------------------------------------------------------------------------------------------------------------------
-----------------------------------------------------------------------------------------------------------------------
-----------------------------------------------------------------------------------------------------------------------
-----------------------------------------------------------------------------------------------------------------------
2. The aforesaid fees is hereby deposited vide following Drafts/ Banker’s Cheques:-

Sr No.Draft/Cheque No.Draft DateAmountPayee BankPayable To
1003-02-20200.00NOT APPLICABLEHRERA Gurugram







3.95 (Acre)
175
175
3.95 (Acre)
License no. 07 of 2008 (21-01-2008) and License no. 152 of 2008 (30-07-2008)
No
Address     A-11, C.R. PARK, NEW DELHI 110019
Annexure-B- DEVELOPER
AFTER GRAND OF LICENSE
No
AS PER AGREEMENT
No
No
Yes







43483.90 Lakhs
12747.00 Lakhs
13506.35 Lakhs
2086.93 Lakhs
15143.62 Lakhs




Sr. No.Land area under usageArea of land (Acres)
1ELECTRICITY SUB-STATION 0
2CLUB HOUSE 0
3SEWAGE AND SOLID WASTE TREATMENT FACILITY 0
4AREA TO BE LEFT FOR TRANSFERRING TO THE GOVERNMENT FOR COMMUNITY SERVICES 0.759
5ANY OTHER 0
6PLOTS TO BE SOLD 0
7LAND AREA TO BE USED FOR CONSTRUCTION OF APARTMENTS 1.621
8CONSTRUCTION OF ROADS 0.711
9PAVEMENTS 0.345
10PARKS AND PLAYGROUNDS 0.257
11GREEN BELTS 0
12VEHICLE PARKINGS 0.26
Total3.953




FacilityExternal/ connecting service to be provided by (Name the agency)Whether Approval taken from the agency concerned. Yes/No (Annex details in folder C)
ROADSN/ANo
WATER SUPPLYGMDANo
ELECTRICITYDHVBNNo
SEWAGE DISPOSALGMDANo
STORM WATER DRAINAGEGMDANo




Sr. No.Name of the facilityEstimated cost (In Lakhs)(Within the project area only)Remarks: Yet to be prepared / Submitted to HUDA, Town & Country Planning Department/ as per project report etc. (Annex relevant documents showing costing details etc. in folder C)
1INTERNAL ROADS AND PAVEMENTS169.91AS PER PROJECT REPORT
2WATER SUPPLY SYSTEM382.10AS PER PROJECT REPORT
3STORM WATER DRAINAGE123.26AS PER PROJECT REPORT
4ELECTRICITY SUPPLY SYSTEM420.98AS PER PROJECT REPORT
5SEWAGE TREATMENT & GARBAGE DISPOSAL110.93AS PER PROJECT REPORT
6STREET LIGHTING24.36AS PER PROJECT REPORT
7SECURITY AND FIRE FIGHTING162.41AS PER PROJECT REPORT
8PLAYGROUNDS AND PARKS0AS PER PROJECT REPORT
9CLUB HOUSE/COMMUNITY CENTRE0AS PER PROJECT REPORT
10SHOPPING AREA0AS PER PROJECT REPORT
11RENEWABLE ENERGY SYSTEM0AS PER PROJECT REPORT
12SCHOOL0AS PER PROJECT REPORT
13HOSPITAL/DISPENSARY0AS PER PROJECT REPORT
14ANY OTHER0AS PER PROJECT REPORT
15UNDERGROUND WATER TANK16.82AS PER PROJECT REPORT
16ELECTRICAL SUB STATION607.38AS PER PROJECT REPORT
17STP53.50AS PER PROJECT REPORT
18RAIN WATER HARVESTING15.28AS PER PROJECT REPORT


31-01-2020 (date)
31-01-2020 (date)


Sr. No.Plot/ apartment type Size of the plot/carpet area of the apartments Total number of plots/apartments in the project Total size of the plots/carpet area of the apartments Plots/apartments booked/ sold upto the date of application Yet to be sold/ booked No. of towers to be/ being constructed for booked apartments
1 APARTMENT/SHOPS/OTHER BUILDINGS Type SHOPS 8409.55 307 2581731.85 291 16 1
2 APARTMENT/SHOPS/OTHER BUILDINGS Type RESTAURANT/FOOD COURT 987.72 75 74079 71 4 1
3 APARTMENT/SHOPS/OTHER BUILDINGS Type MULTIPLEX 1366.12 11 15027.32 10 1 1
4 APARTMENT/SHOPS/OTHER BUILDINGS Type OFFICE 794.41 23 18271.43 23 0 1
5 APARTMENT/SHOPS/OTHER BUILDINGS Type SERVICE APARTMENT 7786.96 216 1681983.36 207 9 1
6 APARTMENT/SHOPS/OTHER BUILDINGS Type BUSINESS CENTRE 463.36 2 926.72 0 2 1
Total6344372019.68602326






TypeNumber of apartments booked/ sold Write or Annex the stage of construction of the booked/ sold apartments in folder C
SHOPS2910
RESTAURANT/FOOD COURT710
MULTIPLEX100
OFFICE230
SERVICE APARTMENT2070
BUSINESS CENTRE00


01-08-2016
31-12-2020
30-06-2021
27-01-2020
70
30-06-2021


PlotsBooked/soldStage of handing over the possession (Write or Annex details)
PLOT00
27-01-2020
70
30-06-2021


0
0
509
90
0





Expenditure incurred till the date of application (In Lakhs)

ParticularsExpenditure
Apartments0
Shops30655.63
Plots0

Expenditure to be made in each quarter (In Lakhs)

ParticularsExpenditure to be made in each quarter ()
Apr-JuneJuly-SepOct-DecJan-Mar




Expenditure incurred till the date of application (In Lakhs)

ParticularsExpenditure
Roads & Pavements0
Water Supply System252.56
Sewerage treatment & garbage disposal73.32
Electricity Supply System284.29
Storm Water Drainage81.47
Parks and Playgrounds0
Clubhouse/community centres0
Shopping area0
Other0
Electrical sub station281.39
Security and Fire Fighting141.26
STP21.15
Underground water tank12.49

Expenditure to be made in each quarter (In Lakhs)

ParticularsExpenditure to be made in each quarter ()
Apr-JuneJuly-SepOct-DecJan-Mar












Particulars Remarks, if any
i. No. of Flats/Apartments constructed634
ii. No. of Flats/ Apartments booked602
iii. Total amount sale value of booked Flats, on the date of application/end of last quarter43964.62 Lakhs
iv. Total amount received from the allottees (booked Flats), on the date of application/end of last quarter29994.07 Lakhs
v. Balance amount to be received from the allottees (booked Flats, after completion), on the date of application/end of last quarter13970.55 Lakhs
vi. Balance amount due and recoverable from the allottees (booked Flats) as on the date of application /end of last quarter456.93 Lakhs
vii. Amount invested in the project upto the date of application30655.63 Lakhs
Land cost (If any)10666.69 Lakhs
Apartments8171.49 Lakhs
Infrastructure1147.92 Lakhs
EDC/ Taxes Etc.10669.53 Lakhs
viii. Balance cost to be incurred for completion of the project and delivery of possession12828.27 Lakhs
(a) In respect of existing allottees0 Lakhs
(b) In respect of rest of the project12828.27 Lakhs
ix. The amount of loan raised from the banks/ financial institutions/ private persons against the project
Annex detail of the securities furnished to the banks/ financial institutions against the aforesaid loans in folder C
6000 Lakhs
x. Total liabilities against the project up-to-date. (Annex details in folder C) 0 Lakhs



Particulars Estimated expenditure planned to be incurred as per service plan estimates or the project report. (In Lakhs)Actual expenditure incurred upto the date of application. (In Lakhs)
I. INTERNAL ROADS AND PAVEMENTS169.910
II. WATER SUPPLY SYSTEM382.10252.56
III. STORM WATER DRAINAGE123.2681.47
IV. ELECTRICITY SUPPLY SYSTEM420.98284.29
V. SEWAGE TREATMENT & GARBAGE DISPOSAL110.9373.32
VI. CLUB HOUSE/COMMUNITY CENTRE00
VII. SCHOOL00
VIII. ANY OTHER00
IX. SOLID WASTE COLLECTION & MGMT SYSTEM00
X. CLUBHOUSE00
XI. NEIGHBOURHOOD SHOPPING00
XII. GREEN AREAS,PARKS,PLAYGROUNDS ETC.00
XIII. COVERED PARKING00
XIV. OPEN PARKING00
XV. GARAGES00
XVI. SECURITY SYSTEM00
XVII. OTHER FACILITIES AS PER PROJECT REPORT879.76456.28









Yes
Yes
HDFC BANK LTD., VATIKA ANTRIUM, A-BLOCK, GOLF COURSE ROAD, SECTOR 53, GURUGRAM
57500000476266
HDFC0000572
110240093
0000572
Authorised Signatories
Yes











Yes
No
Yes
Yes
Yes
Yes
No
Yes
Yes
Yes


No
No
No
No
No
No
No
No
Statutory Approvals Statutory Approvals StatusDate
I. AIRPORT AUTHORITY OF INDIAALREADY BEEN OBTAINED04-10-2016
II. ENVIRONMENT CLEARANCEALREADY BEEN OBTAINED11-07-2012
III. ENVIRONMENT CLEARANCE RENEWALALREADY BEEN OBTAINED02-07-2019
IV. CONSENT TO ESTABLISHALREADY BEEN OBTAINED17-08-2017
V. CONSENT TO ESTABLISH EXTENSIONALREADY BEEN OBTAINED17-07-2019
VI. BUILDING PLAN APPROVAL (BR III)ALREADY BEEN OBTAINED31-01-2020
VII. ELECTRICAL SLDALREADY BEEN OBTAINED20-06-2017








Yes


Yes


As per Agreement







AIPL JOY CENTRAL, SECTOR 65, GURUGRAM
3.98
399
0
367
0
Initially estimated cost (In Lakhs)Revised cost (In Lakhs)Expenditure incurred upto the date of application (In Lakhs)
Total cost of the project
(Other than cost of land)
57112.87017973.05
Cost of the apartments18986.5805136.72
Cost of the infrastructure3379.8500
Others costs34747012836.32


34894.46 Lakhs
21457.21 Lakhs
25000 Lakhs
10050 Lakhs
Yes
31-12-2022
30-06-2023




AIPL JOY SQUARE, SECTOR 65-A, GURUGRAM
2.838
577
0
406
0
Initially estimated cost (In Lakhs)Revised cost (In Lakhs)Expenditure incurred upto the date of application (In Lakhs)
Total cost of the project
(Other than cost of land)
18217.3806112.69
Cost of the apartments11085.9703474.23
Cost of the infrastructure1314.620418.73
Others costs5816.7802219.73


9425.68 Lakhs
9632.21 Lakhs
0 Lakhs
0 Lakhs
No
31-12-2022
30-06-2023










SPECIFICATION OF CONSTRUCTION
Specification of apartments and other buildings including the following:
1FLOORING DETAILS OF VARIOUS PARTS OF HOUSENOT APPLICABLE
2WALL FINISHING DETAILSNOT APPLICABLE
3KITCHEN DETAILSNOT APPLICABLE
4BATHROOM FITTINGSNOT APPLICABLE
5WOOD WORK ETCNOT APPLICABLE
6DOORS AND WINDOS FRAMESNOT APPLICABLE
7GLASS WORKGLASS FOR OFFICE SUITES AND SERVICE APARTMENTS
8ELECTRIC FITTINGSNOT APPLICABLE
9CONDUCTING AND WIRING DETAILSCONCEALED CONDUITING
10CUPBOARD DETAILSNOT APPLICABLE
11WATER STORAGENOT APPLICABLE
12LIFT DETAILS9 PASSENGER LIFTS, 3 SERVICE LIFT
13EXTERNAL GLAZINGSNOT APPLICABLE
13.1WINDOWS/GLAZINGSGLAZING
14DOORSNOT APPLICABLE
14.1MAIN DOORSNOT APPLICABLE
14.2INTERNAL DOORSNOT APPLICABLE
15AIR CONDITIONING1. PROVISION OF AIR-CONDITIONING FOR SHOPS 2. CENTRALIZED AIR CONDITIONING FOR MULTIPLEX ,SERVICE APARTMENTS AND OFFICE SUITES
16ELECTRICAL FITTINGSNOT APPLICABLE
17CNG PIPE LINENOT APPLICABLE
18PROVISION OF WIFI AND BROADBAND FACILITYNOT APPLICABLE
19EXTERNAL FINISHING/COLOUR SCHEMEGLAZING/STONE/PAINT
20INTERNAL FINISHINGCEMENT PLASTER
SPECIFICATION UNIT WISE
1 . LIVING/DINING/FOYER/FAMILY LOUNGE
1 . 1 FLOORNOT APPLICABLE
1 . 2 WALLSNOT APPLICABLE
1 . 3 CEILINGNOT APPLICABLE
2 . MASTER BEDROOM/DRESSROOM
2 . 1 FLOORNOT APPLICABLE
2 . 2 WALLSNOT APPLICABLE
2 . 3 CEILINGNOT APPLICABLE
2 . 4 MODULAR WARDROBESNOT APPLICABLE
3 . MASTER TOILET
3 . 1 FLOORNOT APPLICABLE
3 . 2 WALLSNOT APPLICABLE
3 . 3 CEILINGNOT APPLICABLE
3 . 4 COUNTERSNOT APPLICABLE
3 . 5 SANITARY WARE/CP FITTINGSNOT APPLICABLE
3 . 6 FITTING/FIXTURESNOT APPLICABLE
4 . BED ROOMS
4 . 1 FLOORNOT APPLICABLE
4 . 2 WALLSNOT APPLICABLE
4 . 3 CEILINGNOT APPLICABLE
4 . 4 WARDROBESNOT APPLICABLE
5 . TOILET
5 . 1 FLOORNOT APPLICABLE
5 . 2 WALLSNOT APPLICABLE
5 . 3 CEILINGNOT APPLICABLE
5 . 4 COUNTERSNOT APPLICABLE
5 . 5 SANITARY WARE/CP FITTINGSNOT APPLICABLE
5 . 6 FIXTURESNOT APPLICABLE
6 . KITCHEN
6 . 1 FLOORNOT APPLICABLE
6 . 2 WALLSNOT APPLICABLE
6 . 3 CEILINGNOT APPLICABLE
6 . 4 COUNTERSNOT APPLICABLE
6 . 5 FIXTURESNOT APPLICABLE
6 . 6 KITCHEN APPLIANCESNOT APPLICABLE
7 . UTILITY ROOMS/UTILITY BALCONY/TOILET
7 . 1 FLOORNOT APPLICABLE
7 . 2 WALLS & CEILINGNOT APPLICABLE
7 . 3 TOILETNOT APPLICABLE
7 . 4 BALCONYNOT APPLICABLE
8 . SIT-OUTS
8 . 1 FLOORNOT APPLICABLE
8 . 2 WALLS & CEILINGNOT APPLICABLE
8 . 3 RAILINGSNOT APPLICABLE
8 . 4 FIXTURESNOT APPLICABLE












Sr. No.Document DescriptionDate of Document UploadView Document
1 IN CASE OF GROUP HOUSING/ COMMERCIAL SITES, A COPY OF THE APPROVED SITE PLAN 25-02-2020 View Document
2 COPY OF LICENSE ALONG WITH SCHEDULE OF LAND 25-02-2020 View Document
3 IN CASE OF PLOTTED COLONY, THE LATEST LAYOUT PLAN 13-04-2020 View Document
4 DECLARATION SUPPORTED BY AFFIDAVIT DULY SIGNED BY THE PROMOTER TO BE ENCLOSED. 10-04-2020 View Document
5 NON DEFAULT CERTIFICATE FROM A CHARTERED ACCOUNTANT 28-05-2020 View Document












Sr. No.Document DescriptionDate of Document UploadView Document
1 OC uploaded 11-12-2023 View Document