HRERA GurugramTemp Project Id : RERA-GRG-PROJ-568-2020
Submission Date : 11-02-2020 02:06:40 AM
Applicant Type : Company
Project Type: ONGOING




SAPHIRE LANDCRAFT PVT LTD
AMEYA ONE, DLF-V, GOLF COURSE ROAD SECTOR 42 GURGAON
01242571477
9911938383 (Number Shared by Promoter in Public)
balvinder.kumar@ameyagroup.in
http://ameyagroup.in
XXXX737B
U70102DL201IPTC226724
 
 


 
 


 
 







SAPPHIRE 83
SECTOR 83, VILLAGE SIHI GURGAON
GURGAON
GURUGRAM
01242571477
9911938383 (Number Shared by Promoter in Public)
info@ameyagroup.in
BALVINDER KUMAR
01242571477
9911938383 (Number Shared by Promoter in Public)
balvinder.kumar@ameyagroup.in








As per sub-rule(2) of rule 3 of the Haryana Real Estate (Regulation and Development) Rules,2017, the fee for registration of the project as has been calculated as follows:
-----------------------------------------------------------------------------------------------------------------------
-----------------------------------------------------------------------------------------------------------------------
-----------------------------------------------------------------------------------------------------------------------
-----------------------------------------------------------------------------------------------------------------------
2. The aforesaid fees is hereby deposited vide following Drafts/ Banker’s Cheques:-

Sr No.Draft/Cheque No.Draft DateAmountPayee BankPayable To
15251827-07-2017249430BANK OF BARODAHRERA Gurugram







3.522 (Acre)
1.75
1.737
3.522 (Acre)
129 of 31-12-2012
Yes







1723383007 Lakhs
323322002 Lakhs
760435321 Lakhs
456.51 Lakhs
107521940 Lakhs




Sr. No.Land area under usageArea of land (Square Meters)
1PLOTS TO BE SOLD 0
2LAND AREA TO BE USED FOR CONSTRUCTION OF APARTMENTS 5624.558
3CONSTRUCTION OF ROADS 4350
4PAVEMENTS 491.553
5PARKS AND PLAYGROUNDS 933.447
6GREEN BELTS 933.447
7VEHICLE PARKINGS 1900
8ELECTRICITY SUB-STATION 20
9CLUB HOUSE 0
10SEWAGE AND SOLID WASTE TREATMENT FACILITY 0
11AREA TO BE LEFT FOR TRANSFERRING TO THE GOVERNMENT FOR COMMUNITY SERVICES 0
12ANY OTHER 0
Total14253.005




FacilityExternal/ connecting service to be provided by (Name the agency)Whether Approval taken from the agency concerned. Yes/No (Annex details in folder C)
ROADSHUDA -NOT APPLICABLENo
WATER SUPPLYHUDANo
ELECTRICITYDHBVNYes
SEWAGE DISPOSALHUDANo
STORM WATER DRAINAGEHUDANo




Sr. No.Name of the facilityEstimated cost (In Lakhs)(Within the project area only)Remarks: Yet to be prepared / Submitted to HUDA, Town & Country Planning Department/ as per project report etc. (Annex relevant documents showing costing details etc. in folder C)
1INTERNAL ROADS AND PAVEMENTS4350AS PER PROJECT REPORT
2WATER SUPPLY SYSTEM154.84AS PER PROJECT REPORT
3STORM WATER DRAINAGE32.23AS PER PROJECT REPORT
4ELECTRICITY SUPPLY SYSTEM255.48639AS PER PROJECT REPORT
5SEWAGE TREATMENT & GARBAGE DISPOSAL45.86AS PER PROJECT REPORT
6STREET LIGHTING8.10AS PER PROJECT REPORT
7SECURITY AND FIRE FIGHTING350AS PER PROJECT REPORT
8PLAYGROUNDS AND PARKS6.56AS PER PROJECT REPORT
9CLUB HOUSE/COMMUNITY CENTRE0AS PER PROJECT REPORT
10SHOPPING AREA0AS PER PROJECT REPORT
11RENEWABLE ENERGY SYSTEM67.5AS PER PROJECT REPORT
12SCHOOL0AS PER PROJECT REPORT
13HOSPITAL/DISPENSARY0AS PER PROJECT REPORT
14ANY OTHER0AS PER PROJECT REPORT


17-05-2013 (date)
17-05-2013 (date)


Sr. No.Plot/ apartment type Size of the plot/carpet area of the apartments Total number of plots/apartments in the project Total size of the plots/carpet area of the apartments Plots/apartments booked/ sold upto the date of application Yet to be sold/ booked No. of towers to be/ being constructed for booked apartments
1 APARTMENT/SHOPS/OTHER BUILDINGS Type SHOPS 1 445 445 1 1 1
Total445445111






TypeNumber of apartments booked/ sold Write or Annex the stage of construction of the booked/ sold apartments in folder C
SHOPS44501


01-05-2013
31-12-2022
31-12-2022
09-06-2014
100
31-12-2022


PlotsBooked/soldStage of handing over the possession (Write or Annex details)
PLOT00
01-05-2013
0
31-12-2022


452
0
0
76
0





Expenditure incurred till the date of application (In Lakhs)

ParticularsExpenditure

Expenditure to be made in each quarter (In Lakhs)

ParticularsYear-2018
Jan-MarApr-JuneJuly-SepOct-Dec
Apartments0
Shops0
Plots0




Expenditure incurred till the date of application (In Lakhs)

ParticularsExpenditure
Roads & Pavements4350
Water Supply System154.84
Sewerage treatment & garbage disposal45.86
Electricity Supply System0
Storm Water Drainage32.23
Parks and Playgrounds6.56
Clubhouse/community centres0
Shopping area0
Other0

Expenditure to be made in each quarter (In Lakhs)

ParticularsExpenditure to be made in each quarter (2018)
Apr-JuneJuly-SepOct-DecJan-Mar












Particulars Remarks, if any
i. No. of Flats/Apartments constructed0completed
ii. No. of Flats/ Apartments booked289completed
iii. Total amount sale value of booked Flats, on the date of application/end of last quarter131.16 Lakhscompleted
iv. Total amount received from the allottees (booked Flats), on the date of application/end of last quarter122.65 Lakhscompleted
v. Balance amount to be received from the allottees (booked Flats, after completion), on the date of application/end of last quarter8.51 Lakhscompleted
vi. Balance amount due and recoverable from the allottees (booked Flats) as on the date of application /end of last quarter8.51 Lakhscompleted
vii. Amount invested in the project upto the date of application187.6 Lakhscompleted
Land cost (If any)32.33 Lakhscompleted
Apartments88.21 Lakhscompleted
Infrastructure4.56 Lakhscompleted
EDC/ Taxes Etc.10.752 Lakhscompleted
viii. Balance cost to be incurred for completion of the project and delivery of possession0.52 Lakhscompleted
(a) In respect of existing allottees0 Lakhscompleted
(b) In respect of rest of the project0 Lakhscompleted
ix. The amount of loan raised from the banks/ financial institutions/ private persons against the project
Annex detail of the securities furnished to the banks/ financial institutions against the aforesaid loans in folder C
16.75 Lakhscompleted
x. Total liabilities against the project up-to-date. (Annex details in folder C) 0 Lakhscompleted



Particulars Estimated expenditure planned to be incurred as per service plan estimates or the project report. (In Lakhs)Actual expenditure incurred upto the date of application. (In Lakhs)
I. INTERNAL ROADS AND PAVEMENTS43500
II. WATER SUPPLY SYSTEM154.840
III. STORM WATER DRAINAGE32.230
IV. ELECTRICITY SUPPLY SYSTEM00
V. SEWAGE TREATMENT & GARBAGE DISPOSAL45.860
VI. CLUB HOUSE/COMMUNITY CENTRE00
VII. SCHOOL00
VIII. ANY OTHER00
IX. SOLID WASTE COLLECTION & MGMT SYSTEM00
X. CLUBHOUSE00
XI. NEIGHBOURHOOD SHOPPING00
XII. GREEN AREAS,PARKS,PLAYGROUNDS ETC.6.560
XIII. COVERED PARKING00
XIV. OPEN PARKING00
XV. GARAGES00
XVI. SECURITY SYSTEM00
XVII. OTHER FACILITIES AS PER PROJECT REPORT00









Yes
No
SECTOR 53, GURGAON
30290200000244
BAR0DLFGUR
110012096
53 DLF Gurgaon
Ravi Goyal Ameya One, Dlf City Phase 5, Golf Course Road Sector 42, Gurgaon 122002
NA











Yes
Yes
Yes
Yes
Yes
Yes
Yes
Yes
Yes
Yes


No
No
No
No
No
No
No
No
Statutory Approvals Statutory Approvals StatusDate
I. OCCUPATION CERTIFICATEALREADY BEEN OBTAINED18-05-2018








No


No















SPECIFICATION OF CONSTRUCTION
Specification of apartments and other buildings including the following:
1FLOORING DETAILS OF VARIOUS PARTS OF HOUSECOMPLETED
2WALL FINISHING DETAILSCOMPLETED
3KITCHEN DETAILSCOMPLETED
4BATHROOM FITTINGSCOMPLETED
5WOOD WORK ETCCOMPLETED
6DOORS AND WINDOS FRAMESCOMPLETED
7GLASS WORKCOMPLETED
8ELECTRIC FITTINGSCOMPLETED
9CONDUCTING AND WIRING DETAILSCOMPLETED
10CUPBOARD DETAILSCOMPLETED
11WATER STORAGECOMPLETED
12LIFT DETAILSCOMPLETED
13EXTERNAL GLAZINGSCOMPLETED
13.1WINDOWS/GLAZINGSCOMPLETED
14DOORSCOMPLETED
14.1MAIN DOORSCOMPLETED
14.2INTERNAL DOORSCOMPLETED
15AIR CONDITIONINGCOMPLETED
16ELECTRICAL FITTINGSCOMPLETED
17CNG PIPE LINECOMPLETED
18PROVISION OF WIFI AND BROADBAND FACILITYCOMPLETED
19EXTERNAL FINISHING/COLOUR SCHEMECOMPLETED
20INTERNAL FINISHINGCOMPLETED
SPECIFICATION UNIT WISE
1 . LIVING/DINING/FOYER/FAMILY LOUNGE
1 . 1 FLOORNA
1 . 2 WALLSNA
1 . 3 CEILINGNA
2 . MASTER BEDROOM/DRESSROOM
2 . 1 FLOORNA
2 . 2 WALLSNA
2 . 3 CEILINGNA
2 . 4 MODULAR WARDROBESNA
3 . MASTER TOILET
3 . 1 FLOORNA
3 . 2 WALLSNA
3 . 3 CEILINGNA
3 . 4 COUNTERSNA
3 . 5 SANITARY WARE/CP FITTINGSNA
3 . 6 FITTING/FIXTURESNA
4 . BED ROOMS
4 . 1 FLOORNA
4 . 2 WALLSNA
4 . 3 CEILINGNA
4 . 4 WARDROBESNA
5 . TOILET
5 . 1 FLOORNA
5 . 2 WALLSNA
5 . 3 CEILINGNA
5 . 4 COUNTERSNA
5 . 5 SANITARY WARE/CP FITTINGSNA
5 . 6 FIXTURESNA
6 . KITCHEN
6 . 1 FLOORNA
6 . 2 WALLSNA
6 . 3 CEILINGNA
6 . 4 COUNTERSNA
6 . 5 FIXTURESNA
6 . 6 KITCHEN APPLIANCESNA
7 . UTILITY ROOMS/UTILITY BALCONY/TOILET
7 . 1 FLOORNA
7 . 2 WALLS & CEILINGNA
7 . 3 TOILETNA
7 . 4 BALCONYNA
8 . SIT-OUTS
8 . 1 FLOORNA
8 . 2 WALLS & CEILINGNA
8 . 3 RAILINGSNA
8 . 4 FIXTURESNA












Sr. No.Document DescriptionDate of Document UploadView Document
1 NON DEFAULT CERTIFICATE FROM A CHARTERED ACCOUNTANT 11-02-2020 View Document
2 IN CASE OF PLOTTED COLONY, THE LATEST LAYOUT PLAN 11-02-2020 View Document
3 COPY OF LICENSE ALONG WITH SCHEDULE OF LAND 11-02-2020 View Document
4 DOCUMENTS RELATING TO THE ENTRY OF LICENSE AND COLLABORATION AGREEMENT IN THE REVENUE RECORD 11-02-2020 View Document
5 DEMARCATION PLAN 11-02-2020 View Document
6 ZONING PLAN 11-02-2020 View Document
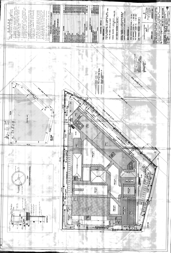
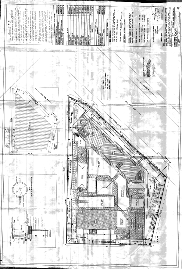
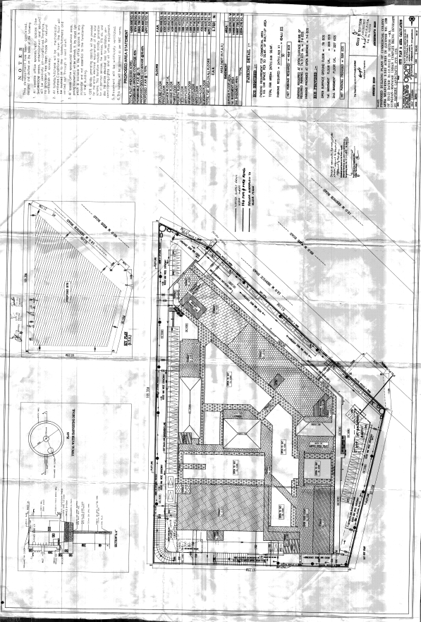
7 IN CASE OF GROUP HOUSING/ COMMERCIAL SITES, A COPY OF THE APPROVED SITE PLAN 11-02-2020 View Document
8 DECLARATION SUPPORTED BY AFFIDAVIT DULY SIGNED BY THE PROMOTER TO BE ENCLOSED. 08-03-2021 View Document
9 ANNEXURE- DETAILS OF THE PLOTS/APARTMENTS IN THE PROJECT 10-03-2021 View Document












Sr. No.Document DescriptionDate of Document UploadView Document
1 OC uploaded 08-08-2023 View Document