HRERA GurugramTemp Project Id : RERA-GRG-PROJ-486-2019
Submission Date : 30-12-2019 04:19:13 AM
Applicant Type : Company
Project Type: ONGOING




SUPERTECH LIMITED
1114, HEMKUNT CHAMBER 89, NEHRU PLACE, NEW DELHI-110019
01204572600
8376909066 (Number Shared by Promoter in Public)
yagna.brahmam@supertechlimited.com
https://www.supertechlimited.com/
XXXX646N
U74899DL1995PLC074422
 
 


 
 


 
 


 
 


 
 







HILL VIEW
SECTOR-2, SOHNA
SOHNA
GURUGRAM
01204572600
9958822955 (Number Shared by Promoter in Public)
singh.pankaj@supertechlimited.com
YAGNA BRAHMAM
01204572600
8376909066 (Number Shared by Promoter in Public)
yagna.brahmam@supertechlimited.com








As per sub-rule(2) of rule 3 of the Haryana Real Estate (Regulation and Development) Rules,2017, the fee for registration of the project as has been calculated as follows:
-----------------------------------------------------------------------------------------------------------------------
-----------------------------------------------------------------------------------------------------------------------
-----------------------------------------------------------------------------------------------------------------------
-----------------------------------------------------------------------------------------------------------------------
2. The aforesaid fees is hereby deposited vide following Drafts/ Banker’s Cheques:-

Sr No.Draft/Cheque No.Draft DateAmountPayee BankPayable To
1024-08-2017CORPORATION BANKHRERA Gurugram







8.974 (Acre)
1.75
1.75
100.36875 (Acre)
124 of 2014
No
Address     1114, HEMKUNT CHAMBERS 89, NEHRU PLACE, NEW DELHI-110019
Annexure-B- COLLABORATOR
AFTER LICENSE
Yes
ATTACHED
No
No
Yes







39306.88 Lakhs
4476.55 Lakhs
15636.40 Lakhs
830.00 Lakhs
18363.93 Lakhs




Sr. No.Land area under usageArea of land (Acres)
1PLOTS TO BE SOLD 0
2LAND AREA TO BE USED FOR CONSTRUCTION OF APARTMENTS 2.782
3CONSTRUCTION OF ROADS 2.832
4PAVEMENTS 0
5PARKS AND PLAYGROUNDS 1.077
6GREEN BELTS 0
7VEHICLE PARKINGS 1.131
8ELECTRICITY SUB-STATION 0
9CLUB HOUSE 0.114
10SEWAGE AND SOLID WASTE TREATMENT FACILITY 0
11AREA TO BE LEFT FOR TRANSFERRING TO THE GOVERNMENT FOR COMMUNITY SERVICES 0
12ANY OTHER 1.038
Total8.974




FacilityExternal/ connecting service to be provided by (Name the agency)Whether Approval taken from the agency concerned. Yes/No (Annex details in folder C)
ROADSGMDANo
WATER SUPPLYGMDAYes
ELECTRICITYDHBVNYes
SEWAGE DISPOSALGMDAYes
STORM WATER DRAINAGEGMDAYes




Sr. No.Name of the facilityEstimated cost (In Lakhs)(Within the project area only)Remarks: Yet to be prepared / Submitted to HUDA, Town & Country Planning Department/ as per project report etc. (Annex relevant documents showing costing details etc. in folder C)
1INTERNAL ROADS AND PAVEMENTS125AS PER PROJECT REPORT
2WATER SUPPLY SYSTEM66AS PER PROJECT REPORT
3STORM WATER DRAINAGE25AS PER PROJECT REPORT
4ELECTRICITY SUPPLY SYSTEM208AS PER PROJECT REPORT
5SEWAGE TREATMENT & GARBAGE DISPOSAL208AS PER PROJECT REPORT
6STREET LIGHTING17AS PER PROJECT REPORT
7SECURITY AND FIRE FIGHTING42AS PER PROJECT REPORT
8PLAYGROUNDS AND PARKS25AS PER PROJECT REPORT
9CLUB HOUSE/COMMUNITY CENTRE0AS PER PROJECT REPORT
10SHOPPING AREA0AS PER PROJECT REPORT
11RENEWABLE ENERGY SYSTEM0AS PER PROJECT REPORT
12SCHOOL0AS PER PROJECT REPORT
13HOSPITAL/DISPENSARY0AS PER PROJECT REPORT
14ANY OTHER114AS PER PROJECT REPORT


23-01-2015 (date)
23-01-2015 (date)


Sr. No.Plot/ apartment type Size of the plot/carpet area of the apartments Total number of plots/apartments in the project Total size of the plots/carpet area of the apartments Plots/apartments booked/ sold upto the date of application Yet to be sold/ booked No. of towers to be/ being constructed for booked apartments
1 APARTMENT/SHOPS/OTHER BUILDINGS Type 2BHK & 3BHK 0 72 0 7 65 1
2 APARTMENT/SHOPS/OTHER BUILDINGS Type 2BHK & 2BHK+STD 0 88 0 58 30 1
3 APARTMENT/SHOPS/OTHER BUILDINGS Type 2BHK & 2BHK+STD 0 72 0 34 38 1
4 APARTMENT/SHOPS/OTHER BUILDINGS Type 2BHK & 2BHK+STD 0 72 0 49 23 1
5 APARTMENT/SHOPS/OTHER BUILDINGS Type 2BHK 0 108 0 57 51 1
6 APARTMENT/SHOPS/OTHER BUILDINGS Type 2BHK 0 108 0 66 42 1
7 APARTMENT/SHOPS/OTHER BUILDINGS Type 2BHK 0 108 0 45 63 1
8 APARTMENT/SHOPS/OTHER BUILDINGS Type 4BHK&3BHK; 0 57 0 41 16 1
Total68503573288






TypeNumber of apartments booked/ sold Write or Annex the stage of construction of the booked/ sold apartments in folder C
TOWER-1(1ST+18 FLOORS)75TH FLOOR WORK IN PROGRESS
TOWER-2(1ST+22 FLOORS)5815TH FLOOR WORK IN PROGRESS
TOWER-3(1ST+18 FLOORS)34STRUCTURE WORK COMPLETED
TOWER-4(1ST+18 FLOORS)492ND FLOOR WORK IN PROGRESS
TOWER-5(1ST+18 FLOORS)573RD FLOOR WORK IN PROGRESS
TOWER-6(1ST+18 FLOORS)6617TH FLOOR WORK IN PROGRESS
TOWER-7(1ST+18 FLOORS)45STRUCTURE WORK COMPLETED
TOWER-8(G+18 FLOORS)41BASEMENT SLAB WORK IN PROGRESS


16-05-2016
30-06-2021
30-06-2021
01-07-2019
5
30-09-2021
ATTACHED
ATTACHED


PlotsBooked/soldStage of handing over the possession (Write or Annex details)
PLOT00
01-07-2019
5
30-09-2021
ATTACHED
ATTACHED


964
64
0
0
0





Expenditure incurred till the date of application (In Lakhs)

ParticularsExpenditure
Apartments5316
Shops0
Plots0
External development Charges293.3
Infrastructure Development Charges292.22
Land Cost4477
Other Cost15415.16

Expenditure to be made in each quarter (In Lakhs)

ParticularsYear-2019
Jan-MarApr-JuneJuly-SepOct-Dec
Apartments1032.041032.041032.04
Shops000
Plots000
Other Cost642.32642.32
Other Costs642.32
External development Charges351.437351.437

ParticularsYear-2020
Jan-MarApr-JuneJuly-SepOct-Dec
Apartments1032.041032.041032.041032.04
Shops0000
Plots0000
Other Cost642.32642.32642.32642.32
Internal Development Works118118118118
External development Charges351.437351.437351.437351.437
Cost of Construction of Community facilities122.89

ParticularsYear-2021
Jan-MarApr-JuneJuly-SepOct-Dec
Apartments1032.041032.041032.04
Shops000
Plots000
Internal Development Works118118122
Cost of Construction of Community facilities100100
Other Cost642.32442.28
External development Charges351.437351.437




Expenditure incurred till the date of application (In Lakhs)

ParticularsExpenditure
Roads & Pavements0
Water Supply System0
Sewerage treatment & garbage disposal0
Electricity Supply System0
Storm Water Drainage0
Parks and Playgrounds0
Clubhouse/community centres0
Shopping area0
Other0

Expenditure to be made in each quarter (In Lakhs)

ParticularsYear-2020
Jan-MarApr-JuneJuly-SepOct-Dec
Roads & Pavements20.0020.0020.0020.00
Water Supply System11.0011.0011.0011.00
Sewerage treatment & garbage disposal33.0033.0033.0033.00
Electricity Supply System33.0033.0033.0033.00
Storm Water Drainage4.004.004.004.00
Parks and Playgrounds4.004.004.004.00
Clubhouse/community centres0000
Shopping area0000
Other19.0019.0019.0019.00
Security and Fire Fighting7.007.007.007.00
Street Lighting2.002.002.002.00

ParticularsYear-2021
Jan-MarApr-JuneJuly-SepOct-Dec
Roads & Pavements20.0025.00
Water Supply System11.0011.00
Sewerage treatment & garbage disposal33.0043.00
Electricity Supply System33.0043.00
Storm Water Drainage4.005.00
Parks and Playgrounds4.005.00
Clubhouse/community centres00
Shopping area00
Other19.0019.00
Security and Fire Fighting7.007.00
Street Lighting2.007.00












Particulars Remarks, if any
i. No. of Flats/Apartments constructed685
ii. No. of Flats/ Apartments booked357
iii. Total amount sale value of booked Flats, on the date of application/end of last quarter26361 Lakhs
iv. Total amount received from the allottees (booked Flats), on the date of application/end of last quarter14192 Lakhs
v. Balance amount to be received from the allottees (booked Flats, after completion), on the date of application/end of last quarter12169 Lakhs
vi. Balance amount due and recoverable from the allottees (booked Flats) as on the date of application /end of last quarter12169 Lakhs
vii. Amount invested in the project upto the date of application25793.68 Lakhs
Land cost (If any)4477 Lakhs
Apartments5316 Lakhs
Infrastructure830 Lakhs
EDC/ Taxes Etc.16000.68 Lakhs
viii. Balance cost to be incurred for completion of the project and delivery of possession13513.61 Lakhs
(a) In respect of existing allottees12169 Lakhs
(b) In respect of rest of the project23341 Lakhs
ix. The amount of loan raised from the banks/ financial institutions/ private persons against the project
Annex detail of the securities furnished to the banks/ financial institutions against the aforesaid loans in folder C
6352 Lakhs
x. Total liabilities against the project up-to-date. (Annex details in folder C) 6352 Lakhs



Particulars Estimated expenditure planned to be incurred as per service plan estimates or the project report. (In Lakhs)Actual expenditure incurred upto the date of application. (In Lakhs)
I. INTERNAL ROADS AND PAVEMENTS1250
II. WATER SUPPLY SYSTEM660
III. STORM WATER DRAINAGE250
IV. ELECTRICITY SUPPLY SYSTEM2250
V. SEWAGE TREATMENT & GARBAGE DISPOSAL2080
VI. CLUB HOUSE/COMMUNITY CENTRE00
VII. SCHOOL00
VIII. ANY OTHER1390
IX. SOLID WASTE COLLECTION & MGMT SYSTEM00
X. CLUBHOUSE00
XI. NEIGHBOURHOOD SHOPPING00
XII. GREEN AREAS,PARKS,PLAYGROUNDS ETC.250
XIII. COVERED PARKING00
XIV. OPEN PARKING170
XV. GARAGES00
XVI. SECURITY SYSTEM00
XVII. OTHER FACILITIES AS PER PROJECT REPORT00









Yes
Yes
AXIS BANK DLF GURGAON HARYANA ADDRESS : SG-21 - 22, GALLERIA SHOPPING MALL, PHASE-IV, DLF QUTAB ENCLAVE COMPLEX, GURGAON
915020011039650
UTIB0000131
110211019
000131
DK Gupta, Address: 157, Shastri Nagar, Ghaziabad, Uttar Pradesh-201002
Attached











Yes
Yes
Yes
Yes
Yes
Yes
Yes
Yes
Yes
Yes


No
No
No
No
No
No
No
No
Statutory Approvals Statutory Approvals StatusDate
I. LICENSE APPROVALALREADY BEEN OBTAINED23-08-2014
II. ZONING PLANALREADY BEEN OBTAINED18-12-2014
III. BUILDING PLANALREADY BEEN OBTAINED01-01-2015
IV. ENVIRONMENT CLEARANCEALREADY BEEN OBTAINED15-03-2016
V. HEIGHT CLEARANCE ALREADY BEEN OBTAINED17-02-2016
VI. FIRE SCHEMEALREADY BEEN OBTAINED11-03-2016








Yes


Yes


June 2021 as per HARERA













SPECIFICATION OF CONSTRUCTION
Specification of apartments and other buildings including the following:
1FLOORING DETAILS OF VARIOUS PARTS OF HOUSEAS PER SALES BROWSER
2WALL FINISHING DETAILSCEMENT PLASTIC WITH POP WITH PLASTIC EMULSION PAINT OR TEXTURE
3KITCHEN DETAILSNA
4BATHROOM FITTINGSNA
5WOOD WORK ETCNA
6DOORS AND WINDOS FRAMESNA
7GLASS WORKNA
8ELECTRIC FITTINGSNA
9CONDUCTING AND WIRING DETAILSNA
10CUPBOARD DETAILSNA
11WATER STORAGENA
12LIFT DETAILSNA
13EXTERNAL GLAZINGSNA
13.1WINDOWS/GLAZINGSNA
14DOORSNA
14.1MAIN DOORSNA
14.2INTERNAL DOORSNA
15AIR CONDITIONINGNA
16ELECTRICAL FITTINGSNA
17CNG PIPE LINENA
18PROVISION OF WIFI AND BROADBAND FACILITYNA
19EXTERNAL FINISHING/COLOUR SCHEMENA
20INTERNAL FINISHINGNA
SPECIFICATION UNIT WISE
1 . LIVING/DINING/FOYER/FAMILY LOUNGE
1 . 1 FLOORITALIAN / SPANISH DESIGNER VITRIFIED TILES.
1 . 2 WALLSCEMENT PLASTER WITH POP PUNNING WITH PLASTIC EMULSION PAINT OR TEXTURE.
1 . 3 CEILINGOBD WITH DESIGN ELEMENTS.
2 . MASTER BEDROOM/DRESSROOM
2 . 1 FLOORVITRIFIED DESIGNER TILES/ WOODEN LAMINATED FLOORING.
2 . 2 WALLSCEMENT PLASTER WITH POP PUNNING WITH PLASTIC EMULSION PAINT OR TEXTURE FINISH.
2 . 3 CEILINGOBD WITH DESIGN ELEMENTS.
2 . 4 MODULAR WARDROBESMODULAR WARDROBES / CUPBOARDS.
3 . MASTER TOILET
3 . 1 FLOORMARBLE/ SPANISH VITRIFIED TILES OR EQUIVALENT FLOORING FOR MASTER TOILET.
3 . 2 WALLSSPANISH TILES IN WALL TILL CEILING HEIGHT.
3 . 3 CEILINGOBD/ FALSE CEILING
3 . 4 COUNTERSNA
3 . 5 SANITARY WARE/CP FITTINGSSINGLE LEVER C.P FITTING KOHLER/JAGUAR OR EQUIVALENT.
3 . 6 FITTING/FIXTURESNA
4 . BED ROOMS
4 . 1 FLOORVITRIFIED TILES/ WOODEN LAMINATED FLOORING.
4 . 2 WALLSCEMENT PLASTER WITH POP PUNNING WITH PLASTIC EMULSION PAINT.
4 . 3 CEILINGOBD
4 . 4 WARDROBESNA
5 . TOILET
5 . 1 FLOORCERAMIC TILES
5 . 2 WALLSWALL TILES UPTO 7 FT.HT BALANCE PAINTED IN ACRYLIC EMULSION PAINT.
5 . 3 CEILINGOBD/FALSE CEILING
5 . 4 COUNTERSNA
5 . 5 SANITARY WARE/CP FITTINGSSINGLE LEVER C.P FITTING KOHLER/JAGUAR OR EQUIVALENT.
5 . 6 FIXTURESPLASTIC QUALITY W.C AMD WASHBASIN IN MATING SHADES/COLORS, EXHAUST FAN, MIRROR, TOWEL RACK, ROD & RING ACCESSORIES.
6 . KITCHEN
6 . 1 FLOORVITRIFIED TILES
6 . 2 WALLSCERAMIC TILES IN DADO
6 . 3 CEILINGOBD
6 . 4 COUNTERSGRANITE/MARBLE TOP
6 . 5 FIXTURESFITTING OF KOHLER OR EQUIVALENT. DOUBLE BOWL STAINLESS SINK WITH DRAIN BOARD.
6 . 6 KITCHEN APPLIANCESNA
7 . UTILITY ROOMS/UTILITY BALCONY/TOILET
7 . 1 FLOORCERAMIC TILES/WALL DADO
7 . 2 WALLS & CEILINGCEMENT PLASTER WITH OBD
7 . 3 TOILETOBD
7 . 4 BALCONYNA
8 . SIT-OUTS
8 . 1 FLOORNA
8 . 2 WALLS & CEILINGNA
8 . 3 RAILINGSNA
8 . 4 FIXTURESNA












Sr. No.Document DescriptionDate of Document UploadView Document
1TOWER-2 SECTIONS AND ELEVATIONS20-02-2020 View Document
2ZILA PANCHAYAT NOC20-02-2020 View Document
3NURSERY SCHOOL20-02-2020 View Document
4BASEMENT FLOOR AREA DETAILS20-02-2020 View Document
5LICENSE NO 124-LC-IV20-02-2020 View Document
6TOWER-3 SECTIONS AND ELEVATIONS20-02-2020 View Document
7TOWER-14 FLOOR PLANS AND AREA DETAILS20-02-2020 View Document
8SITE PLAN20-02-2020 View Document
9TOWER-1 SECTIONS AND ELEVATIONS20-02-2020 View Document
10SITE PLAN 20-02-2020 View Document
11MULTIPURPOSE HALL_FLOOR PLANS & AREA DETAILS20-02-2020 View Document
12LOI DATED 14071420-02-2020 View Document
13TOWER-2 FLOOR PLANS AND AREA DETAILS20-02-2020 View Document
14BASEMENT FLOOR PLAN20-02-2020 View Document
15TOWER-5, 6 AND 7 SECTIONS AND ELEVATIONS20-02-2020 View Document
16TOWER-9 18TH FLOOR PLANS AND AREA DETAILS20-02-2020 View Document
17NURSERY SCHOOL SITE PLAN20-02-2020 View Document
18TOWER-4 SECTIONS AND ELEVATIONS20-02-2020 View Document
19TOWER-5 AND 7 FLOOR PLANS AND AREA DETAILS20-02-2020 View Document
20STILT FLOOR AREA DETAILS20-02-2020 View Document
21PRIMARY SCHOOL20-02-2020 View Document
22TOWER-15 FLOOR PLANS AND AREA DETAILS20-02-2020 View Document
23ZONING PLAN20-02-2020 View Document
24TOWER-10 AND 11 SECTIONS AND ELEVATIONS20-02-2020 View Document
25EWS-FLOOR PLANS, SECTIONS & AREA DETAILS20-02-2020 View Document
26GREEN AREA DETAILS20-02-2020 View Document
27TOWER-4 FLOOR PLANS AND AREA DETAILS20-02-2020 View Document
28FIRE NOC HILL VIEW20-02-2020 View Document
29BR-III GH20-02-2020 View Document
30TOWER-10 AND 11 FLOOR PLANS AND AREA DETAILS20-02-2020 View Document
31FOREST NOC20-02-2020 View Document
32TOWER-8 SECTIONS AND ELEVATIONS20-02-2020 View Document
33LICENSE 124 OF 201420-02-2020 View Document
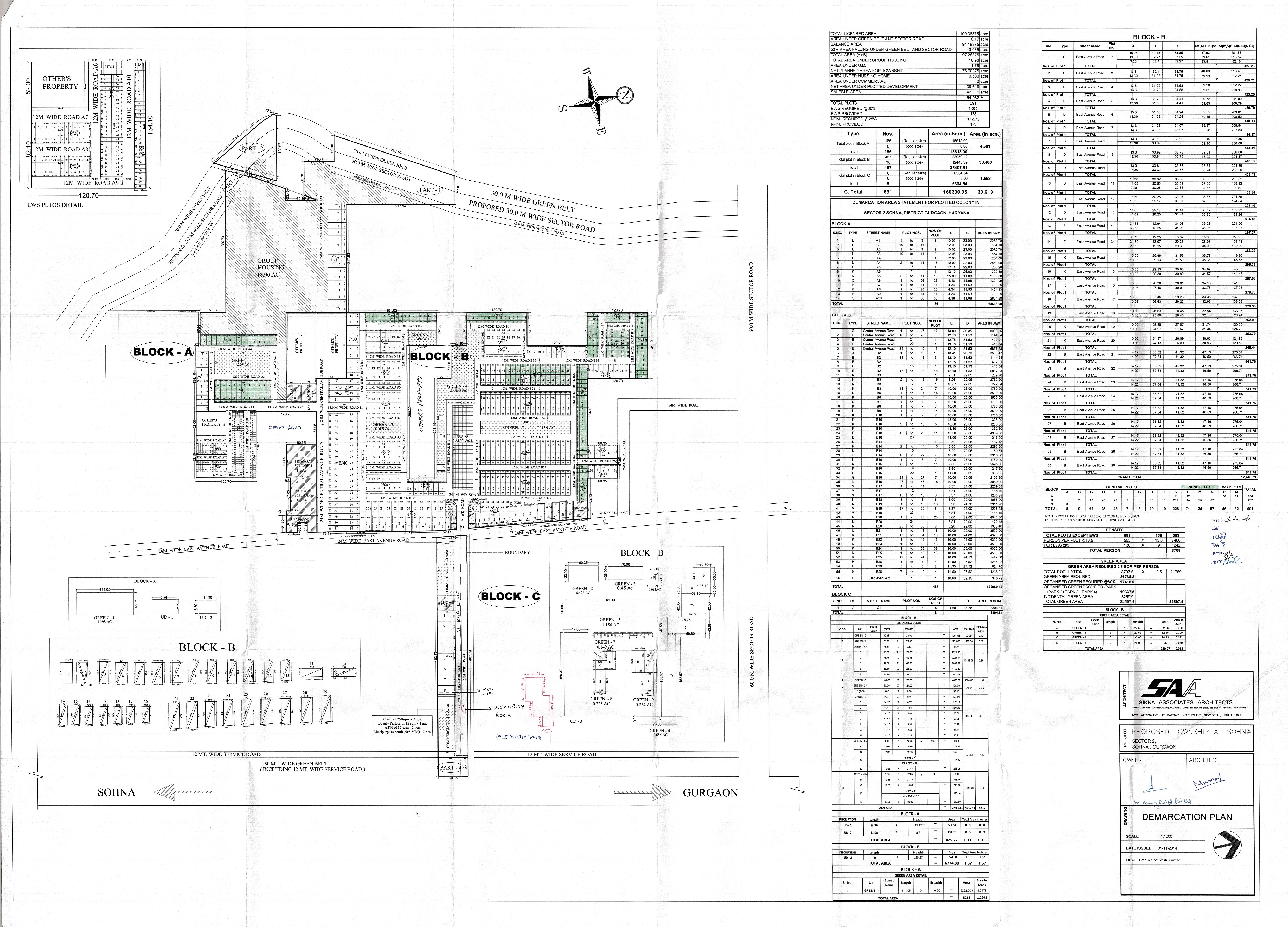
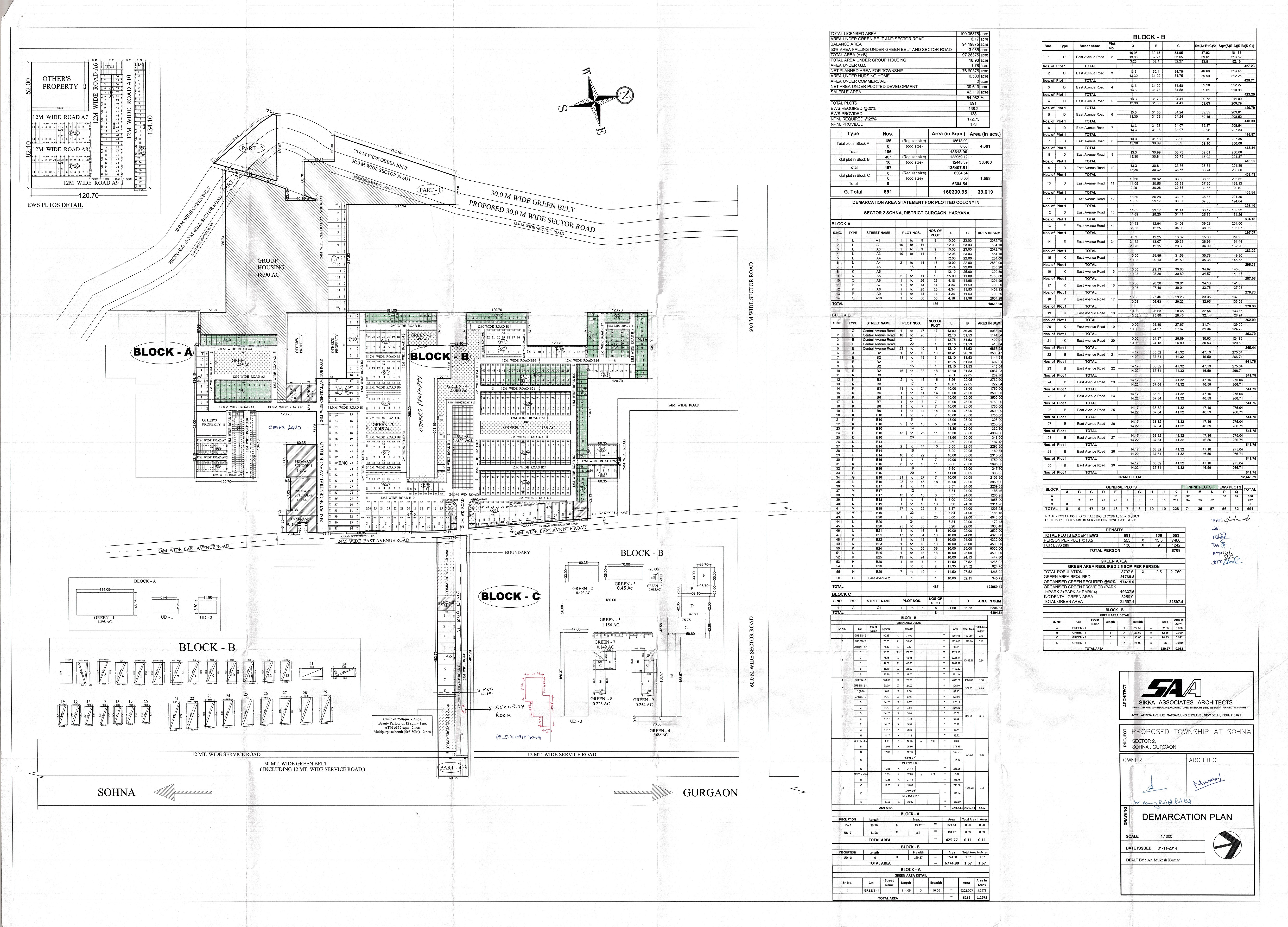
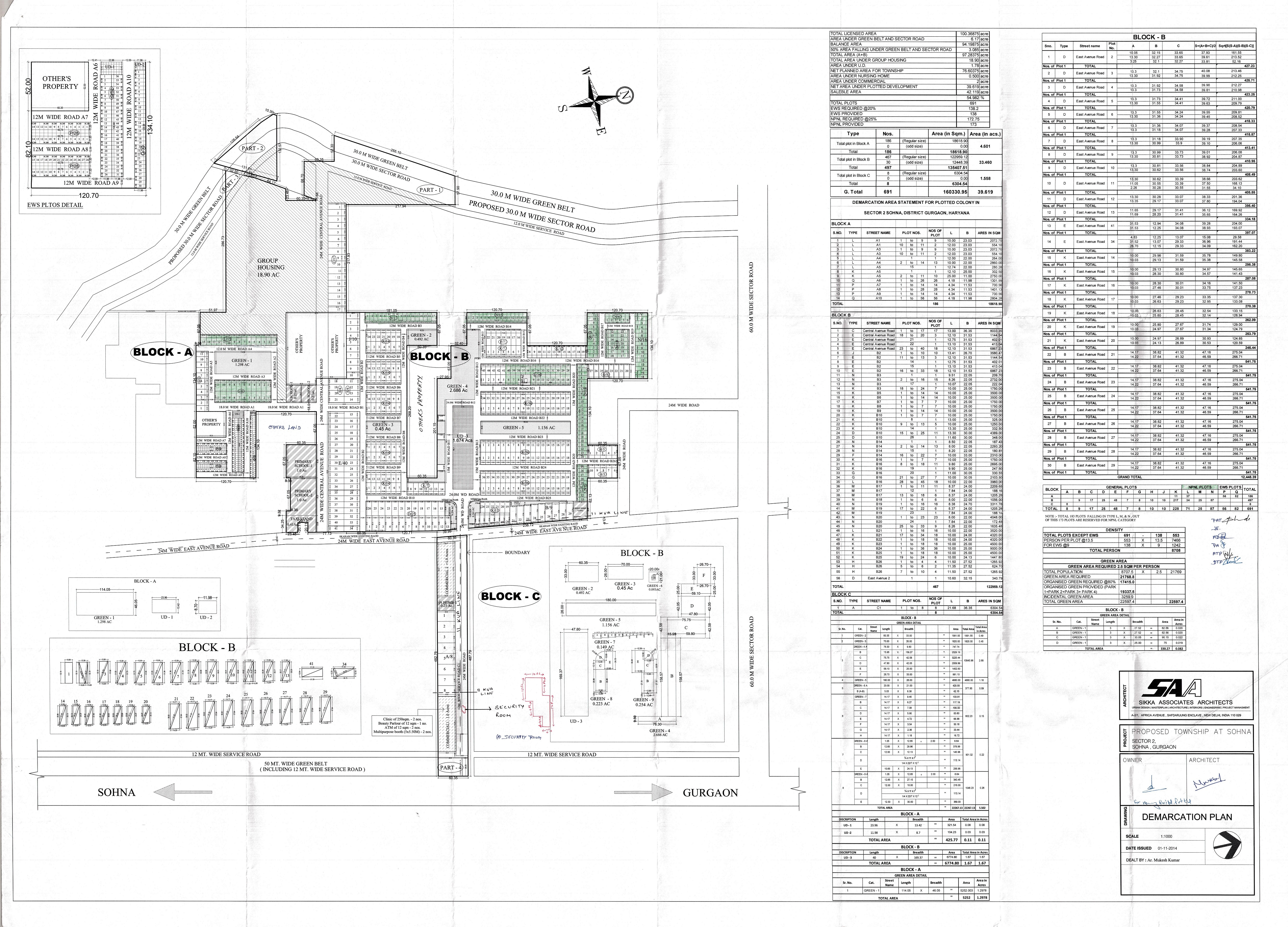
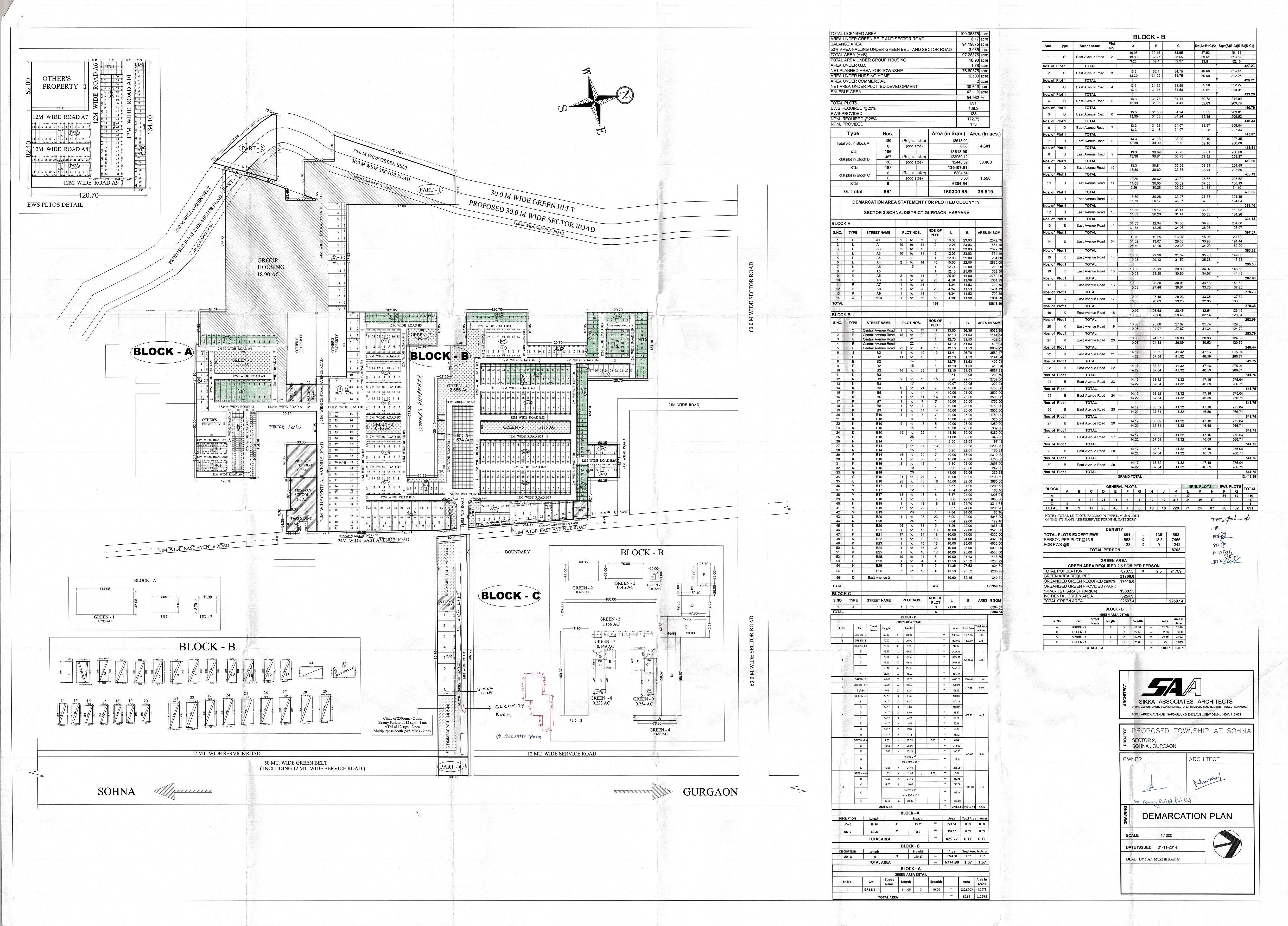
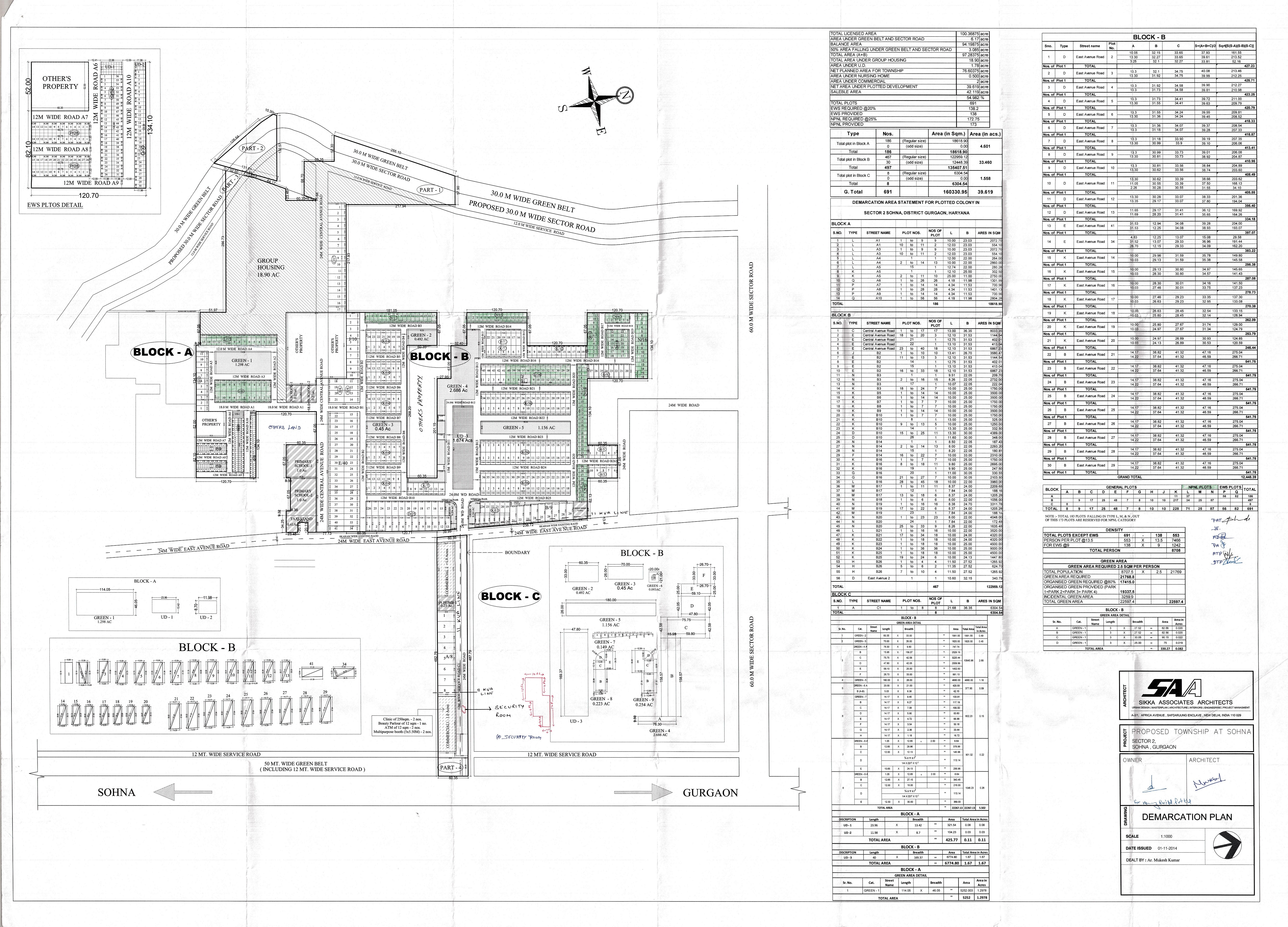
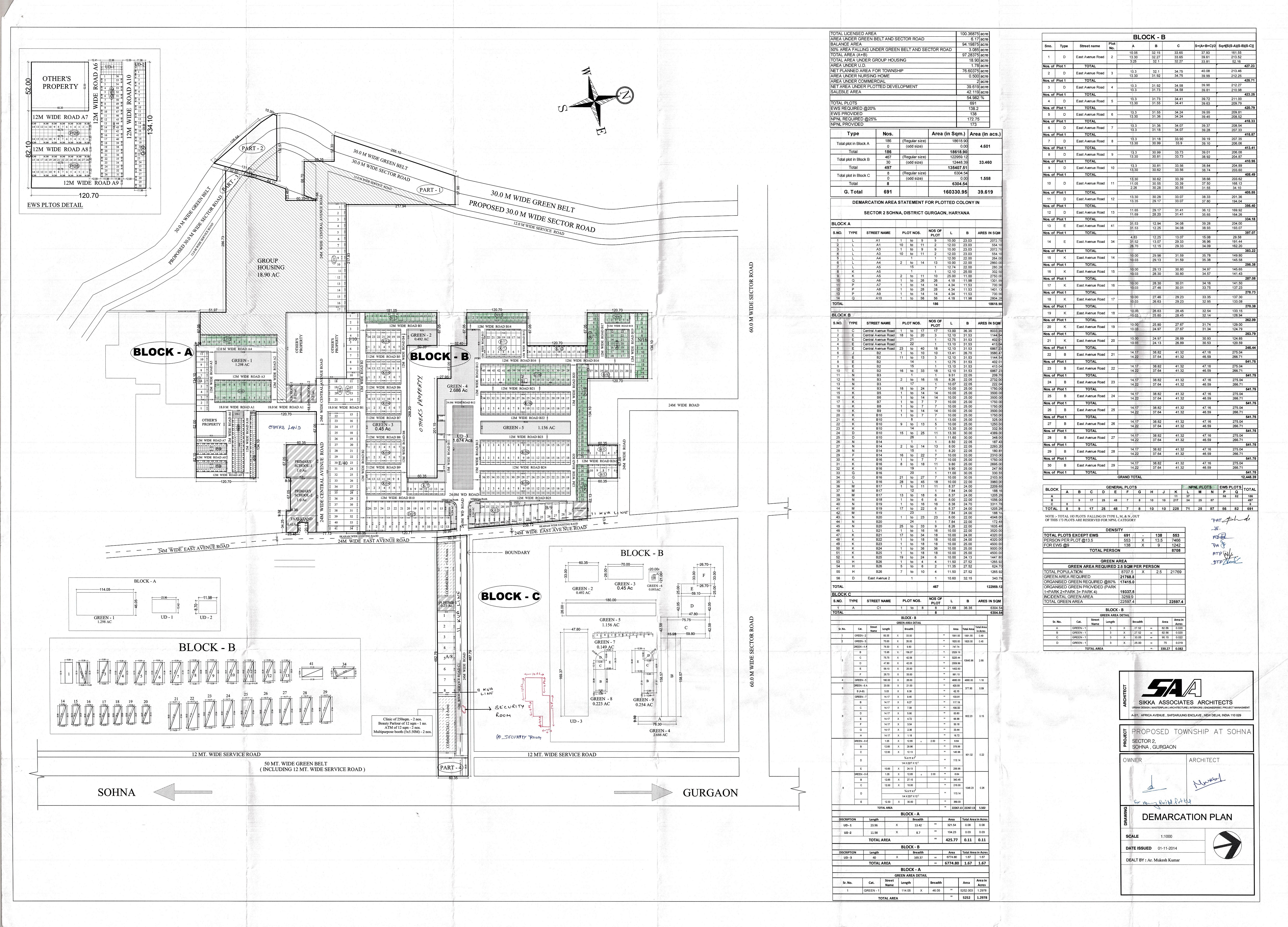
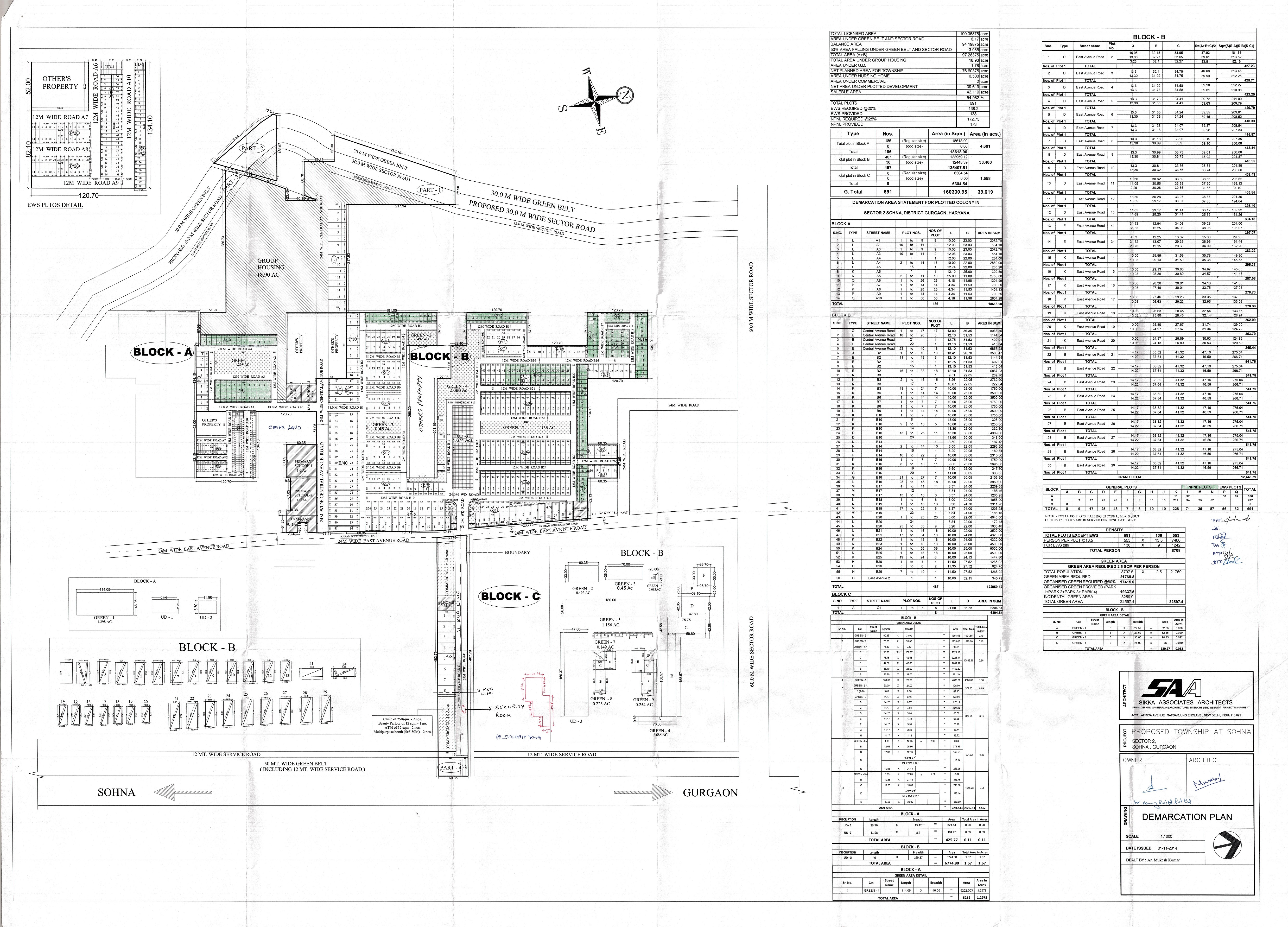
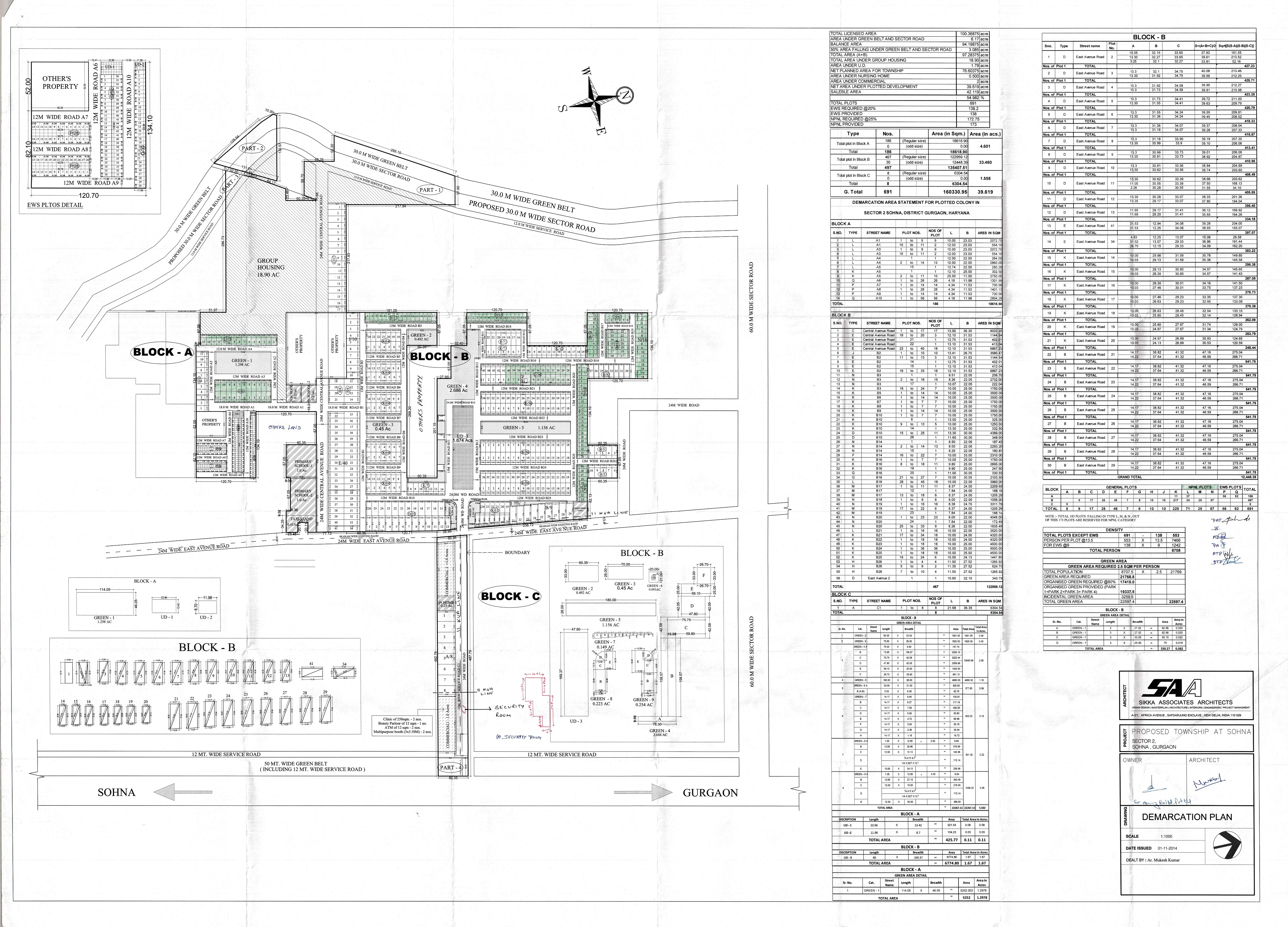
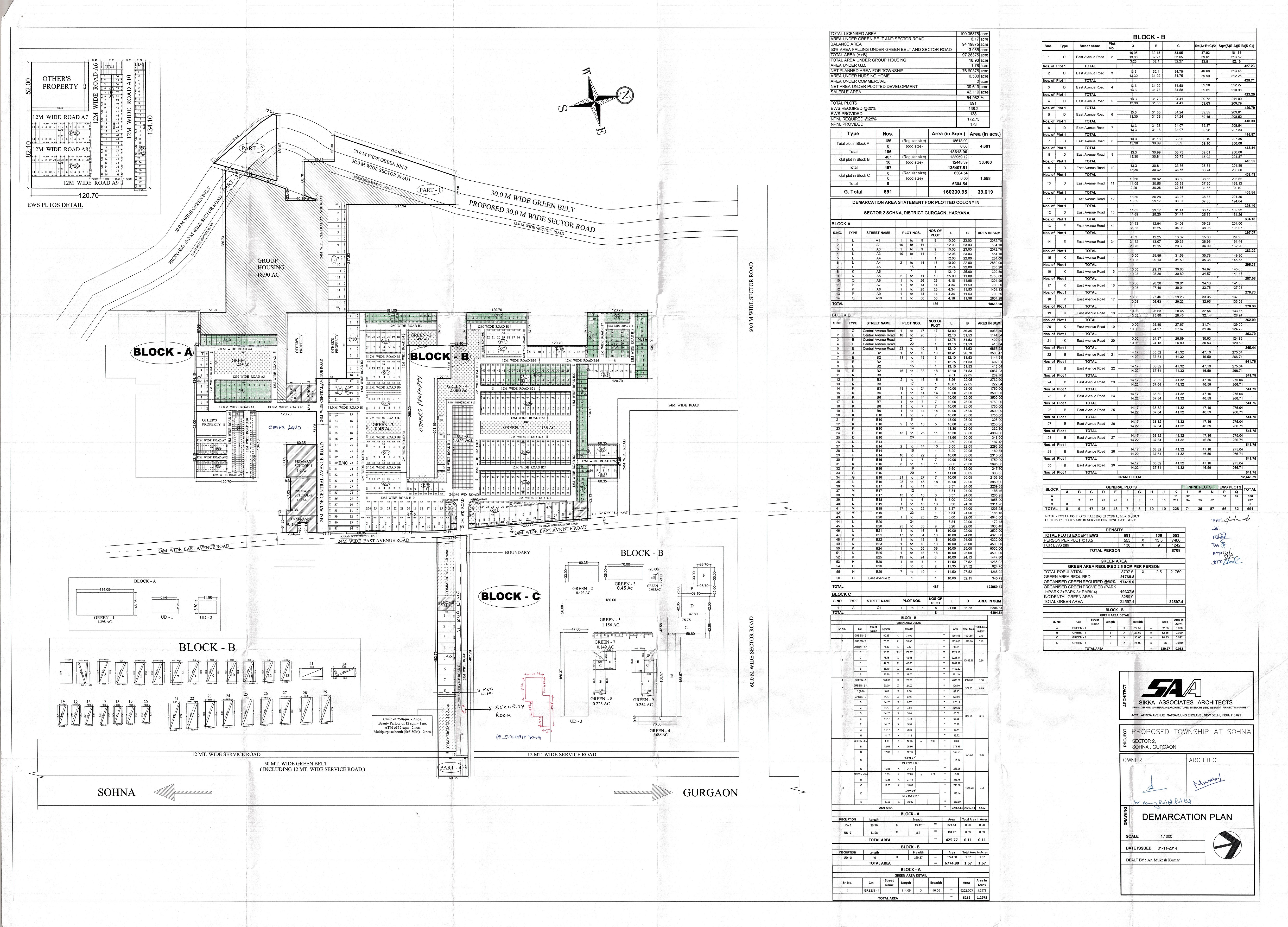
34DEMARCATION PLAN20-02-2020 View Document
35TOWER-12 AND 13 FLOOR PLANS AND AREA DETAILS20-02-2020 View Document
36CONVENIENT SHOPPING20-02-2020 View Document
37EWS-SECTIONS & ELEVATIONS20-02-2020 View Document
38STILT FLOOR PLAN20-02-2020 View Document
39SITE PLAN WITH SERVICES20-02-2020 View Document
40TOWER-1 FLOOR PLANS AND AREA DETAILS20-02-2020 View Document
41TOWER-3 FLOOR PLANS AND AREA DETAILS20-02-2020 View Document
42TOWER-9 FLOOR PLANS AND AREA DETAILS20-02-2020 View Document
43TOWER-15 SECTIONS AND ELEVATIONS20-02-2020 View Document
44COPY OF LICENSE ALONG WITH SCHEDULE OF LAND27-12-2019 View Document
45IN CASE OF PLOTTED COLONY, THE LATEST LAYOUT PLAN30-12-2019 View Document
46DECLARATION SUPPORTED BY AFFIDAVIT DULY SIGNED BY THE PROMOTER TO BE ENCLOSED.30-12-2019 View Document
47IN CASE OF GROUP HOUSING/ COMMERCIAL SITES, A COPY OF THE APPROVED SITE PLAN30-12-2019 View Document
48NON DEFAULT CERTIFICATE FROM A CHARTERED ACCOUNTANT30-12-2019 View Document
49PRIMARY SCHOOL_SITE PLAN20-02-2020 View Document
50TOWER-14 SECTIONS AND ELEVATIONS20-02-2020 View Document
51TOWER-6 FLOOR PLANS AND AREA DETAILS20-02-2020 View Document
52HEIGHT CLEARANCE PERMISSION20-02-2020 View Document
53TOWER-8 FLOOR PLANS AND AREA DETAILS20-02-2020 View Document
54TOWER-12 AND 13 SECTIONS AND ELEVATIONS20-02-2020 View Document
55ENVIRONMENT CLEARANCE20-02-2020 View Document