HRERA GurugramTemp Project Id : RERA-GRG-PROJ-461-2019
Submission Date : 23-01-2020 10:55:55 AM
Applicant Type : Company
Project Type: ONGOING




AVL INFRASTRUCTURE PVT. LTD.
PLOT NO.-01, GREEN PARK MAIN, NEW DELHI - 110016
01141326868
9811034906 (Number Shared by Promoter in Public)
md@avlinfra.com
http://www.avlinfra.com
XXXX070N
U45201DL2004PTC129955
 
 


 
 


 
 







AVL36GURGAON
SECTOR-36A, GURUGRAM, HARYANA
GURGAON
GURUGRAM
01244296868
9811651010 (Number Shared by Promoter in Public)
info@avlinfra.com
SURESH KUMAR
01244031515
9811444826 (Number Shared by Promoter in Public)
gm.operations@avlinfra.com








As per sub-rule(2) of rule 3 of the Haryana Real Estate (Regulation and Development) Rules,2017, the fee for registration of the project as has been calculated as follows:
-----------------------------------------------------------------------------------------------------------------------
-----------------------------------------------------------------------------------------------------------------------
-----------------------------------------------------------------------------------------------------------------------
-----------------------------------------------------------------------------------------------------------------------
2. The aforesaid fees is hereby deposited vide following Drafts/ Banker’s Cheques:-

Sr No.Draft/Cheque No.Draft DateAmountPayee BankPayable To
127345531-07-2017841400HDFC BANK HRERA Gurugram
21497731-12-2018788216HDFC BANK HRERA Gurugram







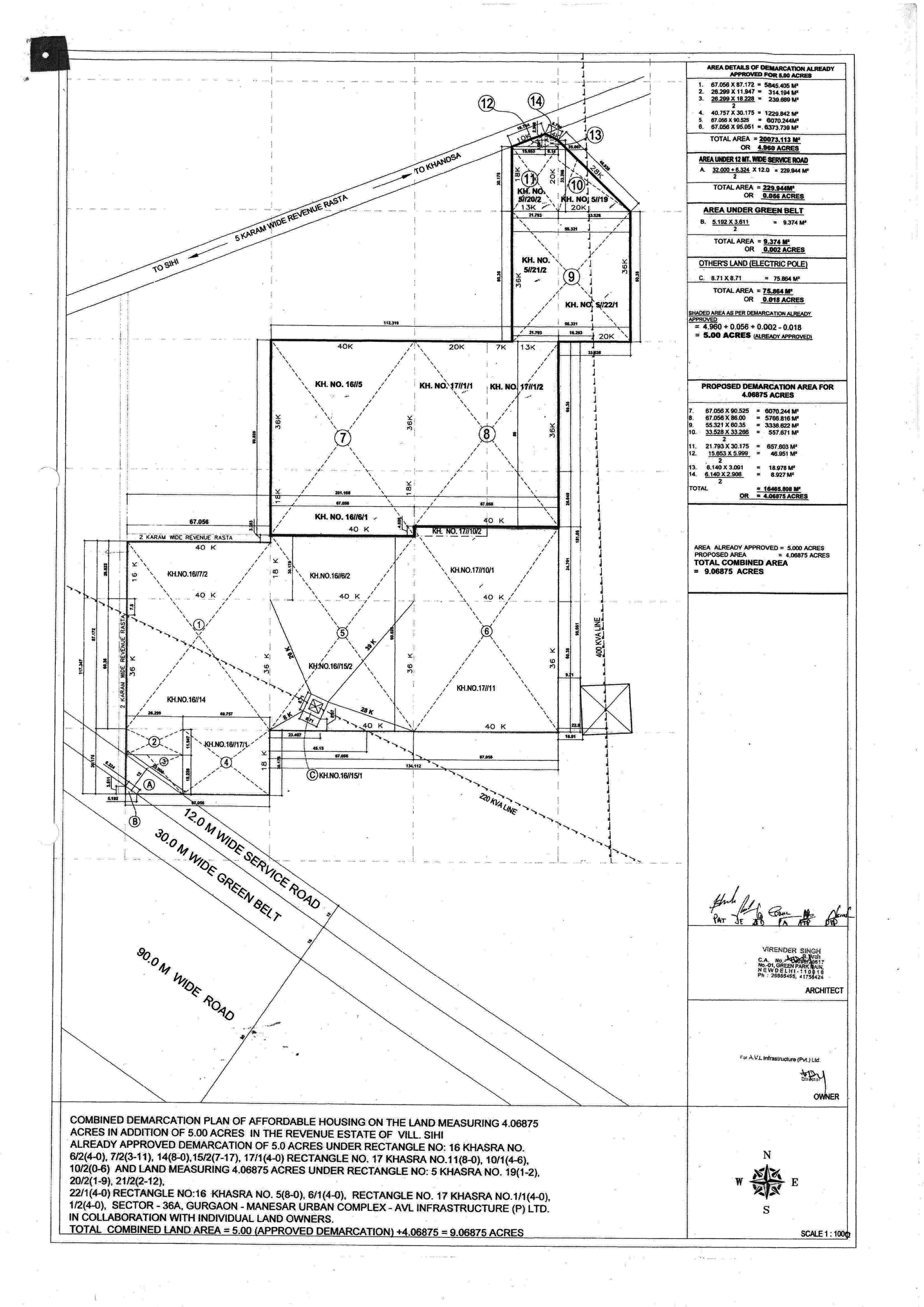
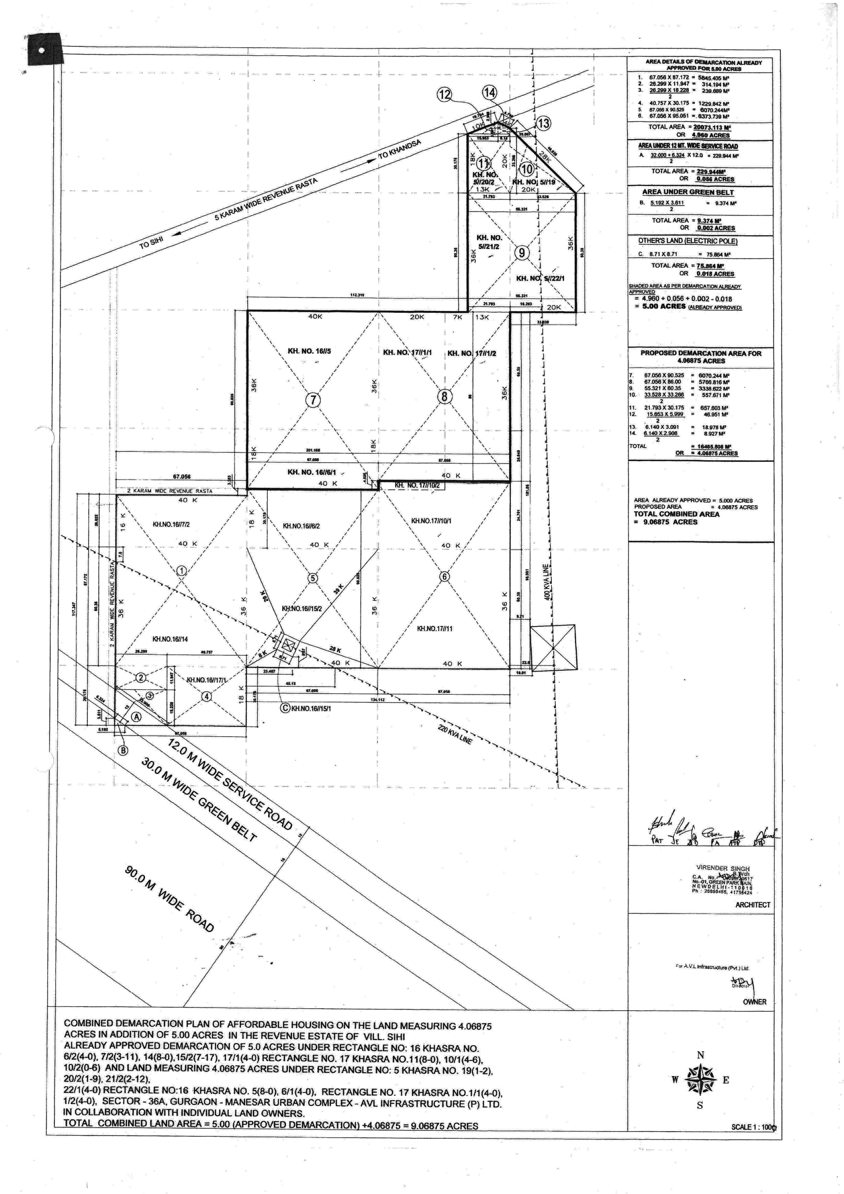
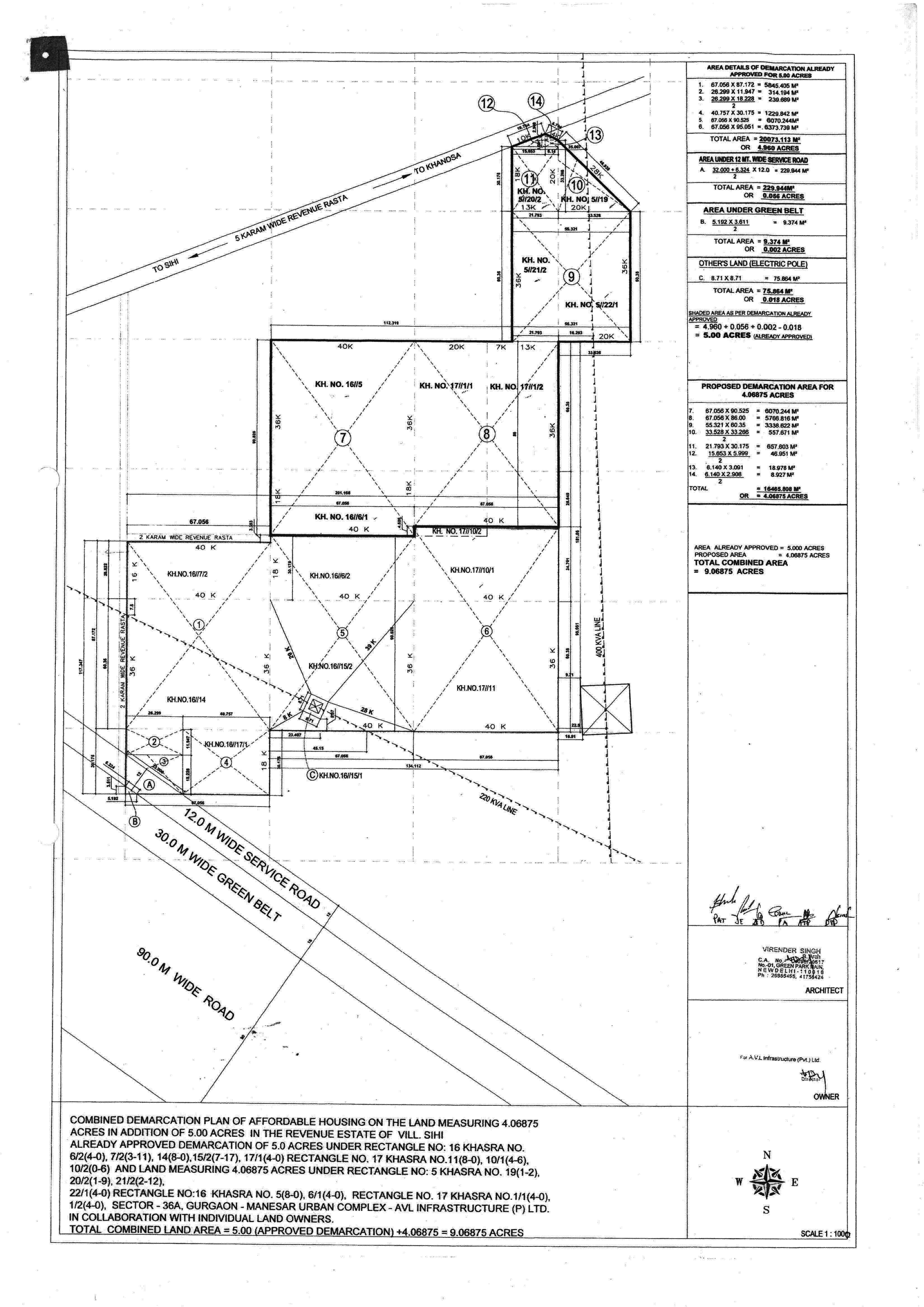
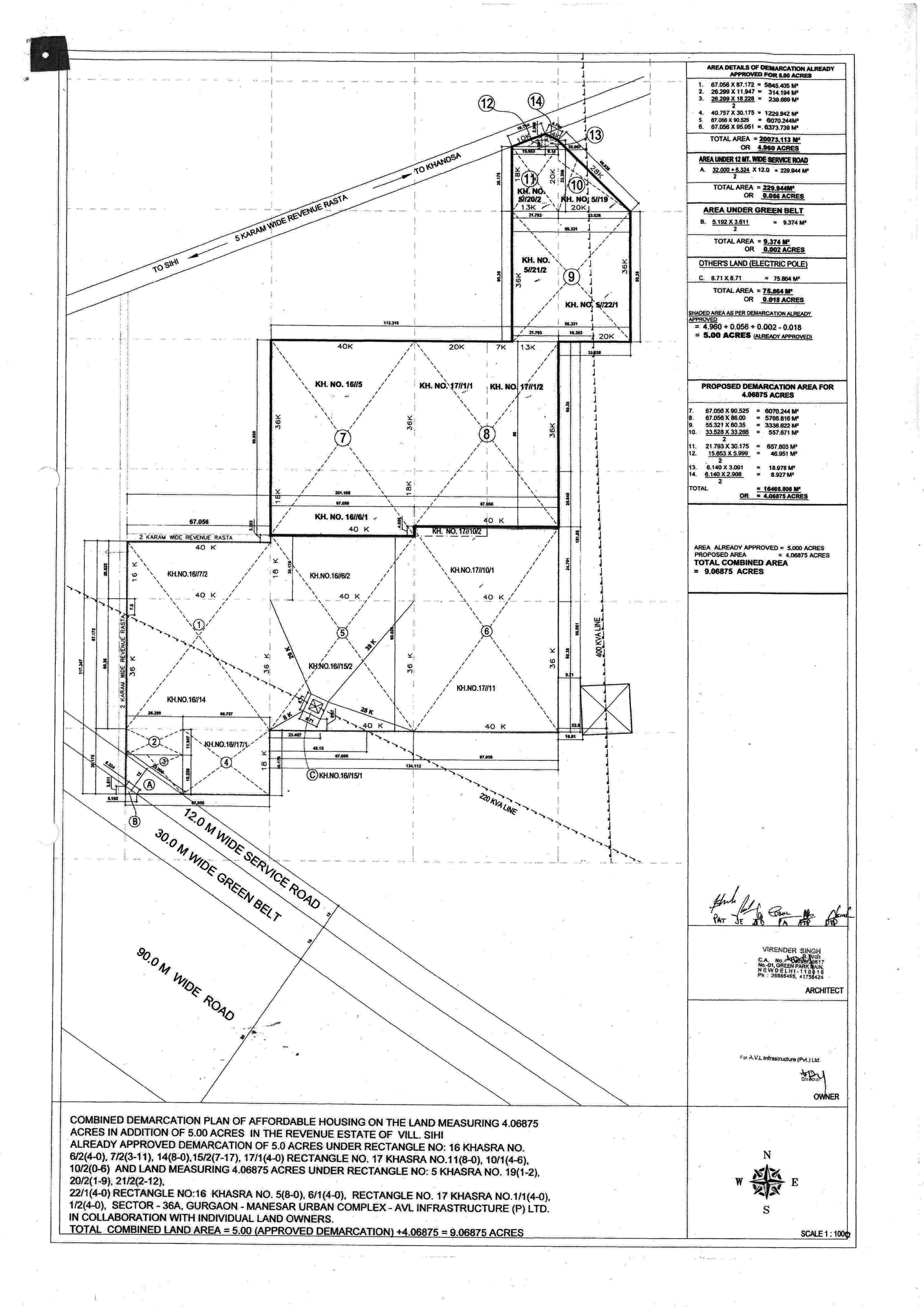
9.06875 (Acre)
2.25
2.24955
9.06875 (Acre)
18 of 2014 (10-06-2014), 74 of 2014 (01-08-2014)
No
Address     PLOT NO.-01, GREEN PARK MAIN, NEW DELHI - 110016
Annexure-B- COLLABORATION AGREEMENTS AND SPECIAL POWER OF ATTORNEY ( COPY ENCLOSED)
THE COLLABORATION AGREEMENT (DATED 07-08-2013) AND SPECIAL POWER OF ATTORNEY (DATED 07-08-2013) MADE BEFORE GRANT OF LICENCE. (COPY ENCLOSED)
Yes
COPY OF COLLABORATION AGREEMENT IS ENCLOSED IN ANNEXURE.
No
Yes
Yes







26000 Lakhs
11250 Lakhs
13250 Lakhs
200 Lakhs
1300 Lakhs




Sr. No.Land area under usageArea of land (Acres)
1PLOTS TO BE SOLD 0
2LAND AREA TO BE USED FOR CONSTRUCTION OF APARTMENTS 8.67816
3CONSTRUCTION OF ROADS 0
4PAVEMENTS 0
5PARKS AND PLAYGROUNDS 0
6GREEN BELTS 0
7VEHICLE PARKINGS 0
8ELECTRICITY SUB-STATION 0
9CLUB HOUSE 0
10SEWAGE AND SOLID WASTE TREATMENT FACILITY 0
11AREA TO BE LEFT FOR TRANSFERRING TO THE GOVERNMENT FOR COMMUNITY SERVICES 0
12ANY OTHER 0
13COMMERCIAL 0.36159
Total9.03975




FacilityExternal/ connecting service to be provided by (Name the agency)Whether Approval taken from the agency concerned. Yes/No (Annex details in folder C)
ROADSNo
WATER SUPPLYNo
ELECTRICITYHBVPN,DHBVNYes
SEWAGE DISPOSALNo
STORM WATER DRAINAGENo




Sr. No.Name of the facilityEstimated cost (In Lakhs)(Within the project area only)Remarks: Yet to be prepared / Submitted to HUDA, Town & Country Planning Department/ as per project report etc. (Annex relevant documents showing costing details etc. in folder C)
1INTERNAL ROADS AND PAVEMENTS0YET TO BE PREPARED
2WATER SUPPLY SYSTEM0YET TO BE PREPARED
3STORM WATER DRAINAGE0YET TO BE PREPARED
4ELECTRICITY SUPPLY SYSTEM0YET TO BE PREPARED
5SEWAGE TREATMENT & GARBAGE DISPOSAL0YET TO BE PREPARED
6STREET LIGHTING0YET TO BE PREPARED
7SECURITY AND FIRE FIGHTING0YET TO BE PREPARED
8PLAYGROUNDS AND PARKS0YET TO BE PREPARED
9CLUB HOUSE/COMMUNITY CENTRE0YET TO BE PREPARED
10SHOPPING AREA0YET TO BE PREPARED
11RENEWABLE ENERGY SYSTEM0YET TO BE PREPARED
12SCHOOL0YET TO BE PREPARED
13HOSPITAL/DISPENSARY0YET TO BE PREPARED
14ANY OTHER0YET TO BE PREPARED


17-12-2019 (date)
NA (date)


Sr. No.Plot/ apartment type Size of the plot/carpet area of the apartments Total number of plots/apartments in the project Total size of the plots/carpet area of the apartments Plots/apartments booked/ sold upto the date of application Yet to be sold/ booked No. of towers to be/ being constructed for booked apartments
1 APARTMENT/SHOPS/OTHER BUILDINGS Type A1 620 690 427800 690 0 19
2 APARTMENT/SHOPS/OTHER BUILDINGS Type A2 342 360 123120 179 181 19
3 APARTMENT/SHOPS/OTHER BUILDINGS Type A3 363 360 130680 305 55 19
4 APARTMENT/SHOPS/OTHER BUILDINGS Type A4 467 20 9340 20 0 19
5 APARTMENT/SHOPS/OTHER BUILDINGS Type A5 645 10 6450 20 0 19
6 APARTMENT/SHOPS/OTHER BUILDINGS Type A6 416 10 4160 9 1 19
7 APARTMENT/SHOPS/OTHER BUILDINGS Type A7 422 10 4220 8 2 19
8 APARTMENT/SHOPS/OTHER BUILDINGS Type A8 377 20 7540 19 1 19
Total14807133101250240152






TypeNumber of apartments booked/ sold Write or Annex the stage of construction of the booked/ sold apartments in folder C
ALL1240COMPLETE. OCCUPATION CERTIFICATE RECIEVED


01-06-2016
31-12-2019
17-12-2019
01-06-2016
100
17-12-2019
PROFORMA REP-1 PART-C-X ENCLOSED
PROJECT IS COMPLETE. OCCUPATION CERTIFICATE ISSUED.


PlotsBooked/soldStage of handing over the possession (Write or Annex details)
PLOT0N/A
01-06-2016
100
17-12-2019
N/A
N/A


0
0
0
0
0





Expenditure incurred till the date of application (In Lakhs)

ParticularsExpenditure
Apartments20776.35
Shops0
Plots0

Expenditure to be made in each quarter (In Lakhs)

ParticularsExpenditure to be made in each quarter ()
Apr-JuneJuly-SepOct-DecJan-Mar




Expenditure incurred till the date of application (In Lakhs)

ParticularsExpenditure
Roads & Pavements0
Water Supply System0
Sewerage treatment & garbage disposal0
Electricity Supply System0
Storm Water Drainage0
Parks and Playgrounds0
Clubhouse/community centres0
Shopping area0
Other0

Expenditure to be made in each quarter (In Lakhs)

ParticularsExpenditure to be made in each quarter ()
Apr-JuneJuly-SepOct-DecJan-Mar












Particulars Remarks, if any
i. No. of Flats/Apartments constructed1480
ii. No. of Flats/ Apartments booked1066
iii. Total amount sale value of booked Flats, on the date of application/end of last quarter22309.225 Lakhs
iv. Total amount received from the allottees (booked Flats), on the date of application/end of last quarter21085.23 Lakhs
v. Balance amount to be received from the allottees (booked Flats, after completion), on the date of application/end of last quarter0 Lakhs
vi. Balance amount due and recoverable from the allottees (booked Flats) as on the date of application /end of last quarter1224 LakhsAs on 31-03-2019
vii. Amount invested in the project upto the date of application20766.35 Lakhs
Land cost (If any)8627.39 Lakhs
Apartments10559.62 Lakhs
Infrastructure296.99 Lakhs
EDC/ Taxes Etc.1282.35 Lakhs
viii. Balance cost to be incurred for completion of the project and delivery of possession5233.65 Lakhs
(a) In respect of existing allottees5233.65 Lakhs
(b) In respect of rest of the project0 Lakhs
ix. The amount of loan raised from the banks/ financial institutions/ private persons against the project
Annex detail of the securities furnished to the banks/ financial institutions against the aforesaid loans in folder C
710.27 LakhsAs on 31-03-2019
x. Total liabilities against the project up-to-date. (Annex details in folder C) 1354.17 LakhsAs on 31-03-2019



Particulars Estimated expenditure planned to be incurred as per service plan estimates or the project report. (In Lakhs)Actual expenditure incurred upto the date of application. (In Lakhs)
I. INTERNAL ROADS AND PAVEMENTS00
II. WATER SUPPLY SYSTEM00
III. STORM WATER DRAINAGE00
IV. ELECTRICITY SUPPLY SYSTEM00
V. SEWAGE TREATMENT & GARBAGE DISPOSAL00
VI. CLUB HOUSE/COMMUNITY CENTRE00
VII. SCHOOL00
VIII. ANY OTHER00
IX. SOLID WASTE COLLECTION & MGMT SYSTEM00
X. CLUBHOUSE00
XI. NEIGHBOURHOOD SHOPPING00
XII. GREEN AREAS,PARKS,PLAYGROUNDS ETC.00
XIII. COVERED PARKING00
XIV. OPEN PARKING00
XV. GARAGES00
XVI. SECURITY SYSTEM00
XVII. OTHER FACILITIES AS PER PROJECT REPORT00









Yes
Yes
HDFC BANK LTD. S-4, GREEN PARK EXTN., NEW DELHI-110016
13450350000066
HDFC0001345
110240150
1345
Ramesh Arya, Plot No.-01, Green Park Main, New Delhi - 110016
Certificate Uploaded in documents











Yes
No
Yes
Yes
Yes
Yes
Yes
Yes
Yes
Yes


No
Yes
Yes
Yes
Yes
No
No
No
Statutory Approvals Statutory Approvals StatusDate
I. OCCUPATION CERTIFICATEALREADY BEEN OBTAINED17-12-2019
II. RENEWAL OF LICENSES 18 & 74 OF 2014ALREADY BEEN OBTAINED19-12-2019
III. NOC FROM FIRE FIGHTING DEPARTMENTALREADY BEEN OBTAINED22-11-2019
IV. NOC FOR LIFTS MEMO NO.17802 TO 17822 ALREADY BEEN OBTAINED31-10-2019
V. NOC FOR DG SECTSALREADY BEEN OBTAINED30-10-2019
VI. APPROVAL OF ELECTRIFICATION PLANALREADY BEEN OBTAINED12-06-2019
VII. NOC FOR HEIGHT CLEARANCE FROM AAIALREADY BEEN OBTAINED30-09-2014
VIII. REGISTRATION CERTIFICATE OF PROJECTALREADY BEEN OBTAINED24-08-2017
IX. CONSENT TO ESTABLISHALREADY BEEN OBTAINED02-01-2016
X. ENVIRONMENT CLEARANCE ALREADY BEEN OBTAINED24-11-2015








Yes


Yes


Copy of Draft Agreement Enclosed













SPECIFICATION OF CONSTRUCTION
Specification of apartments and other buildings including the following:
1FLOORING DETAILS OF VARIOUS PARTS OF HOUSELIVING/DINING ROOM, BEDROOM(S), KITCHEN : CERAMIC TILES TOILETS, BATHROOM & BALCONY : SLIP RESISTANCE CERAMIC TILES COMMON AREA : PASSAGE, LIFT LOBBY - TILES STAIRCASE : FINISHED CEMENT CONCRETE
2WALL FINISHING DETAILSINTERNAL : LIVING/DINING ROOM, BED ROOM(S), KITCHEN, TOILET, BATHROOM, BALCONY, PASSAGE, STAIRCASE, LIFT LOBBY, STILT, MACHINE ROOM ETC.: FINISHED WITH TWO COATS OF WHITE OR COLOUR WASH EXTERNAL FAçADE: FINISHED WITH TWO COATS OF SMOOTH EXTERIOR PLAIN PAINT.
3KITCHEN DETAILSWORKTOP : FINISHED WITH STONE WITH SINGLE BOWL STAINLESS STEEL SINK WALL FINISHING : CERAMIC WALL TILES UP TO 2’-0” HEIGHT ABOVE WORKTOP
4BATHROOM FITTINGSCHROME PLATED (C.P.) FILLINGS : L-BAND & FLANGE SHOWER MIXER, SINK COCK WITH SWIVEL’S SPOUT, BIBCOCK, PILLAR TAP, ANGLE STOP VALVE, CP GRATINGS. WALL FINISHING: CERAMIC WALL TILES UP TO 5’-0” HEIGHT WATER CLOSET: FLOOR MOUNTED WHITE EWC WITH SLEEK STANDARD POLYPROPYLENE CISTERN COMPLETE WITH FITTINGS AND SEAT COVER; WASH BASIN: WHITE WALL HUNG COMPACT FIXED TO WALL.
5WOOD WORK ETCN/A
6DOORS AND WINDOS FRAMESFRAMES : M.S. Z-SECTION DOORS & HARDWARE : COMMERCIAL FLUSH DOOR FINISHED WITH ENAMEL PAINT, FITTED WITH ALUMINIUM HARDWARE FITTINGS WINDOWS AND GLAZING : M.S. Z-SECTION WITH 4MM CLEAR GLASS
7GLASS WORKWINDOWS AND GLAZING : M.S. Z-SECTION WITH 4MM CLEAR GLASS
8ELECTRIC FITTINGSPIANO SWITCHES / SOCKETS
9CONDUCTING AND WIRING DETAILSISI MARKED PVC INSULATED SINGLE CORE UNSHEATHED COPPER WIRE, PVC CONDUITS WITH MECHANICAL STRENGTH OF MEDIUM QUALITY
10CUPBOARD DETAILSN/A
11WATER STORAGEN/A
12LIFT DETAILSPASSENGER LIFT
13EXTERNAL GLAZINGSWINDOWS AND GLAZING : M.S. Z-SECTION WITH 4MM CLEAR GLASS
13.1WINDOWS/GLAZINGSWINDOWS AND GLAZING : M.S. Z-SECTION WITH 4MM CLEAR GLASS
14DOORSISI MARKED COMMERCIAL FLUSH DOOR FINISHED WITH ENAMEL PAINT, FITTED WITH ALUMINUM HARDWARE FITTINGS
14.1MAIN DOORSISI MARKED COMMERCIAL FLUSH DOOR FINISHED WITH ENAMEL PAINT, FITTED WITH ALUMINUM HARDWARE FITTINGS
14.2INTERNAL DOORSISI MARKED COMMERCIAL FLUSH DOOR FINISHED WITH ENAMEL PAINT, FITTED WITH ALUMINUM HARDWARE FITTINGS
15AIR CONDITIONINGN/A
16ELECTRICAL FITTINGSPIANO SWITCHES / SOCKETS
17CNG PIPE LINEN/A
18PROVISION OF WIFI AND BROADBAND FACILITYN/A
19EXTERNAL FINISHING/COLOUR SCHEMEEXTERNAL FAçADE: FINISHED WITH TWO COATS OF SMOOTH EXTERIOR PLAIN PAINT.
20INTERNAL FINISHINGINTERNAL : LIVING/DINING ROOM, BED ROOM(S), KITCHEN, TOILET, BATHROOM, BALCONY, PASSAGE, STAIRCASE, LIFT LOBBY, STILT, MACHINE ROOM ETC.: FINISHED WITH TWO COATS OF WHITE OR COLOUR WASH
SPECIFICATION UNIT WISE
1 . LIVING/DINING/FOYER/FAMILY LOUNGE
1 . 1 FLOORCERAMIC TILES
1 . 2 WALLSFINISHED WITH TWO COATS OF WHITE OR COLOR WASH
1 . 3 CEILINGFINISHED WITH TWO COATS OF WHITE OR COLOR WASH
2 . MASTER BEDROOM/DRESSROOM
2 . 1 FLOORCERAMIC TILES
2 . 2 WALLSFINISHED WITH TWO COATS OF WHITE OR COLOR WASH
2 . 3 CEILINGFINISHED WITH TWO COATS OF WHITE OR COLOR WASH
2 . 4 MODULAR WARDROBESN/A
3 . MASTER TOILET
3 . 1 FLOORSLIP RESISTANCE CERAMIC TILES
3 . 2 WALLSWALL FINISHING: GLAZED CERAMIC WALL TILES UPTO 5’-0” HEIGHT
3 . 3 CEILINGFINISHED WITH TWO COATS OF WHITE OR COLOUR WASH
3 . 4 COUNTERSN/A
3 . 5 SANITARY WARE/CP FITTINGSCHROME PLATED (C.P.) FITTINGS: ISI MARKED L-BAND & FLANGE SHOWER MIXER, BIBCOCK, PILLAR TAP, ANGLE STOP VALVE, CP GRATINGS, WASTE COUPLING & OVERHEAD SHOWER. WATER CLOSET: FLOOR MOUNTED WHITE EWC WITH SLEEK STANDARD POLYPROPYLENE CISTERN COMPLETE WITH FITTINGS AND SEAT COVER; WASH BASIN: WHITE WALL HUNG COMPACT FIXED TO WALL.
3 . 6 FITTING/FIXTURESN/A
4 . BED ROOMS
4 . 1 FLOORCERAMIC TILES
4 . 2 WALLSFINISHED WITH TWO COATS OF WHITE OR COLOUR WASH
4 . 3 CEILINGFINISHED WITH TWO COATS OF WHITE OR COLOUR WASH
4 . 4 WARDROBESN/A
5 . TOILET
5 . 1 FLOORSLIP RESISTANCE CERAMIC TILES
5 . 2 WALLSWALL FINISHING: GLAZED CERAMIC WALL TILES UPTO 5’-0” HEIGHT
5 . 3 CEILINGFINISHED WITH TWO COATS OF WHITE OR COLOUR WASH
5 . 4 COUNTERSN/A
5 . 5 SANITARY WARE/CP FITTINGSCHROME PLATED (C.P.) FITTINGS: ISI MARKED L-BAND & FLANGE SHOWER MIXER, BIBCOCK, PILLAR TAP, ANGLE STOP VALVE, CP GRATINGS, WASTE COUPLING & OVERHEAD SHOWER. WATER CLOSET: FLOOR MOUNTED WHITE EWC WITH SLEEK STANDARD POLYPROPYLENE CISTERN COMPLETE WITH FITTINGS AND SEAT COVER; WASH BASIN: WHITE WALL HUNG COMPACT FIXED TO WALL.
5 . 6 FIXTURESN/A
6 . KITCHEN
6 . 1 FLOORCERAMIC TILES
6 . 2 WALLSFINISHED WITH TWO COATS OF WHITE OR COLOUR WASH
6 . 3 CEILINGFINISHED WITH TWO COATS OF WHITE OR COLOUR WASH
6 . 4 COUNTERSFINISHED WITH STONE WITH SINGLE BOWL STAINLESS STEEL SINK
6 . 5 FIXTURESSINK COCK WITH SWIVEL’S SPOUT
6 . 6 KITCHEN APPLIANCESN/A
7 . UTILITY ROOMS/UTILITY BALCONY/TOILET
7 . 1 FLOORSLIP RESISTANCE CERAMIC TILES
7 . 2 WALLS & CEILINGFINISHED WITH TWO COATS OF WHITE OR COLOUR WASH
7 . 3 TOILETSLIP RESISTANCE CERAMIC TILES
7 . 4 BALCONYSLIP RESISTANCE CERAMIC TILES
8 . SIT-OUTS
8 . 1 FLOORN/A
8 . 2 WALLS & CEILINGN/A
8 . 3 RAILINGSN/A
8 . 4 FIXTURESN/A












Sr. No.Document DescriptionDate of Document UploadView Document
1 SERVICE PLANS SHOWING THE SERVICES ON THE LAYOUT PLAN 16-01-2020 View Document
2 ZONING PLAN 16-01-2020 View Document
3 COPY OF LICENSE ALONG WITH SCHEDULE OF LAND 16-01-2020 View Document
4 DEMARCATION PLAN 21-01-2020 View Document
5 A COMPLETE SET OF THE LAST APPROVED BUILDING PLANS 16-01-2020 View Document
6 IN CASE OF PLOTTED COLONY, THE LATEST LAYOUT PLAN 23-01-2020 View Document
7 DOCUMENTS RELATING TO THE ENTRY OF LICENSE AND COLLABORATION AGREEMENT IN THE REVENUE RECORD 16-01-2020 View Document
8 IN CASE OF GROUP HOUSING/ COMMERCIAL SITES, A COPY OF THE APPROVED SITE PLAN 16-01-2020 View Document
9 NON DEFAULT CERTIFICATE FROM A CHARTERED ACCOUNTANT 21-01-2020 View Document
10 CASH FLOW STATEMENT OF THE PROPOSED PROJECT 22-01-2020 View Document
11 SPECIAL POWER OF ATTORNEY 17-01-2020 View Document
12 CERTIFICATE FROM A CHARTERED ACCOUNTANT CERTIFYING THAT THE INFORMSTION PROVIDED BY THE APPLICANT IN FORM REP-1-C-X IS CORRECT AS PER THE BOOKS OF ACCOUNTS/ BALANCE SHEET OF THE APPLICANT 21-01-2020 View Document
13 DECLARATION SUPPORTED BY AFFIDAVIT DULY SIGNED BY THE PROMOTER TO BE ENCLOSED. 22-01-2020 View Document












Sr. No.Document DescriptionDate of Document UploadView Document
1 OC uploaded 04-08-2023 View Document